RSG EX18b - Vrtačka Fein - Bezplatný návod k obsluze
Najděte návod k zařízení zdarma RSG EX18b Fein ve formátu PDF.
Stáhněte si návod pro váš Vrtačka ve formátu PDF zdarma! Najděte svůj návod RSG EX18b - Fein a vezměte svůj elektronický přístroj zpět do rukou. Na této stránce jsou zveřejněny všechny dokumenty potřebné k používání vašeho zařízení. RSG EX18b značky Fein.
NÁVOD K OBSLUZE RSG EX18b Fein
Pouzité symboly, zkratky a pojmy.
| Symbol, značka Vysvětlení | |
| 11 | Uposlechněte pouynú ve vedle stojícím textu nebo grafice! |
| 2 | Nezbytně Čěte přiložné Dokumenty jaků námod k obsluze a všeobecná bezpečnostní upozornění. |
| 3 | Při práci použijte ochranu očí. |
| 4 | Pří práci použijte ochranu sluchu. |
| 5 | Pří práci použijte ochranu rukou. |
| 6 | Všeobecná značka zákazu. Toto počínáni je zakázané. |
| 7 | Sahat dovnitř zakáźano! |
| 8 | Nedotýkejte se rotujćích dlù elektronářadi. |
| 9 | Sahat do řetěžů a pastorků je zakáźano! |
| 10 | Varovány ižržmi hranami nasazovacich nastrojú, jak{o napiř. ostři Žeziacich nožú. |
| 11 | Horký povrch! |
| 12 | Oblast uchopení |
| 13 | Doplěková informace. |
| 14 | Potvrzuje shodu elektronářadi se směrniciemi evropského společenstvi. |
| 15 | Vyřazené elektronářadi a daláš elektrotechnická a elektrické výrobky rozebrané shromážděte a dodeje{k opětovnému zhodnocení nepoškozujicímuživotnì prostředi. |
| 16 | V Žádném přlpadě neotáčejte tři pojistné šrouby. |
| 17 | Platné pouze pro Čínu: Trvání ochrany Životního prostřědi{pří normálním používání výrobku Číní 10 let. |
| (*) může obsahovat Číslice nebo písmena | |
Technická data.
Objednaci 13607360...
| Pojet otáček naprázdno (n0) | ||
| - Motor | 2860 min-1 | 2860 min-1 |
| - Pracovní nastroje | 35 min-1 | 70 min-1 |
| Posuv (f) | 40 mm/min | 80 mm/min |
| Jmenovity výkon (P) | 1500 W | 1500 W |
| Délka sitového kabelu (se zástrčkou) | ||
| - RSG Ex 1500 (**) | 2 x 20 m | 2 x 20 m |
| - RSG Ex 18 A/B (**) | 2 x 20 m | 2 x 20 m |
| Třida ochrany | I/I | I/I |
| Stupeř krytí | IP X4 | IP X4 |
*Elektromotor a pridavný spinač v provedeni odolném proti vybuchu (vyhovujici ATEX)
| Typ® RSG Ex 1500 A (**) | RSG Ex 1500 B (**) | RSG Ex 18 A (**) |
| RSG Ex 18 B (**) | ||
| Rozměry: | ||
| - Hmotnost (m) | 80 kg | 80 kg |
| - Max. Ø nástroje | 220 mm | 220 mm |
| - Lmax. | 974 mm | 1088 mm |
| - Hmax. | 334 mm | 334 mm |
| - Bmax. | 450 mm | 431 mm |
| - B1 | 371 mm | 371 mm |
| - B2 | 201 mm | 201 mm |
| - B3 | 791 mm | 991 mm |
Urceni frezek na potrubi.
Frezka na potrubi je urcena pro oddelovani a frzovani volne leizich casti potrubi a polozenyoch potrunfh vedeni z ocell nebo litiny a tez ke srazeni hran koncu trubek prd svaenim na stavbach, ve vyrobnich halach a venku. Frezka na potrubi je urcena pro specialn firmy pro obsluhu specialisty pro netrvajci kazdodenni pouziti.
Kompletni frzka na potrubi neni schvalena pro oblast s nebezpejm vbybuchu.
Frezka na potrubi neni urcena pro:
Pouzid v oblastech s vybusnou atmosferou.
- Pouziti za silneho deste a praci podvodou.
- Rozsah teploy mimo -20^ a 40^ .
- Oddelovani vbybusnychlatek.
- Oddélovánf hořlavych materialú.
Smernice 94/9ES ATEX (Atmospheres Explosibles)
Upozornujeme na to, ze frzky na potrubi firmy Fein typu RSG Ex (^) nejsou schvalene pro pouziti v prostreich s nebepezim yvbuchu a proto pro tyto frzky na potrubi neeistuste zadny certifikat typov zkousky podle smernice 94/9ES. (U frzky na potrubi RSG Ex (^) jsu s elekromotorem a pridavnym spinaem zabudovany tolko dvé componenty shodne s ATEX.)
Smernice ATEX plat fouze v prostoru EU.
Na první pohled.
1 Upinacf zafzeni
2 Upevnovaci srobub bočni desky
3 Boční deska
4 Upozorneni
5 Cep
6 Zavitové vreteno
7 ZaRzeni pro prisuv
8 Valcovy sroub zafrzeni pro prisuv
9 Lfcovany sroub
10 Obehová osa
11 Sverna pačka
12 Sestihranny sroub
13 Podložka
14 Upnacf osa
15 Mattice
16 Nastrojov v rretenik
17 Trubkova matica
18 Upevnovaci sroub motoru
19 Prlozka
20 Retezové kolo
21 Transportn hridel
22Pojistnykrouzek
23 Kolik
24 Uzaviraci srounb nastrojovho vreteniku
25 Drzadlo (izolované plochy uchopeni)
26 Stupnice hloubky
27 Ryhovaná matice
28 Radicí páka posuvu
29 Sestihran napinae retezu
30 Podložka napinače retězù
31 Poilstne srouby napinae retezu
32Pojistnykrouzekretezovéhoclanku
33 Cep retezovho clanku
34 Nosné popruhy
Pro Vaši bezpečnost.
Vseobecná bezpečnostní upozorněni.
VAROVÁNÍ
Ctebe vsechna bezpečnostni upozorneni,Pokyny, ilustrace a technická data,jimiz je toto elektronáradi opatreno.
Zanedbáni pí dodržovani bepezchnostrnì upozerněnǐ ápokynu mohou zpušobitá záshé elektrickym prudem, požár a / nebo těszká zranění.
Vsechna bezpecnostni upozorneni a pokyny do budoucna uschovejte.
V bepeznochstnich upozornenich pouzit yojem ,elektronaradi se vztahujne na elektronaradi provozovan na elektricko siti (se sifovym kabelem) a na elektronaradi provozovanae na akumulatoru (bez sitovho kabelu).
1) Bezpečnost pracovniho mista
a) Udrzujte pracovni misto cisté a dobre osvetlené. Neporadek nebo neosvetlené pracovni oblasti mohou vest k urazum.
b) S elektronáradim nepracujte v prostredi ohrzéném expozi, kde se nacházeji hořlavé kapaliny, plynne nebo prach. Elektronáradf yvtváří jiskry, které mohuh prach nebo párý zapálit.
c) Deti a jine osoby urzujte pri pouziti elektronaradi daleko od vaseho pracovniho mista. Pri Rozptyleni muzete ztratit kontrlu nad strojem.
2] Elektrická bezpečnost
a) Pripojovaci zăstrčka elektronáradi musi licovat se zăsvkou. Zăstrčka nesmi byt Žadnym zpùsobem upravena. Společne s elektronáradiim s ochrannym uzemenninem nepouzivejte Žadné adaptérove zăstrčky. Neupravene zăstrčky v hodné zăsvkny snizuji riziko zásaúh elektrický proudem.
b) Zabrański kontaku tela s uzemněnymi povrchy, jako napr. potrubi, topeni, sporáky a chladnicky. Je-li Vase telo uzemněno, existuje zvyşene riziko zasahu elektrickym proudem.
c) Chrante stoj pred destem a vlhkem. Vnikuti vody do elektronáradi zvyšije nebezpećí zásahu elektrickým proudem.
d) Dbeje na ucel kabel, nepouzivejte jek noseni ci zavesei elektronaradi nebo k yvtazeni zastricky ze zasuvky. Udrujte kabel daleko od tepla, oleje, ostrych rhan be neho pohbylvich dilu stroje. Poškozené nebo spletene kabel zvyssui riziko zaśahu elektrickym proudem.
e) Pokud pracujete s elektronáradim venku, použijte pouze takové prodlužovaci kabely, ktere jsou zpúsobilé i pro venkovni použiti. Použitć produzovacho kabelu, jež je vchodny pro použiti venku, snizuje riziko zásahu elektrický proudem.
f) Pokud se neze vyhout provozu elektronáradi ve vlhkém prostrédi, použijte proudovč chronic. Nasazení proudového chranične smižuje riziko zasahu elektrickým proudem.
3] Bezpečnost osob
a) Budte pozern, daveje pozar na to, co delate a pristrupjete k praci s elektronáradim Rozmne. Nepouzivejte zdne elektronáradiPokud jste unaveneni nebo pod vilvem drag, alkoholu nebo leku. Moment nepozornosti pf Pouzit elektronáradi muze vest k vaznym poranenim.
b) Nosto osobni ochranné pomücky a vždy ochranné bryle. Noseni osobnich ochrannych pomucek jako mascara proti prachu, bezpečnostní obuv s protiskluzovou podrázkou, ochranná prilba nebo sluchátka, podle druhu nasazení elektronářadi, snizuji riziko poraněni.
c) Zabrahte neumyslnemu uveden do provozu. Presvedete se, ze je elektronáradi vypnute driye nez jej uchipite, ponesete ci pripojite na zroj proudu a/nebo akumulator. Mate-li pri noseni elektronáradi prst na spinaci neboPokud stroj pripojite ke zdroji proudu zapnuty, pak to muze vest k urazum.
d) Nez elektronáradi zapnete, odstrahte seizovaci nastroje nebo sroubovaky. Nastroj nebo klfc, ktery se nachazv otacivem dlflu stroje, muze vest k poraneni.
e) Vyvarujte se abnormalno drzeni tela. Zajistete si bezpechny postoj a adruzrte vdy rovnovahu. Tim muzete elektronaradv neocekavianch situacich lepe kontrlovat.
f) Noste vhdnodyeV. Nemeste zdny volny odev nebo sperky.Vlasy a odev urzujte daleka od pohybujic se tilu.Volny odev, sperky nebo dlouhe vlasy mohou byt zachyceny pohybujcimi se dilly.
g) Lze-li namontovat odsavaci ci zachycujici pripravyk, presvedite se, ze jsou pripojeny a spravné pouzity. Pouzit odsavani pracu muze snizit ohrozeni pracem.
h) Dbeije na to, abyste pri castem pouzivani naudi nebly mene ostraziti a nezapnomiali na bezpecnostni zasady. Nedbalé ovladání muze zpusobit těžké poraneni za zlomek sekundy.
4) Svedomite zacházeni a použivani elektronáradi
a) Stoj nepretezujte. Pro svou praci pouijte k tomu urcene elektronaradi. S vhdognym elektronaradim budete pracovat v udane oblasti vykonu lepe a bezpecnji.
b) Nepouziveje zadne elektronaradi, jehoz spinac je vadny. Elektronaradi, které nelze zapnout ā vypnout je nebezpečné a musi se opravit.
c) Než provedeze seriženi stroje, yvmenu dlū príslusenstvi nebro stoj adlozite, vytáhnete zastřcko ze zasuvky a/nebro odstrăne odpojtelný akumátor. Toto preventivni opatřeni zabrǎně nužmínshé mapi zapnuté elektrónáfdi.
d) Uchovávejte nepouživané elektrónáradi mimo dosah déti. Nenechte stroj použivat osobám, ktere se strojem nejsou seznámery neho necety tyto poukyny. Elektrónáradi je nebezpečné, je-li použivano nezkusenymi osobaml.
e) Pečujte o elektronáradi a príslusenstvi svédomite. Zkontrolujte, zda pohybléve dily stroje bezvadne funguji a nevpricju se, zda dily nejsou zlomené nebo poskozené tak, ze je omezena funkce elektronáradi. Poskozené dily nechte pred nasazenim stroje opravit. Mnoho urazu ma prićinu ve spatné udržovaném elektronáradi.
f) Rezné nastroje udrzujte ostre a ciste. Peelve osetrované rezné nastroje s ostrymi reznymi hranami se mené vpriciu j a dai je lehceji vest.
g) Používejte elektrónáři, príslušenstvi, nasazovaci nastroje apod. podle těchtoPokynu. Respektujte pritom pracovni podminky a povaděnou cinnost. Použíte elektrónáři pro jiné než určujíci použítu může věst k nebezpečnám situacim.
h) Udrzüjtke rukojeti a uchytné plochy suché, cîsté a bez oleje a maziva. Kluzké rukojeti a uchytné plochy neumožnúj bepezćnou manipulaci a ovladáni naftadi v neočekávanych stlucich.
5) Servis
a) Neche ste elektronáradi opravit pouze kualifikovanym odbornym personálem a pouze s originánní nahrdními dily. Tím bude zajistěno, ze bezpećnost stroje zustane zachována.
Specialni bezpečnostni upozorněni pro fržky na potrubí.
Pri uvedeni do provozu, pri praia a pri udrzbe frzky na potrubi dbejte narodnich bezpecnostnich predpisu.
D Respekujte zakonne smernice o ochran e proti vybuchu.
Postarejte se o bezpečné ustavení opracovávané trabky. Nedbán upozorněni muže věst k važnám zraněnim nebo ke smrti.
Elektricky provozované frézky na potrubi (typ RSG Ex [ ] ).
Sitové napétú a udaj o napétú na frézce na potrubí se museji shodovat.
Pripojka frzky na potrubi musi byt jistena pojistikkou 20 A.
Sitový kabel a popr. prodlužovaci kabel pravidelné kontrolujte!
Frezku na potrubi pripoje k rozvadeči pouze s vypnutým hlavním spinačem. Rozvadeč musí byt obsluze kdykoli dosazitelný.
Použiti.
Udrzujte drzadla a plochy rukojetiSuche, ciste a prosteleoleje a tuku. Kluzká drzadla a plochy rukojeti nedovoluji bezpecnou obsluhu a kontrolu elektronáradi v neprefvidanych situacích.
Pokud provadite prace, pri kterych muze pracovni nastroj zasahnout skryta elektricka vedeni, pak drzte stroj na izolovanych plochach rukojeti. Kontak elektrickym vedenim pod napetim muze privest napetif na kovove casti str vestk zaśahu elektrickym proudet.
Frezku na potruhi nepretezujte. Pouziveje pro svou praci spravny pracovni nastroj. Se spravnym pracovnim nastrojem pracujete lepe a bezpecneni.
Nepouziveje zadnou frzku na potrubi, jejiz spinae ja vadny. Frzka na potrubi, ktera se uznadz napout nebo vypnout, je nebezpecná a mus se opravit.
Drive, nez pristoupite k nastaveni zarizeni nebo vymenite pracovni nastroj, prieruste privod energie. Toto preventivn opatfen zabrani neumysinemu rozbehu frzky na potrubi.
Frezku na potrubi neneche pouzivat osobami, jez s ni nejisou seznamemy nebo neceely tyoPokyny. Frezky na potrubi jsou nebezpecné,Pokud je pouzifvajnezuksene osoby.
Pravidelné provadějte udžbru fržky na potrubi. Kontrolujte fržku na potrubi z hlediska możného poskozeni a tež dalsich faktoru, jež by mohy negativne ovlivnit provaz fržky na potrubi. Rozbitou fržku na potrubi préd pouzitim aprvate. Mnoho urazú, kterym lze přejdít, je zpúsobeno špatné udžrovanými fržkami na potrubi.
Použivejte fržku na potrubi, prisluşenstvi a tež pracovni nastroje atd. podlePokynu v tomto navodu k oblsute, prčemž zohledněte pracovni podminky a provadēnu cinnost. Použivani fržek na potrubi pro jiné než určene cinnosti muževostknebepezčný situacim.
Popis funkce (viz obr. A).
Frézka na potrubi oddeluje a frézjue volně ležić Časti trubek a položéná potrubi pomoci obraběcích nastrojú. Upina se pomoci svého upinaciho zařizení na věnjí stranu trubky a beží automický paramcovním posuven okolov trubky. Jako nastroje slouží kovové pilové kotouče a tvarové frezy, jejichž břity jsou podle materialú trubky z HSS ocel nebo tvrdokouv.
- Nastaveni hloubky rezu se deje pres nastrojovy vretenik (16), ktery je v obou bočnich deskách (3) uloženy otočné a lze jej pomocí zavitoveho vřetene (6) přestavit.
Transportni hridel (21), ktera zpusobuje pomoci transportnich kol pohyb pracovlnho posuvu, je pohanena od nastrojoveho vretene pres 2 stipne snekové prevodovyk.
Posuvny pohyb lze pomoci radici paky posuvu (28) zapnout a vypnout. Kluzna spojka chrani pohon posuvu prd pretizenim.
Ulozenf nastrojového vřetene má mimořádně tuhou konstrukci. Hlavní prévodovka s olejovou lžní k pohonu nastrojového vřetene sestá v planetového a šněkového prévodového stapné.
Převodovka je dimenzována tak, aby bez poskození vydržěla obcasné zablokoványřežtu. Vsechny hřídele prévodovy béží ve valečkovych ložiscich.
Rém stroje s osami ma za ukol vest po trabce upnutou frézku na potrubí a těž prěnášet Žezné a posuvové sily.
- Prízpusobení na prísluśny vnějsi prüměr trubky se dosáhne pomoci prestavené oběhové osy (10).
Upinacf tetezy jsou slozeny z jednotlvych navazajem stejnych casti tetezu.
Pocet potrebnych casti retezu resp. delka upinacich retezju ze zavipla na vnejsim prumero trubky.
Preprava.

Nebezpeci zraneni pri transporte frzky na potrubi. Frzku na potrubi transportujte pouze pomoci dodanych nosnych popruhu (34) nebo pomoci minmalne tfl osob.
Pred uvedenim do provozu.
Nebepezci raneni dané neocekavanymi pohby obrobku. Prid opracovanim obrok bezjstere proti neockanem pohbum. Pri opracovani obroku existuje nebepezilnecekaneho odvalen, spadnut nebo posunut obroku.
Stroj smi byt provozovan pouze v bezvalnem technickem stavu. Pred kazdym uvedenim stroje do provozu zkontrolujte opotfebeni ci poskozeni pracovnic nastroju a component. Opotfebene nebo poskozené pracovnic nastroje a componenty je třeba睫 nahradit za nové.
Pripravne prace na opracovavanetrubce.
Trubky, které se budou rezat na uložišti, podložte tak, aby pracovn nastroj nebyl svirán.
U polozenych trubek se musf dodrzet na 1 m delky na kazdemmiste vuci stene jamy vzdalenost minimale 50 cm, mereno od vnejsihovrchu trabky.
- Opracovávaná plocha musi byt bez nečistot a zeminy. Měkké ochranné vrstvy na opracovávané plose prédem odstraťe.
- Rezný nastroj sé mùs zvolit podle materialu trubky, Žádaneho tvaru opracovánié a chlazení a mazání.
V oblasti obehovych kol a retezu odstrahte svary.
Dali's informace obdrzite u Vasich dovatelu mazacich a chladicich latek. (viz tez zaifzeni na chlazen i mazani tlakovym vzduchem 9 12 01 002 00 4)
Mazaci prostředek pri 0^
-
Mazaci prostredek BIOCUT 1L - 3 21 32 039 00 0
-
Mazaci prostredek BIOCUT 5L - 3 21 32 040 00 0
Mazaci prostredek do 25^
-Mazaci prostredek 1L-32132042000
-Mazaci prostredek 5L-32132043000
Připravné práce na frézce na potrubi (viz obr. A).
Povolte svernou pačku (11).
- Nastrojovym vretenikem (16) vyjedte pomocr ruční kliky (v nastrojovém kufru) na zařizeni pro posuv (7) nahoru.
- Odstraţile licované srouby (9) a premontujte obehovou osu (10) podle udajv tabulce (4) na aktualigni vnejsi prumér trabky.
Licovane srouby (9) opet utahnete.
RSG Ex 1500 A/B (^**)
| P | D [mm] [inch] | |
| I 250 - 400 9.8 | 15.7 | |
| II 400 - 600 15.7 | - 23.6 | |
| III 600 - 900 23 | 6 - 35.3 | |
| IV 900 - 1500 3 | 5.3 - 58.9 |
RSG Ex 18 A/B (^**)
| P | D [mm] [inch] | |
| I 250 – 400 9.6 | 15.7 | |
| II 400 – 600 15.7 | - 23.6 | |
| III 600 – 800 23 | 6 – 31.5 | |
| IV 800 – 1000 3 | 1.5 – 39.4 | |
| V 1000 – 1300 | 39.4 – 51.2 | |
| VI | 1300 – 3000 | 51.2 – 118.1 |
P: poloha obéhove osy
D: prümér truby
- Upinacim zafrzenim (1) pro upinaci retezy vyjedte otacenim na pruzinove misce, aby po ustaveni frzky na potrubi byl k dispozici dostatek napinaci drahy.
Sestavte upnaci retezy podle vnejsho prumru trubky.
Umistete frezku na potrubi na trabku a zajistete zvedakem,aby se zabrano sesmeknutl.
Sestavte vodici retez s napinačem retezu podle vnějsho prüměru trabky.
Vodici fetez zafixujte ve vzdalenosti 10 mm vedle upinacho fetetzu, naproti frzovacimu nastrojli. Vzdalenost Čepu vodicho fetetzu k Čepu upinacho fetetzu cini 10 mm.
Vzdalenost na obvodu zkontrolujte minimně třikrat.
Upnuti frézky na potrubi na trabku.
Polożeni clankovych retězú.
- Dosud otevřene Člankové retezy položte na obou stranách frézky na potrubi prěs trubku.
- Frézku na potrubi zvedněte a posunte clankove rětezy pod rětežová kola (20) tak, aby byly po usazení frézky na potrubi clankove rětezy v záberu.
- Vedte clankové retězy jejich volnými konci prěs retězová kola upinaci osy (14) a přilozky (19).
- Oba konce clankovheo rotezu uzavrte cepem (3 02 17 216 00 4) a zajistete dvema pojistiym krouky (4 26 34 020 00 5).
Napnuti clankovych retezu (viz obrazek A).
- Clankové rétézy nejdrive otácenim obou pruzinovych misek (1) lehc preilozte na trabuk. Pro presné vyrovnáni posuhte frézku na potrubi nekolikrat tam a zpeto ovbodu truby.
Clankové rétézy napnéte otačenfim pruzinovych misek, až kolík (23, obrázek A)
stoji v podělném otvoru pruzinové misky uvnitr dřáky zapichnuté na obvodu - Bēhem procesu Žežání pozorujte polohu kolfku. Pokud by trabka nebyla kruhová, musi se bud dopnout nebo povolit. Vsechna 4 držadla prěd processem Žežání odejměte.
Nebepezici urazu!
Neutahujte pruzinovou misku dane za tento bod!

Montáz pracouvich nastrojú.
Nebezpeci zraneni
Existuje nebezpeci zraneni dane neumyslnym zapnutim. Pred montazi pracovlho nastroje vytihnete sitovou zastrku.
Nebezpeci zraneni
Existuje nebezpeci pozezani danoe ostrymi brity pracovnlo nastroje. Pri montazi a demontazi pracovnho nastroje nods ochrannecracovni rukavice.
Nebezpeci zraneni
Existuje nebezpeć popäleni od horkého pracovnlo nastroje. Při demontáži pracovniho nastroje noste ochrannes pracovní rukavice.
Noste ochranné pracoví rukavice.
Pouzivejte pouze pracovni nastroje s bezvadnymi brity.
- Pred nasazenim oistete nastrojov vreteno a tez licovane a dosedac plochy.
- Pracovní nastroj nasadte s distancñimi podložkami.
- Upnaci matici nastroje pevnutahne.
Uvedeni do provozu.
Frezka na potrubi:

Frézce na potrubi s elektrickym pohonem
předřadte rozvaděč, který obsahuje námísdujici componenty:
Frezka na potrubí se opét uvede do provozu aktivac motorového jistice.
Rozvadec umistete tak, aby jej mohla obsluha kdykoli dosahnout.
Frezka na potrubi v castecn nevbybusnem provedeni:

Pred rozvadeč použijte spinaci skrǐnku s pridavnám spináne pro ovládani fržka na potrubí ve vybusnéch prostředich zony 2.
Spinaci skriinku umistete tak, aby ji mohla obsluha kdykoli dosahnout.

Nebezpeci vybuchu
Rozvadeč postavte mimo zónu 2.
Obsluha.
Nebezpeci zraneni
Ochranny kryt musi byt bēhem provozu zcela uzavěny a zajlěstěny!
Nebezpeci zraneni dan odletajcimi sponami
Ty mohou zpusobit zraneni. Dbeje na to, aby se v nebezpecnem prostoru nenachazely zdne osoby.
Nebezpeci pozaru danodletajcimi sponami
Dbejte na to, aby se v nebezpecnem prostoru nenachazely zadne lehce zapalne predmety.
Nebezpeci zraneni
Pri zapnut frzky na potrubi existuje nebezpez rzaneni dan odletajcimi ccastmi. Pred kazdym pouzim frzky na potrubi odstrahte ruci kliku.
Proces spusteni
U frézek na potrubí s elektromotorem je t'reba zajistit, aby byl smér otáčeni nastroje správný. Smér otáčeni lze pomoci reverzniho prépinace na rozvaděči prépnout.
Nebezpeci zraneni
U bezfccho stroje existuJe nebezpec f zranen od otacejfcch se dlu.Do nebezpecné oblastro sme vstupovat pouze za ucelem serizovani pri dodrzeni bepezocnostnich opatreni.
- Pomocf radicpaky posuvu (28) vypnete pohon posuvu.
- Frézku na potrubí zapnéte.
Povolte svernou pačku (11) a bežici pilovy kotouš sklonto pomoci ruci kliky co nejhloubesji do stubky. Hluboko zanořeny pilovy kotouš stabilizuje pruběh rezu.
Pri frezovani zvolte co nejmensi zabér nastroje. Obrabcí nároky vzrustaji s rostoud hloubkou fezu. - Pracovni nastroj zanoře ca. o 3 mm hlouběji než je nutné, pak vratte na požadovanou hloubku, tim je pracovni nastroj mimo záber.
- Při používaní superstnice hloubky nechte nastroj na povrchu trubky proškrabat. Povolte ryhovanou matici (27) a ukazatel (28) deje na 0. Ryhovanou matici (27) opě utáhněte. Hloubku prísuvi Ize odečíst na superstić.
-Frezku na potrub vypnete. - Nasledne zafixujte nastaveni utazenim svrno packy (11).
- Frézku na potrubi opét zapnéte.
Zapnete pohon posuvp pomocf radicl paky posuvu (28). -
Pokud je vykon motoru dostatečný, je stěna trubky proříznuta{jednímřežem.
-
Položene trabky mohou běhemřezániPoklesnout a sevřt v mezeré pracovní nastroj. Proto se museji v pravidelnych Intervalech do mezery zařezaclm nastrojem zatloukat dodaned kly. V prostředich ohroženych vybuchem používejte klyn (6 33 05 013 00 2) (RSG Ex 1500 A/B (^**) dodané pflusensstvi) a cladivo z nejskýcloho materialu.
Zabrahte pretizeni frzky na potrubi.
K pretiženi docházi, kdyz pri zajidéni bežicicho pracovniho nastroje znatelne poklesnou otaky motoru.
- To ma soucasne za nasledekPokles pracovnlo vykonu pri obrabenl.
- Obrobek (odrezavany dil trubky) kuli ochane pred padem zafixujte.
U silnostěnnych trubek (s > 10 mm) se musí spára pro svr frézovat ve vice obězích.
Shodny prubeh rezu je ovlivnen nasledujicimi faktory:
- Vyrovnáí frézky na potrubí pri startu,
odchylka geometrie stubky od kruhoveho resp.valcovho tvaru,
-
Ostrost pracovniho nastroje,
-
tvrdost materialu.
Frezka na potrubi je seiriiza tak, ze se u prumru trubky 300 mm a 600 mm zacatek a konec linie rezu temer kryj.
Vzhledem k excentricite vodicif hridele je serizovac značka (24, viz obrázek E) zavzná pouze pro obu vedené prüměry. U vetšich prúmeru trubky se musi podle okolnosti dosefedit.
Zpětný chod frezek na potruhí (RSG Ex (^**) ).
Poškození věčí!
Driye, nez frezka na potrubi pojede zpet, se musi zajistit, aby byl pracovni nastroj vyjetz z fezu, aby se zabranilo poskozenim nastroje a prevodovyk.
- Pomoci radicip paky posuvu (28) vypnete pohon posuvu.
Povolte svernou paeku (11).
Vyjedte pracovnim nastrojem.
-Hlavn spina/reverznipreplacprenpte do polohy,0"(vyp). - Reverzni prépinačprépněte na zpětný chod.
Svernou packu (11) utahnete. - Zapnete pohon posuvu pomoci radicl paky posuvu (28).
Pracovni nastroj se musi pri procesu frézováni chladit a mazat. Pri nedostatečné m chlazení a mazání se mohou spony zaseknout. To muže věst k prasknutím nastroje. Ridte se pokorny a udají dodavicele použiteho chladicho prostředku
Trubky z sedé litiny feze vzy nasucho bez chladicho a mazacho prostredku.
Pilovy kotouc resp. frzu pri rezani nelegovanych ocelovych trubek chladte mydlovou vodou.
Nastaveni presnosti chodu.

Povolte matici (15, viz obrazek A) kllc SW 46.
- Preetocte osu (10) vuci prilozce (19).
- Matici (15) utáhněte.
Otačenín oběhové osy (10) ve směru hodinovych rúčěk (směr pracovnho nastroje) beží pracovni nastroj doprava (směr pohledu je stejný jako směr pohybu fržéky na potrubí).
Pit otaceni obehove osy proti smru hodinovych ruieck bez pracovn nastroj doleva.
Vlozeni dalsich retezovych clanku.

Dodatecn feetovc kany se smjvlozt pouze na k tomu urcenpoice.
Odstraţne pojistny kroužek (32).
- Odstrahte cep (33).
Vloztpe pozadovany poct retezovych clanku.
- Retezové clanky ruznych velikosti jsou dostupné v prišlěs nestv stroje.
-Zavedte cep (33).
- Namontujte novy pojistny krouzek (32).
Upnuti frézky na potrubí.

A'potrebny pracovni prostor u nejvetsi hloubky fezu.
,D"vnjfrumrtrubky.
i'poct casti retezu pri prumeru trubky ,D".
RSG Ex 1500 A/B
| Poloha oběhové osy | D A Potřebná | délka štežu na{jednu stranu} | Celković dělka štežu | i* | |
| [mm] [mm] | [mm] [mm] | ||||
| 1 | 250 | 400 | 1427 | 2854 | 5 |
| 300 | 392 | 1525 | 3050 | 5 | |
| 350 | 384 | 1632 | 3264 | 6 | |
| 400 | 378 | 1744 | 3488 | 6 | |
| 2 | 400 | 381 | 1782 | 3564 | 6 |
| 450 | 375 | 1898 | 3796 | 7 | |
| 500 | 369 | 2019 | 4038 | 7 | |
| 550 | 364 | 2144 | 4288 | 7 | |
| 600 | 360 | 2273 | 4546 | 8 | |
| 3 | 600 | 362 | 2302 | 4604 | 8 |
| 650 | 357 | 2433 | 4866 | 8 | |
| 700 | 352 | 2566 | 5132 | 9 | |
| 750 | 348 | 2702 | 5404 | 9 | |
| 800 | 344 | 2840 | 5680 | 10 | |
| 850 | 340 | 2862 | 5724 | 10 | |
| 900 | 337 | 3001 | 6002 | 10 | |
| 4 | 900 | 348 | 3142 | 6284 | 10 |
| 950 | 345 | 3284 | 6568 | 11 | |
| 1000 | 342 | 3428 | 6856 | 11 | |
| 1050 | 340 | 3464 | 6928 | 11 | |
| 1100 | 337 | 3607 | 7214 | 12 | |
| 1150 | 335 | 3751 | 7502 | 12 | |
| 1200 | 333 | 3896 | 7792 | 13 | |
| 1300 | 331 | 4062 | 8124 | 13 | |
| 1400 | 329 | 4338 | 8676 | 14 | |
| 1500 | 328 | 4355 | 8710 | 14 | |
| *Objednaci cislo 3 02 31 013 02 7 skládajici se z 10 kusu štežtu každý o delce 635 mm. | |||||
RSG Ex 18 A/B
| Poloha oběhové osy | D A Potřebná [mm] [mm] | délka Žetězu na{jednu stranu} [mm] | Celkova délka Žetězu | i* |
| 1 | 250 | 587 | 1427 | 2854 |
| 300 | 576 | 1525 | 3050 | |
| 350 | 564 | 1632 | 3264 | |
| 400 | 553 | 1744 | 3488 | |
| 2 | 400 | 522 | 1782 | 3564 |
| 450 | 511 | 1898 | 3796 | |
| 500 | 501 | 2019 | 4038 | |
| 550 | 492 | 2144 | 4288 | |
| 600 | 483 | 2273 | 4546 | |
| 3 | 600 | 453 | 2302 | 4604 |
| 650 | 445 | 2433 | 4866 | |
| 700 | 437 | 2566 | 5132 | |
| 750 | 429 | 2702 | 5404 | |
| 800 | 422 | 2840 | 5680 | |
| 4 | 800 | 396 | 2862 | 5724 |
| 850 | 393 | 3001 | 6002 | |
| 900 | 390 | 3142 | 6284 | |
| 950 | 386 | 3284 | 6568 | |
| 1000 | 383 | 3428 | 6856 | |
| 5 | 1 | 390 | 34640 | 6928 |
| 1050 | 387 | 3607 | 7214 | |
| 1100 | 385 | 3751 | 7502 | |
| 1150 | 382 | 3896 | 7792 | |
| 1200 | 379 | 4062 | 8124 | |
| 1300 | 374 | 4338 | 8676 | |
| 6 | 1 | 383 | 43550 | 8700 |
| 1400 | 382 | 4651 | 9302 | |
| 1500 | 378 | 4950 | 9900 | |
| 1600 | 373 | 5250 | 10500 | |
| 1700 | 369 | 5553 | 11106 | |
| 1800 | 366 | 5857 | 11714 | |
| 1900 | 362 | 6162 | 12324 | |
| 2000 | 359 | 6468 | 12936 | |
| 2100 | 356 | 6775 | 13550 | |
| 2200 | 353 | 7083 | 14166 | |
| 2300 | 350 | 7391 | 14782 | |
| 2400 | 348 | 7700 | 15400 | |
| 2500 | 346 | 8009 | 16018 | |
| 2600 | 343 | 8319 | 16638 | |
| 2700 | 341 | 8629 | 17258 | |
| 2800 | 339 | 8940 | 17880 | |
| 2900 | 337 | 9251 | 18502 | |
| 3000 | 335 | 9562 | 19124 | |
| *Objednaci Čísló 3 02 31 013 02 7 skládající se z 10 kusu żetětu každý o délce 635 mm. | ||||
Pro dosaženi optimániho predepnuti rětezu lze prip. použit v nastrojovém kufru prilozene polovični dily rětezu s delkou 31,75 mm.
Priklad:
UvnéjsihoprümérutrubkyD=400mmje potbreba6 dilu retézu (objednaci cislo 30231013027).
Vedeni stopy pomoci vodicicho retezu


Délku vodicioho rétézu sestavte podle tabulky
Pro dosazen optimalno predepnutr tete zu lze pri. pouzt v nastrojovem kufru prilozené polovični dly tetezu s delkou 31,75 mm.
Délka vodicho rětezu
| Prümértrubky | Délkařetězu | Dílyřetězu | ||
| [mm] [mm] | 635 mm 63 | 5 mm 31,75 mm | ||
| 250 710 1 1 | 1 | |||
| 300 870 1 4 | 0 | |||
| 350 1030 1 | 6 1 | |||
| 400 1190 1 | 9 0 | |||
| 450 1344 2 | 1 1 | |||
| 500 1500 2 | 4 0 | |||
| 550 1660 2 | 6 1 | |||
| 600 1809 2 | 8 1 | |||
| 650 1970 3 | 1 1 | |||
| 700 2130 3 | 4 0 | |||
| 750 2290 3 | 6 1 | |||
| 800 2440 3 | 8 1 | |||
| 850 2600 4 | 1 0 | |||
| 900 2760 4 | 4 0 | |||
| 950 2921 4 | 6 0 | |||
| 1000 3079 | 4 8 1 | |||
| 1100 3397 | 5 3 1 | |||
| 1200 3714 | 5 8 1 | |||
| 1300 4032 | 6 3 1 | |||
| 1 4 | 0 | 0 4 | 3 3 | 0 6 |
| 1 5 | 0 | 0 4 | 6 4 | 0 7 |
Objednaci cislo 302 31 034 01 0 (I = 635 mm)
Objednaci cslslo 302 31 036 01 0 (l = 63.5 mm)
Objednaci 30231035010 (I = 31,7mm)
Vodici fetez upevnete pomoc cepu a pojistneho krouzku na jegnom z obou dlulfetzu na napinaclfetzu.
Vodici větev rětez provrěkěne pod oběma koly vodicho rětez (obrázek H). Volý konec vodicho rětez upevněte pomoci Čepu a pojistného kroužku na napinač rětez.
Vodici retez prilozte otacenim sestihranu na napina (2) na trabku.
Vodici fetez vyrovnejte ve vzdalenosti 10 mm (cep hnaciho fetezu vuci cepu vodicicho fetezu) a trikrat po obvode zkontrolujte.
- Napinač rětežu sestihranem (29) napné až podložka (30) doléha na teleso napinače rětežu (rozsaḥ naputi ca. 50 mm). (Max. utahovaci moment 50 Nm)


Pozor, nebezeci urazu!
V zadnem pripadepne nepretaceje tri pojistne srouby (31) na celnif strain. (viz obr. H)
Zaverecné prace po kazdem pracovnim nasazeni.
Vyjedte pracovn'm nastrojem.
- Frézku na potrubi vypnéte.
- Odejmete pracovni nast
- Frezku na potrubi odepnete.
Uskladněni frézky na potrubi.
Vnejsikovoe caskhante protikorozi.
- Frézku na potrubí skladujte' v suchu.
Udrzba a opravy.
K udrzbe a opravam.
S elektronáfadm a příslušenstvím FEIN se v případě oprav prosim obratte na Váš zákaznický servis FEIN. Adresu naleznete na internetu na www.fein.com.
Aktualíseznam nahrdnich dlú tohoto elektrónárdí naleznete na Internetu na www.fein.com.
Pouziveje pouze originalni nahradni dily.
Nasledujici dily muzete, Je-li treba, vymenit sami: pracovni nastroje, drzadla, retez, retezové clanky

Stoj smí být provozován pouze v bezvadném technickém stavu.
Opotrebované nebo poskozené pracovni nastroje a komponenty neprodlené nahradte za nové.
Nebezeci zraneni
Vseobecná upozorněni
Práce udrzby mohou provadět pouze vyskolení odborníci.
Osetreni a prace udrzby zahrnuji v podstate:
Vnejsoicsteni frezky na potrubi a upinacich retezu.
Vizuánlí kontrola cele frézky na potrubi.
Vymena prevodoveho oleje.
- Namazán pohybovych zavitu a retetzú.
- Namazani vedeni nastrojového vřeteníku v upinacim a transportním zařizení.
- Obnoveni nalepek a varovnych upozorneni na naradi
Péce o clankové fetezy
Po odstraneni hrubych necistot peclive oicstete clankové retezy benzinem, petrolejem ci podobnym zpusobem za pohyu danku retezu.
Pro zaruciñamazáni následne retezy poloze na nekolik hodin do viskóznih olejnapr. prevodov'y olej SAE 140.

Nebezeci urazu!
Pred opétovnym použitm dukladne vizualné zkontrolujte bezvadny stav rětežovych clanku. Poškozené casti vyměnte a chybejici pojistné kroužky nahradte.
Pripojovacvedeni
Pokud je poskozeny pripojovaci kabel, musi byt yvmenyn vyrobcem nebo jeho obchodnim zastoupenim.
Zañezén pro prisuv (viz obr. A)
- Plaśt trubkoviće matice (17) udržujte bez nečistot a nánosu rzi a neustále lehce namazany.
- Pri yvmene prevodoveho oleje oicstete a namazte pohybove zavity.
Demontaz:
- Odstrahte valcovy sroub (8).
Vytahnete cep (5) z vika. - Poté ručni klikou vyrsoubujte zařízení pro prísvú z trubkové matice.
Zavitové casti ocistete a namazte (viz odstavec Mazaci prostredky a mazaci plan na strane 137). - Poškozené stirací kroužky vyměnte.
Montáz:
Montáz se déje v opacné poradl. Pfi montáz neposkodte stiraci krouzy!
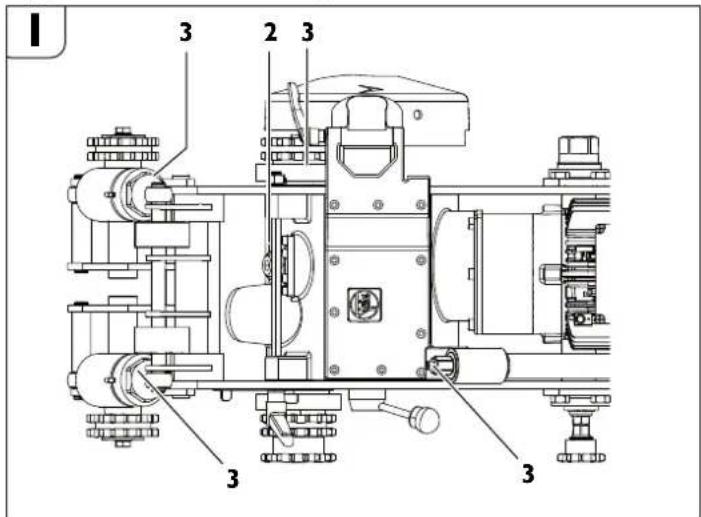
Upinaci zarizeni
Zabrahte zneciisteni zavitu na sroubech s okem (3, obrazek I) v pruzinove misce.
Popr. zavity ociiste a namazte.
Mazaci prostředky a mazaci plán
| Mazaci látka ARAL olej Degol | Plnici množstvi Rozsah teploty [°C] | Specifikace |
| BMB 460 2 litry 0 až +60 Prevodov'y olej | typu CLPF podle DIN15502 | |
| BMB 900 2 litry -20 až 4-40 |
Pri expedici je nastrojovy vretenik napleny olejem ARAL Degol BMB 100.
Pouzivani jineho prevodovho oleje nahevaedoporuucjeme.
Pro namazáni a osětěné kluznych ploch doporučujeme vodě odolné značkové tuky pro kluzná loźika bez obsahu kyselin.

| Mazaci mlsto Mazaci resp. provozní látka | |
| 2 (převodovka) viz tabulka Mazaci olej p | ro nastrojový vřeteník |
| 3 (kluzné plochy a pohybově šrouby) tuk | pro kluzné ložiska |
Odstranéni poruch (typ RSG Ex [ ] ).
| Porucha Możné príciyny Opatřeni | ||
| Výpadek motoru a pracovního nastroje | Velmi nízké okolníteploty | Použijte prěvodový olej FEIN pro nízké teploty |
| Tupý pracovní nastroj Pracovní nastroj vyměně | ||
| Není sítové napěti Zkontrolujte sítovou prípojku a roz vaděčě | ||
| Nesprávné napěti sitě Zkontrolujte Údaje sítové prípojky | ||
| Príliš rychlý posuv nebo príliš vysoký ubér materiálnu na jedem oběh | Pržpú sobote prěvod a / nebo zredukujte hloubku zanořeni | |
| Ztrát aleje v prěvodové skříní Najděte a odstraťe Úk | Doplěte olej | |
| Nadměrný vžestup teploty v motoru Reaktivujte rozvaděč 3 07 02 041 01 4 | ||
| Defektnírětězové kolo Poškozený díl Šřětu | Díl Šřětu vyměně | |
| Špatné spojený Šřětz | Zkontrolujte a zkorligujte spojovác body | |
| Čep Šřětu je nen cástěcně zavedeny | Čep zcela zastrěte | |
| Nekorektní prúběh Žeu | Špatné vyrovná fržka na potruvi a Šřětz | viz odstavec „Prípriavné práce na fržce na potruvi (viz obrázěk A).“ na straně 134 a odstavec „Upnutí fržky na potruvi na trubku.“ na straně 134 |
| Neexcentrická vodíci hřidel Seřidte prěsnost chodu, viz odstavec „Nastavení prěsnosti chodu.“ na straně 135 | ||
| Tupý pracovní nastroj Pracovní nastroj vyměně | ||
| Šikmo ā kolmo uložné trabka popř. nekruhová trabka | Použijte zařizení pro vedení stopy, viz odstavec „Upnutí fržky na potruvi na trubku.“ na straně 134 a odstavec „Vedení stopy“ na straně 137 | |
| Pržtězený pracovní nastroj | Pržpú sobote prěvod a / nebo zredukujte hloubku zanořeni | |
| Snižená nebo neučinná funkce stroje | Není sítové napěti | Zkontrolujte sítovou prípojku a rozvaděčě |
| Spinač není sepnutý | Spínač zkontrolujte | |
| Spojka prokluzuje Pržpú sobte prěvod nebo nechte na stavit reakčné moment v servisu FEIN | ||
| Silné vibrate | Príliš rychlý posuv Pržpú sobte prěvod | |
| Pracovní nastroj príliš hluboko | Pracovní nastroj pozvedněte | |
| Svěrná páčka (11) není utážné | Svěrnou páčka utáhněte | |
| Volný Šřětz | Zkontrolujte naputí Šřětu | |
| Tupý pracovní nastroj Pracovní nastroj vyměně | ||
Zaruka.
Záruka na výrobek platí podle zákonnych ustanoveni v zemi uvedeni do oběhu.
| Tvar 1, HSS, pro typ převodu: | |||||
| A, B - pro opracováni ocelovych trubek | |||||
| Ø | Štríka | Hmot. | Počet zubů | Max. hloubka šežu | Objednaci šísló |
| (mm) | (mm) | (kg) | (mm) | ||
| 160 | 4 | 0,5 | 50 | 25 | 6 35 02 022 00 6 |
| 180 | 4 | 0,7 | 60 | 35 | 6 35 02 037 00 8 |
| 200 | 4 | 0,9 | 64 | 45 | 6 35 02 053 00 7 |
| 220 | 4 | 1,3 | 70 | 55 | 6 35 02 041 00 1 |
| Tvar 2, HSS, pro typ prévodu: | |||||
| B - pro opracovani litinovych trubek | |||||
| Ø | Š | i | žubů | k Max. a hloubka rezu | Objednasti Čísló m |
| (mm) | (mm) | (kg) | (mm) | ||
| 160 4 0,5 | 40 25 6 35 | 02 050 00 | 1 | ||
| 180 4 0,7 | 46 35 6 35 | 02 098 00 | 0 | ||
| 200 4 0,6 | 50 45 6 35 | 02 099 00 | 4 | ||
Tésna para
| Tvar 3, HSS, s tvrdokovovymi zuby, pro typ prévodu: | |||||
| A, B - pro opracovani litinovych trubek (i s cementovou vložkou) a nelegovanych ocelovych trubek do 400 N/mm2 | |||||
| Ø | Š | i | žubū | Max. a hloubka šrezu | Objednasti Čislo m |
| (mm) | (mm) | (kg) | (mm) | ||
| 160 4 0,5 | 40 25 6 35 | 02 080 00 | 8 | ||
| 180 4 0,7 | 44 35 6 35 | 02 061 00 | 9 | ||
| 200 4 0,9 | 50 45 6 35 | 02 084 00 | 2 | ||
Transportí obal
| B x H x L | |
| mm | |
| 6 x 6 x 32 4 02 21 044 00 0 | |
| 8 x 7 x 32 4 02 21 050 00 5 | |
| Délka x šifrka x výška | |
| mm | |
| 1000 x 800 x 395 3 39 01 114 00 7 | |

Tvarové frézy

| Tvar V, HSS, pro typ prévodu: | ||||||
| A - pro opracoványí ocelovych trubek, yvsokolegoványchB - pro opracoványí nelegoványch ocelovych a litinovych trubek do max. tloušky stěné 10 mm a max. prùměru 1600 mm | ||||||
| D | B | H | m zubů | Bo | M t a hloubka šezu | Objednaciťislo o |
| (mm) | (mm) | (kg) | (°) | in (mm) | ||
| 125 | 25 | 1,6 | 32 | 30 | 25 | 6 35 08 056 00 4 |
| 160 | 30 | 3,2 | 36 | 30 | 25 | 6 35 08 081 00 9 |
| 160 | 30 | 3,3 | 36 | 37,5 | 25 | 6 35 08 093 00 0 |
| 180 | 42 | 5,5 | 36 | 37,5 | 25 | 6 35 08 094 00 0 |
| 180 | 42 | 4,9 | 36 | 30 | 25 | 6 35 08 085 00 8 |


C e t
$$ \begin{array}{l} \beta = 8 ^ {\circ} \ r = 6 \mathrm {m m} \ b = 4 \mathrm {m m} \ \end{array} $$
| Tvar U, HSS, pro typ převodu: | |||||
| A - pro opracováni f ocelovych trubek, yvsokolegovanychB - pro opracováni nelegovanych ocelovych a litžnovych trěbek do max. tlouškystěny 10 mm a max. prùměru 1600 mm | |||||
| D B | Hmot. | Počet | zubů | Max. hloubka šežu | Objednaci Čísló |
| (mm) | (mm) | (kg) | (mm) | ||
| 160 | 25 | 2,8 | 40 | 25 | 6 35 08 089 00 7 |

Dil retezu
| Sdruzená fréza, HSS, pro typ prévodu: | ||||||
| A - pro opracovány ocelovych trubek, yvesokolegoványchB - pro opracoványnelegoványch ocelovych a litinovych trubek do max. tloušky stěny 10 mm a max. prüměru 1600 mm | ||||||
| D | B | Hmot. | Počet zubů | β | M a hloubka šrezu | Objednaci císló |
| (mm) | (mm) | (kg) | (°) | (mm) | ||
| 154 | 30,5 | 2,5 | 32 | 30 | 25 | 6 35 08 099 02 0 |
| 10 Frěžežovych dílù | x 63,5 mm = 635 mm |
| Objednaci Čísló | 3 02 31 013 02 7 |
| 1 díl Frěžu | 31,75 |
| Objednaci Čísló | 3 02 31 029 00 2 |
Nahradni teg
Nahradii pojistny krouzek
| Objednacićslo | 3 02 17 216 00 4 | Upínaćřetěz 38,5 mm |
| Objednacićslo | 3 02 16 166 00 0 | Vodíćřetěz 54 mm |
| Objednaci Čísló | 3 02 17 216 00 4 |
Roztahovaci kliny z oceli
| Objednací Čfslo | 6 33 05 006 00 8 |
Dodané príslušenstvi
Volitelne prislusenstvi
| Objednaci cislo Počet Název | |
| 3 39 01 114 00 7 1 Transportni obal | |
| 3 39 01 031 00 1 1 Nástrojový kufr | |
| 3 21 22 007 01 7 1 Ručni klika | |
| 6 29 01 016 00 2 1 Jednostranný klič, SW 46 | |
| 6 29 03 010 00 6 1 Jednostranný klič, SW 55 | |
| 3 12 07 333 01 0 1 Napínačřetězù pouze pro | RSG Ex 1500 A/B (**) |
| 6 29 11 010 00 0 1 Očkový klič, 17/19 | |
| 6 29 06 014 00 0 1 Nástróný klič, SW 46/41 | |
| 3 02 31 029 00 2 20 Válečkovýřetěz | |
| 3 02 17 216 00 4 20 Čep | |
| 4 26 34 020 00 5 40 Pojistný kroužek | |
| 6 33 05 013 00 2 5 Roztahovací kliny,nejiskíćí pro | RSG Ex 1500/18 A/B (**) |
| 3 07 02 041 01 4 1 Rozvaděć pro | RSG Ex 1500/18 A/B (**) |
| 3 21 74 009 00 1 1 Zvedać popruh | |
| 3 21 74 010 00 3 1 Zvedać popruh | |
| 3 07 28 188 00 8 1 CEE spojka pro | RSG Ex 1500/18 A/B (**) |
| 3 02 31 035 02 0 1 Žetěz pouze pro | RSG Ex 1500 A/B (**) |
| 3 02 16 166 01 0 1 Čep pouze pro | RSG Ex 1500 A/B (**) |
| 3 40 56 026 00 0 1 Zasouvací kotouč pouze | proRSG Ex 1500 A/B (**) |
| Objednaci cislo Počet Název | |||
| 3 02 31 013 02 7 1 Retěž s 10 retěžovými díly | |||
| 4 26 34 020 00 5 1 Pojistný kroužek | |||
| 3 02 17 216 00 4 1 Čep | |||
| 4 30 12 051 12 2 1 Licováný šroub | |||
| 6 33 05 013 00 2 Nejiskříčí vyrážečí klin | |||
| 9 12 01 002 00 4 Zařizeni na chlazení a mazání tlakovým vzduchem (DKSE) | |||
| 3 24 33 027 01 7 1 Prípojeovací díly pro DKSE (deska s palcovými závity) | |||
| 9 26 01 023 02 3 1 Kompresor pro DKSE | |||
| 3 14 14 055 00 2 1 PA tlaková hadice komplétrni pro kompresor | |||
| 4 11 36 005 01 9 1 Spojeovací hrdlo | |||
| 3 02 31 035 02 0 1 Retěž | |||
| 3 02 16 166 01 0 1 Čep | |||
| 3 40 56 026 00 0 1 Zasouvací kotouč | |||
Zarizeni na chlazenia mazani tlakovym vzduchem 9 12 01 002 00 4
Dlyk moznym yvsokym rychlostem fezani a posuvy frzky na potrubi je pfi opracovani oceli nutne chazeni a mazani nastroju. Zafrzeni na chazeni a mazani tlakovym vzduchem champrue na principu Rozprawovi an oda-rovani chladiciho a mazacicho prostedku a nabiz dlky rozprawocim tryskam namontovanym na frzce na potrubi soustavne solidni chazeni a mazani.
Kromě toho se zabráni kontaminaci zeminy na stavenísti vrtáci emulíz, ktera se jinak obvýkle privádi ručné.
Jako chladici a mazaci kapalinu doporučujeme použiti mazaciho prostředku pro opracovani kovu BLOCUT 3000. Je to novodoba plné syntetická vysoce vykoná mazaci láctka, mávníkajíc přilnávý a chladíć učinek, je rozpustné ve vodě, biologicky dobre odbouratelá u špörná ve spotřebe (podle nastavení do ca. 0,3 dm³/h na trysku).
BIOCUT 3000 neobssahuje zdravi ohrozujic latky. Splnju peozadavky nemeckeho spolkoveho svazu pro plynarenstvi a vodarenstvi (DVGW).
Vsechny obazene latky odpovidaj smernicfm FDA (Food and Drug Administration) a Nemeckeho lékopisu (DAB) v dnes platnem zneni.
Mazaci prostredek lze ziskat:
Mazaci prostredek BLOCUT 3000 pro teplozy a 空 _ 空 0^
1L-32132039000
5L-32132040000
Mazaci prostředek chladu vzdorný pro teploty až k -25°C:
1L-32132042000
5L-321320430000
U trifazovych variant RSG Ex (^**) je potreba kompresor, FEIN objednaci cislo 92601023023,se sacim mnozstvim ca.130 l/min,aby bylo mozne zaifeni na chlazenia mazanil takovym vzduchem nasadit.
Náhradni dily.
Aktuálínseznam nahradnich dlü naleznete na internetu na www.fein.com.
Prohlasei o shode.
Prohlasei CE plati pouze pro zeme Evropske unie a ESVO (Evropske sdruzeni volneho obchodu, anglicky EFTA - European Free Trade Association) a pouze pro vrobyky, které jsou urcené pro trh EU nebo ESVO.
Firma FEIN prohlasu ve vyhradni zodpovednosti, ze tento vyrobek odpovidá príslusným ustanovenim uvedenyím na posledni straně tohoto navodu k obsslze. Technické podklady u:
C.&E.FeinGmbH,
D-73529 Schwabisch Gmund
Ochrana zivotniho prostreidi, likvidace.
Obaly, vyrazene elektronáradí a príslušenství dodejte k opětovnému zhodnocéní neposkožujíím uživotní prostřédí.
Preklad originalneho navodu na pouztie.
Použivané symboly, skratky a pojmý.
Pre Vašu bezpečnost.
Vseobecne bepezno nestpokyny
A POZOR Precitéti s vitětky bezechocné poukyn, instruktc, ilustrécie a technické udaje, ktró s uvedene n toto elektricknárádi.
Zanedbanie dodržiavania bepezecnostnychPokynov a instrukci moze sposobicezah elektrickym prudom, požiar a/alebo tazke poranenia.
Uschovajte věslyk bepezecnostnéPokyny a instrukcne pre buducnost.
1) Bezpečnost na pracovisku
a) Pracovisko vždy udržiavajte cîste a dobre osvetlené. Neporiadok a neosvetlené priestory pracoviska mozu maţa za následok pracovné urazy.
b) Toto naradie nepouzivajte v prostredi ohrzenom vybuchom, v ktorom sa nachadzajur horlavé kvapaliny, plyny alebo horlav'prach. Ručné elektrické naradie vytvara iskry, ktoré by mohlir prac alebo pary zapalić.
c) Nedovolte deform a imyn nepovolanym osobam, aby paocaes pouzivania rueheho elektrickego naradia zdrziavuli v blizkosti pracoviska. Pri odputanf pozornosti zo strany inej osoby mofete straté kontrolu nad naradim.
2] Elektrická bezpečnost

Nebezpečenstvo urazu, resp. nehody! Nenapínaje pruzinový hrniec cz tento bod!
Montáz vlozenych, resp. nasadenych nastrojov.
Nebezpečenstvo poranenia
Neumyselnym zapnutim hrozi nebezpecenstvo poranenia. Vytiahnite pred montaizou vlozeneho, resp. nasadeneho nastroja sieov zastrchu.
Nebezpečenstvo poranenia
Na ostrych reznych hranach vlozeneho, resp. nasadeneho nastroja hrozí nebezpečenstvo porezania. Noste pri montázi a demontázi vlozeneho, resp. nasadeneho nastrojoa ochranné rukavice.
Nebezpečenstvo poranenia
: Na horúcom vlozénom, resp. nasadenom nastrojí hroží nebezpečenstvo popálenia. Nosté pri demontáží vlozeného, resp. nasadeného nastroja ochranné rukavice.
Noste ochranné rukavice.
-motorovy Istic,
- podpatov spust,
-konektorové spojenia.
Hlavny spinača použiva ako zapinača na obratenie smeru otážania, resp. rotacie. Motorový istic a podpatóva spust tvoria{jednu jednotku. Pri pretázeni vypne motorový Istic a pri vypadku siefového napatia odpoji podpatóva spust stroj na fržovanie rur od slete, aby zbránil neumyselném opatovnéspusteniu.
Stroj na frzovanie rur uvediete znovu do prevadzky prepnutim motorovo hostica.
Rozvadzac musite umiestnit tak,aby sa pracovnik obsluyk nemu kedykolvek dostal.
Stoj na frézovanie rur v konstrukcnom vyhotoveni s ciastocnou ochranou proti vybuchu:

Nehezpečensvo výbuchu
Rozvadza musite umlestit mimo zony 2.
Ovladanie a obsluha.
Nebezpečenstvo poranenia
Pocas prevadzky musi byt ochranny kryt uplne zatvoreny a zaisteny, resp. zablokovan!
Nebezpečenstro poranenia sposobene poletujúcimi trieskami
Triesky mozu sposobit poranenia. Dbajte na to, aby sa v nebezpečnom priestore nenacháźali ziadne osoby.
Nebezpecensvo poziaru sposobene poletujucimi trieskami
Dbajte na to, aby sa v nebezpečnom priestore nenacháźali ziadne fahko zápalné predmety.
Nebezpečestvo poranenia
Pri zapnuti stroja na frezovanie rur hrozi nebezepecnstvo poranenia sposobene poletujciml ccastaml. Odstrante pred kazdym pouzitm stroja na frezovanie rur ručnu kluku.
Postup pri spustani
Pri strojoch na frézovanie rur s elektromotorom musite zalstit a zabezpedit správy smer rotacie nastroja. Smer rotacie mozte prepnú t otočnym spinačom na spinacn zarladeni.
Nebezpečenstvo poranenia
Pri beziacom strojil pretrva nebezpecnstvo poranenia sposobene rotujucimi dlmi. Do nebezpecnej oblastro stroja smite vstupit iba za učelom nastavovacích prac a za dodžania věstkych bepeznochstych opatreni.
Vypnite prevodovku posunu prostrednictvom spinacej paky posunu (28).
Zapnite stroj na frézoyanie rur.
-
Uvofinite upinaci paku (11) a zavadzajte rotujuci plovy kotuc pomocou ručnej kfuky co njahlsbe do rúry. Hlboko vnoren'y plovy list stabilizuje priebeh ranzia.
-
Vyberte pri frézovani co možno majměsi záber nástroja. S príbúdajúcou hlbkou rezania narastá objem trlesok.
Vnorte vlozeny, resp. nasadeny nastroj cca 3 mm hlbsie ako je potrebne a nasledne ho nastavte spa' na pozadovanu hblku. Vdaka tomu je vlozeny, resp. nasadeny nastroj mimo zaburu,
Nastavte pri pouzit stupnice hlbky nastroj na povrchu rury tak, aby bol v jemnom zabere. Uvolnite ryhovanu maticu (27) a nastavte ukazovatef (28) na 0. Utaihnite ryhovanu maticu (27). Hlbku prisunu mozte odifat na stipnici.
Vypnite stroj na frzovanie rur.
Nasledne zafixujte nastavenie utiahnutim upinacej paky (11).
-Znovu zapnite stroj na frezovanie rur.
Zapnite'prevodovku posunu prostrechnictvom spinacej paky posunu (28).
-
Pokial'je vykon motora dostatočný,treba stenu rúry Rozrezać Jednámrezom.
-
Už polożene rúry, resp. potrubia sa možu poças pilenía uovolnít a privrjet v dražke vlozený, resp. nasadeny nastroj. Preto musité v praviděch odstupoch za nastrojom pilenía zarážć do dražky dodekane klinny. Používajte v oblastiach s nebezpečenetvom vybuchu kliny (6 33 05 013 00 2) (RSG Ex 1500 A/B (*)) dodené prisluşenstvo) a kladivo z materílu bez vzniku iskrenia.
Zabrante pretazeniu stroja na frzovanie rur.
Zároven je následkòm toho ajPokles vykónu trieskového obrábania.
Zafixujte obrobok (odrezáný kus rúry), aby ste zabrànll jeho pádu.
Pri rurach so silnymi stenami (s >10 mm) musite zvarovu medzeru vyfrzova vo viacerych priebehoch.
Zhodne sa prekrvyajuci priebeh rezu ovplyvnju nasledujuce faktory:
-
nasmerovanie stroja na frézovanie rur pri spusteni,
-
geometrická odchylka rury od kruhoveho, resp. valcového tvaru,
-
ostroš voženého, resp. nasadeného nastroja, - tvrdost materílu.
Stroj na frézovanie rur je nastaveny tak, ze sa v pripade priemerov rur 300 mm a 600 mm začiatok a koniec lnie rezu približne prekryvjáu.
Zaverečné práce po každom pracovnom nasadení.
Za ucelom udrzby a opravy.
Obratte sa, prosim, s elektrickym naradim a prisluosenvom od spolochnosti FEIN, ktoré vyžaduje apravo, naševs pre zákazníkov spolochnosti FEIN. Adresu najdete na internetovej adrese www.fein.com.
Aktualny zoznam nahradnych sučastok pre toto ručné elektrické náradle najdete na Internete na domovskij stranke www.fein.com.
Použivajte len originé nahradné sučiastky.
V pripe de potreby vymente nasledujuce suciastky: Vlozené, resp. nasadené nastroje, rukovate, clanky refaze
Starostlivost o clankové re'taze a ich osetrovanie
Po odstraneni hrubych neistot dokladne umyte clankovre tazae za ohybania clankov rezace benzinom na cistenie, petrolejom alebo niecim podobnym.
Aby ste zaistili a zabezpeciili mazanie, vlozte retaze po ocisteni na niedolkho hodin do husteho oleja, napr. do prevodoveho oleja SAE 140.
Nebezpečenstro urazu, resp. nebody!
Pred opatovnym pouzitim Člankov retaze skontrolujte dokladnou vizualnou kontrlou ich bezchybný stav. Vymehte poskodené Časti, ako aj diely a nahradte chybjáuce pointné kruzky.
Pripojne vedenie
Ked je poskodena privodna snura elektrického naradia, treba ju dat ymenit vyrobocov alebo jeho zastupcovl.
Montáz prebleha v opachon poradi. Neposkodte pri montázi stieracie krúzky!
Napínacie zariadenie
Zabrahte zneclsteniu zavitov na skrutiek s okom (3, obrazok I) v pruzinovom hrnci.
Popripade yicistite zavity a namazte ich tukom.
Maziva a plan mazania
| Mazivo ARAL Öl Degol | PIniace množstvo T | Teplotný rozsah [°C] | Špecifikácia |
| BMB 460 | 2 litre | 0 až +60 | Prevodový olej typu CLPF podla normy DIN15502 |
| BMB 100 2 litre -20 | až +40 |
Pri expedicij je nastrojovy vretenovy mechanizmus napleny olejom ARAL OL
Degol BMB 100. Naliehavo vás varujeme pred použitím iného prevalového oleja.
Maziva pre klzné plochy
Na mazanie, starostlivost a osetrovanie klznych ploch odporucame znackové tuky pre klnne loziská bez obsahu kyselin a odolné proti vode.

Tvar 3, HSS, so zubami z tvrdého kovu, pre typ prevodovky:
| A, B – na opracovávanie liatinovych rur (aj s cementovým puzdrom) a nelegovanych ocelovych rur do 400 N/mm2 | |||||
| Ø Širka Hm | motn. Počet | zubov | Max. híbka rezu | Objednévacie císló | |
| (mm) (mm) | (kg) (mm) | ||||
| 160 | 4 | 0,5 | 40 | 25 | 6 35 02 080 00 8 |
| 180 | 4 | 0,7 | 44 | 35 | 6 35 02 061 00 9 |
| 200 | 4 | 0,9 | 50 | 45 | 6 35 02 084 00 2 |
BIOCUT 3000 je bez latok nebezpečných pre zdravie. Spína poziadavyk nemeckého spolku pre plynérenstvo a vodárenstvo (Deutscher Verein des Gas- und Wasserfachs e.V. (DVGW)).
Vsetky obshové latky zodpovedaju smerniciam FDA (Food and Drug Administration) a nemeckemu zoznamu liekov (Deutsches Arzneibuch (DAB)) v dnes platnom zneni.
Notice-Facile