RSG EX18b - Gręžtuvas Fein - Nemokama naudojimo instrukcija
Raskite įrenginio instrukciją nemokamai RSG EX18b Fein PDF formatu.
Atsisiųskite instrukciją savo Gręžtuvas PDF formatu nemokamai! Raskite savo instrukciją RSG EX18b - Fein ir vėl perimkite savo elektroninį įrenginį. Šiame puslapyje skelbiami visi dokumentai, reikalingi jūsų įrenginio naudojimui. RSG EX18b prekės ženklo Fein.
NAUDOJIMO INSTRUKCIJA RSG EX18b Fein
Originalios instrukcijos vertimas.
Naudojamisibboliai,trumpinialiarterminal.
| Simbolis,Ženklas Paaiškinimas | |
| 11 | Laikykitës šalia esančiame tekste ar grafiniame vaizde pateiktü reikalavimü! |
| 8 | Būtinai perskaitykite pridedamus dokumentus, tokius kaip, pvz., naudiojimo instrukcija ir bendragías saugos nuorodas. |
| 9 | Dirbkite su akiu apsaugos priemonèmis. |
| 0 | Dirbkite su klausos apsaugos priemonèmis. |
| 0 | Dirbkite su rankü apsaugos priemonèmis. |
| 0 | Bendrojo povūdžio draudžiamasis Ženklas. Šis veiksmas yra draudžiamas. |
| 0 | Draudžiama kišti rankas! |
| 0 | Nelieskite besisukančių elektrinio jrankio dalių. |
| 0 | Kišti rankas! grandines ir krumplaračius draudžiama! |
| 0 | Saugokitës aštrui darbo jrankio briaunu, pvz., p jovimo peilio ašmenu. |
| 0 | Karštas paviršlus! |
| 0 | Laikymo sritis |
| 1+ | Papildoma informacija. |
| CE | Patvirtina elektrinio jrankio atitiktj Europos Bendrijos direktyvoms. |
| 0 | Nebetinkamus naudoti elektrinius jrankius bei kitus elektrinius ir elektroninius gaminius surinkite atskirai ir nagabenkite j antriniųŽaliavu tvarkymo vietas perdirbti aplinkai nekenksmingu budu. |
| 11 | Nepersukite triju fiksavimo varžtu. |
| 10 | Netaikoma Kinijai: Aplinkos apsaugos trukmè jprastai naudojan gaminj yra 10 metu. |
| (**) gali būti skaičiai arba raidës |
Techninial duomenys.
Uzsakymonumeris7360...7360...
Tipas* RSG Ex 1500 A (^) RSG Ex 1500 B (^)
Uzsakymonumeris7360...7360...
Tipas* RSG Ex 18 A (^) RSG Ex 18 B (^)
Iampa (U)400V400V
Daznis (50 Hz 50 Hz
Prijungimo prie tinklo lizdas 3\~ (trifazé srove) 3\~ (trifazé srove)
Tusiosos eigos sukui
skaičius (n0)
- Variklis 2860/min 2860/min
Darbo irankiai 35/min 70/min
Pastuma (j 40 mm/min. 80 mm/min.
Apskaicuotojigalia(P) 1500W 1500W
Tinklo kabello ilgis (su kištuku)
-
RSG Ex 1500 (**) 2 × 20 ~m 2 × 20 ~m
-
RSG Ex 18 A/B (**) 2 × 20 ~m 2 × 20 ~m
Apsaugos klase /1
Apsaugos tipas IP X4 IP X4
*Elektros variklio ir papildomo jungiklio sprogimui atsparus modelis (atitinka
ATEX reikalavimus)
Vamzdziu frezavimo masina yra skirta laisviems vamzdziu elementams ir
nutstelems vamzdynamics iš pleni o ir ketaus pjautir frezuoti, taip pat vamzdžiu galu briaunoms nusklembti prišs suvirinimata statybvietěse, cechouse ir lauke. Vamzdžižrfrezavimo maśina yra skirta specialijs jmonémis neilgalaikm kaskdieniam
naudojimui ir numatya valdyti specialists.
Visa vamzdziu frezavimo masina nera skirta apsaugotai Ex sriclai.
Vamzdziu frezavimo masina nera skirta:
-
naudoti srityse su potencialiai sprogia atmosfera;
-
naudoti stipriai lyjant ir dirbant po vandeniu;
-
uz temperaturos diapazono nuo -20°C iki 40°C ribu;
sprogioms medziagoms pjauti;
- degioms medziagoms pjauti.
EB direktyva 94/9EB ATEX (Atmosphères Explosibles)
Nurodome, kad „Fein“ RSG Ex (^**) tipo vamzdžiu frezavimo masinos nera skrtos naudoti potencialiai prognose sritye in sioms vamzdžiu frezavimo masinoms nera EB tipo tyrimu servifikatu pagal direktyva 94/9EB.
(Vamzdžiu frezavimo masinoje RSG Ex (^**) jmontuojami elektrós variklis ir papildomas jungíklis, t. y. du ATEX rekalavimus atitinkantys componentai.)
ATEX direktyva galioja tik EB erdvveje.
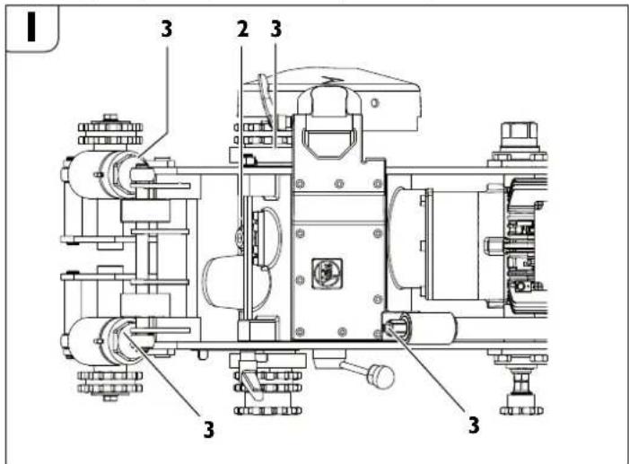
Apžvalga
1 Prispaudziamasis jtaisa
2 Sonines ploktes tvirtinamasis varztas
3 Sonine ploksté
4 Nuoroda
5 Kaiistis
6 Srieginis suklys
7 Pristatymo priemoné
8 Varztas cilindrine galvute pristatymo priemonel
9 Reguliarimo varztas
10 judejimo ais
11 Prispaudziamoji svirtel
12 Seiabriaunis varztas
13 Tarpiklis
14 Prispaudimo ašis
15 Verzle
16 Jrankio suklio galvuté
17 Vamzdzio verzle
18 Tvirtinamasis varztas varikliui
19 Liezuvelis
20 Grandines krumplaratis
21 Transportavimo velenas
22 Apsauginis ziedas
23 Kais
24 Irankio suklio galvutés srieginis dangtelis
25 Nešimo rankena (Izoliuoti rankenos paviršial)
26 Gylio skalé
27 Briaunota verzle
28 Pastumos perjungimo svirtis
29 Grandines jtempiklio seiabriaunis
30 Grandines jtempiklio poverzle
31 Grandines Jtempiklio apsauginis varztas
32 Grandines grandies apsauginis ziedas
33 Grandinés grandies kalistis
34 Nešimo kilpos
Jusu saugumui.
Bendrosios saungs nuorodos
ΔISPÉJIMAS Perskaity kite visas saugos nuorodas, instrukcijas, ilustracijas ir techninius duomenis, kurie yra ant elektrinio
jrankio. Jei nepaisite zemiau pateiktu saugos nuorodu ir reikalavimu, gali trenkti elektros smugis, kilti galsras ir galte sunklai susizaloti arba suzaloti kitus asmenis. Issaugokite visas saugos nuorodas ir instrukcijas, kad ir ateityje galetumete jomis pasinaudoti.
Saugos nuorodose vartojama savoka, Elektrinis jrankis" apibudina elektrinius jrankius, maitinamus iš elektrós tinklo (su maitinimo laidu), ir akumulatorinius elektrinius jrankius (be maitinimo laido).
1) Darbo vietos saugumas
a) Darbo vieta turi buti svari ir gerai apsviesta. Netvarkinga arba blogai apsviesta darbo vleta gali tapti nelaimingu atstikimmu priezastimi.
b) Nederbirkite su elektriniu jrankiu aplinkoje, kurioje yra degiu skysciu, duju ar dulkiu. Elektriniu jrankiai gali kibirkskiuoti, o nuo kibirkskiu dulkes arba susikaupe garal gall uzsldegti.
c) Dirbdami su elektrini irankiu neleiskite salia buti ziurovams, vaikams ir lankytojams. Nukreipe demesji citrus asmenis galite nebesuvaldyti prietaiso.
2) Elektrosauga
a) Elektrinio irankio maitinimo laido kistukas turi atitakti tinklo kistukinio lizdo lipa. Kištuko joku būdu negalima modlflkuoti. Nenaudokite kištuko adaperti si zu Šemintais elektriniais irkianiais. Originalu kištukai, iksliai tinkantys elektros tinknixi kistukiniam lizdui, sumazina elektros smugio pavoj.
b) Saogkites, kad nopresililestumete prie izemintu pavrislu, pvz., vamzdii, sildtytuvi, viryklu ar saldytuvi. Kal jusu kunas yra i zemintas, padidja elektros smuglo rizika.
c) Saugokite elektrinj irankj nuo lietaus ir dregmjes. JeiElektrin|rankj patenka vandens, padideja elektros smugio rizika.
d) Nenaudokite maitinimo laido ne pagal paskirtj. Neneškite elektrinio janrko paēme už laido, nekabinkite ant laido, netraukite už jo, jei norite iš kistukinio lizdo istraukti kistuka. Laida patieskite taip, kad jo neveiktu karstis,jis neissiteptu alvy ir jo nepažeistu astrios detales ar judancios prietai dolya. Pažeisti arba susipyne laidai gali tapti elektros smugio priežastimi.
e) Jei su elektriniu [rankiu dirbate lauke, naudokite tik tokius ilginamuosius laidus, kurie tinka ir lauko darhams. Naudojant lauko darbams pritaikytus ilginamuosius laidus,sumažëja elektrros smugio pavojus.
f) JeI su elektriniu jrankiu neiswengiamai reikia dirbt dregnoje aplinkoje, naudokite nuotekio sroves saugkli. Dirbant su nuotekio sroves saugkliu sumažeja elektrs smugio pavojus.
3] Zmoniu sauga
a) Bukite atidus, sutekite demesi j tai, ka darote, ir dirbdami su elektriniu jrankiu vadovaukites svelku protu. Nedirbkite su elektriniu jrankiu, jei esate pavarge arba vartojote narkoliku, akoholio ar medikamentu. Akimirksnio neatdumas dirbant su elektriniu jrankiu gali tapti sunkiu suzaalojimu priezastimi.
b) Visada dirbkite su asmens apsaugos priemonemis. Butilai devekite apsauginius akinius. Naudojant asmens apsaugos priemones, pvz., respiratoriu ar apsaugine kauke, neslystancius batus, apsaugini salma, klausos apsaugos priemones ir kt., rekomenduojas atitinkamai pagal naudojam alektrinl [rank],sumazeja rizika suslzelsti.
c) Saugokites, kad elektrinio irankio neijungtumete atsitiktinai. Pries prjungdami elektrinj ranki prce elektros tinklo ir (arba) akumuliatoriaus, pries pakeldami ar nesdami isitikkite, kadjis yra ijsjungtas. Jeigu nesdami elektrinj rirsta laikysite ant jungilkio arba prietaisa jjungsite jelektros tinkla, kaljungklis yra jungtas, gali Jykyti nelaimingas atsitikmas.
(d) Pries jjungdami elektrini [iranki pašalinkite reguliavimo irankius arba verzlinius raktus. Besisukançioje prietaiso dalyje esantis irankis ar raktas gali sužaloti.
e) Stenkités, kad kūnas visada būtu normalioje pavétyja. Dirbdami stověkite saugial ir visada šlakykite pusiausvyra. Tvirtai stovedami ir gerais išlaikydami pusiausvyra galésite geriau kontrluoti elektrinj [rank] netikétose situacijose.
f) Dévékite tinkama apranga. Nédévékite placíu drabuziu ir papuosalu. Saugokite plaukus ir drabuzius nuo besisukanciu elektrinio jrankio daliu. Laisvus drabuzius, papuosalus bei ilgus plaukus gali jtraukti besisukancios dalys.
g) Jei yra numatyta galimbye prijungti dulkiu nusiurbimo ar surinkimo irengi-nius, visada isitikinkite, ar jie yra prijungti ir ar tinkamai naudojam. Naudojan dulkiu nusiurbimo irenginius sumažeja kenksmingas dulkiu poveikis.
h) Daiznai naudodami iranki ir gerai su juo susipazine pernelyg neatsipalaiduokite ir nepradekite nepaayti [rankio saugos principu. Neatidus veiksmas gali sukelti sunklia trauma per sekundes dal].
4) Rüpestinga elektriniý irankiý priežiura ir naudojimas
a) Neperkraukite prietaiso. Naudokite jus dirbui tinkama elektrinj ranki. Su tinkamu elektrinlu jrankiu jus dirbsite gerlau ir sauglau, je nevirysite nurodyto galingumo.
b) Nenaudokite elektrinio irankio su sugedusiu jungikliu. Elektrinis irankis, kurio nebegalima jungti ar ijsjungti, yra pavojingas ir ji reikia remontuoti.
c) Pries reguluiodami prietaisa, keidsami darbo [rankius ar pries valdami prietaisa, is elektros tinklo lizdo istraukite kistukir (arba) isimkite akumulatoriui, jeigujisisimamas. Si atsargumo prlemone apsaugos jus nuo netiketo elektrinio jrankio jsijungimo.
d) Nenaudojama elektrinj irankj sandeliuokite vaikams ir nemokantiems juo naudotis asmenims naprieinamoje vietoje. Elektrinlai [ranklai yra pavojingli, kai juos naudoj nepatyrse asmenys.
e) Prižiurekite elektrini jranki ir priedus. Patikrinkite, ar besisukancios prietaiso dalsy tinkamai veikia ir niekur nestringa, ar nera suluzusi ar pazeistu daiu, kurios trikdytu elektrino jrankio veikima. Pries vel naudojant prietaisa, pazelosts prietalso dalsy turi bhti sutaytos. Daugelio nelaimingu atsitikmu priezastis yra blogai priziurimi elektrinai jrankiai.
f) Pjovimo [rankiai turi buti astris ir svarus. Rüpestingai prižiúreti pjovimo jrankiai su astriomis pjaunamosiomis briaunomis mažlau stringa, juos lengviau valdyt.
g) Elektrini iranki, papildomajranga, darbo jrankius ir t.t. naudokite taip, kaip nurotya sioje instrukcijole, ir atsiizvelkite j darbo salygas ir attlekama darba. Naudojant elektrinius jrankius ne pagal paskirtj, gali susidaryti pavojingos situcljos.
h) Rankenos ir suemimo pavrisai turi buti sausi, svarus, ant ju neturi buti alvos ir tepalu. Del slidziu rankenir suemimo pavrisiu negalèsite saugia iIslaikyi Ir suvaldyti Jranklo netikétose situacijose.
5) Technine prieziura
a) Elektrinj jrankj turi remontuoti tik kvalifikuoti specialistai ir naudoti tik originalias atsargines dalis. Taip galima garantuoti, jog elektrinis jrankis isliks saugus naudoti.
b) Niekada neatikite papeisto akumulatoriaus technines prieziuros. Akumulatoriuy technine prieziurura turi atliktu gamintojas arba jgaliotasis technines prieziuros atstovas.
Specialiosos saugos nuorodos del vamzdjiu frezavimo masinu.
Pradédami naudoti, dirbdami su vamzdziu frezavimo masina ir atlikdami jos technîne priežiúra, laikykitès nacionalinlu nelaimingu atsitiklmu prevalçljos taisykliu.
Laikykites Istatyminiu apsaugos nuo sprogimo nuostatu.
Užtkrinkite apdorojamo vamzdžio stabilum. Nesilaikant šios nuorodos, gresia sunkus ar net mirtini sužalojimal.
Elektrines vamzdizy frezavimo masinos (tipas RSG Ex ( )
Tinklo tampa ir vamzdizfrezavimo masinos tampa turi sutapti.
Vamzdiziy frezavimo masinos jungtis turi buti apsaugotas 20 A saugikliu.
Reguliarai tikrinkite maitinimo laida ir ilginamaj laida!
Vamzdjiu frezavimo masina prijunkite tik, kai yra ijsjungtas komutaciniu prietais bloko pagrindinis jungiklis.
Operatoriui komutaciniu prietalsu blokas turi buvi visada pasieklamas.
Naudojimas.
Rankenos ir ju pavirsiai turi buti sausi, svaris ir nesuteptos alya ir tepalu. Del slidziu rankole nenumatyto situacijose.
Jei atliekate darbus, kuriu metu darbo irankis gali kliudyti pasleptus elektros laidus, prietaisa laiky kite uz izoliuotu rankenu. Prisilletus prie laido, kuruo teka elektros srove, metalinese prietaiso dalyse gali atsirasti jtampa ir trenkti elektrost smugls.
Neapkraukite vamzdjiu frezavimo masinos per didele apkrova. Naudokite darbui tinkama darbo jranki. Su tinkamu darbo jrankiu dirbsite geriaiu ir saugiau.
Nenaudokite vamzdjiq frezavimo masinos, kurios jungiklis yra sugedes. Vamzdjiq frezavimo maIina, kurios negalima Ijungti ar Ijungti, yra pavojinga Ir ja reikla remontuoti.
Pries nustatydami jrengini arba pries keisdami darbo jrankius nutraukite energijos tiekima. Si atsargumo priemone apsaugos jus nuo netiketo vamzdziy frezavimo masinos jsijungimo.
Neleiskite su vamzdziu frezavimo masina dirbiti asmenims, nesusipazinusimiels, kaip ja naudoti, arba neperskaiciusemi siu nurodymu. Vamzdziu frezavimo masinos yra pavojlngos, kalu su jomls dlbra nepatyre asmenys.
Reguliarai atlikite vamzdziu frezavimo masinos technine prieziura. Patikrinkite vamzdziu frezavimo masina, ar nera galim pazeidimu ir kitu faktoriu, kurie galetu pakenkti vamzdziu frezavimo masinos veikimui. Sgedusia vamzdziu frezavimo masina pries naudodami suremontuokite. Daug nelaiminga atsitikimu, kuriu butu galima isvengti, iyksta del netinkamai priizurimu vamzdziu frezavimo masinu.
Vamzdji frezavimo masina, reikmenis, darbo irankius ir t. t. naudokite pagal sios naudojimo instrukcijos nurodymus, atsizvelgdami darbo salygas ir atliktina darba.
Naudojant vamzdziu frezavimo maina kitokiems nei numatyta darbams, gali susidaryti pavojingos situacijos.
Veikimo budas (zr. A pav.).
Vamzdziy frezavimo masina nupjauna ir frezujoa laisvus vamzdziu elementus bei nutlestus vamzdynus, naudoant drozles salinancius darbo Jrankius. Ji prispaudziana prie iorinnes vamzdzio puses prispaudimo itaisu ir juda aplink vamzdju su automatine darbine pastuma. Kaip jrankiai naudojamti metalo diskiniu pjuklu diskai ir profililines frezos, kurij plovimo briaunos pagamintos iHSS pleno arba karbido priklausomai nuo vamzdzio medziagos.
- Pjovimo gylis nustatomas jrankio pasukama suklio galvute (16), kuri yra Imontuota abiejose soninese plokstese (3), reguliuojama srieginiu sukliu (6).
Transportavimo velena (21), kuris per transportavimo ratus atleka darbines pastumos judesius, suka jrankio suklyas per 2 sleikines pavaros pakopas. - Pastūmos judesius pastūmos perjungimo svirtimi (28) galima ijungti ir iśjungti. Frikciné sankaba apsaugo pastūmos pavara nuo perkrovos.
Irankio suklys Jmontuotas itin standzial. Alyvos vionjo tepama pagrindini
reduktoriu jrankio suklio pavarai sudaro planetes ir sliekines pavaros pakopos.
Reduktorius sukconstruotas taip, kad granide nepaedizama, net jei retkarciais użstringa. Visi reduktoriu velenal yra su ritinialis guolials.
Maños remo su asimis uzdavinys - prispausta vamzdziu frezavimo masina nukrelpti | vamzdir perkelti pjovlmo bei pastumos jegas.
- Priderinimas prie atitinkamo vamzdizio isorinio skersmens pasiekia mas reguliojant judejimo asi (10).
Prispaudimo grandines sudaro atskiri, tarpusavyje identiski graniniu elemental. Reikalingu grandiniu elementu skaicius arba jtempio grandiniu ilgis prikauso nuo Iorlinio vamzdizk snersmens.
Transportavimas.
B


Suzalojmu pavojus transportuojant vamzdziu frezavimo masina. Transportuokite vamzdziu frezavimo masina tik su kartu pateiktomis nešiojimo kilpomis (34) arba neškite ne maziau kaip trise.
Priesnaudojima.

Suzalojimpu pavojus del netiketu ruosinio judesiu. Pries apdorojima uzflksoukite ruosin, kadjis negalotu netiketai pajudeti. Apdorojant ruosinju pavojus, kad ruosnys netiketai nuriedes, nukris arba bus perstumtas.

Naudoti leidziama tik techniskai nepriekaisingos bukles masina. Kiekviena karta pries pradedami naudoti masina, patikrinkite, ar nera susidevjusi arba pazeisti darbo jrankiu ir componentu. Susidevjuus arba pazeistus darbo ulius ir componentus reklia nedelsiant pakeisti naujals.
Apdorjamo vamzdio paruosimas.
Vamzdzius, kurie pjaunami sandeliavimo vietoje, padekite taip, kad darbo jrankiai neuzstrigtu.
- Nutiesus vamzdžius, bet kurioje vietoje iki griovio sienos turi buti ne mazesnis kalp 50 cm atstumas, matuolant nuo lorsines vamzdžio pusès.
- Ant apdorojamo pavirsius turi nebuti purvo ar zemés. Pries tal nu o apdorojamo pavirsius pašalinkite minkstas apsaugines dangas.
Pjovimo [ranki'reikla parikhti priklausomai nuo vamzdizio medzlagos, reikalingos apdorojimo formos ir aušinamojo tepimo.
- Pasalinkite suvirinimo siules ratu ir grandiniu srityje.
Dauglau Informacljos galite gauti is tepimo ir ausinimo medziagu tiekejo. (taip pat zer.: suslegto oro ausinamojo tepimo itaisas 9 12 01 002 00 4)
Tepimo priemoné, esant 0^
- Tepimo prlemoné BLOCUT 1 | - 3 21 32 039 00 0
- Tepimo priemone BLOCUT 51 - 321 32040000
Tepimo priemoné, esant 25^
- Tepimo priemone 1 | - 3 21 32 042 00 0
- Tepimo priemone 51 - 321 32043000
Vamzdji frezavimo masinos paruosimas (zr. A pav.).
- Prispaudziamajsvirtele (11)atlalsvinkite.
- Iranklo suklio galvute (16) pakelkite ant pristatymo priemones (7) esanca sukamaja rankenele (irankiu lagamine).
Regulavimo varzus (9) issukite ir permontuokite judejimo asj (10) pagal duomenis lenteleje (4) esamam isoriniam vamzdizio skersmeniui.
Regulavimo varztus (9) vel priverzkite.
RSG Ex 1500 A/B (^**)
| P | D [mm] [colial] | |
| I 250 – 400 9.8 | 15.7 | |
| II 400 – 600 15.7 | - 23.6 | |
| III 600 – 900 23 | 6 – 35.3 | |
| IV 900 – 1500 3 | 5.3 – 58.9 |
RSG Ex 18 A/B (^**)
| P | D [mm] [coliai] | |
| I 250 – 400 9.6 | 15.7 | |
| II 400 – 600 15.7 | - 23.6 | |
| III 600 – 800 23 | 6 – 31.5 | |
| IV 800 – 1000 3 | 1.5 – 39.4 | |
| V 1000 – 1300 | 39.4 – 51.2 | |
| VI | 1300 – 3000 | 51.2 – 118.1 |
P: Judéjimo aïsies padétis
D:Vamzdzlo skersmuo
- Prispaudzlamuosius Jtalsus (1) prispaudimo grandinems Istumkite sukdami spyruokles pavekla, kad po vamzdziu frezavimo masinos uzdejimo bu tu pakankamas prispaudimo kelias.

Sumontuokite prispaudimo grandines pagal iisorinj vamzdizio skersmenj.

Nustatykite vamzdziu frezavimo mašina ant vamzdžio ir užfiksuokite kélimo jtaisu, kad neslystu.

Sumontuokite kreipiamaja grandine su graninés jtempikliu pagal iisorjin vamzdizio skersmenj.
- Uzfiksuokite kreipiamaja granidine 10 mm atstumu salia prispaudimo graninés priesais frezavimo jrankj. Atstumas tarp kreipiamosios graninés kaiscb ir prispaudimo graninés kaiscio yra 10 mm.
- Patikrinkite atsuma per perimetra patikrinkite bent tris cartesian.
Vamzdziu frezavimo masinos prispaudimas ant vamzdiz. Grandiniu uzdajimas.
- Dar atviras grandines ablejose vamzdziu frezavimo masinos pusese udekite vir's vamzdizio.
- Pakelkite vamzdžiu frezavimo masina ir granindes stumkite po graninij krumpliaracials (20) taip, kad uzdejus vamzdžiu frezavimo masina graninés butu dantyoje jungtyje.
- Nukreipkite grandines laisvus galus per jtempimo aies (14) grandines krumpliaracius ir kilpa (19).
- Abu grandines galus uzdarykite kaizhu (3 02 17 216 00 4) Ir uzfiksuokite dviem fiksavimo ziedais (4 26 34 020 00 5).
Grandini j tempimas (zr. A pav.)
- Pirmlausia sukdami abu spyruoklju padeklus (1) pridekite grandines prie vamdzio. Tikslesniam iIsyglavimui vamzdoi frezavimo masina kelis kactus pastumkite pirmyn ir atgal vamzdlo perimetro kryptimi.
- tempkite grandines sukdami spyruokliu padeklus, kol kaisis (23, A pav.) bus isilginéje spyruoklés padéklo angoje per perimeter iispautame griovelyje.
- Pjovimo過程o metu stebekite kaisio padeti. Jei vamzdis neapvalus, reikla papildomai prispausti arba atlaisvinti. Prišpjovimo procesa nuimkite visas 4 rarkenas.

Nelaimingu atsitikimp pavojus!
Nespauskite spyruokles padeklo toliau uš sio tasko!

Darbo jrankiu montavimas.
Sužalojimo pavojus
Netiketo jjungimo atveju yra suzaoljmu pavojus. Pries montuodami darbo Iranklus, Istraukite tinklo kistuka.
Sužalojimo pavojus
Dél astriu darbo jrankio briaunu kyla jpovimo pavojus. Montuodami ir Ismontuodami darbo Jrankl, mvekite apsaugines pirstines.
Sužalojimo pavojus
Ikalte darbo Iranklai kelia nudegimo pavoju. Ismontuodami darbo Iranki, muvekite apsaugines pirstines.
Muvekite apsaugines pirstines.
Naudokite tik darbo jrankius su nepriekai'singos buklés briaunomis.
Pries uzdédami nuvalykite jrankio suklj ir kontaktinius pavirsius.
-Uzdekite darbo Irankj su tarpklials.
- Priverzkite jrankio prispaudo verzle.
Parengimas naudoti.
Vamzdziu frezavimo masina:

Pries vamzdizu frezavimo masinas su elektrine pravara prijunkite komutaciniu prietaisu bloka, kuriamye ria sie componentai:
-Pagrindinis jungiklis / reversorius
-Variklio apsauginis jungiklis
-Minimalios jtampos atjungiklis
-Kistukinés jungtys
Pagrindinis jungiklis naudojamas jungti ir sukimos krypcai apgrezti. Variklio apsauginis jungiklis ir minimalios tampos atjungiklis sudaro bloka. Perkrovos atveju variklo pisauginis jungiklis isjunglia, nutrukus tinklo tampai minimios tampos atjungiklas atjunga vamzdziu frezavimo masina nuo tinklo, kad butu nejmanomas netiketas isijungmas.
Vamzdziu frezavimo masina vel pradedama naudoti suaktyvinus variklio apsauginj jungiklj.
Komutaciniu prietalsu bloka reikla montuol taip, kadjis visada buty pasiekiamas operatoriui.
Vamzdziq frezavimo masina yra iš dalies nuo sprogimo apsaugoto tipo:

Pries komutaciniu prietaisbu bloka naudokite
skirstomaja deze su papildomu jungimo / ijsjungimo
jungikliu vamzdizju frezavimo mainala aktyvinti
potencialia progioke 2-osios zonos sritye.
Skirstomajda deze reikla montuoti taip, kadjis visada
buty pasiekiamas operatoriui.
Sprogimopavojus
Komutaciniu prietaisbu kra reikia statyti u2-osi zonos ribu.
Valdymas.
Sužalojimo pavojus
Apsauginis gaubtas darbo metu turi buti visiskal uzdarytas Ir uzblokuotas!
Suzaoljimo pavojus del skrijanciu aplink drozli
Jos gali suzaloti. Stebekite, kad pavojaus srityje nebutu zmoniu.
Gaisro pavojus del skrijanci applink drozli
Stebekite, kad pavojaus srityje nebutu lengvai uzsideganci daiktu.
Sužalojimo pavojus
Jlungiant vamzdziu frezavimo masina, kyla suzaoljimu pavojus del skriejanciu aplnk daliu. Pries naudodami vamzdziu frezavimo masina, nuimkite rankenèle.
Paleidimo procesas
Naudojeant vamzdjiu frezavimo masinas su elektros varikliu rekla uztikrinti, kad butu tinkama jrankio sukimosi kryptis. Sukimosi krypti galima perjungti per reversorui prie komutacinio prietalso.
Sužalojimo pavojus
Veikiant masinai yra suzalojimu pavojus del besisukanci diu. masinos pavojas sritj jeiti leidzlama tk nustatymo darbams atllkti, laikantis saugai svarbiy piemoniu.
- Isjunkite pastumos pavara per pastumos perjungimo svirtj (28).
-
Junkite vamzdziy frezavimo masina.
" Prispaudziamaja svirtele (11) atalsvinkite ir pasukite p jovimo diska su rankenele kuo giliau j vamzdj. Giliai panardintas p jovimo diskas stabilizuoha p jovimo eiga. -
Frezuodami parinkite kuo mazesnj irankio jleidima. Didejant piovimo gyluii pjovimo apimts dideja.
Darbo iranki panardinkite mażdaug 3 mm giliau nei reikia, po to grażinkite iki reikiamo gylio, taip darbo irankis nebus lieciamas.
Naudodami gylio skeale, leskite iranklij jbrézti vamzdizio pavrlsiu. Briaunuota verzle (27) atsukite ir rodyke (28) nustatyke ties 0. Briaunuota verzle (27) vel priverzkite. Tiekimo gylj galima paziúreti skaleje. -
Isjunkite vamzdziu frezavimo masina.
- Po to užfikuokite nustatyma, priverždami prispaudžiamaja svirtele (11).
Vel junkite vamzdziu frezavimo masina. - Junkite pastumos pavara per pastumos perjungimo svirtj (28).
- Jei variklio galia pakankama, reikia vienu pjuviu perpjauti vamzdizio siena.
Pjaunami nutiesti vamzdzai gali nusileisti ir darbo jrankis gali uzstrigi tarpe. Todel kartu pristatytus plestus reikla regularlals atstumals |kalti |carpa. Potenciall alspiroge srityse naudokite plestus (6 33 05 013 00 2) (RSG Ex 1500 A/B ( ) ) cartu pristatyreikmenys) ir plaktuka is nekbirkseiuojanos medziagos. - Venkite vamzdziu frezavimo masinos perkrovos.
- Perkrova yra, kajstumus veikiantj darbo jrankj zenkliaisumaje variklio sukji skaicius.
- Del to paties sumažéja ir piovimo galia.
Uzfiksuokite ruosinj (nupjauta vamzdizio elementa), kad nenukristu.
Storasieniu vamzdziu (s > 10mm) suvirinimo siules reikla frezuoti per kelis kartus.
Sutampanciam pjoivimui turi jtakos sie faktoriai:
- vamzdziu frezavimo masinos islyglavimas paleidimo metu,
- geometrnlis vamzdizio nuokrypiis nuo apskritlmo arba cilindro formos,
-darboirankioastrumas,
medziagos kletumas.
Vamzdji frezavimo masina yra sureguliuota taip, kad vamzdziu, kuriu skersmuo 300 mm ir 600 mm, pjuvio linjos pradzia ir pabaiga beveik sutampa.
Dékrelpiamojo veleno ekscentriškumo regulavimo Žyma (24, Žr. E pav.) galoja tk abiems nurotyiems skersmenims. Kaj vamzdžiu skersmenys didesni, tam tikromis aplinybémis reikia reguluioti papildomai.
Vamzdzi frezavimo masinq atbuline eiga (RSG Ex (^**)
Zala turtui!
Priś judinant atgal vamzdziu frezavimo masina, reikia uztkrinti, kad buty Istumtas darbo jrankis, kad nebutu pazeistas jrankis ir pavara.
- Isjunkite pastumos pavara per pastumos perjungimo svirt (28).
- Prispaudziamajama svirtele (11) atalaisvinkite.
- Istsumkite darbo irankj.
- Perjunkite pagrindinj jungiklj / reversoriu j padetj ,0" (isi).
- Perjunkite reversoriu atbulinei eigai.
- Prispaudziamajsvirtel (11) priverzkite.
- ljunkite pastumos pavara per pastumos perjungimo svirtj (28).
Vamzdji frezavimo masina nera skirta pujimui atbuline eiga!
Ausinimo ir tepimo nurodymai.
Zala turtui!
Darbo jrankis frezavimo metu turi buti ausinamas ir tepamas. Kai ausinama ir tepama nepakankamal, gall ustrgti drozles. Del to gall luzl jrankla.
Laikykites naudojamos ausinimo priemonés gamintojo pateiktu duomenq / nurodymu
Ketaus vamzdzius visada pjaukite sausai be auSinimo tepalo.
Pjaudami nelegiruoto plieno vamzdizius, ausinkite pjovimo diskus ir frezas mulluotu vandeniu.
Eigos tiksluno nustatymas.

Verzle (15, zr. A pav.), raktodydis 46, atsukite.
- Pasukite asj (10) priεkilpa (19).
Verzle (15) priverzkite.
Sukant judejimo asi (10) laikrodzio rodykles kryptimi (darbo jrankio kryptimi), darbo jrankis juda de sine (ziirejimo kryptis sutampa su vamzdizy frezavimo masinos judejimo kryptimi).
Sukant judejimo aşi prieš laikrodžio rodykle, darbo Irankis juda kaire.
Papildomu grandines grandzi naudojimas.

Papildomas grandinu grandis leidziama naudoti tik tam numatytose padetyse.
Fiksavimo zieda (32) ismontuokite.
-
Kalstj (33) Ismontuokite.
-
Naudokite norima grandiniu grandziu skaiiu.
Ivairiu dydziu grandiniu grandys yra masinos reikmenu komplekte.
Sumontuokite nauja fiksavimo zieda (32).
Vamzdziq frezavimo masinos prispaudimas.

,A" Reikalinga darbo erdv didesnio pjvio glyio atveju.
,D' Isorinis vamzdizio skersmuo
i4 Grandinés elementy skaicius, kai vamzdizskersmuo ,D.
RSG Ex 1500 A/B
| Judèjimo aïs padétis | D A Reikalngas | grandinés ilgis vienoje pusée | Bendras grandinés ilgis | i* | |
| [mm] | [mm] [mm] | ||||
| 1 | 250 | 400 | 1427 | 2854 | 5 |
| 300 | 392 | 1525 | 3050 | 5 | |
| 350 | 384 | 1632 | 3264 | 6 | |
| 400 | 378 | 1744 | 3488 | 6 | |
| 2 | 400 | 381 | 1782 | 3564 | 6 |
| 450 | 375 | 1898 | 3796 | 7 | |
| 500 | 369 | 2019 | 4038 | 7 | |
| 550 | 364 | 2144 | 4288 | 7 | |
| 600 | 360 | 2273 | 4546 | 8 | |
| 3 | 600 | 362 | 2302 | 4604 | 8 |
| 650 | 357 | 2433 | 4866 | 8 | |
| 700 | 352 | 2566 | 5132 | 9 | |
| 750 | 348 | 2702 | 5404 | 9 | |
| 800 | 344 | 2840 | 5680 | 10 | |
| 850 | 340 | 2862 | 5724 | 10 | |
| 900 | 337 | 3001 | 6002 | 10 | |
| 4 | 900 | 348 | 3142 | 6284 | 10 |
| 950 | 345 | 3284 | 6568 | 11 | |
| 1000 | 342 | 3428 | 6856 | 11 | |
| 1050 | 340 | 3464 | 6928 | 11 | |
| 1100 | 337 | 3607 | 7214 | 12 | |
| 1150 | 335 | 3751 | 7502 | 12 | |
| 1200 | 333 | 3896 | 7792 | 13 | |
| 1300 | 331 | 4062 | 8124 | 13 | |
| 1400 | 329 | 4338 | 8676 | 14 | |
| 1500 | 328 | 4355 | 8710 | 14 | |
| *Užsakymo numeris 3 02 31 013 02 7 sudaryta iš 10 graninës elementu, kurić kiekvleno ilgis 635 mm. | |||||
RSG Ex 18 A/B
| Judèjimo aïsès padétis | D A Reikali [mm] [mm] | ngas [mm] [mm] | grandinés ilgis vienoje puseje | Bendras grandinés ilgis | i* |
| 1 | 250 | 587 | 1427 | 2854 | 5 |
| 300 | 576 | 1525 | 3050 | 5 | |
| 350 | 564 | 1632 | 3264 | 6 | |
| 400 | 553 | 1744 | 3488 | 6 | |
| 2 | 400 | 522 | 1782 | 3564 | 6 |
| 450 | 511 | 1898 | 3796 | 7 | |
| 500 | 501 | 2019 | 4038 | 7 | |
| 550 | 492 | 2144 | 4288 | 7 | |
| 600 | 483 | 2273 | 4546 | 8 | |
| 3 | 600 | 453 | 2302 | 4604 | 8 |
| 650 | 445 | 2433 | 4866 | 8 | |
| 700 | 437 | 2566 | 5132 | 9 | |
| 750 | 429 | 2702 | 5404 | 9 | |
| 800 | 422 | 2840 | 5680 | 10 | |
| 4 | 800 | 396 | 2862 | 5724 | 10 |
| 850 | 393 | 3001 | 6002 | 10 | |
| 900 | 390 | 3142 | 6284 | 10 | |
| 950 | 386 | 3284 | 6568 | 11 | |
| 1000 | 383 | 3428 | 6856 | 11 | |
| 5 | 1 | 390 | 34640 | 6928 | 11 |
| 1050 | 387 | 3607 | 7214 | 12 | |
| 1100 | 385 | 3751 | 7502 | 12 | |
| 1150 | 382 | 3896 | 7792 | 13 | |
| 1200 | 379 | 4062 | 8124 | 13 | |
| 1300 | 374 | 4338 | 8676 | 14 | |
| 6 | 1 | 383 | 43550 | 8700 | 14 |
| 1400 | 382 | 4651 | 9302 | 15 | |
| 1500 | 378 | 4950 | 9900 | 16 | |
| 1600 | 373 | 5250 | 10500 | 17 | |
| 1700 | 369 | 5553 | 11106 | 18 | |
| 1800 | 366 | 5857 | 11714 | 19 | |
| 1900 | 362 | 6162 | 12324 | 20 | |
| 2000 | 359 | 6468 | 12936 | 21 | |
| 2100 | 356 | 6775 | 13550 | 22 | |
| 2200 | 353 | 7083 | 14166 | 23 | |
| 2300 | 350 | 7391 | 14782 | 24 | |
| 2400 | 348 | 7700 | 15400 | 25 | |
| 2500 | 346 | 8009 | 16018 | 26 | |
| 2600 | 343 | 8319 | 16638 | 27 | |
| 2700 | 341 | 8629 | 17258 | 28 | |
| 2800 | 339 | 8940 | 17880 | 29 | |
| 2900 | 337 | 9251 | 18502 | 30 | |
| 3000 | 335 | 9562 | 19124 | 31 | |
| *Užsakymo numeris 3 02 31 013 02 7 sudaryta iš 10 graninës elementu, kurić kiekviento ilgis 635 mm. | |||||
Optimalam pirminiam grandinés [tempimul pasekti, gallima naudoti Jrankiu lagamine pridetus pusinius grandiniu elementus, kurii ilgis 31,75 mm.
Pavyzdziui:
Kai vamzdizskersmu D=400 mm, reikalingi 6 grandines elementai (uzsakymo numeris 3 02 31 013 02 7).
Kreipiamosios grandines judejimo tikslumas

H
Kreipiamosios grandines ilgio nustatymas pagal lentele
Optimalam pirminlam grandines (templimus pasiekti, gallima naudoti frankliagamine pridetus pusinius grandiniu elementus, kuriigis 31,75 mm.
Krelpiamosios grandines lgis
| Vamzdžio skersmuo | Grandinés ilgis | Grandinés elementai | ||
| [mm] [mm] | 635 mm 63,5 mm 31,75 mm | |||
| 250 710 1 1 | 1 | |||
| 300 870 1 4 | 0 | |||
| 350 1030 1 | 6 1 | |||
| 400 1190 1 | 9 0 | |||
| 450 1344 2 | 1 1 | |||
| 500 1500 2 | 4 0 | |||
| 550 1660 2 | 6 1 | |||
| 600 1809 2 | 8 1 | |||
| 650 1970 3 | 1 1 | |||
| 700 2130 3 | 4 0 | |||
| 750 2290 3 | 6 1 | |||
| 800 2440 3 | 8 1 | |||
| 850 2600 4 | 1 0 | |||
| 900 2760 4 | 4 0 | |||
| 950 2921 4 | 6 0 | |||
| 1000 3079 | 4 8 1 | |||
| 1100 3397 | 5 3 1 | |||
| 1200 3714 | 5 8 1 | |||
| 1300 4032 | 6 3 1 | |||
| 1 4 | 0 | 0 4 | 3 3 | 0 6 |
| 1 5 | 0 | 0 4 | 6 4 | 0 7 |
Uzsakymo numeris 3 02 31 034 01 0 (1 = 635 mm)
Uzsakymo numeris 3 02 31 036 01 0 (l = 63.5 mm)
Uzsakymonumeris30231035010(1=31,7mm)
- Pritvirtinkite kreiplamaja granidine prie vleni i dvejej graninés elementu prie graninés jtempkllo su kaisciu ir fiksavimo ziedu.
- Praveskite kreipiamosios grandines kreipiamaja šaka po dviem kreipiamosios grandines krumplaracials (H pav.).
Laisva kreipiamosios granindens gala pritvirtinkite prei grandeinos jtempiklio su kaišciu ir fiskavimo Žiedu. - Sukdami sesiabriaun prie grandines itempiklio (2) uzddekite kreipiamajagrandine ant vamzdzio.
Kreipiamaja grandine islyguokite 10 mm atstumu (nuo pavaros graninés kaislo ili kreiplamosios graninés kaislo) ir patikrinkite tris kartus per perimeta.
Grandinés jtempikli séisabriauniu (29) jtempkite, kol diskas (30) priglus prie grandinés jtempiklio korpuso (jtempimo sritis apie 50 mm). (Maks. priverzimo momentas 50 Nm)
Demesio: nelaimingu atsitikimpavojus! Nepsersukite triju fiksavimo varztu (31) priekinene puseje. (zr.pav.H)
Baigiamiei darbai po kiekvieno darbo.
-
listumkite darbo jrankj.
-
lsjunkite vamzdziu frezavimo masina.
- Nuimkite darbo jrankj.
- Atlaisvinkite vamzdziu frezavimo masina.
Vamzdziu frezavimo masinos sandeliavinas.
- Apsaugokite isorines metalines dalis nuo korozijos.
Vamzdziu frezavimo masina laiky kite sausoje vietoje.
Techniné prieziūra ir remontas.
Déltéchniques prieziurosir remonto.
Jei reikia remontuoti FEIN elektrinius jrankius ir papildoma jranga, prasome kreiptis J FEIN klientu aptarnavimo skyriu. Adresa rasite internete www.fein.com.
Sio elektrinio jrankio atsarginiu daliu naujausia sarasa rasite internete
www.fein.com.
Naudokite tik originalias atsargines dalis.
Sias dalis, jei reikia, galite pakeisti patys: Darbo jrankius, rankenas, grandine, grandines grandis
Naudoti leidzama tik techniskai nepriekalstingos bukles maina. Susidevejusius arba pazeistus darbo jrankius ir componentus reikia nedelsiant pakeisti nauvais.
Sužalojimo pavojus
del netiketo jungimo.
Prieš bet kokius vamzdžiž frezavimo masinos priežiūros darbus ištraukite tinklo kišuka!
Bendrosios nuorodos
Techniques prieziros darbus leidziama atlikti tik kvalifikuotiems specialists.
Priezluralirtechninesprieziurosdarbamspriklauso:
- iSorinis vamzdjiu frezavimo masinos ir prispaudimo granindiu valymas;
- visos vamzdjiu frezavimo masinos apziura;
-transmisines alvos keitimas; - judéjimo sriegiu ir grandiniu sutepimas;
- jrankio suklio galvutes kreipiamuju prispaudimo ir transportavimo jtaise sutepimubs.
- Pakeiskite lipdukus ir jspéjamuosius nurodymus ant irankio
Grandiu prieziura
Pašaline didielius nešvarumus grandines kruopščai išvalykite plaunamuju benzinu, Šibalu arba pan., judindami grandines grandis.
Tepimul uztkrinti gallausia grandines Idekite kellioms valandoms J tirsta alya, pvz., J transmisine alya SAE 140.
Nelaimingq atsitikimpavojus!
Pries vél naudodami krupopécial apzúrekite grandins grandis, arJos yra nepiekai tingos būklés. Pakeiskite pazeistas dalis ir trukstamus fiksavimo zledus.
Maitinimo laidas
Jei pažeidžiamas elektrinio jrankio jungiamasis laidas, jj turi pakeisti gamintojas arba gamintojo atstovas.
Pristatymo priemoné (zr. A pav.)
- Ant vamzdžlo veržlés (17) apvalkalo turi nebuti nešvarumu ir rudžlu, visada šiek tiek sutepkite.
- Keisdami transmisine alya, nuvalykite ir sutepkite judejimo sriegius.
Ismontavimas:
- Varzta su cilindrine galvute (8) ismontuokite.
- Kalstj (5) istraukite is dangcio.
- Po to sukamaja rankenele išsukite pristatymo priemoni is vamzdžio veržës.
Srigeneis dalis nuvalykite ir sutepkite (2r. skyriu ,Iepimo priemones ir tepimo planas 239 psl.). - Pakeiskite pazeistus tepalo nubloškiamuosius ziedus.
Montavinas:
Primontuokite atbuline tvarka. Surinkdami nepazeiskite tepalo nubloškiamuju Žiedу!8 1
Prispaudimo itaisas 1
Saugokite, kad nebutu uztersti sriegiai prie asiniu varztu (3,1 pav.) spyruokles padekle.
Jei reikia, nuvalykite Ir sutepkite srieglus.
Tepimo priemonés ir tepimo planas
| Tepimo medžiaga ARAL Öl Degol | Priptidymo klekis T Temperatūros ribos [°C] | Specifikacja |
| BMB 460 | 2 litraj | nuo 0 iki +60 |
| BMB 100 | 2 litraj | nuo -20 iki +40 |
Gamykloje jrankio suklio buvute buvo pripildya su „ARAL OL Degol BMB 100".
Nerekomenduojame naudoti kitokias transmisines alvvas.
Tepimo medziagos slydimo pavirsiams
Slydimo pavirsiu tepimui ir priezlural rekomenduojame vandenlui atsparius firminius slydimo guoliu tepalus, kuriu sudetye nera rugsiu.

| Teplmo vleta Teplmo arba eksploatacine | medžlaga |
| 2 (reduktorial) Žr. lentele „Tepimo alyva | rankio suklio galvutei" |
| 3 (slydimo paviršiai ir judèjimo sriegiai) | slydimo guoliu tepalas |
Gedimu salinimas (tipas RSG Ex ( 其 ^ 其 )
| Gedimas Galimos priežastys Priemonës | ||
| Sustoja variklis ir darbo jrankis Labai Žema aplinkos temperatūră Naudokite FEIN transmisine alyva, skirta Žembs temperatuüroms | ||
| Neaštrus darbo jrankis Pakeiskite darbo jrankj | ||
| Néra tinklo jtampos | Patikrinkite tinklo jungti ir komutacinius prietaisus | |
| Netinkama tinklo jtampa Patikrinkite tinklo jungties duomenis | ||
| Per greita pastūma arba per didelis medziagos kiekis pašalinamas vileu kartu | Priderinkite reduktoriu ir (arba)sumažinkite panardinimo gylj | |
| Alyvossumažëjimas pavaru déëëje Suraskite ir pašalinkte nuotëkj - Ipilkite alyvos | ||
| Per didelis temperatuños pakillimas variklyje | Iš naujo suaktyvinkite komutaciniu prietaisu bloka 3 07 02 041 01 4 | |
| Sugadintas grandnës krumpilaratis | Paželstas grandnës elementas | Pakelskite grandnës elementa |
| Netinkamai sujungta graninë | Patikrinkite sujungimo taškus ir koreguokite | |
| Grandinës kaiëstis istatytes ne visas | Istatykite visa kaiësti | |
| Netinkama pjoyimo eiga | Netinkamai išlygiuota vamzdžių frezavimo mašina ir graninë | žr. skyriu „Vamzdžių frezavimo mašinos paruošimas (žr. A pav.)".“ 236 psl. ir skyriu „Vamzdžių frezavimo mašinos prispaudimas ant vamzdžio".“ psl. 236 |
| Neekscentriškas kreipiamasis velenas | Nustatykite eigos tiksluma,žr. skyriu „Eigos tikslumo nustatymas."“ psl. 237 | |
| Neaštrus darbo jrankis Pakeiskite darbo jrankj | ||
| Skera arba vertikali vamzdžio padëtis arba neapvaluus vamzdis | Naudokite judëjlimo tikslumo italsa,žr. skyriu „Vamzdžių frezavimo mašinos prispaudimas ant vamzdžio".“ 236 psl. ir skyriu „Judejlimo tikslumas" psl. 239 | |
| Perkrautas darbo jrankis | Priderinkite reduktoriu ir (arba)sumažinkite panardinimo gylj | |
| Sumažëjasio našumo arba neveikianti mašina | Néra tinklo jtampos | Patikrinkite tinklo jungti ir komutacinius prietaisus |
| Nejjungtas jungiklisi | Patikrinkite jungiklj | |
| Slysta sankaba | Priderinkite reduktoriu arba paveskite FEIN gamykloje nustatyki sankabos suveikimo momenta | |
| Stipri vibracija | Per greita pastūma | Priderinkite reduktoriu |
| Darbo jrankis per gillai Pakelkite darbo jrankj | ||
| Prispaudžiamoji svirtelè (11) nepriveržta | Priveržkite prispaudžiamaja svirtelè | |
| Laisva graninë | Patikrinkite graninës jtempima | |
| Neaštrus darbo jrankis Pakeiskite darbo jrankj | ||
Garantija.
Gaminui jstatyminé garantija suteikiama pagal salyje, kurioje buvo pateiktas rinkai, gallojanlus jstatyminius aktus.
Darbo irankiai ir reikmenys
Diskinio pjuklo diskai:

1

2

3
| 1 forma, HSS, pavaros tipui: | ||||
| A, B - apodoroti plieniniams vamzdžiams | ||||
| Ø Plotis Masè Dantu | skalčius | Maks. pjovimo gylis | Užsakymo numeriš | |
| (mm) (mm) (kg) (mm) | ||||
| 160 4 0,5 50 25 6 35 | 02 022 00 | 6 | ||
| 180 4 0,7 60 35 6 35 | 02 037 00 | 8 | ||
| 200 4 0,9 64 45 6 35 | 02 053 00 | 7 | ||
| 220 4 1,3 70 55 6 35 | 02 041 00 | 1 | ||
| 2 forma, HSS, pavaros tipui: | ||||
| B - apodoroti ketaus vamzdžiams | ||||
| Ø Plotis Masê Dantú | skaičius | Maks. pjovimo gylis | Užsakymo numeris | |
| (mm) (mm) (kg) (mm) | ||||
| 160 4 0,5 40 25 6 35 | 02 050 00 | 1 | ||
| 180 4 0,7 46 35 6 35 | 02 098 00 | 0 | ||
| 200 4 0,6 50 45 6 35 | 02 099 00 | 4 | ||
| 3 forma, HSS, su kietojo metalo danumis, pavaros tipui: | |||||
| A, B - apodoroti ketaus vamzdžiams (taip pat su cemento užpildu) ir nelegiruotiems plieno vamzdžiams ilk 400 N/mm2 | |||||
| Ø Plotis Masè Dantu | skaičius | Maks. pjovimo gylis | Užsakymo numeris | ||
| (mm) (mm) (kg) (mm) | |||||
| 160 4 0,5 40 25 6 35 | 02 080 00 | 8 | |||
| 180 4 0,7 44 35 6 35 | 02 061 00 | 9 | |||
| 200 4 0,9 50 45 6 35 | 02 084 00 | 2 | |||
Pleistas
| \( \mathrm{P} \times \mathrm{A} \times \mathrm{G} \) | |
| mm | |
| \( 6 \times 6 \times {32402210440000} \) | |
| \( 8 \times 7 \times {3240221050005} \) | |
Transportavimo kontineris
| Ilgis x plotis x aukstis | |
| mm | |
| 1000 x 800 x 395 3 39 01 114 00 7 | |
Profilinéfreza

| V forma, HSS, pavaros tipui: | ||||||
| A - apdoroti legiruoto plieno vamzdžiamsB - apdoroti nelegiruoto plieno ir ketaus vamzdžiams, kuriu maks. sienos storis10 mm, o maks. skersmuo 1600 mm | ||||||
| D B Mase | Dantu | skaičius | β | Maks. p jovimo gylls | Užsakymo numeris | |
| (mm) | (mm) | (kg) | (°) | (mm) | ||
| 125 | 25 | 1,6 | 32 | 30 | 25 | 6 35 08 056 00 4 |
| 160 | 30 | 3,2 | 36 | 30 | 25 | 6 35 08 081 00 9 |
| 160 | 30 | 3,3 | 36 | 37,5 | 25 | 6 35 08 093 00 0 |
| 180 | 42 | 5,5 | 36 | 37,5 | 25 | 6 35 08 094 00 0 |
| 180 | 42 | 4,9 | 36 | 30 | 25 | 6 35 08 085 00 8 |


| U forma, HSS, pavaros tipui: | |||||
| A - apodoroti legiruoto plieno vamzdžiamsB - apodoroti nelegiruoto plieno ir ketaus vamzdžiams, kurių maks. sienos storis10 mm, o maks. skersmuo 1600 mm | |||||
| D B | Masé | Dantú | skaličius | Maks. pjovlmo gylis | Užsakymo numeris |
| (mm) | (mm) | (kg) | (mm) | ||
| 160 | 25 | 2,8 | 40 | 25 | 6 35 08 089 00 7 |

| Frezć komplektas, HSS, pavaros tipui: | ||||||
| A - apodoroti legiruoto pliero vamzdžiamsB - apodoroti nelegiruoto pliero ir ketaus vamzdžiams, kurić maks. sienos storis10 mm, o maks. skersmuo 1600 mm | ||||||
| D B Masé | Dantú | skaičius | β | Maks. p jovimo gyilis | Užsakymo numeris | |
| (mm) | (mm) | (kg) | (°) | (mm) | ||
| 154 | 30,5 | 2,5 | 32 | 30 | 25 | 6 35 08 099 02 0 |
Grandinés elementas
| 10 grundinés elementu x 63,5 mm = 635 mm |
| Užsakymo numeris 3 02 31 013 02 7 |
| 1 grundinés elementas 31,75 |
| Užsakymo numeris 3 02 31 029 00 2 |
Atsarginis kaiistis
Atsarginis fiksavimo ziedas
| Užsakymo numeris 3 | 02 17 216 00 4 | Prispaudimo grandiné 38,5 mm |
| Užsakymo numeris 3 | 02 16 166 00 0 | Kreipiamoji grandiné 54 mm |
Pasirenkamieji reikmenys
| Užakymo numeris Kiekis Pavadinimas | |
| 3 39 01 114 00 7 1 Transportovartavlmo konteineris | |
| 3 39 01 031 00 1 1 Kartoniné déžé - baldas lagağininas | |
| 3 21 22 007 01 7 1 Rankenhélé | |
| 6 29 01 016 00 2 1 Atviras veržliaraktis, raktodydis 46 | |
| 6 29 03 010 00 6 1 Atviras veržliaraktis, raktodydis 55 | |
| 3 12 07 333 01 0 1 Grandnés jtempiklistik | RSG Ex 1500 A/B (**) |
| 6 29 11 010 00 0 1 Žiedinssveržliaraktis, 17/19 | |
| 6 29 06 014 00 0 1 Galinis raktas, raktodydis 46 | |
| 3 02 31 029 00 2 20 Rtiiné grandiné | |
| 3 02 17 216 00 4 20 Kališts | |
| 4 26 34 020 00 5 40 Apsalginiš∉s Žiedas | |
| 6 33 05 013 00 2 5 Plešta, nekibirkščiuojantyskiirti RSG Ex 1500/18 A/B (**) | |
| 3 07 02 041 01 4 1 Komutaciniu prietaisüblokasskirti RSG Ex 1500/18 A/B (**) | |
| 3 21 74 009 00 1 1 Apvalikilpa | |
| 3 21 74 010 00 3 1 Apvalikilpa | |
| 3 07 28 188 00 8 1 CEE jungtis tik | RSG Ex 1500/18 A/B (**) |
| 3 02 31 035 02 0 1 Grandiné tik RSG Ex 1500 A/B (**) | |
| 3 02 16 166 01 0 1 Kališts tik RSG Ex 1500 A/B (**) | |
| 3 40 56 026 00 0 1 Jterpiameji diskai tik | RSG Ex 1500 A/B (**) |
| Užsakymo numeris Kiekis Pavadinimas | ||
| 3 02 31 013 02 7 1 Grand | nè su 10 grandinès | elementu |
| 4 26 34 020 00 5 1 Apsauginis Žiedas | ||
| 3 02 17 216 00 4 1 Kalštis | ||
| 4 30 12 051 12 2 1 Regulávimo varžtas | ||
| 6 33 05 013 00 2 | Nekibirkšćluojantis ištūmimo pleštas | |
| 9 12 01 002 00 4 Suslétgo | oro ausinamojo tepimo ltaisas (DKSE) | |
| 3 24 33 027 01 7 1 Jungiamhosios dalys, skirtos DKSE(ploksté) | ||
| 9 26 01 023 02 3 1 Kompresorlius, skirtas DKSE | ||
| 3 14 14 055 00 2 1 PA-DL | žarnos komplektas kompresorliui | |
| 4 11 36 005 01 9 1 Sujungamoji mova | ||
| 3 02 31 035 02 0 1 Grand | nè | |
| 3 02 16 166 01 0 1 Kaištis | ||
| 3 40 56 026 00 0 1 Jterplamieli diskal | ||
Suslégto oro ausinamojo tepimo jtaisas 9 12 01 002 00 4
Dél galimo didello vamzdžiu frezavimo masinos pjovimo Ir pastūmos greicio reikalingas jrankiu ausinimas bei tepimas apdorojant pliena. Suslégo oro ausinamojo tepimo itaisas veikia ausinamosios tepimo priemonés iispurskimo ir garinimo prínci r užtkrina nuolatīn gera ausinima ir tepima per vamzdžiu frezavimo masinoje sumontuotus purstkutux.
Be to, statybvleteje iśvengiama dirvożemio użtersimo šaip rankinlu budu tieklama grežimo emulsija.
Kaip ausinamaji tepimo skystj rekomenduojame naudoti metalo apdirbmu skirta tepimo priemone BIOCUT 3000. Tai naujo tipo visiskai sintetine akstos kokybes tepimo prlemone, pasiyminti puiklu sukibimo ir ausinimo povelku, ji yra tirpl vandenyje, lengvai biologiskai suyranti er ekonomiska (priklausomai nuo nustatymu, ma辩证 iki 0,3 dm³/h vienam purktukul).
BIOCUT 3000 sudetyne nera sveikatal kenksmingu medziag. Ji atitinka Vokietijoje jsikurusios serifikavimo jstaigos,Deutsche Verein des Gas- und Wasserfachs e.V." (DVGW) rekalavimus.
Visos sudétinés medziagos atitinka Jungtiniu Amerijos Valstiju FDA (Food and Drug Administration) ir Vokietijos farmakopejos (Deutsches Arzneibuch) sutr. DAB) siandien galiojanicos versijos rekomendacjas.
Tepimo priemoné galima jsigyti:
tepimo prlemone BIOCUT 3000 temperatural lki 0^ 1-32132039000
51-32132040000
Salciui atsparia tepimo priemonetemperaturai iki-25 ^ C
11-32132042000 51-32132043000
Trifazlams variantams RSG Ex (^**) reikalingas kompressorius, FEIN ušakymo numeris 9 26 01 023 02 3, kurio prisiurbimo kiegis mazdaug 130 l/min., kad būtg alima naudoti susléto oro auginamo tepimo jtsaia.
Atsarginés dalys.
Naujausa atsarginiu daliu saraša rasite internete www.fein.com.
Atitikties deklaracija.
CE deklaracija galoja tik Europos Sajungos ir ELPA (Europos laisvosios prekybos associacios) salyse ir tik ES arba ELPA rinkai skirtiems gaminiams.
Firma FEIN savo atsakomybés ribose patvirtina, kad sis produktas atitinka sios instrukcijos paskutiniame puslapye nurodytus specialiuosius rekalavimus.
Technine byla laikoma: C. & E. Fein GmbH,
Aplinkosauga, šalinimas.
Pakuotès, nebetinkami naudoti elektriniai jrankiai ir papildoma jranga turi buti perdirbami aplinkai nekensmingu budu.
Originalas lietosanas pamacibas tulkojums.
1] Drośba darba vieta
a) Sekojiet, lai darba vieta butu tira un sakartota. Nekartiga darba vietau n sliktapgaismojuma var viegli notikt nelaimes gadijums.
b) Nelietojiet elektroninstrumentu eksplozivu vui ugunsnedrosu vielu tuvumau un vietas ar paaugstinatu gazes vai puteklu saturu gaisa. Darba laikak Elektron instruments nedaudz dzirkstelo, un tas var izsaukt viegli degošu puteklu va tvaiku alzdegsanos.
c) Lietojot elektroninstrumentu, nelaujiet nepiederosam personam un jo ipasi berniymu tvoties dar ba vietai. Citu personu klbtbute ne var noverst uzmanibu, ka rezultata jus varat zaudc kontroli pär elektroninstrumentu.
2] Elektrodrosiba
a) Elektroinstrumenta kontaktdaksai jabut piemerotai elektronikla kontaktligzdi. Kontaktdaksas konstrukciju nedrskt nekada veidā mainit. Nelietojet kontaktdaksas salagotjus, ja elektroinstruments caur kabeli tiek savieten ar aizsargzemjuma kedi. Neizmianitas konstrukcjjas kontaktdaksa, kas piemerota kontaktligzdi, lauj samazinat elektriskā trieciena sanemşanas risku.
b) Darba laika nepieskarieties szametemi prieksmetiem, piemeram, caurulēm, radiatoriem, pflitm vai dedusskapjimi. Pieskaroties szemēṭām vīrsmām, piaug risks sanjet elektrisko triécijenu.
c) Nelietojiet elektroinstrumentu lietus laika, neturiet to mitruma. Mitrumam ieklustot elektroninstrumenta, pieaug risks sanem elektrisko trieciju.
d) Nenesiet un nepiekariet elektrinstrumentu aiz elektrokabela. Nerauijiet aiz kabela, ja vēlatties avienot instrumentu no elektròfikla kontaktligzdas. Sargajiet elektrokabeli no karstuma, ellas, asam skautnēm un elektrinstrumenta kustigājam davon. Bojats vai samezglojies elektrokabelis var būt par celoni elektriskajam triécianem.
e) Darbinot elektrinoinstrumentu arpus telpam, izmantojiet ta pievienosanai vienigi tadus pagarinatajkabelus, kuru lietosana arpus telpam ir atlauta. Lietojot elektrokabeli, kas piemerocts darbam arpus telpam, samazinas risks sanemt elektrisko triecenu.
f) Ja elektrinoinstrumentu temer nepieciesams lietot vietas ar paaugstinatu mitrumu, izmantojiet tā pievienosanai noplades stravas aizsargreleju. Lietojot noplades stravas aizsargreleju, samazinās risks sanemt elektrisko trieclenu.
Pirms nodosanas ekspluatacija.
Traumu risks, ko var radit negaiditas darbvirmas kustibas. Pirms apstrades dostiprintiet sagatavi pret neparedzetam kustibam. Apstradajot materialu, pastav neparedzetas sagataves riposanas, krisanas vai nobides risks.
I lekartu drikst ekspluatet tikai tehnisk nevainojama stavokli. Pirms katras iedarbinasanas reizes pbaraudiet, vai lekarta vai papildinstrumenti nav nodilusi va bojati. Nodilusi va bojati papildinstrumenti un componenti ir nekavejoties jänomaina.
Nodosana ekspluatacija.
Sadales iekartu kombinacija jauzsta arpus 2. zonas.
ledarbinasana.
Traumurisks
Darba laikā aizsargapvalkam jabut pilinibaizvertam un nobloketam!
Traumu risks no lidojosam skembam
Tas var izraisit traumas. Parliecinieties, ka bistamaja zona nav cilveku.
Ugunbsistamiba no lidoosam skembam
Atbilstibas deklaracija.
CE aplicacinajums ir derigs tikai Eiropas Savienibas un EBTA (Eiropas Brivas tirdzniecibas asociacijas) valstim un tikai izstradajumiem, kas paredzeti ES vai EBTA tirgum.
Firma FEIN ar pilnu atbildibu deklare, ka sis izstradajums atbilst sis lietoanas pamacibasPEDeja lappuse minetajam speka esosajam direktivam.
Tehniská dokumentácija no: C. & E. Fein GmbH,
D-73529 Schwabisch Gmund
Vides aizsardziba, atbrivoanas no nolietotajiem izstradajumiem.
Nolletotie elektroinstrumenti, to lesainojums un piederum ijanogada otrrelzejai
parstradei apkartejai videi nekaitiga veida.
正本使用说明书的翻译。
使用的符号,缩写和代名词。
Jus Jus jus jus jus jus jus jus jus jus jus jus jus jus jus jus jus jus jus jus jus jus jus jus jus jus jus jus jus jus jus jus jus jus jus jus jus jus jus jus jus jus jus jus jus jus jus jus jus
y 1
153 154
y 1
aaii iip
Jaa 1
(2)
Sadales iekartu kombinacija
30702041014
RSG Ex 1500 A/B []
RSG Ex 18 A/B [*]
接线图
接線圖
頭今
回路
克藥安藥
发动机接线图
發動機接線圖
皆同乐,
1
王一夕一回路图
Notice-Facile