RSG EX18b - Bohrmaschine Fein - Kostenlose Bedienungsanleitung
Finden Sie kostenlos die Bedienungsanleitung des Geräts RSG EX18b Fein als PDF.
Laden Sie die Anleitung für Ihr Bohrmaschine kostenlos im PDF-Format! Finden Sie Ihr Handbuch RSG EX18b - Fein und nehmen Sie Ihr elektronisches Gerät wieder in die Hand. Auf dieser Seite sind alle Dokumente veröffentlicht, die für die Verwendung Ihres Geräts notwendig sind. RSG EX18b von der Marke Fein.
BEDIENUNGSANLEITUNG RSG EX18b Fein
Originalbetriebsanleitung.
Verwendete Symbole, Abkürzungen und Begriffe.
| Symbol, Zeichen Erklärung | |
| 11 | Den Anweisungen im nebenstehenden Text oder Grafik folgen! |
| 2 | Die beiliegenden Dokumente wie Betriebsanleitung und Allgemeine Sicherheitshinweise unbedingtlesen. |
| 3 | Beim Arbeiten Augenschutz benutzen. |
| 4 | Beim Arbeiten Gehörschutz benutzen. |
| 5 | Beim Arbeiten Handschutz benutzen. |
| 6 | Allgemeines Verbotszeichen. Diese Handlung ist verboten! |
| 7 | Hineinfassen verboten! |
| 8 | Rotierende Teile des Elektrowerkzeugs nicht berühren. |
| 9 | Hineinfassen in Ketten und Ritzel verboten! |
| 10 | Warnung vor scharfen Kanten der Einsatzwerkzeuge, wie z. B. Schneiden der Schneidmesser. |
| 11 | Heße Oberfläche! |
| 12 | Griffbereich |
| 13 | Zusatzinformation. |
| 14 | Bestätigt die Konformität des Elektrowerkzeugs mit den Richtlinien der Europäischen Gemeinschaft. |
| 15 | Ausgemusterte Elektrowerkzeuge und andere elektrotechnische und elektrische Erzeugnisse getrennt sammeln und einer umwelt-gerechten Wiederverwertung zuführten. |
| 16 | Verdrehen Sie keinesfalls die drei Sicherheitsschrauben. |
| 17 | Nur gültig für China: Die Dauer des Umweltschutzes bei normaler Verwendung des Produkts beträgt 10 Jahre. |
| (*) Kann Ziffern oder Buchstaben enthalten | |
Technische Daten.
Bestellnummer 7360...7360...
Bauart* RSG Ex 1500 A (^) RSG Ex 1500 B (^)
Bestellnummer 7360...7360...
Bauart RSG Ex 18 A () RSG Ex 18 B (*)
Spannung (U)400V400V
Frequenz (f) 50 Hz 50 Hz
Netzanschlussart 3 (Drehstrom) 3 (Drehstrom)
Leerlaufdrehzahl (n_0)
- Motor 2860/min 2860/min
- Einsatzwerkzeuge 35/min 70/min
Vorschub (h) 40 mm/min 80 mm/min
Bemessungsleistung (P) 1500 W 1500 W
Lange des Netzkabels (mit Stecker)
- RSG Ex 1500 (^) 2 × 20m 2 × 20m - RSG Ex 18 A/B (^) 2 × 20m 2 × 20m
Schutzklasse I/1 I/1 Schutzart IP X4 IPX4
*Elektromotor und Zusatzschalter in explosionsgeschützter Ausführung (ATEX-konform)
MaBe:
- Gewicht (m) 80 kg 80 kg
- max. Werkzeug-Ø 220 mm 220 mm
-
Lmax. 974 mm 1088 mm
-
H_max 334 mm 334 mm
-
B_max 450 mm 431 mm
-
B_1 371 mm 371 mm
B_2 201 mm 201 mm
- B3 791 mm 991 mm
Bestimmung der Rohrfrasmaschinen.
Die Rohrfräsmachine ist bestimmt zum Trennen und Fräsen von freiliegenden Rohrstücken und verlegten Rohrleitungen aus Stahl oder Guss sowie zum Anfassen von Rohrenden vor dem Schweiben auf den Baustellen, Werkhallen und im Freien. Die Rohrfräsmachine ist bestimmt für Spezialfirmen zur Bedienung von Spezialisten für
nicht dauerhaften alltäglichen Einsatz.
Die komplette Rohrfräsmachine ist nicht für den Ex-geschützten Bereich zugelassen.
Die Rohrfrasmaschine ist nicht bestimmt für:
- den Einsatz in Bereichen mit explosionsfähiger Atmosphäre.
- den Einsatz bei Starkregen und Arbeiten unter Wasser.
außerhalb eines Temperaturbereichs von -20°C bis 40°C. - für das Trennen von explosiven Stoffen
- für das Trennen von brennbarem Material.
EG-Richtlinie 94/96 ATEX (Atmospheres Explosibles)
Wir weisen daraufhin, dass die Fein Rohrfrasmaschinen vom Typ RSG Ex (^**) nicht für die Verwendung in explosionsgeführdaten Bereichen zugelassen sind und deshalb für diese Rohrfrasmaschinen keine EG-Baumusterprüfbescheinigungen entsprechend Richtlinie 94/9EG existieren.
(Beir der Rohrfrasmaschine RSG Ex ( ) werden mit dem Elektromotor und dem Zusatzschalter lediglich zwei ATEX-konforme Komponenten eingebaut.)
Die ATEX-Richtlinie gilt nur im EG-Raum.
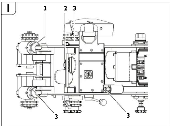
Auf einen Blick.
1 Spanneinrichtung
2 Befestigungsschraube für Seitenplatte
3 Seitenplatte
4 Hinweis
5 Bolzen
6 Gewindespindel
7 Zustelleinrichtung
8 Zylinderschraube für Zustelleinrichtung
9 Passschraube
10 Laufachse
11 Klemmhebel
12 Sechskantschraube
13 Scheibe
14 Spannachse
15 Mutter
16 Werkzeugspindelstock
17 Rohrmutter
18 Befestigungsschraube für Motor
19 Lasche
20 Kettenrad
21 Transportwelle
22 Sicherungsring
23 Stift
24 Verschlusssschaube Werkzeugspindelstock
25 Tracegriff (isollierte Grifflächen)
26 Tiefenskala
27 Rendelmutter
28 Vorschubschalthebel
29 Seckskant Kettenspanner
30 Scheibe Kettenspanner
31 Sicherungsschrauben Kettenspanner
32 Sicherungsgring Kettenglied
33 Bolzen Kettenglied
34 Trageschlaufen
Zu Ihrer Sicherheit.
Allgemeine Sicherheitshinweise.
WARNING Lesen Sie alle Sicherheitshinweise, Anweisungen, Behildere-ungen und technischen Daten, mit denen这点 Elektrwerk-zeug versehen ist. Versaumnisse bei der Einhaltung der Sicherheitshinweise und Anweisungen konnen elektrischen Schlag, Brand und/oder schwere Verletzungen verursachen.
Bewahren Sie alle Sicherheitshinweise und Anweisungen für die Zukunft auf.
Der in den Sicherheitsnweisen verwendete Begriff „Elektrowerkzeug" bezieht sich auf netzbetriebene Elektrowerkzeuge (mit Netzkabel) und auf akkubetriebene Elektrowerkzeuge (ohne Netzkabel).
1) Arbeitsplatzssicherheit
a) Halten Sie ihren Arbeitsbereich sauber und gut beleucht. Unordnung oder unbeleuchtete Arbeitsbereiche können zu Unfallen führen.
b) Arbeitsen Sie mit dem Elektrowerkzeug nicht in explosionsgeführter Umgebung, in der sich brennbare Flüssigkeiten, Gase oder Stäube befinden. Elektrowerkzeuge erzeugen Funken, die den Staub oder die Dämpfe entzünden können.
c) Halten Sie Kinder und andere Personen während der Benutzung des Elektrowerkzeugs farn. Bei Ablenkung konnen Sie die Kontrolle über das Elektrowerkzeug verlieren.
2] Elektrische Sicherheit
a) Der Anschlussstecker des Elektrowerkzeuges muss in die Steckdose passen. Der Stecker dart in keiner Weise verändert werden. Verwenden Sie keine Adapterstecker gemeinsam mit schutzgeerdeten Elektrowerkzeugen. Unveränderte Stecker und passende Steckdosen verringern das Risiko eines elektrischen Schlages.
b) Vermeiden Sie Körperkontakt mit geerdeten Oberflächen wie von Rohren, Heizungen, Herden und Kühlschränken. Es besteht ein erhöhtes Risiko durch elektrischen Schlag, wenn Ihr Körper geerdet ist.
c) Halten Sie Elektrowerkzeuge von Regen oder Nisse fern. Das Eindringen von Wasser in ein Elektrowerkzeug erhöht das Risiko eines elektrischen Schlages.
d) Zweckentfremden Sie die Anschlussleitung nicht, um das Elektrowerkzeug zu tragen, aufzahngen oder um den Stecker aus der Steckdose zuziehen. Halten Sie die Anschlussleitung fern von Hitze, Öl, scharfen Kanten oder sich bewegendene Teilen. Beschädigte oder verwickelte Anschlussleitungen erhöhen das Risiko eines elektrischen SchLAGs.
e) Wenn Sie mit einem Elektronerkzeug im Freien arbeiten, verwenden Sie nur Verlängerungsleitungen, die auch für den Außenbereich geeignet sind. Die Anwendung einer für den Außenbereich geeigneten Verlängerungsleitung verringgert das Risiko eines elektrischen Schages.
f) Wenn der Betrieb des Elektrowerkzeuges in feuchter Umgebung nicht vermeidbar ist, verwenden Sie einen Fehlerstromschutzschalter. Der Einsatz eines Fehlerstromschutzschalters vermindert das Risiko eines elektrischen Schlages.
3) Sicherheit von Personen
a) Seien Sie aufmerksam, achten Sie darauf, was Sie tun, und gehen Sie mit Vernunft an die Arbeit mit einem Elektrowerkzeug. Benutzten Sie kein Elektrwerkzeug, wenn Sie mühde sind oder unter dem Einfluss von Drogen, Alko-hol oder Medikamenten stehen. Ein Moment der Unachtsamkeit beim Gebrauch des Elektronwerkzeuges kann zu ernsthaften Verletzungen führen.
b) Tragen Sie persönliche Schutzausrüstung und immer eine Schutzbrille. Das Tragen personalischer Schutzausrüstung, wie Staubmaske, rutschfeste Sicherheitschupe, Schutzhelm oder Gehörschutz, je nach Art und Einsatz des Elektrowerkzeuges, verringget das Risiko von Verletzungen.
c) Vermeiden Sie eine unbeabsichtigte Inbetriebnahme. Vergewissern Sie sich, dass das Elektrowerkzeug ausgeschickt ist, bevor Sie es an die Stromversorgung und/oder den Akku anschließen, es aufnehmen oder tragen. Wenn Sie beim Tragen des Elektrowerkzeuges den Finger am Schalter haben oder das Elektrowerkzeug eingescheltet an die Stromversorgung anschließen, kann dies zu Unfallen führen.
d) Entfernen Sie Einstellwerkzeuge oder Schraubenschlüssel, bevor Sie das Elektrowerkeug einschalten. Ein Werkzeug oder Schlüssel, der sich in einem drehenden Teil des Elektrowerkeuzugs befindet, kann zu Verletzungen führen.
e) Vermeiden Sie eine abnormale Körperhaltung. Sorgen Sie für einen sicheren Stand und halten Sie jederzeit das Gleichgewichtet. Dadurch konnen Sie das Elektrowerkzeug in unerwarteten Situationen better kontrollieren.
f) Tragen Sie geeignete Kleidung. Tragen Sie keine weite Kleidung od er Schmuck. Halten Sie Haare und Kleidung fern von sich bewegenden Teilen. Lockere Kleidung, Schmuck oder lange Haare konnen von sich bewegenden Teilen erfasst werden.
g) Wenn Staubabsaug- und -affangeinrichtungen montiert werden konnen, sind diese anzuschlieben und richtig zu verwenden. Verwendung einer Staubabsaugung kann Gefährdungen durch Staub verringern.
h) Wiegen Sie sich nicht in falscher Sicherheit und setzen Sie sich nicht über die Sicherheitsregeln für Elektrowerkzeuge hinweg, auch wenn Sie nach vielfachem Gebrauch mit dem Elektrowerkzeug vertraut sind. Achtloses Handeln kann binnen Sekundenbruchteilen zu schweren Verletzungen führen.
4) Verwendung und Behandlung des Elektrowerkzeuges
a) Überlasten Sie das Elektrowerkzeug nicht. Verwenden Sie für ihre Arbeit das davon bestimmte Elektrowerkzeug. Mit dem passenden Elektrowerkzeug arbeiten Sie better und sicher im angegebenen Leistungsbereich.
b) Benutzen Sie kein Elektrowerkzeug, dessen Schalter defekt ist. Ein Elektrowerkzeug, das sich nicht mehr ein- oder ausschalten latent, Ist gefährlich und muss repariert werden.
c) Ziehen Sie den Stecker aus der Steckdose und/oder entfern Sie einen abnehmberen Akku, bevor Sie Geräteinstellungen vornehmen, Zubehörteile wechseln oder das Elektrowerkzeug weglegen. Diese Vorsichtsmaßnahme verhindert den unbeabsichtigten Start des Elektrowerkzeuges.
d) Bewahren Sie unbenutzte Elektrowerkzeuge außerhalb der Reichweite von Kindern auf. Lassen Sie keine Personen das Elektrowerkzeug benutzen, die mit thisem nicht vertraut sind oder diese Anweisungen nicht gelesen haben. Elektrowerkzeuge sind gefährlich, wenn sie von unerfahrenen Personen benutzt werden.
e) Pflegen Sie Elektrowerkzeuge und Einsatzwerkzeug mit Sorgfait. Kontrollieren Sie, ob bewegliche Teile einwandfrei Funktionieren und nicht klemmen, ob Teile gebrochen oder so beschädigt sind, dass die Funktion des Elektrowerkzeuges beeinträchtigt ist. Lassen Sie beschädigte Teile vor dem Einsatz des Elektrowerkzeuges reparieren. Viele Unfälle haben ihre Ursache in schlecht gewarteten Elektrowerkzeugen.
f) Halten Sie Schneidwerkzeuge scharf und sauber. Sorgfeldg gepflegte Schneidwerkzeuge mit scharfen Schneidkanten verklemmen sich weniger und sind leichter zu führen.
g) Verwenden Sie Elektrowerkzeug, Zubehör, Einsatzwerkzeuge usw. entsprechend diesen Anweisungen. Berücksichtigten Sie dazu die Arbeitsbedingungen und die auszuführende Tätigkeit. Der Gebrauch von Elektrowerkzeugen für andere als die vorgesehenen Anwendungen kann zu gefährlichen Situationen führen.
h) Halten Sie Griffe und Griffflächen trocken, sauber und frei von Öl und Fett. Rutschige Griffe und Griffflächen erlauben keine sichere Bedienung und Kontrolle des Elektrowerkeugeins in unvorhergesehenen Situationen.
5) Service
a) Lassen Sie Ihr Elektrowerkzeug nur von qualifiertelem Fachpersonal und nur mit Original-Ersatzteilen reparieren. Damit wird sichergestellt, dass die Sicherheit des Elektrowerkzeuges erhalten bleibt.
Spezielle Sicherheitshinweise für Rohrfräsmaschinen.
Beachten Sie bei der Inbetriebnahme, beim Arbeits und bei der Wartung der Rohrfräsmachine die nationalen Unfallverhütungsvorschriften.
Beachten Sie die gesetzlichen Explosionsschutz-Richtlinien.
Sorgen Sie für sicheren Stand des zu bearerbeitenden Rohres. Nicht Beachtung des Hinweises kann zu ernsten Verletzungen oder zum Tod führen.
Elektrisch betriebene Rohrfrasmaschinen (Bauart RSG Ex (^**)
Netzspannung und Spannungsangabe an der Rohrfräsmaschine müssen überin-stimmen.
Der Anschluss der Rohrfrämaschine muss mit einer Sicherung von 20 A abgesichert werden.
Netzkabel und ggf. Verlängerungskabel regelmäßig überprüfen!
Die Rohrfräsmachine nur bei ausgeschaltetem Hauptschalter an die Schaltgeräte-kombination anschließen.
Die Schaltgerätekombination muss vom Bedlener jederzeit erreichbar sein.
Anwendung.
Hatten Sie Griffe und Grifflachen trocken, sauer und frei von Öl und Fett. Rutschige Griffe und Grifflachen erlauben keine sichere Bedienung und Kontrolle des Elektrowerkeuzgeins in unvorhergesehenen Situationen.
Hatten Sie das Gerät an den isolierten Grifflächen, wenn Sie Arbeiten ausführten, bei denen das Einsatzwerkzeug verborgene Stromleitungen treffen kann. Der Kontakt mit einer spannungsfuhrenden Leitung kann auch metallene Geräteteile unter Spannung setzen und zu einem elektrischen Schlag führen.
Überlasten Sie die Rohrfräsmaschine nicht. Verwenden Sie für ihre Arbeit das richtige Einsatzwerkzeug. Mit dem rechtigen Einsatzwerkzeug arbeiten Sie better und)sicherer.
Benutzen Sie keine Rohrfräsmaschine, deren Schalter defekt ist. Eine Rohrfräsmaschine, die sich nicht mehr einoder ausschalten lasst, ist gefährlich und muss repariert werden.
Unterbrachten Sie die Energiezufuhr, bevor Sie Geräteinstellungen vornehmen oder Einsatzwerkzeuge wechseln. Diese Vorsichtsmaßnahme verhindert den unbeabsichtgten Anlauf der Rohrfrämasechine.
Lassen Sie Personen die Rohrfräsmaschine nicht benutzen, die mit dieser nicht vertraut sind oder diese Anweisungen nicht gelesen haben. Rohrfräsmaschinen sind gefährlich, wenn Sie von unerfahrenen Personen benutzt werden.
Warten Sie die Rohrfräsmaschine regelmäßig. Untersuchen Sie die Rohrfräsemaschine auf mögliche Beschädigungen, sowie auf andere Faktoren, die den Betrieb der Rohrfräsmaschine beeinträchtigen konnten. Eine nicht intakte Rohrfräsmaschine vor dem Einsatz reparieren. Viele vermeidbare Unfälle werden durch schlecht instand gehaltene Rohrfräsmaschinen verursucht.
Verwenden Sie die Rohrfräsmaschine, das Zubehör sowie Einsatzwerkzeuge usw. entsprechend den Anweisungen in dieser Betriebsanleitung, wobei die Arbeitsbedingungen und die auszuführende Tätigkeit zu berücksichtigen sind. Die Anwendung von Rohrfräsmaschinen für andere als die vorgesehenen Tätigkeiten kann zu gefährlichen Situationen führen.
Funktionsweise (siehe Bild A).
Die Rohrfrasmaschine trennt und freielleigende Rohrstücke und verlegte Rohr-leitungen mit Hilfe spanabhebender Einsatzwarkzeuge. Sie wird durch ihre Aufspanneinrichtung auf die Rohraußenseite gespannt und lauft mit selbsttätigtem
Arbeitsvorschub um das Rohr. Als Werkzeuge dieren Metallkreissgabeuter und Formfräser, deren Schneiden je nach Rohrwerkstoff aus HSS-Stahl oder Hartmetall bestehen.
Die Einstellung der Schnitttiefe erfolgt über den Werkzeugspindelstock (16), der in den beiden Seitenplatten (3) schwenkbar gelagert ist und durch die Gewindespindel (8) verstellt werden kann.
Die Transportwelle (21), die über die Transporträder die Arbeitsvorschubbewegung herbeinführt, wird von der Werkzeugspindel über 2 Schneckengetriebestufen angetriebenen.
Die Vorschübbewegung kann mit dem Vorschubschalthebel (28) Ein und Aus geschätet werden. Eine Rutschkupplung schützt das Vorschubgetriebe vor Überlastung.
Die Lagerung der Werkzeugspindel ist besonder starr ausgeführrt. Das ölbadgeschmierte Hauptgetriebe zum Antrieb der Werkzeugspindel besteht aus einer Plandeten- und Schneckengetriebestufe.
Das Getriebe ist so dimensioniert, dass gelegentliches Festbremsen der Kette ohne Schaden ertragen werden kann. Sümmtliche Getriebewellen laufen in Wölzagern.
Der Maschinenrahmen mit den Achsen hat die Aufgabe, die aufgespannte Rohrfras-machine auf dem Rohr zu führen sowie die Schnitt- und Vorschubkräfte zu über-tragen.
Die Anpassung an den jeweiligen RohrauBendurchmesser wird durch Verstellen der Laufachse (10) erreicht.
Die Aufspanketten werden aus einzelnen, unterinander gleichen Kettenstücke zusammengesetzt.
Die Zahl der benöttigen Kettenstücke bzw. die Länge der Aufspannketten ist vom Rohraußendurchmesser abhängig.
Transport.

B

Verletzungsgefahr beim Transport der Rohrfräsmaschine. Transportieren Sie die Rohrfräsmaschine nur mit den mitgelieferten Trageschlaufen (34) oder durch mindestens drei Personen.
Vor der Inbetriebnahme.

Verletzungsgefahr durch unerwartete Bewegungen des Werkstücks. Sicher Sie das Werkstück vor dem Bearbeiten gegen unerwartete Bewegungen ab.
Bei der Bearbeitung des Werkstücks besteht die Gefahr von unerwarteten Rollen, Herunterfallen oder Verschieben des Werkstücks.

Die Maschinearfurn in technisch einwandfreiem Zustand betrieben werden. Überprüfen Sie die Maschine vor jeder Inbetriebnahme auf verschissene oder beschädigte Einsatzwerkzeuge und Komponenten. Verschissene oder
beschädigte Einsatzwerkzeuge und Komponenten sind umgehend gegen neue zu ersetzen.
Vorarbeiten am zu bearerbeitenden Rohr.
- Rohre, die auf dem Lagerplatz geschritten werden so unterlegen, dass das Einsatzwerkzeug nicht eingeklemmt wird.
- Bei verlegten Rohren muss auf 1 m Länge an jeder Stelle zur Grubenwand ein Abstand von mindestens 50 cm eingehalten werden, gemessen von der Rohr-ausbeneite.
Die Bearbeitungsfläche muss frei von Schmutz und Erde sein. Weiche Schutzüberzüge auf der Bearbeitungsfläche vorher entfernen. - Das Schneidewerkzeug muss entsprechend dem Rohrwerkstoff, der erforderlichen Bearbeitungsform und der Kühlschmierung ausgewählt werden.
- Entfernen Sie die Schwellnahme Im Bereich der Laufträder und Ketten.
Weitere Informationen erhalten Sie bei ihrem Schmier- und Kuhlstoff Lieferanten. (siehe auch Druckluftkuhlschmieleinrichtung 9 12 01 002 00 4)
Schmiermittel bei 0^
Schmiermittel BIOCUT 1L - 3 21 32 039 00 0
- Schmiermittel BIOCUT 5L - 3 21 32 040 00 0
Schmiermittel bis 25^
Schmiermittel 1L-32132042000
Schmiermittel 5L-321320430000
Vorarbeiten an der Rohrfräsmaschine (siehe Bild A).
Den Klemmhebel (11) Iosen.
Den Werkzeugspindelstock (16) mit der Handkurbel (im Werkzeugkoffer) an der Zustelleinrichtung (7) hochfahren.
Die Passschrauben (9) entfernen und die Laufachse (10) nach Angaben der Tabelle (4) auf den aktuellen RohrauBendurchmesser ummontieren.
Die Passschrauben (9) wieder festziehen.
RSG Ex 1500 A/B (^**)
| P | D [mm] [inch] | |
| I 250 – 400 9.8 | 15.7 | |
| II 400 – 600 15.7 | - 23.6 | |
| III 600 – 900 23 | 6 – 35.3 | |
| IV 900 – 1500 3 | 5.3 – 58.9 |
RSG Ex 18 A/B (^**)
| P | D [mm] [inch] | |
| I 250 - 400 9.6 | 15.7 | |
| II 400 - 600 15.7 | - 23.6 | |
| III 600 - 800 23 | 6 - 31.5 | |
| IV 800 - 1000 3 | 1.5 - 39.4 | |
| V 1000 - 1300 3 | 39.4 - 51.2 | |
| VI | 1300 - 3000 | 51.2 - 118.1 |
P: Position der Laufachse
D: Rohrdurchmesser
Die Spanneinrichtungen (1) für Aufspannketten durch Drehen am Federtopf auffahren, damit nach dem Aufsetzen der Rohrfräsmachine genügend Spannweg vorhanden ist.

Die Aufspannketten passend für den Rohraußendurchmesser zusammenstellen.
Die Rohrfräsmachine auf dem Rohr positionieren und durch Hebezeug sichern, um ein Verrutschen zu verhindern.

Die Führungskette mit Kettenspanner passend für den Rohraußendurchmesser zusammenstellen.
- Die Führungskette im Abstand von 10 mm befinden der Aufspannkette, gegenüber Fraswerkzeug fixieren. Der Abstand vom Bolzen der Führungskette zum Bolzen der Aufspannkette betragt 10 mm.
- Kontrollieren Sie den Abstand am Umfang mindestens drei mal.
Spannen der Rohrfräsmachine auf dem Rohr. Anlagen der Gliederketten.
Die noch offenen Gliederketten auf beiden Seiten der Rohrfräsmachine über das Rohr legen.
Die Rohrfrasmaschine anheben und die Gliederketten unter die Kettenrader (20) schieben, so dass nach dem Aufsetzen der Rohrfrasmaschine die Gliederkatten im Zahneingriff sind.
Die gliederketten mit ihren freien Enden über die Kettenrader von Spannache (14) und Lasche (19) führen.
- Die beiden Enden der Gliederkette mit dem Bolzen (3 02 17 216 00 4) verschreiben und mit den zwei Sicherungsringen (4 26 34 020 00 5) sichern.
Spannen der Gliederketten (siehe Bild A).
Die Gliederketten zunachst durch Drehen der beiden Federtöpfe (1) leicht an das Rohr legen. Zur genauen Ausrichtung die Rohfräsmaschine eine Male in Rohrumbgangsrichtung hin- und herschieben.
Die Gliederkettren durch Drehen der Federtöpe spannen, bis der Stift (23, Bild A) im Langloch des Federtopfes innerhalb der am Umfang eingestochenen Nut steht.
- Wahlend des Schnevorganges die Lage des Stiftes beobachten. Sollte das Rohr unrund sein, muss entweder nachgespannt oder gelockert werden. Alle 4 Hangriffe vor dem Schnevorgang abnehmer.
Unfallgefahr!
Den Federtopf nicht über diesen Punkt hinaus weiter spannen!

MontierenderEinsatzwerkzeuge.
Verletzungsgefahr
Es besteht Verletzungsgefahr durch unbeabsichtigtes Einschalten. Vor der Montage des Einsatzwerkzeuges den Netzstecker abziehen.
Verletzungsgefahr
Es besteht Schnittgefahr durch die scharfen Schneiden des Einsatzwerkzeuges. Bei der Montage und Demontage des Einsatzwerkzeuges Schutzhandschuhe tragen.
Verletzungsgefahr
Es besteht Verbrennungsgefahr durch das freihe Einsatzwerkzeug. Bei der Demontage des Einsatzwerkzeuges Schutzhandschuhe tragen. Schutzhandschuhe tragen.
Nur Einsatzwerkzeuge mit einwandfrei den Schneiden verwenden.
Vor dem Aufszen die Werkzeugspindel sowie die Pass- und Anlageflächen reinigen.
- Das Einsatzwerkzeug mit Distanzscheilen aufsetzen.
Die Werkzeugspannmutter fest anziehen.
Inbetriebnahme.
Rohfräsmaschine:

Den Rohrfräsmaschinen mit Elektroantrieb eine Schaltgerätekombination vorschalten, die folgende Komponenten enthalt:
Hauptschalter/Wendeschalter
Motorschutzschalter
-Unterspannungsausloser
-Steckverbindungen
Der Hauptschalter wird als Einschalter und zur Umkehr der Drehrrichtung verwendet. Der Motorschutzschalter und der Unterspannungsausloser bilden eine Einheit. Bei Überlastung schaltet der Motorschutzschalter ab, bei Ausfall der Netzspannung trennt der Unterspannungsausloser die Rohrfrasmaschine vom Netz, um ein unbeabsichtigtes Wiederlaufen zu verhindern.
Die Rohrfrasmaschine wird durch Betätigtes Motorschutzschalters wieder In Betrieb des genommen. Die Schalgtaratekombination ist so zuplatzieren,
dassie vom Bediener jederzeit erreicht werden kann.
Rohfräsmachine in teilweise explosionsgeschützter Bauart:

Vor der Schaltgerätekombination einen Schaltkasten mit zusätzlichen Ein-/Ausschalter zur Betätigung der Rohrfrämasechine in
explosionsgefahrdeten Bereichen der Zone 2 verwenden.
Der Schaltkasten ist so zu platzieren, dass er vom Bediener jederzeit errecht werden kann.
Explosionsgefahr
Die Schaltgerätekombination ist außerhalb der Zone 2 aufzustellen.
Bedieren.
Verletzungsgefahr
Die Schutzhaube muss während des Betriebes vollständig geschlossen und verriegelt sein!
Verletzungsgefahr durch herumliegend Späne
These konnen Verletzungen hervorrufen. Achten Sie darauf, dass sich keine Personen im Gefahrenbereich befinden.
Brandgefahr durch herumfliegend Späne
Achten Sie darauf, dass sich keineleiht entflammbare Gegenstände im Gefahrenbereich befinden.
Verletzungsgefahr
Es besteht beim Einschalten der Rohrfräsmaschine Verletzungsgefahr durch herumfliegende Teile. Entfernen Sie vor jedem Einsatz der Rohrfräsmaschine die Handkurbel.
Startvorgang
Bei Rohrfräsmaschin mit Elektromotor ist sicherzustellen, dass die Drehrichtung des Werkzeuges korrekt ist. Die Drehrichtung kann über den Wendesalter am Schaltgerät umgeschalten werden.
Verletzungsgefahr
Be laufender Maschine besteht Verletzungsgefahr durch drehende Teile. Der Gefahrenbereich der Maschine scarf nur für Einstellarheiten unter Einhaltung der Sicherheitsrelevanten Maßnahmen betreten werden.
Das Vorschubgetriebe über den Vorschubschalthebel (28) abschalten.
Die Rohfrasmaschine einschalten.
Den Klemmhebel (11) losen und das laufende Sägeblatt mit der Handkurbel so tief wie möglich in das Rohr einschwenken. Das tief eingetauchte Sägeblatt stabiliert den Schnittverlauf.
- Beim Fräsen einen möglichst geringen Werkzeugeingriff wahren. Das Zerspanvolumen steigt mit zunehmender Schneidtiefe an.
Einsatzwerkzeug ca. 3 mm tiefer als notwendig eintauchen, danach auf erforderliche Tiefe zureckstellen, dadurch ist das Einsatzwerkzeug außer Eingriff.
- Bei Verwendung der Tiefenskala, Werkzeug auf der Rohroberfläche ankratzen lessen. Rändelmutter (27) lösen und Zeiger (28) auf 0 stellen. Rändelmutter (27) wieder anziehen. Die Zustelltie kann an der Skala abgegeben werden.
Die Rohrfrasmaschine ausschalten.
- AnschlieBend die Einstellung durch Anziehen des Klemmhebels (11) fixieren.
Die Rohrfrasmaschine wieder einschalten.
Vorschubgetriebe über den Vorschubschalthebel (28) einschalten.
-
Sofern die Motorleistung ausreicht, ist die Rohrwand in einem Schnitt zu durchtrennen.
-
Verlegte Rohre können während dem Sägen nachgeben und das Einsatzwerkzeug im Spalt verklemmen. Deswegen müssen die mitgelieferten Kelle hinter dem Sägewerkzeug in regelmäßigen Abständen in den Spalt geschlagen werden. In explosionsgeführdeten Bereichen Keile (6 33 05 013 00 2) (RSG Ex 1500 A/B ( ) mitgeliefertes Zubehör) und einen Hammer aus funkenfreiem Material verwenden.
-
Uberlastung der Rohrfrasmaschine vermeiden.
-
Eine Überlastung ist gegeben, wenn beim Einfahren des laufenden Einsatzwirkzeuges die Motordrehzahl merklich abfallt.
-
Das hat gleichzeitig einen Abfall der Zerspanleistung zur Folge.
-
Werkstück (abgesagtes Rohrstück) fixieren, um vor dem Herabfallen zu schützen.
Bei starkwandigen Rohren (s > 10mm) muss die Schweifuge in mehreren Umlaufen gefrast werden.
Der deckungsgleiche Schnittverlauf wird von folgenden Faktoren beeinflusst:
-
Ausrichtung der Rohrfräsmaschine beim Start.
-
geometrische Abweichung des Rohres von der Kreis-bzw. von der Zylinderform.
-
Schäfé des Einsatzwerkzeuges,
-Härte des Werkstoffes.
Die Rohrfrämaschine ist so justiert, dass sich bei Rohrdurchmessern von 300 mm und 600 mm Anfang und Ende der Schnittlinie annahernddecken.
Infolge der Exzentrizität der Führungswelle ist die Justiermarke (24, siehe Bild E) nur für die belden angeführten Durchmesser verbindlich. Bei größeren Rohrdurchmessern muss unter Umständen nachjustiert werden.
Rücklauf der Rohrfrasmaschinen (RSG Ex (^**) ).
Sachbeschädigung!
Bevor die Rohrfräsmaschine zurückgefahren wird, muss gewährleistet sein, dass das Einsatzwerkzeug ausgefahren Ist, um Beschäftigungen des Werkzeuges und des Getriebes zu vermeiden.
Das Vorschubgetriebe über den Vorschubschalthebel (28) abschalten.
Den Klemmhebel (11) Iosen.
-Einsatzwerkzeug ausfahren.
Hauptschalter/Wendeschalter in Stellung,0Aus) schalten.
Wendeschalter auf Rücklauf schalten.
Klemmhebel (11) festziehen.
Vorschubgetriebe über den Vorschubschalthebel (28) einschalten.
Die Rohrfräsmachine ist nicht geeignet Schnitte im Rücklauf auszuführen!
Hinweise zum Kühlen und Schmieren.
Sachbeschädigung!
Das Einsatzwerkzeug muss beim Frasvorgang gekühlt und geschmiert werden. Bei ungenügender Kühlung und Schmierung können sich Späne verklemmen. Dies kann zu Werkzeugbrücken führen.
Befolgen Sie die Herstellerangaben/-Hinweise des eingesetzten Kühlmittels
-
Graugussrohe immer ohne Kühlschmiermittel trocken schneiden
-
Sageblatt bzw. Fraser beim Schneiden von unlegierten Stahlrohen mit Seifenwasser kühlen.
Einstellen der Laufgenauigkeit.

- Mutter (15, siehe Bild A) SW 46 losen.
- Achse (10) gegenüber Lasche (19) verdrehen.
Mutter (15) anziehen.
Durch Drehen der Laufachse (10) Im Uhrzeitigersinn (Richtung Einsatzwerkzeug) lauf das Einsatzwerkzeug nach rechts (Blickrichtung ist gleich Bewegungsrichtung Rohrfräsmachine).
Bei Drehen der Laufachse entgegen dem Uhrzeigersinn lauft das Einsatzwerkzeug nach links.
Einsetzen weiterer Kettenglieder.

Zusätzliche Kettinglieder *{d)rufen nur an den davon vorgesehenen Positionen eingesetzt werden.
Den Sicherungsring (32) entfernen.
Den Bolzen (33) entferen.
Die gewünschte Anzahl an Kettengliedern einsetzen.
- Ketenglieder in entsprechenden Größen sind im Zubehör der Maschine enthalten.
Den Bolzen (33) einfuhrren.
Einen neuen Sicherungsring (32) montieren.
Aufspannen der Rohrfräsmaschine.

"A" benöttiger Arbeitsraum bei großener Schnitttiefe. "AuBendurchmesser des Rohres Anzahl der Kettenstücke bei Rohrdurchmesser, D".
RSG Ex 1500 A/B
| Position der Laufachse | D A erfordererliche | Kettenlänge pro Seite | Gesamtketten-länge | i* | |
| [mm] [mm] | [mm] [mm] | ||||
| 1 | 250 | 400 | 1427 | 2854 | 5 |
| 300 | 392 | 1525 | 3050 | 5 | |
| 350 | 384 | 1632 | 3264 | 6 | |
| 400 | 378 | 1744 | 3488 | 6 | |
| 2 | 400 | 381 | 1782 | 3564 | 6 |
| 450 | 375 | 1898 | 3796 | 7 | |
| 500 | 369 | 2019 | 4038 | 7 | |
| 550 | 364 | 2144 | 4288 | 7 | |
| 600 | 360 | 2273 | 4546 | 8 | |
| 3 | 600 | 362 | 2302 | 4604 | 8 |
| 650 | 357 | 2433 | 4866 | 8 | |
| 700 | 352 | 2566 | 5132 | 9 | |
| 750 | 348 | 2702 | 5404 | 9 | |
| 800 | 344 | 2840 | 5680 | 10 | |
| 850 | 340 | 2862 | 5724 | 10 | |
| 900 | 337 | 3001 | 6002 | 10 | |
| 4 | 900 | 348 | 3142 | 6284 | 10 |
| 950 | 345 | 3284 | 6568 | 11 | |
| 1000 | 342 | 3428 | 6856 | 11 | |
| 1050 | 340 | 3464 | 6928 | 11 | |
| 1100 | 337 | 3607 | 7214 | 12 | |
| 1150 | 335 | 3751 | 7502 | 12 | |
| 1200 | 333 | 3896 | 7792 | 13 | |
| 1300 | 331 | 4062 | 8124 | 13 | |
| 1400 | 329 | 4338 | 8676 | 14 | |
| 1500 | 328 | 4355 | 8710 | 14 | |
| *Bestellnummer 3 02 31 013 02 7 bestehend aus 10 Kettenstücken mit einerLänge von je 635 mm. | |||||
RSG Ex 18 A/B
| Position der Laufachse | D A erfordererliche | Kettenlänge pro Seite | Gesamtketten- länge | I* | |
| [mm] [mm] | [mm] [mm] | ||||
| 1 | 250 | 587 | 1427 | 2854 | 5 |
| 300 | 576 | 1525 | 3050 | 5 | |
| 350 | 564 | 1632 | 3264 | 6 | |
| 400 | 553 | 1744 | 3488 | 6 | |
| 2 | 400 | 522 | 1782 | 3564 | 6 |
| 450 | 511 | 1898 | 3796 | 7 | |
| 500 | 501 | 2019 | 4038 | 7 | |
| 550 | 492 | 2144 | 4288 | 7 | |
| 600 | 483 | 2273 | 4546 | 8 | |
| 3 | 600 | 453 | 2302 | 4604 | 8 |
| 650 | 445 | 2433 | 4866 | 8 | |
| 700 | 437 | 2566 | 5132 | 9 | |
| 750 | 429 | 2702 | 5404 | 9 | |
| 800 | 422 | 2840 | 5680 | 10 | |
| 4 | 800 | 396 | 2862 | 5724 | 10 |
| 850 | 393 | 3001 | 6002 | 10 | |
| 900 | 390 | 3142 | 6284 | 10 | |
| 950 | 386 | 3284 | 6568 | 11 | |
| 1000 | 383 | 3428 | 6856 | 11 | |
| 5 | 1 | 390 | 34640 | 6908 | 11 |
| 1050 | 387 | 3607 | 7214 | 12 | |
| 1100 | 385 | 3751 | 7502 | 12 | |
| 1150 | 382 | 3896 | 7792 | 13 | |
| 1200 | 379 | 4062 | 8124 | 13 | |
| 1300 | 374 | 4338 | 8676 | 14 | |
| 6 | 1 | 387 | 43550 | 8700 | 14 |
| 1400 | 382 | 4651 | 9302 | 15 | |
| 1500 | 378 | 4950 | 9900 | 16 | |
| 1600 | 373 | 5250 | 10500 | 17 | |
| 1700 | 369 | 5553 | 11106 | 18 | |
| 1800 | 366 | 5857 | 11714 | 19 | |
| 1900 | 362 | 6162 | 12324 | 20 | |
| 2000 | 359 | 6468 | 12936 | 21 | |
| 2100 | 356 | 6775 | 13550 | 22 | |
| 2200 | 353 | 7083 | 14166 | 23 | |
| 2300 | 350 | 7391 | 14782 | 24 | |
| 2400 | 348 | 7700 | 15400 | 25 | |
| 2500 | 346 | 8009 | 16018 | 26 | |
| 2600 | 343 | 8319 | 16638 | 27 | |
| 2700 | 341 | 8629 | 17258 | 28 | |
| 2800 | 339 | 8940 | 17880 | 29 | |
| 2900 | 337 | 9251 | 18502 | 30 | |
| 3000 | 335 | 9562 | 19124 | 31 | |
*Bestellnummer 3 02 31 013 02 7 bestehend aus 10 Kettenstücken mit einer Länge von je 635 mm.
Um eine optimale Kettenvorspannung zu erreichen, konnenevt. die im Werkzeugkoffer beigelegten halben Kettenstücke mit einer
Lange von 31,75 mm benutzt werden.
Beispiel:
Bel einem Rohrdurchmesser von D=400 mm werden 6 Kettenstücke (Bestellnummer 3 02 31 013 02 7) bestehtigt.
Spurführung durch Führungskette



Länge der Führungskette nach Tabelle zusammenstellen
Um eine optimale Kettenvorspannung zu erreichen, konnen evt. die im Werkzeugkoffer beigelegten halben Kettenstücke mit einerLange von 31,75 mm benutzt werden.
Kettenlänge Führungskette
| Rohr-durch-messer | Kettenlän-ge | Kettenstücke | ||
| [mm] [mm] | 635 mm 63 | 5 mm 31,75 mm | ||
| 250 710 1 1 | 1 | |||
| 300 870 1 4 | 0 | |||
| 350 1030 1 | 6 1 | |||
| 400 1190 1 | 9 0 | |||
| 450 1344 2 | 1 1 | |||
| 500 1500 2 | 4 0 | |||
| 550 1660 2 | 6 1 | |||
| 600 1809 2 | 8 1 | |||
| 650 1970 3 | 1 1 | |||
| 700 2130 3 | 4 0 | |||
| 750 2290 3 | 6 1 | |||
| 800 2440 3 | 8 1 | |||
| 850 2600 4 | 1 0 | ||||
| 900 2760 4 | 4 0 | ||||
| 950 2921 4 | 6 0 | ||||
| 1000 3079 | 4 8 1 | ||||
| 1100 3397 | 5 3 1 | ||||
| 1200 3714 | 5 8 1 | ||||
| 1300 4032 | 6 3 1 | ||||
| 1 4 | 0 | 0 4 | 3 | 3 | 0 6 |
| 1 5 | 0 | 0 4 | 6 | 4 | 0 7 |
Bestellnummer 3 02 31 034 01 0 (I = 635 mm)
Bestellnummer 30231036010(1=63,5mm)
Bestellnummer 30231035010 (I = 31,7mm)
Die Führungskette an einem der beiden Kettenstücke am Kettenspanner mit Bolzen und Sicherungssring befestigen.
Den Führungsstrang der Führungskette unter den beiden Führungskettenrä-dern durchfadenl (Bild H).
- Das frei Ende der Führungskette am Kettenspanner mit Bolzen und Sicherungsring befestigen.
Die Führungskette durch Drehen vom Sechskant am Kettenspanner (2) am Rohr anlagen.
Die Führungskette im Abstand von 10 mm (Bolzen Antriebskette zu Bolzen Führungskette) ausrichten und dreimal am Umfang prufen.
Den Kettenspanner am Sechskant (29) spannen bis Scheibe (30) am Gehäuse vom Kettenspanner anliegt (Spannbereich ca. 50mm ). (Max. Anzugsmoment 50 Nm)

Achtung umfangs! Verdrehen Sie keinesfalls die drei Si an der Stirnseite.(siehe Bild H)
Achtung Unfallgefahr!
Abschlussarbeiten nach jedem Arbeitseinsatz.
-Einsatzwerkzeug ausfahren.
Die Rohrfrasmaschine ausschalten.
Einsatzwerkzeug abnehmen.
Rohfrasmaschine abspannen
Lagern der Rohrfräsmachine.
Die außeren Metallteile gegen Korrosion schützen.
Die Rohrfrasmaschine trocken lagern.
Warten und Reparieren.
Zum Warten und Reparieren.
Wenden Sie sich mit reparaturbedürftigen FEIN Elektrowerkzeugen und ZubehörenIBE an ihren FEIN Kundendienst. Die Adresse finden Sie im Internet unter www.feln.com.
Die aktuelle Ersatzteilliste these Elektrowerkzeuges finden Sie im Internet unter www.fein.com.
Verwenden Sie nur Originalersatzteile.
Folgende Teile konnen Sie bei Bedarf selbst austauschen: Einsatzwerkzeuge, Handgriffe, Kette, Kettenglieder
Die Maschine dart nur in technisch einwandfreiem Zustand betrieben werden. Verschlissene oder beschädigte Einsatzwerkzeuge und Komponenten sind umgehend gegen neue zu ersetzen.
Verletzungsgefahr
durch unbeabsichtiges Einsatz.
Vor allen Arbeiten an der Rohrfrasmaschine den Netzstecker abziehen!
Allgemeine Hinweise
Wartungsarbeiten dürfen nur von geschulten Fachkräften durchgeführt werden.
Die Pflege und Wartungsarbeiten beinhalten im Wesentlichen:
- AuBere Reinigung der Rohrfrasmaschine und der Aufspanketten.
Sichtprüfung der gesamten Rohrfrasmaschine.
Wechseln des Getriebeoles.
Einfetten der Bewegungsgewinde und Ketten.
- Einfetten der Führungen des Werkzeugspindelstocks in der Aufspann- und Transporteinrichtung.
Erneuern Sie Aufkleber und Warnhinweise am Werkzeug
Gliederketten-Pflege
Die Gliederketten nach dem Entfernen des groben Schmutzes mit Waschbenzin, Petroleum oder ähnlichem unter Bewegen der Kettinglieder sorgfältig reinigen. Zur Gewährleistung der Schmierung anschließend die Ketten mehrere Stunden in dickflüssiges Öl z. B. Getriebeöl SAE 140 legen.
Unfallgefahr!
Vor der Wiederverwendung die Kettenglieder durch eine gründliche Sichtkontrolle auf ihren einwandfreen Zustand überprüfen. Schadhafte Teile austauschen und fehlende Sicherungsringe erseten.
Anschlussleitung
Wenn die Anschlussleitung des Elektrowerkzeugs beschädigt ist, muss sie durch den Hersteller oder seinen Vertreter ersetzt werden.
Zustelleinrichtung (siehe Bild A)
Die Mantelfläche der Rohrmutter (17) frei von Verschmutzung und Rostansatz halten und stets kein einfetten.
- Bei Getriebeölwechsel Bewegungsgewinde reinigen und einfetten.
Demontage:
Die Zylinderschraube (8) entfern.
Den Bolzen (5) aus dem Deckelziehen.
- AnschlieBend mit der Handkurbel die Zustelleinrichtung aus der Rohrmutter schrauben.
Die Gewindeteile reinigen und einfetten (siehe Abschnitt Schmiermittel und Schmierplan auf Seite 11).
- Schadhafte Abstreifringe austauschen.
Montage:
Die Montage erfolgt in umgekehrter Reihenfolge. Beim Zusammenbau Abstreif-ringe nicht beschädigen!
Spanneinrichtung
Verschmutzung der Gewinde an den Augenschauben (3, Bild I) im Federtopf vermeiden.
Ggf. die Gewinde reinigen und einfetten.
Schmiermittel und Schmierplan
| Schmierstoff ARAL Öl Degol | Füllmenge Tempera | turbereich [°C] | Spezifikation |
| BMB 460 2-Liter 0 bis +60 Getriebeöl Typ- | CLPF nach DIN15502 | ||
| BMB 100 2-Liter -20 bis +40 | |||
Bei Auslieferung ist der Werkzeugspindelstock mit ARAL Öl Degol BMB 100 gefüllt. Von der Verwendung eines anderen Getriebeöles müssen wir dringend abraten.
Schmierstoffe für Gleitflächen
Zur Schmierung und Pflege der Gleichflächen empfehlen wir säurefrei, wasserfeste Markengleitlagerfette.

| Schmierstelle Schmier- bzw. Betriebsstoff | ff |
| 2 (Getriebe) siehe Tabelle Schmieröl für | Werkzeugspindelstock |
| 3 (Gletflächen und Bewegungsge-winde) | Gleitlagerfett |
Störungsbeseitigung (Bauart RSG Ex (^**) ).
| Störung Mögliche Ursachen Maßnahmen | ||
| Motor und Einsatzwerkzeug setzen aus | Sehr tiefe Umgebungstemperauren | FEIN-Getriebeöl für tiefe Temperatoren verwenden |
| Stumpfes Einsatzwerkzeug Einsatzwerkzeug austauschen | ||
| Keine Netzpannung | Netzanschluss und Schaltgeräte überprüfen | |
| Falsche Netzpannung | Netzanschlussdaten überprüfen | |
| Vorschub zu schnell oder zu hoher Materialabtrag bei einem Umlauf | Getriebe anpassen und/oder Eintauchtiefe reduzieren | |
| Ölverlust Getriebekasten | Leck ausfindig machen und beheben- Öl nachfüllen | |
| Übermöbiger Temperaturanstieg Im Motor | Schaltgerätekombination 3 07 02 041 01 4 reaktivie- ren | |
| Defektes Kettenrad | Beschädigtes Kettenstück | Kettenstück austauschen |
| Kette falsch verbunden | Verbindungspunkte prüfen und korrigieren | |
| Kettenbolzen nur teilweise eingeführt | Bolzen ganz einfahren | |
| Fehlerhafter Schnittverlauf | Fehlerhaft ausgerichtete Rohrfräsmaschine und Kette | siehe Abschnitt „,Vorarbeiten an der Rohrfräsmaschine (siehe Bild A).“ auf Seite 7 und Abschnitt „,Spannen der Rohrfräsmaschine auf dem Rohr.“ auf Seite 7 |
| Führungswelle nicht exzentrisch | Laufgenauligkeit nachstellen, siehe Abschnitt „,Einstelen der Laufgenauligkeit.“ auf Seite 9 | |
| Stumpfes Einsatzwerkzeug Einsatzwerkzeug austauschen | ||
| Schräg oder senkrecht gelagertes Rohr bzw. unrundes Rohr | Spurführungseinrichtung verwenden, siehe Abschnitt „,Spannen der Rohrfräsmaschine auf dem Rohr.“ auf Seite 7 und Abschnitt „,Spurführung“ auf Seite 10 | |
| Überlastetes Einsatzwerkzeug | Getriebe anpassen und/oder Eintauchtiefe reduzieren | |
| Reduzierte oder unwirksame Maschinenfunktion | Keine Netzpannung | Netzanschluss und Schaltgeräte überprüfen |
| Schalter nicht eingeschaltet | Schalter überprüfen | |
| Kupplung rutscht | Getriebe anpassen oder Ansprechmoment der Kupp- lung im FEIN-Werk einstellen halten | |
| Starke Vibrationen | Vorschub zu schnell | Getriebe anpassen |
| Einsatzwerkzeug zu tief | Einsatzwerkzeug anheben | |
| Klemmhebel (11) nicht angezogen | Klemmhebel anziehen | |
| Kette locker | Kettenspannung prüfen | |
| Stumpfes Einsatzwerkzeug Einsatzwerkzeug austauschen |
Gewährleistung.
Die Gewährleistung auf das Erzeugnis gilt gemäß den gesetzlichen Regelungen im
Lande des Inverkehrbringens.
Einsatzwerkzeuge und Zubehör.
Kreissägeblätter

1

2

3
| Form 1, HSS, für Getriebetyp: | |||||
| A, B - zur Bearbeitung von Stahlrohren | |||||
| Ø | B | r | e der Zähne | imax. t Schnitt- tiefe | Bestellnemmer G |
| (mm) | (mm) | (kg) | (mm) | ||
| 160 4 0,5 | 50 25 6 35 | 02 022 00 | 6 | ||
| 180 4 0,7 | 60 35 6 35 | 02 037 00 | 8 | ||
| 200 4 0,9 | 64 45 6 35 | 02 053 00 | 7 | ||
| 220 4 1,3 | 70 55 6 35 | 02 041 00 | 1 | ||
| Form 2, HSS, für Getriebetyp: | |||||
| B - zur Bearbeitung von Gussrohren | |||||
| Ø | B | r | e der Zähne | i max. t Schnitt- tiefe | Bestellnammer G |
| (mm) | (mm) | (kg) | (mm) | ||
| 160 4 0,5 | 40 25 6 35 | 02 050 00 | 1 | ||
| 180 4 0,7 | 46 35 6 35 | 02 098 00 | 0 | ||
| 200 4 0,6 | 50 45 6 35 | 02 099 00 | 4 | ||
| Form 3, HSS, mit Hartmetallzahlen, für Getriebetyp: | |||||
| A, B - zur Bearbeitung von Gussrohen (auch mit Zementfutter) und unlegierten Stahlrohen bis 400 N/mm2 | |||||
| Ø | B | r | e der Zähne | i max. t Schnitt-tiefe | Bestellnammer G |
| (mm) | (mm) | (kg) | (mm) | ||
| 160 4 0,5 | 40 25 6 35 | 02 080 00 | 8 | ||
| 180 4 0,7 | 44 35 6 35 | 02 061 00 | 9 | ||
| 200 4 0,9 | 50 45 6 35 | 02 084 00 | 2 | ||
Passfeder
| B × H × L | |
| mm | |
| 6 × 6 × 32 4 02 21 044 00 0 | |
| 8 × 7 × 32 4 02 21 050 00 5 | |
Transportbehalter
| Länge × Breite × Höhe | |
| mm | |
| 1000 × 800 × 395 3 39 01 114 00 7 | |
Formfraser

| V-Form, HSS, für Getriebetyp: | ||||||
| A - zur Bearbeitung von Stahlrohren, hochlegiertB - zur Bearbeitung von unlegierten Stahl- und Gussrohren bis einer max. Wand-stärke von 10 mm und einem max. Durchmesser von 1600 mm | ||||||
| D | B | G | e der Zäh- ne | Bv | max. A Schnitt- tiefe | Bestellnummer z |
| (mm) | (mm) | (kg) | (°) | in (mm) | ||
| 125 | 25 | 1,6 | 32 | 30 | 25 | 6 35 08 056 00 4 |
| 160 | 30 | 3,2 | 36 | 30 | 25 | 6 35 08 081 00 9 |
| 160 | 30 | 3,3 | 36 | 37,5 | 25 | 6 35 08 093 00 0 |
| 180 | 42 | 5,5 | 36 | 37,5 | 25 | 6 35 08 094 00 0 |
| 180 | 42 | 4,9 | 36 | 30 | 25 | 6 35 08 085 00 8 |

| U-Form, HSS, für Getriebetyp: | |||||
| A - zur Bearbeitung von Stahlrohren, hochlegiertB - zur Bearbeitung von unlegierten Stahl- und Gussrohren bis einer max. Wand-stärke von 10 mm und einem max. Durchmesser von 1600 mm | |||||
| D | B | Gew. | Anzahl der Zähne | max. Schnitt-tiefe | Bestellnummer |
| (mm) | (mm) | (kg) | (mm) | ||
| 160 | 25 | 2,8 | 40 | 25 | 6 35 08 089 00 7 |

| Satzträser, HSS, für Getriebetyp: | ||||||
| A - zur Bearbeitung von Stahlrohren, hochlegiertB - zur Bearbeitung von unlegierten Stahl- und Gussrohren bis einer max. Wand-stärke von 10 mm und einem max. Durchmesser von 1600 mm | ||||||
| D | B | G | e der Zähne | Bv | max. A Schnitt-tlefe | Bestellnummer z |
| (mm) | (mm) | (kg) | (°) | (mm) | ||
| 154 | 30,5 | 2,5 | 32 | 30 | 25 | 6 35 08 099 02 0 |
Kettenstück
Ersatz-Bolzen
| 10 Kettenstücke x 63,5 mm = 63 | 5 mm |
| Bestellnummer 3 02 31 013 02 7 | |
| 1 Kettenstück 31,75 | |
| Bestellnummer 3 02 31 029 00 2 |
Ersatz-Sicherungsgring
| Bestellnummer 3 02 | 17 216 00 4 Spannkette 38,5 mm |
| Bestellnummer 3 02 | 16 166 00 0 Führungskette 54 mm |
Spaltkeile aus Stahl
| Bestellnummer 3 02 | 17 216 00 4 |
Mitgeliefertes Zubehor
| Bestellnummer 6 33 | 05 006 00 8 |
Optionales Zubehör
| Bestellnummer Anzahl Benennung | |
| 3 39 01 114 00 7 1 Transportbehälter | |
| 3 39 01 031 00 1 1 Werkzeugkoffer | |
| 3 21 22 007 01 7 1 Handkurbel | |
| 6 29 01 016 00 2 1 Einmaulschlüssel, SW 46 | |
| 6 29 03 010 00 6 1 Einmaulschlüssel, SW 55 | |
| 3 12 07 333 01 0 1 Kettenspanner nur für | RSG Ex 1500 A/B (**) |
| 6 29 11 010 00 0 1 Ringschlüssel, 17/19 | |
| 6 29 06 014 00 0 1 Steckschlüssel, SW 46/41 | |
| 3 02 31 029 00 2 20 Rollekhette | |
| 3 02 17 216 00 4 20 Bolzen | |
| 4 26 34 020 00 5 40 Sicherungsring | |
| 6 33 05 013 00 2 5 Spaltkeile, funkenfrei für | RSG Ex1500/18 A/B (**) |
| 3 07 02 041 01 4 1 Schaltgerätekombination | für RSGEx 1500/18 A/B (**) |
| 3 21 74 009 00 1 1 Rundschlinge | |
| 3 21 74 010 00 3 1 Rundschlinge | |
| 3 07 28 188 00 8 1 CEE Kupplung für RSG Ex | 1500/18A/B (**) |
| 3 02 31 035 02 0 | 1Kette nur für RSG Ex 1500 A/B (**) |
| 3 02 16 166 01 0 | 1Bolzen nur für RSG Ex 1500 A/B(**) |
| 3 40 56 026 00 0 1 Steckscheiben nur für | RSG Ex 1500 A/B (**) |
| Bestellnummer Anzahl Benennung | |||
| 3 02 31 013 02 7 1 Kette | mit 10 Kettenstück | ||
| 4 26 34 020 00 5 1 Sicherungssring | |||
| 3 02 17 216 00 4 1 Bolzen | |||
| 4 30 12 051 12 2 1 Passchraube | |||
| 6 33 05 013 00 2 Funkenfreier Austreibkeil | |||
| 9 12 01 002 00 4 Druckluftkühlschmiereinrichtung (DKSE) | |||
| 3 24 33 027 01 7 1 Anschlusssteile für DKSE (Platte zg.) | |||
| 9 26 01 023 02 3 1 Kompressor für DKSE | |||
| 3 14 14 055 00 2 1 PA-DL-Schlauch komplet für Kompressor | |||
| 4 11 36 005 01 9 1 Kupplungsmuffe | |||
| 3 02 31 035 02 0 1 Kette | |||
| 3 02 16 166 01 0 1 Bolzen | |||
| 3 40 56 026 00 0 1 Steckscheiben | |||
Druckluftkuhlschmiereinrichtung 9 12 01 002 00 4
Durch die möglichen hohen Schnitt- und Vorschubgeschwindigkeiten der Rohrfrasmaschine ist eine Kühlung und Schmierung der Werkzeuge beim Bearbeiten von Stahl notwendig. Die Druckluftkühlschmiereinrichtung(PC)arbeitet nach dem Prinz der Vernebelung und Verdunstung des Kuhlschmierrmittels und bietet durch die an der Rohrfrasmaschine angebrachten Spruhdusen eine ständige gute Kühlung und Schmierung.
Außer dem wird die Verunreinigung des Erdreiches an der Baustelle durch die sonst üblicherweise von Hand zugeführte Bohremulsion vermieden.
Als Kühlschmierflüssigkeit empfehlen wir die Verwendung des Metallbearbeitungs-schmiermittels BLOCUT 3000. Es ist ein neuartiger vollsynthesischer Hochleistungsschmierstoff, besitzt eine hervorragende Haft- und Kuhlwirkung, ist wasserlöslich, biologisch gut abbaubar und sparsam im Verbrauch (je nach Einstellung bis ca. 0,3dm^7 / 2 pro Duse).
BIOCUT 3000 ist frei von gesundheitsgeführlichen Stoffen. Es erfüllt die Anforderung des Deutschen Vereins des Gas- und Wasserfachs e.V. (DVGW).
Alle Inhaltsstoffe entsprehen den Richtlinien der FDA (Food and Drug Administration) und des Deutschen Arzneibuches (DAB) in der heute gültigen Fassung.
Das Schmiermittel kann bezogen werden von: Schmiermittel BIOCUT 3000 für Temperaturen bis zu 0^
1L-32132039000 5L-32132040000
Schmiermittel Kälteresistant für Temperaturen bis zu -25°C: 1 L - 3 21 32 042 00 0
5L-32132043000
Bel den Drehstromvarianten RSG Ex (^**) wird ein Kompressor, FEIN-Bestellnummer 9 26 01 023 02 3, mit einer Ansaugmenge von ca. 130 l/min bestehtigt, um die Druckluftkühlschmiereinrichung eingesetzen zu konnen.
Ersatzteile.
Die aktuelle Ersatzteilliste finden Sie im Internet unter www.fein.com.
Konformitätserklarung.
Die CE-Erklärung gilt nur für Länder der Europäischen Union und der EFTA (European Free Trade Association) und nur für Produkte, die für den EU- oder EFTA-Markt bestimmt sind.
Die Firma FEIN erklärt in alleiniger Verantwortung, dass这点 Produkt den auf der letzten Seite dieser Betriebsanleitung angegebenen einschlagen Bestimmungen entspricht.
Technische Unterlagen bei: C. & E. Fein GmbH,
D-73529 Schwabisch Gmünd
Umweltschutz, Entsorgung.
Verpackungen, ausgemusterte Elektrowerkzeuge und Zubehör einer umweltgerechten Wiederverwertung zuführn.
RSG Ex 1500 B ( )
RSG Ex 18 B (^**)
| Dimensions : | ||
| - Poids (m) | 80 kg 80 kg | |
| - Ø max. d'outil | 220 mm | 220 mm |
| - Lmax. | 974 mm | 1088 mm |
| - Hmax. | 334 mm | 334 mm |
| - Lmax. | 450 mm | 431 mm |
| - L1 | 371 mm | 371 mm |
| - L2 | 201 mm | 201 mm |
| - L3 | 791 mm | 991 mm |
BIOCUT 3000 non contiene sostanze nocive per la salute. Soddisfa i requisiti del Deutschen Vereins des Gas- und Wasserfachs e.V. (DVGW).
Technische gegevens.
Bestelnummer 7360...7360...
Type RSG Ex 1500 A () RSG Ex 1500 B (*)
Bestelnummer 7360...7360...
Type RSG Ex 18 A (^) RSG Ex 18 B (^*)
Spanning (U) 400 V 400 V
Frequenie (日 5 0 H z 5 0 H z
2) Elektrische veiligkeit
3] Veiligkeit van Personen
Mnopeite va npoumheuteite to lanavtiko ano:
AunavtikabIOCUT 3000 yia eepkoopaiec eos 0^
1L-32132039000
5L-32132040000
Ainavtko avkektko oTo kpu yia 0epuokpaocic eow-25C:
1L-321320420000
5L-321320430000
Tia Tiu puaikc ekdooe RSG Ex (^**) , aaiiteiai evac oumuieotns, apiou mapayyEiaic FEIN 9 26 01 023 02 3, me okyo avappno ng nepitou 130 l/min, Ptokeivou va xpoioptoine to ouotma liavon s ugs n e pienieuvo aepa.
AvtaaakTikc.
OTpxwv katalooyocavtaalakikwvbpiaKetai oTo diaiktuO tN dieuovon www.fein.com.
Anwon oumuoppwong.
H onn ouppponce CE xuei movo yi nix wpec ts Eupwnaikng Evwons kai tns omaacg EZs (Eupwnaikn Zwn Eaeuepov Suvaalayw) kai mvo yia npovra Tou npoopiciovtai yia tvy ayopa tnc EE n tnc EZe.
H Etaia FeIN 8nawei me atokleiotikn euovn tnc otuto to npiov avatokpivetai nipwosoukoviouou vapoeovtai otny TEaureta oiaia autow tw ow oyniw xphonc.
TeYvikaEyypaqa aIIO:
C.&E.FeinGmbH,
D-73529 Schwabisch Gmünd
Ipootuaia rou nepiαλovroc, anoupon.
Ouokuaie, ta axpnoTa nEeKtpka epyaia kai ta eapntjura npentei va avakukawovtai Te poto PliakiopoTTOPOCTo TepiBaalov.
Konstruktionstype RSG Ex 1500 A (^) RSG Ex 1500 B (^*)
Bestillingsnumber 7360...7360...
Konstruktionstype RSG Ex 18 A () RSG Ex 18 B (*)
Spending (U)400V400V
Frekvens (f)50Hz50Hz
1) Sikkerhet pa arbeitsplassen
pden aktuelle rordiameteren.
Den aktuelle reservationslisten finner du i internettet pa www.fein.com.
Samsvarserklaring.
CE-erklæringengielder kun for land i Den europelske unilonen og i EFTA [EØS] (European Free Trade Association) og kun forprodukter som er bestemt for marketed i EU eller EFTA.
Konstruktion* RSG Ex 18 A (^) RSG Ex 18 B (^)
Funktionssatt (se bild A).
Medfoljande tillbehör
| Artikelnummer | Antal | Benämming |
| 3 39 01 114 00 7 | 1 | Transportbehällare |
| 3 39 01 031 00 1 | 1 | Verktygsväka |
| 3 21 22 007 01 7 | 1 | Vev |
| 6 29 01 016 00 2 | 1 | Gaffelnyckel, SW 46 |
| 6 29 03 010 00 6 | 1 | Gaffelnyckel, SW 55 |
| 3 12 07 333 01 0 | 1 | Kedjespäännare endast für RSG Ex 1500 A/B (**) |
| 6 29 11 010 00 0 | 1 | Ringnyckel, 17/19 |
| 6 29 06 014 00 0 | 1 | Hylsnyckel, SW 46/ 41 |
| 3 02 31 029 00 2 | 20 | Rullkedja |
| 3 02 17 216 00 4 | 20 | Bult |
| 4 26 34 020 00 5 | 40 | Säkringsring |
| 6 33 05 013 00 2 | 5 | Klyvkilar, gnistfria für RSG Ex 1500/18 A/B (**) |
| 3 07 02 041 01 4 | 1 | Kopplingsaggregatkombination für RSG Ex 1500/18 A/B (**) |
| 3 21 74 009 00 1 | 1 | Rundslinger |
| 3 21 74 010 00 3 | 1 | Rundslinger |
| 3 07 28 188 00 8 | 1 | CEE koppling für RSG Ex 1500/18 A/B (**) |
| 3 02 31 035 02 0 | 1 | Kedja endast für RSG Ex 1500 A/B (**) |
| 3 02 16 166 01 0 | 1 | Bult endast für RSG Ex 1500 A/B (**) |
| 3 40 56 026 00 0 | 1 | Läsbrickor endast für RSG Ex 1500 A/B (**) |
BIOCUT 3000 inehälter inga hälsofarliga ämn. Det uppyfyller fordringarna enligt "Deutschen Vereins des Gas- und Wasserfachs e.V." (DVGW).
Smörjmedel BIOCUT 3000 für temperaturer till 0^ :
1L-32132039000
5L-32132040000
Smorjmedel koldresistant for temperaturer till -25^
1L-32132042000
5L-321320430000
D-73529 Schwabisch Gmünd
D-73529 Schwabisch Gmünd
Typ RSG Ex 1500 A () RSG Ex 1500 B (*)
Objednaci 7360...7360...
Typ RSG Ex 18 A () RSG Ex 18 B (*)
Napet (U) 400V400V
Frekvence (r) 50Hz 50Hz
Typ sioveho pripojen 3 \~ (stfdavy proud) 3\~ (stfdavy proud)
D-73529 Schwabisch Gmünd
D-73529 Schwabisch Gmünd
D-73529 Schwabisch Gmünd
D-73529 Schwabisch Gmünd
D-73529 Schwabisch Gmünd
Zastita okolisa, zbrinjavanje u OTPad.
Ambalažu, neuporabive elektriche alate i pribor treba dovesti na ekoloski prihvatljivo recikliranje.
IpebeoD opHnHaBNo pyHOBoCTBa no 3KcnnyataaM.
HcnoIb3oBaHHbIe ycIOBhbIe 0603HaeyHn, cokpaueHn n noHTHa.
BIOCUT 3000 He coApKHT BpeAHbX AJI8 3AOpOBb BEUcETB. OH OTBeuaET TpeBoaHnM HemeuKoRo obSeHnHeN OTpacIe rao- I BOAoCHa6KeHnA (Deutscher Verein des Gas- und Wasserfaches e.V.-DVGW).
Bce INHRepeAeHTbO TBEaHaiOT AINKETBAM YnpabneHHN NO CAHNTAPHomYHa30py 3a KaueCTBOM NIIeEBbIX PNOyAKTOB MHeMHKAmeHToB (CLJIA) HΦapMaKoENI EPeMAHN BdeCTByUoiE BHaCtOJIe BBPEM peDAkUN.
Cma3oHbMaTePnAn MoXHO NOyUHTb OT:
Cma30hyMaTepeHnBIOCUT 3000A TEmpePaTpydo 0^
1π-32132039000
5n-32132040000
XoNoOyoCToHnBbM3aOuHbMaTePnAaNAnTEmpeaTpybdo-25°C:
1n-32132042000
5n-321320430000
ДяпrimMuHeHnI ПИЕBMATNUeCKOrO cMa3OvHo-OxNJaKdAIOUeRo YcTpoIcTBa c MaShnAmHc n TpeXpAzbHbIM 3JIeKTpONPnBDOAm TIna RSG Ex (^**) Tpe6yTeC KOMnPkeCOP, HopemФдзakaz3FeIN 92601023023,cKoNtueCTBOM BCaCbBaEMORO Bo3Dyxa OK.130mMnH.
3anachbyle yactn.
Akyaibhbl cnncok 3anuacteH haoantcB HHTepheT ha www.fein.com.
Декларачн COOTBETCTBHA.
EKnlapaunCe AeCTByET ToIbKo IAn CTpaH Ebponeckoro coIO3a N EACT (EbponeiaccoaouncIcB6OAnTOPROBn) nToIbKo IAn I3AenH, npdeA3haueHHbx dI pyBHKa EC IIIN EACT.
C NcKnIOHTBnHO OTBCTBHeHocbTbO HnPMA FEIN 3aBnIeT, yTO HactoIuee H3dJIne COOTBeTCTByet HOPMaTHBnHbDM OOKyEMtAM, pNHeBeEHbIM Ha nocNEAHE CTpAHnIE HACTOJUERO KYKOBDACTBA NO KcNPIyTAuIN.
TexHHueckg AOKyMeHTaunr; C. & E. Fein GmbH,
D-73529 Schwabisch Gmünd
Oxpana okpykaioe cpebl, yTHnH3aun.
YnakOBky, npuweAunB HeroADocTB 3neKTPoHCTpyMeHTb IN npnaAeXHoCTn Cneayet CObpaT AIA KONOFueCk NCTOy yTNIN3aUN.
Iepenlad opriinhalhoi inctpyuui 3 ecnnnyatauui.
BHKOPHCTaHI CHMBOJIH,CHOPOeyHRA Ta NoHTTA.
RSG Ex 1500 B (^) RSG Ex 18 B (^)
Pozmipn:
- Maca (m) 80 kg 80 kg
- Maks. 0 po6o4oro 220 MM 220 MM
IHCTpyMeHTa
-△MAKc 974MM1088MM
- BMAKC 334MM 334MM
- 450 MM 431 MM
-371MM 371MM
-12 201MM201MM
- W3 791 MM 991 MM
PnH3NaueHH Tpy6oΦpe3epHnx MaunH.
Tp6o6pe3epHa MaunHa npn3HaueHa dIra pI3aHH Ta fpe3epyBaHH OKpeMIX BApI3KIB Tpy 7 Ta npoknaeHx Tpy6OpnpOBAID 3I cTani a60 YabyHy, a taKOn dIa 3HRTTa faoch Ha KInux Tpy6 Nepe3 3BapIOBAAHm Ha 6yAbEnbHnx MaadAnuKax, y cxax Ta npocTo He6a. Tpy6o6pe3epHa MaunHa npn3HaueHa dIra BnKOpCTaHn PhaxIBcAMy CneUanI3OBaHH KOMNaH I AHTpBbNix UoOeHHnx Po6it.
Tp6ofoepeHaMaunHaB KOMnneKTI He OanyuHa AINBn6yX0aNXHx3OH.
Tp6ofoepaMaHnHaHe np3NaeHaA
-3acTocyBaHHaY 3oHax 3 Bn6yXoHe6e3neuHIM cepeOBOuEeM.
-3aTocyBaHHnA CNbHM AOuem Ta PobIT NIA BOAOIO.
3aCTOCyBaHHHaMeKamNiaIanaOHy TemnepaTp BiA-20oC A0 40°C.
-pi3aHHBn6yXoHE6e3neuHnx MaTepiJIb.
- pi3aHHr roPoux MaTepiAnB.
HnpeKTHBa EC 94/9EG ATEX (Atmospheres Explosibles)
3BepTaMo Bauy yBary Ha Te, 10 Tpy6oep3epH Maunn HFein Tny RSG Ex (^**) He Oanyueshi Do 3aCTOCyBAHN Y Bn6yXOHe63neuHnx 30hAx, OTke AINx Tpy6oep3epHN MauHH Nemae cepTnphiKtB INpO6yBaHN TnnoBOrO 3paKa 3riAHO 3 AnpeKTHBOIO 94/9C.
(V Tpy6oΦpe3epHm MaunHr RSG Ex (^**) NIe IBA KOMHOHeHa - eNkTPOABnHyH I OaAtroBm BmMkau - BiNIOBaIaOTb BmOram ATEX.) AnpeKTHBa ATEX dIe Nlwe Ha TePntOpII EC.
KopoTHnOrJaI.
13aTncknn npncptpi
2KpinnnblnnrBnHTdN6iHoi nntu
3 BiHa nIITa
4IhOpMaia
5IporoHnH
6XoOBnTBNHT
7 MexaHImNoAqui Ha Bpi3yBaHHr
8 BnHT 3 uINIHAPNHyIO rONOBKOIO AIA MExaHl3My NOaHi Ha Bpi3yBaHHr
9Pn3oHHnnpOroHn
10XoObaBicb
11 3aTnCKHbBaXinb
12BnHT3WecTnPaHHoTOJNOBKOHO
13 7aai6a
14 Bicb HaTgHeHHa
15 Raika
16 IhctpymehTaIbHa WnIHdIbHa 6aKa
17 Raika 3 Tpy6HIO pI3HO
18 KpinnblnhrBnHT ABnryHa
19HaKa
20 Bea3ipOuKa
21 TpaHcnpTnBn
22 Ctonophe KInbue
23UTHΦT
24 Pi3b6Oba npo6ka iHCTpyMeHTaJIbHOI wNnHaenbHOi 6a6Kn
25 PyKoTka JnI nepeHeceHHa (i3onboBaHI noBepxHi pyKoTkn)
26 Kana rnnbnuHn
27 Taika 3 HakaTkoIO
28 BaXinb NepemHKaHHa WbNkOcTI NoaH
29 WecTnPapHHN npCTpoH HataRHeHHaHIOra
30 Wai6a npctpoIO HaTARHeHHHaHcIOrA
31 Ctonophi rBnHTnpCTpOHaTARHeHHaHIOra
32 Ctonophe kInbue naHKn nHaIur
33 PporoHnHaNKn NaHcIOra
34IeTNIaI nepeHeceHH
ДяВаообeзн.
3araJIbHI BkA3iBKN 3TexHKn 6e3neHN.
TONEPEDEXEHHA
IpoHTaTe BcI BHa3iBn 3TexHkN 6e3neHH Ta IInCTpyKlU, O3HaHOMTecr i3 MaHIOHHAMn TaTexHCHMM
XAPANTHEPCHKAMH,IO DODAHOCTBOI OBOEENHTPOIHCTPYMNTA. HeBHKOHAHNA BKA3IBOK TECTKHMI,IO HOCTPKUIMOKe IIN3BOADTHO YPAJEXHH ENEKTPUNHM CTPYMOM, NOXEKI TA/ABO BAKKHX TpAMB.
36epirahe Bci npabnna 3 TeXHH 6e3neK H I Bka3iBHN Ha MaHoyTHc.
IIAn NOHATTAM ENEKTOPIHCTPDMHT,IO BKNOPNCTOBYETy BKA3IBKAX 3 TexhIKI 6e3neKnMaTcHaBa3i eNEKTOPICHPTMENT,IO pNaOIE bIA MepexI (13 IHHYOM XJMBHEHNA) a6o bIA kMyrAToHPOHbGatapei (6e3 IHHYPA XJMBHEHNA).
1]Be3neKaHa po604omy Micui
a) TpMHMaTe CbOe pOoBe Mue Cb V ChTOTI 13a63neuYe Doope OCBtIeHnna PoOoYo MiCua. Be3NaA a60 noraHe OCbITIeHnHa pOoOyMo MyCi MoxyTb PnusBcTn DO HeUcaHnx BUnAkIB.
b) He npaouhe 3 eneKtpponpnaOAM y cepoOBnCi, de icHyc Hede3neKa BHOxy BNaCniOk npCyTHoCTI rpoUHx piHN, ra3is ao nny. EneKtpponpnaDN MoKyTb IopoAkyBaTIn iCKPN, BiA JAKX MOnke 3aMaTnCn nn aOp napn.
c)ПдусpoBOTN3 eENHTPONPHaOM He nIyNCSaHTe Do poBOHO rO Micu ditei ta inHxN ocIb. Bu MoKeTe BtPaTHn KOHTpONb Ha aD pINHaOM, kAIO Bu He 6yAdete 3ocepeAkeHi H bNkOHaHHIpoBOTH.
2]EeIeHTpHua 6e3neKa
a) Wtencelb enehtponphnaiy noobhen niXoAnTH do po3eTN. He 030BONETCBMaHHTN 0ocb B wTencenl. DnH pOoTH 3 enehtponphnaamn, 0o MaHOb 3axHCHe 3aMeHnE, He BHKOpHCTOByIte aadantepn. BnKOpHCTAHHH opriHaNBoHOro Wtencenla Ta HajeXHoI po3eTK 3MeHwYe PnIKU ypaKeHHN eNeKTpHcHIM CTpyMOM.
b) YHHKaHte HOHTaTy 3a3eMnEHHMH NOBepXHaMH, HN HApN. TpyBaAM, BatapeAHH OAnEHHN, NInTAMH TA XOnOaHbHHaMM. KOni Baue TINO 3a3eMnHe, IChy 36InbWeHa He6e3neKa ypaKeHH eNeKTPuHH CTPyOMM.
c) 3axuante npnnaB iD Douy i Boorn. IonaaHaHb BOAn B enektpopnpna3 36iNbye pnsIK ypaXeHHN eektpnHm CTpyMOM.
d) He BHHOPHCTOByte Ka6eBn DnnepeHeceHH enEnKtpponPhnady, ndiBsiWyBaHHa 0do BNTRyBaHH WtncenE 3po3eTHN. 3axmuaTe Ka6eBb BiD TeNla, MaCTHNa, IOctPnx KpaIB Ta Detanei npHaNy, 1o pyxaTobcN. NwkoJaKeHH a6o 3aKpyeHH Ka6eBn 3iNbWy e pnsK ypaKeHH enekTPnuHMM cTpyMOM.
e)ДЯЗOBHbHIXpoitO6OB'3aHOBOBbKOpHcTOByTe Nnwe TaHmN OOBbYBaU,zo npHaTaMHnIy3OBHbHix poit.BbKOpNCtAHnIOOBbYbAua,zo pOzpaXoBAHnHa 3OBHbHIpO6ToH,3MeHwye Pn3HK ypaXeHHEnEKeTPNHIMCTPymOM.
f) Ano He MoHa 3anobirn BnHOpctaHHo EneKtponPhady y BoIoromycepeoBnHui, BHKOpCTOByte npCHTpi 3axKCHOr BMMKHeHH. BnKOpCTaHH npCTpoio 3axnCHO BMMKHeHH 3MeHsuE pN3NKypaxHeHH enkTpHHM CTpyMOM.
3)Be3neKaIIODeH
a) 6yIbTe yBaHHMM, cnIkyTe 3a THM, 0o Bn poOHTe, Ta 6yIbTe o6epeHHMM qac poOToH 3 enEeTponpHnaDM. He HOpNCTyHTEc eEnEeTponpHaJADOM, AHIO Bn CTomJIeHi aO 3hAxOAnTeH cII dIO HApNOTHKIB, CnHPTHNHOAIOB ABO NIKIB. MtB HeyBaXHoCTi npn KOPNCTyBAHHi enEeTponpHaJADOM MOKe pINBECTu AO cepNo3HIX TpABM.
b) Bdrahe OocHe 3axHcne CnpAHEHHa Ta 06OB'3HOBO Bdrahe 3axChiOyHnP. 3acTOcyBHaBH OocBcTOrO 3axHCnOro CnpAxKHeHHa, Ra HAp., -B 3aJIeXHocTi BiD bNAtPO6i-T a3xHoCHoM KaMH, cneUzByTT, IO He KOb3aTeBcI, KACKnTa HabyuHnKlB, 3MeHJype PN3IK TpABM.
c) YHHaHTe BnnaKnOBoro BMHHHn. Nepu Hm BBmHyTH eneKtpponpnaD B eEnkTPOMepeHy a60 NiI'cHaTHn AynMylrAToHy batapeH, 6patn Horo B pyHN a60 nepeHoCHTN, BnBBHtBCraB TOMy, 10 eNeKTPponpnaD BMMHHTN. TpMaHn NaIbUa Ha BmMkaui nIac npeHeceHn eneKTPponpnaD ay a6o nIaJIIOueHn B po3eTKy yBIMKHpyTO npHaMy MoKe nPn3BeCTn Do TpaBM.
d) Pepa THM, RA BMKHATN ENENTPONPHAD, npheepitb HanaorOHyBaBbHI IHCTpymENTH Ta raHOBH NIOU. PepeSyBaHHa HanaoAxyBaHbHorO IHCTpymeta a60 KNOuA BAcTHNI pHnA dy, 10 o6eptaTbcra, MoKe Ipn3BcETN DO TpaBM.
e) YHHKANTHE NHPPOHNO rONONOHNTHINA.30epiraHTe CTIke NOnONEHNA T 3aBmHn TPNMAnTE PIBHOARY. Lc OBOBINTb Bam kpaue KOHTPONOBATn enkTPOPNpnaA y He63neuHNX cHTyauix.
f) BdraaTe npdaTmH Oar. He Bnrae Te npocToH Oar Ta npnKpach. He nCTabnaHte BOLOCC H OAR DO EtanE, IO pyxAOBc. IpocToH OAR, AOBE BoNocTa Tn PnPKacn MOxYb IOTpanITn B DeTani, IO pyxAIOTBc.
g] Raio icHyc MOHnBicb MOnTyBaTH NnIOBicMOHTyBaIbHI aOo NnHOyOBnHOu npCHTpo, nepeHOAHTeC, 0o BOH 6yn Do6pe NiEcHAni Ta npaBnHbNO BnKOpHcTOByBaHnC. BnKOpNCTaHH NIOBIACMOKTyBaIbHOro nPcTPOo MoKe 3MeHUnr He6e3NeKn, 3yMOBneHi PNNOM.
h) Do6pe 3aHHa ENeHTpOIncTpymEtB, OtpMaHe B pe3yIbTaTI qactoro IX BnHOPCTAHNa, He NOBHHo pN3BODmTH DO CAMOBNEBHeOCHti ITHOpYBaHHa PnHHuJIb TExHHc Ee3NeKn. Ho6epeXHa AIO MoKe B OADHy MNTb PnH3BeCTn DO BaKKoi TpaBMn.
4) PpabHbHe NOOBMeHHra KOpHcTByBaHHeNEKtpPnHaamN
a) He nepbentaHMyte npnlaD. BHKOPHcOByTe TaKm npnlaD, 10 CneiaiBn npn3haeHH nn BiIDNbiHOi pooTH. 3 npnAATHM npnIaOM Bn 3 MeHNm pI3NKoM OTpMaTe KpaJI pe3yIbTaTH po6OTn, RaIO OyAEte npauOBaTn B 3aHaueHomy dianaoHIOTyKHOCTi.
b) He HOpNCTyHTEcE eIeTHPonpHnADOM 3 NooKoDHeHHBM BHMKaayem. EneKToPOnpHnA, AKN He BMnKaTeBcra aOe H BmNkAeTbCra, e He6e3NeYHM I Noro TpeBa bIaPeMOHTByATn.
c) Npeep THM, NK perynnoBath 0o-He6yab Ha npnnai, MInTH npnnaa a60 XOBATH pnnad, BHTHHTb WtencBb i3 po3eTH Ta/a60 BHTHHTb anMyIATOPHy Gatape, Hko BOHa 3HimaetbC. Li nonepeJkyBaIbni 3axoAn 3 TexHikn 6e3neKn 3MeHHuyToB pNHK BnAkoBOrO 3anycky npnnay.
d) XOBaIe EEnTpOnpHnlaH, RKMn Bn Came He KophctyTeCb, Bid dIeR. He 3O8BONaIte HOPCHyBATHcE ENKTPPNaJDoOM o0aM, Uo He 3AHOi M 100 pOtoHO aOe HHTaHn i Bk3iBHN. BkOpNCTaHH npHaIaIB HeAOCbIAUeHNm Oco6aM MoKe 6Ty HBe3neYHM.
e) Crapahno dornaaTe 3a enentpohcypemtAmn i npnaadam. NpebipraTe, 0o pyxomi detani npnady 63doraHNO npauobann ta He 3aianH, He oynn noohOHeHHM ao HactinBnN nohoDHeHHM, 0o ce MOrno BnHHTn A yHNUOHyBaHH eneTponpHaNy. NoohOHeHi detani tpeba bidaepomontyBatn, nepu HIN HOpncTyBaTHCR HHM 3HOB. Benika KInbkiCTb HeuaChnx BnAak CnpuHnREbCn oRaHIM OOrlaOM 3a enektpopnPaamn.
f) TpHMaIe pIsaIbHI IHcTpMeHTH HArOCTpeHHM Ta B YHCTOTI. CTapaHIOAOTHyI pIsaIbHI IHcTpMeHM 3 RoCTpHM pIsaIbHM KpaEM MeHsE 3AcTpIAoTb Ta neriwi B ekCnpyaTuAI.
g] BnHOpHCTOByIte eneHTponpHnaIa, npHnaIaIaIO hBoO, pOboi IHCTpyMeTHn T.i. BiINbOIAHO do uHX BnA3IbOH. BeptI do yBaTH npH zuBMy yMOBN poOTo Ta cneuΦiKy BnHOhyBaHOi poOToh. BnKOpNCTaHH eNeKTponpHaIaIB IaIra Po6IT, Anr kXx BOH He nepeAbaYeHi, Moke np3BeCTn DO He6e3neHnx CHTyaui.
h) TpHMaTe pyKoTHnI noBepXHI 3axBaty cyXHMn IHCHTMH, cnldkYHe, 0o6 Ha HxN He byo ONHB aOc rTO MactHna. Cnbski pyKoTkn I NOBepXHI 3axBaty yHEMOxKNIBIOJt6e3neHyNE NOBOaKeHHa 3 eNEKTPOHCTpyMeHToM Ta IHO ROKHTponIOBaHHa B HeoUkyBaHHx CHTyaJix.
5) Cepsic
a) BIDabaaTcBn npHaad Ha peMOH NHe HbaniΦIOBaHHM FaxIBaR M Ta NHe 3KOpHOPoHrO pOriHanorh bAcH. Lc3a6e3neuHTb po60Ty nPmCTPBOIPOTAHOM TpBNAHOHc
Oc06nbi Bha3iBn 3 texhikn 6e3neKn dIa Tpyo0peepnX MaunH.
IⅡIa YbIMKHeHH Tpy6oPpe3epHOI MaHINH,po6OTn 3 HeO Ta II O6cIyOBaHHaDToPMYTeCe HaIOHaNbHbNx npINNCiB IooAo 3ano6irAHHH HeuaACHM BnNAkM
AOTPIMyITeec 3aKoHOaBHyX AnpeKTHB 0do Bn6yO3axHCTy.
Cniakyte 3a CTIKNIM NIOKHeHm O6pO6nHOaHOI Tpy6n. HeoTpImaHHBkA3IBOK MOKe IpN3BecTH Do BAKKX TpaBM a60 CmeptI.
Iodbphane Ha 3Behata Ha BepHnnte
CneAOTcpanBaHeHa rpy6nte 3aMbpcaBnna NoocTbaTe rpnKlnBO 3BeHata Ha Bepnnte C6EH3nH, KepocnHnnAp.n, KaTo rnpa3aBnXkBaTe HtEh3NBHO.
3aOCHpyraBaHe Ha KaueCTBeHO CMA3BaHe CJIeT TOBA OCTaBeTe BeprHrTe HAKoJIKO Yaca NotoHn B MacNo CToIaBm BuCKo3HTet, HAp. peAkykTopHo MaCNo SAE 140.
Onachocct or 3nononyha!
PpeHnON3BAHe OTHOBO HAnpabeTe ⅢaTeTeneH OrneA 3a 6e3yKOpHOTcBtOHa HeBaHeTa Ha Beprnte.3aMeHЯTe NOBpeAeHn EJIeMeHTNIOCTABAE TzeEge-uaHb, Ako IINCBAT.
3aDHHBaHe
Ako 6bde NOBpeH 3axpaHbuaaHT Ka6eHa eNEKTPoHCTpyMeHTa,TOI Tp8Ba Da 6bde 3ameHeH OT pnpMaTAp-PPON3BOaNTeN NIN OT OTOPI3nPAH cepBN3.
Modyn 3a perynhpane (Bnhte fHrypa A)
IooaBpKaIte NOBbpXHocCTTa Ha Tpb6HaT aRaiKa (17) uHcTa OT 3ambpcaBaHHn pBkDa H BnHaHn JeKo Cm3aHa.
- Pn CMHa Ha MacNTo HA PeAkyKTopTe N ONUCTBaIte N CMA3BaIte 3aBUNBaUN BHTOB BaI.
Jemontnpahe:
-EmoHTnpaHTe BNHTa C UNHnHApNHa rnaBa (8).
- 3BaTeUHΦTa(5)OTKanaka
CneToba cpbHata MaHbena pa3BnTe MoAyna 3a peYnnpaHe OT TpbHata raHa.
-Почисте и смахete pe36иTe (BIMKTe pa3aEena CpeAcTBA n Ппан 3a cma3BaHe Na CTpaHnua 221).
-3aMeHeTe NOBpeAeHN ceMeepnHrN.
MoTHHpAne:
MOHTHPaHETo Ce N3BbPbWA B O6paTHa NocneObaTeHIOCT. BHIMAbaIte NO BpeMe Ha MOHTpHaHeTo Da He NobpeAInTe cemepnHrnte!
Pnncno6oJIeHne 3a 3axBa7aHe
136raBae 3aMbpcaBaHe Ha pe36aHa BnHTobete (3, pIpyal) B npyKHHHte HnHApN.
Pn Heo6xOaMOCT NouCteTe n CMAKeTe pe36ata.
CpeIcTbH nnaH 3a Cma3BaHe
| Машино масло ARAL ÖL Degol | Колиесъв Temпо | paTypeн Диапазон [°C] | Спецнистия |
| BMB 460 2-Liter 0 | bis +60 PeДукторно | масло ти п CLPF сблесно DIN15502 | |
| BMB 100 2-Liter -2 | bis +40 |
B 3a0b0a- npO3b0AHTen KytTnra Ha nTaPOnHHMa e 3aNtBHeHa c ARAL OL Degol BMB 100. KaTeOpuHr He ce npeOpbYBa NOn3BaHeTo Ha aPyr BnA peAykTopHO macNo.
MATEPHAN 3a CMA3BaHe Ha TpHneHTe Ce NOBbpxHOCTN
3a cma3BaHe H noDbPkaHe Ha TpneHnTe ce NOBbPxHOCTn PpeOpbYBaMe BOOyctOuHBn MapKOBn rpcn, HeCbAbPkaun KncenHH.

| Мясту за смацвае Смацваши, респ. ра | БOTно вescьо |
| 2 (редуктор) Вижто табницата Машин | Но масло за КУтура на патонника |
| 3 (травец се поьрхноctи и винтов Вал) | Гrec за пььзагши пагши |
OrcpaHbBaHe Ha dePhiKTH (H3nBHeHHe RSG Ex [ ]
| Дeфент Вьзможни ручимп Мерн | |||
| Еnéтоно вибrationу и paбOTно вистчмent пpeьсbat | Тьрдд Н stockа okолна Temпоратура Иллеловские редуктора на FEIN за поски Temпоратура | ||
| Зытpen pa6oten Истчмent 3amehete pa6otnnaи Истчмent | |||
| Нама зханвашо наржение Пюверете зханвашо | пстумent | ||
| Нюхдашо зханвашо наржение Пюверете | парамеритe на зханвашоTO нарожениe | ||
| ПОдавалуeto e Тьрдд Бьрзо Или Тьрдд Глямо OTHEMане на MaTeриал на садинpoхд | Кориграite Нсторкata на рededуктора И/пли намале Дылбочины на Вряразиоу Ба Добаве Тьрдд М��нно МасLO | ||
| Тech на машин� масло OT рededуктора Намерети и OT | Стунente р�чината за теса- Добаве М��инно МасLO | ||
| П佩окимуно поведуно вешсян с �мent 3amehete вешсян с �мent | |||
| Веригата e постavenа Нрравлино Пюверете точк у шфт на вригата не вьаран дokраи Вьарайтse ú Зушилно | |||
| Дeфектоно вріжно колуно Поведуно вешсян с �мent 3amehete вешсян с �мent | |||
| Веригата e постavenа Нрравлино Пюверете точк у шфт на вригата не вьаран дokраи Вьарайтse | пстуе за сььрзаве на вригата и Коригрaite | ||
| Зушилно | |||
| Нерравлино вибrationи на рядане Нрравлино на �м.у Чебецka Зушилно на рядане Нрравлино на �м.у Чебецka Зушил� Зушил. Зушил Зушил Зушил Зушил Зушил Зушил Зушил Зушил Зушил Зушил Зушил Зушил Зушил Зушил Зушил Зушил Зушил Зушил Зушил Зушил Зушил | БИЖTE радудал,ПОдоготовka на машината за Фразовке на рьби (Вижte Фгур А). "н Стунда 217 И радуда" "Зхвашанду на машината за Фразовке Кьm Тьбота" на Стунда 218 | ||
| Воadingл вал не в ecstentprichen Нсторіп точн у Зушил: Вал не в ecstentprichen Нсторіп точн у Зушил: Вал не в ecstentprichen Hacprojппс у Зушил: Вал не в ecstentprichen Na у Зушил: Вал не в ecstentprichen Na у Зушил: Вал не в ecstentprichen Na у Зушил: Вал не в ecstentprichen Na у Зушил: Вал не в ecstentprichen Na у Зушил: Вал не в ecstentprichen Na у Зама Н. Hа Стунда N. Стунда N Стунда N Стунда N Стунда N Стунда N Стунда N Стунда N Стунда N Стунда N Стунда N Стунда N Стунда N Стунда N Стунда N Стунда N С__ Hа С__ Hа Hа Hа Hа Hа Hа Hа Hа Hа Hа Hа Hа Hа Hа Hа Hа Hа Hа Hа Hа Hа Hа Hа Hа Hа Hа Hа Hа Hа Hа Hа Hа Hа Hа T P R S U V W X Y Z A B C D E F G H I J K L M N O P Q R S T U V W X Y Z A B C D E F G H I J K L M N O P Q R S T U V W X Y Z A B C D E F G H I J K L M N O P Q L H I J K L M N O P Q L H I J K L M N O P Q L H I J K L M N O P Q L H I J K L M N O P Q L H I J K L H I J K L M N O P Q L H I J K L M N O P Q L H I J K L M N O P Q L H I J K L M N O P Q L H I J K I J K L M N O P Q L H I J K L M N O P Q L H I J K L M N O P Q L H I J K L M N O P Q L H I J K L M Y Z A B C D E F G H I J K L M N O P Q L H I J K L M N O P Q L H I J K L M N O P Q L H I J K L M N О P Q L H I J K L M N О P Q L H I J K L M N О P Q L H I J K L M N О P Q L H I J K L M N О P Q L H I JI K L M N О P Q L H I J K L M N О P Q L H I J K L M N О P Q L H I J K L M N О P Q L H I J K L M N О p Q L H I J K L M N О P Q L H I J K L M N О P Q L H I J K L M N О P Q L H I J K L M N О P Q L H I J К L M N О P Q L H I J K L M N О P Q L H I J K L M N О P Q L H I J K L M N О P Q L H I J K L M N О P q Q L H I J K L M N О P Q L H I J K L M N О P Q L H I J K L M N О P Q L H I J K L M N О P Q L H I J k L M N О P Q L H I J K L M N О P Q L H I J K L M N О P Q L H I J K L M N О P Q L H I J K L M N О P 0 P Q L H I J K L M N О P Q L H I J K L M N О P Q L H I J K L M N О P Q L H I J K L M N О P Q L H I j K L M N О P Q L H I J K L M N О P Q L H I J K L M N О P Q L H I J K L M N О P Q L H I J K L M N О F Y Z | БИЖTE радудал,ПОдогotькага на рededуктора И Фразовке на радудал,пстуе за теса- Фразовке на радудал,пстуе за теса- Фразовке на радудал,пстуе за теса- Фразовке на радудал,пстуе за теса- Фразовке на радудал,пстуе за теса- Фразовке на радудал,пстуе за теса-Фразовке на радудал, пстуе за теса- Фразовке на радудал,пстуе за теса- Фразовке на радудал, пстуе за теса- Фразовке на радудал, пстуе за теса- Фразовке на радудал, пстуе за теса- Фразовке на радудал, пстуе за теса- Фразовке на радудал, пстуе за теса- Фразовке на радудал,пстуе за tstocу, пстуе за tstocу, пстуе за tstocу, пстуе за tstocу, пстуе за tstocу, пстуе за tstocу, пстуе за tstocу, пстуе за tstocу, пстуе за tstocу, пстуе за tstocу, н. Стунда Тьрдд Тьрдд Тьрдд Тьрдд Тьрдд Тьрдд Тьрдд Тьрдд Тьрдд Тьрдд Тьрдд Тьрдд Тьрдд Тьрдд Тьрдд Тьрдд Тьрдд Тьц�дд Тьц�дд Тьц�дд Тьц�дд Тьц�дд Тьц�дд Тьц�дд Тьц�дд Тьц�дд Тьц�дд Тьц�дд Тьц�дд Тьц�дд Тьц�дд Тьц�д徳 Тьц�д徳 Тьц�д徳 Тьц�д徳 Тьц�д徳 Тьц�д徳 Тьц�д徳 Тьц�д徳 Тьц�д徳 Тьц�д徳 Тьц�д徳 Тьц�д徳 Тьц�д徳 Тьzzd Тьzzd | БИЖTE радудал,ПОдогotькага на рededуктора И Фразовке на радудал,пстуе за tstocу, пстуе за tstocу, пстуе за tstocу, пстуе за tstocу, пстуе за tstocу, пстуе за tstocу, пстуе за tstocу, пстуе за tstocу, н. Стунда Тьрд� Тьрдд Тьрдд Тьрдд Тьц�д徳 Тьц�д徳 Тьц�д徳 Тьц�д徳 Тьц�д徳 Тьц�д徳 Тьц�д徳 Тьц�д徳 Тьц�д徳 Тьц�д徳 Тьц�д徳 Тьц�д徳 Tьц�д徳 Tьц�д徳 Tьц�д徳 Tьц�д徳 Tьц�д徳 Tьц�д徳 Tьц�д徳 Tьц�д徳 Tьц�д徳 Tьц�д徳 Tьц�д徳 Tьц�д徳 Tьц�徳 Tьц�徳 Tьц�徳 Tьц�徳 Tьц�徳 Tьц�徳 Tьц�徳 Tьц�徳 Tьц�徳 Tьц�徳 Tьц�徳 Tьц�徳 Tьц�徳 Tьц�徳 Tьц�徹 Tьц�徳 Tьц�徳 Tьц�徳 Tьц�徳 Tьц�徳 Tьц�徳 Tьц�徳 Tьц�徳 Tьц�徳 Tьц�徳 Tьц�徳 Tьц�徳 Tьц�徳 Tьц�徳 Тьц�徳 Тьц�徳 Тьц�徳 Тьц�徳 Тьц�徳 Тьц�徳 Тьц�徳 Тьц�徳 Тьц�徳 Тьц�徳 Тьц�徳 Тьц�徳 Тьц�徳 Тьц�徳 Тьzzd Tьzzd Tьzzd Tьzzd Tьzzd Tьzzd Tьzzd Tьzzd Tьzzd Tьzzd Tьzzd Tьzzd Tьzzd Tьzzd Tьzzd Tьzzd Tьzzd Tьzzd Tьzzd Tьzzd Tьzzd Тьzzd Tьzzd Tьzzd Tьzzd Tьzzd Tьzzd Tьzzd Tьzzd Tьzzd Tьzzd Tьzzd Tьzzd Tьzzd Tьzzd Tьzzd Tьzzd Tьzzd Tьzzd Tьzzd Tьzzc d Tьzzd Tьzzd Tьzzd Tьzzd Tьzzd Tьzzd Tьzzd Tьzzd Tьzzd Tьzzd Tьzzd Tьzzd Tьzzd Tьzzd Tьzzd Tьzzd Tьzzd Tьzzd Tьzzd Tьzzc d |
TapaHua.
IrapaunraHa npOyKaTe e BaINHa Cbo6pa3Ho 3aKoHOBnTe pa3nope6nB CTpaHATA HbAACrHe.
Pa6oTHH HcTpyMeHTH DOnbHHTeHNn PpncnocO6JeHHA.
UpkynapnH dnckOBe

1

2

3
Φopma 1, HSS, 3a peayktop Tn:
A,B-3a 06pa6oTbaHe Ha CTOMaHeHn Tpb6n
| ∅ | Широчина | Маça. | Брой Зби | макс. Дылбочина на врульвае | Каталоженhomер |
| (mm) | (mm) | (kg) | (mm) | ||
| 160 | 4 | 0,5 | 50 | 25 | 6 35 02 022 00 6 |
| 180 | 4 | 0,7 | 60 | 35 | 6 35 02 037 00 8 |
| 200 | 4 | 0,9 | 64 | 45 | 6 35 02 053 00 7 |
| 220 | 4 | 1,3 | 70 | 55 | 6 35 02 041 00 1 |
| Форma 2, HSS, за редуktор тип: | |||||
| В - за образовдане на чутунени Трьби | |||||
| ∅ | ШирочINA | Маça. | Брой 3ыби | мамс. „дьлбочINA на врязданe | Каталожен Homep |
| (mm) | (mm) | (kg) | (mm) | ||
| 160 | 4 | 0,5 | 40 | 25 | 6 35 02 050 00 1 |
| 180 | 4 | 0,7 | 46 | 35 | 6 35 02 098 00 0 |
| 200 | 4 | 0,6 | 50 | 45 | 6 35 02 099 00 4 |
Φρρma 3, HSS, c TBbpDocnabHn 3b6n, 3a peAkykTOp TIN:
IpyHHHa
| A, B - 3a 6pb60TbAne Ha cyryHyEnH Tpb6n (cBsqo C zmmEHTOBA o6nnzOBkA) n Tpb6n OT HENeHrpHa CTOMHa AO 400 N/mm2 | |||||
| ∅ | Широчина | Maca. | Бр氧 Зби | мас. Дынбочина На Врзвае | Каталожен Homep |
| (mm) | (mm) | (kg) | (mm) | ||
| 160 | 4 | 0,5 | 40 | 25 | 6 35 02 080 00 8 |
| 180 | 4 | 0,7 | 44 | 35 | 6 35 02 061 00 9 |
| 200 | 4 | 0,9 | 50 | 45 | 6 35 02 084 00 2 |
| B × H × L | |
| mm | |
| 6 × 6 × 32 | 4 02 21 044 00 0 |
| 8 × 7 × 32 | 4 02 21 050 00 5 |
HonteHep 3a TpaHcnpTHpaH e
D-73529 Schwabisch Gmünd
D-73529 Schwabisch Gmünd
D-73529 Schwabisch Gmünd
环境保护和废物处理。
D-73529 Schwabisch Gmünd
環境保護和廢物處理。
如伊元首学习中,有云则云云云云云云云云云云云云云云云云云云云云云云云云云云云云云云云云云云云云云云云云云云云云云云云云云云云云云云云云云云云云云云云云云云云云云云云云云云云云云云云云云云云云云
(16)云韵海云早云云云云云云云云云云云云云云云云云云云云云云云云云云云云云云云云云云云云云云云云云云云云云云云云云云云云云云云云云云云云云云云云云云云云云云云云云云云云云云云云云云云云云云云云云
如云云云云云云云云云云云云云云云云云云云云云云云云云云云云云云云云云云云云云云云云云云云云云云云云云云云云云云云云云云云云云云云云云云云云云云云云云云云云云云云云云云云云云云云云
中
-
止期制在人和同日的期在上
皂藻士孕的孕土贝士园造则在的园造如
南

B

四田三建电电电电电电电电电电电电电电电电电电电电电电电电电电电电电电电电电电电电电电电电电电电电电电电电电电电电电电电电电电电电电电电电电电电电电电电电电电电电电电电电电电电电电电电电电电电电电电电电电电电电
水
中
0
马宝到园儿云南昌国朝中图里与书
云
- 田切的和的,1m的在里,
- -和中在的
五云云云云云云云云云云云云云云云云云云云云云云云云云云云云云云云云云云云云云云云云云云云云云云云云云云云云云云云云云云云云云云云云云云云云云云云云云云云云云云
31.75mm
aiin
| 과이트크的就是 | 체인 기재 | 체인 출가 | ||
| [mm] [mm] | 635 mm 63.5 | mm 31.75 mm | ||
| 250 710 1 1 | 1 | |||
| 300 870 1 4 | 0 | |||
| 350 1030 1 | 5 1 | |||
| 400 1190 1 | 9 0 | |||
| 450 1344 2 | 1 1 | |||
| 500 1500 2 | 4 0 | |||
| 550 1660 2 | 6 1 | |||
| 600 1809 2 | 8 1 | |||
| 650 1970 3 | 1 1 | |||
| 700 2130 3 | 4 0 | |||
| 750 2290 3 | 6 1 | |||
| 800 2440 3 | 8 1 | |||
| 850 2600 4 | 1 0 | |||
| 900 2760 4 | 4 0 | |||
| 950 2921 4 | 6 0 | |||
| 1000 3079 | 8 1 | |||
| 1100 3397 | 3 1 | |||
| 1200 3714 | 8 1 | |||
| 1300 4032 | 3 1 | |||
| 1400 4330 | 8 1 | |||
| 1500 4640 | 3 1 | |||
云云云云云云云云云云云云云云云云云云云云云云云云云云云云云云云云云云云云云云云云云云云云云云云云云云云云云云云云云云云云云云云云云云云云云云云云云云云云云云云云云云云云云云云云
上
作工别!
期
#
国中
三异义(20A
(17)的同是
指导:
- -(5)
-
-277
五
圣园是中天,
国云云云云云云云云云云云云云云云云云云云云云云云云云云云云云云云云云云云云云云云云云云云云云云云云云云云云云云云云云云云云云云云云云云云云云云云云云云云云云云云云云云云云云云

D-73529 Schwabisch Gmünd
nnnnnnnnnnnnnnnnnnnnnnnnnnnnnnnnnnnnnnnnnnnnnnnnnnnnnnnnnnnnnnnnnnnnnnnnnnnnnnnnnnn
oennnnnne nnnnne nnne annnnnnnnnnnnnnnnnnnnnnnnnnnnnnnnnnnnnnnnnnnnnnnnnnnnnnnnnnnnnnnnnnnnnnnnnnnnnnnnnnnnnnnnnnnnnnnnnn
mnnnnnnaaannnnnnaanennnnnnae
取説説明書原本の翻訳。
本說明書使使用中的之、略号亦用語
RSG Ex 1500 B (^) RSG Ex 18 B (^)
寸法:
-重量(m) 80kg 80kg
最大一儿径 220mm 220mm
-最大長974mm 1088mm
最大高334mm 334mm
最大幅450mm431mm
-
B1 371 mm 371 mm
-
B_2 201 mm 201 mm
-
B3 791 mm 991 mm
八百万三儿上
92601023023 15 15 15 15 15 15 15 15 15 15 15 15 15 15 15 15 15 15 15 15 15 15
10 130
D-73529 Schwabisch Gmünd
. sol 1000000000000000000000000000000
ylll llll yie 1yie yie yie yie yie yie yie yie yie yie yie yie yie yie yie yie
j
| \( 635 = \) 63,5\( ^{10} \) | \( 10 \) |
| 3 02 31 013 02 7 | \( ^{11} \) |
| 31,75 | \( ^{12} \) |
| 3 02 31 029 00 2 | \( ^{13} \) |
b1 = 1,b2 = 2
| 38,5 | 3 02 17 216 00 4 | |
| 54 | 3 02 16 166 00 0 |
a b c d e f g h i j k l m n o p q r s t
| 30217216004 | العربية |
iJyj
| 6 33 05 006 00 8 |
aai 1
D-73529 Schwabisch Gmünd-Bargau
www.fein.com
Notice-Facile