SVW300 - Chaudière KOSPEL - Notice d'utilisation et mode d'emploi gratuit
Retrouvez gratuitement la notice de l'appareil SVW300 KOSPEL au format PDF.
| Caractéristiques | Détails |
|---|---|
| Type de chaudière | Chaudière à gaz murale |
| Puissance nominale | 30 kW |
| Efficacité énergétique | Classe A |
| Dimensions (HxLxP) | 700 x 400 x 300 mm |
| Poids | 30 kg |
| Type de combustible | Gaz naturel ou propane |
| Installation | Murale, avec évacuation des fumées par ventouse |
| Contrôle de la température | Thermostat intégré |
| Entretien | Vérification annuelle recommandée par un professionnel |
| Sécurité | Système de sécurité contre la surchauffe et les fuites de gaz |
| Garantie | 2 ans |
| Accessoires inclus | Manuel d'utilisation, kit de montage |
FOIRE AUX QUESTIONS - SVW300 KOSPEL
Questions des utilisateurs sur SVW300 KOSPEL
0 question sur cet appareil. Repondez a celles que vous connaissez ou posez la votre.
Poser une nouvelle question sur cet appareil
Téléchargez la notice de votre Chaudière au format PDF gratuitement ! Retrouvez votre notice SVW300 - KOSPEL et reprennez votre appareil électronique en main. Sur cette page sont publiés tous les documents nécessaires à l'utilisation de votre appareil SVW300 de la marque KOSPEL.
MODE D'EMPLOI SVW300 KOSPEL
Manuel d'installation et d'utilisation
Explication des symboles 13
Les conditions pour un fonctionnement sûr et fiable 14
Domaine d'application 14
Construction 15
Installation 19
Première mise en service 19
Procédure en cas de dommages ou d'irrégularités 20
Retiré de l'exploitation 20
Recyclage et élimination des déchets 20
Données techniques 21

Lisez attentivement ce manuel avant utilisation.
Suivez les instructions du manuel pour garantir un fonctionnement sûr et correct du produit.
Conservez le manuel pour référence ultérieure.

Veuillez suivre attentivement les consignes de sécurité afin de prévenir les blessures et les dommages.

Danger
Ce symbole avertit d'un danger de blessure.

Notez
Ce symbole avertit d'un risque de dommages matériels et de pollution environnementale.
Conseil
Le texte marqué du mot Conseil contient des informations supplémentaires.

Reportez-vous à ce manuel lors de l'utilisation du produit ou de ses commandes marquées de ce symbole.
Lois et réglementations applicables
- Les codes nationaux d'installation électrique et de plomberie.
- Les réglementations légales en matière d'hygiène et de sécurité au travail.
- Les réglementations légales en matière de protection de l'environnement.
- Les réglementations des associations professionnelles et d'assurance.
-
Les réglementations nationales de sécurité en vigueur.
-
Lire et suivre attentivement les instructions d'installation et d'utilisation afin d'assurer un fonctionnement performant et une durée de vie optimale de votre matériel.
- Montage et utilisation de ballon tampon non conforme avec cette notice n'est pas autorisée peut provoquer un dysfonctionnement et annule la garantie.
- Lors de tous les travaux liés à l'installation, l'entretien ou la maintenance de l'appareil, les règles d'hygiène et de sécurité au travail doivent être respectées ainsi que la protection contre les explosions, la protection contre l'incendie et la protection de l'environnement conformément aux exigences et réglementations applicables dans le pays concerne.
- Il est interdit de monter le ballon tampon dans les pièces où la température peut descendre au dessous de 0°C
- Il faut demander le service spécialisé pour le montage, la réalisation des installations nécessaires et le démarrage du ballon tampon
- Eau chauffante doit répondre aux normes en vigueur.
- Il est interdit de dépasser la température nominale de 80°C! dans des ballons tampon à la capacité de (400 et 500 litres). Il est interdit de dépasser la température nominale de 95°C pour le ballon tampon de (200; 300; 800; 1000 litres).
Domaine d'application
Les réservoirs tampons SV et SVW sont des dispositifs conçus pour le stockage de l'eau de chauffage (et/ou de refroidissement pour 200 ; 300 litres) en collaboration avec des chaudières et des pompes à chaleur. De plus, ils servent de collecteur (accouplement), séparateur hydraulique et circuit de chauffage à partir de la chaufferie. Le réservoir SVW possède un serpentin intégré pour connecter d'autres sources de chaleur. Le réservoir tampon est fabriqué en tôle d'acier noir, brut à l'intérieur et protégé à l'extérieur par une peinture anticorrosion. Les réservoirs SV et SVW possèdent une isolation thermique réalisée en fonction de la capacité : 200, 300 litres - mousse PUR ; 400, 500 litres - polystyrène ; 800-1000 litres - fibre de polyester. Le grand nombre de raccordements permet diverses options de connexion.
La pression maximale du ballon tampon est:
- 0,6MPa - capacité 200-1000 litres.
La pression maximale de travail dans le serpentin:
- 1MPa- capacité 200-1000 litres.

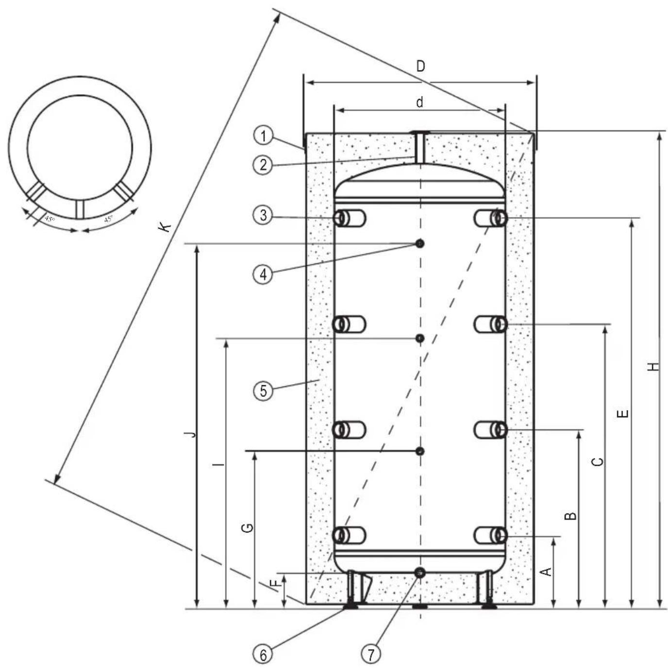
text_image
K 1 2 3 4 5 J G E H C B A 6 7 d d' d'5° d5°Construction du ballon tampon SV (200l, 300l)
[1] - le couvercle supérieur
[2] - orifice pour purgeur (1/2")
[3] - orifice du raccordement (6/4")
[4] - orifice pour doigt de gant (1/2")
[5] - isolation thermique
[6] - pieds
[7] - orifice de vidange (1/2")

text_image
45° 45° D d 1 2 3 4 K J G E 6 7 8 H C B A k'Construction du ballon tampon SV (400l; 500l; 800l; 1000l)
[1] - le couvercle supérieur
[2] - orifice pour purgeur (1/2")
[3] - orifice du raccordement (6/4")
[4] - orifice pour doigt de gant (1/2")
[5] - isolation thermique
[6] - pieds
[7] - orifice de vidange (1/2")
[8] - couvercle inférieur

text_image
1 2 3 4 5 6 7 8 9 10 11 12 13 14 15 16 17 18 19 20 21 22 23 24 25 26 27 28 29 30 31 32 33 34 35 36 37 38 39 40 41 42 43 44 45 46 47 48 49 50 51 52 53 54 55 56 57 58 59 60 61 62 63 64 65 66 67 68 69 70 71 72 73 74 75 76 77 78 79 80 81 82 83 84 85 86 87 88 89 90 91 92 93 94 95 96 97 98 99 100Construction du ballon tampon avec le serpentin SVW (200l, 300l)
[1] - le couvercle supérieur
[2] - orifice pour purgeur (1/2")
[3] - orifice du raccordement (6/4")
[4] - orifice pour doigt de gant (1/2")
[5] - isolation thermique
[6] - pieds
[7] - orifice de vidange (1/2")
[8] - orifice du serpentin 1"

text_image
1 2 3 4 5 6 7 8 9 D d J I N G L E A B C H E 45° 45°Construction du ballon tampon avec le serpentin SVW (400l, 500l; 800l; 1000)
[1] - le couvercle supérieur
[2] - orifice pour purgeur (1/2")
[3] - orifice du raccordement (6/4")
[4] - orifice pour doigt de gant (1/2")
[5] - isolation thermique
[6] - pieds
[7] - orifice de vidange (1/2")
[8] - orifice du serpentin 1"
[9] - couvercle inférieur
Dimensions
| Modell | SV200.1 | SVW200.1 | SV300.2 | SVW300.2 | SV400.1 | SVW400.1 | SV500.1 | SVW500.1 | SV800.1 | SVW800.1 | SV1000.1 | SVW1000.1 | |
| D | 457 51616 | 595 692 | 755 854 994 | 994 | |||||||||
| 50 600 650 | 790 790 | ||||||||||||
| H | 1596 1643 | 1761 1911 224 | 41 | ||||||||||
| A | 49 256 261 | 294 294 | |||||||||||
| B | 11 626 656 | 718 828 | |||||||||||
| C | 73 996 1051 | 1142 1362 | |||||||||||
| E | 1322 133 | 38 1368 1446 | 1566 1895 | ||||||||||
| F | 26 124 130 | 160 160 | |||||||||||
| G | 44 550 629 | 691 801 | |||||||||||
| I | 911 940 | 947 1064 1099 1379 | |||||||||||
| J | 1239 124 | 49 1278 1379 | 1539 1869 | ||||||||||
| K | 1700 174 | 40 1810 1975 | 2130 2430 | ||||||||||
| K' | - | - | 1675 | 1800 | 1915 | 2245 | |||||||
| L | - | 256 | - | 239 | - | 246 | - | 251 | - | 293 | - | 293 | |
| N | - | 811 | - | 850 | - | 856 | - | 974 | - | 1182 | - | 1294 | |
Installation
- Il faut poser le ballon tampon en position verticale.
- On peut utiliser le ballon tampon pour l'installation du chauffage central:
- dans le circuit ouvert, réalisé conformément aux normes en vigueur,
- dans le circuit fermé, réalisé conformément aux normes en vigueur,
- L'appareil doit être installé de telle manière et dans tel endroit qu'au cas de fuite accidentelle du ballon ou des raccords il n'y avait pas d'inondation du local.
Première mise en service
Avant la première mise en service du ballon tampon il faut vérifier visuellement la fiabilité du montage de l'appareil. Vérifier l'étanchéité des raccords. Vérifier le fonctionnement de la soupape de sécurité (conformément aux instructions du fabricant).
Procédure en cas de dommages ou d'irrégularités
| Anomalie Instruction de procédure | |
| Fuite d'eau du ballon | Fermez les vannes d'arrêt du système de chauffage central et contactez le service |
| Montée en pression excessive dans le ballon |
Retiré de l'exploitation
Le produit usé ne peut pas être traité comme un déchet municipal.
L'élimination appropriée du produit usé évite les effets négatifs potentiels sur l'environnement, qui pourraient se produire en cas de gestion inappropriée des déchets.
Pour des informations plus détaillées sur le recyclage de ce produit, veuillez contacter votre unité gouvernementale locale, service de gestion des déchets.
Recyclage et élimination des déchets
Enlèvement de produits et d'équipements:
Ce produit et ses accessoires ne doivent pas être jetés avec les ordures ménagères. Assurez-vous que le produit et tous les accessoires ont été supprimés correctement. Toutes les lois applicables doivent être respectées.
| Ballon tampon | SV200.1 | SVW200.1 | SV300.2 | SVW300.2 | SV400.1 | SVW400.1 | SV500.1 | SVW500.1 | SV800.1 | SVW800.1 | SV1000.1 | SVW1000.1 | ||
| Capacité nominale | I 20 | 0 300 | 400 50 | 0 800 | 1000 | |||||||||
| Pertes à l'arrêt W 53 65 87 | 78 12 | 0 121 | 127 12 | 8 | ||||||||||
| Volume de stockage I 220 | 219 3 | 24 322 | 399 39 | 6 493 | 490 79 | 5 790 | 942 93 | 6 | ||||||
| Pression nominale | cuve | MPa | 0,3 | |||||||||||
| serpentin | - 1 - | 1 - 1 - | 1 - 1 - | 1 | ||||||||||
| Température nominale | °C | 95 | 80 | 95 | ||||||||||
| Surface du serpentin | m^2 | - | 0,75 | - | 1,5 | - | 1,7 | - | 2,25 | - | 3 | - | 3,5 | |
| Capacité du serpentin | dm^3 | - | 4,5 | - | 9,1 | - | 10 | - | 13,7 | - | 22,4 | - | 25,2 | |
| Puissance du serpentin | kW | - | 22* | - | 45* | - | 50* | - | 65* | - | 90* | - | 105* | |
| 7** | 14** | 16** | 21** | - | 28* | - | 32** | |||||||
| Poids sans eau | kg | 53 | 69 | 56 | 85 | 86 | 118 | 96 | 131 | 128 | 170 | 150 | 196 | |
*80/10/45°C } Température de l'eau de chauffage / Température de l'eau d'alimentation / Température de l'eau sanitaire ; Débit **55/10/45°C } de l'eau de chauffage à travers l'échangeur de chaleur 2,5 m³/h.
Notice Facile