SVW300 - Caldera KOSPEL - Manual de uso y guía de instrucciones gratis
Encuentra gratis el manual del aparato SVW300 KOSPEL en formato PDF.
Preguntas frecuentes - SVW300 KOSPEL
Preguntas de los usuarios sobre SVW300 KOSPEL
0 pregunta sobre este aparato. Responde a las que conoces o haz la tuya.
Hacer una nueva pregunta sobre este aparato
Descarga las instrucciones para tu Caldera en formato PDF gratis! Encuentra tus instrucciones SVW300 - KOSPEL y toma tu dispositivo electrónico nuevamente en la mano. En esta página están publicados todos los documentos necesarios para el uso de su dispositivo. SVW300 de la marca KOSPEL.
MANUAL DE USUARIO SVW300 KOSPEL
Manual de instalación y uso
Explicación de los pictogramas 3
Instrucciones de seguridad 4
Descripción del dispositivo 4
Construcción 5
Instalación 9
Puesta en marcha 9
En caso de daños o irregularidades, el procedimiento a seguir es el siguiente 10
Eliminación 10
Reciclaje y eliminación 10
Datos técnicos 11

Para un uso seguro y correcto, siga las instrucciones.
Guarde este manual para referencia futura.

Por favor siga cuidadosamente las indicaciones de seguridad para evitar el riesgo de lesiones y daños materiales.

Peligro
Este signo advierte de riesgo de lesiones.

Atención
Este signo advierte de posibles daños materiales y contaminación ambiental.
Sugerencia
El texto marcado con la palabra Sugerencia contiene información adicional.

Indicación de que el manual de instrucciones debe ser tenido en cuenta durante el manejo del aparato o el control cerca del lugar donde se encuentra el símbolo.
Reglamentos aplicables
- Reglamentos nacionales de instalación
- Reglamentos de seguridad e higiene laboral
• Leyes de protección ambiental - Reglamentos de las asociaciones de seguros profesionales
-
Las actuales regulaciones de seguridad nacionales
-
Familiarizarse con el contenido de este manual permitirá una instalación y operación correctas del equipo, asegurando su funcionamiento prolongado y fiable.
- La instalación y uso del tanque de almacenamiento intermedio de manera contraria a las instrucciones de este manual está prohibido - conlleva el riesgo de fallas y resulta en la pérdida de la garantía.
- Durante todos los trabajos relacionados con la instalación, servicio o mantenimiento del equipo, se deben seguir las normas de seguridad y salud en el trabajo, protección contra explosiones, protección contra incendios y protección ambiental de acuerdo con los requisitos y regulaciones aplicables en el país.
- No se debe instalar el equipo en lugares donde la temperatura ambiente pueda caer por debajo de 0°C.
- La instalación y puesta en marcha del tanque de almacenamiento intermedio y la realización de las instalaciones asociadas deben ser confiadas a un servicio especializado.
- El agua de calefacción debe cumplir con los requisitos de la norma PN-C-04607:1991.
- ¡No se debe exceder la temperatura nominal de 80°C! en tanques de 400l; 500l. En tanques (200l; 300l; 800l; 1000l) no se debe exceder la temperatura nominal de 95°C.
Descripción del dispositivo
Los tanques de almacenamiento SV y SVW están diseñados para almacenar agua de calefacción (y/o frío para 200; 300 litros) en colaboración con calderas de calefacción y bombas de calor. Además, funcionan como un distribuidor (acoplamiento), separador hidráulico y circuito de calefacción desde la sala de calderas. El tanque SVW tiene una serpentina incorporada para conectar otras fuentes de calor. El tanque de almacenamiento está hecho de chapa de acero negro, en su interior en estado crudo y protegido en el exterior con pintura anticorrosiva. Los tanques SV y SVW tienen aislamiento térmico hecho dependiendo de la capacidad de: 200, 300 litros - espuma PUR; 400, 500 litros - poliestireno; 800-1000 litros de fibra de poliéster. La gran cantidad de conexiones permite varias opciones de conexión.
La máxima presión de trabajo del tanque:
- 0,3MPa - capacidades de 200-1000 litros,
La máxima presión de trabajo en la serpentín: - 1MPa - capacidades de 200-1000 litros.

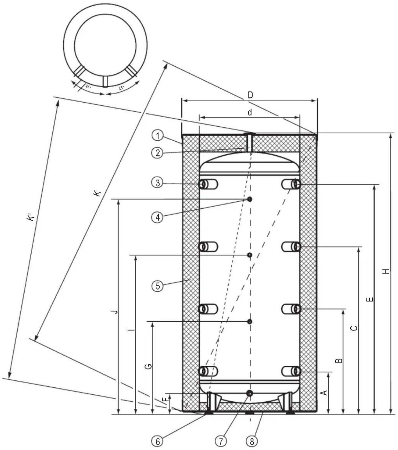
La construcción del tanque de almacenamiento intermedio SV (200l, 300l) incluye:
[1] - Tapa superior
[2] - Conexión del purgador de aire (1/2")
[3] - Conexión de entrada/salida (6/4")
[4] - Conexión para el sensor de temperatura (1/2")
[5] - Aislamiento térmico
[6] - Pies de soporte
[7] - Conexión de drenaje (1/2")

text_image
45° 45° D d 1 2 3 4 5 J G E H C B A 6 7 8 K' KConstrucción del tanque de almacenamiento intermedio SV (400l; 500l; 800l; 1000l):
[1] - Tapa superior
[2] - Conexión del purgador de aire (1/2")
[3] - Conexión de entrada/salida (6/4")
[4] - Conexión para el sensor de temperatura (1/2")
[5] - Aislamiento térmico
[6] - Pies de soporte
[7] - Conexión de drenaje (1/2")
[8] - Tapa inferior

text_image
1 2 3 4 5 6 7 8 9 10 11 12 13 14 15 16 17 18 19 20 21 22 23 24 25 26 27 28 29 30 31 32 33 34 35 36 37 38 39 40 41 42 43 44 45 46 47 48 49 50 51 52 53 54 55 56 57 58 59 60 61 62 63 64 65 66 67 68 69 70 71 72 73 74 75 76 77 78 79 80 81 82 83 84 85 86 87 88 89 90 91 92 93 94 95 96 97 98 99 100Construcción del tanque de almacenamiento intermedio con serpentín SVW (200l, 300l):
[1] - Tapa superior
[2] - Conexión del purgador de aire (1/2")
[3] - Conexión de entrada/salida (6/4")
[4] - Conexión para el sensor de temperatura (1/2")
[5] - Aislamiento térmico
[6] - Pies de soporte
[7] - Conexión de drenaje (1/2")
[8] - Conexión de entrada/salida del serpentín 1"

text_image
1 2 3 4 5 6 7 8 9 D d J I N G L E A B C H 45° 45°Construcción del tanque de almacenamiento intermedio con serpentín SVW (400l; 500l; 800l; 1000l)
[1] - Tapa superior
[2] - Conexión del purgador de aire (1/2")
[3] - Conexión de entrada/salida (6/4")
[4] - Conexión para el sensor de temperatura (1/2")
[5] - Aislamiento térmico
[6] - Pies de soporte
[7] - Conexión de drenaje (1/2")
[8] - Conexión de entrada/salida del serpentín 1"
[9] - Tapa inferior
Dimensiones
| Modello | SV200.1 | SVW200.1 | SV300.2 | SVW300.2 | SV400.1 | SVW400.1 | SV500.1 | SVW500.1 | SV800.1 | SVW800.1 | SV1000.1 | SVW1000.1 | |
| D | 457 5 | 595 692 | 755 854 994 | 994 | |||||||||
| d | 50 600 650 7 | 90 790 | |||||||||||
| H | 1616 | 1596 1643 1 | 761 1911 224 | 41 | |||||||||
| A | 266 2 | 49 256 261 2 | 294 294 | ||||||||||
| B | 618 6 | 11 626 656 7 | 718 828 | ||||||||||
| C | 970 9 | 73 996 1051 | 1142 1362 | ||||||||||
| E | 1322 | 1338 1368 1 | 446 1566 1895 | ||||||||||
| F | 125m | 26 124 130 1 | 60 160 | ||||||||||
| G | 554 5 | 44 550 629 6 | 691 801 | ||||||||||
| I | 1239 | 911 940 | 947 1064 1099 1379 | ||||||||||
| J | 1249 1278 1 | 879 1539 1869 | |||||||||||
| K | 1700 1740 1810 1975 2130 2430 | ||||||||||||
| K' | - | - | 1675 | 1800 | 1915 | 2245 | |||||||
| L | - | 256 | - | 239 | - | 246 | - | 251 | - | 293 | - | 293 | |
| N | - | 811 | - | 850 | - | 856 | - | 974 | - | 1182 | - | 1294 | |
Instalación
- El tanque de almacenamiento intermedio se debe montar exclusivamente en posición vertical.
- El tanque de almacenamiento intermedio puede ser instalado en la instalación de calefacción central:
- de un sistema abierto, realizado de acuerdo con la norma PN-B-02413:1191,
- de un sistema cerrado, realizado de acuerdo con la norma PN-B-02414:1999.
- El tanque debe ser montado en tal lugar y de tal manera que una fuga de emergencia del tanque o de las conexiones no cause inundación del espacio.
Puesta en marcha
Antes de poner en marcha el tanque de almacenamiento intermedio, es necesario verificar visualmente la correcta conexión del dispositivo.
Comprobar la estanqueidad de las conexiones. Verificar el funcionamiento de la válvula de seguridad (de acuerdo con las instrucciones del fabricante de la válvula).
En caso de daños o irregularidades, el procedimiento a seguir es el siguiente
| Irregularidad Instrucciones de actuación | |
| Fuga de agua del tanque | se deben cerrar las válvulas de corte de la instalación de calefacción y contactar con el servicio técnico |
| Aumento excesivo de la presión en el tanque |
Eliminación
Un producto desechado no debe ser tratado como residuo municipal. La correcta eliminación de un producto desechado previene potenciales impactos negativos en el medio ambiente que podrían surgir de una disposición inadecuada de los residuos. Para obtener información más detallada sobre el reciclaje de este producto, debe contactar a la administración municipal local o los servicios de gestión de residuos.
Reciclaje y eliminación
Eliminación de productos y equipos:
Los productos y equipos no deben desecharse junto con los residuos domésticos. Debe asegurarse de que el producto y todo el equipo se eliminen de manera adecuada. Todas las regulaciones aplicables deben ser cumplidas.
| Tanque de agua caliente | SV200.1 | SVW200.1 | SV300.2 | SVW300.2 | SV400.1 | SVW400.1 | SV500.1 | SVW500.1 | SV800.1 | SVW800.1 | SV1000.1 | SVW1000.1 | ||
| Capacidad Nominal | I | 200 300 | 400 500 800 | 1000 | ||||||||||
| Pérdidas de Estancamiento | W | 53 65 87 | 78 120 121 | 127 128 | ||||||||||
| Volumen de Almacenamiento | I | 220 2 | 19 324 | 322 3 | 99 396 | 493 4 | 90 795 | 790 94 | 42 936 | |||||
| Presión nominal | Tanque | MPa | 0,3 | |||||||||||
| Serpentín | -1 | -1 -1 | -1 -1 | |||||||||||
| Temperatura nominal, °C 95 80 95 | ||||||||||||||
| Superficie del serpentín, m | ^2 | - | 0,75 | - | 1,5 | - | 1,7 | - | 2,25 | - | 3 | - | 3,5 | |
| Capacidad del serpentín, | dm ^3 | - | 4,5 | - | 9,1 | - | 10 | - | 13,7 | - | 22,4 | - | 25,2 | |
| Potencia del serpentín | kW | - | 22* | - | 45* | - | 50* | - | 65* | - | 90* | - | 105* | |
| 7** | 14** | 16** | 21** | - | 28* | - | 32** | |||||||
| Masa (sin agua) | kg | 53 | 69 | 56 | 85 | 86 | 118 | 96 | 131 | 128 | 170 | 150 | 196 | |
*80/10/45°C } temperatura del agua de calefacción / temperatura del agua de alimentación / temperatura del agua en el tanque;
**55/10/45°C } flujo del agua de calefacción 2,5 m³/h.
ManualFácil