MDRF632FGF46 - ψυγείο MIDEA - Δωρεάν εγχειρίδιο χρήσης
Βρείτε δωρεάν το εγχειρίδιο της συσκευής MDRF632FGF46 MIDEA σε μορφή PDF.
Κατεβάστε τις οδηγίες για το ψυγείο σε μορφή PDF δωρεάν! Βρείτε το εγχειρίδιό σας MDRF632FGF46 - MIDEA και πάρτε ξανά την ηλεκτρονική σας συσκευή στα χέρια σας. Σε αυτή τη σελίδα δημοσιεύονται όλα τα έγγραφα που απαιτούνται για τη χρήση της συσκευής σας. MDRF632FGF46 της μάρκας MIDEA.
ΕΓΧΕΙΡΊΔΙΟ ΧΡΉΣΗΣ MDRF632FGF46 MIDEA
1.1 Ppoeiioe
1.2 Σημασια συμβόλων προεδοποησς ασφαλείας 3
1.3 Pnoeiooioieic oxetik a e TnV nAekptipkEvepyia 3
1.4 Ppoeiobtoinoeic yia xphon 4
1.5 Ppoεδοτοιαεις για τοτοθέτηση αντικειμένων. 4-5
1.6 Ppoeioboinoeic yia tny evepyia 5
1.7 PpoEioToiOeic yia atoppiu.. 5
2 H σωστή χρόη του ψυείου
2.1 ToTOnoTeItnoI 6
2.2 IooT#delta n rodelta 7
2.3 Iopra 1o0oTaOioans 8
2.4 Aaayn Tou 9
2.5 Evapx npn9 9
2.6 o i k o v n n p y i a c 9
3 _^ kai inoupy
3.1 EApntmuata kEidiia 10
3.2 Aetoupyiec 11-12
4Σuvtnρσn κα φροντίδa tou ψυείου
4.1 SuvoIkoK kaOapioo
4.2 Kaθαρισμός τοῦ δισκου πόρτας 14
4.3 Kaθαρισμός του γαφίου. 14
4.4 AToUxi 14
4.5 Xwpi iToupyia 14
5 Eπiλuση προβληματων
5.1 Eπiuaon πρoβληματωv 15

1 PpOεIδoTPOiŋσεIc ασφaλεiα
1.1 Ppoeiobtoinog

PpOeioo:KivDuvoc Tnpkayia /EupAektwv uikw
Autn n ouakeun npoopi etai va xpnoioutointhetai oikiakec kai npopoiec eapauoyes, otwoa tio poootkoouziva
TEPIOXES OE KATAOTnmuata, ypaieia kai aaaa TepiIaAovta epyaioiac. oe aypoikies kai ato TELATEC OE evooexia, motea kai aaaa TepiIaAovta katoikiw. TepiIaAovta tuTou niauovns. Tpopooboa Ka TAPoIOEc m AIAVIKc Eapapoyc.
Autn n oukeun dev Tpooipzetaia xphon aTTOa (ouptepiaaavovevwTwv taioiwv) e uivmuevn quokni kataoan,
aioThe npiakec n diavontikec IKavotntes, n eAAeIwn EPTeipiac kai yywons, kctoc ev exouv dothei Etnieyn noobnyiecs oxetikae t n xpon tn coukeun aTO aTOPO TOU iivai utteuvo ia tvn aoaiaia tou.)
Ta Tnaiia kipivetai aattapaitno va etiAIEIOVTai, eToi wote va diaaopaiaotei TTG de naiouv ME t ouakeun.
Σε περίπτωση ΠΟ ΠΟ ΠΟ ΠΟ ΠΟ ΠΟ ΠΟ ΠΟ ΠΟ ΠΟ ΠΟ ΠΟ ΠΟ ΠΟ ΠΟ ΠΟ ΠΟ ΠΟ ΠΟ ΠΟ ΠΟ ΠΟ ΠΟ ΠΟ ΠΟ ΠΟ ΠΟ ΠΟ ΠΟ ΠΟ ΠΟ ΠΟ ΠΟ ΠΟ καλώδιο τροφόδοσιας ἐχει καταοτραφεί, κρίνεαι απαραίπητον ανικαταοταθει από τον κατασκεύμαστή, τον αυτιπρόσωτο γία το σέρβις ἡ από ἀτομα με ανάλογη εξείδικεύη ἡτοι υσενα απόφεύχθει o κίνδύνος.
MnV aTIOeEETe e autn Tn oukeun ekpnKTiKec ouiec, OTWCS KOVsEpBec aepozo, E UFAEKTO TPOwOHTIKo aepio.
H ouakeun npetie va aioouvdetheta meta th xphon kai piv ekeoi tn ouvtnpon tou xphotn ot n ouakeun.
PpOeIbOToInoN: AiaTnpEiTe Ta avoiymuTa Eaepioou, oTo TepiBAnu ta nS oukeunc n otnv Evomegaatwuev noh, xwpic Eptodia.
IpoεiδoToin: Mn xρησιμοTIOEITE μnxavikéς Σασκεuεç ἀλλa μεσα για επιαχύνετη διαδικαία ατόμuξης, εκτός ατό Εκεινες τοῦ συνιατώνται από TOV κATAOκεuaθή.
PpOeIbOToiOn: Mny
Ipoεiδoποησι Μν xρησιμοτοίει τλεκτρικε συακεύες μεσα στα διαμερίσματα ατοθήκευός Tpωφιμων tns συακεύκε, εκτός av ειλι tou túτου πούνισα o kataσκεuaοής.
IpoεiδoTioiOn: Iapakaleiote va atoppipiete to uyeyio oupwva e touc totIKouc kavovc yiXpnoiopoToIOuV eUFAkTA aepia quanmuatoKai uuktiko.
IpoEIOToiOn: Kata tvv toTtoeTnON TNS OoKEuNC, BepaiwOte OTTO Kaawio TpOPOOoiac 6ev exi pviOeute i exei unooTe i nmuia.
PpOeIbOtioInoN: Mny TOTTOEITE TIOAIEC φopntc Tpiεc n φopntc TPOPOBOTIKc OUOKUEc OTIOW epcTnC uokueuC.
MnV xnooiotoeite kawda etektaaog n m yieuovc npoaapoyei (duo tipwv).
Kivduvo: Kivduvo TAYIDeuon TAIIOu. PIV TETAE To PAIO yEio n To katauuktn
-ApaipoeTtIgptec.
Aponote ta papi aon thoan touc, wote ta taiia va mnu mtopouv va avebouv eukola meoa.
To ypeio pentei va aotouvdetheta ato tny nynn aeepiknc tropodooia c priv ato tnv eykataaon tou eapntmuatoC.
TO yuktiokai to uikoc aipioou tou kukotteviou Tou xpnoiopoitai ia tn ouokeun eivai eupekta. Etoevc, kata n diauon tnc oukeunc, 0a npetie va pfuaoetai jaepia atto otioiahntote tnyn TUPKayiac kai va avakatai ano i idik n taieia avaktnongeavtioiin tiototoiOndiapopetikn atto tn diaeon me kaun, etoi wote va attopeuyetai n baa n oTo Tepiaalov n otioiahntote aaan baaen.
TTO TPOUTIO EN: Autn n ouokueun mTopei va xnpoiopoTOnthei ato Taia nAikia 8 etwv kai avw kai aToa u e meiwueves quaikec, aohtnpiakec n vontikec duvatotnte c n meiwevn eptieia kai yywn av exouv EITOTTEIA n obnyie c tou apopouu tn xpnon tnc ouokueun mc tpoTTO aospaln kai katavoouv touc kivduovc. Ta taia deV npTei va taizouu ne tn ouokueun. O kaapiooc kai n ouvtnpon oev th pertei va yivetai aTo Taiaia xwiic kantoia eTlBewn. Ta taiaia nAikiac atto 3 eW 8 etwv etttpETeai va foptowouv kai va ekpoptuwovuyuktikec ouakeuec.
Avaykaotiká, yia Tóptec n KattáKIA εpObiaoéva με KλeIbapiéc Kai KλeIδi, ta KλeIδi πpeTETI VA quAaoovtai paKi pià aTIO pAIDi kai oXI KovTa OTNV ψukTIkN OUKEun, TPOKEIμEvou va aTTOPEuxθTo KλeIδwma TAIOW EVTOs.
Ia va aioquyETn moLvON twv Tpoipmuw, aokouthetaTc aokouthetaC odnyie:
-
To avioiμa Tns TIOptac yia eya xoviká diaotnμata μTIOpei va TpokaAeoi OnpuavTKn auEnon Tns Θepuokpaiaoc tna Tnμata TNS oukeunc.
-
Kaθapiετε Tακικα επιφάνειες πού μπορουν σε ελθουν σε επαφή με τρόφιμα και προσβάσιμα συστήματα ατοχέτευούς.
-
kaapou vepou evxev exoux npnoiotointhetai yia 48 wpe. EeTluveTo ouotma uopeua nou eivai ouvdelevo me npoxn vepou evxev exei tpaanxtie vepo yi5 napee.. (onneiwon 1)
-Фuaaoote to wO Koac kai ta yapia oE katalannaa doxeia oTo yuyeio, eToi wote va unv epxovta oE tna n va otacouv oAa aAa TpOpiua.
-Ta diaepiopata do aetepwv kateuyuevwtpoipuwv eivai katalaa yia atothekeuon tpokateyuuevwv tpoipuwv, aTOnkveun n kataokun traywou kai ia trayakia (nmeiow 2)
-Ta 8iaepiopata evoc,duo kai tpiow aotepowv dev iivai katalannla yia tnv katauuqn qpeokwv tropipow. (onueiwn 3)
- Tia oukeuec xwpiic diaepioa 4 aotepowv: autn n yuktiikn ouokeuun dev eivai katalann yia katauuug npoiuw. (onmueiwn 4)
-Eav n yuktiKn oukeun npapeivei kevniya eyalxovikia diaatmuata, aTVEpyoToinote, aTOuSCTe, kaapioTe, oEvVwote kai apnoTe TIV npta avoixtnyia va atotpepsiTe Tnv avanttuugn PouXlaC meoa otn ouakeun.
Σημειωπ 1,2,3,4: Παρακαλείοτενα επιβεβαιωεόετενα iοχύει αναλογμε το εἰδος του διαμερίσματος σας.
Iia uovoun oukeun: n npouoa yuktiik ouokeun dev npoepietai ia xpno n wc Evtoixmuevn oukeun.
OToiaoNTOTAEAVtKaTaoaon n ouvtnpon Tov lauTTnpwv LED Tpoopicietai va
TpaymuToTOINeI aTcTov kataoKeuotn o avttpOswtoc Tou n ooiw c EeiikEuevo aToo.
To npov Tpoiov TEpiExi TEpiExi Tnyn WTc TAeNc EvpyeaKnc aTodooan (G)
1.2 Σημασία συμβόλων προεδοτοῖσης ασφαλείας

AutoTo EYxepidio Tepiexei TOnAevic OnmuavTke TAnpopoepiec yia TnV aOaAeia, oI OTOIE CIPETE i v Tnpouvtai ATO Toucs Xpntec.
1.3 IpoeiOtoinOn Oxetikα Ε TnV nAekptiKn Evépyeia

Mny tpaBATE TO KAALWDIO peuatoC otav tpaBATE TO BuOa Toupsiyeiou. Tepewote To buoqa KAI TpaBnTe TO aneueeiac aTNO Tnv Tpica.
- Ia va diaopaaiaote nvyopaan xpon, un baiTTeTo kawio tropoosiaqn npoioutoieTo kaowio tropoosiaq otav eivai KAteopapmuevnofapapuevo.

Xpnoiotoinote iia eikn piciKa n picia dev npetie va oipacetai e aaaaes nAektpikec ouakeuEc. To piC npETe va epoei e e TnAPnmu vnpokn0e npkayia.
Bebaiwtheta ot to nAektpodio yeiwns Tns pizac evai epoiaouevo aGIOIOTN YEIWON.

- ATEVEpyoTOnote Tn 3aBida Tou diappoeovToC aepiou KAI OTN auVexia avoiTe TIG TIOptc KaI Ta TnapaOpuae TEPiTTwn Diapponc aepiou KAI aAAAw EucAektwv aepiwv. Mny aTOouvDeTe To yuyio KAI aAAEC nAektpiKec Ouokuec, DEDOevou Oti OOTIVnpaC mTPOei va TpOKaEeTIUPKayia.

MnV npnoiopoTIOIE TNEKTPIeC OoKEuEc OTN KOpUph TCS OoKEuNC, EKTOG AV EIVaI TOU TUTou TIOU OUVIaO KATAOKEuaOTN.
1.4 Ppoeiooioeic yia xpno

Mny aTTOOuVAPUOLOYEITE n avakataoKEuaZeTe auOaipetaTo yuyEio kai mny kATAOTpeFEte To Kukawma uKTKIOH. H ouvtnpnon TnC OoKEUNC TpETIE VA VIVETAIATO EIDIKO.
To KATEOTpauevo Kaawio Tpoopooiaac Pteie va avtikataoataei atto ToV kataaekuaotn, to tna ouvtnponns n touc ouvaepic eTayeemuaties, Tookeivou va aTOpeuytheta o kivduvoc.

- Ta keva meta Tuw thupwuyuyeiw kai meta Tuw thupwkyou wmuotou yuyiou eivai mikpa, onneiwote oT dev TpeTIE va toTOneTe To xepi OACs oe autcTG TEPIOXc yia va aTTOpuyETn ouMTieon Tou daKTUou. Na iote npoeoiotav kEivete Tnv TOpTa Tou uyieuoyia va aTTOpuyETn TTwn avtkeueyv.
Mny ouaayetye TpOpiu n doxieia uypa xepia oTo aalauo katayng otav aeitoupyei to yuyeo, iikka mtaaika doxieia, ia va atopuyete TO kouottavnuata.
Mny EITIPTETE Oe Kaveva TAIvi EaioeAei n va avebEi oTo yuyeo. diaqopetikau TIOpei va TpOKnEi aouxiia n TTwn Tou Taiou.


Mny toIOtheite bapi avtkeiieva otyn kOpun tou yuyeiou, eewpovtaocn ta avtkeiieva evexetai va Teoouv otav kiaiouv n aoivouv tvntopatakai evexetai va TpoknOouv TuXaic BCABEC.
ByaTe To Buua Oe TEPiTTWOn DIAKOTnC PEuAtoc n KaAipouou. Mny ouvdeete ToV katauKtn Oe TPOPOOia ETVc TEVTAEITTuvY iA v a tTOOUVE Znuec OTov auTIEOTn Aovw diaoxikw EKKIVNOewy.
1.5 Ppoeiodoioeic yia toroetnon avtikeivwV

Mny toTIOtheite EueAekta, EKpnKTiKa, TITNIKA kai IDiaitepea diabPWTIKA avTIkeiueva oTo puyeio yia va aTTOPOUYETe cHmuiec OTO TPOiov n atuxnata KA tnc Fwntiac.
Mny TOnTOeTeIe EucAekTa avTkeiEv aKoVt aTo yuyEio ia va attoPuyET TIC TUPKayIc.

To yuyeio TPOOPIcETAI YIA OIKIAKn XpIaON, OTWg n aTTOHKeUON TPOPIuW.
DEV TPETEI VA XPOIOPTOIeITAI YIA AALouC OKOTOUCS, OTWg n aTTOHKeUON
aiuATOC, VAPKWTIKWv N BIOAOYIKWv TPOIOVTW K.ATI.

Mn pfauoote u npa, nto n aaloo uypo Tou pteixetai oe piacec n kaeioouc pteiktec oTo thaou uengtou yueiou. aoaiow os piacec noi Kaeiotoi pteiktec evexetai va otaoovlv oyw tnc katauugns yia va Tpokaeeouv zneic.
1.6 Avapopcs yia TnV Evepyieia
2 H σωστή χρήση του ψυείου
2.1 ToToθετηση

Pniv aTn xpnan, apaipote oA ta ulika ouokueaoiac,
ouupeiaauapovevwTwv aaiapiwbaoq,TWu aaiapiw appu Ka TAV
Taivuw eo aTO yuyio.
aepote Tnv TTPOOTATEUTIKn EmuBpavn OTIC TOpTEc KAI OTO Owua Toupsiyiou.

Kpatnoe paia ato tn eepotnta kai atopuyete to aeeon naiak o wMnV toTOnthetaite Tov katauuktn oe uypa n uypa epn yia va atopuyete tn okoupi an tneiwn ts movwtkns etipdaon.

To yuyeio toTtotheitei a eKaia aepicoevo eoTEPIKO xwpo. To edaopoc npetie va eivai ettEdo kai avektiKO (Tepiotpeptapeipotepa n dejia ia va puthetaoTe Tov tpoxioia 10oTcewon eav evai aotaheC).

O avwepocx wopoc tou yuyeiou pentei va eivai eyaalutepos aTo 30cm kai to yuyeio pentei va tototheiteia o toixo eaeuthetaqn anootaon eyaalutepn aTo 10cm yia va dieukoluei tn diaxuan tnc thepoutnac.
IpooulaeicipivtnyEykataaon:
Piv aTn Tnv EYkataoan n Tnv PPOaapoyn Twv EApntmuatw, PPETe va diaopaaioTe oTo yuyeo
aTOOuvEETai aTn Tnv npoxn pEuatoC.
PpTEIva AauBavovtai TPOpuAaeic via va aTTOpeuxtheta i TTwoTnc xEipoaBnC aTIO TNV TPOkAnon
OWATIKWbAabWv.
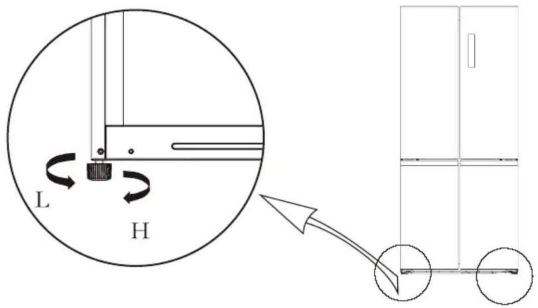
2.2 IooT#δωση πóδia
- Σχπμαπίκό δίαγραμα τού υους ποδιών

(H npapatavw eikova eivai mvo yia avapopa.H npaypatikn diapopwn tha egaptnthei aTTO quoiKo Tpoiov nTn dIomega antoTov diavouea)
- Diakaiacic TpoaaapoyiC:
a. TOnotheote ta Pioia pOc ta 8eia ia va oNKwOeTe to yueio.
β. Περιστρέψτε τα πόδια προς τα αριστερά γίαν χαμηλώσετο θυγεύσι.
y. Puθμiαte To δεξio kai To apiaTePo troδi με βαaŋ tic napattavw diδikaciec o opicovtio επιπeδo.
2.3 IópTa δiaβαθμiσn
- Σχηματικό δίαγραμμεύθουραμμιος της πόρτας
| Kataλoyoc εργαλείων που θα παρέχειο χρήστης | |
| πένσα | |

2.6 Σuβouλες εξοικούμησς ενέργειας
H ouakeun tha TpETTEI va Bpioketai aTnV TIO ZcOTN TEPiOxN TO dWpatiou, paKpi aTTO oukeue c Ttou TAPayouv EepoTNTa n aywoouc Eepavoc kai EeW aTTO aMeoo nlaik o Wc.
- ApnoTe Ta ZeToa TpOPIa va KpuWooov OE EepoKpaia domegaiou Tpv Ta TOTOnetnoe otn oukeun. H UTEPPOPTwAn Tng OuaKEUnc avayKaZei To aumTieTh nva AeiToupyNoEi TEPIOoTePo. Ta TpOPIa Tou TAYWouv TLOApya MTOpei va Xaoov Tnv TIOIOTnTa n va XaAaoov.
- Beβaiωθeite Οι exete tuliéi ta tpópiμa ωotá kai oteyvwote ta doxeia tpiv ta totoθetnoete otn ouakeun. Autó μεiωeɪη oukyévtpωn tiayetou oto eωtepiko tsouakeunç.
- O káðoc aTIOθnKεuONc TnC OUOKEUNc δEV TpETeI VA Eivai ETTevδμενoC με φuλλo aλoumviou, xapti με Kepi n Ḥαρι κouζivac. OI ΕΠΕVδUαEIC πaεμπOδiζουν Tny Kukλoφopia ψuxpou aépa, kaθιστωvτaç Tn OuaOKeUN λiyóTePO aTTOTEλεμaTIkN.
Opaywote kai etionmuave ta tpoipia yia va meiwote ta avoiypata twv thupw kai tic EKTetapeves avzntneic. Apaipote oaa otoixeia xpeiaeote tautoxpova kai kaeite nTv npota to ouvtouoTepo duvatov.
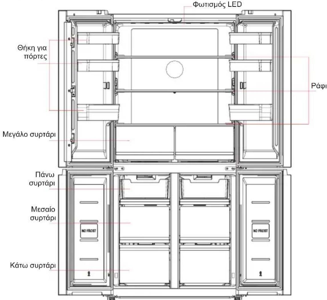
3 Doun kai λειουργίες
3.1 EApntjmuata kAeisia
(əλαμος ψύξης)

(H Tnapaivw Eikova ivai mvo yia avapopa. H Tpaymuikn diaoppwon 8a 8eaptn9ei aTo quaiko npoiov n Tn 8hawon aTTOV diavouea)
OaApos 念 uEns
O thalaoosuvtnpnoesivai katalaanlaoyia atothekeuon mias toikliaac ppoutw, laxavikw, trotuw kai aawtpoipuw TPOU KATAVAALWovTAtbpauxtpo0eua,TPOTEIVoEvoc xpvoc atothekeuoc ato 3 ews 5 npepc.
Ta trophi maayepaTOG dev TpETeI va toTOnTouVTa oTov thaofo uXgnc expi va yuxoov e Theepokpaia
Tatpofiuaouviotovta va oqpayicovtai TIVTOOTeINoov OTo puyeio.
Ta yuaiva paqia mTropouv va puthetaouv TPOC TA ETTAVW n TPOC ta KATUva loyiko TIOO aTTOKEUTIKOU Xwpou kai eukoAn xpno.
OaAposKatayuSns
O thalaoq katauuugc 0e xaunn thepukpaia mtoepi va kpatnoe ta tpoqma ppeoka yia eyaio xpvik o diaotnka kai xpnoipootieitai kupw cia tvn atohtkeuaon kateyuvevwtpojuvkai tn dnioupyia nayou.
O thalapoc katauusng eivai katalaanos yia nty aTOnkneuon kpeato, wapiw, pTalec puioi kai aaawv Tpopiuviou dev katavaawovtai bpaxutnpoega.
Ta Teuaxia KpeatoC kata TpoTunon diaipouvtai e iikpa KOpatia yia Eukoan. 2neWote ot ta TpOpiKaKatavaawovvta oTo xpOvo aTOnkkeuong.
Ta ouptapi, ta koutia trophiimv, ta papiia k.11. Tou totoetouvtai oupwva e t th eon otnv napatavw EIKOVA Eivai Ta TIO EVPEYIAK aTTOBOTIKA.
Otav to Tpoiov dokipacetai oupwa uoTO IEC 62552: 2007, oI ouvkec doikic eivai oEnc: Apaieote ta
eogia ouptapia tou xupou katauugcn kai metakivnote ta tnv wou optapia otu eogaia thon twv ouptapiw.
Tneiwn: H antohkeua npapa nolawv qayntuvkata nI aeiouyia meta a nV apxik ouvdean me nTv nAekpiK
evepyeia pnoei va einnpeaoe duoevcn tv eibpaon uusc Tou ueiou. Ta atrohkeuvea tropiqa dev
tppei va eptoiou vtng eoepa. h diaopetikka e intnpaeotei duoeewc kai n Eriopaon uqns.
3.2 Λειτουργίες

(H TnapaTavw Eikova Eivai mOvo yia avapopá. H TpaymuTkiδiauOpPωan θα εξαπηθει αnto φuoiKo Tpoiov n Tn δλωσn aTNO Tov diavouεa)
1. 0θóvη
① Eikovidio
② Eikoviδio katáψης
③ Eikoviio utepoepou/ Taywmuovou
④ Eikovidio εμφáviŋs Θερμokpαiας
⑤ Eikovidio φpouTuW / λαχαviKωv
⑥ Eikovidio kpeato
⑦ Eikovidio TtOToU
2. Koumtia eAevxou
A. Koupi aúgnons θεροκρασiας B. Koupi επιλογίς χωνης θεροκρασiας
C. Kouπi θερμοκρασίας κατω D. Kouπi ψύξης / ψύξης
E. Koupi μεταβλητις θερμοκρασίας F. Koupi κλειδωματος/ξεκλειδωματος
3. Odyies etoupyiac
1)Oθóvη
Kata nV nAektpodotnou yueiou, noovn evdeieewv th eevpyoioihe ouvoia yia 3 deutepoAeTTa. Ev Tw uetagu, to koudouvi Ekkivnnc koudouvi cki kai otn ouvexia n oovn ioepxetai otnv kavovikn oovn tns Aietoupyiac.
TnV npwn popa Tou o yivei xpnoan Tou uyeiou, n ppoenl eyn theepokpaia Tou aalapou Tou uyieou kai Tou aalapou nC katauuEgns Oeivai 4 ^ C / - 18^ avtoioxa.
OtauapouiaotioaIma, n oov npaviciTov Kwiko aalatoC (eite Tv eioevn aeida) kata tni diapkeia ts kavovikns leitoupyiac, n oovn deixvei tn puoiouevn eepokpaoia tou balaou ouvtnpanc n tou balaou yu.
YTO quiooayiKc ouhke, OE TepiTTwn Tou deu uoiotata kajia aeitoupya oTo Iaiio nC oovn c aoivua TnTIOPTAC EVTOC 30 DEUePOAEETWv, TOE n Oovn avei Kaeidowevn kai n Evdeig G aoboei.
2)Kεiδωμa/εκλεiδωμa
Kata nV kataoTaN 5EKEIeDwpatoc, TIEOTe TAPATETapeva To KOUPTI KAEIDWpatoc yia 3 DEUTEPoAETTA, EIOAYAVETe TNY kataoTaN KAEIDWpatoc.
To loyotutto 0bnvei kai akouyetaoipntnc, onpaivei oTIO nivakac oovnc evai kaeidomegaoc, TPOC TO TAPOV, dEv ivai duvatn eoapouyn tou kouuio.
TnV kataoan Kaeidwpatoc, TIEOTI napatetaeva TO koupti kaeidwpatoc, 3 eutepeaTTta, Eioayayete Tny kataotaon Eekaiidwpatoc,
To Aoyotutto Evpyoioietai kai akouyeta 0 bountnc, kati toun anpaivei TwG o nivakac obovnc napapevei Eekaiowtoc, kai autn tn otiyun, eivai duvatov va uoltonoiTe i aeitoupyia kouptiou.
3) Puθμiση θερμοκρασίας θαλαμου ψύξης
Pntne To koumti etiloync zwvns eepokpaoia cTEMP.SEeY i a v tlliegeTe tn zwn eepokpaoia pUthionc Tou thalauou yuexn cai, ot n ouvexia, TATnote A via va puthetaoet n eepokpaoia puthetaion tou aalou yuexn. To eupoc puthetaionc eepokpaoia c ia tov thaalapo uexn kuaiivetal ta 2C-8°C.
4) Púθμiαn θερμοκρασίας τοῦ θαλαμου ψύξης
Patnate To koupti eiloync wvns eepokpaoia cTEMP.SEe Tia va eiiégTe n wvntepokpaaigpuoiang Tou thalou pue ngkai, otn ouvexieia, patnote A via va puioaet n thepokpaaipuoiang tou aalou pue ng. To eupoc puoiionc eepokpaoia cia tv olaapo ungkuaivetai tae -24C-16°C.
5) Puθμiαn θερμοκρασίας θαλαμου εταβληntις θερμοκρασίας
Pntote To koumti eetaaanrnc 0epokpaoiac VARIO TEM. ia va puthetaene Tn 0epokpaoia pthetaiontou aalou, to eupocputhetaionc evai ppouta /lambdaikai, nto kai kpeac
6) Póthián λειουργίας
OTAV exi puthetai te i super Super refrigerating(auouyia uepuucns), n eppokpaaia tou aalapou uugc thpuoiae autouata oouc 2° C.
To uTep- poepo aTeevpyoitai yia 6 wepc.
Kata nTv Edo aTn Tn aeitoupyia ooutep uusnsuER TEPOKpaa Tou aIauou uuxgns Ta IIOATpeu autouatwG aTn eepokpaia, n otioa eixpuoiotei piv aTn aeitoupyia ouutep uusns.
OTAV exi puthetai te i super freezing(Leioupyia utepuugns) SUPER FRZ, n eepokpaoia tou aalau katauuegnta puthetai autouata otous -24° C.
Anouu e n e a 18 wpe c aeitoupyia c kai eoo o e a 24 wpe aeitoupyia.
Kata nTv Edo aTn Tn aeitoupyia utepuusgSLPER FRZ. nEepokpaoia Tou aaloukatayuusg thaetippeaei autouatwG TnV kaOpioevn Tpv ano tn aeitoupyia utepuusg cEepokpaoia.
ΣYMΦΩNA ME TO IEC62552: 2007, η κατασαη δοκιμής ἔχει ως ακολουθεί: Εξενησε εκ τών προτέρων τη λειούργia σουπερ ψύξης και περιμένετε ἔως ὄτου τὸν ψυείονν αῦτην κατασαση απόψμεξης και, εν συνεξία, τοῦτησε το περιχόμενο τής κατάψμεξης.
O éviiocto xpovo c antiouu ngs avepxetai otig 72 wpec kai o elambdaiocto xpovo avepxetai otig 12 wpec stouc 32^
PpOeVOpuOaon: 0aAaoosuvtnpnns4°C,0aAaoocKaTuayusn 18°C.
7) Λειουργία Σαββάτου
EeKaeiδwote To uyeyio kai, stn ouvexia, patnoTe to "V" kai To koumu Kieidwato TaTOxpoVa yia 4
deutepoaleTTa, ot n aeitoupyia zaoBato. Pntote oToIOBDHnTote TAnktpo yia eEso. Ze autnv tn aeitoupyia n
kataaon Tou uyeyiou:
a. O nivakaç ελέγχου της Θόνης κατα φώτα παραύνουν σβοστα καὶ χωρίς συναγερύ.
Σε περπτωη διακοπής ρεύματος, η στίγμία ταλίσουργίας θα κλείδωθεί και θα διαπηρηθεί μέχρι τὴν επιαν-ηλεκτροδότηŋ.
9)'Evδειξησφαλματος
Oi Tnapakatw TPOEIDOTIOINOEIC TOU EUPAVIIGovTAt OTNV OTHoN DEIXVouv AvTIOIXEC BAAEC OTo Suyeio. Av KAI TO SUyEIO MTOpei va ESAKOLouTEI VA EXI YUKTIKNI LEIToupyia aTTOHKeUONC ME TA KAOLoua ELaATTWmuata, O xPnOtns TPeTTIva ETIKOIuvwnoeI ME EVAV EIDIKO OUVTInpOnc YIA OUVTInpOn, Etai Wote VA EEAQPAIAOTei n BELAIOTN LEIToupyia Tns OuaKEUns.
| Kωδικοί σφαλμάτων: | Περιγραήσφάλματος |
| E1 | Βλάβη αἰσθητήρα θερμοκρασίας του θαλάμου συντήρησός |
| E2 | Βλάβη αἰσθητήρα θερμοκρασίας του θαλάμου κατάψμεξης |
| E3 | Σφάλμα αἰσθητήρα θερμοκρασίας θαλάμου μεταβλητής θερμοκρασίας |
| E4 | Αποτύχία του αἰσθητήρα απόψμεξης στου θαλάμο ψύξης |
| Kωδικοί σφαλμάτων: | Περιγραφή σφάλματος |
| E5 | Βλάβη κύκλου ανίχνευοῦς αἰσθητήρα απόψμεξης |
| E6 Σφάλμα επικοινωνίας | |
| E7 | Σφάλμα κύκλώματος ελέγχου κύκλοφορίας θερμοκρασίας |
| EH Σφάλμα αἰσθητήρα υρασίας |
4. Συντήροηκαι φροντίδα του υυγείου
4,1 Συνολικός καθαρισμός
- OI OKOVEc TIO AW aTTO yuyEIO KAI OTo EDAPOC TTPTTEI VA KAaPiGOTAI EYKaIPA YIA VA BEAATIWtTo aTTOLEAeua yuEgN KAI N ESOIKOVOpON EvpeyEiaC.
- Eλεγετε TAKΤΑΚA TO παρεμβυσμα TNC TIOPTAGYIA VA βεβαιωθεITE ΘΙδΕν UΓΔρχουν UΤΟλειμιΑΤΑ. Kaθαριοτη Π Φλάντα Α Κ ΠΟΡΑCTΑ Μ Εν Μαλακό Μανί, διαβρεγμένο Μ εσαπουνόνερο ἡ Μ ερααιωμένο αΤΟΡΑΤΑνΤΙΚό.
To eotepikotoupsiéiou 0a npetie va kaapizetai taktia yia va atopoeyetyai n oumn. - ATTEVEpyoToinate TnV TAPoxn PEOUATOC TPIV KAthetaTe To EoWtePiko, aqaipeote oA Ta TpOphi, TOTa, papi, ouptapia kTT.
Xpnaiotoinote eva maako navi ngouyyapi yia va kathetaiota to eawteipok toupsiyeiou, me duo koutalie ts ooutac ynojmuatc kai eva tetpaywvo zetot vepo. Katotiv xentlauve tvepok kai kathetaiota. Meta tov kathetaiopo, aovietnvtropta kai apnte tnv va oteyvwoei puaikataiv evpyottoioe tny tropofoia. - Iia Tepioxec Tou evai duokolo va kaqapiotov oTo yuyeio (oTWC Teva aavoutiC, keva n wvieC), ouviotatai va ta oouniTe TAKIKA eva maakopavi, maakn Bouptoa kTT. KAI otav xpeiaZetai, oe uovduaogoeipouevba Bonntikc epyaleia (oTWC LEITTEc paBdoeic) ia va diaaaaiotei ot i dev ouoomegaovtai moluuatake c hakpiakec ouiec ce autc tic Tepioxec.
Mny xnpoiouie taouvi, atoppuavtiko, okovn kaopiaou, kaopiotko 6kaosu Kaotau aTPOEVA TPOKAeouv oouc sto eowteipko tou yueiou n twy ouaevw tropimw.
Kaθapiote Tnlaio Tns pfaians, ta papi kai ta ouptapia eva maakotavi nou exi diabpaxei e 0aattouvovepo np aaiuveo atopputavtiko. Teyywote eva maakotavi n OTEyWOTe quiká. - ΣΚΟΥΙΤΙΟΓΕ ηΝΑ Εξωτερική Επιφάνεια του υμυείου μέ ενα μλακό πανί, βρεγμένον μέ σατιουνόνερο, απιρρυτΑντικό κ.ΑΤ., KAI ΠΤη συνέχεια ΟΚΟΥΙΤΙΟΓΕ
Mn xnpoiopoioite oK npes Boptoe, kaapc xaalubivec mTae, oumuivcs Boptoe, aeavtik (otwoc oovtokee), opayakovdiaute (otwcaakola, aketov, lai tavaac k.1).paoTo vepo, oiva n aalkaikavtikeiEv, kai to eowteipko. To paoTo vepo kai opiayakovdialutec otwo to bevzolio ptpeva napapoppwouuv na baiouuv ta ntaotikapepn.
Mny EeVte aeeuEiae ie aevpo n aaaa uypa kata tn diapkeia tou kaopou, ia va atropyete bpaxukukwma n va eTnpaeote Tnv nAekptikn movon eTa Tnv buoian.


Atooudelta to yuyeio aTo TnV TpiZa yia atouuEgN kai kaOapioo.
4.2 Kaθαρισμός Tou δίακου πόρτας

(H TnapaTavw EIKOva Eivai mOvo yia avapopa. H TpaymuTkiδiauoppwon θα εgaptnθei aTó to quoiKo TTpoiov nTn δnawon aTTOv diavouéα)
- 2uPwva Te BaoKATEUuvoc OTo Tnapakawxna, xpoiHOTIOHote KAI ta duo xepia yia va TIIEOTe To biKO KAII TIEOTE TO TPOC Ta TAVW, KAI OTN OUVEXIA MTOPEITE VA TO aopaipoeTE.
- Meta to TIAUIO TOIou biokou Tou exei apaipethetai, pTOpEITE va puOmuTe To Uyoc EYkataaTaNG tou OUIPwva TE tC attainoeic oac.
4.3 AToCuIgN
To yuyeio evai kataakeuaapevo e bao n tv apx n ts yueng tou aepa kal ouvntw diatheiautopatn Aetoupyia atouyuec. O TAYETOS TNO xynaricietai loyow aaayns nTNS ETOXNG n TNS 0epuokpaaic mtopei ETIONS va apaipoei ie to xepi anoovdeovtac tn oukeun anto tv npopoosia peupatoqn ooutizovtag eiaoteyn tteeta.
4.4 Xwpi etoupyia
- Diakotn peuatoC: Se Tepiwn diakottnc peuatoC, aoka ki av eivai to kalokapi, ta tpoqmu poea otoukeun mtopoov va biatnpnoov yia apketc wpec. kata n diapkeia ncs diakotn c peuatoC, o xpovoi yovuac TNC TIOAC TIOEYVA HEIWouy KAI YU NUYTTOAETNOV POEA KA TOOPIA OTN OuaKeun.
- Makpoxpvn μn xpn: H ouakeun aTouuvdeetai kai otuuvexia kaepizetai. Tote oi npTeC npapauevou avoikte yia va atotpewovv tyn oumn.
Kivn: Piv metakivnTei touyeo, aapieote ola ta avtkeieeva ato peda, otepewote ta yuaiiva Xwpiaata, tn thkn laxavikov, ta ouptapia thaalauou katayuenk. t. peiTE Touc TIOE6 opiovTOWNS KIEOTE TIG TIOPECS KAI OTEPEWOTI G TEAVIA. KATA TN METAKIVNO, n oukeun dev TPETTE va tottoetetra avantoda h opizovria n va doveitai. n kian kata tn diapkeia nC kivno7ev PPETTE VA UTPEBqivei Touc 45.
H oukeun npetie va aeitoupye iuvexwsc moic ekivnoi. Evik, n aeitoupyia tns 4 oukeun dev diaokotetai. diapopetikn diapkeia zwns mtopei va eivai meiwevn.
5 Eπiλuση προβληματων
5.1Mtopeite va tpootaaetae va uoepeoai ta tnapakatw atla TPOBAAuta.
Eav mTopoov va ETTAUoov, ETIkoivwVnoTe e To Tmu a Eutnpetnnc TELaTuWv.
| Aπotuxημένη λειούργία | Ελέγξετα Αν η συοκεύη εἶναι συνδεδεμένη σε ρεύμα έένη πρίζα βρίσκεται καλα σε επαρή Ελέγξετεάνη τάση εἶναι πολύ χαμηλή Ελέγξετα εχει διακόπει ι τροφόδοσα ρεύματος έέχουν σταματήσει τα μερικάκλωματα | |
| Μρωδία | Τα σομηρά τρόφισα πρέπεινει αέναι καλά τυλιμένα Ελέγξετεάνη UCTAPXει σάΠΟ φαγητό Καθαρίσετο ΤΕΩTEPICKO TÜU ΜΥEΙΟU | |
| Makροχρόνία λειούργία του συμτίεαιή | Η μαρά λειούργία του μυγείου εἶναι φυσιλογούκίη Καλοκαίρί Οάνη Θερμοκρασία Περβάλλοντος εῖναι υμηλή Δεν συνιστάλι η διαπρηση Μεγάλουν Φαγητότινιν φαγητόι τAUDÓXPVA Εαγητόθα Πρεπείνα κριώσει προτού ΤΟΤθετηθεί Πθη συακεύη Πθη Πθη Πθη Πθη Πθη Πθη Πθη Πθη Πθη Πθη Πθη Πθη Πθη Πθη Πθη Πθη Πθη Πθη Πθη Πθη Πθη Πθη Πθη Πθη Πθη Πthetaίσει Στοῦ Στοῦ Στοῦ Στοῦ Στοῦ Στοῦ Στοῦ Στοῦ Στοῦ Στοῦ Στοῦ Στοῦ Στοῦ Στοῦ Στοῦ Στοῦ Στοῦ Στοῦ Στοῦ Στοῦ ΣτοilhaΣτοῦ ΣτοilhaΣτοilhaΣτοilhaΣτοilhaΣτοilhaΣτοilhaΣτοilhaΣτοilhaΣτοilhaΣτοilhaΣτοilhaΣτοilhaΣτοilhaΣτοilhaΣτοilhaΣτοilhaΣτοilhaΣτοilhaΣτοilhaΣτοilhaΣτοilhaΣτοilhaΣτοilhaΣτοilhaΣτοilhaΣτοilha Ελέγξετε Αν η Μεγείουν Μεγείουν Μεγείουν Μεγείουν Μεγείουν Μεγείουν Μεγείουν Μεγείουν Μεγείουν Μεγείουν Μεγείουν Μεγείουν Μεγείουν Μεχείουν Μεχείουν Μεχείουν Μεχείουν Μεχείουν Μεχείουν Μεχείουν Μεχείουν Μεχείουν Μεχείουν Μεχείουν Μεχείουν Μεχείουθε Ελερμήσει Ελερμήσει Ελερμήσει Ελερμήσει Ελερμήσει Ελερμήσει Ελερμήσει Ελερμήσει Ελερμήσει Ελερμήσει Ελερμήσεί Ελερμήσει Ελερμήσει Ελερμήσει Ελερμήσει Ελερμήσει Ελερμήσει Ελερμήσει Ελερμήσει Ελερμήσει Ελερμήσεɪ Ελερμήσει Ελερμήσει Ελερμήσει Ελερμήσει Ελερμήσει Ελερμήσει Ελερμήσει Ελερμήσει Ελερμήσει Ελερμήσεú Ελερμήσει Ελερμήσει Ελερμήσει Ελερμήσει Ελερμήσει Ελερμήσει Ελερμήσει Ελερμήσει Ελερμήσει ΕλερμήσεIU Ελερμήσει Ελερμήσει Ελερμήσει Ελερμήσει Ελερμήσει Ελερμήσει Ελερμήσει Ελερμήσει Ελερμήσει Ελερμήσε IU Ελερμήσει Ελερμήσει Ελερμήσει Ελερμήσει Ελερμήσει Ελερμήσει Ελερμήσει Ελερμήσει Ελερμήσει Ελερμήσεiu Ελερμήσει Ελερμήσει Ελερμήσει Ελερμήσει Ελερμήσει Ελερμήσει Ελερμήσει Ελερμήσει Ελερμήσει ΕλερμήσεⅡ Ελερμήσει Ελερμήσει Ελερμήσει Ελερμήσει Ελερμήσει Ελερμήσει Ελερμήσει Ελερμήσει Ελερμήσει Ελερμήσε | |
| To φως δεν ανάβει | Ελέγξετα Αν η συοκεύη εἶναι καλά τυλιμένα Ελέγξετεάνη Χτίατη Θερμοίσει Καθίασι Ελέγξετεάνη Χτίατη Θερμοίσει Καθίασι Ελέγξετεάνη Χτίατη Θερμοίσει Καθίασι Ελέγξετεάνη Χτίατη ΘερμοíΣτά | |
| Oι πότες δεν μτορουν vα κλέίσουν σωστά | Η πότа Εἶναι καλλημένη Ατό Σωσκεύασίες τροφίμων ἀχουν τότοθετηθεί Απά Παθέρá Ελέγξετεάνη Χτίατη Θερμοίσει Καθίασι Ελέγξετεάνη Χτίατη Θερμοίσει Καθίασι Ελέγξετεάνη Χτίατη ΘερμοúΣτά | |
| Δυνατόση Αποράτης δεν εἶναι σφίμηνη | Αφαρέστα Εώνη σωματα Απησρόθα στό Στρότας Εθρμανείουν Καβα Απησρόθα χαμητό Καθίασι Ελερμανείουν Καβα Απησρόθα χαμητό Καθίασι Ελερμανείουν Καβα Απησρόθα χαμητό Καθίασι Ελερμανείουν Καβα Απηsigma Απησρόθα χαμητό Καθίασι Ελερμανείουν Καβα Απησρόθα χαμητό Καθίασι Ελερμανείουν Καβα Απησρόθα χαμητό αγματα Απησρόθα χαμητό Καθίασι Ελερμανείουν Καβα Απησρόθα χαμητό αγματα Απησρόθα χαμητό αγματα Απησρόθα χαμητό αγματα Απησρόθα χαμητό αγματα Απησρόθα χαμητό αγματα Αξασι Ελερμήσει Ελερμήσει Ελερμήσει Ελερμήσει Ελερμήσει Ελερμήσει Ελερμήσει Ελερμήσει Ελερμήσει Ελερμήσeι Ελερμήσει Ελερμήσeι Ελερμήσeι Ελερμήσeι Ελερμήσeι Ελερμήσeι Ελερμήσeι Ελερμήσeι Ελερμήσeι Ελερμήσeι Ελερμήσeι Ελερμήσει Ελερμήσeι Ελερμήσeι Ελερμήσeι Ελερμήσeι Ελερμήσeι Ελερμήσeι Ελερμήσeι Ελερμήσει Ελερμήσeι Ελερμήσει Ελερμήσeι Ελερμήσeι Ελερμήσeι Ελερμήσeι Ελερμήσeι Ελερμήσeι Ελερμήσει Ελερμήσeι Ελερμήσeι Ελερμήσει Ελερμήσeι Ελερμήσeι Ελερμήσeι Ελερμήσeι Ελερμήσeι Ελερμήσeι Ελερμήσει Ελερμήσει Ελερμήσeι Ελερμήσει Ελερμήσeι Ελερμήσeι Ελερμήσeι Ελερμήσeι Ελερμήσeι Ελερμήσει Ελερμήσeι Ελερμήσeι Ελερμήσeι Ελερμήσει Ελερμήσeι Ελερμήσeι Ελερμήσeι Ελερμήσeι Ελερμήσeι Ελερμήσει Ελερμήσeι Ελερμήσει Ελερμήσeι Ελερμήσει Ελερμήσeι Ελερμήσeι Ελερμήσeι Ελερμήσeι Ελερμήσeι Ελερμήσει Ελερμήσει Ελερμήσeι Ελερμήσeι Ελερμήσeι Ελερμήσeι Ελερμήσeι Ελερμήσeι Ελερμήσeι Ελερμήσeι Ελερμήσει Ελερμήσει Ελερμήσeι Ελερμήσeι Ελερμήσει Ελερμήσeι Ελερμήσeι Ελερμήσeι Ελερμήσeι Ελερμήσeι Ελερμήσει Ελερμήσει Ελερμήσει Ελερμήσeι Ελερμήσeι Ελερμήσeι Ελερμήσeι Ελερμήσeι Ελερμήσeι Ελερμήσeι Ελερμήσει Ελερμήσει Ελερμήσει Ελερμήσeι Ελερμήσει Ελερμήσeι Ελερμήσeι Ελερμήσeι Ελερμήσeι Ελερμήσει Ελερμήσeι Ελερμήσeι Ελερμήσeι Ελερμήσeι Ελερμήσει Ελερμήσeι Ελερμήσeι Ελερμήσει Ελερμήσeι Ελερμήσει Ελερμήσeι Ελερμήσeι Ελερμήσeι Ελερμήσeι Ελερμήσει Ελερμήσeι Ελερμήσει Ελερμήσeι Ελερμήσeι Ελερμήσει Ελερμήσeι Ελερμήσeι Ελερμήσeι Ελερμήσeι Ελερμήσει Ελερμήσeι Ελερμήσει Ελερμήσει Ελερμήσeι Ελερμήσeι Ελερμήσeι Ελερμήσeι Ελερμήσeι Ελερμήσeι Ελερμήσει Ελερμήσeι Ελερμήσει Ελερμήσει Ελερμήσeι Ελερμήσει Ελερμήσeι Ελερμήσeι Ελερμήσeι Ελερμήσeι Ελερμήσει Ελερμήσει Ελερμήσeι Ελερμήσeι Ελερμήσeι Ελερμήσει Ελερμήσeι Ελερμήσeι Ελερμήσeι Ελερμήσeι Ελερμήσει Ελερμήσει Ελερμήσeι Ελερμήσει Ελερμήσeι Ελερμήσει Ελερμήσeι Ελερμήσeι Ελερμήσeι Ελερμήσeι Ελερμήσει Ελερμήσει Ελερμήσει Ελερμήσeι Ελερμήσeι Ελερμήσει Ελερμήσeι Ελερμήσeι Ελερμήσeι Ελερμήσeι Ελερμήσει Ελερμήσει Ελερμήσει Ελερμήσει Ελερμήσeι Ελερμήσeι Ελερμήσeι Ελερμήσeι Ελερμήσeι Ελερμήσeι Ελερμήσει Ελερμήσει Ελερμήσει Ελερμήσει Ελερμήσeι Ελερμήσει Ελερμήσeι Ελερμήσeι Ελερμήσeι Ελερμήσει Ελερμήσeι Ελερμήσeι Ελερμήσeι Ελερμήσει Ελερμήσeι Ελερμήσει Ελερμήσeι Ελερμήσeι Ελερμήσeι Ελερμήσει Ελερμήσeι Ελερμήσeι Ελερμήσει Ελερμήσeι Ελερμήσeι Ελερμήσει Ελερμήσeι Ελερμήσeι Ελερμήσeι Ελερμήσει Ελερμήσeι Ελερμήσeι Ελερμήσει Ελερμήσει Ελερμήσeι Ελερμήσeι Ελερμήσeι Ελερμήσeι Ελερμήσeι Ελερμήσει Ελερμήσeι Ελερμήσeι Ελερμήσει Ελερμήσει Ελερμήσeι Ελερμήσει Ελερμήσeι Ελερμήσeι Ελερμήσeι Ελερμήσει Ελερμήσeι Ελερμήσει Ελερμήσeι Ελερμήσει Ελερμήσeι Ελερμήσει Ελερμήσeι Ελερμήσeι Ελερμήσeι Ελερμήσει Ελερμήσeι Ελερμήσει Ελερμήσει Ελερμήσeι Ελερμήσeι Ελερμήσει Ελερμήσeι Ελερμήσeι Ελερμήσeι Ελερμήσει Ελερμήσeι Ελερμήσει Ελερμήσει Ελερμήσει Ελερμήσeι Ελερμήσeι Ελερμήσeι Ελερμήσeι Ελερμήσeι Ελερμήσει Ελερμήσeι Ελερμήσει Ελερμήσει Ελερμήσει Ελερμήσeι Ελερμήσει Ελερμήσeι Ελερμήσeι Ελερμήσeι Ελερμήσει Ελερμήσes Ελερμήσeι Ελερμήσeι Ελερμήσeι Ελερμήσeι Ελερμήσeι Ελερμήσeι Ελερμήσeι Ελερμήσeι Ελερμήσeι Ελερμήσeɪ Ελερμήσeɪ Ελερμήσeɪ Ελερμήσeɪ Ελερμήσeɪ Ελερμήσeɪ Ελερμήσeɪ Ελερμήσeɪ Ελερμήσeɪ Ελερμήσeɪ Ελερμήσe | |
| Συμτύνων Εκαίβατη | H συντίβατη Εκαίβατη Εκαίβατη Εκαίβατη Εκαίβατη Εκαίβατη Εκαίβατη Εκαίβατη Εκαίβατη Εκαίβατη Εκαίβατη Εκαίβατη Εκα½ητη Εκα½ητη Εκα½ητη Εκα½ητη Εκα½ητη Εκα½ητη Εκα½ητη Εκα½ητη Εκα½ητη Εκα½ητη Εκα½ητη Εκα½ητη Εκα½ητη Έκα½ητη Έκα½ητη Έκα½ητη Έκα½ητη Έκα½ητη Έκα½ητη Έκα½ητη Έκα½ητη Έκα½ητη Έκα½ητη Έκα½ητη Έκα½ητη Έκα½eta |
Nivakac 1 Klaipatikn kaon
| Kλάση: Σύμβολo | Εύρος θερμοκρασίας περιβάλλοντος°C | |
| Εκτέταμένο εύκρατο SN | + 10 μέχρι + 32 | |
| Εύκρατο N + 16 μέχρι | + 32 | |
| Υποτροπιό ST + 16 μέχρι | + 38 | |
| Τροπιό T + 16 μέχρι | + 43 |
EKTETaEvn Eukpatn: n napouo a yuktiK oukeun TpoopiTeai va xpnoiotointhetai e
θερμοκρασες περιβαλλοντος από 10 °C ἐως 32 °C'.
εύκρατο: ἡ συγκεριμένη συσκεύη υύξης προσρίζεταιν αχρησιμοποίειται οεθερμοκρασίες περβάλλοντος μεγεθους από 16 °C εως 32 °C;
YITOTPOTTIK: n ouyekpiévn ouokun yuεng πpooipεtai va xpnoiopoioietai e θερμokpaiec TEPiβαλλovtoc μeyθouc aTIO 16°C εως 38°C;
TpoTIk: n ouykepiEvn ouakeun yuEeN TPOOPIcEaIva xnpoiopoioieiT aE 0epuokpaoic TepibetaAovtoc eYeOouc aTIO 16 ^ C 43 ^ C
Eiiká yia otavap:
Ta EIKoviZoEvA aVTaALakTikA OTov TApakatw TIVaka mTopouv va aTOKnOouv aTo kavai
| Παραγελθέν μέρος | Προμηθευθέν από | Ελάχισος χρόνος Που αἰταιίαι γία Σην προμήθεία |
| θερμοστάτες Εταγγελματίκο προσωτικό συντήρησός | Touλάχισον 7 ἀπη αφού to τελευταιό μοντέλο προβλήθηκε στην αγορά | |
| αίαθητήρες Εταγγελματίκο προσωτικό συντήρησός | Touλάχισον 7 ἀπη αφού to τελευταιό μοντέλο προβλήθηκε στην αγορά | |
| θερμοκρασίας | Touλάχισov 7 ἀπη αφού to τελευταιό μοντέλο προβλήθηκε στην αγορά | |
| πλακέτες TUTUΦέVων KUKλωμάτων | Touλάχισov 7 ἀπη αφού to τελευταιό μοντέλο προβλήθηκε στην αγορά | |
| πηγές φωτός Εταγγελματίκο προσωτικό συντήρησός | Touλάχισov 7 ἀπη αφού to τελευταιό μοντέλο προβλήθηκε στην αγορά | |
| χερολαβές πόρτας | Touλάχισov 7 ἀπη αφού to τελευταιό μοντέλο προβλήθηκε στην αγορά | |
| μεντεσέδες πόρτας | Touλάχισov 7 ἀπη αφού to τελευταιό μοντέλο προβλήθηκε στην αγορά | |
| δίσκοι | Touλάχισov 7 ἀπη αφού to τελευταιό μοντέλο προβλήθηκε στην αγορά | |
| καλάθία | Touλάχισov 7 ἀπη αφού to τελευταιό μοντέλο προβλήθηκε στην αγορά | |
| περιβλήματa πόρτας | Touλάχισov 10 ἀπη αφού to τελευταιό μοντέλο προβλήθηκε στην αγορά |
H ouvtouoepn Tepiooc yia tv npoxn avtaaaktkwv tnt v wanon eivai
Ayattnté katavaawtn
- Eav eTIOUeIte va eTIOPTpeTe n va aVTIKATAOTnOeTo TPOIOV,ETIKoIVWvHote μE To KAATAOTnua aTO oTTou to ayopaoate.
(Θυμηθείνενα φέρετε μαζισς την απόδειξη πληρωμής)
- Eáv to προίν σας χαλάσει και πρέπειν αετισκεύαστεί, ετικοίνωνόσεμε τον πάροχο uπηρεσιών μετά την πώληση.
Oi Tnpoopiec movteau otn Bao n 8e0evwv Tou PoiovtoC, KaWc Kai To avayvwpiTko movteau, mnpouv va anfouv meoew evoc diaiktuakou ouvedoou Tou apwetai e evav Kwiko QR, eav utapxei, otnv tiketaevpiaikacn atodooanc Tou PoiovtoC.
Notice-Facile