PDK-FS06 - Support pour appareil électronique PIONEER - Notice d'utilisation et mode d'emploi gratuit
Retrouvez gratuitement la notice de l'appareil PDK-FS06 PIONEER au format PDF.
| Type de produit | Enceinte Bluetooth portable |
| Caractéristiques techniques principales | Technologie Bluetooth 5.0, son stéréo, résistance à l'eau IPX7 |
| Alimentation électrique | Batterie rechargeable lithium-ion |
| Dimensions approximatives | 20 x 10 x 10 cm |
| Poids | 1,2 kg |
| Compatibilités | Compatible avec tous les appareils Bluetooth |
| Type de batterie | Batterie lithium-ion |
| Tension | 5V |
| Puissance | 20W |
| Fonctions principales | Lecture de musique, appels mains-libres, connexion multipoint |
| Entretien et nettoyage | Essuyer avec un chiffon doux, ne pas immerger dans l'eau |
| Pièces détachées et réparabilité | Disponibilité limitée des pièces, consulter le service après-vente |
| Sécurité | Ne pas exposer à des températures extrêmes, éviter l'humidité excessive |
| Informations générales utiles | Garantie de 2 ans, support technique disponible |
FOIRE AUX QUESTIONS - PDK-FS06 PIONEER
Questions des utilisateurs sur PDK-FS06 PIONEER
0 question sur cet appareil. Repondez a celles que vous connaissez ou posez la votre.
Poser une nouvelle question sur cet appareil
Téléchargez la notice de votre Support pour appareil électronique au format PDF gratuitement ! Retrouvez votre notice PDK-FS06 - PIONEER et reprennez votre appareil électronique en main. Sur cette page sont publiés tous les documents nécessaires à l'utilisation de votre appareil PDK-FS06 de la marque PIONEER.
MODE D'EMPLOI PDK-FS06 PIONEER
Nous vous remercions d'avoir procéder à l'achat d'un produit Pioneer.
Veuillez dire attentivement ce Mode d'emploi pour savoir comment opérer correctement et en toute sécurité votre modele.
Nous vous conseillons de conserver soigneusement de Mode d'emploi dans un endroit sur et à proximite afin de pouvoir vous y reférer le cas échéant.
AVIS IMPORTANT
Veuillez prendre note du numero du modele et du numero deserie de cet équipement ci-dessous.
N^ du modele.PDK-FS06 N^ de série.
Conservez ce numero pour pouvoir l'utiliser ultérieurement.
AVERTISSEMENT
Pour éviter les risques d'incendie, ne place aucune flamme neue (telle qu'une bougie allumée) sur
l'appareil.
D3-4-2-1-7a_A_Fr
Installation
- Veuillez consultier votre revendeur si vous rencontres des difficultés lors de l'installation.
- Pioneer n'assumera aucune responsabilité pour tout dommage résultat d'une installation incorrecte, d'une utilisation incorrecte, une modification de ce produit ou encore de désastres naturels.
Table des matières
Attention 9
Listedespiecesetéquipements inclus 10
l'assemblage du dispositif 11
Prévenir le basculement et la chute de
I'equipement 14
Spécificités 15
Scheme indiquant les dimensions 15

ATTENTION
Ce symbole indique un danger ou une pratique dangereuse risquant de compromètre la sécurité qui peut provoquer des blessures ou des dégâts matériels.
Attention

Ce produit est un support de base unconçu exclusivement pour les écrans d'affichage plasma (PDP-506XDE / PDP-506FDE / PDP-506HDG / PDP-5060HD / PDP-436XDE / PDP-436FDE / PDP-436HDG / PDP-4360HD / PRO-1130HD / PRO-930HD) fabriqués par la société PIONEER. Veuillez notes que ce support de base n'a pas été unconçu pour être utilisé avec d'autres équipements. Pour de plus amples informations, veuillez contacter le revendeur où vous avez acheté votre écran d'affichage.
Veuillez ne pas installer le produit d'une manière autre que cette spécifiée ou modifier ce dernier. En outre, veuillez ne pas utiliser ce support pour un écran d'affichage plasma autre que ceux pour lesquels il a été créé et ni le modifier ou l'utiliser à des fins autres que celles pour lesquelles il a été créé.
Une installation incorrecte est extrémement dangereuse car celle-ci peut provoquer le basclement du support ou un autre accident.
Emplacement d'installation
- Lorsque vous choisissez l'emplacement où sera placé le support de base, veillez à seLECTIONner un endroit avec une surface de base suffisamment solide pour supporter le poids du support de base et de l'écran d'affichage plasma (Le poids du produit est indiqué sur le tableau figurant à la page 15.)
- S'assurer que l'emplacement d'installation est bien plan et à niveau et prendre toutes les précautions utiles et indispensablees lors de l'installation du support afin de veiller à ce que le poids soit bien uniformément réparti.
- Selon le type de surface sur lequel sera place le support de base, les pieds pourront eventuellement laisser des traces sur ladite surface et ceci devra être prendre en considération lorsque l'on seLECTIONnera l'endroit où sera installé le support de base.
- Ne pas installer le support à l'extérieur, à proximé d'une source thermale ou sur la plage.
- Ne pas installer le support à un endroit où il pourrait être soumis à des choses ou à des vibrations.
Assemblage et installation
- Assembler le support conformément aux instructions concernant l'assemblage et fixer solidement toutes les vis aux endroits prévus à cet effet.
On a constaté des cas où des accidents imprévus sont survenus (endommagement de l'équipement, chute, etc.) après l'installation de l'écran d'affichage parque le support n'avait pas été installé comme indiqué dans les instructions. - L'écran d'affichage doit toujours être installé au moins par deux personnes afin de veiller à ce qu'il soit installé en toute sécurité.
- Avant de procéder à l'installation,mettre l'écran ainsi que les équipements périhériques hors tension en coupant l'alimentation, puis retarder la prise du cable d'alimentation électrique de la prise femelle murale.
Apre's installation
- Ne jamais s'appuyer sur l'écran d'affichage plasma ou appliquer une forte pression sur le support de base.
- Il convient de prévenir les accidents causés par la chute du produit en prénant des mesures fiables pour éviter le basculement et la chute (Voir page 14).
- Ne pas déplacer le support de base avec l'écran d'affichage plasma, etc. fixé sur celui-ci.
Liste des pieces et équipements inclus
Veuillez you assurer que toutes les pieces et tous les équipements indiqués ci-dessous sont bien contenus dans le carton avant de commencer à monter le support de base.
-
Veuillez prendre note qu'un tournevis de type Philips (non inclus avec les pieces) pour vis à empreinte cruciforme est nécessaire pour assembler le support de base.
-
Support de base x 1 unité

Couvercle de base Arriere x 1 unité

- Butée d'arrêt de la colonne de support x 2 unités
- Support MR x 1

- Support d'étagère Gauche x 1 unité

- Support d'étagère Droite x 1 unité

Couvercle de base Gauche x 1 unité

Couvercle de base Droite x 1 unité

- Vis courtes à six pans (M8 x 35 mm : noir) x 4

- Vis longues à six pans (M8 x 60 mm : argentée) x 2

- Vis (M5 x 10 mm) x 10 unités

- Vis (M4 x 6 mm) x 8 unités

- Panneau étagère x 1 unité

- Colonne de support x 2 unités

- Clé hexagonale x 1 unité (Côté opposé 6 mm pour utilisation M8)

Mode d'emploi (ce document) x 1 exemplaire
Instructions concerning l'installation et l'assemblage du dispositif
(Modèle d'écran de 43 pouces comme indiqué sur la figure)
1 Fixer les colonnes de support au support de base.
Tableau de l'emplacement de la colonne de support et des pieces en fonction de chaque écran
| Écran à plasma | PDP-506XDE PDP-506FDE PDP-506HDG PDP-5060HD PRO-1130HD | PDP-436XDE PDP-436FDE PDP-436HDG | Écran à plasma unique | ||
| PDP-4360HD PRO-930HD | — | ||||
| Emplacement des hauts- parleurs | Côté | Côté | Dessous | - | |
| Emplacement de la colonne du support | En bas | En bas | En haut | Au milieu | |
| Modalité d'assemblage | A | A | B | C | |
| Pièces utilisées | Butée d'accrit de la colonne du support | inutile | inutile | position haute | position basse |
| Vis (M5 x 10 mm) | - | - | 2 | 2 | |
| La fixation de l'écran à plasma se fait avec des vis à six pans par le dessus | court x 2 | court x 2 | court x 2 | Long x 2 | |
| La fixation de l'écran à plasma se fait avec des vis à six pans par le dessous | court x 2 | court x 2 | court x 2 | court x 2 | |
| Pièces non utilisées | Butée d'accrit de la colonne du support | 2 | 2 | - | - |
| Vis (M5 x 10 mm) | 2 | 2 | - | - | |
| Vis à six pans | Long x 2 | Long x 2 | Long x 2 | court x 2 | |
La procédure d'installation varie en fonction du type et de la forme de l'écran à plasma qui doit être monté. Veuillez procédé à l'installation en suivant soit la procédure A, soit la procédure B, soit la procédure C.
Remarque
Veillez à bien ranger la butée d'arrêt de la colonne du support non utilisée, les vis, les boulons, la clé hexagonale et le mode d'emploi au même endroit.
A Lors de l'installation du PDP-506XDE / PDP-506FDE / PDP-506HDG / PRO-1130HD / PRO-930HD / PDP-5060HD ou lors de l'installation des hauts-parleurs sur les cotés du PDP-436XDE / PDP-436FDE / PDP-436HDG
- Introduire les deux colonnes de support dans le support de base et lesmettre en place en les immobilisant avec les vis (M5× 10mm) .8 emplacements)
- Installer chaque colonne de support de telle sorte aue le cote avec le symbole de la flèche verticale ↑ soit vers l'avant et l'extrémité avec le couvercle en plastique d'extrémité pointée vers le haut.

B Lors de I'installation des haut-parleurs à la base inférieure de I'écran d'affichage plasma
Placez les butées d'arrêt de la colonne du support dans les fentes supérieures prévues à cet effet à l'arrière du support et fixez-les à l'aide des vis (M5 x 10 mm). (à deux emplacements à gauche et à droite)
La même chose s'applique à la méthode d'installation de la colonne (A)


Lors de l'installation de I'écran à plasma unique
Placez les butées d'arrêt de la colonne du support dans les fentes inférieures prévues à cet effet à l'arrière du support et fixez-les à l'aide des vis (M5 x 10 mm). (à deux emplacements à gauche et à droite).
La même chose s'applique à la méthode d'installation de la colonne A.

2 Fixer l'écran d'affichage plasma sur la colonne de support.
Placer les colonnes de support du support dans les fentes au centre de la partie inférieure puis les insérer lentement et directement dans les fentes. Veiliez très soignement à ne pas insérer les colonnes de support du support dans une quelconque partie de l'écran d'affichage plasma autres que les fentes prévues à cet effet. Veuillez notes que si vous faites cela vous risquez d'endommager l'écran d'affichage ou les entrées ou encore le support. Si l'écran d'affichage plasma est équipé de poignées, il est généralement préféable de tener l'écran avec ses poignées lorsqu'on l'installe à la colonne de support.


Lorsque I'on installe I'écran d'affichage, veuillez procédé au moins avec une autre personne aux opérations de montage du dispositif.
Veillez à ne pas Coincer vos doigts entre l'écran d'affichage et la colonne de support.
3 Utilisez les vis courtes ou les vis longues à six pans pour fixer l'écran à plasma à la colonne du support (les vis doivent être visées à quatre endroits).
Veuillez procédé à l'installation en commençant par visser les vis du dessus.
Lors de l'installation du PDP-506XDE / PDP-506FDE / PDP-506HDG / PDP-5060HD / PDP-436XDE / PDP-436FDE / PDP-436HDG / PDP-4360HD / PRO-1130HD / PRO-930HD
Utilisez les vis suivantes que vous fixerez à l'aide de la clé hexagonale.
En haut...... Vis courtes à six pans (M8 x 35 mm : noir)
En bas ....... Vis courtes à six pans (M8 x 35 mm : noir)

- Si vous souhaitez installer des haut-parleurs, veuillez le faire au cours de cette étapé de l'installation.
- Veuillez vous référer au Mode d'emploi fourni avec les haut-parleurs en ce qui concerne la procédure d'installation des haut-parleurs.
Lors de l'installation de l'écran à plasma unique
Utilisez les vis suivantes que vous fixerez à l'aide de la clé hexagonale.
En haut.... Vis longues à six pans (M8 x 60 mm : argentée)
En bas .... Vis courtes à six pans (M8 x 35 mm : noir)

4 Lorsque I'on utilise une étagère.
Une étagère peut être montée sue le support de base.
① Retirer le couvercle de l'étagère Retirer le couvercle de l'étagère puis installer les supports de l'étagère gauche et droit sur le support de base.

② Pousser le panneau de l'étagère à partir de l'arrête et lemettre en place avec le rivet pouvoir.
- La position d'installation du panneau de l'étagère doit être sélectionné pour l'un des deux niveaux soit le niveau avant soit le niveau arrière. L'installer en fonction du dispositif dont vous disposez
Lorsque I'on change sa position, vous pouvez aisément le(retirer en enlevant le bouton sur la partie supérieure du rivet pouvoir.
Dimensions interieures de l'ouverture interieure de l'étagère : 420 (efficace largeur) [Ouverturer 436] x 102 (hauteur) mm
Profondeur de I'etagere : 349 mm
Poids maxi (capacité de support) : jusqu'à 10 kg
Remarque
Soyez prudent lorsqu vous installez autre chose que le récepteur Média (en particulier un amplificateur Média, etc.) sur l'étagère car cela pourrait réduire le dégagement de la chaleur, etc. Pour de plus amples détails, veuillez vous reférer au Mode d'emploi pour chaque dispositif concernne.

5 Lorsque l'on installe transversalement un récepteur média.
① Adaptez le support MR sur les côtés du récepteur média et fixez-le à l'aide des 4 vis (M4 x 6 mm).
Remarque
- Les pieds du support MR sont sur le côte du support avec les échéancrures. Veillez à fixer le support dans le bon sens.
N'installez le support MR qu'au recepteur media.

② Placez le récepteur media sur le support MR à l'arrière de l'étagère et fixez le support MR.
Remarque
Veillez a ce que le recepteur media soit dans le bon sens.
- Veuillez ne pas installerer autre chose que le récepteur media à cet endroit.

Instructions concerning l'installation et l'assemblage du dispositif
6 Installation des couvercles de base gauche et droit.
Les introduire le long de la base.


Prévenir le basculement et la chute de l'équipement
Après avoir installé le support, voirlez à prendre les précautions nécessaires pour que l'écran à plasma ne tombe pas.
Fixation des boulons empêchant la chute sur l'écran à plasma.
2 Utilisation de cables solides ou de chaînes pour stabiliser solidement le dispositif sur un mur, un pilier ou d'autres éléments stables.
Ces opérations doivent être effectuées de la même manière à gauche et à droite.
Remarque
Utilisez des boulons, des cordons, des chaines ou d'autres dispositifs de fixation en vente dans le commerce.
Boulons recommendés : Diamètre nominal M8, longueur de 12 à 15 mm.


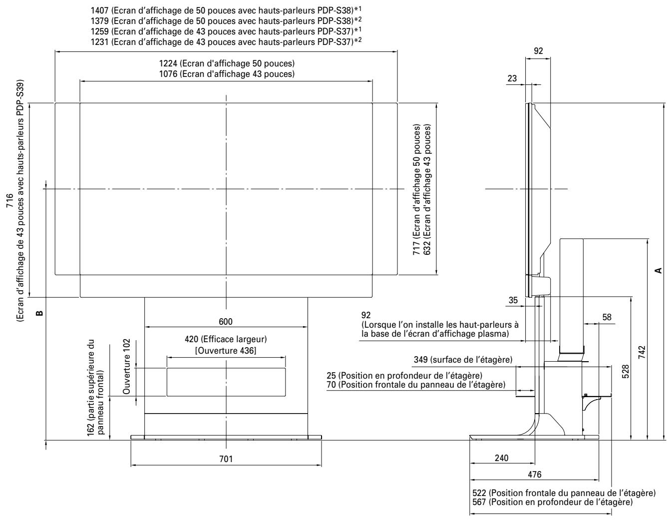
Spectificités
Dimensions ex terieures : 701 (largeur) x 784 (hauteur) x 567 (profondeur) mm
(Lorsqu'on utilise une colonne de support haute et une étagère profonde)
Poids:20,0kg
- Les caractéristiques techniques indiquées ci-dessus ainsi que les dimensions extérieures peuvent étres modifiées sans avis préalable en vue d'améliorer le produit.
Scheme indiquant les dimensions
Unités : mm

1 Montage pivotant : fixées à une distance de 15 mm environ entre les haut-parleurs et l'écran.
2 Montage à ras : fixées avec les haut-parleurs près de l'écran.
| Écran à plasma | Emplacement des haut-parleurs | Hauteur totale (dimensions A) | Centre de l'écran (dimensions B) |
| PDP-436XDE / PDP-436FDE / PDP-436HDG / PDP-4360HD / PRO-930HD | Sur les côtés de l'écran à plasma | 1.164 | 848 |
| En-dessous de l'écran à plasma | 1.240 | 924 | |
| PDP-506XDE / PDP-506FDE / PDP-506HDG / PDP-5060HD / PRO-1130HD | Sur les côtés de l'écran à plasma | 1.249 | 891 |
| Un écran à plasma unique | - | 1.226 | 909 |
Tous droits de reproduction et de traduction réservés.
Montage en installation
Imprimé sur papier recyclé.
Notice Facile