DDLT PinControl 21 - Vytápění AEG - Bezplatný návod k obsluze
Najděte návod k zařízení zdarma DDLT PinControl 21 AEG ve formátu PDF.
Stáhněte si návod pro váš Vytápění ve formátu PDF zdarma! Najděte svůj návod DDLT PinControl 21 - AEG a vezměte svůj elektronický přístroj zpět do rukou. Na této stránce jsou zveřejněny všechny dokumenty potřebné k používání vašeho zařízení. DDLT PinControl 21 značky AEG.
NÁVOD K OBSLUZE DDLT PinControl 21 AEG
Hydraulicky frzené prutokové ohrivace
Obsluha a instalace 52
- Obecné poukyny 53
- Bezpečnost. 53
- Popis pristroje 54
- Nastaveni 54
- Čišění, peče a udržba 55
- Odstraneni problemu 55
INSTALACE
- Bezpečnost 56
- Popis pristroje 56
- Priprava 56
- Montáz 57
- Uvedeni do provozu 60
- Uvedení mimo provoz 60
- Odstrańovani poruch 60
- Udrzba. 61
- Technické udaje 61
ZÁRUKA
ZIVOTNI PROSTREDI A RECYKLACE
ZVLÁSTNIPOKYNY
- Pristroj smi používat déti od 8 let a osoby se snízenými fyzickými, senzorickými nebo mentalnimi schopnostmi nebo s nedostatečnými zkušenostmi a znalostmi pouze pod dozorem, nebo poté, co byly poučeny o bezpečném používání pristroje a jsou si vědomy nebezpeci, ktera z jeho používání plynou. Nenechávejte déti, aby si pristrojem hrály. Čistěné i ádržbu, kterou má povádet uživatel, nesmi povádet samotné déti bez dozoru.
Nebezpeci opareni: Armatura muze dosanhout teploty vyssi nez 60^
- Prístroj musí byt możné odpojit od sit'ové prípojky na všech polech na vzdálenost nejmène 3 mm.
Upevněte prístroj způsobem popsaným v kapitole „Instalace / Montáž".
Dodržujte maximálni pripustný tlak (viz kapitola „Technické udaje/Tabulka s technickymi udaji").
Vypustte pristroj zpusobem podle popisu v kapitole „Instalace / Üdržba / Vypusteni pristroje".
OBSLUHA
1. ObecnéPokyny
Kapitoly Zvlastni Pokyny a,Obsluha'jsou urceny uzivatel'mpristroje a instalacnim technikum.
Kapitola „Instalace" je určena instalačím technikum.

Upozorneni
DriVe, než zahájite provoz, si pozorne prectete tento námov a pečlíve jej uschovejte.
Pripadne predeje navod dalsimu uzivateli.
1.1 BezpečnostníPokyny
1.1.1 Struktura bezpečnostnichPokynu

UVOZUJICI SLOVO - Druh nebezpeci
Zde jsou uvedeny mozné následky nedodrzeni bezpečnostnichPokynu.
» Zde jsou uvedena opatreni k odvraceni nebepezci.
1.1.2 Symboly, druh nebezpeci
| Symbol Druh nebezpeči | |
| ! | Uraz |
| Uraz elektrickým proudem | |
| Popálení (popálení, opařeni) | |
1.1.3 Uvozujici slova
| UVOZUJICI SLOVO | Význam |
| NEBEZPEČI | Pokyny, jejichž nedodrženi má za následek vázné nebo smrtelné úrazy. |
| VYSTRAHA | Pokyny, jejichž nedodrženi műze mít za následek vázné nebo smrtelné úrazy. |
| POZOR Pokyny, | jejichž nedodrženi műze mít za následek středné vázné nebo lehkö úrazy. |
1.2 Jiné symboly použité v tétodokumentaci

Upozorněni
Obecné poukyny jsou oznăceny symbolem zobra zenym vedle.
» Texty upozorneni Čtěte pečílive.
| Symbol Význam | |
| ! | Věcné škody (poškození prístroje, následné škody, poškození životního prostředí) |
| Likvidace prístroje | |
Tento symbol vás vyzývá k určitěmu Jednámí. Potřebraneťukony jsou popsány po jejnotlivych krocích.
1.3 Mérné Jednotky

Upozornéni
Pokud není uvedeno jinak, jsou vsechny rozměry uvedeny v milimetrech.
2. Bezpečnost
2.1 Použití v souladu s učelem
Přistroj je určen k použití v domácnostech. Mohou jej tedy bezpečné obsluhovat neškolene osoby. Lze jej používat i mimo domácnosti, např. v drobném prumyslu,Pokud zpúsob použití v takovych oblastech odpovída určeni prístroje.
Tlakové zařizení je určeno k ohrevu pitné vody. Pristoj muže zásobovat jegno nebo několik odběrních mistrist.
Jiné pouziti nebo pouziti nad ramec daného rozsahu je považovano za pouziti v Rozporu s urcenim. K pouziti v souladu s urenim patr takodrzovani tohoto navodu a navodu k pouzivanemu prfslusenství.
2.2 Vseobecné bezpečnostníPokyny

POZOR popaleni
Armatura muze za provozu dosahnout teploty vyssi nez 60^
Pokud je vystupni teplota vyssi nez 43 °C hrozi nebezpeci opareni.

VYSTRAHA uraz
Pristroj smej pouzivat deti od 8 let a osoby se snizenymi fyzickymi, senzorickymi nebo mentalnimi schopnostmi nebo s nedostatkem zkusenosti a zna-losti pouze pod dozorem, nebo po pouceni o bezpe-c-nem pouziti pristroje, a pote, co porozumely nebez-peci, ktera z jeho pouziti plynou. Nenechaveje tdeti, abi si s pristrojem hraly. Ciistei a udrzbu, kterou ma provadet uzivatel, nesmi povadet samotne deti bez dozoru.

Vécné skody
Uživotel musi pristroj a armaturu chraniit prd mrazem.
2.3 Kontrolni symbol
Viz typovy stitek na pristroji.
Potvrzeni a osvédčeni platná v Jednotlivych zemich:
Nemecko
K pristroji je vydano na zaklade mistrich stavebnich
predpisu vseobecne osvedcni stavebniho dozoru jako potvrzeni o pouzitelnosti z hlediska hlucnosti.

3. Popis pristroje
Hydraulicky rizeny prutokov ohrivac ohrivá vodu, ktera protéká prístrojem. Po otevřeni armatury a prekrocení množstvi k zapnuti (viz kapitola „Technické udaje / Tabulka udajú”), se automaticky zapne topny vykon. Množstvi vody a teplotu mužete nastavit na armatuře.
Müzete volit mezi 2 vykonovymi stapni. Navc se v závislosti na prutokovém množstvi hydraulicky rfdi 2 vykonové stapné.
Regulace prutoku pristroje kompenzuje kolisani tlaku a zajistuje tak maximinim zpusobem stejnomerné teploty. Regulace vymezuje prutokov mnozstvi a zarucije tak vzdy dostatecné navyseni teploty pitné vody.
Topny systém
Topny systém s holou spirálou je vybaven plastovym tlakovym plastem. Topny systém je vchodny pro vodu s nizkym i vyssim obshem vapennych soli, systém je do značné míry necitivy vúci zanášení vodním kamenem. Topny systém zajistuje rychlou a učinnou pripravu teplé vody.
4. Nastavení

26_02_02_0783
1 Castečný vykon
Pri nizkém prutokovém množstvi se spiná 1/3 topného vykonu, pri vyšim prutokovém množstvi 2/3 topného vykonu. Toto nastavení je např. vchodné k mytí rukou.
2 Plny vykon
V pripadé nizsiho prutokového mnozstvi se spiná polovični topny vykon, pri vyším prutokovém mnozstvi plny topny vykon. Toto nastavení je např. vchodné k oplachovány.
» Nastavte prěpínač vykonu do požadované polohy.
Doporucené nastaveni pri pouziti armatury s termostatem
4.1 Dopurocené nastavení pro armatury
Upozornéni
Pokud nelze pri plne otevrenem odbernem ventilu a plnem vykonu dosahnout dostatecné teploy na ytoku, proteká pristrojem vice vody, nez muze topny systém ohrát (priestroj na hranici vykonu).
» Zmensete mnozstvi vody na odberném ventilu.
nizé odebirané mnozstvi = vysoká teplo na vytoku velké odebirané mnozstvi = nizka teplo na vytoku
Armatura se dvēma pákami
| Výkonový stupeř | Oblast použití |
| Častečný výkon | Umyvadlo |
| Pliny výkon | Koupelnová vana, sprcha, dřez |
V priadé prilis vysoke teploty a plne otevrené armatury primichejte studenou vodu.
Páková baterie
| Výkonový stupeř | Oblast použiti |
| Plné výkon | věse |
» Otočte páku armatury na nejvyší teplitu.
» Zcela otevrete armaturu.
» Zvyšte teplotu na vytoku tak,Že pomalu uzavrete armaturu.
» Snižte teplotu na vytoku tak,Že primišite studenou vodu nebo,pokud možno,vice otevṛte armaturu.
» Odpojte pristroj od napétí vypnutim pojistik.
Otevřete armaturu na dobu jejne minuty, dokud nejsou pristroj a prědžazená prípojka studné vody odvizdušné.
» Opét zapnéte napájeni ze site.
5. Čistěné, peče a udžržba
Nepoužívejte abrazivní cistici prostředky nebo prostředky obsahujíci Rozpoustědla. K osétrováni a udžržbe prístroje stači vlhák textilie.
Kontrolujte pravidelné armatury. Vodni kamen na vytocich z armatur odstranite beznymi prostredky k odstraneni vodniho kamene.
6. Odstraněni problemu
| Problém Přícina Odstránění | ||
| I když je ventil teplé vody zcela otevřen, pristroj se nezapne. | Došlo k výpadku elektrického napájení. | Zkontrolujte pojistky vinitří instalace. |
| Prùtokové množstvi je príliš malé na to, aby se zapnul topný vykon. Perlátor v ar-matuře nebo sprchová hlavice jsou zaneseny vodním kamenem nebo jsou znečistné. | Vycistěte perlátor nebo sprchovou hlavi-ci a zbavte je vodniho kamene. | |
Pokud nelze pričinu odstranit, kontaktujte odborníka. Pro lepí a rychlejí pomoc mu sdělte cislo (c. 000000-0000-00000), které je uvedeno na typovém štītu:

D0000041614
INSTALLACE
7. Bezpečnost
Instalaci, uvedeni do provozu, udrzbu a opravy pristroje smi provadet pouze odbornik.
7.1 Vseobecné bezpečnostíPokyny
Rádnou funkci a spolehlivý provoz lze zaručit pouze v pripadě použítí pvodniho príslušenstvi a originních nahradních dlú určenych pro tento prístroj.

Věcné škody
Dodržujte maximalí vystupni teplotu. Pri vysshich teplotach muze dojit k poskozeni pristroje. Instalaci centráli termostaticke armatury muzete omezit maximalí teplotu pritoku.
72 Predpisy, normy a ustanoveni

Upozorneni
Dodžujte všechny národní a mistné prédpisy a ustanoveni.
Kryti IP 25 (ochrana proti strikajici vode) je zaruce no pouze v pripade odborné instalované kabelové pruchodky.
Merny elektricky odpor vody nesmi byt mensi nez hodnota uvedená na typovem stitku. V pripadé propojeni nekolika vodovodnich sít je nezbytné vzt v uvahu nejnižsí elektricky odpor vody (viz kapitola "Technické udaje / Oblasti pouziti / Převodní tabulka"). Hodnoty měrného elektrického odporu vody nebo elektrické vodivosti vody zjisté u vašeho dodavatele vody.
8. Popis pristroje
8.1 Rozsah dodávky
Spolu s pristrojem dodavame:
Nastenna zavesna lista
Svornik se zavitem pro zavešeni na zed
Montážni Šablona
2 dvojite vsuvky (studená voda s uzaviracim ventilem)
Plocha tsesnei
Kabelova pruchodka (elektrické privodni vedeni nahoře / dole)
Srouby /hmozdinky k dodatecnému pripevnéi zadni steny v pripadé montaze na vodovodni pripojku na stene
9. Priprava
9.1 Misto montáze

Věcné škody
Pristroj smi byt instalovan pouze v mistrasti chräné préd mrazem.
Pristoj montujte ve svisle poloze v blizkosti odberného mista.
Pristroj je vhdný k montáži pod a nad umyvadlo.
Montáž pod umyvadlo

26_02_02_1345
1 Privod studené vody
2 Vytok teple vody
Montáž nad umyvadlo

26_02_02_1344
1 Privod studene vody
2 Vytek teplé vody

Upozorněni
» Namontujte prístroj na stenu. Stena musi mit dostatečnou nosnost.
Provoz s predehratou vodou neni pripustny.
Pojistny ventil neni nutny.
- Pojistné ventily v rozvodu teplé vody nejsou prípustné.
Dukladne vaplachnetevodovodni vedeni.
» Zkontrolujte, zda je dosaženo objemového prutoku (viz kapitolu „Technické udaje / Tabulka udajú“, zapnuti) k zapnuti pristroje. Zvyste tlak ve vodovodu, pokud není dosaženo pri plné otevřeném odběrném ventilu potrebného objemového prutoku.
Armatury
Použijte vchodné tlakové armatury. Beztlakové armatury nejsou dovolené.
Tlakové armatury stermostatem musi byt vchodne pro hydraulicky ovladane prutokové ohřivače.

Upozorneni
Uzaviraci ventil na privodu studente vody se nesmi pouzivat k omezovani prutoku. Slouzi k uzavreni pristroje.
Dovolené materially vodovodniho potrubi
。 Privod studené vody:
Zarově zinkovanova ocelová trabka, trabka z ušlechtíte oceli, meděna trabka nebo plastová trabka
Vystupni potrubí teplé vody:
Trubka z ušlechtile oceli, MEDENÁ trabka nebo plastová trabka

Věcné škody
V priadé pouziti plastovych potrubnich systému dodržujte maximálni dovolenou vstupni teplota a maximálni dovolený tlak, uvedene v kapitole „Technické udaje / Tabulka udaj".
Flexibilni privodni vedeni vody
» Pri instalaci flexibilnich privodnich vedeni vody zamezte prekrouceni kolen s bajonetovymi spoji v pristroji.
» Upevněte zadní stěnu dole pomoci dodatečněch dvou šroubú.
10. Montáž
10.1 Standardni montáž
Elektrická prípojka nahore, instalace ve stěné (pod omitkou)
Vodovodni prípojka s instalaci ve stěne (pod omitkou)
Dalş moznosti montáze viz kapitola „Alternativni postupy montáze“:

» Otevřete pristroj odkovánim pojistky.
» Demontujte zadni stenu zatlačením obou pojistnych háčkú a stáhněte spodní díl zadni stěny dopředu.

Prijprava privodniho kabelu
26_02_02_0887

Montáz nastenného zavésu
26_02_02_0972
» Vyznačte pomoci montážní šablony vrtané otvory.
V pripadé montáze s vodovodnimi prípojkami primo na zdi musite navic oznacit upevnovaci otvory ve spodní Časti šablony.
» Vyvrtejte otvory a upevnete zavěsovaci konzolu na zed pomoci 2 šroubu a 2 hmoždinek (srouby a hmoždinky nejsou současti dodávy).
» Namontujte prilozené svorníky se závitem.
» Namontujte konzolu na zed'.
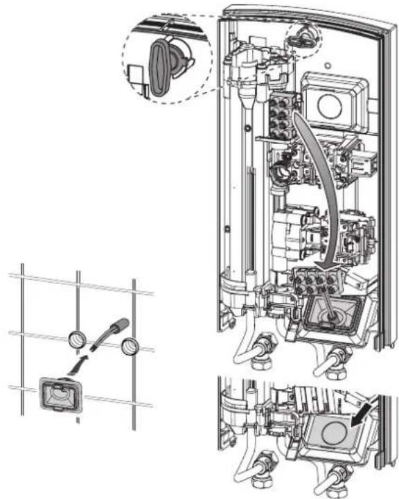
Montáž kabelové pruchodky

» Namontujte kabelovou pruchodku. Je-li pruzePri- pojovaciho kabelu >6mm^2 musite otvor v kabelové pruchodce zvetsit.
26_02_02_0950
Veskeré vodovodni pripojky a instalace provadějte podle predpisú.

» Vylomte pruchodku kabelu na zadni strane. V priapde potfeby odstrahte pilnikem ostre hrany.
Montáz pristroje

00000041897
»Zasunte zadni stenu pres svornik se zavitem a kabelovou pruchodku. Zatahnete kabelovou pruchodku pomoci klesti na haccich do zadni steny, dokud oba hacky slysiteln nezaklapnou.
» Odstraţe z vodovodnich prípojek ochranná transportné vîčka.
» Pevně pritlačte zadní stěnu a zajistěte upevnováci páčku otočením doprava o 90°.

» Prśroubujte trabky vodovodni prípojky s plochym tésněnim na dvojiťe vsuvky.

Vécnéskody
Z duvodu funkke pristroje musite instalovat sitko.
» Zkontrolujte pri vymene pristroje, zda je k dispozici sitko (viz kapitola „Udržba").
Pripojeni privodu elektrické energia

VYSTRAHA elektricky proud
Veskeré elektrická zapojeni a instalace provadějte podle predpisu.

VYSTRAHA elektricky proud
Pripojka k elektrické siti smi byt provedena pouze\ jako pevná pripojka v kombinaci s vyjmatalnou kabelovou vsuvkou. Pristroj musi byt mozné odpojit od sit'ove pripojky na vsech polech na vzdalenost nejmene 3 mm.

VYSTRAHA elektricky proud
Pamatujte, ze pristroj musi byt pripojen k ochranneu vodi ci.

Vécné skody
Dodržujte udaje uvedené na typovem stitku. Uvedené napétí se musi shodovat se sitovym napétim.
» Pripoje elektricky privodni kabel k sitové svorkovnici (viz kapitolu „Technické udaje / Schéma elektrického zapojeni").
Montáz spodni casti zadni steny

26_02_02_1348
10.2.1 Elektrická pripojka pod omitkou dole

D0000041898
» Namontujte kabelovou pruchodku.
Vécné skody Pokud bye ste nedopatrenim ylomili do zadni steny nesprvný otvor, musite použit novou zadni stenu.
» Vylomte pruchodku kabelu na zadni strane. V pripa-dé potfeby odstrahte pilnikem ostre hrany.
» Premistete privodni sitovou svorku v pristoji shora dolu.
Zasunte zadni stenu pressvornik se zavitem a kabelovou pruchodku. Zatahnete kabelovou pruchodku pomoci klesti na haccich do zadni steny, dokud oba hacky slysitelné nezaklapnou.
» Pevně pritlacte zadni stenu a zajistete upevnovaci páčku otočením doprava o 90°.
10.2.2 Elektricka pripojka na zdi
Upozorneni Pri toto zp
Provedezmenu na typovem stitku. Preskrtnete udaj IP 25 a oznactekrizkem policko IP 24.K tomuto ucelu pouzijte propisku.
Vécné skody
Pokud bye ste nedopatrenim ylomili do zadni steny nespravy otvor, musite pouzit novou zadni stenu.
» Cîste vyřiznéte nebo prorazte potřebnou pruchodku v zadni stěné prístroje (umistěné viz kapitola „Technické udaje / Rozměry a prípojky"). V prípadě potřeby odstrante pilnikem ostre hrany.
» Vedte elektricky privodni kabel kabelovou pruchodkou a pripoje jej K sitové svorkovnici.
10.2.3 Pripojeni zatěžového relé
Zátežové relé používejte v kombinaci s jinými elektrickými pristroji v elektrickém rozvodu, například s elektrickými akumulačnímì ohřívací. K vypnutí záteže dochází pri provozu prútokového ohřívacě.
Vécné skody
Pripojte fazi, ktera spina zatezove rele, k oznacene svorce sit'ové svorkovnice v pristroji (viz kapitolu „Technické udaje / Schéma elektrického zapojeni").
10.2.4 Vodovodni instalace na zdi
Upozorneni Pri toto zp
ri tomto zpusobu pripojen se mén kryti pristroje.
Provedezmenu na typovem stitku. Preskrtnete udaj IP 25 a oznacte krizkem policko IP 24. K tomuto ucelu pouzijte propisku.

26_02_02_0765
» Namontujte vodovodni zatku s tésnénim tak, aby doslo k uzavfeni privodu pod omitkou.
» Namontujte vhdnou tlakovou armaturu.

26_02_02_1006
» Zatlačte spodni din zadni stěny do horniho dilu zadni stěny.
» Příšroubujte prívodnítrubky k prístroji.
» Upevněte zadni stěnu dole pomoci dodatečnych dvou šroubú.
Provedte cisté ylomeni pruchozich otvoru ve viku pristoje. V priadé potreby odstraţe pilnikem ostré hrany.
» Nasad'te spodni dil zadni steny pod pripojovaci trubky armatury a zajistete jej.
» Prśròubujte privodni trabky k pristroji.
10.3 Dokončeni montáže
Otevrefe uzaviraci ventil ve dvojite vsuvce nebo na privodu studené vody.
11. Uvedeni do provozu

VYSTRAHA elektricky proud
Uvedeni do provozu smi provadet pouze specializovany odbornik pri dodrzeni bezpečnostnich predepisù.
11.1 První uvedeni do provozu



D0000041620
» Otevře t a uzavře tne nikolíkrát všechny pripojené odberné ventily, dokud nebudou rozvodná sít a pristroj odvizdušné.
Provedte kontrlu těsnosti.
Aktivujte bezpečnostní omezovac tlaku pevným stisknutím resetovacího tlacíťka (přistroj je dodán s vypnutým bezpečnostním omezováčem tlaku).
» Namontujte viko pristroje a dbejte, aby se slysitelné zajistilo. Ovebre usazení vlka pristroje.
» Zapněte napájení ze site.
» Zkontrolujte funkci pristroje.
Předníně prístroje
» Vysvětlete uživoteli funkci prístroje aseznamte ho se zpúsobem jeho uzívání.
» Upozorněte uživatele na mozná rizika, predevším na nebezpečí opářě.
» Prédeje tento námod.
11.2 Opětovné uvedeni do provozu
» Odpoje pristroj na vsech polech od site.
» Vypustte vodu z pristroje (viz kapitolu „Udrzbá").
13. Odstrańovani poruch
| Zăvada Prćicina Odstrāněni | ||
| Prutok je prilis nízký. Sítko v prístroi je znečistěné. | Vycistěte sítko. | |
| Regulátor prútoku nespíná i presto, ze je armatura zcela ote-vřená. | Není dasaženo po-třebného množstvík sepnutí topného tělása. | Vycistěte sítko. |
| Prístroi nedodává tep-lou vodu i PRES slysi-tehné sepnutí spínače Rozdilu tlák. | Bezpečnostní omezo-vač tlák (AP 3) z bez-pečnostních důvodú vypnul prístroi. | Odstraťte prćicùn závady (např. vadné tlakové proplachovác zařeni). |
| Chraťe topný systém před prěhřátím otevřěním ventilú v odber-ném mlstě za prístro-jem na Jednu minutu. Z topného systému tak bude vypušťn tlák a doje d k ochlazení. | ||
| Aktivujte bezpečnost–nf omezovač tlák pri hydraulickém tlaku stisknutím tlacíftka reset (viz kapitola „První uvedeni do pro- vozu"). | ||
| Topný systém je vadné. | Změřte odpor topného systému a v prípadé potřeby odpor vy-měné. | |
14. Udržba

VYSTRAHA elektricky proud Pri vsech cinnostech odpojte pristroj na vsech polech od site.
Vypusteni pristroje
K provaděni udrzbovych prací muzete prístroj vypustit.

VYSTRAHA popaleni Pfi vypousteni pristroje muze vytekat horka voda.
Uzavrte uzaviracf ventil ve dvojite vsuvce nebo na privodu studené vody.
» Otevře t vsechny odberné ventily.
» Odpojte od pristroje vodovodní prípojky.
» Demontovany pristroj skladujte tak, aby byl chränen pred mrazem. Pripadne zbytky vody v pristroji mohou zmrznout a zpusobit skody.
Vycisteni sitka

20 20 20 20
V pripadé znečistění očistěte sítko ve šroubení prípojky studné vody. Uzavře tce užaviraci ventil v privodu studné vody, než sítko vyjmete, očistěte a opět namontujete.
15. Technické udaje
| b02 Kabelová pruchodka I | ||
| c01 Prífvod studené vody Vnějsí závit G 1/2 A | ||
| c06 Výtok teplé vody | Vnějsí závit | G 1/2 A |
15.2 Schéma elektrického zapojeni
3/PE 400V

85 02-0002
Predrazeny spinae s LR 1-A

85 02 02 0003
1 Rídici obvod stykace 2. pristroje (například elektricky akumulačné ohřívac).
2 Rídicikontakt, ktery se otevře po zapnuti prútokového ohřivače.
15.3 Vykon teplé vody
Vykon teplé vody závisi na napétísite, príkonu prístroje a teploté pritoku studené vody. Jmenovité napétí a jmenovity vykon majdete na typovém stitku (viz kapitola „Ostranovani problemu").
| Príkon v kW 38 °C vykon teplé vody v l/min. | ||||
| Jmenovité napěti Teplota pržväděné studenté vody | ||||
| 400 V | 5 °C 10 °C | 15 °C 20 °C | ||
| 13,5 | 5,8 | 6,9 | 8,4 | 10,7 |
| 18,0 | 7,8 | 9,2 | 11,2 | 14,3 |
| 21,0 | 9,1 | 10,7 | 13,0 | 16,7 |
| 24,0 | 10,4 | 12,2 | 14,9 | 19,0 |
| Příkon v kW | 50 °C vykon teplé vody v l/min. | |||
| Jmenovité napětí | Teplota privéděné studené vody | |||
| 400 V | 5 °C 10 °C | 15 °C | 20 °C | |
| 13,5 | 4,3 | 4,8 | 5,5 | |
| 18,0 | 5,7 | 6,4 | 7,3 | |
| 21,0 | 6,7 | 7,5 | 8,6 | |
| 24,0 | 7,6 | 8,6 | 9,8 | |
15.4 Oblast použití / Převodní tabulka
Merny elektricky odpor a merna elektricka vodivost (viz kapitola,Tabulka s technickymi udaji').
| Udaj podle normy při 15 °C | 20 °C | 25 °C | ||||||
| odpor ρ ≥ | Vodivost σ ≤ | odpor ρ ≥ | Vodivost σ ≤ | odpor ρ ≥ | Vodivost σ ≤ | |||
| ≥ Ωcm | mS/m | μS/cm | ≥ Ωcm | mS/m | μS/cm | ≥ Ωcm | mS/m | μS/cm |
| 900 | 111 | 1111 | 800 | 125 | 1250 | 735 | 136 | 1361 |
15.5 Ztraty tlaku
Armatury
| Tlaková ztrátararmatur prí objemovém prútoku 10 l/min | ||
| Páková baterie cca | MPa | 0,04 - 0,08 |
| Armatura s termostatem cca | MPa | 0,03 - 0,05 |
| Ruční sprcha cca | MPa | 0,03 - 0,15 |
Dimenzováni potrubnì sítě
K vypoctu dimenzovani potrubni site je pro pristroj doporučena tlaková ztrata 0,1 MPa.
15.6 Podminky v priapé poruchy
V pripadeporuchymuzevinstalaci kratkodobvzniknout zatfen maximalne 95^ pri tlaku 1,2 MPa.
15.7 Udaje ke spotbre energie
Udaje o vyrobku odpovidaji nafrizenim EU ke smernici o ekodesignu vyrobku v souvislosti se spotrebou energia (ErP).
| DDLT PinControl 13 | DDLT PinControl 18 | DDLT PinControl 21 | DDLT PinControl 24 | ||
| 222384 | 222385 | 222386 | 222387 | ||
| Výrobce | AEG Haustechnik | AEG Haustechnik | AEG Haustechnik | AEG Haustechnik | |
| Zátěžový profil | XS | S | S | S | |
| Třída energetické účinnosti | A | A | A | A | |
| Ročné spotřeba el. energia | kWh | 469 | 483 | 483 | 483 |
| Energetická účinnost | % | 39 | 38 | 38 | 38 |
| Nastavení teploty od výrobce | °C | - | - | - | - |
| Hladina akustického vykonu | dB(A) | 15 | 15 | 15 | 15 |
| Zvělástní poukyny k měřeni účinnosti | žádné | žádné | žádné | žádné |
15.8 Tabulka udaju
| DDLT PinControl 13 DDLT PinControl 18 DDLT PinControl 21 DDLT PinControl 24 | |||||
| 222384 222385 222386 222387 | |||||
| Elektrotechnické udaje | |||||
| Jmenovité napétí V 400 400 400 400 | |||||
| Jmenovitý vykon 400 V stupeř l min. | kW | 4,6 | 6,3 | 7,4 | 8,3 |
| Jmenovitý vykon 400 V stupeř l max. | kW | 10,6 | 14,3 | 16,8 | 19,0 |
| Jmenovitý vykon 400 V stupeř l min. | kW | 6,8 | 9,2 | 10,8 | 12,2 |
| Jmenovitý vykon 400 V stupeř l max. | kW | 13,3 | 18,0 | 21,1 | 23,8 |
| Jmenovitý vykon | kW | 13,5 | 18 | 21 | 24 |
| Jmenovitý proud | A | 19,5 | 26 | 31 | 35 |
| Jištění | A | 20 | 25 | 32 | 35 |
| Fáze | 3/PE | 3/PE | 3/PE | 3/PE | |
| Kmitočet | Hz | 50 | 50 | 50 | 50 |
| Specifiký odpor σ 15 ≥ (při òstudné ≤25 °C) | Ω cm | 900 | 900 | 900 | 900 |
| Specifiká vodivost σ 15 ≤ (při òstudné ≤25 °C) | μS/cm | 1111 | 1111 | 1111 | 1111 |
| Provedení | |||||
| Kryti (IP) | IP25 | IP25 | IP25 | IP25 | |
| Třida ochrany | 1 | 1 | 1 | 1 | |
| Izolační blok | Umělá hmota | Umělá hmota | Umělá hmota | Umělá hmota | |
| Topný systém zdroje tepla | Holá spirála | Holá spirála | Holá spirála | Holá spirála | |
| Připojký | |||||
| Vodovodní prípojka | G ½ A | G ½ A | G ½ A | G ½ A | |
| Meze použitelnosti | |||||
| Max. dovolený tlak | MPa | 1 | 1 | 1 | 1 |
| Hodnoty | |||||
| Max. teplota vstupné vody | °C | 25 | 25 | 25 | 25 |
| Zap I. Stupeř | l/min | 2,4 | 3,0 | 3,5 | 4,1 |
| Zap II. Stupeř | l/min | 3,9 | 4,9 | 5,6 | 6,3 |
| Tlakové ztrát yPRI objemověm proudu | MPa | 0,09 | 0,11 | 0,13 | 0,15 |
| Prútok pro ztrát tlaku | l/min | 3,9 | 4,5 | 5,6 | 6,3 |
| Prútok - omezení pri | l/min | 4,7 | 5,9 | 7,0 | 7,8 |
| Zobrazení tlpé vody | l/min | 7,0 | 9,4 | 11,1 | 12,5 |
| ΔθPRI zobrazení | K | 26 | 26 | 26 | 26 |
| Udaje o hydraulickém systému | |||||
| Jmenovitý objem | I | 0,4 | 0,4 | 0,4 | 0,4 |
| Rozměry | |||||
| Vyška | mm | 485 | 485 | 485 | 485 |
| Sifíka | mm | 226 226 226 226 | |||
| Hloubka | mm | 93 | 93 | 93 | 93 |
| Hmotnesti | |||||
| Hmotnost | kg | 3,6 3,6 3,6 3,6 | |||
Záruka
Pro pristroje nabyte mimo uzemi Nemecka neplatzi zaručni podminky poskytované nasimi firmami v Nemecku. V zemich, ve kterych nikterá z nasich dceirinych spolecnosti distribuujne naše vyrobky, poskytuje zaruku jenom tato dceirina spolecnost. Takovou zaruku lze poskytnout pouze tehdy,Pokud dceirina spolecnost vydala vlastní zaručni podminky. Jinak nelze zaruku poskytnout.
Na pristroje zakoupene v zemich, ve kterych nejsou nase yrobky distribuovany zaadnou dceirinych spolecnosti, neposkytujeme zaadnou zaruku. Pripadne zaruky zavazne prislibene dovozcem zustavaji proto nedotcenie.
Zivotni prostreia recyklace
Pomozte nám chránit našživotni prostřédi. Materialy po použítí zlikvidujte v souladu s platnými narodnimi prédpisy.
SnadnýManuál