DDLT PinControl 21 - Heizung AEG - Kostenlose Bedienungsanleitung
Finden Sie kostenlos die Bedienungsanleitung des Geräts DDLT PinControl 21 AEG als PDF.
Laden Sie die Anleitung für Ihr Heizung kostenlos im PDF-Format! Finden Sie Ihr Handbuch DDLT PinControl 21 - AEG und nehmen Sie Ihr elektronisches Gerät wieder in die Hand. Auf dieser Seite sind alle Dokumente veröffentlicht, die für die Verwendung Ihres Geräts notwendig sind. DDLT PinControl 21 von der Marke AEG.
BEDIENUNGSANLEITUNG DDLT PinControl 21 AEG
Hydraulisch gesteuerter Durchlaufferhitzer
Bedienung und Installation 2
- Allgemeine Hinweise 3
- Sicherheit 3
- Gerätebeschreibung 4
- Einstellungen 4
- Reinigung, Pflege und Wartung 5
- Problembehebung 5
INSTALLATION
- Sicherheit 6
- Gerätebeschreibung 6
- Vorbereitungen 6
- Montage 7
- Inbetriebnahme 10
- Außerbetriebnahme 10
- Störungsbehebung 11
- Wartung 11
- Technische Daten 11
UMWELT UND RECYCLING
KUNDENDIENST UND GARANTIE
BESONDEREHINWEISE
Das Gerät kann von Kindern ab 8 Jahren sowie von Personen mit verringerten physischen, sensorischen oder mentalen Fähigkeiten oder Mangel an Erfahrung und Wissen benutzt werden, wenn sie beaufsichtigt werden oder bezüglich des sicheren Gebrauchs des Geräts unterwiesen wurden und die daraus resultierenden Gefahren verstanden haben. Kinder dürfen nicht mit dem Gerät speien. Reinigung und Benutzer-Wartung dürfen nicht von Kindern ohne Beaufsichtigung durchgeführt werden.
- Verbrühungsgefahr: Die Armatur kann eine Temperatur von über 60^ annehmen.
Das Gerät muss über eine Trennstrecke von mindestens 3 mm allpolig vom Netzanschluss getrennt werden konnen.
Befestigen Sie das Gerät wie in Kapitel „Installation / Montage" beschrieben.
- Beachten Sie den maximal zulässigen Druck (siehe Kapitel „Technische Daten / Datentabelle).
Entleeren Sie das Gerät wie in Kapitel Installation/Wartung/Gerät entleeren" beschrieben.
BEDIENUNG
1. Allgemeine Hinweise
Die Kapitel „Besondere Hinweise" und „Bedienung"richten sich an den Gerätebenutzer und den Fachhandwerker. Das Kapitel „Installation" richtet sich an den Fachhandwerker.

Hinweis
Lesen Sie diese Anleitung vor dem Gebrauch sorgfältig durch und bewahren Sie sie auf.
Geben Sie die Anleitung gegebenenfalls an einen nachfolgenden Benutzer weiter.
1.1 Sicherheitshinweise
1.1.1 Aufbau von Sicherheitshinweisen

SIGNALWORT Art der Gefahr
Hier stehen mögliche Folgen bei Nichtbeachtung des Sicherheitschinweises.
» Hier stehen Maßnahmen zur Abwehr der Gefahr.
1.1.2 Symbole, Art der Gefahr
| Symbol Art der | Gefahr |
| ! | Verletzung |
| Stromschlag | |
| Verbrennung (Verbrennung, Verbrühung) |
1.1.3 Signalworte
| SIGNALWORT | Bedeutung |
| GEFAHR | Hinweise, deren Nichtbeachtung schwere Verletzun-gen oder Tod zur Folge haben. |
| WARNUNG | Hinweise, deren Nichtbeachtung schwere Verletzun-gen oder Tod zur Folge haben kann. |
| VORSICHT Hinweise, deren Nichtbeachtung zu mittelschweren oder leichten Verletzungen führen kann. | |
1.2 Andere Markierungen in dieser Dokumentation

Hinweis
Allgemeine Hinweise werden mit dem nebenstehenden Symbol gekennzeichnet.
Lesen Sie die Hinweistexte sorgfältig durch.
| Symbol Bedeutung | |
| ! | Sachschaden (Geräte-, Folge-, Umweltschaden) |
| Geräteentsorgung | |
» Dieses Symbol zeigtlichen, dass Sie etwas tun mussen. Die erforderlichen Handlungen werden Schritt für Schritt beschreiben.
1.3 Maßeinheiten

Hinweis
Wenn nicht anders angegeben, sind alle Maße in Millimeter.
2. Sicherheit
2.1 Bestimmungsgemäß Verwendung
Das Gerät ist für den Einsatz im hauslichen Umfeld vorgehen. Es kann von nicht eingewiesenen Personen sicher bedient werden. In nicht hauslicher Umgebung, z. B. im Kleingewerbe, kann das Gerät bereits verwendet werden, sofern die Benutzung in gleicher Weise erfolgt.
Das Druckgerät und dient zur Erwärung von Trinkwasser. Das Gerät kann ein oder mehrere Entnahmestellen versorgen.
Eine andere oder darüber hinausgehende Benutzung gilt als nicht bestimmungsgemäß. Zum bestimmungsgemäßen Gebrauch gehört auch das Beachten dieser Anleitung sowie der Anleitungen für eingesetztes Zubehor.
2.2 Allgemeine Sicherheitshinweise

VORSICHT Verbrennung
Die Armatur kann während des Betriebs eine Temperatur von über 60^ annehmen.
Bei Auslauftemperaturen großer 43^ besteht Verbruhungsgefahr.

WARNING Verletzung
Das Gerät kann von Kindern ab 8 Jahren sowie von Personen mit verringerten physischen, sensorischen oder mentalen Fähigkeiten oder Mangel an Erfahrung und Wissen benutzt werden, wenn sie beaufsichtigt werden oder bezüglich des sicheren Gebrauchs des Geräts unterwiesen wurden und die daraus resultierenden Gefahren verstanden haben. Kinder dürfen nicht mit dem Gerät speien. Reinigung und Benutzer-Wartung dürfen nicht von Kindern ohne Beaufsichtigung durchgeführt werden.

Sachschaden
Das Gerät und die Armatur sind vom Nutzer vor Frost zu schützen.
2.3 Prüfzeichen
Siehe Typenschild am Gerät.
Landesspezifische Zulassungen und Zeugnisse:
Deutschland
Für das Gerät ist auf Grund der Landesbauordnungen ein allgemeines bauaufsichtliches Prüfzeugnis zum Nachweis der Verwendbarkeit hinsichtlich des Geräuschverhaltens erteilt.

3. Gerätebeschreibung
Der hydraulisch gesteuerte Durchlauferhitzer erwartet das Wasser, während es durch das Gerät stromt. Wenn eine Armatur geöffnet wird und die Einschaltmenge (siehe Kapitel „Technische Daten / Datentabelle") übersritten ist, schaltet automatisch die Heizleistung ein. Die Warmwassermenge und Temperatur können Sie an der Armatur einstehen.
Sie können zwischen 2 Leistungsstufen wahren. Zusätzlich werden 2 Leistungsstufen in Abhängigkeit von der Durchflussmenge hydraulisch gesteuert.
Die Durchflussmengenregelung kompensiert Druckschwankungen und sorgt so für weltgehend gleich bleibende Temperatur. Die Regelung begrenzt die Durchflussmenge und gewährleistet so immer eine ausreichen de Temperaturerhöhung des Trinkwassers.
Heizsystem
Das Blankdraht-Heizsystem hat einen druckfesten Kunststoffmantel. Das Heizsystem ist für kalkarme und kalkhaltige Wässer geeignet, es ist gegen Verkalkung weltgehend unempfindlich. Das Heizsystem sorgt für einechnelle und effiziente Warmwasserversorgung.
4. Einstellungen

26_02_02_0783
1 Teilleistung
Bei geringer Durchflussmenge wird 1/3 der Heizleistung, bei großerer Durchflussmenge 2/3 der Heizleistung geschalte. These Einstellung ist z. B. zum Handewaschen geeignet.
2 Volleistung
Bei geringer Durchflussmenge wird die halbe Heizleistung, bei großerer Durchflussmenge die volte Heizleistung eingeschaltet. Diese Einstellung ist z. B. zum Spülen geeignet.
Rasten Sie den Leistungswahler in der gewünschten Position ein.
Einstellungsempfehlung bei Einsatz von Thermostatarmatur
» Stellen Sie den Leistungswähler auf Vollleistung.
4.1 Einstellungsempfehlung für Armaturen
Hinweis
Wird bei voll geöffnetem Entnahmeventil und Volleistung keine ausreichende Auslauftemperatur erreicht, fließt mehr Wasser durch das Gerät, als das Heizsystem erwärmen kann (Gerät an der Leistungsgrenze).
》 Reduzieren Sie die Wassermenge am Entnahmeventil.
geringe Entnahmemenge = hohe Auslauftemperatur
große Entnahmemenge = geringe Auslauftemperatur
Zweigriff-Armatur
| Leistungsstufe Einsatzbereich | |
| Teilleistung Waschtisch | |
| Volleistung | Badewanne, Dusche, Spülde |
Mischen Sie bei zu hoher Temperatur und voll geöffneter Armatur Kaltwasser zu.
Einhandmischer
| Leistungsstufe Einsatzbereich | |
| Volleistung | alle |
» Drehen Sie den Hebel der Armatur auf die hochste Temperatur.
》Offnen Sie die Armatur vollständig.
Erhöhen Sie die Auslauftemperatur, indem Sie die Armatur langsam schlieben.
» Reduzieren Sie die Auslauftemperatur, indem Sie kaltes Wasser zumischen oder die Armatur, wenn möglich, weiter offen.
Nach Unterbrechung der Wasserversorgung

Sachschaden
Nach Unterbrechung der Wasserversorgung muss das Gerät mit folgenden Schritten wieder in Betrieb genommen werden, damit das Blankdraht-Heizsystem nicht zerstört wird.
» Schalten Sie das Gerät spannungsfrei, indem Sie die Sicherungen ausschalten.
》Offnen Sie die Armatur eine Minute lang, bis das Gerät und die vorgeschaltete Kaltwasser-Zulaufleitung luftfrei sind.
» Schalten Sie die Netzspannung wieder ein.
5. Reinigung, Pflege und Wartung
» Verwenden Sie keine scheuernden oder anlösenden Reinigungsmittel. Zur Pflege und Reinigung des Gerätes genugt ein feuchtes Tuch.
Kontrollieren Sie regelmäßig die Armaturen. Kalk an den Armaturausläufen können Sie mit handelsüblichen Entkalkungsmitteln entfern.
6. Problembehebung
| Problem Ursache Behobung | ||
| Das Gerät schaltet..., voll geöffnetem Warmwasserventil nicht ein. | Es liegt keine Spannung an. | Prüfen Sie die Siche-rungen in der Hausin-stallation. |
| Die Durchflussmengiest zu gering, um die Heizleistung einzuschalten. Der Strahlregler in der Armatur oder der Duschkopf ist verkält oder verschmutzt. | Reinigen und / oder entkalken Sie den Strahlregler oder den Duschkopf. | |
Konnen Sie die Ursache nicht beheben, rufen Sie den Fachhandwerker. Zur betteren und schnellenen Hilfe teilen Sie ihm die Nummer vom Typenschild mit (000000-0000-00000):

D0000041614
INSTALLATION
7. Sicherheit
Die Installation, Inbetriebnahme sowie Wartung und Reparatur des Gerätesarf nur von einem Fachhandwerker durchgeführt werden.
7.1 Allgemeine Sicherheitshinweise
Wir gewährleisten eine einwandfreie Funktion und Betriebsssicherheit nur, wenn das für das Gerät bestimmte Original-Zubehör und die originalen Ersatzteile verwendet werden.

Sachschaden
Beachten Sie die maximale Zulauftemperatur. Bei hohenen Temperaturen kann das Gerät beschädigt werden. Mit dem Einbau einer Zentral-Thermostatatur können Sie die maximale Zulauftemperatur begrenzen.
72 Vorschriften, Normen und Bestimmungen

Hinweis
Beachten Sie alle nationalen und regionalen Vorschriften und Bestimmungen.
Die Schutzart IP 25 (strahlwassergeschützt) ist nur mit sachgemäß montierter Kabeltülle gewährleistet.
- Der spezifische elektrische Widerstand des Wassersarf nicht kleiner sein als auf dem Typenschild angegeben. Bei einem Wasser-Verbundnetz ist der niedrigste elektrische Widerstand des Wassers zu berücksichtigten (siehe Kapitel „Technischen Daten / Einsatzbereiche / Umrechnungstabelle"). Den spezifischen elektrischen Widerstand oder die elektrische Leitfähigkeit des Wassers erfahren Sie bei ihrem Wasserversorgungs-Unternehmen.
8. Gerätebeschreibung
8.1 Lieferumfang
Mit dem Gerät werden geleifert:
Wandaufhängung
Gewindebolzen für die Wandaufhängung
Montageschablone
2 Doppelnippel (Kaltwasser mit Absperrventil)
Flachdichtungen
Kabeltülle (elektrische Zuleitung offen / unter)
Schrauben/Dubel fur zusätzliche Rückwandbefestigung bei Aufputz-Wasseranschluss
9. Vorbereitungen
9.1 Montageort

Sachschaden
Die Installation des Gerätesarf nur im frostfrei. Raum erfolgen.
» Montieren Sie das Gerät senkrecht und in der Näheder Entnahmestelle.
Das Gerät ist für eine Untertisch- und Übertischmontage geeignet.
Untertischmontage

26_02_02_1345
1 Kaltwasser Zulauf
2 Warmwasser Auslauf
Übertischmontage

26_02_02_1344
1 Kaltwasser Zulauf
2 Warmwasser Auslauf

Hinweis
» Montieren Sie das Gerät an die Wand. Die Wand muss ausreichend tragfähig sein.
9.2 Wasserinstallation
- Der Betrieb mit vorgewärmtem Wasser ist nicht zulässig.
Ein Sicherheitsventil ist nicht erforderlich. - Sicherheitsventile in der Warmwasserleitung sind nicht zugelassen.
Spulen Sie die Wasserleitung gut durch.
» Stellen Sie sicher, dass der Volumenstrom (siehe Kapitel „Technische Daten / Datentabelle“, Ein) zum Einsatz den Gerätes erreicht wird. Erhöhen Sie den Wasserleitungsdruck, falls der benötigte Volumenstrom bei voll geöffnetem Entnahmeventil nicht erreicht wird.
Armaturen
Verwenden Sie geeignete Druckarmaturen. Offene Armatures sind nicht zulässig.
Thermostat-Druckarmaturen müssen für hydraulisch gesteuerte Durchlauferhitzer geeignet sein.

Hinweis
Das Absperrventil im Kaltwasserzulauf dürfen Sie nicht zum Drosseln des Durchflusses verwenden. Es dient zur Absperrung des Gerätes.
Zugelassene Werkstoffe der Wasserleitungen
- Kaltwasser-Zulaufleitung:
feuerverzinktes Stahlrohr, Edelstahlrohr, Kupferrohr oder Kunststoffrohr
Warmwasser-Auslaufleitung:
Edelstahlrohr, Kupferrohr oder Kunststoffrohr

Sachschaden
Beim Einsatz von Kunststoff-Rohrsystemen beachten Sie die maximale Zulauftemperatur und den maximal zulässigen Druck (siehe Kapitel „Technische Daten / Datentabelle").
Flexible Wasser-Anschlussleitungen
» Verhindern Sie bei der Installation mit flexiblen Wasser-Anschlussleitungen ein Verdrehen der Rohrbögen mit Bajonett-Verbindungen im Gerät.
» Befestigen Sie die Rückwand unter mit zwei zusätzlichen Schrauben.
10. Montage
10.1 Standard-Montage
Elektranschluss offen, Unterputz-Installation
Wasseranschluss Unterputz-Installation
Weitere Montagemöglichkeiten siehe Kapitel „Montage-Alternative“:
Elektronschluss Unterputz unter
Elektroanschluss Aufputz
Anschluss eines Lastabwurfrelais
Wasserinstallation Aufputz
Wasseranschluss Unterputz bei Geräteustausch

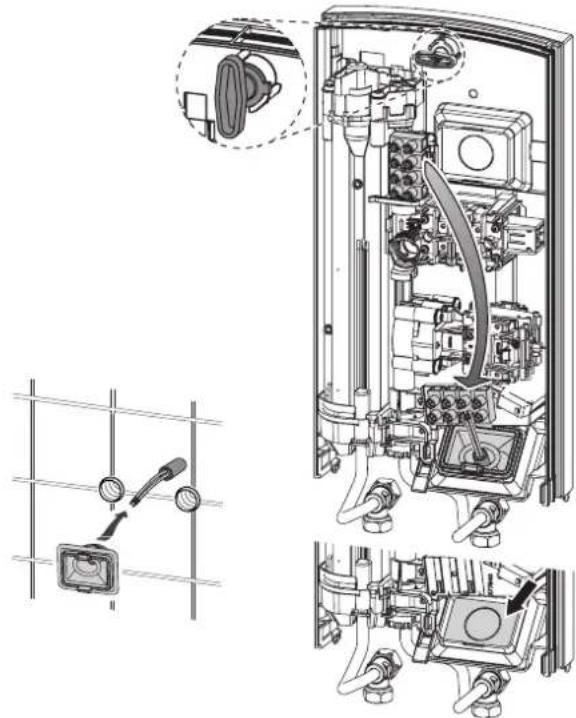
Gerätöffnen
» Öffnen Sie das Gerät, indem Sie den Rastverschluss entriegeln.

» Trennen Sie die Rückwand, indem Sie die beiden Rasthaken drücken und das Rückwandunterteil nach vorn abziehen.
NetzanschlusskabelVBorbereiten

26_02_02_0887
Wandaufhängung montieren

26_02_02_0972
» Zeichnen Sie die Bohrlocher mit der Montageschablone an. Bei der Montage mit Aufputz liegenden Wasseranschlüssen müssen Sie zusätzlich die Befestigungslöcher im unteren Teil der Schablone anzeichen.
Bohren Sie die LÖcher und befestigen Sie die Wandlaufhangung mit 2 Schrauben und 2 Dubeln (Schrauben und Dubel gehören nicht zum Lieferumfang).
» Montieren Sie den beiligenden Gewindebolzen.
» Montieren Sie die Wandaufhängung.
Kabeltülle montieren

26_02_02_0950
» Montieren Sie die Kabeltülle. Bei einem Anschluss-kabel >6mm^2 müssen Sie das Loch in der Kabeltülle vergroßern.
Wasseranschluss herstellen

Sachschaden
Führer Sie alle Wasseranschluss- und Installationsarbeiten nach Vorschrift aus.

» Dichten und schrauben Sie die Doppelnippel ein.

Sachschaden
Das Absperrentil im Kaltwasserzulauf dürfen Sie nicht zum Drosseln des Durchflusses verwenden.
RückwandVBoreiten

Sachschaden
Sollten Sie versehentlich ein falsches Loch in die Rückwand brechen, müssen Sie eine neue Rückwand verwenden.

000000000000000000000000000000000000000
» Brechen Sie die Sollbruchstelle für die Kabeltülle in der Rückwand aus. Entgraten Sie gegebenenfalls scharfe Kanten mit einer Feile.
Gerat montieren

0000041897
» Stecken Sie die Rückwand über den Gewindebolzen und die Kabeltülle. Ziehen Sie die Kabeltülle mithilfe einer Zange an den Rasthaken in die Rückwand, bis beide Rasthaken horbar einrasten.
Entfernen Sie die Transportschutzstopfen aus den Wasseranschlüssen.
» Drücken Sie die Rückwand fest an und verriegeln Sie den Befestigungsknebel durch eine Rechtsdrehung um 90^ .

» Schrauben Sie die Wasseranschlussrohre mit den Flachdichtungen auf die Doppelnippel.

Sachschaden
Für die Funktion des Gerätes muss das Sieb eingebaut sein.
» Prufen Sie beim Geräteausstausch, ob das Sieb vorhanden ist (siehe Kapitel „Wartung").
Elektranschluss herstellen

WARNING Stromschlag
Führer Sie alle elektrischen Anschluss- und Installationsarbeiten nach Vorschrift aus.

WARNING Stromschlag
Der Anschluss an das Stromnetz ist nur als fester Anschluss in Verbindung mit der herausnehmbaren Kabeltülle erlaubt. Das Gerät muss über eine Trennstrecke von mindestens 3 mm allpolig vom Netzanschluss getrennt werden können.

WARNING Stromschlag
Achten Sie darauf, dass das Gerät an den Schutzleiter angeschlossen ist.

Sachschaden
Beachten Sie das Typenschild. Die angegebene Spannung muss mit der Netzspannung übereinstimmen.
» Schließen Sie das Elektroanschlusskabel an die Netzanschlussklemme an (siehe Kapitel „Technische Daten / Elektroschaltplan").
Rückwandunterteil montieren

26_02_02_1348
» Montieren Sie das Rückwandunterteil in die Rückwand und rasten Sie das Rückwandunterteil ein.
Richten Sie das montierte Gerät aus, indem Sie den Befestigungsknebel lösen, den Elektroanschluss und die Rückwand ausrichten und den Befestigungsknebel wieder festdrehen. Liegt die Geräterückwand nicht an, konnen Sie das Gerät unter mit zwei zusätzlichen Schrauben befestigen.
10.2 Montage-Alternativen
10.2.1 Elektroanschluss Unterputz unter

D0000041898
» Montieren Sie die Kabeltülle.

Sachschaden
Sollten Sie versehentlich ein falsches Loch in die Rückwand brechen, müssen Sie eine neue Rückwand verwenden.
» Brechen Sie die Sollbruchstelle für die Kabeltüle in der Rückwand aus. Entgraten Sie gegebenenfalls scharfe Kanten mit einer Feile.
» Versetzen Sie die Netzanschlussklemme im Gerät von oben nach unter.
» Stecken Sie die Rückwand über den Gewindebolzen und die Kabeltülle. Ziehen Sie die Kabeltülle mithilfe einer Zange an den Rasthaken in die Rückwand, bis beide Rasthaken horbar einrasten.
» Drücken Sie die Rückwand fest an und verriegeln Sie den Befestigungsknebel durch eine Rechtsdrehung um 90^ .
10.2.2 Elektroanschluss Aufputz

Hinweis
Bei dieser Anschlussartändert sich die Schutzart des Gerätes.
» Ändern Sie das Typenschild. Streichen Sie die Angabe IP 25 durch und kreuzen Sie das Kästchen IP 24 an. Verwenden Sie dazu einen Kugelschreiber.

Sachschaden
Sollten Sie versehentlich ein falsches Loch in die Rückwand brechen, müssen Sie eine neue Rückwand verwenden.
» Schneiden oder brechen Sie die benötigte Durchführung in der Rückwand sauber hers aus (Positionen siehe Kapitel „Technische Daten / Maße und Anschlüsse"). Entgraten Sie gegebenenfalls scharfe Kanten mit einer Feile.
» Führer Sie das Elektroanschlusskabel durch die Kabeltüle und schreiben deses an die Netzanschlussklemme an.
10.2.3 Anschluss eines Lastabwurfrelais
Setzen Sie ein Lastabwurfrelais in Kombination mit anderen Elektrogeräten, z. B. Elektrospeicherheizgeräten, in der Elektroverteilung ein. Der Lastabwurf erfolgt bei Betrieb des Durchlauferhitzers.

Sachschaden
Schlieben Sie die Phase, die das Lastabwurfrelais schaltet, an die gekennzeichne Klemme der Netzanschlussklemme im Gerät an (siehe Kapitel „Technische Daten / Elektroschaltplan").
10.2.4 Wasserinstallation Aufputz

Hinweis
Bei dieser Anschlussartändert sich die Schutzart des Gerätes.
» Ändern Sie das Typenschild. Streichen Sie die Angabe IP 25 durch und kreuzen Sie das Kästchen IP 24 an. Verwenden Sie dazu einen Kugelschreiber.

26_02_02_0765
» Montieren Sie Wasserstopfen mit Dichtungen, um den Unterputzanschluss zu verschiedenen.
» Montieren Sie eine geeignete Druckarmatur.

26.02-02-1008
Rasten Sie das Rückwand-Unterteil in das Rückwand-Oberteil ein.
» Verschrauben Sie die Anschlussrohre mit dem Gerät.
» Befestigen Sie die Rückwand unter mit zwei zusätzlichen Schrauben.
» Brechen Sie die Durchführungen in der Gerätekappe sauber aus. Entgraten Sie gegebenenfalls scharfe Kanten mit einer Feile.
» Schieben Sie das Rückwandunterteil unter die Anschlussrohe der Armatur und rasten Sie das Rückwandunterteil ein.
» Verschrauben Sie die Anschlussrohre mit dem Gerät.
10.3 Montage abschreiben
» Öffnen Sie das Absperrentil im Doppelnippel oder in der Kaltwasserzulaufleitung.
11. Inbetriebnahme

WARNING Stromschlag Die Inbetriebnahmearf nur durch einen Fachhandwerker unter der Beachtung der Sicherheitsvorschriften erfolgen.
11.1 Erstinbetriebnahme



D0000041620
» Öffnen und schlieben Sie mehrfach alle angeschlossenen Entnahmeventile, bis das Leitungsnetz und das Gerät luftfrei sind.
» Führn Sie eine Dichttheitskontrolle durch.
» Aktivieren Sie den Sicherheitsdruckbegrenzer, indem Sie die Rücksetztaste fest eindrücken (das Gerät wird mit deaktiviertem Sicherheitsdruckbegrenzer geliefert).
» Montieren Sie die Gerätekappe, bis diese hörbar einrastet. Prufen Sie den Sitz der Gerätekappe.
» Schalten Sie die Netzspannung ein.
» Prüfen Sie die Arbeitsweise des Gerätes.
Übergabe des Gerätes
» Erklaren Sie dem Benutzer die Funktion des Gerätes und machen Sieihn mit dem Gebrauch des Gerätes vertraut.
» Weisen Sie den Benutzer auf mögliche Gefahren hin, speziell die Verbrühungsgefahr.
Übergeben Sie diese Anleitung.
11.2 Wiederinbetriebnahme
Entlüften Sie das Gerät und die Kaltwasserzulaufleitung (siehe Kapitel „Einstellungen").
Siehe Kapitel „Erstinbetriebnahme".
12. Außerbetriebnahme
Trennen Sie das Gerat allpolig vom Netzanschluss.
» Entleeren Sie das Gerät (siehe Kapitel „Wartung").
13. Störungsbehebung
| Störung Ursache Behebung | ||
| Der Durchfluss ist zu gering. | Das Sieb im Gerät ist verschmutzt. | Reinigen Sie das Sieb. |
| Durchflussmengen-regler schaltetTOTz voll geöffneter Arma-tur nicht ein. | Erforderliche Ein-schaltmenge zum Einsatzten der Heiz-leistung wird nicht erreicht. | Reinigen Sie das Sieb. |
| Gerät erzeugt trotz hörbarem Einschlatt-geräusch des Diffe- renzdruckschalters kein warmes Wasser. | Der Sicher-heits-Druckbegrenzer (AP 3) hat aus Si- cherheitsgründen das Gerät ausgeschaltet. | Beseitigen Sie die Fehlerursache (z. B. ein defekter Druck-spürler). |
| Schützen Sie das Heizsystem vor Überhitzung, indem Sie ein dem Gerät nachgeschaltetes Ent-nahmeventil eine Mi- nute öffnen. Dadurch wird das Heizsystem druckentlastet und abgekühlt. | ||
| Aktivieren Sie den Si- cherheitsdruckbegren-zer bei Fließdruck, indem Sie die Rück-setztaste drücken (siehe Kapitel „Erstin-betriebnahme"). | ||
| Das Heizsystem ist defekt. | Messen Sie den Widerstand des Heiz- systems und tauschen Sie den Widerstand ggf. aus. | |
14. Wartung

WARNING Stromschlag Trennen Sie bei allen Arbeiten das Gerät allpolig vom Netzanschluss.
Geräntleeren
Das Gerät konnen Sie für Wartungsarbeiten entleeren.

WARNING Verbrennung Beim Entleeren des Gerätes kann heiBs Wasser austreten.
» Schlieben Sie das Absperrventil im Doppelnippel oder in der Kaltwasserzulaufleitung.
》Öffnen Sie die alle Entnahmeventile.
Losen Sie die Wasseranschlüsse vom Gerät.
»Lagern Sie ein demontiertes Gerät frostfrei, da sich Restwasser im Gerät befindet, das gefrierten und Schäden verursachen kann.
Sieb reinigen

2602020949
Reinigen Sie bei Verschmutzung das Sieb im Kaltwasser-Schraubanschluss. Schlieben Sie das Absperrventil
in der Kaltwasserzulaufleitung, bevor Sie das Sieb ausbauen, reinigen und wieder einbauen.
15. Technische Daten
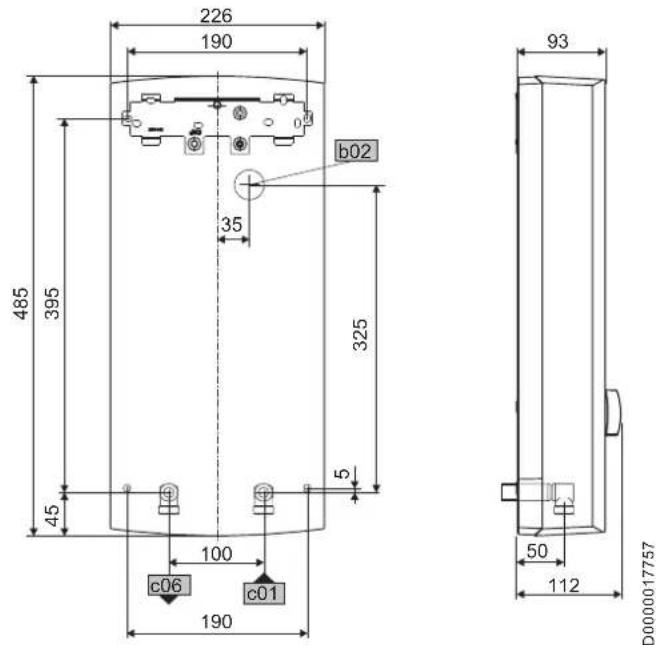
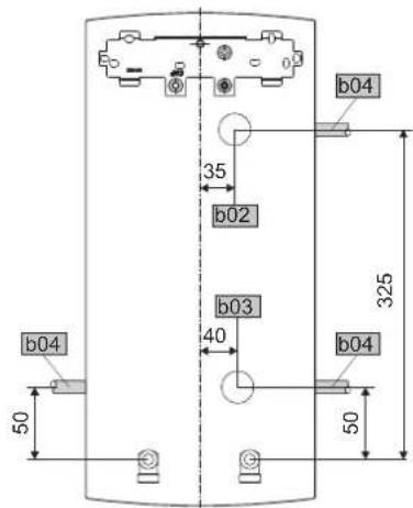
15.1 Maße und Anschlüsse

| b02 | Durchführung elektrische Leitungen I | ||
| c01 | Kaltwasser Zulauf | Außengewinde | G 1/2 A |
| c06 | Warmwasser Auslauf | Außengewinde | G 1/2 A |
Alternative Anschlussmöglichkeiten

D0000019778
| b02 | Durchführung elektrische Leitungen I |
| b03 | Durchführung elektrische Leitungen II |
| b04 | Durchführung elektrische Leitungen III |
15.2 Elektroschaltplan

3/PE 400V
85.02.02.0002

Vorrangschaftung mit LR 1-A
0000
1 Steuerleitung zum Schaltschutz des 2. Gerätes (z. B. Elektrospeicherheizgerät).
2 Steuerkontakt 口 offnet beim Einsatz den Durchlauferhitzers.
15.3 Warmwasserleistung
Die Warmwasserleistung ist abhängig von der anliegenden Netzspannung, der Anschlussleistung des Gerätes und der Kaltwasser-Zulauftemperatur. Die Nennspannung und die Nennleistung entnehmer Sie dem Typenschild (siehe „Kapitel „Problembehbung").
| Anschlussleistung in kW 38 | °C Warmwasserleitung in l/min. | |||
| Nennspannung Kaltwasser-Zulauftemperatur | ||||
| 400 V | 5 °C 10 °C | 15 °C 20 °C | ||
| 13,5 | 5,8 | 6,9 | 8,4 | 10,7 |
| 18,0 | 7,8 | 9,2 | 11,2 | 14,3 |
| 21,0 | 9,1 | 10,7 | 13,0 | 16,7 |
| 24,0 | 10,4 | 12,2 | 14,9 | 19,0 |
| Anschlussleistung in kW | 50 °C | Warmwasserleistung in l/min. | ||
| Nennspannung | Kaltwasser-Zulauftemperatur | |||
| 400 V | 5 °C | 10 °C | 15 °C | 20 °C |
| 13,5 | 4,3 | 4,8 | 5,5 | 6,4 |
| 18,0 | 5,7 | 6,4 | 7,3 | |
| 21,0 | 6,7 | 7,5 | 8,6 | |
| 24,0 | 7,6 | 8,6 | 9,8 | |
15.4 Einsatzbereiche / Umrechnungstabelle
Spezifischer elektrischer Widerstand und spezifische elektrische Leitfähigkeit (siehe Kapitel „Datentabelle").
| Normangabe bei15 °C | 20 °C | 25 °C | ||||||
| Wider-standp ≥ | Leitfähigkeitσ ≤ | Wider-standp ≥ | Leitfähigkeitσ ≤ | Wider-standp ≥ | Leitfähigkeitσ ≤ | |||
| Ωcm | mS/m | μS/cm | Ωcm | mS/m | μS/cm | Ωcm | mS/m | μS/cm |
| 900 | 111 | 1111 | 800 | 125 | 1250 | 735 | 136 | 1361 |
15.5 Druckverluste
Armaturen
| Druckverlust der Armaturen bei Volumenstrom 10 l/min | ||
| Einhandmischer, ca. | MPa | 0,04 - 0,08 |
| Thermostatarmatur, ca. | MPa | 0,03 - 0,05 |
| Handbrause, ca. | MPa | 0,03 - 0,15 |
Rohrnetz-Dimensionierungen
Zur Berechnung der Rohrnetz-Dimensionierungen wird für das Gerät ein Druckverlust von 0,1 MPa empfohlen.
15.6 Störfallbedingungen
Im Störfall konnen in der Installation kurzfristig Belastungen von maximal 95^ bei einem Druck von 1,2 MPa aufreten.
15.7 Angaben zum Energieverbrauch
Die Produktdaten entsprehen den EU-Verordnungen zur Richtlinie für umweltgerechte Gestaltung energieverbrauchs-relevanter Produkte (ErP).
| DDLT PinControl 13 DDLT PinControl 18 DDLT PinControl 21 DDLT PinControl 24 | |||||
| 222384 222385 222386 222387 | |||||
| Hersteller | AEG Haustechnik | AEG Haustechnik | AEG Haustechnik | AEG Haustechnik | |
| Lastprofil | XS | S | S | S | |
| Energieeffizienzklasse | A | A | A | A | |
| Jährlicher Stromverbrauch | kWh | 469 | 483 | 483 | 483 |
| Energetischer Wirkungsgrad | % | 39 | 38 | 38 | 38 |
| Temperatureinstellung ab Werk | °C | - | - | - | - |
| Schallleistungspegel | dB(A) | 15 | 15 | 15 | 15 |
| Besondere Hinweise zur Effizienzmessung | keine | keine | keine | keine | |
15.8 Datentabelle
| DDLT PinControl 13 | DDLT PinControl 18 | DDLT PinControl 21 | DDLT PinControl 24 | ||
| 222384 | 222385 | 222386 | 222387 | ||
| Elektrische Daten | |||||
| Nennspannung | V | 400 | 400 | 400 | 400 |
| Nennleistung 400 V Stufe I min. | kW | 4,6 | 6,3 | 7,4 | 8,3 |
| Nennleistung 400 V Stufe I max. | kW | 10,6 | 14,3 | 16,8 | 19,0 |
| Nennleistung 400 V Stufe II min. | kW | 6,8 | 9,2 | 10,8 | 12,2 |
| Nennleistung 400 V Stufe II max. | kW | 13,3 | 18,0 | 21,1 | 23,8 |
| Nennleistung | kW | 13,5 | 18 | 21 | 24 |
| Nennstrom | A | 19,5 | 26 | 31 | 35 |
| Absicherung | A | 20 | 25 | 32 | 35 |
| Phasen | 3/PE | 3/PE | 3/PE | 3/PE | |
| Frequenz | Hz | 50 | 50 | 50 | 50 |
| Spezifischer Widerstand ρ15 ≥ (bei θkalt ≤25°C) | Ω cm | 900 | 900 | 900 | 900 |
| Spezifische Leitfähigkeit σ15 ≤ (bei θkalt ≤25°C) | μS/cm | 1111 | 1111 | 1111 | 1111 |
| Ausführungen | |||||
| Schutzart (IP) | IP25 | IP25 | IP25 | IP25 | |
| Schutzklasse | 1 | 1 | 1 | 1 | |
| Isolierblock | Kunststoff | Kunststoff | Kunststoff | Kunststoff | |
| Heizsystem Wärmeerzeuger | Blankdraht | Blankdraht | Blankdraht | Blankdraht | |
| Anschlüsse | |||||
| Wasseranschluss | G 1/2 A | G 1/2 A | G 1/2 A | G 1/2 A | |
| Einsatzgrenzen | |||||
| Max. zulässiger Druck | MPa | 1 | 1 | 1 | 1 |
| Werte | |||||
| Max. zulässige Zulauftemperatur | °C | 25 | 25 | 25 | 25 |
| Ein I. Stufe | l/min | 2,4 | 3,0 | 3,5 | 4,1 |
| Ein II. Stufe | l/min | 3,9 | 4,9 | 5,6 | 6,3 |
| Druckverlust bei Volumenstrom | MPa | 0,09 | 0,11 | 0,13 | 0,15 |
| Volumenstrom für Druckverlust | l/min | 3,9 | 4,5 | 5,6 | 6,3 |
| Volumenstrom-Begrenzung bei | l/min | 4,7 | 5,9 | 7,0 | 7,8 |
| Warmwasserdarbietung | l/min | 7,0 | 9,4 | 11,1 | 12,5 |
| Δθ bei Darbietung | K | 26 | 26 | 26 | 26 |
| Hydraulische Daten | |||||
| Nenninhalt | I | 0,4 | 0,4 | 0,4 | 0,4 |
| Dimensionen | |||||
| Höhe | mm | 485 | 485 | 485 | 485 |
| Breite | mm | 226 | 226 | 226 | 226 |
| Tiefe | mm | 93 | 93 | 93 | 93 |
| Gewichtete | |||||
| Gewicht | kg | 3,6 | 3,6 | 3,6 | 3,6 |
Entsorgung von Transport- und Verkaufsverpackungsmaterial
Damit Ihr Gerät unbeschädigt bei Ohnen ankomm, haben wir es sorgfältig verpackt.itte halten Sie, die Umwelt zu schützen, und entsorgen Sie das Verpackungsmaterial des Gerätes sachgerecht. Wir beteilig den uns gemeinsam mit dem Großhandel und dem Fachhandwerk/Fachhandel in Deutschland an einem wirksamen Rücknahme- und Entsorgungskonzept für die umweltschonende Aufarbeitung der Verpackungen.
Überlassen Sie die Transportverpackung dem Fachhandwerker beziehungsweise dem Fachhandel.
Entsorgen Sie Verkaufsverpackungen über eines der Dualen Systeme in Deutschland.
Entsorgung von Altgeräten in Deutschland

Geräteentsorgung
Die mit diesen Symbol gekennzeichneten Geräte dürfen nicht mit dem Hausmüll entsorgt werden.
Als Hersteller sorgen wir im Rahmen der Produktverantwortung für eine umweltgerechte Behandlung und Verwertung der Altgeräte. Weitere Informationen zur Sammlung und Entsorgung erhalten Sie über ihre Kommune oder ihren Fachhandwerker / Fachhandlör.
Bereits bei der Entwicklung neuer Geräte achten wir auf eine hohe Recyclingfähigkeit der Materialien.
Über das Rücknahmesystem werden hohe Recyclingquoten der Materialien erreicht, um Deponien und die Umwelt zu entlasten. Damit leisten wir gemeinsam einen wichtigen Beitrag zum Umweltschutz.
Entsorgung außerhalb Deutschlands
Entsorgen Sie these Gerät fach- und sachgerecht nach den örtlich geltenden Vorschriften und Gesetzen.
Erreichbarkeit
Sollte einmal eine Störung an einem unserer Produkte auftreten, stehen wir Ihnen natürlich mit Rat und Tat zur Seite.
EHT Haustechnik GmbH
Kundendienst
Fürstenberger Straße 77
37603 Holzminden
Tel. 05531 702-111
Fax 05531 702-95890
info@eht-haustechnik.de
Weitere Anschriften sind auf der letzten Seite aufgeführrt.
Unseren Kundendienst erreichen Sie Telefonisch rund um die Uhr, auch an Samstagen und Sonntagen sowie an Feiertagen. Kundendiensteinsätze erfolgen während unserer Geschäftszeiten (von 7.30 bis 16.30 Uhr, freiags bis 14.00 Uhr). Als Sondere service bieten wir Kundendiensteinsätze bis 22 Uhr. Für diesen Sondere service sowie Kundendiensteinsätze an Sams-, Sonn- und Feiertagen werden hochere Preis berechnet.
Garantiebedingungen
These Garantiebedingungen regeln zusätzliche Garantieleistungen von uns gegenüber dem Endkunden. Sie treten neben die gesetzlichen Gewährleistungsansprüche des Kunden. Die gesetzlichen Gewährleistungsansprüche gegenüber den sonstigen Vertragspartnern sind nicht berührt.
These Garantiebedingungen gelten nur für solche Geräte, die vom Endkunden in der Bundesrepublik Deutschland als Neugeräte erworben werden. Ein Garantievertrag kommt nicht zustande, soweit der Endkunde ein gebrauchtes Gerät oder ein neues Gerät seinerits von einem anderen Endkunden erworbt.
Inhalt und Umfang der Garantie
Die Garantieleistung wird erbracht, wenn an unseren Geräten ein Herstellungs- und/oder Materialfehler innerhalb der Garantiedauer auftritt. Die Garantie umfasst jedoch keine Leistungen für solche Geräte, an denen Fehler, Schäden oder Mängel aufgrund von Verkalkung, chemischer oder elektronchemischer Einwirkung, fehlerhafter Aufstellung bzw. Installation sowie unsachgemäß Einregulierung, Bedienung oder unsachgemäß Inanspruchnahme bzw. Verwendung auftreten. Ebenso ausgeschlossen sind Leistungen aufgrund mangelhafter oder unterlassener Wartung, Witterungseinflüssen oder sonstigen Naturerscheinungen. Die Garantie erlischt, wenn am Gerät Reparaturen, Eingriffe oder Abänderungen durch nicht von uns autorisierte Personen vorgenommen wurden.
Die Garantieleistung umfasst die sorgfaltige Prüfung des Gerätes, wobei zunachst ermittelt wird, ob ein Garantieanspruch besteht. Im Garantiefall entscheiden allein wir, auf welche Art der Fehler behoben wird. Es steht uns frei, eine Reparatur des Gerätes ausführten zu halten oder selbst auszuführen. Etwaige ausgewechelte Teile werden unser Eigentum. Für die Dauer und Reichweite der Garantie übernehmen wirSAMTliche Material- und Montagekosten.
Soweit der Kunde wegen des Garantiefalles aufgrund gesetzlicher Gewährleistungsansprüche gegen andere Vertragspartner Leistungen erhalten hat, entfällt eine Leistungspflicht von uns.
Soweit eine Garantieleistung erbracht wird, übernehmen wir keine Haftung für die Beschädigung eines Gerätes durch Diebstahl, Feuer, Aufruhr oder ähnliche Ursachen.
Über die vorstehend zugesagten Garantieleistungen hinausgehend kann der Endkunde nach dieser Garantie keine Ansprüche wegen mittelbarer Schäden oder Folgeschäden, die durch das Gerät verursacht werden, insbesondere auf Ersatz außerhalb des Gerätes entwickender Schäden, geltend machen. Gesetzliche Ansprüche des Kunden uns gegenüber oder gegenüber Dritten bleiben unberührt.
Garantiedauer
Für im privaten Haushalt eingesetzte Geräte beträgt die Garantiedauer 24 Monate; im Übrigen (zum Beispiel bei einem Einsatz der Geräte in Gewerbe-, Handwerks- oder Industriebetrieben) beträgt die Garantiedauer 12 Monate. Die Garantiedauer beginnnt für jedem Gerät mit der Übergabe des Gerätes an den Kunden, der das Gerät zum ersten Mal einsetzt. Garantieleistungen führen nicht zu einer Veränderung der Garantiedauer. Durch die erbrachte Garantieleistung wird keine neue Garantiedauer in Gang gesetzt. Dies gilt für alle erbrachten Garantieleistungen, insbesondere für etwa eingebaute Ersatzteile oder für die Ersatzlieferung eines neuen Gerätes.
Inanspruchnahme der Garantie
Garantieansprüche sind vor Ablauf der Garantiedauer, innerhalb von zwei Wochen, nach dem der Mangel erkannt wurde, bei uns anzumelden. Dabei müssen Angaben zum Fehler, zum Gerät und zum Zeitpunkt der Feststellung gemacht werden. Als Garantienachweis ist die Rechnung oder ein sonstiger datierter Kaufnachweis beizufugen. Fehlen die vorgenannten Angaben oder Unterlagen, besteht kein Garantieanspruch.
Garantie für in Deutschland erworbene, jedoch außerhalb Deutschlands eingesetzte Geräte
Wir sind nicht verpflichtet, Garantieleistungen außerhalb der Bundesrepublik Deutschland zu erbringen. Bei Störungen eines im Ausland eingesetzten Gerätes ist diese gegebenenfalls auf Gefahr und Kosten des Kunden an den Kundendienst in Deutschland zu senden. Die Rücksendung erfolgt ebenfalls auf Gefahr und Kosten des Kunden. Etwaige gesetzliche Ansprüche des Kunden uns gegenüber oder gegenüber Dritten bleiben auch in thisem Fall unberührt.
Außerhalb Deutschlands erworbene Geräte
Für außerhalb Deutschlands erworbene Geräte gilt diese Garantie nicht. Es gelten die jeweiligen gesetzlichen Vorschriften und gegebenenfalls die Lieferbedingungen der Ländergesellschaft bzw. des Importeurs.
SPECIAL INFORMATION
OPERATION
8. Description de l'ordinateil
8.1 Fournitures
VOORZICHTIG verbranding
12. Buitendienststellung
15. Te technische gegevens
13. Usuwanie usterek
10.2.1 Elektrühendus - krohvialune, all

Paigaldage kaabli labiviik.

Varaline kahju
Adressen und Kontakte
Vertriebszentrale
EHT Haustechnik GmbH
Markenvertrieb AEG
Gutenstetter Straße 10
90449 Nurnberg
info@eht-haustechnik.de
www.aeg-haustechnik.de
Tel. 0911 9656-250
Fax 0911 9656-444
Kundendienstzentrale
Holzminden
Fürstenberger Str. 77
37603 Holzminden
Briefanschrift
37601 Holzminden
Der Kundendienst und Ersatzteilverkauf
ist in der Zeit von
Montag bis Donnerstag
von 7.15 bis 18.00 Uhr und
Freitag von 7.15 bis 17.00 Uhr,
auch unter den nachfolgenden Telefon- bzw.
Telefaxnummern erreichbar:
Kundendienst
Tel. 0911 9656-56015
Fax 0911 9656-56890
kundendienst@eht-haustechnik.de
Ersatzteilverkauf
Tel. 0911 9656-56030
Fax 0911 9656-56800
ersatzteile@eht-haustechnik.de
info@eht-haustechnik.de
www.aeg-haustechnik.de
EHT Haustechnik

International
Australia
STIEBEL ELTRON Australia Pty. Ltd.
6 Prohasky Street
Port Melbourne VIC 3207
Tel. 03 9645-1833
Fax 039645-4366
Austria
STIEBEL ELTRON Ges.m.b.H.
EferdingerStr.73
4600 Wels
Tel. 07242 47367-0
Fax 07242 47367-42
Belgium
STIEBEL ELTRON bvba/sprl
t Hofveld 6 - D1
1702 Groot-Biiggaarden
Tel. 0242322-22
Fax 0242322-12
Czech Republic
STIEBEL ELTRON spel. s r.o.
K Hajum 946
155 00 Praha 5 - Stodulky
Tel. 251116-111
Fax 235512-122
Hungary
STIEBEL ELTRON Kft.
Gyaru.2
2040 Budaörs
Tel. 01 250-6055
Fax 01368-8097
Netherlands
STIEBEL ELTRON Nederland B.V.
Daviottenweg 36
5222 BH 's-Hertogenbosch
Tel. 073 623-0000
Fax 073623-1141
Poland
STIEBEL ELTRON Polska Sp. z O.O.
ul. Dzialkowa 2
02-234 Warsz
Tel. 022 60920-30
Fax 022 60920-29
Russia
STIEBEL ELTRON LLC RUSSIA
EinfachAnleitung