MF7200D - 缝纫机 JUKI - 免费用户手册

免费查找设备手册 MF7200D JUKI PDF格式.

📄 277 页 中文 ZH 💬 AI提问
Notice JUKI MF7200D - page 198

下载您的设备说明 缝纫机 免费PDF格式!查找您的手册 MF7200D - JUKI 并重新掌握您的电子设备。本页发布了使用您的设备所需的所有文档。 MF7200D 品牌 JUKI.

用户手册 MF7200D JUKI

᤽⽰↙⺤Ⲻ䖢ࣞᯯȾ ᴿཪ䜞᧛䀜ࡦ㕓㓡ᵰⲺধ䲟Ⱦ ᤽⽰൦㓵Ⲻ䘔᧛Ⱦ

᤽⽰↙⺤Ⲻ䖢ࣞᯯȾ ᴿཪ䜞᧛䀜ࡦ㕓㓡ᵰⲺধ䲟Ⱦ ᤽⽰൦㓵Ⲻ䘔᧛Ⱦ

使用缝纫机之前,请一定向加油口加入 JUKI 指定机油。 第一次使用缝纫机之前,请把缝纫机打扫干净。 请把运送中积的灰尘打扫干净。 请确认设定的电压是否正确。 请确认电源插头是否正确地插好。 电源规格不同的情况时,请绝对不要使用缝纫机。 缝纫机的转动方向从皮带轮侧看为顺时针方向转动。请注意不要让缝纫机倒转。 运转缝纫机时,请正确地设置到机台之后再打开电源开关。 最初的第 1 个月,请降低缝纫速度,在转速 3,500sti/min 以下使用。 待缝纫机确实停止之后再操作飞轮。缝纫机确实地停止之后,再转动皮带轮。 为了避免机械的错误动作或损伤,请确认如下项目内容。 运转缝纫机前的注意事项

1. 为了防止因触电造成的事故,请不要在打开电源的状态下触摸马达电气箱的盖子、电气箱内的零件。

1. 打开电源开关时和缝纫机运转中,请不要把手指放到机针下附近。 2. 缝纫机运转中,请不要把手指、头发、衣服靠皮带轮和机针下附近,也不要把物体放到

3. 请不要在卸下皮带罩、手指防护罩和眼睛防护罩等安全装置的状态运转缝纫机。 4. 检查、调整、清扫缝纫机,穿线,更换机针等时,请一定关闭电源,确认了踩踏起动踏板缝纫机也不动作后再进行操作。 5. 为了确保安全,请在卸下电源地线的状态不要运转缝纫机。 6. 插拔电源插头时,请一定事先关掉电源开关。 7. 打雷时,为了确保安全,请停止作业,拔掉电源插头。 8. 从寒冷的地方移动到温暖的地方后等时,有可能发生结露,所以请等水滴完全干燥后再打开电源。 9. 进行保养、检查、修理作业时,请一定关闭电源,确认缝纫机和马达完全停止之后再进行操作。(使用离合马达时,请注意关闭电源后马达由于惯性仍然会继续转动一段时间。)10. 因为本产品属于精密机器,所以操作时请充分注意,不要把水、油溅到机器上面,也不要让机器掉落给与机器冲击。

为了安全地使用 MF-7200D 系列的缝纫机的注意事项

另外,在使用说明书中为了突出说明的重点,有的地方省略显示了「眼睛防护罩」、「手指防护器」等安全装置,请了解。但是实际使用时,请绝对不要卸下这些安全装置。vi

使用机针 UY128GAS #9S 〜 #12S(标准 #10S)

针杆行程 31mm 外观尺寸 高度∶ 450× 左右∶ 444× 前后∶ 285 质量 42kg压脚上升量 6mm(针幅 5.6mm 无上装饰)、5mm(有上装饰) 装备有微量压脚提升机构送布调节方法 主送布 ------ 拨盘式缝迹间距调节方式 差动送布 ---- 拨杆调节方式(装备有微调机构) 弯针机构 球面杆驱动方式润滑方法 齿轮泵强制润滑加油方式

润滑油 JUKI MACHINE OIL 18

半干式机头细筒型双面装饰扁平缝缝纫机型式 MF-7200D 系列缝迹形式 ISO 规格  406 、407 、602 、605用途例 针织、编织产品的包边缝、包布缝最高缝纫速度 最高缝纫速度 4,000 sti/min(间歇运转时) 3 根针 ----5.6mm、6.4mm 2 根针 ----3.2mm、4.0mm、4.8mm差动送布比 1 ∶ 0.8 〜 1 ∶ 1.8(缝迹长度 3.2mm 以下) 装备有微量差动送布调节机构(微调整)缝迹长度 1.4mm 〜 3.2mm(经调整可至 4.2mm)使用机针 UY128GAS #9S 〜 #12S(标准 #10S)针杆行程 31mm 外观尺寸 高度∶ 450× 左右∶ 444× 前后∶ 285 质量 42kg压脚上升量6mm(针幅 5.6mm 无上装饰)、5mm(有上装饰) 装备有微量压脚提升机构送布调节方法主送布 ------ 拨盘式缝迹间距调节方式 差动送布 ---- 拨杆调节方式(装备有微调机构)弯针机构 球面杆驱动方式润滑方法 齿轮泵强制润滑加油方式润滑油 JUKI MACHINE OIL 18贮油量 油尺下线 600cc 〜上线 900cc安装方法 上部安装式、半落地式– 2 –

  • 使用缝纫机之前,请一定向加油口加入 JUKI 指定机油。• 第一次使用缝纫机之前,请把缝纫机打扫干净。• 请把运送中积的灰尘打扫干净。• 请确认设定的电压是否正确。• 请确认电源插头是否正确地插好。• 电源规格不同的情况时,请绝对不要使用缝纫机。• 缝纫机的转动方向从皮带轮侧看为顺时针方向转动。请注意不要让缝纫机倒转。• 运转缝纫机时,请正确地设置到机台之后再打开电源开关。• 最初的第 1 个月,请降低缝纫速度,在转速 3,500sti/min 以下使用。
  • 待缝纫机确实停止之后再操作飞轮。缝纫机确实地停止之后,再转动皮带轮。 为了避免机械的错误动作或损伤,请确认如下项目内容。 运转缝纫机前的注意事项

1. 为了防止因触电造成的事故,请不要在打开电源的状态下触摸马达电气箱的盖子、电气

箱内的零件。1. 打开电源开关时和缝纫机运转中,请不要把手指放到机针下附近。

2. 缝纫机运转中,请不要把手指、头发、衣服靠皮带轮和机针下附近,也不要把物体放到

3. 请不要在卸下皮带罩、手指防护罩和眼睛防护罩等安全装置的状态运转缝纫机。

4. 检查、调整、清扫缝纫机,穿线,更换机针等时,请一定关闭电源,确认了踩踏起动踏

板缝纫机也不动作后再进行操作。 5. 为了确保安全,请在卸下电源地线的状态不要运转缝纫机。 6. 插拔电源插头时,请一定事先关掉电源开关。 7. 打雷时,为了确保安全,请停止作业,拔掉电源插头。

8. 从寒冷的地方移动到温暖的地方后等时,有可能发生结露,所以请等水滴完全干燥后再

9. 进行保养、检查、修理作业时,请一定关闭电源,确认缝纫机和马达完全停止之后再进

行操作。(使用离合马达时,请注意关闭电源后马达由于惯性仍然会继续转动一段时间。)

10. 因为本产品属于精密机器,所以操作时请充分注意,不要把水、油溅到机器上面,也不

为了安全地使用 MF-7200D 系列的缝纫机的注意事项

另外,在使用说明书中为了突出说明的重点,有的地方省略显示了「眼睛防护罩」、「手指防护器」 等安全装置,请了解。但是实际使用时,请绝对不要卸下这些安全装置。– 6 – 机台图纸 ( 上面安装式 )V 形皮带方式

4-φ3.4背面深度 20(安装时应钻孔)

4-φ3.4背面深度 20(安装时应钻孔)

如图所示安装销子和橡胶垫,然后正确地安装缝纫机。

橡胶座 ( 灰 ) x 1 如图所示安装底板和橡胶座,然后正确地安装缝纫机。

所有的操作完了之前,请不要把马达的电源插头插到电源插座上。以防止被卷入机器里,造成负伤的

本缝纫机的质量有 42kg。因此,开箱、搬运、安装时,请务必 2 人以上来操作。

40072505 防震橡胶 ( 灰色 ) 1

13155403 防震橡胶 ( 黑色 ) 3

2– 4 – 机台图纸 ( 上面安装式 ) 同步皮带驱动

4-φ3.4背面深度 20(安装时应钻孔)

4-φ3.4背面深度 20(安装时应钻孔)

2-φ3.4背面深度 20(安装时应钻孔)

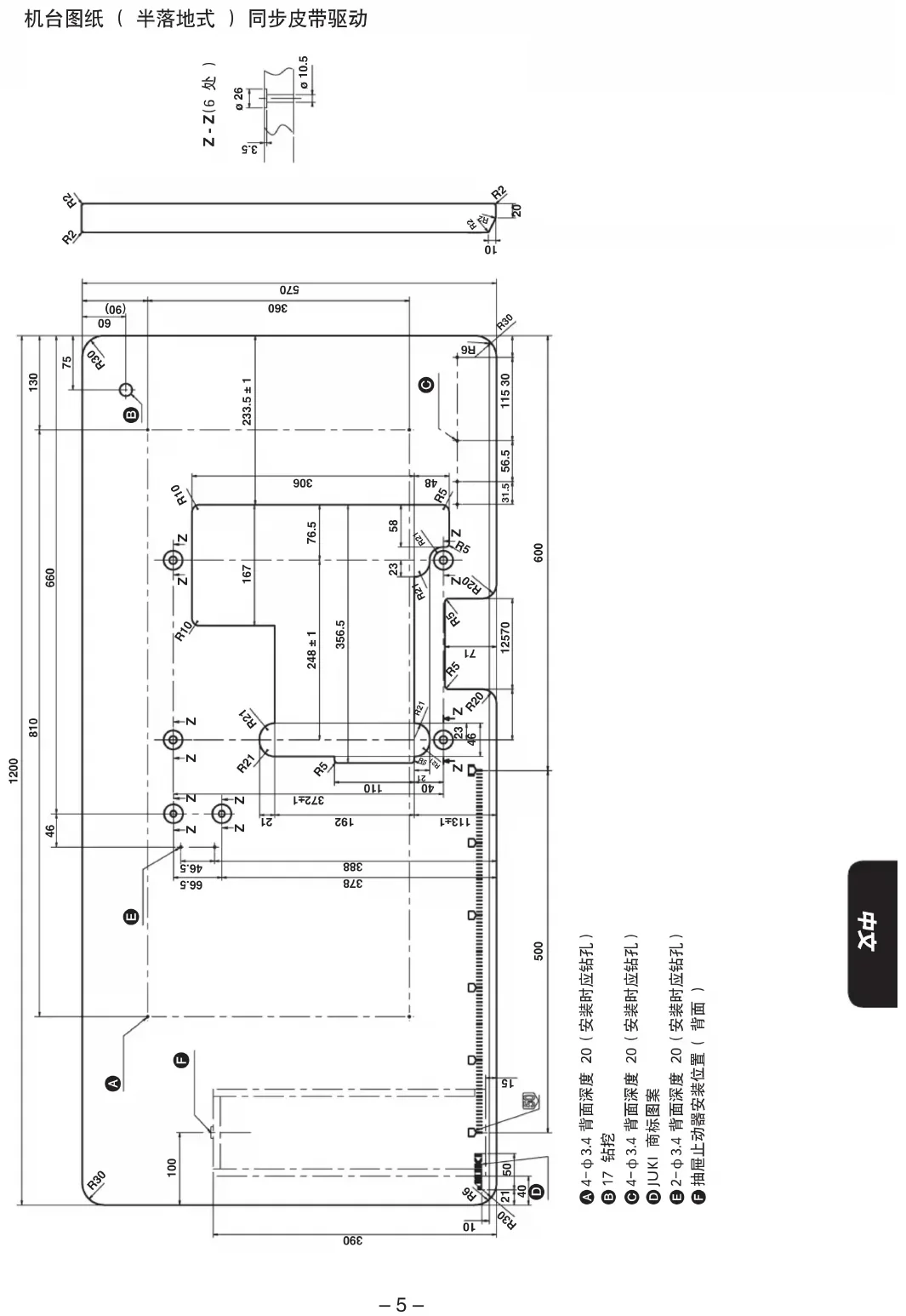
机台图纸 ( 半落地式 ) 同步皮带驱动

4-φ3.4背面深度 20(安装时应钻孔)

4-φ3.4背面深度 20(安装时应钻孔)

2-φ3.4背面深度 20(安装时应钻孔)

2010R2R246360– 4 – 机台图纸 ( 上面安装式 ) 同步皮带驱动

4-φ3.4背面深度 20(安装时应钻孔)

4-φ3.4背面深度 20(安装时应钻孔)

2-φ3.4背面深度 20(安装时应钻孔)

机台图纸 ( 半落地式 ) 同步皮带驱动

4-φ3.4背面深度 20(安装时应钻孔)

4-φ3.4背面深度 20(安装时应钻孔)

2-φ3.4背面深度 20(安装时应钻孔)

抽屉止动器安装位置( 背面 ) Z - Z (6 处 )

360– 6 – 机台图纸 ( 上面安装式 )V 形皮带方式

4-φ3.4背面深度 20(安装时应钻孔)

4-φ3.4背面深度 20(安装时应钻孔)

如图所示安装销子和橡胶垫,然后正确地安装缝纫机。

橡胶座 ( 灰 ) x 1 如图所示安装底板和橡胶座,然后正确地安装缝纫机。

所有的操作完了之前,请不要把马达的电源插头插到电源插座上。以防止被卷入机器里,造成负伤的

本缝纫机的质量有 42kg。因此,开箱、搬运、安装时,请务必 2 人以上来操作。

40072505 防震橡胶 ( 灰色 ) 1

13155403 防震橡胶 ( 黑色 ) 3

2– 10 – 本产品标准装备有线冷却装置。高速缝制以及使用化纤 线、化纤布料时,为防止断线、跳线,请使用线冷却装置。 使用的油是硅油(二甲基硅)。 1的盖子2 ,确认缝纫机线上、线冷 却装置里是否有硅油。如果油不够时,请补加硅油(二甲基硅)。 硅油如果沾附到线冷却装置以外的零件上,请 一定擦干净。如果不擦干净,就会使缝纫机发 4.线冷却装置

1.关于缝纫机针 本产品使用的缝纫机针是 UY128GAS。机针的针号应根据缝制条件来适当地选择。日本针号

2.机针的安装方法 1) 用螺丝刀拧松机针1的固定螺丝2。 2) 把新缝纫机针的凹部朝向里侧,然后深深地插进针 座3的孔里。3) 然后请拧紧机针固定螺丝2。

为了防止突然起动造成人身事故,请关掉电源,确认马达确实停止转动后再进行操作。

2.马达皮带轮、皮带的选定方法 3.马达的安装

5.5mm10mmM 型 V 形皮带请使用 3 相 2 极 400 瓦(1/2HP)的离合马达,并使用M 型 V 形皮带。1) 踩了踏板之后,马达皮带轮向左靠紧。此状态时,请调整马达让马达皮带轮和下皮带轮的中心对齐。 ※ 马达皮带轮的安装方法,请参照马达使用说明书2) 安装马达时,请让缝纫机皮带轮向顺时针方向转动。缝纫机皮带轮反转的话,就不能正常加油,造成缝纫机故障。下 皮 带

2) 一边转动上皮带轮 ,一边把皮带的一头挂到马达

3) 用约 10N(1.02kgf)的力量按压皮带的中央部后,松弛量应为 15 〜 20mm,请按此标准进行调整。4) 调整好皮带张力之后,请把固定螺母

运转缝纫机皮带摆动过大时,请重新调整皮带 15 〜 20mm更换皮带时,请一定关掉马达的电源,确认马达停止转动之后再进行更换作业。否则,有发生手、衣服卷进缝纫机,发生负伤的事故的危险。

(sti/min) MF-7200D50Hz 60Hz马达皮带轮尺寸 皮带尺寸 马达皮带轮尺寸 皮带尺寸 ø80 M-38 ø65 M-37 ø90 M-38 ø75 M-37 ※ 此表是使用 3 相 2 极 400 瓦(1/2HP) 的离合马达时的数值。※ 市面销售的皮带轮外径为 5mm 单位,因此请指定接近计算值的市面销售的皮带轮。请使用适合本产品的马达皮带轮。如果没有使用适合的皮带轮的话,超过缝纫机的最高转速,缝纫机就会发

2– 8 – 5.皮带罩的安装 请按照图示那样安装好皮带护罩

的固定螺丝。 ※ 螺丝 螺丝头下面的长度比螺丝

2) 请把链条 另一侧的钩挂到踏板上。 7.导线器的安装 1) 把附属的第 1 导线器

请一定安装皮带罩。如果没有安装,就有把手、衣服卷入机器内,或把缝制物卷入机器内的危险。

出货时,机油均被排放。因此初次使用缝纫机之前,请

  • 使用机油:JUKI MACHINE OIL 18 机油添加剂会造成机油的劣化或造成缝纫机的 故障,因此请不要使用。 加油时,请卸下标有「OIL」的加油口盖子 2,把机油加到油尺1的上下刻线之间。〈使用缝纫机前的检查〉 1) 请用检查油尺 ,确认油量是否在上下 2 条刻线之 间。如果油量比下线还低时,请补加机油。 2) 转动缝纫机,请从机油循环确认窗

油从喷嘴喷出来。如果没有机油喷出时,请进行「滤 油器的检查、更换」(参照 22 页)。

1.关于机油 2.关于加油 针杆、压脚提升以及分布器等有关零部件全部采用润滑 脂润滑结构。因此,请不要向里面加油。 加油之后,会使润滑脂流失,因而造成机器故 3.缝纫机油的更换 为了防止突然起动造成人身事故,请关掉电源,确认马达确实停止转动后再进行操作。

新缝纫机时,约使用 1 个月之后,请更换机油(JUKI MACHINE OIL 18)。 以后,请每 6 个月更换 1 次机油。 1) 请把接油容器安装到排油螺丝1的下面。2) 请卸下排油螺丝1。让机油排放出来。3) 排放后,请擦干净机油,然后安装上排油螺丝1。

MF-7200D 1– 8 – 5.皮带罩的安装 请按照图示那样安装好皮带护罩3。1、2是皮带护罩3的固定螺丝。

长度短。 ※ 使用半落地式的机台时,不能使用护罩5。 ※ 使用台式机台时,请固定了护罩

1) 请把链条1的钩2挂到压脚提升拨杆3上。2) 请把链条1另一侧的钩挂到踏板上。 7.导线器的安装 1) 把附属的第 1 导线器 1用螺丝2安装到机臂上。2) 把导线器3用螺丝4安装到第 1 导线器1。请一定安装皮带罩。如果没有安装,就有把手、衣服卷入机器内,或把缝制物卷入机器内的危险。

〈初次使用缝纫机时〉出货时,机油均被排放。因此初次使用缝纫机之前,请一定加入机油。· 使用机油:JUKI MACHINE OIL 18机油添加剂会造成机油的劣化或造成缝纫机的故障,因此请不要使用。加油时,请卸下标有「OIL」的加油口盖子

的上下刻线之间。〈使用缝纫机前的检查〉1) 请用检查油尺 ,确认油量是否在上下 2 条刻线之间。如果油量比下线还低时,请补加机油。2) 转动缝纫机,请从机油循环确认窗 确认是否机油从喷嘴喷出来。如果没有机油喷出时,请进行「滤油器的检查、更换」(参照 22 页)。

针杆、压脚提升以及分布器等有关零部件全部采用润滑脂润滑结构。因此,请不要向里面加油。加油之后,会使润滑脂流失,因而造成机器故

3.缝纫机油的更换 为了防止突然起动造成人身事故,请关掉电源,确认马达确实停止转动后再进行操作。

新缝纫机时,约使用 1 个月之后,请更换机油(JUKI MACHINE OIL 18)。以后,请每 6 个月更换 1 次机油。1) 请把接油容器安装到排油螺丝

2) 请卸下排油螺丝 。让机油排放出来。3) 排放后,请擦干净机油,然后安装上排油螺丝

MF-7200D 1– 10 – 本产品标准装备有线冷却装置。高速缝制以及使用化纤线、化纤布料时,为防止断线、跳线,请使用线冷却装置。使用的油是硅油(二甲基硅)。请打开线冷却槽

,确认缝纫机线上、线冷却装置里是否有硅油。如果油不够时,请补加硅油(二甲基硅)。硅油如果沾附到线冷却装置以外的零件上,请一定擦干净。如果不擦干净,就会使缝纫机发

1.关于缝纫机针 本产品使用的缝纫机针是 UY128GAS。机针的针号应根据缝制条件来适当地选择。

2.机针的安装方法 1) 用螺丝刀拧松机针

2) 把新缝纫机针的凹部朝向里侧,然后深深地插进针

为了防止突然起动造成人身事故,请关掉电源,确认马达确实停止转动后再进行操作。

2.马达皮带轮、皮带的选定方法 3.马达的安装 马 达 皮带轮5.5mm10mm M 型 V 形皮带 请使用 3 相 2 极 400 瓦(1/2HP)的离合马达,并使用 M 型 V 形皮带。 1) 踩了踏板之后,马达皮带轮向左靠紧。此状态时, 请调整马达让马达皮带轮和下皮带轮的中心对齐。 ※ 马达皮带轮的安装方法,请参照马达使用说明书 2) 安装马达时,请让缝纫机皮带轮向顺时针方向转动。 缝纫机皮带轮反转的话,就不能正常加油,造 成缝纫机故障。下 皮 带轮 4.皮带的挂法 1) 请把皮带1挂到下皮带轮2上。 2) 一边转动上皮带轮 ,一边把皮带的一头挂到马达 皮带轮4上。 3) 用约 10N(1.02kgf)的力量按压皮带的中央部后, 松弛量应为 15 〜 20mm,请按此标准进行调整。 4) 调整好皮带张力之后,请把固定螺母 5确实地拧紧固定。 运转缝纫机皮带摆动过大时,请重新调整皮带 张力。15 〜 20mm 更换皮带时,请一定关掉马达的电源,确认马达停止转动之后再进行更换作业。否则,有发生手、衣 服卷进缝纫机,发生负伤的事故的危险。 40°缝纫机的缝纫速度 (sti/min) MF-7200D50Hz 60Hz 马达皮带轮尺寸 皮带尺寸 马达皮带轮尺寸 皮带尺寸 ø80 M-38 ø65 M-37 ø90 M-38 ø75 M-37

※ 此表是使用 3 相 2 极 400 瓦(1/2HP) 的离合马达时的数值。 ※ 市面销售的皮带轮外径为 5mm 单位,因此请指定接近计算值的市面销售的皮带轮。 请使用适合本产品的马达皮带轮。如果没有使用适合的皮带轮的话,超过缝纫机的最高转速,缝纫机就会发

1.冷却器导线器的调整 1) 拧松固定螺丝 ,把上侧固定螺丝中心到线孔中心 的距离调整为 10mm,然后拧紧固定螺丝1。 2) 拧松固定螺丝 2,把螺丝1

中心的距离调节到最右位置(43mm),然后用螺丝 2固定。最右位置(43mm)10mm

3) 拧松固定螺丝 ,把各导线杆高度调整为图示的 尺寸,然后用固定螺丝3进行固定。A B C调整值 13 mm 16 mm 19 mm 2.针杆挑线器线座的调整

,让针杆到最下点,把针杆挑线杆 的线孔下端到中心的距离和到针杆挑线杆线座 2上端调整成一样,然后拧紧固定螺丝1。最右位置为了防止突然起动造成人身事故,请关掉电源,确认马达确实停止转动后再进行操作。 为了防止突然起动造成人身事故,请关掉电源,确认马达确实停止转动后再进行操作。

3.穿线方法 (1) 标准的穿线方法 请按照图示的要领进行穿线。使用伸缩性大的线时

使用伸缩性小的线时使用伸缩性大的线时,按照虚线

为了防止突然的起动造成人身事故,请关掉电源,确认马达确实停止后再进行操作。穿线方法不正确,会造成跳针、断线、断针、张力不好等故障。

3– 12 – 4.缝迹长度的调节 缝迹长度可以在 0.8mm 到 3.2mm 的范围任意地调整。 ※ 实际缝制后的缝迹长度,随布料的种类和厚度而有

请在送布牙与送布牙,送布牙与针板不相接触的范围进

5.差动比的调节 调整缝迹长度和差动比的关系时,送布牙和送布牙相碰,或送布牙与针板相碰,有可能造成零部件损坏,请充分注意。

为了防止突然起动造成人身事故,请关掉电源,确认马达确实停止转动后再进行操作。

请把压脚压力在缝迹稳定的范围内尽量调弱。 调节压力时,拧松压脚调节螺丝

向右转动之后,压力变强。 向左转动之后,压力变弱。 7.线张力的调节 调节线张力时请用以下零件进行调节。

向右转动之后,紧线力变强。 向左转动之后,紧线力变弱。 B= 拧紧A= 缩短

B– 12 – 4.缝迹长度的调节 缝迹长度可以在 0.8mm 到 3.2mm 的范围任意地调整。 ※ 实际缝制后的缝迹长度,随布料的种类和厚度而有

请在送布牙与送布牙,送布牙与针板不相接触的范围进

5.差动比的调节 调整缝迹长度和差动比的关系时,送布牙和送 布牙相碰,或送布牙与针板相碰,有可能造成 零部件损坏,请充分注意。

为了防止突然起动造成人身事故,请关掉电源,确认马达确实停止转动后再进行操作。

请把压脚压力在缝迹稳定的范围内尽量调弱。 调节压力时,拧松压脚调节螺丝

向右转动之后,压力变强。 向左转动之后,压力变弱。 7.线张力的调节 调节线张力时请用以下零件进行调节。

向右转动之后,紧线力变强。 向左转动之后,紧线力变弱。

1.冷却器导线器的调整 1) 拧松固定螺丝 ,把上侧固定螺丝中心到线孔中心的距离调整为 10mm,然后拧紧固定螺丝

的中心到机线导线杆中心的距离调节到最右位置(43mm),然后用螺丝

3) 拧松固定螺丝 ,把各导线杆高度调整为图示的尺寸,然后用固定螺丝 进行固定。A B C 13 mm 16 mm 19 mm 2.针杆挑线器线座的调整

,让针杆到最下点,把针杆挑线杆 的线孔下端到中心的距离和到针杆挑线杆线座

为了防止突然起动造成人身事故,请关掉电源,确认马达确实停止转动后再进行操作。 为了防止突然起动造成人身事故,请关掉电源,确认马达确实停止转动后再进行操作。

3.穿线方法 (1) 标准的穿线方法 请按照图示的要领进行穿线。使用伸缩性大的线时 装饰线过松时=B  穿过B仍然过松时=C装饰线过紧时=D使用伸缩性大的线时,按照虚线A穿线使用伸缩性小的线时使用伸缩性大的线时,按照虚线E穿线

为了防止突然的起动造成人身事故,请关掉电源,确认马达确实停止后再进行操作。穿线方法不正确, 会造成跳针、断线、断针、张力不好等故障。

0.05mm0-0.05mm3 11.摆动挑线杆的同步和线环的关系 使用在「标准的穿线方法」中说明的容易伸缩或不容易伸缩的线,由于线环过大或过小等原因发生跳针、断线时, 请变更摆动挑线杆的挑线同步时间,调整线环的大小。 1. 拧松了螺丝1 后,摆动挑线杆会因自重发生转动。如果转动了,请参照「摆动挑线杆的调整」的有关内 容进行调整。 2. 上述情况以外请不要变更同步关系,否则会发生缝制不良。1) 拧松螺丝1。 2) 请把 移动到前侧或里侧。移动方向和线环的大 小关系如下表所示。3) 调整后,请拧紧固定螺丝1。 2和推力环3

2的端面对齐。)¡线环的大小注)穿线方法不同,调整方向相反,务请注意。4mm为了防止突然起动造成人身事故,请关掉电源,确认马达确实停止转动后再进行操作。 机针在最下点时,后针座1 的左右位置在 B 的范围内进 行调节以准确落针。1) 弯针前端3 从最右点来到右针中心后,用固定螺丝 2把后针座1 的棱线 A 和弯针前端的高度调整为 1.5mm 〜 2mm。2) 弯针前端3 从最右位置来到右针中心后,请让后针座 1轻轻接触,把右针和弯针前端3的间隙调整为 0 〜0.05mm。

来到中针中心后,请让后针座 轻轻接触,把中针和弯针前端

0 〜 0.05mm。 调节时,请用固定螺丝2、4进行调节。为了防止突然起动造成人身事故,请关掉电源,确认马达确实停止转动后再进行操作。 夹子2的位置 向前侧移动 向里侧移动标准缝迹的穿线方法时 变小 变大柔软缝迹的穿线方法时 变大 变小21AB1.5-2mm42

的上端调整成与分布挑线杆 的长孔下端一致,然后拧紧固定螺丝

所示把从线孔到摆动挑线杆轴 的中心调整为 A尺寸,然后固定螺丝

2) 摆动挑线杆在最下点时,把摆动挑线杆座

90 mm为了防止突然起动造成人身事故,请关掉电源,确认马达确实停止转动后再进行操作。 为了防止突然起动造成人身事故,请关掉电源,确认马达确实停止转动后再进行操作。

为了防止突然起动造成人身事故,请关掉电源,确认马达确实停止转动后再进行操作。

7.带绕底线的防止板的调整 为了防止突然起动造成人身事故,请关掉电源,确认马达确实停止转动后再进行操作。 为了防止突然起动造成人身事故,请关掉电源,确认马达确实停止转动后再进行操作。

之间的间隙调整为 0 〜 0.3mm 左右。

为了防止突然起动造成人身事故,请关掉电源,确认马达确实停止转动后再进行操作。

和右针中心的间隙 A(弯针倒回量)和针幅的关

弯针前端从最右点来到中针中心后,请把弯针尖

的间隙调整为 0 〜 0.05mm。 调整后,请拧紧固定螺丝

不起作用时,弯针和右针相接触。 为了防止突然起动造成人身事故,请关掉电源,确认马达确实停止转动后再进行操作。

的间隙 A 调整为均等。 2) 弯针从最右点向左移动,弯针前端 B 约突出左针的 左端 1.1mm 后,调整针杆高度让左针的针孔上端和 弯针下端部对齐,然后卸下面板的橡胶盖

高度 C 如下表所示。 单位 :mm 2 针 3 针 针幅 左针高度 C 针幅 左针高度 C

7.带绕底线的防止板的调整 为了防止突然起动造成人身事故,请关掉电源,确认马达确实停止转动后再进行操作。 为了防止突然起动造成人身事故,请关掉电源,确认马达确实停止转动后再进行操作。

之间的间隙调整为 0 〜 0.3mm 左右。

为了防止突然起动造成人身事故,请关掉电源,确认马达确实停止转动后再进行操作。

和右针中心的间隙 A(弯针倒回量)和针幅的关

弯针前端从最右点来到中针中心后,请把弯针尖

的间隙调整为 0 〜 0.05mm。 调整后,请拧紧固定螺丝

不起作用时,弯针和右针相接触。 为了防止突然起动造成人身事故,请关掉电源,确认马达确实停止转动后再进行操作。

的间隙 A 调整为均等。 2) 弯针从最右点向左移动,弯针前端 B 约突出左针的 左端 1.1mm 后,调整针杆高度让左针的针孔上端和 弯针下端部对齐,然后卸下面板的橡胶盖

高度 C 如下表所示。 单位 :mm 2 针 3 针 针幅 左针高度 C 针幅 左针高度 C

11.摆动挑线杆的同步和线环的关系 使用在「标准的穿线方法」中说明的容易伸缩或不容易伸缩的线,由于线环过大或过小等原因发生跳针、断线时,请变更摆动挑线杆的挑线同步时间,调整线环的大小。 1. 拧松了螺丝 后,摆动挑线杆会因自重发生转动。如果转动了,请参照「摆动挑线杆的调整」的有关内容进行调整。 2. 上述情况以外请不要变更同步关系,否则会发生缝制不良。1) 拧松螺丝

2) 请把 移动到前侧或里侧。移动方向和线环的大小关系如下表所示。3) 调整后,请拧紧固定螺丝

线环的大小注)穿线方法不同,调整方向相反,务请注意。 4mm 为了防止突然起动造成人身事故,请关掉电源,确认马达确实停止转动后再进行操作。 机针在最下点时,后针座 的左右位置在 B 的范围内进行调节以准确落针。

的棱线 A 和弯针前端的高度调整为 1.5mm〜 2mm。

从最右位置来到右针中心后,请让后针座 轻轻接触,把右针和弯针前端 的间隙调整为 0 〜0.05mm。 另外,弯针前端 来到中针中心后,请让后针座 轻轻接触,把中针和弯针前端 的间隙调整为0 〜 0.05mm。 调节时,请用固定螺丝

进行调节。为了防止突然起动造成人身事故,请关掉电源,确认马达确实停止转动后再进行操作。

的位置 向前侧移动 向里侧移动标准缝迹的穿线方法时 变小 变大柔软缝迹的穿线方法时 变大 变小

5.分布导线器的调整 分布挑线杆1在最上点时,分布导线器2的导线线道(里侧)3 的上端调整成与分布挑线杆

然后拧紧固定螺丝4。 3.摆动挑线杆的调整

2) 摆动挑线杆在最下点时,把摆动挑线杆座

调整为水平,然后用螺丝 进行固定。A 90 mm为了防止突然起动造成人身事故,请关掉电源,确认马达确实停止转动后再进行操作。 为了防止突然起动造成人身事故,请关掉电源,确认马达确实停止转动后再进行操作。

在最下点时,把摆动挑线杆线座 2的上 3的线孔4 1固定。为了防止突然起动造成人身事故,请关掉电源,确认马达确实停止转动后再进行操作。

为了防止突然起动造成人身事故,请关掉电源,确认马达确实停止转动后再进行操作。

3再卸下针板4,清扫针板槽和送布牙槽以及四周。清扫之后,用固定螺丝3固定针板4。 1.缝纫机的清扫 2.缝纫机油的更换 新缝纫机时,约使用 1 个月之后,请更换机油(JUKI MACHINE OIL 18)。 以后,请每 6 个月更换 1 次机油。 1)请把接油容器安装到排油螺丝1的下面。2)请卸下排油螺丝1。让机油排放出来。3)排放后,请擦干净机油,然后安装上排油螺丝1。 3.滤油器的检查、更换 机油过滤器1如果积满了脏污就不能正常地供油。因此, 请每 6 个月检查 1 次。

1,进行检查。2) 如果过滤器1积满了脏污,请更换成新的过滤器。3) 更换后,用螺丝3固定过滤器盖子2。 卸下滤油器盖后,请注意积存在滤油器上的机 油有可能漏出来。为了防止突然起动造成人身事故,请关掉电源,确认马达确实停止转动后再进行操作。 为了防止突然起动造成人身事故,请关掉电源,确认马达确实停止转动后再进行操作。

后端的高度调整为 1mm,然后拧紧固定螺丝

的高度来调整差动送布牙 的高度,然后拧紧固定螺丝

13.分布器的安装位置 0.1-0.3mm7.8-8.2mm

4.5-5.5mm17-18mm为了防止突然起动造成人身事故,请关掉电源,确认马达确实停止转动后再进行操作。 为了防止突然起动造成人身事故,请关掉电源,确认马达确实停止转动后再进行操作。

的上面到分布器下面的距离为 7.8 〜 8.2mm。 暂时拧紧固定螺丝 ,调整后正式拧紧。[前后位置的调整] 分布器

部来到前侧后,把与左针的间隙调整为 0.1 〜 0.3mm,然后拧紧固定螺丝

[左右位置的调整] 分布器 在最左的位置时,把从左针中心到分布器 1 B 部位置的距离调整为 4.5 〜 5.5mm,然后拧紧固

的长槽 A 的中心 C 调整成一致。 ※ 此时,请把针夹导线器

调整为 0.8 〜 1.2mm,然后用固定螺丝

的高度调整为比后针座高 3.3 ±0.5mm 的位置。

从最右点向左移动,通过各针的里侧时,请用固

的间隙调整为 0.1 〜 0.5mm。 ※ 请根据机线的种类和粗细,在机线能通过的范围,

为了防止突然起动造成人身事故,请关掉电源,确认马达确实停止转动后再进行操作。 为了防止突然起动造成人身事故,请关掉电源,确认马达确实停止转动后再进行操作。

2) 提升了压脚后,请调整套环位置,让套环

17.微量压脚提升的调节 向左转动微量压脚提升旋钮

请根据缝制条件调整高度。 不使用微量压脚提升功能时,请向右转动微量

,把微量压脚提升止动器 2固定到最高点。

为了防止突然起动造成人身事故,请关掉电源,确认马达确实停止转动后再进行操作。 为了防止突然起动造成人身事故,请关掉电源,确认马达确实停止转动后再进行操作。 注意– 20 – 14.分布导线器、针夹导线器的调整

的长槽 A 的中心 C 调整成一致。 ※ 此时,请把针夹导线器

调整为 0.8 〜 1.2mm,然后用固定螺丝

的高度调整为比后针座高 3.3 ±0.5mm 的位置。

从最右点向左移动,通过各针的里侧时,请用固

的间隙调整为 0.1 〜 0.5mm。 ※ 请根据机线的种类和粗细,在机线能通过的范围,

为了防止突然起动造成人身事故,请关掉电源,确认马达确实停止转动后再进行操作。 为了防止突然起动造成人身事故,请关掉电源,确认马达确实停止转动后再进行操作。

2) 提升了压脚后,请调整套环位置,让套环

17.微量压脚提升的调节 向左转动微量压脚提升旋钮

请根据缝制条件调整高度。 不使用微量压脚提升功能时,请向右转动微量压脚提升旋钮 ,把微量压脚提升止动器

为了防止突然起动造成人身事故,请关掉电源,确认马达确实停止转动后再进行操作。 为了防止突然起动造成人身事故,请关掉电源,确认马达确实停止转动后再进行操作。 注意– 22 –

为了防止突然起动造成人身事故,请关掉电源,确认马达确实停止转动后再进行操作。

,清扫针板槽和送布牙槽以及四周。清扫之后,用固定螺丝

新缝纫机时,约使用 1 个月之后,请更换机油(JUKI MACHINE OIL 18)。以后,请每 6 个月更换 1 次机油。1)请把接油容器安装到排油螺丝

2)请卸下排油螺丝 。让机油排放出来。3)排放后,请擦干净机油,然后安装上排油螺丝

如果积满了脏污就不能正常地供油。因此,请每 6 个月检查 1 次。

2) 如果过滤器 积满了脏污,请更换成新的过滤器。3) 更换后,用螺丝

卸下滤油器盖后,请注意积存在滤油器上的机油有可能漏出来。为了防止突然起动造成人身事故,请关掉电源,确认马达确实停止转动后再进行操作。 为了防止突然起动造成人身事故,请关掉电源,确认马达确实停止转动后再进行操作。

2后端的高度调整为 1mm,然后拧紧固定螺丝3。 2的前端5 4的后端6 的高度来调整差动送布牙 的高度,然后拧紧固定螺丝 7。标准是送布牙在最高点时,针板1和送布牙呈水平状态。 13.分布器的安装位置 0.1-0.3mm7.8-8.2mm

4.5-5.5mm 17-18mm为了防止突然起动造成人身事故,请关掉电源,确认马达确实停止转动后再进行操作。 为了防止突然起动造成人身事故,请关掉电源,确认马达确实停止转动后再进行操作。

的上面到分布器下面的距离 为 7.8 〜 8.2mm。 暂时拧紧固定螺丝3,调整后正式拧紧。[前后位置的调整]

左针的间隙调整为 0.1 〜 0.3mm,然后拧紧固定螺丝 3。[左右位置的调整]

在最左的位置时,把从左针中心到分布器 1 B 部位置的距离调整为 4.5 〜 5.5mm,然后拧紧固 定螺丝4。

版权所有,严禁擅自转载、翻印本书的内容。

手册助手
由 ChatGPT 驱动
等待您的消息
产品信息

品牌 : JUKI

型号 : MF7200D

类别 : 缝纫机