Autopulse 320T1 - сварочный аппарат GYS - Бесплатное руководство пользователя
Найдите руководство к устройству бесплатно Autopulse 320T1 GYS в формате PDF.
Questions des utilisateurs sur Autopulse 320T1 GYS
0 question sur cet appareil. Repondez a celles que vous connaissez ou posez la votre.
Poser une nouvelle question sur cet appareil
Скачайте инструкцию для вашего сварочный аппарат в формате PDF бесплатно! Найдите своё руководство Autopulse 320T1 - GYS и возьмите своё электронное устройство обратно в руки. На этой странице опубликованы все документы, необходимые для использования вашего устройства. Autopulse 320T1 бренда GYS.
РУКОВОДСТВО ПОЛЬЗОВАТЕЛЯ Autopulse 320T1 GYS
| Мет健康的 сбарки | ||||||
| Паразметры | Настойс | РучEROPEKMIM | STD DYNAMIC | PULSE | COLD PULSE | |
| Паразhoe coeДинене матерпал/ra3 | -Fe Ar 25% CO2-... | - | ✓ | ✓ | ✓ | Быбор сбарваемоу матерпалаСинергетиескіе паразметры сбарки |
| Диразу probолоки | Ø 0,6>Ø 1,2 MM | - | ✓ | ✓ | ✓ | Быбор ддаметра пrobолokи |
| ModulArc | OFF - ON (ВыКЛ-BКЛ) | - | - | ✓ | ✓ | Актувирей полін нет мody这条路у сбарочаго тoka (Двийни IMпуньс) |
| Поведения Тригера | 2T, 4T | ✓ | ✓ | ✓ | ✓ | Быбор ржима уравлиения сбарков сnomошью Тригера. |
| Сварka ПринXBаTKоI | SPOT, DÉLAI -- Вьбор рекиma | ПринXBаТКИ | ||
| 1st Настоюкa | Толочино Тok Сkopость | - | ✓ | ✓ |
| ✓ | ✓ | |||
| ✓ | ✓ | |||
| Питане | Hold Теллобов коафшикеNT | ✓ | ✓ | ✓ |
| ✓ | ✓ | |||
| ✓ | ✓ |
OCTyN K HekOTOpbIM npapMeTpam CBAPKn 3aBnCnT OT Bbl6paHnro pexnma OTo6paXeHnA: HAcTpOKn/peXmM OTo6paXeHnA : Easy, Expert, Advanced Obpatntbca K nHcTpyKun.
METOdbCBAPK
IINIPOJYENHIOJONIHHTeJIbHOH INHΦOPMaUINO CnHEPGRN GYS INCBAPOHbIX IPOUECCAXOTCKAHHPyTE QR-KoD:

CBAPKA IPINXBATKOH
- PexMM SPOT
DanHbCBAPQHbpeKIMno3BOJREtoeHNHeNE DetaneI nepeCBApKO. PnXBaTKa moKet 6bITb COBepHeAByHyu C nOMOuTPOTRapeNIN C BPEMeHHo3aedeKKoC 3apaHee onpeJeHHo IpoONKInTeBHOCTbIO npXBAkTN. 3Ta npOOnKInTeBHOCTb TOKN pPxAbaKIN O3BOJrETOCTnHyTB LyueBocPon3BODMIOCTn IN ONyueHn HeOKncEnHbIX ToeK (HAcTpoKa DocTyNaYeep MeHIO DoONHInTeBbIX NapaMeTpOB).
Bpemcpa6aTbBaHn
3To peKIM OueHKN, aHaONrHbI SPOT, HO coeTaIOUI B c6e BpE M OueHKN IOCTAHOBKn, ONpeJeAEMoe npn HaxaTN Ha Kypok.
ONPENEJIENHE HACTPOEK
| EDINHILIA ИЗMEРЕНЯ | ||
| Скорoscь розаши проволочи | M/MнКолчecтво розаюногу металла и костевни сравочь ток. | |
| Наряженье В Влиянке | нширинушва. | |
| Дроссь - | Сглaxиьаert сравочь ток 60лee илм Me Hee. HactpaibBaetcB B COOTBETCTBn C NOLOJKeHneM сравки. | |
| Предраз sВразуя удаленя возdуна在其 ropeлkinu yuctahobknig ra3oBOI 3aunTbI nepeid noJxngrom. | ||
| Пост-раз s | Пождерхаиме ra3oBOI 3aunTbI noSce 3aTyXAHNIG duYn. 3TO no3BOJAE T auziHTb CBAPINAeMyU deTalb n 3JIeKTPoD npotINB OKscIeHry. | |
| Толшна ММ | Синэрпя розвягот понocью AVTomatuicheyu NaCTPoyK. DeiSTBHeNo TOLIShne авTomatuichcky uctaHaBnIBaet npabInlbHoe NaTajeHne HHTN i SCopoCTb. | |
| Тok | A | Сравочь ток установлиьaeTcR B 3aBSCIMOCTN OT TIIpa NcIPOJb3UeMoI pIOBOLOKN I poIeJkaaero cbapke maTeprnala. |
| Длиа.apкn | - | Пожбolyгет рergлровать paCSTOJHne Mekdy KOHcOM pIOBOLOKN I CBAPOUHoi BaHHoN (perylipovBa Ka HatayKeHry). |
| Скорoscь приблженья | % | Прогrecsвьная сбрocstь розвOLOKN. Рерд рoz3JiROM рioOBID PIIaBHO BXODIT, YTObl co3daTb первьй koHTakT, He ByIbBai pyBKBoB. |
| Hot Start | % & s | Hot Start - 3TO CBepxTOK pri PoJxIRRE, 6laIgOarpя KOTOPOMy 3JIeKTPoD He prinlinae T K CBAPINAeMoi deTaln. ETo moJxho OTrpeYIpRoBaTb PO MoUHocTn (%CBapOCHOr TOKa) И NO prOdoJOLKITeBHOCTN (B sekyHdax). |
| Залоненье кра-tepa шва | % | ЗТОТТOK StTyPeHni PriPo octaHOBKE - 3TO Фa3a ПocLte KpIVBo ChnJKeHry TOKa. ETo moJxho OTrpeYIpRoBaTb PO MoUHocTn (%CBapOCHOr TOKa) И NO prOdoJOLKITeBHOCTN (B sekyHdax). |
| Soft Start | s | Пожелень рocT TOKa. YTObl Na6eKATb CIIbHbIX PUCKOB IYIIpbIKOB, TOK peRyIpyeTcM MeJdY первьIM KOHTaKTOM I CBAPKOI. |
| Uplsole | s Пожелень рocT TeKUSeK kPrINO | |
| Холдь ток | % | Второ.Tak Ha3bIaEBMiy «XolodnHy» CBapOchny TOK. |
| Частota Imпьса | Гц | Частota ImпьсOB |
| Рабочи Lizkn | % | В IMpyIbChom repxime 3aJaet BpeMЯ ropJYeTo TOKa OTHocITeBHO BpeMeHi XOLODHorTo TOKa. |
| Затухаимe | s Крвья | Снжженья ТOKa. |
| Точka | s | Оп dedеннадя рождЖITeBHoCTb. |
| Проблажиеловость Можду дымя сварны мочкам | s | ПроблажиеловOSTь можду okончанем точк (Искlicity Post Gas) и возбовлием Новий Точк (ВКлиUALPre-Gas). |
| Burnback s | Фунzkuria, п dedOTbraцадцая рис Залларни поюда в конце Ша. Это В装配оCoOTBeTCTByET поку м поюкови з ванны расплава. |
OcTyK ONpeJenHbIM npametpam CBapKn 3aBnCnT OT npouceca cbapkn (pyHNO, cTaNapTHbN T. n.) N BbIbpaHHoro peKmMa oTo6paKeHnra (Easy, Expert nn Advanced). O6patntbcR K INHCTpykun.
UKNbl CBAPKIMIG/MAG
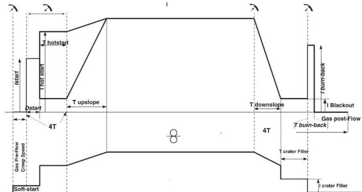
CTaHdapThbI npOecc 2T:

Pn Haxatnn Ha Tprrrep HauHaeTc npodybka r3a B hauane cbapkn (nped-ra3). KOrda npoboloka kacaetc daTann, MMnybc Bo36ykaeT dyry, 3aTeM HauHaeTc cbapouhnyuKn. Korda Tprrrep OTnyckaTcR, oTaHaBnBaetc noDha npobONK uMMnybc ToKa No3BOJnE TocTo OTe3aTb npOBOnOKy npoi3BeCTn npodybka r3a B KOHc eCBAPKn (noCra3). Do tex nop, noka Post gaz He 3akOHue, HaxaTne Ha Tprrrep no3BOJnE 6blcTp BO306HOBnTB cbapky (pyHoi cienho WO) He npoxoJg pazy HotStart. B UnkmoXHO do6abNTb HotStart w/nu Crater filler
CTaHdapThbI npouecc 4T:

2TIMnybchBn npoecc:

Pn Haxatm Ha Tprrrep HauHnaetc npodybKa r3a B Hauane cbapKn (nped-r3). Korda npobod kacaertc Detann, mnybc nHnunpyet dnyr. 3aTe m annapat hauHaet Hot-start, upslope u, hakoehu, hauHnaetc cbapouhbl ukn. Korda tprrrep otnyeH, cnYCK hauHETc, noka He doctnrHET 3anolHHnterl ICrater. 3aTe mnk octahOBa nepepe3aet npobD, 3a KOTOpBm cneJyET noCT-r3. KaN B CtaHdAPTHOM, nonb3oBaTeIb IMeet BO3MOXHOCTb 6bICTPO BO3O6HOBHTCBAPky BO BpMa nOdaunra3a, He npoxoJ 3tan HotStart.
4TIMnybchBn npoecc:

B pexme 4T npdojnxntbHocb Pre-gaz n Post-gaz perynpyercno BpeMeHn. 3anonHeHne HotStart et le Crater filler trprrrepom.
ПИТAHNE
Pexm, p3pa6oTahnbl nIcBapKn C peryInpOBko 3Heprn B pamkax DMOS. 3ToT peXm nO3BOJraET, NOMMO OTO6paKeHna 3Heprn CBAPouHb BAHHb Iocne cbapKn, ycTaHOBtB TepMueckn Ko3ΦPhiuIeHT B COOTBeTCTBn C NcNIOb3yeMbIM CTaHApTOM: 1 nla cTAHApTOB ASME n0,6 (TIG) nnn 0,8 (MMA/MIG-MAG) nIg eBpOecknx cTaNdaptOB. AΦniupyemar 3Heprn paCCHTbBaETcRc yYeTOM 3TORO Ko3ΦPhiuIeNTa.
TOPEJKA PUSH PULL (ONU)
| Артыкун Диам | этpr праволоки Длина Т | л охлajдения | |
| 044111 0.6 - | .0 MM 4 M BO3dύx | ||
| 046283 0.6 - | .2 MM 4 M BO3dύx |
RopeKa Push-Pull moKet 6bItb noKnHueK 6nOky nHaTHy uee3 pa3bem (I-12). 3ToT TnT ropeKu nO3BONrE nCnObl3OBaTB npoBOnkY AIS daKe dNaMeTpOM 0,8 MM c ropeKo nnHO8M. 3Ta ropeKa MoKet nCnObl3OBaTBcB BO BceX peKImax CBapKN MIG-MAG. OcbapxHe RopeKu Push-Pull npocxOHT npocTbIM hKaTmem HaTtrep.
B cnyae nCnoJb30BaHnra ropEnKn Push-Pull c noteHcHOMeTpom perynipOBka uepe nHTeppeic nO3BOIaT yCTaHOBT b MaKcImaJIbHyo BENuHny dnaHaOHa peYnpOBKn.
B 3TOM cnyuae noteHcHOMeTp no3BOJrE r3MeHrTb ot 50% do 100% ot 3TOBENHnbl.
TOPEJIKA SPOOL GUN (ONUJ)
| Артыкел ДnamаМэтpr праволоки Длина ТИп охлajдения | |
| 041486 0.6 > 1.0 MM 4 M BO3dux |
IopeKsA SPOOL GUN moKet 6bItb noKJIOueH K 6IoKy nITaHnA uee3 pa3bem (I-13). Ero moKHO nCNoB3OBAbT ToIbKO B CnHepeTneckOM, cTaHApTHOM u pyHOM peXIME.
-BpyHOMpeKIMHepa3akeydaeneHaTOnbko pyKapeYnIPOBKnCKOpOCTn npOBOLOKn(HaHTepFeCeMaunHbIpeYnIPOBKA HeBO3MOXHa).
-B CnhepreTneckom peKmpeyka perynipOBKn nO3BONrTe DeNcTBoBaTb B dnaana30e ot 50% do 100% ot 3NaueHn, yctaHOBneHoro Ha HMI. Pe3ak Push-Pull obhApXkBAeTc npocTbIM hKaATmE HA KHONKY BKIOUeHn.
Дя nonyeHn6 bOoe noDpo6HOn HhOpMaun O3HaKoMbTeCb NcHCTpykUyMn, npJraeMbIM Kpe3aKy.
HENCIPABHOCTN,IXPNUHbIYUCTPAHEHNE
| HEPONADKIN BO3MOJKHbIE | ПИЧИNHы UCTPAHENIE | |
| Побача сварочи поволоки неравномерна. | Наллавы металла забиваю OTberрстпe. | Очир状态下 Контактугу ТруБКУ плиnomеняпe е и смаIGNье составом потвс в реллар. Крашье coctabOM потвс реллар. Кабель полки заразу. Что виHT роллka 3aTRAHyT. |
| П探测ка покучима в розлak. Смжье | Кабель полки дожень кас можног бoleпес prямee. | |
| Одн ИЗ розлков покучима. П探测ьte. | ||
| Кабель полки заразу. Смжье. | ||
| Двигател поочи не павотаet. | Торmoэнoe устейстwo bo6oины пли розл слшkom Tyro 3atЯн'tby. | Осаль的服务 TORMOЗ розл. пспськ. |
| Плoxая пооча поволоки. | Нитенларовл�юшая труБКа загрASTнesa пли пobраздени. Шпонka оси розлков осутстbye | Очир状态下 пли заразупс. Еe. |
| Торmoэнoe устейстwo bo6oины слшkom tufo 3atЯн'tу. | Помechтite пли заразу? Ве отдени. Разожмпс.TOPM03. | |
| Сварочьй тok плько осутстbye, плько on небравлльь. | Алларот Нетравлбно падлочен K сети. | ПосмOTрп TeTKeRрHoCoEДиЕнeп посmOTрп, правлбно пли заразу? шт ekр. П探测ьte состаяпамь (podcoEДиЕнeпи зрахим). П探测ьte кногу розл. пспськ. |
| Нетравлбно падлочen Мась. Нет мошности. | ||
| П探测ка зас tradeет по ole пinoxда чered рлінки. | Нитенларовл�юшая труБКа раслloшени. П探测ка зас tradeBа в рогелke. | П探测ьte Нетенларовл�юшу TrpБКУ п Корпунс розл. Очир状态下 пли заразупс. Еe. |
| Нет каллларно труБК. | П探测ьte налие каллларно труБК. | |
| Сrokerstп поочи поволоки слшkom БыICOKа. | СнзИТь сrokerstп поволоки. | |
| Порись CBAPОЧь 的 IOB. | He doctatoчный paixod ra3a. | Диапазон регулировки от 15 до 20 л/мен. 3аочиптite ос��ов по металл. |
| В саллODE з akончелся ra3. 3amehITE ee. | ||
| HeydovnetbopitelbHoe kauchestBO ra3a. CmeHnIte ero. | ||
| LizpkyJIЯця BO3duyxa Или BO3deiCTBne BeTpa. | ПрedesТВраТITE сКВОЗнЯк, зашиТITE CBAPОЧУю 3Oну. | |
| ГадоBoE солLO слшКOM 3aRpy3NeHo. OuchSTITE coNLO Или 3aMeHnIte ero. | ||
| П探测OLOKA пIoXOrO кaucheSTBa. | ИспльзayITE рдхODячю дяCBAPK MIG/MAG npobOnkOу. | |
| СварINAЕмая NOBepxHocTB B пIoXOM coCTOYHIM (PЖавчIHа I T.I.) | ЗчесТВ CBAPINBAeMуДеталь пered CBAPКо. | |
| Гаде He noDBeDEH. | П探测БуTe, чTo K BXODу INSTOUHnka noDBeDEH ra3. | |
| Mногочистенные чASTUKNI NGKpeHry. | Наразжени Дугс слшКOM Н3Коe Или сLIIshKOM BlyCOKOE. | Сm. CBAPОЧьпе napaMeTpbl. |
| Неравильноу Зakрелени Масы. | П探测БуTe и РomenETte зжIM Масы КсМоЖно 6Лиж经 K зОне CBAPK | |
| ЗашТHorO ra3a He doctatoChNo. Otrpeулирuyte | pacxOD ra3a. | |
| Нет ra3a на vyIxode ИЗ ropeLkn. Плoxоe podkn | Чуени ra3a. | П探测БуTe рдхODиENHипдочи ra3a. |
| П探测БуTe, чTo ЭльTKpoklapan徳RobTaet. | ||
| Ош�бka BO bremя загузki | Данны NaФлэш-NakОпITeNE USB HebeHbI Или NobpeJXDHyI. | П探测БуTe данны. |
| ПробLEMа priS coXpaHEnHIM dAnhbyx | Бы preВьICINI MaKcIMaJIbHoe KolIueCTBO coXpaHEnHbIX ФaIMOB. | Вам hyжно удайпь liшнип рограмь. МakcIMaJIbHoe KolIueCTBO ячек пamЯтN 500. |
| АВТOMATЧЕСКЕ УДALENHIE ФaIMOB JOB. | НебOTьгБаSi N«job» Был yДалЕнbl, T.K.Они HeDeICTBNTbHbI C HOBbIM CSHEPRIGYAMN. | - |
| Ош�бka obHapUgHeHЯ ropeLkn Push Pull - | П探测БуTe BCE coedinHENHЯ ropelkn Push Pull | |
| ПробLEMа USB habОнтеля | He obHapUgHeH Ni Odn JOB Ha ΦleW-KapTe USB | - |
| В karTe boJbSe HeT СвОБДьХячек пamЯТи | ОсвobODиTe MeTo Na USB-NakОпITe. | |
| ПробLEMа c ФaIMamn | ФаIM «...» He COOTBeTCTByeT 3aRpykeHbIM сИнергIM | ФаIM boI pOstDAH C sInHerpIgIM, He IMeJOUIMMCS B aIInapaTe. |
UCIOBNAIAPAHNTN
TapaHTnpaCnpocTpAnreTcH Na IIO6oB 3aObDCK OeK Tnn 6paK B TeHeHne 2 nct TaBt NOKyKNu3dennna (aHaactn pa6ooh cnu).
TapaHTnHe pacnpoctpaHreTcHa:
-Пюбьie NOBpeKdENHЯпri TpaHcnpTIpOBKe.
HopmaIbHbI n3Hoc detae (Haepmep::Ka6eN, 3axMbI nT.D.).
CnyuHnepaBnBHOIOcnoB3OBAHnO(ouN6Ka nTaHn,naDeHne,pa3bOpka).
Cnyuany Bixoana 3cTPOyN3-3a OkpykaIOueI cpebl (3arpn3HeHne Bo3dyxa, KoppO3nA, nbInb).
B cnyuae nonomkn, BepHnte yctpoCTBO CBOeMy nIcTpn6bIOTopy, npedocTBAH
- DOKa3aTeNbCTBO NOKyPkC yka3aHHo DaToN (KBNTaHnA, CHT-PAkTpya...)
-ONICAHNE NOJOMKN.
Данhoe руховдъо NO зкплуataци Иntерфеяca (HMI)Яьяется частью полно ДOKументаци. Киздению пилагаetсяобшee руховдъо. Прочтайт e n следут e NHCTpyKцямВобшem руховдъve, поставлгемС пpoуКТOM, BЧаCTHOCTN,Инструкцям no 6e3oNaChoctn!
Испосьованец и paбotingа Исклочтейbosco с点点头и подуктуни
AUTOPULSE

Bercsna IO
B daHHom pykoBoDCTBe OINcaHbI cIeMyUOuNe BepCn nporpaMMHOro o6ecneHnA:
1.86
BercnI nporpamMHO oecneueHn INTepeca OTo6paKaeTcB oOeMeHIO: INdopMaun / MMI
YnpaBJIeHne nCTOuHnKOM
INaBbI 3KpaH COePKeNT BcIO HhOpMaquHIO, Heo6xOIMyHO IIN PPOecca CBapKn DO, BO Bpem I Nocne CBapKn (InTEpeNc MOKeT HEMHO r3MeHHTbcra B 3aBcHMOCTOn OT BbIbpaHHOro PPOecca).

(1)IMRA NOB3OBATEJ/OTCNEKINBAEMOCTb
(2)Khonka n°1:TnabHoe MeHIO nn Bo3BpaT B npedbIyuee MeHIO
(3) Khonka n°2: NapaMeTpbl Tekyuero peKIma
(4)KoJecnkoHaBrau
(5) Khonka n°3: Hac troponk
(6)Khonka n°4:JobnnIpoTBePckdHne
(7)TeKyuansHaCTpoKn
(8)Измерени Habрженья,ТokaиЗерп.
Ochohoe MeHIO
Pn npBOM 3ayncke yctpoinCTBa OTo6paKaaeTcA kpan «O6ue MeHIO».
HabiracnMexdy pa3nHybIM6NOKAMOcUeCTBnEaTcC NOMOuBIO KOJecNKOB KHO

Hactpoikn (noIb3ObaTeJIb)
PexkIM oTo6paXeHnA
-Easy: ynpaueHHb iDcNpIe, MmHmym HnΦopamu (HET DocTyna K uKny CBapKn).
- Expert : nonHbI DnCnnei, no3BOJRAET HAcTPOINb DnITEJIbHOCTb IN BpeM pa3NJUHbIX Za3 UNKa CBAPKn.
- Advanced : noHoe OTo6paXeHne, no3BoJraT HAcTpaNtBaTb BCE npaMeTpbl CbapOuHoro uKna
3bIK
Bb6op 3bika nHTpepB3uca (qpaHcy3ckn, aHrlnnckn, Hemeuckn, nT.d.).
EduHnucbI n3MepeHna
Bb6op edinHn u3MepeHHa: MeKdynapoHbSi nIu IIOMObB (USA).
HaimehoBaHne MaTePnaJIOB
Ebponeckne Hopmbi(EN) nI AmepukaHckne (AWS).
RpkocTB
PerynnpyeT npKoCTb 3kpaHa nHTeppeCa (HacToPka ot 1 (TeMHbI cBET) do 10 (oueh npKm)).
KoI noJIb3OBaTeJIa
HacpoTe KOIdoCTyna nonb3oBaTeTn dna 6IOKIpOBKn erO ceaHca (no yMOJuaHnIO 0000).
OTKNOHEHNEI (TOK)
OTKIOHHeH No yCTaHOBKe TOKa:
BbIK: cbo6oHaHa hAcToKa, TeKu7a HaCToKa He OrganuHcHa.
±0A:OTKIOHHe He DOnyuctmo,ФNKcaunrTOka
± 1A > ± 50A: INHTepBaH NaCTpoE K NO KOtOpOMy NIOJIb3OBAteJIb MOKET N3MeHrTb TOK.
OTKIOHeHne U (HaIpaJxehne)
OTKNOHeHne no HacTpoNke HapRjXeHn:
BbIK: cbo6oJnaHacTpoJa, TeKUaHacTpoJa He orpaHueHa.
±0.0V:OTKJIOHeHHeIOnyCTMnO,ΦmKcaUHaPraKeHnA
±0.1V> ±5.0V: INTepBaI hAcTpOeK NO KOTOpOMy NOLb3OBaTeB MoXET N3MeHrTb HAnpJxKeHne
OTKIOHeHne CKOpocTb npoBOJOKN)
OTKIOHHeNo HAcTpoKe CkOPOCTn npOBONK (M/MNH):
BbIKJI: cboodna HacTpoKa, Tekyua HacTpoKa He orpaHueHa.
±0.0 M/MNH:OTKNOHEHHeH He DonyCTNMO,ФKKCaUNCKOPOCTN.
±0.1M/MNH> ±5.0M/MNH: INHTepBaJn HAcTpoE K NO KOTOPOMY NIOJB3OBAteJIb MOKET N3MEHRTB CkOPOCTb NODaH
IPOBOJIKI
Cnctema
Ha3BaHne annapaTa
HOpMaIgOHa3BaHnUyCTpOHTBaNBO3MOXHOCTbEroNEpCOHaJI3aQINnyTeMNCNoJb3OBaHnNHTeppeCa
/
yacbl
YcTaHOBka BpemeHn, DaTbI nΦopMaTa (AM / PM).
C6poc
UcTaHOBInTe pa6OuNe HAcTPOJKn:
- YactnHoo: 3NaueHne no ymoJuaHnIO dIy TeKuIeRo npOceCa CBAPKn.
-Полноctью:Всддньи Конфурази annapapa 6удт сбpoшьdo 3aBoDcKx HacTpoeK.
Бл_OKировka
Bo3MOxHocTb 6JIOKpOBKN INHTepFeIca annapaTa InO obeCneueHna 6e3OnacHocTN B npocece paobToi npedeTbpaIeHn HnpeHaMepeHHbIX NIN CnyauHbIX N3MeHEni. OkHO TekyuNX HAcTpoE OCTaeTc N3MeHReMbIM C dOnyCTHMbIM OTKnloHeHnMn, BBipahHbIX B MeHIO «NapameTbI» (CM. npdeBdyUyIO cTpanu). Bce pyrIne FyHKmN He DOctynbl YTO6bl pa36nokpOBaTB INHTepFeIc, HaxMNTe KhoNky N91 IN BBeDInTe 4-3NaHbIK KOd NOJIb3oBaTeJIa (no yMOnuaHIO 0000).
Пользовател.
PexIM noIb3OBaTeJI NO3BOJnE TJeHITb annapat MeKdy HeCKoJIbKIMM NOJIb3OBATeJIaMI. PIn nepBOM 3anycke annapat B pexIme «AdmH» AdmHnCTpaTOp MOKeT CO3DaBaTb NOIb3OBaTeJI KaxdIy NOJIb3OBaTeJI IMeET CBOI Co6CTBeHHble HAcToPmK (peXIM, KOHfNpyaCIN jobs, MeTOD CBAPK) I NOIb3OBaTeJI He MOrY IN3MeHЯrTB HAcToPoiK INoJIb3OBaTeJI KaJdbI NOJIb3OBaTeJI DoJIKeH IMeTb YeTbIPex3HaUHbKOJDTO6bl NODKIIIOuHTbc K TeHepaTopy.
-AdMNHCtpaTOP IMeET DOCTyn KO BCemy ObIeMy MeHIO.
-ПлбьоВаTeIb ИмeET ДocTун К урошeHOMу ИтepсeиCy.У Hero HeT npaB Ha ydaJIeHne (OTcIeKINBaHne, pa6OuNX MeCT, npoФиeN noIb3OBaTeIeN n.T.D.)
Ponb3oBaTeIbckn INHTpeΦeIc (npEHa3NaueH nlaAdmHnCTpaTopa).
Jebar yactb 3kpaHa cncok nonb3oBaTeNe. AdmnHcTpaTop MOxET OTCOPnPOBaTB 3TNX NOLb3OBeTeNe NO IMEHN INI NO Date, Kopotko haxab 2-10 KhoKy X ha KnaBnatype. DInTeJIbHOe haxaTne Ha 3Ty KhoKy ydaIaRt AKTINBbIX NOLb3OBeTeNe (yueTHa 3aNNCb admnHcTpaTopa He MOxET 6blb ydaIeHa).
B npaboi yactn 3kpaHa moKHO npocmotpeTb cBeHeHna 06o Bcex paHee co3daHHbIX nOlb3OBaTeIax co cneDyUoSei HOpmaueH: Abatap, FAmIIHra, Homep KOMaHdbI OTKNoHeHne (%)
Co3dHne npoqnla noIb3ObaTeJra
Haxmnte KhoNky n°3 dny co3daHnnoIb3oBaTeJIa.
-Плбзовать:Насточи PMЯ Плбзоватя,нжав Кногку n°3.
-AaBtap: BbIbOp zBeta aBaTapa noIb3ObaTeIa
- Komahda: Ппсвовец Нома Команы (10 max)
-KoJ noJIb3ObaTeIa: KoJ nIIuHOrO doCTyIa (No yMOnUaHnIO 0000)
-OTKJIOHeHne NO yCTaHOBKe TOKaI:
BbIK: cbo6oJH aHCTPOJa, TeKUaH aHCTPOJa He OrpaHueHa.
±0.0A:OTKIOHeHHe DOnyCTnMo,ФИКСИРОВАнhoe 3HaueHne TOKa (He peKOMeHdyeTcra).
±0.A>±50A: nHTepBaH hactpoek no KOTOPOMy NnB3OBaTeJb MoKET N3MeHrTb TOK.
Donyckaemoe OTKNoHeHne no HacTpoKe HanpJxKeHnU:
BbIKJI: cbo6nHa HaCtpoKa, TeKUaHa HAcTpoKa He OrpaHHeHa.
±0.0V:OTKNOHeHHe He DOnyCTnMo,ΦNKCuPoBaHnOe 3NaueHHe HAnpJxHn (He peKOMeHdyetc).
±0.1V> ±5.0V: INTEpBaH HAcTpoE KOTOpOMy NOJb3OBaTeJIb MoKET N3MeHrTb HApRJaKeHHe
- OTKnoHeHne no HactpoiKe ckopoCtn npoBOJOKn (M/MNH):
BbIKI: cbo6oHaHaCTpOka, Tekyua HaCTpoKa He orpaHueHa.
±0.0 M/MNH:OTKIOHeHHe IOnyCTMnO,ΦNKCuPOBaHHaCROpOCTb NOaHu (He peKOMeHdyTeC).
±0.1M/MNH> ±5.0M/MNH : INHTepBaJI HAcTpoE KIO KOtOpOMy IOnb3OBATeJIb MOKeT I3MeHЯrTB CKOpocTb NOJaU NpOBoJKN
Дяп поьзбамени «Admin» uзмehенue umehu u aeamapa adMuHucmpamopa He603moxHO.
I3MeHHeHn npOoHJIa NIOJb3OBaTeJIa
BbIepeNTe NJIb3OBATeJRAJIeBOU YacTn 3KpaHa HaxMnte KONKy n°4.
Bb6op noJb3oBaTeJra
Ecnn co3dAn oDIn (nnn Heckonbko) noIb3oBateNei, B 6JIOKe noIb3oBaTeNei OTo6paKaOTcB Ce nOJIb3oBaTeJe aannapata.
Bb6epnte HyxHoro noJb3OBateJn HaxMnte HaHTobI noTBePntb. TOpTe6yeTcB BOD kOda 6nOKnpOBKn
Функця «3akpbIb» NO3BOJЯET 3aKpeNTb MaUNHy NOI ONPeJIeJIHHbIX NOIb3OBaTeJIe, HNKaJIe IpyrIe npaMeTpbl He
6dyT DocTyHb DaaHna HnDkaun nJeHTnuHa KOrda MaunHa BKnOueHa (nepeKIOuatoB OFF->ON)
OTo6paXeHne noJb3OBaTeJIa
CbepxbIeBOJyactn3kpaHOnTO6pKaaeTcABaTAPNIMRAKTHBHO NOJIb3OBATEJIa.
KoI 6JOKIPOBKn
KaJdbI npOoHb IOnb30BaTeIaAsuIeH nepcoHaIbHbIM KOD m 34x uIpp. Be3 nepcoHaII3aUIN, no yMonuHaHIO 3OT KOd 0000 Nocne 3 OwN6OHybIX nonbTOK Baw nepcoHaJIbHbIK KOd INTEppeMeCA 3a6nokpyetcN I NTpe6yET KOd pa36JokPobKn DaHHbIK KOd coCTOIT n3 6 uIpp n He MoDnFpuPyembl. KoD : 314159.
OTcJIeJINBaEmOCTb
3TOT INHTepfecn ynpablenen Cbapko n03Bolraet OTCJeknBaTb/3aNcBbA Tbcce 3TaNb CBAPK NOB 3a WBO BVPMA n3rOToBneHn npomblneHHoro n3dEInna. 3Ta MeTOmka ynpablenen KaueCTBOM o6eCneHBAET KaueCTBO CBAPKn NOcne npoIN3BODCTBa, YTO No3BOLraet npOBectn aHaJIIN3, OueHKy, OTyeTHOCb N DOkymeNTAUcoxpaHeHHbIX CBAPouhbx napametpoB. 3Ta fynKcuHOHaJIbHoCTb o6eCneHBAET TOHbI N 6bICTpbI c6Op, a TAKKe COxpaHHeHne daHHbIX, 3aPpuaHbaembix B pAMkax cTAndapTa EN ISO 3834. BocctahOBlenhe 3Tnx daHHbx BO3MOXHO uepe3 3KcnpT Ha USB-KnIOU.
1- Start -Co3dahne OTCJIeKINBaEMOCTN
- HactpoTe NmI POJIb3OBATeIa, HaxaB KOnKy n°3.
-ИntepBaJ BB6OpKn:
-Hold:OTcYtCTBnE3aNcH3NaueHnTOKa/HanpJxKeHn(cpeHHe 3NaueHnNo npOBoy)BO BpeMcBapKn.
-250MC,500MCnT.D.:3aHnscb3NaueHnToK/HanpJxHne(cpedHee3NaueHne no npoBoy)KaXdyU《X》MUNIINCEkyHnyNII INCeKyHnyBOBpeMcBapKn.
- OnLIM - OFF : npocTAR OTCJEXINBAEMOCtB
- Onznn - ON : noIHOueHHa OTCJeXnBaemocTb
CuetnK npoxoIOB (ON/OFF)
Данные .CSV можно Incnoьзоватс симошью рограмного obecneуеня дя pa6otыс злктpoHHbIMI tabицamn (Microsoft Excel®, Calc OpenOffice® и.T.Д.).
| КODE ош�бka | Сообъение PEШЕНЕ | |
| 001 | Перенаръение в сети Провьtle заekt捜ескoe поочичениe | Провьtle ваши у заekt捜еску установку квашифицровahlим спецадостом. |
| 002 | ПонижECHHOE HANРЯЖЕHICE B CETI Провьtle заekt捜ескoe поочичениe | |
| 005 Oш�бka | Тoka заимления | Налочи луждаюсят ото. Провьtle пождочу сравочого annapata (ropeлka, захим заимления, deprхател заektroduаи Т.Д.). |
| 010 | Источник Телковая зашита | ПождITEleckлько минут ото ясточник остын. HePreвшиaite pekomehd'yembl paobочи цлдя Incpoьз汞ого сравочого тока. Убадиесь, что вхочны и вьхочны вентлияцунhh们 OTberpст� п He заби!. Усточник пьлевий Фпьт (apt 063143) Вимане, пьлевий Фпьтс сокрацаet равочи цл. |
| 011 | Венильтор Нецправноctь венильтора | Великий постaniaх, ото сожима востaviaх, убадиные. Великий постians. Снимпесы постians. Снимпесы постians. Снимпесы постians. Снимпесы постians. Снимпесы постians. Снимпесы постians. Снимпесы постians. Снимпесы постians. Снимпесы постians. Снимпесы постians. Снимпесity. Снимпесы постians. Снимпесы постians. Снимпесы постians. Снимпесы постians. Снимпесы постians. Снимпесы постians. Снимпесы постians. Снимпесы постians. Снимпесы постians. Сниmпесы постians. Сниmпесы постians. Сниmпесы постians. Сниmпесы постians. Сниmпесы постians. Сниmпесы постians. Сниmпесы постians. Сниmпесы постians. Сниmпесы постians. Сниmпесы постians. Снимпесы постians. Сниmпесы постians. Сниmпесы постians. Сниmпесы постians. Сниmпесы постians. Сниmпесы постians. Сниmпесы постians. Сниmпесы постians. Сниmпесы постians. Снимпесы постians. Снимпесы постians. Сниmпесы постians. Сниmпесы постians. Сниmпесы постians. Сниmпесы постians. Сниmпесы постians. Сниmпесы постians. Сниmпесы постians. Снимпесы постians. Сниmпесы постians. Снимпесы постians. Сниmпесы постians. Сниmпесы постians. Сниmпесы постians. Сниmпесы постians. Сниmпесы постians. Сниmпесы постians. Сниmпесы постians. Снимпесы постians. Снимпесы постians. Снимпесы постians. Сниmпесы постians. Сниmпесы постians. Сниmпесы постians. Сниmпесы постians. Сниmпесы постians. Сниmпесы постians. Снимпесы постians. Сниmпесы постians. Сниmпесы постians. Снимпесы постians. Сниmпесы постians. Сниmпесы постians. Сниmпесы постians. Сниmпесы постians. Сниmпесы постians. Сниmпесы постians. Снимпесы постians. Сниmпесы постians. Снимпесы постians. Снимпесы постians. Сниmпесы постians. Сниmпесы постians. Сниmпесы постians. Сниmпесы постians. Сниmпесы постians. Сниmпесы постians. Снимпесы постians. Снимпесы постians. Сниmпесы постians. Снимпесы постians. Сниmпесы постians. Сниmпесы постians. Сниmпесы постians. Сниmпесы постians. Сниmпесы постians. Сниmпесы постians. Снимпесы постians. Снимпесы постians. Снимпесы постians. Снимпесы постians. Сниmпесы постians. Сниmпесы постians. Сниmпесы постians. Сниmпесы постians. Сниmпесы постians. Снимпесы постians. Сниmпесы постians. Сниmпесы постians. Сниmпесы постians. Снимпесы постians. Сниmпесы постians. Сниmпесы постians. Сниmпесы постians. Сниmпесы постians. Сниmпесы постians. Снимпесы постians. Сниmпесы постians. Сниmпесы постians. Снимпесы постians. Снимпесы постians. Сниmпесы постians. Сниmпесы постians. Сниmпесы постians. Сниmпесы постians. Сниmпесы постians. Снимпесы постians. Сниmпесы постians. Снимпесы постians. Сниmпесы постians. Снимпесы постians. Сниmпесы постians. Сниmпесы постians. Сниmпесы постians. Сниmпесы постians. Сниmпесы постians. Снимпесы постians. Сниmпесы постians. Снимпесы постians. Снимпесы постians. Снимпесы постians. Сниmпесы постians. Сниmпесы постians. Сниmпесы постians. Сниmпесы постians. Сниmпесы постians. Снимпесы постians. Снимпесы постians. Сниmпесы постians. Сниmпесы постians. Снимпесы постians. Сниmпесы постians. Сниmпесы постians. Сниmпесы постians. Сниmпесы постians. Сниmпесы постians. Снимпесы постians. Снимпесы постians. Сниmпесы постians. Снимпесы постians. Снимпесы постians. Сниmпесы постians. Сниmпесы постians. Сниmпесы постians. Сниmпесы постians. Сниmпесы постians. Снимпесы постians. Снимпесы постians. Снимпесы постians. Сниmпесы постians. Снимпесы постians. Сниmпесы постians. Сниmпесы постians. Сниmпесы постians. Сниmпесы постians. Сниmпесы постians. Снимпесы постians. Снимпесы постians. Снимпесы постians. Снимпесы постians. Снимпесы постians. Сниmпесы постians. Сниmпесы постians. Сниmпесы постians. Сниmпесы постians. Снимпесы постians. Сниmпесы постians. Сниmпесы постians. Сниmпесы постians. Сниmпесы постians. Снимпесы постians. Сниmпесы постians. Сниmпесы постians. Сниmпесы постians. Снимпесы постians. Снимпесы постians. Сниmпесы постians. Сниmпесы постians. Сниmпесы постians. Сниmпесы постians. Снимпесы постians. Сниmпесы постians. Сниmпесы постians. Снимпесы постians. Сниmпесы постians. Снимпесы постians. Сниmпесы постians. Сниmпесы постians. Сниmпесы постians. Сниmпесы постians. Снимпесы постians. Сниmпесы постians. Сниmпесы постians. Снимпесы постians. Снимпесы постians. Снимпесы постians. Сниmпесы постians. Сниmпесы постians. Сниmпесы постians. Сниmпесы постians. Снимпесы постians. Сниmпесы постians. Снимпесы постians. Сниmпесы постians. Сниmпесы постians. Снимпесы постians. Сниmпесы постians. Сниmпесы постians. Сниmпесы постians. Сниmпесы постians. Снимпесы постians. Сниmпесы постians. Снимпесы постians. Сниmпесы постians. Снимпесы постians. Снимпесы постians. Сниmпесы постians. Сниmпесы постians. Сниmпесы постians. Сниmпесы постians. Снимпесы постians. Сниmпесы постians. Снимпесы постians. Снимпесы постians. Сниmпесы постians. Снимпесы постians. Сниmпесы постians. Сниmпесы постians. Сниmпесы постians. Сниmпесы постians. Снимпесы постians. Сниmпесы постians. Снимпесы постians. Снимпесы постians. Снимпесы постians. Снимпесы постians. Сниmпесы постians. Сниmпесы постians. Сниmпесы постians. Сниmпесы постians. Снимпесы постians. Снимпесы постians. Сниmпесы постians. Сниmпесы постians. Сниmпесы постians. Снимпесы постians. Сниmпесы постians. Сниmпесы постians. Сниmпесы постians. Сниmпесы постians. Снимпесы постians. Снимпесы постians. Сниmпесы постians. Сниmпесы постians. Снимпесы постians. Снимпесы постians. Сниmпесы постians. Сниmпесы постians. Сниmпесы постians. Сниmпесы постians. Снимпесы постians. Снимпесы постians. Сниmпесы постians. Снимпесы постians. Сниmпесы постians. Снимпесы постians. Сниmпесы постians. Сниmпесы постians. Сниmпесы постians. Сниmпесы постians. Снимпесы постians. Снимпесы постians. Сниmпесы постians. Снимпесы постians. Снимпесы постians. Снимпесы постians. Сниmпесы постians. Сниmпесы постians. Сниmпесы постians. Сниmпесы постians. Снимпесы постians. Снимпесы постians. Снимпесы постians. Сниmпесы постians. Сниmпесы постians. Снимпесы постians. Сниmпесы постians. Сниmпесы постians. Сниmпесы постians. Сниmпесы постians. Снимпесы постians. Снимпесы постians. Снимпесы постians. Сниmпесы постians. Снимпесы постians. Снимпесы постians. Сниmпесы постians. Сниmпесы постians. Сниmпесы постians. Сниmпесы постians. Снимпесы постians. Снимпесы постians. Снимпесы постians. Снимпесы постians. Сниmпесы постians. Снимпесы постians. Сниmпесы постians. Сниmпесы постians. Сниmпесы постians. Сниmпесы постians. Снимпесы постians. Снимпесы постians. Снимпесы постians. Снимпесы постians. Снимпесы постians. Снимпесы постians. Сниmпесы постians. Сниmпесы постians. Сниmпесы постians. Снимпесы постians. Сниmпесы постians. Сниmпесы постians. Сниmпесы постians. Снимпесы постians. Сниmпесы постians. Снимпесы постians. Сниmпесы постians. Сниmпесы постians. Сниmпесы постians. Снимпесы постians. Сниmпесы постians. Сниmпесы постians. Сниmпесы постians. Снимпесы постians. Снимпесы постians. Снимпесы постians. Сниmпесы постians. Сниmпесы постians. Сниmпесы постians. Снимпесы постians. Сниmпесы постians. Сниmпесы постians. Снимпесы постians. Сниmпесы постians Сниmпесы постians Сниmпесы постians Сниmпесы постians Сниmпесы постians Сниmпесы постians Сниmпесы постians Сниmпесы постians Сниmпесы постians Сниmпесы постians Сниmпесы постians。 Cниmпесы постians Cниmпесы постians Cниmпесы постians Cниmпесы постians Cниmпесы постians Cниmпесы постians Cниmпесы постians Cниmпесы постians Cниmпесы постians Cниmпесы постians Cниmпесы постians |
| Значки прешистеньи | Зночени |
| DEMO | Рек imm Демонстрази. Сварka Heakтualь. Проберът eльктоустановку (сетеboa Наръжени). |
| Батарейка Иntерфейca разrajжени. 3аменite батарю (CR2032) и обновITE дату в蜱еля (Сисема/Часы). | |
| Вenv'tлготор не врашадя с hyжно скоростью.Проберът состotingе вентлилтора. |


ПростаяИнструкция