350CB3WB - Chauffage DOVRE - Notice d'utilisation et mode d'emploi gratuit
Retrouvez gratuitement la notice de l'appareil 350CB3WB DOVRE au format PDF.
| Caractéristiques | Détails |
|---|---|
| Type de chauffage | Poêle à bois |
| Puissance nominale | 7 kW |
| Rendement | 80% |
| Dimensions (L x P x H) | 600 x 450 x 850 mm |
| Poids | 120 kg |
| Capacité du foyer | 30 cm |
| Matériau | Acier et fonte |
| Émissions de CO | 0,1% |
| Normes de sécurité | Conforme aux normes CE |
| Utilisation | Chauffage d'appoint ou principal dans les habitations |
| Entretien | Nettoyage régulier du foyer et du conduit de fumée |
| Garantie | 2 ans |
FOIRE AUX QUESTIONS - 350CB3WB DOVRE
Questions des utilisateurs sur 350CB3WB DOVRE
0 question sur cet appareil. Repondez a celles que vous connaissez ou posez la votre.
Poser une nouvelle question sur cet appareil
Téléchargez la notice de votre Chauffage au format PDF gratuitement ! Retrouvez votre notice 350CB3WB - DOVRE et reprennez votre appareil électronique en main. Sur cette page sont publiés tous les documents nécessaires à l'utilisation de votre appareil 350CB3WB de la marque DOVRE.
MODE D'EMPLOI 350CB3WB DOVRE
B-2381 Weelde Fax : +32 (0) 14 65 90 09
Déclaration de conformité...3.....
Sécurité 4
Conditions d'installation..4....
Généralités 4
Cheminée 4
Ventilation de la pièce 5
Sols et murs 6
Description produit 6
Installation 8
Préparation 8
Monter les pieds (uniquement pour le 350CB et le 360CB)....
Monter le support de poignée.... 8
Préparation du raccordement au conduit de cheminée
Montage de la plaque latérale (uniquement pour 350CB3 et 360CB3).... 10
Pose et raccordement.... 11
Utilisation 11
Première utilisation.... 11
Combustible.... 11
Allumage.... 12
La combustion au bois.... 12
Extinction du foyer.... 13
Décendrage.... 13
Brouillard et brume.... 14
Résolution problèmes.... 14
Entretien 14
Conduit de cheminée 14
Nettoyage et autre entretien régulier..... 15
Annexe 1 : Spécifications techniques 17
Annexe 2 : Dimensions.... 18
Annexe 3 : Distance entre le poêle et les matériaux combustibles.... 23
Annexe 4 : Tableau de diagnostic.. 26
Index 27
Introduction
Chère utilisatrice, cher utilisateur, En achetant ce poêle DOVRE, vous avez opté pour un produit de qualité. Ce produit fait partie d'une nouvelle génération d'appareils de chauffage écologiques et économiques en énergie. Ces appareils utilisent de manière optimale la chaleur convective, ainsi que la chaleur rayonnante.
Déclaration de conformité

Organisme notifié : 2013
Votre poêle DOVRE est fabriqué avec les moyens de fabrication les plus modernes. Si vous rencontrez un défaut quelconque sur votre appareil, vous pouvez toujours faire appel au service Par les présentes, DOVRE.
L'appareil ne doit jamais être modifié ; veuillez toujours utiliser des pièces d'origine. Dovre nv, Nijverheidsstraat -2381, B2381 Weelde, Belgique, déclare
L'appareil est prévu pour être placé dans une pièce d'habitation. Il doit être raccordé de façon hermétique à un conduit de cheminée fonctionnant que les poêles 350CB, 350CB3, 350CB3/WB, 360CB correctement et conforme aux normes en vigueur et 360CB3 sont fabriqués conformément à la norme EN 13240.
Nous vous recommandons de faire appel à un chauffagiste agréé professionnel pour installer votre appareil.
Weelde 03-09-2005
▶ DOVRE décline toute responsabilité pour des problèmes ou des dommages dus à une installation incorrecte.
Lors de l'installation et de l'utilisation, les consignes de sécurité décrites ci-après doivent toujours être respectées.
Ce mode d'emploi contient des informations concernant l'installation, l'utilisation et l'entretien en toute sécurité de l'appareil de chauffage DOVRE. Si vous souhaitez recevoir des informations complémentaires ou des spécifications techniques ou si vous rencontrez un problème lors de l'installation, veuillez d'abord contacter votre distributeur.

text_image
T. Gehem© 2012 DOVRE NV
Les produits faisant l'objet d'une amélioration permanente, les spécifications de l'appareil livré pourront diverger de celles mentionnées dans cette brochure sans avis préalable.
DOVRE N.V. Nijverheidsstraat 18 Tél : +32 (0) 14 65 91 91 2381 Weelde, Belgique Fax : +32 (0) 14 65 90 09
E-mail : info@dovre.be

Sécurité

Attention ! Toutes les consignes de sécurité doivent être strictement respectées.

Avant d'utiliser votre poêle, lisez attentivement les instructions pour l'installation, l'utilisation et l'entretien.

L'appareil doit être installé conformément à la législation et aux prescriptions nationales.

Toutes les dispositions régionales et les dispositions concernant les normes européennes et nationales doivent être respectées lors de l'installation de l'appareil.

Lisez attentivement les instructions pour l'installation, l'utilisation et l'entretien fournies avec le poêle.

Nous vous recommandons de faire appel à un chauffagiste agréé pour installer votre appareil. Ce spécialiste connaît les dispositions et les réglementations en vigueur.

L'appareil est conçu pour le chauffage. Toutes les surfaces, y compris la vitre et le conduit l' raccordement peuvent être brûlantes (plus de 100 °C) ! Pour manipuler l'appareil, portez toujours un gant résistant à la chaleur ou utilisez une poignée main froide.

Ne placez jamais de rideaux, vêtements, linges ou autres matières combustibles sur ou à proximité du poêle.

Lorsque votre poêle fonctionne, n'utilisez jamais de produits explosifs ou facilement inflammables à proximité du poêle.

Prévenez tout départ de feu dans le conduit cheminée en faisant ramoner régulièrement le conduit concerné. Ne laissez jamais le feu brûler avec la porte du poêle ouverte.

En cas de départ de feu dans le conduit de cheminée : fermez les arrivées d'air du poêle et appelez les pompiers.

Si la vitre du poêle est brisée ou fendue, il la remplacer avant d'utiliser à nouveau l'appareil.

Veillez à avoir une aération suffisante de la pièce où se trouve le poêle. Une aération insuffisante peut engendrer une combustion incomplète et l'échappement de gaz toxiques dans la pièce. Voir le chapitre « Conditions d'installation » pour de plus amples informations concernant l'aération.
Conditions d'installation
Généralités
L'appareil doit être raccordé à un conduit de cheminée fonctionnant correctement.
Pour les dimensions de raccordement : voir l'annexe « Spécifications techniques ».
▶ Informez-vous auprès d'un professionnel des pompiers et/ou de votre compagnie d'assurances unail. pour connaître les éventuelles exigences et dispositions spécifiques.
Cheminée
de cheminée est nécessaire pour :

L'évacuation des gaz de combustion par tirage naturel.
L'air chaud dans la cheminée est plus léger que l'air extérieur et s'élève donc dans le conduit de cheminée.
L'aspiration de l'air est nécessaire pour la combustion du combustible dans le poêle.
Une cheminée fonctionnant mal peut engendrer un retour de fumée lors de l'ouverture de la porte. Les dommages dus à un retour de fumée sont exclus de la garantie.

Il est interdit de raccorder plusieurs appareils (la chaudière du chauffage central, par exemple) au même conduit de cheminée, sauf dans des cas précis prévus par la réglementation régionale ou nationale.
Demandez à votre chauffagiste des conseils concernant la cheminée. Consultez la norme européenne EN13384 pour calculer correctement la configuration de la cheminée.
La cheminée doit satisfaire aux conditions suivantes :
La cheminée doit être fabriquée en matériaux réfractaires, de préférence en acier inoxydable ou en céramique.
La cheminée doit être étanche, bien propre et garantir un tirage suffisant.

Un tirage/dépression de 15 - 20 Pa à l'allure nominale est idéal.
La cheminée doit être aussi verticale que possible en partant de la sortie de l'appareil. Les changements de direction et les sections horizontales perturbent l'évacuation des gaz de combustion et peuvent créer une accumulation de suie.
La section intérieure du conduit ne doit pas être trop importante, afin d'éviter un refroidissement trop important des gaz de combustion risquant de réduire le tirage.
La cheminée doit de préférence présenter le même diamètre que le diamètre de la buse de raccordement.

Pour le diamètre nominal : voir l'annexe « Spécifications techniques ». Si le conduit de fumée est correctement isolé, le diamètre peut éventuellement être plus important (au maximum deux fois la section de la buse de raccordement).
La section (surface) du conduit de fumée doit être constante. Les élargissements et (plus particulièrement) les rétrécissements perturbent l'évacuation des gaz de combustion.
En cas de pose d'une mitre à la sortie de la cheminée : veillez à ce que la mitre ne réduise par la sortie d'évacuation de la cheminée et qu'elle ne perturbe pas l'évacuation des gaz de combustion.
La cheminée doit déboucher dans une zone non perturbée par des bâtiments, arbres ou autres obstacles avoisinants.
La partie de la cheminée hors du toit doit toujours être isolée.
La cheminée doit être d'au moins 4 mètres de haut.
La règle de base est la suivante : 60 cm au-dessus du faîtage du toit.
Si le faîtage du toit est éloigné de plus de 3 mètres u de la cheminée : respectez les dimensions indiquées sur le croquis suivant. A = point le plus haut du toit à une distance de 3 mètres.

text_image
e 3 m min. 0.5 m min. 1 m A 09.20500.001Ventilation de la pièce
L'appareil a besoin d'air (oxygène) pour garantir une bonne combustion. L'appareil est alimenté en air de la pièce où il se trouve, par le biais d'admissions d'air réglables.

Un manque d'aération peut engendrer une combustion incomplète et des gaz toxiques peuvent se répandre dans la pièce.
La règle de base est que l'alimentation en air doit être de 5,5 cm²/kW. Une aération supplémentaire est nécessaire dans les cas suivants :
L'appareil est placé dans une pièce correctement isolée.
Il existe une aération mécanique (VMC), un pasystème d'aspiration central ou une hotte de ne cuisine dans une cuisine américaine, par exemple.
Vous pouvez créer une aération supplémentaire en plaçant une grille d'aération dans un mur donnant sur l'extérieur.
Veillez à ce que les autres appareils utilisant l'air (sèche-linge, second appareil de chauffage ou aérateur de salle de bain) aient une propre arrivée d'air extérieur ou soient éteints lorsque le poêle est allumé.
Sols et murs
Le sol sur lequel l'appareil sera posé, doit présenté une capacité de charge suffisante. Pour connaître le poids de l'appareil : voir l'annexe « Spécifications techniques ».

En cas de sol inflammable, posez une plaque de sol ininflammable pour le protéger contre la chaleur rayonnante. Voir l'annexe « Distance d'éloignement avec des matériaux inflammables ».

Placez le matériel inflammable comme le linoléum, les tapis, etc, sous le hourdis ignifuge.

Veillez à ce qu'il y ait une distance suffisante entre l'appareil et les matériaux inflammables, tels que parois et mobilier en bois.

Le conduit de raccordement rayonne également de la chaleur. Assurez-vous qu'il y ait une distance ou une protection suffisante entre la conduite de raccordement et le matériel inflammable.
La règle empirique pour une conduite à simple paroi est une distance de trois fois le diamètre. Si la conduite est gainée, la distance à respecter est d'une fois le diamètre.

Les tapis doivent se trouver au moins à 80 cm du foyer. 3.

Si le sol devant le poêle est inflammable, 4. protégez-le avec un hourdis ignifuge, pour que les cendres éventuelles ne le brûlent pas. Le 5. hourdis doit répondre aux normes nationales. 6.

Pour les dimensions du hourdis ignifuge : voir7. l'annexe « Distance d'éloignement avec des matériaux inflammables ».

Pour toute autre exigence en matière sécurité contre l'incendie : voir l'annexe « Distance d'éloignement avec des matériaux inflammables ».
Description produit
Modèle 350CB et 360CB

text_image
a 1 2 3 4 5 6 7 09.20015.078Registre d'air air de combustion secondaire, air pour air-wash
Porte
-
Corbeille
-
Registre d'air air de combustion primaire
-
Pied réglable
-
Bac à cendres
ir7. Verrouillage
Caractéristiques du modèle 350CB et 360CB
L'appareil est doté de pieds réglables en hauteur.
L'appareil peut être raccordé au conduit des fumées sur le côté, à l'arrière ou sur le dessus.
Le poêle est livré avec une poignée séparée.
Pour ouvrir la porte, introduisez la poignée dans le trou de la porte ; voir illustration suivante.

Modèle 350CB3 et 360CB3

text_image
1 2 3 4 5 6 7 09.20015.079Pour éviter que la poignée ne chauffe lorsque le poêle est allumé, elle peut être placée dans le support de poignée situé sous le bac à cendres l'appareil.
L'appareil est fourni avec une poignée séparée e fonte, ladite « main froide » destinée à déposer bac à cendres ; voir illustration suivante.

L'appareil est fourni avec un pelle pour le décendrage.
de Registre d'air air de combustion secondaire, air pour air-wash
2. Porte
le Corbeille
- Registre d'air air de combustion primaire
- Bac à cendres
- Verrouillage
- Vitre latérale
Caractéristiques du modèle 350CB3 et 360CB3
Ces modèles présentent les mêmes caractéristiques que les modèles 350CB et 360CB, à l'exception des points suivants :
L'appareil n'est pas réglable en hauteur.
Vous pouvez remplacer la vitre latérale (7) par une plaque latérale pleine. La distance minimale entre un matériau inflammable et le côté est réduite dans le cas d'un tel remplacement de 80 cm à 40 cm. La plaque latérale est fournie standard.
Modèle 350CB3/WB
Caractéristiques du modèle 350CB3/WB
Ce modèle présente les mêmes caractéristiques que le modèle 350CB3.
L'appareil est doté d'un compartiment pour le bois fermé par une porte.
Installation
Préparation
Contrôler le poêle immédiatement à la réception en recherchant les dommages (de transport) et autres manquements éventuels.

En cas de manquements ou dommages (de transport) éventuellement constatés, n'utilisez pas le poêle et informez le fournisseur.
Déposez les pièces non fixées (plaques intérieures réfractaires, corbeille, bac à cendres, grille de combustion) de l'appareil avant d'installer ce 3 dernier.

Afin de faciliter la manipulation et de préver des endommagements, vous pouvez d'abord retirer toutes les pièces non fixées de l'appareil.

Veillez bien à la position d'origine de ces pièces, afin de pouvoir les replacer correctement après l'installation.
-
Ouvrez la porte.
-
Déposez les plaques intérieures réfractaires.

Les plaques intérieures en fonte protègent la chambre de combustion et transmettent la chaleur à l'environnement.
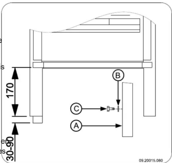
Monter les pieds (uniquement pour le 350CB et le 360CB)
Si souhaité, vous pouvez doter l'appareil de pieds réglables en hauteur. Montez les pieds de l'appareil ; voir illustration suivante.

text_image
s 170 30-90 B C A 09.20015.080- Couchez le poêle sur son dos.
- Montez les pieds réglables (A) à la hauteur souhaitée avec les boulons M6 (C) et la rondelle (B) fournis.
- Une fois le pieds montés, reposez l'appareil dans sa position normale.
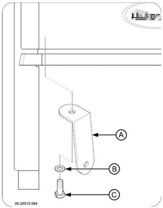
Monter le support de poignée
Montez le support de poignée fourni (A) en dessous de l'appareil avec la rondelle (B) et le boulon M8 (C) ; voir illustration suivante.

text_image
09.20015.084 A B CPréparation du raccordement au conduit de cheminée
Lors du raccordement du poêle à un conduit de cheminée, vous avez le choix entre un raccordement sur le côté, le dessus ou à l'arrière du poêle. Voir les paragraphes « Raccordement sur le dessus ou sur le côté » et « Raccordement à l'arrière ».
À la livraison de l'appareil, aucune ouverture pour les gaz de fumée n'est présente.
Le kit d'étanchéisation et les matériels de fixation sont fournis.

Pour l'Allemagne, l'appareil est fourni avec buse de raccordement d'un diamètre de 130 mm.
Lors du raccordement à l'arrière, il est nécessaire3 de réaliser une ouverture dans le bouclier thermique. Une découpe est pratiquée dans le bouclier thermique à l'endroit où l'ouverture doit être faite.
Préparation pour un raccordement à l'arrière
Réalisez l'ouverture nécessaire dans le bouclier thermique.
- Retirez le bouclier thermique de l'appareil.
- Réalisez l'ouverture dans le bouclier thermique avec une cisaille en découpant la partie prédécoupée du bouclier.
- Replacez le bouclier thermique sur l'appareil.
Raccord sur le dessus, à l'arrière ou sur le côté
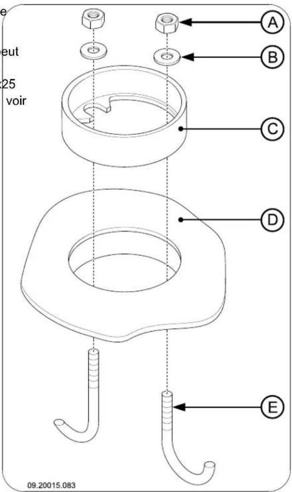
Réalisez tout d'abord l'ouverture pour les gaz de fumée dans l'appareil en déposant le couvercle de raccordement. Utilisez l'outillage fourni : la pièce de traction, la rondelle, le boulon et l'écrou ; voir illustration suivante.

-
Percez un trou d'un diamètre de 10 mm dans le milieu du couvercle de raccordement.
-
Placez la pièce de traction avec le boulon M10 à l'intérieur du couvercle de raccordement.
e3. Introduisez la rondelle sur le boulon et vissez l'écrou sur le boulon.

Sur les modèles émaillés, placez un morceau de carton d'au moins 20 cm sur 20 cm entre la rondelle et l'appareil pour protéger contre les projections d'émail.
-
Vissez à fond l'écrou à la main. Utilisez un peu de graisse pour faciliter le serrage de l'écrou.
-
Serrez avec une clé polygonale l'écrou jusqu'à ce que le couvercle de raccordement se détache.
- Une ouverture pour les gaz de fumée réalisée peut être obturée avec le couvercle de fermeture (A). Utilisez la plaque en acier (C) et le boulon M6x25 (D) pour monter le couvercle sur l'appareil (B) ; voir l'illustration suivante.

text_image
A B C D 09.20015.082
text_image
e eut 25 voir A B C D E 09.20015.083- Montez la buse de raccordement (C) avec les deux étriers fournis (E) et les matériels de fixation (A) et (B) sur l'ouverture pour les gaz de fumée (D); voir illustration suivante.
Utilisez le kit de poêle fourni pour l'étanchéité entre la buse de raccordement et le couvercle de fermeture du poêle.
Montage de la plaque latérale (uniquement pour 350CB3 et 360CB3)
Si souhaité, vous pouvez remplacer la plaque vitrée par une plaque latérale pleine fournie standard ; pour les instructions de montage, voir illustration suivante.
La distance minimale entre un matériau inflammable et le côté est réduite dans le cas d'un tel remplacement de 80 cm à 40 cm.

flowchart
graph TD
A["Component A"] -->|Arrow to| B["Component B"]
B -->|Arrow to| C["Component C"]
C -->|Arrow to| D["Component D"]
style A fill:#f9f,stroke:#333
style B fill:#ccf,stroke:#333
style C fill:#cfc,stroke:#333
style D fill:#fcc,stroke:#333
Pose et raccordement
-
Placez l'appareil à l'endroit approprié, sur un sol plat et de niveau.
-
Raccordez hermétiquement l'appareil au conduit de cheminée.
-
En cas de raccordement à l'air extérieur : raccordez le conduit d'alimentation en air extérieur avec le kit de raccordement que vous avez monté sur le poêle.
-
Remontez toutes les pièces déposées à l'endroit correct sur l'appareil.

Ne faites jamais fonctionner votre appareil si les plaques intérieures réfractaires ne sont pas montées.
L'appareil est à présent prêt pour l'emploi.
Utilisation
Première utilisation
Lorsque vous utilisez le poêle pour la première fois, faites un feu intensif pendant quelques heures. Ce fer durcira la laque résistante à la chaleur. Cela peut toutefois générer de la fumée et une odeur incommodante. Ouvrez éventuellement quelques minutes les portes et les fenêtres de la pièce dans laquelle se trouve le poêle.
Combustible
Ce poêle est uniquement adapté pour brûler du bois naturel, scié et fendu et suffisamment sec.
N'utilisez jamais d'autres combustibles que celui prévu pour le poêle, car ils risquent d'endommager irrémédiablement le poêle.
Les combustibles suivants ne doivent jamais être utilisés car ils sont polluants, et peuvent encrasser intensivement l'appareil et le conduit de cheminée et engendrer un départ de feu dans le conduit de cheminée :
Bois traités, tels que bois de démolition, bois peint, bois imprégné, bois conservé, contreplaqué et aggloméré.
Plastique, vieux papier et déchets ménagers.
Bois
Utilisez de préférence du bois dur provenant d'essences feuillues telles que le chêne, le hêtre, le bouleau et les arbres fruitiers. Ces bois brûlent lentement avec des flammes douces et régulières. Le bois de conifères contient plus de résine, brûle plus rapidement et produit plus d'étincelles.
Utilisez du bois sec d'un pourcentage maximum d'humidité de 20 %. Pour cela le bois doit avoir séché pendant 2 ans au moins.
Sciez le bois à la mesure et fendez-le lorsqu'il est encore vert. Le bois vert se fend plus facilement et le bois fendu sèche mieux. Stocker le bois sous un auvent où le vent peut circuler.
N'utilisez pas de bois mouillé. Le bois mouillé donne moins de chaleur car toute l'énergie va être consacrée à l'évaporation de l'humidité. Cela produit également beaucoup de fumée et des dépôts de suie sur la porte du poêle et dans le conduit de cheminée. La vapeur d'eau se condense dans le poêle et peut provoquer des fuites le long des joints du poêle et des tâches noires sur le sol de la pièce. La vapeur d'eau peut aussi se ucondenser dans le conduit de cheminée et former de la créosote. La créosote est extrêmement inflammable et peut produire un départ de feu dans la cheminée.
Allumage
Vous pouvez vérifier le tirage de la cheminée en allumant une boule de papier au-dessus du déflect du poêle. Si la cheminée est froide, le tirage dans conduit de cheminée est souvent insuffisant et la fumée peut se répandre dans la pièce. Procédez comme suit pour allumer le poêle afin de prévenir risque d'enfumage de la pièce.
-
Empilez deux couches de bûches de taille moyenne l'une sur l'autre en les croisant.
-
Empilez sur les bûches deux couches de bois d'allumage l'une sur l'autre en les croisant.
-
Posez un allume-feu dans la couche inférieure bois d'allumage et allumez-le en suivant les instructions sur son emballage.

La combustion au bois
Après avoir suivi les instructions pour faire un feu d'allumage :
- Ouvrez lentement la porte du poêle.
-
Étalez uniformément le lit de braises dans le fond du poêle.
-
Empilez quelques bûches sur le lit de charbon de bois.
Empilage non serré

-
Fermez la porte du poêle et ouvrez l'arrivée d'air primaire et l'arrivée d'air secondaire du poêle ; vaand le bois est empilé non serré, il brûlera vite du l'illustration suivante. L'arrivée d'air primaire est fait que l'oxygène pourra atteindre facilement chaque ouverte lorsque le bouton de commande est tiré bûche. Un empilage de cette façon est recommandé vers l'extérieur. L'arrivée d'air secondaire est si vous souhaitez chauffer pendant une période ouverte lorsque le registre d'air (C) est repoussécourte. vers la gauche ; voir l'illustration suivante.
-
Laissez le feu d'allumage brûler bien fort jusqu'à ce que le bois fasse un lit de braises ardentes. Vous pouvez ensuite mettre un peu plus de bois et régler le poêle, voir le paragraphe « La combustion au bois ».
Empilage serré

Quand le bois est empilé serré, il brûlera plus lentement du fait que l'oxygène ne pourra atteindre que quelques bûches. Un empilage serré est recommandé si vous souhaitez chauffer pendant un longue période.
-
Fermez la porte du poêle.
-
Fermez l'arrivée d'air primaire et laissez l'arrivée d'air secondaire ouverte.

Remplissez au maximum un tiers du volume total du corps de chauffe.
Conseils

Ne laissez jamais le feu brûler avec la porte poêle ouverte.

Faites régulièrement un feu bien vif dans le poêle.
créosote.
En outre, en cas de feu trop faible, du goudron peut se déposer sur la vitre et la porte du poêle. En cas de température extérieure douce, il est préférable de faire un bon feu vif pendant quelques heures, plutôt que de faire fonctionner le poêle avec un feu faible pendant une longue période.
Réglez l'admission d'air avec l'arrivée d'air secondaire.

L'arrivée d'air secondaire oxygène non seulement le feu, mais « balaye » aussi la vitre ce qui prévient son encrassement prématuré.
Ouvrez temporairement l'arrivée d'air primaire si l'admission d'air par l'arrivée d'air secondaire est insuffisante ou si vous souhaitez raviver le feu.
Remplir régulièrement avec une petite quantité de bûches de bois est mieux que de remplir avec une grosse quantité de bûches d'un coup.
^e Extinction du foyer
N'ajoutez plus de combustible et laissez le foyer s'éteindre de lui-même. Si la puissance du feu est diminuée en réduisant l'alimentation d'air, des gaz toxiques se dégagent. Pour cette raison, laissez toujours le foyer s'éteindre de lui-même. Surveillez le feu jusqu'à ce qu'il soit totalement éteint. Une fois le feu totalement éteint, vous pouvez fermer tous les registres d'air.
Décendrage
Après la combustion du bois, une quantité de cendres relativement réduite reste dans le poêle. Ce lit de cendres est un excellent isolant pour le fond du poêle et garantit une meilleure combustion. De ce fait, il est Lorsque l'on brûle du bois pendant une longue recommandé de laisser une fine couche de cendre sur période à faible régime, il peut se former dans fond du poêle.
la cheminée des dépôts de goudron et de créosote. Le goudron et la créosote sont extrêmement inflammables. Quand ces dépôts deviennent trop importants, une augmentation subite de la température de la cheminée peut provoquer un feu dans le conduit de cheminée. L'alimentation en air par le fond du poêle ne doit toutefois pas être perturbée et il faut prévenir toute accumulation de cendres derrière la plaque intérieure en fonte. Il faut donc éliminer régulièrement les cendres excédentaires.
C'est pourquoi il est recommandé de faire régulièrement un feu bien vif, afin de faire disparaître ces dépôts éventuels de goudron et
- Ouvrez la porte de l'appareil.
- Utilisez la raclette fournie pour ouvrir la grille de décendrage; voir illustration suivante.

- Avec la raclette, poussez la cendre excédentaire au travers de la grille de décendrage dans le b'cendres situé en-dessous, voir illustration suivante.

text_image
09.20015.102-
Refermez la grille de décendrage.
-
Retirez le bac à cendres (voir l'illustration suivante) en utilisant la main froide en fonte et videz le bac à cendres ; voir illustration suivante.

- Replacez le bac à cendres et fermez la porte de l'appareil.
Brouillard et brume
Le brouillard et la brume perturbent l'évacuation des gaz de combustion au travers du conduit de cheminée. La fumée peut être rabattue dans la pièce et devenir très incommodante. S'il n'est pas vraiment nécessaire de chauffer avec le poêle, il est recommandé de ne pas faire de feu en cas de brume ou brouillard.
Résolution problèmes
Consulter l'annexe « Tableau de diagnostic » pour résoudre des problèmes éventuels pendant l'usage du poêle.
Entretien
Pour conserver votre appareil en bon état, suivez les instructions d'entretien présentées dans ce chapitre.
Conduit de cheminée
Dans de nombreux pays, la loi impose le contrôle et l'entretien par un professionnel des conduits de cheminée.
Au début de la saison de chauffe : faites ramoner votre conduit de cheminée par un spécialiste agréé.
Pendant la saison de chauffe et après une longue période d'inutilisation de la cheminée : faites contrôler les dépôts éventuels de suie dans le conduit de cheminée.
À la fin de la saison de chauffe : bouchez le conduit Ne faites jamais fonctionner votre appareil si de cheminée avec du papier journal. les plaques intérieures réfractaires ne sont pas
Nettoyage et autre entretien régulier

Ne nettoyez pas votre poêle si celui-ci est encore chaud.
Dépose du déflecteur
Le déflecteur est fixé avec un boulon qui se trouve entre le raccordement arrière et le tube de l'air secondaire. Le boulon est fixé au déflecteur.
Nettoyez l'extérieur du poêle avec un chiffon sec 1et Déposez l'écrou à l'arrière ; voir illustration non pelucheux. suivante.
À la fin de la saison de chauffe, vous pouvez nettoyer l'intérieur de l'appareil comme suit :
Déposez éventuellement tout d'abord les plaques intérieures réfractaires.
Nettoyez éventuellement les conduits d'alimentation en air.
Déposez le déflecteur qui se trouve au-dessus de l'appareil et nettoyez-le. Voir le chapitre « Installation » pour consulter les instructions concernant la dépose et le remontage des plaques intérieures.
Contrôle des plaques intérieures réfractaires
Les plaques intérieures réfractaires sont des pièces sujettes à l'usure. Contrôlez régulièrement les plaques intérieures et remplacez-les si nécessaire.
Voir le chapitre « Installation » pour consulter les instructions concernant la dépose et le remontage des plaques intérieures.

Les plaques intérieures en vermiculite isolantes peuvent présenter des craquelures. Ces dernières ne nuisent cependant pas à bonne fonction des plaques.

Les plaques intérieures en fonte ont une durée de vie plus longue si vous retirez régulièrement la cendre qui s'accumule éventuellement
derrière. Si la cendre accumulée derrière une Une surface en verre propre retient moins facilement plaque en fonte n'est pas retirée, la plaque ne la poussière. Procédez comme suit : peut pas rayonner la chaleur dans
l'environnement et risque de se déformer ou se Éliminez la poussière et la suie avec un chiffon fendre.

-
Tirez le déflecteur vers l'avant afin de libérer le boulon à l'arrière.
-
Déposez le déflecteur par la porte avant.

Du fait que le déflecteur est doté d'orifices des deux côtés, il peut être facilement retiré de l'appareil le long des butées sur les côtés.
Nettoyage du verre

- Nettoyez le verre avec un nettoyant pour vitres poêle :
Réparation de la couche de finition
a. Appliquez du nettoyant pour vitres de poêle sues petits dommages de la laque peuvent être réparés une éponge, répartissez-le sur toute la surface avec un aérosol de laque spéciale résistant à la en verre et laissez agir. chaleur et disponible auprès de votre fournisseur.
b. Éliminez ensuite la poussière avec un chiffon humide ou de l'essuie-tout.
Contrôle de l'étanchéité
-
Nettoyez une nouvelle fois la surface en verre avec un produit ordinaire de nettoyage du verre.
-
Nettoyez la surface en verre en la frottant avec un chiffon sec ou de l'essuie-tout.
N'utilisez jamais de produits abrasifs ou mordants pour nettoyer la surface en verre.
Portez des gants de nettoyage pour protéger vos mains.
Si la vitre du poêle est brisée ou fendue, il faut la remplacer avant d'utiliser à nouveau l'appareil.
⚠️ Veillez à ce que le nettoyant pour vitres de poêle ne s'infiltre pas entre le verre et la porte en fonte.
Vérifiez que le cordon d'étanchéité de la porte isole bien hermétiquement. Le cordon d'étanchéité s'use et doit être remplacé à temps.
* Recherchez les fuites d'air éventuelles de l'appareil. Mastiquez les interstices éventuels avec du kit pour poêle.
Avant d'allumer le poêle, laissez bien sécher le kit qui autrement gonflera à cause de l'humidité qu'il contient, provoquant une nouvelle fuite d'air.
Graissage
Bien que la fonte soit un métal autolubrifiant, vous devez régulièrement graisser les pièces mobiles.
Graissez les pièces mobiles (telles que systèmes de guidage, charnières, verrous et réglettes d'air), avec de la graisse ininflammable disponible dans le commerce spécialisé.
Régler le registre d'air
Si le registre d'air (C) de l'arrivée d'air secondaire est difficile à déplacer, vous pouvez le régler en utilisant les deux vis (A) et (B) se trouvant dans la plaque avant ; voir illustration suivante.

text_image
A B C 09.20015.003
Annexe 1 : Spécifications techniques
| Modèle | 350CB et 350CB3 | 360CB et 360CB3 | 350CB3/WB |
| Puissance nominale 6 kW 8 kW 6 kW | |||
| Raccordement conduit de cheminée (diamètre) | 125 mm 125 | mm 125 mm | |
| Raccordement conduit de cheminée Allemagne (diamètre) | 130 mm 130 | mm 110 mm | |
| Poids +/- 95 kg +/- 130 kg +/- 130 kg | |||
| Combustible recommandé Bois Bois | Bois | ||
| Caractéristique combustible, longueur max. | 30 cm | 40 cm | 30 cm |
| Débit massique des gaz de fumée | 6,6 g/s | 8,2 g/s | 6,6 g/s |
| Augmentation de la température mesurée à la section de mesure | 298 K | 297 K | 298 K |
| Température mesurée à la sortie du poêle | 442 | 438 | 442 |
| Tirage minimum | 12 Pa 10 Pa | 12 Pa | |
| Emission CO (13 %2)O | 0,10 % | 0,10 % | 0,10 % |
| Emission NOx (13 %2)O | 125 mg/Nm3 | 90 mg/Nm3 | 125 mg/Nm3 |
| Emission CnHm (13 %2) | 82 mg/Nm3 | 113 mg/Nm3 | 82 g/Nm3 |
| Emission de poussières | 10 mg/Nm3 | 39 mg/Nm3 | 10 mg/Nm3 |
| Emission de poussières selon NS3058-NS3059 | 3,58 g/kg | 7,86 g/kg | 3,58 g/kg |
| Rendement | 77 % | 75 % | 77 % |
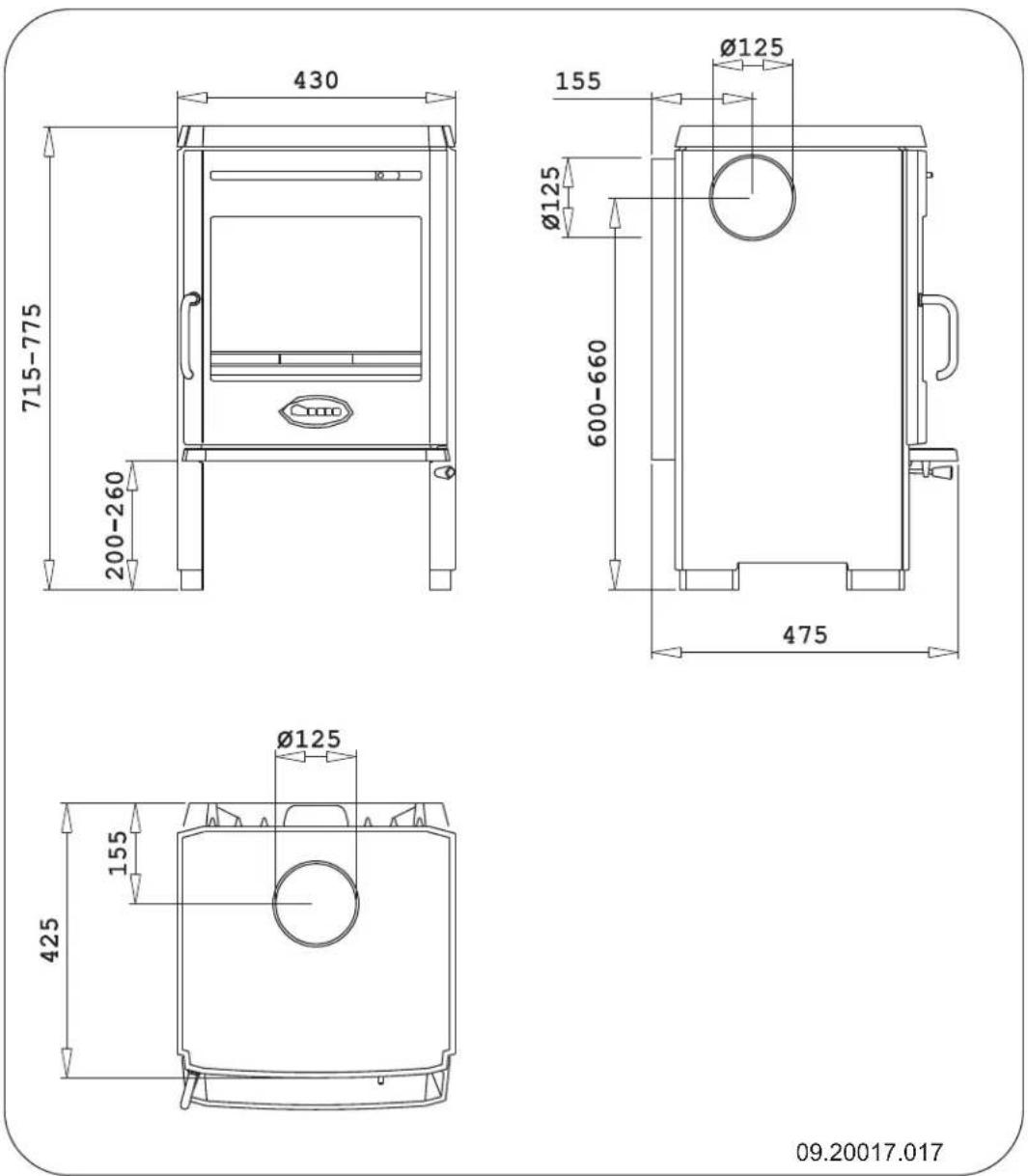
Annexe 2 : Dimensions
350CB

09.20017.017
350CB3

text_image
430 768 252 Ø 125 156 Ø 125 658 475 Ø 125 155 425 09.20017.018350CB3/WB

text_image
431 918 373
text_image
472 423 Ø 125 808
Annexe 3 : Distance entre le poêle et les mate combustibles
350CB, 350CB3, 350CB3/WB - Distances minimales en millimètres

| * Tuyau de raccordement protégé (isolé) | |
| Matériau combustible | |
| Matériau incombustible 100 mm | |
360CB et 360CB3 - Distances minimales en millimètres

09.20017.037
| * Tuyau de raccordement protégé (isolé) | |
| Matériau combustible | |
| Matériau incombustible 100 mm | |
350CB, 350CB3, 350CB3/WB, 360CB et 360CB3 - Distances minimales millimètres

text_image
B A 09-20002-004Dimensions minimales du hourdis ignifugé
| A (mm) | B (mm) | |
| Din 18891 500 300 | ||
| Allemagne 500 300 | ||
| Finlande 400 100 | ||
| Norvège 300 100 |
Annexe 4 : Tableau de diagnostic
| Problème | ||||||
| ● | Le bois ne continue pas à brûler | |||||
| ● | Dégage une chaleur insuffisante | |||||
| ● | Retour de fumée lors du remplissage du poêle | |||||
| ● | Le feu est trop vif, impossible de bien régler le poêle | |||||
| ● | Dépôt sur la vitre | |||||
| cause possible solution | éventuelle | |||||
| ● | ● | ● | ● | Tirage insuffisant | Une cheminée froide présente souvent un mauvais tirage. Suivez les instructions concernant l'allumage dans le chapitre « Utilisation » ; ouvrez une fenêtre. | |
| ● | ● | ● | ● | Le bois est trop humide Utilisez du bois à 20 % d'humidité maximum. | ||
| ● | ● | ● | ● | Dimensions du boistrop importantes | Utilisez des petits morceaux de bois d'allumage. Utilisez des bûches fendues de 30 cm de circonférence maximale. | |
| ● | ● | ● | ● | ● | Le bois est mal empilé | Posez le boisen veillant à ce que suffisamment d'air puisse passer entre les bûches (empilage non serré, voir « La combustion au bois »). |
| ● | ● | ● | ● | Mauvais fonctionnement de la cheminée | Vérifiez que la cheminée satisfait aux conditions suivantes : 4 mètres de haut minimum, diamètre approprié, isolation correcte, intérieur du conduit lisse, sans trop de coudes, aucune obstruction (nid d'oiseaux, dépôt de suie important), hermétique (sans interstices). | |
| ● | ● | ● | ● | Sortie de la cheminée inadéquate | Doit être suffisamment haute au-dessusdu toit, dans une zone dégagée. | |
| ● | ● | ● | ● | ● | Réglage inadéquat des registres d'air | Ouvrez entièrement les registres d'air. |
| ● | ● | ● | ● | Raccordement inadéquat du poêle au conduit de cheminée | Le raccordement doit être hermétique. | |
| ● | ● | ● | ● | Dépression dans la pièce où le poêle installé | est Desactivez les systèmes d'aspiration. | |
| ● | ● | ● | ● | Alimentation insuffisante en air frais | Prévoyez une alimentation en air frais suffisante, utilisez si nécessaire un raccordement d'air extérieur. | |
| ● | ● | ● | ● | Conditions météorologiques défavorables ? Inversion (flux d'air inversé dans la cheminée du fait d'une température extérieure élevée), fortes rafales de vent | En cas d'inversion du flux d'air, l'usage du poêle est déconseillé. Posez si nécessaire une hotte aspirante sur la cheminée. | |
| ● | Courant d'air dans la pièce | Évitez les courants d'air dans la pièce, évitez de poser le poêle à proximité d'une porte ou de gaines d'air de chauffage. | ||||
| ● | Les flammes touchent la vitre | Veiller à ce que le bois ne se trouve pas trop près de la vitre. Fermez un peu plus l'arrivée d'air primaire. | ||||
| ● | De l'air s'échappe du poêle | Vérifiez les fermetures de la porte et les joints de l'appareil. | ||||
Index
A
Aération du feu 13
Alimentation en air extérieur raccordement à 11
Allumage .12....
Arrivée d'air extérieur 5
Arrivée d'air primaire..12....
Arrivée d'air secondaire 12
Arrivées d'air.12. réglage 16
Augmentation de la température section de mesure 17.
Avertissement aération 4 ..... conditions d'assurances.... 4 consignes.... 4 départ de feu dans le conduit de cheminée. 4, 13
feu dans le conduit de fumée.... 11
matériaux combustibles 4
nettoyant pour vitres de poêle.... 16
plaques intérieures réfractaires 11
surface brûlante.... 4
ventilation 5
vitre brisée ou fendue.... 4,16
B
bac à cendres ouverture....14
Bois....11 conservation....11 essence adaptée....11 mouillé 11 ne brûle pas....26 séchage....11
Bois d'allumage.... 26
Bois de conifères 11
Bois mouillé.... 11
Bouclier thermique dépose....9
faire une ouverture.... 9
réalisation d'une ouverture.... 9
Brouillard, ne pas faire de feu 14
Brume, ne pas faire de feu.... 14
Buse de raccordement montage 10
C
Capacité de charge du sol 6
Chaleur, insuffisante.... 14, 26
Cheminée conditions....5 hauteur....5 raccordement à 11....
Combustible adapté .11..... inadapté.... 11 quantité nécessaire.... 14 remplissage.... 13
Combustible adapté.... 11
Combustible inadapté 11
Combustion....12 chaleur insuffisante....14, 26 feu trop vif....26 impossible de bien régler le poêle....26 remplissage du combustible....12 remplissage en combustible....13
Conditions météorologiques, ne pas faire de feu 14
Conduit de cheminée diamètre de raccordement.... 17 entretien.... 14
Cordon d'étanchéité de la porte.... 16
Couche de finition, entretien 16
Couvercle de raccordement dépose 9
Créosote.... 13
D
débit massique....17
Décendrage....13
Déflecteur dépose 15
Dimensions....18
É
Élimination cendre 13
Élimination des cendres.... 13
E
Emission de poussières.... 17
Empilage des bûches 12....
Entretien
conduit de cheminée..14....
étanchéité 16
graissage.16
nettoyage du poêle 15
nettoyage du verre..15....
plaques intérieures réfractaires 15
Éteindre le foyer 13....
F
Feu
allumage 12
Feu d'allumage..12
Foyer
extinction.13....
Fuite d'air 16
Fumée
lors de la première utilisation.... 11
G
Gaz de fumée 17
Goudron....13
Graissage 16
Graisse pour graissage.... 16
Grille de décendrage
dépose....14
Grille de ventilation 5
H
Hauteur de remplissage du poêle 13
|
Interstices dans l'appareil 16
L
Laque 11
M
Matériau combustible
remplissage.... 13
Matériaux combustibles
distance entre 23
Mitre de cheminée 5
Mitre sur la cheminée.... 5
Murs
sécurité incendie.... 6
N
Nettoyage
poêle 15
verre....15
nettoyant pour vitres de poêle 15
0
Ouverture
bac à cendres.... 14
Ouverture pour les gaz de fumée
fermeture....10
P
Pelle pour décendrage.... 7
Pieds
montage 8
Plaque latérale
montage 10
Plaques intérieures réfractaires
avertissement 11
entretien 15
Poids....17
Porte
cordon d'étanchéité.... 16
Prévention d'un départ de feu dans le conduit ... 13
Problèmes éventuels.... 14
Puissance nominale 14, 17
R
Raccord à la cheminée
arrière....9
dessus 9
Raccordement
dimensions
Pose
dimensions 18
Ramonage du conduit de cheminée 14
Réglage de l'arrivée d'air.... 13
Remplissage en combustible 13
Remplissage en matériau combustible
retour de fumée 26
Rendement....17
Résolution de problèmes.... 26
Retour de fumée.... 4,26
s
Séchage du bois 11......
Sécurité incendie
distance entre poêle / matériaux combustibles23 meubles 6 murs 6 sol 6
Sols
capacité de charge 6 sécurité incendie 6
stockage du bois 11
Support de poignée montage 8
T
Tapis 6
Température.... 17
Tirage 17
v
Ventilation 5 règle de base.... 5
Verre
dépôt....26 nettoyage....15 remplacement..10....
Vitres
dépôt....26 nettoyage....15
Inhaltsverzeichnis
Einleitung 3
B-2381 Weelde Fax : +32 (0) 14 65 90 09
Bélgica
B-2381 Weelde Fax : +32 (0) 14 65 90 09
Belgio E-mail : info@dovre.be

Notice Facile