350CB3WB - Riscaldamento DOVRE - Manuale utente e istruzioni gratuiti
Trova gratuitamente il manuale del dispositivo 350CB3WB DOVRE in formato PDF.
Domande frequenti - 350CB3WB DOVRE
Domande degli utenti su 350CB3WB DOVRE
0 domanda su questo apparecchio. Rispondi a quelle che conosci o fai la tua.
Fai una nuova domanda su questo apparecchio
Scarica le istruzioni per il tuo Riscaldamento in formato PDF gratuitamente! Trova il tuo manuale 350CB3WB - DOVRE e riprendi in mano il tuo dispositivo elettronico. In questa pagina sono pubblicati tutti i documenti necessari per l'utilizzo del tuo dispositivo. 350CB3WB del marchio DOVRE.
MANUALE UTENTE 350CB3WB DOVRE
Dichiarazione di conformità 3....
Sicurezza 4
Requisiti per l'installazione...4......
Generalità 4
Canna fumaria 4
Aerazione della stanza 5
Pavimento e pareti 6
Descrizione del prodotto 6.
Installazione 8
Preparazione....8
Montare le gambe (solo per 350CB e 360CB) 8
Montare il supporto della maniglia.... 8
Preparazione del collegamento alla canna _0
fumaria....
Montare il pannello laterale (solo 350CB3 e
360CB3) 10
Installazione e collegamento.... 11
Uso....11
Prima accensione 11
Combustibile 11
Accensione 11
Funzionamento a legna.... 12
Spegnere il fuoco 13
Rimozione della cenere 13
Foschia e nebbia (bassa pressione).... 14
Eventuali problemi.... 14
Manutenzione.... 14
Canna fumaria 14
Pulizia e manutenzione periodica.... 14
Allegato 1: Dati tecnici.... 17
Allegato 2: Dimensioni 18
Allegato 3: Distanza da materiali.....
infiammabili 23
Allegato 4: Schema diagnostico.... 26
Indice 27
Introduzione
Gentile cliente,
acquistando questo apparecchio da riscaldamento DOVRE, Lei ha scelto un prodotto di alta qualità. Questo prodotto fa parte di una nuova generazione di apparecchi da riscaldamento ecologici a basso consumo energetico, in grado di sfruttare in modo ottimale sia il calore di convezione, sia quello di irraggiamento.
Dichiarazione di conformità

Notified body: 2013
II Suo apparecchio DOVRE è stato realizzato con
processi di produzione all'avanguardia. Qualora dovessero presentarsi difetti o irregolarità, Le consigliamo vivamente di contattare il servizio clienti DOVRE.
Non è consentito apportare modifiche all'apparecchio. Si raccomanda di usare sempre parti di ricambio originali.
L'apparecchio è stato progettato per la collocazione in ambienti abitativi e deve essere collegato ermeticamente a una canna fumaria funzionante.
Le consigliamo di affidare l'installazione dell'apparecchio a un tecnico qualificato.
DOVRE declina ogni responsabilità per problemi o danni causati da un'installazione non a regola d'arte.
Per l'installazione e per l'uso devono essere osservate le norme di sicurezza riportate nel manuale.
Questo manuale contiene tutte le istruzioni per l'installazione, l'uso e la manutenzione dell'apparecchio da riscaldamento DOVRE. Se desidera ricevere informazioni o dati tecnici aggiuntivi, Le consigliamo di contattare in un primo momento il fornitore dell'apparecchio.
Con la presente
dichiara che le stufe a legna 350CB, 350CB3, 350CB3/WB, 360CB e 360CB3 sono state prodotte in conformità alla norma EN 13240.
Weelde 03-09-2005

text_image
T. Gehem© 2012 DOVRE NV
Nell'ambito del costante miglioramento del prodotto, le specifiche tecniche dell'apparecchio fornito potrebbero differire dalla descrizione in questo manuale, ogni obbligo di preavviso escluso.
DOVRE N.V.
Attenzione! È obbligatoria l'osservanza di tutte le norme di sicurezza.
⚠️ Leggere attentamente le istruzioni per l'installazione, l'uso e la manutenzione prima di mettere in funzione l'apparecchio.
L'apparecchio deve essere installato in conformità alle disposizioni tecniche e di legge vigenti nel Paese dove viene installato il prodotto.
Durante l'installazione dell'apparecchio è obbligatorio osservare tutte le disposizioni locali e quelle riferibili alla normativa europea.
⚠️ Leggere attentamente le istruzioni per l'installazione, l'uso e la manutenzione fornite insieme all'apparecchio.
Si consiglia di affidare l'installazione dell'apparecchio a un tecnico qualificato che è costantemente informato sulle disposizioni e sulle norme vigenti.
L'apparecchio è stato progettato per il riscaldamento domestico. Tutte le sue superfici, vetro e raccordo di collegamento compresi, possono raggiungere temperature elevate (superiori ai 100°C)! Usare un quanto isolante o una maniglia mobile ("mano fredda") per eseguire operazioni a stufa accesa.
Non mettere tende, indumenti, biancheria o altri materiali infiammabili sopra o nelle vicinanze dell'apparecchio.
⚠️ Non usare sostanze infiammabili o esplosive nelle vicinanze della stufa accesa.
Per evitare incendi della canna fumaria, provvedere alla pulizia periodica della stessa. Non accendere mai l'apparecchio con la porta aperta.
In caso di incendio della canna fumaria: chiudere le prese dell'aria dell'apparecchio e chiamare i vigili del fuoco.
Qualora il vetro della porta sia rotto o crepatò non usare l'apparecchio fino a quando il vetro non sarà sostituito.
⚠ Assicurarsi che vi sia sufficiente aerazione nel locale di posa. In caso di scarsa areazione, la combustione non sarà completa causando eventualmente l'emissione di gas tossici nel locale. Per ulteriori informazioni sull'aerazione, si veda il capitolo "Requisiti per l'installazione".
Requisiti per l'installazione
Generalità
L'apparecchio deve essere collegato ermeticamente a una canna fumaria funzionante.
Per le dimensioni di raccordo si veda si veda l'allegato "Dati tecnici".
I vigili del fuoco e/o la società di assicurazione possono informarLa relativamente a eventuali requisiti e prescrizioni particolari.
Canna fumaria
La canna fumaria serve per:
L'evacuazione dei prodotti di combustione grazie al tiraggio naturale.
i L'aria calda presente nella canna fumaria tende a salire perché è più leggera dell'aria esterna.
L'aspirazione dell'aria necessaria alla combustione del combustibile nell'apparecchio.
Qualora il tiraggio della canna fumaria non sia sufficiente, durante l'apertura della porta potrebbe fuoriuscire del fumo. Eventuali danni causati dal ritorno di fumo sono esclusi dalla garanzia.
Non collegare più di un apparecchio (a.e. una caldaia) alla medesima canna fumaria, a meno che non sia consentito dalle norme locali o nazionali.
Si consiglia di consultare l'installatore riguardo alla canna fumaria. La norma europea EN13384 contiene i parametri per il calcolo della capacità di camini e canne fumarie.
La canna fumaria deve rispondere ai seguenti requisiti:
La canna fumaria deve essere realizzata in materiale resistente al fuoco, preferibilmente ceramica refrattaria o acciaio inox.
▶ Deve essere pulita e perfettamente a tenuta stagna, con una sufficiente capacità di tiraggio.

Un tiraggio/depressione di 15 - 20 Pa durante l'esercizio normale sarebbe il valore ideale.
Il percorso della canna fumaria - a partire dall'uscita dei fumi dell'apparecchio - deve essere il più verticale possibile. Gomiti e raccordi orizzontali ostacolano l'evacuazione dei prodotti di combustione, causando depositi di fuliggine.
Le dimensioni interne dovrebbero essere contenute, onde evitare che i fumi di combustione si raffreddino eccessivamente diminuendo così il tiraggio naturale.
Di regola il diametro della canna fumaria dovrebbe corrispondere a quello del raccordo di collegamento.

Per il diametro nominale si veda l'allegato "l tecnici". Quando la canna fumaria è ben isolata, è consentito anche un diametro maggiore (al massimo il doppio del diametro del raccordo di collegamento).
Il diametro (superficie) della canna fumaria deve essere regolare. Eventuali allargamenti, e soprattutto i restringimenti, ostacolano lo scarico dei prodotti di combustione.
In caso di canna fumaria provvista di comignolo/antivento: assicurarsi che il comignolo non restringa l'uscita del camino e non ostacoli l'evacuazione dei prodotti di combustione.
La parte terminale della canna fumaria deve esso situata in una posizione sufficientemente distante da edifici circostanti, alberi o altri ostacoli.
La parte che emerge dal tetto dell'edificio deve essere opportunamente isolata.
La lunghezza minima della canna fumaria è di 4 metri.
Di norma, il comignolo deve superare di 60 cm il colmo del tetto.
Qualora il colmo del tetto disti più di 3 metri dalla canna fumaria: rispettare le misure indicate nella
figura sottostante: A = il punto più alto del tetto entro una distanza di 3 metri.

text_image
cita 3 m min. 0.5 m min. 1 m A 09.20500.001Aerazione della stanza
Per garantire una regolare combustione, l'apparecchio fra bisogno di aria (ossigeno). L'aria viene aspirata dall'ambiente dove l'apparecchio è stato installato, attraverso le prese dell'aria regolabili.
In caso di scarsa aerazione, la combustione non sarà completa, causando eventualmente l'emissione di gas tossici nel locale.
La regola prescrive un apporto d'aria pari a 5,5 cm²/kW. Si dovrà provvedere un'aerazione supplementare:
Qualora l'apparecchio sia stato installato in un locale ben isolato.
In presenza di areazione meccanica forzata, a.e. un sistema di areazione centralizzato o una cappa nell'angolo cottura.
L'aerazione può essere migliorata installando una eglia di aerazione nella parete esterna dell'edificio.
Si raccomanda di provvedere a una presa d'aria esterna indipendente per gli altri apparecchi che consumano aria (quali asciuguatrici, altri apparecchi di riscaldamento o ventilatori da bagno) o di spegnerli durante il funzionamento della stufa.
Pavimento e pareti
La portata di carico della superficie di appoggio dell'apparecchio deve essere sufficiente. Per il peso dell'apparecchio si veda l'allegato "Dati tecnici".

Pavimenti in materiale infiammabile devono essere protetti contro l'irraggiamento di calore per mezzo di una piastra ignifuga. Si veda l'allegato "Distanza da materiale infiammabile".

Prima di posare la piastra salvapavimenti, rimuovere materiali infiammabili come linoleum, moquette, ecc.

Assicurarsi che la distanza tra la stufa e materiali infiammabili, come pareti e mobili di legno, sia sufficiente.

Si deve tener conto del fatto che anche il tubo di collegamento emana calore. Assicurarsi che la distanza tra il tubo di collegamento e materiali infiammabili sia sufficiente. Per un tubo semplice tale distanza deve essere almeno tre volte il diametro del tubo stesso. Qualora il tubo sia provvisto di rivestimento, la distanza si riduce a una volta il diametro.

Tenere tappeti e moquette a una distanza minima di 80 cm dal focolare.

Il pavimento davanti alla stufa deve essere protetto contro la caduta di cenere ardente p mezzo di una piastra salvapavimenti ignifuga. La piastra deve soddisfare i requisiti stabiliti dalle norme nazionali.

Per le dimensioni della piastra salvapavimenti:7. Chiavistello si veda l'allegato "Distanza da materiale infiammabile". Caratteristiche

Per gli ulteriori requisiti antincendio: si veda l'allegato "Distanza da materiale infiammabile".
Descrizione del prodotto
Modello 350CB e 360CB

text_image
1 2 3 4 5 6 7 09.20015.078-
Presa d'aria secondaria aria di combustione, sistema di pulizia air-wash
-
Porta
-
Paracenere
-
Presa d'aria primaria aria di combustione
-
Gamba regolabile
-
Mensola portacenere
Caratteristiche dei modelli 350CB e 360CB
L'apparecchio è munito di gambe regolabili in altezza.
L'apparecchio può essere collegato alla canna fumaria nella parte posteriore, superiore o laterale.
L'apparecchio è dotato di una maniglia separata.
Per aprire la porta posizionare la maniglia separata sulla porta; si veda la figura seguente.

Per evitare il surriscaldamento durante l'uso, la maniglia può essere collocata nell'apposito supporto sotto la mensola portacenere dell'apparecchio.
L'apparecchio è munito di una maniglia separata frghisa per la rimozione del cassetto raccoglicenere la cosiddetta "mano fredda"; si veda la figura seguente.

L'apparecchio viene fornito con una paletta per rimuovere la cenere in eccesso.
Modello 350CB3 e 360CB3

text_image
1 2 3 4 5 6 7 09.20015.079- Presa d'aria secondaria aria di combustione, sistema di pulizia air-wash
2n Porta
3. Paracenere
4. Presa d'aria primaria aria di combustione
5. Mensola portacenere
6. Chiavistello
7. Vetro laterale
Caratteristiche dei modelli 350CB3 e 360CB3
Questi modelli presentano le medesime caratteristiche dei modelli 350CB e 360CB, ad eccezione dei seguenti aspetti:
L'apparecchio non è regolabile in altezza.
Il vetro laterale (7) può essere sostituito con un pannello. La distanza minima della parte laterale da materiale infiammabile diminuisce in questo caso da 80 cm a 40 cm. Il pannello laterale è in dotazione.
Modello 350CB3/WB
Caratteristiche del modello 350CB3/WB
Questo modello presenta le stesse caratteristiche del modello 350CB3.
L'apparecchio è realizzato con scomparto legna dotato di porta.
Installazione
Preparazione
Controllare, alla consegna, che l'apparecchio non presenti danni (di trasporto) o eventuali altri difetti

In caso di danni (di trasporto) o difetti, non installare l'apparecchio e contattare il fornitor
Prima della posa rimuovere tutti i componenti amovibili (piastre refrattarie interne, paracenere, cassetto raccoglicenere, griglia scuoticenere).

Senza il peso di questi componenti è più facile spostare l'apparecchio, evitando eventuali danni.

È importante ricordarsi la posizione esatta dei componenti amovibili che devono essere riassemblati dopo la posa dell'apparecchio.
-
Aprire la porta.
-
Rimuovere le piastre refrattarie interne.

Piastre interne in ghisa proteggono la camera di combustione e trasmettono il calore all'ambiente.
Montare le gambe (solo per 350CB e 360CB)
Se si desidera, l'apparecchio può essere munito di gambe regolabili in altezza. Montare le gambe all'apparecchio; si veda la figura seguente.

text_image
30-90 170 B C A 09.20015.080.1. Ribaltare l'apparecchio sul lato posteriore.
- Montare le gambe regolabili in altezza (A) impiegando i bulloni M6 in dotazione (C) e la rondella (B) all'altezza desiderata.
Collocare l'apparecchio nella posizione originaria sulle gambe appena installate.
Montare il supporto della maniglia
Montare il supporto della maniglia in dotazione (A) sul fondo dell'apparecchio, impiegando la rondella (B) e il bullone M8 (C); si veda la figura seguente.

text_image
110TOP A B C 09.20015.084Preparazione del collegamento alla canna fumaria
È possibile effettuare il collegamento dell'apparecchio alla canna fumaria sulla parte superiore, laterale o posteriore. Si vedano i paragrafi "Collegamento superiore o laterale" e "Collegamento posteriore".
L'apparecchio viene fornito senza un foro per i fumi di combustione.
Il mastice di sigillatura e i materiali di fissaggio sono forniti insieme all'apparecchio.
Per la Germania, l'apparecchio viene dotato di un raccordo di collegamento con un diametro di 130 mm.
In caso di collegamento posteriore, occorre praticare un'apertura nel rivestimento ignifugo. Il rivestimento ignifugo presenta un'incisione nel punto in cui occorre praticare l'apertura.
Preparazione al collegamento posteriore
Operare il foro necessario sul rivestimento ignifugo.
- Rimuovere il rivestimento ignifugo dall'apparecchio.
- Operare un foro nel rivestimento ignifugo rimuovendo mediante cesoe a leva la parte pretagliata.
- Collocare il rivestimento ignifugo sull'apparecchio.
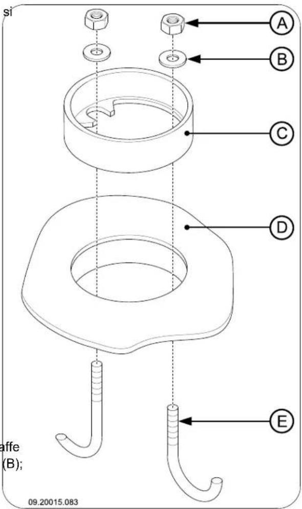
Collegamento superiore, posteriore o laterale
Operare in primo luogo il foro per i fumi di combustione rimuovendo il tappo di raccordo. Utilizzare l'attrezzatura fornita: lo spessore, la rondella, il bullone e il dado; si veda la figura seguente.

- Praticare al centro del tappo di raccordo un foro del diametro di 10 mm.
- Posizionare lo spessore con il bullone all'interno del tappo di raccordo.
- Infilare la rondella sul bullone e girare il dado sul bullone.
Nel caso di stufe smaltate, a protezione da eventuali schegge di smalto mettere fra la rondella e la stufa un pezzo di cartone delle dimensioni minime di 20 per 20 cm.
- Stringere il dado a mano. Ingrassare leggermente il dado per poterlo stringere più facilmente.
- Stringere il dado con una chiave ad anello fino a che il tappo di raccordo non si stacca.
- Un foro di passaggio dei fumi di combustione può essere richiuso con l'apposito tappo in dotazione (A). Utilizzare la piastra di fissaggio (C) e il bullone
M6x25 (D) per montare il tappo sulla stufa (B); veda la figura seguente.

text_image
A B C D 09.20015.082- Montare il raccordo di collegamento (C) sul foro per i fumi di combustione (D) usando le due staffe in dotazione (E) e i materiali di fissaggio (A) e (B); si veda la figura seguente.

text_image
si A B C D E affe (B); 09.20015.083- Usare il mastice per alte temperature in dotazione per sigillare il raccordo di collegamento e il tappo del bocchettone sull'apparecchio.
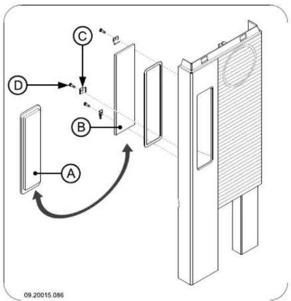
Montare il pannello laterale (solo 350CB3 e 360CB3)
Se si desidera, è possibile sostituire il vetro laterale con l'apposito pannello laterale chiuso in dotazione; per le istruzioni di installazione si veda la figura seguente.
La distanza minima della parte laterale da materiale infiammabile diminuisce in questo caso da 80 cm a 40 cm.

flowchart
graph TD
A["Component A"] --> B["Component B"]
B --> C["Component C"]
C --> D["Component D"]
style A fill:#f9f,stroke:#333
style B fill:#ccf,stroke:#333
style C fill:#cfc,stroke:#333
style D fill:#fcc,stroke:#333
Installazione e collegamento
-
Positionare l'apparecchio nel posto desiderato che deve essere in piano e in bolla.
-
Collegare l'apparecchio alla canna fumaria per mezzo di un raccordo a tenuta stagna.
-
In caso di collegamento alla presa d'aria esterna: collegare la presa d'aria esterna al set di collegamento precedentemente montato sull'apparecchio.
-
Rimettere nella posizione originale tutti i componenti precedentemente tolti.

Non accendere mai l'apparecchio senza le piastre refrattarie interne.
Ora l'apparecchio è pronto per l'uso.
Uso
Prima accensione
Alla prima accensione l'apparecchio deve funzionare a piena capacità per alcune ore per permettere il completo indurimento della vernice resistente al calore. L'eventuale presenza di fumo e cattivi odori è solo temporanea. Aprire eventualmente le porte e le finestre del locale per cambiare l'aria.
Combustibile
L'unico combustibile adatto a questa stufa è legna naturale; tagliata, spaccata e sufficientemente essiccata.
Non usare altri combustibili: possono provocare gravi danni all'apparecchio.
Non è consentito alimentare la stufa con i seguenti tipi di combustibile, poiché inquinano l'ambiente e depositano nell'apparecchio e nella canna fumaria residui di combustione che potrebbero provocare incendi di camino:
Legno trattato, come legno verniciato, impregnato, multistrato, compensato e di demolizione.
Materia gomma, carta e rifiuti domestici.
Legna
Usare preferibilmente legna dura di latifogli come la quercia, il faggio, la betulla e alberi da frutto. Questi tipi di legna bruciano lentamente a fiamma moderata. La legna di conifere contiene più resina, si consuma velocemente e produce scintille.
Usare legname essiccato con un tasso di umidità a: inferiore al 20% che è stato immagazzinato per almeno 2 anni.
Tagliare la legna nella misura adatta e spaccarla quando è ancora verde. La legna verde si lascia spaccare più facilmente; inoltre, una volta spaccata, si secca rapidamente. Stoccare la legna sotto una tettoia esposta al vento.
Non usare legna umida. La legna umida non produce calore perché l'energia viene utilizzata per l'evaporazione dell'umidità, un processo che produce anche molto fumo e fuliggine sulla porta e nella canna fumaria. Il vapore acqueo si condensa nell'apparecchio e potrebbe non solo sgocciolare dalle giunture della stufa creando macchie nere sul pavimento, ma anche condensarsi nella canna fumaria formando creosoto. Il creosoto è una sostanza facilmente infiammabile e la causa principale degli incendi delle canne fumarie.
Accensione
È possibile controllare il tiraggio della canna fumaria accendendo una palla di carta da giornale sopra il
deflettore. Quando la canna fumaria è fredda, spesso il tiraggio è insufficiente e il fumo potrebbe propagarsi nella stanza. Accendendo la stufa secondo la procedura sottostante, questo problema non si presenterà:
Funzionamento a legna
Dopo aver seguito le istruzioni per l'accensione:
-
Aprire lentamente la porta della stufa.
-
Accatastare due strati di ceppi medi, riponendoli perpendicolarmente (incrociati).
-
Distribuire il letto di brace in modo uniforme sul fondo grigliato.
-
Riporre sopra i ceppi due strati incrociati di legr accendifuoco.
Atti Accatastare alcuni ceppi di legna sul letto di brace.
- Inserire un cubetto accendifuoco tra i legnetti d'oprimo strato e accenderlo secondo le istruzioni sulla relativa confezione.
Accatastamento disunito

In caso di accatastamento disunito, la legna si consuma più rapidamente a causa della buona ossigenazione. Adottare questo sistema quando la stufa deve rimanere accesa per poco tempo.
- Chiudere la porta della stufa e aprire sia la presa dell'aria primaria, sia la presa dell'aria secondaria.
La presa d'aria primaria è aperta quando il pulsa è sollevato. La presa d'aria secondaria (C) è aperta quando è spostata verso sinistra; si veda figura sottostante.
- Far avviare bene il fuoco iniziale fino a quando sarà diventato un letto di brace ardente.
Successivamente si può caricare altro combustibile e regolare il funzionamento della stufa; si veda il paragrafo "Funzionamento a legna".

text_image
Accatastamento compatto ante la non 09.20500.014
text_image
A + - B + - C 09.20015.014
In caso di accatastamento compatto, la legna si consuma più lentamente perché l'ossigeno arriva soltanto ai ceppi esterni. Adottare questo sistema quando la stufa deve rimanere accesa per lungo tempo.
-
Chiudere la porta della stufa.
-
Chiudere la presa dell'aria primaria e lasciare aperta quella dell'aria secondaria.

Ricaricare la stufa per al massimo un terzo della capacità.
Consigli

Non tenere aperta la porta della stufa quando accesa.

Di tanto in tanto la stufa deve funzionare a regime massimo.
In caso di prolungato funzionamento a basso a regime, si possono formare depositi di catramè e creosoto. Catrame e creosoto sono sostanze altamente infiammabili. Un eccessivo deposito di queste sostanze può causare l'incendio della canna fumaria quando la temperatura dei fumi sale eccessivamente in poco tempo. Un saltuario funzionamento a regime massimo fa si che gli eventuali depositi di catrame e creosoto vengano eliminati.
Inoltre, il funzionamento a basso regime può provocare il deposito di catrame sul vetro e sulla porta della stufa.
Quindi, nella mezza stagione è preferibile far funzionare la stufa a regime alto per un paio ore e non continuamente a regime basso.
Regolare l'apporto di aria con la presa dell'aria secondaria.

La presa dell'aria secondaria non alimenta soltanto il fuoco ma crea anche areazione sul vetro prevenendo così il deposito di sporco.
Aprire temporaneamente la presa dell'aria primaria quando l'apporto d'aria secondaria è insufficiente o la fiamma è troppo bassa.
È meglio aggiungere regolarmente piccole quantità di legna e non caricare troppo la stufa.
Spegnere il fuoco
Non aggiungere altro combustibile e aspettare che la stufa si spenga. Quando la fiamma viene smorzata riducendo l'apporto di aria, si liberano delle sostanze tossiche. Pertanto, è preferibile che il fuoco si spenga lentamente. Aspettare che il fuoco sia completamente spento e chiudere tutte le prese dell'aria di combustione.
Rimozione della cenere
La combustione di legna produce quantità limitate di cenere. Il letto di cenere costituisce un buon isolante e facilita la combustione. Pertanto, si consiglia di mantenere sempre uno strato sottile di cenere sul fondo.
Tuttavia, l'apporto di aria attraverso il fondo grigliato non deve essere ostacolato e la cenere non si deve accumulare dietro le piastre interne. Pertanto la genere deve essere eliminata periodicamente.
Aprire la porta della stufa.
Usare l'apposita paletta per aprire la griglia scuoticenere; si veda la figura seguente.

text_image
09.20015.101 di- Utilizzando l'apposita paletta, spingere la cenere all'interno della griglia in modo che cada nel cassetto sottostante; si veda la figura seguente.

text_image
09.20015.102-
Chiudere la griglia scuoticenere.
-
Rimuovere il cassetto raccoglicenere con la mano fredda in ghisa e svuotarlo; si veda la figura seguente.

- Riposizionare il cassetto raccoglicenere e chiudere la porta.
Foschia e nebbia (bassa pressione)
Foschia e nebbia possono ostacolare l'evacuazione dei fumi di combustione attraverso la canna fumaria! L'eventuale ritorno dei fumi provoca cattivi odori. Quindi, in caso di foschia e nebbia, è meglio non accendere l'apparecchio.
Eventuali problemi
Consultare l'allegato "Schema diagnostico" per risolvere eventuali problemi relativi al funzionamento dell'apparecchio.
Manutenzione
Seguire le istruzioni per la manutenzione per mantenere a livelli ottimali l'efficienza dell'apparecchio.
Canna fumaria
In molti Paesi vige l'obbligo di manutenzione e controllo della canna fumaria.
All'inizio della stagione invernale: far pulire la canna fumaria da uno spazzacamino qualificato.
Durante la stagione invernale e dopo un lungo periodo di inutilizzo: verificare l'eventuale presenza di fuliggine.
Dopo la stagione invernale: tappare la canna fumaria con una palla di carta da giornale.
Pulizia e manutenzione periodica
⚠️ Non pulire la stufa quando è ancora calda.
Pulire la superficie esterna dell'apparecchio con un panno asciutto senza pilucchi.
La pulizia della parte interna dell'apparecchio può essere effettuata alla fine della stagione invernale:
Rimuovere eventualmente le piastre refrattarie.
▶ Pulire eventualmente le prese dell'aria.
Sfilare eventualmente il deflettore dalla parte superiore dell'apparecchio e pulirlo. Si veda il capitolo "Installazione" per la rimozione e il riposizionamento del tagliafiamma.
Controllo delle piastre refrattarie interne
Le piastre refrattarie interne sono componenti di consumo e quindi soggette a usura. Controllare a intervalli regolari lo stato delle piastre interne e sostituirle se necessario.
Si veda il capitolo "Installazione" per la rimozione e il riposizionamento delle piastre interne.
i
È possibile che con il tempo le piastre interne in vermiculite presentino delle fessure capillari che, comunque, non pregiudicano la loro funzionalità.
i
Grazie alle cavità presenti su entrambi i lati, è possibile rimuovere con facilità il tagliafiamma dall'apparecchio sfilandolo dalle sporgenze sulle pareti laterali.
i
Piastre interne in ghisa durano di più quando cenere accumulatasi dietro le piastre viene rimossa a intervalli regolari. La presenza di cenere dietro la piastra in ghisa ostacola la s cessione del calore, provocando così la deformazione o la rottura della piastra stessa.
Pulizia del vetro
Un vetro pulito attira meno sporco. Seguire la seguente procedura:
!
Non usare la stufa senza le piastre refrattarie,
Rimuovere il tagliafiamma
Il tagliafiamma è fissato con un bullone che si trova fra il collegamento posteriore e il condotto dell'aria secondaria. Il bullone è fissato al tagliafiamma.
- Rimuovere il dato sul lato posteriore; si veda la figura seguente.

-
Tirare verso di sé il tagliafiamma in modo che il bullone sul lato posteriore si stacchi.
-
Rimuovere il tagliafiamma attraverso la porta anteriore.
-
Rimuovere la polvere e la fuliggine con un panno asciutto.
-
Pulire il vetro con un detergente vetri per stufe.
a. Applicare il detergente per vetri su una spugnetta, passare il prodotto su tutta la superficie del vetro e lasciar riposare per un pa'. b. Rimuovere lo sporco con un panno umido o con carta da cucina.
-
Pulire il vetro un'altra volta con un normale detergente per vetri.
-
Asciugare il vetro con un panno asciutto o con carta da cucina.
Per la pulizia del vetro non usare prodotti abrasivi o aggressivi. Usare guanti di gomma per proteggere le mani.
!
Qualora il vetro della porta sia rotto o crepato, non usare l'apparecchio fino a quando il vetro non sarà sostituito.
!
Far attenzione che il detergente per vetri non sgoccioli fra il vetro e la porta in ghisa.
Lubrificazione
Nonostante la ghisa abbia proprietà autolubrificanti, le parti mobili devono essere ingrassate di tanto in tanto.
Ingrassare le parti mobili (i sistemi di guida, le cerniere, la chiusura della porta e le prese dell'aria) con grasso per alte temperature disponibile in ferramenta.
Regolare prese d'aria
Quando la presa d'aria secondaria (C) non funziona correttamente, è possibile regolarla tramite le due viti (A) e (B) sul pannello anteriore; si veda la figura sottostante.

text_image
A B C 09.20015.003Riparazione del rivestimento
È possibile rimediare a piccoli danni alla vernice per mezzo di una bombola spray di vernice resistente ad alte temperature, disponibile presso il Suo fornitore.
Controllare la sigillatura
Controllare che la guarnizione della porta garantisca una buona tenuta. La guarnizione si consuma e deve essere sostituita a intervalli regolari.
Controllare che della camera di combustione non vi siano spifferi d'aria e chiudere le eventuali fessure con mastice per alte temperature.

Il mastice deve indurirsi prima di riaccendere la stufa per evitare che l'umidità presente nel mastice formi bolle d'aria, creando nuove fessure.
Allegato 1: Dati tecnici
| Modello | 350CB e 350CB3 | 360CB e 360CB3 | 350CB3/WB |
| Potenza termica nominale 6 kW 8 kW 6 kW | |||
| Collegamento canna fumaria (diametro) 125 mm | 125 mm | 125 mm | |
| Collegamento canna fumaria Germania (diametro) 130 mm | 130 mm | 110 mm | |
| Peso +/- 95 kg +/- 130 kg +/- 130 kg | |||
| Combustibile consigliato | Legna | Legna | Legna |
| Caratteristica combustibile, lunghezza max. | 30 cm | 40 cm | 30 cm |
| Portata massima dei fumi di combustione | 6,6 g/s | 8,2 g/s | 6,6 g/s |
| Innalzamento della temperatura misurato nella sezione di misura | 298 K | 297 K | 298 K |
| Temperatura rilevata all'uscita dell'apparecchio | 442 | 438 °C | 442 |
| Tiraggio minimo | 12 Pa 10 Pa | 12 Pa | |
| Emissione di CO (13% _2 O) | 0,10 % | 0,10 % | 0,10 % |
| Emissione di NOx (13% _2 O) | 125 mg/Nm ^3 | 90 mg/Nm ^3 | 125 mg/Nm ^3 |
| Emissione di CnHm (13% _2 O) | 82 mg/Nm ^3 | 113 mg/Nm ^3 | 82 g/Nm ^3 |
| Emissione di polveri | 10 mg/Nm ^3 | 39 mg/Nm ^3 | 10 mg/Nm ^3 |
| Emissione di polveri secondo NS3058-NS3059 | 3,58 gr/kg | 7,86 gr/kg | 3,58 gr/kg |
| Rendimento | 77 % | 75 % | 77 % |
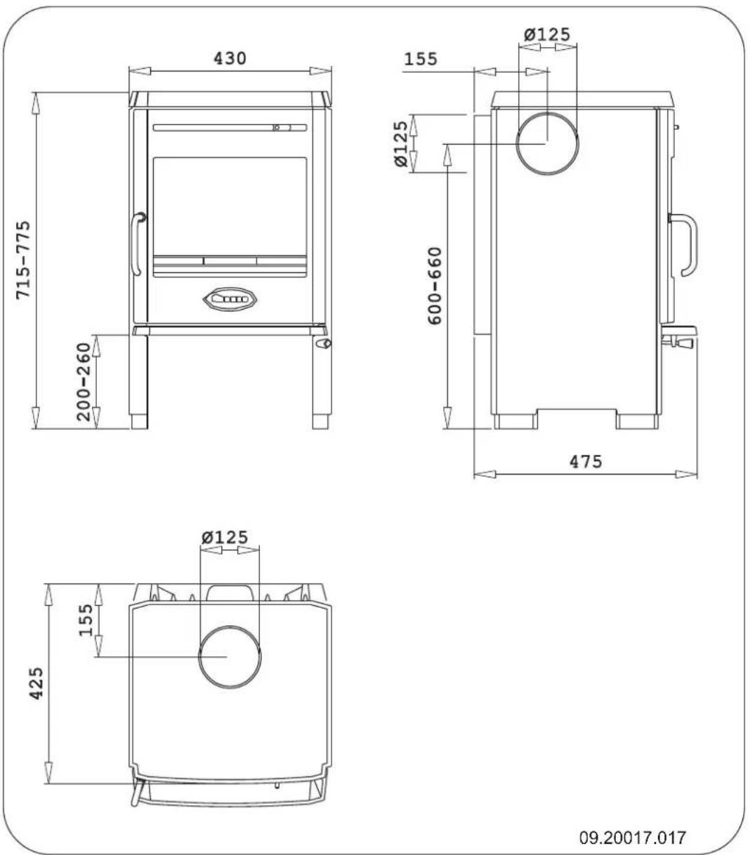
Allegato 2: Dimensioni
350CB

09.20017.017
350CB3

text_image
430 768 252 Ø 125 156 Ø 125 658 475 Ø 125 155 425 09.20017.018350CB3/WB

text_image
431 918 373
text_image
472 423 Ø 125 808
Allegato 3: Distanza da materiali infiammabili
350CB, 350CB3, 350CB3/WB - Distanze minime in millimetri

| * Tubo | di raccordo protetto (isolato) |
![]() | Materiale infiammabile |
![]() | Materiale non infiammabile, spessore 100 mm |
360CB e 360CB3 - Distanze minime in millimetri

09.20017.037
| * Tubo | di raccordo protetto (isolato) |
| Materiale infiammabile | |
| Materiale non infiammabile, spessore 100 mm |
350CB, 350CB3, 350CB3/WB, 360CB e 360CB3 - Dimensioni della salvapavimenti

text_image
B A 09-20002-004Dimensioni minime della piastra salvapavimenti
| A (mm) | B (mm) | |
| Din 18891 500 300 | ||
| Germania 500 300 | ||
| Finlandia 400 100 | ||
| Norvegia 300 100 |
Allegato 4: Schema diagnostico
| Problema | ||||||
| ● | La legna non brucia bene | |||||
| ● | Scalda poco | |||||
| ● | Ritorno del fumo durante il caricamento | |||||
| ● | L'apparecchio funziona a regime troppo elevato, non regolabile | |||||
| ● | Il vetro si sporca | |||||
| possibile causa possibile rimedio | ||||||
| ● | ● | ● | ● | Tiraggio insufficiente | Quando la canna fumaria è fredda, talvolta iltiraggio non è sufficiente. Seguire le istruzioni per l'accensione nel capitolo "Uso"; aprire una finestra. | |
| ● | ● | ● | ● | La legna è troppo bagnata Usare legna con un tasso di umidità inferiore al 20%. | ||
| ● | ● | ● | ● | Ceppi troppo grossi | Usare legnetti accendifuoco. Usare ceppi spaccati, con una circonferenza massima di 30 cm. | |
| ● | ● | ● | ● | ● | Legna non accatastata correttamente. | Accatastare la legna di modo che l'apporto di aria fra i ceppi sia sufficiente (accatastamento incrociato, siveda "Accendere con legna"). |
| ● | ● | ● | ● | Insufficiente tiraggio della canna fumaria | Controllare che la canna fumaria soddisfi i seguenti requisiti: altezza minima 4 metri, diametro giusto, isolata bene, parete interna liscia, poche curve, libera da ostruzioni (nidi d'uccello, cumuli di fuliggine), tenuta stagna (senza fessure). | |
| ● | ● | ● | ● | Posizione non idonea del comignolo | L'altezza giusta rispetto al colmo del tetto, nessun ostacolo nelle vicinanze. | |
| ● | ● | ● | ● | ● | Regolazione scorretta delle prese d'aria | Aprire completamente le prese dell'aria di combustione. |
| ● | ● | ● | ● | Collegamento scorretto dell'apparecchio alla canna fumaria | Il collegamento deve essere a tenuta stagna. | |
| ● | ● | ● | ● | Depressione nel locale dove sitrova l'apparecchio | Spegnere tutti i sistemi di aspirazione e areazione. | |
| ● | ● | ● | ● | Apporto d'aria insufficiente | Provvedere a un buon apporto di aria, eventualmente per mezzo di una presa d'aria esterna. | |
| ● | ● | ● | ● | Condizioni meteorologiche sfavorevoli? Inversione (flusso d'aria inverso nella canna fumaria a causa di elevate temperature esterne), vento forte | In caso di inversione, è meglio non usare l'apparecchio. Eventualmente installare un antivento sul comignolo. | |
| ● | Corrente d'aria nel locale | Evitare corrente d'aria nel locale, non installare l'apparecchio nelle vicinanze di una porta o di canalid'aerazione. | ||||
| ● | Le fiamme vengono in contatto con il vetro | Assicurarsi che la legna non sia troppo vicina al vetro. Chiudere ulteriormente la presa dell'aria primaria. | ||||
| ● | Esce aria dall'apparecchio Controllare | la guarnizione della porta e le giunture dell'apparecchio. | ||||
Indice
A
Accatastare i ceppi di legna 12
Accendere.11....
Aerazione 5 regola 5
Aggiunta di combustibile 13
Altezza di caricamento della stufa.13.....
Aprire cassetto raccoglicenere..14....
Aria primaria 12
Aria secondaria.12....
Avvertenza areazione.4-5..... condizioni assicurative.... 4 detergente vetri per stufe.... 15 incendio della canna fumaria.... 4 incendio di camino..11..13..... materiali combustibili.... 4 piastre refrattarie interne.... 11 prescrizioni.... 4 superificie molto calda.... 4 vetro rotto o crepato.... 4, 15
C
Calore, insufficiente 14, 26
Canna fumaria altezza Canna fumaria altezza 5
collegamento a 11
diametro di collegamento.... 17
manutenzione 14
requisiti 4
Caricamento del combustibile ritorno del fumo.... 26
Cassetto raccoglicenere aprire....14
Catrame 13
Collegamento alla canna fumaria parte posteriore.... 9 parte superiore.... 9
Collegare dimensioni....18
Combustibile adatto....11
aggiungere....13
non idoneo 11
quantità....14
Combustibile adatto 11
Combustibile non idoneo.... 11
Comignolo 5
Comignolo della canna fumaria.... 5
Condizioni meteorologiche, non accendere 14
Creosoto....13
D
Detergente vetri per stufe.... 15
Dimensioni 18
E
Emissione di polveri 17
Essiccazione della legna.... 11
Evitare incendi della canna fumaria 13
F
Fessure nell'apparecchio 16
Foro di passaggio dei fumi di combustione chiudere 9
Foschia, non accendere.... 14
Fumi di combustione portata massima.... 17
Fumo prima accensione.... 11
Funzionamento a regime troppo elevato.... 26
aggiungere combustibile 12-13
calore insufficiente.... 14
poco calore 26
regolazione insoddisfacente.... 26
Fuoco accensione....11 spegnere....13
Fuoco iniziale.... 11
G
Gambe montaggio 8
Grasso per lubrificazione.... 15
Griglia d'aerazione 5
Griglia scuoticenere rimuovere....13
Guarnizione della porta 16......
|
Immagazzinamento della legna..11......
Innalzamento della temperatura sezione di misura.17....
Installazione dimensioni.18....
L
Legna 11
essiccazione.1.1
non brucia bene.26......
tipi adatti 11
umida 11
Legna di conifere 11.
Legna umida.... 11
Legnetti accendifuoco 26
Lubrificazione.... 15
M
Manutenzione canna fumaria 14
guarnizione.... 16
lubrificazione 15
piastre refrattarie interne.... 14
pulizia del vetro 15
pulizia dell'apparecchio.... 14
Materiali infiammabili distanza da.... 23
Misure antincendio distanza da materiali infiammabjli.... 23
Muri sicurezza antincendio.6......
N
Nebbia, non accendere.... 14
0
Ossigenare il fuoco.... 13
P
Paletta per la rimozione della cenere.... 7
Pannello laterale montare....10
Pareti sicurezza antincendio 6......
Pavimenti portata di carico 6. sicurezza antincendio 6.
Peso 17
Piastre refrattarie interne avvertenza....11 manutenzione....14
Porta guarnizione.... 16
Portata di carico del pavimento.... 6
Potenza nominale..14....
Potenza termica nominale 17
Presa d'aria esterna.... 5 collegamento a.... 11
Prese d'aria.... 12 regolare.... 15
Pulizia apparecchio....14 vetro....15
Pulizia della canna fumaria 14
R
Raccordo di collegamento montare....10
Regolare l'apporto di aria 13
Rendimento....17
Rimuovere cenere....13
Rimuovere la cenere 13
Risoluzione problemi.... 14, 26
Ritorno dei fumi 4
Rivestimento ignifugo operare il foro....9 praticare apertura....9 rimuovere....9
Rivestimento, manutenzione.... 16
s
Spegnimento del fuoco.13......
Spifferi d'aria 16
Stoccare la legna.... 11
Supporto della maniglia
montare 8
T
Tagliafiamma
rimuovere..15.
Tappeto.6
Tappo di raccordo
rimuovere 9
Temperatura..17.
Tiraggio 17.
V
Vernice 11
Vetro
pulizia .15.
sporca.26
Vetro laterale
sostituire..10.
ManualeFacile

