Fein GRIT GX 75 2H - Murskain

GRIT GX 75 2H - Murskain Fein - Ilmainen käyttöohje ja opas

Löydä laitteen käyttöohje ilmaiseksi GRIT GX 75 2H Fein PDF-muodossa.

📄 108 sivua PDF ⬇️ Suomi FI 💬 AI-kysymys ⚙️ Tekn. tied. 🖨️ Tulosta
Notice Fein GRIT GX 75 2H - page 64
Käyttöohje-avustaja
ChatGPT:n tukema
Odotetaan viestiäsi
Tuotetiedot

Merkki : Fein

Malli : GRIT GX 75 2H

Kategoria : Murskain

SKIP

Usein kysytyt kysymykset - GRIT GX 75 2H Fein

Lataa ohjeet laitteellesi Murskain PDF-muodossa ilmaiseksi! Löydä käyttöohjeesi GRIT GX 75 2H - Fein ja ota elektroninen laitteesi takaisin hallintaan. Tällä sivulla julkaistaan kaikki laitteidesi käyttöön tarvittavat asiakirjat. GRIT GX 75 2H merkiltä Fein.

KÄYTTÖOHJE GRIT GX 75 2H Fein

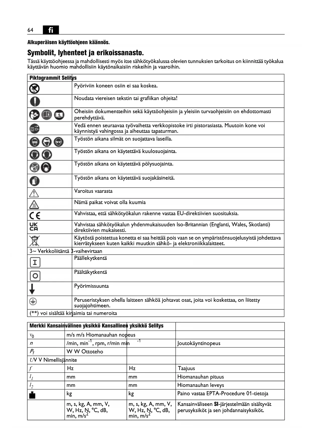
Alkuperäisen käyttöohjeen käännös. Symbolit, lyhenteet ja erikoissanasto. Tässä käyttöohjeessa ja mahdollisesti myös itse sähkötyökalussa olevien tunnuksien tarkoitus on kiinnittää työkalua käyttävän huomio mahdollisiin käytönaikaisiin riskeihin ja vaaroihin. Piktogrammit Selitys Pyöriviin koneen osiin ei saa koskea. Noudata viereisen tekstin tai grafiikan ohjeita! Oheisiin dokumentteihin sekä käyttöohjeisiin ja yleisiin turvaohjeisiin on ehdottomasti perehdyttävä. Vedä ennen seuraavaa työvaihetta verkkopistoke irti pistorasiasta. Muutoin kone voi käynnistyä vahingossa ja aiheuttaa tapaturman. Työstön aikana silmät on suojattava laseilla. Työstön aikana on käytettävä kuulosuojainta. Työstön aikana on käytettävä pölysuojainta. Työstön aikana on käytettävä suojakäsineitä. Varoitus vaarasta Nämä paikat voivat olla kuumia Vahvistaa, että sähkötyökalun rakenne vastaa EU-direktiivien suosituksia. Vahvistaa sähkötyökalun yhdenmukaisuuden Iso-Britannian (Englanti, Wales, Skotlanti) direktiivien mukaisesti. Käytöstä poistettua konetta ei saa heittää pois vaan se on ympäristönsuojelusyistä johdettava kierrätykseen kuten kaikki muutkin sähkö- ja elektroniikkalaitteet. 3~ Verkkoliitäntä 3-vaihevirtaan Päällekytkentä Päältäkytkentä Pyörimissuunta Peruseristyksen ohella laitteen sähköä johtavat osat, joita voi koskettaa, on liitetty suojajohtimeen. (**) voi sisältää kirjaimia tai numeroita Merkki Kansainvälinen yksikkö Kansallinen yksikkö Selitys

Kansainväliseen SI-järjestelmään sisältyvät perusyksiköt ja sen johdannaisyksiköt.65

Työturvallisuus. Koneen saa ottaa käyttöön vasta kun ensin on perehdytty käyttöohjeeseen ja sen sisältö kuvi- tus, erittelyt ja turvamääräykset mukaan lukien ovat tulleet ymmärretyiksi. Samoin on noudatettava voimassa olevia maakohtaisia määräyksiä, jotka koskevat sähkötekniikkaa ja työtur- vallisuutta (vrt. Saksa: BGV A2, BGR 500). Jos dokumenteissa selostettuja turvaohjeita laiminlyö- dään, seurauksena voi olla sähköisku, tulipalo ja/tai vakava tapaturma. Säilytä tämä käyttöohje myöhempää tarvetta silmällä pitäen ja anna se koneen mukaan, mikäli kone myydään tai luovutetaan toisen käyttöön. Koneen käyttökohde. Kone metalliaineiden (paitsi magnesiumin) hiontaan ja hiomiseen käyttäen sädehiomamoduulia GRIT GXR tai pyöröhiontalaitetta GRIT GXC yhdessä Feinin sallimien hiomanauhojen kanssa, säältä suojatussa ympäristössä. Erityiset varotoimenpiteet. Varmista tukeva seisoma-asento ja konealustan vaaka- suora asennus. Kiinnitä konealusta lattiaan. Jos kone- alusta kaatuu työn aikana, saattaa se johtaa vakaviin loukkaantumisiin. Käytä koneen asentamiseen konealustaan sopivia kiin- nitystarvikkeita. Virheellinen asennus saattaa johtaa sii- hen, että kone työvaiheen aikana irtoaa konealustasta ja aiheuttaa vakavia tapaturmia. Muista henkilökohtaiset suojavarusteet. Käytä työstöti- lanteesta riippuen kasvosuojainta, silmäsuojainta tai suojalaseja. Jos mahdollista, käytä pölysuojainta, kuu- losuojainta, suojakäsineitä tai erikoisvaatetusta, joka antaa suojan ilmaan sinkoilevilta hioma- ja materiaali- hiukkasilta. Varsinkin silmät on suojattava eri työstöta- voilla ilmaan sinkoilevilta hiukkasilta. Pöly- ja hengityssuojainten täytyy pystyä suodattamaan työstös- sä syntyvä pöly. Pitkäaikainen altistuminen melulle saat- taa heikentää kuuloa. Töissä ei pidä käyttää liian löysää vaatetusta, korut on riisuttava ja pitkät hiukset sidottava. Suojalaitteista huolimatta irralliset esineet voivat singota voimalla lait- teen liikkuviin osiin osuessaan ja aiheuttaa tapaturman. Kuluneita, repeytyneitä tai pahoin likaantuneita hioma- nauhoja ei saa käyttää. Käsittele hiomanauhoja huolel- lisesti ja varastoi ne valmistajan antamia ohjeita noudattaen. Hiomanauhoja ei saa taittaa! Vioittunut hiomanauha voi revetä ja singota irti voimalla, mistä voi seurata tapaturma. Vain sellaisia hiomanauhoja tai lisätarvikkeita saa käyttää, jotka työkalun valmistaja on kehittänyt tai hyväksynyt. Muunlainen hiomanauha tai lisätarvike ei välttämättä ole turvallinen käyttää, vaikka se sopisikin koneeseen. Käytä aina koneeseen kuuluvia suojalaitteita. Suojalait- teet on kiinnitettävä koneeseen pitävästi, jolloin saavu- tetaan optimaalisin suoja. Suojalaitteiden tarkoitus on suojata konetta käyttävää hionnassa ilmaan sinkoilevilta hiukkasilta sekä kosketussuojata häntä hiomanauhalta. Huomio, palo- ja räjähdysvaara! Metalleja hiottaessa (esim. alumiinia) syntyy pölyä, joka saattaa olla tulen- arkaa tai helposti räjähtävää. Älä käytä konetta tulen- arkojen aineiden lähellä. Kipinät voivat sytyttää näitä aineita. Huomio - tulipalon vaara! Metallin hionnassa metallista ja hiomanauhasta irtoaa kuumia lastuja, jotka johde- taan kipinälaatikkoon. Kipinälaatikon sisällön on ennen sen tyhjentämistä annettava jäähtyä ja lastut on tyhjen- nettävä sopivaan astiaan. On varottava, ettei kipinöinnöistä ole varaa muille lähellä oleville. Poista kaikki palavat materiaalit työstö- paikan läheltä. Metalleja hiottaessa syntyy kipinöintiä. Katso, että muut pysyvät turvallisella etäisyydellä työ- kohteesta. Kaikkien työkohteessa olevien on käytettävä henkilökohtaisia suojavarusteita. Työkappaleesta tai rikkoutuneesta vaihtotyökalusta irtoavia osia voi sin- koutua kauemmaskin ja vahingoittaa muita varsinaisen työkohteen ulkopuolella olevia. Työkappaleen on aina oltava pitävästi hioma-aluslaa ja rajoitinta vasten. Liian pienet tai ohuet työkappaleet eivät sovellu työstettäviksi koneella. Työtapaturmen vaara, jos työkappale sinkoaa irti koneesta. Työstetty pinta voi olla erittäin kuuma. Sitä ei pidä kos- kettaa paljaalla kädellä. Pyörivää hiomanauhaa ei saa missään tapauk- sessa koskettaa. Siitä seuraa tapaturman vaara. Vaaratilanteissa on heti painettava hätä-seis-paini- kietta. Kone jälkikäy vielä noin 50 sekuntia. Koneen ilmanvaihtoaukot on puhdistettava säännölli- sesti. Moottorin tuuletin kerää pölyä konekotelon sisään. Jos metallipölyä kerääntyy ylenmäärin, se voi vaarantaa sähköistä turvallisuutta. Koneen verkkopistokkeen saa vaihtaa ainoastaan ammattitaitoinen sähköasentaja. Pistorasian suojajoh- timen on oltava liitettynä sähköverkon suojamaahan. Huolto- ja kunnostustöiden ajaksi on verkkopistoke vedettävä irti! Jos kone kytketään päälle vahingossa, sii- tä voi aiheutua vakava työtapaturma. Koneen sähkötekninen turvallisuus on annettava tar- kastaa säännöllisin välein lakisääteisiä määräyksiä noudattaen. Jos tarkastukset laiminlyödään, koneesta voi saada sähköiskun! Ennen koneen ensimmäistä käyttökertaa on tarkastet- tava koneen pyörimissuunta. Jos pyörimissuunta on vää rä, työkappale saattaa sinkoutua irti ja aiheuttaa tapa- turman. Pyörimissuunnan saa vaihtaa ainoastaan ammattitaitoinen sähköasentaja. Kun kone käynnistetään, on katsottava, ettei kukaan seiso välittömästi hiomanauhan vieressä. Jos hioma- nauha repeää, se voi aiheuttaa vakavan tapaturman. Terveydelle vaarallisten pölyjen käsittely Työvaiheissa, joissa työkalulla lastutaan materiaalia, voi syntyä vaarallista pölyä. Tietyntyyppisen pölyn koskettaminen tai hengittämi- nen voi aiheuttaa allergisia reaktioita ja/tai hengitystei- den sairauksia, syöpää tai hedelmällisyyteen vaikuttavia vaurioita. Tällaista pölyä voi erittyä esim. asbestista ja asbestipitoisista materiaaleista, lyijypitoisista maaleista,66

metallista, eräistä puulaaduista, mineraaleista, kivipitoi- sista materiaaleista erittyvistä silikaateista, maalinpoisto- aineista, puunsuoja-aineista sekä eliöntorjunta-aineista. Riskin suuruus pölyjä hengitettäessä riippuu niiden määrästä. Suositamme käyttämään tarkoitukseen sopi- vaa poistoimuria sekä henkilökohtaista suojavarustusta ja huolehtimaan työpaikan riittävästä tuuletuksesta. Asbestipitoisen materiaalin työstö on paras jättää ammattihenkilökunnan hoidettavaksi. Puupöly ja kevytmetallipöly sekä hionnassa syntyvä pöly yhdessä kemiallisten aineiden kanssa voivat epä- suotuisissa olosuhteissa syttyä itsestään palamaan tai aiheuttaa räjähdyksen. Kipinöintiä pölysäiliön läheisyy- dessä on vältettävä, samoin sähkötyökalun ja hiottavan esineen ylikuumenemista. Pölysäiliö on hyvä tyhjentää ajoissa. Materiaalin valmistajan työstöohjeita on nouda- tettava, samoin kuin maakohtaisesti voimassa olevia, kyseisten materiaalien työstöön liittyviä määräyksiä. Laitteen osat. 1 Kiristysvipu 2 Ruuvi 3 Konealusta 4 Yläsuojakansi 5 Nauhajännityksen kiristysvipu 6 Suojakannen tähden muotoinen ruuvi 7 Rajoitin 8 Siipiruuvit, kipinäsuojus 9 Kipinäsuojus 10 Hioma-alusta 11 Kipinalaatikko 12 Hioma-alustan lukkoruuvi 13 Tasohioma-alustan säätöruuvi 14 Hiomanauhan säätöruuvi 15 Hätä-seis-painike 16 Tuuletusaukot 17 Käynnistyskytkin 18 Kierrosluvun säädin (Vain 2H-mallit) 19 Kontaktilevy 20 Tuki tasohiontaan 21 Käyttöpyörä 22 Sivusuojuksen ruuvi 23 Sivusuojus 24 Aukko pölynpoistoa varten 25 Ohjekilpi 26 Vasteen kiinnitysruuvit Asennusohjeet (Kuva 1). Aseta kone yläsivu alaspäin lattialle ja asenna kone- alusta kuvan ja tietolehden mukaisesti. Kiinnitä konealusta lattiaan sopivilla vaarna/ruuvi- liitoksilla. Kiinnitysten on kestettävä työssä esiin- tyvät voimat. Virheellinen asennus saattaa johtaa siihen, että kone työvaiheen aikana irtoaa konealustasta ja aiheuttaa vaka- via tapaturmia. Tapaturmavaaran takia tulee tämän työn suorittaa henkilö, joka ruumiillisesti pystyy nostamaan koneen suurta painoa. Sähköliitäntä. Sähköliitäntä koneen käyttökohteessa on annet- tava tehdä ammattitaitoisen sähköasentajan toi- mesta. Huomio verkkojännite: Verkkovirran jännitteen ja taa- juuden on oltava sama kuin sähkökoneen tyyppikilvessä ilmoitetut tiedot. Ennen koneen ensimmäistä käyttökertaa on tarkastet- tava koneen pyörimissuunta. Pyörimissuunnan saa vaih- taa ainoastaan ammattitaitoinen sähköasentaja. Asetukset. Ennen koneeseen kohdistuvia töitä on verkkopis- toke vedettävä irti pistorasiasta. Kaltevuussäätö (kuva 9). Avaa molemmat kiristysvivut (1). Aseta kone tarvitta- valle työkorkeudelle. Kiristä molemmat kiristysvivut (1) uudelleen. Kipinäsuojuksen (10) säätö (Kuva 4). Löysää lukkoruuvia (12) ja säädä välys suurimmillaan mittaan 2 mm. Kiristä sitten lukkoruuvi taas kiinni. Tasohiomapinnan (20) säätö. Tasohionnassa on tasohiontapinta (20) säädettävä samansuuntaiseksi hiomanauhan kanssa on sen oltava kosketuksissa koko pintaan. Löysää ruuvia (22) ja käännä sivusuojus (23) alas. Avaa ruuvit (13) ja suuntaa tasohioma-alusta (20). Kiristä sitten ruuvit (13) taas kiinni. Sulje sivusuojus (23) ja kiristä ruuvi (22) taas kiinni. Aseta vasteen (7) välysmitta arvoon maks. 2 mm, avaamalla ruuvit (26), säätämällä vaste (7) ja kiris- tämällä ruuvit (26) uudelleen. (kuva 5) Hiomanauhan säätö. Kytke kone päälle vain hetkeksi ja tarkasta hiomanauhan kulku. Jos hiomanauha puoltaa jommalle kummalle sivulle, säädä sen asentoa säätöruuvilla (14) niin, että nauha pyörii keskellä. Jos nauhaa ei saada säädettyä keskelle: Puhdista käyttöpyörä (21) ja kontaktipyörä (19) paineil- malla. Tarkasta käyttö- ja kontaktipyörän kunto: kulumat, mahdolliset muotoviat tms. Vialliset osat on annettava uusia välittömästi! Hiomanauhan vaihto. Ennen koneeseen kohdistuvia töitä on verkkopis- toke vedettävä irti pistorasiasta. Avaa ruuvi (22) ja käännä kylkikansi (23) alas. (Kuva 3) Avaa tähden muotoinen ruuvi (12) ja poista lastulaa- tikko (11). Nosta vipu (5) ala-asentoon, niin kiristinlaite löystyy. Poista hiomanauha.67

Kun kiinnität uuden hiomanauhan, tarkista ensin sen pyörimissuunta nauhan sisäpinnalta! Pyörimissuunnan on oltava sama kuin käyttöpyörän pyörimissuunnan. Aseta hiomanauha sekä käyttöpyörän (21) että kontak- tipyörän (19) varaan. Paina vipu (5) yläasentoon, niin hio- manauha kiristyy. Sulje sivusuojus (23) ja kiristä ruuvi (22) taas kiinni. Asen na lastulaatikko (11) ja tarkista hioma-alustan välysmitta. (Kuva 4) Kytke kone päälle ja säädä hiomanauhan asentoa. Käyttövinkkejä. Käynnistys: Vapauta hätä-seis-painikkeen (15) lukitus ja käännä pai- nike ylös. Paina painiketta ”I” (17). Pysäytys: Käännä hätä-seis-painike (15) ylös. Paina painiketta ”0” (17). Virran katkaisemisen jälkeen kone jälkikäy vielä n. 50 sekunnin ajan. Hätä-seis-painike: Vaaratilanteessa kone pysäytetään punaisella hätä-seis- painikkeella. Kierrosluvun säätö (Malli 2H) Kytkinasento 1: Alhainen kierrosluku Kytkinasento 2: Suuri kierrosluku Kierroslukua saa muuttaa kytkimellä (18) ainoas- taan koneen seistessä. Ylikuormitussuoja. Jos konetta käytetään pitempään korkealla kuormituk- sella, siitä katkeaa virta automaattisesti. Sen jälkeen koneen on annettava jäähtyä n. 15 minuuttia, ennen kuin työstöä voi jatkaa. Kontaktihionta (Kuvat 6+7). Varmista, että lukkoruuvi (12) on kiristetty. Katso, että ylempi suojakansi (4) on varmistettu tähti- ruuvilla (6) ja sivuttainen kansi (23) on kiinni. Tarkista hioma-alustan välysmitta. Tarkista tasohiomapinnan asento (20). Ruuvien (13) on oltava alemmassa asennossa. Tarkista, että kitkasuojuksen (9) siipiruuvit (8) on kiris- tetty oikein. Kytke kone päälle ja tarkasta hiomanauhan asento. Aseta työstökappale tiiviisti hionta-alustaa vasten. Työstökappaletta on liikutettava molemmin käsin tai sen voi lukita paikalleen sopivaan aputelineeseen. Tasohionta (Kuva 8) Löysää tähtiruuvit (6)/(4) ja ota ylempi suojakansi irti. Varmista, että välysmitta on asetettu oikein. (kuva 5) Kytke kone päälle ja tarkasta hiomanauhan asento. Pidä työkappaletta työstön aikana kiinni molemmin käsin ja nosta se irti koneesta työstön päätteeksi. Pölynpoisto Suositamme käyttämään poistoimuria. Koneessa olevaan liitäntäaukkoon (24) voidaan yhdistää pölynpoistoimuri. Melupäästöarvot. Kunnossapito, huolto. Kunnostustyöt saa suorittaa ainoastaan ammatti- taitoinen asentaja voimassa olevia määräyksiä noudattaen. Suositamme tilaamaan kunnostuksen FEIN-palvelusta, lähimmästä FEIN-sopimuskorjaamosta tai FEIN-jälleen- myyjältä. Mikäli koneen liitäntäjohto on vioittunut, se on vaihdet- tava erikoisvalmisteiseen liitäntäjohtoon, jollaisen voi tilata FEIN-palvelusta. Tähän koneeseen kuuluvan päivitetyn varaosaluettelon voi hakea internet-osoitteesta www.fein.com. Päivittäiset huoltotoimet Puhdista moottorin kotelossa olevat ilmanvaihto- aukot (16) ja muut merkityt kohteet (vrt. ohje- kilpi (25)) paineilmalla. Öljyä päivittäin koneen merkityt kohteet koneöl- jyllä (ks. ohjekilpi (25)). Tarkasta aina hiomanauhan vaihdon yhteydessä käyttö- (21) ja kontaktipyörien (19) kunto, mahdolliset kulumat tai vauriot. Anna uusia vioittuneet osat. Löysää lukkoruuvia (12). Poista lastulaatikko (11) ja huolehdi metallipölystä. Lastulaatikon sisällys tulee olla riittävän jäähtynyttä ennen tyhjennystä, ja sen saa hävittää ainoastaan sopi- viin säiliöihin. Asenna tyhjennetty lastulaatikko takaisin ja aseta hioma-alustan välysmitta. (Kuva 4) Kiristä tähdenmuotoinen ruuvi (12). Puhdista koneen ulkopinta paineilmalla. Seuraavat osat voi tarvittaessa vaihtaa itse: Hioma- nauha, kipinäsuojus (9) Tyhjäkäynti Hionta Mitattu A-painotettu äänen- painetaso työpisteessä

(re 20 μPa) desibeleinä 81 93 Epätarkkuus

desibeleinä 4 4 Mitattu A-painotettu äänite- hon taso

(re 1 pW) desibeleinä 91 100 Epätarkkuus

desibeleinä 2,5 2,5 Käyttöedellytykset Kierrosluku (/min) 3 000 3 000 Materiaali – ST 37 Mitat – 8 x 40 Hiomanauha

GRIT by Fein 36Z HUOMAUTUS: Mitatun päästöarvon ja siihen liittyvän epätarkkuusarvon summe on niiden arvojen yläraja, jotka voidaan havaita mittauksissa. Käytä kuulosuojainta! Mitta-arvot on laskettu vaadittua tuotestandardia nou- dattaen (ks. käyttöohjeiden viimeinen sivu).68

Takuu. Tuotteeseen pätee takuu, joka vaaditaan sen tuonti- maassa. Sen ohella pätee FEINin takuuehdoissa määrit- tämä valmistajakohtainen takuu. Kaikki tässä käyttöohjeessa mainitut tai kuvissa esitetyt lisätarvikkeet eivät välttämättä kuulu koneen toimitussi- sältöön. EU-vastaavuus. CE-tiedonanto koskee vain Euroopan unionin ja EFTAn (European Free Trade Association) maita ja vain EU- ja EFTA-markkinoille tarkoitettuja tuotteita. Tuotteen EU-markkinoille liikkeeseenlaskemisen jälkeen UKCA- merkinä menettää voimassaolonsa. UKCA-tiedonanto koskee vain brittimarkkinoita (Eng- lanti, Wales ja Skotlanti) ja brittimarkkinoille tarkoitet- tuja tuotteita. Tuotteen brittimarkkinoille liikkeeseenlaskemisen jälkeen CE-merkinä menettää voimassaolonsa. Tmi. FEIN vakuuttaa ja vastaa yksin siitä, että tämä tuote on käyttöohjeen viimeisellä sivulla mainittujen määräys- ten ja standardien mukainen. Teknisen dokumentaation laatinut: C. & E. Fein GmbH, D-73529 Schwäbisch Gmünd Ympäristönsuojelu, jätehuolto. Huolehdi siitä, että pakkausmateriaali, käytöstä pois- tettu kone ja sen lisätarvikkeet johdetaan kierrätykseen. Liitäntäkaaviot. Tyyppi GX75 sivu 99 Tyyppi GX752V sivu 100 Tyyppi GX752H sivu 101 Tyyppi GX752H2V sivu 10269