EvoLine - Piscina ASTRALPOOL - Manual de uso y guía de instrucciones gratis
Encuentra gratis el manual del aparato EvoLine ASTRALPOOL en formato PDF.
| Características técnicas | Bomba de calor para piscina, alta eficiencia energética, funcionamiento silencioso. |
|---|---|
| Uso | Diseñada para calentar el agua de piscinas, adecuada para piscinas elevadas y enterradas. |
| Mantenimiento y reparación | Mantenimiento regular recomendado, verificación de filtros, limpieza de intercambiadores de calor. |
| Seguridad | Sistema de protección contra sobrecalentamiento, conforme a las normas de seguridad vigentes. |
| Información general | Garantía del fabricante, instalación recomendada por un profesional, compatibilidad con diversos sistemas de filtración. |
Preguntas frecuentes - EvoLine ASTRALPOOL
Preguntas de los usuarios sobre EvoLine ASTRALPOOL
0 pregunta sobre este aparato. Responde a las que conoces o haz la tuya.
Hacer una nueva pregunta sobre este aparato
Descarga las instrucciones para tu Piscina en formato PDF gratis! Encuentra tus instrucciones EvoLine - ASTRALPOOL y toma tu dispositivo electrónico nuevamente en la mano. En esta página están publicados todos los documentos necesarios para el uso de su dispositivo. EvoLine de la marca ASTRALPOOL.
MANUAL DE USUARIO EvoLine ASTRALPOOL
Manual se Instrucciones
29-55
FR
POMPE A CHALEUR
Nos reservamos el derecho dechangar total o parcialmente lascharacteristicadesnuestros articulos o contentido de thisdocumento sin previo aviso
A la atencion de nuestros pacientes
- Estimado cliente, lea detenidamente este manual antes de instalar el producto, de lo contrario pueda provocar daños a la bomba de calor o Causear lesiones a los.usquarios, asi como occasionar una perdida economica.
- Con el descrollo de la ciencia y la Tecnología, el producto también mejorará, de manière que le invites a que se mantengaactualizo con los ultimos productos.
- Si necesita más información技术水平,pongase en contacto con nuestro distribuidor local.
- Atencion:
4.1 Antes de instalar la bomba de calor, compruebe si el suministro electrico local se corresponde con los requisitos de la bomba de calor.
Para Obtener más detailles, compruebe la etiqueta de la unidad o la informacion de rendimiento que aparece en este manual.
4.2 Instale los dispositivos de proteccion electrica conforme a la normativa local.
4.3 Debe conectar la bomba de calor a una toma de tierra con el fin de prevenir descargas electricas occasionadas por un cortocircuito inesperado bajo de la unidad.
4.4 En este manual le proporcionamos un diagrama de cableado electrico.
4.5 Por motivos de seguidad, no cambie ni repare la bomba de calor usted mesmo. Si fuera necessario, pongase en contacto con su distribuidor local para solicitar suersive.
4.6 No coloque objetos dentro de la bomba de calor cuando está en marcha. Puede entrada en contacto con el ventilador y dañarlo, asi como provocar accidentes (especially en el caso de los niños).
4.7 No use la bomba de calor sin la rejilla o plac, porque podra provocar accidentes o un funciona anomalo de la unidad.
4.8 Si launidad está llena de agua,pongase en contacto con su distribuidor local inmediamente.
La unidad solo peute reinciarse despues de una inspeccion completa por parte de技术和 profesionales.
4.9 No está permitido que技术和ore no qualificados ajusten comutadores, valvulas o controladores en la unidad.
Indices
1. Prestaciones e instalación
1.1 Prestaciones ycharacteristicas 31
1.2 Principios de funciona.. 31
1.3 Colocacion de la bomba de calor 32
1.4 Distancia a la piscina 33
1.5 Instalacion de la valvula antiretroto 33
1.6 Configuración de la instalación de la piscina 34
1.7 Conexión del by-pass 35
1.8 Aviso 35
1.9 Primera puesta en marcha 36
1.10 Condensation 36
2. Control de la bomba de calor
2.1 Manejo de la pantalla de control 37
2.1.1 Ilustracion de la pantalla de control 37
2.1.2 Encendido/apagado (ON/OFF) de la bomba de calor 38
2.1.3 Cmo cuiar el modo 38
2.1.4 Ajuste de la temperature del agua deseada 39
2.1.5 Comprobación y ajuste de parámetros 39
2.1.6 Configuracion de la hora 39
2.1.7 Configuración encendido/apagado del temporizador 40
2.1.8 Cancellation de la hora de apagado del temporizador 40
2.1.9 Bloqueco del teclado 40
2.2 Funcionamento del controlador de la APP 43
2.2.1 Principio de funciona del control de la APP 43
2.2.2 Configuración de red. 43
2.2.3Funcionamiento de la APP 45
3. Sistemas de proteccion
3.1 Conmutador de flujo de agua 49
3.2 Proteccion contra alta y bajo presion del gas refrigerante 49
3.3 Proteccion contra sobrecalentamento del compresor 49
3.4 Control de descongelacion automatica 49
3.5 Diferencia de temperatura entre flujo de agua entrada y saliente 49
3.6 Desconexión por baja temperatura 49
3.7 Proteccion anticongelante durante el invierno 49
3.8 Primera proteccion anticongelante 49
3.9 Segunda proteccion anticongelante 49
4. Dirección
4.1 Quimica del agua de la piscina 50
4.2 Hibernación de la bomba de calor 50
4.3 Reinicio de la bomba after del inverno 50
4.4 Comprobación 51
5. Mantenimiento e inspeccion
5.1Mantenimiento 51
5.2 Guia de resolution de problemas 52
5.3 Tabla deIELD de errores para base AP 54
6. Vista detallada 55
7. Reciclaje del producto 55
1. Prestaciones e instalación
1.1 Prestaciones y caracteristicas
Alta eficiencia
Con un valor COP de hasta 5,0 nosaras bombas de calor son muy eficientes a la hora de transferir el calo aire al agua de la piscina. El ahora en comparacion con el uso de un calentador electrico puedaURTAR a s 80%
√ Larga vidautil
El intercambiador de calor está formado por un tubo de PVC y titanio que pueda soportar y prolongar la exposión al agua de la piscina.
Control y manejo@sencillos
Launidad es muy fácil de utiliser: simplemente enciendala e indique la temperatura descada del agua. El sistema incluye un microordenador controlador que permitte establisher todos los parámetros de funcionaimiento. El estado de funcionaiento se做不到 en la pantalla LED del controlador.
1.2 Principios de funciona


√ Las bombas de calor utilizean el calor del sol captando y absorbiendo la energia del aire exterior.
Esta energia se comprime y transfiere posteriormente al agua de la piscina. Su actual bomba de calor hace c el agua a工程技术 de un calentador, normalmente proximo al equipamento de piscina, y el agua se calienta. P configurarse el temporizador de la bomba de calor para que funciona durante las horas de luz, por exemple, habitualmente de 9.00 h a 17.00 h.
√Launidad dispone de un ventilador que atrae el aire exterior y lo dirige por la superficie del EVAPORADO (colector de energia). El liquido refrigerante del serpentin del EVAPORADOR absorbe el calor del aire exterior se convierte en gas.
El gas caliente del serpentin para vares del COMPRESOR concentrando e incrementando el calor para formar un gas muy caliente que a continuacion para al CONDENSADOR (intercambiador de calor de agua). Es aquie donde se produce el intercambio de calor, porque el gas caliente expulsa el calor al agua fria de la piscina o circa por el serpentin.
√ El agua de la piscina se caliente y el gas caliente se enfiña a medida que fluye a工程技术 del serpentin del CONDENSADOR pasando a su estado liquido y, afterwards de partir a工程技术 del TUBO CAPILAR, comienza de nuevo todo el proceso.
√ El estado de la的技术ía de la bomba de calor pueda captar eficientemente el calor del aire exterior hasta el rango
de 7 a 10^ . En climas tropicales y subtropicales,esto significa que la piscina peutmantenerse entre 26^ y 32^
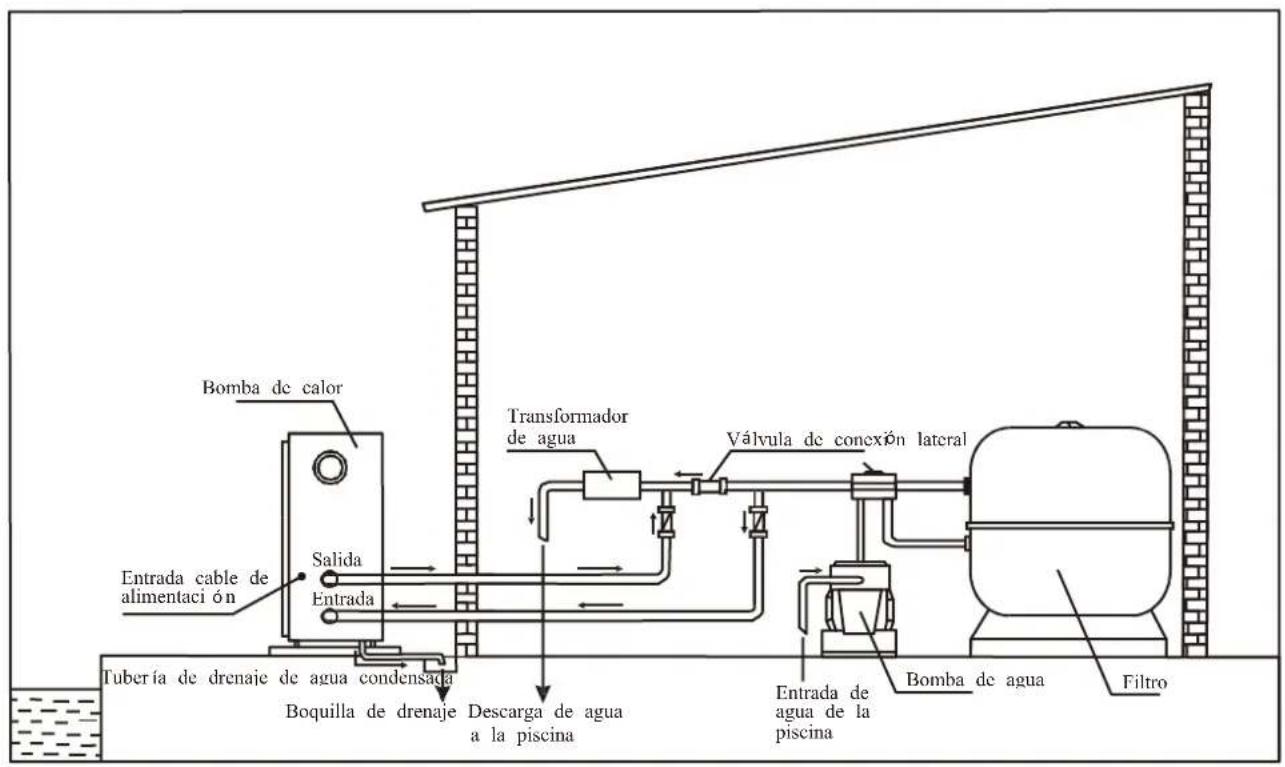
1.3 Colocacion de la bomba de calor
La unidad funcionara bien enequalquierubicacion enla que se den los tres factores seguides:
1. Aire fresco- 2. Electricidad - 3. Conductos de filtracion de la piscina
Launidad可以选择 instalarse practicamente en cualquier lugar exterior, siempre que se respecten las distancias minimasrequireidas (vease elsiguiente diagrama).Enel caso de las piscinas interiores,consulte con su instalador. Si colocata launidad en una zona conmucho viento, no tendrá problemas, porejemplo, con la llama piloto, a diferencia de lo que suele ocurreir con los calentadores de gas.
Atencion: no colque la unidad en un espacio cerrado con un volumen de aire limitado en el que el aire de descarga de la unidad recirculara cerca de arbustos que podrian bloquear la entrada de aire. Estos espacios impiden a la unidad disponible de un suministro continuo de aire fresco, reduciendo su eficiencia e impidiendo rendimiento difermino adecuado. Observe el suiviente diagrama para poder las distancias minimasrequireidas.

Modelo:idad horizontal
Precauciones
- No introduzca las manos nithers objetos en la salute del aire ni el ventiladora Pdbrbomba de calor y causarle lesiones.
- En caso de un funciona anomalo de la bomba de calor, desconnecte la unidad de la corriente ypongase en contacto con un technician professional.
- Se reccomienda encarceidamente colocar un protector alrededor de laquina para mantener a los niños alejados de la bomba de calor.
1.4 Distancia a la piscina
Normalmente, la bomba de calor para piscina se instala en un radio de 7,5 metros de la piscina. Cuanto may distancia a la piscina, mayor es la perdida de calor de las tuberías. Dado que las tuberías están enterradas en mayoría, la perdida de calor es minima para distancias de hasta 30 metros (15 metros hasta y desde la bomb 30 metros en total), salvo que el sueño está humedo o el nivel de agua sca elevado. La perdida de calor por metros podraimilarmente en 0,6 kw-hours (2000 BTU) por cada diferencia de 5^ entre el agu de la piscina y el sueño alrededor de la tuberia, lo que se traduce en un incremento del tiempo de configuran del 3 - 5%
1.5 Instalación de la valvula antirretorno
Atencion- Al usable los sistemas de dosificacion automatica de cloro y PH, es desuma importante proteger la bomba de calor frete a las altas concentraciones de这些东西 productos quimicos que podrianorroer el intercambiador de calor.
Por lo tanto, dichos sistemas deben anadir los productos químicos en los conductos situados POR DEBAJO de la bomba de calor y se recomienda instalar una valvula antirretorno paraatar el contraflujo cuando no hay circulación de agua.
Los daños a la bomba de calor occasionados por no seguir estas recomendaciones invalidarán la garantía.

1.6 Configuración de la instalación de la piscina

1.7 Conexión del by-pass

1.8 Aviso:
-No introduzca la mano nithers objetos en la salute de aire ni en el ventilador. Podria daar la bomba de calor y occasionarle lesiones.
-En caso de un funcionaamento anomalo de la bomba de calor, desconectela inmediamente de la corriente ypongase en contacto con un technician professional.
Se recomienda encarecidamente colocar un protector alrededor de la unidad para mantener a los niños alejados de la bomba de calor.
La bomba de calor de ser connectada a la corriente por un electricista autorizzato. (230V 1ph o 400V 3ph)
Important—Aúnque la bomba de calor está aislada electrificamente del resto de la unidad, esta únicamente impide el paso de electricidad hasta o desde el agua de la piscina. Es necesario conectar a la unidad a una toma de tierra para protegerle a usted本身就是 cortocircuitos que能把 producirse bajo de la unidad. Realice una connexion adeuca a la toma de tierra.
Compruebe si el voltaje de la red electrica se corresponde con el voltaje de funcionaimiento de la bomba de calor antes de conectar la unidad.

230V/1ph/50Hz

380-400V / 3ph / 50Hz
| Modelo | Code | Voltaje (volt) | T3/valor C (A) | Corriente nominal (A) | Diámetro del cable (mm²) para longitudinal max de 20metros |
| EVOLine 6 | 66069-MOD | 220-240 | 10 | 4.5 | 2 x 1.5mm² + Tierra |
| EVOLine 10 | 66070-MOD | 220-240 | 16 | 7.3 | 2 x 2.5mm² + Tierra |
| EVOLine 13 | 66071-MOD | 220-240 | 16 | 8.2 | 2 x 2.5mm² + Tierra |
| EVOLine 15 | 66072-MOD | 220-240 | 16 | 9.5 | 2 x 6mm² + Tierra |
| EVOLine 17 | 67405-MOD | 220-240 | 20 | 11.4 | 2 x 6mm2 + Tierra |
| EVOLine 20 | 66073-MOD | 220-240 | 25 | 15.9 | 2 x 6mm² + Tierra |
| EVOLine 25M | 66074M-MOD | 220-240 | 25 | 16.8 | 2 x 6mm2 + Tierra |
| EVOLine 25 | 66074-MOD | 380-400 | 16 | 7.1 | 4 x 2.5mm² + Tierra |
| EVOLine 35 | 66075-MOD | 380-400 | 16 | 10.1 | 4 x 2.5mm2 + Tierra |
Para la connexion de la bomba de agua, por favor, instale un contactor CA externo (no incluido en la bomba de calor).
Véase p. 204 - 207
1.9 Primera puesta en marcha
Nota- Para que la unidad caliente la piscina (o el spa), la bomba de filtracion debe funciona ar de tal manera que el agua pueda circular a trovés de la bomba de calor. Sin esta circulacion, la bomba de calor no se pondra en marcha.
Cuando haya realizado y comprobado todas las conexiones, siga los pasos siguientes:
1). Encienda la bomba de filtración. Compruebe si hay alguna fuga.
2). Conecte la unidad al suministro electrico y presione la Tecla ON/OFF del panel de control electrónico. La unidad se pondra en marcha cuando haya transcurrido el tiempo de retardo.
3). Cuando launidad lleve funciona un par de horas, compruebe si el aire que sale de launities es más frío que la temperaturea ambiente.
4). Compruebe el rendimiento del conmutador de flujo de lasuma de forma: con la unidad en marcha, apague la bomba de filtracion.
La unidad deben desactivarse automatistically.
5). Launidad y la bomba de filtración tiene que estar en marcha 24 horas al día hasta que se alcance la temperatura descada. Una vez alcanzada la temperatura establisha, launidad se apagará automatistically. Mientras la bomba de filtración está en marcha, launidad se reinciarda automatistically cuando la temperatura de la piscina bajo más de un 1^ por debajo de la temperatura fjada.
Dependiendo de la temperatura inicial de la piscina y de la temperatura del aire,可以更好 tardar various días en alcanzarse la temperatura del agua的愿望. Cubrir la piscina可以使 reducir drástamente este periodo.
Flujostato — launidad está equipada con un commutador de flujo que se enciende cuando hay suficiente agua fluyendo por launidad y se apaga cuando el flujo de agua esblemado bajo.(P.ej. si se apaga la bomba de filtracion).
Retardo — launidad vendepipada de series con un retardo inicial de 3mnitos para proteger los componentes electricos y los contactos. Transcurrido dicho tiempo de retardo, launidad se reinicia automatically. Incluso una breve interruptacion del suministro electrico activaré el retardo inicial e impederá que launidad se inicia inmediamente. Otras interruptiones del suministro electrico durante el periodo de retardo no tendrán efectos sobre la cuenta atras de 3mnitos.
1.10 Condensation
Cuando el agua de la piscina se haya calentado mediante la bomba de calor, el aire entrante se habra enfiñ un poco, lo que pueda occasionar condensación en las aletas del evaporador. Los volumenes de condensación能把 alcanzar various litros por hora en conditiones de humedad atmoférica elevada. En occasions este se interpreta erroneamente como fuga de agua.
2. Control de la bomba de calor
2.1 Manejo de la pantalla de control
2.1.1 Ilustración de la pantalla de control:

Cuando la bomba de calor está connectada a la corriente, el controlador muestra una pantalla completa en la que se indica que ya está connectada la unidad. Si la conexión falla en 10segundos,compruebe las conexiones entre el cable de communicated y la pantalla de control, o Cambie la pantalla de control por other.
Funciones de los botones:
Botón: interruptor ON/OFF para activar o desactivar la bomba de calor.
Botón TIMER (TEMPORIZADOR): el botón Timer enciende o apaga el temporizador.
Botón MODE (MODO): para Cambiar entre modo calefacción, refrigeración y automatístico.
Para introducir la configuracion de paramedros y confirmar los ajustes.
Botones “+” “-”: para augmentar o disminuiR el valor.
Definisión de los iconos:
-- icono de calefaction, muestra que la bomba de calor está en modo calciefacion.
--icono de refrigeracion, muestra que la bomba de calor está en modo refrigeracion.
--icono automatico, muestra que la bomba de calor está en modo automatico.
--icono de alarma, muestra la alarma del sistema
--icono de bloqueo del teclado, muestra que los botones de la pantalla de control estábnbloqueados.
--serial de wifi.
Note: 1. La bomba de calor no está equipada con un calentador eléctrico interno, solo proportiónal el terminal para connexion externa.
- La velocidad del ventilador se controla automatistically por la temperatura ambiente, no funciona manualmente.
2.1.2 Encendido/apagado (ON/OFF) de la bomba de calor
Pulse el boton 5S para encender la bomba de calor.
Cuando la bomba de calor ya se haya encendido, se iluminaran todos los iconos de los componentes que esténactivados y se做不到a POWER en el centro de la pantalla para indicar que el systeme está enfuncionamiento.
Figura 2-2 mueira la bomba de calor en espera y la figura 2-3 mueira la bomba de calor en funciona bajo el flujo de agua, cuando que la temperatura de lacke ha mueira la temperatura del agua de returno.

Figura 2-2 Figura 2-3
2.1.3 Comooniando
Pulse el botón MODE para selecciónar el modo automático, calcfacción o refrigeración, se iluminará el icono correspondiente para indicar que la bomba de calor está en modo automático
△,calefacionoigeracion.



Figura 2-4
2.1.4 Ajuste de la temperatura del agua deseada
- Primero seleccione el modo descado: automatico, calefacion o refrigeracion.
- Tanto si la bomba de calor está en esperas como en funciona bajo, pulse “+” o “-”, la pantalla做不到 lo calma.
- A continuación cambie la temp. del agua moviendo “+” o “-” según sea necesario.
2.1.5 Comprobación y ajuste de paráMETROS
Cuando la bomba de calor esté en esper, pulse el botón MODE durante 5 segundos; la pantalla做不到 el número del parámetro con el valor parpadeando al unisono.
Presione los botones "+" y "- para comprobar la configuracion de paramedros.
Selección el parámetro deseado y pulse el botón MODE para reajustar el parámetro. El número de parámetro se mantiene bajo cuando que el valor del parámetro continua parpadeando.
Pulse los botones "+" y "- paraJKLM valor. Presione el boton MODE para confirmar la configuracion.
Si no pulsa ningún除外 botón de la pantalla en 2关键时刻, volverá a la interfaz principal automatistically. Véase la tabla de parámedros para Obtener más información.

Figure 2
Nota: los parámetros UNICAMENTE pueda Cambiarse en modo en espera!
2.1.6. Configuración de la hora
Pulse el botón TIMER 5S en una parada rápida para activar la configuración de la hora.
Cuando los nombres de la hora parpadeen,可以更好earlos botones ^ 一 + ^ 一 o"-para pagar los digitos de la hora. Presione el boton TIMER para confirmar la configuracion de la hora.
Los dígitos de los Minutes comienzan a parpáear una vez confirmados los dígitos de la hora; pulse “+” o “-” para hacer los dígitos de los Minutes. Pulse el botón TIMER para confirmar la configuración de关键时刻.
2.1.7 Configuración encendido/apagado del temporizador
Pulse el botón TIMER para introducir la configuración del temporizador TIMER 1.
Los datos de la hora parpádarán+junto con el icono ON,utilice“+”y“-”para ajustar la hora de encendido. Confirme el ajuste de la hora del temporizador pulsando el botón TIMER.
Los Minutes comenzaran a parpadear una vez confirmado el ajuste de hora, utilise "+" y "- paraJKLM.
Confirme el ajuste de horas del temporizador pulsando el boton TIMER.
Presione el botón TIMER, y a continuación el botón MODE. Parpadeará la seals “ ”, cuando pulse el botón "+" paracaeir a TIMER 2 o TIMER 3.
Los datos de la hora parpádearán+junto con el icono ON, pulse ^ 十 + ^ 一 o ^ 一 para ajustar la hora de activación. Confirme el ajuste de la hora del temporizador pulsando el botón TIMER.
Los Minutes comenzaran a parpadear una vez confirmado el ajuste de hora, utilise "+" y "- para ajustarlos.
Confirme el ajuste de los Minutes del temporizador pulsando el botón TIMER.
Cuando esté configurada y confirmada la hora de encendido del temporizador, seactivara la hora de apagado del temporizador. Para establisher la hora de apagado del temporizador, siga los mismos pasos que para el encendido.
2.1.8 Cancelacion de la hora de apagado del temporizador
Si la hora de inicio está establecida para que sea la mesma hora de apagado, la funciona de apagado estará desactivada. La postal

Figura 2-6
2.1.9 Bloqueo del teclado
Pulse los botones "+" y "-" a la vez durante 5 segundos; se做不到 en pantalla el icono debloqueo. Pulselos al mesmo tiempo de nuevo para desbloquearlo.
Tabla-resumen de parámetros (1)
| Parámetro | Panel de control | Descripción APP | Intervalo | Predeterminada | Observación |
| F0/00 | Ajuste temp. refrigeración | Ajuste temp. refrigeración | 8~37°C | 12°C | Ajustable |
| F1/01 | Ajuste temp. calefacción | Ajuste temp. calefacción | 8~40°C | 28°C | Ajustable |
| F2/02 | Tiempo entre ciclos de descongelación | Tiempo entre ciclos de descongelación | 10~90 min. | 45 min. | Por técnico |
| F3/03 | Temp. evaporador. Inicio descongelación | Temp. evaporador. Inicio descongelación | -30~0°C | -7°C | Por工程技术 |
| F4/04 | Temp. evaporador. Fin de descongelación | Temp. evaporador. Fin de descongelación | 2~30°C | 13°C | Por工程技术 |
| F5/05 | Tiempo de descongelación | Tiempo de descongelación | 1~12 min. | 8 min. | Por工程技术 |
| F6/06 | N° de Sistema de refrigeración | N° de Sistema de refrigeración | 1~4 | 1 | Por工程技术 |
| F7/07 | Apagado del ajuste de memoria | Apagado del ajuste de memoria | 0 (No) / 1 (Si) | 1 (si) | Por工程技术 |
| F8/08 | Tipo de unidad (0=solo refrigeración/1=bomba de calor /2=calefaction El /3=agua calien | Tipo de unidad | 0~3 | 1 (bomba de calor) | Por工程技术 |
| F9/09* | Ajuste bomba de filtración (0=siemple en funciona/1=funciona 5 min./2 h) | Ajuste bomba de filtracion | 0~1 | 0 | Por工程技术 |
| F10/10 | Reinicio AUTOMÁTICO Refrigeración/Calefaction | Reinicio AUTOMÁTICO Refrigeración/Calefaction | 8~40°C | 28°C | Por工程技术 |
| F11/11 | Inicio-Parada temp. Delta | Inicio-Parada temp. Delta | 1~20°C | 2°C | Por工程技术 |
| F12/12 | N/A | N/A | N/A | N/A | N/A |
| F13/13 | N/A | N/A | N/A | N/A | N/A |
| F14/14 | N/A | N/A | N/A | N/A | N/A |
| F15/15 | N/A | N/A | N/A | N/A | N/A |
| F16/16 | Dirección valvula de 4 vias | Dirección valvula de 4 vias | 0 (calefaction) / 1 (refrigeración) | 0 | Por工程技术 |
| F17/17 | Protección anticongelación del agua, ajuste temp. ambiente | Aire anticongelante para agua | 0~15°C | 0°C | Por工程技术 |
| F18/18 | Protección anticongelación del agua. Ajuste temp. de agua entrante | Agua entrante para anticongelación del agua | 2~14°C | 4°C | Por工程技术 |
Tabla de parámetros generales (2)
| Parámetro | Pantalla de control | Descripción APP | Rango | Predeterminada | Observaciones |
| F19/19 | Ajuste de temp. de entrada/salida de la protección contra sobrecalentimiento con intercambio térmico (para reducir flujo de agua) | Ajuste protección sobrecalentimiento | 3~20°C | 5°C | Por técnico |
| F20/20 | Ajuste protección de temp. de entrada/salida de agua (solo en modo refrigeración) | Protección on refrigeración de entrada/salida | 5~20°C | 13°C | Por工程技术 |
| F21/21 | Protección de temp. de entrada de agua en modo calcfacción | Protección calcfacción agua | 20~90°C | 60°C | Por工程技术 |
| F22/22 | Retardo de inizio del compresor (tras inizio de la bomba de filtración) | Retardo inizio del compresor | 5~99S | 60S | Por工程技术 |
| F23/23 | Retardo de parada bomba de filtración (tras parada del compresor) | Retardo parada bomba | 5~99S | 30S | Por工程技术 |
| F24/24 | Ajuste temp. ambiente para inizio calefactor inferior | Inizio calefactor inferior | 0~20°C | 7°C | Por工程技术 |
| F25/25 | Ajuste temp. ambiente para combustirla velocidad del ventilador | Ajuste temp. velocidad ventilador | 5~40°C | 27°C | Por工程技术 |
| F26/26 | Cambiary Fahrenheit/Celsius(0=C/1=F) | Fahrenheit/Celsius | 0(C)/1(F) | 0 | Por工程技术 |
| F27/27 | Restablecer ajustes de fibrica | Restablecer ajustes de fibrica | 0(Restablecer)/1(Ajuste actual) | 1 | Por工程技术 |
Observaciones: paracaeir elajeste que viene predeterminado de fabrica a través del Telefono se necesita un contraseña que solo está disponible para el technician.
- Funciona 5min / 2h= bomba de filtracion funciona 5min cada 2 horas comprobando la temp. de entrada, funciona a 5min , en este periodo ignorear el conmutador de flujo.
** (0=manual, en modo manual está activados los parámedros 13 y 14 /1=automático, en modo automático el parámetro 13 está desactivado, solo son validos los parámedros 12 y 14).
Tabla de values de medicación del sistema (2)
| Parámetro | Descripción | Rango | Observación |
| T0 | Temp. entrada del agua | -9~99°C | Valor de medicación |
| T1 | Temp.ittersa del agua | -9~99°C | Valor de medicación |
| T2 | Temp. serpentin del evaporador | -9~99°C | Valor de medicación |
| T3 | Temp. ambiente | -9~99°C | Valor de medicación |
| T4 | Temp. del gas de returno | -9~99°C | Valor de medicación |
| T5 | Elec. válvula de expansión | 10~50(1=10P) | Valor de medicación |
| T6 | No se usa | -9~99°C | Valor de medicación |
| T7 | No se usa | -9~99°C | Valor de medicación |
Observaciones: ^ = ^ p.ej. 0^ = T0^
2.2. Funcionamento del controlador de la EVOLine AstralPool APP
2.2.1 Principio de funciona del control de la APP Requisitos para sistemas Android:
- Version del sistema sobre 2.3.7 (2.3.7 no incluido).
2.Resolucion 800^*480 y superiores.
3.APK 40M y encima, la tarjeta del TF o construir-en almacenimiento.
4.Exigir el sistema que quedan 100 MB de almacenimiento.
Requisitos para iPhone iOS problema:
- Para la version del Sistema ios 8.x y superiores.
- Para el iphone 4s y ultimos.
- Por lo menos 40M de almacenimiento de informacion en el téléphone.

2.2.2 Configuración de red.
1) Descargue la APP "BOMBA DE CALOR ASTRAL POOL" e instalcta.


2) Asegürese de que su téléphone está conectado a su modulo WIFI.

3) Inicia la bomba de calor y pulse al mesmo tiempo el botón "-" y el botón "TIMER" en la pantalla de control durante 3segundos para activar la pantalla de control WIFI. El icono WIFI comienza a parpaear y busca la red WIFI más cercana.

4) Clique el icono "Astral Pool" e inicielo.


5) Clique el botón "+" y selección "nuevo dispositivo".
Con el nombre de WIFI conectado que aparece, introduzca la contraseña del WIFI y pulse "Buscar". Le llevará como máximo 120segundos conectar la pantalla de control a工程技术 del modulo WIFI conectado.
Cuando el icono de WIFI permanezca activado (ON), ya está configurada la connexion entre su téléphone y la pantalla de control.


6) Introduzca la contraseña que viene por defecto en el dispositivo, "123456", y pulse "Cólico de barras" para escanear el número de series de la bomba de calor que está bajo de la placá de datos en el panel lateral de la bomba de calor.
Ponga el número de series bajo el area de escaneo y asegúrese de que la linea roja de escaneo está sobre el número de series.
En cuando se haya escaneado el número de série, pulse "confirmar" para acceder a la interfaz principal. Aparecerá un recordatorio de cambio de restrasoña. Establisha la nuevo restrasoña y le redirigirá a la página de operaciones.




;Ya está configurada la connexion entre su bomba de calor y la APP!
Una vez configurada la connexion, tambiénouldautilizarlaAPPpor internet, pero ten en cuesta que para configurar la connexion debe ser un modulo WIFI!
2.2.3 Funcionamento de la APP
1). Ilustración de la página de operaciones.

2). Como encender/apagar la bomba de calor.
Clique el botón para encender/apagar la unidad.
3). Comoonian de modo
Pulse para seleccionar el modo automatico (inteligente), calefaction o refrigeracion.
4). Como configurar la temperatura del agua deseada
Clique para modifier la temperatura del agua.
5). Como configurar el temporizador
a.Clique para acceder a la pagina del temporizador;
b. Clique "Timer On", mueva los númeroos arriba y abajo para establecer la hora de encendido del temporizador.
c. Haga lo mismo para fjar "Timer Off".
d. Porultimate, clique "guardar"para confirmar.
e. Elultimate Encendido/Apagado del temporizador se做不到asimismo en la pagina de operaciones.
f. Se pueda configurar hasta un máximo de 3 temporizadores.



6). Como comprobar los datos del estado de funcionaiento
En el modo en funciona o en expectsa, pulse para probar el valor de medicacion del systemay los detalles de funciona.


7). Comocaejar la configuracion de paramedros
(Se requires contraseña paraonian los ajustes que vienen predeterminados de fabrica, solo disponibles para技术和cricas). Introduzca la contraseña技术水平 para acceder a la pagina de configuracion技术水平.



8). Como renombrar el dispositivo.




9). Comoonianlacontrasenda de usuario


3. Sistemas de proteccion
3.1 Conmutador de flujo de agua
Equipada con el commutador de flujo, la bomba de calor no funciona para cuando la bomba de filtracion no está marcha (y el agua no está circulando).
Este planta impide que la bomba de calor caliente unicamente el agua presente en la propia bomba de calor. La proteccion también detiene la bomba de calor si se corte o se detiene la circulacion de agua.
3.2 Proteccion contra alta y baja presion del gas refrigerante
La proteccion frente a alta presion garantiza que la bomba de calor no se dae en caso de sobrepresuracion gas. La proteccion frente a baja presion emite una sealswhen hayuna fuga de refrigerante por los conducto y la unidad no puebe seguir funcionando.
3.3 Proteccion contra sobrecalentamento del compresor
Esta proteccion impide que el compresor se sobrecaliente.
3.4 Control de descogelación automática
Cuando el aire es muy humedo y frio, pueda formarse hielo en el evaporador. En ese caso, aparece una final de hielo que aumento cada vez más a medida que la bomba de calor siga funciona. Cuando la temperatu del evaporador haya bajo得多, se activara automatistically el control de descongelacion, que invertira el ciclo de la bomba de calor deforma que el gas refrigerante caliente fluya a工程技术 del evaporador durante un breve periodo de tiempo paradescendingarlo.
3.5 Diferencia de temperatura entre flujo de agua entrada y saliente
Durante un funciona normal de la bomba de calor, la différence de temperatura entre el agua entrante y saliente se aproximará a 1 o 2^ . En caso de que el commutador de presión no funciona y de que el agua d circular, el sensor de temperatura que realiza un seguito del agua saliente detectará siempre un aumento de temperatura. Tan pronto como la différence de temperatura entre el agua entrante y la saliente supere los 13^ bomba de calor se apagará automatistically.
3.6 Desconexión por baja temperatura
Si durante la refrigeracion la temperatura del agua saliente llega a 5^ o menos, la bomba de calor se apagar automatically hasta que se alcance de nuevo o se supere una temperatura del agua de 7^ .
3.7 Proteccion anticongelante durante el invierno
Esta proteccion solo可以选择 activarse si la bomba de calor está en modo EN ESPERA.
3.8 Primera proteccion anticongelante
Si la bomba de calor controla la bomba de filtracion (independiente del valor para el parametro 9) y la temperatura del agua se encuesta entre 2y4^ , y la temperatura del aire está por bajo de 0^ , la bomba filtracion se encenderá automatistically para impeder que el agua se congele en las tuberías.Esta proteccion se desactiva cuando la temperatura vuela a;aumentar.
3.9 Segunda proteccion anticongelante
Si la temperatura del agua cae aún más, es decide, por debajo de 2^ (durante largos periodos de congelación), bomba de calor comenza a functionar para calentar el agua hasta que la temperatura se aproxime a 3^ . Cuase alcanza esta temperatura, la bomba de calor se detiene, pero la protección anticongelante continua activa para que cambien las conditiones.
4. Dirección
4.1 Quimica del agua de la piscina
Debe prestarse especial atencion al equilibrio quimico del agua de la piscina. Los values del agua de la piscina siempre deben hacer en los siguientes limites:
| Min. | Máx. | |
| pH | 7,0 | 7,4 |
| Cloro libre (mg/l) | 0,5 | 1,2 |
| TAC (mg/l) | 100 175 | |
| Sal (g/l) | 6 |
Importante: si no se cumplen these limits, la garantia quedar a anulada.
Nota: superar uno o más de这些 limites pueda darar la bomba de calor sin posibilidades de reparación. Instale el equipo de tratamiento para piscinas (p.ej. sistemas de dosificacion de produits químicos) después de la calidad de agua de la bomba de calor, sobre todo si los produits químicos seañaden automatistically al agua (p.ej. sistemas de dosificacion automatica de produits químicos).
Debería instalarse, asimismo, una valvula antireturno entre la calidad de la bomba de calor y el equipo de tratimiento de agua para impeder que los productos fluyan de nuevo por la bomba de calor si la bomba de filtración se detiene.
4.2 Hibernación de la bomba de calor
Importante: si no se adoptan las precauaciones necessarias para la hibernacion pueda danarse la bomba de calor y quedar anulada la garantia.
La bomba de calor, la bomba de filtración, el filtro y los conductos deben estar protegidos en zonas donde la temperatura puedadescending por debajo del punto de congelación. Evacúe toda el agua de las bombas de calo siguiendo这些东西 pasos:
- Desconecte el suministro electrico de la bomba de calor.
- Cierre por completing el suministro de agua de la bomba de calor.
- Desconecte los accesos de connexion de entrada y calidad de agua de la bomba de calor ycede que el agua se drene fuera de la unidad. Asegúrese de que sale toda el agua de la bomba de calor.
- Vuelva a colocar, sin aprearlos, los accesos de connexion de entrada y calidad de agua a la bomba de calo para impedir que se acumule sociedad en los conductos.
Nota: si decide usar la proteccion anticongelante integrada noiene queayaras precauaciones.
4.3 Reinicio de la bomba��és del invierno
Si ha vaciado la bomba de calor para realizar la hibernación, siga los pasos que constan a continuación para reiniciarla en primavera:
- Primero compruebe que no hay sucidad en los conductos y que no hay problemas estrcturales.
- Compruebe que los conductos de entrada y calidad de agua está bien susertos. Compruebe que la "entrada de agua" y "salida de agua" son correctas conforme a las etiquetas de la bomba de calor. (salida de agua de la unidad de filtracion = entrada de agua en la bomba de calor).
- Inicie la bomba de filtración para,iniciar el flujo de agua por la bomba de calor. Ajuste el by-pass para q haya suficiente agua fluyendo a技术水平 de la bomba de calor. Por lo general, en sistemas de filtración(PC),el by-pass pueda estar cerrado,de tal forma que toda el agua que circulaallaTraves de la bomba de calor.
- Vuelva a conectar el suministro eletrico a la bomba de calor y encienda la bomba.
4.4 Comprobación
Nuestras bombas de calor se han construido y desarrollado para durar是多么 tiempo si se instalan correctamente y pueda usar en conditiones normales. Es importante que realice comprobaciones periodicas si quiere que su bomba de calor funciona efectivamente durante muchos años. A continuación le-ofrecemos的一些 recomendaciones para garantizarunas conditiones optimas de funciona bajo la bomba de calor.
1). Asegürese de que se pueda acceder fácilmente al panel de servicios.
2). Mantenga el area que rodea la bomba de calor libre de residuos organicos.
3). Pode la vegetacion alrededor de la bomba de calor para que haya suficiente espacio libre alrededor de la bomba.
4). Retire los aspersores que estén cerca de la bomba de calor para evaporar que la danen desde arriba. Instale e drenaje apropiado.
5). Asegürese de que el agua de lluvia no cae directamente encima de la bomba de calor desdealgún tejado. Instale el drenaje apropiado.
6). No use la bomba de calor si se ha inundado. Póngase en contacto inmediamente con un technician oficial para que inspeccione la bomba de calor y realize las reparaciones(OPORTanas.
Mientras la bomba de calor está en marcha pueda producirse condensacion.Esta agua de condensation puede evaporarse a工程技术 de la abertura de la cubeta de la base de la unidad. La calidad de agua de condensationAAPortará cuando la humedad sea alta. Elimine la sociedad que pueda bloquear la calidad de agua de la cubeta inferior. Puede generarse de 5 a 20 litros al dia de agua de condensation cuando la unidad está en marchase genera mas condensation, detenga la bomba de calor y espere durante una hora antes de comprobar sirealmente existe una fuga de agua (mantenga en functionamento la bomba de filtracion).
Nota: como averigar rápidamente si la corriente de agua se debe a la condensación. Desconecte la unidad y mantenga la bomba de la piscina en marcha. Sidea de salir agua, se trata de condensación. UNA MANERA INCLUSO MÁS RAPIDA ES ANALIZAR EL CLORO DEL AGUA DRENADA. Si no se detecta cloro, el agua drenada es的结果ado de la condensación.
Asegürese, asimismo, de que los conductos de entrada y calidad de aire no estén obstruidos, e impida que el a que sale entre de nuevo inmediamente. (Es importe disponible de un espacio min. de 2 m en la calidad de aire la bomba de calor).
5. Mantenimiento e inspections
5.1 Mantenimiento
√Compruebe la entrada de agua y el drenaje a dato. El flujo de entrada de agua y aire en el sistemas del ser suficiente para que su functionamento y fiabilitad no se vean comprometidos. Limpie el bajo de la pisc periodicamente para evaporar dañar la unidad como consecuencia de la obstruccion del bajo.
√ El和地区 que rodeca la unidad de ser espacios y estar bien ventilada. Limpic los laterales de la bomba de calor regularamente para mantener un buena intercambio de calor y ahorrar energia.
√Compruebe si todos los procesos de la unidad estan operativos y preste especial atencion a la presion de funcionamento del systema de refrigeracion.
Compruebe el suministro electrico y las conexiones de cables periodically. Si la unidaddea de configurar con normalidad o si nota algo olor procedente de un componente electrico, Solicite la reparacion o el reemplazoopportunos.
√Ademásdefería purgar el agua si la unidad no funciona durante un periodo de tiempo prolongado. Comprue todas las partes de la unidad detenidamente y llene el sistemas por completeo con agua antes de encenderlo de nuevo tras la purga.
Por favor, siga las instrucciones de mantenimiento para el gas refrigerante de acuerdo con el Reglamento (UE) no 517/2014
5.2 Guía de resolución de problemas
Una instalación Incorrecta puede provocar una sobrecarga electrica, lo que podra occasionar la muerte o lesiones graves aDSLAs, instaladores o tercero por descarga electrica y, ademas, también peut provocar daños a la bomba de calor.
NO intente modifier la configuración interna de la bomba de calor.
- Mantenga las manos y elleo alejados de las hojas del ventilador para evaporar daños.
- Si no está familiarizo con su sistemas de filtracion de piscinas y su bomba de calor:
a. No intente realizar ajustes ni mantenimiento sin consultar con un distribuidor, un profesional de piscinas o un contratista de aire acondicionado.
b. Lea integramente el manual de instalacion antes de使用者, realizar el mantenimiento o realizar ajustes en la unidad.
c. Espere 24 horas tras la instalacion antes deponer en marcha la bomba de calor para evaporar dañar el compresor. (Si la bomba de calor se ha transportado y llegado todo el tiempo con los pies hacía abajo, pueda ponerla en marcha de inmediato).
Note: apague la corriente antes de realizar el mantenimiento o las reparacionesopportanas.
OBSERVACION IMPORTANTE: si no pueda resolver un mal funciona imeditamente, con el fin de analizar el problema necessitaremos conocer el mensaje (código de error) que aparece en la pantalla de control, asi como los values de configuración (parámetros 0-A). Asimismo, necessitaremos saber el estado de la bomba de calor: la temperatura ambiente, temperatura de agua entrada / saliente, si sale aire bajo de la bomba de calor, si la rejilla (evaporador) está fria o si hay hielo en la bomba de calor.
Tenga está información a mano cuando llama al service de atencion al cliente (describales el problema).
En las siguientes páginasacesnará un resumen de losDistinctostipsodeerroresquepden producirse,undo con instrucciones acerca de como resolverlos.
| Problema : | La bomba de calor no funciona. | |
| Observaciún: | La pantalla no se ilumina y el ventilador/compresor no genera ningún sonido. | |
| Posible causa | Solutación | |
| No hay suministro electrico. | Compruebe el suministro electrico (cableado, fusibles...). | |
| Problema: | La bomba de calor funciona con normalidad, pero no calienta nada o no lo suficiente. | |
| Observación: | La pantalla muestra la temperatura, pero no aparecencottiges de error. | |
| Posible causa | Solutación | |
| 1. Capacidad insufiente de la bomba de calor en proportionsal tamaño de la piscina. | 1. Instale un modelo amargo de u另一边 bomba de calor. Cubra la piscina para limitar la perdida de calor. | |
| 2. El compresor funciona, no así el ventilador. | 2. Compruebe el cabledo cléctrico del ventilador. Cambic motor del condensador o del ventilador, si fuera necesa | |
| 3. El ventilador funciona, no así el compresor. | 3. Compruebe el cableadoctrico del compresor. Cambie e condensador o el compresor si fuera necesario. | |
| 4. La bomba de calor no se ha colocado en unójeito. | 4. Compruebe que hay suficientecirculación de aire (veas el manual para obtenárdestalles). | |
| 5. Elajuste de temperatura es deficiente. | 5. Establezca la temperatura correcta. | |
| 6. Elby-pass no estajustado. | 6. Llame a un instalador para que reajuste el by-pass. | |
| 7. Se forma demasiado hielo en el evaporador. | 7. Llame a un instalador para que compruebe la configuración de control de descogelociautónáica | |
| 8. No hay suficientefreigerante. | 8. Llame a un先进技术pecialista en refrigeración para que compruebe la bomba de calor. | |
| Problema: | La bomba de calor funciona con normalidad, pero el agua se enfiña en lugar de calentarse. | |
| Observación: | La pantalla muestra la temperatura, pero no aparecen edigos de error. | |
| Posible causa | Solutación | |
| 1. Ha selecciónado el modo Incorrecto. | 1. Verifique los parámitros, selecciónce el modo correcto. | |
| 2. El controlador no funciona. | 2. Compruebe el voltaje del cableado electrico conectado a la válvula de 4VAS. Si no hay corriente, cambie el controlador. | |
| 3. La válvula de 4 vías no funciona. | 3. Compruebe el voltaje del cableado electrico conectado a la válvula de 4 vías. Si hay corriente, cambie el serpentin. Si el problema persiste, llama a un(PCNico especialista) en refrigeración para que compruebe la bomba de calor. | |
| Problema: | La bomba de calor no se detiene. | |
| Observación: | La pantalla muestra la temperatura, pero no aparecencottos de error. | |
| Posible causa | Solución | |
| 1. Elajuste de parámetros es incorrecto. | 1. Compruebe la configuracion de los parámetros y ajustelos si fuera necessario (parámetros solo por encima de la capacité de la bomba). | |
| 2. El commutador de presón no funciona. | 2. Compruebe el functionamento del commutador de presión apagando la bomba de filtración y reiniciándola. Si la bomba de calor no reacciona atraction,debe ajustar o reemplazar el commutador de presión. | |
| 3. Se ha producido un fallo electrico. | 3. Póngase en contacto con su instalador. | |
| Problema : | Hay una fuga de agua. | |
| Observaciòn: | Hay una considerable calidad de agua debajo de la bomba de calor. | |
| Posible causa | Solutución | |
| 1. Hay condensacióndeferido a humedad atmossfrica. | 1. No se requireslittle agua. | |
| 2. Hay una fuga de agua. | 2. Intente localizar la fuga y compruebcsi hay cloro presente en el agua. Si fuera el caso, debe reemplazar la bomba de calor temporalmente,mIENTAS LA REPARAN. | |
| Problema: | Se forma unaULDad anomalada de hielo en el evaporador. | |
| Observacion: | El evaporador está cubierto de hielo en su mayo. | |
| Posible causa | Solutación | |
| 1.No hay suficiente flujo de entrada de aire. | 1. Compruebe la ubicacion de la bomba de calor y retire la sociedad que pueda haber en el evaporador | |
| 2. La temperatura del agua es elevada. | 2. Si el agua de la piscina ya está suficientamente caliente (por encima de 29°C), la probabilitad de que se forme hielourrenta. Una posible option es disminuir la temperatura fijiada. | |
| 3. Ajuste incorrecto de control de descongelacion automatica. | 3.Compruebe la configuracion de la fundo de descongelacion jusqu con su instalador. | |
| 4. La valvula de 4 vias no funciona. | 4. Compruebe el voltaje del cableado electrico de la valvula de 4VAS. Si no hay corrente, cambie el serpentin. Si el problema persististe, solicite a un的专业 especialista en refrigeracion que compruebe la bomba de calor. | |
| 5. No hay suficiente refrigerante. | 5. Solicite a un的专业 especialista en refrigeracion que compruebe la bomba de calor. | |
| Controlador cablado | Protección 6n/Error | Comprobación | Solutión |
| P1 | Error del sensor de temp. del agua entrante | 1. Compruebe la connexion del sensor de agua entrada.2. Compruebe si el sensor está roto. | 1. Reconnecte el sensor.2. Cambie el sensor. |
| P2 | Error del sensor de temp. del agua saliente | 1. Compruebe la connexion del sensor de agua saliente.2. Compruebe si el sensor está roto. | 1. Reconnecte el sensor.2. Cambie el sensor. |
| P3 | Error del sensor de temp. del serpentin | 1. Compruebe la connexion del sensor de temp. del serpentin.2. Compruebe si el sensor está roto. | 1. Reconnecte el sensor.2. Cambie el sensor. |
| P4 | Erro del sensor de temp. del gas de returno | 1. Compruebe la connexion del sensor de temp. del gas returno.2. Compruebe si el sensor está roto. | 1. Reconnecte el sensor.2. Cambie el sensor. |
| P5 | Error del sensor de temp. ambiente | 1. Compruebe la connexion del sensor de temp ambiente.2. Compruebe si el sensor está roto. | 1. Reconnecte el sensor.2. Cambie el sensor. |
| P7 | Protección anticongelante invierno I | No se requiere ningunaTHING | |
| P7 | Protección anticongelante invierno II | No se requiereREENaTHING | |
| E1 | Protección de alta presión | 1. Compruebe si el commutador de alta presión está roto.2. Compruebe si hay obstruccion en el circuito de agua o si no hay suficienteflujo de agua.3. Compruebe si hay obstruccion en el circledel refrigeracion. | 1. Cambie el commutador de al ta presiñn.2. Elimine la causa de obstruccion o incremente el flujo de agua.3. Envíe la bomba de calor al distribuidor para que realice unacomprobación minuciosa. |
| E2 | Protección de baja presión | 1. Compruebe si el commutador de baja presión está roto.2. Compruebe si el nivel de refrigerante es bajo.3. La temp. ambiente y la temp. del agua entrante son demasiado bajas. | 1. Cambie el commutador de baja presión.2. Rellene con suficientefrigerante.3. Disminuya el flujo de agua.4. Envíe la bomba de calor al distribuidor para que realizuce unacomprobación minuciosa. |
| E3 | Error del commutador de flujo de agua | 1. Compruebe si los cables de connexión del commutador de flujo está en la posicióncorrecta.2. Compruebe el flujo de agua.3. Compruebe si el commutador de flujo está roto.4. Compruebe si la bomba de agua está en marcha. | 1. Reconnecte elcablado.2. Incremente el flujo de agua.3.Cambie el commutador de flujo.4. Repare o cambie la bomba de agua. |
| E4 | Organ de fases incorrecto (solo para elmodelo de 3 fases) | Organ de las fases incorrecto | Reconnecte las fases enelorden corred |
| E8 | Error de通讯ología | Compruebe la connexion | Reconnecte el cable de connexión. |
| E12 | Temp. calidad de agua por encima de protección baja | 1. Compruebe si hay atascos en el circuito agua.2. Compruebe si hay suficiente flujo de agl3. Compruebe si la bomba de agua ha sidofuncionar. | 1. Retire el ataso.2. Incremente el volumen de flujo de agua.3. Repareo cambie la bomba de agua |
| E13 | Temp. de salute de agua de proteccfrente a sobrecalentimiento | ||
| E14 | Protección por excesso de diferencia deftemp, entre entrada y salida de agua | 1. Compruebe si hay obstruccion en el circuito de agua.2. Compruebe si hay suficiente volumen de flujo de agua.3. Compruebe si la bomba de agua estáfuncionando. | 1. Elimine la Cause de obstruccion.2. Incremente el volumen de flujo de agua.3. Repare o cambie la bomba de agua |
6. VISTA DETALLADA
Véase página 193 - 201
Estaunidad tiene gas refrigerante en estado liquido y componentes electricos. Cuando la bomba de calor alcanza el final de su vidautil,debeserdesmontada porunacompaia autorizada oenviarseal punto limpio especificado porlasauthoridades locales.
Con el的对象 de reducir lacantidad de residuos de equipos electricos y electrónicos, evaporar los riesgos que pueda occasionar sus componentes, promover el reciclaje de equipos y el Reconocimiento de sus residuos, como determinar una gestión adequada que intente melhorar la eficacia de la proteccion del medioambiente, se han implementado una series de normativas aplicables a la fabricacion del producto, como otheras relacionadas con la correcta gestion medioambiental cuando se converten en residuos.
Tambien está previsto melhorar el comportamiento medioambiental de los agentes que intervienen en la vida u|util del equipo electrico y electrónico, como son los fabricantes, distribuidores, usuario y, especially,≦aquellos agentes directamente implicados en la gestion de residuos derivados de este equipo.
Śde el 13 de agosto de 2005, cuando quiera deshacerse de la unidad, tiene dos formas posibles de desecharlo:
- Si adquiere uno nuevo que sea del mesmo tipo oonga las mismas unidades que aqueel que quiere desechar, puedaentaragrselo Gratisamente al distribuidor.
- O puedeninger al punto limpio especificado por las autoridades locales.
Las unidades estan etiquetadas con el symbolo de un "contenor de basura con ruedas tachado con una cruz". Este symbolo indica la necessities de una recogida selectiva y diferenciada del resto de residuos urbanos. Es posible que este producto contenga materiales peligrosos que能把 tener efectos perjudiciales para el medioambiente o la salute de las personas.
PVC
El agente plastificante más utilizado en losDistinctos usos del PVC es di(2-etilhexil) ftalato (tambien conocido como DEHP).Los analisis realizados en diversos laboratorios demuestran que no presente riesgos para la salute de las personas en los niveles de concentracion en los que se usa en productos abadas, segunla informacion del organismo aleman BUA (Comite Consultivo Aleman sobre las Sustancias Quimicas Importantas para el Medioambiente) y la BGA (Autoridad de Salud Alemana), entre others. Los resultados de这些analisis, junto con los datos recopilados en estudios de biodegradation, confirman que el DEHP no pueda considerarse peligioso para el medioambiente. Todos los aditivos usados en las formulaciones PVC y, por lo tanto, en las aplicaciones de la industry alimentaria,stanperfectamente regulados tanto a niven europeo como español.
En Europa, la Directiva Comunitaria 90/128/UE, modificada posteriormente por la 95/3/UE. En España, el Real decreto 1125/1982 de 30 de Abril de 1982, posteriormente ratificado por el 1042/1997 de 27 de junio de 1982.
Los análisis de vida útul ("SLA") demuestran que el impacto medioambient del PVC equivale o incluo es más favorable que el de otros materiales.
A l'attention de nos clients
1.2 Principios de funciona


2.1.8 Cancelar Temporizador desligado
2.2.1 Principio de funciona do dispositivo de controlo APP
Requisitos para sistemas Android:
- Sistema versao acima 2.3.7 (2.3.7 nao incluo).
2.Resolucao 480^*800 acima.
3.APK 40m e supra, cartao do TF ou construir-no armazenamento.
4.Exigir que o Sistema ter restante 100 MB de armazenamento.
Requisitos para iPhone iOS sistemas:
- Para o Sistema ios versus 8. x e acima.
- Para o iphone 4s e os ultimos.
3.Pelo menos 40M de armazenamento restante no téléphone.

server = ; router = ; Network operation = servidor =; router =Funcionamento da rede
2).Como ligar/desligar a bomba de calor.
3).Como alterar o modo
Prima para seleccionar modo auto (inteligente), de aquecimiento ou arrefecimento.
4).Como configurar a temperatura da aguapretendida
Clique para modifier a temperatura da agua.
5).Como configurar o temporizador
9).Como alterar aPALAVRA-passedoutilizador


3.5 Diferença de temperatura entre entrada e saía de agua
Durante o funciona normal da bomba de calor, a referencia de temperatura entre a agua de entrada e a agua de saía variará entre aproximately 1 a°2. Caso o interruptor de pressão não funciona e a agua pare de circular, a sonda da temperatura que monitoriza a agua de saía detetará sempre um aumento na temperatura. Logo que a referencia de temperatura entre agua de entrada e agua de saía exceeda 13^ , a bomba de calor sera automaticamente desligada.
5.2 Guia de problemas
(ver da página 193 - 201)
Declaras bajo su unica responsabilitad que todas las bombas de calor del tipo: ASTRALPOOLHEAT Producidas a partir del 31/07/2008, independientelemente del numero de series, son conformes con: Direcva de seguridad de maquinas 2006/42/CE.
Directiva de compatibilidad electromagnética EMC 2014/30/UE, y sus modificaciones.
Directiva de equipos de baja tensión LVD 2014/35/UE.
Directiva sobre el ruido producido por migacinas para uso exterior 2000/14/CE y su corrección con la Directiva 2005/88/CE.
Directiva sobre restricciones a la uso de determinadas sustancias peligrosas en aparatos electricos y electrónicos 2011/65/EU (RoHS).
Directiva sobre residuos de aparatos electricos y electrónicos 2012/19/UE (RAEE).
Real Decreto 208/2005 & 219/2013 sobre aparatos electricos y electronicos y la gestion de sus residuos. Reglamento relativ to al registrar, la evaluacion, la autorizacion y la restric tion de las sustancias y preparados quimicos CE N° 1907/2016 (REACH).
ManualFácil