UG 706080 - Förvaringsmöbler MIELE - Gratis bruksanvisning och manual
Hitta enhetens manual gratis UG 706080 MIELE i PDF-format.
Vanliga frågor - UG 706080 MIELE
Questions des utilisateurs sur UG 706080 MIELE
0 question sur cet appareil. Repondez a celles que vous connaissez ou posez la votre.
Poser une nouvelle question sur cet appareil
Ladda ner instruktionerna för din Förvaringsmöbler i PDF-format gratis! Hitta din manual UG 706080 - MIELE och ta tillbaka ditt elektroniska enhet i hand. På denna sida publiceras alla dokument som behövs för att använda din enhet. UG 706080 av märket MIELE.
BRUKSANVISNING UG 706080 MIELE
Flowmeter FM (delvis afsaltning)
Ledningsevnemåler LM (total afsaltning)
Aktivt miljøvern 145
Kassering av transportemballasjen 145
Kassering av det的游戏 apparatet. 145
Apne og lukke doren 146
Apne daren 146
Lukke doren 146
Patron for delvis avsalting med flowmeter
Gjennomströmningsmäler flowmeter FM (delvis avsalting)
Gjennomströmningsmäleren (sensor) ① mäler(OP) klargjort vann og viser det i flowmeteret FM (displayenhet) ②.
Harpiksen skiftes ut med ny engangsharpiks när den er oppbrukt.
Engangsharpiks aller kein regenererbar harpiks skal kasseres iht. forskriftene sammen med restavfall aller lignende industriavfall.
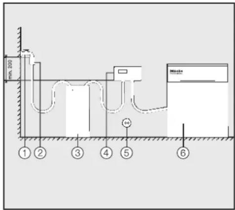
Veggmontering av flowmeter / konduktivitetsmäler
Displayene for visning av vannkvaliteten kan och plasseres på veggen utenfor skap UG 70-60/80.
Beskrivning av underbyggnadsskapet 186
Beskrivning av underbygnadsskapet 186
Extera DOS-moduler och processkemikalier 186
Vattenavhärdning 187
Delavsaltnings-patroner med flodesmatare 187
Helavsaltnings-patroner med ledvärdesmatare (modul for matning av ledvarde) 187
Sakerhetsanvisningar och varninger 188
Teknisk sakerhet. 188
Anvandning. 189
Barn i narheten 189
Hantering av uttjant underbyggnadsskap 189
Bidra till att skona miljon 190
Transportforpackning 190
Hantering av uttjant modul 190
Öppna och stänga luckan 191
Oppna luckan 191
Stanga luckan 191
Extera DOS-moduler och processkemikalier 192
Anvandaranvisningar 192
Byta ellera fylla pahbehallaren 192
Vattenavhärdning 193
Flödesmatare FM (delavsaltning) 193
Ledvärdesmätare CM (helavsaltning) 194
Anslutningsmolligheter 195
Ansluta patronen med skruvforslutting 195
Ansluta patron med snabbkoppling 195
Ansluta patronen till vattenatet och diskdesinfektorn 196
Luftapatronen 196
Satta in patronen 196
Demontera patronen 196
Tom patron LP 2800 196
Fylla pà tom patron LP 2800 med engängsharts 197
Oppna spannlocket 197
Fylla paharts 197
Vaggmontering av flodesmataren/ledvardsmataren 199
Underhäll 199

① LED für overvakning vid stängd lucka
② Apparat FM (delavsaltning), CM (helavsaltning)
③ DOS-moduler
④ Vattenanslutting med mätsträcka (delavsaltning) aller modul for matning av ledvarde (helavsaltning)
⑤ Avsaltningspatron
5-liters behällare med processkemikalier
Beskrivning av underbyggnadsskapet
Underbyggnadsskap UG 70-60/80 ar ett 70 cm högt underbygndsskap for 60 cm breda diskdesinfektorer avsett for forvaring av vattenavhärdningsystem for del-ller helavsaltning och/eller for process-kemikalier och externa doseringsystem.
External DOS-modulator och processkemikalier
Underbyggnadsskap UG 70-60/80 ar avsett for saker forvaring av processkemikalier och externa DOS-moduler.
Två 5-liters behällare och två doseringsystem DOS G 80/DOS K 85 kan forvaras i underskapet.
| DOS-modulerna ar er utrustade med en fyllnadssensor. Om miniminivån underskrids meddelas detta i diskdesinfektorns display. | |
| Vattenavhärddning | |
| I underskåp UG 70-60/80 kan också två vattenavsaltningspatroner med matsträckor och apparater forvaras. | |
| Delavsaltnings.patroner medflodesmätare | Vid delavsaltning overförs karbonathårdhet i kolsyra och vatten genom bindings av kalcium- och magnesiumjoner, genom vilken vatt-nets salthalt reduceras.Enflodesmätare visar när det ar dags att byta patron.- Vattendelavsaltningspatron TE P 2000är fylld med 12,5 liter harts.- Vattenhelavsaltningspatron TE P 2800är fylld med 19 liter harts. |
| Helavsaltnings.patroner med led-värdesmätare(modul for mät-ing av ledväre) | En helavsaltning avlågsnar alla salter och mineraler ur vattnet.Modulen for mätning av ledvärde visar AD-vattnets ledvärde, sommås i μS/cm (mikrosiemens per centimeter). På sä vis möllgörns enkvalitetskontroll av AD-vattnet.- Vattenhelavsaltningspatron VE P 2000är fylld med 12,5 liter harts.- Vattenhelavsaltningspatron VE P 2800är fylld med 19 liter harts.Patronerna ar fyllda med regenererbar harts som kan laddas om (regenereras) after forbrukning. Hela patronen kan skickas till en regenereringsstation für omladdning. |
| Den Första idrifttagningen av underbyggnadsskåp UG 70-60/80amt utbildning av och information till personer som sca användadet gös av Miele service eller Mieleauktoriserad service.Beakta bruksanvisingarna till vattenavsaltningspatronerna, ledvär-desmätaren (modulen for mätning av ledväre), flödesmätaren och diskdesinfektorn och särskilt)dä sakerhets- och varningsanvising-arna angäende hantering av processkemikalier. | |
Underbyggnadsskap UG 70-60/80 och det inbyggbara tillbehoret uppyller gallande sakerhetskrav. Ett felaktigt bruk kan medfora person- och sakskador.
Läs brauksanvisingen noga innan underbygnadsskåpet och det inbyggbara tillbehöret tas i bruk. Den innehäller viktig information om inbyggnad, sakerhet, användning och skötsel. Därigenom for-hindras olyckor samt skador på underbygnadsskåpet. Spara brauksanvisingen och overlämna den vid eventuellt agarbyte.
Teknisk sakerhet
Underbygnadsskap UG 70-60/80 och det inbyggbara tillbehoret fär endast tas i drift, underhällas och repareras av Miele service erler av en av Miele auktoriserad fackman. Ej fackmässigt utförda installations-, underhälls- eller reparationsarbeten kan medfora avsevärdarisker for användaren, for vilka Miele inte tar nagot ansvar.
Endast utbildad personal fár använda underbyggnadsskapet. De som använder underbyggnadsskapet maste regelbundet fä information och undervisas i hur man använder det.
Kontrollera att underbyggnadsskap UG 70-60/80 och det inbyggbara tillbehoret inte har nagra synliga yttre skador innan de tas i bruk. Ett skadat underbyggnadsskap fär inte tas i drift. Ett skadat underbyggnadsskap kan utgöra en fara for din sakerhet!
Ett skadat aller otatt underbyggnadsskap UG 70-60/80 ske omedelbart tas ur drift och Miele service aller en av Miele auktoriserad fackman informeras.
Nationella lagar om vattenanslutting maste foljas.
Användning
Vattnet i avsaltningspatronerna ar inget dricksvatten!
Underbyggnadsskap UG 70-60/80 och dess omedelbara närhet fär inte spolas av med vatten, till exempl med vattenslang eller hogtryckstvatt, for att rengöras.
Foratt undvika korrosionsskadorfarhöljetav rosfritt stalinte kommaikontakt med varken saltsyrahaltiga losninger erler angor.
Vid byte av harts fär endast kontrollerat och godkänt engångsharts användas.
Detta tillbehör fär endast anslutas till maskiner som Miele har god-kant.
Barn i narheten
Håll uppsikt over barn som befinner sig i narheten av underskap UG 70-60/80. Låt aldrig barn leka med underskapæp. Det finns bland annat risk for att barn kan bl instängda i underskapæp!
Barn fär inte använda underskap UG 70-60/80.
Hantering av uttjänt underbyggnadsskåp
Av sakerhets- och miljöskäl ska alla harts- och vattenrester toms mas under beaktande av gällande sakerhetsforeskrifter. Ta bort erler Förstör lucklaset sa att barn inte kan lasa in sig i underbyggnadsstkapet. Lämna direfter in underbyggnadsskapet UG 70-60/80 for fackmässigt omhändertagande.
Engangs- aller ej regenererbar harts ske hanteras enligt avfallsnyckel 190905 tillsammans med sopor uller motsvarande industriavfall.
Miele tar inget ansvar for skador som har uppstatt på grund av att sakerhetsanvisingarna och varningarna inte har foljts.
Transportförpackning
Förpackningen skyddar mot transportskador. Förpackningsmaterialen ar valda med hänsyn till miljön och ar darüber foråtervinningsbara.
Förpackning/emballage som Återförs till materialkretslroppet innebär minskad rāvaruförbrukning och mindre mängder avfall.
Uttjänta elektriska och elektroniskaprodukter innehäller i fönga fall material som kan äteranvändas. Men de innehäller även skadliga ämnen som ar södvändiga bestandsdelar for dess Funktion och sakerhet. Om södana ämnen hamnar i hushållsavfallet eller hanteras på fel sätt kan det medfora skador på mönniskors hölsa och på miljön. Kasta därfor på inga villkor den uttjänta modulen i hushållsavfallet.

Lämna därfor in uttjänta elektriska och elektroniskaprodukter till en Återvinningsstation.
Se till att det uttjanta underbyggnadsskapet forvaras barnsakert tills det lamnas in for omhändertagande.
Öppna luckan
Satt in nycken i laset och las upp luckan genom att vrida nyckeln motsols.
Nyckeln ar kvar i laset, nar det ar upplast, och fungerar som handtag for att oppna luckan.
Stanga luckan
Tryckigenluckan.
Vrid nyckeln medsols tills det tar stopp.
Nyckeln stöts ut med hjälp fjadermekanism.
Anvandaranvisningar

De externa DOS-modulerna doserar automatiskt flytande process-kemikalier i de olika programavsnitten.
Byta eller fylla pa behällaren
Fyll på processkemikalier i behällaren Near meddelande om detta visas i diskdesinfektorns display.
Fyll på behällarna i tid for att Förhindra att de blir helt tomma.
Ett doseringsystem som har blivit helt tomt maste avluftas före nasta programstart.
Beakta anvisingarna i diskdesinfektorns bra克斯anvising.
- Skruva loss doseringslansen och ta bort den. Lagg suglansen på ett underlag som ar latt att rengöra.
Fyll pãller byt behällare, satt in doseringslansen och skruva fast locket.

Anpassa doseringslansen till behällaren tills den har nätt botten pa den (beroende på modell).
Se till att dra slangarna utan veck.
Flödesmatare FM (delavsaltning)
Flödesmätaren ① mær mangden producerat vatten for det avsaltade vattnet och visar det i flödesmätaren FM ②.
Om den installda Abnahmemenge överskrids aller om det uppstår nagot fel tänds en optisk signal (LED) ③ och en akustisk signal ljuder.
Om avsaltningspatronen ar urladdad maste den bytas ut och laddas.

Patron TE P 2000 och TE P 2800:
Skicka patronen med regenererbar harts till en regenereringsstation for omladdning.
Patron LP 2800:
Byt ut hartset. En bruksanvisning medfoljer Mieles set E 316 for hartsbyte.
Ledvärdesmätare CM (helavsaltning)
Ledvärdesmodulen ① mær ledvärdet pa det helavsaltade vattnet och visar värdet i flödesmätaren ② inom området 0-199,9 μS/cm (mikrosiemens per centimeter). Pa sa vis möjiggörns en kvalitetskontroll av AD-vattnet.
När det definierade gränsvärdet uppnås eller om att fel uppstår visas en optisk signal (LED) ③ och en signal ljuder.
Om avhärdningspatronen ar Förbrukad maste den bytas aller regenereras.

Patron VE P 2000 och VE P 2800:
Skicka patronen med regenererbar harts till en regenereringsstation for omladdning.
Patron LP 2800:
Byt ut hartset. En bruksanvisning medfoljer Mieles set E 316 for hartsbyte.
Anslutningsmöljigheter
Skruva av skyddskapan till anslutningsstosen pa patronen.
Ansluta patronen med skruvforslutning

- Skruva fast slangarna på patronens anslutningsstos enligt fargmarkering,
"ingang" (rod) till "ingang" ②,
"H2O pur" (grön) till "utgang" ①.
Ansluta patron med snabbkoppling
Förett snabbt byte och anslutning kan patronen och slangarna utrustas med snabbkopplingar (extra tillbehör).
Vid Första monteringen ska hanen på snabbkopplingen skruvas fast på gängansluttingarna (in- och utgang) på patronen.
Vid Första idrifttagning ske tatheten kontrolleras.
Slangarna med respektive fãrgmarkering ske sattas fast pa patronens kopplingsstycke och tryckas ner tills det hors att den lases fast.
For att lossa på snabbkopplingen drar du ringen på änden av slangen uppåt och drar av slangen.
Ansluta patronen till vattenätet och diskdesinfektorn
Dra slangarna genom den därfor avsedda öppningen på baksidan av underskapet UG 70-60/80
- Set till att slangarna inte veckas när du drar dem.
■ Anslut slangen "H2O pur" (grön) till magnetventilen für AD-vatten respektive till AD-vattenslangen till diskdesinfektorn.
■ Anslut slangen "ingäng" (röd) till avständningskranen für kallvatten på uppställningsplatsen.
Viktigt
Vattentrycket (flödestrycket) mäste ligga mellan 250-1 000 kPa i overtryck (2,5-10 bar).
Vattentemperaturen fär inte overstiga 20^
Luftapatronen
- Oppna avluftningsventilen genom att vrida den motsols.
- Oppna avstängningsventilen for kallvatten önda tills vatten stiger upp ur avluftningsventilen.
Stäng avluftningsventilen.
Vattenavsaltningen ar nu driftclar.
Satta in patronen
Ställ in den anslutna patronen baktill i underskap UG 70-60/80.
Omradet framtil i kan anvandas for en reservpatron.
Demontera patronen
Stäng avstängningskranen for kallvatten.
Öppna AD-vattnets tappkran För manuell hantering, om sādan finns, dess:
- Oppna avluftningsventilen på patronen och låt vattenövertrycket sjunka.
Om det rinner ut vatten sa torka upp det med en trasa.
Skruva loss slangarna.
Genom att vanda upp och ner på patronen kan restvattnet rimna ut i ett avlopp.
Tom patron LP 2800
Patronen LP 2800 levereras tom och måste på plats fyllas med 19 liter engängsharts (se avsnittet "Fylla på tom patron LP 2800 med engängsharts").
Engångs- erer ej regenererbar harts ska hanteras enligt avfallsnyckel 190905 tillsammans med sopor eller motsvarande industriavfall.
For att på ett enkelt satt kunna fylla på och tömma patronen LP 2800 rekommenderas foljande extra utrustning, utöver patronen:
- Mieles originalset E 316 für byte av harts som bestär av ett 30 liters välvt fat med speciallock och tratt.
- 2 pasar med engangsharts for helavsalting E 315 à 10 liter med filterssack for det forbrukade hartset.
Fylla på tom patron LP 2800 med engängsharts
Den tomma patronen LP 2800 kan fyllas med harts bade for delavsalting och helavsaltning (E 315).
Oppna spannlocket

- Lossa på vingmuttern (håll i locket sö att det inte ramlar ner i patrønen).
Lyft bort spannbygeln.

- Oppna locket.
Fylla pà harts

Placera tratten i patronens pafyllningsöppning.
■ Klipp upp báda pásarna med engängsharts i ena hörnet och töm innehålet i patronen.
Rengör patronens pafyllningsöppning frän kvarvarande harts.
Satt sedan tillbaka locket. Hall fast locket pa avluftningsventilen och skruva fast det med spannbygeln och vingmattern.
Väggmontering av flödesmataren/ledvärdesmataren
Apparater for visning av vattenkvalitet kan också sattas fast på väggen utanfor underbyggnadsskap UG 70-60/80.
Vaggfaste medfoljer apparaterna.
Beakta turordningen for komponenterna vid alternatively montering:

Anslutningen av apparaten sker alltid bakom vattenavsaltningspatronen, i foljande turordning: vattenkran ① - Återsugningsskydd med ror-ventilation enligt DIN EN 1717 ② - vattenavsaltningspatron ③ - apparat FM/CM ④ - diskdesinfektor ⑥.
Elanslutningen ⑤ sker via stickpropp i ett jordat eluttag.
Underhäll
Underhäll av underbyggnadsskåp UG 70-60/80 sker inom ramen for
underhäll av diskdesinfektorn som görs av Miele service.
Manufacturer:
Miele & Cie. KG
EnkelManual