LEIHDC90SCEU - Exaustor de cozinha FALCON - Manual de utilização gratuito
Encontre gratuitamente o manual do aparelho LEIHDC90SCEU FALCON em formato PDF.
Perguntas dos utilizadores sobre LEIHDC90SCEU FALCON
0 pergunta sobre este aparelho. Responda às que conhece ou faça a sua.
Faça uma nova pergunta sobre este aparelho
Baixe as instruções para o seu Exaustor de cozinha em formato PDF gratuitamente! Encontre o seu manual LEIHDC90SCEU - FALCON e retome o controlo do seu dispositivo eletrónico. Nesta página estão publicados todos os documentos necessários para a utilização do seu dispositivo. LEIHDC90SCEU da marca FALCON.
MANUAL DE UTILIZADOR LEIHDC90SCEU FALCON
Manual de Instruções
INDICE
IT
Estas instruções de service aplican-se a variedos modelos de aparelhos.
E por isso, possivel que se encontrar descritas varias caracteristicas de equipoamento que nao dizem respeito ao seu aparelho.
INSTALACAO
- O fabricante declina toda e qualquer responsabilitadepelos danos decorrentes de una instalacao nao correcta ou feita nao em conformidade com as normas da boa的技术ica.
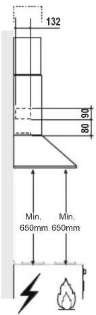
- A distência minima de segurarce entre a placde cozedura e o exaustor deve ser de 650~mm (alguns modelos podem ser instalados a uma alta inferior,numeros referem-se a pegada e instalacao).
- Verifique se a tensão da rede coincide com a指示a na placac decharacteristicas aplicada no interior do exaustor.
- Para os apareiros de Classe la, certifique-se de que a instalacao domestica garanta uma descarga correcta à terra.
- Ligue o exaustor a saida do ar aspirado'utilizing um tubo de diametro igual ou superior a 120mm . O percurso do tubo deve ser o mais breve possivel.
- Não ligue o exaustor a tubos de descarga de fumaça produzida porcombustão (caldeiras, lareiras, etc...).
- Caso no mesmo local sejam realizados quer o exaustor, quer apareiros não acontecimentos para corrente electrica (por exemplo, aparehos alimentados a gás), está preciso providencer uma ventilação suficiente do aposto. Se a cozinha não possuira a abertura que comunique com o exterior, providencia a sua realização para garantir a entrada de ar limpo.
USO
- O exaustor foi projectado para ser utilizado exclusivamente em ambientes domesticos, sentido a sua finalidade a de reduzir os odeores de cozedura. Não utilize o aparecido de maneira impropriaria.
- As chamas de forte intensidade não devem ficar descobertas quando o exaustor estiver a funciona.
- Regule sempre as chamas de maneira que não sobressaiam doundo das pane-las.
- Mantenha as frigideiras sob controlo durante o uso: o oleo excessivamente aquecido pode inflamar-se.
- No prepare alimentos flamejados sob o exaustor. Perigo de incendidio!
- Este aparecido não deve ser realizado por pessoas (incluindo crianças) diminuías psíquica, sensorial ou mentalmente nem por indivíduos sem experiencia e conheção, salvo se vigiados ou instruíos para'utilisation do aparecido por pessoas responsaveis pela respectiva segança.
- Ascriancies devem ser vigiadas no sentido de assegurar que não brinquem com o aparecido.
MANUTENCAO
- Antes de efetuar qualquer operacao de manutenao, desligue o exaustor tirando a ficha da tomada de corrente ou desligando o interruptor geral.
- Faça uma manutenção atenta e rápida dos filtros, respeitando os intervalos aconselhados (risco de incério).
- Para limpar as superficies do exaustor, é suficiente'utilizar um pano humido e detergente liquido neutro.
O símbolo não produits ou na embalagem indica que este produit não pode ser tratado como lixo dométrico. Em vez disso, deve ser entrega ao centro de recolha selectiva para a reciclagem de equipamento eletrico e electrónico. Ao garantir uma eliminação adequada deste produits, iráaabdar a evitart eventuais consequências negativas para o meio ambiente e para a saudé Pública, que, de outra forma, poderiam ser provocadas por um tratamento Incorrecto do produits. Para obter informações mais pormenorizadas sobre a reciclagem deste produits, contacte os serviços municipalizados locais, o centro de recolha selectiva da sua area de residência ou o estabelecimento onede acquiriu o produits.


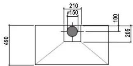
Dimensoes



Componentes
7.1 2 Suportes de fixação da estrutura do exaustor
7.2.1 2 Suportes de fixação da chaminé superior
11 8 Buchas
12a 8 Parafusos 4,2 x 44,4
12c 6 Parafusos 2,9× 9,5
12d 2 Parafusos M4 x 25
Qtd Documentação
1 Manual de Instruções

Perfuracao da parede e fixaao dos suportes

Marque na parede:
- uma红线 vertical até ao tecto ou ao limite superior, no centro da zona prevista para a montagem do exaustor;
- uma红线 horizontal a: 650~mm , no minimum, acima da placar do fogo para instalação sem fundo; à altera H (H=altura da parte visível do fundo), para instalação com fundo.
- Apoie o suporte 7.2.1 como indica, a 1 - 2mm de distancia do tecto ou do limite superior, alinhando o seu centro (entalhes) sobre a红线 de referencia vertical.
- Marque os centros dos furos do suporte.
- Apoie o所提供 7.2.1 como indica, X mm abaixo do primeiro所提供 (X = alteura da chamé superior que acompanha o exaustor), alinhando o seu centro (entalhes) sobre a LINHA de referencia vertical.
- Marque os centros dos furos do suporte.
- Apoie o suporte 7.1 como indica, a 109,5mm de distancia da linha de referencia vertical e 190mm acima da LINHA de referencia horizontal.
- Marque os centros dos furos do suporte.
- Repita a operação do lado oposto.
FUNDO (ACESSORIO DE OPÇÃO)
O[fundo deveser montado a nantes da montagem do corpo do exaustor e, se outilizar quiser fixa-lo contra a parede,quer superiormente,quer inferiormente,sera necessario monta-lo a alta correcta,antes da montagem das bases. Na medida em que se tratate de una operacao complexa,devera ser feita exclusivamente pelo instalador da cozinha ou por pessoal competente,que conheca todas as dimensoes finalis dos moveis.
Limitando-se apenas à fixação superior, proceda conforme indicado abaixo:
- Apoie o fundo em cima da base, introduzindo a folha inferior entre o plano superior e a pairede, centrando-o sobre a LINHA de referencia Vertical.
- Marque os centros dosodos furos da chapa superior.
- Com una BROCA de 0.8mm fure os pontos marcados.
- Introduza asbuchas11nosfuros.
Fixe os suportes,utilizando os parafusos 12a (4,2 x 44,4) incluidos nos acessórios. - Se disponible, fixe o dato, utilizing os parafusos 12a (4,2 x 44,4) incluidos nos acessórios.
Montagem da estrutura do exaustor
- Nos supoce 7.1, aperte os 2 parafusos 12d incluidos nos acessosros
Fixe a estrutura do exaustor aes suportes 7.1, centrando-a sobre a linha vertical. - Opere com os parafusos 12d, travahando por baixo do exaustor, para nivelar a estrutura do exaustor.

Ligações
SAÍDA DO AR PARA A VERSão ASPIRANTE
Para a instalação na Versão Aspirante, ligue o exaustor ao tubo de saídautilizando um tubo rigido ou flexível de 0150 ou 125 mm; esta escolha deve ser feita pelo instalador.
- Para a ligação com um tubo de 125 mm ,instale a flange de redução 9 na saía do corpo do exaustor e o anel 120-125 10 na flange.
Fixe o tubo com braçadeiras de aperto adequadas. O material necessário não é fornecido com o aparelho. - Tire os filtros anti-odor de carvão activo, se presentes.

SAÍDA DO AR PARA A VERSão Filtrante
- Aplique a conexão de saía de ar 15 à pressão sobre a saía da estrutura do exaustor.
- Assegure-se de que o filtro anti cheiros, de carvão activo, se encontrar presente.

LIGACAO ELECTRICA
- Ligue o extractor a alimentacao utilizing um interruptor deinousicos com una folga de contacto deleo menos 3mm
- Retire os filtros contra gordura (ver parágrafo da Manutenção) certificando-se de que o conector do cabo de alimentação está correto, estou instalado na tomada existente do lado do ventilador.

Montagem da chaminé
Chamé superior
- Alargue ligeiramente as Doubas folhas laterais, prenda as atras dos suportes 7.2.1 e voltte a fecha-las completeness.
Fixe lateralmente aos suportes com os 4 parafusos 12c (2,9 x 9.5) fornecidos com o aparelho.
Chamé inferior
- Alargue ligeiramente as Doubas folhas laterais da chaminé, prenda-as entre a chaminé superior e a parede e feche-as de novo completamente.
Fixe lateralmente a parte inferior do corpo do exaustor com os 2 parafusos 12c (2,9 x 9,5) fornecidos com o aparelho. - Para a versão filtrante, aplicque as grades direcionadas 8a - 8b nos respectivos encaixes, de modo a fazer com que os símbolos direcionais fiquem orientados para cima e para arente do exaustor. Assegure-se às de conexão 14.1.


L Luzes Liga e desliga a Illuminação
M Motor Liga e desligo o motor de exaustao
V Velocidade Determinina a velocidade de funcaoamento:
- Velocidade minima, indica para uma troca continua do ar muito silenciosa, se os vapores de cozedura foram poucos.
- Velocidade media, indica para a maior parte das condições de uso vista a excellente relaço entre o débito do ar tratado e o;nível de ruido.
- Velocidade Tmaxima, indica para打架ar as maximas emissões de varpores de cozedura, mesmo durante periços prolongados.
Filtros contra gordura
LIMPAR OS FILTROS METÁLICOS CONTRA GORDURA
- Os filtrosdeerao ser limpos de 2 em 2 mezes de functiOnamento, ou mais frequently em situacoes deutilizarao extrema e podem ser lavados naquina de lavar louca.
- Retire os filtros, um de cada vez, empurrando-os paraTRS e pu-xando-os ao mesmo tempo.
- Lave os filtros, tendo cuidado para não os做不到. Antes de os instalar novamente, certifique-se de que ficam bem secs.
- Ao instalar novamente os filtros, certifique-se de que a pega fica visível do exterior.

Filtro anti-odor (Versão Filtrante)
Não pode ser lavado e não é regeneravel, devendo ser substituído de 4 em 4 meSES deutilização ou com maior frequência, se o aparelho for realizado com muita intensidade.
SUBSTITUÇÃO DO FILTRO DE CARVÃO ACTIVO
- Tire os filtros metalicos antigordura.
- Remova o filtro anti-odor de carvão activo saturado, conforme indicado. (A)
Monte o filtro novo prendendo-o na sua sede.(B) - Reinstale os filtros metalicos antigordura.

Illuminação
SUBSTITUÇÃO DAS LÁMPADAS
Lampadas de halogeneo de 28 W
- Tire os filtros metalicos antigordura ou abra a grade portafiltros
- Desatarraxe as lampadas e substitua-as por novas de caracteristicas iguais.
- Reinstale os filtros metalicos antigordura ou feche a grade porta-filtros.

ManualFácil