LEIHDC90SCEU - Capucha FALCON - Manual de uso y guía de instrucciones gratis
Encuentra gratis el manual del aparato LEIHDC90SCEU FALCON en formato PDF.
Preguntas de los usuarios sobre LEIHDC90SCEU FALCON
0 pregunta sobre este aparato. Responde a las que conoces o haz la tuya.
Hacer una nueva pregunta sobre este aparato
Descarga las instrucciones para tu Capucha en formato PDF gratis! Encuentra tus instrucciones LEIHDC90SCEU - FALCON y toma tu dispositivo electrónico nuevamente en la mano. En esta página están publicados todos los documentos necesarios para el uso de su dispositivo. LEIHDC90SCEU de la marca FALCON.
MANUAL DE USUARIO LEIHDC90SCEU FALCON
Manual de instrucciones
As presentes instruetiones de servicei son validas para differentes modelos de aparato; por ello peut ser possible que se describan detailles y caracteristicas de equipamento que no concuerden integramente con las de su aparato concreto.
INSTALACION
- El fabricante declina cualquier responsabilidad debida a los días provocados por una instalacion incorrecta o no conforme con las reglas.
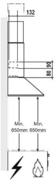
- La distancia minima de seguridad entre la encimera y la campana debe ser de 650mm (algunos modelosuen ser instalados a una alta por debajo, se refiere n a los párrafos huella y la instalacion).
- Comprobar que la tension de red corresponda a la indicada en la plac situation en el interior de la campana.
- Para los aparatos de 1^a clase asegurarde que la instalacion elctrica domestica posea una toma de tierra eficaz.
- Conectar la campana a la salute del aire de aspiracion mediante un tubo de 120mm de diametro como微量元素. El recorrodo del tubo debe ser lo mas corto possible.
- No conectar la campana a tubos de descarga de humos producidos por combustión (calderas, chimeneas, etc.).
- En el caso que en la comida se usa de manière silmultánea la campana y otros aparatos no electricos (por exemple aparatos de gas), deben existir un sistema de ventilación sufiente para todo el ambiente. Si la comida no posee un orificio que comunique con el exterior, hay que realizarlo para garantizar el recambio del aire.
USO
- La campana ha sido concedebida exclusivamente para un uso domestico, para eliminar los oleros de la cucina. No utilizesla deforma inadecka.
- NoURT No dejar llamas libres de fuerte intensidad cuando la campana esfeccionando.
- Regularmente las llamas deforma que estas no sobresalgan lateralmente con
respecto al fondo de las ollas. - Controller las freidas durante su uso: el aceite muy caliente se pueda inflamar.
- No preparar alimentos flambé bajo de la campana de la cucina; peligro de incendio
- Este aparato no tiene que ser utilisé por personas (ninos incluidos) con capacities psíquicas, sensoriales o mentalares reduidas, o bien por personas sin experiencia y conocimientos en la materia, a menos que no lo hagan bajo el control, o instruidos, por personas responsables de su seguridad.
- Controlar que los niños no juguen con el aparato.
MANTENIMIENTO
- Antes de efectuar cualquier operation de mantenimiento, desenchufar la campana de la red electrica o apagar el interruptor general.
- Efectuar un mantenimiento escrupuloso e inmediato de los filtros, según los intervalos de tiempo aconsejados (riesgo de incendio).
- Para limpiar las superficies de la campana es suficiente usar un trapo mojado y detergente liquido neutro.
El símbolo en el producto o en su embalaje indica que este producto no se puedaatar como despericios normales del hogar. Este producto se debeentar al punto de recoilección de equipoles electricos y electrónicos para reciclaje. Al asegurarse de que este producto se describes correctamente, usted可以帮助 a averitar posibles consecuencias negativas para el ambiente y la salute Pública, lo cual podra occurir si este producto no se manipula de forma adecuada. Para Obtener informacion mas detallada sobre el reciclaje de este producto, pongase en contacto con la administracion de su ciudad, con su serviceo de desechos del hogar o con la tienda donte compró el producto.


Dimensiones



Componentes
Ref. Cant. Componentes del Producto
1 1 Cuerpo campana dotado con: mandos, luz, grupo de ventilacion, filtros.
2 1 Chimenea Telescópica formada por:
2.1 1 Chimenea Superior
2.2 1 Chimenea Inferior
8a 1 Rejilla orientada der.salida aire.
8b 1 Rejilla orientada izq.salida aire.
9 1 Brida de reduccion 150-120 mm
10 1 Anillo de aumento diametro 120-125 mm
15 1 Racor saliva aire
Ref. Cant. Componentes de Instalación
7.1 2 Bridas de fijación campana
7.2.1 2 Bridas de fijación chimenea superior
11 8 Tacoos
12a 8 Tornillos 4.2 x 44,4
12c 6 Tornillos 2.9× 9.5
12d 2 Tornillos M4 x 25
Cant. Documentación
1 Manual de instrucciones

Taladrado parey fijacion de las bridas

Trazar en la pared:
- una linea vertical hasta el cielorraso o limite superior, al centro de la zona prevista para el montaje de la campana;
- una linea horizontal a 650 ~mm min. sobre el plano de coccción, para la instalación sin Fondo; a la cota H (H = alta de la parte del Fondo a la vista), para instalación con Fondo.
- Apoyar como se indica la brida 7.2.1 a 1-2 mm del cielo o del limite superior, alineando su centro (muescas) con la linea vertical de referencia.
- Marcar los centros de los orificios de la brida.
- Apoyar como se indica la brida 7.2.1 a X mm bajo de la primera brida (X = alta de la chimenea superior), alineando su centro (muescas) con la linea vertical de referencia.
- Marcar los centros de los orificios de la brida.
- Apoyar como se indica la brida 7.1 a 109,5mm de la linea vertical de referencia, y 190mm sobre la linea horizontal de referencia.
- Marcar los centros de los orificios de la brida.
- Repetir esta operación en la parte opuesta.
FONDO (OPCIONAL)
El fondo debe montarse antes de montar el cuerpo de la campana y, si se desea fijarlo a la pared tanto en la parte superior como inferior, es necesario montarlo a la alta correcta, antes de montar las bases. Como esta operation es compleja debe efectuarla solamente el instalador de la cucina o personal competente que conozca todas las dimensioens finales de los muebles.
Si nos limitamos solo a la fijación superior, proceder de lasuma做不到.
- Apoyar el fondo sobre la base introduciendo la falda inferior entre el plano superior y la pared, centrando lo en la linea vertical de referencia.
- Marcar los centros de los dos orificios de la falda superior.
- Perforar 8 mm los+puntos marcados.
- Introducir los tarugos 11 en los orificios.
Fijar las bridas, usingo los tornillos 12a (4.2 x 44.4) en dotacion. - Si existe, fjar el fondo, usingo los tornillos 12a (4.2 x 44.4) en dotacion.
Montaje del cuerpo de la campana
- Atornillar en las bridas 7.1, los 2 tornillos 12d (M4 x 25) sugministrados en dotacion
- Enganchar el cuerpo de la campana en las bridas 7.1, centrando lolo en la linea vertical.
- Operar en los tornillos 12d, desde abajo de la campana,para nivelar el cuerpo de la campana.

Conexiones
SALIDA DEL AIRE VERSION ASPIRANTE
Para la instalación de la version aspirante, conectar la campana al tubo de salute mediante un tubo rígido o flexible de 150 o 125 mm, a disreción del instalador.
- Para conectarlo a un tubo de 125 mm ,colocar la arandela de reduccion 9 en la salute del cuerpo de la campana y el anillo de aumento 10 120-125 en la arandela.
- Fijar el tubo con abrazaderas adecuadas. Este material no se proporciona en dotacion.
- Ouitar los filtros antiolor al carbón activo.

SALIDA DEL AIRE VERSION FILTRANTE
- Introducir a presión el racor 15 en la calidad del aire.
- Comprobar la presencia de los filtros antiolor de carbón, activo.

CONEXION ELECTRICA
- Conectar la campana a la red de alimentacion electrica instalando un interruptor bipolar con aperture de los contactos de 3 mm como minimum.
- Quitar los Filtros antigrasa y asegurase de que el conector del Cable de acometida está colocado correctamente en el enchufe del Aspirador.

Montaje de la chimenea
Chimenea superior
- Ensanchar ligeramente las dos faldas laterales, engancharlas detrás de las bridas 7.2.1 cerrarlas hasta el tope.
- Fijar a los lados de las bridas con los 4 tornillos 12c (2,9 x 9,5) en dotación.
Chimenea inferior
- Ensanchar ligeramente las dos faldas laterales de la Chimenea, engancharlas entre la Chimenea superior y la pared ydeojarlas volver a su posicion normal.
- Sujetar lateralmmente la parte inferior a los Bullones existentes con dos Tornillos 12c incluidos en la dotacion.
- Para la version filtrante aplicar las rejillas de direccion 8a - 8b en los asientos correspondentes, deforma que losvinculos que indican la direccion的结果en orientados hacer arriba y hacer el frente de la campana. Comprobar ademas que resulten correctamente insertados en el racor 15.


L Luces Enciende y apaga la instalacion de iluminacion.
M Motor Enciende y apaga el motor de aspiracion.
V Velocidad Determinina las velocidades de ejercicio:
-
Velocidad minima, indica para un recambio de aire continuo muy silencioso, en presencia de poco vapeores de coccción.
-
Velocidad media, indica para la mayor parte de las conditiones de uso, gracias a la optima relacion entre caudal de aire tratado y nivel de ruido.
-
Velocidad Tmaxima, indicada para hacer ante a grandes cantidades de vapor de cocción, incluso para tiempos prolongados.
Filtros antigrasa
LIMpieZA DE LOS FILTROS ANTIGRASA METÁLICOS
- Se pueda lavar en el lavavajillas yrequirecen unlavado cada 2
mesesapproximadamente o masamenso si su uso es muy intenso. - Quitar los filtros uno por vez, operando en los enganches correspondientes.
- Lavar los filtros evitando que se doblen ydeojarlosicarens de volverlos a montar.
- Montar los filtros prestando atencion enmantener la manija hacía la parte visible exterior..

Filtros antiolor (Version filtrante)
No se pueda lavar ni regenerar, se debenCambiar cada 4 meses o mas a meno si su uso es muy intenso.
SUSTITUCION DE LOS FILTROS DE CARBON ACTIVO
- Ouitar los filtros antigrasa metálicos.
- Quitar los filtros antiolor de carbón activo saturado, de la manera indicada (A).
- Montar losutures (B).
- Montar los filtros antigrasa metálicos.

Illuminación
SUSTITUCION DE LAS LAMPARAS
Lámparas halógenas de 28 W
- Quitar los filtros antigrasa metálicos, oAbrir la rejilla portafil-tros.
- Destornillar las lamparas y sustituirlas con新品as que tengan las mismas caracteristicas.
- Montar-Newamente los filtros antigrasa metálicos, o cerrar la rejilla portafiltros.

ManualFácil