Solerio Optimum - Chaudière ATLANTIC - Notice d'utilisation et mode d'emploi gratuit
Retrouvez gratuitement la notice de l'appareil Solerio Optimum ATLANTIC au format PDF.
| Type d'appareil | Chauffe-eau à échangeur optimisé |
| Usage | Eau chaude sanitaire |
| Capacité | Non précisé |
| Type d'installation | Verticale |
| Matériau du réservoir | Non précisé |
| Type d'échangeur | Serpentin interne |
| Alimentation | Non précisé |
| Pression maximale | Non précisé |
| Température maximale | Non précisé |
| Isolation thermique | Oui |
| Dimensions | Non précisé |
| Poids | Non précisé |
| Maintenance | Facile |
| Garantie | Non précisé |
| Normes | Non précisé |
FOIRE AUX QUESTIONS - Solerio Optimum ATLANTIC
Téléchargez la notice de votre Chaudière au format PDF gratuitement ! Retrouvez votre notice Solerio Optimum - ATLANTIC et reprennez votre appareil électronique en main. Sur cette page sont publiés tous les documents nécessaires à l'utilisation de votre appareil Solerio Optimum de la marque ATLANTIC.
MODE D'EMPLOI Solerio Optimum ATLANTIC
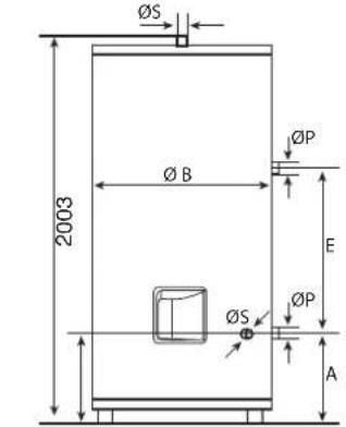
1 Sortie d'eau chaude
2 Entrée échangeur F.1"
3 Sortie échangeur F.1"
4 Entrée d'eau froide
5 Echangeur optimé émailé
6 Jaquette tole laquee blanche
7 Revetement interieur émaille
8 Capot de protection
9 Anode de titane ou anode de magnésium selon modèle
10 Isolation polyurethane 0% CFC
Groupe de sécurité EN 1487
Siphon d'evacuation
3 Reducteur de pression eventuel (si pression>5 bar)
4 vanne d'arrêt
| Diagram | A | B | C | D | E | F | Kg | |
| STANDARD | ||||||||
| VM 75/IAV/IAM 1 | 737 320 | 386 490 | 519 36 | |||||
| VM 100/IAV/IAM 1 | 1 908 498 | 393 497 | 519 41 | |||||
| VM 150/IAV/IAM 1 | 1 1241 798 | 437 541 | 519 55 | |||||
| VM 200/IAV 1 15 | 68 798 4 | 37 541 | 519 63 | |||||
| VS 150 IAC/S 2 1 | 1015 420 | 455 356 | 304 58 | |||||
| VS 200 IAC/S 2 1 | 270 533 | 543 465 | 446 76 | |||||
| VS 300 IAC/S 2 1 | 787 1006 | 587 489 | 490 94 | |||||
| GAC 500 | 3 | 255 | 678 | - | - | 1013 | - | 201 |
| UNDER HEATER | ||||||||
| VS 100 IAC/S 6 9 | 15 130 2 | 30 | 43 | |||||
| SPECIFIC SOLAR | ||||||||
| 200 IAS BIC 5 | 1261 | 415 655 453 | 298 83 | |||||
| 300 IAS BIE | 4 | 1802 | 537 | 803 | 417 | 95 | ||
| 300 IAS TN | 4 | 1802 | 537 | 1040 | 417 | 95 | ||
| 300 IAS BIC | 5 | 1802 | 537 | 1040 | 849 | 417 | 105 | |
| 400 IAS TN | 4 | 1660 | 503 | 685 | 383 | 144 | ||
| 500 IAS BIE | 4 | 2003 | 503 | 1178 | 383 | *** | ||
| 500 IAS BIC | 5 | 2003 | 503 | 1178 | 1103 | 383 | 170 | |





500L


3






Important: L'installation du préparateur doit respecter les normes nationales en vigueur dans le pays d'installation. Si vous estimez vos connaissances insuffisantes pour l'installation de ce produit, il est conseilé de consulter un professionnel.
IMPORTANT POUR LES MODELES AVEC ACI: Un cable d'alimentation 3 conducteurs solidaire de l'apparil alimentant votre système de protection anti-corrosion (A.C.I) est pre t a etre raccorded a un bornier de derivation, avec une alimentation permanente 24h / 24h Tout oubl de ce raccordement electri que a une alimentation permanente (230V) ,entraine la perte de la garantie du constructeur.
PRINCIPLE DE FONCTIONNEMENT
1.ENHIVER(chaudicre en marche)
Votra chaudirefonctione et assure la chauffe de I'eau sanitaire par la circulation d'un fluide chaud a I'intérieur d'un échangeur (échangeur optimé)
2 E N E T E ou (oullresaion) pour un fonctionnement avec kit eletrique (non foumi d'origine pour les préparateurs d'eau chaude sanitaire).
Vot che dire est a larrt la chuffe est assure par la mise sous tension de la resistance eletrique. te thermostat interrompt 1 alimentation eletrique lorsque la temperature de I'au atteint 65^
A) INSTALLATION
Attention: Produits lours à manipuler avec précaution.
1°) Installer l'appareil dans un local à l'abri du gel. La destruction de l'appareil par surpression due au blocage de l'organe de sécurité est hors garantie.
2^) S'assurer que la cloison est capable de supporter le poids de I'apparcil rempli d'eau
3^ Si I'appareil doit etre installedans un local ou un emplacement dont la temperature ambiante est en permanence a plus de 35^ prevoir une aeration de ce local.
4°) Dans une salle de bains ne pas installer ce produit dans les volumes V0 et V1 (voir fig. 1). Prévoir un bac de détention avec écoulement à l'égout si le chauffe-eau est installé au-dessus d'un local habitable.
5^ ) Placer I'appareil lieu accessible.
Fixation D'UN CHAUFFE-EAU VERTICAL MURAL : Pour permettre l'échange éventuel de l'élement chauffant, laisser au dessous des extremités des tubes du chauffe-eau un espace libre. Les apparciels peuvent être montés sur trépied (en option), si la paroi n'est pas suffisamment solide. Il est cependant obligatoire de fixer au mur l'étrier supérieur du chauffe-eau pour évoir tout bascurement. (fig. 2)
POSE D'UN CHAUFFE-EAU STABLE Ie chauffe-eau doit etre installed en position strictement verticale et de facon a garantir une parfaite stabilité avec accessibilité des parties electriques et des organes de sécurité. Prevoir l'acces aux éléments pouvant etre replacés.
B) RACCORDEMENT HYDRAULIQUE
Necessite de bien nettoyer les tuyauteries d'alimentation avant raccordement hydraulique. Ie raccordement sur la sortie eau chaude est a realiser a l'aide d'un manchon fonte, acier, ou raccord dielectrique, afin d'eviter la corsoion de la tubulure (contact direct fer.cuivre), raccord laiton interdit.
Circuit secondaire (fig. 4/5 ou 6): Installer obligatoirement un organe de sécurité neuf sur l'entrée du chauffe-cau, qui respectera les normes en vigueur (en Europe EN 1487). Aucun accessoire hydraulique ne doit être située entre l'organe de sécurité et l'entrée d'eau froide de l'appareil. Un réducteur de pression est nécessaire lorsque la pression d'alimentation est supérieure à 5 bar (non fourmi). Raccorder l'organe de sécurité à un tuyau de vidange pour évacuer l'eau de dilatation de la chauffe ou l'eau en cas de vidange du chauffe-cau. Les canalisations utilisées doivent supporter 100^ et 10 bars. La pression du réseau d'eau froide est généralement inférieure à 5 bars. Si tel n'est pas le cas, placer un réducteur de pression sur l'alimentation principale, après le compteur général.
Circuit de recyclage eventuel : Si l'emplacement de l'apparil se touve eloiigned du dernier point deuisage, il est possible de creer une bonde de distribution. La circulation sera assurc e aide d'une pompe (F.C.S).Si la tuyautric pas a lextercu prevoir une isolation des canalisations. Pour le raccordement, vucillez respecter impertativement les memes preconisations que celles du circuit secondaire (tubes, raccords). Le recyclage permit de dispose d'eau chaude rapidement, dans le ca de point(s) de pusage(s) eoigne(s), ceci peut generer une baisse de la temperature de stockage. En ete, necessite d'une alimentation electrique permanente (kit eletrique en option).
Circuit primaire (chauffage): Proteger contrc les exces de pression du a la dilatation de 1'au cals de la chaufie par une soupape 3 bar ou par un vase d'expansion du type ouvert (a la pression atmophereique) ou par un vase a membrane du type fermé . La pression de service du circuit ne devra pas depasser 3 bar, sa temperature ne devra pas etre supercircur a100^
PRINCipe DE FONCTIONNEMENT AVEC POMPE DE CHARGE: I'Prevoir une pompe (kit en option),I'aquast inveeur (kit en option) etant monte de series sa sonde est positionncc dans le meme doigt de gant qu cels du bulbc du thermostat elctrique commandant la resistance elctrique. Proceder au raccordement elctrique entre I aqastat ct la commande de la pompe de charge. La consigne de I'aqastat est sur la position 65^ (reglage d'usine), et celle du thermostat elctrique commandant la resistance elctrique sur la position maxi soit 65^
Branchement en série : Dans le cas de branchement en série de plusieurs apparciels, s'assurer que les organes de sécurité sont prevus pour accepter des températures élevées.
BRANCHEMENT ELECTRIQUE (VOIR PAGETABLEAU DES SCHEMAS SE RAPPORTER AUX SCHEMAS CORRESPONDANTS)
Le préparateur ne peut être branché et fonctionner que sur un réseau à courant alternatif 220 240 V monophasé ou 400 V triphasé selon modèle. Racorder le préparateur par un cable rigide de conducteurs de section 2,5 mm2. Utiliser pour cela une canalisation normalisée (gaine fixe ou cannelée) jusqu'à logement calibre du capot. Pour les apparciels munis d'un cable ou d'une prise (interdir en France), racorder directement. Racorder impératif le conducteur de terre du cable à la terre ou ramener le fil de terre à la borne prévc repéré par le symbole Ce raccordement est impératif pour des raisons de sécurité. L fil de terre vert - jaunc doit être de longueur supéricure à ceux des phases. L'installation doit composer en amont du préparateur un dispositif de coupure omnipolaire (ouverture contacts au minimum de 3 mm: fusible, disjoncteur). Dans le cas où les canalisations hydrauliques seraient en matière isolant, les circuits électriques seront protégés par un disjoncteur différentiel 30 mA adapté aux normes en vigueur. Adapter le branchement à la tension d'alimentation.
Coupe circuit thermique: Tous nos produits mixtes sont équipés d'un thermostat avec un coupe-circuit thermique à réarmement manuel, qui coupe l'alimentation du chauffecau en cas de surchauffc.
a coucle circuit thermique. En cas de déclenchement répetitif, procédé au remplacement du thermostat. Ne jamais court-circuiter la sécurité ou le thermostat. Effectuer le raccordement d'alimentation sur le bornier uniquement
RACCORDEMENT ELECTRIQUE. - Kits en option : Pour l'installation et le raccordement electrique des kits se reporter aux notices jointes dans chaque emballage.
(Kit electrique, kit pompe.) Dans le cadre d'un ballon utilise en solaire attention aux legislations locales. (Ex : interdiction en Espagne)
POUR MODELE ACI RACCORDEMENT DE LA PROTECTION CATHODIQUE
Aucune intervention supplémentaire n'est a prévoir (les connexions internes sont deja réalisées).
Un cable d'alimentation 3 conducteurs solidaire de I'appareil est pret a etre raccorde a un bonier de derivation, avec une alimentation permanente 24h/24h.
Aprs la mse sous tension de l'appareil, verifier le bon clignotement de la led verte de I'ACI sur le capot au plus tard 15 minutes après la misc sous tension.
MISE EN SERVICE / FONCTIONNEMENT
ATTENTION: Ne jamais mettre sous tension le chauffe-eau sans eau.
Remplir imperativement le circuit secondaire. Avant de metre sous tension, ouvr les robinets d'eau chaude, purger les canalisations jusqu'à l'absence d'air, et replir 1'appareil.
Rimplir le circuit primaire (circuit connecte a la chaudiere) Ouvrir lc robinet d'au, devisser lc purgeur d'air afin d'evacuer l'air introduit par I'opération de remplissage. Pour une installation equipee d'une pompe de charge, la metre en marche lesques instants afin d'accelerer I'opération de degazage. Verifier que le circuit est plein d'eau, soit par le contrôle du niveau de I'eau contenue dans le vase ouvert, soit en ouvrant le purgeur situé au point haut de I'installation.
Vérifier l'étanchéité des tubulures et du joint de la porte sous le capot. En cas de fuite resserrer modérément. Vérifier le fonctionnement des organes hydrauliques de sécurité et de vidange. Mettre l'appareil en chauffe après 15 à 30 minutes, selon la capacité de l'appareil, l'eau doit sécouler goutte à goutte par l'orifice de vidange. Ce phénomène normal est dû à la dilatation de l'eau. Vérifier l'étanchéité des rac cordements et du joint. Pendant la chauffe et suivant les qualités de l'eau, les chauffe-cau blindés peuvent émettre un bruit de boudlonnement; ce bruit est normal et ne traduit aucurn début de l'appareil.
Pour eviter le développement de bacteriés (legionnella...) assurer au moins une montée par jour à 60^ . Le thermostat est regé d'usine en butée (65^ + 5^) .
IMPORTANT: S'il est constaté un dégagement continu de vapeur ou d'au bouillante par la vidange ou par l'ouverture d'un robinet deuisage, couper l'alimentation électrique du préparateur ou et la chaudière et prévenir un professionnel.
VOTRE APPAREIL EST EN ORDRE DE MARCHE.
A) EN HIVER : Sans kit éctétrique : l'eau sanitaire est chauffée par le circuit primaire (échange thermique). L'aquestat inverseur pilote la mise en marche de la pompe de charge et autorise la circulation du fluide primaire, il peut également être raccordé à la pompe du circuit de chauffage
B) EN ETE ET EN 1/2 SAISON Si vous possedez un kit életrique, la chaudière étant coupé, l'au chaude sanitaire sera produit par la résistance életrique.
Couper l'alimentation electrique reliant le thermostat de commande pompe. Basculer l'interrupteur du tableau electrique alimentant le thermostat connecte a la resistance electrique.
Appuyer sur l'interrupteur "eté-hiver" situe sur le capot électrique du préparateur.
Si you ne possedz pas un kit electrique I'eaue chaude sanitaire sera produite par le circuit primaire (echange thermique) idem hiver.
ENTRETIER
Entretien domestique: Maneuvrer 1 fais par mois l'organe de vidange de la sécurité hydraulique. Le non-respect de cet entretien peut entrainer une détérioration et la perte de la garantie.
Pour une installation dotée d'une pompe de charge ; avant le redémarrage, suite à un arrêt prolongé, faire tournier le rotor en respectant les consignes de la notice du fabricant. Entrecien par un personnel qualificé :
a) Enlever te tartre depose sous forme de boue. Ne pas gratter ou frapper le tartre adhérent aux parois, au risque de déterminer le revêtement
b) Appareil avec l'anode de magnésium, la changer tous les 2 ans ou des que son diamètre est inférieur à 10 mm. Le changement d'un élément chauffant bliné ou de l'anode nécessite la vidange du chauffe-cau et le changement du joint. Couper l'alimentation électrique et l'cau froide, et ourir les robints d'cau chaude avant d'effectuer ces opérations. Remonter l'élement chauffant en serrant raisonablyment les écrous (serrage croisé), contrôler le lendomain l'échéante, reserrer si nécessaire.
PIECES REMPLACABLES: le thermostat, les joints, I'elément chauffant, le corps de chauffe, le voyant lumineux, I'anode de magnésium, la platine ACI, le cable de raccordement et l'interruption. La garantie conditionnée par l'utilisation de pieces d'origine constructeur.
CONSEIL AL'USAGER.
Pour une eau presentant des teneurs en T11 > 20°f, il est recommandé de traiter celle-ci. Dans le cas d'un adoucisseur, la durée de l'eau doit rester supérieure à 15°f.
Pour le basculment hiver/éti beien respecter les indications décrites en amont c'est a diren interrompant la circulation du fluide primaire par la fermeture de la vanne située sur le ci tcle.
Le fonctionnement en hiver impose la coupure de l'alimentation electrique de la résistance (si vous possedez un kit).
Dans le cas d'une absence prolongée et notamment en hiver, vidanger vous apparéil en suivant cette procédure.
I. appraieil doit etre installe,utilise et entretenu selon les regles de I art,conformement aux normes en vigueur dans le pays d'installation et aux indications de cette notice.
La garantie commerciale couvre l'échange gratuite des cuves et composants reconnus défecteurs par notre service après vente, hors pieces d'usure (anode magnésium, joint.), et sans indemnité, ni prolongation de garantie. Elle ne couvre pas les frais de main d'ouvre et de port hés à l'échange de pieces, lesquels vous seront factures conformément à nos tarifs. Ille prend effet à compter de la date de pose, facture d'achat ou d'installation faisant foin; en l'absence de justificatif, la date de prise en compte sera celle de fabrication indiquée sur la plaque signalétique du chauffe-eau majorée de 6 mois. Les frais et dégats dus à une installation défectueuse (gel, non raccordement à l'égout des eaux usées, absence de bac de détention...) ou à des difficultés d'accès, ne peuvent en aucun cas nous être imputés. Tout sinistre devra être déclaré au dépôtaire avant échange sous garantie, et l'apparil restera à la disposition des experts d'assurance et du constructeur. Les dispositions des presents conditions de garantie ne sont pas exclusives du bénéfice au profit de l'acheteur, de la garantie légale pour défauts et vices cachés qui s'appliquent en tout état de cause dans les conditions legales de chaque pays.
| Durée commerciale de garantie : FRANCE et BELGIQUE |
| Gamma | Modèle ACI | Modèle Magnésium |
| Cuve et corps de chauffe | 5 ans | 3 ans |
| Composant électric qu'ou autres | 2 ans | 2 ans |
Le changement d'un composant ne prolonge par la durée de garantie de l'appareil. Pour bénéficiair de la garantie, prendre contact avec votre installateur ou revendeur. A défaut, contacter: le fabricant qui vous indiquera la marche à suivre. TFI. France : (33) 146 83 60 01 - Belgique : 0235 72 820. La garantie nc s'appliquera qu'aux produits expertisés et reconnaient defectieux par l'entreprise redevable de la garantie. Il est impératif de conserver les produits à disposition de cette dernière.
Sont exclus de la garantie : Les pieces d'usurc : anodes de magnesium... Les apparciels non expertisable (difficlement accessibles pour réparation, entretien ou expertise). Les apparciels exposés à des conditions d'environnement anormales : gel, intempéries, eau représentant des caractéristiques d'agressivite anormales en dehors des critères de potabilité, alimentation électrique représentant des surtensions importantes. Les apparciels installés sans respect des normes et réglementations en vigueur dans le pays d'installation : absence ou mauvais montage des organes de sécurité contre la suppression, corrosion anormale due à un raccordement hydraulique incorrect(contact fer cuivre), mise à la terre incorrecte, section du cable électrique insuffisante, non respect des schémas de branchement indiqués dans cette notice. Les apparciels non entretenus conformément aux prescriptions de la presente notice. Les réparations ou remplacements de pieces ou composants de l' apparciel non réalisés ou autorisés par l'entreprises redevable de la garantie. Abscence de branchement du dispositif ACI pour les apparciels dotés de cet équipement. Le changement d'un composant ne prolonge par la durée de garantie de l' apparéil.
Les produits presentes dans cette notice sont susceptibles d'être modifiés à tout moment pour répondre à l'évolution des techniques et normes en vigueur. Appareils conformes aux directives, electromagnetique 89.336.CEE et basse tension 73.23.CEE modifiée par la directive 93.68.CEE
Notice Facile