Quantum Pro - Fornuis FALMEC - Gratis gebruiksaanwijzing en handleiding
Vind de handleiding van het apparaat gratis Quantum Pro FALMEC in PDF-formaat.
Download de handleiding voor uw Fornuis in PDF-formaat gratis! Vind uw handleiding Quantum Pro - FALMEC en neem uw elektronisch apparaat weer in handen. Op deze pagina staan alle documenten die nodig zijn voor het gebruik van uw apparaat. Quantum Pro van het merk FALMEC.
GEBRUIKSAANWIJZING Quantum Pro FALMEC
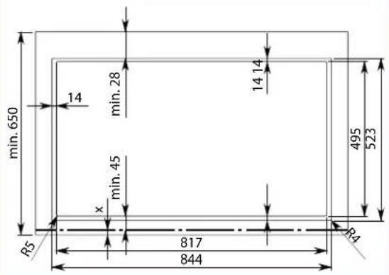
NL - Maten gat voor inbouw.
FI - Aukon mittaukset asennusta varten.

INSTALLAZIONE IN APPOGGIO TOP-MOUNTED INSTALLATION


INSTALLAZIONE A FILO FLUSH-MOUNTED INSTALLATION

NL - Elektrische aansluitingen afzuigkap en kookplaat (1).
Deze waarschuwingen zijn opgesteld voor uw verilgheid en die van anderen. Gelinge deze handleiding dan ook aandachtig en volledig door te nemen voordat u het toebruikt of reinigt.
De fabrikant wijst alle verantwoordelijkheid af voor eventuele schade die rechtstreeks of onrechtstreeks kan wordenveroorzaakt aan personen, voorwerpen en huisdieren ten gevolge van het Niet naleven van de veiligheidsaanwijzingen in deze handleiding.
Het is zeer belangrijk dat deze handleiding samen bij het toestel worden bewaard voor toekomstige raadpleging.
Indien het toestel worden verkocht of aan iemand anders worden doorgegeven, moet u ervoor zorgen dat u ook de handleiding overhandigt, zodat de neue gebruiker op de hoogte kan worden gesteld van de werkking van de afzuigkap en van de bijhorende waarschuwingen.
Vraag maar originele reserveonderdelen.

Gebruiksbestemming
- Deze kookplaat is bestemd voor huishoudelijk gebruik om gerechten maar te makeen en warm te honden.
- De kookplaat Niet buitenshuis installeren of opplaatsen waar deze aan weersinvloeden (regen, wind, enz.) is blootgesteld.
- Het is verboden om de inductiekookplaat te gebruiken op bewegende apparaten.
- Elk ander gebruik is nicht toegestaan.
- De kookplaat Niet gebruiken voordat die is geinstalleerd.
- De behuizing van het toestel nooit openen.
- Falmec garandeert de naleving van de veiligheidsnormen alleen bij gebruik van originele reserveonderdelen.
- Het apparaat is nicht bestemd voor gebruik met een externe timer of met een afstandsbediening.
- Het toestel mag Niet worden gebruikt door kinderenjonger dan 8aar en door mensen met beperkte lichamelijke, zintuiglijke of mentale capacitieren, of zonder ervaring of de nodige kennis, tenzij ze onder toezurecht staan of nadat ze instructies hebben gekregen over een veilig gebruik van het toestel en de inherente bevaren ervan hebben begrepen.
- Kinderen mogen nicht met het toestel spelen.
- De reiniging en het onderhoud mag Niet door kinderen zonder toezicht worden uitgevoerd.
- De kookplaat nooit onbewaakt achefterlaten wanneer die in werkung is.
Het toestel is alleen bestemd voor het afzuigen van dampen die tijdens het bereiden van gerechten ontstaan in een huishoudelijkke, Niet-professionele omgeving: ieder ander gebruik is oneigenlijk gebruik dat schade aan Personen, voorwerpen en huisdieren kanveroorzaken, waardoor de fabrikant van elke verantwoordelijkheid worden ontheven.

Gevaar voor brandwonden
- Gebruik de blokkering van de bedieningselementen om te verhinderen dat onbevoegden zich het toestel konnen aan zetten.
- plaats de stelen en handgrepen van potten en pannen zodanig dat kinderen er nicht bij+kennen.
- Schakel de kookzones uit na gebruik.
- Geen metalen voorwerpen op de ingeschakelde kookzonesplaatsen.

- De installmentie要去 door bekwame en gekwalificierde installateurs worden uitgevoerd volgens de aanwijzingen in deze handleiding en in naleving van de geldende normen.
Breng geen wijzigingen aan op de elektrische, mechanische en fonctionele structuur van het toestel. Probeer Niet om zich reparaties of verrangingen uit te voeren: interventries uitgevoerd door Personen die Niet bekwaam of Niet gekwalificeerd zich, kuren ernstige schade toebrengen aan voorwerpen en/of Personen wat Niet onder de garantie van de fabrikant valt. - Controller of de kookplaat intact is en alle delen ervan werken voordat u gaat installereren. Indien u afwijkingen opmerkt, mag u de installmentie Niet uitvoeren: in dit geval要去u contact opnemen met de verkoper.

De elektrische installmentie waarop het toestel worden aangesloten,要去 van een aardaansluiting zich voortzien, in overeenstemming met de veiligheidsnormen van het land van gebruik. Bovendien要去 deze installmentie conform zich met de Europese normen inzake radiostoringen.
-
De geveens betreffende de aansluiting (spanning en freqentie) aangegeven op het geveensplaatje van de kookplaat要去en overeenstemmen met de geveens van het elektriciteitsnet.
-
De geveens betreffende de aansluiting (spanning en frequentie) aangegeven op het geveensplaatje van de kookplaat要去en overeenstemmen met de geveens van het elektriciteitsnet.
Vergelijk deze gegevens voordat u gaat aansluiten
Wendt u tot een elektricien in geval van twijfel.
Voor het installereren van de afzuiigkap moet u controlleden of de netspanning overeenkomt met de spanning vermeld op het plantaatje dat binnen in de afzuiigkap is aangebracht.
Het stopcontact, gebruikt voor de elektrische aansluiting,要去 gemakkelijk bereikbaar zijn wanner het toestel geinstalleerd is. Als dit Niet möglich is,要去 u zorgen voor een hoofdschakelaar om de afzuigkap indien nodig UIT tezetten.
Een eventuele wijziging van de elektrische installment mag enkel door een bevoegde elektricien worden uitgevoerd.
Indien het toestel Nietaar behoren werkt, mag u Niet zichproberen om het probleem op te losesen. Neem contact op met de verkoper of met een erkend servicebedrijf om de reparatie te latelyuitvoeren.

Tijdens het installereren moet u het toe-stel uitschakelen door de stekkeruit het contact te halen of via de hoofdschakelaar.
VEILIGHEID ROOKAFVOER

Sluit het toestel Niet aan op afvoerkanalen voor rookgassen akkomstig van verbranding (bijvoorbeeld ketels, open haard, enz.)
Voordat u de afzuigkap installeert, moet u controloren of alle geldende normen inzake de luchtafvoer maar buiten worden nageleefd.
- Voordat u het toestel voor de eerste koer inschakelt, moet u eventuele beschermfolie en stickers verwijderen.
-
Tijdens het gebruik hunnen potten en pannen lawaai veroorzaken, dat te wijten kan zich aan:
-
een hoog vermogensniveau.
- andere materialen van de bodem van de potten.
- Nooit water gebruiken om brand te blussen. Schakel de kookzone UIT. Doof de vlammen met een deksel, een brandvertragend deken of iets gelijkaardigs.
- Bewaar geen brandbare voorwerpen in de lades onder de kookplaat. De bestekhouser要去 vervaardigd�uiuit hittebestendig materiaal.
- Bewaar geen metalen voorwerpenrechtstreeks onder de kookplaat.
- Geen lege potten of pannen verwarmen, controllerer aktijd of er een minimale hoeveelheid vloeistof in de potten aanwezig is.
- Schakel de kookplaat na gebruik.altijduit.
- Gebruik indien möglich als tijd deksels, om warmteverspreiding te vermiiden.
Kook met weinig water. - Breng nadat u begonnen bent met het bakken of koken van de gerechten het vermogensniveau op een lageriveau.
- Controller de bereiding voortdurend indien u vet of olie gebruikt, om dat die snel können ontbranden.
- Verwarm vet en olie maximaal gedurende een minuut, gebruik nooit de Booster-functie hiervoor.
- Vermijd dat suiker, synthetische materialen of aluminiumfolie met de hete zones in contact komen. Tijdens het afkoelen kutnen deze substanties barsten of andere veranderingen op het oppervlak in glaskera-miek veroorzaken: schakel het toestel uit en verwijder ze onmiddelijkuit de nog warme kookzone.
- Verplaats de potten door ze op te tillen, om geen krassen te makeen op het oppervlak van de kookplaat.
- Let op dat u zich nicht verbrandtijdens het gebruik van het toestel.
- Zorg ervoor dat er geen vaste of beweegbare kabel van het toestel met het glas of met een hete pan in contact komt.
- De kookplaat Niet gebruiken om bokalen te verwarmen.
-
De inductiekookplaat mag op geen enkele wijze worden afgedekt.
-
De elektrische kabels mogen nicht met de kookplaat in contactkommen.
- Het is aanbevolen om uw handen te beschermen gegen de warmte met behulp van speciale pannenlappen.
- Gebruik uitsluitend droge handschoenen of pannenlappen.
- Gebruik alleen potten en pannen met een gladde, magnetische bodem, die geschikt zich voor inductiekookplaten.
- Gebruik.altijd een pot of pan per kookzone, ook in BRIDGE-functie.
- Plaats geen warm keukengerei op de sensortoetsen en op de controle-lampjes, waar dat dit de elektronica eronder kan beschaden.
- Houd de bedieningselementen en de contrôlelampjes altijd schoon.
- De potten en de kookplaat要去en perfect schoon zijn voordat ze met elkaar in contact komt.
- Geen voorwerpen op de kookplaat lately vallen!

Gebruik alleen potten met een magnetische bodem.
Andere materiaielen zich nicht tegetstaan.
Gebruik pannen van een geschikte grootte voor de gewenste kookzone.
KEUZE VAN DE KOOKPOTTEN
Kookpotten geschikt voor inductie:
De bodems kunnen volledig ijzerhoudend, gemengd ijzerhoudend of niet-ijzerhoudend zich.
Enkel kookpotten met volledig magnetiseerbare, voldoende ditke en perfect vlakke bodem zich geschikt voor gebruik op inductieplaten.
De bodem is magnetiseerbaar als een magneet hecht op elk punt van de bodem van de kookpot.
De minimale diameter van de panbodem kan variieren afhankelijk van de kookzone (zie onderstaande aanwijzingen); de minimale diameter is het deel van de pan dat op de kookplaat rust.
In pannen met een volledig ijzerhoudende vlakke bodem verspreidt de但它 zich gelijkmatig en de vlakke bodem voorkomt beschadiging van het
oppervlak van de kookplaat.
Geschekte kookpotten (voorbeelden):
- Kookpotten van geglauurd staal met ditke bodem
- Kookpotten van gietijzer met geglaurde bodem
- Kookpotten vanmeerlagig roestvrij staal
- Kookpotten van roestvrij staal met ferritische

bodem

Afmetingen van de bodem van de kookpot:
| Bereidingszone Minimale afmetingen | |
| Enkel ø120mm | |
| Bridge 230mm | |
Kookpotten ongeschikt voor inductie:
Pannen met een Niet-magnetiseerbare of slechts gedeeltelijk magnetiseerbare bodem, met een Kleinere afmeting dan het aangegeven minimum en Niet perfect vlak, zichs als ze voorzien zijn van het symbol dat aangeeft dat ze geschikt+zijn voor inductie, zichniet geschikt voor inductie.
In elk geval hebben dit soort pannen een lager rendement en een lagere kookprestatie.
De bodems van Niet-ijzerhoudend materiaal (aluminium, koper, ...) können nicht met inductiekookplaten worden gebruikt.
De bodems met gemengd materialial worden nicht gelijkmatig warm en kurenkaarom geen hoge temperaturen bereiken. In de gevallen waarin de bodem voornamelijkuktietn-ijzerhoudendmaterialbestaat,herkent de kookplaat mogelijkde pan Niet en wordt de kookzone Niet geactiveerd.
Daarnaast neigen sommige van deze materialen ertoe materiaal af te gever dat zich bindt met de zeefdruk van het glas, dat daardoor onherstelbaar worden beschadigd.
Het gebruik van pannen met een ongelijke bodem (bijv. met bedrukte stippen) kan de detectie van de pan belemmeren, garandeert geen homogene verwarming en kan opnieuw leiden tot het vrijkomen van materiaal
alsgevolg van thermische schokken.
Ongeschikte kookpotten (voorbeelden):
-Koperen kookpotten
Aluminium kookpotten
-Kookpotten van keramiek
- Kookpotten van aardewerk
- Kookpotten van roestvrij staal

Lawaai tijdens de bereiding
De kookpotten könnenijdens de bereiding geluid produceren: dit wijst Niet op een probleem en beinvoedt de werkking van het product Niet. Het geproduerde lawaai heeft te makeen met het type van kookpot en het type van bodem; als dit lawaai bijzonder storend is, worden aangeraden een andere kookpot te gelebruiken.
Zoemend, sissend, krakend geluid en trillingen zijn toe te schrijven aan de overdracht van energia op de bodem van de kookpot en worden gegeeneerd door de verzillende materiaien van de kookpot zich. Ze worden waargenomen bij hoge niveaus van vermogen en nemen af naarmate een lageriveau ingesteld worden.
Geruis van de interne ventilatie: het apparaat is voorzien van een ventilator om de interne temperatuur van de inductieplaat te regelen. De ventilatie kan ook nadat het apparaat uitgezet is nog blijven functioneren.
AANWIJZINGEN VOOR DE VEILIGHEID EN WAARSCHUWINGEN
Waarschuwingen voor personen met een pacemaker:
denk eraan dat er een elektromagnetisch veld ontstaat in de onmiddellijke buurt van het toestel wonneer die in werkig is. De mogelijkheid dat de werk- king van de pacemaker hierdoor worden beinvloed, is zeer beperkt.
Wend u in geval van twijfel tot de fabrikant van de pacemaker of tot uw arts.
Het elektromagnetische veld van de ingeschakelde kookplaat kan de werkking van magnetiseerbare voorwerpen beinvoelden. Kredietkaarten, geheugenoplagsystemen, zakrekenmachines, enz. mogen zich Niet in de onmidelijk Nabijheid van een ingeschakelde kookplaat bevinden.
Metalen voorwerpen die bewaard worden in een lade onder het toestel kunnen gloeendiert heert worden als het toestel gedurende langeijd worden gebruikt. Bewaar geen metalen voorwerpen in een laderechtstreeks onder de kookplaat.
Het toestel is voorzien van koelventilatoren. Als er zich onder het ingebouwd de toestel een lade bevindt, dan要去 men een tussenschot aanbrengen:tussen deze lade en het onderste deel van het toestel, om deoodzakelijkke ventilatie van de kookplaat in acht te nemen enervoorte zorgen dat deze ventilatoren Niet konnen worden geblokkeerd.
Als het toestel worden ingebouwd boven een oven of een elektrisch fornuis met een pyrolytisch system, gebruik het dan Niet verwijl het pyrolytische proces bezig is, waar dat de oververhittingsbeveiliging van de kookplaat (zie de betreffende paragraaf) in werkung kan treden.
Gebruik nooit twee potten of pannen tegelijk op eén enkele kookzone, op een rechtshoekige kookzone of een PowerFlex-kookzone.

Voordat u de reiniging of het onderhoud gaat uitvoeren, dient u het toestel uit te schakelen door de stekker uit het stopcontact te halen of de hoofdschakelaar te bedieren.
De afzuiqkap Niet gebruiken als uw handen vochtig zichn of als u op blote voeten loopt.
Wanner het toestel Niet wordt gebruikt, moet u altijd controeren of alle elektrische onderdelen (lampen, motor)uit staan.

Plaats geen voorwerpen op de gemotoriseerde kleppen.
Controleer frituurpannen tijdens het gebruik wanner de olie oververhit raakt, kan.Deze vlam vatten.
Gebruik de afzuiigkap nooit zonder de metalen vetfilters. In dat geval konnen vet en vuil zich in het toestel vastzetten, waardoor de werking van de afzuiigkap worden aangetast.
Toegankelijke delen van de afzuiigkap hunnen heet zichن wanner de afzuiigkap samen met kookapparaten worden gebruikt.
Voer geen reiniging uit wonneer delen van de afzuiqkap nog heet zijn.
Indien de reiniging nicht worden uitgevoerd volgens de aangegeven werkwijzen en met de producten die in denen handleiding staan vermeld, bestaat er brandgevaar.
Schakel de hoofdschakelaaruit wanner het toestel gedurende een lange periodeniet worden gebruikt.

Indien tegelijk andere toestellen (ketels, kachels, haarden, enz.) worden gezrukt die met gas of met andere brandstof worden gevoed,要去 voor u voldoende ventilatie zorgen in de ruimte waar de dampen worden afgezogen, volgens de geldende normen.
PRODUCTINFORMATIEBLAD KOOKVELD
Productinformatie conform verordening (EU) nr. 66/2014
| Fabrikant Falmec S.p.a. | |
| Identificatie model Quantum Pro | |
| Type kookplaat Glaskeramisch kookveld | |
| Aantal kochzones / kookoppervlakken | 4 |
| Verwarmingstechniek | Inductiekookzones / Inductieko- okvelden |
| Nuttig oppervlak 4x(24,6x18,9 cm) | |

FORMAAT VAN BRUIKBAAR OPPERVLAK

TOTAAL VERMOGEN: 2,8 - 7,4 kW
ENERGIEVERBRUIK (Wh / Kg)

Energieverbruik kookzones:
1:188,5 Wh/Kg
2:182,9 Wh/Kg
3:182,9 Wh/Kg
4:181,5 Wh/Kg
Energieverbruik van de kookplaat: 183,9 Wh/Kg
INSTALLATIE
dit deel is uitsluitend voorbehonden aan gekwalificeerd personeel

Voordat u de afzuigkap gaat installeren moet u aandachtig het hoofdstuk "VEILIGHEIDSINSTRUCTIES EN WAARSCHUWINGEN" lezen
De technische kenmerken van de afzuiigkap vindt u op de stickers aan de binnenkant van de kap.
VEILIGHEIDSINSTRUCTIES VOOR DE MONTAGE
Installeer de kookplaat alleen nadat de onderstellen en hangmeubels van de keuken zich geinstalleerd.
Zorg ervoor dat de werkbladen goed zich vastgemaakt met hittebestendige lijm, zodat ze Niet kuren verrormen en Niet loskomen.
PLAATSING
De kap Niet buitenshuis installeren of opplaaten waar deze aan weersinvloeden (regen, wind, enz.) is blootgesteld.

Het is verboden om het toestel boven een koelkast, diepvriezer, vaatwasser, wasmachine of droogtrommel te installeren.
KOOKPLAAT
(Uitsluitend voorbehonden aan personneel, gekwalificeerd voor de aansluiting)

Ontkoppel het toestel van het elektriciteitsnet voordat u handelingen op de kookplaatGaatuitvoeren.
Zorg ervoor dat de elektrische draden in de kookplaat Niet worden
losgekoppeld of doorgesneden:
neem anders contact op met het dichtstbijzijnde assistentiecentrum.
Wendt u tot gekwalificeerd personeel om de elektrische aansluiting te la- ten uitvoeren.
De aansluiting moet in overeenstemming zijn met de wettelijkke voorschriften die van kracht�.
Voordat u de kookplaat op het elektriciteitsnet aansluit, moet u controlleden of:
- de netspanning overeenstent met de spanning vermeld op het gegeven
splaatje dat zich aan de binnenenzijde van de kookplaat bevindt;
-
de elektrische installmentie voldoet aan de normen en de belasting aan kan (raadpleeg hetplaatje met technische kenmerken in de kookplaat);
-
de voedingsstekker en-kabel Niet in contact komen met temperaturen die hoger zich dan 70^
- de voedingsinstallatie uitgerust is met een efficiente, correcte aardaansluiting volgens de geldende normen;
- het stopcontact gebruikt voor de aansluiting gemakkelijk bereikbaar is wanner de kookplaat eenmaal is geinstalleerd.
In geval van:
toestellen met kabel zonder stekker: een "genormaliseerde" stekker gebruiken. De draden要去en als volgt worden aangesloten: geel-groen voor de aarde, blauw voor neutraal en bruin voor de fase. De stekker dient op een geschikt veilgheidsstopcontact aangesloten te worden.
- vaste toestellen nicht voorzien van een voedingskabel en stekker waarmee ze van het stroomnet afgesloten kutden worden, met een openingsafstandCUSden de contacten die in die omstandigeden van overspanningscategorie Ie een volledige uitschakeling maybeik maakt.
- Deze afluitingsapparatuur moet voorzien worden op het voedingsnet, in overeenstemming met de installationenormen.
De geel/groene aardkabel mag Niet door de schakelaar worden onderbroken.
De fabrikant wijst alle verantwoordelijkheid af indien de veiligheidsnormen nicht worden nageleefd.
Aansluiting van de kookplaat
| Net Aansluiting Doorsnede | van de kabel | Voedin-gskabel | |
| 220V - 240V~ 50/60Hz 1P+N / 2P 3 x 4 mm² | H 05 VV - F H 05 RR - F | ||
| 380V - 415V~ 50/60Hz 2P+N 4 x 1.5 mm² | H 05 VV - F H 05 RR - F | ||
| 380V - 415V~ 50/60Hz 3P+N 5 x 1.5 mm² | H 05 VV - F H 05 RR - F | ||
AFZUIGKAP
ROOKAFVOER
In deze uitvoering wordt de geur en de damp via de afvoerbu is naar buiten afgevoerd.
Daartoe moet de uitgangsaansluiting van de afzuiigkap via een buis op een externe uitgang worden aangesloten.
De afvoerbuisClient te voldoen aan het volgende:
- een diameter die nicht kleiner mag zichn dan die van de aansluiting van de afzuiqkap.
- een lichte helling maar beneden (val) om te vermijden dat de condens in de motor terugvloeit.
- een minimumnantaloodzakelijkebochtenhebben.
- deoodzakelijkke minimumlengte om trillingen te vermijden en te voorkomen dat het zuigvermögen van de afzuigkap verminder.
- Als de afvoer door koude omgevingen gaat, dient deze geisoleerd te wor den.
Als de afvoer door koude omgevingen gaat, dient dele geisoleerd te wor-den.
Aonvulling voor Duitsland:
Wanner de afzuiqkap gebruikt worden in combinatie met een ander energiesystem, mag de negatieve druk in de kamer Nieteer dan 4 Pa (4 x 10-5 bar) bedragen. Gebruik van een contactschokelaar is verplicht.
AFZUIGKAP MET (FILTERENDE) INTERNE CIRCULATIE

Bij deze versie stroomt de lustcht door de Koolstof.Zeo-filter (optioneel) om gezuiverd en gerecycled te worden in het milieu.
Controleer of de Koolstof.Zeo-filters in de afzuigkap of motor geplaatst+zijn. Als dit Niet het geval is, moet u ze aanbrengen
zoals aangegeven in de montage-instructies.
MONTAGE-INSTRUCTIES
dit deel is uitsluitend voorbehonden aan gekwalificeerd personeel

De afzuigkap kan in verschlende configuraties worden gebrukt. De algemene punten gelden voor elke installmentie. Volg darüber de punten die overeenstemmen met de gewenste installmentie.
WERKING VAN DE AFZUIGKAP
WANNEER DIENT DE AFZUIGKAP INGESCHAKELD TE WORDEN?
Zet de afzuiigkap minstens een minut aan voordat u gaat koken. Dit bevordert de luchtstroom om de dampenaar het aanzuigoppervlak te leiden. Na het koken dient u de afzuiigkap in werkig te laten tot alle dampen en geuren volledig zich wegbezogen: via de Timer-functie kurz u eventueel de uitschakeling van de afzuiigkap instellen zoat deze na 15 minutes automatisch uitgaat.
snelheid (1-3): houdt met laag energieverbruik de lucht zuiver.
snelheid (4-5):normale gebruksomstandigheden.
snelheid (6-7): bij aanwezigheid van een sterke geur en veel damp.
snelheid (8-P): voor een snelle verwijdering van geuren en dampen.
Om de impact op het milieu te beperken, worden voorgesteld om altijd de minimumsnelheid in te stellen die geschikt is voor het vereiste afzigniveau.
WANNEER DIENT U DE FILTERS TE WASSEN OF TE VERVANGEN?
De metalen filters dienen om de 30 uren gereinigd worden.
Raadpleeg het hoofdstuk "ONDERHOUD" voor meer details.
| ①A - 9 + ⑤J | |
| ①A | ON/OFF Kort drukken: Inschakeling/uitschakeling afzugkap Lang drukken: Activering automatische cyclus (A) van de afzugkap in functie van het vermogen van de kookplaten. |
| + | Verhoging sleelheid van 1 tot...9 (tot "P"). Snelheid "P": slechts enkele minuten actief, daarna sleelheid 9. |
| - | Verminding sleelheid van P maar 1. |
| ◎ | Met afzugkap actief (kort drukken): TIMER (knipperende rode led) Automatische uitschakeling na 15 min. - De functie worden gedeactiveerd (rode led UIT) als: - de motor uitgaat (toets ①A - nogmaals op de toets TIMER worden gedrukt ◎ |
| Met afzugkap UIT (4 sec. lang drukken): opening kleppen voor onderhoud van de afzugkap en de metalen filters ⑪ | |

TOUCH-TOETSENPANEL VAN DE AFZUIGKAP

ALARM KOOLSTOF.ZEO-FILTER
Onderhoud na ongeveer 2000 bedrijfsuren.
Op het display verschijnt afgewisseld met de sleheid van de kap.
Voor het resetten van het alarm: verwij de motor aanstaat, drukt u gedurende 5 seconden op de toets
Het display toont Gedurende 2 seconden.
Om het alarm te activeren:
Met de afzuiqkapuit, drukt u de toetsen en-gedurende 5 seconden in
Het display toont .
Druk op de toets hetalarm te activeren, het display toont
F
Wacht 3 seconden, de configuratie is opgeslagen
Om het alarm uit te schakelen:
Met de afzuiqkapuit, drukt u de toetsen en-gedurande 5 seconden in.
Het display toont
Druk op de toets om hetalarm te uit te schakelen, het display toont $ waar bij het puntje linksboven uitdoof.
Wacht 3 seconden, de configuratie is opgeslagen.

Als het toetsenbord volledig inactief is, moet u, voordat u contact opneemt met de Technische Assistentiedienst, voor korteijd (ondeveer 5 seconden) de elektrische stroom van het toestel
halen, indien möglich door de hoofdschakelaar uit te zetten, om de normale werking te herstellen.
| Comando beschrijving | |
| 1 | Kookplaat AAN/UIT. In geval er geen ander bedienin-gselenment worden geactiveerd, gaat de kookplaat na enkele seconden automatisch UIT |
| II | Pauze-toets.Annuleert de kookplaat. Zie de PAUZE-functie |
| -0 | Toets commando's blokkeren.Toetsenbordvergrendeling om onbedoelde com-mando's te voorkomen |
| XXX | KEEP WARM-functietoets.Houdt de kookplaat op een temperatuur van 44°C |
| X | Timer-toets.Activeert de instelling van een generische timer |
| 0 1 2 3 4 5 6 7 8 9 | Keuzeschakelaar vermogensniveauuStelt het vermögen van de geselecteerde kookzone in op een schaal van 0 tot 9 |
| P | Booster-toets.Stelt het vermögen van de geselecteerde kookzone zo hoog möglichk in |
| + + + B B B - - - | Zone-timer. Geeft de timer-instelling werk. De toetsen envergete gen of verlagen de we- ergegeven waarde op het display. De getallen van links waar rechts komen overeen met: Uren, tientallen minutes, minuten. |
| - - - | Kookzone. Geeft de overeenkomstige kookzone weeer om te se- lectoren: - Links voorzijde - Links weiterzijde - Rechts voorzijde - Rechts achechterzijde |
| - - - | Timer kookzone. Toont deactivering van de timer gekoppeld aan de overeenkomstige kookzone |
| Weergave display beschrijving | |
| 0 | Kookzone in stand-by |
| 0. | Kookzone geselechteerd |
| 1 -> 9 | Geselechteerd vermogensniveau |
| P. | Power boost: maximaal kookvermögen |
| H | Aanduiding van de restwarmte |
| Keep warm-functie actief | |
| Bridge-functie actief | |
| Geen pan aanwezig op de kookplaat of nicht ge-detecteerd. | |
| Pauze-functie actief | |
| Kinderblokkering-functie actief | |
| Automatisch verwarmen-functie actief | |
WERKING EN GEBRUIK VAN DE INDUCTIEKOOKPLAAT
GEBRUK ALLEEN POTTEN VOOR INDUCTIEKOOKPLATEN.
Wanner een kookzone wordt ingeschakeld, wordt de bodem van de pot verwarmd.
De kookzone verwarmt alleen dankzij de warmte die door de pot worden afgegeben.
De inductie detecteert automatisch de afmetingen van de pot.
Het verwarmingsvermögen moet worden gekozen op basis van wat men wil bereiden
Hierna volgt een beknopte babel:
AFSTELLINGSZONES
| 1 - 2 | Smelten Verwarmen | Sauzen, boter, chocolde, gelatine Voorgekooke gerechten |
| 2 - 3 | Laten opkoken Ontdooien | Rijst, pudding en gekooke gerechtenGroenten, vis, diepgevroren producten |
| 3 - 4 Stomen Groenten, vis, vlees | ||
| 4 - 5 Koken | Gekooke aardappelen, soe- pen, pasta Verse groenten | |
| 6 - 7 | Op zicht vuur garen | Vlees, lever, eieren, worstjes Goulash, roulade, pens |
| 7 - 8 | Garen Frituren | Aardappelen, beignets, taartjes |
| 9 | Frituren, op het kookpunt brengen | Steaks, omeletten Koken |
| P | Frituren, op het kookpunt brengen | Grote hoeveelheden water op het kookpunt brengen |
Opmerking: dearend voor het verwarmen van de inductiekookplaten is korte dan voor gaskookplaten.
PROCEDURE VOOR VERANDEREN VERMOGEN

ATTENTIE: Verminding van het vermogen leidt tot een beperking van de vermogensniveau aus die in afzonderlijke zones können worden ingesteld. Deze beperkingen worden automatisch beheerde door het apparaat.
| Sequentie beschrijving | |
| I | Met kookplaat uit Druk op de ON/OFF toets |
| 3 sec. | Druk binnen 3 seconden opnieuw op de toets ON/OFF De toets Begint te knipperen |
| II | Druk op de pauze-toets en houd deze ingedrukt |
| 2 3 1 4 | De display van de kookzone toont: Druk op de vier zones met de klok mee. |
| II | Laat de pauze-toets waar los |
| 0 1 2 3 4 5 6 7 8 9 P I | Op het display van de kookzone verschijnt het symbol parameternummer De Timer-zone geeft dehuidige parameterinstalling waar De parameter voor de vermogen- sinstelling is U0. |
| II 0123456789P | Door te drukken op de Timer zone\ kunt u de ingestelde vermogen- swaarde wijzigien. Druk op de keuzeschakelaar voor het vermogensniveau: - maar links om de waarde te ver- minderen, - maar rechts om deze te verhogen |
| II 0123456789P | Vermogenswaarde Minimum: 1.4 2,8kW Maximum: 3.7 7,4kW Verhoging in stappen: 0,2kW |
| II 0123456789P | Druk op om de parameterin- stelling te verlaten |
| II 0123456789P | Om de wijzigingen op te slaan en het menu te verlaten: - druk gedurende 2 seconden op de ON/OFF toets Om het menu te verlaten zonder de wijzigingen op te slaan: - druk op de toets |
AUTOMATISCHE INSCHAKELING VAN DE KOOKZONE
- Schakel de kookplaat in 1
- Plaats de pan, Niet leeg, op de kookzone
- De toets die overeenkomt met de zone worden automatisch ingeschakeld

- De keuzeschakelaar voor het vermogensniveau worden geactiveerd en niveau 0licht op
0123456789
- Druk op de toets van de in te stellen kookzone. Het punje rechtsonder

- Stel het gewenste vermogensniveau in.
INSTELLING VAN HET VERMOGENSINVEAU:
- Schuif uw vingeraar rechts in de keuzeschakelaar voor het vermogensniveau en stop op het gewenste niveau.

- Het display van de geselecteerde kookzone toont het ingestelde vermogensniveau:

- Druk op de toets om het Booster-niveau in te schakelen.

- Het display van de geselecteerde kookzone toont.
Het booster-niveau wordt maximaal 5 minutes gehandhafd, waarna het vermogensniveau worden verhoogd tot 9.
OM DE KOOKZONE UIT TE SCHAKELEN:
- Schuif uw vingeraar links in de keuzeschakelaar voor het vermogensniveau en stop op het niveau 0.

- Het display van de geselecteerde kookzone toont het vermogensniveau 0:

OPMERKING: om alle kookzones tegelijkertijd uit te schakelen: druk gedurende 2 seconden op de toets.
Op de displays van kookzones die nog erg warm+zijn,verschijnt het
symbol: . De kookzones nicht aanraken zolang de controlampjes

BRIDGE-FUNCTIE:
- Via deze functie kan men de kookzones 1-2 en/of 3-4SAMen latent werken: voor het gebruik van potten zoals vispotten of groe rechthoekige schalen.
OPMERKINGEN: Automatische BRIDGE-detectie: het apparaat stelt automatisch de BRIDGE-functie voor als een voldoende große pan op de kookzones 1-2 of 3-4 worden geplaatst.

- Druk tegelijkkertijd op de toetsen van de twee kookzones die gekoppeld要去en worden. ATTENTIE alleen de aangegeven parengen worden gekoppeld: zone rechts voor en rechtschyter (1-2) of zone links voor en links acheer (3-4).
-Een akoestisch signaal waarschuwt voor de activering van de functie, het display toont:

- Stel het gewenste vermogensniveau in.
Om de BRIDGE-functie uit te schakelen:
Druk tegelijkkertijd op de toetsen van de twee gekoppelde kookzones.
KEEP WARM-FUNCTIE
houdt voedsel warm bij een temperatuur van onceveer 44^
- Druk op de toets van de in te stellen kookzone.

Om de KEEP WARM-functie uit te schakelen:
- Druk op de toets van de kookzone met de Keep Warm-functie actief

- Druk op de KEEP WARM-toets
PAUZE-FUNCTIE
annuleert de werking van alle kookzones.
- Druk op de pauze-toets II
-Het display van de kookzone geeft de activering van de pauze- functie aan

De pauzefunctie kan tot 10 minuten actief worden gehonden, waarna het apparaat uitschakelt.
Om de PAUZE-functie uit te schakelen:
- Druk op de pauze-toets II. De toets begint te knipperen
Druk op een willekeurige toets behalve de Pauze-toets. - De functie worden uitgeschakeld en de kookzones zullen waar gaan werkken voordat de Pauze-functie worden ingeschakeld.
OPMERKINGEN: de onderbreking en reset van de stroomvoorziening schakelt de PAUZE-functieuit.
FUNCTIE BLOKKERING BEDIENINGSELEMENTEN:
schakelt alle toetsen van het apparaat uit om te voorkomen dat ze per ongeluk worden geactiveerd bij het schoonmaken van de kookplaat.
- Druk gedurende 1 seconde op de toets Blokker commando's Alle toetsen behalve de toetsen Blokker commando's en ON/OFF zijn uitgeschakeld.
Om de BLOKKEER COMMANDO'S-functie uit te schakelen:
- Druk gedurende 1 seconde op de toets Blokker commando's
KINDERBLOKKERING-FUNCTIE:
schakelt de werkking van alle toetsen uit
-BELANGRIJK:voer de gehele procedure binnen 10 seconden uit

Druk gedurende 3 seconden op de toets van een kookzone
- Laat de toets los en schuif uw vingeraar rechts in de keuzeschakelaar voor het vermogensniveau van 0 tot 9

- Het display van de kookzone toont de activering van de functie
Om de KINDERBLOKKERING-functie uit te schakelen:
-BELANGRIJK: voer de gehele procedure binnen 10 seconden uit

Druk gedurende 3 seconden op de toets van een kookzone
-- Laat de toets los en schuif uw vingeraar links in de keuzeschakelaar voor het vermogensniveau van 9 tot 0

TIMER-FUNCTIE
hiermee sunt u eenijd instellen waarna een akoestisch alarm zar klinken.
Druk op de Timer-toets

- De Timer-zone worden geactiveerd:
Druk op toetsen om de timer in te stellen.

Zone 1: uren
Zone 2: tientallen minutes
Zone 3: minuten
Maximum instelbare tijd: 9 uur en 59 minuten
- Na 10 seconden begint de timer af te tellen.
Aan het einde van het aftellen, klinkt er een akoestisch signaal. - Druk op een willekeurige toets om het akoestisch signaaluit te schakelen.
KOOKZONE TIMER-FUNCTIE:
maakt het möglichk een kookzone uit te schakelen na een ingestelde lijd
- Druk op de toets van de in te stellen kookzone. Het puntje rechtsonder
licht op
Druk op deTimer-zone.

-
DeTimer-zone is geactiveerd: en het symbol boven de kookzone knippert.
-
Druk op toetsen + en de timer in te stellen.

Zone 1: uren
Zone 2: tientallen minutes
Zone 3:minute
Maximum instelbare tijd: 9 uu er 59 minuten
- Na 5 seconden begint de timer af te tellen.
-Aan het einde van het aftellen worden de betreffende kookzone uitgeschakeld en klinker een akoestisch signaal.
Druk op een willekeurige toets om het akoestisch signalaui te schakelen.
AUTOMATISCH VERWARMEN-FUNCTIE:
stelt het maximumvermogen in voor een vooraf ingesteldeijd en keert terug maar het vorige vermogensniveau.
- Druk op de toets van de in te stellen kookzone. Het puntje rechtsonder

licht op
- Schuif uw vingeraar rechts in de keuzeschakelaar voor het vermogensniveau en stop op het gewenste niveau. De functie kanalleen worden ingeschakeld voor niveaus 1 tot 8.

- Houd het geselecteerde niveau gedurende 3 seconden ingedrukt 3 sec

Dit is tevens het niveau waarop de kookzone aan het einde van de vooraf ingesteldeijd worden teruggebracht, waar bij de kookzone op maximaal vermogen werk.

- Het display van de kookzone toont de activering van de functie
Functie duur tabel:
| Vermogensni- veau | Tijd automatisch verwarmen-functie (seconden) |
| 1 | 48 |
| 2 144 | |
| 3 230 | |
| 4 312 | |
| 5 408 | |
| 6 120 | |
| 7 168 | |
| 8 210 | |
| 9 Functie nicht beschch | kbaar |
| P Functie nicht beschch | kbaar |
- Aan het einde van deijd eindigt de functie en wordt de kookzone terug-gezet op het eerder ingestelde vermogensniveau.
Om de functie AUTOMATISCH VERWARMEN uit te schakelen:
1 - Wacht op het einde van de werkingsstijd of

2 - Druk gedurende 3 seconden op de toets van de kookzone
- de functie eindigt en de kookzone wordt teruggezet op het erder ingestelde vermogensniveau. of
3- Als een lager vermogensniveau wordt ingesteld dan voor de automatische verwarmingsfunctie, wordt de functie uitgeschakeld.
RECALL-FUNCTIE:
maakt het möglichk de kookinstallingen te herstellen voor een onbedoelde uitschakeling van de kookplaat.
-
Voer de volgende stappen uit binnen 6 seconden na een onbedoelde uitschakeling
-
Schakel de kookplaat in ①
- Het pauzelampje Khippert -Druk op de pauze-toets
De RECALL-functie stelt de werkung van de kookzones, timerfuncties en Snel verwarmen opnieuw in. Andere functies worden nicht hersteld.
Veiligheidsuitschakeling
Als een kookzone langer dan de maximale inschakeltijd aan staat op eenzfelfde vermogen, dan worden die automatisch uitgeschakeld en worden de restwarmte aangegeven.
Om de kookzone opniew in te schakelen, moet u de benodigde toetsen aanraken.
| Vermogens- niveau | 1 2 | 3 4 5 | 6 7 8 9 | P | |||||
| Maximale bedrijfsduur in uren | 6 6 5 | 5 4 1 | 5 1,5 | 1,5 1,5 | 5 min |
meer dan 10 seconden afgedekt.
- verwijder de voorwerpen van het bedieningspaneel.
-reinig het bedieningspaneel. - schakel de kookplaat en de betreffende zone opnieuw in.
Voordat de elementen van de kookplaat kannen oververhitten, vermindert de contrôle het gebruekte vermogen volgens onderstaande beveiligingsprocedure:
-Uitschakeling van de booster en power booster indien aan.
- Verminding van het ingestelde vermogensniveau.
-Uitschakeling van de betreffende kookzone.
Op het display van de kookzones verschijnt het bericht "E2".
U kurz de kookzone opniew in werkung stellen, wanneer de storingsssigna-lering uitgaat.
REINIGING EN ONDERHOUD
Een constant onderhoud garandeert een goede werkung en een blijvend goed rendement.

LET OPI!
Gebruik nooit een stoomapparaat om te reinigen.
Controleer voordat u de kookplaat gaat reinigen, of deze op kamertempo-ratuur is.
Reinig de kookplaat altijd na elk gebruik met een speciale reiniger voor keramisch glas en verwijder etensresten en ander aangekoekt vuil onmiddelijk. Een oploping van water, bij voorkeur gedestilleerd, en witte azijn kan handig maar om kalkvlekken te verwijderen en aangekoekt vuil zachter te makeen voordat u ze verwijdert met de juiste schraper.
Gebruik nooit alcohol op het oppervlak van de kookplaat.
Gebruik geen producten die volgende stoffen bevatten:
-
corrosieve producten (soda, zuren, ammoniak).
-
schurende producten (poeder of pasta's).
Geen suntige of schurende voorwerpen gebruiken.
Na de reiniging moet u het toestel met een zachtdeok afdrogen.

Schuif de pannen nooit over de kookplaat, maar til ze op om krassen te voorkomen.

Wij adviseren u om uw kookplaat regelmatig te reinigen, zo mogelijk na elk gebruik. Gebruik geen schuursponsjes of schuurmiddelen. Vermijd ook agressieve chemische producten, zoals bijvoorbeeld ovenreinigingssprays, vilekastotende producten, maar ook badkamer- of universee reinigingsmiddelen.
Een moment van afleiding is voldoende
Laat de warme kookplaat Niet in contact komen met plastic, aluminiumfolie, suiker of levensmiddelen die suiker bevatten. Deze materialen要去en onmiddelijk van de hete kookzone worden verwijderd met een metalen reinigingspatel uit de warme kookzone worden verwijderd.
Als ze smelten, kunnen ze het oppervlak beschadigen.
Alvorens levensmiddelen met een hoog suikergehalte te koken, adviseren wij dan ook om de kookplaat met een geschikt producte behandelen.
Een brillant resultaat in drie eenvoudige handelingen:
Voor een grondige reiniging eerst grof vuil en etensresten verwijderen met een metalen reinigungsspatel.
Daarna een pau druppels speciaa reinigingsmiddel op de koude kookplaat gieten en met keukenpapier of een schoon doeke injwrijven.
Tenslotte de kookplaat met een natte doek afnemen en afdrogen met een droge doeok. Klaar!
Hoe herken ik een schraper die geschikt is voor keramisch glas?
- Een schraper gemaakt van metaal (smelt nicht en vat geen vlam)
- Een schraper die gemakkelijk te vergrendelen en te ontgrendelen is
- Het mes is goed vastgemaakt en verschuft nicht
- Het mes is robuust, schoon en roestvrij
- Een schraper zo möglichk goedgekeurd door een certificeringsinstantie (bij voorbeeld TUV-GS seal)
- Gebruikshandelieing en veiligheidsinstrumenties beschikkaar
REINIGING INTERNE OPPERVALKKEN

Het is verboden om elektrische delen of delen van de motor in de afzuiqkap met vloeistoffen of oplosmidden te reinigen.
Raadpleeg de vorige paragraaf voor de interne metalen delen..
METALEN VETFILTERS
Geadviseerd wordt om de metalen filters frequent te wassen (F) (minstens een keer per maand), door ze circa 1 uur in kokend water met afwasmiddel te lately weken zonder ze om te buigen.
Gebruik geen corrosieve, zure of alkalische schoonmaakmiddelen.
Spoel ze zorgvuldig en wacht tot ze goed droog zich voordat u ze wee terugplaatst.
U mag de filters ook in de vaatwasser wassen, maar dit kan een bruine verkleu-ring van het materiaal van de filtersveroorzaken: om dit ongemak verminderen, wast u op lage temperatures (max. 60^ ) zonder wasmiddelen te gebruiken.
Raadpleeg de montage-instructies voor hetplaatsen en verwijdersen van de metallen vetfilters.
HOUTSKOOL EN ZEOLIETFILTERS (OPTIE)
Raadpleeg voor de levensduur en regeneratie van filters de specifieke instructies die bij de verpakking worden geleverd.
Laat het filter afkoelen, alvorens het weer te monteren.
OLIEOPVANGBAKJE
Geadviseerd wordt om het bakje elke maand te reinigen.
Gebruik geen corrosieve, zure of alkalische schoonmaakmiddelen.
Voor een grondige reiniging verwijder het olieopvangbakje (zie afbeelding) en was het met water en een afwasmiddel. Spoel het zorgvuldig en wacht tot het goed droog is voordat u het terugplaatst.

De olieopvangbakje Niet in de vaatwasser wassen.
WAT MOET U DOEN ALS ER PROBLEMEN ZIJN
De kookplaat of de kookzones worden nicht ingeschakeld:
- De kookplaat is Niet op het elektriciteitsnet aangesloten.
- De zekering is doorgeslagen.
- Controller of de blokkering actief is.
- De toetsen zich bedekt met water of vet.
- Er ligt een voorwerp op de toetsen.

Het symbol verschijnt
- Er staat geen pot op de kookzone.
- De gebrukte recipient is Niet compatibel met de inductie.
- De diameter van de bodem van de pot is teklein ten opzichte van de kookzone.
Het symbol [E] verschijnt:
Koppel de kookplaat los en sluit daarna opnieuw aan.
- Neem contact op met het aftersalesteam.
Eén van de kookzones of de hele kookplaat worden uitgeschakeld:
- Het beveiligingsysteme gegen oververhitting is actief;
- De kookplaat of een kookzone is te lang ingeschakeld gebleven;
- een of meerdere toetsen zich bededuct;
- één van de potten is leeg en de bodem is oververhit.
De ventilator blijverwerken na de uitschakeling van de kookplaat:
- Dit is geen storing: de ventilator blijft de elektronische centrale van het toestel verder beschermen.
De ventilator stopt automatisch.
In geval van een fout geeft het apparaat foutcodes waar, die voor de technische dienst van nutন.
Het display van de kookzone toont de foutcode door "E" af te wisselen met andere symbolen en cijfers.
| Foutcode | Beschrijving Mogelijk | Oorzaken | Oplossing |
| E+0+3 | De toets is voortdurend geactiveerd | - Metalen voorwerpen op het toetsenpaneel- water op het toetsenpaneel | - Metalen voorwerpen verplaatsen - Veeg water af |
| E+2+1 | Interne tempera-tuur hoger dan 85°C | - overdekte of onvoldoende geventileerde ruimten | - Wachten tot interne warmte afkoelt |
| E+3+1 | Foute configu-ratie | - configuratie-fout | - Neem contact op met de technische dienst |
| E+4+2 | Interne voedings-spanning te hoog of te laag | Overbelasting als gevolg van atmosferische ontlading, storing in het elektrische systeme of verkeerde stroo-maansluiting | - Neem contact op met de technische dienst |
| E+4+7 | Geen commu-nicatie:tussen toetsenpaneel en inductormodules | - Communi-catiekabel beschadigd of losegekoppeld - Inductormo-dule besch-adigd | - Neem contact op met de technische dienst |
| E+2+0E+2+2E+3+5E+3+6 | Interne fout van toetsenpaneel | - Neem contact op met de technische dienst | |
| E+2 | De temperatuur-limieten in de kookzone+zijn overschreden | - Pan leeg - type pan nicht geschikt - pan of glas te heet | - vul de pan - gebruik een geschikte pan - verwijder de pan en LaTeX de zone afkoelen |
| E+3 | Pan nicht geschikt | - De pot hebft weinig ijzerma-teriaal - De pan heeft een fouit in de inductormoduleveroorzaakt - Storing van de inductor | - Gebruik een geschikte pan - Verwijder de pan, wacht 8 seconden en probeer het opnieuw - Neem contact op met de technische dienst |
| E+4 | Foute configu-ratie | - configura-tiefout van de inductor | - Neem contact op met de technische dienst |
| E+5 | Geen commu-nicatie tousten toetsenpaneel en generator | -LIN-kabel defect of los-Foute elektri-sche aansluiting-Interne storing-Configuratie-fout | -Neem contact op met de technische dienst-Controleer de elektrische aansluiting van de klemmenborden-Neem contact op met de technische dienst-Neem contact op met de technische dienst |
| E+6 | Fout voeding - Voe-dingsspan-ning buiten werkingsbereik -Onjuiste voed-ingsspanning freuquentie-Storing van de inductor | -Controleer de voedingsspanning correct is: spanning en frequente.-Neem contact op met de technische dienst | |
| E+7 | -Interne storing van de inductor | -Neem contact op met de technische dienst | |
| E+8 | Koelventilator werkt nicht | -Ventilator vuil-Storing van de ventilator | -Reinig het luchtro-oster-Neem contact op met de technische dienst |
| E+9 | Fout tempera-tuursensor van de inductor | -Fout tempera-tuursensor van de inductor | -Contattare l'Assi-stenza tecnica |
| E+R | -Interne storing van de inductor | -Neem contact op met de technische dienst | |
| E+H | De inductortem-peratuursonde heeft een vaste waarde | -glas te heet-sensorstoring | -Koel het glas af-Neem contact op met de technische dienst |
Opmerking:
het system kan nicht alle defecten automatisch detecteren, bijvoorbeeld in het geval van een stroomstoring in de gebruikersinterface.
Het symbol van de doorkruiste vuilnisbak, dat op uw toestel is aangebracht, geeft aan dat het product een AEEA is, dit beteket een "Afvalstof afkomstig van Elektrische en Elektronische Apparatuur" en bijge
volg Niet met ongescheiden afval mag worden gedumpt (dit betektent nicht samen met *gemengde huishoudelijkke afval), maar afzonderlijk要去 worden verwijderd, zodate het kan worden onderworpen aan speciale bewerkingen voor hergebruik, of aan een specifieke verworking om eventuele stoffen die schadelijk zichোর het milieu te verwijderen en grondstoffen eruit te halen diegerecycleerd+kunnen worden. Door dit product correct te verwijderen, draagt u bij tot het vrijwaren van kostbare grondstoffen en helpt u om potenteel negatieve efecten voor de menselijkige gezondheid en voor het milieu te vermijden, die kunden ontstaan door een onjuiste afvalverwijdering.
Neem contact op met deplaatselijkke instanties vooreer details over het dichtst bijzijnde punt voor verwijdering. Er kannen boetes worden opgelegd wannerde ze afvalstoffen Niet in overeenstemming met de nationale wetgeving op verkeerde wijze worden verwijderd.
INFORMATIE VOOR AFVALVERWIJDERING IN ITALI
In Italié要去en de apparaten die AEEA zich afgeleverd worden aan:
- de Centra voor het inleveren van afval (ook ecologische eilanden of platformen genoemd) die opgesteld zichoor door de Gemeente of de Vuilophaaldienst (op veelplaatsen worden dt de ophaaldienst van apparaten die AEEA zijn en groe afmetingen hebben ook aanuisuitgevoerd);
- de winkel waar een/Newuapparaat gekocht worden, die verplicht is het oude apparaat Gratis terug te nemen (op basis van "een gegen een");
- een willekeurige andere winkel*, die verpflicht is ze gratis terug te nemen en zonder dat de plicht tot aankoop bestaat (op basis van "eén gegen nul"). In dat geval:
1) moet de apparatuur die AEEA is "zeer krine afmetingen" hebben (hoogte, diepte en bredtekleiner dan 25 cm);
2) de winkel aan wie de apparatuur die AEEA is afgeleverd worden, moet een verkooppopervlak hebben van meer dan 400m^2
INFORMATIE BETREFENDE DE VERWIJDERING IN LANDEN VAN DE EUROPESE UNIE
De communautaire richtlij betreffende AEEA-apparaten word door elk land op een andere wijze in uitvoerig gebracht. Indien u dit toestel wilt verwijderen, raden wij u waar om contact op te nemen met deplaatsilijke instanties of de verkoper om maar de correkte verwijderingsmethode te vragen.
INFORMATIE BETREFFENDE DE VERWIJDERING IN LANDEN DIE NIET TOT DE EUROPESE UNIE BEHOREN
Het symbol van de doorkruiste vuinisbak is enkel in de Europese Unie geldig: indien u dit toestel in andere landen wilt verwijderen, raden wij u aan om met deplaatselijke instanties of met de verkoper contact op te nemen om maar de correcte verwijderingsmethode te vragen.

LET OPI!
De fabrikant befindt zich hetrecht voor om op welk ogenblik dan ook wijzigingen aan de afzuiigkappen aan te brengen zonder kennisgeving vooraf. Het volledig of geedeeltelijk drukken, vertalen en reproduceren van deze handeiding mag alleen met toestemming van de fabrikant.
De technische informatie, de grafische afbeeldingen, Foto's en de specificaties opgenomen in deze handleiding, zich indicatief en mogen nicht worden verspreid.
De handleiding werden in het Italiaans opgesteld; de fabrikant zich nicht verantwoordelijk voor eventuele fouten bij transcriptie of vertaling.
TURVALLISUUSOHJEET JA VAROITUKSET

Notice-Facile