360CB - Calefacción DOVRE - Manual de uso y guía de instrucciones gratis
Encuentra gratis el manual del aparato 360CB DOVRE en formato PDF.
Preguntas frecuentes - 360CB DOVRE
Preguntas de los usuarios sobre 360CB DOVRE
0 pregunta sobre este aparato. Responde a las que conoces o haz la tuya.
Hacer una nueva pregunta sobre este aparato
Descarga las instrucciones para tu Calefacción en formato PDF gratis! Encuentra tus instrucciones 360CB - DOVRE y toma tu dispositivo electrónico nuevamente en la mano. En esta página están publicados todos los documentos necesarios para el uso de su dispositivo. 360CB de la marca DOVRE.
MANUAL DE USUARIO 360CB DOVRE
Declaración de conformidad 3
Seguridad 4
Condiciones de instalacion.4
Condieones generales 4
Chimenea 4
Ventilación de la estancia 5
Suelos y paredes 6
Descripción del producto 6
Instalacion 8
Preparación 8
Montar las patas (solo para 350CB y 360CB) 8
Montar soporte de asa 8
Preparación del adaptor de conexión.. 9
Montar panel lateral (solo 350CB3 y 360CB3)
Colocacion e instalacion 11
Uso.
Primer usq 11
Combustible 11
Encendido 11
Alimentar con madera. 12
Extinction del fuego 13
Eliminado de cenizas 13
Niebras y brumas 14
Posibles problemas 14
Mantenimiento 14
Chimenea.14.
Limpieza yOTHERMANTENIMIENTo periodico. 14
Anexo 1: Especificaciones技术水平… 17
Anexo 2: Medidas. 18
Anexo 3: Distancia a materiales.
inflammables.23
Anexo 4: Diagnóstico de problemas. 26
27
Introduccion
Estimado cliente,
con la compra de este aparato de calefaction
DOVRE, ud. ha adquirido un producto de calidad.
Este producto forma parte de una nuevo generation de aparatos de calefacción respetuos con el medio ambiente y con un consumo de energia mas eficiente. Estos aparatos hacen un uso optimo tanto del calor por convecacion como del calor por irradiacion
Su aparato DOVRE ha sido fabricado con los mas
moderos procesos de fabricacion. En caso de averia en su aparato, pueda enviar su reclamacion. Este acto declaral serviceo专业技术e DOVRE.
El aparato no pueda modificarse; utilise siempre Dovre nv, Nijverheidsstraat 18 B-2381 Weelde, componentes originales.
El aparato está 创建 para el uso en viviendas.
Debe connectarse de manière hermetica a chimenea que funciona correctamente.
que las estutas de leña 350CB, 350CB3, 350CB3/WB, 360CB y 360CB3 se producen en conformidad con la norma EN 13240.
Le aconsejamos que haga instalar su aparato por un instalador certificado.
DOVRE no se hace responsable de los problemas de Welde 03-09-2005 o daños originados por la instalación inadequada de sus produits.
- Durante la instalación,onga en cuenta los consejos de seguridad que se describe a continuación.
En este manual podra leer como instalar, utilizar y mantener su aparato de calefacción DOVRE de manera segura. Si desea Obtener mas informacion o datos技术和aderencias, o si Tiene problemas con la instalacion,pongase en contacto con su distribuidor.

© 2012 DOVRE NV
En el marco de la mejor continua de nuestros Productos, las specifications del aparato suministrado peuvent variar de aquellas descritas en este manual, sin necessities de previo avis.
DOVRE N.V.
Correo electrónico :
info@dovre.be

Seguidad
Atencion! Siga las instrucciones de seguidad del fabricante al pie de la letra.
Lea atentamente las instrucciones para la instalacion, uso y mantenimiento del aparato antes de ponerlo en funciona bajo.
La instalacion del aparato debe cumplir con todas las normativas y regulaciones vigentes en su País de residencia.
El aparato debe cumplir con todas las dispositions locales y las dispositions que tengan relacion con normativas naciales o europeas.
Lea las instrucciones sobre la instalacion, use y mantenimiento que vienen suministradas con el aparato.
Haga instalar su aparato por un instalador certificado. Esteoulda informarle de todas las dispositions y normativas vigentes.
Este aparato se ha disnado para fines de calefacion. Todas las superficies delismo, incluyendo el cristal y el tubo de conexion, poderan alcanzar temperatas muy elevadas (más de 100^) ! Para Manipular el aparato cuando esté en functiOnamento,utilice una "manofria" o quantes protectores contra el calor.
Evite colocar cortinas, prendas, ropa lavada u.
otros materiales inflamables sobre el aparato en las cercanias del mesmo.
Cuando el aparato está en funciona, n utilise sustancias inflamables o explosivas en las proximas.
Evite incendios en la chimenea haciéndola limpiar periodicamente. Nocede la puerta abierta@mstead el fuego esté encendido
En caso de fuego de chimenea: ciderre las entradas de aire del aparato y llama a los bomberos.
En caso de que el cristal de su aparato se roto o agrietado, deben reemplazar el cristal antes de volver a utiliser el aparato.
Mantenga la habitacion donde secoloque el aparato bien ventilada. Una ventilacion insufiente de la habitacion可以使 producir una combustion insufficiente y la liberacion de gases toxicos. Consulte la section "Condiones de instalacion" para saber mas sobre la necessities de ventilacion.
Condiciones de instalación
Condiciones generales
El aparato debe connectarse a una chimenea en\
buen estado
Para realizar la connexion: lea el anexos "Especificaciones Tecnicas"
Informese en su département local de bomberos y / o en su compañero aseguradora sobre posibles requisitos y prescricciones.
Chimenea
La chimenea o conducfo de humos es necessities para:
La evacuation de los gases inflamables, mediante el tiro natural.
El aire caliente que está dentro de la chimenea es más ligero que el aire exterior, y este provoca que el aire se eleve.
La succion del aire, necessitiesa para la combustion del combustible dentro del aparato.
dUn conductor de humos en mal estado能把 occasionar el returno de los gases alAbrir la puerta del aparato. Los daños producidos por el returno de gases estan excluidos de la garantia.
No connecte various aparatos a la mismam Chimenea (por exemple, conectar además del aparato, una caldera de calefacción central), a menos que las normativas locales o naciasas asi lo permitan.
Su instalador pode asesorarle sobre las normativas de seguidad de la chimenea.Consulte la Normativa Europea EN13384 para hacer un calculo adecuado de la capacité de su chimenea.
La chimenea debe cumplir con las siguientes conditions :
La chimeneaDebe estar fabricada en materiales ignificugos,preferentamente materiales ceramicos o acero inoxidable.
La chimenea doit estar herméticamente cerrada bien limpia, y doit asegurar un tiro sufiente.
Lo ideal es encontrar un tiro/presión de 15 - 20 PA durante una energia normal.
La chimenea debe ser lo mas vertical posible - desde el punto de calidad del aparato-.Las desviaciones y / o posibles tramos horizontales dificultan la evacuation de los gases inflamables, pudiendo originar acumulaciones de hollin.
El interior del tubo no debe ser demasiado grand para evaporar que los gases inflamables se enfienden demasiado rápido y se reduzca la capacité de tiro.
Es aconsejable que la chimeneaonga el mismodiametro que el cuello de conexion del aparato.
i Para el diametro nominal: consulte el anexo "Especificaciones Tecnicas" Cuando el conductor de humos está bien aislado, el diametro pueda ser algo mas grande (como maximo el doble de la section del cuello de conexion).
La seccion (superficie) del conducto de humos ha de ser constante en toda su longitud. Los ensanchamientos y (muy especialmente) los estrechamientos peuvent obstaculizar la evacuation de los gases inflamables.
Al aplicar la caperuza o sombrerete sobre la chimenea: evite que la caperuza estreche la calidad de la chimenea o que obstaculice la liberacion de gases de combustion.
La chimenea debe desembocar en una zona del Puede crear una ventilacion adiconal poniendo un atjado que no este obstaculizada por edificios rejilla de ventilacion en algoo de los muros exteriores. adjacentes, arboles cercanos u otheros obstaculos. de la habitacion.
La parte de la chimenea situada fuera de la viviendaDebe estar aislada.
La chimenea deben tener una alta minima de 4 metros.
Puede seguir esta sencilla regla sencilla: 60~cm sobre la parte mas alta del tejado.
Si el caballete del tejado está situado a más de 3 metros de laitters de la chimenea: sigas las medidas indicadas en la?sigaiente imagen.A = el punto mas alto del tejado bajo de una distancia de 3 metros.

Ventilación de la estancia
Para que la combustión sea adecuada, el aparato necessities aire (oxigeno) Este aireenta por las tomas de aire regulables y procebe del espacio en el que está situado el aparato.
Unavilacioninsuficanteocasonauna combustion incompleteyla consiguiente liberacionde gases toxicos.
Una regla sencilla es que la entrada de aire debe ser de 5,5cm^2 /kW . Se necessitiesa ventilacion adicular en los seguidentes casos:
- Cuando el aparato está en un espacio bien aislado.
Cuando existe ventilación mecánica en el espacio, p.ej. un sistema de extracción de aire central, o una campana extractora en una comida abierta.
Puede create una ventilacion adiconal poniendo una rejilla de ventilacion en algoo de los muros exteriores de la habitacion.
Procure queothersaparatosdeairecaliente(como secadoras,aparatosdecalefacionocalefactoresde bano)tengan su propio accesodeaireexterior,ouque estén apagadosm吲traselaparatoestafionando.
Suelos y paredes
El suejo sobre el cui se coloca el aparato debe t una calidad dearga suficiente.El peso del aparato se encuentra en el anexo "Especificacionestecnicas"

Proteja los sueños inflamables instalando una placía ignífuga que los aislen de la radiación calor. Consulte el anexo "Distancia con materiales inflamables".

Retire los materiales inflamables como el linóleo, las alfombras, etc. de debajo de la placà ignífuga.

Mantenga siempre una distancia de seguridad entre el aparato y materiales inflamables tales como paredes de madera y muebles.

Tenga en cuenta que el tubo de conexión también irradia calor. Procure que haya sido suficiente distancia o proteccion entre el tubo de conexion y los materiales inflamables.
La regla de tres para un tubo sencillo esdeer una distancia equivalente a tres vezes el diametro. En caso de que el tubo lleve un revestimiento protector, esta distancia peutre reducirse a una vez el diametro.

Las alfombras deben colocarse a una distancia minima de 80 cm del fuego. 3.

Proteja los sueños inflamables delante de la 4. Entrada de aire primaria del aire de combustión estufa instalando una placaprotectora ignifuga para protegerlo contra la posible caida de penizas. Dicha placaprotectoraDebe complir 6. Colector de ceniza con las regulaciones naciales vigentes.

Encontrará las medidas de la placaprotectora ignifuga en el anexo "Distancia de materiales Caracteristicas del modelo 350CB y 360CB inflamables". El operato está previsto de netto cuutables en

Para mas requisitos de seguridad contra incendios, consulte el anexo "Distancia de materiales inflamables".
Descripción del producto
Modelo 350CB y 360CB

-
Toma de aire secundaria del aire de combustion, aire air-wash
-
Puerta
-
Salva-troncos
-
Entrada de aire primaria del aire de combustión
- Pata adjustable
- Colector de ceniza
- Bloqueo
S Characteristicas del modelo 350CB y 360CB
El aparato está provisto de patas ajustables en alta.
El aparato se pueda conectar a la chimenea en la parte posterior o superior o en el costo.
El aparatoiene con un asa sutla.
ParaAbrirlaspuertas,coloqueelasa suela en la puerta;vea lasiguiente figura.

Para evaporar que el asa se caliente durante elfuncionamento,可以更好 colgarse en el soporte deasa bajo el colector de ceniza del aparato.
El modelo es suministrado con un asa suelta de hierro fundido, para sacar el cajón cenicero, la denominada "mano fria"; vea lasuma figure.

El aparatoiene provisto de un recogedor para limpiar el excesso de cenizas.
Modelo 350CB3 y 360CB3

- Toma de aire secundaria del aire de combustión, aire air-wash
- Puerta
- Salva-troncos
- Entrada de aire primaria del aire de combustión
- Colector de ceniza
- Bloqueo
- Vidrio lateral
Characteristicadelmodelo350CB3y 360CB3
Estos modelos tienen las mismas caracteristicas que los modelos 350CB y 360CB, con exception de los siguientes+puntos:
El aparato no es regulable en alta.
El vidrio lateral (7) se pueda reemplazar por un panel lateral. La distancia minima hasta el material inflamable hacía el costo disminuya, en ese caso, de 80 cm a 40 cm. El panel lateral es suministrado de manière estándar.
Modelo 350CB3/WB
Characteristicadelmodelo350CB3/WB
Este Modelo posee las mismas caracteristicas que modelo 350CB3.
El aparato posee un cajón para madera, que se cierra con una puerta.
Instalación
Preparación
Nada mas recibir el aparato, compruebe que no tengá daños (por exemple de transporte) u otros posibles defectos.

Si detecta danos o defectos en el aparato, encienda el aparato todas ypongase en contacto con su vendedor.
Retire los componentes desmontables (placas refractarias, cajon cenicero) del aparato antes de instalarlo.

Quitando these components desmontables, le sera mas fácil Manipular y mover el apain dañarlo.

Fijese en la posicion original de these elements antes de retirarlos, para que recuerde su posicion afterwards de la instalacion.
-
Abra la puerta.
-
Retire primero las placas refractarias.

Las instalas de hierro protegen la camarara de combustión y transmits el calor al exterior.
Montar las patas (sólo para 350CB y 360CB)
Si lo desea, pueda proveer al aparato con patas ajustables en alta. Monte las patas en el aparato; vea la?siguefte figura.

1d. Ladee el aparato de espaldas.
- Monte las patas ajustables en alta (A) con los pernos suministrados M6 (C) y la arandela (B) a la alta deseada.
- Coloque el aparato sobre las patas recién puestas en la posicion original.
Montar soporte de asa
Monte el soporte de asa suministrado (A) con la arandela (B) y el perno M8 (C) en la base del aparato; vea la figura suiviente.

Preparación del adaptor de conexión
Al conectar el aparato a la chimenea, pueda optar entre realizar la connexion en la parte superior, lateral o en la parte posterior. Vea los párafos "Conectar en la parte superior o en el costado" y "Conectar en la parte posterior".
Alentaragelaparato,no hayabertura de gas residual.
La masilla refractaria y los materiales de fijación vienen suministrados con el aparato.

Para Alemania, el aparato es suministrado con un cuello de connexion con un diametro de 130 mm.
- Cuando se utilizes la conexión posterior del aparato, es necesario realizar una abertura en el escudo tírmico. El escudo técnico muestra una incisión en el punto en el que se debe realizar esta abertura.
Preparación para conectar en parte posterior
Haga la abertura Needed en el escudo tírmico.
- Enganche el escudoTERMICO del aparato.
- Haga una abertura en el escudoTERMINO cortando con la cizalla recta la parte precortada del escudoTERMICO.
- Coloque nuevomente el escudoTERMINO en el aparato:
Conectar en la parte superior, en la parte posterior o al costo.
Haga primero la abertura del gas residual en el aparato, quitando la tapa de ciderre. Utilice las herramentas suministradas: un tirador, la arandela, el pero y la tuerca; vea la?sigue figura.

Realice un orificio de 10 mm de diametro en el centro de la cubierta.
2. Coloque el extractor con el perno en la parte interior de la cubierta.
3. Deslice la arandela por el tornillo y enrosque la tuerca en el tornillo.
En los aparatos con superficies esmaltadas, colocque un carton de como minimum 20 cm por 20 cm entre la arandela y el aparato para protegerlo contra posibles desprendimientos del esmalte..
Apriete el tornillo con la mano. Utilice un poco de grasa para poder el giro del tornillo.
Apriete el tornillo con una llave tubular hasta perforar la cubierta.
6. Es possible cerrar una abertura para gases una vez abierta realizando la cubierta suministrada (A).
Utilice la plac de fijacion (C) y el tornillo M6x25 (D) para montar la cubierta en el aparato (B); vexe la?sigue imagen.


7. Monte el cuello de conexión (C) con las dos bridas suministradas (E) y los materiales de sujección (A) y (B) en la abertura de gas residual (D); vea la.),!.
8. Utilice la masilla para chimeneas suministrada para el sellado del cuello de connexion y la tapa de cierre con el aparato.
Montar panel lateral (sólo 350CB3 y 360CB3)
Si lo desea, pueda reemplazar el vidrio lateral por el panel lateral hermético suministrado de manière estándar; vea para las instrucciones de Construcción la",[sicuya] figura.
La distancia minima hasta el material inflamable hacia el costo disminuye, en ese caso, de 80 cm a 40 cm.

Colocación e instalación
- Coloque el aparato en un lugar adecuado, sobre una superficie lisa y nivelada.
- Conecte herméticamente el aparato a la chimenea.
- En caso de connexion a suministro de aire exterior, conecte el suministro del aire exterior al set de connexion que ud. ha instalado en el aparato.
- Vuelva a colocar los elementos desmontados en el aparato.

No encienda nunca el aparato sin las placas refractarias interiores.
El aparato ya está lista para su uso.
Uso
Primer uso
Cuando utilise el aparato por primera vez, déjelo encendido a fuego lento durante algumas horas. Este hara que la pintura anticalorica se endurezca. Esto podra produir algo de humano y olores desagradables
Ventile la habitacion abriendo puertas y ventanas.
Combustible
Este aparato unicamente es apto para quemar materia natural serrada, hendida y suficientemente seca.
No实用性 whatsoever. Ya que estos podriandar no aplicado.
Los siguientes combustibles no deben utiliser para contaminan el medio ambiente y además ensucian considerablemente la chimenea, pudiendo poderar un occasionar un incendio de chimenea:
Maderas tratadas como maderas de deshecho, maderas pintadas, maderas impregnadas, maderas tratadas, multiplex y agglomerado.
Plástico, papel usado y residuos domesticos.
Madera
Utilice preferentemente maderas duras como roble, haya, abedul y madera de arboles fructales.Esta madera quema mas lentamente y con menos llama. Las maderas de coniferas contienen mas resina, queman mas rápido y producen mas chispas.
- Utilice maderas secas con un percentaje maximo de humedad del 20% . Paraarlo, las maderas deben dejearse secar al menos 2 años.
Tale y corte las maderas cuando todas esta esan verdes. La madera verde se corta mas fácilmente, ior:)mstead que la madera cortada seca mejor y mas rapidido. Almacene la madera bajo techo, en un lugar donte circule libremente el viento.
No utilise maderas humedes en el aparato. Las maderas humedes no producen calor debido a que la energia se pierde al evaporarse la humedad. Este produce acumulaciones de holin en la puerta del aparato y en el conducto de humos. El vapor de agua se condensa en el aparato y se filtra al exterior a工程技术 de las juntas, pudiendo occasionar manchas negras en el suejo. Además, el vapor de agua podra condensarse en el conducto de humos, formando creosota. La creosota es una sustancia muy inflamable y pueda original incendios en la chimenea.
Encendido
Compruebe que el conducto de humosiene tiro suficiente encendiando una bola de papel de periodicos sobre el deflector de humos. Una chimenea fria tendr a un tiro insufiente, lo que occasiona la entrada de
yumo en la habitacion. Encendiendo el aparato del
como que le indicamos a continuación, evitará este problema.
- Coloque dos lenos de時間 medio-grande cruzados entre si.
- Coloque sobre los lenos dos capas de leña mas1. Abra despacio la puerta del aparato.
fina de forma encruzada. - Coloque una pastilla de encendido bajo la capa inferior de leña y enciéndala siguiendo las instrucciones que venden en el paquete de la misma.
- Abra despacio la puerta del aparato.
- Reparta lasbrasas por la base de fuego de manera homogenea.
- Colique varios lenos sobre lasbrasas.

Alimentar con madera
Una vez que haya encendido el fuego tal y como se especifica en las instrucciones:
Apilado de madera suelta

Apilando los lenos de眼看 a suelta, la madera se quema mucho mas rápido, ya que el oxigeno pueda
- Cierre la puerta del aparato y abra las entradas llagar a todas las partes de la madera. Utilice un aire principal y secundaria del aparato. La entradaiplemento suelto si quiere conseigir un fuego de aire principal está abierta cuando el pulsadorráidamente.
la valvula no está pulsado. La entrada de aire secundaria está abierta cuando el regulador de (C) aparece girado hacía la izquierda; VEase la.),
siguienteImagen. - Deje que el fuego arda intensamente hasta que quede una capa debrasas vivas. Introduzca lasiguiente carga de leña en el aparato; consulte apartado "Alimentar con madera".

Apilamento compafo

Apilando los lenos de manera compacta, la madera sntroducir regularmente pequeñas cantidades de quema mas lentamente, ya que el oxigeno no可以选择 lenos es mejor que/agregar muchos bloques al跖gar a todas las areas de la madera. Utilice un mismo tiempo. apilamento compacto si desea tener el fuego encendido durante是多么 tiempo. Extinction del fuego
-
Cierre la puerta del aparato.
-
Cierre la entrada de aire principal y doit abiera entrada secundaria.

Llene el aparato hasta un maximum de un terc de su capacité.
Deje deañadir combustible y que el fuego se vaya agagando por si mesmo. No intente sofocar el fuego reduciendo la entrada de aire: podrjan liberarse gases tóxicos. Deje que el fuego se consumes por si mesmo. Pigile el fuego hasta que este esté bien apagado. Una vez que el fuego se haya extinguido Completely,oulda cerrar todas las entradas de aire.
Consejos

No deje la puerta abierta@m间隙s el fuego encendido

Encienda un fuego vivo de vez en cuando.
Si tiene el aparato calentando a fuego lentodurante mucho tiempo, podrián formarse depositos de alquitrán y creosota bajo de chimenea. La carbonilla y la creosota son materiales muy inflamables. Si se producendemasiados sedimentos de这些东西 materiales,pueden inflamarse si se alcanzanrepentinamente grandes temperatas. Encendiendo de vez en cuando fuegosintensos, se eliminan los posibles restos decarbonilla y creosota.
Además si el fuego esblemado débil pueda acumularse alquitrán en el vidrio y en la puerta del aparato.
Por ello, en caso de una temperatura exterior suave es preferible departing que el aparato caliente a fuego fuerte duranteunas horas queURTARLO calentar a fuego lento durante mucho tiempo.
Regule la entrada de aire con la entrada de aire secundaria.

La entrada de aire secundaria airea no solo fuego, sino el cristal del aparato, evitando as la acumulación de sueidad.
Abra la toma de aire principal si la entrada de aire por la secundaria es insufiente, o si quiere avivar el fuego. 3.
Eliminado de cenizas
Cuando se quema madera en el aparato, siempre queda unaLEEa cantidad de cenizas.Esta cama de cenizas no solo es un buena aislante para la base de fuego del aparato, sino que ademas favorece la combustion. Asi que peut dejar una capa final de acenizas en el suejo del aparato.
No obstaculice la entrada de aire situada en el suelo de la chimenea nicede que se acumule ceniza en la parte posterior de las placas de hierro. Paraarlo, elimine de forma periodica el excesso de cenizas.
- Abra la puerta del aparato.
- Use la pala de ceniza suministrada para Abrir la parrilla de limpieza; vea la figura suiviente.

- Retire el excesso de ceniza con la pala de ceniza工程技术 de la parrilla de limpieza y échela al cajón cenicero; vea la siguientes figura.

-
Cierre la parrilla de limpieza.
-
Retire el cajón cenicero con la mano fria de hierro fundido y vacie el cajón cenicero; vea lasuma figura.

- Vuelva a colocar el cajón cenicero en su situó y cierra la puerta del aparato.
Nieblasybrumas
Las nieblas y las brumas en el exterior pudendificar la calidad de los gases inflamables por la chimenea. EstasULDuenhacerqueelhumobaje el conducto y ocasione olores.En conditionedes Niebras orbrumas,le recomendamos que no utilise aparato a menos que sea realmente necessario.
Posibles problemas
Consulte el anexo "Diagnóstico de problemas" para SOLUTIONAR posibles problemas durante la utilización del aparato.
Mantenimiento
Siga las instrucciones de mantenimiento que se describen en esta sección para tener su aparato en las mejoras conditiones.
Chimenea
En muchos paises, la ley obliga a revisar yninger un mantenimiento regular de los conductos de humos.
Al principio de la temporada de calefacción: haga limpiar la chimenea por un deshollinadorrial.
Durante la temporada de calefacción y si la chimenea no se ha utilisé durante un长大o periodo de tiempo: haga que un technician综合素质 controle los niveles de Hollín.
Al final de la temporada de calefacción: ciderre la chimenea mediante una bola de papel de periodico.
Limpieza yOTHERMantenimiento periodico.

No limpie el aparato cuando este todas esta está caliente.
Limpie el exterior del aparato con un paño seco que no suele pelusas.
Al final de la temporada de frios, limpie muy bien el interior del aparato:
Para ello, retire primero las placas refractarias.
- Alternatively, you can also consider the following two methods.
Retire y limpie el deflector de humos. En el capitulo "Instalacion" encontrará instructaciones sobre como extraer y colocar el deflector de humo.
pComprobar las placas refractarias
Las instalas refractarias son consumibles sometidos a un gran desgaste. Revise regularmente las instalas refractarias y sustitúyalas si fuera besoinario.
En el capitulo "Instalacion" encontraras instrucciones sobre como extraer y colocar las instaladas refractarias.
i
Las placas refractarias aislantes de vermiculitaSEO.
puede做不到arqueas gretas sin que estotoenga un efecto adverso en sufuncionamento.
i
Dado que el deflector de humo está provisto de muescas, a también costados, se pueda sacar sin problemas a lo largo de las levas en los costados y del aparato.
i
Las placas de hierro interiores duraran mucho tiempo si limpia las cenizas acumuladas en su parte posterior regularmente. Si no retina la acumulación de ceniza de la placía esta no Souldra proyeatar el calor correctamente y puedaninger a deformarse o rajarse.
Limpieza del cristal
No encienda nunca el aparato sin las placas refractarias.
Si el cristal se limpia correctamente, la suciedad tardadaas en acumularse. Proceda de la?sigaune manera:
- Quite el polvo y la suciedad con un paño seco.
- Limpie el cristal con un limpiador especial para cristales de estufa:
a. Extienda el limpiador con una esponja de cucina, frote la superficie del cristal y déjelo actuaranosocos.
e la b. Retire la sueidad con un paño humedo o papel de cocina.
Quitar el deflector de humano
El deflector de humos está fjado mediante un perno situado entre la conexión posterior y el conductor de entrada de aire secundaria. Este perno está atornillado al deflector de humos.
-
Vuelva a limpiar el cristal con su producto por; limpiacristales habitual.
-
Desatomille la tuerca situada en la parte posteriore vexe la suiviente imagen.
-
Seque el cristal con un paño seco o con papel de cocina.

No utilise produits abrasivos o corrosivos para limpiar el cristal.
Utilice sempre quantes para proteger sus manos.
En caso de que el cristal de su aparato se haya roto o agrietado, deben reemplazar el cristal antes de volver a utiliser el aparato.
No deje restos del limpiador de cristales para estufas entre el cristal y la puerta de hierro.
Engrasado
Aúnque los componentes de hierro ya son de una manera autoengrasantes, deben lubricar las partes moviles con cierta regularidad.
Lubrique las partes mviles (como sistemas de guiado, pernas, pestillos y tomas de aire) con grasa especial para chimeneas, que encontrar a en establecimientos especializados
- Tire del deflector hacía afuera de tal modo que tuerca se suele de la parte posterior.
- Extraiga el deflector de humos por la puerta frontal.
la Ajuste del regulador de tiro
Si el regulator de tiro (C) de la entrada de aire secundaria está demasiado río, es posible ajustarlo utilizing los tornillos (A) y (B) situados en la placá frontal; véase la siguientes imagen.


Reparar danos en el acabado
Puede reparar微量元素 danos en la pintura con un aerosol de pintura anticalorica que pourrait adquirir a工程技术 su proveedor habitual.
Comprobación del sellado
- Compruebe que la junta de sellado de la puerta cierra correctamente. Este material se deteriorara con el tiempo y ha deambiarse regularmente.
Compruebe que el aparato no tengas fugas de aire. Selle posibles rendijas con masilla para chimeneas.

Deje que la masilla se endurezcompletamente antes de encender el aparato, si no la humedad de la masilla se evaporara yla fuga volverá aAbrirse.
Anexo 1: Especillasiones|tecnicas
| Modelo | 350CB y 350CB3 | 360CB y 360CB3 | 350CB3/WB |
| Potencia nominal 6 kW 8 kW 6 kW | |||
| Conexión de la chimenea (diámetro) 125 mm | 125 mm 125 | mm | |
| Conexión de la chimenea Alemania (diámetro) | 130 mm 130 | mm 110 mm | |
| Peso +/- 95 kg +/- 130 kg +/- 130 kg | |||
| Combustible recommendado Leña | Leña | ||
| Característica combustible, longitud máximo. | 30 cm | 40 cm | 30 cm |
| Caudal@másico de gases residuales | 6.6 g/s | 8.2 g/s | 6.6 g/s |
| Aumento de la temperatura medido en la sec- de medicación | 298 K | 297 K | 298 K |
| Temperatura medida en la calidad del aparato | 442 °C, como máximo. | 438 °C, como máximo. | 442 °C, como máximo. |
| Tiro minimo | 12 Pa 10 Pa | 12 Pa | |
| Emissione de CO (13%D) | 0,10 % | 0,10 % | 0,10 % |
| Emissione de NOx (13%D) | 125 mg/Nm3 | 90 mg/Nm3 | 125 mg/Nm3 |
| Emissione de CnHm (13%D) | 82 mg/Nm3 | 113 mg/Nm3 | 82 g/Nm3 |
| Emissiones de partículas | 10 mg/Nm3 | 39 mg/Nm3 | 10 mg/Nm3 |
| Emissiones de partículas según la norma NS3058-NS3059 | 3,58 gr/kg | 7,86 gr/kg 3,58 gr/kg | 58 gr/kg |
| Rendimiento | 77 % | 75 % | 77 % |
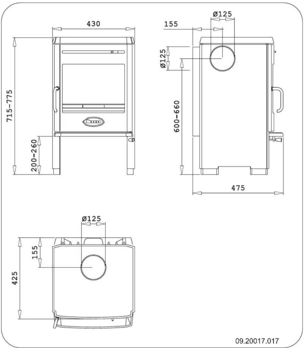
Anexo 2: Medidas
350CB

350CB3

350CB3/WB



09.20017.019
360CB


360CB3
Anexo 3: Distancia a materiales inflamables
350CB, 350CB3, 350CB3/WB - Distancia minima en milimetros









09.20017.036
| * Tubo | de conexión protegido (aislado) |
| Materiales inflamables | |
| Material ignífugo, grosor 100 mm |
360CB y 360CB3 - Distancia minima en milimetros









09.20017.037
| * Tubo | de connexion protegido (aislado) |
| Materiales inflamables | |
| Material ignífugo, grosor 100 mm |
350CB, 350CB3, 350CB3/WB, 360CB y 360CB3 - Medidas placignifug

Anexo 4: Diagnóstico de problemas
| Problema | |||||
| ● | Leña no termina de arder | ||||
| ● | No da suficiente calor | ||||
| ● | Retorno de homo cuando se agrega combustible | ||||
| ● | El fuego arde demasiado fuerte, no se pueda regular bien. | ||||
| El vidrio se opaca | |||||
| posible causa解決ión | posible | ||||
| ● | ● | ● | tiro insufiente | Una chimenea fría produce casi tiempo un tiro insufiente. Siga las instrucciones sobre el encendido en el capitulo "Uso"; abra una ventsa. | |
| ● | ● | ● | Leña demasiado humeda Utilice siemre leña con un máximo del 20% de humedad. | ||
| ● | ● | ● | Leños demasiado grandes | Utilice trozos de leña pequeños. Utilice trozos de leña cortados con un contorno máximo de 30 cm. | |
| ● | ● | ● | ● | La leña no está bien apilada | C Coloque la leña de talmana que el aire pueda pasado entre los bloques (apilamento abierto, véase "alimentar con leña"). |
| ● | ● | ● | Funciambre insufiente de la chimenea | Asegúrese de que la chimenea cumpla todos los requisitos: 4 metros de alto como minimo, diametro adecuado, bien aislada, interior liso, sin demasiados recovecós, sin obstrucciones (nidos de pájaro, demasiado depuesto de hollín), herméticamente cerrada (sin fisuras). | |
| ● | ● | ● | Laitters de la chimenea no es correcta cearce elementos que la obstruyan. | Laitters de laitters de laitters de laitters de laitters de laitters de laitters de laitters de laitters de laitters de laitters de laitters de laitters de laitters de laitters de laitters de laitters de laitters de laitters de laitters de laitters de laitters de laitters de laitters de laitters de laitters de laitters de laitters de laitters de laitters de laitters de laitters de laitters de laitters de laittera. | |
| ● | ● | ● | Tomas de aire en posición incorrecta | Abra Completely las entradas de aire. | |
| ● | ● | ● | La condón entre el aparato y la chimenea no es correcta | La condón deestibe estar herméticamente cerrada. | |
| ● | ● | ● | Presión minima en el espacio donde encontrar el aparato | Se Apague todos los sistemas de extracción de aire | |
| ● | ● | ● | Suministro insufiente de aire fresco | Cree una corriente de aire fresco, por ejemplo utilizingando una toma de aire exterior. | |
| ● | ● | ● | ∠Condiciones climáticas adversas? Inversión térmica (cambio de direction en la corriente de aire Dente de la chimenea debido a las elevadas temperatas extremó), vientos de fuerza extrema | En los casos de inversionión térmica, desaconsejamos el uso del aparato. Si fuera necesario, ponga una caperuzaa la chimenea. | |
| ● | Corrientes en la habitación | Evite las corrientes de aire en la habitación; no instale el aparato en las cercanas de puertas o de fuentes de aire caliente. | |||
| Las llamas tocan el cristal | Eviteponer los leynos demasiado cerca del cristal. Cierre un poco más el accesdo aire principal | ||||
| ● | El aparato tiene fugas de aire Comprue la junta de sellado de la puerta y las juntas del aparato. | ||||
Indices
A
abertura para gases cerrat.9
Abrir
cajón cenicero.14.
advertencia conditions de seguro.4
Advertencia limpiador de cristales de estufa..15...
Agregar combustible
returno de homo.26
Alfombras 6.
Almacenaje de madera..11
Alquitrán 13
Apilado de lenos 12
Aumento de la temperatura
seccion de medicacion. 17
Aviso
cristal roto o agrietado 4,15
fuego de chimenea 11,13
incendido de la chimenea 4
materiales inflamables 4
normativas 4
placas refractarias interiores 11
superficie caliente 4
ventilacion 4-5
B
Bruma, no encender. 14
C
Cajon cencero abric. 14
Capacidad de energia. 6
Caperuza 5
Caperuza sobre chimenea. 5
Chimenea altura 5
condiciones 5
conexión a. 11
diametro de conexion 17
mantimiento. 14
Colocacion medidas 18
Combustible adequado 11
agregar. 13
cantidad necessities 14
Ilenado 13
no apto 11
Combustible adequado. 11
Combustible no apto 11
Condiciones climatologicas, no encender.... 14
Conectar a la chimenea parte superior. 9
Conectar en la chimenea parte posterior. 9
Conexión medidas. 18
Creosota 13
Cristal limpieza 15 opacimiento. 26
Cuello de connexion montar. 10
D
Deflector de humos desmontar 15
E
Eliminado de cenizas 13
Eliminar cenizas 13
Eliminar cenizas. 13
Emissiones de particulas 17
Encendido 11-12
calor insufficiente 14, 26
el aparato no se pueda regular. bien. 26
el fuego ardeblemado fuerte. 26
introducir combustible. 12
introducir el combustible. 13
Engrasado. 15
Entrada de aire principal 12
Entrada de aire secundaria. 12
Entradas de aire 12
Escudo temico
hacer la abertura 9
hacer una abertura. 9
quitar 9
Extinguir el fuego 13
F
Fuego
encendido 11
extinction.13
Fuego de encendido.11
Fuga de aire..16.
G
Gas residual
caudal másico 17
Grasa para engrasado.15
H
Humo
en el primer uso.11
1
Introducir el combustible..13.
J
Junta de sellado puerta.16
L
Laca 11
Lena
no termina de arder 26
Leñahawk 26
Limpiador de cristales de estufa 15
Limpieza
aparato 14
cristal. 15
Limpieza de la chimenea 14
M
madera 11
Madera
almacenado 11
húmeda 11
secar 11
tips inadequados 11
Madera de coniferas 11
Maderahumeda. 11
Mantenimiento
chimenea 14
engrasado 15
limpieza aparato. 14
limpieza cristal 15
placas refractarias 14
sellado 16
Materials inflamables
distancia a 23
Medidas 18
N
Niebla, no encender. 14
Nivel de llenado maximal del aparato 13
0
Oxigenación del fuego 13
P
Panel lateral
montar. 10
Paredes
seguridad contra incendios 6
Parrilla de limpieza
retirar. 13
Patas
montaje 8
Peso 17
Placas ignifugas
aviso. 11
Placas refractarias
mantimiento 14
Potencia nominal. 14, 17
Prevencion fuego de chimenea 13
Puerta
junta de sellado 16
R
Recogedor para la limpieza de las cenizas. 7
Regular entrada de aire.13.
Rejilla de ventilacion 5
Reparar danos en el acabado. 16
Returnode gases 4
Returno de homo. 26
s
Secado de la madera 11
Seguridad contra incendios
distancia a materiales inflamables 23
muebles.6
paredes 6
suela.6
Solucn de problemas.14,26
Soporte de asa
montar.8
Suelos
capacidad de energia 6
seguridad contra incendios.6
Suministro de aire exterior 5
conexión a. 11
T
Tapa de cierre
quitar 9
Temperatura 17
Tiro 17
Tomas de aire
ajuste 15
V
Ventilación 5
regla de tres 5
Vidrio limpieza 15
Vidrio laterla reemplazar. 10
Vidrios opacimiento 26
Contenuo
Introduzione 3
ManualFácil