Norin - Sauna Karibu - Notice d'utilisation et mode d'emploi gratuit
Retrouvez gratuitement la notice de l'appareil Norin Karibu au format PDF.
| Caractéristiques | Détails |
|---|---|
| Type de produit | Sauna |
| Matériaux | Bois de qualité, généralement en épicéa ou en pin |
| Dimensions | Variable selon le modèle, généralement adapté pour 2 à 4 personnes |
| Source de chaleur | Poêle à sauna électrique ou à bois |
| Température maximale | Jusqu'à 90-100°C |
| Utilisation | Relaxation, amélioration de la circulation sanguine, détoxification |
| Entretien | Nettoyage régulier avec des produits adaptés, vérification des éléments électriques |
| Sécurité | Éviter l'utilisation en cas de problèmes de santé, respecter les consignes d'utilisation |
| Installation | Doit être installée dans un endroit ventilé et à l'abri de l'humidité |
| Garantie | Variable selon le vendeur, généralement entre 2 et 5 ans |
FOIRE AUX QUESTIONS - Norin Karibu
Téléchargez la notice de votre Sauna au format PDF gratuitement ! Retrouvez votre notice Norin - Karibu et reprennez votre appareil électronique en main. Sur cette page sont publiés tous les documents nécessaires à l'utilisation de votre appareil Norin de la marque Karibu.
MODE D'EMPLOI Norin Karibu
D Montage- und Bedienungsanleitung Assembly and Operating Instructions F Instructions de montage et mode d'emploi Istruzioni per il montaggio e l'uso E Instrucciones de montaje y de servicios NL Montage-instructies en handleiding CZ Navod k montázi a použiti


Montage des Saunahelzgerates
Électroanschluss
- Sommaire
- Généralités
- Consignes de sécurité importantes
- Instructions de montage
Montage de l'appareil de chauffage pour sauna
- Instructions pour l'électricien(ne)
- Résistance d'isolement/valeurs ohmiques
Tableau puissance du poêle/taille de la cabine/raccord
- Schémas des connexions BioKombiofen 9kW
- Mettre les pierres du sauna sur la grille de pierres
Remarques générales relatives à la projection d'eau et au mode d'évaporateur :
- Remarques relatives aux poèmes bios (avec évaporateur)
Nettoyage de l'évaporateur
- Types de bains
- Utilisation d'additives :
- Que faire en cas de problème?
Plan des pièces de rechange et
- listes des pièces de rechange
- Déclaration CE de conformité
- Bulletin de garantie
- Formulaire de suivi du service
1 Indice
Montage des Saunahezgerates
Veuillez, avant le raccordement et la mise en service, lire consciencieusement ce mode d'emploi pour éviter tout dommage.
Consignes de sécurité importantes
- Le poêle de sauna est autonome en tant que sous-ensemble et ne répond pas pleinement aux exigences normatives sans commande appropriée. Le poêle de sauna doit uniquement être raccordé à une commande de sauna contrôle avec un limiteur de température de protection de 140°C et être ainsi exploité, dans le cas contraire, le risque d'incendie est élevé.
- Le montage du poèle de sauna doit uniquement être effectué par un electricien qualifié, sachant que la norme EN 60335-2-53 tout comme les mesures locales d'installation et de protection contre l'incendie doivent être respectées. Le poèle de sauna est exclusivement destiné à un usage domestique privé, télécommande interdite, pas de montage caché. Utilisez uniquement des commandes contrôlées avec un limiteur de température de protection (140^) selon EN 60335-2-53.
- Pour utiliser le poêle de sauna, il faut utiliser une commande contrôlée selon EN 60335-2-53, la commande doit répondre au moins aux exigences suivantes :
- La commande doit limiter la température de la cabine de sauna à 135°C. Un limiteur de température de protection conforme à ces exigences doit être intégré dans la commande de sauna utilisée. Dans le cas contraire, le risque d'incendie est élevé.
- Une minuterie, qui limite la durée de fonctionnement à un maximum de 6 heures, doit être intégrée dans cette commande, un redémarrage automatique n'était pas autorisé. Pour les poêles de sauna avec évaporateur supplémentaire intégré, seule une commande de sauna con
contrôle selon EN 60335-2-53, qui comprend également une régulation de l'humidité, peut être utilisée.
- Poêle de sauna à usage domestique privé, télécommande interdite, pas de montage caché, utilisez uniquement des appareils de commande adaptés avec limiteur de température de protection selon les indications du fabricant.
- Le montage et le raccordement électrique du dispositif de sauna et d'autres matériaux d'exploitation électriques doivent uniquement être effectués par un(e) spécialiste en électricité dûment autorisé(e). (sauf Plug + Play)
- Respectez absolument les mesures de protection selon VDE 0100 § 49DA/6 et VDE 0100, partie 703/11.82 § 4. Même lorsque toutes les mesures de protection nécessaires sont respectées, il est impossible d'exclure complètement tout risque d'accident.
- Afin d'assurer un fonctionnement de votre appareil sans danger, vous devez respecter les consignes de sécurité dans le chapitre correspondant.
- Le poêle de sauna doit être exploité avec un appareil de commande externe approprié. Le poêle pour sauna bio requiert pour la commande de l'évaporateur une commande de sauna avec module d'humidité ou en supplément une commande d'humidité séparée. Le montage et la commande sont expliqués dans le mode d'emploi de l'appareil de commande en question.
- Dans la cabine du sauna, on doit monter un seul poêle de sauna avec une puissance de chauffage correspondante (voir tab.).
| Puisance absorbée [kW] | Surface de la cabine \( \left\lbrack {\mathrm{m}}^{3}\right\rbrack \) |
| 4,5 9,0 | \( < 7{\mathrm{\;m}}^{3} \) \( 6 - {14}{\mathrm{\;m}}^{3} \) |
- Il est interdit d'utiliser l'appareil dans les saunas commerciaux et les immeubles d'habitation.
- Attention, risque de brûlure. Le boîtier du poêle de sauna et les pierres deviennent brûlantes.
- Il existe un danger d'incendie du à un montage non conforme aux règles de l'art. Veuillez lire les instructions de montage avant de l'utiliser pour la première fois. Respectez particulièrement les cotes et les consignes suivantes. Utilisez exclusivement des pierres de sauna homologuées pour l'emploi en sauna. Placez les pierres du
sauna sans forcer, lorsqu'elles sont trop serrées, il y a risque de surchauffe.
- Le fonctionnement sans pierres du sauna n'est pas autorisé.
- Maintenez les enfants à l'écart des poêles de sauna, risque de brûlures!
- Demandez un conseil médical sur la température et la durée du sauna en cas de problèmes de santé, pour les jeunes enfants, les enfants, les personnes âgées ou handicapées.
- N'arrosez pas trop, une trop grande quantité d'eau sur les pierres peut entraîner une brûlure par liquide chaud. La quantité de projection d'eau ne doit pas dépasser 15g/m³ du volume de la cabine.
- N'utilisez pas le sauna pour faire sécher des objets, des vêtements ou du linge. Risque d'incendie!
- Ne posez pas d'objet sur le poèle. Risque d'incendie!
- Ne placez pas d'objet dans le courant de convection du poèle, sauf le capteur de température de la commande du sauna.
- Les surfaces métalliques peuvent rouiller dans un climat humide et océanique.
- Il est possible que le poêle fasse du bruit (craquement) pendant sa phase de réchauffement (les bâtons de chauffage métalliques et les pierres se dilatent)
- Les installations et les cabines de sauna doivent exclusivement être fabriquées en matériaux ajustats sans résine et non traités (p. ex. l'épicéa nordique, le peulier ou le tilleul).
- La température la plus élevée admise pour la surface des murs et du plafond de la cabine de sauna s'élève à +140 °C.
- Avec le temps, les parois de la cabine s'assombrissent dans la zone du poêle de sauna plus que dans le reste de la cabine, c'est normal. Les réclamations ne sont pas remboursées.
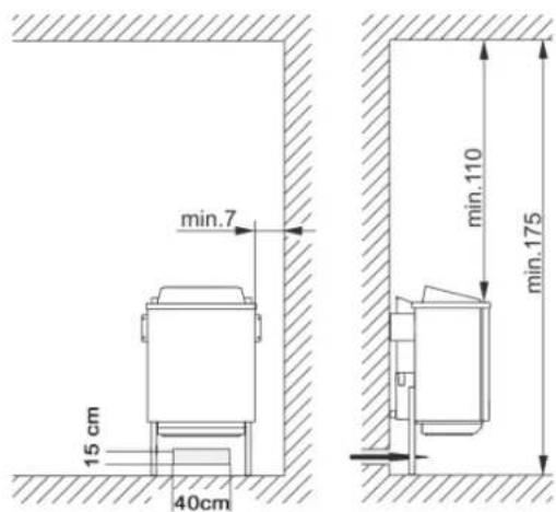
- La hauteur de la cabine du sauna doit s'élever au moins à 1,75 m.
- Il faut prévoir des bouches d'aspiration et de refoulement dans chaque cabine du sauna. Le trou d'aération doit se couvrir sur le mur, juste sous le poêle de sauna, à environ 5 à 10 cm au-dessus du sol. L'orifice d'air sortant doit être placé diagonalement par rapport au poêle, dans la zone entre la couche supérieure et
la couche inférieure, dans la paroi arriere. Les bouches
d'aspiration et de refoulement ne doivent pas être obturées. L'éclairage de la cabine avec l'installation correspondante doit être « protégé contre les projections d'eau » dans le modèle et approprié pour une température ambiant de 140°C. Par conséquent, il faut installer-en relation avec le poêle de sauna- uniquement une lampe pour sauna contrôlée de maxi.40 watts.
- Cet appareil peut être utilisé par les enfants à partir de 8 ans et les personnes avec des capacités physiques, sensorielles ou intellectuelles diminuées ou en manque d'expérience et de connaissances à condition qu'ils soient surveillés ou aient reçu les instructions relatives à l'utilisation sûre de l'appareil et qu'ils comprennent les risques résultant de cette utilisation. Les enfants n'ont pas le droit de jouer avec l'appareil. Les enfants ne doivent pas effectuer le nettoyage et la maintenance de l'utilisateur sans surveillance.
Attention!
N'utilisez aucun revêtement de sol en matière inflammable (bois, matières plastiques ou autres) sous le poêle ! Les carreaux de céramique sont fonctionnels dans les saunas.
Dans la zone sous le poêle, les revêtements de sol non inflammables ou le matériel du jointoiement peuvent changer de couleur.
Les revêtements du sol ou le mur du sauna dont la couleur a changé ou ceux endommagés ne seront pas remplacés.
L'écartement entre la paroi arrière du poêlé et le mur de la cabine est prévu par le type de construction (support mural).
Le poêle doit être raccordé électriquement sur la fixation murale avant le montage. Le poêle pour sauna est conçu pour des tailles de cabines allant jusqu'à 9-14 m³.
Pour sauna
Montez les pieds à l'aide des vis jointes à la livraison (4 pièces M5 x 12) à la paroi arrière du four. Tôle de fond montée sur la chemise intérieure par 4 vis à tôle 3,9 × 9,5. L'introduction du câble secteur dans la boîte à bornes doit être effectuée au niveau du forage prévu à cet effet. - Après le raccord électrique du câble secteur, verrouillez la boîte de bornes avec le couvercle (écarteur vers l'extérieur) à nouveau. - Mettre le four de sauna la bouche d'aération. Fixez le support mural du four de sauna au mur de la cabine à l'aide des vis à bois fournies. Introduisez la grille de pierres et déposez les pierres du sauna (cf. Description "Couvrir la grille de pierres avec les pierres", chap., Nettoyage et entretien.)



Remarque:
Le dispositif de commande peut être détruit par un mauvais raccordement. La garantie devient caduque en cas de mauvais raccordement.
Instructions pour l'électricien(ne)
Pour raccorder le poète et toutes les installations électriques, il faut respecter la directive DIN VDE 0100 et la directive de prévention des accidents BGV A2. Le client doit prévoir un dispositif externe de séparation pour tous les pôtes à mise hors circuit complète, conformément à la catégorie de surtension III.
Attention
Les câbles de raccordement secteur doivent être des câbles souples enveloppés de polychloroprene. Les câbles de raccordement ne sont pas compris dans la livraison! Tous les câbles posés à l'intérieur de la cabine doivent être appropriés à une température ambianted'au moins 140°C. Il convient d'utiliser des câbles en silicone résistants à la chaleur. La section transversale minimale du câble de raccordement et la taille minimale de la cabine du sauna figurent dans le tableau (p. 5 tabl. 1). Un schéma des connexions est apposé sur la face interne du recouvrement de la boîte de commutation. Pour des raisons de sécurité, veillez à ce que les câbles électriques restent invisibles au niveau des parois internes de la cabine. Lorsqu'il s'agit de cabines de sauna préfabriquées, celles-ci comportent la plupart du temps des gaines ou une conduite vide pour la pose des câbles dans l'élément mural avec l'ouverture d'entrée d'air. Si votre cabine n'est pas préparée pour la pose des câbles, nous recommandons d'installer une prise de raccordement sur la partie extérieure de la cabine (non comprise dans la livraison). Percez un trou dans la paroi de la cabine à côté de l'entrée du câble du poêle et de la prise de raccordement. Faites passer le câble à travers le trou vers l'extérieur pour le brancher sur la prise de raccordement. Tous les câbles doivent être protégés de l'endommagement. Pour ce faire, on peut utiliser des gaines ou des conduites d'installation ou recouvrir les câbles par des baguettes de bois. Le poêle de sauna ne doit pas être mis en service sans dispositif de protection adapté! Le montage est uniquement autorisé par des personnes compétentes. Respectez obligatoirement la norme EN 60335-2-35 tout comme les mesures locales de protection contre les incendies et d'installation!
Contrôle de la résistance d'isolement :
On peut mesurer les valeurs de résistance de l'isolement entre chacune des bornes de conducteur et le boîtier (terre de protection) à l'aide d'un appareil de mesure approprié. La résistance d'isolement totale entre les bornes de connecteur et le boîtier (terre de protection) doit en tout cas être supérieure à 1MOhm. Valeurs ohmiques des poèmes : 33 - 39 Ω Bio-Kombiofen 9 kW.
| Poèle | Puisance kW | Contenu de la cabine m3 | Sections minimums en mm2 ( ligne en cuivre) Bio-Saunaofen poèle raccordement à 400 V AC 3N | ||
| sauna bio | Conduite d'alimentation du secteur du réseau à l'unité de commande | Ligne de raccordement du four de l'unité de commande au four (silicone) | Protection par fusibles en ampères | ||
| 4,5 kW | 4,5 < 7 5x2,5 | x 1,5 16 | |||
| 9,0 kW | 9,0 6 -14 5x2,5 | x 1,5 16 | |||
Poèle pour sauna blo

bornes de conducteur et le boitier (terre de protection) à l'aide d'un appareil de mesure approprié. La résistance d'isolement totale entre les bornes de connecteur et le boitier (terre de protection) doit en tout cas être supérieure à 1MOhm.
Valeurs ohmiques des poèmes :
33-39Ω Bio-Kombiofen 9 kW
Mettre les pierres du sauna sur la grille de pierres
Les pierres du sauna sont naturelles! Il est recommandé de nettoyer les pierres à l'eau claire avant de les poser sur le poêle. N'utilise aucune pierre non prévue pour l'emploi dans un sauna. Utilisez max. 12 kg de pierres. Attention! Placez les pierres sans les serrer. Retirez les pierres trop petites. Lorsqu'elles sont trop rapprochées les unes des autres, les pierres empêchent la circulation de l'air, ce qui fait surchauffer le poêle et les murs du sauna. Risque d'incendie! Ne pas exploiter le poêle sans pierres! Utilisez exclusivement des pierres comportant la marque des pierres pour sauna dans le commerce. La garantie devient caduque lorsque d'autres pierres que celles prévues pour les saunas sont utilisées, tout comme pour les dommages en rapport avec un remplissage non conforme du compartiment à pierres. Déplacez les pierres au moins 1 fois par an, éliminez les pierres trop petites et retirez la poussière de pierre ou les éclats de pierre présents. Il est conseillé de remplacer les pierres tous les 2 ans.
Attention!
Le fait de recouvrir le poêle ou de mal remplir le compartiment à pierres entraîne un risque d'incendie. Ne pas faire fonctionner les poêles sans pierres.



Remarques générales relatives à la projection d'eau et au mode d'évaporateur :
Remplissez le récipient au maximum jusqu'au repère, ceci correspond à env. 3,3 litres de quantité de remplissage.
Pour des raisons d'hygiène, le réservoir doit être rempli juste avant le fonctionnement du sauna et être vide puis nettoyé après son achèvement. Utilisez exclusivement de l'eau dont les qualités satisfont aux exigences posées à l'eau ménagère.
Si vous utilisez de l'eau calcaire ou ferrugineuse, des dépôts apparaissent sur les pierres et la surface métallique et dans le réservoir d'eau.
Pour éviter le risque de brûlures dues à la vapeur, devenant de plus en plus chaude au fur et à mesure de la projection d'eau, faites-le toujours par le côté, avec la louche.
Des gouttes d'eau de la projection d'eau s'écoulant sur le sol de la cabine peuvent faire des tâches tenaces.
N'arrosez pas trop, une trop grande quantité d'eau sur les pierres peut entraîner une brûlure par liquide chaud.
Dosez la projection d'eau en fonction de votre bien-être. Sa quantité ne doit cependant pas dépasser 15 g/m³ du volume de la cabine.
La projection d'eau se fait directement sur les pierres chaudes dans le poêle et doit absolument être répartie régulièrement sur les pierres.
Si vous employez des concentrés pour sauna (par exemple des huiles essentielles), respectez les consignes du producteur.
Si vous utilisez des concentrations élevées de ce produit, cela peut conduire à

des déflagrations.
Les projections d'eau mélangées à des boissons alcooliques ou autres additives non prévus pour être employés en sauna sont également interdites en raison du risque d'incendie, d'explosion et de celui pour la santé.
Ne versez pas d'eau dans l'espace intermédiaire du logement du réservoir d'eau.
La garantie est caduque en cas de non-respect des points signalés plus haut!
Remarques relatives aux poêles bios (avec évaporateur)
L'évaporateur est régulé via le module d'humidification du poste de contrôle de sauna correspondant ou via un poste de contrôle de l'humidité externe. Le montage et le raccordement des appareils de commande sont indiqués dans les modes d'emploi correspondants.
Attention! RISQUE de brulures!
De la vapeur sort du dessus de l'évaporateur lorsqu'il est en marche. Risque d'échaudure dans la zone de sortie de la vapeur!
Laissez toujours le réservoir de l'évaporateur dans la cuve de logement prévu à cet effet pendant le fonctionnement du poêle de sauna. Retirez uniquement le réservoir pour le remplissage et / ou le nettoyage.
Evitez que des personnes, y compris des enfants, dont les capacités psychiques, sensorielles ou mentales ou qui manquent d'expérience et/ou de savoir n'utilisent l'évaporateur sans surveillance.
N'exploitez jamais l'appareil durablement sans eau. Un fonctionnement sans eau peut entraîner un défaut de l'évaporateur.
Utilisez exclusivement de l'eau dont les qualités satisfont aux exigences posées à l'eau ménagère.
Si vous utilisez de l'eau calcaire ou ferrugineuse, des dépôts apparaîtront sur les pierres et la surface métallique et dans le réservoir d'eau.
Déposez les paquets d'herbes aromatiques et remplissez le bol de l'évaporateur, avant la mise en service. Pendant le service, mettez
l'évaporateur hors circuit, le cas échéant, retirez-le. Remplissez le bol de l'évaporateur uniquement après que le couvercle de protection a refroidi! Ne mettez pas de projection d'eau directement dans le réservoir de
l'évaporateur. Les adjuvants dans le réseau de l'évaporateur moussent facilement et cisent trop. Respectez les consignes du producteur!
Remplissage du réservoir jusqu'au repère supérieur.
Cette quantité est suffisante pour env. 40 min de fonctionnement continu (en fonction du degré d'entretrement de la plaque chauffante).
On peut sortir le réservoir de son logement pour le remplir.
Ne versez jamais de l'eau dans la cuve de logement du compartiment de l'évaporateur.
N'exploitez pas l'évaporateur sans sa grille, risque d'échaudure!
Attention à l'eau chaude qui déborde.
Les projections d'eau mélangées à des boissons alcooliques ou autres additifs non prévus pour être employés en sauna sont également interdites en raison du risque d'incendie, d'explosion et de celui pour la santé.
Après chaque utilisation en mode humide, laissez refroidir l'appareil et vidangez l'eau résiduelle puis nettoyez le réservoir.
La garantie est caduque en cas de non-respect des points cités plus haut !
Remarque :
Pour la plupart des postes de contrôle avec module d'humidité, la température du sauna est limitée à 60-70°C pour des raisons de sécurité.
Nettoyage de l'évaporateur
Essuyez l'extérieur du réservoir de l'évaporateur et le socle uniquement avec un chiffon humide.
Ne plongez pas le réservoir dans l'eau et ne le mettez pas dans la machine à laver la vaisselle.
Il est possible de détartrer le réservoir de l'évaporateur et la plaque de chauffage avec un adoucisseur habituel (par exemple de l'essence de vinaigre, l'acide citrique). Il faut respecter les instructions de dosage de l'adoucisseur en question.
Si on utilise du produit à vaisselle ou un adoucisseur, il faut bien rincer ensuite le réservoir!
N'utilisez aucun récurant ni nettoyant corrosif.
Après chaque séance de sauna, laissez refroidir le réservoir, puis videz et rincez-le minutieusement à l'eau claire!
Types de bains
Avec l'évaporateur intégré et l'unité de commande ajustée, vous avez la possibilité de faire le réglage pour plusieurs types de bains. En plus du sauna finlandais classique avec des températures entre C et C avec une humidité très faible (max. 15%), vous pouvez également profiter d’un bain humide et/ou aux herbes médicinales avec des températures entre C et C.
La durée d'un bain humide doit être entre 15 et 30 minutes, en fonction du
bien-être. D'autres bains sont possibles après une pause de repos.
Formes de bains (diagramme de l'humidité/de la température)
L'humidité de l'air dans la cabine dépend de la taille et du mode de cabine du sauna ainsi que de la température.
Il faut veiller au fait que lorsque la température monte, la quantité de vapeur d'eau nécessaire à la saturation augmente.
Utilisation d'additifs :
Veillez à n'utiliser que des essences d'herbes médicinales pures et solubles dans l'eau ou un sachet d'herbes médicinales conditionné composé d'huiles végétales ou synthétiques. Ajoutez le produit dilué légèrement à l'eau dans le bol de l'évaporateur. Les paquets d'herbes doivent être placés sur la grille de l'évaporateur prévu à cet effet. Les matières odorantes des herbes médicinales se libèrent grâce à la vapeur montante et se répartissent avec la vapeur qui monte dans la cabine. N'utilisez jamais les concentrés pour projection d'eau de sauna. Ne mettez jamais les adjuvants et les concentrés pour projection d'eau directement dans le réservoir de l'évaporateur. Les adjuvants dans le réservoir de l'évaporateur moussent facilement et débordent! Attention! Les projections d'eau peuvent faire des taches sur les surfaces métalliques et les pierres à sauna. Les projections d'eau aux senteurs de citron peuvent faire des taches de rouille en raison de leur teneur en acide. N'utilisez pour la projection d'eau que des produits sous forme diluée, prescrits par le producteur.
N'utilise jamais d'alcool ni d'autres adjuvants non prévus pour le sauna, risque d'incendie, d'explosion et risques pour la santé !
Le poêle ne chauffe pas...
-Avez-vous actionné tous les interrupteurs nécessaires? - Les fusibles de l'installation interne ont sauté ? -Le régulateur de température est-il correctement réglé? -Poste de contrôle de sauna défectueux (rupture de la sonde : cf. mode d'emploi de l'appareil de commande). -Interrupteur différentiel se déclenche, cf. chapitre Contrôle de la résistance d'isolement
Le poêle produit des bruits de craquements
Lors de la mise en température ou du fonctionnement, les pièces du carter et les bâtons de chauffage se dilatent. Les bâtons de chauffage peuvent déplacer des pierres du sauna et faire du bruit. « Les bruits de craquements sont normaux et ne sont pas une raison de réclamation. »
Les pierres du sauna éclatent et sont odorantes
- Utilisez exclusivement les pierres recommandées par le producteur. Pierres trop vieilles, remplacez-les.
La cabine n'est pas suffisamment chaude
-Le poêle de sauna est trop petit
-Mode humide activé ? La température de la cabine est éventuellement limitée. Pour le mode finnois, mettez l'humidité hors circuit. Trop grande perte de température de la cabine du sauna p. ex. à cause de mauvais joints, ou de joints manquants. Mauvais affichage du thermomètre du sauna. Montez le thermomètre plus haut et avec env. 3 cm d'écart par rapport au mur du sauna. -Faites contrôler et mesurer un défaut de bâton de chauffage (bâton de chauffage ne rougeoit pas) par un(e) spécialiste electricien(ne).
L'évaporateur ne fonctionne pas
-La commande de l'évaporateur n'est pas activée. Aucune eau dans le récipient.

Nos produits sont soumis à un contrôle de qualité très strict. Si cet appareil avait toutefois ne pas fonctionner impeccable, nous en serions désolés. Dans un tel cas, nous vous prions de bien vouloir prendre contact avec notre service après-vente à l'adresse indiquée sur le bulletin de garantie. Nous restons également volontiers à votre disposition au numéro de téléphone de service indiqué plus bas. Pour faire valoir une demande de garantie, ce qui suit est valable:
- Les conditions de garantie régissent les prestations de garantie supplémentaires. Vos droits de garantie légaux ne sont en rien altérés par la garantie présente. Notre prestation de garantie est gratuite.
- La prestation de garantie s'applique exclusivement aux défauts occasionnés par des vices de fabrication ou de matériel et est limitée à l'élimination de ces défauts ou encore au remplacement de l'appareil. Veillez au fait que nos appareils, conformément à leur affectation, n'ont pas été construits pour être utilisés dans un environnement professionnel, industriel ou artisanal. Un contrat de garantie ne peut avoir lieu dès lors que l'appareil est utilisé à des activités dans des entreprises professionnelles, artisanales ou industrielles ou toute autre activité du même genre. Sont également exclus de notre garantie : les prestations de substitution de dommages dus aux transports, les dommages occasionnés par le non-respect des instructions de montage ou en raison d'une installation non conforme, du non-respect du mode d'emploi (comme par exemple le raccordement à une mauvaise tension réseau ou à un mauvais type de courant), les applications abusives ou non conformes (comme par exemple une surcharge de l'appareil ou encore l'emploi d'accessoires non homologués), le non-respect des prescriptions de maintenance et de sécurité, l'infiltration de corps étrangers dans l'appareil (comme par exemple du sable, des pierres ou de la poussière), l'emploi de la force ou l'influence extérieure (comme par exemple les dommages dus à une chute), ainsi que l'usure normale conforme à l'utilisation. Ceci est particulièrement valable pour les accumulateurs pour lesquels nous offrons toutefois une période de garantie de 12 mois. Le droit à la garantie disparaît dès lors que des interventions ont lieu sur l'appareil.
- Le délai de garantie s'élève à 2 ans et commence à la date de l'achat de l'appareil. Les demandes de garanties doivent être représentées avant écoulement du délai de garantie, dans les deux semaines suivant le moment auquel le défaut a été reconnu. Toute reconnaissance de demande de garantie après écoulement du délai de garantie est exclue. La réparation ou l'échange de l'appareil n'entraîne nullement une prolongation de la durée de garantie. Elle ne fait pas non plus commencer un nouveau délai de garantie, en raison de cette prestation, pour l'appareil ou pour toute autre pièce de rechange intégrée. Ceci est également valable lorsqu'un service après-vente sur place a été consulté.
- Pour faire reconnaître vos demandes de garantie, veuillez nous envoyer l'appareil défectueux franco de port à l'adresse indiquée ci-dessous. Ajoutez à l'envoi l'original du bon d'achat ou de tout autre preuve de l'achat datée. Veuillez donc toujours bien conserver le bon d'achat en guise de preuve! Décrivez la raison de la réclamation le plus précisément possible. Si le défaut de l'appareil est compris dans notre prestation de garantie, nous vous retournerons sans délai un appareil réparé ou encore un nouveau.
Bien entendu, nous sommes prêts également à réparer les appareils défectueux contre remboursement des frais, dès lors que l'appareil n'est plus ou pas garanti. Pour ce faire, veuillez envoyer l'appareil à notre adresse de service après-vente.
Uniquement pour les pays de l'union européenne
Ne jetez pas les outils électriques dans les ordures ménagères.
Selon la norme européenne 2002/96/CE relative aux appareils électriques et systèmes électroniques usés et selon son application dans le droit national, les outils électriques usés doivent être recueillis à part et apportés à un recyclage respectueux de l'environnement.
Possibilité de recyclage en alternative à la demande de renvoi :
Le propriétaire de l'appareil électrique est obligé, en guise d'alternative à un envoi en retour, à contribuer à un recyclage effectué dans les règles de l'art en cas de cessation de la propriété. L'ancien appareil peut être remis à un point de collecte dans ce but. Cet organisme devra l'éliminer dans le sens de la Loi sur le cycle des matières et des déchets. Ne sont pas concernés les accessoires et ressources fournies sans composants électroniques.

La réimpression ou une autre reproduction de la documentation et des documents d'accompagnement des produits, même incomplète, n'est autorisée qu'avec l'agrément exprès de l'entreprise ISC GmbH.

Sous réserve de modifications

Notice Facile