Norin - Sauna Karibu - Bezplatný návod k obsluze
Najděte návod k zařízení zdarma Norin Karibu ve formátu PDF.
Často kladené otázky - Norin Karibu
Stáhněte si návod pro váš Sauna ve formátu PDF zdarma! Najděte svůj návod Norin - Karibu a vezměte svůj elektronický přístroj zpět do rukou. Na této stránce jsou zveřejněny všechny dokumenty potřebné k používání vašeho zařízení. Norin značky Karibu.
NÁVOD K OBSLUZE Norin Karibu
-
Návod pro elektröinstalatéra
-
Izolačni odpor / ohmové hodnoty
Tabulka vykonu kamen / velikosti kabiny / pfivodu
-
Schemata zapojeni:BioKombiofen 9kW
-
Pokladani saunovych kamenu
Vseobecne Pokyny k polevani a provozu s odpafovacem:
- Pokyny pro biokamna (s odpařováčem)
Vseobecne informace k odpaovaci
Ciscenje i nega i spanyaca
-
Typi [azni]
-
Jak postupovat pfi problemech?
Vázéná zákaznice, vázeny zákazniku, před zapojenim a uvedenim spotřebie do provozu si pozorné prečěte tento námod k použití, budete tak moci predejit pripadný škodám.
Duležite bezpecnostní pouky
Saunová kamna jsou jako dlící prístroj samostatná a bez odpopvidajího ovládání neodpovidaji zcela normativnim požadavkum.
Saunová kamna je možné pripojovat pouze k atestovanému saunovému ovladani s ochranným omezovacem teploty na 140 °C a takto provozovat, jinak vzníka závažné nebezpečí požáru.
Montáž saunovych kamen smí provadět pouze odborny elektrikár, prčemž je nutnodbát normy EN 60335-2-53 a dale mistrě platnych predpisů ohledné instalace a protipozární ochrany.
Saunová kamna jsou urcena pouze k používani v soukromí, nikoli ke komerčním učelúm; dalkove ovladání je nepřípustné, stejně tak není prípustné instalace se zákrytím. Použijte pouze atestová ovladání s ochranným omezovacém teploty (140 °C) podle normy EN 60335-2-53.
- Pro provoz saunovych kamen se musi použit ovladani atestované podle normy EN 60335-2-53; toto ovladani musi splnovat prinejmenšim následujíci požadavky:
- Ovladani musi omezovat teplotu v saunové kabině na 135 °C. Do použitého ovladani sauny musí byt integrovan ochranny omezovac teploty, který odpovidá těmto požadavkūm, protoze jinak vzníka závažné nebezpečí požáru.
- Do tohoto ovladani musi byt integrovany i spinaci hodiny, ktere omezi dobu provozu sauny na max. 6 hodin, priemz neni priustne samocinné opetovné zapnuti.
U saunovych kamen s integrovanym prida-vnym odpa-rovacem se smi pouzit pouze ovladani sauny atestované podle normy EN 60335-2-53, jehoz soucasti je i regulace vlhkosti.
Saunová kamna pro použití v soukromí / v domácnostech, dálkové ovladání je nepri-pustné, nesmi byt nainstalována tak, aby byla zakrytá, používejte pouze vchodné ovladaci prístroje s ochranným omezovacem teploty podle udajú vyrobce.
Montáž a elektricky privod saunového príslušenstvi a dalsich elektrickych spotřebiečù smí realizovat vyhradné kvalifikovaný odborník na elektrínu. (vyjma Plug + Play) - Zde je t'reba respektovat zejména bezpečnostné opatřeni podle predpisů VDE 0100 § 49 DA/6 a VDE 0100感染者 703/11.82 §4. Veskerá rizika nelze vyloučit ani pri dodržovani vsech potrebnýchpreventivnich a bezpečnostné opatřeni.
- Aby bylo możné zajistit bezrizikovy provoz vašeho spotřebiece, respektujte bezpodmi-nečné bezpečnostní poukyny a predpisy.
- Saunová kamna se používaji ve spojení s vchodnou externí rídici Jednotkou
Saunová biokamna potbrebuji pro rizeni odpařovace ridici Jednot ku sauny s modulevlhkosti nebo navic samostatnou regulacivlhkosti. Informace o montáži a obsluze najdete v navodu pris lušného rídiciho pristroje.
V kabinet sauny smi byt namontovano vzdy Jen jegno saunove topenis odpovidajcim vykonem (viz tabulka).
| Příkon [kW] | Velikost kabiny \( \left\lbrack {\mathrm{m}}^{3}\right\rbrack \) |
| 4.5 | \( < 7{\mathrm{\;m}}^{3} \) |
| 9.0 | 6-14 m³ |
- Tento pristroj není vhodný pro používani v komerčnich saunach pro verejnost a v bytovych domech.
- Pozor! Nebezpeci popaleni. Plast saunovych kamen a kameny se silne ohrivaji.
CZ
- Pri neodborne provedené montázi hrozi nebezpecí požáru. Pečlive si prectete námod k montázi. Věnujte pozornost zejměna udajum o rozměrech a nasledujícím informacím aPokúnám.
- Používejte jen saunové kameny, které jsou povoleny k provozu sauny. Saunové kameny vkládejte volné; jsou-li saunové kameny vloženy prilis huste, vzníka riziko prehrátí
- Provoz bez saunovych kamenu není dovolny.
- Děti držte stranou od saunovych kamen - nebezpečí popálení!
V priadě zdravotnich omezení, u malych detí, starych osob a postiženych si vyžádejte radu lékáře ohledné teploty v sauné a delky saunováni. - Nedovolte používat zařizení osobám, které jsou pod vlivem léků, alkoholu nebo drog.
- Polévejte jen s mirou; prilis velké množstv vody na kamenech muze zpúsobit opareni. Množstv vody pri polevání nesmí prekrocit 15 g/m³objemu kabiny.
Saunu nepouzivejte k suseni predmetu, odevu ani pradla. Nebezpeci pozaru! - Na kamna neodkládejte zádné prédměty. Nebezpečí požáru!
- Do konvekčniho proudeni kamen nevkládeje tžadné predměty, s vyjimkou teplotního Čidlařidici Jednotky sauny.
Kovové povrchy mohou ve vlhkém prostředi a v primošekém klimatu rezivě.
Kamna mohou bēhem faze ohrevu a za pro-vozu vydávat praskani (kov, topné tyce a kameny se Rozpinaji).
Zarifzeni saun a saunové kabinky smejí byt vyrobeny vyhradne z vhodného materialu bez povrchove upravy a s nizkým obsahem pryskyric (napřiklad severský smrk, topol nebo lipa). - Prípustná maximálne teplota povrchu stěn a stropu saunovací kabinky Činí 140 °C.
Steny kabiny v prostoru saunovych kamen tmavnou silneji nez zbytek kabiny, to je normálni. Reklamace se neprijimaji.
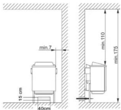
Vyska kabiny sauny musi cinit min. 1,75 m.
V kaźde saunové kabinet musí byt vetraci a odvetravaci otvory. Na stěné, primo pod sau novymi kamny, cca 5-10 cm nad zemi musí byt vetraci otvor. Tyto odvetravaci otvory musí byt usporadány v zadni stěné dia gonálné ke kamnúm, v oblasti mezi horním a dolním saunovým lehátkem. Vetraci a odvetravaci otvory nesmeji byt uzavréné. Osvétlení kabiný s príslušnou instalaci musí byt v provedeni chroněné proti odstrikujíci vodě a vchodné do prostředí s teplotami do 140^ . Dále musí byt spolu se saunovými kamny instalováno osvétlení sauny s osvedćenímspríkonem max. 40 W.
Tento pristroj smej pouzivat deti starsi 8 let a osoby se snizenymi fyzickymi, smyslovymi nebo duševnimi schopnostmi nebo s nedostatečnymi zkušenostmi a vedomostmi pouze tehdy,Pokud jsou pod dohledem nebo pamukbyly pouceny ohledne bezpećného použí-vani pristroje a Rozuměji nebezpecim, ktera mohou v dusledku použiti vzniknout. Deti si nesměj s pristrojem hrat. Cişteni a udrzbu nesměj provadet deti bez dohledu.
Návod k montáži
Pozor!
Pod kammy nepoužíveje zháné podlahové krytiny z hořlavého materiálu (napřiklad dřevo nebo plast)! V sauně jsou vchodné keramické dlăžíce
V oblasti pod kamny muze dojit ke zbarveni i nehoilavych podlahovych krytin
nebo spárovaciho materialu. Za poskozeni nebo zbarveni podlachovych krytin
nebo stén sauny se neposkytuje zádná nahrada. Vzdalenost mezi zadni
sténou kamen a sténou kabinye je rovnéž dana konstrukci spotfe bice (drzak na zdi). Kamna musi byt pfed montaží elektricky pripojena k drzáku na. Saunová kamna jsou koncipována pro kabiny do velikosti 6-14 m³.
Montáž topení do sauny
- Podstavce namontujte na zadni stenu kamen pomoci pri-lozenych sroubu (4 ks M5 x 12).
- Plech na podlahu namontujte 4 samořznými srouby 3,9 x 9,5 na vnitřni plast.
- Privod elektrického napajeni protáhněte do svorkovnice otvorem, ktery je k tomu určeny.
- Po elektrickem pripojeni sifoveho kabelu znovu uzavretesvorko vnici krytem (rozperou smerem ven).
Saunová kamna postavte préd otvr, kterym dovnitr vstupuje vzduch. Držák saunovych kamen na stenu upevněte prilozenymi vruty do dfeva ke stěné kabiny.
Pri montazi saunovych kamen je nutne dbat na to, aby svisla vzdalenost mezi horni hranou kamen a stropem sauny cinila nejmene 110 cm, vodorovna (bocni) vzdalenost mezi kamny a stenou kabiny musi cinit nejmene 7 cm. Vzdalenost mezi dolni hranou a podlahou je dana konstrukcni radou pristroju
(nastavitelne nohy). Vzdalenost mezi zadni stenou kamen a stenou kabiny je rovnéž dana konstrkčni radou (zpusobupevneni na zd).
Vzdalenost mezi ochrannou mizkou kamen, lavici a pripadne jinymi hoflavymi materiely musi cintj jemnene 7 cm.Vyska ochranné mizky se musi shodovat s vyskou predni steny kamen.



Upozorněni:
I jedine chybné zapojeni muze zcela znicit fidici pristroj. V pripadé chybného zapojeni zanika narok na plněi ze zaruky.
Návod pro elektröinstallatéra
Při prjpojovani kamen a vsech elektrickych zařizeni je nutné dodržovat normu DIN VDE 0100 a predpis ochrany zdravi pri práci BGV A2. V miste instalace musi byt zajistěn privod s odpojovacim zařazenim vsech polu a s plnym odpojenim v souladu s prepěfovou kategorí III.
Pozor:
Jako sifove pripojovaci vedeni musi byt pouzito ohebné vedeni s polychloroprenovym plastem. Ppiopojovaci vedeni neni soucasti dodavky! Vsechna vedeni uvnitkabiny museji byt vchodna do teploty prostfedi nejmene 140°C. Je tfeba pouzivat tepelné odolné silikonové vedeni. Minimalni pruzez privodnilho vedeni a minimali velikost kabinny sauny jsou uvedeny v tabulce (str. 5, tab. 1). Schema ppiopojen je upevneno na vinitri stranu krytu svorkovnice. Respektute fakt, ze vedeni privodnilho napajeni nemeju byt z bezpecnostnich duvodu instalovana na vinitrnich stenach kabinny na viditelna mista. U prefabrikovanych saunovych kabin jsou ve stenovem pvku s privodnim vzduchovym ovtem vetsinou k dispoczici prazdné trubky nebo sachta pro instalaci kabelu. Pokud vase kabinna neni predem priapravena na instalaci kabelu, doporuucjeme nainstovalat na vnëjsi stranu kabinny pripojovaci zasuvku (neni soucasti dodavky). Vedle privodu kabelu kamen a zasuvky vyvrteje t de steny kabinky otvor. Kabel protahnete ovtemorem smerem ven k zasuvce.Vsechny kabely meseji byt chranyeney pred poskozenim. Toho Ize dosahnout pouzitim instalacnich kanalu/trubic nebo krycimi lišami na dfevo.
Saunova kamna se nesmje uvadet do provozu bez vchodneho ochranneho zaizenil! Montaz smi povadet pouze kvalifikovane osoby. be bezpodminecne nutne dbat normy EN 60335-2-35 a rovné mistne platnych predpisuh ohledne instalace a protipozarni ochrny!
Kontrola izolacniho odporu:
Pomoci pristroje na méreni izolačniho odporu mužete zmeit hodnotty odporu mezi jegnotivymi svorkami vodiču a pouzdrem (ochranná kostra). Celkový izolačni odpor mezi svorkami vodiču a pouzdrem (ochranná kostra) musi byt v kázdem pripadé vyssi než 1 MOhm. 33-39 Ω Bio-Kombiofen 9 kW.
| Typ prístroje | Přikon v kW | Vhodné pro kabinyvelikosti m3 | Nejmensí pruřezy v mm2 (měděné potrubí) saunovychkamen prípojení na 400 V AC 3N | ||
| Saunovábiokamna | Sítový prívod křidicimu prístroji | Prívodní vedení kamenRídici prístroj kamen(Silikon) | Pojistka v A | ||
| 4,5 kW | 4,5 < 7 5x2,5 | x 1,5 16 | |||
| 9,0 kW | 9,0 6 -14 5x2,5 | x 1,5 16 | |||

Schemata zapojeni:
Pokladani saunovych kamenu na rost
Saunové kameny jsou pirodni produkt! Pred polozenim na kamna doporučujeme umyt kameny cistou vodou. Nikdy nepouživejte kameny, ktere nejsou urceny k pouziti va sach cr. Pouzivejte kameny o hmotnosti max. 12 kg. Pozor! Kameny vki dejeite volne, prilis male kameny vyadte. Piliš husté osazené kameny br ni cirkulaci vzduchu a zp.sobuji prehivni saunovych kamen a sten kabiny. Nebepezci pož rul Nikdy nezapnejte kamena bez kamen.! Pouzivejte jen kameny, ktere jsou v obchodé oznaceny jak saunové.
Pri pouziti jin'ych kamen., nez které jsou urceny pro pouziv n v saun ch, a pri skod ch v d.sledku nespr vneho naplineni kameny zanikaji veskere z ručni n roky. Kameny prekl deutje nejměne 1x ročné, prilis mal kameny vytridte o odstraťake te pripadny kamenny pracne bo ulomky kamen. Doporučuje se každé 2 roky kameny vymenit. Pozor! Zakryv ni kamen a nephiměřene naplyněv z sobnik kamen. znamenaji nebezpeci pož ru. Nezapinejte kamna bez saunovych kamen!.
Pozor!
Zakryv ni kamen a nepimefene napleny z sobnik kamen.
znamenaji nebezpeci poz ru. Nezapinejte kamna bez saunovych kamen.



Vseobecne pouny k polevani a provozu s odparovacem:
N dobu naplǐtevodou nejvěseke značce,to odpovid zhruba 3 litr.m n plné.Z hygienických d.vod.musi byt n doba prd kazdym saunov nim naplěna Čerstvouvodou a po skončeni saunov ni opěv pyvr zdněna a ycišěna.
Pouziveje jen vodu, kter odpovid pozadavk.m kvalty na uzitkovou vodu dom cnosti.
Pri pouziti vody s vysokym obahem v pniku nebo zeleza se na kamenech, kovovych povrsich a v n dobe na vodu usazuji zbytky. Abyste predešli riziku opareni horkou p rou, kter stoup z politych kamen., poleveje kameny vždy ze strany a pouziveje t tomu naberačku.
Prokop vajici voda m.ze zp.sobit trvale zneci steni na podlaze kabiny. Polveje jen s miro; prilis velke mnozstvi vody na kamenech m.ze zp.sobit opafeni.
Polévejte podle vlastniho pocitu, množstvi vody pri polev ni by vsak nemělo prekročit 15 g/m³ objemu kabiny.
Polevejte primo horke kameny v kamnech a vodu nalijte stejnomerne na vsechny kameny.
Jestlize pouziv te polevaci koncentry (napr. eterické oleje), doprzujte vzdyPokyny vyrobce.
Pni pouziti piliis vysokych koncentraci tchto pripravk. m.ze dojit k jeich vzplanuti.
Polevat kameny vodu s primesi alkoholickych n poj. nebo jinych prisad, ktere nejsou primo urceny k pouziti v saun ch, je zak z no zhvldekem k riziku
pož ru, exploze a poskozeni zdraví.
Nikdy nenaleveje z dnou vodu do prostoru k umisteni n doby na vodu.
V pripade nedodrzeni tchto zasad zanika na rok na zarucni plenil
Pokyny pro biokamna (s odpařovacem)
Za provozu odpa-rovače vystupuje z jeho horní strany pr. V mistě, kudy pr unik, hroží nebezpeci opárení!
Bēhem provozu saunovych kamen nech vejte n dobu odpařováče vždy v sachtě, kter je pro ni urcena. N dobu vyjimeje pouze pri plnéni a/nebo Čišěnéni.
Nedovolte použivat zaizeni osob m, včetné déti, jejich tělesné, smyslové nebo dusevni schoposti nebo nedostatek zkušenosti, resp. znalosti nezarucují beczneć použiv ni odpařovace bez dohledu. Pristoj nikdy neprovozujte dlouhodobé bez vody. Provoz bez vody m.Že zp.sokit poruchu odpařovace.
Pouzivejejen vodu, kter odpovid pozadavk.m kvality na uztkovou vodu dom cnosti.
Pri pouziti vody s vysokym obsahem v pniku nebo zeleza se na kamenech, kovovych povrsich a v n dobe na vodu usazuji zbytky. Balicky bylinek vozte a misku odafovač naplne pred uvedenim zaizeni do provozu. Bēhem provozu odafovač vypněte a pripadné vyjměte. N dobu odafovače dophujte až poté, co ochladne vikol! Saunové polévaci prostředky se nesměji plinit primo do n doby odafovače.
Prisady v n době odpařovace mají sklon pěnit a prěkypět. DodržujtePokyny vyrobce!
N dobu plhte nejvyk horni znaace.
Do pr zdne n doby lze nalit 3 I vody. Toto mnoozstvi sta cI zhruba na 90 minut trvalho provozu (z visi na stapni zaneseni topné desky v penatymi usazeninami).
K naplineni Ize n dobu vyjimout z sachty, kter je pro ni urcena. Nikdy nevylijte vodu do sachty n doby odpaovace.
Odařováč neprovozujte nikdý bez rostu odpařovace. Nebezpečí na opářů.
Pozor na vystrikujici horkou vodu.
Polevat kameny vodou s primesi akolichckyn poj. nebo jinych prisad, ktere nejsou primo urcenyk pouziti saun ch, je zak z no zhvldekem k riziku poz ru, exploze a poskozeni zdravi.
Po kazdem provozu s vlchenim nechte spotrebi c vychladnout, yvijte zbyvajici vodu a vycistete n dobu.
V pripadénedodrzeni têchto zad zanik n rok na pléní ze ruky!
Upozoreni: U eitsiny fidicich jegnotek s modulem vhlkosti je z bezpečnostnich duvodu omezena tepota sauny na 60-70°C
Ciscenje i njega isparivača
Vlkhost vzduchu v kabineté závisi na velikosti a konstrukci kabinny sauny a na teploté. Pamatujte si, ze s rostouchi teplotou príbyva množstvi vodni pary, které je potfeba k nasyceni.
Pouziti prisad do sauny:
Používejte jen Čište, ve vodě Rozpustné bylinné essence nebo baléne sáčky s bylinami, obsahujíci rostlinné nebo syntetické oleje. Připravek rozředěn trochou vody napihé do misky odpařovace. Balický bylinek položte na rost odpařovace, který je k tomu určěn. Stoupají cárva uvolnjue vonně latký z bylin a ty se šíři spolu s párou po kabinet. Nikdy nepoužívejte nereděné koncentrované saunové priřavky. Prísady a koncentrované saunové priřavky nikdy nekvládejte prímo do nádoby odpařovace. Prísady v nádobě odpařovace mají sklon pěnit a prekypět. Pozor! Polevac prostředky mohou zanechávat skrvny na kovovych povrchá sa unayoshkamenech. Saunové polevac prostředky s vúni citrusu zpusobují zhvedem k obsahu kyselin rezave skrvny. K polevani používejte výhradné polevac prostředky v reděné podobě, jak to stanovi jejich vyrobce.
Polevat kameny vodou s primesí alkoholu nebo jin'ych prisad, které nejsou primo urceny k pouziti v saunach, je zakáźano vzhledem k riziku požaru, exploze a poskozeni zdravil
Jak postupovat pri problemech?
Kamna netopí...
Zapnuli jste vsechny potrebné spinae?
-Nezareagovala pojistka v domovni instalaci?
Nastavili jste regulator teploty spravne?
- Vadny fidici pristroj sauny (poškozeni snímače viz námod k použiti fidiciho pristroje).
Proudovychrnic reague,viz odstavec o kontrrole izolaeniho odporu.
Kamna vydávaji praskavé zvuky
^ Při ohřivani nebo za provozu se casti plaste kamen a topná telesa rozpinalj. Topná telesa mohou posouvat kameny v sauné a zpúsobovat hluk. Praskavé zvuky jsou normáni a nejsou duvodem k reklamaci.
Saunové kameny se thraji, vyvijej zapach
^ Používejte pouze saunové kameny doporučné výrobcm.
Saunové kameny jsou prestarlé,ymeentre je.
Kabina není dostatečné teplá
Saunová kamna jsou prilis malá
-Je aktivovan vhlk' provoz? Muze byt omezena teplota kabiny. Pri finskem provozu vhlkost vypnete.
Pflisi velké ztraty tepla v kabince sauny napriklad v dusledku vadneho nebo nedostatecnheho utesneni.
- Chybné indikace saunového teplormér. Namontujte teplormér vys a zhruba ve vzdalenosti 3 cm od stěny sauny.
Závadu topného tělesa (topné těleso nahřeje) nechte zkontrolovat a proměřit odbomým elektrikářem.
Odařovac nefunguje
- Rizeni odpafovač neni zapnute.
V nádobé néni voda.

Ersatzteilzeichnung
Ersatzteilliste
Vázena zákaznice, vázeny zákazniku,
naše vyrobky podlehaj prísné kontrole kvality. Pokud i presto tento prístroj bezvadne nefunguje, velice toho litujeme a prosime vás, abyste se obrátili na náš zákaznický servis, jehoz adresa je uvedena na toto zárucním listu. Rádi vám budeme k dispozici také Telefonicky na níze uvedeném servisím cisle. Pro uplatnovány nárokú na záruku platí nasledujíci:
- Tyto zaručni podminky upravují dodatečný zaručni servis. Vasich zákonnych nároku na zaruku se tato zaruka netyka. Nás zaručni servis je pro vás bezplatné.
- Záručni servis se vztahuje vyhradne na nedostatky, ktere lze odvodit z vad materiallu nebo vyrobnich vad a je také omezen pouze na odstraněni těchto nedostatků, resp. výměnu prístroje. Nezapominejte prosím na to, ze naše prístroje nebly podle svěho učelu určeni konstrukovány pro zhivnostenské, remesl Nické nebo prümyslové použiti. Záručni smlouva tak není realizována,Pokud byl prístroj použivan v zhivnostenskych, remeslnych nebo prúmslovych podnicich a pri srovnatelnych chinnostech. Z nasí záruky je dale vyloučeno poskytnutinahrady za dopravní skody, skody zpúsobene nedodrzovámim montázního navodu nebo z duvodu neodborné instalace, nedodrzování navodu k použiti (napr. pripojení na chybné sǐtove napétí nebo druh proudu), nedovoleného nebo neodborného použivani (napr. pretiženi prístroje nebo použiti neschvalenych vložných nastroju nebo príslusenstvi), nedodrzování tokynu pro udžrbu a bezpečnostních tokynu, vniknutí cizich teles do pristroje (napr. pisku, kamenú nebo prachu)), použití nasilí nebo poskození v dusledku cizich vlivů (napr. skody zpúsobné pádem), jakoz také bežného opotřebeni zpúsobného použiváním. To platí zejměna pro akumulátry, na které presto poskytujeme záručí lhútu 12 měsíců. Nárok na záruku zaníka, Pokud bylo do pristroje jižzasahovANO.
- Zárucí doba cini 2 roky a zaćiná datum koupé pristroje. Nároky na záruku pred vyprsením zárucí doby je tbreba uplatnovat bēhem dvou týdnú od zjištěni defektu. Uplatnováni nároků na záruku po vyprsení zárucí doby je vyloučeno. Oprava nebo vyměna pristroje nevede k prodlouženi zárucí doby, ani k Zahajeni nové zárucí doby za provedeny vykon pro pristroj nebo pro pripadné zamontované nahradní dily. Toto platí také v pripadé servisv v misté vašeho bydlište.
- Pri uplatnovani vaseho naroku na zaruku zašlete prosim pristroj bez postovného na niže uvedenou adresu. Prilozte original prodejiho dokladu nebo jineho datovaného potvrzeni o koupi. Pokladni listek si proto dobre uložte jak dukaz! Popiste nam prosimPokud mozno presne duvod reklamace. Jeli defekt pristroje obsažen v našem zaručním servisu obsažen, obdržite obratem opravený nebo novy pristroj.
Samozrejme radi za uhradu nakladu odstranime defekty na pristroji, ktere nespadaji nebo jiz nespadaji do rozsahu zaruky. K tomu nam pristroj prosim zašlete na naši servisni adresu

Nur fur EU-Lander
Elektrické nárádi a přistroje neodhazujte do domovního odpadu!
Podle evropské smernice 2002/96/ES o vysloužilych elektrickych a elektronickych přistrojich a pri prosazovani narodniho prava musi byt spotrebované elektrické nañadi sbiránosamostatne a musí byt dopraveno do opdovidajici ekologického recyklacniho závodu.
Alternative recyklace:
Vlastnik elektrického pristroje je povinen alternativné namisto zpětného odesláni zařizení spolupúsobit pri jeho správném zužitkovány v pripadé, ze se vdá jeho vlastnictv. Starý pristroj lze v takovém pripadé odevzdat také ve sběrně, ktera provede odstraněvi ve smyslu národniho zákona o recyklaci o opadech. Tyto prdepisy se nevztahuji na dily prišluşenssti a pomocné prostředky bez elektrickych současti pridané ke starým pristrojúm.
GARANTIEURKUNDE
Dotisk nebo jiné Rozmnozováni dokumentace a pruvidnich dokumentu vyrobku, také pouze vyñatkú, jej priustné vyhradné se souhlasem firmy ISC GmbH.

Technické změny vyhrazeny

0
Service Konto: service@karibu.de
2
Name:
Notice-Facile