Norin - Sauna Karibu - Manual de uso y guía de instrucciones gratis
Encuentra gratis el manual del aparato Norin Karibu en formato PDF.
Preguntas frecuentes - Norin Karibu
Descarga las instrucciones para tu Sauna en formato PDF gratis! Encuentra tus instrucciones Norin - Karibu y toma tu dispositivo electrónico nuevamente en la mano. En esta página están publicados todos los documentos necesarios para el uso de su dispositivo. Norin de la marca Karibu.
MANUAL DE USUARIO Norin Karibu
E Indice de contentsidos
-
Indice de contentsos
-
Generalidades
-
Advertencias importantes de seguidad
-
Instrucciones de montaje
Montaje del calefactor para sauna
-
Manual para electricista
-
Comprobación de la resistencia de aislamiento:
-
Tabla potencia estufa/tamañó de la cabina/conexión
-
Diagramas de conexiones BioKombiofen 9kW
-
Colocacion de las piedras en el recipiende de piedras sobre la estufa
-
Advertencias generales sobre elchorro de vapor
-
Advertencias sobre la estufa biológica (con vaporizador)
Limpieza y@cuidados del vaporizador
-
Formas de bano
-
Uso de aditivos para la sauna:
-
Que hacer en caso de problemas?
-
Esquema de las piezas de repuestos y
-
Listas de piezas de repuestos
-
Declaración de conformidad CE
-
Certificado de garantía
-
Formulario de tramitación de servicios
NL Inhoudsopgave
Inhoudsopgave
- Algemeen
Información general:
Estimados clients:
Antes de la connexion y esta en marcha, rogamos leer detenidamente el manual de Instrucciones con el fi n de evaporar posibles daños.
Advertencias de seguridad importantes:
- El calentador de la sauna es unaunidad autonoma y no cumpleplenamente los requisitos normativos sin un systemademando adecuado.
- El calentador de la sauna solo puede conectarse y funciona con un sistema de mando de sauna probado dotado de un limitador de temperatura de proteccion de 140^ , de lo contrario existe risgo considerable de incendio.
- El calentador de la sauna solo lo可以选择 instalar un electricista特殊情况 como el calentador en todo momento la hora EN 60335-2-53 y las medidas locales de instalacion y proteccion contra incendios.
- El calentador de la sauna está solo indicado para su uso dométrico privado, no está permitido el control remoto, no precise montaje oculto. Utilizar solo sistemas de mando probados con un limitador de temperatura de protección (140^) según la norma EN 60335-2-53.
- Para el uso de la estufa de sauna debe utilizesse un systema de mando probado de acuerdo con la norma EN 60335-2-53; el systema de mando debe cumplir al menos los siguientes requisitos: El systema de mando debe limitar la temperature de la cabina de la sauna a 135^ . Un limitador de temperatura de proteccion que cumpla这些 requisitos debe integrarse en el systema de mando de sauna realizado, de lo contrario existe riesgo considerable de incendio.
- En este sistemas de mando deben integrarse un temporizador que limite el tiempo de funciona bajo a un máximo de 6 h y que no permit a el reinicio
automático.
- En el caso de calentadores de sauna con un vaporizador adicional integrado, solo seoulda utiliser un sistema de mando de sauna que haya sido probado de acuerdo con la norma EN 60335-2-53 y que también incluya un control de la humedad.
- Estufa de sauna para uso dométrico privado, no está permitido el control remoto, no precise montaje oculto, usar solo aparatos de mando adequados con limitador de temperatura de protección de acuerdo con las instrucciones del fabricante.
- El montaje y la conexión electrónica del sistema para sauna, como和其他s componentes electricos, sólo pueda ser技术水平 a cabo por un electricista profesional. (excepto P & P)
- Es preciso tener especialmente enIELDas medidas de proteccion necessarias segun las normas VDE 0100,art.49 DA/6 y VDE 0100, parte 703/11.82,art. 4. Incluso teniendo enIELDas todas las medidas deseguidad necessarias es imposible excluir todos los riesgos de accidente.
- Para estar seguro de minimizar todo riesgo, es im precindible tener en cuenta las advertencias de seguridad descritas.
- Operar la estufa de sauna con un aparato de mando externo adequado.
- Para poder en configuracion el vaporizador de la estufa de sauna BIO se necesita un systema de man do con modulo humidifi cador o un systema demando humidifi cador分开ado adicular. Consultar el montaje y manejo en el manual de systema de mandopertinente.
- En la cabina debe montarse solo un calefactor con la correspondiente potencia de caldeo (ver tabla).
| Potencia de connexion [kW] | Tamaño de la cabina [m3] |
| 4,5 | < 7 m³ |
| 9,0 | 6-14 m³ |
- El aparato no ha sido concebido para su uso en saunas de uso comercial ni en bloques de viviendas.
- Atencion,ipelgro de quemaduras.Tanto la carcasa de la estufa como las piedras esan muy calientes.
- El montaje inadequado de la estufa conlleva el peligro de incendio. Rogamos lea detenidamente las instrucciones de montaje. Tener especialmente enIELDas medidas y las instrucciones.
E
- Utilizar las piedras exclusivamente para la sauna. Colocar la piedras de modo que no se obstaculice la circulacion de aire en la estufa.
- No utilizes sin piedras para sauna.
- Mantener a los niños alejados de la estufa,ipeligro de sufrir quemaduras!
- Consultar a un medico sobre la temperatura y duración de la sauna en caso de restricciones de salute, niños pequeños, jóvenes, personas mayores y minusvalías.
- No usar el aparato cuando se ENCuentre bajo la influencia de estupefacientes, alcohol o medicamentos.
- Echar agua de forma moderada, demasiada agua sobre las piedras puede producir escaladuras. La cantidad de liquido a anadido no debe sobrepasar 15g / m^3 del volumen de la cabina.
- No utilizar la sauna para registrar objetivos o ropa en general. [Peligro de incendio!
- No depositar objetos sobre la estufa. [Peligro de que se queme!
- No colocar objetivos en la corriente de convecction de la estufa, excepto el sensor de temperatura de la estufa.
Las superficies metálicas se pueda oxidar en caso de humedad o clima maritimo. - Durante la fase de calentamento, la estufa可以选择 emitir chasquidos (las barras calefactoras metálicas y las piedras se dilatan)
- Los equipos de sauna y Cabinets de sauna solo deben estar fabricados con material adecuado, no tratado y pobre en resinas (p.ej.: abeto nordico, alamo o tilo).
- La temperatura superior admitsa para la superficie de pared y techo de la cabina es de 140^ .
- Con el tiempo las paredes de la cabina en el area de la estufa de la sauna se van oscureciendo más que en el resto de la cabina, lo que es absolutamente normal. No se aceptan reclamaciones al Respecto.
- La alta de la cabinaDebe ser de min. 1,75 m.
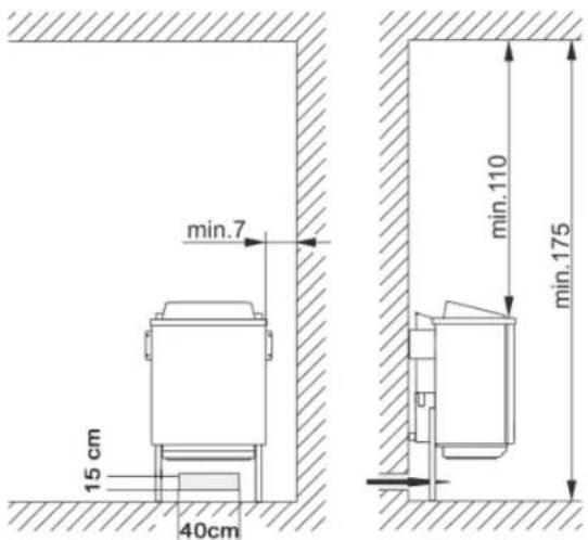
- Es preciso montar rejillas de ventilación y de Escape de aire en cada cabina. El orifi cio de ventilación se debe encontrar en la pared, solo bajo la estufa de sauna a uno 5-10 cm del sueño. La abertura de ventilación debe encontrarse en posicion diagonal
con respectfully a la estufa en la zona entre los bancos inferior y superior, en la parte posterior. Los sistemas de ventilacion y escape de aire deben permanecer abiertos. La iluminacion de la cabina con la instalacion correspondiente debse ser en la version „a prueba de salpicaduras“ y capaz de resistir una temperatura ambiente de 140^ . Por este motivo, solo es preciso instalar un sistema de iluminacion para sauna con homologacion de max. 40 W en connexion con la estufa.
- Este aparato pourrait ser utilisé por niños a partir de 8 años y personas cuyas capacities estar limitadas fisica, sensorial o psiquicamente, o que no disponan de la experiencia o los conocimientos necessarios, siempre y cuando estén vigiladas o hayan recibido formación o instrucciones sobre el funciona seguro del aparato y comprendan los posiblespeligos.Esta prohibido que los niños juegen con el aparato. Los niños no podran realizar los trabajo de limpieza y mantenimientobasico a no ser que estén vigilados por unadulto.
Instrucciones de montaje
Atencion!
Bajo la estufa no deben instalarse ningún pavimento de material inflamabile como madera, plástico, etc. Se recomienda emplear baldosas de cerámica.
Debrero de la estufa, incluso los pavimentos no inflamables y las juntas también poderen Presented decoloraciones.
No se harán devoluciones en caso de decoloración o días en el sueño o párides.
La distancia entre la pared posterior de la sauna y la pared de la cabina depende del modelo (soporte de pared).
Antes del montaje, realizar la connexion electrica de la estufa al soporte de pared. La estufa para sauna ha sido concebida para cabins de hasta 9-14 m³
Montaje del calefactor para sauna
- Montar los pies por medio de los tornillos adjuntos (4 tornillos M5 x 12) en la pared posterior de la estufa.
- Chapa base con 4 tornillos autoroscantes 3,9 x 9,5 montados en el revestimiento interior.
- La entrada de cables de red en la caja de bornes doit être levearse a cabo a工程技术 de la perforación prevista paraarlo.
- Tras enchufar el cable, vuelva a cerrar la caja de bornes con la tapa (distanciador hacía fuera).
- Coloque la estufa delante de la abertura para la entrada de aire. Fije el soporte de pared para el calefactor por medio de los tornillos de madera a la pared de la cabina.
- Durante el montaje de la estufa se deben tener enIELD que la distancia vertical entre el borde superior de la estufa y el techo de la sauna sea de minimum 110 cm.Consultar la distancia lateral en el plano. La distancia entre el borde inferior de la estufa y el suejo es de min. 200~mm



Advertencia:
Una sola connexion fallida puede deestruir el mecanismo de control. En tal caso, el derecho de garantia perdera su validez.
Manual para el electricista
Para la connexion de la estufa y de todas las instalaciones electricas sedeferan contemplarla norma DIN VDE 0100 y las dispositions en materia deprevencion de accidentes BGV A2. El usuario deben disponible de undispositivo de proteccion externo con corte de todos los polos y desconexioncompleta conforme a la categoria de sobretension III.
Atencion:
Los cables de conexión a red deben ser cables flexibles revestidos de polliclorofreno. Los cables de conexión no se incluyen en el volumen de entrega. Todos los cables que secolouen en el interior de la cabina deben poder resistir una temperatura ambiente de 140^ como minimum. Utilizar cables de silicona resistentes a temperaturas extremas. En la tabla se specifica la sectionmina del cable de conexión y el tamaño minimo de la cabina (pag. 5, tab. 1). El diagrama de conexiones se ha colocado en la parte inferior de la tapa de la caja de conexiones. Tener en cuenta que, por motivos de seguridad, los cables electricos no deben quedar visibles en las paredes de la cabina. En las cabinas prefabricadas ya se han incluido tubos vacios o un pozo para introducir los cables en el elemento de pared con la abertura para la entrada de aire. Si su cabina no dispone de los mismos, recomendamos instalar una caja de conexiones (no includa en el volumen de entrega) en la pared externa de la cabina. Realizar un orificio en la pared de la cabina, jusqu'a la entrada de cables de la estufa y la caja de conexiones. Introducir el cable a trovés del orificio y sacarlo hacer la caja de conexiones. Proteger todos los cables para que no se dane. Paraarlo, utilizing tubos o un pozo de instalacion o listones protectores de madera.
La estufa de la sauna noDebeponerse en fonctionamento sin un dispositivo de proteccion adequado.El montaje solo lo debenrealizar personasinstruidas para ello. Es preciseo observar la norma EN 60335-2-35 asi comolas medidas locales relativas a la instalacion y a la proteccion contra incendios.
Comprobación de la resistencia de aislamento:
Con un equipo de medicación de la resistencia de aislamiento se podrá medir los valores ñhmicos entre cada uno de los bornes conductores y la carcaja (protección por puesta a tierra). La resistencia de aislamiento total entre los bornes conductores y la carcaja (protección por puesta a tierra) debe ser superior a 1 MOhm. Valores ñhmicos de la estufa: 33 - 39 Ω Bio-Kombiofen 9 kW.
| Tipo de aparato | Potencia de conexión en KW | Adecuada para el tamanio de la cabin en m3 | Secciones minimas en mm2 (conductores de cobre) estufa con Conexión a 400 V AC 3N | ||
| Sauna Bio | Cable de red para el aparato de mando para sauna | Cable de conexión de la estufa, entre aparato de mando y estufa (silicone) | Fusible en amperios | ||
| 4,5 kW | 4,5 < 7 5x2,5 | x 1,5 16 | |||
| 9,0 kW | 9,0 6 -14 5x2,5 | x 1,5 16 | |||
Estufa de sauna Bio

Colocacion de las piedras en el recipiente de piedras sobre la estufa
Las piedras para sauna son un producto natural. Se recomienda limpiarlas con agua limpia antes de colocarlas en la estufa. No utilizing piedras que no hayan sido concebidas para ser usadas en saunas. Utilizar un max. de 12 kg de piedras. jAtencion! Colocar las piedras de forma sueita, eliminar las piedras demasiado微量元素. Colocarlas de modo que no se obstaculice la circulacion de aire en la estufa y no se sobrecaliente la estufa ni las paredes de la cabina, jpeligro de incendio! JNo poder la estufa en funcionaamente sin piedras! Utilizar solo piedras que se commercialcen como piedras para sauna. Se perdera el decrecho a garantia en caso de utilizing piedras {*initas a las previstas para saunas, asi como por los daños provocados por haber llenado mal el recipientiente de las piedras. Mover las piedras como minimo una vez al ano, quitar las piedras que Sean demasiado≦quejas y eliminar el polvo o las posibles piedras rotas. Se recomiendaCambiar las piedras cada 2 años
jAtencion!
No cubir la estufa ni llenar Incorrectamente el recipiente de piedras=puesto que se corre el peligro de incendio. noponer la estufa en funcionaimiento sin las piedras!


Advertencias generales sobre el chorro de vapor y el funciona del vaporizador:
Rellenar el recipiente como máximo hasta la marca, esindr, aprox. 3,3 litros. Por motivos de higiene el recipiente se debe rellenar con agua limpia antes de cada sesión y al terminar la��a de sauna, se deben vaciar y limpar.
Utilizar exclusivamente agua que cumpla con los requisitos de calidad del agua domestica.
De utiliser agua muy calcarea o ferrosa, se accumulatorán residuos en las piedras y superficies metálicas, asi como en el recipiente de agua.
Al echar agua sobre las piedras, hacerlo lateralmente para evitar el peligro de sufrir quemaduras bajo a la formacion de vapor.
Agua cerramada en el suelo de la cabina puede producir sueidad permanente.
El agua de forma moderada, demasiada agua sobre las piedras puede produir escaladuras.
Echar agua segun convenga, no obstarte, el volumen de agua no debe superar los 15g / m^3 del volumen de la cabina.
El agua se echa directa y homogeneamente sobre las piedras calientes en la estufa.
Si se Employmente concentrados (p. ej., aceites esenciales) sedeferan tener en cuestionas instrucciones del fabricante.
Sifleete altas concentraciones de este producto podrnan producirse deflagraciones.
Está prohibIDA la adicción de bebidas alcohóicas u other sustancias
inaproíadas al uso de una sauna debido al alto riesgo de incendio, explosión y de salute que conllevan.
No echar agua en el espacio entre el alojamento y el recipiente de agua. El derecho de garantia pierde su validez si no se observan las instrucciones indicadas!
Advertencias sobre la estufa biologica (con vaporizador)
El vaporizador se regula a工程技术 del modulo de humedad del systema de mando correspondiente o mediate un aparato de control de humedad externo. Consultar el montaje y la connexion del aparato de control en el manual de instrucciones pertinente.

Advertencias generales sobre el vaporizador ATENCION! PELIGRO DE ESCALDADURAS!
Durante su funciona el vaporizador expulsa vapor por la parte superior. En la zona de la saliva de vapor existePEGIO de sufir escaladuras!
Durante el funciona del estufa de la sauna,deoar el recipiente evaporazion en la cuba de alojamento prevista para elso. Sacar dicho recipientie solo para rellarino y/o limpiarlo.
El aparato no ha sido concebido para ser utilisé por personas (tampoco por niños) yas capacities estén limitadas fisica, sensorial o psiquicamente y/o que no dispongan de la experiencia y los conocimientos necessarios para utiliser de manière segura el aparato.
No operar nunca el aparato sin agua de forma permanente. El funciona bajo su酐, y no se quitterá.
Utilizar exclusivamente agua que cumpla con los requisitos de calidad del agua domestica.
De utiliser agua muy calcaea o ferrosa, se acumularan residuos en las piedras y superficies metálicas, asi como en el recipiente de agua.
Introducir las hierbas aromáticas y llenar el cueno del vaporizador antes de lapellsta en marcha. Durante el functiOnamento desconectar el vaporizador y, en caso necessario, extraerlo. Rellenar el cueno del vaporizador una vez seha hava enfiado la cubierta.
Los liquidos para vapor no se pueda introducir directamente en el recipiente del vaporizador. Los aditivos en el recipiente del vaporizador Tienden a formar espuma y a hervir. Observar las instrucciones del fabricante!
Llenar el recipiente hasta lamarca superior como mayor.
El volumen de llenado del recipiente vacio son 3 I. Dicho volumen resulta suficiente paraunos 90 min de funcionaismo continuo (dependiendo del grado de calculacion de la plac calefactora).
Para llenar el recipiente SACARLO de la cuba en donde se aloja.
No introducir nunca agua en la cuba de alojamento del recipiente del vaporizador.
No operar el vaporizador sin la rejilla; Peligro de escaldaduras!
Tener cuidado con el agua caliente que se derrame! Está prohibida laadición debebidas alcohólicas uorasustancias inapropiadas aluso deuna sauna debido alalto riesgo de incendio,explosion yde salud que conllevan.
Después de cada uso dejar enfiar el aparato y vaciar el resto de agua y limpiar el recipiente.
El derecho de garantía pierde su validez si no se observan las instrucciones indicadas.
Advertencia:
En la mayoría de los aparatos de mando con modulo de humedad se limita la temperatura de la sauna a 60-70 °C por motivos de seguridad.
Limpieza y cuidados del vaporizador
Debe vaciar el agua cada vez que termine deemployer el vaporizador. Las posibles impurezas originadas por las esencias de hierbas peuvent eliminarse aclarando con agua fresca. Acople paraarlo un tubo de goma a el grifo de vaciado yrone salir el agua. J Cuidado! El agua todavía podra estar caliente. El vaporizador es adequado para el serviceo con agua del grado de dureza 1 (1-7 grado de dureza aleman). Consulte el grado de dureza de su red con la compañero de abastecimiento de agua local. En caso de altos grados de dureza, emplee agua descalcificada. El deposito del vaporizador debe, dependiendo del grado de dureza del agua, descalcificarse a bajo del本身就是o que se hace con la cafetera. En caso de agua con un alto contentido de cal, recomendamos descalcificar el agua cada 2 o 3 semanas en instalaciones que funciona a diario. Tenga enIELDa, no obstarte, que este periodo de tiempo depende del grado de dureza y del volumen de agua vaporizada, es decir, de la duracion del serviceo diario. Aseguirse de que el deposito del vaporizador siempre dispongha de agua suficiente durante el serviceo. Es preciso evaporar que la instalacion seSEA algo, ya que los calefactores podrian daarse. Por el myselfo motivo,derabad adairagua durante el serviceo o poco despues de suutilization. Loscalefactores se enfiarlan bruscamente y también podrian sufrir daños.
Formas de bano
Con el vaporizador integrado y el aparato de mando correspondiente技术支持 la posibididad de ajustar differses formas de bafó. Junto a la clásica sauna finlandesa con temperativas entre 70^ y 110^ con escasa humedad relativa (max. 15%) tambiénoulda disfurter de un bafó de vapor o de hierbas aromáticas a temperativas entre 30^ y 60^. La duración de un bafó de vaporpearbería oscilar,según se deseee,entre 15 y 30 minutos. Tras una pausa se pueda volver al bafó de vapor.

Formas de bazo (diagrama de humedad/temperatura)
La humedad en la cabina depende del tameno y construction de la misma asi como de la temperatura. Es preciso tener en cuenta que cuando mayor es la temperatura mayor sera la cantidad de vapor de agua que se necesse para la saturacion.
Uso de aditivos para la sauna:
Emplear solo esencias de hierbas solubles en agua o bolsas de hierbas envasadas, compuestos de aceites sintéticos o vegetales. Añadir diluyente con un poco de agua en el cuenco del vaporizador, colocar el envase de las hierbas aromáticas en la rejilla del vaporizador. El vapor ascendente transmite
el aroma de las hierbas y lo reparte por toda la cabina. No usar nunca concentrados liquidos para sauna sin diluir. No introducir nunca directamente en el recipiente del vaporizador dichos concentrados. Los aditivos en el recipiente del vaporizador tienden a formar espuma y a hervir. [Atencion! Los liquidos para vapor PODuen manchar las superficies de metal y las piedras para sauna. Los liquidos para vapor con aroma de citrico poduen causar manchas de oxido bajo el contentido de acido.
A la hora de tener vapor, sin embargo, emplear los productos diluidos previstos por el fabricante.
No usar nunca alcohol ni ellos aditivos no adecuados para la sauna debido al riesgo de incendio, explosión y de salute que conllevan.
¿Qué hacer en caso de problemas?
La estufa no calienta
- Ha pulsado todos los interruptores你需要?
- Quizás se haya disparado el fusible en la instalación domestica?
Haajustado de forma correcta el regulador de temperatura? - Aparato de mando para sauna está defectuoso (rotura del sensor vexe manual de instrucciones del aparato).
- El aparato salta, véaseApartadocomprobación resistencia deaislamento
La estufa emite "chasquidos"
- Durante el calentimiento o funciona bajo las piezas exteriores de la sauna y las barras calefactoras se dilatan. Las barras calefactoras peuvent mover las piedras y emitir ruidos. Los "chasquidos" son normales por lo que no constituyen motivo de reclamacion.
Las piedras peuvent resquebrajarse, lo que despende olores
-utilizar exclusivamente las piedras recomendadas.
Piedras viejas, cambiar las piedras.
La cabina no se calienta lo suficiente
-La estufa es demasiado微量元素
- Modo humedad activado? La temperatura de la cabina puede estar limitada. Para el modo finandés desconectar la humedad.
- Excesiva perdida de temperatura en la cabina p. ej., por juntas defectuosas o porque faltan material aisliente.
- El termómetro de la sauna no funciona. Montar el termómetro más alto y a una distancia deunos 3 cm de la pared de la sauna.
- Una barra calefactora está defectuosa (no se enciende) encargar a un electricista que compruebe la causa y lo mida.
El vaporizador no funciona
- El sistemas de mando del vaporizador no está activado
-Sin agua en el recipiente

Algemeen:
Nuestros productos estan sometidos a un estricto control de calidad. No obstarve, lamentaramos que este aparato dejara de funcinar correctamente, en tal caso, le rogamos que se dirija a nuestro service de atencion al cliente en la direc tion indicada en la parte inferior de la presente tarjeta de garantia. Con mucho gusto le atenderemos también Telefonically en el numero de service indicado a continuacion.
Para hacer valido el derecho o de garantía, proceda de lasuma forma:
- Estas condidones de garantia regulan prestaciones de la garantia adiconiales. Sus derechos legales a prestacion de garantia no se ven afectados por la presente garantia. Nuestra prestacion de garantia es Gratis para usted.
- La prestación de garantía se extiende exclusivamente a defectos occasionados porfallos de material o de producción y está limitada a la reparación de los mismos o al cambio del aparato. Tenga en consideración que nuestro aparato no está indicado para un uso comercial, en taller o industrial. Por lo tanto, no procederá un contrato de garantía cuando se usa el aparato en zonas industriales, commerciales o talleres, asi comoactividades similares. De这是我们 garantía se excluye cualquier(othero tipo de prestación adicional por dañosocasionados por el transporte, daños occasionados por la no observancia de las instrucciones de montaje o por una instalación no profesional, no observancia de las instrucciones de uso (como, p. ej., conexión a unatension de red o corrente no indicada), aplicaciones impropias o indebidas (como, p. ej., sobrecarga del aparato o uso de herramrientas o accesorios no homologados), no observancia de las dispositionsiones demantenimiento y seguidad, introduccion de cuerpos extraños en el aparato (como, p. ej., arena, piedras opolvo), uso violento o influencias externa (como, p. ej., daños por caías), asi como por el desgaste habitual por el uso. Este se aplica externas en aquellas baterias para las que ofrecemos un plazo de garantíade 12 meSES.El derecho a garantía pierde su validez cuando ya se hayan realizado intervenciones en el aparato.
- El periodo de garantía es de 2 años y comienza en la Fecha de la compra del aparato. El derecho de garantía debe hacerse valido, antes de finalizo el plazo de garantía, bajo de un periodo de dos semanas una vez detectado el defecto el derecho de garantía vence una vez transcurrido el plazo de garantía. La reparación o cambio del aparato no conllevará ni una prolongación del plazo de garantía ni un nuevo plazo de garantía ni para el aparato ni para las piezas de repuesto montadas. Esto también se aplica en el caso de un service in situ.
- Para hacer efectivo sudeocho a garantia,envie Gratisamente el aparato defectuoso a la direc tion indicada a continuacion. Adjunte el original del ticket de compra u othero tipo de comprobante de compra con fecha. tA tal efecto, guarde en lugar seguro el ticket de compra como comprobante! Describa con la mayor precision posible el motivo de la reclamacion. Si ourstra prestacion de garantia incluye el defecto aparecido en el aparato, recibirde inmediato un aparato reparado o nuevo de vuelta.
Naturalmente, también解決arres los defectos del aparato que no esten incluidos en la garantia o ya no se incluyan. En este caso, envie el aparato a la direccion del service de asistencia.
GARANTIEBEWIJS
Geachte klant,
Só para paises miembrós de la UE
No tire herramientos electricas en la basura casera.
Según la directiva europea 2002/96/CE sobre aparatos usados electrónicos y electrécicos y su aplicación en el derechoño nacional, dichos aparatosdeferán recogerse por separado y eliminarse de modo ecologico para fácilar su electrónicos y electrécicos usados
Alternativa de reciclaje en caso de devolución:
El propietario del aparato eletrico, en caso de no optar por su devolucion, está obligado a reciclar adequamente dicho aparato eletrico. Paraarlo, también se suepeentaragelaparato usadoa un centro de reciclaje que trate la elimination de residuos respetando la legislacion nacional sobre residuos y su reciclaje.Esto no afecta a los medios auxiliares ni a los accesosin componentes eletricos que acompanan a los aparatos usados.

La reimpresion o qualquier otra reproduccion de documents e informacion adjunta a produits, incluida qualquier copia, solo se permite con la autorizacion expresa de ISC GmbH.

Salvo modificaciones Tecnicas

ManualFacil