Sense 403 - Chauffage DOVRE - Notice d'utilisation et mode d'emploi gratuit
Retrouvez gratuitement la notice de l'appareil Sense 403 DOVRE au format PDF.
| Caractéristique | Détails |
|---|---|
| Type de chauffage | Poêle à bois |
| Puissance nominale | 4 kW |
| Rendement énergétique | 80% |
| Volume de chauffage | jusqu'à 100 m² |
| Dimensions (L x P x H) | 600 x 400 x 900 mm |
| Poids | 90 kg |
| Matériau de la structure | Acier et fonte |
| Type de combustible | Bois |
| Émission de CO | 0,09 % |
| Système de ventilation | Convection naturelle |
| Entretien | Nettoyage régulier du foyer et du conduit de fumée |
| Normes de sécurité | Conforme aux normes EN 13229 |
| Garantie | 2 ans |
FOIRE AUX QUESTIONS - Sense 403 DOVRE
Questions des utilisateurs sur Sense 403 DOVRE
0 question sur cet appareil. Repondez a celles que vous connaissez ou posez la votre.
Poser une nouvelle question sur cet appareil
Téléchargez la notice de votre Chauffage au format PDF gratuitement ! Retrouvez votre notice Sense 403 - DOVRE et reprennez votre appareil électronique en main. Sur cette page sont publiés tous les documents nécessaires à l'utilisation de votre appareil Sense 403 de la marque DOVRE.
MODE D'EMPLOI Sense 403 DOVRE
B-2381 Weelde Fax : +32 (0) 14 65 90 09
B-2381 Weelde Fax : +32 (0) 14 65 90 09
B-2381 Weelde Fax : +32 (0) 14 65 90 09
kachelruitreiniger 21
B-2381 Weelde Fax : +32 (0) 14 65 90 09
Belgium E-mail : info@dovre.be

B-2381 Weelde Fax : +32 (0) 14 65 90 09
Belgium E-mail : info@dovre.be

B-2381 Weelde Fax : +32 (0) 14 65 90 09
Belgium E-mail : info@dovre.be

Safety

Déclaration des performances 4
Déclaration des performances 6
Déclaration des performances...8.....
Sécurité 10
Conditions d'installation 10
Généralités 10
Cheminée 10
Aération de la pièce 11....
Sol et murs 12
Description du produit 12
Installation 13
Préparation générale 13
Préparation du raccordement au conduit de cheminée 14
Préparation du raccordement d'air extérieur 16
Pose et raccordement.... 16
Utilisation 16
Première utilisation.... 16
Combustible 17
Allumage 17
Quantité maximale de bois.... 18
La combustion au bois.... 19
Air de combustion insuffisant.... 19
Extinction du feu.... 20
Décendrage 20
Brume et brouillard.... 21
Problèmes éventuels.... 21
Entretien 21
Conduit de cheminée 21
Nettoyage et autre entretien régulier..... 21
Pièces de rechange Sense.... 24
Annexe 1 : Caractéristiques techniques. 25
Annexe 2: Dimensions.... 26
Annexe 3 : Distance d'éloignement avec des matériaux combustibles 34
Annexe 4 : Tableau de diagnostic.... 39
Index 40
Introduction
Chère utilisatrice, cher utilisateur,
En achetant ce poêle DOVRE, vous avez opté pour un produit de qualité. Ce produit fait partie d'une nouvelle génération d'appareils de chauffage écologiques et économiques en énergie. Ces appareils utilisent de manière optimale la chaleur convective, ainsi que la chaleur rayonnante.
Votre poêle DOVRE est fabriqué avec les moyens de fabrication les plus modernes. Si vous rencontrez un défaut quelconque sur votre appareil, vous pouvez toujours faire appel au service DOVRE.
L'appareil ne doit jamais être modifié ; veuillez toujours utiliser des pièces d'origine.
L'appareil est prévu pour être placé dans un logement. Il doit être raccordé hermétiquement à un conduit de cheminée fonctionnant correctement.
Nous vous recommandons de faire appel à un chauffagiste agréé professionnel pour installer votre appareil.
DOVRE décline toute responsabilité pour des problèmes ou des dommages dus à une installation incorrecte.
Lors de l'installation et de l'utilisation, les consignes de sécurité décrites ci-après doivent toujours être respectées.
Ce mode d'emploi contient des informations concernant l'installation, l'utilisation et l'entretien en toute sécurité de l'appareil de chauffage DOVRE. Si vous souhaitez recevoir des informations complémentaires ou des spécifications techniques ou si vous rencontrez un problème lors de l'installation, veuillez d'abord contacter votre distributeur.
© 2014 DOVRE NV
Déclaration des performances
Selon le règlement produits de construction 305/2011
n° 033-CPR-2013
- Code d'identification unique du produit type :
Sense 100 - 200 / 4,9 kW
- Numéro de type, lot ou série, ou autre élément d'identification du produit de construction, c prescrit à l'article 11, paragraphe 4 :
Numéro de série unique.
- Usages prévus du produit de construction, conformément à la spécification technique harmonis applicable, comme prévu par le fabricant :
Poêle pour combustible solide sans production d'eau chaude selon EN 13240.
- Nom, raison sociale ou marque déposée et adresse de contact du fabricant, comme prescrit ticle 11, paragraphe 5 :
-
Le cas échéant, nom et adresse de contact du mandataire dont le mandat couvre les tâche l'article 12, paragraphe 2 :
-
Le ou les systèmes d'évaluation et de vérification de la constance des performances du pro construction, conformément à l'annexe V :
Système 3
- Dans le cas de la déclaration des performances concernant un produit de construction couve une norme harmonisée :
L'instance chargée KVBG, enregistrée sous le numéro 2013, a réalisé un essai de type selon le système 3 et a délivré le rapport de test no. H20130113.
-
Dans le cas de la déclaration des performances concernant un produit de construction pour une évaluation technique européenne a été délivrée :
-
Performance déclarée :
| La norme harmonisée EN 13240:2001/A2 ;2004/AC :2007 | |
| Caractéristiques essentielles Performances Bois | |
| Sécurité incendie | |
| Résistance au feu A1 | |
| Distance d'éloignement avec des matériaux combustibles | Distance minimale en mmArrière : 300Côté : 500 |
| Risque de projections de braises Conforme | |
| Émission de produits de combustion CO : 0,18 % | (13 %O2) |
| Température de surface Conforme | |
| Sécurité électrique - | |
| Facile à nettoyer | Conforme |
| Pression de service maximale | - |
| Température des gaz de fumée à la puissance nominale | 247 °C |
| Résistance mécanique (poids de la cheminée) | Non déterminé |
| Puissance nominale | 4,9 kW |
| Rendement | 79,5 % |
- Les prestations du produit identifié aux points 1 et 2 sont conformes aux prestations indiquant point 9.
La présente déclaration des performances est établie sous la seule responsabilité du fabricant identifié au point 4 :

text_image
T. Gehem01/10/2013 Weelde
Tom Gehem PDG
Les produits faisant l'objet d'une amélioration permanente, les spécifications de l'appareil livré pourront diverger de celles mentionnées dans cette brochure sans avis préalable.
DOVRE N.V.
2381 Weelde, Belgique Fax : +32 (0) 14 65 90 09
Belgique E-mail: info@dovre.be

Déclaration des performances
Selon le règlement produits de construction 305/2011
n° 032-CPR-2013
- Code d'identification unique du produit type :
Sense 100 - 200 / 7 kW
- Numéro de type, lot ou série, ou autre élément d'identification du produit de construction, c prescrit à l'article 11, paragraphe 4 :
Numéro de série unique.
- Usages prévus du produit de construction, conformément à la spécification technique harmonis applicable, comme prévu par le fabricant :
Poêle pour combustible solide sans production d'eau chaude selon EN 13240.
- Nom, raison sociale ou marque déposée et adresse de contact du fabricant, comme prescrit ticle 11, paragraphe 5 :
-
Le cas échéant, nom et adresse de contact du mandataire dont le mandat couvre les tâche l'article 12, paragraphe 2 :
-
Le ou les systèmes d'évaluation et de vérification de la constance des performances du pro construction, conformément à l'annexe V :
Système 3
- Dans le cas de la déclaration des performances concernant un produit de construction couve une norme harmonisée :
L'instance chargée KVBG, enregistrée sous le numéro 2013, a réalisé un essai de type selon le système 3 et a délivré le rapport de test n°H20130112.
-
Dans le cas de la déclaration des performances concernant un produit de construction pour une évaluation technique européenne a été délivrée :
-
Performance déclarée :
| La norme harmonisée EN 13240:2001/A2 ;2004/AC :2007 | |
| Caractéristiques essentielles Performances Bois | |
| Sécurité incendie | |
| Résistance au feu A1 | |
| Distance d'éloignement avec des matériaux combustibles | Distance minimale en mmArrière : 300Côté : 500 |
| Risque de projections de braises Conforme | |
| Émission de produits de combustion CO : 0,07 % | (13 % O2) |
| Température de surface Conforme | |
| Sécurité électrique - | |
| Facile à nettoyer | Conforme |
| Pression de service maximale | - |
| Température des gaz de fumée à la puissance nominale | 274 °C |
| Résistance mécanique (poids de la cheminée) | Non déterminé |
| Puissance nominale | 7 kW |
| Rendement | 80,0 % |
- Les prestations du produit identifié aux points 1 et 2 sont conformes aux prestations indiquant point 9.
La présente déclaration des performances est établie sous la seule responsabilité du fabricant identifié au point 4 :

text_image
T. Gehem01/10/2013 Weelde
Tom Gehem PDG
Les produits faisant l'objet d'une amélioration permanente, les spécifications de l'appareil livré pourront diverger de celles mentionnées dans cette brochure sans avis préalable.
DOVRE N.V.
2381 Weelde, Belgique Fax : +32 (0) 14 65 90 09
Belgique E-mail: info@dovre.be

Déclaration des performances
Selon le règlement produits de construction 305/2011
n° 041-CPR-2014
- Code d'identification unique du produit type :
Sense 300 - 400 / 9 kW
- Numéro de type, lot ou série, ou autre élément d'identification du produit de construction, c prescrit à l'article 11, paragraphe 4 :
Numéro de série unique.
- Usages prévus du produit de construction, conformément à la spécification technique harmonis applicable, comme prévu par le fabricant :
Poêle pour combustible solide sans production d'eau chaude selon EN 13240.
- Nom, raison sociale ou marque déposée et adresse de contact du fabricant, comme prescrit ticle 11, paragraphe 5 :
-
Le cas échéant, nom et adresse de contact du mandataire dont le mandat couvre les tâche l'article 12, paragraphe 2 :
-
Le ou les systèmes d'évaluation et de vérification de la constance des performances du pro construction, conformément à l'annexe V :
Système 3
- Dans le cas de la déclaration des performances concernant un produit de construction couve une norme harmonisée :
L'instance chargée KVBG, enregistrée sous le numéro 2013, a réalisé un essai de type selon le système 3 et a délivré le rapport de test no. H20140117.
-
Dans le cas de la déclaration des performances concernant un produit de construction pour une évaluation technique européenne a été délivrée :
-
Performance déclarée :
| La norme harmonisée EN 13240:2001/A2 ;2004/AC :2007 | |
| Caractéristiques essentielles Performances Bois | |
| Sécurité incendie | |
| Résistance au feu A1 | |
| Distance d'éloignement avec des matériaux combustibles | Distance minimale en mmArrière : 400Côté : 500 |
| Risque de projections de braises Conforme | |
| Émission de produits de combustion CO : 0,08 % | (13%O 2) |
| Température de surface Conforme | |
| Sécurité électrique - | |
| Facile à nettoyer | Conforme |
| Pression de service maximale | - |
| Température des gaz de fumée à la puissance nominale | 216 °C |
| Résistance mécanique (poids de la cheminée) | Non déterminé |
| Puissance nominale | 9 kW |
| Rendement | 80 % |
- Les prestations du produit identifié aux points 1 et 2 sont conformes aux prestations indiquant point 9.
La présente déclaration des performances est établie sous la seule responsabilité du fabricant identifié au point 4 :

text_image
T. Gehem01/10/2013 Weelde
Tom Gehem PDG
Les produits faisant l'objet d'une amélioration permanente, les spécifications de l'appareil livré pourront diverger de celles mentionnées dans cette brochure sans avis préalable.
DOVRE N.V.
2381 Weelde, Belgique Fax : +32 (0) 14 65 90 09
Belgique E-mail: info@dovre.be

Sécurité

Attention! Toutes les consignes de sécurité doivent être strictement respectées.

Avant d'utiliser votre poêle, lisez attentivement les instructions pour l'installation, l'utilisation et l'entretien.

L'appareil doit être installé conformément à la législation et aux prescriptions nationales.

Toutes les dispositions régionales et les dispositions concernant les normes européennes et nationales doivent être respectées lors de l'installation de l'appareil.

Nous vous recommandons de faire installer le poêle par un installateur agréé. Ce spécialiste connaît les dispositions et les réglementations en vigueur.

L'appareil est conçu pour le chauffage. Toutes les surfaces, y compris la vitre et le conduit d'arraccordement, peuvent être brûlantes (plus de 100 °C)! Pour manipuler l'appareil, portez toujours un gant résistant à la chaleur ou utilisez une poignée main froide.

Assurez-vous de garantir une protection suffisante lorsque de jeunes enfants, des personnes handicapées, des personnes âgées et des animaux se trouvent à proximité de l'appareil.

Respectez impérativement les distances de sécurité entre le poêle et les matériaux inflammables

Ne placez jamais de rideaux, vêtements, linges ou autres matières inflammables sur ou à proximité du poêle.

Lorsque votre poêle fonctionne, n'utilisez jamais de produits explosifs ou facilement inflammables à proximité du poêle.

Prévenez tout départ de feu dans le conduit de cheminée en faisant ramoner régulièrement le conduit concerné. Ne laissez jamais le feu brûler avec la porte du poêle ouverte.

En cas de départ de feu dans le conduit de cheminée : fermez les arrivées d'air du poêle et appelez les pompiers.

Si la vitre du poêle est brisée ou fendue, elle doit être remplacée avant d'utiliser à nouveau l'appareil.

Ne forcez pas la porte, évitez que des enfants tirent la porte quand elle est ouverte, ne vous asseyez pas sur la porte quand elle est ouverte et ne placez pas d'objets lourds sur la porte. Vous évitez ainsi que l'appareil ne bascule.

Veillez à garantir une aération suffisante de la pièce où se trouve le poêle. Une aération insuffisante peut engendrer une combustion incomplète et l'échappement de gaz toxiques dans la pièce. Consultez le chapitre « Conditions d'installation » pour de plus amples informations concernant l'aération.
Conditions d'installation
Généralités
L'appareil doit être raccordé à un conduit de cheminée fonctionnant correctement.
Pour les mesures de connexion, voir l'annexe "Spécifications techniques".
Informez-vous auprès d'un professionnel des pompiers et/ou de votre compagnie d'assurances pour connaître les éventuelles exigences et dispositions spécifiques.
Cheminée
La cheminée est nécessaire pour :
L'évacuation des gaz de combustion par tirage naturel.

L'air chaud dans la cheminée est plus léger que l'air extérieur et s'élève donc dans le conduit de cheminée.
L'aspiration d'air est nécessaire pour la combustion du combustible dans le poêle.
Une cheminée fonctionnant mal peut engendrer un retour de fumée lors de l'ouverture de la porte. Les

dommages dus à un retour de fumée sont exclus de garantie.

Il est interdit de raccorder plusieurs appareils (la chaudière du chauffage central, par exemple) au même conduit de cheminée, sauf dans des cas précis prévus par la réglementation régionale ou nationale. Lors de deux raccordements, veillez en tout cas que la différence de hauteur entre les raccordements s'élève au moins à 200 mm.
Demandez à votre chauffagiste des conseils concernant la cheminée. Consultez la norme européenne EN13384 pour calculer correctement la configuration de la cheminée.
La cheminée doit satisfaire aux conditions suivantes :
La cheminée doit être fabriquée en matériaux rétaires, de préférence en acier inoxydable ou en céramique.
La cheminée doit être étanche, bien propre et gatir un tirage suffisant.

Un tirage/une dépression de 15 - 20 Pa à la charge normale est idéal.
La cheminée doit être aussi verticale que possibl en partant de la sortie de l'appareil. Les changements de direction et les sections horizontales perturbent l'évacuation des gaz de combustion et peuvent créer une accumulation de suie.
La section intérieure du conduit ne doit pas être trop importante, afin d'éviter un refroidissement trop important des gaz de combustion risquant de réduire le tirage.
La cheminée doit de préférence présenter le mêri diamètre que le diamètre de la buse de raccordement.

Pour le diamètre nominal : voir l'annexe « Spécifications techniques ». Si le conduit de fumée est correctement isolé, le diamètre peut éventuellement être plus important (au maximum deux fois la section de la buse de raccordement).
La section (surface) de conduit de fumée doit être constante. Les élargissements et (plus par-
(éculièrement) les rétrécissements perturbent l'évacuation des gaz de combustion.
En cas de pose d'une mitre à la sortie de la cheminée : veillez à ce que la mitre ne réduise pas la sortie d'évacuation de la cheminée et qu'elle ne perturbe pas l'évacuation des gaz de combustion.
La cheminée doit déboucher dans une zone non perturbée par des bâtiments, arbres ou autres obstacles avoisinants.
La partie de la cheminée hors du toit doit toujours être isolée.
La cheminée doit être d'au moins 4 mètres de haut.
La règle de base est la suivante : 60 cm au-dessus du faîtage du toit.
Si le faîtage du toit est éloigné de plus de 3 mètres, de la cheminée : respectez les dimensions indiquées sur le croquis suivant. A = point le plus haut du toit dans une distance de 3 mètres.

text_image
ran- 3 m min. 0.5 m min. 1 m A 09.20500.001Aération de la pièce
L'appareil a besoin d'air (oxygène) pour garantir une bonne combustion. L'appareil est alimenté en air de la me pièce où il se trouve, par le biais d'admissions d'air réglables.

Une aération insuffisante peut engendrer une combustion incomplète et l'échappement de gaz toxiques dans la pièce.
La règle de base est que l'alimentation en air doit être de 5,5 cm²/kW. Une aération supplémentaire est nécessaire dans les cas suivants :
L'appareil est placé dans une pièce correctement isolée.

Il existe une aération mécanique (VMC), un système d'aspiration central ou une hotte de cuisine dans une cuisine américaine, par exemple.
Vous pouvez créer une aération supplémentaire en plaçant une grille d'aération dans un mur donnant sur l'extérieur.
Veillez à ce que les autres appareils utilisant l'air (sèche-linge, second appareil de chauffage ou aéra-teur de salle de bain) aient une propre arrivée d'air exté-rieur ou soient éteints lorsque le poêle est allumé.
cendres éventuelles ne le brûlent pas. Le hour-dis doit répondre aux normes nationales.
Pour les dimensions du hourdis ignifuge : voir l'annexe « Distance d'éloignement avec des matériaux inflammables ».
Pour des exigences supplémentaires concernant la sécurité incendie : voir l'annexe « Distance d'éloignement avec des matériaux exté- inflammables ».

Vous pouvez également raccorder l'appareil à une alimentation en air extérieur. Un kit de raccordement est fourni à cet effet. Une aération supplémentaire n'est pas nécessaire dans ce cas.
Sol et murs
Le sol sur lequel l'appareil sera posé, doit présenter une force portative suffisante. Pour connaître le poids de l'appareil : voir l'annexe « Caractéristiques techniques ».

En cas de sol inflammable, posez une plaque de sol ininflammable pour le protéger contre la chaleur rayonnante. Voir l'annexe « Distance d'éloignement avec des matériaux inflammables ».

Placez le matériel inflammable comme le lino-léum, les tapis, etc, sous le hourdis ignifuge.

Veillez à ce qu'il y ait une distance suffisante entre l'appareil et les matériaux inflammables, tels que parois et mobilier en bois.

La conduite de raccordement réfracte également de la chaleur. Assurez-vous qu'il y ait une distance ou une protection suffisante entre la conduite de raccordement et le matériel inflammable.
La règle de base pour une conduite à simple paroi est une distance de trois fois le diamètre. Si la conduite est gainée, la distance à respecter est d'une fois le diamètre.

Les tapis doivent se trouver au moins à 80 cm du foyer.

Si le sol devant le poêle est inflammable, protégez-le avec un hourdis ignifuge, pour que les
Description du produit

- Collier de raccord
- Porte
- Vitre latérale
- Verrou
- Registre d'air
Fermeture de la porte
Le poêle est livré avec un levier de verrouillage (4) intégré. La porte s'ouvre en appuyant sur le levier de verrouillage. Comme le levier de verrouillage chauffe pendant l'utilisation, un gant destiné à la protection de la main est fourni.
Installation
Préparation générale
Contrôler le poêle immédiatement à la réception en recherchant les dommages (de transport) et autres manquements éventuels. L'appareil est fixé à la palette avec des vis sur le dessous.

En cas de manquements ou dommages (de transport) éventuellement constatés, n'utilisez pas le poêle et informez le fournisseur.
Ôtez les pièces démontables (plaques intérieures réfractaires, grille de combustion, plaque supérieure, bac à cendres) de l'appareil avant d'installer ce dernier.

Afin de faciliter la manipulation de l'appareil et de prévenir des endommagements, vous pouvez retirer toutes les pièces démontables de l'appareil.

Veillez bien à la position d'origine de ces pièces, afin de pouvoir les replacer correctement après l'installation.

text_image
09-20021-011
- Déposez les plaques intérieures réfractaires ; voir illustration suivante.
a. Retirez d'abord le déflecteur (09).

Le déflecteur est fixé sur le dessus avec clip métallique, afin d'éviter un endommagement lors du transport.
b. Retirez les plaques intérieures (10), (11), (07) et (08) sur les côtés et à l'arrière.
c. Retirez la corbeille à l'arrière (02) et (03) et à l'avant (04), (05) et (06).
d. Retirez la grille et le bac à cendres (01) et (12).

Les plaques intérieures en vermiculite sont d'un poids léger et sont généralement d'un coloris ocre à la livraison. Elles isolent la chambre de combustion, afin d'améliorer la combustion.

text_image
08 11 05 03 06 12 09 07 10 04 02 01 09-20021-013Pièces internes amovibles
01 fond du poêle
02 corbeille droite à l'arrière
03 corbeille gauche à l'arrière
04 corbeille droite
05 corbeille gauche
06 corbeille
^u07 plaque intérieure latérale droite à l'arrière
08 plaque intérieure latérale gauche à l'arrière
09 déflecteur plaque intérieure
10 plaque intérieure côté droit
11 plaque intérieure côté gauche
12 bac à cendres
Préparation du raccordement au conduit de cheminée
Lors du raccordement du poêle à un conduit de cheminée, vous avez le choix entre un raccordement sur le dessus ou à l'arrière du poêle.
Un bouclier thermique est disponible en option. En cas d'utilisation de ce bouclier thermique, la distance d'éloignement avec des matériaux combustibles peut être réduite. Voir annexe « Distance d'éloignement avec des matériaux inflammables ». Pour le raccordement à l'arrière, la plaque de rupture doit être retirée. Ceci est possible à l'aide de cisailles (1) ; voir image suivante.


Montage du bouclier thermique Raccordement à l'arrière
Pour monter le bouclier thermique disponible en option, suivez les étapes suivantes :
Pour un raccordement à l'arrière, il est nécessaire de modifier la position du collier de raccordement. Le collier de raccordement est fixé avec 2 écrous M8 (clé 3). Procédez comme suit :
-
Vissez 2 tiges filetées M6 (1) avec une entretoise (2) sur la paroi arrière.
-
Retirez le déflecteur.
-
Placez le bouclier thermique (3) et vissez-le avec 2 vis à tête bridée M6 (4), voir image suivante.
-
Dévissez les écrous et retirez le collier de raccordement.

text_image
1 2 3 4 09-20021-023⚠ Vérifiez que le ruban d'isolation sur la surface de contact n'est pas endommagé. Le cas échéant, remplacez le ruban d'isolation.
- Tournez le collier de raccordement de 180° par rapport à la position d'origine, voir image suivante.
Raccordement sur le dessus
L'appareil est livré par défaut avec le collier de raccordement monté pour un raccordement sur le dessus, voir image suivante.


text_image
09-20021-016 ① ②- Montez le collier de raccordement avec les 2 écrous M8.
- Remettez le déflecteur en place.
Préparation du raccordement d'air extérieur
Si le poêle est placé dans une pièce insuffisamment aérée, vous pouvez monter sur le poêle le kit de raccordement pour l'alimentation en air extérieur.
Le tube d'arrivée d'air a un diamètre de 100 mm. Si vous utilisez un tube lisse, il doit avoir une longueur maximale de 12 mètres. Si vous utilisez des accessoires tels que des coudes, vous devez réduire d'un mètre la longueur maximale (12 mètres) pour chaque accessoire.
Raccordement en air extérieur la paroi
- Percez un passage pour le raccordement dans la paroi (consultez l'Annexe « Dimensions », pour le bon emplacement du passage pour le raccordement).
- Raccordez hermétiquement le tube d'arrivée d'air au mur.

Pose et raccordement
- Placez l'appareil à l'endroit approprié, sur un sol plat et de niveau. L'appareil est équipé de pieds de réglage qui sont déjà montés sur l'appareil ou sont fournis. Utilisez ces pieds de réglage pour mettre l'appareil parfaitement à niveau.

text_image
09-20021-017- Raccordez hermétiquement le poêle au conduit de cheminée.
En cas de raccordement à l'air extérieur : rac-cordez le conduit d'alimentation en air extérieur sur le set de raccordement qui est monté sur l'appareil. - Replacez toutes les pièces démontées au bon endroit sur l'appareil.
Ne faites jamais faire fonctionner votre appareil si les plaques intérieures réfractaires ne sont pas montées.
L'appareil est à présent prêt pour l'emploi.
Utilisation
Première utilisation
Lorsque vous utilisez le poêle pour la première fois, faites un feu intensif pendant quelques heures. Ce feu durcira la laque résistante à la chaleur. Cela peut
toutefois générer de la fumée et une odeur incommodante. Ouvrez éventuellement quelques minutes les portes et les fenêtres de la pièce dans laquelle trouve le poêle.
Combustible
Ce poêle est uniquement adapté pour brûler du bois naturel, scié et fendu et suffisamment sec.
N'utilisez jamais d'autres combustibles que celui prévu pour le poêle, car ils risquent d'endommager médiablement le poêle.
Les combustibles suivants ne doivent jamais être lisés car ils sont polluants, et peuvent encrasser sivement l'appareil et le conduit de cheminée et engendrer un départ de feu dans le conduit de cheminée :
Bois traités, tels que bois de démolition, bois peint, bois imprégné, bois conservé, contreplaqué et aggloméré. 2.
Plastique, vieux papier et déchets ménagers.
Bois
Utilisez de préférence du bois dur provenant d'essences feuillues telles que le chêne, le hêtre, le bouleau et les arbres fruitiers. Ces bois brûlent lentement avec des flammes douces et régulières. Le bois de conifères contient plus de résine, brûle plus rapidement et produit plus d'étincelles.
Utilisez du bois sec d'un pourcentage d'humidité maximum de 20 %. Pour cela le bois doit avoir séché pendant 2 ans au moins. Du bois avec un pourcentage d'humidité de 20 % fournit 4,2 kWh par kg de bois. Du bois avec un pourcentage d'humidité de 15 % fournit 4,4 kWh par kg de bois. Du bois frais avec un pourcentage d'humidité de 60 % et ne fournit que 1,6 kWh par kg de bois.
Sciez le bois à la mesure et fendez-le lorsqu'il est encore vert. Le bois vert se fend plus facilement et le bois fendu sèche mieux. Stockez le bois sous 4 un auvent où le vent peut circuler.
N'utilisez pas de bois mouillé. Le bois mouillé donne moins de chaleur car toute l'énergie va être consacrée à l'évaporation de l'humidité. Cela produit également beaucoup de fumée et des dépôts de suie sur la porte du poêle et dans le conduit d
cheminée. La vapeur d'eau se condense dans le poêle et peut provoquer des fuites le long des joints du poêle et des tâches noires sur le sol de la pièce. La vapeur d'eau peut aussi se condenser dans le conduit de cheminée et former de la créosote. Le créosote est extrêmement inflammable et peut produire un départ de feu dans la cheminée.
Allumage
Vous pouvez vérifier le tirage de la cheminée en allumant une boule de papier au-dessus du déflecteur du poêle. Si la cheminée est froide, le tirage dans le conduit de cheminée est souvent insuffisant et la fumée peut se répandre dans la pièce. Procédez comme suit pour allumer le poêle afin de prévenir le risque d'enfumage de la pièce.
- Empilez deux couches de bûches de taille int, moyenne l'une sur l'autre en les croisant.
- Empilez sur les bûches deux couches de bois d'allumage l'une sur l'autre en les croisant.
- Posez un allume-feu dans la couche inférieure de bois d'allumage et allumez-le en suivant les instructions sur son emballage.

- un Fermez la porte du poêle et ouvrez l'arrivée d'air primaire et l'arrivée d'air secondaire du poêle ; voir l'illustration suivante.
Laissez brûler le feu d'allumage jusqu'à ce qu'il y ait un lit de braises ardentes. Vous pouvez ensuite mettre un peu plus de combustible et régler le

poêle, voir le paragraphe « La combustion au boîde bois. Si vous utilisez plus de bois, la restitution de chaleur sera plus élevée. Ce qui peut surcharger le

text_image
A B C 09-20021-018C:
o o o Air primaire ouvert (pendant l'allumage)
o o Air secondaire ouvert (rinçage du verre)
o Air pour double combustion ouvert
B:
o o Air secondaire ouvert (rinçage du verre)
o Air pour double combustion ouvert
A:
o Air pour double combustion ouvert (ne jamais fermer pour une bonne combustion)
Quantité maximale de bois.
Pour un combustion continue avec puissance nominale, ajoutez du bois toutes les 45 minutes. Si vous diminuez la quantité de bois par remplissage, il suffit d'ajouter du bois plus souvent. Chaque poêle a été conçu pour fonctionner avec une quantité maximale
Quantité autorisée de combustible pour du bois ayant un pourcentage d'humidité de 15 % :
Sense 4,9 kW a une quantité maximale d'1 kg de bois par 45 minutes.
▶ Sense 7 kW a une quantité maximale d'1,5 kg de bois par 45 minutes.
▶ Sense 9 kW a une quantité maximale d'1,9 kg de bois par 45 minutes.
Remplissez la chambre de combustion pour un tiers au maximum et ne placez jamais de bois au-dessus des ouvertures d'air secondaire.
Une ligne d'indication se trouve sur la paroi arrière du Sense 300/400. Remplissez la chambre de combustion en dessous de cette ligne d'indication. Voir l'illustration suivante.

La combustion au bois
Après avoir suivi les instructions d'allumage :
-
Ouvrez lentement la porte de l'appareil.
-
Étalez uniformément le lit de braises dans le fond. Fermez la porte de l'appareil.
du foyer.
- Empilez quelques bûches sur le lit de charbon bois.
Empilage non serré

Quand le bois est empilé serré, il brûlera plus lentement du fait que l'oxygène ne pourra atteindre que quelques bûches. Un empilage serré est recommandé si vous souhaitez chauffer pendant une longue période.
nd. Fermez la porte de l'appareil.
- Fermez l'arrivée d'air primaire et laissez l'arrivée de d'air secondaire ouverte.
⚠️ Remplissez au maximum le corps de chauffe jusqu'au tiers.
Air de combustion insuffisant
Le poêle est doté de différents dispositifs pour régler l'air ; voir illustration suivante.
L'appareil est doté d'un registre d'air qui règle tant l'air primaire que secondaire. Si le registre d'air est entièrement tiré vers l'extérieur, l'arrivée d'air primaire et l'arrivée d'air secondaire sont ouvertes. Au fur et à mesure que le registre d'air est enfoncé, l'arrivée d'air primaire puis l'arrivée d'air secondaire se ferment. Lorsque le registre d'air est entièrement fermé, une petite admission d'air reste ouverte afin d'assurer la double combustion sous le déflecteur.
Quand le bois est empilé non serré, il brûlera vite du fait que l'oxygène pourra atteindre facilement chaque bûche. Un empilage de cette façon est recommandé si vous souhaitez chauffer pendant une période courte.
Empilage serré

L'air primaire permet de régler l'air sous la grille (1 L'air secondaire régule l'air pour la vitre (air-wash) La paroi arrière est dotée d'admissions d'air permanentes (3) sous le déflecteur, assurant une doub combustion parfaite.
Conseils

Ne laissez jamais le feu brûler avec la porte poêle ouverte.

Faites régulièrement un feu intensif dans le poêle.
disparaître ces dépôts éventuels de goudron et créosote.
D'autre part, en cas de combustion trop faible, du goudron peut se déposer sur la vitre et la porte de l'appareil.
En cas de température extérieure douce, il est préférable de faire un bon feu vif pendant quelques heures, plutôt que de faire fonctionner le poêle avec un feu faible pendant une longue période.
Réglez l'admission d'air avec le registre d'air.

L'arrivée d'air oxygène non seulement le feu, mais « balaye » aussi la vitre, ce qui prévient son encrassement prématuré.
Ouvrez temporairement l'arrivée d'air primaire si l'admission d'air par l'arrivée d'air secondaire est insuffisante ou si vous souhaitez raviver le feu.
Il est préférable d'ajouter régulièrement une petite quantité de bûches plutôt que d'en mettre une grande quantité d'un seul coup.
Extinction du feu
N'ajoutez plus de combustible et laissez le foyer s'éteindre de lui-même. Si la puissance du feu est diminuée en réduisant l'alimentation d'air, des gaz toxiques se dégagent. Pour cette raison, laissez toujours le foyer s'éteindre de lui-même. Surveillez le feu jusqu'à ce qu'il soit totalement éteint. Une fois le feu totalement éteint, vous pouvez fermer tous les registres d'air.
Décendrage
Après la combustion du bois, une quantité de cendres relativement réduite reste dans l'appareil. Ce lit de cendres est un excellent isolant pour le fond du foyer et garantit une meilleure combustion. De ce fait, il est recommandé de laisser une fine couche de cendre sur le fond du foyer.
Lorsque l'on brûle du bois pendant une longue recommandé de laisser une fine couche de cendre sur période à faible régime, il peut se former dans le fond du foyer. la cheminée des dépôts de goudron et de créosote. Le goudron et la créosote sont extrêmement inflammables. Quand ces dépôts dépôts l'alimentation en air par le fond du poêle ne doit tou- tefois pas être perturbée et il faut prévenir toute accu- mement d'immable. L' alimentation de cendres derrière la plaque intérieure en deviennent trop importants, une augmentation fonte. Il faut donc éliminer régulièrement les cendres subite de la température de la cheminée peut excédentaires. provoquer un feu dans le conduit de cheminée.
C'est pourquoi il est recommandé de faire régulièrement un feu bien vif, afin de faire


-
Ouvrez la porte de l'appareil.
-
Utilisez la raclette pour faire glisser les cendres excédentaires au travers de la grille dans le bac à cendres.
-
Retirez le bac à cendres en utilisant le gant fourni non pelucheux. et videz-le.
-
Replacez le bac à cendres et fermez la porte d'intérieur de l'appareil comme suit : l'appareil.
Brume et brouillard
Le brouillard et la brume perturbent l'évacuation des gaz de combustion au travers du conduit de cheminée. La fumée peut être rabattue dans la pièce devenir très incommodante. S'il n'est pas vraiment nécessaire de chauffer avec le poêle, il est recommandé de ne pas faire de feu en cas de brume ou brouillard.
Problèmes éventuels
Consulter l'annexe « Tableau de diagnostic » pour résoudre des problèmes éventuels pendant l'usage poêle.
Entretien
Pour conserver votre appareil en bon état, suivez les instructions d'entretien présentées dans ce chapitre.
Conduit de cheminée
Dans de nombreux pays, la loi impose le contrôle et l'entretien par un professionnel des conduits de cheminée.
Au début de la saison de chauffe : faites ramoner votre conduit de cheminée par un spécialiste agréé.
Pendant la saison de chauffe et après une longue période d'inutilisation de la cheminée : faites contrôler les dépôts éventuels de suie dans le conduit de cheminée.
À la fin de la saison de chauffe : bouchez le condu de cheminée avec du papier journal.
Nettoyage et autre entretien régulier

Ne nettoyez pas votre poêle si celui-ci est encore chaud.
Nettoyez l'extérieur du poêle avec un chiffon sec et
À la fin de la saison de chauffe, vous pouvez nettoyer
de'intérieur de l'appareil comme suit :
Déposez tout d'abord éventuellement les plaques intérieures réfractaires. Voir le chapitre « Installation » pour consulter les instructions concernant la dépose et le remontage des plaques intérieures.
Nettoyez éventuellement les canaux d'alimentation en air.
ou Déposez le déflecteur qui se trouve au-dessus de l'appareil et nettoyez-le.
Contrôle des plaques intérieures réfractaires
des plaques intérieures réfractaires sont des pièces sujettes à l'usure. Les plaques intérieures en vermiculite sont fragiles. Ne heurtez pas les plaques inté-

rieures avec les bûches. Contrôlez régulièrement les plaques intérieures et remplacez-les si nécessaire.
Voir le chapitre « Installation » pour consulter les instructions concernant la dépose et le remontage des plaques intérieures.

Les plaques intérieures isolantes en vermiculite ou en chamotte peuvent présenter de craquelures. Ces dernières ne nuisent cependant pas au bon fonctionnement des plaques.

En éliminant régulièrement la cendre qui s'accumule éventuellement derrière les plaques intérieures en fonte permet de prolonger leur durée de vie. Si la cendre accumulée derrière une plaque en fonte n'est pas retirée, la plac ne peut réfracter la chaleur dans l'environnement et risque de se déformer, voire s-fendre.

Ne faites jamais faire fonctionner votre appare si les plaques intérieures réfractaires ne sont pas montées.
Nettoyage de la vitre
Une surface en verre propre retient moins facilement la poussière. Procédez comme suit :
- Éliminez la poussière et la suie avec un chiffon sec.
- Nettoyez le verre avec un nettoyant pour vitres de poêle :
a. Appliquez du nettoyant pour vitres de poêle s une éponge, répartissez-le sur toute la surfac en verre et laissez agir.
b. Éliminez ensuite les saletés avec un chiffon humide ou de l'essuie-tout.
- Nettoyez une nouvelle fois la surface en verre avec un produit ordinaire de nettoyage du verre.
- Nettoyez la surface en verre en la frottant avec chiffon sec ou de l'essuie-tout.
N'utilisez jamais de produits abrasifs ou mordants pour nettoyer la surface en verre.
Portez des gants de nettoyage pour protéger vos mains.

Si la vitre du poêle est brisée ou fendue, elle doit être remplacée avant d'utiliser à nouveau l'appareil.

Veillez à ce que le nettoyant pour vitres de poêle ne s'infiltre pas entre le verre et la porte en fonte.
Entretien du poêle émaillé
Ne nettoyez jamais le poêle lorsqu'il est encore chaud. Il est préférable de nettoyer la surface émaillée du poêle avec du savon vert non agressif et de l'eau tiède. Utilisez le moins d'eau possible, séchez bien la surface et prévenez toute formation de rouille. N'utilisez jamais de paille de fer ou un autre abrasif. Ne pla- cez jamais directement une bouilloire sur un poêle émaillé ; utilisez un dessous afin d'éviter d'en- dommager le poêle.
Graissage
Bien que la fonte soit un métal autolubrifiant, vous devez régulièrement graisser les pièces mobiles.

Graissez les pièces mobiles (telles que systèmes de guidage, charnières, verrous et réglettes d'air), avec de la graisse ininflammable disponible dans le commerce spécialisé.
Réparation des petits dommages de la laque
Les petits dommages de la laque peuvent être réparés avec un aérosol de laque spéciale résistant à la chaîleur et disponible auprès de votre fournisseur.
Réparer la surface émaillée
L'émaillage est un procédé artisanal. Le poêle peut donc présenté de petites différences de couleurs ou de petites imperfections. Un contrôle visuel du poêle est effectué à l'usine. Le contrôleur observe la surface pendant 10 secondes à une distance de 1 mètre.
Les petites imperfections éventuelles qui ne sont pas visibles sont le cas échéant considérées comme acceptables. L'appareil est livré avec une laque de finition spéciale résistante à la chaleur et destinée à réparer les petits endommagements (dus au transport).
Appliquez en fines couches et laissez sécher entièrement la laque de finition résistante à la chaleur avant d'utiliser votre poêle.

▶ Certains coloris d'émail sont sensibles aux changements de température. Il se peut donc que le coloris du poêle varie pendant son utilisation. Une fois que le poêle aura refroidi, il retrouvera son coloris d'origine.
Lorsque les surfaces émaillées deviennent brûlantes, des craquelures peuvent apparaître. Il s'agit d'un phénomène normale qui n'a aucune influence sur le fonctionnement du poêle.

Veillez à ne pas surcharger le poêle. En cas de surcharge, la température de surface devient extrêmement élevée et risque d'endommager l'émail de façon permanente.
Contrôle de l'étanchéité
Vérifiez que le cordon d'étanchéité ferme hermétiquement la porte. Le cordon d'étanchéité s'usp et doit être remplacé à temps.
Dépistez les fuites d'air éventuelles de l'appareil. Mastiquez les interstices éventuels avec du kit pour poêle.

Avant d'allumer le poêle, laissez bien sécher kit qui autrement gonflera à cause de l'humid qu'il contient, provoquant une nouvelle fuite d'air.
Remplacement de la vitre

Si la vitre du poêle est brisée ou fendue, elle doit être remplacée avant d'utiliser à nouveau l'appareil.
Pour remplacer la vitre latérale, il faut d'abord retirer tous les panneaux intérieurs et le guide de l'air. Le guide de l'air est fixé avec un écrou M8 en haut dans l'appareil. Procédez comme suit :
Ajustage de la fermeture de la
Vérifiez que la porte se ferme bien. Si nécessaire, est possible de resserrer ou desserrer la fermeture la porte en modifiant la distance entre le tenon de meture et la porte. Procédez comme suit :
-
Ouvrez la porte. Le tenon de fermeture (2) est désormais visible et accessible, voir image suivante.
-
Desserrez les deux vis (1) qui fixent le tenon de fermeture.
-
En retirant une plaque de remplissage (3) derrière le tenon de fermeture (2), la fermeture de la porte sera plus serrée. Si la fermeture de la porte est trop serrée, placez une plaque de remplissage supplémentaire derrière le tenon de fermeture.
-
Resserrez à nouveau les deux vis du tenon de fermeture et fermez la porte.
-
Dévissez les deux attaches pour le verre (1) et (2) et retirez la vitre (3), voir image suivante.
il. Vérifiez l'étanchéité de la vitre et appliquez, si de nécessaire, un nouveau cordon d'étanchéité. fer-
- Placez la nouvelle vitre dans la rainure et vissez les attaches pour le verre.

text_image
09-20021-025Pièces de rechange Sense

text_image
09-20021-013Sense 100/103/200/203
Pos. N° article Description Quantité
01 03.66544.002 fond du poêle 1
02 03.77429.002 corbeille droite à l'ar-1rière
03 03.77428.000 corbeille gauche à 1 l'arrière
04 03.77425.002 corbeille droite 1
05 03.77424.002 corbeille gauche 1

06 03.77423.002 corbeille 1
07 03.77523.000 plaque intérieure 1 latérale droite à l'arrière
08 03.77522.000 plaque intérieure 1 latérale gauche à l'arrière
09 03.76181.000 déflecteur plaque 1
intérieure
10 03.77525.000 plaque intérieure 1
côté droit
11 03.77524.002 plaque intérieure 1
côté gauche
12 03.05216.000 bac à cendres 1
Sense 300/303/400/403
Pos. N° article Description Quantité
01 03.66549.002 fond du poêle 1
02 03.77444.002 corbeille droite à l'ar-1rière
03 03.77443.000 corbeille gauche à 1 l'arrière
04 03.77442.002 corbeille droite 1
05 03.77441.002 corbeille gauche 1
06 03.77440.002 corbeille 1
07 03.77548.000 plaque intérieure 1 latérale droite à l'arrière
08 03.77547.000 plaque intérieure 1 latérale gauche à l'arrière
09 03.76188.000 déflecteur plaque 1 intérieure
10 03.77550.000 plaque intérieure 1 côté droit
11 03.77549.002 plaque intérieure 1 côté gauche
12 03.05216.000 bac à cendres 1
Annexe 1 : Caractéristiques techniques
| Modèle | Sense100/103/200/203 | Sense100/103/200/203 | Sense300/303/400/403 |
| Puissance nominale 4,9 kW 7 | 0 kW 9,0 kW | ||
| Raccordement au conduit de che-minée (diamètre) | 150 mm 150 mm 150 mm | ||
| Poids 105 kg - 125 kg 105 kg | - 125 kg 150 kg - 180 kg | ||
| Combustible recommandé Bois | Bois | Bois | |
| Caractéristique du combustible, longueur max. | 33 cm | 33 cm | 40 cm |
| Débit massique de gaz de fumée | 4,5 g/s | 5,1 g/s | 7,3 g/s |
| Température de fumée mesurée à la section de mesure | 247°C | 274°C | 274°C |
| Température mesurée à la sortie d'évacuation de l'appareil | 317°C | 351°C | 352°C |
| Tirage minimum | 12 Pa | 12 Pa | 12 Pa |
| Émission CO (13% _2 ) | 0,18 % | 0,07 % | 0,08 % |
| Émission NOx (13% _2 81 mg/Nm ^3 | 89 mg/Nm ^3 | 75 mg/Nm ^3 | |
| Émission CnHm (13% _2 ) | 173 mg/Nm ^3 | 76 mg/Nm ^3 | 69 mg/Nm ^3 |
| Émission de poussières | 27 mg/Nm ^3 | 25 mg/Nm ^3 | 19 mg/Nm ^3 |
| Émission de poussières selon NS3058-NS3059 | 2,87 gr/kg | 2,87 gr/kg | 4,7 gr/kg |
| Rendement | 79,5 % | 80 % | 80 % |
Annexe 2: Dimensions
Sense 100

text_image
470 900 285
text_image
3 6 0 Ø1 5 0 7 9 0 Ø1 0 0 3 0 0
text_image
Ø1 5 0 3 7 5 1 0 009-20021-001
Sense 103

text_image
470 900 285
text_image
360 Ø150 Ø100 790 Ø100 300
text_image
Ø1 5 0 3 7 5 1 0 009-20021-002
Sense 200

text_image
470 980 365
text_image
360 Ø150 Ø100 870 380
text_image
Ø1 5 0 3 7 5 1 0 009-20021-003
Sense 203

text_image
470 980 365
text_image
360 Ø150 Ø100 Ø100 870 380
text_image
Ø1 5 0 3 7 5 1 0 009-20021-004
Sense 300

text_image
5 5 5 10 10 29 0
text_image
4 2 5 0 1 5 Ø1 Ø1 0 0 8 8 0 3 0
text_image
4 4 0 φ1 5 θ 1 509-20021-005
Sense 303

09-20021-006
Sense 400

text_image
5 5 5 1 1 6 0 4 3 0
text_image
10 25 4 5 0 1 0 0 φ1 5 0 4 2 5
text_image
4 4 0 Ø1 5 Ø1 509-20021-007
Sense 403

text_image
5 5 5 1 1 6 0 4 3 0
text_image
4 2 5 10 2 5 Ø1 5 0 Ø1 0 0 Ø1 0 0 4 5 0
text_image
4 4 0 Ø1 5 0 1 1 509-20021-008
Annexe 3 : Distance d'éloignement avec des matériaux combustibles
Sense 100/103/200/203 4,9 kW - 7 kW - Distances minimales en mill pour une configuration sans bouclier thermique

text_image
1000 750 300 100 100 100 840 * with/without sideglass 650 700 300 200 /150* 530 300 200 /150* 900 900 400 100 100 750 750 500 100 100 300 300 500 300 900 300 300 09-20021-021| 1 Matériau combustible |
| 2 Matériau incombustible 100 mm |

Attention ! En l'absence de raccordement à l'air extérieur et pour garantir l'arrivée d'air de combustion, la distance entre le collier de raccordement pour l'air extérieur et le mur doit être de 20 mm au minimum. Le cas échéant, il est possible de démonter le collier de raccordement.

Sense 100/103/200/203 4,9 kW - 7 kW - Distances minimales en mill pour une configuration avec bouclier thermique

text_image
1000 20 750 20 1 2 * with/without sideglass 630 20 475 20 300 200 /150* 650 300 200 /150* 900 400 100 750 500 100 300 300 900 100 750 100 09-20021-022| 1 Matériau combustible |
| 2 Matériau incombustible 100 mm |

Attention ! En l'absence de raccordement à l'air extérieur et pour garantir l'arrivée d'air de combustion, la distance entre le collier de raccordement pour l'air extérieur et le mur doit être de 20 mm au minimum. Le cas échéant, il est possible de démonter le collier de raccordement.

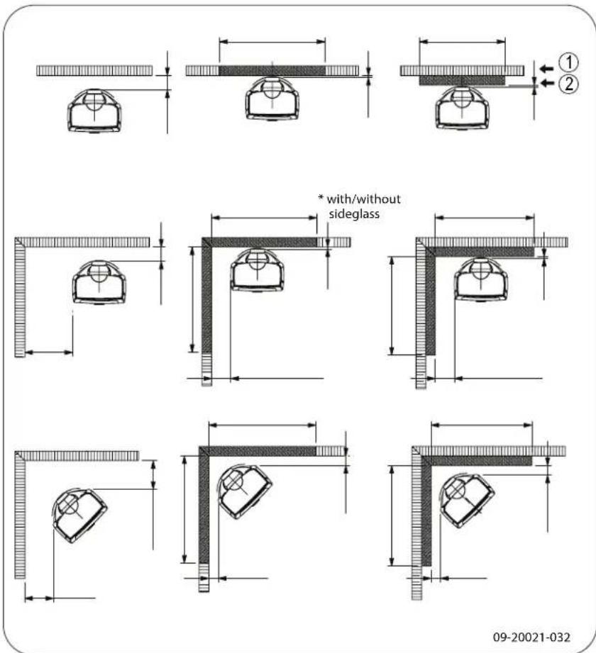
Sense 300/303/400/403 - 9 kW - Distances minimales en millimètres p une configuration sans bouclier thermique

text_image
with/without sideglass 09-20021-031Sense 300/303/400/403 - 9 kW - Distances minimales en millimètres p une configuration avec bouclier thermique

text_image
* with/without sideglass 09-20021-032Sense - Dimensions hourdis ignifuge

text_image
B B A 09-20021-030Dimensions minimales hourdis ignifuge
| A (mm) | B (mm) | |
| Din 18891 500 300 | ||
| Allemagne 500 300 | ||
| Finlande 400 100 | ||
| Norvège 300 5 |
Annexe 4 : Tableau de diagnostic
| Problème | ||||||
| ● | Le bois ne continue pas de brûler | |||||
| ● | Dégage une chaleur insuffisante | |||||
| ● | Retour de fumée lors du remplissage du poêle | |||||
| ● | Le feu est trop vif, impossible de bien régler le poêle | |||||
| ● | Dépôt sur la vitre | |||||
| cause possible solution | éventuelle | |||||
| ● | ● | ● | ● | Tirage insuffisant | Une cheminée froide présente souvent un tirage insuffisant. Pour allumer un feu, suivez les instructions données au chapitre « Utilisation »; ouvrez une fenêtre. | |
| ● | ● | ● | ● | Le bois est trop humide Utilisez du bois à 20 %d'humidité maximum. | ||
| ● | ● | ● | ● | Dimensions du boistrop importantes | Utilisez du petit bois pour allumer votre feu. Utilisez des souches de boisfendues d'une circonférence maximale de 30 cm. | |
| ● | ● | ● | ● | ● | Le bois est mal empilé | Posez le bois en veillant à ce que suffisamment d'air puisse passer entre les bûches (empilage non serré, voir « La combustion au bois »). |
| ● | ● | ● | ● | Mauvais fonctionnement de la cheminée | Vérifiezque la cheminée satisfait aux conditions suivantes : 4 mètres de haut minimum, diamètre approprié, isolation correcte, intérieur du conduit lisse, sans trop de coudes, aucune obstruction (nid d'oiseaux, dépôt de suie important), hermétique (sans interstices). | |
| ● | ● | ● | ● | Sortie de la cheminée inadéquate | Doit être suffisamment haute au-dessus du toit, dans une zone déga-gée. | |
| ● | ● | ● | ● | ● | Réglage inadéquat des alimentations d'air | Ouvrez entièrement les alimentations d'air. |
| ● | ● | ● | ● | Raccordement inadéquat du poêle au conduit de cheminée | Le raccordement doit être hermétique. | |
| ● | ● | ● | ● | Dépression dans la pièce où le poêle installé | est Désactivez les systèmes d'aspiration. | |
| ● | ● | ● | ● | Alimentation insuffisante en air frais | Prévoyez une alimentation en air frais suffisante, utilisez sinéces-saire un raccordement d'air extérieur. | |
| ● | ● | ● | ● | Conditions météorologiques défavorables ? Inversion (flux d'air inversé dans la cheminée du fait d'une température extérieure élevée), fortes rafalesde vent | En casd'inversion du fluxd'air, l'usage de l'appareilest déconseillé. Posez si nécessaire une hotte aspirante sur la cheminée. | |
| ● | Courant d'air dans la pièce | Évitez les courants d'air dans la pièce, évitez de poser le poêle à proximité d'une porte ou de gaines d'air de chauffage. | ||||
| ● | Les flammes touchent la vitre | Veillezà ce que le bois ne se trouve pas trop près de la vitre. Fermez un peu plusl'arrivée d'air primaire. | ||||
| ● | De l'air s'échappe du poêle Vérifiezles fermetures de la porte et lesjoints de l'appareil. | |||||
Index
A
Aération 11 raccordement alimentation en air extérieur 16 règle de base 11
Ajout de combustible.20....
Alimentation en air extérieur 11, 16.... raccordement 16.....
allumer 17
Arrivée d'air primaire..17....
Arrivée d'air secondaire 17....
Arrivées d'air 17....
Avertissement aération....10-11 conditions d'assurances....10 consignes....10 départ de feu dans conduit de cheminée....10 départ de feu dans le conduit de cheminée 20 feu dans le conduit de fumée....17 matériaux inflammables....10 nettoyant pour vitres de poêle....22 plaques intérieures réfractaires....16 surface chaude....10 vitre brisée ou fendue....10, 22-23
B
Bac à cendres ouverture 21
Bois ....17 conservation ....17 essence adaptée ....17 mouillé ....17 ne brûle pas....39 séchage ....17
Bois d'allumage.39..... Bois de conifères.... 17 Bois mouillé.... 17
Bouclier thermique monter 15
Brouillard, ne pas faire de feu 21
Brume, ne pas faire de feu ....21 C
Chaleur, insuffisante.... 21, 39 Charnière placer .23....
Cheminée conditions 11 diamètre de raccordement 25 hauteur 11
Collier de raccordement au conduit de cheminée15
Combustible adapté....17 ajout....20 bois....17 inadapté....17 quantité nécessaire....21 remplissage....19
Combustible adapté.... 17 Combustible inadapté.... 17
Combustion .... 19 ajout de combustible .... 19-20 chaleur insuffisante .... 21, 39 feu trop vif .... 39 impossible de bien régler le poêle.... 39
Conditions météorologiques, ne pas faire de feu 21 Conduit de cheminée entretien .... 21 raccordement .16....
Cordon d'étanchéité de la porte.... 23 Couche de finition, entretien.... 22 Créosote.... 20
D
Décendrage 20 Dépose plaques intérieures réfractaires 1 Dimensions 26 Dommages 13
É
Émail entretien 22 Émission de poussières 25
E
Empilage des bûches.... 19 Entretien conduit de cheminée.... 21 émail.... 22 étanchéité.... 23 graissage.... 22 nettoyage de la vitre.... 22
nettoyer le poêle 21......
plaques intérieures réfractaires.21
Extinction du feu.20....
F
Feu
allumage 17.
extinction .20
Feu d'allumage 17
Force portative du sol.12.
Fuite d'air 23
Fumée
lors de la première utilisation..16.
G
Gaz de fumée
débit massique.25....
température 5,7,9,25
Goudron 20
Graissage 22
Graisse pour graissage.... 22
Grille d'aération 11
H
Hauteur de remplissage du poêle.... 19
1
Interstices dans l'appareil 23
L
Laque 16
M
Matériaux combustibles
distance jusqu'à.... 34
Mise en place
dimensions 26
Mitre de cheminée 11
Mitre sur la sortie de cheminée.... 11
Montage
bouclier thermique.... 15
Murs
sécurité incendie.... 12
N
Nettoyage
poêle 21
vitre 22
Nettoyant pour vitres de poêle 22
0
Ouvrir
bac à cendres.... 21
porte 13
Oxygénation du feu.... 20
P
Pièces démontables.... 13
Pièces, démontables 13
Plaques intérieures
vermiculite 14
Plaques intérieures en fonte.... 14
Plaques intérieures en vermiculite.... 14
Plaques intérieures réfractaires
avertissement 16
dépose 14
entretien 21
Plaques intérieures, réfractaires
dépose 14
Poids 25
Porte
ajuster 23
cordon d'étanchéité 23
fermeture 23
ouverture 13
tenon de fermeture.... 23
Prévenir un départ de feu dans le conduit de cheminée ....20
Puissance nominale 21, 25
R
Raccordement
dimensions 26
Raccordement à l'alimentation en air extérieur 16
Raccordement au conduit de cheminée
à l'arrière 15
sur le dessus 15
Ramonage du conduit de cheminée 21
Réglage de l'admission d'air ....20
Réglage de l'air 19
Réglage de l'air de combustion..19....
Remplacement
vitre 23

Remplissage en matériau combustible
retour de fumée 39....
Rendement .5,.7,.9,.25....
Résolution de problèmes 21, 39
Retirer
cendres 20
Retirer les cendres.20......
Retour de fumée 11, 39
s
Séchage du bois 17
Sécurité incendie
distance jusqu'aux matériaux combustibles 34
meubles .12....
murs 12
sol .12....
Sols
force portative.... 12
sécurité incendie.... 12
Stockage du bois.... 17
T
Tapis 12
Température 25
Tenon de fermeture
plaque de remplissage 23
Tirage 25
v
Vermiculite
réfractaires 14
Verre
dépôt 39
Vitre
endommagée 23
fendue 23
nettoyage 22
remplacer 23
Vitres
dépôt 39
nettoyage 22
Inhaltsverzeichnis
Einleitung 3
B-2381 Weelde Fax : +32 (0) 14 65 90 09
B-2381 Weelde Fax : +32 (0) 14 65 90 09
B-2381 Weelde Fax : +32 (0) 14 65 90 09
B-2381 Weelde Fax : +32 (0) 14 65 90 09
Belgio E-mail : info@dovre.be

B-2381 Weelde Fax : +32 (0) 14 65 90 09
Belgio E-mail : info@dovre.be

B-2381 Weelde Fax : +32 (0) 14 65 90 09
Belgio E-mail : info@dovre.be

Sicurezza

Notice Facile