Sense 403 - Calefacción DOVRE - Manual de uso y guía de instrucciones gratis
Encuentra gratis el manual del aparato Sense 403 DOVRE en formato PDF.
Preguntas frecuentes - Sense 403 DOVRE
Preguntas de los usuarios sobre Sense 403 DOVRE
0 pregunta sobre este aparato. Responde a las que conoces o haz la tuya.
Hacer una nueva pregunta sobre este aparato
Descarga las instrucciones para tu Calefacción en formato PDF gratis! Encuentra tus instrucciones Sense 403 - DOVRE y toma tu dispositivo electrónico nuevamente en la mano. En esta página están publicados todos los documentos necesarios para el uso de su dispositivo. Sense 403 de la marca DOVRE.
MANUAL DE USUARIO Sense 403 DOVRE
INSTALLATIEVOORSCHRIFTEN EN GEBRUIKSAANWIJZING INSTALLATION INSTRUCTIONS AND OPERATING MANUA INSTALLATION ET MODE D'EMPLOI EINBAUANLEITUNG UND GEBRAUCHSANWEISUNG INSTRUCCIONES DE INSTALACIÓN Y USO REQUISITI PER L'INSTALLAZIONE E ISTRUZIONI PER MONTERINGS- OG BRUKSANVISNING
HOUTKACHEL
WOOD STOVE
POELE A BOIS
HOLZ-FEUERSTÄTTE
ESTUFA DE LEÑA
STUFA A LEGNA
PEISOVN

Sense 100 Sense 103 Sense 200 Sense 203

Declaración de prestaciones 4
Declaración de prestaciones 6
Declaración de prestaciones 8
Seguridad 10
Condiciones de instalación 10
Condiciones generales 10.
Chimenea 10
Ventilación de la habitación 11.....
Suelo y paredes 12....
Descripción del producto 12
Instalación 13 Preparación general 13
Preparación de la conexión a la chimenea 14
Preparación de la toma de aire exterior. 15
Colocación e instalación 16
Uso 16
Primer uso 16
Combustible 16
Encendido 17
Cantidad máxima de madera 18
Alimentar con leña 18
Regulación del aire de combustión.... 19
Extinción del fuego.... 20
Eliminar la ceniza.... 20
Nieblas y brumas.... 20
Posibles problemas 21
Mantenimiento 21
Chimenea 21
Limpieza y mantenimiento periódico 21
Piezas de repuesto Sense 23
Anexo 1: Especificaciones técnicas.... 25
Anexo 2: Medidas 26
Anexo 3: Distancia a materiales inflamables 34
Anexo 4: Diagnóstico de problemas.... 39
Índice 40
Introducción
Estimado cliente,
con la compra de este aparato de calefacción DOVRE, usted ha adquirido un producto de calidad. Este producto forma parte de una nueva generación de aparatos de calefacción respetuosos con el medio ambiente y con un consumo de energía más eficiente. Estos aparatos hacen un uso óptimo tanto del calor por convección como del calor por irradiación.
Su aparato DOVRE ha sido fabricado con los más modernos procesos de fabricación. En caso de avería en su aparato, puede enviar su reclamación al servicio técnico de DOVRE.
El aparato no puede modificarse; utilice siempre componentes originales.
El aparato está creado para el uso en viviendas. Debe conectarse de manera hermética a una chimenea que funcione correctamente.
Le aconsejamos que la instalación de su aparato la realice un instalador certificado.
DOVRE no se hace responsable de los problemas o daños originados por la instalación inadecuada de sus productos.
Durante la instalación, tenga en cuenta los consejos de seguridad que se describen a continuación.
En este manual podrá leer cómo instalar, utilizar y mantener su aparato de calefacción DOVRE de manera segura. Si desea obtener más información o datos técnicos adicionales, o si tiene problemas con la instalación, póngase en contacto con su distribuidor.
© 2014 DOVRE NV
Declaración de prestaciones
De conformidad con el reglamento de productos de construcción 305/2011
N.° 033-CPR-2013
- Código de identificación único del tipo de producto:
Sense 100 - 200 / 4,9 kW
- Número de tipo, partida o serie, así como otro medio de identificación para el producto de construcción, tal y como se describe en el artículo 11, apartado 4:
Número de serie único.
- Usos previstos del producto de construcción, de conformidad con la especificación técnica armonizada aplicable, tal y como haya determinado el fabricante:
Estufa para combustible fijo sin producción de agua caliente según EN 13240.
- Nombre, nombre comercial registrado o marca comercial registrada y dirección de contacto de fabricante, tal y como se describe en el artículo 11, apartado 5:
-
Siempre que sea aplicable, nombre y dirección de contacto del poderhabiente que desempeña tareas indicadas en el artículo 12, apartado 2:
-
El sistema o los sistemas para la evaluación y verificación de la constancia de las prestación producto de construcción, mencionadas en el anexo V:
Sistema 3
- En el caso de que la declaración de prestaciones esté relacionada con un producto de cor sujeto a una norma armonizada:
El organismo KVBG designado, registrado con el número 2013, ha realizado conforme al sistema 3 un examen de tipo y ha proporcionado el informe de prueba n° H20130113.
-
En el caso de que la declaración de prestaciones esté relacionada con un producto de cor para el que se ha emitido una evaluación técnica europea:
-
Prestación declarada:
| La norma armonizada EN 13240:2001/A2 ;2004/AC :2007 | |
| Características esenciales Prestaciones Leña | |
| Seguridad contra incendios | |
| Resistencia al fuego A1 | |
| Distancia a materiales inflamables | Distancia mínima en mmParte posterior: 300Lateral: 500 |
| Riesgo de caída de brasas incandescentes Conforme | |
| Emisión de productos de combustión CO: 0,18% (13%O 2) | |
| Temperatura de la superficie Conforme | |
| Seguridad eléctrica - | |
| Limpieza sencilla | Conforme |
| Presión máxima de funcionamiento | - |
| Temperatura del gas residual a potencia nominal | 247 °C |
| Resistencia mecánica (carga máxima de la chimenea) | No determinada |
| Potencia nominal | 4,9 kW |
| Rendimiento | 79,5 % |
- Las prestaciones del producto descrito en los puntos 1 y 2 son conformes con las prestac declaradas en el punto 9.
Esta declaración de prestaciones se emite bajo la exclusiva responsabilidad del fabricante mencion en el punto 4.

text_image
T. Gehem01/10/2013 Weelde
Tom Gehem
Director ejecutivo
En el marco de la mejora continua de nuestros productos, las especificaciones del aparato suministrado pu variar de aquellas descritas en este manual, sin necesidad de previo aviso.
DOVRE N.V.
Bélgica Correo electrónico : info@dovre.be

Declaración de prestaciones
De conformidad con el reglamento de productos de construcción 305/2011
N.° 032-CPR-2013
- Código de identificación único del tipo de producto:
Sense 100 - 200 / 7 kW
- Número de tipo, partida o serie, así como otro medio de identificación para el producto de construcción, tal y como se describe en el artículo 11, apartado 4:
Número de serie único.
- Usos previstos del producto de construcción, de conformidad con la especificación técnica armonizada aplicable, tal y como haya determinado el fabricante:
Estufa para combustible fijo sin producción de agua caliente según EN 13240.
- Nombre, nombre comercial registrado o marca comercial registrada y dirección de contacto de fabricante, tal y como se describe en el artículo 11, apartado 5:
-
Siempre que sea aplicable, nombre y dirección de contacto del poderhabiente que desempeña tareas indicadas en el artículo 12, apartado 2:
-
El sistema o los sistemas para la evaluación y verificación de la constancia de las prestación producto de construcción, mencionadas en el anexo V:
Sistema 3
- En el caso de que la declaración de prestaciones esté relacionada con un producto de cor sujeto a una norma armonizada:
El organismo KVBG designado, registrado con el número 2013, ha realizado conforme al sistema 3 un examen de tipo y ha proporcionado el informe de prueba n° H20130112.
-
En el caso de que la declaración de prestaciones esté relacionada con un producto de cor para el que se ha emitido una evaluación técnica europea:
-
Prestación declarada:
| La norma armonizada EN 13240:2001/A2 ;2004/AC :2007 | |
| Características esenciales Prestaciones Leña | |
| Seguridad contra incendios | |
| Resistencia al fuego A1 | |
| Distancia a materiales inflamables | Distancia mínima en mmParte posterior: 300Lateral: 500 |
| Riesgo de caída de brasas incandescentes Conforme | |
| Emisión de productos de combustión CO: 0,07% (13%O2) | |
| Temperatura de la superficie Conforme | |
| Seguridad eléctrica - | |
| Limpieza sencilla | Conforme |
| Presión máxima de funcionamiento | - |
| Temperatura del gas residual a potencia nominal | 274 °C |
| Resistencia mecánica (carga máxima de la chimenea) No determinada | |
| Potencia nominal | 7 kW |
| Rendimiento | 80,0 % |
- Las prestaciones del producto descrito en los puntos 1 y 2 son conformes con las prestac declaradas en el punto 9.
Esta declaración de prestaciones se emite bajo la exclusiva responsabilidad del fabricante mencion en el punto 4.

text_image
T. Gehem01/10/2013 Weelde
Tom Gehem Director ejecutivo
En el marco de la mejora continua de nuestros productos, las especificaciones del aparato suministrado pu variar de aquellas descritas en este manual, sin necesidad de previo aviso.
DOVRE N.V.
Bélgica Correo electrónico : info@dovre.be

Declaración de prestaciones
De conformidad con el reglamento de productos de construcción 305/2011
N.° 041-CPR-2014
- Código de identificación único del tipo de producto:
Sense 300 - 400 / 9 kW
- Número de tipo, partida o serie, así como otro medio de identificación para el producto de construcción, tal y como se describe en el artículo 11, apartado 4:
Número de serie único.
- Usos previstos del producto de construcción, de conformidad con la especificación técnica armonizada aplicable, tal y como haya determinado el fabricante:
Estufa para combustible fijo sin producción de agua caliente según EN 13240.
- Nombre, nombre comercial registrado o marca comercial registrada y dirección de contacto de fabricante, tal y como se describe en el artículo 11, apartado 5:
-
Siempre que sea aplicable, nombre y dirección de contacto del poderhabiente que desempeña tareas indicadas en el artículo 12, apartado 2:
-
El sistema o los sistemas para la evaluación y verificación de la constancia de las prestación producto de construcción, mencionadas en el anexo V:
Sistema 3
- En el caso de que la declaración de prestaciones esté relacionada con un producto de cor sujeto a una norma armonizada:
El organismo KVBG designado, registrado con el número 2013, ha realizado conforme al sistema 3 un examen de tipo y ha proporcionado el informe de prueba n° H20140117.
-
En el caso de que la declaración de prestaciones esté relacionada con un producto de cor para el que se ha emitido una evaluación técnica europea:
-
Prestación declarada:
| La norma armonizada EN 13240:2001/A2 ;2004/AC :2007 | |
| Características esenciales Prestaciones Leña | |
| Seguridad contra incendios | |
| Resistencia al fuego A1 | |
| Distancia a materiales inflamables | Distancia mínima en mmParte posterior: 400Lateral: 500 |
| Riesgo de caída de brasas incandescentes Conforme | |
| Emisión de productos de combustión CO: 0,08% (13%O 2) | |
| Temperatura de la superficie Conforme | |
| Seguridad eléctrica - | |
| Limpieza sencilla | Conforme |
| Presión máxima de funcionamiento | - |
| Temperatura del gas residual a potencia nominal | 216 °C |
| Resistencia mecánica (carga máxima de la chimenea) | No determinada |
| Potencia nominal | 9 kW |
| Rendimiento | 80 % |
- Las prestaciones del producto descrito en los puntos 1 y 2 son conformes con las prestac declaradas en el punto 9.
Esta declaración de prestaciones se emite bajo la exclusiva responsabilidad del fabricante mencion en el punto 4.

text_image
T. Gehem01/10/2013 Weelde
Tom Gehem Director ejecutivo
En el marco de la mejora continua de nuestros productos, las especificaciones del aparato suministrado pu variar de aquellas descritas en este manual, sin necesidad de previo aviso.
DOVRE N.V.
Bélgica Correo electrónico : info@dovre.be

Seguridad
¡Atención! Siga las instrucciones de seguridad del fabricante al pie de la letra.
⚠ Lea atentamente las instrucciones para la instalación, uso y mantenimiento del aparato antes de ponerlo en funcionamiento.
La instalación del aparato debe cumplir con todas las normativas y regulaciones vigentes en su país de residencia.
El aparato debe cumplir con todas las disposiciones locales y las disposiciones que tengan relación con normativas nacionales o europeas.
Haga instalar preferiblemente su aparato por un instalador certificado. Este podrá informarle de todas las disposiciones y normativas vigentes.
Este aparato se ha diseñado para fines de calefacción. ¡Todas las superficies del mismo, incluyendo el cristal y el tubo de conexión, pueden alcanzar temperaturas muy elevadas (más de 100 °C)! Para manipular el aparato cuando esté en funcionamiento, utilice una "mano fría" o guantes protectores contra el calor.
Asegúrese de que existe suficiente protección cuando haya niños, minusválidos y ancianos ¿perca del aparato.
Se deben respetar estrictamente las distancias de seguridad hasta el material inflamable.
Evite colocar cortinas, prendas, ropa lavada u otros materiales inflamables sobre el aparato en las cercanías del mismo.
⚠️ Cuando el aparato esté en funcionamiento, utilice sustancias inflamables o explosivas cerca del mismo.
Evite incendios en la chimenea haciéndola limpiar periódicamente. No deje la puerta abierta mientras el fuego esté encendido.
En caso de incendio en la chimenea: cierre las entradas de aire del aparato y llame a los bomberos.
En caso de que el cristal del aparato se haya roto o agrietado, deberá reemplazar el cristal antes de volver a utilizar el aparato.
Mantenga la habitación donde se coloque el aparato bien ventilada. Una ventilación insuficiente de la habitación puede producir una combustión insuficiente y la liberación de gases tóxicos. Consulte la sección "Condiciones de instalación" para saber más sobre la necesidad de ventilación.
Condiciones de instalación
Condiciones generales
El aparato debe conectarse a una chimenea en buen estado.
Para realizar la conexión: lea el anexo "Especificaciones técnicas".
Infórmese en su departamento local de bomberos y / o en su compañía aseguradora sobre posibles requisitos y normativas.
Chimenea
La chimenea es necesaria para:
La evacuación de los gases inflamables, mediante el tiro natural.
s i El aire caliente que se encuentra en el interior de la chimenea es más ligero que el aire exterior. Esto provoca que el aire se eleve.
La succión del aire, necesaria para la combustión del combustible dentro del aparato.
n°Una chimenea en mal estado puede ocasionar el retorno de los gases al abrir la puerta del aparato. Los daños producidos por el retorno de gases están excluidos de la garantía.
No conecte varios aparatos a la misma chimenea (por ejemplo, conectar además del aparato, una caldera de calefacción central), a menos que las normativas locales o nacionales así lo permitan. En el caso de dos

conexiones, asegúrese de que la diferencia de La chimenea debe desembocar en una zona del altura entre las conexiones es de al menos 200tejado que no esté obstaculizada por edificios mm. adyacentes, árboles cercanos u otros obstáculos.
Su instalador podrá asesorarle sobre las normativas de seguridad de la chimenea. Consulte la Normativa Europea EN13384 para hacer un cálculo adecuado la capacidad de su chimenea.
La chimenea debe cumplir con las siguientes condiciones:
La chimenea debe estar fabricada con materiales ignífugos, preferentemente materiales cerámicos o acero inoxidable.
La chimenea debe estar herméticamente cerrada y bien limpia, y debe asegurar un tiro suficiente.

Lo ideal es conseguir un tiro / presión mínima de 15 - 20 PA durante una carga normal.
La chimenea debe ser lo más vertical posible, desde el punto de salida del aparato. Las desviaciones y / o posibles tramos horizontales dificultan la evacuación de los gases inflamables, pudiendo originar acumulaciones de hollín.
El interior del tubo no debe ser demasiado grand para evitar que los gases inflamables se enfríen demasiado rápido y se reduzca la capacidad de tiro.
Es aconsejable que la chimenea tenga el mismo diámetro que el cuello de conexión del aparato.

Para el diámetro nominal: consulte el anexo "Especificaciones técnicas". Cuando el conducto de humos está bien aislado, el diámetro puede ser algo más grande (como máximo el doble de la sección del cuello de conexión).
La sección (superficie) del conducto de humos há de ser constante en toda su longitud. Los ensanchamientos y (muy especialmente) los estrechamientos pueden obstaculizar la evacuación de los gases inflamables.
Al aplicar la caperuza o sombrerete sobre la chimenea: evite que la caperuza estreche la salida de la chimenea o que obstaculice la liberación de gases de combustión.
La parte de la chimenea situada fuera de la vivienda debe estar aislada.
La chimenea debe tener una altura mínima de 4 metros.
Puede seguir esta sencilla regla: 60 cm sobre la parte mas alta del tejado.
Si el caballete del tejado está situado a más de 3 metros de la salida de la chimenea: siga las medidas indicadas en la siguiente imagen. A = el punto más alto del tejado dentro de una distancia de 3 metros.

text_image
a 3 m min. 0.5 m min. 1 m eφ9.20500.001Ventilación de la habitación
Para que la combustión sea adecuada, el aparato necesita aire (oxígeno). Este aire entra por las tomas de aire regulables y procede del espacio en el que está situado el aparato.

Si la ventilación es insuficiente, la combustión no será completa, lo que podría liberar gases tóxicos en la habitación.
Una regla sencilla es que la conducción de aire debe ser de 5,5 cm²/kW. Se necesita ventilación adicional en los siguientes casos:
Cuando el aparato está en un espacio bien aislado.
Cuando existe ventilación mecánica en el espacio, ida p. ej., un sistema de extracción de aire central o de una campana extractora en una cocina abierta.
Para una ventilación adicional, puede instalar una rejilla de ventilación en el muro exterior.

Procure que otros aparatos de aire caliente (como secadoras, aparatos de calefacción o calefactores de baño) tengan su propio acceso de aire exterior, o que estén apagados mientras el aparato está funcionando.

Para más requisitos de seguridad contra incendios, consulte el anexo "Distancia de materiales inflamables".

Otra solución es conectar el aparato a una toma de aire exterior. El aparato incluye un de conexión para este fin. En este caso no necesitará ventilación adicional.
Suelo y paredes
El suelo sobre el cual se coloca el aparato debe tener una capacidad de carga suficiente. El peso del aparato se encuentra en el anexo "Especificaciones técnicas".

Proteja los suelos inflamables instalando una placa ignífuga que los aíslen de la radiación calor. Consulte el anexo "Distancia a materiales inflamables".

Retire los materiales inflamables como el linóleo, las alfombras, etc. de debajo de la placa ignífuga.

Mantenga siempre una distancia de seguridad entre el aparato y materiales inflamables tales como paredes de madera y muebles.

Tenga en cuenta que el tubo de conexión también irradia calor. Procure que haya siempre suficiente distancia o protección entre el tubo de conexión y los materiales inflamables.
La regla de tres para un tubo sencillo es dejar una distancia equivalente a tres veces el diámetro. En caso de que el tubo lleve un revestimiento protector, esta distancia puede reducirse a una vez el diámetro.

Las alfombras deben colocarse a una distancia mínima de 80 cm del fuego.

Proteja los suelos inflamables delante de la estufa instalando una placa protectora ignifuga para protegerlo contra la posible caída de cenizas. Dicha placa protectora debe cumplir con las regulaciones nacionales vigentes.

Encontrará las medidas de la placa protectora ignífuga en el anexo "Distancia de materiales 1. Cuello de conexión inflamables".
Descripción del producto

- Vidrio lateral
- Bloqueo
- Regulador de tiro
Cierre de la puerta
El aparato viene con el pestillo de cierre (4) instalado. La puerta se abre presionando el pestillo de cierre. Como el pestillo de cierre se calienta con el uso, se suministra un guante para proteger la mano.
Instalación
Preparación general
Nada más recibir el aparato, compruebe que no esté dañado (por ejemplo, durante el transporte) y que no tenga defectos. La parte inferior del aparato está atornillada sobre un palet.

Si detecta daños (producidos en el transporte) o defectos en el aparato, no lo utilice y póngase en contacto con su distribuidor.
Retire los componentes desmontables (placas refractarias, parrilla, placa superior, cajón cenicero) del aparato antes de proceder a la instalación.

Quitando estos componentes desmontables, le será más fácil manipular y mover el aparato sin dañarlo.

Fijese en la posición original de estos elementos antes de retirarlos, para poder volver a colocarlos en la posición correcta.

text_image
do. e 1 2 3 09-20021-011ato Abra la puerta; véase la siguiente imagen.

- Retire las placas refractarias; vea la siguiente imagen.
a. Retire primero el deflector de llama (09).

El deflector de llama está fijado a la parte superior con un clip de metal que evita que se produzcan daños durante el transporte.

b. Retire las placas refractarias de los laterales y 10 placa refractaria lateral derecha de la parte posterior (10), (11), (07) y (08). 11 placa refractaria lateral izquierda
c. Retire la rejilla para el carbón en la parte trasera (02) y (03), y en la parte delantera (04), (05) y (06).
d. Retire la parrilla y el cajón cenicero (01) y (12).

Las placas de vermiculita tienen un peso Al conectar el aparato a la chimenea, puede optar muy ligero y en el momento de la compra entre realizar la conexión en la parte superior o en la tienen un color ocre. Estas placas aislan parte posterior del aparato. cámara de combustión del aparato, favoreciendo así la combustión.

text_image
09-20021-013Componentes interiores desmontables
01 base de fuego
02 rejilla para el carbón en la parte posterior derecha
03 rejilla para el carbón en la parte posterior izquierda
04 rejilla para el carbón en la parte derecha
05 rejilla para el carbón en la parte izquierda
06 rejilla para el carbón
07 placa refractaria lateral derecha posterior
08 placa refractaria lateral izquierda posterior
09 placa refractaria de deflector de llama
Preparación de la conexión a la chimenea
Opcionalmente, se puede adquirir un escudo térmico. En el caso de que se utilice este escudo térmico, se puede reducir la distancia al material inflamable.
Véase el anexo "Distancia a materiales inflamables".
Para la conexión en la parte posterior se debe retirar la placa protectora. Esto se puede hacer con la ayuda de unas tenazas (1); véase la siguiente figura.

Montar el escudo térmico
Para montar el escudo térmico opcional, proceda de la siguiente manera:
-
Atornille 2 varillas roscadas M6 (1) con espaciador (2) en la pared trasera.
-
Coloque el escudo térmico (3) y atorníllelo con 2 tornillos con reborde M6 (4), véase la siguiente figura.


text_image
09-20021-023Conexión en la parte superior
El aparato se suministra de serie con el cuello de conexión montado para una conexión en la parte superior; véase la siguiente imagen.

text_image
09-20021-015 ① ②Conexión en la parte posterior
Para la conexión en la parte posterior se debe c la posición del cuello de conexión. El cuello de conexión está fijado con 2 tuercas M8 (llave 13). Proceda de la siguiente manera:
-
Retire el deflector de llama.
-
Desatornille las tuercas y retire el cuello de conexión.
Compruebe que la cinta de sellado no está dañada en la superficie de contacto. Sustituya la cinta de sellado si está dañada.
- Coloque el cuello de conexión girado 180° con respecto a la posición original, véase la siguiente figura.

text_image
09-20021-016-
Monte el cuello de conexión con 2 tuercas M8.
-
Vuelva a colocar el deflector de llama.
Preparación de la toma de aire exterior.
Si el aparato está situado en una habitación que cuenta con una ventilación insuficiente, puede conectar la toma de aire exterior en el aparato.
El tubo de suministro de aire tiene un diámetro de 100 mm. Si el tubo es recto, éste podrá tener un máximo de 12 metros de longitud. Si se utilizan accesorios como codos, deberá restar a la longitud total (12 metros) 1 metro por cada accesorio utilizado.
Total Suministro de aire exterior a trav de la pared
- Realice un orificio de conexión en la pared (consulte el anexo "Medidas" para ver la posición

exacta del orificio).
- Conecte herméticamente el conducto de suministro de aire de la pared.
Colocación e instalación
- Coloque el aparato en un lugar adecuado, sobre una superficie lisa y nivelada. El aparato está equipado con patas regulables que ya se encuentran montadas o que se suministran con mismo. Utilice estas patas regulables de manera que el aparato se pueda instalar perfectamente nivelado.

- Conecte herméticamente el aparato a la chimenea.
- Para la toma de aire exterior: conecte el suministro del aire exterior al juego de conexión que se ha instalado en el aparato.
- Vuelva a colocar los elementos desmontados en el aparato.

No encienda nunca el aparato sin las placas refractarias.
El aparato ya está listo para su uso.
Uso
Primer uso
Cuando utilice el aparato por primera vez, déjelo encendido a fuego lento durante algunas horas. De este modo la pintura anticalórica se endurecerá. Esto podría producir algo de humo y olores desagradables Ventile la habitación abriendo puertas y ventanas.
Combustible
Este aparato únicamente es apto para quemar madera natural serrada, cortada y suficientemente seca.
No utilice otros combustibles, ya que éstos podrían dañar seriamente el aparato.
No utilice los combustibles que aparecen a continuación, no sólo porque contaminan el medio ambiente, sino porque además ensucian el conducto de humos, pudiendo llegar a ocasionar incendios en el mismo:
Maderas tratadas como maderas de desecho, maderas pintadas, maderas impregnadas, maderas preservadas, multiplex y aglomerado.
Plástico, papel usado y residuos domésticos.
Leña
Utilice preferentemente maderas duras como roble, haya, abedul y madera de árboles frutales. Esta madera quema más lentamente y con menos llama. Las maderas de coníferas contienen más resina, queman más rápido y producen más chispas.
Utilice maderas secas con un porcentaje máximo de humedad del 20%. Para ello, las maderas deben dejarse secar al menos 2 años. La madera con un porcentaje de humedad del 20% produce 4,2 kWh por kg de madera. La madera con un porcentaje de humedad del 15% produce 4,4 kWh por kg de madera. La madera fresca cortada tiene un porcentaje de humedad del 60% y solo produce 1,6 kWh por kg de madera.
Tale y corte las maderas cuando todavía están verdes. La madera verde se corta más fácilmente, mientras que la madera cortada seca mejor y más rápido. Almacene la madera bajo techo, en un lugar donde circule libremente el viento.

No utilice maderas húmedas. Las maderas
húmedas no producen calor debido a que la energíaquede una capa de brasas vivas. Introduzca la se pierde al evaporarse la humedad. Esto produce siguiente carga de leña en el aparato; consulte el acumulaciones de hollín en la puerta del aparato y apartado "Alimentar con leña".
en la chimenea. El vapor de agua se condensa el aparato y se filtra al exterior a través de las juntas, pudiendo ocasionar manchas negras en e suelo. Además, el vapor de agua podría condensarse en la chimenea, formando creosota. La creosota es una sustancia muy inflamable y puede originar incendios en la chimenea.
Encendido
Compruebe que la chimenea tiene tiro suficiente encendiendo una bola de papel de periódico sobre el deflector de humos. Una chimenea fría tendrá un tiro insuficiente, lo que ocasiona la entrada de humo en la habitación. Encendiendo el aparato del modo que le indicamos a continuación, evitará este problema.
- Coloque dos leños de tamaño medio-grande cruzados entre sí.
- Coloque sobre los leños dos capas de leña más fina de forma entrecruzada.
- Coloque una pastilla de encendido bajo la capa inferior de leña y enciéndala siguiendo las instrucciones que vienen en el paquete de la misma.

-
Cierre la puerta del aparato y abra la entrada de aire principal y la entrada de aire secundaria del aparato; véase la siguiente imagen.
-
Deje que el fuego arda intensamente hasta que ergiaquede una capa de brasas vivas. Introduzca la se siguiente carga de leña en el aparato; consulte el y apartado "Alimentar con leña".

text_image
en el o la A B C 09-20021-018C:
o o o entrada de aire principal abierta (durante el encendido)
o o Entrada de aire secundaria abierta (aclarado del cristal)
o Entrada de aire para postcombustión abierta
B:
o o Entrada de aire secundaria abierta (aclarado del cristal)
o Entrada de aire para postcombustión abierta
A:
o Entrada de aire para postcombustión abierta (no cerrar completamente para conseguir una buena combustión)

Cantidad máxima de madera
Para poder mantener la potencia nominal de la caldera, hay que rellenarla cada 45 minutos. Si en cada recarga introduce menor cantidad de madera, podrá rellenar con más frecuencia. Cada caldera está diseñada para trabajar con una determinada cantidad máxima de madera. Si introduce una cantidad de madera superior, aumentará la emisión de calor. Si eso ocurre, la caldera puede sufrir una sobrecarga de trabajo y se puede estropear.
Cantidad permitida de combustible para madera con un porcentaje de humedad del 15%:
La Sense 4,9 kW tiene una carga máxima de 1 kg de madera cada 45 minutos.
La Sense 7 kW tiene una carga máxima de 1,5 kg de madera cada 45 minutos.
La Sense 9 kW tiene una carga máxima de 1,9 kg de madera cada 45 minutos.
Cargue madera en la cámara de combustión hasta un máximo de un tercio de su volumen, y no sobrepase nunca las aperturas de la entrada de aire secundaria.
En la Sense 300/400 hay una línea indicadora en la pared posterior. La carga se tiene que mantener por debajo de esa línea indicadora. Veáse la siguiente imagen.

Una vez que haya seguido las instrucciones para el encendido:
- Abra despacio la puerta del aparato.
- Reparta las brasas por la base de fuego de manera homogénea.
- Coloque varios leños sobre las brasas.
Apilado suelto

Cargue el aparato hasta un máximo equivalente a u tercio de su capacidad.
Regulación del aire de combustión
El aparato dispone de varios elementos para la regulación de aire; véase la siguiente imagen.
El aparato tiene una única toma de aire que regula tanto el aire principal como el secundario. Cuando la toma de aire se encuentra completamente extraída, las entradas de aire principal y secundario están abiertas. A medida que se va introduciendo la toma de aire, se va cerrando la entrada de aire principal y, a continuación, la entrada de aire secundario. Cuando la
Apilando los leños de manera suelta, la leña se que toma de aire se encuentra completamente cerrada, mucho más rápido, ya que el oxígeno puede llegar queda abierta una pequeña abertura de aire para la todas las partes de la madera. Utilice un apilamiento doscombustión bajo el deflector de llama. suelto si quiere que el fuego prenda rápidamente.
Apilamiento compacto

Apilando los leños de manera compacta, la leña se quema más lentamente, ya que el oxígeno no puede llegar a todas las áreas de la madera. Utilice un apilamiento compacto si desea mantener el fuego encendido durante mucho tiempo.
- Cierre la puerta del aparato.
- Cierre la entrada de aire principal y deje abierta entrada secundaria.

text_image
e 09-20021-019La entrada de aire principal regula el aire que pasa bajo la parrilla (1).
La entrada de aire secundaria regula el aire delante d cristal (air-wash) (2).

La pared trasera tiene orificios de aire permanentes debajo el deflector de llama que aseguran la postcombustión.
Consejos

No deje la puerta abierta mientras el fuego encendido.

Encienda un fuego vivo de vez en cuando.
Si tiene el aparato calentando a fuego lento durante mucho tiempo, podrían formarse depósitos de alquitrán y creosota dentro de chimenea. La carbonilla y la creosota son materiales muy inflamables. Si se producen demasiados sedimentos de estos materiales, pueden inflamarse si se alcanzan repentinamente altas temperaturas.
Encendiendo de vez en cuando fuegos intensos, se eliminan los posibles restos de carbonilla y creosota.
Además si el fuego es demasiado débil puede acumularse alquitrán en el vidrio y en la puerta del aparato.
Por ello, en caso de una temperatura exterior suave es preferable dejar que el aparato caliente a fuego fuerte durante unas horas que dejarlo calentar a fuego lento durante mucho tiempo.
▶ Regular la entrada de aire con el regulador de tiro.

La entrada de aire airea no solo el fuego, sino el cristal del aparato, evitando así la acumulación de suciedad.
Abra la toma de aire principal si la entrada de aire por la secundaria es insuficiente, o si quiere avivar el fuego.
Introducir regularmente pequeñas cantidades de leña es mejor que agregar muchos bloques al mismo tiempo.
Extinción del fuego
Deje de añadir combustible y que el fuego se vaya apagando por sí mismo. No intente sofocar el fuego reduciendo la entrada de aire: podrían liberarse gas tóxicos. Deje que el fuego se consuma por sí mism
Vigile el fuego hasta que éste esté bien apagado. L vez que el fuego se haya extinguido completamente, podrá cerrar todas las entradas de aire.
Eliminar la ceniza
Cuando se quema leña en el aparato, siempre queda una pequeña cantidad de cenizas. Este lecho de cenizas no solo es un buen aislante para la base de fuego del aparato, sino que además favorece la combustión. Así que puede dejar una capa fina de cenizas en el suelo del aparato.
No obstaculice la entrada de aire situada en el suelo de la chimenea ni deje que se acumule ceniza en la parte posterior de las placas de hierro. Para ello, elimine de forma periódica el exceso de cenizas.

text_image
a . o el e 1 2 09-20021-020- Abra la puerta del aparato.
- Utilice el recogedor para sacudir el exceso de ceniza y para que esta caiga al cajón cenicero.
- Retire y vacíe el cajón cenicero con ayuda del guante suministrado.
- Vuelva a colocar el cajón cenicero en su sitio y cierre la puerta del aparato.
- Abra la puerta del aparato.
- Utilice el recogedor para sacudir el exceso de ceniza y para que esta caiga al cajón cenicero.
- Retire y vacíe el cajón cenicero con ayuda del guante suministrado.
- Vuelva a colocar el cajón cenicero en su sitio y cierre la puerta del aparato.
ses Nieblas y brumas mo.
Las nieblas y las brumas en el exterior pueden dificultar la salida de los gases inflamables por la

chimenea. Éstas pueden hacer que el humo baje el conducto y ocasione olores. En condiciones de nieblas o brumas, le recomendamos que no utilice aparato a menos que sea realmente necesario.
Posibles problemas
Consulte el anexo "Diagnóstico de problemas" para solucionar posibles problemas durante la utilización del aparato.
Mantenimiento
Siga las instrucciones de mantenimiento que se describen en esta sección para mantener su aparato en buen estado.
Chimenea
En muchos países, la ley obliga a revisar y llevar u mantenimiento regular de las chimeneas.
Al principio de la temporada de calefacción: haga limpiar la chimenea por un deshollinador cualificado.
Durante la temporada de calefacción y si la chimenea no se ha utilizado durante un largo período de tiempo: haga que un técnico cualificado controle los niveles de hollín.
Al final de la temporada de calefacción: cierre la chimenea mediante una bola de papel de periódig
Limpieza y mantenimiento periódico

No limpie el aparato cuando éste todavía está caliente.
Limpie el exterior del aparato con un paño seco no suelte pelusas.
Al final de la temporada de fríos, limpie muy bien el interior del aparato:
Para ello, retire primero las placas refractarias. el capítulo "Instalación" encontrará instrucciones sobre cómo extraer y colocar las placas refractarias.
También puede limpiar los conductos de aire.
por Retire y limpie el deflector de humos de la parte superior del aparato. el
Comprobar las placas refractarias
Las placas refractarias son consumibles sometidos a un gran desgaste. Las placas refractarias de vermiculita son frágiles. Tenga cuidado de no golpear las placas refractarias con los leños. Revise regularmente las placas refractarias y sustitúyalas si fuera necesario.
En el capítulo "Instalación" encontrará instrucciones sobre cómo extraer y colocar las placas refractarias.

Las placas refractarias aislantes de vermiculita o chamota pueden mostrar pequeñas grietas sin que esto tenga un efecto adverso en su funcionamiento.

Las placas de hierro interiores durarán mucho tiempo si limpia las cenizas acumuladas en su parte posterior con regularidad. Si no retira la acumulación de ceniza de la placa ésta no podrá proyectar el calor correctamente y puede llegar a deformarse o rajarse.

No encienda nunca el aparato sin las placas refractarias.
Limpiar el cristal
Si el cristal se limpia correctamente, la suciedad tarda más en acumularse. Proceda de la siguiente manera:
-
Quite el polvo y la suciedad con un paño seco.
-
Limpie el cristal con un limpiador especial para á cristales de estufa:
a. Extienda el limpiador con una esponja de cocina, frote la superficie del cristal y déjelo actuar unos minutos.
b. Retire la suciedad con un paño húmedo o papel de cocina.
-
Vuelva a limpiar el cristal con su producto en limpiacristales habitual.
-
Seque el cristal con un paño seco o con papel de cocina.
No utilice productos abrasivos o corrosivos para limpiar el cristal.

Utilice siempre guantes para proteger sus manos.

En el caso de que el cristal de su aparato se haya roto o agrietado, deberá reemplazar el cristal antes de volver a utilizar el aparato.

No deje restos del limpiador de cristales para estufas entre el cristal y la puerta de hierro.
Mantenimiento de estufas esmaltadas
Nunca limpie el aparato si todavía está caliente. Utilice un jabón verde suave y agua tibia para limpiar las superficies esmaltadas de la estufa. Utilice la mínima cantidad de agua posible y seque muy bien la superficie para prevenir la corrosión. Nunca utilice lana de acero u otros productos abrasivos. No ponge nunca teteras directamente sobre el esmalte de la estufa; utilice un salvamanteles para evitar daños.
Engrasado
Aunque los componentes de hierro ya son de alguna manera autoengrasantes, debe lubricar las partes móviles con cierta regularidad.
Lubrique las partes móviles (como sistemas de guiado, pasadores de bisagra, pestillos y tomas de aire) con grasa especial para chimeneas, que encontrará en establecimientos especializados
Reparar daños en la pintura
Puede reparar pequeños daños en la pintura con u aerosol de pintura anticalórica que podrá adquirir a través de su proveedor habitual.
Reparar la superficie esmaltada
El esmaltado es un proceso artesanal que puede 1. hacer que aparezcan pequeñas diferencias de color y daños en el aparato. Los aparatos son sometidos en la fábrica a un control visual, es decir, el controlador examina desde una distancia de 1 metro, durante 10 segundos, la superficie. Los eventuales daños que no se advierten serán considerados OK. Junto con el aparato se suministra una pintura especial anticalórica con la cual se pueden reparar pequeños daños (del transporte). Aplique la pintura anticalórica en capas finas y deje secar por completo antes de comenzar a usar el aparato.
Algunos colores de esmalte son sensibles a los cambios de temperatura. Por esta razón es posible que el color cambie durante el uso del aparato. Cuando el aparato se haya enfriado, el color original del esmalte vuelve a ser el habitual.
Si las superficies esmaltadas alcanzan temperaturas muy elevadas, se pueden producir fisuras. Este es un fenómeno normal y no influye de ninguna manera en el funcionamiento de la estufa.

Asegúrese de que la estufa no se sobrecarga. En caso de sobrecarga, la temperatura de la superficie aumentará demasiado y se pueden producir daños permanentes en el esmalte.
gRevisar sellado
▶ Compruebe que la junta de sellado de la puerta cierra correctamente. Este material se deteriora con el tiempo y ha de cambiarse regularmente. ▶ na Compruebe que el aparato no tenga fugas de aire. Selle posibles rendijas con masilla para estufas. ⚠️ Deje que la masilla se endurezca completamente antes de encender el aparato, si no la humedad de la masilla se evaporará y la fuga volverá a abrirse.
Ajustar el cierre de la puerta
Compruebe que la puerta se cierra correctamente. En el caso de que resulte necesario ajustar el cierre de la puerta de forma más ajustada o más suelta, esto se puede hacer cambiando la distancia del bulón de cierre hasta la puerta. Proceda de la siguiente manera:
- Abra la puerta. Ahora el bulón de cierre (2) es y visible y accesible; véase la siguiente figura.
- Afloje los dos tornillos (1) con los que se or encuentra fijado el bulón de cierre.
- Al retirar una placa separadora (3) que se encuentra detrás del bulón de cierre (2), la puerta cerrará de forma más ajustada. Si la puerta cierra de forma excesivamente ajustada, coloque una placa separadora adicional detrás del bulón de cierre.
- Vuelva a apretar los dos tornillos del bulón de cierre y cierre la puerta.


text_image
09-20021-024 ① ② ③
text_image
09-20021-025Cambiar el cristal

En el caso de que el cristal de su aparato haya roto o agrietado, deberá reemplazar el cristal antes de volver a utilizar el aparato.
Para cambiar el cristal lateral, primero ha de retirar todos los paneles interiores y el conductor de aire. conductor de aire se encuentra fijado a la parte cer superior del aparato con una fuerca M8. Proceda de siguiente manera:
-
Afloje las dos pestañas de sujeción del cristal co las piezas (1) y (2) y retire el cristal (3); véase siguiente figura.
-
Compruebe las juntas del cristal y, en caso necesario, aplique una nueva cuerda de sellado.
-
Coloque el nuevo cristal en la ranura y atornille pestañas de sujeción.

text_image
El ntral e la on la las 08 11 05 03 06 12 09 07 10 04 02 01 09-20021-013Sense 100/103/200/203
Pos. N.º de artículo Descripción Cantidad
01 03.66544.002 base de fuego 1
02 03.77429.002 rejilla para el 1
carbón en la parte
posterior derecha

03 03.77428.000 rejilla para el 1 carbón en la parte posterior izquierda
04 03.77425.002 rejilla para el 1 carbón en la parte derecha
05 03.77424.002 rejilla para el 1 carbón en la parte izquierda
06 03.77423.002 rejilla para el 1 carbón
07 03.77523.000 placa refractaria lateral posterior derecha
08 03.77522.000 placa refractaria lateral posterior izquierda
09 03.76181.000 placa refractaria de deflector de llama
10 03.77525.000 placa refractaria lateral derecha 1
11 03.77524.002 placa refractaria lateral izquierda
12 03.05216.000 cajón cenicero 1
08 03.77547.000 placa refractaria lateral izquierda posterior
09 03.76188.000 placa refractaria de deflector de llama
10 03.77550.000 placa refractaria lateral derecha
11 03.77549.002 placa refractaria 1 lateral izquierda
12 03.05216.000 cajón cenicero 1
Sense 300/303/400/403
Pos. N.º de artículo Descripción Cantidad
01 03.66549.002 base de fuego 1 02 03.77444.002 rejilla para el 1 carbón en la parte posterior derecha
03 03.77443.000 rejilla para el 1 carbón en la parte posterior izquierda
04 03.77442.002 rejilla para el 1 carbón en la parte derecha
05 03.77441.002 rejilla para el 1 carbón en la parte izquierda
06 03.77440.002 rejilla para el 1 carbón
07 03.77548.000 placa refractaria lateral derecha posterior

Anexo 1: Especificaciones técnicas
| Modelo | Sense100/103/200/203 | Sense100/103/200/203 | Sense300/303/400/403 |
| Potencia nominal 4,9 kW 7,0 | kW 9,0 kW | ||
| Conexión de la chimenea (diámetro) | 150 mm 150 mm 150 mm | ||
| Peso 105 kg - 125 kg 105 kg | - 125 kg 150 kg - 180 kg | ||
| Combustible recomendado Leña | Leña | Leña | |
| Características combustible, longitud máx. | 33 cm | 33 cm | 40 cm |
| Caudal másico de gases residuales | 4,5 g/s | 5,1 g/s | 7,3 g/s |
| Temperatura de los gases residuales en la sección de medición | 247 °C | 274 °C | 274 °C |
| Temperatura medida en la salida del aparato | 317 °C | 351 °C | 352 °C |
| Tiro mínimo | 12 Pa | 12 Pa | 12 Pa |
| Emisiones de CO (13% 0,18) | % 0,07 | % 0,08 | % |
| Emisiones de NOx (13% 0) | 81 mg/Nm3 | 89 mg/Nm3 | 75 mg/Nm3 |
| Emisiones de CnHm (13% 0) | 173 mg/Nm3 | 76 mg/Nm3 | 69 mg/Nm3 |
| Emisión de partículas | 27 mg/Nm3 | 25 mg/Nm3 | 19 mg/Nm3 |
| Emisiones de partículas según la norma NS3058-NS3059 | 2,87 g/kg | 2,87 g/kg | 4,7 gr/kg |
| Rendimiento | 79,5 % | 80 % | 80 % |
Anexo 2: Medidas
Sense 100

text_image
470 900 285
text_image
3 6 0 Ø1 5 0 7 9 0 Ø1 0 0 3 0 0
text_image
Ø1 5 0 3 7 5 1 0 009-20021-001
Sense 103

text_image
470 900 285
text_image
360 Ø150 Ø100 790 300
text_image
Ø1 50 375 10009-20021-002
Sense 200

text_image
470 980 365
text_image
360 Ø150 Ø100 870 380
text_image
Ø1 5 0 3 7 5 1 0 009-20021-003
Sense 203

text_image
470 980 365
text_image
360 Ø150 Ø100 870 380
text_image
Ø1 5 0 37 5 1 0 009-20021-004
Sense 300

text_image
5 5 5 10 10 29 0
text_image
4 2 5 Ø1 5 0 Ø1 0 0 Ø1 0 0 3 0 8 8 0
text_image
4 4 0 Ø1 5 Ø 5 109-20021-005
Sense 303

09-20021-006
Sense 400

text_image
5 5 5 1 1 6 0 4 3 0
text_image
4 2 5 10 2 5 Ø1 5 0 Ø1 0 0 Ø1 0 0 4 5 0
text_image
4 4 0 Ø1 5 Ø1 509-20021-007
Sense 403

text_image
5 5 5 1 1 6 0 4 3 0
text_image
4 2 5 10 2 5 Ø1 5 0 Ø1 0 0 Ø1 0 0 4 5 0
text_image
4 4 0 Ø1 5 0 1 1 509-20021-008
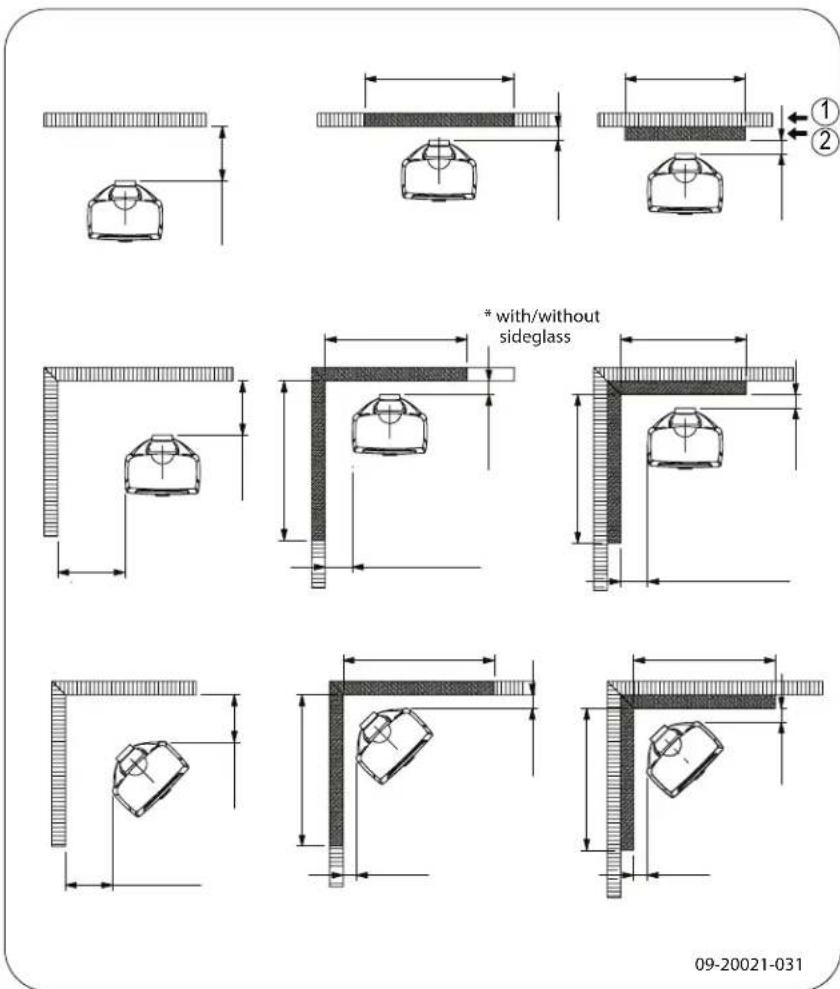
Anexo 3: Distancia a materiales inflamables
Sense 100/103/200/203 4,9 kW - 7 kW - Distancias mínimas en milín para los modelos sin escudo térmico

text_image
1000 750 1000 * with/without sideglass 840 650 700 300 200 /150* 530 300 200 /150* 900 750 900 400 100 100 300 300 300 750 500 100 100 09-20021-021| 1 Materiales inflamables |
| 2 Material ignífugo, grosor 100 mm |

¡Atención! Para garantizar la entrada del aire de combustión, cuando no se dispone de conexión de aire exterior, la distancia del cuello de conexión para el aire exterior hasta la pared debe ser de al menos 20 mm. En estos casos, el cuello de conexión se puede desmontar.

Sense 100/103/200/203 4,9 kW - 7 kW - Distancias mínimas en milín para los modelos con escudo térmico

text_image
1000 20 750 20 1 2 * with/without sideglass 630 20 650 475 20 300 200 /150* 900 400 100 750 500 100 300 300 300 100 100 100 100 100 100 100 09-20021-022| 1 Materiales inflamables |
| 2 Material ignífugo, grosor 100 mm |

¡Atención! Para garantizar la entrada del aire de combustión, cuando no se dispone de conexión de aire exterior, la distancia del cuello de conexión para el aire exterior hasta la pared debe ser de al menos 20 mm. En estos casos, el cuello de conexión se puede desmontar.
Sense 300/303/400/403 - 9 kW - Distancias mínimas en milímetros pa modelos sin escudo térmico

text_image
* with/without sideglass 09-20021-031Sense 300/303/400/403 - 9 kW - Distancias mínimas en milímetros pa modelos con escudo térmico

text_image
* with/without sideglass 09-20021-032Sense - Dimensiones de la placa de apoyo ignífuga

text_image
B B A 09-20021-030Dimensiones mínimas de la placa de apoyo ignífuga
| A (mm) | B (mm) | |
| Din 18891 500 300 | ||
| Alemania 500 300 | ||
| Finlandia 400 100 | ||
| Noruega 300 5 |
Anexo 4: Diagnóstico de problemas
| Problema | ||||||
| ● | Leña no termina de arder | |||||
| ● | No da suficiente calor | |||||
| ● | Retorno de humo cuando se agrega combustible | |||||
| ● | El fuego arde demasiado fuerte, no se puede regular bien | |||||
| ● | El vidrio se opaca | |||||
| posible causa posible solución | ||||||
| ● | ● | ● | ● | Tiro insuficiente | Una chimenea fría produce casi siempre un tiro insuficiente. Siga las instrucciones sobre el encendido en el capítulo "Uso"; abra una ventana. | |
| ● | ● | ● | ● | Leña demasiado húmeda Utilice siempre leña con una humedad máxima del 20%. | ||
| ● | ● | ● | ● | Leños demasiado grandes | Utilice trozos de leña pequeños. Utilice trozos de leña cortados con un contorno máximo de 30 cm. | |
| ● | ● | ● | ● | ● | La leña no está bien apilada | Coloque la leña de tal manera que el aire pueda pasar entre los bloques (apilamiento abierto, véase "Alimentar con leña"). |
| ● | ● | ● | ● | Funcionamiento insuficiente de la chimenea | Asegúrese de que la chimenea cumpla todos los requisitos: 4 metros de alto como mínimo, diámetro adecuado, bien aislada, interior liso, sin demasiados recovecos, sin obstrucciones (nidos de pájaro, depósito excesivo de hollín), herméticamente cerrada (sin fisuras). | |
| ● | ● | ● | ● | La salida de la chimenea no es correcta | La salida debe estar situada por encima de la superficie del tejado y no tener cerca elementos que la obstruyan. | |
| ● | ● | ● | ● | ● | Tomas de aire en posición incorrecta | Abra completamente lasentradas de aire. |
| ● | ● | ● | ● | La conexión entre el aparato y la chimenea no es correcta | La conexión debe estar herméticamente cerrada. | |
| ● | ● | ● | ● | Presión mínima en el espacio donde encuentra el aparato | seApague los sistemas de extracción de aire. | |
| ● | ● | ● | ● | Suministro insuficiente de aire fresco | Cree una corriente de aire fresco, por ejemplo utilizando una toma de aire exterior. | |
| ● | ● | ● | ● | ¿Condiciones climáticas adversas? Inversión térmica (cambio de dirección en la corriente de aire dentro de la chimenea debido a las elevadas temperaturas exteriores), vientos de fuerza extrema | En los casos de inversión térmica, desaconsejamos el uso del aparato. Sifuera necesario, instale una caperuza en la chimenea. | |
| ● | Corrientes en la habitación | Evite las corrientes de aire en la habitación; no instale el aparato en las cercanías de puertas o de fuentes de aire caliente. | ||||
| ● | Las llamas tocan el cristal | Evite poner losleños demasiado cerca del cristal. Cierre un poco más el acceso de aire principal. | ||||
| ● | El aparato tiene fugas de aire Compruebe la junta de sellado de la puerta y las juntas del aparato. | |||||
Índice
A
Abrir
cajón cenicero 20 puerta 13
Advertencia
condiciones de seguro 10 limpiador de cristales de estufa 22
Agregar combustible
retorno de humo.39....
Alfombras .12
Alimentación máxima del aparato..19.....
Almacenar madera 16.
Alquitrán .20
Apilado de leños 19
Aviso
cristal roto o agrietado 10, 22-23 incendio de la chimenea.... 16
incendio en la chimenea 10, 20
materiales inflamables.... 10
normativas 10
placas refractarias.... 16
superficie caliente.... 10
ventilación 10-11......
B
Bisagra
ajustar 22
Bruma, no encender.... 20
Bulón de cierre
placa separadora.... 22
C
Cajón cenicero
abrir 20
Calor, insuficiente.... 21, 39
Cambiar
cristal 23
Capacidad de carga del suelo.... 12
Caperuza 11
Caperuza sobre chimenea 11
Chimenea
altura 11
condiciones 11
conexión a 16
diámetro de conexión.... 25
mantenimiento 21
Colocación
medidas 26
Combustible
adecuado 16
alimentación 19
cantidad necesaria.... 21
leña 16
rellenar 20
Combustible adecuado
Combustible inadecuad
Componentes desmontables
Componentes, desmont
Condiciones climatológicas, no encender.... 20
Conexión a la chimenea
en la parte posterior 15
en la parte superior.... 15
parte posterior.... 15
parte superior.... 15
Conexión al suministro de aire exterior..... 15
Conexiones
medidas 26
Creosota
Cristal
agrietado 23
cambiar 23
dañado 23
limpiar 21
opacamiento 39
Cristales
limpiar .21....
Cuello de conexión para conexión de chimenea 15
D
Daños
Daños
Eliminado de cenizas 20
Eliminar
cenizas 20
Eliminar cenizas.
Emisión de partículas.
Encendido 17-18
calor insuficiente.... 21, 39
el aparato no se puede regular.bien..... 39
el fuego arde demasiado fuerte 39
rellenar combustible.... 18, 20
Encendido del fuego.17....
Engrasado 22
Entrada de aire principal..17......
Entrada de aire secundaria 17
Entradas de aire 17......
Escudo térmico montar .14....
Esmalte mantenimiento .22......
Extinguir el fuego.20
F
Fuego encendido .17..... extinción ....20
Fuga de aire.... 22
G
Gas residual temperatura 5, 7, 9, 25
Gases caudal másico 25
Grasa para engrasado.... 22
H
Humo en el primer uso.... 16
|
inadecuado 16
J
Junta de sellado de la puerta 22
L
Laca 16
Limpiador para estufas 21
Limpiar cristal 21
Limpieza aparato 21
Limpieza de la chimenea.... 21
M
Madera de coníferas.16....
Madera húmeda.... 16
Mantenimiento chimenea 21
engrasado 22
esmalte 22
limpiar aparato.... 21
limpiar cristal 21
placas refractarias 21
sellado 22
Mantenimiento del acabado.... 22
Materiales inflamables distancia a.... 34
Medidas 26
Montar escudo térmico 14
N
Niebla, no encender 20
P
Paredes seguridad contra incendios.... 12
Peso 25
Placas de hierro fundido.... 13
Placas de vermiculita 13
Placas refractarias aviso 16
mantenimiento .21......
quitar 13
retirar 13
vermiculita 14
Potencia nominal 21,25
Prevenir incendio en la chimenea 20
Puerta abrir 13
ajustar 22
bulón de cierre 22
cierre 22
junta de sellado 22

Q
Quitar
placas refractarias 13
R
Regulación aire 19
Regulación aire de combustión..19.
Regular la entrada de aire. 20
Rejilla de ventilación..1.1
Rellenar combustible 20
Rendijas en el aparato.22.
Rendimiento 5,7,9,25.
Retorno de huma..10,.39....
s
Secar madera..16.
Seguridad contra incendios
distancia a materiales inflamables.... 34
muebles 12
paredes 12
suelo 12
Solución de problemas.... 21, 39
Suelos
capacidad de carga.... 12
seguridad contra incendios.... 12
Suministro aire exterior.... 15
Suministro de aire exterior 11
T
Temperatura 25
Tiro 25
Toma de aire exterior
conexión a.... 16
V
Ventilación ..... 11
conexión suministro aire exterior.... 15
regla de tres.... 11
Ventilación del fuego.20
Vermiculita
refractarias 14
Vidrios
opacamiento 39

Contenuto
Introduzione 3
superficie a temperatura elevata 10
ventilazione 10
vetro rotto o crepato 10, 22-23
Avviso
ManualFácil