Sense 303 - Verwarming DOVRE - Gratis gebruiksaanwijzing en handleiding
Vind de handleiding van het apparaat gratis Sense 303 DOVRE in PDF-formaat.
Veelgestelde vragen - Sense 303 DOVRE
Gebruikersvragen over Sense 303 DOVRE
0 vraag over dit apparaat. Beantwoord die u kent of stel uw eigen vraag.
Stel een nieuwe vraag over dit apparaat
Download de handleiding voor uw Verwarming in PDF-formaat gratis! Vind uw handleiding Sense 303 - DOVRE en neem uw elektronisch apparaat weer in handen. Op deze pagina staan alle documenten die nodig zijn voor het gebruik van uw apparaat. Sense 303 van het merk DOVRE.
GEBRUIKSAANWIJZING Sense 303 DOVRE
Prestatieverklaring 4
Prestatieverklaring 6
Prestatieverklaring 8
Veiligheid 10
Installatieconditions 10
Algemeen 10
Schoorsteen 10
Ventilatie van de ruimte 11
Vloer en wanden 11
Productbeschrijving 12
Installatie 13
Algemene voorbereiding.13
Schoorsteenaansluiting voorbereiden
Buitenluchtaansluiting voorbereiden
Plaatsen en aansluiten
Gebruik 16
Eerste gebruik
Brandstof 16
Aanmaken 16
Maximalehoeveelheidhout
Stoken methout
Regeling verbrandingslustucht
Doven van het vuur
Ontassen 19
Nevel en mist
Eventuele problemen
Onderhoud 20
Schoorsteen 20
Schoonmaken en ander regelmatig onderhoud 20
Wisselstukken Sense 22
Bijlage 1: Technische gegevens 24
Bijlage 2: Afmetingen 25
Bijlage 3: Afstand tot brandbaar materiaal 33
Bijlage 4: Diagnoseschema 38
Index 39
Inleiding
Geachte gebruiker,
Met de aankoop van dit verwarmingstoestel van DOVRE heeft u gekozen voor een kwaliteitproduct. Dit product maakt deel UIT van een neue generatie energiezuinige en milieuvriendelijk verwarmingstoestellen. Deze toestellen make npimaal gebruik van zowel convectiewarmte als stralingswarmte.
Uw DOVRE toestel is geproduced met de modernste productiemiddelen. Mocht er onverhoopt toch iota's mankeren aan uw toestel, dan kunt u.altijd een beroep doen op de DOVRE service.
- Het toestel mag nicht gewijzigd worden; gebruik steeds originele onderden.
- Het toestel is bedoeld voorplaatsing in een woonruimte. Het要去 hermetisch worden aangesloten op een goed werkende schoorsteen.
Wij adviseren u het toestel te lien installereren dooreen bevoegt installmenter.
DOVRE kan nicht aansprakelijk worden gesteld voor problemen of schade door een onjuiste instalatie.
Bij installmentie en gebruik要去en de hierna beschreven veiligheidsvoorschriften in acht worden genomen.
In deze handleiding leest u hoe u het DOVRE verwarmingstoestel op een veilige manier installeert, gebrukt en onderhoudt. Als u aanvullende informatatie of technische gegevens wilt of een installmentie-probleem heeft, neemt u dan eerst contact op met uw leverancier.
© 2014 DOVRE NV
Prestatieverklaring
Volgens de bouwproductenverordening 305/2011
Nr. 033-CPR-2013
- Unieke identificatiecode van het producttype:
Sense 100 - 200 / 4,9 kW
- Type-, partij- of serialummer, dan wel een ander identificatiemiddel voor het bouwproduct, zoa voorgeschreven in articlel 11, lid 4:
Uniek serienummer.
- Beoogde gebruiken van het bouwproduct, overeenkomstig de toepasselijk geharmoniseerde technische specificatie, zoals door de fabrikant bepaald:
Kachel voor vaste brandstof zichonder productie van warm water volgens EN 13240.
- Naam, geregistreerde handelsnaam of geregistreerd handelsmerk en contactadres van de fabrikar zoals voorgeschreiben in article 11, lid 5:
Dovre N.V. Nijverheidsstraat 18 2381 Weelde Belgium.
-
Indien van toepassing, naam en contactadres van de gemachtigde wiens mandaat de in article lid 2, vermelde taken bestrijkt:
-
Het systemd of de systemen voor de beoordeling en verificatie van de prestatiebestendigheid bouwproduct, vermeld in bijlage V:
Systeem 3
- Indien de prestatieverklaring betrekking heeft op een bouwproduct dat onder een geharmoniseer norm valt:
De aangestelde instantie KVBG, geregisteerd onder het nummer 2013, heeft onder systeme 3 een type-keuruitgevoerd en heeft het testrapport nr H20130113 verstrekt.
- Indien de prestatieverklaring betrekking heeft op een bouwproduct waarvoor een Europese technische beoordeiing is afgegeben:
9. Aangegeven prestatie:
| De geharmoniseerde norm EN 13240:2001/A2 | ;2004/AC :2007 |
| Essentièle karakteristieken Prestaties Hout | |
| Brandveiligheid | |
| Vuurbestendigheid A1 | |
| Afstand tot brandhaar materiaal | Minimale afstand in mm Achterkant: 300 Zijkant: 500 |
| Risico van uitvallende gloeende deeltjes Conform | |
| Emissie van verbrandingsproducten CO: 0,18% (13%O 2) | |
| Oppervaktetemperatuur Conform | |
| Elektrische verilgheid | - |
| Gemakkelijk te reinigen | Conform |
| Maximale werkingsdruk | - |
| Rookgastemperatuur bij nominaal vermogen | 247 °C |
| Mechanischeesterstand (gewicht dragen van schoo-steen) | Niet bepaald |
| Nominaal vermogen | 4,9 kW |
| Rendement | 79,5 % |
- De prestaties van het in de punten 1 en 2 omschreiben producteren conform de in punt 9 gegeven prestaties.
Deze prestatieverklaring worden verstrekt onder de exclusive verantwoordelijkheid van de in punt 4 vermelde fabrikant:

01/10/2013 Weelde
Tom Gehem
CEO
In het kader van een continue productverbetering, können specificaties van het geleverde toestel afwijken van de beschrijving in deze brochure, zonder voorafgaande kennisgeving.
DOVRE N.V.
Nijverheidsstraat 18 Tel: +32 (0) 14659191
B-2381 Weelde Fax: +32 (0) 14659009
België E-mail : info@dovre.be

Prestatieverklaring
Volgens de bouwproductenverordening 305/2011
Nr. 032-CPR-2013
- Unieke identificatiecode van het producttype:
Sense 100 - 200 / 7 kW
- Type-, partij- of serialummer, dan wel een ander identificatiemiddel voor het bouwproduct, zoa voorgeschreven in articlel 11, lid 4:
Uniek serienummer.
- Beoogde gebruiken van het bouwproduct, overeenkomstig de toepasselijk geharmoniseerde technische specificatie, zoals door de fabrikant bepaald:
Kachel voor vaste brandstof zonder productie van warm water volgens EN 13240.
- Naam, geregistreerde handelsnaam of geregistreerd handelsmerk en contactadres van de fabrikar zoals voorgeschreiben in article 11, lid 5:
Dovre N.V. Nijverheidsstraat 18 2381 Weelde Belgium.
-
Indien van toepassing, naam en contactadres van de gemachtigde wiens mandaat de in article lid 2, vermelde taken bestrijkt:
-
Het systeme of de systemen voor de beoordeling en verificatie van de prestatiebestendigheid bouwproduct, vermeld in bijlage V:
Systeem 3
- Indien de prestatieverklaring betrekking heeft op een bouwproduct dat onder een geharmoniseer norm valt:
De aangestelde instantie KVBG, geregisteerd onder het nummer 2013, heeft onder systeme 3 een type-keuruitgevoerd en heeft het testrapport nr H20130112 verstrekt.
- Indien de prestatieverklaring betrekking heeft op een bouwproduct waarvoor een Europese technische beoordeiing is afgegeben:
9. Aangegeven prestatie:
| De geharmoniseerde norm EN 13240:2001/A2 | ;2004/AC :2007 |
| Essentiéle karakteristieken Prestaties Hout | |
| Brandveiligheid | |
| Vuurbestendigheid A1 | |
| Afstand tot brandhaar materiaal | Minimale afstand in mmAchterkant: 300Zijkant: 500 |
| Risico van uittvallende gloeende deeltjes Conform | |
| Emissie van verbrandingsproducten CO: 0,07% (13%O 2) | |
| Oppervaktetemperatuur Conform | |
| Elektrische verilgheid | - |
| Gemakkelijk te reinigen | Conform |
| Maximale werkingsdruk | - |
| Rookgastemperatuur bij nominaal vermogen | 274 °C |
| Mechanischeesterstand (gewicht dragen van schoosten) | Niet bepaald |
| Nominaal vermogen | 7 kW |
| Rendement | 80,0 % |
- De prestaties van het in de punten 1 en 2 omschreiben producteren conform de in punt 9 gegeven prestaties.
Deze prestatieverklaring worden verstrekt onder de exclusive verantwoordelijkheid van de in punt 4 vermelde fabrikant:

01/10/2013 Weelde
Tom Gehem
CEO
In het kader van een continue productverbetering, können specificaties van het geleverde toestel afwijken van de beschrijving in deze brochure, zonder voorafgaande kennisgeving.
DOVRE N.V.
Nijverheidsstraat 18 Tel: +32 (0) 14659191
B-2381 Weelde Fax: +32 (0) 14659009
België E-mail : info@dovre.be

Prestatieverklaring
Volgens de bouwproductenverordening 305/2011
Nr. 041-CPR-2014
- Unieke identificatiecode van het producttype:
Sense 300 - 400 / 9 kW
- Type-, partij- of serialummer, dan wel een ander identificatiemiddel voor het bouwproduct, zoa voorgeschreven in articlel 11, lid 4:
Uniek serienummer.
- Beoogde gebruiken van het bouwproduct, overeenkomstig de toepasselijk geharmoniseerde technische specificatie, zoals door de fabrikant bepaald:
Kachel voor vaste brandstof zichonder productie van warm water volgens EN 13240.
- Naam, geregistreerde handelsnaam of geregistreerd handelsmerk en contactadres van de fabrikar zoals voorgeschreiben in article 11, lid 5:
Dovre N.V. Nijverheidsstraat 18 2381 Weelde Belgium.
-
Indien van toepassing, naam en contactadres van de gemachtigde wiens mandaat de in article lid 2, vermelde taken bestrijkt:
-
Het systeme of de systemen voor de beoordeling en verificatie van de prestatiebestendigheid bouwproduct, vermeld in bijlage V:
Systeem 3
- Indien de prestatieverklaring betrekking heeft op een bouwproduct dat onder een geharmoniseer norm valt:
De aangestelde instantie KVBG, geregisteerd onder het nummer 2013, heeft onder systeme 3 een type-keuruitgevoerd en heeft het testrapport nr H20140117 verstrekt.
- Indien de prestatieverklaring betrekking heeft op een bouwproduct waarvoor een Europese technische beoordeiing is afgegeben:
9. Aangegeven prestatie:
| De geharmoniseerde norm EN 13240:2001/A2 | ;2004/AC :2007 |
| Essentiéle karakteristieken Prestaties Hout | |
| Brandveiligheid | |
| Vuurbestendigheid A1 | |
| Afstand tot brandhaar materiaal | Minimale afstand in mmAchterkant: 400Zijkant: 500 |
| Risico van uittvallende gloeende deeltjes Conform | |
| Emissie van verbrandingsproducten CO: 0,08% (13%O 2) | |
| Oppervaktetemperatuur Conform | |
| Elektrische verilgheid | - |
| Gemakkelijk te reinigen | Conform |
| Maximale werkingsdruk | - |
| Rookgastemperatuur bij nominaal vermogen | 216 °C |
| Mechanischeesterstand (gewicht dragen van schoosten) | Niet bepaald |
| Nominaal vermogen | 9 kW |
| Rendement | 80 % |
- De prestaties van het in de punten 1 en 2 omschreiben producteren conform de in punt S gegeven prestaties.
Deze prestatieverklaring worden verstrekt onder de exclusive verantwoordelijkheid van de in punt 4 vermelde fabrikant:

01/10/2013 Weelde
Tom Gehem
CEO
In het kader van een continue productverbetering, können specificaties van het geleverde toestel afwijken van de beschrijving in deze brochure, zonder voorafgaande kennisgeving.
DOVRE N.V.
Nijverheidsstraat 18 Tel: +32 (0) 14659191
B-2381 Weelde Fax: +32 (0) 14659009
België E-mail : info@dovre.be

Veiligheid
Let op! Alle verilgheidsvoorschriften要去en strikt worden nageleefd.
Lees aandachtig de instructies voor installmentie, gebruik en onderhoud die met het toestel zich meegeleverd, voordat u het toestel in gebruik neemt.
Het toestel moet worden geinstalleer overdereenkomstig de wetgeving en voorschriften van uw land.
Alle lokale bepalingen en de bepalingen die betrekking hebben op nationale en Europese normen要去en worden nageleefd bij het ins leren van het toestel.
Laat het toestel bij voorkeur installereren door een bevoegd installmenteur. Deze is op de hoogte van de geldende bepalingen en voorschriften.
Het toestel is ontworpen voor verwarmingsdoeleinden. Alle oppervlaktes, inclusief het glas en de aansluitbuis hunnen zeer heet worden (meer dan 100^ ! Gebruik voor de bediening een 'koude hand' of een hittebestendige handschoen.
Zorg voor voldoende afterschering alsjonge kideren, mindervaliden, ouderen en dieren zich de nabijheid van het toestel bevinden.
Veiligheidsafstanden tot brandbaar materiaal要去en strikt worden aangehouden.
Plaats geen gordijnen, kleren, wasgoed of andere brandbare materialen bovenop of in denabijheid van het toestel.
Gebruik tijdens het gebruik van uw toestel geenlicht ontvlambare of explosieve stoffende nabijheid van het toestel.
Voorkom schoorsteenbrand door regelmatig des betreffende schoorsteen te latent reinigen. Stook het toestel nooit met open deur.
Bij schoorsteenbrand: sluit de luchtinlaten van het toestel en waarschuw de brandweer.
Als het glas van het toestel is gebroken of gebarsten, moet dit glas worden verrangen voordat u het toestel opnieuw in gebruik neemt.
Oefen geen kracht uit op de deur, voorkom dat kinderen aan de geopende deur trekken, ga nooit op de geopende deur staan of zitten enplaats geen zware voorwerpen op de deur. Zo voorkomt u dat het toestel Kantelt.
Zorg voor voldoende ventilatie van de ruimte waar het toestel worden geplaatst. Bij onvoldoende ventilatie vindt onvolledige verbranding plaats, waardoor zich giftige gassen in deruimte+kunnen verspreiden.Zie het hoofdstuk "Installatieconditions"voormeer informatie over ventilatie.
Installiecondities
Algemeen
Het toestel要去en aangesloten op een goed werkende schoorsteen.
Voor de aansluitmaten: zie de bijlage "Technische gegevens".
Informeer bij de brandweer en/of verzekeringsmaatschappij maar eventuele specifieke vereisten en voorschriften.
Schoorsteen
De schoorsteen is nods voor:
- Het afvoeren van de verbrandingsgassen door natuurlijke trek.
i De warme lucht in de schoorsteen isichter dan de buitenlucht en stigt waarom. - Het aanzuigen van lucht, nodig voor de verbranding van de brandstof in het toestel.
Een Niet goed werkende schoorsteen kan tijdens het openen van de deur rookterugslag gezven. Schade onte staan door rookterugslag is uitgesloten van garantie.
Sluit nicht meerere toestellen (bijvoorbeeld ook nog een centraleverwarmingsketel) op verzelfde schoorsteen aan, tenzij lokale of nationale regelgeving hierin voorziet. Zorg in ieder geval bij twee aansluitingen dat het hoogteverschil:tussen de aansluitingen minimaal 200~mm bedraagt.
Vraag uw installmenter om advies over de schoorsteen. Raadpleeg de Europese norm EN13384 voor een juiste berekening van de schoorsteen.
in de volgende figuur zijn aangegeven. A = het hoogste punt van het dak binnen een afstand van 3 meter.
De schoorsteen moet aan de volgende voorwaarden voldoen:
De schoorsteen moet gemaakt zich van vuurvast materiaal, bij voorkeur keramiek of roestvrij staal.
De schoorsteen要去 luchtdicht en goed gereinig Zijn en voldoende trek garanderen.
Een trek/onderdruk van 15 - 20 Pa tijdens normal belasting is ideaal.
De schoorsteen moet - vertrekend van de uitgang van het toestel - zo verticalaal möglichk lopen. Richtingsveranderingen en horizontale stukken verstoren de afvoer van verbrandingsgassen enveroorzaken möglichk roetophoping.
De binnenmaten mogen Niet te groot zich, om voorkomen dat de verbrandingsgassen te sterk afkoelen waardoor de trek minded wordt.
De schoorsteen要去 bij voorkeurdezelfdiediameter hebben als de aansluitkraag.
Voor de nominale diameter: zie de bijlage "Technische gegevens". Als het rookkanaal goed is geisoleerd, kan de diameter eventueel wat groter zijn (maximaal tweemaal de sectie van de aansluitkraag).
De sectie (oppervlakte) van het rookkanaal moet constant zijn. Verwijdingen en (vooral) vernauwingen verstoren de afvoer van verbrandingsgassen.
Bij toepassing van een regenkap/afvoerkap op detilatierooster in de buitenmuur te lately plaatsen. schoorsteen: let erop dat de kap Niet de uitmonding van de schoorsteen vernauwt en dat de kap niet Zorg dat andere luchtverbruikende apparaten (zoals afvoer van verbrandingsgassen belemmert. een wasdroger, ander verwarmingstoestel of bad-kamerventilator) een eigien buitenluchtaanvoer heb
De schoorsteen moet uitmonden in een zone dieben, of zich uitgeschakeld wanner u het toestel nicht worden verstoord door omliggende gebouwen, stookt.
vlakbijstaande bomen of andere hindernissen.
Het schoorsteengedeelte buiten de woning moet geisoleerd zich.
De schoorsteen moet minimaal 4 meter hoog zijn
Als vuistregel geldt: 60 cm boven de nok van het dak.
Als de nok van het dak meer dan 3 meter is verzijderd van de schoorsteen: houd de maten aan

Ventilatie van de ruimte
Voor een goede verbranding heeft het toestel lucht (zuurstof) nodig. Die lucht worden via regelbare lucht-inlaten aangevoerd vanuit de ruimte waar het toestel is geplaatst.
Bij onvoldoende ventilatie vindt onvolledige verbranding plaats, waardoor zich giftige gassen in de ruimte{kunnen verspreiden.
Een vuistregel is dat de luchttoevoer 5,5 cm²/kW moet়. Extra ventilatie is nodig:
Als het toestel in een ruimte staat die goed is geisoleerd.
Als er mechanische ventilatie is, bv een centraal afzuigsysteme of een afzuigkap in een open keuken.
U kunt voor extra ventilatie zorgen door een ven
etilatierooster in de buitenmuur te latent plaatsen.
ding
Zorg dat andere luchtverbruikende apparaten (zoals) een wasdroger, ander verwarmingstoestel of badkamerventilator) een eigeneutenluchtaanvoer heb
ben, of zich uitgeschakeld wanner u het toestel stookt.
U kunt het toestel ook aansluiten op buitenluchtaanvoer. Hiervoor is een aansluitset meegeleverd. Extra ventilatie is dan nicht nodig.
Vloer en wanden
De vloer waarop het toestel wordt geplaatst, moet voldoende draagvermogen hebben. Voor het gewicht van het toestel: zie de bijlage "Technische gegevens".


Beschem een brandbare vloer door middel v een onbrandbare vloerplaat gegen warmte-uitstraling. Zie de bijlage "Afstand tot brandbaar materiaal".

Verwijder brandbaar materiaal zoals linoleum, tapijt, enzovoorts onder de onbrandbare vloerplaat.

Zorg voor voldoende afstandCUSHT het toestel en brandbare materialen zoals houten wander en meubels.

Ook de aansluitbuis straalt warmte uit. Zorg voor voldoende afstand of aftschermingussen de aansluitbuis en brandbare materialen. De vuistregel voor een enkelwandige buis is een afstand van driemaal de diameter. Als een bekledingsschelp rond de buis is aangebracht, is een afstand van eenmaal de diameter toelaatbaar.

Een vloerkleed moet minimaal 80cm van het vuur verwijderd zich.

Beschem een brandbare vloer voor de kachel met behulp van een onbrandbare vloerplaat tegen eventuele uittvallende assen. De vloerplaat要去 voldoen aan nationale normen.

Voor de afmetingen van de onbrandbare vloerplaat: zie de bijlage "Afstand tot brandbaar materiaaal".

Voor verdere eisen in verband met brand-veiligheid:zie de bijlage "Afstand tot brandbaar materiaal".


- Aansluitkraag
- Deur
- Zijglas
- Grendel
- Luchtschuif
Deursluting
Het toestel worden gelevered met de grendelknop (4) gemonteerd. De deur worden geopend door de grendelknop in te drukken. Omdat de grendelknopijdens het gebruik warm worden, is er een handschoen bijgeleverd die u kunt gebruiken als bescherming voor uw hand.
Installatie
Algemene voorbereiding
- Controller het toestel onmiddelijk bij ontvangst op (transport)schade en eventuele andere gebreken. Het toestel is aan de onderkant met schroeven op de pallet gemonteerd.

Als u (transport)schade of gebreten hebte geconstasteerd, neem het toestel dan nicht in gebruik en stel de leverancier op de hoogte.
Verwijder de demontabele onderdelen (vuurvaste binnenplaten, stookrooster, topplaat, aslade) uith het toestel voordat u het toestel gaat installereren.

Door demontabele onderdelen te verwijderen, kurz u het toestel gemakkelijker verplaatsen en beschadiging voorkomen.

Let bij het verwijderen van demontabele onder-delen op hun oorspronkelijke positie, om ze later weeper op de juiste plaats te kunnen aan-brengen.

- Open de deur; zie volgende figuur.

09-20021-012
- Verwijder de vuurvaste binnenplaten; die volgende figuur.
a. Verwijder eerst de vlamplaat (09).

De vlamplaat is aan de bovenzijde bevestig met een metalen clipje, dit is om beschadiging tijdens het transport te vermiiden.
b. Verwijder de binnenplaten (10), (11), (07) en (08) aan de zich- en城县kant
c. Verwijder de vuurkorf aan dechterzijde (02) en (03) en aan de voorkant (04), (05) en (06).
d. Verwijder het rooster en de aslade (01) en (12).

Vermiculiet binnenplaten zich Licht van gewicht en bij levering meestal okerkleurig. Zij isoleren de verbrandingskamer zodate verbranding beter is.

Uitneembare binnendelen
01 stockbodem
02 vuurkorf rechtsachter
03 vuurkorf linksachter
04 vuurkorf rechts
05 vuurkorf links
06 vuurkorf
07 binnenplaat zijkant rechtsachter
08 binnenplaat zijkant linksachter
09 vlamplaat binnenplaat
10 binnenplaat zijkant rechts
11 binnenplaat zijkant links
12aslade
Schoorsteenaansluiting voorbereiden
Bij het aansluiten van het toestel op een schoorsteen.
hebt u de keuzeuit aansluiting aan de bovenzijde aan dechterzijde van het toestel.
Optioneel is een hitteschild verkrijgbaar. Bij toe-passing van dit hitteschild kan de afstand tot brandbaar materiaal verkleind worden. Zie bijlage "Afstand tot brandbaar materiaal". Voor de aansluiting aan dechterzijde moet de uitbreekplaat verwijderd worden. Dit kan met behulp van een kniptang (1); zie volger figuur.

Hitteschild monteren
Om het optioneel verkrijgbare hitteschild te monteren gaat u als volgt te werk:
- Schroef 2 draadeinden M6 (1) met afstandstuk (2) op de weiterwand.
- Plaatst het hitteschild (3) en schroef dit vast met 2 flenskopschroeven M6 (4), zie volgende figuur.

Aansluiten op de bovenzijde
Het toestel worden staandaard geleverd met de aansluitkraag gemonteerd voor een aansluiting aan de bovenzijde,zie volgende afbeelding.


Aansluiten op dechterzijde
Voor de aansluiting op dechterzijde moet de positie van de aansluitkraag gewijzigd worden. De aansluitkraag is bevestigd met 2 moeren M8 (sleutel 13). Ga als volgt te werk:
-
Verwijder de vlamplaat.
-
Schroef de moeren los en verwijder de aansluitkraag.
4 Controller of het afdichtband op het contactvlak Niet is beschadigd. Vervang het afdichtband als dat wel het geval is.
- Plaats de aansluitkraag 180^ gedraaid ten opzichte van de oorspronkelijke positie, die vol-gende figuur.

- Monteer de aansluitkraag met de 2 moeren M8.
5 Plaats de vlamplaat terug.
Buitenluchtaansluiting voorbereiden
Als het toestel worden geplaatst in een ruimte die onvloodende is geventileerd,kest u de aansluitset voor het aanvoeren van buitenlucht op het toestel aansluiten.
De luchtaanvoerbuis heeft een diameter van 100mm Bij toepassing van een gladde buis mag deze buis maximaal 12 meter lang zich. Bij gebruik van hulpstukken zoals bochten moet u per hulpstuk de maxi-male lengte (12 meter) met 1 meter verminderen.
Buitenluchttaansluiting via de wand
- Maak een aansluitgat in de wand (raadpleeg de bijlage "Afmetingen", voor de juiste positie van het aansluitgat).
- Sluit de luchtaanvoerbuis hermetisch af op demuur.
Plaatsen en aansluiten
- Zet het toestel op de juisteplaats, vlak en waterpas. Het toestel is uitgevoerd met stelvoetjes die al op het toestel�zemonteerd of worden bijgeleverd. Gebruik deze stelvoetjes zodat het toestel perfect waterpas kan worden gesteld.

- Sluit het toestel hermetisch aan op de schoorsteen.
- Bij buitenluchttaansluiting: sluit de aanvoer van buitenlucht aan op de aansluitset die op het toestel gemonteerd.
- Plaats alle gedemonteerde onderdelen op de juiste plaats terug in het toestel.

Laat het toestel nooit branden zonder de vuurvaste binnenplaten.
Het toestel is nu klaar voor gebruik.
Gebruik
Eerste gebruik
Wanner u het toestel voor het eerst gebruikt, stook het dan enkele uren flink door. Hierdoor zal de hittebestendige lak uitharden. Hierbij kan wel wat rook en geurhinder ontstaan. Zet eventueel in de ruimte waar het toestel staat de ramen en deuren even op
Brandstof
Dit toestel is alleen geschikt voor het stoken van naturuurlijk hout; gezaagd en gekloofd en voldoende droog.
Gebruik geen andere brandstoffen, want die kunnen leiden tot ernstige schade aan het toestel.
De volgende brandstoffen mag u niede gebruiken odomdat zij het milieuu verruilen, en odomdat zij het toestel en de schoorsteen sterk verruilen waardoor schoorsteenbrand kan ontstaan:
Behandeld hout, zoals sloophout, geverfd hout, geimpregneerd hout, verduurzaamd hout, multiplex en spanplaat.
Kunststof, oud papier en huishoudelijk afval.
Hout
- Gebruik bij voorkeur hard loofhout zoals eik, beuk, berg en fruitbomenhout. Dit hout brandt langzaam met rustige vlammen. Naaldhout bevat meer hors, brandt sneller en geeft meer vomken.
- Gebruik gedroogd hout met een vochtpercentage van maximaal 20% . Hiervoor moet het hout minstens 2aar zijn gedroogd. Hout met een vochtpercentage van 20% levert 4,2 kWh per kg hout. Hout met een vochtpercentage van 15% levert 4,4 kWh per kg hout. Vers gekapt hout heeft een vochtpercentage van 60% en levert slechts 1,6 kWh per kg hout.
Zaag het hout op maat en klief het als het nog vers is. Vers hout klieft gemakkelijker en gekloven hout droogt better. Bewaar het hout onder een afdek waar de wind vrij spel heeft.
- Gebruik geen nat hout. Nat hout geeft geen warmte, sondern alle energia gaat zitten in het verdampen van vocht. Dit geeft veel rook en roetaanslag op de deur van het toestel en in de schoorsteen. De waterdamp condenseert in het toestel en kan langs naden uit het toestel lekken en Zwarte vlekken op de vloer geven. De waterdamp kan ook in de schoorsteen condenseren en creosoot vormen. Oek Creosoot is zeer brandhaar en kan schoorsteenbrand veroorzaken.
Aanmaken
U kunt controleren of de schoorsteen voldoende trek heeft door boven de vlamplaat een prop krantenpapier aan te steken. Bij een koude schoorsteen is er vaak onvoldoende trek in de schoorsteen en kan er rook in de kamer komen. Door het toestel op de hier beschreven manier aan te makeen, voorkomt u dit probleem.
- Stapel twee lagen middelgrote houtblokken kuislings op elkaar.

- Stapel bovenop de houtblokken twee lagen aanmaakhoutjes kruislings op elkaar.
- Leg een aanmaakblokje tussen de onderste laag aanmaakhoutjes en steek het aanmaakblokje aan volgens de instructies op de verpakking.

-
Sluit de deur van het toestel en zet de primaire luchtinlaat en de secundaire luchtinlaat van het toestel open; zie volgende figuur.
-
Laat het aanmaakvuur flink doorbranden totdat het een gloeienda houtskoolbed is geworden. Hierna kunt u een volgende vulling doe en het toestel gaan regelen; zie de paragraaf "Stoken met haut"




C:
Oo O Primaire lucht open (tijdens aanmaken)
o o Secundaire lucht open (glasspoeling)
o Lucht voor naverbranding open
B:
o o Secundaire lucht open (glasspoeling)
o Lucht voor naverbranding open
A:
o Lucht voor naverbranding open (voor goede verbranding nooit hebmaal slui- ten)
Maximale hoeveelheid hout
Om continu te können stoken gegen het nominale vermogen, moet erijdere 45 minuten hout worden bijgevuld. Als u de hoeveelheid hout per keer vermindert, kunt u vaker bijvullen. Elke kachel is ontworpen om te werken met een bepaalde maximale hoeveelheid hout. Als u een grotere hoeveelheid hout gezruikt, wordt de warmte-afgiffe groter. Daardoor kan de haard

overbelast raken en können er onderdelen worden beschadigd.
- Open langzaam de deur van het toestel.
- Verdeel het houtskoolbed gelijkmatig over degen stockvloer.
- Stapel enkele houtblokken op het houtskoolbed.
Toegestane hoeveelheid by vochtermperature van 15%
Sense 4,9 kW heeft een maximale vulling van 1 hout per 45 minutes.
Sense 7kW heeft een maximale vulling van 1,5 kg hout per 45 minutes
Sense 9kW heeft een maximale vulling van 1,9 kg hout per 45 minutes.
Vul de verbrandingskamer voor maximaal een derde en vul nooit hout boven de openingsoor secunda lust.
Voor de Sense 300/400 is er een indicatielijn aan- gebracht in de awhile. De vulling moet onder\ deze indicatielijn blijven. Zie de volgende figuur.

Stoken met hout
Nadat u de instructies voor het aanmaken hebt gevolgd:

Bij een losse stapeling verbrandt het hout vlug onions dat de zuurstof elk stuk hout gemakkelijk kan bereiken. Gebruik een losse stapeling als u kort wilt stoken.
Compacte stapeling

Bij een compacte stapeling verbrandt het hout langzamer waar de zuurstof maar enkele stukken hout kan bereiken. Gebruik een compacte stapeling als u langer wilt stoken.
- Sluit de deur van het toestel.
- Sluit de primaire luchtinlaat en LAST de secundaire luchtinlaat open staan.
Regeling verbrandingslucht
Het toestel heeft diverse voorzieningen voor de luchtregeling; zie volgende figuur.
Het toestel heeft een luchtschuif die zowel de primaire lucht als de secundaire lucht regelt. Als de luchtschuif geheel is uitgetrokken is de primaire en secundaire luchtinlaat open. Naarmate de luchtschuif verder wordt ingedrukt sluit zich de primaire luchtinlaat en daarna de secundaire luchtinlaat. Als de luchtschuif geheel gesloten is blijft eenkleine luchtopening open om de naverbranding onder de vlamplaat te verzorgen.

De primaire lucht regelt de lucht onder het rooster. De secundaire lucht regelt de lucht voor het glas (wash) (2).
Dechterwand heeft onder de vlamplaat permanent luchtopeningen (3) die zorgen voor de naverbranding
Adviezen

Stook nooit met open deur.
Stook het toestel regelmatig flink door.
Als u langdurig op lage stand stookt, kan zich in de schoorsteen een afzetting vormen van teen en creosoot. Teer en creosoot zicheer brandhaar. Als de afzetting van deze stoffen te groot worden, kan bij een plotselinge hoge temperatuur een schoorsteenbrand ontstaan. Door regelmatig flink doorstoken, verdwijnen eventuele afzettingen van teen en creosoot. Daarnaast kan zich bij te laag stoken teen afzetten op de ruit en deur van het toestel. Bij een milde buitentemperatuur is het dus better om het toestel een paar uu intens te latenten branden, dan lange tijd laag te stoken.
Regel de luchttoevoer met de luchtschuif.

De luchtinlaat belucht nicht alleen het vuur maar ook het glas, zodat het glas Niet snel verwuilt.
Zet de primaire luchtinlaatijdelijk open als de luchttoevoer via de secundaire luchtinlaat onvoldoende is of als u het vuur wilt aanwakkeren.
Regelmatig eenkleinehoeveelheid houtblokken bijvullen isbeter danvee houtblokken tegelijk.
Doven van het vuur
Vul geen brandstof bij en LAST de kachel gewoon uit-gaan. Als een vuur wordt getemperd door de luchttoevoer te verminderen, komen schadelijke stoffen vrij. Laat waarom het vuur vanzelf uitbranden. Houdtoezicht op het vuur totdat het goed is gedoofd. Als het vuur volledig is gedoofd+kennen alle luchtschuiven worden gesloten.
Ontassen
Na het stoken van hout blijf een relatiefkleine hoeveelheid as over. Dit asbed is een goede isolator voor de stockbodem en geeft een betere verbranding. Laat waarom gerust een dun laagje as op de stockbodem lig- al- gen.
De luchttoevoer door de stockbodem magECHter nicht worden belemmernd en er mag zich geen as ophopen. achter een gietijzeren binnenplaat. Verwijderaarom regelmatin ge overtollige as.

- Open de deur van het toestel.
- Gebruik het trekschepje om de overtollige assen door het rooster in de aslade te schrapen
- Verwijder de aslade met behulp van de bij- geleverde handschoen en leeg de aslade.
- Plaats de aslade terug en sluit de deur van het stel.
Nevel en mist
Nevel en mist belemmeren de afvoer van rookgassen door de schoorsteen. Rook kan neerslaan en stank- overlast gezven. Als het Niet=echt nodig is,(Int u bij nevel en mist beter nicht stoken. D
Eventuele problemen
Raadpleeg de bijlage "Diagnoseschema" om eventuale problemen bij het gebruik van het toestel op losers.
Onderhoud
Volg de onderhoudsinstructies in dit hoofdstuk om het toestel in goede staat te honden.
Schoorsteen
In veel landen bent u wettelijk verplicht de schoorsteen te lien controleren en onderhoden.
Aan het begin van het stookseizoen:That de schoorsteen vegen door een erkend schoorsteenveger.
Tijdens het stockseizoen en nadat de schoorsteen langeincident is gebruikt:laat de schoorsteen controeren op roet.
Na afloop van het stookseizoen: sluit de schoorsteen af met een prop krantenpapier.
Schoonmaken en anderregelmatig onderhoud
Maak het toestel nicht schoon wanner het nog warm is.
Maak de buitenkant van het toestel schoon met een droge Niet pluizende doek.
Na afloop van het stockseizoen kut u de binnenkant van het toestel goed schoonmaken:
Verwijder eventuele erst de vuurvaste binnenplaten. Zie het hoofdstuk "Installatie" voor instructies voor het verwijderen en aanbrengen van binnenplaten.
Maak eventueel de luchtaanvoerkanalen schoon.
Verwijder de vlamplaat boven in het toestel en maak deze schoon.
Vuurvaste binnenplaten controller
De vuuvaste binnenplaten zijn verbruiksonderdelendie aan slijtage onderhevig�n. Vermiculiet binnenplaten�n kwetsbaar. Stoot Niet met houtblokkentegen de binnenplaten. Controller de binnenplatenregelmatig en verrang ze indien nodig.
te
Zie het hoofdstuk "Installatie" voor instructies voor het verwijderen en aanbrengen van binnenplaten.
i
De isolerende vermiculiet of chamotte binnenplaten kennen haarscheuren gaan vertonen, maar dat heeft geen nadelig effect op hun werking.


Gietijzeren binnenplaten gaan lang mee als u Smeren
erachter ophoopt. Als opgehoopte as acheher Hoewel gietijzer enigszins zelfsmerend is, moet u een gietijzeren plaat Niet worden verwijderd, karbewegende delen toch regelmatig smeren.
deplaat de warmte Niet meer afgeven aan de omgeving en kan de plaat verrormen of scheuren.
Smeer de bewegende delen (zoals geleidersystemen, scharnierpennen, grendels en lucht-schuiven) met hittevast vet dat verkrijgbaar is bij de vakhandel.

Laat het toestel nooit branden zonder de vuurvaste binnenplaten.
Lakbeschadigingen bijwerken
Glas schoonmaken
Goed schoongemaakt glas neemt minder nsel vuil Ga als volgt te werk:
Kleine lakbeschadigingen kurz u bijwerken met een spuittbus speciale hittebestendige lak die verkrijgbaar is bij uw leverancier.
-
Verwijder stof en loszittend roet met een droge doek.
-
Maak het glas schoon met kachelruitenreiniger: a. Breng kachelruitenreiniger aan op een keukenspons, wrijf het gehele glasoppervlak inThat even inwerken.
b. Verwijder het vuil met een vochtige doek of keukenpapier.
-
Maak het glas nogmaals schoon met een gewoo glasreinigingsproduct.
-
Wrijf het glas schoon met een droge doek of k kenpapier.
Gebruik geen schurende of bijtende producten o het glas schoon te make.
- Gebruik schoonmaakhandschoenen om uw handen te beschermen.

Als het glas van het toestel is gebroken of gebarsten, moet dit glas worden verrangen voordat u het toestel opnieuw in gebruik ne
Het geëmailleerde oppervlak bijwerken
Emailleren is een artisanaal proces dat maakt dat erkleine kleurverschillen en beschadigingen op het toestel konnen voorkomen. De toestellen ondergaan in de fabriek een visuèle controle, dat wil zaggen, de contrôleur kijkt op een afstand van 1 meter gedurende 10 seconden maar het oppervlak.
Eventuele beschadigingen die dan nicht opvallen worden als OK beschouwd. Bij het toestel is een specialehittebestendige lak meegeleverd waarmee krine
(transport) beschadigingen können worden bijgewerkt.
Breng de hittebestendige lak in dunne laagjes aan een het het goed drogen voordat het toestel in gebruik genommen worden.

Sommige kleuren email zijn gevoelig voor verandering van temperatuur. Hierdoor kan het voorkomen dat de kleur verandert tijdens het gebruik van het toestel. Als het toestel is afgekoeld keert de oorspronkelijke kleur van het email terug.
Als geëmailleerde oppervlakken zeer heet worden küssen er haarscheurtjes ontstaan. Dit is een normal verschijnsel en heeft geen invloed op het functioneren van de kachel.

Voorkom dat kachelruitreinigerCUSHT het glas en de gietijzeren deur loopt.

Zorg dat de kachel Niet worden overbelast. Bij overbelasting worden de oppervlaktetemperatuur extreem hoog en kan er blijvende schade aan het email ontstaan.
Onderhoud geëmailleerde kachel
Reinig het toestel nooit als het nog warm is. Het rei-nigen van het geemailleerde oppervlak van de kachel kunt u het beste doen met zachtte groene zeep en lauw water. Gebruik zo min möglichk water, wrijf het oppervlak goed droog en voorkom roestvorming. A Gebruik nooit staalwol of een ander schuirmiddel. Ze nooit een waterketel direct op een geemailleerde kachel; gebruik een onderzetter en voorkom beschadigingen.
Afdichting controlleren
Controller of het afdichtingskoord van de deur nog goed aflsuit. Afdichtkoord versliet en moet vrijdig worden verrangen.
Controller het toestel op luchtlekken. Kit eventueltuchtgeber is bevestigd met een moer M8 midden kieren dicht met kachelkit. boven in het toestel. Ga als volgt te werk:
Laat de kit goed uitharden voordat u het toestel Schroef de twee glasbevestigingen met onderaanmaakt, anders blaast het vocht in de kit op delen (1) en (2) los en verwijder het glas (3), zie vol-en ontstaat opnieuw eenlek. gende figuur.
Sluiting deur bijstellen
- Controller de glasafdichting en breng indien nodige een neue aufdichtkoord aan.
Controleer of de deur goed sluit. Indien nodig kan de Plaats het neue glas in de sponning en schroef sluiting van de deur stakker of losser ingesteld worden de glasbevestigingen vast. door de afstand van de sluitnok tot de deur te wijzigen.
Ga als volgt te werk:
- Open de deur. De sluitnok (2) is nu zichtaar en toegankelijk, zie volgende figuur.
- Draai de twee schroeven (1) los, waarmee de sl nok is bevestigd.
- Door een opvulplaatje (3) ache ter de sluitnok (2) verwijderen sluit de deur strakker. Als de deur te strak sluit brengt u een extra opvulplaatje ache ter de sluitnok aan.
- Draai de twee schroeven van de sluitnok weer vast en sluit de deur.

Glas verrangen

Als het glas van het toestel is gebroken of gebarsten,要去 dit glas worden verrangen voordat u het toestel opnieuw in gebruik neemt.
Om het zijglas te verrangen moeten eerst alle binnenpanelen en de luchtgeleider worden verwijderd.

Wisselstukken Sense


Sense 100/103/200/203
Pos. Artikeln. Omschrijving Aantal
01 03.66544.002 stockbodem 1
02 03.77429.002 vuurkorf rechtsachter 1
03 03.77428.000 vuurkorf linksachter 1
04 03.77425.002 vuurkorf rechts 1
05 03.77424.002 vuurkorf links 1
06 03.77423.002 vuirkorf 1
07 03.77523.000 binnenplaat zijkant 1 rechtsachter
08 03.77522.000 binnenplaat zijkant 1 linksachter
09 03.76181.000 vlamplaat bin- 1 nenplaat
10 03.77525.000 binnenplaat zijkant 1 rechts
11 03.77524.002 binnenplaat zijkant 1 links
12 03.05216.000aslade 1
Sense 300/303/400/403
Pos. Artikeln. Omschrijving Aantal
01 03.66549.002 stockbodem 1
02 03.77444.002 vuurkorf rechtsachter 1
03 03.77443.000 vuurkorf linksachter 1
04 03.77442.002 vuurkorf rechts 1
05 03.77441.002 vuurkorf links 1
06 03.77440.002 vuirkorf 1
07 03.77548.000 binnenplaat zijkant 1 rechtsachter
08 03.77547.000 binnenplaat zijkant 1 linksachter
09 03.76188.000 vlamplaat bin- 1 nenplaat
10 03.77550.000 binnenplaat zijkant 1 rechts
11 03.77549.002 binnenplaat zijkant 1 links
12 03.05216.000aslade
Bijlage 1: Technische gegevens
| Model | Sense 100/103/200/203 | Sense 100/103/200/203 | Sense 300/303/400/403 |
| Nominaal vermogen 4,9 kW 7,0 | kW 9,0 kW | ||
| Schoorsteenaansluiting (diameter) | 150 mm 150 mm 150 mm | ||
| Gewicht 105 kg - 125 kg 105 kg | - 125 kg 150 kg - | 180 kg | |
| Aanbevolen brandstof Hout | Hout | Hout | |
| Kenmerk brandstof, max. lenghte | 33 cm | 33 cm | 40 cm |
| Massadebiet van rookgassen | 4,5 g/s | 5,1 g/s | 7,3 g/s |
| Rookgastemperatuur gemeten in de meetsectie | 247 °C | 274 °C | 274 °C |
| Temperatuur gemeten aan de uit gang van het toestel | 317 °C | 351 °C | 352 °C |
| Minimum trek | 12 Pa | 12 Pa | 12 Pa |
| CO-emissie (13%Q) 0,18 % | 0,07 % | 0,08 % | |
| NOx-emissie (13% Q) | 81 mg/Nm³ | 89 mg/Nm³ | 75 mg/Nm³ |
| CnHm-emissie (13%Q) | 173 mg/Nm³ | 76 mg/Nm³ | 69 mg/Nm³ |
| Stofemissie | 27 mg/Nm³ | 25 mg/Nm³ | 19 mg/Nm³ |
| Stofemissie volgens NS3058-NS3059 | 2,87 gr/kg | 2,87 gr/kg | 4,7 gr/kg |
| Rendement | 79,5 % | 80 % | 80 % |
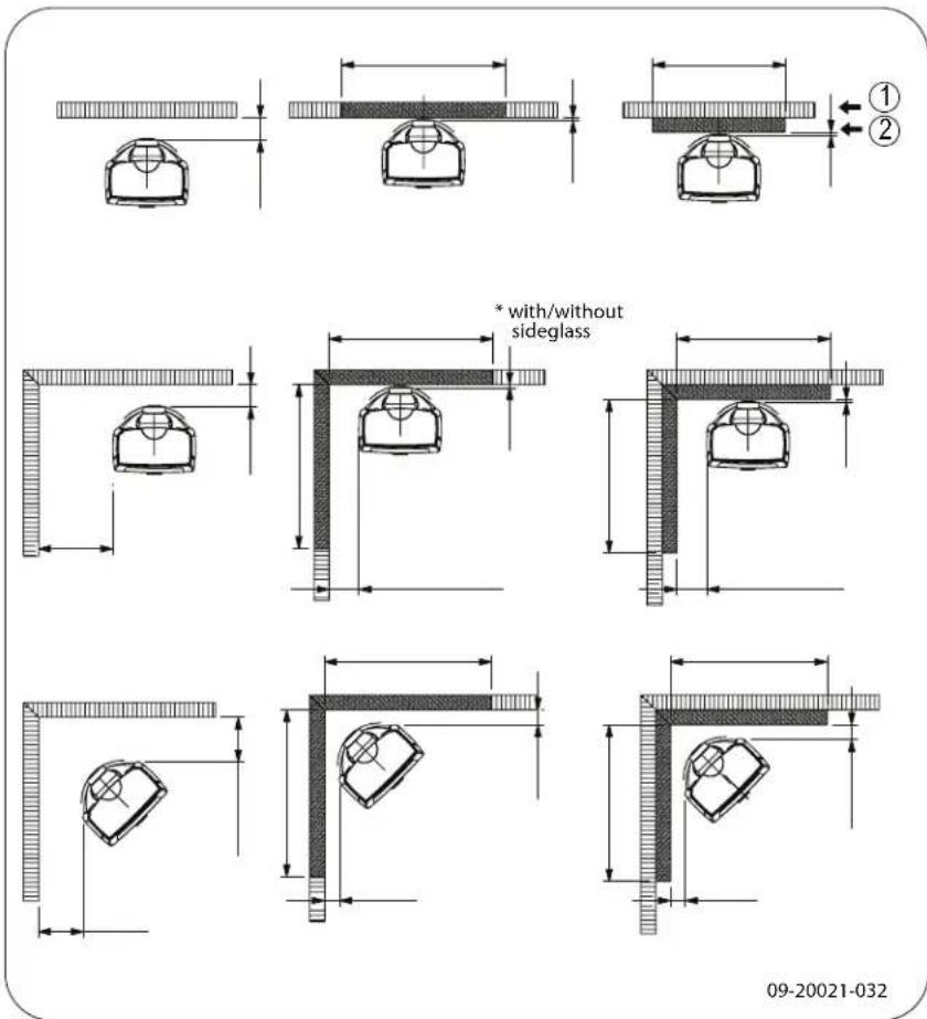
Bijlage 2: Afmetingen
Sense 100



09-20021-001
Sense 103



09-20021-002
Sense 200



09-20021-003
Sense 203



09-20021-004

Sense 303


Sense 403

Bijlage 3: Afstand tot brandaar materiaal
Sense 100/103/200/203 4,9 kW - 7 kW - Minimale afstanden in voor uitvoering zonder hitteschild

1 Brandbaar materiaal
2 Orbrandbaar materiaal 100 mm

Let op! Om de toevoer van verbrandingslucht te garanderen moet, wanner er geen buitenluchtaaansluiting is voorzien, de afstand van de aansluitkraag voor de buitenlucht tot de muur minimaal 20~mm zijn. In voorkomende gevallen kan de aansluitkraag gedemonteerd worden.
Sense 100/103/200/203 4,9 kW - 7 kW - Minimale aufstanden in millim voortuering met hitteschild

| 1 Brandbaar materiaal |
| 2 On brandbaar materiaal 100 mm |

Let op! Om de toevoer van verbrandingslucht te garanderen moet, wanner er geen buitenluchttaansluiting is voorzien, de afstand van de aansluitkraag voor de buitenlucht tot de muur minimaal 20~mm zijn. In voorkomende geallen kan de aansluitkraag gedemonteerd worden.
Sense 300/303/400/403 - 9 kW - Minimale aufstanden in millimeter voering zonder hitteschild

Sense 300/303/400/403 - 9 kW - Minimale afstanden in millimeters vo- voering met hitteschild

Sense - Afmetingen onbrandbare vloerplaat


Minimale afmetingen onbrandbare vloerplaat
| A (mm) | B (mm) | |
| Din 18891 500 300 | ||
| Duitsland 500 300 | ||
| Finland 400 100 | ||
| Noorwegen 300 5 |
Bijlage 4: Diagnoseschema
| Probleem | ||||||
| ● | Hout wil nicht doorbranden | |||||
| ● | Geeft onvoldoende warmte | |||||
| ● | Rookterugslagijdens het bijvullen | |||||
| ● | Toestel brandt te hevig, nicht goed regelbaar | |||||
| Aanslag op het glas | ||||||
| mogelijkke oorzaak mogelijk oplossing | ||||||
| ● | ● | ● | Onvoldoende trek | Een koude schoorsteen creëert vaak onvoldoende trek. Volg de instructies voor het aanmaken in het hoofdstuk "Gebruik"; open een raam. | ||
| ● | ● | ● | ● | Hout te vochtig Gebruik hout met maximaal 20% vocht. | ||
| ● | ● | ● | ● | Afmetingen hout te groot | Gebruik keine stukjesaanmaakhout. Gebruikgekloven houtblokken met een omtrek van maximaal 30 cm. | |
| ● | ● | ● | ● | ● | Stapel hout net correct | Stapel het hout zodanig dat er voldoende lucht tussen de hout-blokken kan stromen (losse stapeling, wie "Stoken met hout"). |
| ● | ● | ● | ● | Werking van de schoorsteen onvol-doende | Controler of de schoorsteen aan de voorwaarden voldoet: mini-maal 4 meter hoop, juiste diameter, goed geisoleerd, gladde bin-nenzijde, Niet te veelbochten, geen obstructies in de schoorsteen (vogelnest, te veel roetafzetting), hermetisch dicht (geen kieren). | |
| ● | ● | ● | ● | Uitmonding van de schoorsteen Niet correct | Voldoende hoog boven het dakvlak, geen obstructies in de nabij-heid. | |
| ● | ● | ● | ● | ● | Instelling van de luchtinlaten net correct | Open de luchtinlaten volledig. |
| ● | ● | ● | ● | Aansluiting van het toestelmet de scho-steen Niet correct | Aansluiting要去 hermetisch dichtijken. | |
| ● | ● | ● | ● | Onderdruk in de ruimte waar het toestel is geplaatst | Zet afzuigsystemen uit. | |
| ● | ● | ● | ● | Onvoldoende toevoer van verse lucht | Zorg voor voldoende luchttoevoer, kaak desnoods gebruik van de buitenluchtaansluiting. | |
| ● | ● | ● | ● | Ongunstige weersomstandig-heden? Inversie (omgekeerde lucht-stroom in de schoorsteen door hove tentemporatuur), extreme windsnelheden | Bij inversie is gebruik van het toestel af te raden. Plaats desnoods bui- en trekkende kap op de schoorsteen. | |
| ● | Tocht in de woonkamer | Voorkom/tocht in de woonkamer; plaats het toestelniet in de nabij-heid van een deur of verwarmingsluchtkanalen. | ||||
| ● | Vlammen raken het glas | Zorg dat het hout Niet te dicht gegen het glas ligt. Schuif de primaire luchtinlaat verder dicht. | ||||
| ● | Toestel lekt lucht Controller de africhting | Toestel lekt lucht Controller de africhting | ||||
Index
A
Aanmaakhout 38
Aanmaakvuur .16
Aansluten afmetingen .25.
Aansluten op buitenluchtaanvoer.15
Aansluiten op schoorsteen aanchterzijde 15 aan bovenzijde.14
Aansluitkraag schoorsteenaansluiting..14-15
Aansteken .16
Afdichtingskoord van deur 21
Afmetingen.25
Afwerklaag, onderhoud 21
As verwijderen. 19
Aslade
openen 20
B
Beluchting van het vuur. 19
Bijvullen van brandstof 19 rookterugslag 38
Binnenplaten vermiculite 13
Binnenplaten, vuurvaste verwijdersen 13
Brandbaar materialiaafstand tot. 33
Brandstof benodigde hoeveelheid. 20
bijvullen 19
geschichte 16
hout 16
ongeschikte 16
Brandveiligheid afstand tot brandbaar materiaal. 33
meubels 11
vloer 11
wanden 11
Buitenluchttaanvoer 11, 15
aansluiting op. 16
C
Creosoot 19
D
Demontabele onderdelen. 13
Deur
afdichtingskoord 21
bijstellen 22
openen 13
sluiting 22
sluitnok 22
Draagvermogen van vloer 11
Drogen van hout. 16
E
Email
onderhoud 21
G
Geschikte brandstof 16
Gewicht 24
Gietijzeren binnenplaten 13
Glas aanslag 38
beschadigd .22
gebarsten 22
schoonmaken 21
vervangen 22
H
Hitteschild monteren 14
Hout 16
bewaren .16
hydrogen 16
geschikte soort.16
nat 16
Kap op de schoorsteen. 11
Kieren in toestel 21
L
Lak 16
Luchtinlaten 17
Luchtlek 21
Luchtregeling .19.
Luchttoevoer regelen 19

M
Onderhoud
afdichting 21
email 21
glas schoonmaken 21.
schoorsteen 20
smeren 21
toestel schoonmaken 20
vuurvaste binnenplaten 20
Ongeschikte brandstof 16
Ontassen 19
Opens
aslade 20
deur .13
Opslag van hout 16
P
Plaatsen afmetingen 25
Primaire luchtinlaat 17
Problemen oplossen 20,38
R
Rendement 5,7,9,24
Rook bijeerste gebruik 16
Rookgas massedebiet 24 temperatuur 5,7,9,
Rookterugslag 10,38
Ruiten
aanslag 38
schoonmaken 21
s
Schade.13
Schoorsteen aansluitdiameter 24
aansluiting op. 16
hoogte 11
onderhoud 20
voorwaarden 11
Schoorsteenaansluiting
achterzijde 15
bovenzijde 14
Schoorsteenbrand voorkomen 19
Schoorsteenkap 11
Secunda luchtinaat 17
Sluitnok opvulplaatje 22
Smeren 21
Stof-emissie 24
Stoken 18
brandstof bijvullen 18-19
onvoldoende warmte 20, 38
toestel brandt te hevig 38
toestel nicht goed regelbaar 38
T
Teer 19
Temperatuur 24
Trek 24
U
Uitgaan van vuur 19
V
Vegen van schoorsteen 20
Ventilatie 11
buitenluchtaanvoer aansluiten 15
vuistregel 11
Ventilatierooster 11
Verbrandingsluchtregeling 19
Vermiculite vuvast 13
Vermiculite binnenplaten. 13

Vervangen
glas 22
Verwijderen
as .19
vuurvaste binnenplaten.13.
Vet voor smering.21
Vloeren
brandveiligheid 11
draagvermogen.11
Vloerkleed 11
Vuur
aanmake 16
doven .19
Vuurvaste binnenplaten
onderhoud.20
verwijden 13
waarschuwing 16
W
Waarschuwing
brandbare materialen 10
glas gebroken of gebarsten. 10, 21-22
heet oppervlak 10
verzekeringsvoorwaarden 10
voorschriften 10
vuurvaste binnenplaten 16
Wanden
brandveiligheid 11
Warmte, onvoldoende 20, 38
Dovre N.V. Nijverheidsstraat 18 2381 Weelde Belgium.
Nijverheidsstraat 18 Tel: +32 (0) 14 65 91 91
B-2381 Weelde Fax: +32 (0) 14 65 90 09
Belgium E-mail:info@dovre.be

Dovre N.V. Nijverheidsstraat 18 2381 Weelde Belgium.
Nijverheidsstraat 18 Tel: +32 (0) 14 65 91 91
B-2381 Weelde Fax: +32 (0) 14 65 90 09
Belgium E-mail: info@dovre.be

Dovre N.V. Nijverheidsstraat 18 2381 Weelde Belgium.
Nijverheidsstraat 18 Tel: +32 (0) 14 65 91 91
B-2381 Weelde Fax: +32 (0) 14 65 90 09
Belgium E-mail:info@dovre.be

Safety
Dovre N.V. Nijverheidsstraat 18 2381 Weelde Belgique.
Nijverheidsstraat 18 TEL.: +32 (0) 14 65 91 91
2381 Weelde, Belgique Fax: +32 (0) 14 65 90 09
Dovre N.V. Nijverheidsstraat 18 2381 Weelde Belgique.
Nijverheidsstraat 18 Tél.: +32 (0) 14 65 91 91
2381 Weelde, Belgique Fax: +32 (0) 14 65 90 09
Dovre N.V. Nijverheidsstraat 18 2381 Weelde Belgique.
Nijverheidsstraat 18 Tél.: +32 (0) 14 65 91 91
2381 Weelde, Belgique Fax: +32 (0) 14 65 90 09
Dovre N.V. Nijverheidsstraat 18 2381 Weelde Belgium.
Nijverheidsstraat 18 Tel: +32 (0) 14 65 91 91
B-2381 Weelde Fax: +32 (0) 14 65 90 09
Dovre N.V. Nijverheidsstraat 18 2381 Weelde Belgium.
Nijverheidsstraat 18 Tel: +32 (0) 14659191
B-2381 Weelde Fax: +32 (0) 14659009
Dovre N.V. Nijverheidsstraat 18 2381 Weelde Belgium.
Nijverheidsstraat 18 Tel: +32 (0) 14 65 91 91
B-2381 Weelde Fax: +32 (0) 14 65 90 09
Dovre N.V. Nijverheidsstraat 18 2381 Weelde Bélgica.
Nijverheidsstraat 18 Tel.: +32 (0) 14 65 91 91
B-2381 Weelde Fax: +32 (0) 14 65 90 09
Dovre N.V. Nijverheidsstraat 18 2381 Weelde Bélgica.
Nijverheidsstraat 18 Tel.: +32 (0) 14 65 91 91
B-2381 Weelde Fax: +32 (0) 14 65 90 09
Dovre N.V. Nijverheidsstraat 18 2381 Weelde Bélgica.
Nijverheidsstraat 18 Tel.: +32 (0) 14 65 91 91
B-2381 Weelde Fax: +32 (0) 14 65 90 09
Dovre N.V. Nijverheidsstraat 18 2381 Weelde Belgio.
Nijverheidsstraat 18 Tel: +32 (0) 14 65 91 91
B-2381 Weelde Fax: +32 (0) 14 65 90 09
Belgio E-mail : info@dovre.be

Dovre N.V. Nijverheidsstraat 18 2381 Weelde Belgio.
Nijverheidsstraat 18 Tel: +32 (0) 14 65 91 91
B-2381 Weelde Fax: +32 (0) 14 65 90 09
Belgio E-mail : info@dovre.be

Dovre N.V. Nijverheidsstraat 18 2381 Weelde Belgio.
Nijverheidsstraat 18 Tel: +32 (0) 14 65 91 91
B-2381 Weelde Fax: +32 (0) 14 65 90 09
Belgio E-mail : info@dovre.be

Sicurezza
Dovre N.V. Nijverheidsstraat 18 2381 Weelde Belgium.
Dovre N.V. Nijverheidsstraat 18 2381 Weelde Belgium.
Dovre N.V. Nijverheidsstraat 18 2381 Weelde Belgium.
Nijverheidsstraat 18 TIf.: +32 (0) 14 65 91 91
B-2381 Weelde Faks: +32 (0) 14 65 90 09
Belgia E-post : info@dovre.be

SimpelGids