SCP 9 - Verwarming Superior - Gratis gebruiksaanwijzing en handleiding
Vind de handleiding van het apparaat gratis SCP 9 Superior in PDF-formaat.
Gebruikersvragen over SCP 9 Superior
0 vraag over dit apparaat. Beantwoord die u kent of stel uw eigen vraag.
Stel een nieuwe vraag over dit apparaat
Download de handleiding voor uw Verwarming in PDF-formaat gratis! Vind uw handleiding SCP 9 - Superior en neem uw elektronisch apparaat weer in handen. Op deze pagina staan alle documenten die nodig zijn voor het gebruik van uw apparaat. SCP 9 van het merk Superior.
GEBRUIKSAANWIJZING SCP 9 Superior
BELANGRIJKE AANWIJZINGEN
DT2010002-02
- Deze handleiding is opgesteld door de fabrikant en maakt een wezenlijk deel UIT van het product. De informatie in dit boekje is bestemd voor de koper en alle personen die betrokken zijn bij de installmentie, het gebruik en het onderhoud van het product.
- Lees de aanwijzingen en de technische informatie die dit boekje bevat aandachtig voordat de kachel geinstalleerd worden, er gebruik van gemaakt worden en eventuele reparations eraan uitgevoerd worden.
-
Dankzij het nauwkeurige ontwerp en de risicoanalyse van de fabrikant worden er een veilig product gerealiseerd; voordat u om het even welke handeling uitvoert, is hetECHTER raadzaam u zorgvuldig te honden aan de voorschriften in deze handleiding en deze altijd binnen bereik te honden.
-
Controller of de vloer waar het product geinstalleerd zal worden volledig vlak is.
- Het monteren van de mantel moet door minimaal twee personen gedaan worden.
- De afbeeldingen die in dit boekje staan zijn bedoeld ter verduidelijking, maar het kan soms geleuren dat deze nicht exact kloppen met uw product.
- Raadpleeg de lijst om te controlleren of de toestellen, de mantel en de accessoires compatibel zich.
1.0 AFMETINGEN


DT2031913-01
| FRONTAAL AFDEKPROFIEL A B C D E F | ||||||
| IP 68/49 - SCP 7 70 50 / 56* 72,4 52,4 / 58,4* 7 | 8 0,8 | |||||
| IP 78/58 - SCP 9 80 59 / 65* 82,4 61,4 / 67,4* 7 | 8 0,8 | |||||
| IP 78/68 90 69 / 75* 82,4 71,4 / 77,4* 7,8 0,8 |
Afmetingen in cm
* met pelletlade (optie).
A x B = Interne afmetingen opening afdekprofil.
CxDxE = Externe afmetingen afdekprofiel.
F = Lengthe uitsteeksel vanaf het wandpaneel.
2.0 INSTALLATIE
DT2011352-02
2.1 HET WANDPANEEL VAN PELLETINBOUWKACHELS PLAATSEN
DT2012348-02
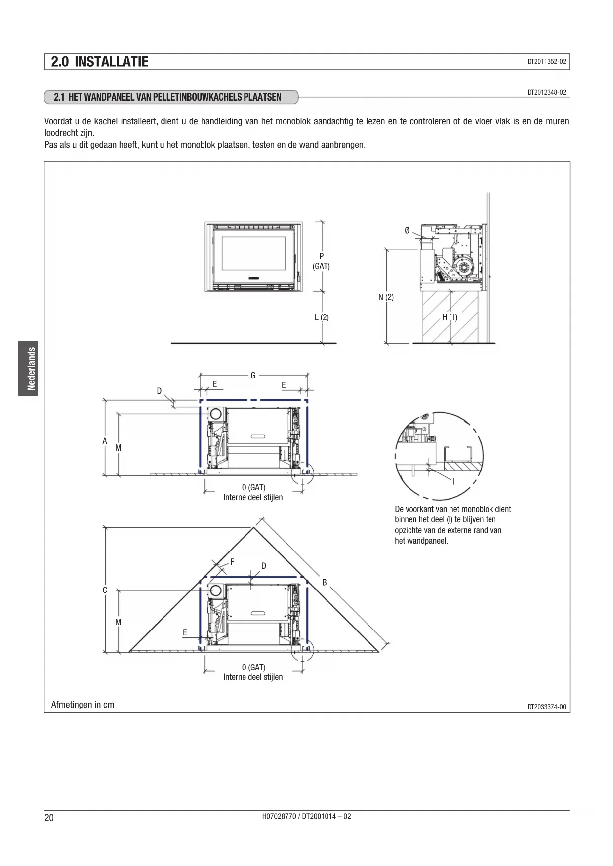
Voordat u de kachel installeert, dient u de handleiding van het monoblok aandachtig te lezen en te controlen of de vloer vlak is en de muren loodrecht zich.
Pas als u dit gedaan heeft, kurz u het monoblok plaatsen, testen en de wand aanbrengen.




De voorkant van het monoblok dient binnen het deel (I) te blijven ten opzichte van de externe rand van het wandpaneel.

Afmetingen in cm
DT2033374-00
Wij raden u aan om het monoblok te testen voordat u het wandpaneel en de mantel aanbrengt.
! Blokker het monoblok op geen enkele manier om het normale uitzetten tijdens de werkig ervan Niet te hinderen.
Voor hetplaatsen moeten de aanwijzingen nauwkeurig opgevolgd worden. Verder dient u zich te honden aan de vermelde afmetingen, alsook aan de afmetingen die vermeld+zijn in de handleiding van het monoblok.
Om de structuur een minimale vorm van veiligheid te bieden, is het raadzaam omijdens het aanbrengen van de gipswand stijlen aan te brengen (van minimum 5 cm breed) op deplaatsen waar de mantel aan de wand worden vastgemaakt.
Wij raden u aan om een goede isolatie aan te brengen en de voorgeschreven materialen, ditken en afmetingen te respecteren die vermeld zich in de handleiding van het monoblok.
De vermelde afstanden zijn de minimumafstanden die nodig zich voor een installmentie gegen een onbrandbare muur. Voor brandbare muren dient u de aanwijzingen te volgen die vermeld zich in de handleiding voor het gebruik en het onderhoud van het monoblok in de paragraaf "MINIMUM VEILIGHEIDSAFSTANDEN".
| Model | ONBRANDBARE muren Afvoer | Deel | ||||||||||||||
| ABCDEH | (1) | IPOL | (2) | ØMN | (2) | |||||||||||
| IP 68/49 SCP 7 | 55 12 | 9 91 5 | 5 78 38 | 1 | 50,7 | 71 | 37,8 | 8 45 | 68 | cm | ||||||
| 56,7(3) | ||||||||||||||||
| IP 78/58 SCP 9 | 61 14 | 4 10 | 2 5 5 5 | 88 38 1 | 59,7 | 81 | 37,8 | 8 | 51,5 | 69,5 | cm | |||||
| 65,7(3) | ||||||||||||||||
| IP 78/68 | 61 | 144 | 102 | 5 | 5 | 5 | 88 | 38 | 1 | 69,7 | 81 | 37,8 | 8 | 51,5 | 69,5 | cm |
| 75,7(3) | ||||||||||||||||
(1) Het deel H bepaalt de hoogte van de onderste basis vanaf de vloer.
(2) Delen zich aanfankelijk van H.
(3) Versie met pelletblade (optie).
U kunt de hoogte van de vloer van de lijst wijzigen door de waarden "H", "L" en "N" op te tellen bij of af te trekken van het vereiste/ gewenste verschil.
2.2 MONTAGE AFDEKPROFIEL
DT2011347-00
Controleer of het monoblok correct werkt. Wanner het wandpaneel geplaatst is zoals vermeld in de paragraaf "HET WANDPANEL PLAATSEN", handel dan als volgt:
Maak op geen enkele manier onderdelen van de mantel vast aan het monoblok.
! Het is heel belangrijk dat u controleert of het wandpaneel vlaek en loodrecht is.
Plaats het afdekprofiel en controllerer of het gecentreerd is met het monoblok en het gat van het wandpaneel. Indien nodig, compensateer het afdekprofiel om het hoger te centreren.
Plaats het afdekprofil met de rand aan de bovenkant, zoals afgebeeld in de uitvergrote weergave.
Verwijder het afdekprofil. Verf het wandpaneel en werk het af.
Breng een pau parten punten silicone aan op het afdekprofil en maak het vast aan het wandpaneel.
Let op de hoeveelheid silicone die u gebruikt. Zorg ervoor dat het Niet onder de buitenste rand van het afdekprofiel uitkomt.

INDICACIONES IMPORTANTES
DT2010002-02
SimpelGids