SCP 9 - Riscaldamento Superior - Manuale utente e istruzioni gratuiti
Trova gratuitamente il manuale del dispositivo SCP 9 Superior in formato PDF.
Domande degli utenti su SCP 9 Superior
0 domanda su questo apparecchio. Rispondi a quelle che conosci o fai la tua.
Fai una nuova domanda su questo apparecchio
Scarica le istruzioni per il tuo Riscaldamento in formato PDF gratuitamente! Trova il tuo manuale SCP 9 - Superior e riprendi in mano il tuo dispositivo elettronico. In questa pagina sono pubblicati tutti i documenti necessari per l'utilizzo del tuo dispositivo. SCP 9 del marchio Superior.
MANUALE UTENTE SCP 9 Superior
Profilo copribordo inserti a pellet
Pellet insert edge trim kit
La ringraziamo per aver preferito uno dei nostri prodotti, frutto di lunga esperienza e di una continua ricerca per un prodotto superiore in termini di sicurezza, affidabilità e prestazioni.
In quost manuale trovera tute le informazioni ed i consiglio utili per poter utilizzare il suo prodotto nel massimo della sicurezza ed efficienza.
DT2010001-01
INDICAZIONI IMPORTANTI
DT2010002-02
- Questo manuale è stato redatto dal costruttore e costituisce parte integrante del prodotto. Le informazioni inesso cont∉nute sono indirizzate all'acquirente, e a tutte nelle persone che a vario titolo concorrono all'installazione, all'uso e alla manutenzione del prodotto.
- Leggete conattenzione le istruzioni e le informazioni tecniche contente in quello manuale, prima di procedere all'infallazione, all'utilizzo e a qualsiasi intervento sul prodotto.
-
L'attenta progettazione e l'analisi dei rischi fatti dal costruttore hanno permesso la realizzazione di un prodotto sicuro; tutvavia prima di effettuare qualiasi operazione, si raccomanda di atteneri scrupposamente alle istruzioni riportate nel segmente documento, e di tenerlo sempre a disposizione.
-
Controllare l'esatta planarità del pavimento dove verra installato il prodotto.
- Il montaggio del rivestimento deve essere eseguito da due persone.
- Le immagini riportate nel presente libretto sono a titolo esplicativo e talvolta possono non rappresentare esattamente il prodotto.
- Per verificare la compatibilità tra interni, rivestimenti e accessori, consultare il listino.
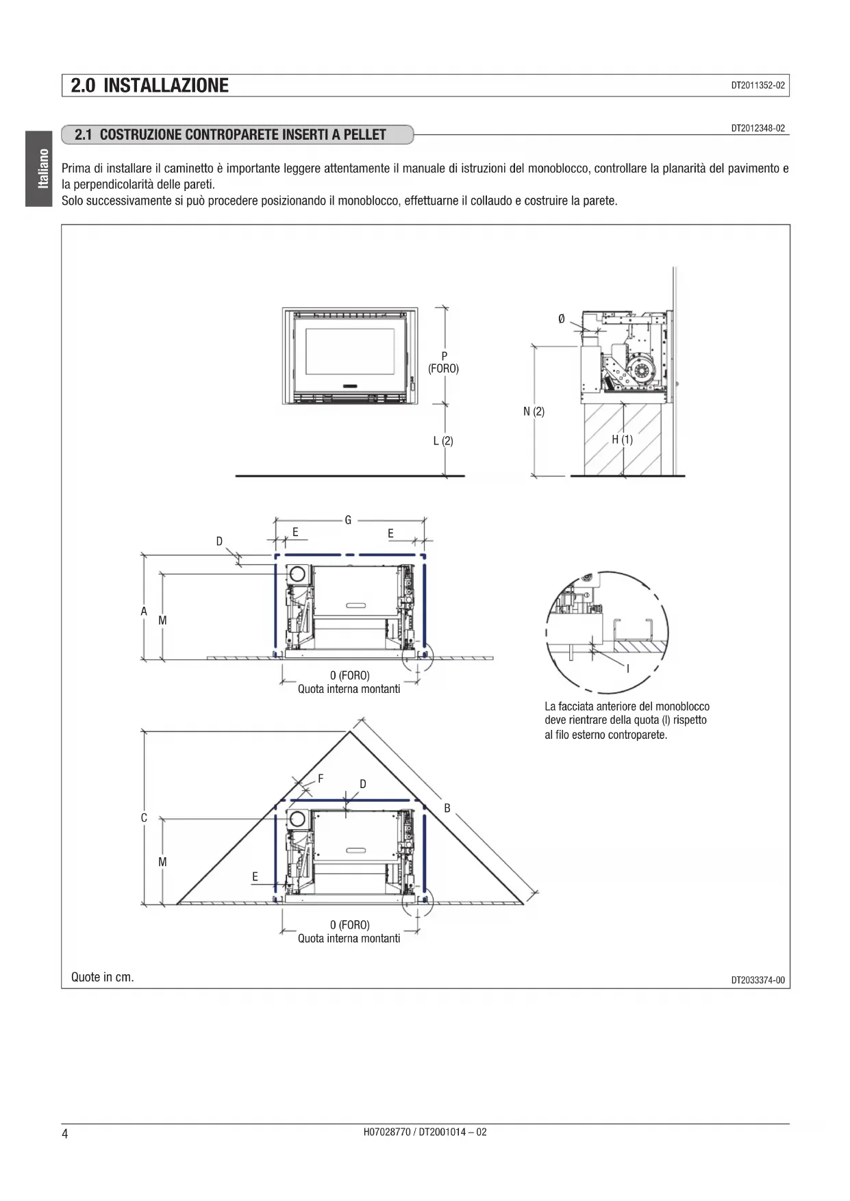
1.0 DIMENSIONI


DT2031913-01
| PROfilo COPRIBORDO FRONTALE A B C D E F | ||||||
| IP 68/49 - SCP 7 70 50 / 56* 72,4 52,4 / 58,4* 7 | 8 0,8 | |||||
| IP 78/58 - SCP 9 80 59 / 65* 82,4 61,4 / 67,4* 7 | 8 0,8 | |||||
| IP 78/68 90 69 / 75* 82,4 71,4 / 77,4* 7,8 0,8 |
Misure in cm.
^* = con Kit Cassetto Pellet (optional).
A xB = Dimensioni interne bocca profilo copribordo.
CxDxE=Dimensioni esterne max profilo copribordo.
F = Sporgenza del profilo alla controparete.
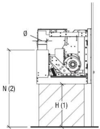
2.1 COSTRUZIONE CONTROPARETE INSERTI A PELLET
DT2012348-02
Prima di installare il caminetto è importante leggere attendamente il manuale di istruzioni del monoblocco, controllare la planarità del pavimento e la perpendicularità delle pareti.
Solo successivement siouldoprocederposizionandoilmonoblocco,effettuarne collaudo ecostruire laparete.




La facciata anteriore del monoblocco deve rientare della quota (I) rispetto al filo esterno controparete.

Quote in cm.
DT2033374-00
Si consiglia di eseguire il collaudo del monoblocco prima di costruire la contraporete e installare il rivestimento.
Non bloccare il monoblocco in alcun modo per consentire le normali dilatazioni durante il funzionamento.
Per la posa è necessario seguire scrupolosamente leindicazioni e atteneri alle misure seguenti,nonché a quale indicate nel libretto istruzioni del monoblocco.
Al fine di garantire un minimo di sicurezza della struttura, nella realizzazione della parete in cartongesso è buona norma impiegare dei montanti (larghezza minima 5 cm) in corrispondenza dei punti di fissaggio del rivestimento alla parete.
Si consiglia di realizare una Buona coibentazione utilizzando materiali, spessori e distanse a norma secondo quanto indicato nel libretto istruzioni del monoblocco.
Le distance riportate sono le minime utili per l'installazione su pareti non infiammabili. Con pareti infiammabili seguire le indicazioni riportate sul libretto uso e manutenzione del monoblocco al paragrafo "DISTANZE MINIME DI SICUREZZA".
| Modello | Pareti NON INFIAMMBILI Scarico | Quota | ||||||||||||||
| ABCDEH | (1) | IPOL | (2) | ØMN | (2) | |||||||||||
| IP 68/49 SCP 7 | 55 12 | 9 91 5 | 5 78 38 | 1 | 50,7 | 71 | 37,8 | 8 45 | 68 | cm | ||||||
| 56,7(3) | ||||||||||||||||
| IP 78/58 SCP 9 | 61 14 | 4 10 | 2 5 5 5 | 88 38 1 | 59,7 | 81 | 37,8 | 8 | 51,5 | 69,5 | cm | |||||
| 65,7(3) | ||||||||||||||||
| IP 78/68 | 61 | 144 | 102 | 5 | 5 | 5 | 88 | 38 | 1 | 69,7 | 81 | 37,8 | 8 | 51,5 | 69,5 | cm |
| 75,7(3) | ||||||||||||||||
(1) La quota H definisce l'altezza del sotto basamento da terra.
(2) Quote vincolate ad H.
(3) Versione con Kit Cassetto Pellet (optional).
I é possible Changei e l'altezza da terra della cornice sommando o sutraendo ai valori "H", "L" e "N" la differenza richiesta/desiderata.
2.2 MONTAGGIO COPRIBORDO
DT2011347-00
Verificare il corretto funzionamento del monoblocco e ultimata la controparete come indicate nel paragrafo "COSTRUZIONE CONTROPARETE", procedere come segue:
Non fissare al monoblocco in nessun modo parti del rivestimento.
念 E molto importante controllare la regolarità della contraporete in particolare per ciò che concerne la sua perpendicularità e planarità.
Posizione are il profilo copribordo e verificare il centraggio con il monoblocco e il foro della controparete. Se necessario compensare il profilo copribordo per centrarsi in altezza.
Posizionare il profilo copribordo orientato con il lembo sul lato superiore, come raffigurato nel dettaglio della figura.
Rimuovere il profilo copribordo. Tinteggiare e finire la controparete.
Mettere alcuni punti di silicone sul profilo copribordo e fissarlo alla controparete.
Attenzione alla quantità di silicone usata, evitare la fuoriuscita dal bordo esterno del profilo copribordo.

IMPORTANT INFORMATION
DT2010002-02
ManualeFacile