SCP 9 - Calefacción Superior - Manual de uso y guía de instrucciones gratis
Encuentra gratis el manual del aparato SCP 9 Superior en formato PDF.
| Tipo de dispositivo | Estufa de pellets |
| Función | Marco de acabado para inserto |
| Material | Acero o metal |
| Color | No especificado |
| Dimensiones | No especificadas |
| Instalación | Fácil, para instalador |
| Compatibilidad | Para insertos de pellets |
| Peso | No especificado |
| Resistencia al calor | Sí, adecuado para estufas |
| Acabado | Superficie lisa |
| Uso | Interior |
| Mantenimiento | Fácil de limpiar |
| Accesorios incluidos | No especificado |
| Garantía | No especificada |
| Normas | Conforme a estándares |
Preguntas de los usuarios sobre SCP 9 Superior
0 pregunta sobre este aparato. Responde a las que conoces o haz la tuya.
Hacer una nueva pregunta sobre este aparato
Descarga las instrucciones para tu Calefacción en formato PDF gratis! Encuentra tus instrucciones SCP 9 - Superior y toma tu dispositivo electrónico nuevamente en la mano. En esta página están publicados todos los documentos necesarios para el uso de su dispositivo. SCP 9 de la marca Superior.
MANUAL DE USUARIO SCP 9 Superior
Perfil cubre-borde para inserts de pellets
INSTRUCCIONES PARA EL INSTALLADOR
- Este manual ha sido redactado por el fabricante y forma parte integrente del producto. La información que incluye va dirigida al comprador y a todas aquellas personas que, por diversos motivos, participan en la instalación, el uso y el mantenimiento del producto.
- Lea detenidamente las instrucciones y la informacion技术水平 que contiene este manual antes de comendar la instalacion, el uso y cualquier intervencion en el producto.
-
El cuidadoso做生意 y el análisis de riesgos技术水平 a cabo por el fabricante han permitido tener un producto seguro; aun asi, antes de realizar cualquier operacion se deben seguir estricamente las instrucciones facultadas en el singular documento, que deben estar siempre disponible.
-
Compruebe que el suejo sobre el que se va a instalar el producto seaperfectamente llano.
- El montaje del revestimiento debe ser realizado por dos personas.
- Las imagenes containidas en este manual tienen caracter explicativo y en occasionsuenorepresentar el producto de manera exacta.
- Para comprar la compatibiliad entre interiores, revestimientos y accesos, consulte la lista dePRECOS.
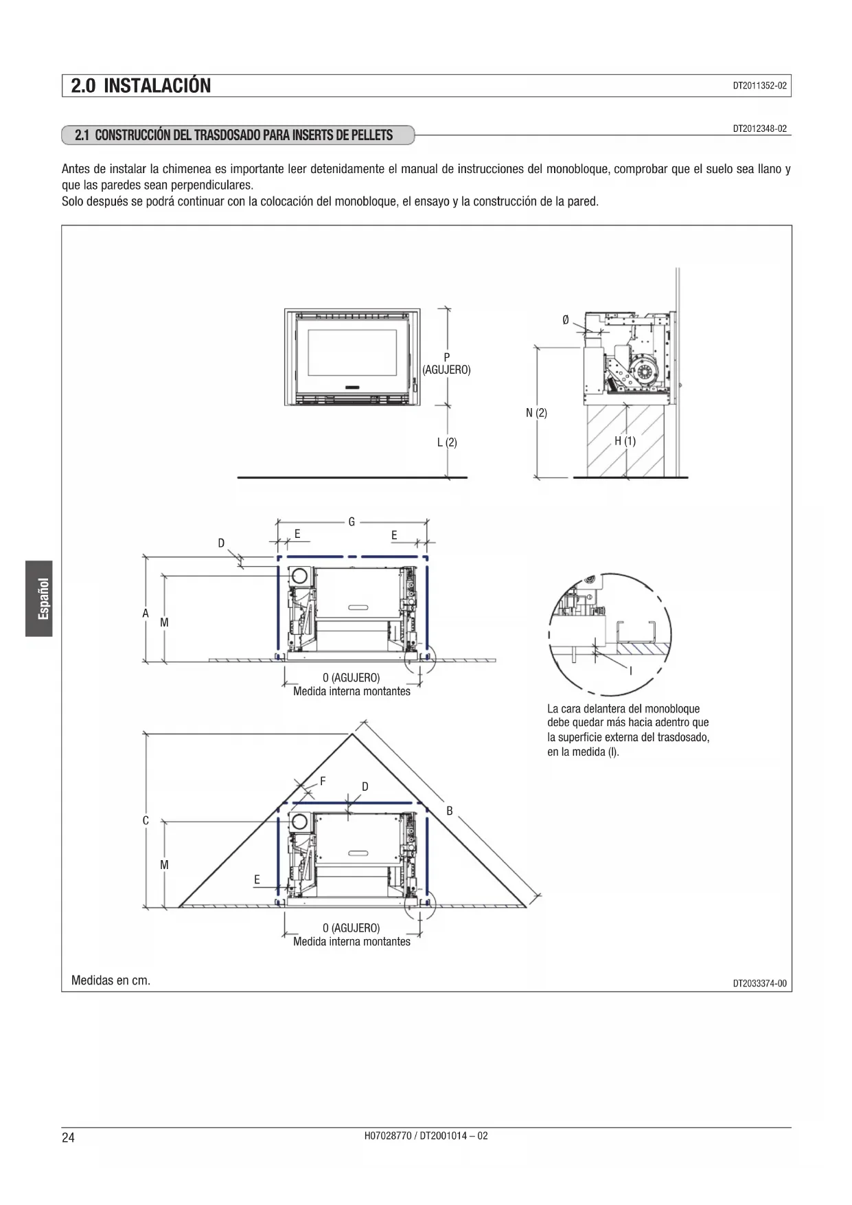
1.0 DIMENSIONES


DT2031913-01
| PERFIL CUBRE-BORDE FRONTAL A B C D E F | ||||||
| IP 68/49 - SCP 7 70 50 / 56* 72.4 52,4 / 58,4* 7 | 8 0.8 | |||||
| IP 78/58 - SCP 9 80 59 / 65* 82.4 61,4 / 67,4* 7 | 8 0.8 | |||||
| IP 78/68 90 69 / 75* 82.4 71,4 / 77,4* 7.8 0.8 |
Medidas en cm.
^ = con Kit de Cajon de Pellets (optional).
A× B = Dimensiones internas de la boca del perfil cubre-borde.
CxDxE=Dimensiones externas max.del perfil cubre-borde.
F = Saliente del perfil disrespecto al trasdosado.
2.0 INSTALLACION
DT2011352-02
2.1 CONSTRUCCION DEL TRASDOSADO PARA INSERTS DE PELLETS
DT2012348-02
Antes de instalar la chimenea es importante leer detenidamente el manual de instrucciones del monobloque, comprobar que el sueo sea llano y que las paredes Sean perpendiculars.
Solo afterwards se podra continuar con la colocacion del monobloque, el ensayo y la construccion de la pared.




La cara delantera del monobloque debe quedar mas hacia adentro que la superficie externa del trasdosado, en la medida (I).

Medidas en cm.
DT2033374-00
Se recomienda realizar el ensayo del monobloque antes de construir el trasdosado e instalar el revestimiento.
No fije el monobloque de ningún modo para permitir que se dilate normalmente durante el funciona.
Para la colocacion deben seguirse estrectamente lasindicaciones y respetarse las medidas siguientes,asi como las indicadas en el manual de instrucciones del monobloque.
Para garantizar una minima seguidad de la estructura, al realizar la pared de carton-yeso conviene utiliser montantes (ancho minimo de 5 cm) en los+puestos de fijacion del revestimiento a la pared.
Se recomienda realizar un buen aislamento utilizing materiales, grosses y distancias correctos de acuerdo con las indicaciones del manual de instrucciones del monobloque.
Las distancias indicadas son las minimas necessarias para la instalacion en paredes no inflamables. En caso de paredes inflamables, siga lasindicaciones del manual de uso ymantimiento del monobloque, en el apartado "DISTANCIAS MINIMAS DE SEGURIDAD".
| Modelo | Paredes NO INFLAMABLES Salida | Medida | |||||||||||||||
| ABCDEH | (1) | IPOL | (2) | ØMN | (2) | ||||||||||||
| IP 68/49 SCP 7 | 55 12 | 9 91 | 5 5 5 | 78 | 38 | 1 | 50.7 | 71 | 37.8 | 8 | 45 | 68 | cm | ||||
| 56,7(3) | |||||||||||||||||
| IP 78/58 SCP 9 | 61 14 | 4 | 10 | 2 5 5 5 | 88 | 38 | 1 | 59.7 | 81 | 37.8 | 8 | 51.5 | 69.5 | cm | |||
| 65,7(3) | |||||||||||||||||
| IP 78/68 | 61 | 144 | 102 | 5 | 5 | 5 | 88 | 38 | 1 | 69.7 | 81 | 37.8 | 8 | 51.5 | 69.5 | cm | |
| 75,7(3) | |||||||||||||||||
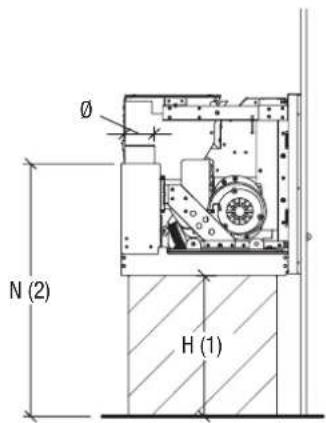
(1) La medida H define la alta de la cara inferior de la base desde el suejo.
(2) Medidas vinculadas a H.
(3) Version con Kit de Cajón de Pellets (optional).
Se pueda modifier la alta desde el suelo del marco sumando o restando a los values ^ "L" y N"la diferencia necessaria/ deseada.
2.2 MONTAJE DEL CUBRE-BORDE
DT2011347-00
Compruebe que el monobloque funciona correctamente y, una vezultimate do trasdosado de la manera indicada en el apartado "CONSTRUCCION DEL TRASDOSADO", siga these pasos:
No fije partes del revestimiento al monobloque de ningún modo.
Es muy importante comprobar que el trasdosado sea correcto, especialmente en lo que se refiere a su perpendicularidad y planeidad.
Coloque el perfil cubre-borde y compruebe que quede centrado respecto al monobloque y al hueco del trasdosado. En caso necessario, compensate el perfil cubre-borde para centrarlo en alteura.
Cologne el perfil cubre-borde orientado con reborde en el lado superior, tal y como se muestra en el detalle de la figura.
Quite el perfil cubre-borde. Pinte y remate el trasdosado.
Aplique algunos+puntos de silicona en el perfil cubre-borde y fijelo al trasdosado.
Tenga cuidado con lacantidad de siliconautilizada yevite que salga por el borde exterior del perfil cubre-borde.

Prezado CLIENTE,
ManualFácil