HmIPMIOB - Casa intelligente Homematic IP - Manuale utente e istruzioni gratuiti
Trova gratuitamente il manuale del dispositivo HmIPMIOB Homematic IP in formato PDF.
Domande frequenti - HmIPMIOB Homematic IP
Domande degli utenti su HmIPMIOB Homematic IP
0 domanda su questo apparecchio. Rispondi a quelle che conosci o fai la tua.
Fai una nuova domanda su questo apparecchio
Scarica le istruzioni per il tuo Casa intelligente in formato PDF gratuitamente! Trova il tuo manuale HmIPMIOB - Homematic IP e riprendi in mano il tuo dispositivo elettronico. In questa pagina sono pubblicati tutti i documenti necessari per l'utilizzo del tuo dispositivo. HmIPMIOB del marchio Homematic IP.
MANUALE UTENTE HmIPMIOB Homematic IP
Istruzioni per l'installazione e l'uso

Duty cycle: < 1% per h/< 10% per h
Temperatura ambiente:
Dimensiones (An x Al x P):
Peso:
1 Fornitura 67
2 Indicazioni su queste istruzioni 67
3 Indicazioni di pericolo 67
4 Funzioni e vista d'insieme dell'apparecchio 68
5 Informazioni generali sulsystema 69
6 Montaggio 70
7 Messa in funzione 70
7.1 Avverenze per l'installazione 70
7.2 Installazione 72
7.3 Collegamenti possibili 72
7.3.1 Collegamento alla caldaia 72
7.3.2 Collegamento al deumidificatore 72
7.3.3 Collegamento del pilota di changeover 73
7.3.4 Collegamento alla pompa 73
7.3.5 Collegamento del sensore di umidità 73
7.3.6 Collegamento del segnale di changeover esterno 73
7.3.7 Collegamento del temporizzatore esterno 74
7.3.8 Collegamento del limitatore di temperatura 74
7.4Accoppiamento 74
7.4.1 Inizializzazione con l'attuatore per riscaldamento a pavimento Homematic IP 74
7.4.2 Accoppiamento con Homematic IP Access Point 75
8 Risoluzione dei guasti 76
8.1 Comando non confirmato 76
8.2 Duty Cycle 76
8.3 Codici di erre e sequenze di lampeggio 77
9 Ripristino delle impostazioni di fabbrica 78
10 Manutenzione e pulizia. 78
11 Informazioni generali sul funzionamento via radio 78
12 Smaltimento 79
13 Dati Tecnici 80
Documentazione © 2016 eQ-3 AG, Germania
Tutti i diritti riservati. Senza l'approvazione scritta del produttore è vietata la riproduzione di quello manuale o di sue parti in qualsiasi forma o la sua duplicazione o modifica con l'utilizzo di processi elettronici, meccanici o chimici.
Questo manuale potrebbe presentare difetti dovuti alla tecnica di stampa o erre di stampa. Le informazioni qui contenute sono comunique costamente verificate e le eventuali correzioni sono rese note nell'edizione successiva. Si declina qualiasi responsabilità per erre di tipo techniciano o di stampa e per le loro conseguenze.
Si riconoscono tutti i marchi depositati e i diritti di proprietà.
Non si escludono modifiche apportate alla preavviso conformmente agli sviluppi tecnici.
150305 (web) | Versione 1.5 (07/2024)
1 Fornitura
1x Multi IO Box
4xViti 4,0 x 40 mm
4x Tasselli 6 mm
1x Istruzioni per l'uso
2 Indicazioni su queste istruzioni
Leggere attendamente queste istruzioni prima di mettere in funzione i dispositivi Homematic IP. Conservare questo manuale per poterlo consultare ancche in futuro! Se l'utilizzo dell'apparecchio viene affidavit ad altre persone, conse-gnare ancche queste istruzioni per l'uso.
Simboliutilizzati:

Attenzione! Nei punti con quello significolo viene segnalato un pericolo.

Nota. Questo paragrafo contiene autre informazioni importanti!
3 Indicazioni di pericolò

Non aprire mai l'apparecchio.
Questo apparecchio non contiene parti che possano essere riparate dall'utente. In caso di guasto fare controllinge l'apparecchio da un technique specializzato.

Per ragioni di sicurezza o di omologazione (CE) non sono amasse modifiche costruttive o di alto genere del prodotto.

Utilizzare l'apparecchio solo in ambienti asciutti e privi di polvere, non esporlo a umidità, vibrazioni,
radiazioni continu del sole/di
altre fonti di calore, al freddo e a
sollecitazioni meccaniche.

Questo apparecchio non è un giocattolo! Non consentire ai bambini di giocare con l'apparecchio. Non lasciare incustodito il materiale dell'imballaggio. Le pellicole e i sacchetti di plastica, le parti di polistirolo, ecc. possono essere fonte di pericolo per i bambini.

L'azienda declina qualsiasi responsabilità per danni a cose o persone causati da un utilizzo improprio o alla mancata osservanza delleindicazioni di pericolo. In casi simili decade il diritto alla garanzia! Si declina qualsiasi responsabilità per danni indiretti!

Utilizzato quello apparetcchio除去 per installazioni in struttura fisse. Questo apparetcchio deve essere fissato saldamente all'interno di un'installazione fissa.

L'attuatore si installa assieme all'impianto dell'edificio. In fase di progettazione e installmentazione rispetto are normative pertinenti e le direttive vigenti sulippo. I lavori nella rete da 230 V devono essere eseguiti soltanto da elettriciisti specializzati (come da normativa VDE 0100). In tal caso rispetto arenorme vigenti in materia di prevenzione degli infortuni. Per evitare scosse elettriche sull'apparecchio, disattivare la tensione di rete (disinserire il fusibile automatico). La mancata osservanza delle avvertenze per
l'installazione cui cause incendi o altri pericoli.

Quando si esegue l'allacciamento ai morsetti dell'apparecchio tenere presenti i cavi ammessi e la loro sezione.

Prima del collegamento di un'utenzafareattenzioneai dati tecnici,in particolare alla potenza diallacciamento massima ammessadel dispositivo e al tipo di utenzada collegare.Tutte leindicazioni di carico siriferiscono a carichiohmici.Caricare l'attuatore solofino al limite della capacitàindicato.

L'apparecchio non è idoneo all'attivazione.

Un sovraccarico può causare la distruzione del dispositivo, provocare un incendio o generare scosse elettriche.

Prima di allacciare l'attuatore togliere il fusabile nella scatola dei fusibili.

Attenersi sempre alle disposizioni in materia di installatione nei sistemi di distribuzione (DIN VDE 0100-410).

La tensione di controllo dell'uscita da 0-10 V è isolata elettricamente dal potenziale di rete. Tuttavia, non si tratta di una bassissima tensione di sicurezza (SELV). Questo va tenuto in considerazione durante la posa dei cavi, l'infallazione e il collegamento.

L'apparecchio è adatto solo all'impiego in ambienti a uso abitativo o analoghi.

Qualsiasi impiego diverso da quello descritto nelle presenti istruzioni per l'uso non è conforme alle disposizioni e comporta l'escludione di responsabilità e la perdita dei diritti di garanzia.
4 Funzioni e vista d'insieme dell'apparecchio
La Homematic IP Multi IO Box è l'unità di controllo centrale per la commuta-zione di pompè di circolazione, caldaie e circolatori. Il dispositiivo consente di controllare comodamente e in base alle proprie esigenze la temperatura dell'ambiente o dell'acqua utilizzando un'app per smartphone.
La Multi IO Box può essere utilizzata per commutare l'impiano di riscaldamento alla modalità di riscaldamento a quella di raffreddamento, al fine di abbassare la temperature ambientetramite il riscaldamento a pavimento. L'impostazione del limite di umidità e temperatura consente di prevenir efficacemente la formazione di muffa dovuta alla condensa sui tubi e il surriscaldamento dell'impiano di riscaldamento.
Il disposativo può essere montato con le viti fornite in dotazione o semiclassicalmente, con l'adattatore per guide disponibile come optional (HmIP-DRA), su una guida DIN tipo omega.
Vista d'insieme dell'apparecchio:
(A) Tasto di sistema (tasto di accoppiamento e LED)
(B) Coperchio
(C) Morsetti di collegamento per PE (conduttore di terra)
(D) Morsetti di collegamento per L (conduttore esterno)
(E Morsetti di collegamento per N (conduttore neutro)
(F) Morsetto di collegamento 4 (ad es. per il collegamento di una caldaia)
(G) Morsetto di collegamento 5 (morsetto di commutazione, ad es. per il collegamento di una pompa di circolazione)
(H) Lampade LED per la visualizzazione dei collegamenti
(I) Morsetti di collegamento per IN1/ IN2 (modalità riscaldamento, raffreddamento o eco, limitatore di temperatura o umidità)
(J) Morsetti di collegamento per AOUT (uscita 0-10 V, ad es. per il controlleda della ventilazione, disponibile solo in combinazione con la centralina CCU3)


Abbildung 14
5 Informazioni generali sulsystema
Questo apparecchio fa parte del sistema Homematic IP Smart-Home e comunica tramite il protocollo radio Homematic IP. Tutti gli apparecchi delsystema possono essere configurati comodamente e singolarmente dallo smartphonetramite l'app Homematic IP.Per conoscere la gamma di funzioni che si cui uscire all'interno delsystema Homematic IP abbinato ad altri componenti, consultare il Manuale dell'utente di Homematic IP.Tuttla la documentazione tecnica e gli aggiornamenti sono sempre disponibili su www.homematic-ip.com.
6 Montaggio
La Multi IO Box può essere montata in qualsiasi punto della parete utilizzando le viti e i tasselli in dotazione.

In combinazione con l'adattatore per guide (HmIP-DRA), disponibile come optional, è possibile montare la Multi IO Box su una guida DIN tipo omega. Per ulteriori informazioni in merito fare riferimento alle istruzioni per l'uso dell'adattatore per guide.
Per montare la Multi IO Box con le viti, procedere come segue:
- Selezionare un punto di installatione adeguato, in prossimità dell'impianto di riscaldamento.

Accertarsi che nel punto desiderato non siano presenti tubazioni all'interno della parete!
- Segnare con una matita quattro fori sulla parete in corrispondenza dei fori per le viti della Multi IO Box.

Figura 1
- Praticare i fori precedentamente segnati utilizzando una punta per trapano adeguata di 6 mm di dia-metro.
-
Montare la Multi IO Box inserendo i tasselli e avvitando le viti fornite.
-
Praticare i fori precedentamente segnati utilizzando una punta per trapano adeguata di 6 mm di dia-metro.
- Montare il regolatore per riscaldamento a pavimento avvitando i tasselli e le viti fornite in dotazione.
7 Messa in funzione
7.1 Avverenze per l'installazione

Leggere interamente quello paragrafo prima di iniziare la procedura di inizializzazione.

Avviso! L'installazione deve essere eseguita solo da personne in possesso di conoscenze ed esperienze elettrotecniche pertinenti!*
Un'installazione eseguita in modo non appropriato mette a rischio
- la proprioia vita;
- la vita delle persone che utilizzano l'impianto elettrico.
In caso di installmente eseguita in modo non appropriato si rischiano gravi danni materiali, ad es. a causa di un incendio. In caso di danni a persone o cose si incorre nel rischio di responsabilità personale.
Rivolgersi a un elettrotecnico!
*Conoscense tecniche necessarie per l'infallazione:
Per l'installazione sono necessarie in particolare le seguenti conoscenze tecniche:
- Le "5 regole di sicurezza" da aplicare: togliere la tensione; assicu
rarsi che non possa essere riattivata; accertare l'assenza di tensione; provvedere alla messa a terra e in cortocircuito; coprire o isolare le parti che si trovano sotto tensione;
- selezionare l'utensile adatto, gli appar-. parecchi di misurazione ed eventuali dotazioni di protezione individuale;
- eseguire un'analisi dei risultati delle misurazioni;
- selezionare il materiale per l'installazione elettrica in modo da garantire le condizioni di disattivazione;
- gradi di protezione IP;
- montare il materiale per l'installazione elettrica;
- tipo di rete di alimentazione (sistema TN,istema IT,istema TT) e consequencesi condizioni di allaccio (classica messa a terra del neutro, messa a terra di protezione, misure supplementari necessarie, ecc.).

Per montare la Multi IO Box in un quadro di distribuzione elettrica, installare l'apparecchio conformmente alle normative VDE 0603, DIN 43871 (sottoquadro di distribuzione di bassa tensione), DIN 18015-x. In tal caso eseguire il montaggio su una guida di supporto (guida DIN tipo omega) comeindicato nella norma EN 50022. L'installazione e il cablaggio devono tessere eseguiti conformmente alla normativa VDE 0100 (VDE 0100-410,VDE 0100- 510 etc.). Tenere presente quanto prescritto nelle disposizioni tecniche sui collegamenti definite dal fornitore di energia.

Il circuito elettrico previsto per l'allaccio del dispositivo e del carico deve essere messo in sicurezza con un interrottore magnetotermico conforme alla norma EN60898-1 (caratteristica di intervento di tipo B o C, corrente nominale max.16 A, potere di interruzione min. 6 kA, classe di limitazione dell'energia 3). è obblatorio rispetto le disposizioni in materia di INSTALLazione indicate nelle normative VDE 0100 o HD384 o IEC 60364. L'interruttore magnetotermico deve essere di facile accesso per l'utente e deve essere contrassegnato come sezionatore per il dispositivo.

Durante l'installazione rispetto are indicazioni di pericolo come da sezione (v. "3 Indicazioni di pericololo" a pag. 67).
Misure ammesses per la sezione dei cavi di collegamento alle Multi IO Box:
| Cavo rigido Cavo flèssibile con e senza guai- na fili |
| 0,75 – 2,5 mm² 0,75 – 2,5 mm² |
I diametri dei cavi ammessi per i passacavi sono:
| Morsetti 1 – 5 Morsetto 6 |
| 8 – 11 mm 5 – 8 mm |
7.2 Installazione

Per facilitare l'installazione, è possibile far passare i caviattraverso i passacavi dopo aver rimioso le aperture.
Per installare la Multi IO Box, procedere nel modo seguente:
- Aprire il coperchio (B) allentando le due viti inferiori con un cacciavite adatto e rimuovendo il coperchio

Figura 2
- Collegare il conduttore di terra al morsetto di collegamento per PE (C).
- Collegare il conduttore esterno al morsetto di collegamento per L (D).
- Collegare il conduttore neutro al morsetto di collegamento per N (E).
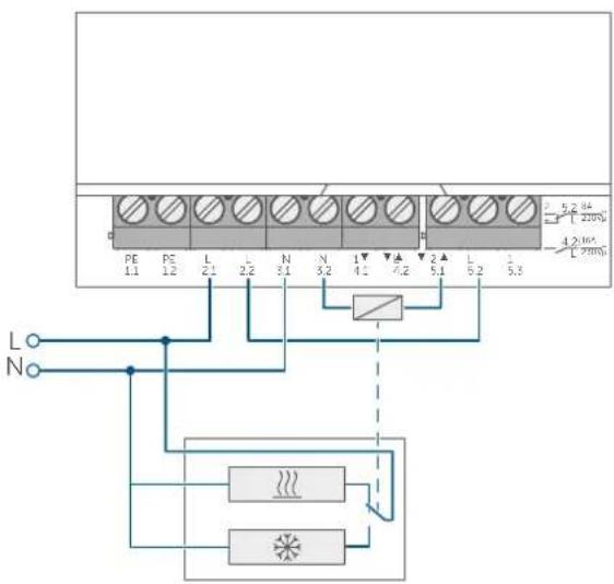
- Collegare, ad esempio, una caldaia al morsetto di collegamento 4 (F) o una pompa di circolazione al morsetto di collegamento 5 (G).
- Ampliare l'installazione in base alle condizioni dell'impianto e alle proprie esigenze (ad es. con un sistema di controllo della ventilazione). Per maggiori informazioni sui collegamenti possibili, consultare il paragrafo (v. "7.3 Collegamenti possibili" a pag. 72).
Richiudere il coperchio facendo scorrere le linguette di arresto del coperchio nelle apposite aperture e serrando le viti.
7.3 Collegamenti possibili
7.3.1 Collegamento alla caldaia

Figura 3
7.3.2 Collegamento al deumidificatore

Questo opzione di collegamento\ può essere realizzata solo in com- binazione con un Homematic IP Access Point o una centralina Homematic IPCCU3.

Figura 4
7.3.3 Collegamento del pilota di changeover

Dopo l'esito positivo della corsa di adattamento, agli zona di riscaldamento viene visualizzata sul display in base alla posizione della valvola.

Figura 5
7.3.4 Collegamento alla pompa

Figura 6
7.3.5 Collegamento del sensore di umidità

Abbildung 15
7.3.6 Collegamento del segnale di changeover esterno

Abbildung 16
7.3.7 Collegamento del temporizzatore esterno

Questo opzione di collegamento
puo essere realizzata solo in com
binazione con un Homematic IP
Access Point o una centralina
Homematic CCU3.

Figura 7
7.3.8 Collegamento del limitatore di temperatura

Questa opzione di collegamento\ può essere realizzata solo in combinazione con un Homematic IP Access Point o una centralina Homematic CCU3.

Figura 8
7.4 Accoppiamento

Leggere interamente quello paragrafo prima di iniziare la procedura di inizializzazione.
Per prima casa eseguire l'accoppiamento della Multi IO Box, che ci potrè essere integrata nel sistema e comunicare con altri apparecchi.
La Multi IO Box può essere inizializzata direttamente con l'attuatore per riscaldamento a pavimento Homematic IP o con l'Access Point Homematic IP. La configurazione viene eseguitatramite l'app Homematic IP durante l'inizializzazione dell'Access Point.
7.4.1 Inizializzazione con l'attuatore per riscaldamento a pavimento Homematic IP

Durante l'opération mantenere una distanza minima di 50 cm fra gli appearecchi.

È possibile interrompere il procedimento di accoppiamento premendo di nuovo brevamente il tasto di sistema (A). L'opération viene confermata dall'accensione del LED rosso sull'apparecchio.

Se si desidera integrare la Multi IO Box in un sistema esistente, è necessario impostare prima l'attuatore per riscaldamento a pavimento in modalità di initiazizzazione e poi la Multi IO Box.
Per inizializzare la Multi IO Box con un attuatore per riscaldamento a pavimento Homematic IP, è necessario portare in modalità di Inizializzazione entrambi gli appearecchi da collegare.
In tal caso procedere nel modo seguente:
- Premere il tasting di sistema (A) della Multi IO Box per almeno 4 secondi per attivare la modalità di inizializzazione. Il LED dell'apparecchio lampeggia con luce arancione.

Figura 9
- Attivare la modalità di inizializzazione sull'attuatore per riscaldamento. Premere brevamente il tasto di selezione finché i LED di tutti i canali non si accendono in verde
- Tenere premuto il tasto di sistema dell'attuatore di riscaldamento a pavimento per 4 secondi, finché il LED non inizia a lampeggiare veloc-e cimento con luce arancione.

Figura 10
Il LED (A) verde lampeggiante segnala che l'accoppiamento è andato a buon fine. Se non è andato a buon fine, il LED (A) diventa rosso. Ripetere la procedura.
i Se non si esegue l'accoppiamento, la modalità Accoppiamento viene interrotta automaticamente dopo 3 minuti.
7.4.2 Accoppiamento con Homematic IP Access Point
i Questo dispositivo cui esse accoppiato con l'Homematic IP Access Point o con la centralina CCU3. Ulteriori informazioni a riguardo sono fornite nel Manuale dell'utente di Homematic IP (disponibile nella sezione Download all'indirizzo www.homematic-ip.com).
i Per prima casa configurare l'Access Point Homematic IP tramite l'app Homematic IP in modo da poter utilizzato altri dispositivi Homematic IP nelsystema. Informazioni dettagliate sono riportate nelle istruzioni per l'uso dell'Access Point.
Per accoppiare la Multi IO Box all'Access Point, procedere come indicato di seguito:
- Aprire l'app Homematic IP sullo smartphone.
- Nel menu selezionare la voce "Inizi-zializzazione dell'apparecchio".
- Tenere premuto brevamente il tasto diSYSTEMA (A) finché il LED non inizia a lampeggiare lentamente con luce arancione ( vedere figura. La modalità Accoppiamento per il canale selezionato resta attiva per 3 minuti.

La modalità Accoppiamento può essere avviata per altri 3 minuti premendo brevamente il tasting di sistema (A) ( v. figura).
L'apparecchio viene visualizzato automaticamente nell'app Homematic IP.
- Per confermare, digitare nell'app le ultime quattro cifre del numero dell'apparecchio (SGTIN) oppure eseguire una scansione del codice QR dell'apparecchio. Il numero dell'apparecchio è riportato nella fornitura o direttamente sull'apparecchio.
- Attendere che la procedura di initiazizzazione sia conclusa.
- A conferma dell'avvenuta iniziazizione il LED invia una luce verde. L'apparecchio è primo per l'uso.
- Se si accende la luce del LED rossa, riprovare la procedura.
- Selezionare la soluzione desiderata per il proprio dispositivo.
- Nell'app assegnare un nome all'apparecchio e associarlo a un ambiente.
8 Risoluzione dei guasti
8.1 Comando non confermato
Se un dato noniene confirmato da almeno un ricevitore, al termine della trasmissione difettosa si accende la luce rossa del LED (A). La causa della trasmissione difettosa potrebbe essere un disturbo radio (v. "11 Informazioni generali sul funzionamento via radio" a pag. 78). La trasmissione difettosa può essere dovuta a:
- ricevitore non raggiungibile,
- ricevitore che non può eseguire un commando (interruzione di carico, blocco meccanico, ecc.) oppure
- ricevitore difettoso.
8.2 Duty Cycle
Il ciclo di lavoro descrive una limitazione regolamentiata alla legge del tempo di trasmissione degli apparecchi nella gamma di 868 MHz. Lo scopo di questa disciplina è garantire il funzionamento di tutti gli apparecchi nella gamma 868 MHz.
Nel Campo di frequenza 868 MHz da moi utilizzato il tempo massimo di trasmissione di agli apparecchio ammonta all'1% di un'ora (quindi 36 secondi in un'ora). Quando raggiungono il limite dell'1% gli apparecchi non possono più trasmettere finché non sare scaduto quello limite di tempo. Conformmente a这一点a direttiva, gli apparecchi Homematic IP sono sviluppati e prodotti nell'assoluto rispetto delle norme.
Nel normale funzionamento di solito non si raggiunge il duty cycle. Tuttavia, quello potrebbe accadere in casi singoli alla messa in esercizio o alla prima installatione di un sistema a causa di processi di initiazzzazione ripetuti o ad alta intensità radio. Un superamento del limite del ciclo di lavoro viene visualizzato mediante un lampeggio lungo del LED rosso per tre volte e più manifestarsi con una funzione miglioramente assente dell'apparecchio. Trascorso un breve tempo (max. 1 ora), il funzionamento dell'apparecchio viene ripristinato.
8.3 Codici di erre e sequenze di lampeggio
| Codice di segnalazione Significato Soluzione | ||
| Luce arancione lampeggiante per breve tempo | Trasmissione radio/tentativo d'invio/trasmissionedati | Attendere che la trasmisure sa concluda. |
| Luce verde accesa a lungo 1 volta | Procedura confermata | Si più procedere all'utilità. |
| Luce rossa accesa a lungo 1 volta | Procedura non riuscita o raggiunto il limite del duty cycle | Riprovarare (v. "8.1 Comando non confermato" a pag. 76) o (v. "8.2 Duty Cycle" a pag. 76). |
| Luce arancione lampeggiante per breve tempo (ogni 10 s) | Modalità Inizializzazione attiva (accoppiamento con l'Access Point) | Digitare le ultime quattro cîfre del numero di serieditell'apparecchio per confermare (v. "7.4 Accoppiamento" a pag. 74). |
| Luce arancione che lampeggia velocamente | Modalità Inizializzazione di entrambi i partner di collegamento attiva (accoppiamento diretto) | Attendere la conferma del LED del dispositivo (v. "8.3 Codici di erre e sequenze di lampeggio" a pag. 77). |
| Luce rossa accesa a lungo 1 volta | Procedura non riuscita o raggiunto il limite del duty cycle | Riprovarare (v. "8.1 Comando non confermato" a pag. 76) o (v. "8.2 Duty Cycle" a pag. 76). |
| Luce rossa lampeggiante a lungo 6 volte | Dispositivo difettoso | Prestare attentione alleindicazioni nell'apporvolgersi a un rivenditore specializzato. |
| Luce arancione 1 volta e luce verde 1 volta | Visualizzazione di prova | Dopo che la visualizzazione di prova si è spenta, è possibile proseguire. |
9 Ripristino delle impostazioni di fabbrica

Le impostazioni di fabbrica dell'apparecchio possono essere ripristinate. In quello caso tutte le impostazioni andranno perdute.
Per ripristinare le impostazioni di fabbrica della Multi IO Box procedere nel modo seguente:
- Tenere premuto per 4 s il tasting di该案 (A) finché il LED (A) non inizia a lampeggiare velocamente con luce arancione ( v. figura).
Rilasciare quindi il tasting. - Premere di nuovo il tasto di sistema per 4 secondi finché non si accende il LED verde.
- Rilasciare di nuovo il tasto di sistema per conclusere il ripristino delle impostazioni di fabbrica.
L'apparecchio esegue un riavvio.
10 Manutenzione e pulizia

Questo apparecchio non richiede manutenzione. Per le riparazioni rivolgersi a un technician specializzato.
Pulire l'apparecchio con un panno morbido, pulito, asciutto e privo di pelucchi. Per rimuovere trace di sporco tenaci si più inumidire leggermente il panno con acqua tiepida. Non utilizzare detergenti a base di solventi poiché potrebbero danneggiare l'alloggiamento di plastica e le scritte sull'apparecchio.
11 Informazioni generali sul funzionamento via radio
La trasmissione radio viene attuata su un canale di trasmissione non escludivo, pertanto non è possibile escludere interferenze. Altre interferenze possono essere causate da processi di commutazione, da motori elettrici o da apparecchi elettrici difettosi.

La portata del segnale all'interno degli edifici cui èssere molto diversa daQLella all'aperto. Oltre alla potenza di trasmissione e alle proprieta di ricezione dei ricevitori,anche alcuni fattori ambientali come l'umidità dell'aria,nonché le condizioni della struttura sul posto sono importanti per il segnale.
Con la presente la eQ-3 AG, Maiburger Str. 29, 26789 Leer, Germania, dichiarache l'apparecchio radio Homematic IPmodello HmIP-MIOB è conforme alla Direttiva 2014/53/UE. Il testo integrale della dichiarazione di conformità UE è disponibile al seguente indirizzo internet: www.homematic-ip.com
12 Smaltimento
Avverenze per lo smaltimento

Questo symbolo significica che l'apparecchio non va smaltito con i rifiuti domestici, nel bidone dei o nel bidone o sacco giallo.
Ai fini della tutela della salute e dell'ambiente, per un corretto smaltimento siete tenuti a conferire il prodotto e tutte le parti elettroniche incluse in dotazione presso un centro di raccolta comunale per apparecchi elettrici ed elettronici usati. Anche i distributori di apparecchi elettrici ed elettronici sono tenuti a ritirare gli apparecchi usati Gratisamente.
Con la raccolta differenziata date un prezioso contributo per il riutilizzo, il riciclo e altre forme di recupero di apparecchi usati.
Ricordiamo expressamente che l'utente finale è responsable personalmente della cancellazione dei dati personali negli appearecchi elettrici ed elettronici da smaltire.
Dichiarazione di conformità

Il marchio CE è un contrassegno del mercato libero che si rivolge esclusivamenteagli enti ufficiali e che non rappresenta una garanzia delle caratteristiche del prodotto.

Per domande di tipo tecnicosull'apparecchio rivolgersi al proprio rivenditore specializzato.
13 Dati Tecnici
Sigla dell'apparecchio: HmIP-MIOB
Tensione di alimentazione: 230V / 50Hz
Corrente assorbita: 30 mA max.
Potenza assorbita nel
funzionamento a riposo: 250mW
Potenza di interruzione massima:
Uscita 1:3680 W,cos
Uscita 2:1840 W,cos
≥ 0,95 (a potenziale zero)
≥ 0,95 (a potenziale zero)
Tipodi cavo e sezione cavo: cavo rigido e flessibile, 0.75 - 2.5mm^2
Tipodi carico:carico ohmico
Modalità funzionamento: Tipo 1.B
Periodicità di avviamento: 10000
Relè: invertitore, a 1 polo, contatto μ
contatto di chiusura, a 1 polo, contatto
μ
Tensione di tenuta a impulso: 4000 V
Temperatura per test del
filocindandescente:
850^
Temperatura per prova di durezza Brinell:
Struttura:
125°C
unità elettronica di regolazione e controlo montata in modo indipendente 2
Grado di contaminazione:
IP20
Grado di protezione:
1
Classedi protezione:
0-50°C
Temperatura ambiente:
199 × 156 × 34 mm
Banda di frequenza radio:
10 dBm
869,4-869,65 MHz
dispositivo a corto raggio (SRD) cat. 2
Max. potenza di trasmissione radio:
380 m
Categoria ricevitore:
< 1% all'ora/< 10% all'ora
Portata radio tipica in campo libero:
Duty Cycle:
Con riserva di modifiche tecniche.
Inhoudsopgave
< 1% per h / < 10% per h
ManualeFacile