Olaf Eco - Heizung WANDERS - Kostenlose Bedienungsanleitung
Finden Sie kostenlos die Bedienungsanleitung des Geräts Olaf Eco WANDERS als PDF.
Häufig gestellte Fragen - Olaf Eco WANDERS
Benutzerfragen zu Olaf Eco WANDERS
0 Frage zu diesem Gerät. Beantworten Sie die, die Sie kennen, oder stellen Sie Ihre eigene.
Eine neue Frage zu diesem Gerät stellen
Laden Sie die Anleitung für Ihr Heizung kostenlos im PDF-Format! Finden Sie Ihr Handbuch Olaf Eco - WANDERS und nehmen Sie Ihr elektronisches Gerät wieder in die Hand. Auf dieser Seite sind alle Dokumente veröffentlicht, die für die Verwendung Ihres Geräts notwendig sind. Olaf Eco von der Marke WANDERS.
BEDIENUNGSANLEITUNG Olaf Eco WANDERS
Bedienungsanleitung und Installationsvorschriften 44
Technische gegevens 14
Technische tekeningen 58
Geachte klant,
Ihr Olaf ECO auf einen Blick 46
Montage 46
Inbetriebnahme des Speicherofens 46
Funktion des Verbrennungslufthebel 46
Das erste mal Heizen 47
Speckstein einheizen 48
Heizmaterial 48
Die optimale Art zu Heizen 49
Schornstein und Rauchkanal 50
Wartung 50
Kleine Wartung 50
Außer Gebrauchnahme 50
Jährliche Wartung 50
Brandschutz 51
Garantie 51
Allgemeine Anweisungen 52
Vorbereitung 52
Der Rauchabzugskanal 52
Brandschutzvorrichtung 53
Installation 53
Zufuhr von Verbrennungsluft 53
Anschluss des Ofens 54
Speckstein montieren 55
Reparaturen 55
Technische Angaben 56
Technische Zeichnungen 58
Sehr geehrter Kunde,
Herzlichen Glückwunsch zum Kauf Ihres Holzofens, der eine komfortable Wärmequelle ist die Ihnen jahrelang Freue machen wird. Dank seiner einzigartigen Form, ist der Olaf Eco von überall im Zimmer zu sehen.
Bei der Entwicklung dieses Holzofens haben wir besonders auf Gebrauchsfreundlichkeit, Betriebssicherheit und Design geachtet. Der Olaf Eco ist in unserer eigenen Fabrik in Netterden entwickelt, hergestellt und großenteils handgemacht. Bei der Produktion wurden nur die besten Materiale, die den europäischen Normen entsprechen, eingesetzt. Damit gewährleisten wir eine lange Lebensdauer dieses Holzofens.
Im ersten Teil dieser Gebrauchsanweisung geben wir Ihnen Tipps und Hinweise für die richtige und sichere Art Ihren Holzofen zu benützen. Im zweiten Teil befinden sich die Installationsvorschriften sowie auch die technischen Angaben dieses Olaf Eco Ofens. Diese sind vor Allem für den Installateur wichtig.
Vor Gebrauch Ihres Holzofens bitten wir Sie die Gebrauchsanweisung sorgfältig zu lesen und Sie dann gut zu bewahren. Ihr Installateur braucht vielleicht diese Anleitung für die jährliche Wartung Ihres Ofens.
Wir wünschen Ihnen viel Wärme mit Ihrem Kauf.
Das WANDERS Team

• Das Gerät darf nicht ohne Scheibe benutzt werden.
- Es ist nicht gestattet, leicht brennbare Materiale, sowie Nylonkleidung oder brennbare Flüssigkeiten in die Nähe des Gerätes zu bringen.
- Das Gerät sollte nicht von Personen (einschließlich Kinder) die geistig oder körperlich behindert sind, oder die nicht mit der Funktion vertraut sind, benutzt werden. Sorgen Sie immer dafür, dass diese Personen sich ausschließlich unter Aufsicht in die Nähe des Gerätes begeben.
- Benutzen Sie einen Kaminvorsatz um die oben erwähnten Kinder und Personen vor Verbrennung zu schützen.
- Das Gerät muss von einem anerkannten Installateur aufgestellt, gemäß dieser Installationsvorschrift, sowie auch der nationalen und örtlich geltenden Vorschriften angeschlossen werden.
Ihr Olaf ECO auf einen Blick

Der Olaf ECO hat ein ausgeklügeltes System aus Rauchgaszügen in denen die Rauchgase nach verbrannt werden. Mittels dieser Züge kann die Wärme optimal von dem seitlich angebrachten Speckstein aufgenommen werden. Außerdem bewirkt das hochwertige Gusseisen und die Feuerraumauskleidung aus Vermiculit ein sehr gutes Wärmeresultat.
Montage
Im Allgemeinen kümmert sich der Händler, wo Sie den Ofen gekauft haben, auch um die Installation. Wenn das nicht der Fall ist, beachten Sie, dass die Installation von einem anerkannten Installateur gemacht wird. Ein anerkannter Installateur kann Ihnen auch den korrekten Rat geben, über den Rauchabzugskanal an welchen der Ofen angeschlossen werden muss.
Bei der Installation müssen Sie auch auf die Brandschutzvorrichtung achten. Siehe Seite 51.

Dieser Speicherofen ist als Zusatzheizung geeignet und kein Ersatz für Ihre Zentralheizung.

Anschluss eines Holzofens durch Unbefugte ist nicht zugelassen. In diesem Fall können wir ein korrektes Funktionieren des Olaf ECO's nicht garantieren
Inbetriebnahme des Speicherofens

Inbetriebnahme in Frühling oder Herbst
In diesen Jahreszeiten kann ein entzünden des Feuers in Ihrem Ofen eine richtige Herausforderung sein. Dann ist oft fast kein Temperaturunterscheid im Haus zu außen und es entsteht kein Auftrieb im Schornstein. Sie können dem entgegenwirken indem Sie nur wenig Holz verbrennen und die Verbrennungsluftklappe und Anheizklappe an Ihrem Ofen maximal öffnen. Dadurch wird der Schornstein schneller erwärmt und bekommt einen besseren Auftrieb. Mit wenig Holz bei nicht ganz geschlossener Anheizklappe verhindert oft ein zurückschlagen der Rauchgase in den Wohnraum.

Der Speicherofen wird beim heizen sehr heiß und braucht ein par Stunden um wieder abzukühlen. Berühren Sie deshalb den Ofen während des Heizens oder in die Stunden danach, nicht ohne Schutz und bedienen Sie den Speicherofen immer mit Handschuhen, weil Sie sich sonst schwer verbrennen können.
Öffnen Sie die Ofentür und legen ein Zündwürfel in den Ofen, darauf legen Sie einige kleine Stückchen Holz. Öffnen Sie den Verbrennungslufthebel ② maximal (herausziehen). Schieben Sie den Hebel der Anheizklappe ① vollständig nach links. Entzünden Sie den Zündwürfel und das Holz und lehnen Sie die Ofentür an. Wenn das Holz gut brennt, können Sie weiteres Holz auflegen und die Ofentür verschließen. Legen Sie nie mehr als drei Holzscheite gleichzeitig in die Brennkammer. Sobald das Holz gut brennt und der Schornstein einen guten Auftrieb erzeugt, können Sie die VerbrennungsluftmittelsVerbrennungslufthebel ② regulieren. Sie können dan ebenfalls die Anheizklappe ① schließen.

Bitte achten Sie darauf, die Anheizklappe zu öffnen wenn Sie Holz nachlegen wollen. Dadurch wird verhindert das Rauchgase in den Wohnraum gelangt. Nach dem Sie Holz nachgelegt haben, können Sie die Anheizklappe wieder schließen.
Funktion des Verbrennungslufthebel
Der Verbrennungslufthebel hat 3 Positionen:
- vollständig herausziehen: primäre und sekundäre Luftzufuhr ist geöffnet.
- zurück schieben bis es einmal einrastet: nur sekundäre Luftzufuhr ist geöffnet. Der Speicherofen hat jetzt den besten Wirkungsgrad und die Scheibenspülung funktioniert jetzt optimal.
- ganz zurück geschoben: sämtliche Luftzufuhr ist jetzt geschlossen.

Es ist verboten, den Speicherofen, mit flüssigen Stoffen, so wie z.B. Benzin oder Spiritus anzuzünden. Vermeiden Sie, dass im selben Raum in welchem der Speicherofen steht, eine Dunstabzughaube an ist. Berühren Sie während des Heizens nie die lackierten Teile des Speicherofens.
Das erste mal Heizen

Neubauwohnung oder vor kurzem renoviert?
Warten sie sechs Wochen mit heizen in einer Neubauwohnung die vor kurzem fertig gestellt wurde, oder einem Raum der stark renoviert wurde. In den Wänden und Decken befinden sich noch Gase, Weichmacher und Feuchtigkeit von den Stuck- und Malerarbeiten. Durch die warmen Luftströme können sich die vielen Staubteilchen im Raum verfärben und sich auf Wände und Decken festsetzen. Auch die noch vorhandene Feuchtigkeit in Wänden und Decken erwärmt sich und kann gelbe Flecken verursachen.
Speckstein einheizen
Für die Lebensdauer des Speicherofens ist es von besonderer Bedeutung, das Sie sich genau an diese anheizregel halten.
- Öffnen Sie den Verbrennungslufthebel ②.
- Öffnen Sie die Anheizklappe ①.
- Legen Sie zwei Zundwürfel in die Mitte des Feuerraums.
- Bauen Sie hier ein Pyramide von 8 - 10 kleinen Holzstückchen mit einem Durchmesser von höchstens 3 cm und einer Länge von ca. 25 cm.
• Zünden Sie die Zundwürfel an. - Lassen Sie die Feuerraumtür einen Spalt offen (ca. 5 - 10 minuten).
- Wenn das Feuer gut brennt können Sie die Feuerraumtür schließen.
- Nacht etwa 15 - 20 minuten können Sie die Anheizklappe ② schließen.
- Kein Holz nachlegen. Den Speicherofen ausbrennen lassen.
- Nach dem abkühlen des Speicherofens, wiederholen Sie diesen Vorgang mindenstens drei mal.
- Jetzt wiederholen Sie diese Schritte, jedoch erhöhen Sie die Brennstoffmenge um 1 Kg.
• Wiederhohlen Sie diese Prozedur 3 mal.
Wenn Sie den Olaf ECO nach der ersten Einbrennprozedur benutzen, muss der Ofen „einbrennen“. Das Gerät ist mit einer hitzebeständigen Lackschicht versehen, die bei Temperaturen die höher als 400° Celsius sind, in den Ofen einbrennen. Das geschieht während der ersten paar Male wenn der Ofen beheizt wird, wenn die Temperaturen auf 600° Celsius steigen. Übrigens kann dieses Einbrennen der Lackschicht einen unangenehmen Geruch erzeugen, welcher aber unschädlich ist. Lüften Sie gut während Sie heizen. Achten Sie auch darauf, dass keine Abzughaube im gleichen Raum an ist solange der Ofen brennt. Eine Abzughaube zieht Verbrennungsluft ab, welche der Ofen aber braucht.
Während des Einbrennens kann sich ein Beschlag auf der Scheibe der Ofentüre bilden. Dieser Beschlag kann ganz einfach mit einem feuchten Tuch, wenn der Ofen erkaltet ist, entfernt werden. Benutzen sie dazu eventuell einen Spezialreiniger für Keramikkochplatten. Berühren Sie die gereinigte Scheibe nicht mehr. Die Fingerabdrücke brennen sonst in die Scheibe und können dann nicht mehr entfernt werden.

Es ist verboten, den Speicherofen, mit flüssigen Stoffen, so wie z.B. Benzin oder Spiritus anzuzünden. Vermeiden Sie, dass im selben Raum in welchem der Speicherofen steht, eine Dunstabzughaube an ist. Berühren Sie während des Heizens nie die lackierten Teile des Speicherofens.

Achten Sie auf Fingerabdrücke
Berühren Sie die Glasscheibe nach dem reinigen nicht mehr, weil sich die Fingerabdrücke beim nächsten Heizvorgang in das Glas einbrennen können.

Verfärbung von Wänden, Decken und Roste
Durch Heizen des Ofens, können Wände, Decken und Roste sich verfärben. Das kommt daher, dass Staubteilchen im Konvektionsmantel verbrennen. Das ist ein natürlicher Vorgang, wofür WANDERS nicht verantwortlich ist. Um Verfärbung zu minimalisieren, verweisen wir Sie auf den Rat der von der Branche der Kaminöfen gegeben wird. Ihr Installateur kann Sie dabei beraten.
Heizmaterial
| Holzart Trocknungszeit | |
| Kiefer, Pappel 1 Jahr | |
| Linde, Weide, Tanne, Birke, Esche, Erle 1,5 Jahren | |
| Obstbäume, Buch 2 Jahren | |
| Eiche 2,5 Jahren |
Für den Olaf ECO eignen sich alle Holzsorten.
Jedoch haben weiche Holzsorten wie z.B. Lärche, Pappel oder Tanne eine hohe Flammtemperatur, dadurch wird der Olaf ECO besonders schnell warm.
Harthölzer wie z.B. Eiche und Buche haben zwar einen höheren Heizwert bilden aber leicht Holzkohle. Und diese Holzarten brennen langsamer ab. Hacken Sie dieses Hartholz besonders klein.
Der Olaf ECO kann nur mit unbehandeltem Holz oder Holzbriketts beheizt werden. Legen sie nie mehr als 1-3 Kg Heizmaterial in den Speicherofen. Benutzen Sie immer sauberes, gespaltenes und genügend trockenes Holz. Die mindest Trocknungszeiten finden Sie in der Tabelle oben. Feuchtes Holz brennt schlecht und erzeugt sehr viel Rauch. Dadurch kann die Scheibe des Speicherofens vom Ruß schwarz werden. Ruß setzt sich dann auch in den Seitenzügen und im Schornstein ab. Dies kann zu einem Schornsteinbrand führen.
Je trockener der Brennstoff um so höher ist der Heizwert. Wir empfehlen einen Feuchtigkeitsgehalt von höchstens 15%. Trockenes Holz gibt eine schöne Flamme und so gut wie kein Rauch ab. Während des Verbrennens kann man das Holz "prasseln" hören. Feuchtes Holz erzeugt ein zischendes Geräusch, viel Rauch und eine kleine Flamme. Die Freude am Heizen und die Nutzleistung werden stark beeinträchtigt.

Benutzen Sie in Ihrem Speicherofen keine Holzblöcke die Paraffin enthalten. Wenn die Ofentür geschlossen ist schmilzt das Paraffin zu schnell aus den Holzblöcken. Die verschmutzten Rauchgase die dadurch entstehen, bilden einen Niederschlag auf der Scheibe der Ofentür, brennen ins Glas und können dann nicht mehr entfernt werden.

Benutzen Sie kein gestrichenes, imprägniertes, verleimtes oder anderweitig bearbeitetes Holz. Die Rauchgase sind sehr schädlich für das Milieu und können Ihren Ofen antasten. Es ist auch verboten darin Plastik oder anderen Abfall, wegen der giftigen Rauchentwicklung, zu verbrennen.

Holzarten und Lagerung
Alle Arten sauberes, gespaltetes und trockenes Holz können als Heizmaterial gebraucht werden. Harte Holzarten, sowie Eiche, Buche und Birke brennen langsam, geben viel Wärme ab und bilden leicht Holzkohle. Weichere Holzarten, sowie Kiefer, Tanne und Pappel erzeugen mehr Flammen aber weniger Wärme und weniger Holzkohle.
Holz wird am Besten an einer windigen Stelle, aber gut vom Regen geschützt, gelagert. So trocknet das Holz auf natürliche Art. Stapeln Sie die Holzblöcke auf einer alten Palette oder auf einem Rost. So kann das Holz auch von unten trocknen und bleiben die untersten Holzblöcke trocken.
Die optimale Art zu Heizen
Die Öfen von WANDERS sind so entwickelt, dass sie den bestmöglichen Wirkungsgrad erzielen können. Ein gut beheizter Speicherofen kann einen Wirkungsgrad von mehr als 85% erreichen.
Hier einige Tipps für das richtige Heizen:
- Heizen Sie Ihren Speicherofen immer mit geschlosserer Ofentür. Wenn die Ofentür offen steht, saugt der Schornstein mehr Luft als für eine gute Verbrennung nötig ist. Die relativ kalte Luft kühlt auch das Feuer. Feuerschäden können bei geschlossener Ofentür vermieden werden.
- Legen Sie nie mehr als drei Holzscheite auf einmal nach. Viel Brennstof verhindert eine effiziente Verbrennung und belastet unnötig die Umwelt.
- Lüften Sie den Raum gut wenn Sie heizen. Machen Sie nie eine Dunstabzugshaube im selben Raum an, wenn der Speicherofen beheizt wird.
- Vorsicht bei windstillem und nebligem Wetter. Bei windstillem Wetter gibt es beinahe keinen Zug im Schornstein. Weil Rauch schwerer ist als Luft, ist es möglich, dass der Rauch in den Raum gedrückt wird. Bei Nebel kann der Rauch im Schornstein sehr schnell abkühlen und "runter fallen".
- Löschen Sie das Feuer niemals mit Wasser, sondern lassen Sie es von selbst ausgehen. Die Materialien im Feuerraum könnten sich durch den plötzlichen Temperaturunterschied, verformen oder reißen.
- Wenn Sie das Feuer "drosseln" wollen, müssen Sie zuerst die Anheizklappe schließen. Und danach den Verbrennungslufthebel.
- Bitte beachten Sie das nicht zu viel Brennstoff auf einmal in den Speicherofen gefüllt wird. Es könnte sich zu viel Wärme aufbauen und den Speicherofen dauerhaft schädigen.
Schornstein und Rauchkanal
Der Schornstein ist der wichtigste Teil Ihres Holzofens;
Der korrekte Schornstein verhindert dass Rauch in den Raum strömt, sich ein Belag auf der Scheibe bildet und schlechte Verbrennung. Bevor Sie den Ofen montieren, muss Ihr Händler oder ein anerkannter Schornsteinfeger den Schornsteinkanal über die ganze Länge kontrollieren ob er mindestens einen Durchmesser von 150 Millimeter hat und ob der Kanal sauber, glatt und dicht ist.

Schornstein mit gutem Zug
Warme Luft will steigen. Auf diesem Prinzip funktioniert jeder Schornstein. Was dabei hilft, ist dass der Wind auch noch die Luft von der Schornsteinausmündung „weg saugt“.
Manchmal kann aber ein Fallwind die umgekehrte Wirkung haben und die Luft in den Schornstein blasen. So kann auch eine relativ schwere Nebelluft den guten Zug im Schornstein hemmen. Auch ein zu langer Rauchkanal mit rauer Oberfl äche und zu vielen Biegungen ergibt diese Wirkung. Bei einem natürlich schlechten Zug kann Sie der Installateur über den Gebrauch eines Ventilators im Rauchkanal aufklären

Was tun wenn es einen Schornsteinbrand gibt?
Bei einem Schornsteinbrand müssen sie sofort das Ventil im Schornstein und alle andere Luftzufuhrkanäle schließen. Die Feuerwehr anrufen. Nach dem Löschen muss der Schornstein und der Ofen von ihrem Installateur überprüft und neu zugelassen werden.
Wartung
Kleine Wartung
- Wir empfehlen Ihnen, eine 2 -3 Zentimeter dicke Schicht Asche im Feuerraum liegen zu lassen, dadurch wird die Verbrennung optimiert und die Glut kann sich länger halten.
• Entfernen Sie bei bedarf die abgekühlte Asche. Benutzen Sie zur Aufbewahrung einen Ascheneimer. - Reinigen Sie den Speicherofen von außen mit einem weichen nicht fusselnden Tuch.
- Reinigen Sie die kalte Ofenscheibe mit speziellen Scheibenreiniger für Öfen. Berühren Sie das gereinigte Glas nicht mehr mit Ihren Fingern. Fingerabdrücke können sich in das Glas einbrennen.

Benutzen sie keine beißenden Putz- und Scheuermittel im Ihren Ofen zu pfl egen.
Außer Gebrauchnahme
- Lassen Sie im Sommer die Luftzufuhr (Verbrennungslufthebel ②) geöff net, es entsteht eine Zirkulation und die Feuchtigkeit bleibt nicht im Speicherofen stehen.
- Reinigen Sie den Speicherofen nach der Heizperiode gründlich (Rauchgaszüge nicht vergessen!!).
Jährliche Wartung
- Mit Bezug auf Brandschutz und eventuell einer Brandschutzversicherung, müssen Sie den Schornstein jährlich durch einen anerkannten Schornsteinfeger fegen lassen.
• Lassen Sie jährlich die Funktion der Schieber und/

oder Klappen kontrollieren.
- Lassen sie jährlich all Dichtungen von Türen und Glasscheiben auf Verschleißerscheinungen prüfen.
Brandschutz
Mit einem WANDERS Holzofen haben Sie eine komfortable und sichere Wärmequelle im Haus. Der Brandschutz fängt bereits mit der korrekten Installation und einem gut funktionierenden Rauchgasabzug an. Ihr Installateur muss sich dazu an die Installationsvorschriften, wie auf Seite 52 beschrieben, halten. Um sicher zu Heizen, sind die folgenden Punkte wichtig:
- Heizen Sie Ihren Speicherofen ausschließlich mit geschlossener Ofentür, dadurch haben Sie einen besseren Wirkungsgrad.
- Vermeiden Sie, das kleine Kinder und Hilfsbedürftige Menschen, in die nähe des brennenden Speicherofens kommen. Und lassen Sie diese nicht mit dem Speicherofen alleine.
- Stellen Sie nie brennbare Flüssigkeiten in oder auf dem Speicherofen.
- Halten Sie die Sicherheitsabstände ein.
- Der Olaf ECO Speicherofen darf nicht umbaut werden.
- Der Abstand zwischen dem Olaf ECO und der dahinter liegenden nicht brennbaren Wand muss mindestens 10 cm betragen.
- Bringen Sie keine brennbaren Materialien wie z.B. Gardinen, Holzmöbel in die nähe des Speicherofens. Halten Sie mindenstens einen Abstand von 100 cm ein.
- Wenn der Fußboden aus brennbaren Materialien besteht wie z.B. Teppichboden, Parkett oder Laminat ist eine Funkenschutzplatte nötig.
- Der Olaf ECO darf nur durch ein Fachbetrieb und mit Original Wanders Ersatzteilen repariert werden.

text_image
50 cm 10 cm 50 cm 20 cmGarantie
Auf Ihren Olaf ECO gibt Ihnen WANDERS Metaalproducten B.V. in Netterden 5 Jahre Garantie ab Kaufdatum, vorausgesetzt dass der Ofen korrekt installiert und gemäß den Anweisungen in dieser Gebrauchsanweisung benutzt wurde. Unter diese Garantie fallen alle Mängel die auf Material- oder Konstruktionsfehler zurückzuführen sind. In diesen Fällen erhalten Sie gratis neue Ersatzteile. Der Arbeitslohn und andere Kosten fallen nicht unter die Garantie. Fehlerhafte Teile können Sie franco an WANDERS Metaalproducten B.V. Amtweg 4, 7077 AL Netterden (Holland) schicken.
Vor Montage des Speicherofens müssen Sie kontrollieren ob das Gerät keine sichtbaren Schäden aufweist. In dem Fall müssen Sie das Gerät nicht akzeptieren, müssen aber mit Ihren Lieferanten Kontakt aufnehmen.
Nicht unter die Garantie fallen: Störungen die durch nicht sachgemäßen Gebrauch entstanden sind; nicht strikte Befolgung der Installations- und Bedienungsvorschriften; Montage durch einen nicht von WANDERS anerkannten Installateur, Vernachlässigung des Ofens und bei einem Wechsel des Besitzers. Die Garantie verfällt auch, wenn verkehrtes Heizmaterial benützt wurde oder der Speicherofen überheizt wurde.
Auf den Korpus gewährt WANDERS Metaalproducten B.V. 5 Jahre Garantie. Nicht unter diese Garantie fallen Verschleißteile wie Glas, Dichtungen und Vermiculit.
Speckstein ist ein Naturprodukt und kann Adern, Risse, Farbunterschied und Einschlüsse aufweisen. Die beeinflusst die Wirkung des Speicherofens nicht und fällt daher auch nicht unter die Garantie.
Wanders ist nicht verantwortlich für eventuelle Risse im Feinputz und Verfärbungen der Wände, Decken und/oder Roste nach Heizen des Ofens. Verfärbungen können entstehen weil Staubteilchen im Konvektionsmantel verbrennen. Um eventuelle Risse im Feinputz und Verfärbungen zu minimalisieren, verweisen Sie auf den Rat der von der Branche für Kaminöfen gegeben wird. Ihr Installateur kann Sie darüber informieren.

Reklamationen werden erst dann behandelt, wenn die Verkaufsfirma, der Installateur eine Reklamation, zusammen mit einer Kopie des Kassenzettels mit Kaufdatum, eingereicht hat. Reparaturen berechtigen nicht zu einer Verlängerung der Garantie. Alle Folgeschäden sind ausgeschlossen.

Der Speckstein ist ein Naturprodukt. Es kann passieren, dass haarfeine Risse im Material entstehen. Es ist auch möglich, dass die verschiedenen Platten einen leichten Farbunterschied aufweisen. Das ist unwichtig für die Funktion des Ofens und fällt deshalb auch nicht unter die Garantie.
Allgemeine Anweisungen
Der Olaf ECO ist gemäß der internationalen Norm EN 13240 und außerdem gemäß einer zusätzlichen Norm für optimales milieu-freundliches Heizen bezüglich Rauchgas Ausstoß (Art. 15a B-Vg des BmfWA) geprüft. Der Ofen kann an einen Rauchkanal mit mehreren Öfen angeschlossen werden. Der Olaf ECO darf nie umbaut werden.

Der Speicherofen darf nur durch einen autorisierten Fachbetrieb und gemäß den unten beschriebenen Installationsvorschriften montiert werden. Dabei müssen auch die nationalen und örtlichen Gesetze und Vorschriften für Installation und Gebrauch von Holzöfen beachtet werden. WANDERS bietet keine Garantie bei unvollständig oder nicht korrekt angeschlossenem oder installiertem Olaf ECO.
Der Speicherofen darf nicht montiert werden in:
• Allgemein zugängliche Galerien und Gänge
- Treppenhäuser, außer in Gebäuden mit nur zwei Stockwerken
- In Räumen, in welchen leicht entflammbare oder explosive Stoffe verarbeitet werden.
- In Räumen in welchen sich eine Dunstabzughshaube oder ein mechanisches Absaugsystem befindet, außer dann wenn die Luftzufuhr direkt von außen geholt wird sodass die Verbrennung ohne Gefahr geschehen kann.
Vorbereitung
Der Rauchabzugskanal
Bevor der Ofen montiert werden kann, müssen folgende Punkte beachtet werden:
- Wenn der Speicherofen an einen schon bestehenden Schornstein angeschlossen werden soll, dan muss dieser erst durch einen Bezirksschornsteinfeger freigegeben werden.
• Die Rauchgasleitung des Speicherofens muss ohne Umwege direkt an den Schornstein angeschlossen werden.
• Der Unterdruck im Schornstein muss mindestens 12 Pa oder 0,12 mbar betragen.
• Der Schornstein muss immer den regionalen Bestimmungen entsprechen. - Der Schornsteinkanal muss bei der Montage sauber und ohne Behinderung einen Durchmesser von 150 mm haben.
- Eventuelle Biegungen im Rauchabzugskanal dürfen nicht mehr als 45 Grad betragen und in der Anzahl nicht mehr als 2.

- Sie müssen sicher stellen, dass der Rauchabzugskanal die Rauchgase gut genug und auf sichere Weise abziehen kann.
- Sie müssen sicher stellen, das der Schornstein die Rauchgase gut genug und auf sichere Weise abziehen kann.
Brandschutzvorrichtung
Im Zusammenhang mit Brandschutz ist es wichtig, dass Sie die unten erwähnten Vorschriften beachten, bevor der Ofen montiert wird.
- Der freie Abstand zur rückwärtigen Wand muss mindestens 10 Zentimeter betragen.
- Halten Sie mindestens 100 cm Abstand zwischen Ofen und brennbaren Materialen ein. Denken Sie dabei an Gardinen, Gegenstände aus Holz (Schränke und Gemälde) und Glasgegenstände. Das gleiche gilt auch für die Rauchrohrleitungen.
- Die Wand hinter dem Kamin muss aus feuerfestem Material sein oder muss damit isoliert werden. Das Isolationsmaterial muss eine Temperatur von 700 Grad Celsius vertragen können und eine Dichte von, 80 Kg/m³ haben. (Siehe Seite 57).
- Wenn der Rauchgasabzug durch die Decke und/oder das Dach führt welche aus brennbarem Material bestehen, müssen diese rundum ca. 80 cm mit feuerfestem Material bekleidet werden. Achten Sie hierbei auf Zwischenbalken und eventuell elektrische Leitungen.
- Zwischen Ofen und tragenden Konstruktionsteilen aus Stahl muss mindestens ein Abstand von 50 cm (rundum) eingehalten werden.
- Hölzerne Konstruktion die innerhalb des 80 cm Bereichs des Ofens sind, müssen mit feuerfestem Material verkleidet werden.
- Schützen sie alle brennbare Materiale die sich in einem Strahl von 65 Zentimeter der Ofentür befinden Nehmen Sie dazu feuerfeste Materiale.
- Decken Sie den Kamin nicht ab mit brennbarem Material.
- Vermeiden Sie Wärmedurchschlag bei der Montage. Die Wärme die der Ofen ausstrahlt kann durch die Wand ziehen. Dies kann sogar Brand auf der anderen Seite der Wand verursachen. Verhindern Sie dies!
Installation
Der Olaf ECO ist gemäß der internationalen Norm EN 13240 und außerdem gemäß einer zusätzlichen Norm für optimales milieu-freundliches Heizen bezüglich Rauchgas Ausstoß (Art. 15a B-Vg des BmfWA) geprüft. Der Ofen kann an einen Rauchkanal mit mehreren Öfen angeschlossen werden. Der Olaf ECO darf nie eingebaut werden.

Der Ofen darf nur durch einen anerkannten Installateur und gemäß den unten beschriebenen Installationsvorschriften montiert werden. Dabei müssen auch die nationalen und örtlichen Gesetze und Vorschriften für Installation und Gebrauch von Holzöfen beachtet werden. WANDERS bietet keine Garantie bei unvollständig oder nicht korrekt angeschlossenem oder installiertem Olaf ECO.
Zufuhr von Verbrennungsluft
Dem Ofen muss immer genügend frische Verbrennungsluft zugeführt werden. Wenn nötig, machen Sie
eine zusätzliche Öffnung für externer Luftzufuhr. Eine zusätzliche Luftzufuhr ist unbedingt erforderlich wenn:
- Das Gebäude über eine Kontrollierte Be- und Entlüftung besitzt.
• Der Raum ein zentrales Absaugsystem aufweist. - Eine Dunstabzugshaube sich im gleichen Raum betrieben wird.
Die Anschlüsse für die externe Verbrennungsluft befinden sich auf der Rückseite und im Boden des Speicherofens und haben einen Durchmesser von 100 mm.
Anschluss des Ofens
Vergewissern Sie sich, dass der Fußboden das Gewicht des Ofens problemlos tragen kann.
Bevor Sie den Ofen montieren, folgen sie erst die Anweisungen aus dem vorigen Kapitell „Vorbereitung“. Achten sie darauf, dass Sie Ihren Rücken und den Fußboden während der Installation nicht lädieren.
- Schließen Sie den Olaf ECO an einen bereits vorhandenen Schornstein an.
- Der Unterdruck im Rauchkanal muss 10 bis 12 Pa (0,1 bis 0,12 Millibar) betragen.
- Nehmen Sie Maßnahmen zum Feuerschutz (siehe Punkte 1-9 auf Seite 53)
- Stellen Sie den Ofen auf die gewünschte Stelle.
- Stellen Sie den Ofen waagerecht.
- Bringen Sie das Rohr zwischen dem Ofen und dem Abzugskanal an. Schließen Sie an das Verbindungsstück (die Rohröffnung) ein Stück Rohr von ∅ 150 Millimeter mit einem so gerade möglichen Übergang vom Ofen zum Schornsteinkanal an. Das Rohr muss aus Stahl mit einer Dicke von mindesten 2 Millimeter bestehen. Achtung: das Rohr dehnt sich 1 cm pro Meter in der Länge aus. Achten sie darauf, dass der Abzug nicht zwischen Rohröffnung und Decke klemmt.

text_image
Ø100,00 380,50
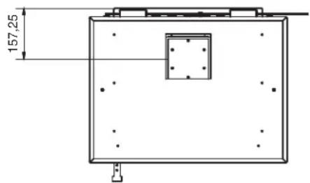
text_image
157,25Speckstein montieren
Die Specksteinteile sollten vorsichtig montiert werden um beschädigungen zu vermeiden. Denken Sie an Ihren Rücken.

Auswechseln der Glasscheibe

Vorsicht, das Glas ist scharf.
Entfernen Sie die 4 Schrauben und die 2 Glassleisten in den inneren Winkeln der Ofentür. Nehmen Sie vorsichtig die Scheibe und eventuellen Scherben weg.

| Olaf Eco | ||
| Tür Verschluss I & II Ba | ||
| Nominale Leistung* 8 kW | ||
| Abgasstutzen 150 mm | ||
| Maximal Füllung Holz 3 kg | ||
| * Nominale Wärme wird mit einem Schornsteinzug von 0,12 mBar erreicht | ||
| Heizmaterial; Holzscheite (30 x 10 cm) | |
| Maximal einlegen 3 Stück | |
| Primäre Luftklappe Maximal | |
| Sekundäre Lüftungsöffnung Maximal | |
| Brennzeit Heizmaterial ungefähr 1 Stunde | |
| Rauchgaswerte gemäß DIN 4705, DIN 18895 Teil 2 Mit geschlossener Tür. Heizmaterial Holz. | ||
| Olaf Eco | ||
| Rauchgasmenge 6,4 g/s | ||
| Rauchgastemperatur | 275 | ^ |
| Vordruck | 0,12 mBar | |
| Vordruck | 85,0 % | |
| CO auf 13% O_2 | 0,08 % | |
| Feinstaub | 17 | mg/m ^3 |
| Prüfungsinstitut | 1625 | |
| Prüfnorm | EN13240 | |
| Prüfungsgutachten | RRF - 4010 2388 | |
Richtwerte für den Inhalt des zu wärmenden Raums:
Nicht alle Räume entsprechen den heutigen Vorschriften betreffend Isolation. Für den Inhalt des zu wärmenden Raums können folgende DIN 18893 Werte erwähnt werden.
| Bei günstigen Umständen: | berechnen gemäß DIN 4701 |
| Bei weniger günstigen Umständen: | 135 m^3 |
| Bei ungünstigen Umständen: | 95 m^3 |
Für eine kurzfristige Beheizung, mit einer Unterbrechung von mehr als 8 Stunden, kann man für den zu wärmenden Inhalt 25% weniger rechnen.
Tabelle für Isolation bei Wanddicke
Wanddicke 10 cm Isolation Konvektions-
mantel
Schutz der Wand
Wände aus brennbarem Baumaterial X X
Tragewände aus Stahl X X Rückseite
8 cm
Einbaumöbel gegen den Ofen X X
Einbaumöbel an der Wand hinter den Ofen X X
Seitlich
8 cm
Übrige Wände
Wanddicke < 10 cm X X Unterseite
6 cm
Wanddicke > 10 cm (darf gemauerte Wand sein)
Die Tabelle zeigt an welche Isolationsdicke gewählt werden muss bei welcher Wanddicke um vor Einbauöfen zu schützen
Tabelle Isolationsmaterial: NB nur das was im gefärbten Gebiet steht ist erlaubt.
Isolation Verpackt Wärmeleitung Höchste Dichte Gebrauchstemp.
| nr | artikel | nr | form | nr | verpackt | nr | °C | nr | kg/m3 |
| 10 | Mineralwolle | 01 | Bahnen | 10 | 100 | 02 | 20 | ||
| 11 | Glaswolle | 02 | Lose Wolle | 12 | 120 | 03 | 30 | ||
| 03 | Wolle | 14 | 140 | 04 | 40 | ||||
| Granulat | 16 | 160 | 05 | 50 | |||||
| 04 | Filz | 06 | 60 | ||||||
| 05 | Vernähte | 07 | 70 | ||||||
| Lamellenmatte |
09 Segmente
10 Geflochten
99 Übrige 99 Einzeln 99 99
Suchen Sie sich in der Tabelle das Isolationsmaterial aus. NB; Gruppe 99 ist NICHT zugelassen
Olaf Eco

Olaf Eco round

text_image
616,00 164,50 455,00
text_image
613,00 380,00 1231,50 480,00
text_image
480,50
bitte kopie vom kaufbeleg beifügen
naam / name / nom / name
Unter diese Garantie fallen alle Mängel die auf Material- oder Konstruktionsfehler zurückzuführen sind. In diesen Fällen erhalten Sie gratis neue Ersatzteile. Der Arbeitslohn und andere Kosten fallen nicht unter die Garantie. Fehlerhafte Teile können Sie franco an WANDERS Metaalproducten B.V. Amtweg 4, 7077 AL Netterden (Holland) schicken.
Vor Montage des Ofens müssen Sie kontrollieren ob das Gerät keine sichtbaren Schäden aufweist. In dem Fall müssen Sie das Gerät nicht akzeptieren, müssen aber mit Ihren Lieferanten Kontakt aufnehmen.
Nicht unter die Garantie fallen: Störungen die durch nicht sachgemäßen Gebrauch entstanden sind; nicht strikte Befolgung der Installations- und Bedienungsvorschriften: Montage durch einen nicht von WANDERS anerkannten Installateur, Vernachlässigung des Ofens und bei einem Wechsel des Besitzers. Die Garantie verfällt auch, wenn verkehrtes Heizmaterial benutzt wurde.
Wanders ist nicht verantwortlich für eventuelle Risse im Feinputz und Verfärbungen der Wände, Decken und/oder Roste nach Heizen des Ofens. Verfärbungen können entstehen weil Staubteilchen im Konvektionsmantel verbrennen. Um eventuelle Risse im Feinputz und Verfärbungen zu minimalisieren, verweisen Sie auf den Rat der von der Branche für Kaminofen gegeben wird. Ihr Installateur kann Sie darüber informieren.
Reklamationen werden erst dann behandelt, wenn die Verkaufsfirma, der Installateur eine Reklamation, zusammen mit einer Kopie des Kassenzettels mit Kaufdatum, eingereicht hat. Reparaturen berechtigen nicht zu einer Verlängerung der Garantie.
Alle Folgeschäden sind ausgeschlossen.
EinfachAnleitung