LS1216L - Geringssav MAKITA - Gratis brugsanvisning og manual
Find enhedens vejledning gratis LS1216L MAKITA i PDF-format.
Brugerspørgsmål om LS1216L MAKITA
0 spørgsmål om dette apparat. Besvar dem du kender, eller stil dit eget.
Stil et nyt spørgsmål om dette apparat
Download vejledningen til din Geringssav i PDF-format gratis! Find din vejledning LS1216L - MAKITA og tag din elektroniske enhed tilbage i hånden. På denne side er alle dokumenter nødvendige for brugen af din enhed offentliggjort. LS1216L af mærket MAKITA.
BRUGSANVISNING LS1216L MAKITA
Nedenstäende symboler er anvendt i forbindelse med这部分 maskine. Vær sikker på, at De har forstæet symbolernes betydning, for maskinen anvendes.
Σμβoλa
Elværktjømå ikke bortskaffes som almindeligt affald!
I henhold til det europæiske direktiv 2002/96/EF om bortskaffelse af elektriske og elektroniskeprodukter og gældende national lovgivning skal brugt elværktøj indsamles separat og returneres til miljogodk%-endt genindvinding.
- Movo yia tiç xwpe ts EEE
Mn natae ta eioh nAekpiko Eoanlouu aei ta oikia anaoppmuata.
Illustrationsoversigt
| 1 | Befæstelsesstift | 37 | Spindellås | 71 | Kronfremsspringstopper R (højre) (ekstraudstyr) |
| 2 | Sekskartbolte | 38 | Klingehus | ||
| 3 | Beskyttelsesskærm | 39 | Pil | 72 | Kronfremsspringstopper L (venstre) |
| 4 | Indlægsplade | 40 | Ydre flange | ||
| 5 | Savklinger | 41 | Indre flange | 73 | Kronfremsspringstopper R (højre) |
| 6 | Klingetænder | 42 | Spindel | ||
| 7 | Venstre skråsnit | 43 | Ring | 74 | Kronfremsspring |
| 8 | Lige snit | 44 | Støvtude | 75 | Skrue |
| 9 | Højre skråsnit | 45 | Støvpose | 76 | Afstandsklods |
| 10 | Låsearm | 46 | Lukkeskinne | 77 | Aluminium-Profiler |
| 11 | Låseskrue | 47 | Støvbeholder | 78 | Over 15 mm |
| 12 | Justeringsbolt | 48 | Dæksel | 79 | Over 290 mm |
| 13 | Drejeskive | 49 | Knap | 80 | Over 340 mm |
| 14 | Stopperarm | 50 | Cylindersekction | 81 | Hul |
| 15 | Skyderør | 51 | Savsmuld | 82 | Skær riller med klingen |
| 16 | Overflade på drejeskive | 52 | Stotte | 83 | Skruer (to i haver side) |
| 17 | Klingeperifteri | 53 | Drejeskive | 84 | Nederste anslag |
| 18 | Anlag | 54 | Fastspændingsskruer | 85 | Bund |
| 19 | Justeringsskrue | 55 | Överste anslag | 86 | Platform |
| 20 | Stoparm | 56 | Nederste anslag | 87 | Trekantslineal |
| 21 | Indstillingsgreb | 57 | Rödt indikieringsområde | 88 | Vinkelskala |
| 22 | Knast | 58 | Skrueknap | 89 | Skråsnit-skalaplade |
| 23 | Handtag | 59 | Skruearm | 90 | 0° vinkeljusteringsbolt |
| 24 | Rigel-arm | 60 | Skruestang | 91 | Skalaplade |
| 25 | Skalaplade | 61 | Skrue | 92 | Venstre 45° skråvinkel |
| 26 | Udloserknap | 62 | Skrueplade | justeringsbolt | |
| 27 | Viser | 63 | Mætrik | 93 | Hojre 45° skråvinkel |
| 28 | Aflåseknap | 64 | Holder | justeringsbolt | |
| 29 | Afbryderkontakt | 65 | 52/38° type kronefremsspring | 94 | Arbejdstykke |
| 30 | Hul til hjengelås | 66 | 45° type kronefremsspring | 95 | Laserlinie |
| 31 | Lyskontakt | 67 | 45° type indskæringsdel | 96 | Lodret skrue |
| 32 | Lys | 68 | Indvendigt hjørne | 97 | Skruetærkoffer |
| 33 | Laserkontakt | 69 | Udvendigt hjørne | 98 | Skrue (kun een) |
| 34 | Topnøgle | 70 | Kronefremsspringstopper L (venstre) (ekstraudstyr) | 99 | Linse til laserlys |
| 35 | Nøgleholder | 100 | Slidgrænsse | ||
| 36 | Midterafdækning | 101 | Kulholder.dkæsel |
SPECIFICATIONER
| Model | LS1216/LS1216L/LS1216F/LS1216FL |
| Klingediameter | 305 mm |
| Hul (skaat) diameter | Europæiske lande: 30 mm,gressive 25,4 mm |
| Maks. geringsvinkel | Venstre 52°,Højre 60° |
| Maks. skråvinkel | Venstre og højre 45° |
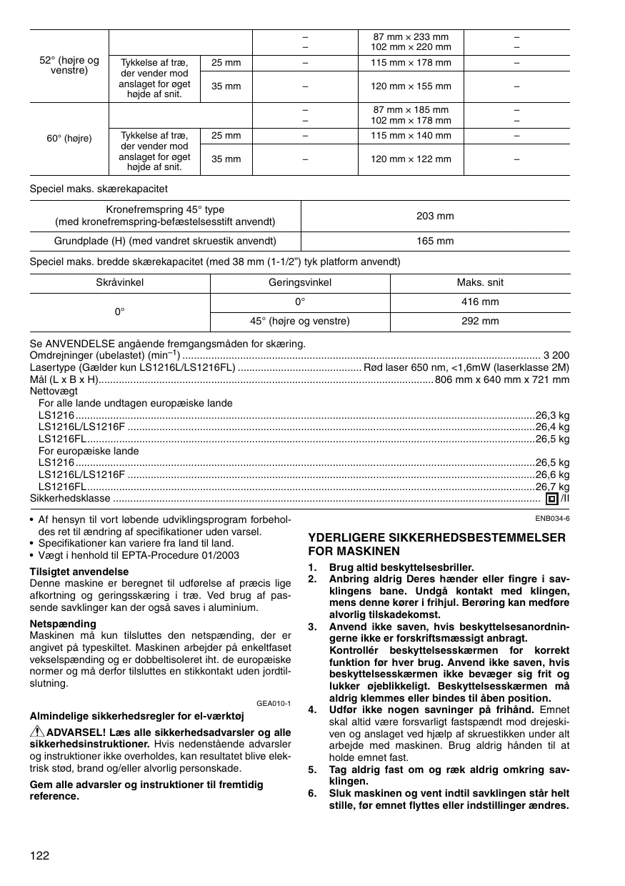
| Maks. skærekapacitet (H x B) |
| Geringsvinkel | Skråvinkel | ||||
| 45° (venstre) | 0° | 45° (højre) | |||
| 0° | 59 mm × 382 mm | 87 mm × 382 mm | 44 mm × 382 mm | ||
| Tyrkkelse af træ, der vender mod anslaget for øget højde af snit. | 35 mm | 69 mm × 363 mm | 102 mm × 363 mm | 54 mm × 363 mm | |
| 60 mm | - | 120 mm × 250 mm | - | ||
| 45° (højre og venstre) | 59 mm × 268 mm | 87 mm × 268 mm | 44 mm × 268 mm | ||
| Tyrkkelse af træ, der vender mod anslaget for øget højde af snit. | 30 mm | 69 mm × 255 mm | 102 mm × 255 mm | 54 mm × 255 mm | |
| 45 mm | - | 120 mm × 172 mm | - | ||
| 52° (højre og venstre) | - | 87 mm × 233 mm | - | ||
| - | 102 mm × 220 mm | - | |||
| Tykkelse af træ, der vender mod anslaget for øget hjde af snit. | 25 mm | - | 115 mm × 178 mm | - | |
| 35 mm | - | 120 mm × 155 mm | - | ||
| 60° (højre) | - | 87 mm × 185 mm | - | ||
| - | 102 mm × 178 mm | - | |||
| Tykkelse af træ, der vender mod anslaget for øget hjde af snit. | 25 mm | - | 115 mm × 140 mm | - | |
| 35 mm | - | 120 mm × 122 mm | - | ||
Speciel maks. skarekapacitet
| Kronefremsrising 45° type (med kronefremsrising-befæstelsessstift anvendt) | 203 mm |
| Grundplade (H) (med vandret skruestik anvendt) | 165 mm |
Speciel maks. bredde skarekapacitet (med 38 mm (1-1/2") tyk platform anvendt)
| Skråvinkel | Geringsvinkel | Maks. snit |
| 0° | 0° | 416 mm |
| 45° (højre og venstre) | 292 mm |
| Se ANVENDELSE angäende fremgangsmåden for skæring. | |
| Omdrejninger (ubelastet) (min-1) | 3 200 |
| Lasertype (Gælder kun LS1216L/LS1216FL) | Rød laser 650 nm, <1,6mW (laserklasse 2M) |
| Mål (L x B x H) | 806 mm x 640 mm x 721 mm |
| Nettovægt | |
| For alle lande undtagen europæiske lande | |
| LS1216 | 26,3 kg |
| LS1216L/LS1216F | 26,4 kg |
| LS1216FL | 26,5 kg |
| For europæiske lande | |
| LS1216 | 26,5 kg |
| LS1216L/LS1216F | 26,6 kg |
| LS1216FL | 26,7 kg |
| Sikkerhedsklasse | # /# |
- Af hensyn til vort lobeende udviklingsprogram forbeholdes ret tilændring af specifikationer.uden varsel.
- Specifikationer kan variere fra land til land.
Vægt i henhold til EPTA-Procedure 01/2003
Tilsigtet anvendelse
Denne maskine er beregnet til udforelse af præcis lige aftorkting og geringskærig i træ. Ved brug af passende savklinger kan der ösga saves i aluminium.
Netspanding
Maskinen mä kun tilslutters den netspænding, der er angivet på typeskittet. Maskinen arbejer på enkeltfaset vekelspænding og er dobbeltisoleret iht. de europæiske normer og må derfor tilslutters en stikkontakt ut den jordtil-slutning.
GEA010-1
Alminderige sikkerhedsregler for el-vaerktoj
ADVARSEL! Læs alle sikkerhedsadvarsler og alle sikkerhedsinstruktioner. Hvis nedenstænde advarsler og instruktioner ikke overholds, kan resultatet blive elektrisk stod, brand og/eller alvorlig personskade.
- Brug altid beskyttelsessbriller.
- Anbring aldrig Deres hænder eller fingre i sav-klingens bane. Undgå kontakt med klingen, mens davon kører i frihjul. Beröring kan medføre alvorlig tilskadekomst.
- Anvendlke saven, hvis beskyttelsesanordningerne ikke er forskriftsmæssigt anbragt. Kontroller beskyttelsesskærmen for korrekt Funktion für haver brug. Anvendlke saven, hvis beskyttelsesskærmen möglich bevæger sig frit og lukker øjeblikelig. Beskyttelsesskærmen ma aldrig klemmes eller bindes til äben position.
- Udfor ikke nogen savninger på frihänd. Emnet skal alltid vare forsvarligt fastspaendt mod drejeskiven og anslaget ved hjælp af skruestikken under alt arbejde med maskinen. Brug aldrig handen til at holde emnet fast.
- Tag aldrig fast om og ræk aldrig omkring savklingen.
-
Sluk maskinen og vent indtil savklingen står helt stille, for emnet flyttes eller indstillinger ændres.
-
Trak netstikket ud for der udskiftes klinge aller foretages servicering.
- Fastgor altid alle bevagelige dele, inden maskinen transporteres.
- Stopstift, som fastlaser skarehovedet, er kun beregnet til transport- og opbevaringsformal og ikke til nogen form for skæring.
- Anvend ikke maskinen iærheden at letantaendige væsker eller gasser. Den elektriske betje-ning af maskinen kan være ársag til eksplosion og brand, hvis den udsættes for antændelige væsker eller gasser.
- Før maskinen startes, bør De undersøge savklogen omhyggeligt for eventuelle brud eller,anden beskadigelse.
Revnede aller pa,anden mäde beskadigede savklinger skal straks udskiftes. - Anvend kun flanger, der er anbefalet til brug med\ denne maskine.
- Behandl aktel, flanger (speielt anlægsflanger) og bolte med omhu. Beskadigelse af disse delekan medfere beskadigelse af savklingen.
- Sorg for, at drejeskiven er fastlAst og ikke bevæger sig under brug.
- Af hensyn til Deres sikkerhed bør affald og smådele fjernes fra drejeskivens overflade, før arbejdet pâbegyndes.
- Undgà at skære i som. Fjern alle som fra emnet, før arbejdet pâbegyndes.
- Forvis Dem om, at spindellåsen er løsnet, for De starter maskinen.
- Sorg for, at savklingen ikke rørre drejeskiven i nederste position.
- Hold godt fast i grebet. Saven kan ved start og stop bevage sig let op og ned.
- Sorg for, at savklingen/DD er i beroring med emnet, fom maskinen startes.
- Før maskinen anwendes på emnet, skal den lobe i tomgang et stykke tid. Undersog om der forekommer vibrationer erller rystelser, der kan vare forarssaget af forkert montage erler manglende afbalancering af savklingen.
- Pâbegynd Först savningen, nár maskinen er oppe på fulde omdrejninger.
- Afbryd straks anwendelsen, hvis De bemærker noget unormalt under brugen.
- Forsog aldrig at fastlase afbryderen i "on" stillingen.
- Vær altid på vagt; især under gentaget, monoton tant arbejde. Det er farligt at blive lullet ind i en falsk folelse af sikkerhed. Savklingerne er meget farlige.
- Anvend altid kun det tilbehør, der er anbefalet i dette brugsanvisning. Anvendelse af upassende tilbehør, eksempelvis sliderskiver, kan medføre tilskadekomst.
- Anvend ikke saven til at skære andet end alumi- nium, træller lignende materialer.
- Tilsnut en akorter-geringsssav til en stovopsam-lende anordning, nar der saves.
- Vælg savklinger, der passer til det materiale, der skal skæres.
- Vær omhyggelig, nær der skal laves notning.
- Udskift indlægspladen, när den bliver slidt.
-
Anvend ikke savklinger, der er fremstillet af hurtigstål.
-
Stov frembragt under anvendelse kan indeholde kemikalier, der er kendefte for at kinne fremkalde kraft, give medfodte defekter erer anledning til anden skade pa forplantningsevnen. Nogle ekempler pa disse kemikalier er:
-
bly fra materialer, der er malet med blyholdigt maling
arsenik eller chrom fra kemisk behandlet tomer.
Risikoen i forbindelse med udsættelse for disse kemikalier affænger af, hvor ofte De udforer denen type arbejde. For at reducere udsættelse for disse kemikalier bør De: arbejde i veludlute de omrader og med anvendelse af godkendt sikkerhedsudstyr, sasom stovmasker, der er speielt konstrueret til at filtrere mikroskopiske partikler.
- For at reducere den frembragte mangde stov bør De sikre, at savklingen alto er skarp og ren.
- Operatoren skal vare tilstrækkelig ovet i anvendelse, justering og operation af maskinen.
- Anvend korrekt skærpede savklinger. Overhold den maksimale hastighed, der er angivet på savklingen.
- Undlad at fjerne nogen form for afskær erler andre dele af emnet fra skareomradset, sa lange maskinen korer og savhovedet违法犯罪 er i hvileposition.
- Anvend kun savklinger, som anbefales af fabrikanten og som er i overensstemmelse med EN847-1.
- Brug handsker, nár savklingen anwendes (savklinger skal bares i en holder, nár det kan lade sig gore) ell groft materiale händteres.
- Hvis maskinen er udstyret med laser, er det ilkke tilladt at erstatte den med en,anden type laser. Reparationer skal altid udfores på korrekt vis.
GEM DISSE INSTRUKTIONER.
INSTALLATION
Fastgorelse af saven pa arbejdspladsen
Ved forsendelse fra fabrik er handtaget laut i nederste position med en befaestelsesstift. Frigør befaestelsesstiften ved samtidigt at udove en let tryk nedad pa grebet og trække i befaestelsesstiften. (Fig.1)
ADVARSEL:
Sorg for, at maskinenIkke bevæger sig pa understottelsesfladen. Hvis geringsaven bevæger sig pa understottelsesfladen under skæringen, kan resultatet blive, at De mister herredømmet over saven ogkommen alvorligt til skade.
Denne maskine skal fastgøres med fire bolte på et plant og stabilt underlag ved hjælp af bolthullerne i maskinens bund. Dette vil være med til at forebygger, at maskinen tipper og forarssager perskontade. (Fig. 2)
FUNKTIONSBESKRIVELSE
ADVARSEL:
- Kontroller altid, at maskinen er slæt fra, og at netstikket er trukket ud, for der udføres justeringer erller Funktioner kontrolleres på这部分 sav. Forsommelse af at afbryde maskinen og tage den ud af forbindelse kan resultere i tilskadekomst, nrä maskinen starter.
Nár De sænker handtaget, hæver beskyttelsesskaermen sig automatisk. Beskyttelsesskaermen vender tilbage til udgangspositionen, nár savningen er færddig og handtaget hæves.
ADVARSEL:
- Beskyttelsesskærmen ma aldrig saéttes ud af Funktion og fjederen pa skærmen ma aldrig fjernes. En synlig klinge, som er et resultet af en manglende beskyttelsesskærm, kan resultere i alvorlig tilskadekomst under anvendelsen.
Deres egen sikkerheds interesse bør De altid holde besykttelsesskærmen i forskriftsmæssig stand. Forsyrelser i besykttelsesskærmens gang bør straks afhjæpes. Kontroller, at fjedrebelastninger fungerer og fár skærmen til at gå på plads.
ADVARSEL:
- Brug aldrig maskinen hvis beskyttelsesskærmen er fjederen er beskadiget, defekt eller mangler. Anvendelse af maskinen med en forkert aller aftaget beskyttelsesskærm kan resultere i alvorlig tilskadekomst.
Hvis den transparente beskyttelsesskærm bliver smudsig,ller der sidder sa meget savsmuld pa den, at savklingen ikke længere kan ses tydeligt, skal De tage saven ud af forbindse og rengore beskytelsesskærmen med en fugtg klud. Anvend ikke oplosningsmidler eller petroleum-baserede rengøringsmidler på plastic-beskyttessskærmen, da dette kan øve skade på skærmen.
Følg nedenstænde trin, hvis savklingens beskyttelsesskaerm er blevet nabset og har behov for at blive renjgort, for at den kan fungere korrekt.
Anvend, när der er slukket for maskinen og den er taget ud af forbindelse, den medfølgende topnøgle til at lysne sekskantbolten, som fastholder midterafdækningen. Lõs sekskantbolten ved at dreje den mod uret og hæv beskyttelsesskaernen og midterafskærmningen.
Med beskyttelsesskaermen anbragt på这部分 er det lettere at udførne en mere effektiv rengoring. Nå ren:gøringen er udfør, udføres den beskve n procedure i omvendt orden, og sekskantbolten spændes til. Fjern ikke den fjeder, der holder beskyttelsesskaermen. Hvis beskyttelsesskaermen udviser skade på grund af alder eller udseætelse for ultraviolet lys, bedes De kontakte et Makita service-center for at fal ny skær. OMGA ELLER AFMONTER ALDRIG BESKYTTELSESSKÆR-MEN.
Placering af indlaegsplade (Fig. 5, 6 og 7)
Denne maskine er udstyret med indlaegsplader i drejeskiven med det formal at minimere slitage pa aflstunngssiden af en savning. Indlaegspladerne er fra fabrikken indstillet saledes, at savklingen ikke kommer i kontakt med indlaegspladerne. Indstil indlaegspladerne inden brugen på folgende manners:
Tag Först maskinen ud af forbindelse. Løsn alle de skruer (3 haver i ventre st og hójre side), som fastholder indlaegspladerne. Stram kun skruerne sá meget, at indlaegspladerne stadig nemt kan fjernes med handen. Sænk handtaget welt og tryk stopstiften ind for at lase handtaget i den nederste stilling. Løsn laseskruen, som fastholder de øverste skydestænger, i retningen mod uret, og tryk ögså lasearmen, som fastholder de nederste skydestænger, fremad. Indstil indlaegspladerne säledes, at de lige netop berør er siderne på klingetanderne. Stram de forreste skruer (stram ilke for meget). Skub slæden helt mod anslaget og indstil indlaegspladerne säledes, at de lige netop berør er siderne auf klingetanderne. Stram de bageste skruer (stram ilke for meget).
Frigor stopstiften, nár indlaegspladerne er indstillet, og hæv handtaget. Stram derefter alle skruerne godt til.
BEMAERKNING:
Sorg for, nar skravinklen er indstillet, at indlaegspladerne er korrekt indstillet. Korrekt indstilling af indlaegspladerne vil bidragte til at yde den rigitige stotte til arbejdssstykket oggere risikoen for udrivning minimal.
Sikring af maksimal skaredybde (Fig. 8, 9 og 10)
Denne maskine er fra fabrikkens side indstillet til at giver den maksimale skæredybye med en 305 mm savklinge.
Tag maskinen ud af forbindelse, inden De udfoer juste- ringer.
Nár der monteres en ny savklinge, skal den nedre granseposition p klingen altid kontrolleres, og, safremt det er pákrævet, justeres som følg:
Træk forst netstikket ud. Sænk stopperarmen for at anbringe savklingen som vist på illustrationen. Skub slæden helt mod anslaget og sænk handtaget fuldstændigt. Anvende en topnøgle til at dreje"Justeringsbolten, indtil klingeperiferien stikker en smule længere ned end overfladen på drejeskiven på det sted, hvør fronten på anslaget moeder overfladen på drejeskiven.
Stadig med nettikket trukket ud, drejes savklingen med händen, mens handtaget holdes helt nede. Sorg for, at savklingen ikke berører nogen del af den nederste bund,ningar grebet er fuldt sænket. Genindstil om nodvendigt en smule.
Saet altid after justering stopperarmen tilbage til dens udgangsstilling ved at dreje den i retningen mod uret.
ADVARSEL:
- Sørg altid for,år en ny klinge er monteret, og med maskinen taget ud af forbindelse, at klingen ikkekommen i beroring med nogen dele pa den nedre bund, narr grebet ænkes helt. Hvis klingen kommt i beroring med bunden, kan resultatet blive tilbageslag med alvorlig tilskadekomst tilffe.
Stoparm (Fig. 11)
Klingens nedre grænseposition kan nemt indstilles med stoparmen. For at indstille den, drejes stoparmen i pilens retining som vist på illustrationen. Indstil justeringsskruen således, at klingen stopper i den ønskede position, nrhandaget sænkes helt.
Justering af geringssnit (Fig.12)
Tryk pá grebet, Saskatchewan gá r indgrep, og drej den i retningen med uret, indtil den stopper. Drej drejeskiven, mens De trykker lasearmen ned. Nár De har flyttet grebet til den stilling, hvor viseren peger pá den önskede vinkel på vinkelskalaen, skal De dreje grebet til 90^ i retningen mod uret for at lase drejeskiven.
FORSIGTIG:
- När geringsvinklen er øendret, skal De allid fastgore drejeskiven ved at dreje grebet til 90^ i retningen mod uret.
BEMAERKNING:
- Nár drejeskiven drejes, skal handtaget vær et helt hævet.
Justering af skravinklen (Fig. 13, 14 og 15)
For at justere vinklen ved skråsnit, lösnes handtaget pa bagsiden af maskinen i rettingen mod uret. Tryk rigelarmen hele vejen fremerefter som vist pa illustrationen, idet du understotter vaegt den af savhovedet, således at trykket pa lasestiften mindskes.
Nár slæden vipps til hjore. skal De vispe slæden en smule, after at De har lʊsnet armen, og tryk derefter pa udloserknappen. Vip slæden til hjore med udloserknappen trykket ind.
Kip savklingen, indtil viseren peger mod den onskede vinkel på skrånsitskalaen. Stram derefterhandtaget for at holde armen på plads.
När rigel-armen trækkes mod forenden af saven, kan savklingen lases med brug af positive stop til højre og venstre 22.5^ og 33.9^ vindel på bundfladen.
Nár rigel-armen trykkes mod bagenden af saven som vist på illustrationen, kan savklingen法律法规 i enhver onsket vinkel suchen for den specificerede skrånsitvinkel.
FORSIGTIG:
- After ændring af skråsnitvinklen skal handtaget altid sikres ved at handtaget spændes stramt til.
BEMÄERKNING:
Nár savklingen vippes, skal De sorge for, at grebet er helt hævet.
Husk, nár skravinklerne ænres, at placere indlaegspladerne korrekt som forsklet i afsnittet "Placering af indlaegsplade".
Skydeläsejustering (Fig. 16)
For at lase den nederste skydestang, skal De trakke lasearmen mod forsiden af saven.
For at lase den overste skydestang skal De dreje lasekruen i retningen med uret.
Afbryderfunktion
For europaeiske lande (Fig. 17)
For at forhindre at afbryderkontaktien trykkes ind ved et uheld, er maskinen udstyret med en aflaseknap. Maskinen startes ved at skubbe armen til venstre, trykke aflaseknappen ind og derefter trykke på afbryderkontaktien. Slip afbryderkontaktien for at stoppe.
ADVARSEL:
- Før netstikket sættes i en stikkontakt, bør det altid kontrolleres, at afbryderkontakten fungerer korrekt og returnerer til "OFF" stillingen, nr den slipsps. Tryk违法犯罪, ut den forst at trykke aflaseknappen ind. Dette kan ødelaegge afbryderkontakten. Anvendelse af maskinen med en afbryderkontakt, som ikke fungerer korrekt, kanffe til, at De mister herredømmet over maskinen med alvorlig tiskadekomst somresultat.
Afbryderkontakten er forsynet et hul til indsættelse af en haengelås, sä maskinen kan aflåses.
For alle andre lande end europaeiske (Fig. 18)
For at forbhindre at afbryderkontaktien trykkes ind ved et uheld, er maskinen udstyret med en aflaseknap. Start maskinen ved at trykke aflaseknappen ind og dernaest trykke pa afbryderkontaktien. Slip afbryderkontaktien for at stoppe.
ADVARSEL:
- Før netstikket sættes i en stikkontakt, bør det altid kontrølleres, at afbryderkontakten fungerer korrekt og returnerer til "OFF" stillingen, nr den slipsps. Tryk违法犯罪 at trykke aflaseknappen ind. Dette kan ødelaegge afbryderkontakten. Anvendelse af maskinen med en afbryderkontakt, som ikke fungerer korrekt, kan.fore til, at De mister herredømmet over maskinen med alvorlig tilskadekomst somresultat.
Afbryderkontakten er forsynet et hul til indsættelse af en haengelås, sä maskinen kan aflåses.
ADVARSEL:
- Anvend ikke en lás med et skaat eller et kabel, som er minde end 6,35 mm i diameter. Et minde skaat eller kabel vil muligvis ikke lase maskinen i fra-stilling og utilsiget drift kan ske med alvorlig tilskadekomst som resultat.
- Anvend ALDRIG maskinen, hvis afbryderkontaktenkke fungerer, som den skal. Enhver maskine med en ikke-virkende afbryderkontakt er MEGET FARLIG og skal reparere for yderligere anvendelse, da alvorlig tilskadekomst ellers kan blive resutatet.
- Til sikring af Deres sikkerhed er/DDne maskine forsynet med en aflaseknap, der forhinderulisigtet start af maskinen. Anvend ALDRIG maskinen, hvis den korer, narr blot De trykker pa afbryderkontakten, uden at der forst er trykker pa aflaseknappen. En afbryderkontakt, der borer repareres, kan resultere i utilisigtet drift og alvorlig tilskadekomst. Indlever maskinen til et Makita service center til reparation FOr yderligere anvendelse.
Aflaseknappen ma ALDRIG saettes ud af kraft ved at tape den fast aller p nogen anders made. En afbryderkontakt med en aflaseknap, der er sat ud af kraft, kan resultere i utilsiget drift og alvorlig tilskadekomst.
Tænd af lampen (Fig.19)
Gælder kun model LS1216F og LS1216FL
FORSIGTIG:
- Denne lampe er/DDt. Vask icke lampen med vand, og anvend den icke pa fugtige steder. Det kan medfore elektrisk stod.
- Berør ikke lampens linse, mens lampen er tændt, og umiddelbart after at den slukkes, da linsen er meget varm. Berøring af den varme linse kan give forbrænding.
- Udsæt ikke lampen for voldsomme fysiske pávirkninger, da den kan blve beskadiget, eller dens levetid kan blive nedsat.
- Lad参加会议的股东。Lad参加会议的股东可以参加股东大会,但是不能参加股东大会。
- Tildæk ikke lampen med klæde, karton, pap eller lignende materialer, mens lampen erændt, da det kan blive ársag til brand.
For at tande lyset, skal man trykke pa den overste del (I) af afbryderkontakten. For at sulkke lyset, skal man trykke pa den nederste del (O) af afbryderkontakten.
Flyt lampen for at oplyse et andet omrade.
BEMAERK:
- Benyt en tør klud til at tørre smuds af lampens linse. Undgå at ridse lampens linse, da det kan medføre reduceret lysstyrke.
Konstant hastighedskontrol
- Maskinen er udstyret med en elektronisk hastigheds-kontrol, som bidrager til at opretholde en konstant rotationshestighed for klingen, selv under belastning. En konstant rotationshestighed for klingen vil resultere i et meget jævnt snit.
Funktion for blod start
- Denne Funktion muliggør en problemfi start af maskinen ved at begrænse startmomentet.
Anvendelse af laserstråler
Gælder kun model LS1216L og LS1216FL
FORSIGTIG:
- Se aldrig ind i laserstrålen. Direkte bestråling kan føretil øjenskader.
- LASERBESTRALING. SE IKKE IND I STRALEN OG BETRAGT DEN IKKE GENNEM OPTISKE INSTRUMENTER. KLASSE 2M LASERPRODUKT.
For at aktivere laserstralen, skal De trykke pa den overste del (I) af afbryderen. For at afbryde laserstralen, skal De trykke pa den nederste del (O) af afbryderkontakten. (Fig. 20)
Laserlinien kan skiftes til enten venstre aller hójre side af savklingen ved at man justerer skruen som vist herunder. (Fig. 21)
- Løsn justeringsskruen ved at dreje den i retningen mod uret.
- Med justeringsskruen lösnet skydes justeringsskruen mod hóre eller venstre sö langt som den kankommen.
- Stram justeringsskruen godt til i den position, hvor den holder op med at glide.
Laserlinien er på fabrikken indstillet säledes, at den er placeret indenfor 1mm fra sider auf klingens overflade (skaereposition).
BEMAERK:
Hvis laserlinjen forekommer svag og svær at se pa ground af direkte sol, skal De udføre arbejdet pa et sted, hvor der erindre direkte sol.
Indstilling af laserlinien (Fig. 22)
Laserlinien kan flyttes til enten venstre eller højre side af klingen, alt after skæremetoden. Vi hemviser til forklaringen med overskriften "Anvendelse af laserstråler" angående metoden til flytning.
BEMAERK:
- Anvend traeanlag mod anslaget, nár skærelinien sætes ud for laserlinien på sider af anslaget ved kombine-ret snit (skravinkel 45 grader og geringsvinkel til højre 45 grader).
A) När den korrekte størrelse på venstre side af arbejdstykket er opnæt
- Flyt laserlinien til venstre side af klingen.
B) Nár den korrekte størrelse på hjore side af arbejdstykket er opnæt
- Flyt laserlinien til hójre side af klingen.
Sæt skærelinien på arbejdstsykket på linie med laserlinien.
SAMLING
ADVARSEL:
Sorg altid for at maskinen er slukket og netstikket trukket ud, for der arbejdes med maskinen. Forsommelse af at afbryde maskinen og tagen ud af forbindelse, kan resultere i alvorlig tilskadekomst.
Opbevaring af topnogle (Fig. 23)
Nár topnoglen skal anvendes, kan den tages ud af topnøgleholderen.
Nár topnoglen er breve anvendt, kan den opbevaraes ved at man lægger den tilbage i topnøgleholderen.
Montering og afmontering af savklingen
ADVARSEL:
- Sørg altid for at maskinen er slukket og netstikket trukket ud, før savklingen monteres eller afmonteres. Utilsigtet start af maskinen kan resultere i alvorlig tilskadekomst.
- Anvend kun den topnøgle, der er leveret af Makita til at montere eller aftontere savklingen. Forsommelse at at anvende noglen kan resultere i overstramming aller utilstrækkelig stramning af sekskantbolten og i alvorlig tilskadekomst.
Las handtaget i den haeve de position ved at trykke stopstiften ind. (Fig. 24)
For at afmontere savklingen anwendes topnoglen til at losne den sekskantsbolt, der holder midterafdækningen, ved at dreje mod uret. Loft beskyttelsesskaermen og miderafdækningen. (Fig.25)
Tryk på spindellåsen, söledes at savklingen ikke kan dreje, og losn sekskantsbolten ved at dreje den med uret med topnoglen. Fjern derefter sekskantsbolten, den ydre flange og savklingen. (Fig. 26)
BEMAERK:
- Hvis den indre flange fjernes, skal De sorge for at montere den pa spindelen med dens fremspring vendende bort fra klingen. Hvis flangen monteres forskert, vil den ginue mod maskinen.
ADVARSEL:
- Inden De monterer klingen på spindelen, skal De alltid sikre Dem, at den korrekte ring til dornhullet i den klinge, De agter at anvende, er monteret mellem den indre og ydre flange. Anwendelse at den forkerte ring til dornhullet kan resultere i fejlagtig montering af klingen, hvilket forarssager beveagelse af klingen og kraftig vibration med risiko for at De mister herredommet over maskinen under anvendelsen, og alvorlig tilskadekomst.
For at montere savklingen sættes dette på spindlen, idet De forvisser Dem om, at pilens retning på savklingen stemmer overens med pilens retning på klingehuset. Montér den ydre flange og seksskantsbolten.
Benyt derftert topnoglen til spende sekskantsbolten (venstreskaret gevind) fast ved at dreje den mod uret, mens der trykkes pa spindellasen. (Fig. 27 og 28)
Sæt besykttelsesskærmen og midderafdækningen på plads. Stram dernaest sekskantsbolten til med uret for at holde midderafdækningen på plads. Frigør handtaget fra dets hæveede position ved at trække i stopstiften. Sænk handtaget for at sikre, at besykttelsesskærmen bevæger sig korrekt. Sørg for, at spindellåsen er udlost, før det saves. (Fig. 29)
Stovpose (Fig. 30)
Anvendelse af stovposen gør skæarearbeje renere og opsamling af stov nemmere. Stovposen saettes på ved at man anbringer den på stovtuten.
Nár stovposen er cirka halvt fyldt, tages den af maskinen og lukkeskinnen trækkes ud. Tom stovposen og bank let pa den, sá de stovpartikler, der har samlet sig pa de indvendige flader og som kan nedsætte effektiviteten af stovopsamlingen, fjernes.
BEMERK:
- Hvis De tilslutter en Makita-stovsuger til denne maskine, kan renere udsugning opnas.
Stovbeholder (ekstraudstyr) (Fig. 31, 32 og 33)
Sæt støvbeholderen ind i støvmundstykket.
Tøm støvbeholderen, nár det er不同程度.
Sæt dækslet tilbage til udgangsstillingen og lás det pól plads. Støvbeholderen kan nemt tages af ved at man trækker den udad, idet man drejer den iærheden af stovmundstykket på maskinen.
BEMAERK:
- Hvis De slutter en Makita-støvsuger til deutsche maskine, kan en renere ogmere effektiv udsugning opnås.
BEM/ERKNING:
- Tøm stovposen, inden niveaet af opsamlet savsmuld nár cylinderektionen.
Fastspending af emnet
ADVARSEL:
Det er yderst vigtigt altid at sorge for, at arbejdssstykket er ordentligt fastspændt i den rigtige type skruestik ell med kronefremspringsstoppe. For sommelse af at gore dette, kan resultere i alvorlig tilskadekomst og ove skade pa maskinen og/eller arbejdssstykket.
- Efter en skæring må klingen ikke hævs,forall er standset fuldstændigt. Hvis en kinge, der kører i frihjul, hæves, kan det resultente i alvorlig tilskadekomst og øve skade pærbejdssstykket.
När der skæres i et arbejdstsykke, som er længere end savens stotteplade, bør materialet understøtes i hele dets længe duover stottepladen og i den samme hóje for at holde materialet plant. En ordentlig stotte af arbejdstsykkekitet vil bidrage til at undgå at klingen klemmes fast og til at undgå risiko for tilbageslag, som kan resultere i alvorlig tilskadekomst. Forlad Dem ikke udelukkende på den lodrette og/eller vandrette skruestik ved fastspænding af emnet. Tynde materialer har en tendens til at boje. Understet et emne i—hele dets længe, sa dé udgas at klingen klemmes fast med TilbAGESLAG somresultat. (Fig. 34)
Justering af anslag (GLIDEANSLAG, som er overste og nederste anslag)
ADVARSEL:
- Inden De begynder at anvende maskinen, skal De sikre Dem, at de overste og nederste anslag er ordentligt fastgjorte.
- Inden De udforer skrāsnit, skal De sikre Dem, at ingen del af maskinen, specielt klingen, er i beroring med de overste og nederste anslag, nar grebet sænkes og hæves welt i en hvilken som helst stilling og mens slæden flyttes hele vejen. Hvis maskinen ell klingerkommen i beroring med anslaget, kan der opsta tilbagsslag ell er un vudent bevegelse af materialet med alvorlig tilskadekomst som risultat.
De nederste anslag kan flyttes indad og udad ved at man losner fastspændingsskruerne. (Fig. 35)
Et rôtt indikieringsomrade vilkommen frem, nár de nederste anslag flyttes indad og vil forsvinde nár de nederste anslag flyttes udad.
De overste anslag kan fjernes eller flyttes indad og udad ved at man løsner armene. (Fig. 36)
I tilfaelse af skräsnit, skal man indstille stillingerne af de nederste og overste anslag, sa dekommen sa tæt pa klingen som praktisk muligt for at skaffe den maksimale stotte af arbejdsstykket, og sorge for, at ingen del af maskinen, specielt klingen, er i berøring med de nederste og overste anslag, nar grebet sænkes og hæves helt i en hvilken som helst stilling og mens slæden trækkes eller skubbess hele vejen ved den laveste stilling. (Fig. 37)
Inden en skæring laves, skal der udfores en provekørsel med maskinen slukket og taget ud af forbindelse, og afstanden mellem anslagene og de bevægende dele kontrolleres.
Inden en skæring laves,skal man fastgore de nederste anslag godt ved at stramme fastspændingskruerne og de overste anslag ved at stramme armene.
Nár skråskæring er færdig, má man ikke glemme at sætte de Øverste anslag tilbage til udgangsstillingen og sætte den tilbage.
Lodret skruestik (Fig. 38)
Den lodrette skruetik kan monteres i to stillinger pa enten den venstre eller horende af grundpladen. Sæt skruestangen ind i hullet pa grundpladen.
Indstil skruearmen after emnets tykkelse og form og fastspænd den ved hjælp af vingeskruen. Hvis skruen, der fastholder skruearmen kommer i berøring med slæden, skal De installere skruen på den anden side at skruearmen. Sorg for, at ingen del af maskinen kommer i kontakt med skruestikken, nar handtaget sænkes helt og slæden skubbes ertrækkes hele vejen. Hvis nogue dele berør skruestikken, brskruearmen gendinstilles.
Tryk emnet fladt imod anslaget og drejeskiven. Juster emnet til den ønske skraksnitsmærking og fastgør det ved at stramme skrueknappen.
Hvis skrueknappen drejes til 90^ i rettingen mod uret, kan skrueknappen flyttes op og ned, hvorved en hurtig indstilling af arbejdssstykket gores nemmere. For at fastgore arbejdssstykket after indstilling, kal De dreje skrueknappen i rettingen med uret.
ADVARSEL:
- Emnet bør vare helt fastspændt mod drejeskiven og anslaget med skruestikken under al arbejde. Hvis arbejdsemnet ikke er ordentigt fastspændt mod anslaget, kan materialet flytte sig under skæringen, hvilket kan medfrole skade på klingen og at materialet slyngses ud, samt at De mister herredømmet over maskinen med alvorlig tilskadekomst som resultat.
Vandret skruestik (ekstraudstyr) (Fig. 39 og 40)
Den vandrette skruestik kan monteres enten på venstre eller hore side af bunden.
Nár der skal laves geringssnit på 15^ allermere, skal den vandrette skruestik monteres på den side, der vender modsat auf den retning, som drejeskiven skal drejes.
Ved at dreje motrikken i retningen med uret, frigores skruestikken, og bevæger sig hurtigt ind og ud. Arbejdsemnet gribes ved at man trykker skrueknappen fremad, indtil skruepladenkommen i kontakt med arbejdsemnet og drejer motrikken i retningen med uret. Drej derefter skrueknappen med uret for at fastspænde arbejdsemnet.
Den maksimale bredde pa arbejdsemnet, der kan fastspændes i den vandrette skruestik, er 215 mm.
ADVARSEL:
- Drej altid skruestikkens motrik i retningen med uret, indtil arbejdstykket er ordentlich fastspændt. Hvis arbejdstykket ikke er ordentlich fastspændt, kan materialet flytte sig under skæringen med risiko for skade på klingen, og med det resultat at materialet slyngses ud, samt at De mister herredømmet over maskinen med alvorlig tilskadekomst somresultat.
- Ved skæring i tynde arbejdststykker, som for eksempel grundplader, mod anslaget, skal en vandret skruestik altid anwendes.
Holdere (ekstraudstyr) (Fig. 41)
Holderne kan monteres pa begge sider, hvilket er ideelt til at holde arbejdsemnet vandret. Lad holderstangerne glide ind i hullerne i bunden og indstil deres lange di overensstammelse med det arbejdsemne, som skal fast-holds. Fastgør derefter holderne ordentligt med skruerne.
ADVARSEL:
Understot altid et langt arbejdstykke saledes, at det er pa linje med drejeskivens overste overflade, saledes at skaeringen bliver nojagtig og at der ikke opstar en farlig situation, hvor man mister heredodmet over maskinen. En ordentlich understettilse af arbejdstykket bidrager til at undgå, at klingen klemmes fast, og forhinder tilbageslag, som kan resultere i alvorlig tilskadekomst.
ANVENDELS
BEMAERKNING:
Forbetjeningborhandtagetaltidfrigoresfra den nederste stillingvedatmantrakkeribefaestelsessstifen.
- Læg ikke for meget tryk på handtaget,ningar der saves. For kraftigt tryk kan resultere i overbelastning af motoren og/eller formindsket savekapacitet. Tryk kun handtaget ned med sä meget kraft, som der kræves for at udfare ubesværét savning og uten at klingens hastighed reduceres ret meget.
- Tryk forsigtigt handtaget ned for at udfrole savningen. Hvis handtaget trykke ned med magt, eller hvis det udsettes for sidelæns tryk, vibrerer savklingen og afterlader mærker (savmærker) på emnet, ligesom savningen ikke vil blive nogjagtig.
- Ved glidende snit skal slæden forsigtigt skubbies mod anslaget uten at stoppe. Hvis slæden stoppes under savningen, vil derkommen et mærke på emnet og savningen vil heller ikke nojagtig.
ADVARSEL:
Sorg for at savklingen不解 bereremnet, el. lign. For maskinen startes. Hvis man tander for maskinen, mens klinger er i beroring med arbejdssstykket, er der risiko for tilbageslag og alvorlig tilskadekomst.
1. Savning ved tryk (små emner) (Fig. 42)
Emner op til 87 mm hije og 183 mm brede kan saves pafolgende maje.
Nár stopperarmen er drejet i retningen med uret og slæden er skubbet til den ønskede stilling, skal De skubbe slæden—hele vejen mod anslaget og stramme laseskruen med uret og trække lasearmen mod forenden af saven for at fastgore slæden. Fastgor arbejdstkyket korrekt med den rigtige type skruestik er kronefremspringsstopere. Spænd emnet fast med skruestikken.
Tænd for maskinen,.uden at klingenkommen i Kontakt, og vent til klingen er kommet op pa fulde omdrejninger, inden sænkning. Sænk derefter grebet til den helt sæn-kede position for at skare arbejdstykket. När snittet er aflsuttlet, slukkes maskinen hvorefter DE SKAL VENTE TIL SAVKLINGEN STAR HELT STILLE før savhovedet bringse tilbage i dens øverste position.
ADVARSEL:
- Stram laseskruen godt i retningen med uret og træk lasearmen mod forenden af saven, sa sleden ikke flytter sig under arbejdet. Utilstrækkelig stramning af laseskruen kan medføre tilbageslag, som kan resultere i alvorlig tilskadekomst.
2. Savning ved gliden (tryk) (skæring af brede arbejdsemner) (Fig. 43 og 44)
Lösna laseskruen i retningen mod uret og tryk ogsa lasearmen fremad, säledes at slæden kan glide frit. Fastspænd arbejdstykket med den rigtige type skruestik. Taend for maskinen, uden at klingen kommt i kontakt med emnet og vent, indtil klingen er kommet op pa fuld hastighed. Tryk handaget ned og TRYK SLÄDEN MOD ANSLAGET OG GENNEM ARBEJDSEMNET. Afbryd maskinen, nar skæringen er faerdig og VENT TIL SAVKLINGEN STÁR HELT STILLE, inden De sætter klingen tilbage til den øverste position.
ADVARSEL:
- Nár De udfær et glidende snit, skal slæden først trækkes—hevejeen mod Dem, mens grebet trykkes helt ned, og derefter skubbes slæden—hevejen mod anslaget. Start aldrig skæringen, hvis slæden ikke er trukket—hevejen mod Dem. Hvis De foretager det glidende snit, utden at slæden er trukket—hevejen mod Dem, kan der opstá uventede tilbageslag med alvorlig tilskadekomst somresultat.
- Forsog aldrig at udføre et glidende snit ved at trække slæden mod Dem. Hvis De trækker slæden mod Dem under skæring, kan der opstá uventede tilbageslag med alvorlg tilskadekomst somresultat.
- Udfor aldrig savning ved gliden med handtaget LAST den nederste position.
- Lasn aldrig knappen, som fastholder slæden, mens savklingen roterer. En lss slæde under skæring kan bevirke, at der opstár vumentede tilbageslag med alvorlig tiskadekomst somresultat.
3. Geringssnit
Vi henviser til det tidigere aftnit "Justering af geringsnit".
4. Skräsnit (Fig. 45)
Løsn armen og vip savklingen for at indstille vinklen til skråsnit (Se det tidigere afsnit "Justering af skravinklen"). Sørg for at spænde armen godt fast igen, sa skråsnitvinklen ikke ønder sig. Fastspænd arbejdsemnet i skruestikken. Tænd for maskinen, uten af savklingen berorer arbejdsemnet og vent, til klingen har naet fulde omdrejninger. Sænk derefter forsigtigt handtaget til den laveste position, mens der lægges tryk parallelt med savklingen og SKUB SLAEDEN MOD ANSLAGET FOR AT SKARE ARBEJDSEMNET. Når snittet er afsluttet, skal De slukke for maskinen og VENTE TIL SAVKLINGEN STAR HELT STILLE, for savklingen brings tilbage til dens øverste position.
ADVARSEL:
- Sørg for, after indstilling af klingen til skråskæring, og inden De anvender maskinen, at slæden og klin-gen kan bevege sig uhindret gennem hele området for det planlage stnit. Afbrydelse af slædens eller klingens bevegelse under skæringen, kan resultere i tilbageslag og alvorlig tilskadekomst.
-
Hold hænderne eden for klingens bane, när en skråskæring udføres. Klingens vinkel kan forvirre operatoren med hensyn til klingens faktiske bane under skæringen, og kontakt med klingen vil føre til alvorlig tilskadekomst.
-
Klingen bør ikke hæves, for den er stoppet welt. Under en skråskæring, kan det afskärne stykkke kommt til at hvile mod klingen. Hvis klingen hæves, mens den roterer, kan det afskärne stykkne blve slyngen bort fra klingen, hvilket kan bevirke, at materiaiet fragmenteres, og hvilket kan fore til alvorlig tilskadekomst.
BEMÄRKNING:
- Nár handtaget trykkes ned, skal dette gores samtidig med at savklingen trykkes ned. Hvis der bruges magt lodret på drejeskiven aller hvis trykket ændres under bearbejdningen, bliver det udforte arbejde ikke nojag-tigt.
- Inden skraskaering udfores, kan en justering af det overste anslag og det nederste anslag vare pakravet. Se afsnittet "Justering af anslag".
5. Kombineret snit
Kombineret snit er beteagnelsen for den proces, hvor der frembringes en skravinkel samtidig med at der laves en geringsvinkel i emnet. Kombineret snit kan udfores i en vinkel som vist i nedenstaende tabel.
| Geringsvinkel | Skråvinkel |
| Venstre og højre 0° – 45° | Venstre og*højre 0° – 45° |
Krone- og indskæringsdele kan skæres med en akortergeringssav med delene placeret fladt pa drejeskiven. Der er to almindelige type kronefremspring og en type indskæringsdel, 52 / 38^ vægvinkelkronefremspring, 45^ vægvinkelkronefremspring og 45^ vægvinkelindskæringsdele. Se illustrationerne. (Fig. 46)
Mäl væglængden og juster arbejdsstykket på bordet for at skare vægkontaktkanten til den ønskede længe. Sørg altid for, at det aktärne arbejdsstykket længe på bagsiden af arbejdsstykket er den samme som væglængden. Indstil skærelængden for vinklen at skæringen. Anvend altid flere stykker til proveskaeringer for at kontrollere savvink-lerne.
Nár De skærer kronefremspring og indskæringsdele, skal skravinklen og geringsvinklen indstilles som indikeret i tabellen (A) og delene på topfladen af savpladen placeres som indikeret i tabellen (B).
Ved venstre skråsnit
Tabel (A)
| Fremspringsposition i Fig. 47 og 48 | Skråvinkel | Geringsvinkel | |||
| 52/38° type | 45° type | 52/38° type | 45° type | ||
| Til indvendigt hjørne | (1) | Venstre 33,9° | Venstre 30° | Højre 31,6° | Højre 35,3° |
| (2) | Venstre 31,6° | Venstre 35,3° | |||
| Til udvendigt hjørne | (3) | ||||
| (4) | Højre 31,6° | Højre 35,3° | |||
Tabel (B)
| Fremspringsposition i Fig. 47 og 48 | Fremspringskant mod anslag | Færdiggjort stykke | |
| Til indvendigt hjørne | (1) | Loftskontaktkanten bør hvile mod anslaget. | Afluttet stykke vil+vare på venstre side af klingen. |
| (2) | Vægkontaktkanten bør hvile mod anslaget. | ||
| Til udvendigt hjørne | (3) | Afluttet stykke vil+vare på hjore side af klingen. | |
| (4) | Loftskontaktkanten bør hvile mod anslaget. |
Eksempel:
I tilfaelde af skearing af 52 / 38^ type kronefremspring til stilling (1) i Fig. 47 og 48:
Vip og fastgør skravinkelindstillingen til 33,9^ VENSTRE.
- Juster og fastgør geringsvinkelindstillingen til 31,6^ HJRE.
- Læg kronefremspringet med den brede bagside (skjult) nedad på drejeskiven med dens LOFTSKONTAKTKANT mod anslaget på saver.
- Det færdfige stykke, som skal anvendes, vil altid vare pa den VENSTRE side af klingen, after at skaeringen er lavet.
Ved hjre skrasnit
Tabel (A)
| Fremspringsposition i Fig. 47 og 48 | Skråvinkel | Geringsvinkel | |||
| 52/38° type | 45° type | 52/38° type | 45° type | ||
| Til indvendigt hjørne | (1) | Højre 33,9° | Højre 30° | Højre 31,6° | Højre 35,3° |
| (2) | Venstre 31,6° | Venstre 35,3° | |||
| Til udvendigt hjørne | (3) | ||||
| (4) | Højre 31,6° | Højre 35,3° | |||
Tabel (B)
| Fremspringsposition i Fig. 47 og 48 | Fremspringskant mod anslag | Færdiggjort stykke | |
| Til indvendigt hjørne | (1) | Vægkontaktkanten bør hvile mod anslaget. | Afluttet stykke vil+vare på hjørde side af klingen. |
| (2) | Loftskontaktkanten bør hvile mod anslaget. | ||
| Til udvendigt hjørne | (3) | Afluttet stykke vil+vare på venstre side af klingen. | |
| (4) | Vægkontaktkanten bør hvile mod anslaget. |
Eksempel:
I tilfaelde af skæring af 52 / 38^ type kronefremspring til stilling (1) i Fig. 47 og 48:
Vip og fastgør skravinkelindstillingen til 33.9^ HJRE.
- Juster og fastgør geringsvinkelindstillingen til 31,6^ HJRE.
- Læg kronefremsringet med den brede bagside (skjult) nedad på drejeskiven med dens VæGKONTAKTKANT mod anslaget på saven.
- Det færdfige stykke, som skal anvendes, vil altid vare pa den HØJRE side af klingen, after at skæringen er lavet.
Kronefremspringsstoppere (ekstraudstyr) muliggør nemmere sinit af kronefremspring uden at vippe savklingen. Monter den på grundpladen som vist på illustrationerne. (Fig. 49 og 50)
Fig. 49: Ved højre 45^ geringsvinkel
Fig. 50: Ved venstre 45^ geringsvinkel
Anbring kronefremspringet med dens VæGKONTAKTKANT mod anslaget og dens LOFTSKONTAKTKANT mod kronefremspringsstopperne som vist på illustrationen (Fig. 51). Juster kronefremspringsstopperne i overensstemmelse med størlsen af kronefremspringene. Stram skruerne for at fastgore kronefremspringsstopperne. Se tabellen (C) angäende geringsvinklen.
Tabel (C)
| Fremspringsposition i Fig. 47 og 48 | Geringsvinkel | Færdiggjort stykke | |
| Til indvendigt hjørne | (1) | Højre 45° | Anvend stykke på hjore side af klingen |
| (2) | Venstre 45° | Anvend stykke på venstre side af klingen | |
| Til udvendigt hjørne | (3) | Anvend stykke på hjore side af klingen | |
| (4) | Højre 45° | Anvend stykke på venstre side af klingen |
7. Skæring af aluminium-profiler
Nár aluminium-profiler fastspændes, skal der anvendes en afstandsklods ell er stykke affaldstrae som vist i Fig. 52 for at forhindre, at aluminiumet bliver bojet ell beskadiget. Anvend skareolie, nar der skares aluminium-profiler for at forhindre, at der sætter sig aluminiump savaklingen.
FORSIGTIG:
- Forsog aldrig at skare tykke erler runde aluminiumprofiler. Tykke erler runde aluminium-profiler kan vare vanskelige at fastgore og de kan blive lose under skaeringen, hvilket kan fere til, at De mister herredommet over maskinen, og alvorlig tilskadekomst.
8. Traeanlaeg (Fig. 53)
Anvendelse af traeanlaeg hjælper med til opnæelse af snit, der er fri for splinter. Fastgør et traeanlaeg til anslaget ved hjælp af hullerne i anslaget og 6 mm skruer.
Se illustrationen angäende malene for et foreslaet treaanlaeg.
FORSIGTIG:
- Anvend et lige stykke træ med ensartet tykkelse som traeanlaeg.
For at kurne skarehelt igennem arbejdststykker af en hojde pa 102 mm til 120 mm, skal et traanlaeg anvendes pa anslaget. Traeanlaegget vil holde arbejdststykket pa afstand af anslaget, hviket muliggcr or dybere snit.
Eksempel:
När der skæres arbejdsemner med en hójde på 115 mm og 120 mm, skal der anwendes et traeanlaeg med følgende tykkelse.
| Geringsvinkel | Tykkelse af træanlæg | |
| 115 mm | 120 mm | |
| 0° | 35 mm | 60 mm |
| Venstre og hjore 45° | 30 mm | 45 mm |
| Venstre og hjore 52° | 25 mm | 35 mm |
| Højre 60° | 25 mm | 35 mm |
ADVARSEL:
- Anvend skruer til at montere traeanlægget pa anslagget. Skruerne bør installereres såedes, at skruhovederne er under overfladen at traeanlægget, sa de/DDke vil komme i vejen for placeringen af det materiale, der kal skares. Forkert placering af det materielle, der skal skares, kan medfere uventet forrykkselde under skaringen, hvikket kan bevirke, at De mister herredommnet over maskinen ogkommen alvorigt tilskade.
BEMAERKNING:
Nar treaanlaegget er monteret, ma De/DDke dreje bunden med handtaget sankket. Klingen og/eller treaanlaegget vil i sa fald lidie skade.
9. Notskaring (Fig. 54)
En skæring af frisetyper kan udføres ved at man gár frem som følger:
Indstil den nedre grænseposition for klingen ved hjælp af justeringsskruen og stoparmen for at begrense savklingenskaeredybde. Se det tidiligere aftnit "Stoparm".
Nár klingens nedre grænseposition er indstillet, skæres parallelle noter langs arbejdsemnet med anvendelse af savning med gliden (tryk) som vist på illustrationen. Fjern derefter materiaiet mullem noterne med ennejssel.
ADVARSEL:
- Forsog违法犯罪
- Forsog isnke at udføre denen type skæring ved at anvende en bredere type klinge eller friseskæringsklinge. Forsog på at udføre en notskæring med en bredere type klinge eller en friseskæringsklinge kan före til uventede skæringsresultater og tilbageslag, hvilket kan före til alvorlig tilskadekomst.
Sorg altid for at sætte stoparmen tilbage til udgangsstillingen, nar De udforer,anden notskaring.Forsog pa at udforse skæringer med stopperarmen i en forkert stilling, kan fore til uventede skæringsresultater og tilbageslag,hvillet kan fore til alvorlig tilskadekomst.
10. Teknik til speciel maks. breddeskaeringskapacitet
Den maksimale breddeskæringskapacitet for denne maskine kan opnas ved at man folger nedenstaende trin: Angaende den maksimale skarebredde for denne maskine, henvises til SPECIFICATIONER under "Speciel maks. bredde skerekapacitet"
1) Indstil maskinen til 0^ aller 45^ geringsvinkel og sorg for, at drejeskiven er laut. (Se "Justering af geringsnuit.")

2) Fjern bade hore og venstre anslag midlertidigt og laeg dem til side.
3) Skaar en platform med de mal, som er angivet i ovenstaende tegning og brug af et 38 mm tykt blokmateriale som f.eks. trea, krydsfiner ell er spanplade.
ADVARSEL:
Sorg for at anvende en flad blok som platform. En blok, der ikke er flad, kan flytte sig under skaeringen, hvilket kan resultere i tilbageslag og alvorlig tilskadekomst.
BEMAERK:
Den maksimale skarekapacitet i hojden vil blive reduceret med den samme maengde som platformtykkelsen.
4) Anbring platformen på maskinen, säledes at den stikker lige meget ud over hvr side af maskinens bund.
Fastgor platformen til maskinen ved hijelp af fire 6 mm træskruer gennem fire huller i de nederste anslag. (Fig.55)
ADVARSEL:
- Sorg for, at platformen ligger fladt mod maskinens bund og er godt fastgjort til de nederste anslag med brug af die fire skruhuller. Forsommelse af at fastgore platformen ordentlich kan resultere i den flytter sig og risiko for tilbageslag, hvikket kan føre til alvorlig tilskadekomst.
- Sørg for, at maskinen er sat godt fast på en stabil og plan overflade. Hvis maskinen ikke monteres og fastgores ordentlich, kan den blive ustabil, hvilket kan resultere i at De mister herredømmet over den eller at den falder ned, hvilket kan före til alvorlig tilskadekomst.
5) Montér begge de aftagne, øverste anslag pã maskinen.
ADVARSEL:
- Anvend/DDkaskinen, uden at de overste anslagerpamoneret. De ovre anslag yder den pkraveede stotte til skearing af arbejdstsykkek.
Hvis arbejdsstykket ikke understøtes ordentligt, kan det flytte sig, hvilket kan resultere i risiko for, at De mister herredommet, tilbageslag og alvorlig tilskadekomst.
6) Anbring det arbejsstykke, der skal skares, pa den platform, som er fastgjort til maskinen.
7) Fastgor arbejdstyykket godt mod de overste anslag med en skruestik, inden skaeringen pabegyndes.
8) Sorg for at skare langsomt gennem arbejdstykket ved at flege fremgangsmaden under "Savning ved gliden (tryk) (skering af brede arbejdsemner). (Fig. 56)
ADVARSEL:
Sorg for, at arbejdstsykket er fastspandt med skruestikken og udfor snittet langsomt. Forsommelse af at fastspende arbejdstsykket ordentigt og skare langsomkt kan resultere i risiko for tilbageslag og alvorlig tilskadekomst.
Vær opmaerkomsom pa, at platformen after udforelse af flere sinit ved forskellige geringsvinkler, kan blive svækket. Hvris platformen bliver svagere som et resultat af flere indlaegssnit, der afterlades i materiaiet, bor den skiftes ud med en ny. Hvris den svækkede platform违法犯罪es ud, kan det medfrole, at arbejdstykket flytter sig under skaringen, hvilket kan resulte i risiko for tilbageslag og alvorlig tilskadekomst.
Transport af maskinen
Sorg forst for, at maskinen er taget ud af stromforbindelse. Fastg klingen ved 0^ skrasnitvinkel og drej bunden til den fulde højre geringsvinkelposition. Fastgor skydestaengerne säledes, at den nederste skydestang er last i stillingen med slæden trukket helt mod operatoren og de overste skydestaenger er last i stillingen med slæden skubbet helt frem til anslaget (se afsnitet mtitled "Skydelasejustering"). Sænk handtaget helt og lás det i den nederste position ved at trykke stopstiften ind. (Fig. 57)
ADVARSEL:
- Befaestelsesstiften er kun beregnet til transport- og opbevaringsformal og den bør aldrig anvendes til skæringer. Anvendelse af befaestelsesstiften til skæringer kan fore til uventede skæringsresultater og tilbageslag, hvillet kan fore til alvorlig tilskadekomst.
Bær maskinen ved at holde i begge sider af maskinens bund som vist på illustrationen. Hvis De fjerner holderne, stavposen etc., bliver det nemmere at bære maskinen. (Fig. 58)
FORSIGTIG:
- Fastgor altid bevagelige dele, for maskinen transporteeres. Hvis deli af maskinen bevager sig erer glider, nara maskinen barees, kan De miste herredommet over maskinen ell tabe fodfestet, hvilket kan resultere i alvorlg tilskadekomst.
VEDLIGHOLDELS
ADVARSEL:
- Kontroller altid, at maskinen er slaet fra, og at netstikket er trukket ud, for der udfores eftersyn uller vedligeholdelse. Forsommelse af at tage maskinen ud af forbindelse og slukke for den kan resultere i utilisigtet start af maskinen, hvilket kan resultere i alvorlig tilskadekomst.
Sorg altid for, at klingen er skarp og ren for at opnadet bedste resultat. Forsog paa stkaere med en slov/snavset klinge kan medfere tilbageslag og resultere i alvorlig tilskadekomst.
BEMAERKNING:
- Anvend aldrig benzin, rensebenzin, fortynder, alkohol og lignende. Resultatet kan blive misfarvning, deformering eller rechner.
Indstilling af skarevinklen
Denne maskine er omhyggeligt indstillet og justeret fra fabrikkens side, men indstillingerne kan forandres under transport og brug. De kan selv foretage indstlinger, som beskrevet her, his maskinen ikke er indstillet korrek:
1. Geringsvinkel
Flyt slæden mod anslaget og stram laseskruen i retningen med uret og træk lasearmen mod forsiden af saven for at fastgøre slæden.
Drej grebet i rettingen mod uret, hvilket fastgør drejeskiven. Drej drejeskiven, SSEviseren kommer til at stä ud for 0^ på vinkelskalaen. Drej derefter en smule i rettingen med og mod uret for at stille drejeskiven i 0^ mærket. (Lad den vare som den er, hvis viseren ikke stär ud for 0^ ). Løsn sekskantboltene, som holder anslaget, med topnøgren.
Sænk handaget helt og lás det i den nederste position ved at skubbe stopstiften ind. Sæt savklingens side i en ret vinkel til anslagets forside ved hjælp af en trekantsli- neal, anslagsvinkel etc. Fastspænd sekskantboltene pa anslaget, begynde fra hójre. (Fig. 59)
Sorg for at viseren star ud for 0^ pa vinkelskalaen. Hvis den ikke gør det, lønsnes skruen, som holder viseren, og viseren justeres. (Fig. 60)
2. Skravinkel
Tryk rigel-armen helt frem for at frigore de positive stop. 1) 0^ skravinkel
Flyt slæden mod anslaget og stram laseskruen i ret- ningen med uret og trak lasearmen mod forsiden af saven for at fastgore slæden. Sank handtaget fuld- stændigt og læs det i den laveste position ved at skubbe lasestiften ind. Armen bag på maskinen losnes.(Fig.61)
Drej sekskantsbolten på højre side af armholderen toller tre gange mod uret for at hælde savklingen mod højre. (Fig. 62)
Sæt savklingens side i en retvinkel til overfladen at drejeskiven ved hjælp af trekantslineal, anslagsvinkel, etc. ved at dreje sekskantsbolten på højre side af armholderen med uret. Stram armen til. (Fig. 63) Sørg for, at de to visere på armholderen peger mod 0^ på skalaen på armen. Hvis de ikke peger mod 0^ , skal skruerne, der holder viserne, lønses og justeres SSE de peger mod 0^ . (Fig. 64)
2) 45^ skravinkel (Fig. 65)
Juster kun 45^ skravinklen after at have udfør justeringen for 0^ skravinklen. Juster 45^ skravinklen ved at losne handtaget og helse klingen helt til venstre. Sorg for, at viseren pa armholderen peger pa 45^ pa skalaen pa armen. Hvis viseren ikke peger pa 45^ , drejes den venstre 45^ skravinkeljusteringsbolt pa sider af armen, indtil viseren peger pa 45^ .
For at justere hójre 45^ skravinkel, udføres samme procedure som den herover beskrevne.
Indstilling af laserliniens position (Fig. 66 og 67)
Gælder kun model LS1216L og LS1216FL
ADVARSEL:
- Eftersom maskinen skal vare sat i forbindelse, mens laserlinjen justeres, skal man vare saerlig opmærksom på违法犯罪 for maskinen. Utilisitet start af maskinen kan resultere i alvorlig tilskadekomst.
FORSIGTIG:
Se aldrig direkte ind i laserstralen. Hvis ojnene udsættes direkte for stralen, er der risiko for alvorlige øjenskader.
LASERBESTRALING
Se ikke ind i stralen.
BEMAERKNING:
Vær opmaerk som pa, at his maskinen udssætties for stød, kan laserlinjen blive skæv eller laseren kan lide skade med akfortning af dens levetid somresultat.
Justering af laserlinjen til venstre side af klingen.

1 Skrue til ændring af justeringsskruens flytbare område
2 Justeringsskrue
3 Sekskantnogle
4 Laserlinie
5 Savklinge
Justering af laserlinjen til højre side af klingen.

1 Justeringssskrue
2 Savklinge
3 Laserlinie
- Kontroller, at maskinen er taget ud af forbindelse.
- Lav skærelinien på arbejdstsykket og æg det på drejeskiven. På dette tidspunkt på arbejdstsykket ilke fastspændes med en skruestik eller en lignende fastspændingsanordning.
- Sænk savklingen ved at sænke handtaget og kontrol-ler, hvor skærelinien og savklingens position er. (Bestem, hvilken position der skal skæres i på skærelinien).
- Sæt grebet tilbage til dets udgangsstilling, narr den korrekte position af linjen i forhold til klingen er bestemt. Fastspænd arbejdstykket med den lodrette skruestik,.uden at flytte arbejdstykket fra dets tidligere bekrafte de stilling.
- Tilslut maskinen og aktiver laserknappen.
- Indstil laserliniens position som vist herunder.
Laserliniens position kan ændres i takt med at de bevægelige omrade for justeringsskruen for laseren ændres ved at man drejer to skruer med seksskantbolten. (Det bevægelige omrade for laserlinien er fabriksindstillet indenfor 1 mm fra savklingens side.)
For at flytte laserliniens bevægelige omrade længere væk fra savklingens side, skal De dreje de to skruer i retningen mod uret, nar justeringsskruen er losnet. Drej disse to skruer i retningen med uret for at fore den nærmere savklingenside, nar justeringsskruerne er losnet.
Se afsnitnet med titlen "Anvendelse af laserstraler" og indstil justeringsskruen således, at skærelinien pa arbejdsstykket flugter med laserlinien.
BEMAERK:
- Kontroller med jævne mellemrum, om positionen af laserlinien er præcis.
- Fá maskinen repareret hos et servicecenter, der er autoriseret af Makita, hvis laserdelen ikke fungerer.
Rengoring af laserlyslinsen (Fig. 68 og 69)
Gælder kun model LS1216L og LS1216FL
Hvis linsen til laserlyset er blevet snavset, eller hvis savsmuld har sat sig fast pa den pa en sändan måde, at laserlinien/DDREi.
af forbindelse og rengore laserlyset omhyggeligt med en blod, fugit klud.Der ma ikke anvendes oplonsningsmidler.
eller petroleumsbaserede rengoringsmidler til rengoring at linsen.
Linsen til laserlyset fjernes ved at man afmonterer savklingen, inden linsen fjernes, i overensstemmelse med anvisningerne i afsnittet med titlen "Montering og afmontering af savklingen".
Løsn, men fjern ikke skruen, der holder linsen, ved hjælp af en skruetrækker.
Trak linsen ud som vist på illustrationen.
BEMAERK:
Hvis linsen不解 kommer ud, skal De Iosne skruen yderligere og trakke linsen ud igen uten at fjerne skruen.
Udskiftning af kulbørsterne (Fig. 70 og 71)
Tag kulbørsterne ud og efterse dem periodisk. Kullene skal udskiftes, nár de er slidt ned til slidgræsen. Hold kulbørsterne rene, sá de altid passer ind i hullerne. Begge kulbørster bør udskiftes parvis og samtidigt. Anvend kun identiske kulbørster.
Benyt en skruetrækker til at fjerne kuldakslerne. Tag de slidte kulborster ud, saet de nye i, og fastgør kuldakslerne.
Sæt maskinen i forbindelse, after at børsterne er skifftet ud, og kør børsterne til ved at køre maskinen,uden belastning i omkring 10 minutter. Kontroller derefter maskinen, mens den kør, og den elektriske bredsefunktion, nar afbryderkontakten slipspes. Hvis den elektriske bredse ikke fungerer korrekt, skal maskinen indleveres til reparation hos et Makita service-center.
After anvendelse
- After anwendelse aftorres spaner erller stov, der matte klaebe til maskinen, med en klud aller lignende. Hold beskytttsesskærmen ren som beskrevet i afsnittet "Beskytttsesskaerm". Smør de glidende dele pa maskinen med oile for at forhindre rustdannelse.
- När maskinen skal opbevares, skal slæden trækkes helt mod Dem selv, sä tappene bliver sat helt ind i drejeskiven.
For at opretholde produktets SIKKERHED og PALIDELIGHTED, ma istandsaettelse, vedligeholdelse erller justering kun udfores af et autoriseret Makita service center med anvendelse af Makita reservatione.
TILBEHØR
ADVARSEL:
- Dette Makita udstyr og tilbehør bør anwendes sammen med Dere's Makita maskine, sádan som det er beskrevet i/DDne brugsanvising. Anvendelse af andet ekstraudystyr eller tilbehør kan resultere i i alvorlig tiskadekomst.
- Anvend kun Makita ekstraudstyr eller tilbehor til det beregned formal. Misbrug af ekstraudstyr eller tilbehör kan resultere i alvorlig tilskadekomst.
Hvis De behover hjælp ved valg af tilbehörller onsker yderligere informationer, bedes De kontakte Deres lokale Makita service center.
- Savklinger med stål- ogHardmetalplatte
| Geringssavklinger | Til jævn og præcis skæring af forskellige materialer. |
| Kombination | Klinge til generelt formål til hurtig og jævnt spaltesnit, krydssnit og geringssnit. |
| Krydsskæring | Til jævnere tværløbssnit. Skærer rent mod Åretegningen. |
| Fine krydsskæringer | Til sandfri snit mod Åretegningen. |
| Geringssavklinger af ikke-jernholdigt metal | Til geringssnit i aluminium, kobber messing, rør og andere ikke-jernholdige metaller. |
- Skruestik (vandret skruestik)
- Lodret skruestik
- Topnøgle 13
- Holder
- Stovpose
- Stoppersæt med kronefremsprings
- Trekantet lineal
- Stovbeholder
- Sekskantnøgle (til LS1216L og LS1216FL)
IIeipypaqni yeviknc aioync
1 Πειρος αναστολής
2 Eeaywvikoi koxlaε
3 PpofoAkaTnpaClambda
4 IaaKa 2yKoTnS
5 Aaqa npioviou
6 OV I a
7 ApioTepn KwviKn KOnn
8 Euθúγραμο κόψιμο
9
10 MoXaoc aOaIaIOns
11 Koxlaic aoaqaiions
12 Mroulovi puθioun
13 Pepiotpoikipao
14 MoxloocavaoToaEa
15 v a c o i n s
16 Avεπιφανεια περιστροφικής βαόης
17 Pepiepiaa aua
18
19 Bida puOthion
20 Bpaixovac avaotolns
21 Aαβ
22 'EKKevtpo
23 Moxlo
24 MoXaOc mavdaawon
25 Πλακα κλιμακας
26 Koupi aneAe uOepwons
27 ik s
28 Koumi anaopaiionc
29 ΣΚανδαλη διακόπης
30 Omλoukεtou
31 Dlakontns
32
33 i 0 n i
34 Koio kειδi
35 Θηκη κλειδιού
36 Kεvτρικό καλυμμα
37 Aσφάλιοη ἀξονα
38 Θηκη λαμας
39 Bελος
40 EeTepikn avtca
41 Eωτερική φλάντζα
42 Axiio
43
44 Στόμιο σκόνης
45 ZakoosKovns
46SigmaTnpa
47 Kouti oKovns
48 KaAuμa
49 Koumti
50 Tmu kulivopou
51 Pioovokov
52 YnooTpiyμa
53 IepiotpophiKβaon
54 Koxlaic ouophiIeNs
55 NaVwΦpaXtns
56 KaTw paXtns
57 Kokkivn npiox
58 Kouπi μεγγενης
59 Bpaixiovac
60 Paβδoc μεγγενης
61 Biða
62 Iλαka μεγγενης
63 a
64 Θηκη
65 Avayluqn moppwon steysnc uno ywvia 52/38
66 Avayluon pfoan oTeynoc UTO yovia 45°
67 Mopwom Koiawtnc mapkicac uryo yavia 45c
68 EoTepikn ywvia toixou
69 E5wTepiKj ywiia toixou
70 ApTePoc avaToLaeac npOphiOn aTeyn (TpoaiPeTuO aEooAp)
71 6Eioac avoaToIeAc npofownc otEyn (npoaipeitko aEoouap)
72 ApioTePoc avaOToLaeoc oPphiOnoTeync
73 avaotolaeac oTepns
74 Avayluon o 0Teys
75 Meyevn
76 TakoosntnpiEns
77 EkBoλn aλouμiviou
78 Yπερ 15 xιλ
79 Yπερ 290 xιλ
80 Yπερ 340 xιλ
81 Tpu
82 Kóψμo auλακωσεων μετη λάμα
83 Biδες (δύο σε κὰθε πλεύραι)
84 KaTw φpaxtns
85 Bao
86 Nlaatphiopua
87 Tpiywoikos kavovas
88 Λοξή κλιμακα
89 Pλαka Kλiμακa Φλτοκοπις
90 Koxliaic puθμiounγωvia 0°
91 Pλακa κλιμακας
92 Mtnoulovi puθμianç
apiotερις κωνικις γωνiac
45°
93 Mnoulovi puθμiαns δεξiας Kwivikns γωνiας 45°
94 Teuxo epyaia
95 i
96 KataKOpuΦn μεγγενη
97 Katogai
98 Bida (muia)
99Φakoi yia tnv λaμna λειερ
100 Σημαδι opiou
101 Kanaki ηηκης ψηκτρας
IPOΔIΓPAΦΕΣ
Vi, Makita Corporation, erklær, som den ansvarlige fabrikant, at den (de) ffolgende Makita maskine(r):
Maskinens betegnelse: Afkorter-geringsssav
Model nr./Type: LS1216, LS1216L, LS1216F, LS1216FL
er af sérieproduktion og
og er fremstillet i overensstemmelse med de folgende standarder eller standardiserede dokumenter: EN61029
Den tekniske dokumentation opbevares af vores autoriserede representant i Europa, som er:
Makita International Europe Ltd,
Det typiske A-vægtede stojniveau bestem i overensstemmelse med EN61029:
Lydtryksniveau (L_pA) : 88 dB (A)
Lydeffektniveau (L_WA) : 101 dB (A)
Usikkerhed (K): 3 dB (A)
Bae horeværn
ENG238-2
Vibration
Vibrations emissonsværdi bestem i overensstemmelse med EN61029:
Vibrationsafgivelse (a_h) .. 2,5m / s^2 ellerindre
Usikkerhed (K): 1,5 m/s²
Den angivne vibrationsemissionsvaeri er breve malt i overensstemmelse med standardtestmetoden og kan anvendes til at sammenigne en maskine med en,anden.
Den angivne vibrationsemmisionsværdi kan ogsa anwendes i en preliminær eksponeringsvurdering.
ADVARSEL:
Vibrationsemissionen under den faktiske anvendelse af maskinen kan vare forselig fra den erklarede emissionsværdi, afhengigt af den mnde, hvorpå maskinen anwendes.
Sorg for at identificere de sikkerhedsforskrifter til beskytelse af operatoren, som er baseret pa enurdering af eksponering under de faktiske brugsforhold (med hensyntagen til alle dele i brugscyklen, som feks. de gange, hvor maskinen er slukket og när den korer i tomgang i tilgit fil afbrydertiden).
EAAHNIKA
ENG102-3
OopuBos
To tuniok A einnieo mertnpnvou oopou kaohopi etai ouphiwa u to EN61029: