FS 91 - Pejs Jøtul - Gratis brugsanvisning og manual

Find enhedens vejledning gratis FS 91 Jøtul i PDF-format.

📄 96 sider Dansk DA 💬 AI-spørgsmål
Notice Jøtul FS 91 - page 16

Brugerspørgsmål om FS 91 Jøtul

0 spørgsmål om dette apparat. Besvar dem du kender, eller stil dit eget.

Stil et nyt spørgsmål om dette apparat

L'email reste privé : il sert seulement à vous prévenir si quelqu'un répond à votre question.

Ingen spørgsmål endnu. Vær den første til at stille et.

Download vejledningen til din Pejs i PDF-format gratis! Find din vejledning FS 91 - Jøtul og tag din elektroniske enhed tilbage i hånden. På denne side er alle dokumenter nødvendige for brugen af din enhed offentliggjort. FS 91 af mærket Jøtul.

BRUGSANVISNING FS 91 Jøtul

Er størrelsen/avstand til brannmur i henhold til mont. anvisningen? ?trellortnok elairetam trabnnerb lit dnatsva rE

Er underlagsplate/forplatens størrelse i henhold til mont. anvisningen? ?gnimmarmo dem detsdli va netkev tevlug relåT

Det må være en avstand på minimum 500 mm til brennbart tak over ildstedet.

  • Hvor røykuttaket skal være.

4. Ta ut hansken og skålen som ligger i askeskuffen. Skålen skal

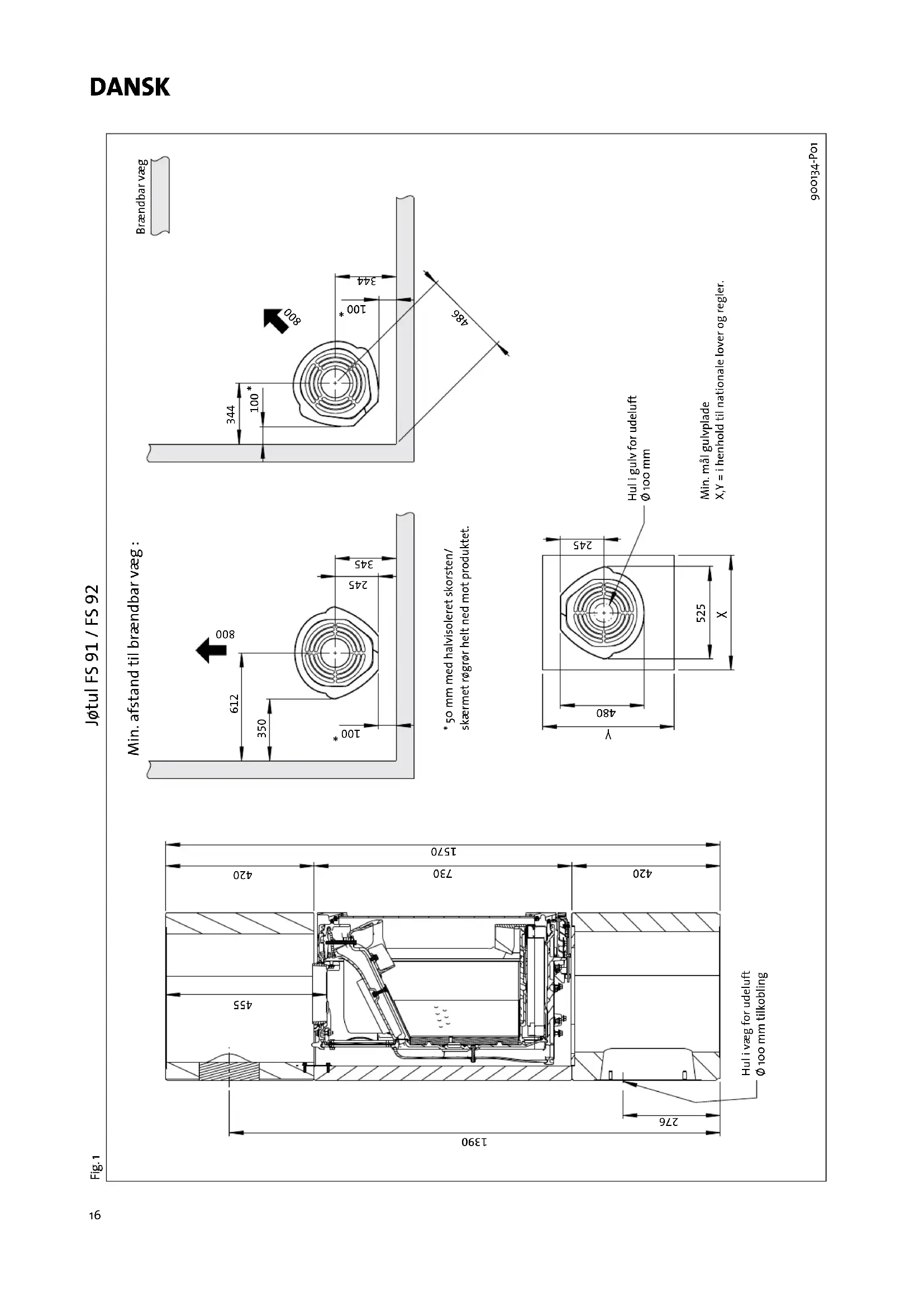
Jøtul FS 91 og FS 92 er et fritstående produkt, hvor Jøtul F 480 er brugt som brændkammer, og som kan placeres mod brændbare vægge med de afstande, der er beskrevet i fig. 1. Installationen af en brændeovn skal overholde det enkelte lands love og regler. Alle lokale forordninger skal også overholdes ved installation af produktet. Monteringsanvisningen for brændeovnen følger med omramningen. Monterings- og brugsanvisningen, som gælder for indsatsen, er vedlagt indsatsen. Vedr. daglig brug, vedligeholdelse, servicearbejder osv., se denne. Kontakt dine lokale bygningsmyndigheder vedrørende restriktioner og installationskrav. Installationen må først tages i brug, når den er inspiceret og godkendt af kvalificeret personale. Produktet er testet og dokumenteret som fritstående brændeovn i henhold til EN 13240. Godkendelsesskiltet for det fritstående produkt er vedlagt omramningens monteringsanvisning. Skiltet klippes ud og sættes fast på skiltet til brændkammeret.

Materiale: Støbejern/beton Overfladebehandling brændkammer: Lak Brændselstype: Træ Maks. trælængde: 30 cm Røgudtag: Topp, bak Røgrørsdimension: Ø 150 mm Udelufttilslutning: Alu. flex - Ø 100 mm Vægt brændkammer, ca: 117 kg Vægt omramning, ca: 164 kg Højde: 1570 mm Bredde: 525 mm Dybde: 480 mm Minimumafstand til loft: 500 mm Produktmål, afstande: Se fig. 1 Tekniske data i h.h.t. EN 13240 Nominel varmeafgivelse: 6,0 kW Røggas massestrøm: 6,0 g/s Anbefalet skorstenstræk: 12 Pa Virkningsgrad: 79%@6 kW CO-emission (13% O

Driftsform: Intermitterende Ved intermitterende forbrænding forstås her normal brug af en brændeovn, dvs. der skal lægges nyt brændsel i, straks når det forrige er brændt ned til gløder.16

Hul i væg for udeluftØ 100 mm tilkoblingHul i gulv for udeluftØ 100 mmMin. mål gulvpladeX,Y = i henhold til nationale lover og regler.* 50 mm med halvisoleret skorsten/skærmet røgrør helt ned mot produktet. Min. afstand til brændbar væg : Brændbar væg DANSK17

OBS! For at sikre optimal funktion og sikkerhed anbefaler Jøtul, at installationen udføres af en kvalificeret montør (se forhandlerliste på www.jotul.dk). Eventuelle ændringer på produktet, som foretages af forhandleren, montøren eller brugeren, kan medføre, at produktet og sikkerhedsfunktionerne ikke fungerer, som de skal. Det samme gælder montering af tilbehør eller ekstraudstyr, som ikke er leveret af Jøtul. Dette kan også ske, hvis dele, som er nødvendige for brændeovnens funktion og sikkerhed, er blevet afmonteret eller fjernet. I alle disse tilfælde fraskriver producenten sig sit ansvar, og reklamationsretten bortfalder.

3.1 Brandforebyggende tiltag

Enhver brug af brændeovnen kan udgøre en vis fare. Tag derfor hensyn til følgende anvisninger:

  • De mindste tilladte sikkerhedsafstande ved installation og brug af brændeovnene findes i fig. 1 i produkternes installationsmanualer.
  • Sørg for, at møbler og andet brændbart materiale ikke kommer for tæt på brændeovnen. Den mindste afstand foran brændeovnsåbningen til brændbart materiale skal være 1000 mm.
  • Lad ilden brænde ud. Den må aldrig slukkes med vand.
  • Brændeovnen bliver varm under fyring og kan give forbrændinger, hvis den berøres.
  • Asken må kun fjernes, når brændeovnen er kold. Aske kan indeholde gløder og bør derfor opbevares i en ubrændbar beholder.
  • Aske skal placeres forsvarligt udendørs eller tømmes, hvor den ikke medfører brandfare. Ved skorstensbrand:
  • Luk alle luger og ventiler.
  • Hold dør og evt. askedør på brændeovnen lukket.
  • Kontrollér, om der er røg på loftet og i kældre.
  • Ring til brandvæsnet.
  • Før brændeovnen kan tages i brug efter en brand eller et til- løb til brand, skal brændeovn og skorsten være kontrolleret og fundet i orden af fagkyndigt personale.

Fundament Man skal sikre sig, at fundamentet er dimensioneret til brændeovnen. Se vægtangivelse i «2.0 Tekniske data». Det anbefales at fjerne gulve, der ikke er monteret på fundamentet – såkaldte flydende gulve – ved en installation. Krav til beskyttelse af trægulve under brændeovnen Produktet har integreret gulvbeskyttelse og kan derfor placeres direkte på et trægulv. Eventuelle gulvbelægninger af brændbart materiale, såsom linoleum, tæpper osv., skal fjernes under produktet. Krav til beskyttelse af brændbart gulv foran brændeovnen. Frontpladen skal overholde nationale love og regler. Kontakt de lokale bygningsmyndigheder vedrørende restriktioner og installationskrav.

Afstand til væg af brændbart materiale - se fig. 1. Det er tilladt at bruge brændeovnen med uisoleret røgrør med de afstande til væg af brændbart materiale, der er vist i fig. 1. Sørg for, at møbler og andet brændbart materiale ikke kommer for tæt på brændeovnen. Den mindste afstand foran brændeovnsåbningen til brændbart materiale skal være 800 mm.

Der skal være en afstand på min. 500 mm til brændbart loft over brændeovnen.

Der skal strømme luft mellem indsatsen og omramningen som sikkerhed for, at varmeopbygningen inde i omramningen ikke bliver for stor. NB! Det er meget vigtigt ikke at tildække luftåbninger. Se fig. 1 vedr. afstande. Mængden forbrændingsluft for Jøtuls produkter er ca. 25-40mD/h. DANSK18

En bøjelig tilførselsslange med mulighed for indtag af udeluft direkte ind til produktet kan monteres på følgende måder:

  • Gennem et hul, der udføres i markeringen på bundpladen.
  • Via hullet i omramningens bagkant. Forslag til montering af flexslangen til forbrændingsluft: Fig. 2a, gennem ydervæg Fig. 2b, gennem gulv og plade på jorden Fig. 2c, gennem gulv og kælder Fig. 2d, indirekte gennem ydervæg

Skal der benyttes en topmonteret stålskorsten, monteres et uisoleret rør fra indsatsen til ca. 10 mm over topristen. Fig. 3 10 mm Montér derefter stålskorstenen efter brugsanvisningen.

NB! Kontrollér, at brændeovnen er uden skader, før installationen påbegyndes. NB! Produktet er tungt! Sørg for hjælp, når det skal sættes op og monteres. Brændkammeret er for-tungt. Pas på, at det ikke falder forover. NB! Læs monterings- og brugsanvisningen nøje før montering af brændeovnen! Det anbefales, at man prøveopstiller omramningen for at justere indsatsen og røgrørstilslutningen. Brug den medfølgende akrylmasse i alle samlinger.

NB! Kontrollér, at produktet ikke har synlige skader ved udpakningen, og at betjeningshåndtagene let kan bevæges. Forberedelser Før installationen skal der tages en beslutning om:

  • Hvor røgudtaget skal være.
  • Eventuel brug og placering af udelufttilslutning. Se specifikke manualer for montering af delene. Der er behov for følgende værktøj under montering af produktet: Vaterpas, skralde m/nøglevidde 10 og 13 mm og unbrakonøgle med nøglevidde 5 mm. DANSK19 Fig. 4

pappet ud på gulvet bag brændeovnen.

4. Tag handsken og skålen, som ligger i askeskuffen, ud. Skålen

6. Læg forsigtigt ovnen ned på ryggen. Byg op med palle og 3

stk. emballagestøtter på undersiden, således at ovnen hviler på disse (se fig. 5). Fig. 6

7. Monter gevindstænger (fig. 6 B).

8. Monter udeluftsdækslet med 4 møtrikker og skiver (fig. 7 A).

9. Sæt justeringsskruerne på.

4.2 Skorsten og røgrør

  • Brændeovnen må kun tilsluttes skorsten og røgrør, der er godkendt til fastbrændsel med en røggastemperatur som angivet i «2.0 Tekniske data».
  • Skorstenstværsnittet skal minimum være tilpasset brændeovnen. Brug gerne «2.0 Tekniske data» ved beregning af det korrekte skorstenstværsnit.
  • Tilslutning til skorsten skal udføres i henhold til skorstensleverandørens monteringsanvisninger.
  • Før der laves hul i skorstenen, bør brændeovnen prøveopstilles med henblik på korrekt afmærkning for placering af brændeovn og hul i skorstenen. Se fig. 1 for minimumsmål.
  • Sørg for, at røgrøret stiger hele vejen frem til skorstenen.
  • Brug røgrørsbøjning med fejedør for at sikre fejemulighed ved bagudtaget.
  • Vær opmærksom på, at det er meget vigtigt, at tilslutningerne har en vis fleksibilitet. Dette forhindrer, at bevægelser i installationen fører til revnedannelser.
  • Anbefalet skorstenstræk, se «2.0 Tekniske data». For røgrørsdimension med det pågældende tværsnit, se «2.0 Tekniske data». OBS! Den mindste anbefalede skorstenslængde er 3,5 m fra røgrørsindføringen. Ved for højt træk kan man installere og betjene et røgrørsspjæld til regulering af trækket.

1. Sokkelen sættes på plads. Læg et vaterpas på, og ret evt.

skævheder op med lim eller mørtel.

3. Pladsering af ildstedet. Se figur 1 for detaljer.

Fig. 10 Ved brug af udelufttilslutning, (ekstraudstyr, kat. nr. 51012164) skal denne monteres nu.

4. Sæt brændkammeret på plads i de fire hullerne i sokkelpladen.

5. Kontrollér, at flexislangen til forbrændingsluft ikke kommer

i klemme. Slangen føres ud gennem hullet i sokkelens bagkant.

6. Godkendelsesskiltet, der er monteret med en wire, lægges

ind under brændkammeret og ned i sokkelen. DANSK21 Fig. 11

7. Justér brændkammeret horisontalt, så det flugter med

8. Stil brændkammeret i vater, og juster det vertikalt med

møtrikkerne (fig. 11 A). NB! Det er meget vigtigt, at brændkammeret står korrekt i vater vertikalt!

9. Montér de to lange gevindstængerne (fig. 11 B).

11. Monter fæstebrikkerne mellem oversiden og bagstykket på

12. Monter topdelen. Pas på at den er kant i kant med bagstykket.

Fig. 16 Montering ved bagudtag:

Se monterings- og brugsanvisningen for Jøtul F 480 (kat.nr. 10047257) vedrørende brug og vedligeholdelse af produktet!

Maling kan udføres dagen efter montering. Brug vandbaseret maling. Hvis man ønsker lidt struktur i overfladen, kan man blande lidt fliselim i malingen.

Når ildstedet er monteret, bør man spartle evt. sår eller ujævnheder i betonen. Hertil kan man bruge den medfølgende cementspartel.

  • For at opnå det bedst mulige resultat bør man slibe omram- ningen med fint sandpapir og polere evt. ujævnheder og skarpe kanter, før man maler.
  • Påfør et lag maling.
  • Bland pulveret (cementspartel) med vand, så massen bliver letflydende (som tandpasta).
  • Spartl ujævnheder - lad det tørre, og polér med fint sandpapir.
  • Hvis såret er dybt, anbefales det at spartle ad to omgange for at undgå, at spartelmassen synker.
  • Mal igen i den ønskede farve.

Efter nogle måneders brug kan der i nogle tilfælde opstå små revner i samlingerne på grund af sætninger i huset. Disse revner kan nemt repareres:

  • Rids revnen op med et stykke værktøj, f.eks. en skruetrækker, for at give bedre plads til fugemasse.
  • Støvsug først for at fjerne alt støv. Sprøjt derefter akrylfugemasse ind, og jævn massen med en fingerspids dyppet i sæbevand.
  • Efter et par døgn kan fugen overmales. DANSK23

7.1 Genbrug af emballage

Ildstedet bliver leveret med følgende emballage:• Palle af træ som kan saves op og brændes i ildstedet.• Emballage i pap som skal leveres til genvinding.• Poser i plast som skal leveres til gjenvinding.

7.2 Genbrug af ildstedet

Ildstedet består af:• Metal som skal leveres til gjenvinding.• Glas som skal håndteres som specialaffald. Glasset fra ildstedet kan ikke lægges i kontaineren for almindelig glas ved kildesortering.• Brændplader i vermikulitte kan leveres som almindelig affald.

10.0 Reklamationsret

Jøtul AS giver 10 års reklamationsret på udvendigt støbejern med henblik på materialefejl og fabrikationsfejl efter første gangs køb/installation. Reklamationsretten forudsætter, at brændeovnen er monteret i henhold til gældende love og forskrifter, samt Jøtuls monterings- og brugsanvisning. Reklamationsretten dækker ikke: Montering af tilbehørsdele, f.eks. for at udbedre eksisterende trækforhold, lufttilførsel eller andre forhold, som er uden for Jøtuls kontrol. Reklamationsretten omfatter ikke forbrugsdele som f.eks. brændplader, røgvenderplader, fyrrist, bundrist, ildfaste sten, spjæld og pakninger, da dette nedbrydes med tiden pga. almindeligt slid. Reklamationsretten dækker ikke skader, der er opstået som følge af fyring med uegnet brændsel som f.eks. drivtømmer, imprægneret og lakeret træ, bræddestumper, spånplader og lign. Ved brug af uegnet brænde kan der let opstå overfyring, dvs. at brændeovnen bliver rødglødende med konsekvenser som f.eks. misfarvning af lakken samt revnedannelse i støbejernet.Reklamationsretten gælder ikke for skader, som er opstået under transport fra forhandleren til installationsstedet. Den gælder heller ikke ved brug af dele, der ikke er originaldele. DANSK24 les combustibles recommandés.Respectez les consignes d'utilisation. Utilisez uniquementVerwenden Sie nur empfohlenen Brennstoffen.Montage- und Bedienungsanleitung beachten. Follow user`s instructions. Use only recommended fuels.standardCertificate/The appliance can be used in a shared flue.Minimum distance to adjacent combustible materials:Emission of CO in combustion productsSerial no: Y-xxxx, Year: 200xManufacturer:N-1602 FredrikstadNorwayJøtul ASPOB 1441SwedenEUR IntermittentNominal heat output NorwayCountryOperational typeFuel typeOperation rangeEfficiencyKlasse IIClassificationStandardFlue gas temperature Room heater fired by solid fuelProduct:JøtulSP Sveriges Provnings- och221546Forskningsinstitut ABSP Swedish National Testing and ResearchInstitute Approved by

Vejledningsassistent
Powered by Anthropic
Venter på din besked
Produktinformation

Mærke : Jøtul

Model : FS 91

Kategori : Pejs