DHE 18 SLi - Elektrický ohřívač vody STIEBEL ELTRON - Bezplatný návod k obsluze
Najděte návod k zařízení zdarma DHE 18 SLi STIEBEL ELTRON ve formátu PDF.
Často kladené otázky - DHE 18 SLi STIEBEL ELTRON
Questions des utilisateurs sur DHE 18 SLi STIEBEL ELTRON
0 question sur cet appareil. Repondez a celles que vous connaissez ou posez la votre.
Poser une nouvelle question sur cet appareil
Stáhněte si návod pro váš Elektrický ohřívač vody ve formátu PDF zdarma! Najděte svůj návod DHE 18 SLi - STIEBEL ELTRON a vezměte svůj elektronický přístroj zpět do rukou. Na této stránce jsou zveřejněny všechny dokumenty potřebné k používání vašeho zařízení. DHE 18 SLi značky STIEBEL ELTRON.
NÁVOD K OBSLUZE DHE 18 SLi STIEBEL ELTRON
1.1 Bezpečnostní pokyny 82
1.2 Jiné symboly použité v této dokumentaci 83
1.3 Měrné jednotky 83
- Bezpečnost 83
2.1 Použití v souladu s určením 83
2.2 Všeobecná bezpečnostní upozornění 83
2.3 Kontrolní symbol 83
-
Popis přístroje 84
-
Nastavení a zobrazení 84
4.1 Ovládací panel na přístroji 84
4.2 Nastavení teploty 85
4.3 Vyvolání funkce monitoru úspor 85
4.4 Nastavení na přístroji 86
-
Čištění, péče a údržba 87
-
Odstranění problémů 87
INSTALACE
- Bezpečnost 88
7.1 Všeobecná bezpečnostní upozornění 88
7.2 Předpisy, normy a ustanovení 88
- Popis přístroje 88
8.1 Rozsah dodávky 88
8.2 Příslušenství 88
- Příprava 89
9.1 Místo montáže 89
9.2 Nastavení z výroby 89
- Montáž 90
10.1 Dokončení montáže 92
10.2 Alternativy montáže 92
- Uvedení do provozu 95
11.1 První uvedení do provozu 95
11.2 Opětovné uvedení do provozu 95
-
Režim Zákaznický servis 95
-
Uvedení mimo provoz 96
-
Odstraňování poruch 96
-
Údržba 98
-
Technické údaje 98
16.1 Rozměry a přípojky 98
16.2 Schéma elektrického zapojení 98
16.3 Množství smíchané vody / výstupní množství ____ 99
16.4 Oblasti použití / Převodní tabulka 99
16.5 Ztráty tlaku 99
16.6 Podmínky v případě poruchy 99
16.7 Údaje ke spotřebě energie 100
16.8 Tabulka údajů 100
ZÁRUKA
ŽIVOTNÍ PROSTŘEDÍ A RECYKLACE
OBSLUHA
1. Obecné pokyny
Kapitola „Obsluha“ je určena uživatelům přístroje a specializovaným odborníkům.
Kapitola „Instalace“ je určena specializovaným odborníkům.

Upozornění
Před použitím si pozorně přečtěte tento návod a pečlivě jej uschovejte.
Případně předejte návod dalšímu uživateli.
1.1 Bezpečnostní pokyny
1.1.1 Struktura bezpečnostních pokynů

UVOZUJÍCÍ SLOVO druhu nebezpečí
Zde jsou uvedeny možné následky nedodržení bezpečnostních upozornění.
Zde jsou uvedena opatření k odvrácení nebezpečí.
1.1.2 Symboly, druh nebezpečí
| Symbol | Druh nebezpečí |
![]() | Úraz |
![]() | Úraz elektrickým proudem |
![]() | Popálení nebo opaření |
1.1.3 Uvozující slova
| UVOZUJÍCÍSLOVO | Význam |
| NEBEZPEČÍ | Pokyny, jejichž nedodržení má za následek vážné nebo smrtelné úrazy. |
| VÝSTRAHA | Pokyny, jejichž nedodržení může mít za následek vážné nebo smrtelné úrazy. |
| POZOR | Pokyny, jejichž nedodržení může mít za následek středně vážné nebo lehké úrazy. |
1.2 Jiné symboly použité v této dokumentaci

Upozornění
Pokyny jsou odděleny vodorovními čarami nad a pod textem. Všeobecné pokyny jsou označeny symbolem zobrazeným vedle.
▶ Texty upozornění čtěte pečlivě.
Symbol
| Věcné škody(poškození přístroje, následné škody, škody na životním prostředí) | |
| Likvidace přístroje |
Pokud přístroj používají děti nebo osoby s omezenými tělesnými, senzorickými nebo duševními schopnostmi, doporučujeme trvalé omezení teploty. Omezení můžete nastavit sami, nebo je nastaví specializovaný odborník:
- Dětskou pojistku může nastavit uživatel
- Ochranu proti opaření může nastavit specializovaný odborník

Věcné škody
Uživatel musí přístroj a armaturu chránit před mrazem.
2.3 Kontrolní symbol
Viz typový štítek na přístroji
▶ Tento symbol vás vyzývá k určitému jednání. Potřebné úkony jsou popsány po jednotlivých krocích.
1.3 Měrné jednotky

Upozornění
Pokud není stanoveno jinak, jsou rozměry uvedeny v milimetrech.
2. Bezpečnost
2.1 Použití v souladu s určením
Přístroj je určen k použití v domácnostech. Mohou jej tedy bezpečně obsluhovat neškolené osoby. Lze jej používat i mimo domácnosti, např. v drobném průmyslu, pokud způsob použití v takových oblastech odpovídá určení přístroje.
Jiné použití nebo použití nad rámec daného rozsahu je považováno za použití v rozporu s určením. K použití v souladu s určením patří také dodržování tohoto návodu a návodů k použivanému příslušenství.
Tlakové zařízení slouží k ohřevu pitné vody nebo k dodatečnému ohřevu předehřáté vody. Přístroj může zásobovat jedno nebo několik odběrných míst.
2.2 Všeobecná bezpečnostní upozornění

POZOR popálení
Armatura může za provozu dosáhnout teploty vyšší než 60 °C.
Pokud je výstupní teplota vyšší než 43 °C hrozí nebezpečí opaření.

VÝSTRAHA úraz
Přístroj smí používat děti od 8 let a osoby se sníženými fyzickými, senzorickými nebo mentálními schopnostmi nebo s nedostatečnými zkušenostmi a znalostmi pouze pod dozorem, nebo poté, co byly poučeny o bezpečném použití přístroje jsou si vědomy nebezpeči, která z jeho použití plynou. Nenechávejte děti, aby si s přístrojem hrály. Čištění a údržbu, kterou má provádět uživatel, nesmí provádět samotné děti bez dozoru.
Potvrzení a osvědčení platná v jednotlivých zemích: Německo
K přístroji je vydáno na základě místních stavebních předpisů všeobecné osvědčení stavebního dozoru jako potvrzení o použitelnosti z hlediska hlučnosti.

text_image
STIEBELTRON DIN 4109 PA-IX 6830/I MPA NRW.3. Popis přístroje
Plně elektronicky regulovaný přístroj s automatickou úpravou výkonu udržuje konstantní výstupní teplotu vody. Plně elektronický regulační systém v součinnosti se servoventilem zajišťuje ohřev vody na přesně nastavenou teplotu. Tato funkce probíhá nezávisle na vstupní teplotě vody.
Teplota teplé vody
Výstupní teplotu vody můžete plynule nastavovat. Na displeji se zobrazí nastavená teplota.
Topný systém
Topný systém s holou spirálou je vybaven uzavřeným tlakovým měděným pláštem. Topný systém je vhodný pro vodu s nízkým i vyšším obsahem vápenných solí, systém je do značné míry necitlivý vůči zanášení vodním kamenem. Topný systém zajištuje rychlou a účinnou přípravu teplé vody.

Upozornění
Přístroj je vybaven zařízením, které rozpoznává, zda je v systému voda. Tím je zabráněno poškození topného systému. Pokud se za provozu dostane do přístroje vzduch, automaticky dojde na jednu minutu k vypnutí ohřevu a topný systém je tak chráněný.
Podsvícení displeje
Displej je opatřen dvoubarevným podsvícením (zelená / jantarová).
Ukazatel efektivity
Zelené ECO podsvícení signalizuje mimořádně ekonomické provozní podmínky
- je-li zapnutý výkon nižší než 80 %
- je-li při vstupní teplota vody nad 35 °C maximální výkon nižší než 80 %
- je-li při zapnuté ECO funkci maximální výkon nižší než 80 %
Ve všech ostatních provozních režimech má podsvícení jantarovou barvu.
Monitor úspor
Přístroj je vybaven funkcí monitorování úspor. Tato funkce je aktivována stisknutím příslušného tlačítka. Zobrazení:
- Úspora energie*
- Úspora vody*
- Nízké emise CO _2 *
- Množství energie
- Spotřeba vody
* v porovnání s průtokovými ohřívači vody. Výpočet pro tříčlennou domácnost se spotřebou užitkové vody a užitné energie na jednu osobu podle VDI 2067. Ceny elektrické energie a vody můžete ručně naprogramovat.
4. Nastavení a zobrazení
Přístroj můžete nastavit pomocí ovládacího panelu.
Upozornění pro teplotu na vstupní straně
Pokud je vstupní teplota vyšší než požadovaná, např. v případě solárního předehřívání vody, bliká ukazatel teploty a druhý ukazatel zobrazuje teplotu na přítoku. Voda nebude dále ohřívána.

text_image
STIEBEL EITRON 38.5°C 42.0°C M i D0000331131 Bliká ukazatel teploty
2 Ukazatel vstupní teploty
3 Světelná dioda nebezpečí opaření; červená světelná dioda při nastavení teploty > 43 °C
Doporučené nastavení při provozu s termostatickou armaturou
Nastavte teplotu na přístroji na 60 °C.
Po prerušení prívodu vody
Viz kapitolu „Opětovné uvedení do provozu“
4.1 Ovládací panel na přístroji

text_image
STIEBEL ELTRON 38.5 °C Error 10.5 L/min ECO 7 6 5 4 3 2 1 M i 10 D00000331141 Regulátor teploty
2 Světelná dioda nebezpečí opaření
3 Paměťové tlačítko
4 Tlačitko nabídky, např. ECO
5 Zobrazení doplňkové hodnoty
6 Zobrazení topného výkonu
7 Zobrazení teploty
8 Symbol servisu
9 Symbol chyby
10 Informační tlačítko - nabídka úsporného programu
Při dodání je nastaveno podsvícení displeje tak, aby se automaticky rozsvítilo, jakmile použijete nastavovací regulátor, stisknete některé z tlačítek, nebo pokud přístroj ohřívá. Po 30 sekundách bez stisknutí jakéhokoliv tlačítka nebo bez ohřevu podsvícení zhasne. Podsvícení můžete přepnout i na trvalé svícení.
Symboly

text_image
8.0 m³ L/min kWh ECO max °C 1 2 3 4 5 6 26_02_02_1230_1 Sprchování wellness
2 Automatické množství vody
3 ECO
4 Dětská pojistka
5 Zobrazení doplňkové hodnoty
6 Čas
4.2 Nastavení teploty

text_image
2 M i 3 1 26_02_02_1321_1 Nastavení teploty 20 - 60 °C v krocích po 0,5 °C, OFF = topný systém vypnutý
2 Vyvolání uložené teploty
3 Vyvolání funkce monitoru úspor
Pod pamětové tlačítko M můžete uložit požadovanou teplotu.
▶ Zvolte požadovanou teplotu.
▶ Stiskněte a podržte 2 sekundy tlačitko M. Jako potvrzení 1x blikne ukazatel teploty.
4.3 Vyvolání funkce monitoru úspor
Struktura nabídek na příkladu v eurech (EMU)

text_image
i Eur 26 kWh Reset M 2 sec. Eur 0 kWh 1 i Eur 150 m' Reset M 2 sec. Eur 0 m' 2 i C02 280 Reset M 2 sec. C02 0 3 i 1200 kWh Reset M 2 sec. 0 kWh 4 i 26 m' Reset M 2 sec. 0 m' 5 i 2 sec. / time-out 10 sec. D00000329041 Úspora energie
Úspora energie v eurech (EMU) je vypočtena a zobrazena ve srovnání s průtokovými ohřívači vody.
2 Úspora vody
Úspora vody v eurech (EMU) je vypočtena a zobrazena ve srovnání s průtokovými ohřívači vody.
3 Emise CO2
Snížení emisí CO2 v kg je vypočteno a zobrazeno ve srovnání s průtokovými ohřívači vody.
4 Množství energie
Zobrazení spotřebované energie v kWh.
5 Spotřeba vody
Zobrazení spotřebované vody v m³.
1 stisknutí START-nabídky
1 stisknutí Přepnutí nabídky
Stisknutí a podržení 2 sekundy KONEC

Přepnutí nastavení / kontrola
Struktura nabídky

flowchart
graph TD
A["OFF 4 - 15 l/min"] --> B["ECO"]
C["OFF 20 - 60 °C"] --> D["°C max"]
E["OFF 1 | 2 | 3 | 4"] --> F["OFF"]
G["OFF 5 - 200 l"] --> H["OFF"]
I["I/min"] --> J["0000"]
K["12:00"] --> L["I/min"]
M["00:00 - 23:59"] --> N["00:00 - 23:59"]
O["Auto"] --> P["Auto"]
Q["On"] --> R["On"]
S["bernstein/amber"] --> T["Bernstein/amber"]
U["grün/green"] --> V["Grün/green"]
W["Eur"] --> X["Eur"]
Y["cur"] --> Z["cur"]
AA["Eur 0_00...9999 €/kWh"] --> AB["0_22 €/kWh"]
AC["cur 0_00...9999 cur/kWh"] --> AD["0_22 cur/kWh"]
AE["Eur 0_00...9999 €/m³"] --> AF["5,00 €/m³"]
AG["cur 0_00...9999 €/m³"] --> AH["5,00 cur/m³"]
AI["CO2 0...2000 g/kWh"] --> AJ["CO2 600 g/kWh"]
AK["M"] --> AL["rc1"]
AM["i"] --> AN["rc0"]
AO["2 sec. / time-out 30 sec."] --> AP["D000032902"]
1 Funkce ECO - úspora energie a vody
Pomocí funkce ECO můžete omezit maximální průtočné množství.
ECO zap = symbol na ovládacím panelu
ECO vyp = bez symbolu na ovládacím panelu
2 Dětská pojistka
Dětská pojistka umožňuje uživateli omezit maximální teplotu nastavitelnou na přístroji. Autorizovaný servis může v režimu Zákaznický servis dodatečně nastavit teplotu k ochraně proti opaření (viz kapitola „Režim Zákaznický servis“). Tato teplota je potom horní hranicí rozsahu nastavení dětské pojistky.
3 Sprchování wellness
V programu Sprchování wellness můžete vybírat ze 4 různých programů střídavého sprchování.
TUV = teplá voda, SV = studená voda
A Prevence nachlazení
Z důvodu otužování doporučujeme na závěr studenou sprchu. Tím v těle aktivujete reflex zahřívání.

flowchart
graph LR
A["WW"] --> B["3 min."]
B --> C["KW"]
B Zimní osvěžení
Opětovné zahřátí těla jako osvěžující zakončení sprchování v zimě.

text_image
WW 3 min. WW - 10 °C 10 s 10 s 10 s 10 sC Letní fitness program
Rychlé střídání teplé a studené sprchy ke zvýšení účinků fitness s teplou sprchou na závěr.

text_image
WW 3 min. 10 s 10 s 10 s KW 10 sD Program prokrvení
Na podporu prokrvení sprchujte paže a nohy studenou vodou. Přitom postupujte od dlaní a chodidel směrem k tělu. Tento postup můžete pak zopakovat s teplou vodou.

text_image
WW 3 min. KW 20 s 30 s 20 s 30 s4 Automatické množství vody
Pomocí funkce automatického množství vody můžete omezit množství vody s vysokým průtokem. Po dosažení nastaveného množství vody sníží automatika průtok. Požadovaná teplota zůstává konstantní. Funkcí automatického množství vody musíte aktivovat před každým napouštěním vany. Příklad napuštění vany 80 litry: Po dosažení náplně 80 litrů sníží automatická funkce průtok na 4 l/min.
5 Průtočné množství
Volitelně můžete zobrazit průtočné množství nebo čas.
6 Nastavení času
Volitelně můžete zobrazit čas nebo průtočné množství. Čas můžete nastavit v rozmezí 00:00 až 23:59 hodin. Po přerušení napájení musíte znovu zadat čas.
7 Nastavení podsvícení
Můžete nastavit podsvícení displeje. Při výběru možnosti „Auto“ bliká osvětlení během nastavování.
- Podsvícení se rozsvítí v režimu ohřevu a při každé manipulaci s ovládáním.
- Po uplynutí 30 sekund bez stisknutí tlačítka podsvícení zhasne.
- Při výběru možnosti „On“ svítí podsvícení trvale.
8 Nastavení intenzity barvy zelená/jantarová
Jas obou barev podsvícení můžete upravit podle vlastních požadavků.
9 Výběr měny
Vyberte měnu, která bude použita při zobrazení úspory energie a vody:
Eur = € cur = currency (jiná libovolná měna)
10 Nastavení ceny elektriny
K výpočtu úspory energie můžete zde nastavit vlastní cenu energie v eur/kWh nebo cur/kWh.
11 Nastavení ceny vody
K výpočtu úspory vody můžete zde nastavit vlastní cenu vody v €/m³ nebo cur/m³.
12 Nastavení emisí CO2
Z výroby je výpočet emisí CO2 nastaven takto: 553 g CO2/kWh (zdroj: „Snižování spotřeby energie a emisí CO2 decentralizovaným elektrickým ohřevem teplé vody“, 2011). Podle potřeby můžete nastavit vlastní emise CO2.
13 Reset do výrobního nastavení
▶ Stiskněte a podržte 2 sekundy současně tlačítka M a i.
Nastavení z výroby naleznete v čárkovaném rámečku na obrázku.
14 Bod nabídky
Bod nabídky není pro toto provedení relevantní. Nelze provést žádná nastavení.
15 Bod nabídky
Bod nabídky není pro toto provedení relevantní. Nelze provést žádná nastavení.
5. Čištění, péče a údržba
Nepoužívejte abrazivní čisticí prostředky nebo prostředky obsahující rozpouštědla. K ošetřování a údržbě přístroje stačí vlhká textilie.
- Kontrolujte pravidelně armatury. Vodní kámen na výstupech z armatur odstraníte běžnými prostředky k odstranění vodního kamene.
6. Odstranění problémů
| Závada Příčina Odstranění | ||
| I když je ventil teplé vody zcela otevřen, přístroj se nezapne. | Není připojeno elektrické napájení. | Zkontrolujte jištění vnitřní instalace. |
| Perlátor v armatuře nebo sprchová hlavice jsou za-neseny vodním kamenem nebo jsou znečištěné. | Vyčistěte perlátor nebo sprchovou hlavici a zbav-te je vodního kamene. | |
| Je přerušen přívod vody. | Odvzdušněte přístroj a přívod studené vody (viz kapitolu „Uvedení do provozu / Opětowné uve-dení do provozu“). | |
| Při odběru teplé vody teče chvíli studená voda. | Zařízení rozpoznalo ve vodě vyšší obsah vzdu-chu a krátkodobě přeru-šilo ohřev. | Přístroj se za 1 minutu opět samočinně zapne. |
| Nelze nastavit teplotu >43 °C. | Je aktivována dynamická ochrana proti opatření. | Dynamická ochrana proti opaření je automaticky vypnuta 2 minuty po ukončení odběru. |
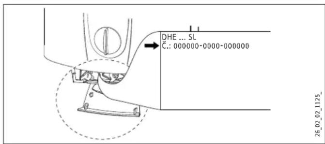
Pokud nelze příčinu odstranit, kontaktujte specializovaného odborníka. Pro lepší a rychlejší pomoc mu sdělte číslo (č. 000000-0000-000000), které je uvedeno na typovém štítku:

text_image
DHE ... SL C.: 000000-0000-000000 26_02_02_1125_INSTALACE
7. Bezpečnost
Instalaci, uvedení do provozu, údržbu a opravy přístroje smí provádět pouze specializovaný odborník.
7.1 Všeobecná bezpečnostní upozornění
Řádnou funkci a spolehlivý provoz lze zaručit pouze v případě použití originálního příslušenství a originálních náhradních dílů určených pro tento přístroj.

Věcné škody
Dodržujte maximální vstupní teplotu. Při vyšších teplotách může dojít k poškození přístroje. Instalací centrální termostatické armatury (viz kapitolu „Popis přístroje / Příslušenství“) můžete omezit maximální vstupní teplotu.
7.2 Předpisy, normy a ustanovení

Upozornění
Dodržujte všechny národní a místní předpisy a ustanovení. V Německu se jedná např. o DIN 1988/EN 806.
- Krytí IP 25 (ochrana proti stříkající vodě) je zaručeno pouze v případě odborně instalované kabelové průchodky.
- Měrný elektrický odpor vody nesmí být menší než hodnota uvedená na typovém štítku. V případě propojení několika vodovodních sítí je nezbytné vzít v úvahu nejnižší elektrický odpor vody (viz kapitolu „Technické údaje / Oblasti použití“). Hodnoty měrného elektrického odporu vody nebo elektrické vodivosti vody zjistíte u vašeho dodavatele vody.
8. Popis prístroje
8.1 Rozsah dodávky
S přístrojem se dodává:
- závěsná lišta
- montážní šablona
- 2 dvojité vsuvky
- křížová tvarovka
- tvarovka T
- plochá těsnění
- sítko
- plastová tvarová podložka
- plastové spojovací prvky / montážní pomůcky
- víčka a vodicí prvky na zadní stěnu
8.2 Příslušenství
Dálkové ovládání
- FFB 1 SL - dálkový radiový ovladač Obsluha ze dvou míst
- FFB 2 SL - dálkový radiový ovladač Dálkový radiový ovladač jako rozšíření modelu FFB 1 SL
- FB 1 SL - kabelový ovladač Obsluha pouze dálkovým ovladačem; vhodný k instalaci na stěnu
Armatury
- MEKD - kuchyňská tlaková baterie
- MEBD - vanová tlaková baterie
Vodovodní zátka G 1/2 A
Vodovodní zátky jsou nezbytné, pokud použijete jiné než v příslušenství doporučené nástěnné tlakové baterie.
Montážní sada k instalaci na zed'
- Pájecí šroubení - měděná trubka k připojení pájením ∅ 12 mm
- Lisovací fitink - měděná trubka
- Lisovací fitink – plastová trubka (vhodná pro Viega: Sanfix-P-lus nebo Sanfix-Fosta)
Univerzální montážní rám
Montážní rám s elektrickými přípojkami.
Potrubní instalační sada pro přístroje pod umyvadlo
Instalační sada k montáži pod umyvadlo je nezbytná, pokud potřebujete přípojky vody (G 3/8 A) nad přístrojem.
Instalační sada pro přesazení potrubí
Tato potrubní instalační sada s koleny je nezbytná, pokud chcete mít přístroj umístěný proti vodovodní přípojce se svislým přesazením o 90 mm směrem dolů.
Potrubní instalační sada k výměně plynového ohřívače vody
Potrubní instalační sada je nutná, pokud stávající instalace obsahuje přípojky plynového ohřívače vody (přípojka studené vody vlevo a přípojka teplé vody vpravo).
Potrubní instalační sada pro vodoinstalační spojky DHB
2 vodoinstalační spojky, jejichž pomocí můžete přístroj připojit ke stávajícím vodovodním nástrčným připojkám DHB.
Zátěžové relé (LR 1-A)
Zátěžové relé k instalaci do elektrorozvodného systému umožňuje prioritní spínání průtokového ohřívače při současném provozu např. elektrických zařízení k ohřevu zásobníku.
ZTA 3/4 - centrální termostatická armatura
Termostatická armatura k centrálnímu předřazenému směšování vody, například u průtokového ohřívače se solárním systémem.
9. Příprava
▶ Důkladně vypláchněte vodovodní vedení.
Armatury
▶ Použijte vhodné armatury (viz kapitolu „Popis přístroje / Pří slušenství“). Otevřené armatury nejsou dovolené.
Pojistný ventil není nutný.

Upozornění
Křižová tvarovka se nesmí používat ke škrcení objemo- vého průtoku. Slouží k uzavření přístroje.
Dovolené materiály vodovodního potrubí
- Přívod studené vody:
Žárově zinkovaná ocelová trubka, trubka z ušlechtilé oceli, měděná trubka nebo plastová trubka - Výstupní potrubí teplé vody:
Trubka z ušlechtilé oceli, měděná trubka nebo plastová trubka

Věcné škody
V případě použití plastových potrubních systémů dodržujte maximální dovolenou vstupní teplotu a maximální dovolený tlak, uvedené v kapitole „Technické údaje / Tabulka údajů“.
Objemový průtok
Zkontrolujte, zda je dosaženo objemového průtoku (viz kapitolu „Technické údaje / Tabulka údajů“, zapnutí) k zapnutí přístroje.
Zvyšte tlak ve vodovodu, pokud není dosaženo při plně otevřeném odběrném ventilu potřebného objemového průtoku.
Flexibilní přívody vody
▶ Při instalaci pomocí flexibilních vodovodních rozvodů nedopustte překroucení a deformaci kolen. Kolena jsou namontována k přístroji pomocí bajonetového uzávěru.
▶ Upevněte zadní stěnu dole pomocí dalšího šroubu.
9.1 Místo montáže

Věcné škody
Přístroj smí být instalován pouze v místnosti chráněné před mrazem.
▶ Přístroj montujte ve svislé poloze v blízkosti odběrného místa.
Přístroj je vhodný k montáži pod i nad umyvadlo.

Upozornění
Přístroj musíte namontovat na dostatečně nosnou stěnu.
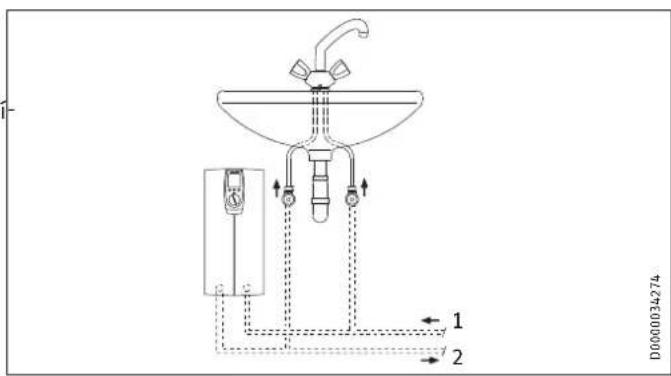
Montáž pod umyvadlo

text_image
D000034274 1 21 Přívod studené vody
2 Výstup teplé vody
Montáž nad umyvadlo

text_image
2 1 D0000342751 Přívod studené vody
2 Výstup teplé vody
9.2 Nastavení z výroby
Přístroje jsou při dodání připraveny:
- Elektrická přípojka „zespodu“, instalace ve stěně (pod omítkou)
- Vodovodní přípojka s instalací ve stěně (pod omítkou)
- V případě přístroje s přepínaným přikonem je předem nastaven průměrný příkon.
10. Montáž
V této kapitole je uveden popis montáže v souladu s výrobním nastavením.
Další možnosti montáže viz kapitolu „Alternativní postupy montáže“.

▶ Otevřete přístroj.

▶ Demontujte zadní stěnu zatlačením dvou pojistných háčků a stáhněte spodní díl zadní stěny dopředu.

Vyznačte pomocí montážní šablony vrtané otvory. V případě montáže s vodovodními přípojkami přímo na zdi musíte navíc označit i upevňovací otvor ve spodní části šablony.
▶ Vyvrtejte otvory a upevněte závěsnou lištu pomocí 2 šroubů a 2 hmoždinek (šrouby a hmoždinky nejsou součástí dodávky).

Upozornění
V případě montáže s použitím flexibilních vodovodních připojek musíte zadní stěnu navíc upevnit šroubem.
▶ Namontujte závěsnou lištu.

text_image
160 ≥30 1 26.02.02_0824_1 Montážní pomůcka
▶ Upravte přívodní kabel.
Instalace vodovodní přípojky

Věcné škody
Veškeré vodovodní přípojky a instalace provádějte podle předpisů.

text_image
12 D000053319▶ Utěsněte a našroubujte dvojitou vsuvku.

1 Teplá voda s tvarovkou T
2 Těsnění
3 Studená voda s křížovou tvarovkou
4 sitko
5 Tvarová podložka
▶ Namontujte prívody vody.
Věcné škody
Z důvodu funkce přístroje musíte instalovat sítko.
Při výměně přístroje zkontrolujte přítomnost sítka.
Montáž přístroje

▶ Pro snazší montáž zatlačte kabelovou průchodku horní elektrické přípojky zezadu do zadní stěny.
Odstraňte z vodovodních přípojek ochranná transportní víčka.
Vyjměte upevňovací páčku z horního dílu zadní stěny.
Zavedte elektrický přívodní kabel zezadu kabelovou průchodkou tak, aby průchodka přilnula k plášti kabelu. Vyrovnejte elektrický přívodní kabel.
Je-li průřez > 6 mm², zvětšete otvor v kabelové průchodce.
Zatlačte přístroj na závitový svorník v závěsné liště, aby došľVolitelný příkon
k proražení měkkého těsnění. Případně použijte šroubovák.
Nasadte upevňovací páčku na závitový svorník závěsné lišty. Předem je nastaven průměrný výkon. Pokud si přejete nastavit
Pevně přitlačte zadní stěnu a zajistěte upevňovací páčku otojiný výkon, musíte provést následující kroky. čením doprava o 90°.
-Předem je nastaven průměrný výkon. Pokud si přejete nastavit
ojiný výkon, musíte provést následující kroky.

text_image
19 24 D0000056244Přišroubujte potrubí s plochým těsněním na dvojité vsuvky.
Připojení přívodu elektrické energie

VÝSTRAHA elektrický proud Veškerá elektrická zapojení a instalace provádějte podle předpisů.

VÝSTRAHA elektrický proud Přípojka k elektrické síti smí být provedena pouze jako pevná přípojka v kombinaci s vyjímatelnou kabelovou vsuvkou. Přístroj musí být možné odpojit od síťové přípojky na všech półech na vzdálenost minimálně 3 mm.

VÝSTRAHA elektrický proud Pamatujte, že přístroj musí být připojen k ochrannému vodiči.

Připojte elektrický přívodní kabel k síťové svorkovnici (viz kapitolu „Technické údaje / Schéma elektrického zapojení“). Uvedené napětí se musí shodovat se síťovým napětím.
Volitelný příkon
Příkon lze nastavit ve 3 stupních v závislosti na typu přístroje.

text_image
RC Adapter T-Soil 10 Φ 18 Φ 26_02_02_0935_▶ Vyberte požadovaný příkon, viz kapitolu „Technické údaje / Tabulka údajů“.
Zapojte kódovací konektor v souladu se zvoleným příkonem.
▶ Provedte změnu na typovém štítku. Vybraný příkon označte křížkem. K tomuto účelu použijte propisku.
10.1 Dokončení montáže

▶ Namontujte spodní díl zadní stěny. Dbejte na to, aby spodní díl zadní stěny dobře zapadl.
▶ Vyrvnejte namontovaný přístroj povolením upevňovací páčky, vyrovnejte elektrickou připojku a zadní stěnu a opět utáhněte upevňovací páčku. Pokud zadní stěna přístroje nepřiléhá, můžete přístroj dole upevnit dalším šroubem.
10.2 Alternativy montáže
- Elektrická přípojka nahoře pod omítkou
- Elektrická přípojka na zdi
- Velké průřezy vodičů pro elektrickou přípojku dole
- Připojení zátěžového relé
- Vodovodní instalace na zdi
- Vodovodní instalace na zdi s pájenou přípojkou / lisovacím fitinkem
- Vodovodní instalace na zdi, montáž víka přístroje
- Montáž spodního dílu zadní stěny při provedení se závitovou přípojkou na zdi
- Použití stávajících závěsných lišt při výměně přístroje
- Instalace na předsazených obkladech
- Otočené víko přístroje
- Provoz s předehřátou vodou
Elektrická přípojka nahoře pod omítkou

▶ Rozřízněte kabelovou průchodku pro elektrický přívodní kabel.
▶ Stiskněte háčkovou pojistku k upevnění síťové svorkovnice směrem dolů a vytáhněte ji.
- Rozřízněte kabelovou průchodku pro elektrický přívodní kabel. - Stiskněte háčkovou pojistku k upevnění síťové svorkovnice směrem dolů a vytáhněte ji.
▶ Přemístěte síťovou svorkovnici v přístroji zespoda nahoru a upevněte ji zasunutím pod pojistný háček.

▶ Vedte připojovací vodiče pod vedením pro vodiče.
Elektrický přívodní kabel na zdi
Čistě vyřízněte nebo prorazte potřebnou průchodku v zadní stěně a ve víku přístroje, umístění viz kapitolu „Technické údaje / Rozměry a přípojky“. Použijte případně pilník.
▶ Vedte elektrický přívodní kabel kabelovou průchodkou a připojte jej k sitové svorkovnici.
- Čistě vyřízněte nebo prorazte potřebnou průchodku v zadní stěně a ve víku přístroje, umístění viz kapitolu „Technické údaje / Rozměry a přípojky“. Použijte případně pilník. - Vedte elektrický přívodní kabel kabelovou průchodkou a přípojte jej k síťové svorkovnici.

Upozornění
Při tomto způsobu připojení se mění krytí přístroje.
▶ Provedte změnu na typovém štítku. Přeškrtněte údaj IP 25 a označte křížkem políčko IP 24. K tomuto účelu použijte propisku.
Velké průřezy vodičů pro elektrickou přípojku dole
V prípadě použití velkých průřezů vodičů můžete instalovat kabelovou průchodku po namontování přístroje.

text_image
1. 2. 3. 4.▶ Před zahájením montáže přístroje musíte vytlačit kabelovou průchodku pomocí šroubováku.
▶ Nasuňte kabelovou průchodku na elektrický přívodní kabel. Použijte k tomu montážní pomůcku. Je-li průřez > 6 mm², zvětšete otvor v kabelové průchodce.
▶ Nasadte kabelovou průchodku do zadní stěny.
- Před zahájením montáže přístroje musíte vytlacit kabelovou průchodku pomocí šroubováku. - Nasuňte kabelovou průchodku na elektrický přívodní kabel. Použijte k tomu montážní pomůcku. Je-li průřez > 6 mm², zvětšete otvor v kabelové průchodce. - Nasadťe kabelovou průchodku do zadní stěny.
Připojení zátěžového relé
Zátěžové relé používejte v kombinaci s jinými elektrickými přístroji v elektrickém rozvodu, například s elektrickými akumulačními ohřívači. K vypnutí zátěže dochází při provozu průtokového ohřívače. Zátěžové relé dodáváme jako příslušenství.

Věcné škody
Připojte fázi, která spíná zátěžové relé, k označené svorce síťové svorkovnice v přístroji (viz kapitolu „Technické údaje / Schéma elektrického zapojení“).
Vodovodní instalace na zdi
Vhodné tlakové armatury dodáváme jako příslušenství.

text_image
18 Nm 24 1 2 D00000331041 Zátky
2 Nástěnná tlaková baterie
▶ Namontujte vodovodní zátku s těsněním tak, aby došlo k uzavření přívodu pod omítkou. U tlakových baterií z programu příslušenství jsou zátky a těsnění součástí dodávky.
▶ Namontujte armaturu.
▶ Nasadte spodní díl zadní stěny pod připojovací trubky armatury a nasuňte spodní díl zadní stěny do zadní stěny.
▶ Přišroubujte přívodní trubky k přístroji.
Vodovodní instalace na zdi s pájenou připojkou / lisovacím fitinkem
Pomocí pájecí přípojky nebo lisovacího fitinku z programu příslušenství můžete spojit měděná i plastová potrubí.
Pájecí přípojka se šroubením je určena pro měděná potrubí 12 mm.
▶ Nasadte na přívodní potrubí převlečné matice.
▶ Spájejte vložené díly s měděným rozvodem.
▶ Nasadte spodní díl zadní stěny pod připojovací trubky arma tury a zajistěte jej.
▶ Přišroubujte přívodní trubky k přístroji.

Upozornění
Dodržujte pokyny výrobce armatury.
Vodovodní instalace na zdi, montáž víka přístroje

text_image
1 2 3 4 D0000413911 Vodicí prvky zadní stěny
2 Šroub
3 Vodicí prvky víka
4 Průchozí otvor
▶ Provedte čisté vylomení průchozích otvorů ve víku přístroje. Použijte případně pilník.

Upozornění
Pomocí chlopní vodicích prvků víka můžete utěsnit mírná přesazení připojovacích trubek armatury.
▶ V případě přesazení připojovacích trubek armatury nesmíte namontovat žádné vodicí prvky zadní stěny.
Při montáži připojovacích trubek armatury bez přesazení výlomte chlopně vodicích prvků víka.
▶ Nasadte vodicí prvky víka do průchozích otvorů.
▶ Nasadte vodicí prvky zadní stěny na trubky a zatlačte je k sobě. Nakonec posuňte vodicí prvky až nadoraz k zadní stěně.
▶ Upevněte zadní stěnu dole pomocí šroubu.
Montáž spodního dílu zadní stěny při provedení se závitovou připojkou na zdi
Spodní díl zadní stěny můžete namontovat po montáži armatury.

text_image
1 2 <2 <2 26_02_02_10801 Šroub
2 Dodané spojky
▶ Nařízněte spodní díl zadní stěny v označeném místě.
▶ Namontujte spodní díl zadní stěny jeho ohnutím po stranách a nasazením na trubky na zdi.
Zezadu nasadte spojky do spodního dílu zadní stěny.
Zatlačte spodní díl zadní stěny do zadní stěny.
▶ Upevněte spodní díl zadní stěny šroubem.
Závěsná lišta při výměně přístroje
Stávající závěsnou lištu od výrobce Stiebel Eltron můžete případně použít při výměně přístroje (výjimkou je průtokový ohřívač DHF).
- Prorazte zadní stěnu přístroje pro závitový svorník na již na montované závěsné lišťe.
Výměna zařízení DHF

Změňte polohu závitového svorníku na závěsné liště (závitový svorník má samořezný závit).
▶ Otočte závěsnou lištu o 180° a namontujte jí na stěnu (popiska DHF je ve správné poloze ke čtení).
1 Minimální opěrná plocha přístroje
2 Maximální přesazení obkladů
▶ Nastavte vzdálenost od stěny a upevněte zadní stěnu upevňovací páčkou otočením doprava o 90°.
Otočené víko přístroje
Víko přístroje můžete při montáži pod umyvadlo otočit.

▶ Demontujte ovladač z víka přístroje zatlačením na háčkovou pojistku a vyjměte ovládací prvek.
▶ Otočte víko přístroje (ne přístroj) a opět namontujte ovladač tak, aby všechny háčkové pojistky zaskočily. Pří zajišťování háčkových pojistek musíte tlačit na vnitřní stranu víka přístroje (šrafovaná část).
Zapojte kabel snímače požadované hodnoty k elektronickému systému (viz kapitolu „Uvedení do provozu / První uvedení do provozu“).
Zavěste víko přístroje dole a vyklopte je nahoru na zadní stěnu.
Z důvodu správného usazení obvodového těsnění zadní stěny mírně posuňte víko vpřed a zpět.
▶ Našroubujte víko přístroje.
Provoz s předehřátou vodou
Instalací centrální termostatické armatury je omezena maximální vstupní teplota (viz kapitolu „Popis přístroje / Příslušenství“).
11. Uvedení do provozu

VÝSTRAHA elektrický proud
Uvedení do provozu smí provádět pouze specializovaný odborník při dodržení bezpečnostních předpisů.
11.1 První uvedení do provozu
▶ Otevřete křížovou tvarovku.

▶ Otevřete a uzavřete několikrát všechny připojené odběrné ventily, dokud nebudou rozvodná síť a přístroj odvzdušněné.
▶ Provedte kontrolu těsnosti.
Aktivujte bezpečnostní spínač (AE 3) pevným stisknutím resetovacího tlačítka (přístroj je dodán s deaktivovaným bezpečnostním spínačem).
▶ Připojte konektor kabelu snímače požadované hodnoty k elektronickému systému.
▶ Namontujte víko a upevněte je šroubem.
Zapněte napájení ze sítě.
Z displeje ovladače odstraňte ochrannou fólii.
Předání přístroje
▶ Vysvětlete uživateli funkci přístroje a seznamte ho se způso-bem jeho užívání.
▶ Upozorněte uživatele na možná rizika, především na nebez-Nabídka Error se zobrazí pouze tehdy, dojde-li na přístroji k chybě. pečí opaření.
▶ Předejte tento návod.
11.2 Opětovné uvedení do provozu

Věcné škody
Po prerušení dodávky vody je nutné prístroj opětovně uvést do provozu pomocí následujících kroků, aby nedošlo k poškození topného systému s holou spirálou.
▶ Odpojte přístroj od napětí vypnutím pojistek.
▶ Otevřete armaturu na dobu jedné minuty, dokud nejsou přístroj a předřazená přípojka studené vody odvzdušněné.
▶ Opět zapněte napájení ze sítě.
12. Režim Zákaznický servis

▶ Otevřete víko přístroje a zavěste je zboku na zadní stěnu.

1 Servisní tlačítko k aktivaci a deaktivaci režimu zákaznického servisu
Vysvětlivky symbolů

1 stisknutí START
1 stisknutí KONEC

Přepnutí nastavení / kontrola
V režimu zákaznického servisu je možné vyvolání a změna požadované hodnoty tlačítkem M (60 °C).
Vyvolání nabídky Error

text_image
E1 Error ELEC 1 2 3 4 E2 Error AE 3 E3 Error ntc E4 Error not1 Symbol elektronické konstrukční skupiny
▶ Vyměňte elektronickou konstrukční skupinu.
2 Symbol bezpečnostního obvodu
Zkontrolujte připojení AE 3, příp. AE 3 vyměňte.
3 Symbol výstupního čidla
Zkontrolujte připojení výstupního čidla, příp. čidlo vyměňte.
4 Symbol servoventilu
Zkontrolujte připojení servoventilu, příp. servoventil vyměňte.
Vyvolání nabídky Control

text_image
[1] 213 °C / 1 2 3 4 [2] 475 °C / [3] 6.7 U/min / [4] 213 kw /1 Symbol vstupní teploty
indikuje aktuální vstupní teplotu (zobrazení 1,0 °C při vad-
ném senzoru).
2 Symbol výstupní teploty
indikuje aktuální výstupní teplotu (zobrazení 65,0 °C při vad-
ném senzoru).
3 Symbol objemového průtoku indikuje aktuální objemový průtok.
4 Symbol příkonu
indikuje aktuální příkon.
Vyvolání nabídky dat přístroje

text_image
d1 8049 d2 1869 d3 172 h d4 27kw / 1 2 3 4 /1 Symbol kódu zákaznického servisu, informace pro zákaznický servis.
2 Symbol doby provozu na sítové přípojce, akumulovaná doba provozu ve dnech.
3 Symbol hodin ohřevu,
akumulovaná doba ohřevu v hodinách.
4 Symbol maximálního výkonu
Zobrazená hodnota se může v případě sítového napětí jiného než 400 V lišit o několik kW od jmenovitého výkonu.
Nastavení ochrany proti opaření
Tuto ochranu proti opatření používejte například v mateřských školkách, nemocnicích apod. Zde nastavená teplota je současně horní mezí nastavení teploty dětské pojistky (viz kapitola „Nastavení přístroje“).

text_image
43.0°C max 26_02_02_1301_Rozsah nastavení: 21 - 60 °C
Doporučené nastavení 43 °C

Upozornění
Nastavenou ochranu proti opaření může změnit pouze specializovaný odborník. Při současném stisknutí tlačítek M + i nedojde ke změně.
13. Uvedení mimo provoz
▶ Odpojte přístroj na všech pólech od sítě.
Vypustte obsah přístroje (viz kapitolu „Údržba“).
14. Odstraňování poruch

VÝSTRAHA elektrický proud
Z důvodu kontroly přístroje musí být přístroj připojen k síťovému napětí.
Konektorové spoje na elektronickém systému

text_image
Motor DFE STD HTC Adapton T-dol 3 2 1 4 5 6 7 AC3 26.02.02.13431 Diagnostická lišta (3 LED)
2 Senzor objemového průtoku DFE
3 Servoventil
4 Bezpečnostní omezovač teploty STB
5 Výstupní čidlo NTC
6 Snímač požadované hodnoty T-pož
7 Bezpečnostní spínač AE 3; konektorový spoj je zajištěn are-tačním jazýčkem.
Možnosti zobrazení informací na diagnostické liště (LED)
| červená svítí při poruše | |||
| žlutá svítí při ohřívání | |||
| zelená bliká: Přístroj připojený k sítí | |||
| Závada | Příčina | Diagnostická Lišta | Odstranění |
| Přístroj neohřívá / není dosaženo poža-dované teploty. | Není připojeno elektrické na-pájení. | Nesvítí žádná LED Zkontrolujte pojistky v domovní instalaci. | |
| Bezpečnostní spínač (AE3) vypnul. | Nesvítí žádná LED | Odstraňte příčinu závady.Chraňte topný systém před přehřátím otevřením ventilu v odběrném místě za přístrojem na jednu minutu. Tím dojde k ochlazení topného systému. Aktivujte bezpečnostní spínač stisknutím tlačitka na bezpečnostním spínači (viz též kapitolu „První uvedení do provozu“). | |
| Závada elektronického sys-tému. | Nesvítí žádná LED | Zkontrolujte elektroniku, případně provedte výměnu. | |
| Výpadek fáze. Bliká zelená LED, | Žlutá LED svítí | Zkontrolujte pojistky v domovní instalaci. | |
| Vstupní teplota > 55 °C. Bliká zelená LED, čer-vená LED svítí | Snižte vstupní teplotu. | ||
| Senzor průtoku (DFE) je vadný nebo není připojený. | Bliká zelená LED,žlutá LED nesvítí | Zkontrolujte připojení senzoru průtoku, případně jej vyměňte. | |
| Topný systém je vadný. | Bliká zelená LED,žlutá LED svítí | Zkontrolujte topný systém, případně provedte jeho výměnu. | |
| Vadný vstupní senzor. | Bliká zelená LED, čer-vená LED trvale svítí | Vyměňte elektroniku. | |
| Vadný výstupní senzor. | Bliká zelená LED, čer-vená LED trvale svítí | Zkontrolujte připojení výstupního senzoru, případně jej vyměňte. | |
| Chyba bezpečnostního elektro-nického systému. | Bliká zelená LED, čer-vená LED pouze při odběru | Přípojte spojovací kabel bezpečnostního spínače a zkontrolujte bezpečnostní spí-nač. | |
| Uvolněný nebo vadný spojovací kabel snímače požadované hodnoty. | Bliká zelená LED | Přípojte spojovací kabel snímače požadované hodnoty a zkontrolujte spojovací kabel. | |
| Je aktivována dětská pojistka a omezovač teploty. | Bliká zelená LED | Zkontrolujte snímač požadované hodnoty a případně jej vyměňte. | |
| Displej na přístroji ne-zobrazuje hodnoty. | Uvolněný spojovací kabel sní-mače požadované hodnoty. | Bliká zelená LED | Přípojte spojovací kabel na snímači požadované hodnoty a zkontrolujte spojovací kabel. |
| Vadný elektronický systém ovládání. | Bliká zelená LED | Zkontrolujte ovladač, případně provedte výměnu. | |
| Průtok je příliš nízký. | Sprchovací hlavice / perlátory jsou zanesené vodním kame-nem. | Odstraňte vodní kámen nebo vyměňte sprchovací hlavici / perlátory. | |
| Znečištěné sítko. | Vyčistěte sítko. | ||
| Požadovanou hodnotu nelze nastavit na hod-notu vyšší než 43 °C nebo na jinou požado-vanou teplotu. | Je aktivována dynamická ochra-na proti opatření. | Bliká zelená LED | Dynamická ochrana proti opaření je odstraněna 2 minuty po odběru vody. |
| Je aktivován omezovač teploty. | Bliká zelená LED | Deaktivujte omezovač teploty. | |
| Pří odběru teče chvíli studená voda. | Průtok (< 2 l/min) je příliš nízký. | Přístroj se automaticky spustí, jakmile nastane průtok > 2,5 l/min. | |
| Zařízení zjistilo ve vodě vyšší obsah vzduchu a na chvíli vy-pnulo ohřev. | Přístroj se za minutu opět zapne. | ||
15. Údržba

VÝSTRAHA elektrický proud
Při všech činnostech odpojte přístroj na všech pôlech od sítě.
Vyprázdnění přístroje
Přístroj můžete vypustit kvůli údržbě nebo ochraně před mrazem.

POZOR opaření
Při vypouštění přístroje může vytékat horká voda.
▶ Uzavřete ventil na přívodu studené vody.
▶ Otevřete všechny odběrné ventily.
▶ Odpojte od přístroje vodovodní přípojky.
▶ Demontovaný přístroj skladujte tak, aby byl chráněn před mrazem. Případné zbytky vody v přístroji mohou zmrznout a způsobit škody.
16. Technické údaje
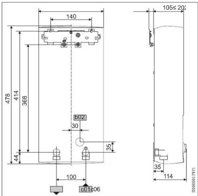
16.1 Rozměry a přípojky

text_image
140 478 414 368 b02 30 44 35 100 c01c06 105≤20 35 114 D0000017971| b02 Kabelová průchodka I | |||
| c01 | Přívod studeně vody | Vnější závit | G 1/2 A |
| c06 | Výstup teplé vody | Vnější závit | G 1/2 A |
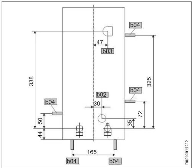
Alternativní možnosti připojení

text_image
b04 b03 47 338 b02 30 b04 b04 b04 325 72 44 165 b04 b04 D0000019212| b02 | Kabelová průchodka I | ||
| b03 | Kabelová průchodka II | ||
| b04 | Kabelová průchodka III |
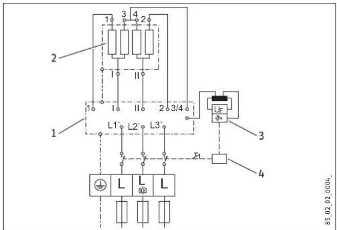
16.2 Schéma elektrického zapojení
3/PE \~ 380-415 V

1 Výkonová elektronika
2 Topný systém s holou spirálou
3 Bezpečnostní omezovač teploty
4 Bezpečnostní spínač
Prioritní spínání se zátěžovým relé (LR 1-A)
Viz též kapitolu „Popis zařízení / Příslušenství“

1 Řídicí obvod stykače 2. přístroje (například elektrický akumulační ohřívač).
2 Řídicí kontakt, který se otevře po zapnutí průtokového ohřívače.
16.3 Množství smíchané vody / výstupní množství
Tabulkové hodnoty jsou vztaženy k jmenovitému napětí 400 V. Množství smíchané vody nebo výstupní množství závisí na vstupním tlaku a na skutečném síťovém napětí.
Používaná teplota ve sprše, k mytí rukou, napouštění vany apod. cca 38 °C.

line
| X | Y | | ------ | ---- | | 61014 | 9 | | | 10 | | | 11 | | | 12 | | | 13 | | | 14 | | | 15 |Výstupní teplota v kuchyňském dřezu a při použití armatur s termostatem cca 60 °C.

line
| X | Line 1 | Line 2 | Line 3 | | ------ | ------ | ------ | ------ | | 61014 | 5.0 | 5.7 | 6.5 | | | 5.5 | 5.9 | 6.8 | | | 5.8 | 6.1 | 7.0 | | | 6.0 | 6.3 | 7.2 | | | 6.2 | 6.5 | 7.4 | | | 6.4 | 6.7 | 7.6 | | | 6.6 | 6.9 | 7.8 | | | 6.8 | 7.1 | 8.0 | | | 7.0 | 7.3 | 8.2 | | | 7.2 | 7.5 | 8.4 | | | 7.4 | 7.7 | 8.6 | | | 7.6 | 7.9 | 8.8 | | | 7.8 | 8.1 | 9.0 | | | 8.0 | 8.3 | 9.2 | | | 8.2 | 8.5 | 9.4 | | | 8.4 | 8.7 | 9.6 | | | 8.6 | 8.9 | 9.8 | | | 8.8 | 9.1 | 10.0 | | | 9.0 | 9.3 | | | | | | | | | | | | | | | | | | | | | | | | | | | | | | | | | | | | | | | | | | | | | | | | | | | | | | | | | | | | | |X Vstupní teplota studené vody ve °C
Y Množství smíchané vody / výstupní množství v l/min
1 18 kW
2 21 kW
3 24 kW
16.4 Oblasti použití / Převodní tabulka
Specifický elektrický odpor a specifická elektrická vodivost, viz „Zvýšení teploty“.
| Údaj podle normy při 15 °C | 20 °C | 25 °C | ||||||
| Spec. Odpor ≥ | Spec. Vodivost ≤ | Spec. Odpor ≥ | Spec. Vodivost ≤ | Spec. Odpor ≥ | Spec. Vodivost ≤ | |||
| cm | mS/m | S/cm | cm | mS/m | S/cm | cm | mS/m | S/cm |
| 900 | 111 | 1111 | 800 | 125 | 1250 | 735 | 136 | 1361 |
| 1000 | 100 | 1000 | 890 | 112 | 1124 | 815 | 123 | 1227 |
| 1100 | 91 | 909 | 970 | 103 | 1031 | 895 | 112 | 1117 |
| 1200 | 83 | 833 | 1070 | 93 | 935 | 985 | 102 | 1015 |
| 1300 | 77 | 769 | 1175 | 85 | 851 | 1072 | 93 | 933 |
16.5 Ztráty tlaku
Armatury
| Tlaková ztráta armatur při objemovém průtoku 10 U/min | ||
| Páková baterie cca | MPa | 0,04 - 0,08 |
| Armatura s termostatem cca | MPa | 0,03 - 0,05 |
| Ruční sprcha cca | MPa | 0,03 - 0,15 |
Dimenzování potrubní sítě
K výpočtu dimenzování potrubní sítě je pro přístroj doporučena tlaková ztráta 0,1 MPa.
16.6 Podmínky v případě poruchy
V případě poruchy může v instalaci krátkodobě vzniknout zatížení maximálně 80 °C při tlaku 1,0 MPa.
16.7 Údaje ke spotřebě energie
Údaje o výrobku odpovídají nařízením EU ke směrnici o ekodesignu výrobků v souvislosti se spotřebou energie (ErP).
| DHE 18 SLi 25A DHE 18/21/24 SLi DHE 27 SLi | ||||
| 227492 227493 227494 | ||||
| Výrobce | STIEBEL ELTRON | STIEBEL ELTRON | STIEBEL ELTRON | |
| Zátěžový profil | S | S | S | |
| Třída energetické účinnosti | A | A | A | |
| Roční spotřeba proudu | kWh | 479 | 479 | 473 |
| Energetická účinnost | % | 39 | 39 | 39 |
| Nastavení teploty u výrobce | °C | 60 | 60 | 60 |
| Hladina akustického tlaku | dB(A) | 15 | 15 | 15 |
| Zvláštní pokyny k měření účinnosti | žádně | Údaje při Pmax. | žádně | |
16.8 Tabulka údajů
| DHE 18 SLi 25A | DHE 18/21/24 SLi | DHE 27 SLi | ||||||||
| 227492 | 227493 | 227494 | ||||||||
| Elektrotechnické údaje | ||||||||||
| Jmenovité napětí | V | 380 | 400 | 415 | 380 | 400 | 415 | 380 | 400 | 415 |
| Jmenovitý výkon | kW | 16,2 | 18 | 19,4 | 16,2/19/21,7 | 18/21/24 | 19,4/22,6/25,8 | 24,4 | 27 | 29,1 |
| Jmenovitý proud | A | 24,7 | 26 | 27 | 27,6/31,4/33,3 | 29/33/35 | 30,1/34,3/36,3 | 37,1 | 39 | 40,5 |
| Jištění | A | 25 | 25 | 32 | 32/32/35 | 32/32/35 | 32/35/40 | 40 | 40 | 40 |
| Fáze | 3/PE | 3/PE | 3/PE | |||||||
| Frekvence | Hz | 50/60 | 50/60 | 50/- | 50/60 | 50/60 | 50/- | 50/- | 50/- | 50/- |
| Max. impedance sítě při 50 Hz | Ω | 0,300 | 0,285 | 0,274 | 0,331 | 0,314 | 0,302 | 0,200 | 0,190 | 0,183 |
| Specifický odpor _15 ≥ (při studené ≤ 55 °C) | Ω cm | 900 | 900 | 900 | 900 | 900 | 900 | 900 | 900 | 900 |
| Specifická vodivost _15 ≤ (při studené ≤ 55 °C) | μS/cm | 1111 | 1111 | 1111 | 1111 | 1111 | 1111 | 1111 | 1111 | 1111 |
| Přípojky | ||||||||||
| Vodovodní přípojka | G 12 A | G 12 A | G 12 A | |||||||
| Meze použitelnosti | ||||||||||
| Max. dovolený tlak | MPa | 1 | 1 | 1 | ||||||
| Max. teplota přítoku pro dodatečný ohřev | °C | 55 | 55 | 55 | ||||||
| Hodnoty | ||||||||||
| Max. teplota vstupní vody | °C | 65 | 65 | 65 | ||||||
| Zap | l/min | >2,5 | >2,5 | >2,5 | ||||||
| Průtok pro ztráty tlaku | l/min | 5,2 | 5,2/6,0/6,9 | 7,7 | ||||||
| Tlakové ztráty při objemovém proudu | MPa | 0,04 | 0,04/0,06/0,08 | 0,1 | ||||||
| Zobrazení teplé vody | l/min | 9,2 | 9,2 / 10,7 / 12,3 | 13,8 | ||||||
| při zobrazení | K | 28 | 28 | 28 | ||||||
| Údaje o hydraulickém systému | ||||||||||
| Jmenovitý objem | I | 0,4 | 0,4 | 0,4 | ||||||
| Provedení | ||||||||||
| Volitelný příkon | - | X | - | |||||||
| Nastavení teploty | °C | 20-60 | 20-60 | 20-60 | ||||||
| Třída ochrany | 1 | 1 | 1 | |||||||
| Izolační blok | Umělá hmota | Umělá hmota | Umělá hmota | |||||||
| Topný systém zdroje tepla | Holá spirála | Holá spirála | Holá spirála | |||||||
| Víko a zadní stěna | Umělá hmota | Umělá hmota | Umělá hmota | |||||||
| Barva | bílá | bílá | bílá | |||||||
| Kryti (IP) | IP25 | IP25 | IP25 | |||||||
| Rozměry | ||||||||||
| Výška | mm | 478 | 478 | 478 | ||||||
| Šířka | mm | 225 | 225 | 225 | ||||||
| Hloubka | mm | 105 | 105 | 105 | ||||||
| Hmotnosti | ||||||||||
| Hmotnost | kg | 4,5 | 4,5 | 4,5 | ||||||
Záruka
Pro přístroje nabyté mimo území Německa neplatí záruční podmínky poskytované našimi firmami v Německu. V zemích, ve kterých některá z našich dceřiných společností distribuuje naše výrobky, poskytuje záruku jenom tato dceřiná společnost. Takovou záruku lze poskytnout pouze tehdy, pokud dceřiná společnost vydala vlastní záruční podmínky. Jinak nelze záruku poskytnout.
Na přístroje zakoupené v zemích, ve kterých nejsou naše výrobky distribuovány žádnou z dceřiných společností, neposkytujeme žádnou záruku. Případné záruky závazně přislíbené dovozcem zůstávají proto nedotčené.
Životní prostředí a recyklace
Pomozte nám chránit naše životní prostředí. Materiály po použití zlikvidujte v souladu s platnými národními předpisy.
OBSŁUGA
K Hájům 946 | 155 00 Praha 5 - Stodůlky
Tel. 251116-111 | Fax 235512-122
info@stiebel-eltron.cz
www.stiebel-eltron.cz
Finland
STIEBEL ELTRON OY
Kapinakuja 1 | 04600 Mäntsälä
Tel. 020 720-9988
info@stiebel-eltron.fi
www.stiebel-eltron.fi
France
STIEBEL ELTRON SAS
SnadnýManuál


