HP 150 I - Exaustor de cozinha SCHOLTES - Manual de utilização gratuito
Encontre gratuitamente o manual do aparelho HP 150 I SCHOLTES em formato PDF.
Baixe as instruções para o seu Exaustor de cozinha em formato PDF gratuitamente! Encontre o seu manual HP 150 I - SCHOLTES e retome o controlo do seu dispositivo eletrónico. Nesta página estão publicados todos os documentos necessários para a utilização do seu dispositivo. HP 150 I da marca SCHOLTES.
MANUAL DE UTILIZADOR HP 150 I SCHOLTES
Eliminação dos electrodométricos
Precauções de utilização, 39
Informações relativas à instalacao
Funcionamento e Manutenção, 40-42
Limpeza exterior do aparelho
Substituição do FILTER de carvão
Substituicao do filtro de carvao (HPI 95)
Substituição do filtró de carvão (HSE159 IX)
Substituicao das lampadas
Ligação eletrica
Garantia
Montagem, 43
Este manual de instruções contentas as informações和技术icas de instalação do aparelho.
As informações e os dados tecnicos podem fazer modifications e o construtor, em conformidade com os progressos da的技术ica, preserva o direito de efetuar as 修改as necessarias sem a obrigação de avisar com antecedência.
Nas páginases seguem serão descriñas todas as configurações e os acessórios do aparelho, mesmo se algunos detalles podem ser.optionais e fornecidos sob pedido.
Para prolongar a vidautildoaparelho,egarantiruma maior seguranca deutilização,aconselhamos que siga escrupulosamenteas instruções fornecidas e que não efectue variações electrolycicas ou mecâncicas no aparelho ou nos tubos de descarga.
Se houver algo um problema, contacte/DD como de assistencia tcnica autorizo e peça sempre peças de reposicao originais.
Para evitar danos a pessoas e/ou coisas, recomenda-se a atenta leitura deste manual e o respeito de todas as instruções nele contidas.
O grupo aspirador/funcional é comum às varias tipologias de produits, as dimensoes perimetrais podem variar e consequentemente poderão variar también os pontos de fixação.
Eliminação dos electrodométricos
- Eliminação do material de embalagem: obedeça as regras locais, de maneira que as embalagens possam ser reutilizadas.
- A directiva Europeia 2002/96/CE relativa aoresíduos de equipamentos eletricos e electrónicos (REEE) prévê que os electrodométricos não devem ser eliminados no normal fluxo dos resíduos solidos urbanos. Os apareiros não mais realizados devem ser recolhidos separadamente para optimizar a taxa de recuperação e reciclagem dos materiais que os compoem e impedir potenciais danos à saúde e ao meio ambiente. O símbolo da lixeira cancelada está indicado em todos os produits para lembrar odeer de colecta selectiva.
Os electrodométricos em desuso poderão ser entrega ao service de colecta Pública, ser levados jusqu'à Areas Municipais发展目标 ou, se for previsto pelas leis nationals em materia, poderão ser devolvidos ao revendedor no momento da comprade novos produits de tipo equivalente.
Todo os principais produções de electrodométricos está activos na 创建ação egestão dos sistemas de colecta e eliminação dos aparelhos em desuso.
| PLACA DAS CHARACTERISTICAS | |
| Ligações eletricas | tensão 220-240V ~ 50/60Hz (vide a placas das caracteristicas) |
| CE | Este aparecido está em conformidade com as seguintes Direitas das Comunidade Europeia: - 2006/95/CEE de 12/12/2006 (Baixa Tensão) e posteriores 修改es - 89/336/CEE de 03/05/89 (Compatible Electromagnética) e posteriores 修改es - 93/68/CEE de 22/07/93 e posteriores 修改es. - 2002/96/CEE |
Os acessórios necessários f instalação do exaustor encontrar-se no interior do mesmo.
O exaustor é conversível, e portanto pode ser instalado tanto na versão ASPIRADORA ou DEPURADORA.
- Antes de instalar e/ou utiliser o exaustor, leia atentamente e integralmente as instruções.
- Antes de instalar o exaustor, certificque-se de que a tensão (V) e a frequência (Hz) indicaos na placá das caractéristicas e os@dados técnicos situados no interior do aparelho correspondam à tensão e à frequência disponible no local de instalação.
- Depois de o ter retirado da embalagem, certifique-se do bom estado do aparelho. No caso de duvida, não utilize o aparelho e contacte pessoal profissionalmente qualificado.
- É necessário que todas as operações relativas à instalação e a regulação sejam efectuadas por pessoal qualificado, em conformidade com as normas em vigor. As instruções especialicas está descritas na secção reservada ao instalador.
- A limpeza deve ser efectuada conforme as instruções do construtor especialmente no que se refere aos depositos sobre as superficies sujas contra um possível risco de incência.
- Preste atenção para que os acendendores acesos esteyam sempre cobertos de modo a fazer o super aquecimento do FILTER do exaustor.
- Não fazer frituras deixando a panela sem vigilência: o azeite conta na panela pode aquecer-se e incendiar-se. No caso de azeite uso, o risco de autocombustão é mais elevado.
- É absolutamente proibido efectuar cozeduras como a chama sob o exaustor (como a cozedura "flambé").
- A parte mais baixa do exaustor deve ser colocada ao menos 65 cm acima do plano de cozedura. Se as instruções de instalação do disposítio de cozedura a gás especificarem uma distência superior, está necessário considerá-la.
- Este exaustor pode ser utilisé exclusivamente para uso domestico.
- Este exaustor pode ser utilizes exclusivamente para a aspiracao dos fumos e vapores derivados da cozedura de alimentos.
- O aparecido não deve ser sobreposto a estufas com chapa radiante superior.
Versão aspiradora
- O ar recolhido não deve ser direcionado para uma conduça usada para a descarga dos fumes de aparehos alimentados com energiaDIFFE DE Energia ELECTRICA.
- Deve ser prevista uma adequada ventilação do
local quando o exaustor e os apareiros alimentados com energia diferente da energia elétrica são usados contemporaneamente.
- Se o exaustor for utilizes na versao aspiradora certificar-se das condições da chaminé de descarga, no caso esta tenha ficado inutilizada por muito tempo.
- Lembre-se de prestar atenção às normas locais em vigor e às prescrições das autoridades competentes em mérito à descarga do ar a ser evacuado durante o Functionamento aspiradoro do exaustor.
Todas as sugestões fornecidas devem ser observadas escrupulosamente com o objectivo de fazer possível incéndios.
Declinamos qualquer responsabilitadepor danos ou incendios causados pelo aparelho se nao foram observadas as dispositions acima indicadas.
Informações relativas à instalação
O exaustor pode funcional nas seguientes versões:
Versão aspiradora:
Fumos e vaporores são aspirados, através de um tubo spécifique (para comprar separatamente) para fora ou para uma conduita condominal de descargas projectada para este fim.
Se fornecido remover o FILTER de carvão.
O desviador de fluxo de ar não deve ser instalado.
Versão filtrante:
Fumaras e vaporos são aspirados e depurados ao passar por umAGO especico de carvaao activo e novamente enderecados na cozinha com autilização maism do desviador de fluxo de ar.
Verificar que a campanula ja tenha sido equipada com ].
falto de carvao, caso contrario, favor encomenda-lo e.
instalá-lo.
- O exaustor prévê diversas velocidades de)."funcimiento
Para um melhor rendimento, utilizes a potência de aspiração mais baixa em caso de��enas quantidades de vapores e fumarças, ao passo que serautilizada a potência de aspiração Tmaxa em caso de grandes quantidades de vapor e fumarças, e a potência de aspiração intermediária em caso de quantidades medias de vapor e fumarça. - Aconselhamos ligar o exaustor algunos Minutes
antes devenir a cozinhar e desliga-lo somente quando tiver alcancado a eliminação total dos odeores.
A Botoeira
O paine de controlo comprende:
1 botão "0" para deslagar o motor
3 botões, "I" "II" "III", para regular a velocidade do motor (1a - 2a - 3a velocidade)
1 botão “XXX” para acender/apagar as lâmpadas de iluminação
1
1
0
3 - tecla ligação "velocidade 2"
4 - tecla ligação "velocidade 3"
5 - tecla ligação "velocidade 4"
Ligação e desligamento motor
Ao aperture a tecla 2, o motor vai inicia a funcional em "velocidade 1". Para desligar o motor em "velocidade 1" pressionar uma vez a tecla 2, para velocidades superiores pressionar两大 vezes a tecla 2.
Activação timer de desligamento automatico
Para activar o timer de desligamento automatico do motor (10关键时刻), aperture por 2 segundos a tecla da velocidade seleccioanda. O led da tecla vai piscar.
Reset alarmefilters
A cada 30 horas de funciona, activa-se o alarme filtros, para reprogramá-lo, manter pressionada por 5 segundos a tecla 4, com o motor desligado.
Painel Touch Control:
As teclas do exaustor são do tipo "Touch Control" Activam-se com um leve toque sobre o símbolo relativo à funcao que se quer executar.
1 - tecla acender/apagar luzes
2 - tecla liação/desligamento motor / desactivação timer
3 - tecla ligação "velocidade 2" / desactivação timer
4 - tecla ligação "velocidade 3" / desactivação timer
5 - tecla ligação "velocidade 4" / velocidade 5" / desactivação timer
6 - tecla activação timer
Ligação e desligamento motor
Ao aperture a tecla 2, o motor vai inicia r unfonar em "velocidade 1". Para desligar o motor em "velocidade 1" pressionar uma vez a tecla 2, para velocidades superiores pressionar两大izes a tecla 2.
Quando estiver em "velocidade 4", pressionar a tecla 5 para passar à "velocidade 5".
Activação/ desactivação timer de desigamento automatico
Para activar o timer de desligamento automatico do motor (10 Minutes), aperture a tecla 6. Ao terminar o prazo, o motor e as luzes apagam. Para desactivar o timer, pressionar qualquer tecla velocidade (teclas 2-3-4-5)
- com o motor desligado, osindicadores 7-8-9-10 estáapagados
- na "velocidade 1" o indicator 7 está aceso.
- na "velocidade 2" os indicadores 7-8 está aceses
- na "velocidade 3" os indicadores 7-8-9 está elesos
- na "velocidade 4" os indicadores 7-8-9-10 estámos aceses
- na "velocidade 5" os indicadores 7-8-9 está acesos e o 10 a piscar
- o timer é assinalado pelo indicator 7 a piscar
Reset alarmefilters
A cada 100 horas de funciona, activa-se o alarme其间,
oAlarméassinaladopelopiscardodosindicadores7-8-9- 10por10segundos,acadadesligamento do motor. Para reprogramá-lo,pressionar por3 veza tecla6.
! Em caso de eventuels anomalias de functimento, antes de dirigir-se ao的服务o de assistencia, desconectar por pelo menos 5segundos o aparecido da alimentacaoelectrica:retire a ficha da tomada e deposit insira-a novamente. Caso a anomalia Continuing, verifique a correcta ligation do pailen de comandos a central electrica do exaustor, finalmente dirija-se ao service de assistencia.
Manutenção
Desconectar o aparelho da rede electrica antes de realizar qualquer tipo de manutenção.
Para asseguar uma eficácia ideal e constante do exaustor, recomendamos a realização regular da manutenção (a cadadez días, em media).
Limpeza exterior do aparelho
Limpar regularmente a parte externa do exaustor.
Para una limpeza completa do exaustor, utilizar um pano humedecido em alcool ou com produits adequados normalmente encontrados en commercio.
Evite o uso de produits que contém substancias abrasivas. Realizar a limpeza e esfregar as partes em aço sempre no sentido doaabamento de superficie.
O FILTER de gorduras serve para capturar as particulas de gorduras em suspensão derivantes do cozimento.
Deve ser limpo uma vez ao mês com detergentes não agressivos,manualmente ou na boa de lavar louças em baixas temperatas e com ciclo breve.
Se lavado em lavadora, com o tempo, pode se tornar opaco, mas a sua capacidade de filtração não diminui de forma nenhuma.
Desmontá-lo mediante os puxadores correspondentes, empurrando-os primeiro paraTRS earethpuxando-os para baixo (Fig. 1).
Apos tí-lo lavado, enchugá-lo com cuidado e montá-lo novamente em seu alojamento. Seguir o procedimento no sentido contrário.

Fig. 1
Substituição do FILTER de carvão
O FILTER de carvão serve para desengordurar e desodorar o ar antes que thise sera redirecionado no local mediente a grade superior.
O filtró de carvão pode ser lavado a cada dos meses em água quente e com detergentes adequados ou em boa lapa-louça a 65^ C (em caso de lavagem com a boa, realizar o ciclo de lavagem completenessa, sem loupças dentro da boa).
Retirar a agua em excesso sem danificar o FILTER, depuis retirar o material acolchoado colocado dentro do quadro em plástico e colocá-lo no forno por 10 Minutes, a 100^ para secá-lo definitivamente.
Substituir o FILTER de carvão activo a cada增值服务 ou quando resulta estar danificado.
Para desmontar ou substituir o过滤 de carvao:
Aplicar sobre o quadro o material acolchoado do filtró de carão e fixá-lo com o especialico suporte.
Montar novamente o/os filtros de gorduras.

Fig. 2
Substituição do FILTER de carvão(HPI 95))
Os filtros de carão activo devem ser substituções periodically能做到 não quismem para adquirir-se a um Centro de Assistência autorizada ou ao Concessionário que realizou a vend. Antes de iniciar a operação de insertão do filtro de carão, posicao o interruptor omnipolar sobre a posão O (off). Puxar a lingueta do filtró metalico até que o mesmo não se solte do alojamento (fig. 3). Remover os filtros de carão activo “O” sujos fazendo-os girar na direção dos ponteiros do relógio e desfiando-os das guias presentes no grupo de aspiração. Insira os novos filtros prestando atençao para que os furos dosleasedmos entrem nos pinos de referencia do groupe de aspiração (fig. 4) e
rode-os até a batida mecânia na direção contrária a dos ponteiros do relógio (operação inversa àsquela de montagem).


Fig. 3
Fig. 4
Substituição do FILTER de carvão (HSE159 IX)
O filtró de carvão pode ser lavado a cada dos meses em água quente e com detergentes adequados ou em boa lapa-loça a 65^ C (em caso de lavagem com a boa, realizar o ciclo de lavagem completenessa, sem loças dentro da boa).
Retirar a água em excesso sem danIFICAR o fazer, quando estiver danificado.
Para desmontar ou substituir o filtro de carvao:
Retirar o/oshetto/s de gorduras.
Montar novamente o/os filtros de gorduras.
Substituição das lâmpadas
Somente para o Modelo HSE 159 IX: contacte o服务于assistência técnica. Para os outros modelos:desligue o aparelho da rede electrica.
a. Remova a plafonnier empurrando com unaiosa chave de fendas (fig. 5).
b. Substitua a lampada defeituosa com uma com o mesmo valor.
c. Monte novamente a plafonnier.
d. Se a iluminação não funciona, verifique se as lampadas está bem inseridas antes de solicitar o服务于 assistência Tecnica.

Fig. 5
Ligação eletrica
O exaustor é destinado a ser instalado de modo fixo e permanente. Para a tensão de LINHA e a frequência consulte a placá das caracteristicas colocada no interior do aparelho. O cabo de alimentação (como H05VV-F 3 x 0.75mm^2 ) ligado aos bornes marcados com "L" (linha), "N" (neutro) do exaustor e fixado com uma braçadeira, deve ser ligado a um idoneo e acessível ponto de alimentação fixo, por parte do pessoal especializzato e autorizzato, que deve efectuar a ligação respeitando as normas e as leis em vigor, providenciando a montante da ligação elétrica um interruptor omnipolar com abertura dos contactos deleo menos 3 mm. O construtor declina qualquer responsabilité no caso de desrespeito das normas de prevenção de acidentes em vigor e necessarias ao normal e regular funciona da instalação elétrica.
Garantia
O aparecido deve ser entrega ao comprador+junto com um envelope que contentem,algém destemanual de instruções,o CERTIFICADO DE GARANTIA;caso contrário,peça-o ao revendedor.
Para que a garantia sera valida, o comprador deve pedir ao revendedor do aparelho para colocar um carimbo e a data da comprna no especico espoço reservado.
O CERTIFICADO NÃO DEVE SER ENVIADO PARA A VALIDACION.
Sem o respeito de este procedimento, o pessoal técnico sera obligado a COBRAR qualquer reparacao do aparelho. Para eventualis invenrientes que se verificassem durante o uso, o utilizesdador pode contactar o Concessionario que efectuou a vendau ou o Centro de Assistencia Tecnica Autorizo mais proximo. AJUDEM-NOS A SERVI-LOS MELHOR, lendo no certificado as cláusulas de garantia.
Istruzioni per il montaggio Installation instructions Instructions de montage Montageanleitungen Instructies voor de montage Instrucciones para el montaje Instruções para a montagem





3

4

5
IT
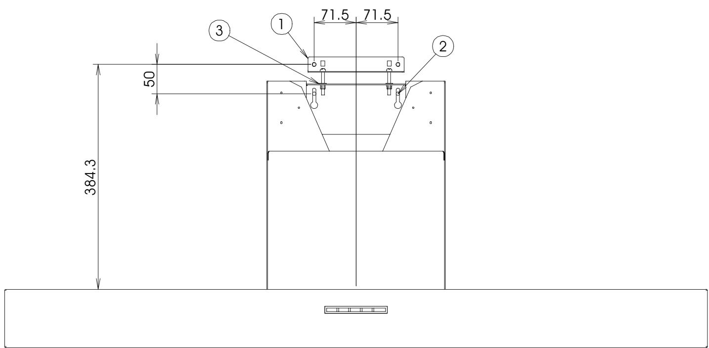
-Fixo o esquadro de所提供 (1) com dois parafusos no muro
-Engate o exaustor aos 2 parafusos pre-fixados (2)
-Parafuse os 2 parafusos M5 (fornecidos) às inserções e actue nas mesmas para efectuar as regulações.
-Quando tiver terminado a regulação, fixe definitivamente os parafusos.



8


9
Instruções para a montagem



1


2

3
IT
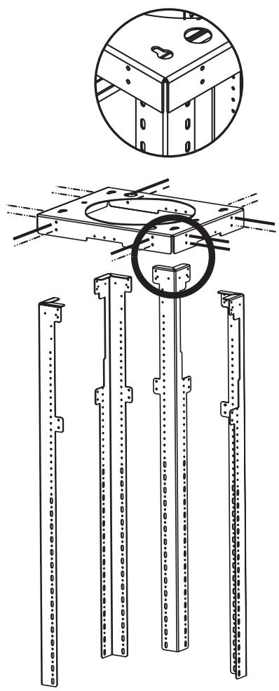
-Posizione o exaustor e fure a parede (4uros para buchas 08 fornecidos com o aparelho) como indicao no desinho.
-Fixo o esquadro de suporte (1) cominous parafusos no muro
-Engate o exaustor aos 2 parafusos pré-fixados (2)
-Parafuse os 2 parafusos M5 (fornecidos) às inserções e actue nas mesmas para efectuar as regulações.
-Quando tiver terminado a regulação, fixe definitivamente os parafusos.





6


7
Instruções para a montagem



1

2


3


4




5

IT
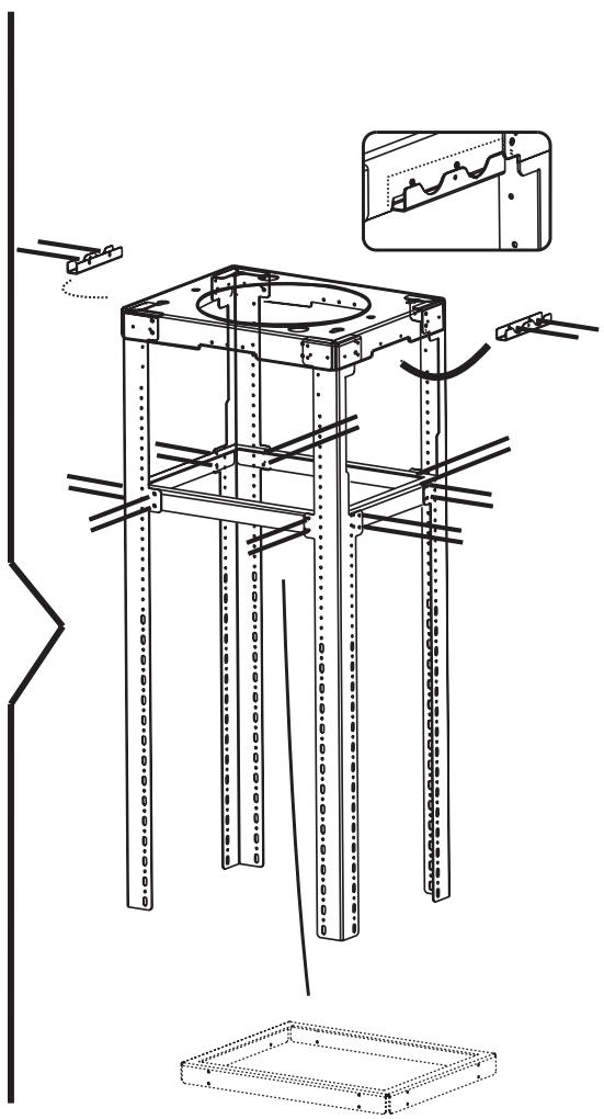
-Posiciono o exaustor e marque os furos das sedes dos suportes "E".
-Fure a parede posicionando os suportes, efetuating um furo para cadaenda: Realize 4uros (buchas 8 fornecidas com o produto)
-Fixe com os parafudos os suportes e apoie o exaustor sobre os mesmos.
- Para regular a posicao do exaustor, solte os parafusos dos suportes e regule a alta.
-Uma vez terminada a regulação, fixe os parafusos e marque a posicao dos parafusos anti-capotamento.
-Remova o exaustor e realize 2uros (buchas A8 forncidas com o produits)
-Apoie o exaustor sobre os suportes e fixe os parafusos anti-capotamento "P".

Instruções para a montagem


1


2


3



4


5


6
ManualFácil