ASTRO 3CBP PEGASUS - Chauffage DOVRE - Notice d'utilisation et mode d'emploi gratuit
Retrouvez gratuitement la notice de l'appareil ASTRO 3CBP PEGASUS DOVRE au format PDF.
| Caractéristique | Détails |
|---|---|
| Type de chauffage | Poêle à bois |
| Puissance nominale | 3 kW |
| Rendement énergétique | 80% |
| Dimensions (L x P x H) | 500 x 400 x 900 mm |
| Poids | 90 kg |
| Capacité du réservoir | Non applicable |
| Matériau | Acier et fonte |
| Émissions de CO | 0,1% |
| Normes de sécurité | Conforme aux normes EN 13240 |
| Installation | À poser sur un sol non combustible |
| Entretien | Nettoyage régulier du foyer et du conduit de fumée |
| Garantie | 2 ans |
FOIRE AUX QUESTIONS - ASTRO 3CBP PEGASUS DOVRE
Questions des utilisateurs sur ASTRO 3CBP PEGASUS DOVRE
0 question sur cet appareil. Repondez a celles que vous connaissez ou posez la votre.
Poser une nouvelle question sur cet appareil
Téléchargez la notice de votre Chauffage au format PDF gratuitement ! Retrouvez votre notice ASTRO 3CBP PEGASUS - DOVRE et reprennez votre appareil électronique en main. Sur cette page sont publiés tous les documents nécessaires à l'utilisation de votre appareil ASTRO 3CBP PEGASUS de la marque DOVRE.
MODE D'EMPLOI ASTRO 3CBP PEGASUS DOVRE
kachelruitreiniger..16
schoorsteenbrand 4,11.13
ventilatie 4-5
Déclaration de conformité 3
Sécurité 4
Conditions d'installation 4
Généralités 4
Cheminée 4
Ventilation de la piece 5
Sols et murs 6
Description produit
Installation 7
Preparation 7
Réalisation d'un raccordement d'air extérieur 8
Encastrement dans un nouveau manteau de
cheminée
Utilisation 11
Premiereutilisation 11
Combustible 11
Allumage 12
La combustion au bois 12
Réglage de l'air de combustion. 13
Extinction du foyer. 14
Décendrage. 14
Brouillard et brume. 15
Résolution problèmes 15
Entretien 15
Conduit de cheminée 15
Nettoyage et autre entretien régulier.... 15
Annexe 1: Spécifications techniques 18
Annexe 2 : Dimensions. 19
Annexe 3 : Distance entre le poèle et les
matéraux combustibles 24
Annexe 4:Tableau de diagnostic.. 25
Index 26
Introduction
Chere utilisatrice, cher utiliser, En achetant ce poèle DOVRE, vous avez opté pour un produit de qualité. Ce produit fait partie d'une nouvelle génération d'appareils de chauffage ecologiques et économiques en énergie. Ces appleils utilisent de manière optimale la chaleur convective, ainsi que la chaleur rayonnante.
Viete poèle DOVRE est fabriqué avec les moyens de fabrication les plus modernes. Si vous rencontres un dernier qualconque sur votre apparéil, vous pouvez toujours faire appel au service Par les générées, DOVRE.
L'appareil ne doit jamais être modifié ; veuilles Dovre nv, Nijverheidsstraat -2381, B2381 Weelde, toujours utiliser des pieces d'origine. Belgique, déclare
L'appareil est prevu pour etre place dans une piece d'habitation. Il doit etre raccordede facon hermetique a un conduit de cheminee fonctionnant que les inserts de cheminee/foyers fermes des series correctement et conforme aux normes en vigueur.2175, 2575, 2176 et 2576 ont ete fabriques conformement a la norme EN 13229.
- Nous vous recommendons de faire appel à un chauffagiste agréé professionnel pour installer votre apparéil.
DOVRE décline toute responsabilité pour des problèmes ou des dommages dus à une installation incorrecte.
Lors de l'installation et de l'utilisation, les consignes de sécurité décrites ci-après doivent toujours être respectées.
Ce mode d'emploi contient des informations concernant l'installation, l'utilisation et l'entretien en toute sécurité de l'appareil de chauffage DOVRE. Si vous souhaitez receivevoir des informations complémentaires ou des specifications techniques ou si vous rencontres un problème lors de l'installation, veuillez d'abord contacter votre distributeur.
© 2012 DOVRE NV

Les produits faisant l'objet d'une amélioration permanente, les specifications de l'appareil livre pourront diverger de celles mentionnées dans cette brochure sans avis préalable.
Belgique E-mail : info@dovre.be

Sécurité
Attention! Toutes les consignes de sécurité doivent être strictement respectées.
Avant d'utiliser votre poèle, lisez attentivement les instructions pour l'installation, l'utilisation et l'entretien.
L'appareil doit être installé conformément à la législation et aux prescriptions nationales.
Toutes les dispositions régionales et les dispositions concernant les normes européennes et nationales doivent être respectées lors de l'installation de l'appareil.
Lisez attentivement les instructions pour l'installation, l'utilisation et l'entretien fournies avec le poèle.
Nous vous recommendons de faire appel à un chauffagiste/agree pour installer votre apparéil. Ce spécialiste connait les dispositions et les réglementations en vigueur.
L'appareil est concu pour le chauffage. Toutes les surfaces, y compris la vitre et le conduit raccordement peuvent etre brulantes (plus de 100^ )! Pour manipuler l'appareil, portez toujours un gant résistant a la chaleur ou utilisez une poignee main froide.
Ne placez jamais de rideaux, vêtements, linges ou autres matières combustibles sur ou à proximé du poèle.
Lorsque vous poèle fonctionne, n'utilisez jamais de produits explosifs ou facilement inflammables à proximate du poèle.
Prévenez tout départ de feu dans le conduit cheminée en faisant ramoner régulièrement le conduit concerné. Ne laissez jamais le feu brûler avec la porte du poèle ouverte.
En cas de départ de feu dans le conduit de cheminée: fermez les arrivées d'air du poële et appelez les pompiers.
Si la vitre du poèle est brisée ou fendue, la replacer avant d'utiliser à nouveau l'appareil.
Veillez à avoir une aération suffisante de la piece où se trouve le poèle. Une aération insuffisante peut engender une combustion incomplète et l'échévement de gaz toxiques dans la piece. Voir le chapitre « Conditions d'installation » pour de plus amples informations concernant l'aération.
Conditions d'installation
Généralités
L'appareil doit être raccordé à un conduit de cheminée fonctionnant correctement.
Pour les dimensions de raccordement : voir l'annexe « Spécifications techniques »
Informez-vous auprès d'un professionnel des pompiers et/ou de votreompagnie d'assurances pour connaître les eventuelles exigences et dispositions spécifiques.
Cheminée
de cheminée est nécessaire pour :
L'évacuation des gaz de combustion par tirage naturel.
L'air chaud dans la cheminée est plus léger que l'air extérieur et s'éleve donc dans le conduit de cheminée.
L'aspiration de l'air est nécessaire pour la combustion du combustible dans le poèle.
- Une cheminée fonctionnant mal peut engendrer un retard de fumée lors de l'ouverture de la porte. Les dammages dus à un retard de fumée sont exclus de la garantie.
Il est interdit de raccorder plusieurs apparéils (la chaudière du chauffage central, par exemple) au même conduit de cheminée, sauf dans des cas précis prévus par la réglementation régionale ou nationale.
Demandez a votre chauffagiste des conseils concernant la cheminée. Consultez la norme europeenne EN13384 pour calculator correctement la configuration de la cheminée.
La cheminée doit satisfaire aux conditions suivantes :
La cheminée doit être fabriquée en matériaux réfractaires, de préférence en acier inoxydable ou en ceramique.
La cheminée doit être étanche, bien propre et garantir un tirage suffisant.
Un tirage/depression de 15 - 20 Pa à l'allure nominale est idéal.
La cheminée doit être aussi verticale que possible en partant de la sortie de l'appareil. Les changements de direction et les sections horizontales perturbent l'évacuation des gaz de combustion et peuvent creer une accumulation de suie.
La section interieure du conduit ne doit pas etre trop importante,afin d'eviter un refroidissement trop important des gaz de combustion risquant de réduire le tirage.
La cheminée doit de préférence partager le moyen diamètre que le diamètre de la buse de raccordement.
Pour le diamètre nominal : voir l'annexe « Spécifications techniques ». Si le conduit de fumée est correctement isolé, le diamètre peut eventuellement être plus important (au maximum deux fois la section de la buse de raccordement).
La section (surface) du conduit de fumée doit et constante. Les élargissements et (plus particulièrement) les rétrécissements perturbent l'évacuation des gaz de combustion.
En cas de pose d'une mitre à la sortie de la cheminée : veillez à ce que la mitre ne réduise la sortie d'évacuation de la cheminée et qu'elle ne perturbe pas l'évacuation des gaz de combustion
La cheminée doit Deboucher dans une zone non perturbée par des batiments, arbres ou autres obstaclesavoisinants.
La partie de la cheminée hors du toit doit toutjure estolede.
La cheminée doit être d'au moins 4 metres de haut.
La regle de base est la suivante : 60 cm au-dessus du faitage du toit.
Si le faitage du toit est etoigné de plus de 3 metres de la cheminée : respectez les dimensions indiquées sur le croquis suivant. A = point le plus haut du toit à une distance de 3 metres.

Ventilation de la piece
L'appareil a besoin d'air (oxygène) pour garantir une bonne combustion. L'appareil est alimenté en air de la pierce où il se trouve, par le biais d'admissions d'air réglables.
Un manque d'aération peut engendrer une combustion incomplète et des gaz toxiques peuvent se repandre dans la pierce.
La règle de base est que l'alimentation en air doit être de 5,5 cm²/kW. Une aération supplémentaire est nécessaire dans les cas suivants :
L'appareil est placé dans une piece correctement isolée.
Il existe une aération mécanique (VMC), un pasysteme d'aspiration central ou une hotte de une cuisine dans une cuisine américaine, par exemple.
Vous pouvez creer une aération supplémentaire en
placant une grille d'aération dans un mur donnant sur l'extérieur.
Veillez à ce que les autres apparèils utilisant l'air
1(Seche-linge, second appeareil de chauffage ou aérateur de salle de bain) aient une propre arrivée d'air extérieur ou soient eteints lorsque le poèle est allumé.

Vous pouvez également raccorder l'appareil à une arrivée d'air extérieur. Un kit de raccordement est fourni à cet effet. Dans un tel cas, une aération supplémentaire n'est pas nécessaire. D

Ne placez aucun matériel inflammable a moins de 50 cm des ouvertures d'évacuation-convection eventuelles.
Description produit
Sols et murs
Le sol sur lequel l'appareil sera posé, doit présente une capacité de charge suffisante. Pour connaître les poids de l'appareil : voir l'annexe « Spécifications techniques »

Aucun cable electrique ne doit se couver sous l'appareil et dans les murs a proximite de l'appareil.

Tous les matériaux inflammables
éventuellesment présents sous le poèle doivent (etre reliés ou protégés par une dalle en béton de 6 cm dépaissur au moins et une couche d'isolement de 10 cm.


Les parois inflammables à proximate de l'appareil doivent être protégées par une paroig en pierre de 10 cm minimum et une couche d'isolation de 10 cm.
- Buse de raccordement
- Collecteur de fumée

Protégéz les parois inflammables presents à proximate du poèle avec une couche d'isolation de 2,5 cm minimum afin de préve la formation de fissures.
- Verrouillage
- Registre d'air primaire
- Registre d'air secondaire

En cas de sol inflammable, posez une plaque de sol ininflammable pour le protégger contre le chaleur rayonnante et les cendres volantes éventuels. Voir l'annexe « Distance d'éloignement avec des matériaux inflammables »
- Raccordement air extérieur
- Votre latereale (uniquement pour les modeles 2175CBS3 et 2575CBS3)
Caracteristiques de l'appareil

Veillez à ce qu'il y ait une distance suffisante entre l'appareil et les materiaux inflammables, tels que le mobilier.
L'appareil est fourni avec un gant de protection de la main.
Le sens de rotation de la porte peut etre modifie. Le poele est livre avec la porte tournant vers la gauche.Pour obtenir une porte tournant vers la droite,une tige de verrouillage disponible en option est necessaire.Un livre d'instructions pour la modification du sens de rotation est fourni avec cette tige de verrouillage.

Veiliez à une aération suffisante autour des matériaux inflammables, tels qu'une poutre décorative. Voir l'annexe « Distance d'éloignement avec des matériaux inflammables »
Le poèle est livré avec un kit de raccordement pour l'arrivée d'air extérieur.

Les tapis doivent se trouver au moins à 80 cm du foyer.
Caracteristiques complémentaires des modèles 2175 et 2176
Les modeles sont dotés d'une buse de raccordement qui permet un raccordement à la verticale ou un raccordement 45^
Caracteristiques complémentaires des modeles 2176 et 2576
Les modeles sont dotés d'un bac à cendres amovible.
Caracteristiques complémentaires modele 2175CBS3 et modele 2575CBS3
Les modèles sont fournis standard en modele de vitre sur 3 faces et peuvent être convertis en modele de vitre sur 2 faces avec un côte vitre à gauche ou à droite. Vous pouvez replacer l'autre vitre laterale par une plaque laterale en fonte. La plaque laterale est disponible en option. La plaque est livrée avec un livre d'instruction pour replacer la partie laterale vitrée de l'appareil par une plaque en fonte.
retirer toutes les pieces non fixées de l'appareil.
Veillez bien à la position d'origine de ces pieces, afin de pouvoir les replacer correctement après l'installation.
Déposer les plaques interieures refractaires
Déposez les plaques interieures réfractaires dans le bon ordre de succession en respectant les instructions ci-dessous :
- Ouvrez la porte en tournant le verrou vers l'extérieur et en déverrouillant la porte; voir illustration suivante.

Installation
Preparation
Controller le poèle immédiatement à la réception en rechercheant les dommages (de transport) et autres manquements évventuels. 3
En cas de manquements ou dommages (de transport) évientuelles constatés, n'utilise pas le poèle et informez le fournisseur.
Déposez les pieces non fixées (plaques interieures réfractaires, plaque de fond, corbeille, volet de décendrage et bac à cendres) de l'appareil avant d'installer ce dernier.
Afin de faciliter la manipulation et de préveni des endommagements, vous pouvez d'abord
- Otez tout d'abord les plaques interieures qui se trouvent sur les deux cots lateraux de l'appareil. Les modèles 2175CBS3 et 2575CBS3 version avec côté vitré, ne sont pas équipés de ces en plaques interieures.
- Otez les plaques interieures qui se trouvent à droite et à gauche sur le côte arrêté de l'appareil.
- Otez la plaque interieure qui se trouve au milieu du cote arrêté de l'appareil.
Les plaques interieures en fonte protégent la chambre de combustion et transmettent la chaleur à l'environnement.
Modification de la direction de la buse de raccordement
Si au lieu d'un raccordement vertical vous souhaitez avoir un raccordement à 45^ , si cela simplifie le
raccordement sur une évacuation de fumée existante par exemple, vous doivent tourner la buse de raccordement à 180^ ; voir les deux illustrations suivantes.
- Désaccouplez le raccord entre la buse de raccordement et le collecteur de fumée en dévissant les deux écrous M8
- Retirez la buse de raccordement hors des deux boulons
- Tournez la buse de raccordement de 180^ et reposez-la sur le collecteur de fumée.
- Réaccouplez la buse de raccordement et le collecteur de fumée en serrant les deux écrous M8
- Utilisez du kit pour poèle pour étanchéiser le raccord entre la buse de raccordement et le collecteur de fumée.

Le kit pour poèle n'est pas fourni avec l'appareil.


Réalisation d'un raccordement d'air extérieur
Si le poèle est place dans une piece insuffisamment aérée, vous pouvez monter sur le poèle le kit de raccordement fourni pour l'alimentation en air extérieur.
Le tube d'arrivée d'air a un diamètre de 100 mm. Si vous utilisez un tube lisse, il doit avoir une longueur maximale de 12 metres. Si vous utilisez des accessoires tels que des courbures, vous devez réduire d'un métre la longueur maximale (12 metres) pour chaque accessoire.
Raccordement d'air extérieur par une paroi ou par le sol et la buse raccordement
-
Percez un passage pour le raccordement dans la paroi ou le sol (consultez l'Annexe 2, « Dimensions », pour le bon emplacement du passage pour le raccordement).
-
Raccordez hermetiquement le tube d'évacuation d'air au mur.
- Montez la buse de raccordement (A) sur l'extremité filetée M6 (B) à l'aide de l'écrou (D) de la rondelle (C): voir illustration suivante.

Encastrement dans un nouveau manteau de cheminée
L'installation de l'insert de cheminée/foyer fermé comprend deux phases :


La mise en place et le raccordement du foyer fermé 3. Raccordez hermétiquement l'appareil au conduit
La construction du manteau de cheminée autour du de cheminée.
foyer fermé.
Pose et raccordement du foyer fermé
-
Vérifiez le tirage dans la cheminée et l'étanchéité du raccordement sur la conduite d'évacuation des gaz de fumée en allumant un petit feu ardent avec du papier journal et de fins morceaux de bois sec.
-
Placez l'appareil à la hauteur appropriée, à plat et En cas d'ouvrage de nouvelle maconnerie, de niveau. attendez que l'ouvrage soit bien sec.
- Veillez à ce qu'un espace libre de 100 mm sépée En cas de raccordement à l'air extérieur : les parois existantes, dotées de l'isolation raccordez le conduit d'alimentation en air extérieur nécessaire (voir le chapitre « Conditions avec le kit de raccordement que vous avez monté d'installation »), et l'arrête de l'appareil ; voir les sur l'appareil.
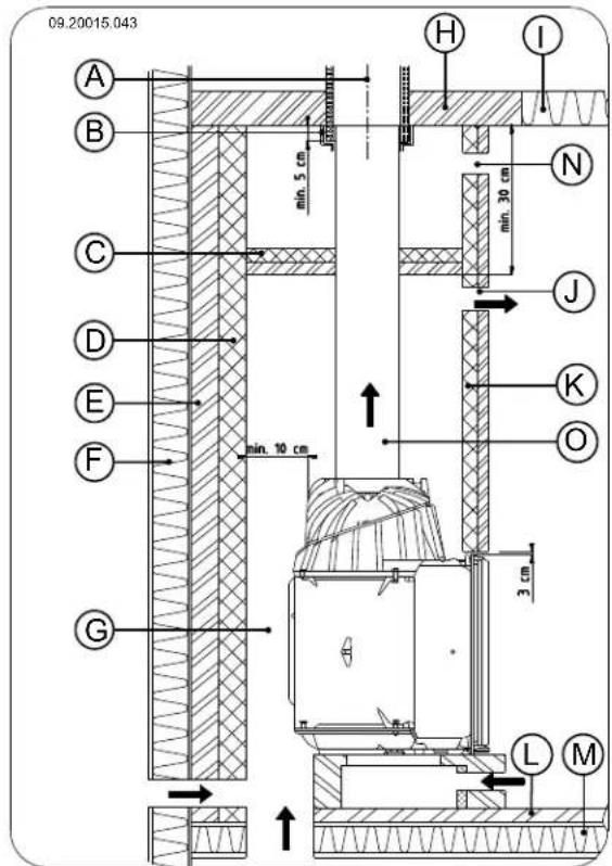
Montage du manteau de cheminée
Dans le manteau de la cheminée, vous doivent réalier l'espace de convection. Dans cet espace, l'air doit
pouvoir circuler librement. L'air pour la combustion doit pouvoir être aspiré correctement et l'air chauffé par le foyer fermé (air de convection) doit pouvoir s'échapper librement dans la piece à chauffer; voir illustration suivante.

A flux d'air de convection
B rayonnement de la chaleur
C alimentation en air à partir de la pierce à chauffer
D raccordement en air extérieur par la paroi
E raccordement en air extérieur par le sol
Respectez les consignes suivantes pour l'espace
de convection lors de la construction du manteau
de cheminée :
La partie du supérieure de l'espace de convection doit obturé de façon hermetique à l'air en utilisant une plaque de fermeture fabriquée dans un matériel ignifuge et résistant à la chaleur.
La plaque de fermeture doit être placée de niveau et à 30 cm au moins sous l'ouverture des gaz de fume dans le plafond.
Des grilles d'arrivée d'air doivent être montées en bas du manteau de cheminée pour permettre l'alimentation en air ambient. L'ouverture d'arrivée d'air minimale est de 250^2 . cSi le local n'est pas suffisamment aéré, vous nevez prévoir une alimentation en air extérieur en utilisant le kit de raccordement d'air extérieur fourni ou un kit à clapet d'air en option avec bouton de réglage.
Des grilles d'évacuation d'air doivent être placees sur le dessus du manteau de cheminée et sous la plaque de fermeture. L'ouverture d'évacuation d'air minimale est de 500~cm
i Les grilles d'arrivée et les grilles d'évacuation sont disponibles en option.
Dans l'espace de convection, n'utilise jamais de matériaux inflammables et prévenez l'effet de Ponts thermiques en utilisant des matériaux caloporteurs.
Lors du montage du manteau de cheminée, suivez les consignes suivantes :
- Maçonnez le pied de la cheminée et placez dans cet ouvrage en maçonneerie les grilles d'arrivée d'air.
Vous pouvez placer les grilles d'arrivee d'air sur tous les cotes du pied de cheminée.
Assurez-vous que la porte de l'insert du foyer fermé peut tournier librement au-dessus du plateau du foyer.
- Maçonnez le manteau jusqu'à la hauteur du collecteur de fumée.
Veillez à toujours respecter un jeu de 2 mm entre le foyer fermé et l'ouvrage en maconnerie afin d'amortir la dilatation thermique du foyer fermé.
- Isolez si souhaite l'intérieur de l'espace de convection avec du matériel isolant reflectant.
-
Isolez si souhaite l'intérieur de l'espace de convection avec du matériel isolant reflectant.
Un revêtement d'iso1ation supplémentaire de l'espace de convection previent toute déperdition par rayonnement thermique vers des murs extérieurs et/ou les locaux adjacents.
eventuels.Cela prévient également la
degradation de I'iso1ation des murs creux. -
Maçonnez le manteau jusqu'à l'ouverture de gaz cellulaire, par ex.)
fumée dans le plafond.
Le foyer fermé ne doit pas supporter l'ouvrage en maconnerie. Placez un support tel qu'un tel porteur. Veillez à respecter un jeu minimum d 3mm entre le support et l'appareil.
F Paroi inflammable
G Espace de convection H Plafond ininflammable e Plafond inflammable
J Sortie de l'air de convection
K Isolation
L Sol ininflammable
M Sol inflammable
N Ouverture contre la suppression
O Conduite de raccordement
-
Fermez l'espace de convection avec la plaque de fermetre.
-
Placez les grilles d'évacuation d'air sous la plaque de fermeture.
-
RÉalissez une ouverture au-dessus de la plaque de fermetre afin de prévenir toute surpression eventuelle.
Finition
L'illustration suivante présente un exemple de la mise en place d'un foyer fermé dans un manteau de cheminée construit conformément aux instructions ci-2. dessous.
1 Remontez toutes les pieces déposées à l'endetroit approprié sur l'appareil.
-2. Veillez à ce que le nouveau manteau de cheminée construit soit bien sec avant d'allumer un feu.

Ne faites jamais fonctionner chez apparéil si les plaques interieures réfractaires ne sont pas montées.
L'appareil est a present pret pour l'emploi.
Utilisation
Première utilisation
Lorsque vous utilisez le poèle pour la première fois, faites un feu intensif pendant quelques heures. Ce feu durcira la laque résistante à la chaleur. Cela peut toutefois générer de la fumée et une odeur incommodante. Ouvrez eventuèlement quelques minutes les portes et les fenêtres de la pièce dans laquelle se trouve le poèle.
Combustible
Ce poèle est uniquement adapté pour brûler du bois naturel, scié et fendu et suffisamment sec.
N'utilisez jamais d'autres combustibles que celui prévu pour le poèle, car ils risquent d'endommager irrémédiablement le poèle.
Les combustibles suivants ne doivent jamais être utilisés car ils sont polluants, et peuvent encrasser intensivement l'appareil et le conduit de cheminée et
A Cheminée
B Pièce d'étanchéité
C Plaque de recouvrement
D Isolation 10~cm
E Paroi ininflammable 10 cm min. (beton
engendrer un départ de feu dans le conduit de cheminée :
Bois traités, tels que bois de démolition, bois bois improugné, bois conservé, contreplaqué et aggloméré.
Plastique, vieux papier et déchets menagers.
Bois
Utilisez de préférence du bois dur provenant d'essences feuillues telles que le chêne, le hêtre, le boureau et les arbres fruitiers. Ces bois brûlent lentement avec des flammes douces et régulières. Le bois de conifères contient plus de résine, brûle plus rapidement et produit plus d'étincelles.
Utilisez du bois sec d'un pourcentage maximum d'humidité de 20% . Pour cela le bois doit avoir seché pendant 2 ans au moins.
Sciez le bois à la mesure et fendez-le lorsqu'il est encore vert. Le bois vert se fend plus facilement et le bois fendu sèche比较好. Stocker le bois sous un auvent où le vent peut circuler. 4.
N'utilisez pas de bois mouillé. Le bois mouillé donne moins de chaleur car toute l'énergie va être consacré à l'évaporation de l'humidité. Cela 5. produit également beaucoup de fumée et des dépôts de suie sur la porte du poële et dans le conduit de cheminée. La vapeur d'eau se condensé dans le poële et peut provoquer des fuites le long des joints du poële et des tâches noires sur le sol de la pierce. La vapeur d'eau peut aussi se condenser dans le conduit de cheminée et former de la créosote. La créosote est extrémement Apa inflammable et peut produit un départ de feu dans la cheminée.
Allumage
Vous pouvez vérifier le tirage de la cheminée en allumant une boule de papier au-dessus du déflecteur du poèle. Si la cheminée est froide, le tirage dans le conduit de cheminée est souvent insuffisant et la fumée peut se repandre dans la piece. Procedez comme suit pour allumer le poèle afin de prévenir le risque d'enflammage de la piece.
-
Empilez deux couches de buches de taille moyenne l'une sur l'autre en les croisant.
-
Empilez sur les bùches deux couches de bois d'allumage l'une sur l'autre en les croisant.
jβt, Posez un allume-feu dans la couche inférieure de bois d'allumage et allumez-le en suivant les instructions sur son emballage.

- Fermez la porte du poèle et ouvrez l'arrivée d'air primaire et l'arrivée d'air secondaire du poèle ; voir l'illustration suivante.
- Laissez le feu d'allumage brûler bien fort jusqu'à ce que le bois fasse un lit de braises ardentes. Vous pouvez ensuitemettre un peu plus de bois et sense régler le poèle, voir le paragraphe "La combustion ng au bois".
La combustion au bois
A pree s aovr suivi les instructions pour faire un feu d'ahallumage :
- Ouvrez lentement la porte du poèle.
- Étalez uniformément le lit de braises dans le fond du poèle.
Empilez quelques bùches sur le lit de charbon de bois.
Empilage non serre

Quand le bois est empilé non serré, il brûlera vite fait que l'oxygène pourra atteindre facilement chaque bùche. Un empilage de cette façon est recommendés si vous souhaitez chauffer pendant une période courte.
Empilage serre

Remplissez au maximum un tiers du volume total du corps de chauffe.
Réglage de l'air de combustion
Le poèle est doté de différents dispositifs pour régler l'air (voir illustration).

Le registre d'air primaire (A) permet de régler l'air sous la grille. Le registre d'air seconde (B) permet de régler l'air pour la vitre (air-wash).
Tournez le registre d'air (A) vers la gauche pour ouvré le registre d'air ; voir illustration suivante.

Quand le bois est empilé serré, il brûlera plus Tournez le registre d'air (B) vers la droite pour ouvrir le lentement du fait que l'oxygène ne pourrait atteindre registre d'air ; voir illustration suivante. que quelques buches. Un empilage serré est recommendé si vous souhaitezCHAuffer pendant une longue période.
- Fermez la porte du poèle.
- Fermez l'arrivee d'air primaire et laissez l'arrivee d'air secondaire ouverte.

L'appareil est doté d'un déflecteur à double paroi ouvertures d'air permanentes qui garantissant une double combustion parfaite.
Conseils

Ne laissez jamais le feu brûler avec la porte poèle ouverte.

Faites régulièrement un feu bien vif dans le poèle.
Ouvrez temporairement l'arrivée d'air primaire si l'admission d'air par l'arrivée d'air secondaire est insuffisante ou si vous souhaitez raviver le feu.
- Remplir régulierement avec une petite quantité de buches de bois est moins que de remplir avec une grande quantité de buches d'un coup.
Extinction du foyer
N'ajoutez plus de combustible et laisserze le foyer s'eteindre de lui-même. Si la puissance du feu est diminuée en réduisant l'alimentation d'air, des gaz à l'exiques se dégagent. Pour cette raison, laisserze toujours le foyer s'eteindre de lui-même. Surveillance le feu jusqu'à ce qu'il soit totalement éteint. Une fois le feu totallement éteint, vous pouvez fermer tous les registres d'air.
Décendrage
Après la combustion du bois, une quantité de cendres relativement réduite resté dans le poèle. Ce lit de cendres est un excellent isolant pour le fond du poèle
Lorsque l'on brule du bois pendant une longuet garantit une(Meilleure combustion. De ce fait, il est pereode a faible regime, il peut se former dans commande de laisser une fine couche de cendres la cheminée des depots de goudron et de sur le fond du poele.
creosote. Le goudron et la créosote sont L'alimentation en air par le fond du poèle ne doit extrément inflammables. Quand ces dépôts toutefois pas été perturbée et il faut prévenir toute deviennent trop importants, une augmentation accumulation de cendres derrière la plaque interieure subite de la température de la cheminée peut en compte en fonte. Il faut donc éliminer régulièrement les provoquer un feu dans le conduit de cheminée.
C'est pourquoi il est recommendé de faire régulierement un feu bien vif, afin de faire disparaître ces dépôts eventuels de goudron et décendrage des modèles 2175 e crésoscope. 2575
En outre, en cas de feu trop faible, du goudron 1. Ouvrez la porte de l'appareil. peut se déposer sur la vitre et la porte du poèle. En cas de température extérieure douce, il est. 'Retirez le surplus de cendres en utilisant la pelle préféable de faire un bon feu vif pendant ou un aspirateur à cendres spécial.
quelques heures, ploutot que de faire fonctionner le poèle avec un feu faible pendant Utilisez toujours un aspirateur à cendres ; une longue période. l'usage d'un aspirateur domestique ordinaire
- Reglez l'admission d'air avec l'arrivée d'air secondaire.

L'arrivée d'air secondaire oxygène non seulement le feu, mais « balaye » aussi la vitre ce qui prévient son encrassement prematuré.

Utilisé toujours un aspirateur à cendres ; l'usage d'un aspirateur domestique ordinaire non doté d'un dispositif spécial peut endommager irrémédiablement l'aspirateur.
- Fermez la porte de l'appareil.
Décendrage des modèles 2176 2576

- Ouvrez la porte de l'appareil.
- Utilisez la pelle pour ouvrir le volet de descendrage (C) dans le fond du poèle (A).
- Avec la pelle, poussez la cendre excédentaire, travers du volet de décendrage dans le bac à cendres (B) situé en-dessous.
- Refermez le volet de décendrage.
- Retirez le bac à cendres (B) en utilisant le gant fourni et videz le bac à cendres.
- Replacez le bac a cendres et fermez la porte de l'appareil.
Brouillard et brume
Le brouillard et la brume perturbent l'évacuation des gaz de combustion au travers du conduit de cheminée. La fumée peut être rabattue dans la piece et doivent très incommodante. S'il n'est pas juste nécessaire de chauffer avec le poèle, il est recommandé de ne pas faire de feu en cas de brum ou brouillard.
Résolution problèmes
Consulter l'annexe « tableau de diagnostic » pour résoudre des problèmes éventuels pendant l'usage poèle.
Entretien
Pour conserver votre appareil en bon etat, suivez les instructions d'entretien presentees dans ce chapitre.
Conduit de cheminée
Dans de nombreux pays, la loi impose le contrôle et l'entretien par un professionnel des conduits de cheminée.
Au début de la salle de chauffe: faites ramoner votre conduit de cheminée par un spécialiste agreé.
Pendant la saison de chauffe et après une longue période d'inutilisation de la cheminée : faites contrôle les dépôts évientuels de suie dans le conduit de cheminée.
À la fin de la saison de chauffe : bouchez le cond de cheminée avec du papier journal.
Nettoyage et autre entretien régulier
Ne nettoyez pas votre poèle si celui-ci est encore chaud.
Nettoyez l'extérieur du poèle avec un chiffon sec et non pelucheux.
À la fin de la salle de chauffe, vous pouvez nettoyer l'intérieur de l'appareil comme suit :
- Déposez éventuellesment tout d'abord les plaques interieures réfractaires. Voir le chapitre « Installation » pour consulter les instructions concernant la dépose et le remontage des plaques, intérieures.
Nettoyez eventuèlement les conduits d'alimentation en air.
Déposez le déflecteur qui se trouve au-dessus de l'appareil et nettoyez-le.
Contrôle des plaques interieures du réfractaires
Les plaques interieures refractaires sont des pièces sujéttes à l'usure. Contrôlez régulièrement les plaques interieures et remplacez-les si nécessaire.
Voir le chapitre « Installation » pour consulter les instructions concernant la dépose et le remontage des plaques interieures.
Les plaques interieures en vermiculite isolantes peuvent presenter des craquelures. Ces dernières ne nuisent cependant pas à la bonne fonction des plaques.
Les plaques interieures en fonte ont une durée de vie plus longue si vous retirez regulierement la cendre qui s'accumule eventuellement derriere. Si la cendre accumulée derriere une plaque en fonte n'est pas retiree, la plaque ne peut pas rayoner la chaleur dans l'environnement et risque de se deformer ou se fendre.
Ne faites jamais fonctionner votre apparéil si les plaques interieures réfractaires ne sont pas montées.
Démonter le clapet et le déflecteur
Le clapet et le déflecteur sont tous deux démontables
Le clapet (A) est relié au déflecteur avec la tige de clapet (B). Le déflecteur est fixé à l'appareil avec un raccord à boulon (C); voir illustration suivante.

- Soulevez le clapet (A) et déposé la tige de clapet (B). Basculez le clapet vers l'arrière de l'appareil ; voir illustration suivante.

Le clapet est maintainant séparate. Retirez le clapet de l'appareil ; voir illustration suivante.

- Dévissez le raccord à boulon (C) pour pouvoir-retirer le déflecteur. Dévissez l'écrou ; voir illustration suivante.

- Soulevez l'avant du déflecteur, tirez-le vers l'avan8. et séparez-le du boulon ; voir illustration suivante.
Nettoyez une nouvelle fois la surface en verre avec un produit ordinaire de nettoyage du verre.

-
Le déflecteur est maintainant séparé. Retirez le déflecteur avec précaution hors de l'appareil ; voir illustration suivante.
-
Nettoyez la surface en verre en la frottant avec un chiffon sec ou de l'essuie-tout.
N'utilisez jamais de produits abrasifs ou mordants pour nettoyer la surface en verre.
- Portez des gants de nettoyage pour protégger vos mains.
Si la vitre du poèle est brisée ou fendue, il faut la replacer avant d'utiliser à nouveau l'appareil.
Veillez à ce que le nettoyant pour vitres de poèle ne s'infiltré pas entre le verre et la porte en fonte.


Avant d'utiliser l'appareil, remonter le déflecteur et le clapet. Pour le montage du clapet et du déflecteur, suivez les instructions ci-dessus en sens inverse.
Nettoyage du verre
Une surface en verre propre retient moins facilement la poussière. Procedez comme suit :
-
Éliminez la poussière et la suite avec un chiffon sec.
-
Nettoyez le verre avec un nettoyant pour vitres de poèle :
a. Appliquez du nettoyant pour vitres de poële sur une éponge, répartissez-le sur toute la surface en verre et laissez agir.
b. Éliminez ensuite la poussière avec un chiffon humide ou de l'essuie-tout.
Graissage
Bien que la fonte soit un métal autolubrifiant, vous nevez régulièrementGRAisser les pièces mobiles.
Graissez les pieces mobiles (telles que systèmes de guidage, charnières, verrous et réglettes d'air), avec de laGRAISSINE ININFLAMMBABLE disponible dans le commerce spécialisé.
Réparation de la couche de fini
Les petits dommages de la laque peuvent etre réparés avec un aerosol de laque spéciale résistant à la, chaleur et disponible auprès de votre fournisseur.
Contrôle de l'étanchéité
Vérifiez que le cordon d'étanchéité de la porte isole est bien hermétiquement. Le cordon d'étanchéité s'utilé et doit être remplaced à temps.
- Recherche les fuites d'air éventuelles de l'appareil. Mastique les interstices éventuels avec du kit pour poèle.
Avant d'allumer le poèle, laissez bien secher le kit qui autrement gonflera à cause de l'humidité qu'il contient, provoquant une nouvelle fuite d'air.
Annexe 1 : Spécifications techniques
| Modèle Séries 2170CB et 2570CB | |
| Puisance nominale 10 kW | |
| Raccordement conduit de cheminée (diamètre) 150 mm | |
| Poids +/- 160 kg | |
| Combustible commandé Bois | |
| Caracteristique combustible, longueur max. 50 cm | |
| Débit massique des gaz de fumée 10,1 g/s | |
| Augmentation de la température mesurée à la section de mesure | 260 K |
| Température mesurée à la sortie du poële | 345 |
| Tirage minimum | 12 Pa |
| Emission CO (13 %2)O | 0,06 % |
| Emission NOx (13 %2)O | 118 mg/Nm3 |
| Emission CnHm (13 %2)O | 70 mg/Nm3 |
| Emission de poussières | 19 mg/Nm3 |
| Emission de poussières selon NS3058-NS3059 | 7,1 g/kg |
| Rendement | 75,9 % |
Annexe 2 : Dimensions
2175CBS



09.20017.004

2176CBS
2175CBS3


09.20017.006
2576CBS



09.20017.001
2575CBS3



09.20017.003
Annexe 3 : Distance entre le poèle et les maté combustibles
Espace de ventilation minimum hors de la plage de rayonnement

Dimensions en centimètres du hourdis ignifugé


Dimensions minimaales du hourdis ignifugé
$$ V > H + 3 0 > 6 0 $$
$$ S > H + 2 0 > 4 0 $$
Annexe 4 : Tableau de diagnostic
| Problème | |||||
| ● | Le bois ne continue pas à brûler | ||||
| ● | Dégage une chaleur insuffisante | ||||
| ● | Retour de fumée lors du replissage du poële | ||||
| ● | Le feu est trop vif, impossibly de bien régler le poële | ||||
| Dépôt sur la vitre | |||||
| cause possible solution | éventuelle | ||||
| ● | ● | ● | Tirage insuffisant | Une cheminée froide présente au cours de l'illumage dans le chapitre « Utilisation »; ouvrez une fenêtre. | |
| ● | ● | ● | Le bois est trop humide Utilisez du bois à 20 % d'humidité maximum. | ||
| ● | ● | ● | Dimensions du boistrop importantes | Utilisé des petits morceaux de bois d'allumage. Utilisez des bùches fendues de 30 cm de circonférence maximale. | |
| ● | ● | ● | ● | Le bois est mal emplié | Posez le boisen veillant à ce que suffisamment d'air puisse passer entre les bùches (empilage non serré, voir « La combustion au bois »). |
| ● | ● | ● | Mauvais fonctionnement de la cheminée | Vérifie que la cheminée satisfait aux conditions suivantes: 4 metres de haut minimum, diamètre approprié, isolation correcte, interieur du conduit lisse, sans trop de coudes, aucune obstruction (nid d'oiseaux, dépôt de suie important), hermétique (sans interstices). | |
| ● | ● | ● | Sortie de la cheminée inadéquate | Doit être suffisamment haute au-dessus du toit, dans une zone dégagée. | |
| ● | ● | ● | ● | Réglage inadéquat des registres d'air | Ouvrez entièrement les registres d'air. |
| ● | ● | ● | Raccordement inadéquat du poële au conduit de cheminée | Le raccordement doit être hermétique. | |
| ● | ● | ● | Dépression dans la piece où le poële installé | est Désactivez les systèmes d'aspiration. | |
| ● | ● | ● | Alimentation insuffisante en air frais | Prévoyez une alimentation en air frais suffisante, utilisez si nécessaire un raccordement d'air extérieur. | |
| ● | ● | ● | Conditions météorologiques défavorables ? Inversion (flux d'air inversé dans la cheminée du fait d'un tempère extérieur élevée), fortes rafales de vent | En cas d'inversion du flux d'air, l'usage du poële est déconseilé. Posez si nécessaire une hotte aspirante sur la cheminée. | |
| ● | Courant d'air dans la piece | Évitez les courants d'air dans la piece, évitez de poser le poële à proximité d'une porte ou de gaines d'air de chauffage. | |||
| Les flammes touchent la vitre | Veiller à ce que le bois ne se trouve pas trop près de la vitre. Fermez un peu plus l'arrivée d'air primaire. | ||||
| ● | De l'air s'échappe du poële | Vérifie les fermétures de la porte et les joints de l'appareil. | |||
Index
A
Aération raccordement alimentation en air extérieur 8
Aération du feu 14.
Alimentation en air extérieur.8. raccordement a 9
Allumage.12
Arrivée d'air extérieur 5.
Arrivee d'air primaire..12
Arrivee d'air secondaire 12
Arrivées d'air.12
Augmentation de la températe section de mesure.18.
Avertissement aération.4 conditions d'assurances 4
consignes 4
départ de feu dans le conduit de cheminée 14
feudansleconduitdefumée 11
matériaux combustibles 4
nettoyant pour vitres de poèle 17
plaques intérieures refractaires 11
surface brulante 4
ventilation 5
vitre brisée ou fendue 4,17
B
Bacàcendres 15
Bois. 12
conservation 12
essence adaptee 12
mouille 12
ne brule pas 25
sechage 12
Bois d'allumage 25
Bois de conifères 12
Bois mouillé 12
Brouillard, ne pas faire de feu 15
Brume, ne pas faire de feu. 15
Buse deraccordement 7
C
Capacité de charge du sol 6
Chaleur,insuffisante. 15,25
Cheminée conditions 5
hauteur 5
raccordement a 9
Clapet montage 16
Combustible adapté 11
inadapté 11
quantité nécessaire 15
reemplissage 14
Combustible adapté 11
Combustible inadapté 11
Combustion 127 chaleurinsuffisante. 15,25
feu trop vif 25 impossible de bien regler le poèle.
replissage du combustible 12
replissage en combustible. 14
Conditions meteorologiques, ne pas faire de feu 15
- Conduit de cheminée diamètre de raccordement 18
entretien 15
Cordon d'etanchéité de la porte 17
Couche de finition, entretien 17
Creosote 14
D
débit massique 18
Décendrage 14
Deflecteur montage 16
Dimensions 19
E
Élimination
cendres 14
Élimination des cendres 14
E
Emission de poussieres 18
Empilage desbuches 13
Entretien conduit de cheminée 15
étanchéité 17
graissage 17
nettoyage du poèle 15
nettoyage du verre.17.
plaques intérieures refractaires 15
Espace de convection
consignes 10
plaque de fermeture..10.
Eteindre le foyer..14.
F
Feu
allumage.12
Feu d'allage.12
Foyer
extinction 14.
Fuite d'air..17.
Fumée
lors de la première utilisation..11.
G
Gaz de fumée 18
Goudron 14
Graissage 17
Graisse pour graissage 17
Grille d'arrivée d'air
exigences 10
mise en place 10
Grille d'évacuation d'air
exigences .10.
mise en place 10
Grille de ventilation. 5
H
Hauteur de replissage du poèle 13
1
Interstices dans l'appareil 17
L
Laque. 11
M
Matériau combustible
reempliage 13
Matériaux combustibles
distance entre 24
Mitre de cheminée 5
Mitre sur la cheminée 5
Murs
sécurité incendie 6
N
Nettoyage
poèle 15
verre 17
nettoyant pour vitres de poèle. 17
0
ouverture 15
Ouverture
bac a cendres. 15
Ouvrir
volet de décendrage. 15
P
Pelle pour descendrage 15
Plaque de fermeture
espace de convection 10
plaque latérale
conversion.7
Plaques intérieures
dépose 7
Plaques interieures réfractaires
avertissement 11
entretien 15
Plaques interieures, refractaires 7
Poids 18
Porte
cordon d'étanchéité 17
modifier sens de rotation. 6
Prévention d'un départ de feu dans le conduit 14
Problèmes eventuels 15
Puisance nominale 15, 18
R
Raccordement
dimensions
Pose
dimensions 19
Raccordement à l'alimentation en air extérieur 8
Ramonage du conduit de cheminée 15
Réglage de l'air. 13
Réglage de l'air de combustion. 13
Réglage de l'arrivée d'air.14
Remplissage en combustible.14
Remplissage en matérieliau combustible retour de fumée 25
Rendement.18.
Résolution de problèmes.25
Retour de fumée.4..25
s
Sechage du bois.12
Sécurité incendie
distance entre poèle / matériaux combustibles24
meubles 6
murs 6
sol 6
Sens de rotation modification 6
Sols
capacité de charge 6
sécurité incendie 6
stockage du bois 12
T
Tapis. 6
Température 18
Tirage 18
V
Ventilation 5
règle de base.
Verre
dépôt 25
nettoyage 17
Vitre latereale 7
Vitres
dépôt 25
nettoyage 17
Volet de décendrage. 15
Inhaltsverzeichnis
Einleitung 3
Cuello de connexion 7
D
Deflector de homo
montar. 15
Notice Facile