LEIHDC120SCEU - Hotte FALCON - Notice d'utilisation et mode d'emploi gratuit
Retrouvez gratuitement la notice de l'appareil LEIHDC120SCEU FALCON au format PDF.
| Caractéristiques techniques | Modèle : FALCON LEIHDC120SCEU, Type : Hotte de cuisine, Largeur : 120 cm, Débit d'air : 1000 m³/h, Niveau sonore : 60 dB, Éclairage : LED, Nombre de vitesses : 3 |
|---|---|
| Utilisation | Conçue pour éliminer les odeurs et les fumées de cuisson, installation murale, adaptée aux cuisines de grande taille. |
| Maintenance et réparation | Filtres à graisse lavables, entretien régulier recommandé, possibilité de remplacement des filtres à charbon (si applicable). |
| Sécurité | Conforme aux normes de sécurité en vigueur, protection contre la surchauffe, installation à distance des sources de chaleur. |
| Informations générales | Garantie : 2 ans, Couleur : Inox, Poids : 30 kg, Accessoires inclus : Kit de montage, Manuel d'utilisation. |
FOIRE AUX QUESTIONS - LEIHDC120SCEU FALCON
Questions des utilisateurs sur LEIHDC120SCEU FALCON
0 question sur cet appareil. Repondez a celles que vous connaissez ou posez la votre.
Poser une nouvelle question sur cet appareil
Téléchargez la notice de votre Hotte au format PDF gratuitement ! Retrouvez votre notice LEIHDC120SCEU - FALCON et reprennez votre appareil électronique en main. Sur cette page sont publiés tous les documents nécessaires à l'utilisation de votre appareil LEIHDC120SCEU de la marque FALCON.
MODE D'EMPLOI LEIHDC120SCEU FALCON
Manuel d'Instructions
Bedienungsanleitung
Gebruiksaanwijzing
La présente notice d'emploi vaut pour plusieurs versions de l'appareil. Elle peut contenir des descriptions d'accessoires ne figurant pas dans votre appareil.
INSTALLATION
- Le fabricant décline toute responsabilité en cas de dommage dû à une installation non correcte ou non conforme aux règles de l'art.
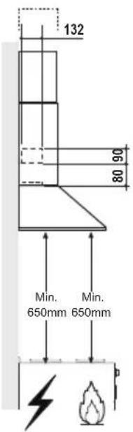
- La distance minimale de sécurité entre le plan de cuisson et la hotte doit être de 650 mm au moins (certains modèles peuvent être installés à une hauteur inférieure : se reporter aux paragraphes « Encombrement » et « Installation »).
- Vérifier que la tension du secteur correspond à la valeur qui figure sur la plaquette apposée à l'intérieur de la hotte.
- Pour les Appareils appartenant à la lère Classe, veiller à ce que la mise à la terre de l'installation électrique domestique ait été effectuée conformément aux normes en vigueur.
- Connecter la hotte à la sortie d'air aspiré à l'aide d'une tuyauterie d'un diamètre égal ou supérieur à 120 mm. Le parcours de la tuyauterie doit être le plus court possible.
- Ne pas connecter la hotte à des conduites d'évacuation de fumées issues d'une combustion tel que (Chaudière, cheminée, etc...).
- Si vous utilisez des appareils qui ne fonctionnent pas à l'électricité dans la pièce ou est installée la hotte (par exemple: des appareils fonctionnant au gaz), vous devez prévoir une aération suffisante du milieu. Si la cuisine en est dépourvue, pratiquez une ouverture qui communique avec l'extérieur pour garantir l'infiltration de l'air pur.
UTILISATION
- La hotte a été conçue exclusivement pour l'usage domestique, dans le but d'éliminer les odeurs de la cuisine.
- Ne jamais utiliser abusivement la hotte.
- Ne pas laisser les flammes libres à forte intensité quand la hotte est en service.
- Toujours régler les flammes de manière à éviter toute sortie latérale de ces dernières par rapport au fond des marmites.
- Contrôler les friteuses lors de l'utilisation car l'huile surchauffée pourrait s'enflammer.
- Ne pas préparer d'aliments flambés sous la hotte de cuisine : risque d'incendie
- Cet appareil ne doit pas être utilisé par des personnes (y compris les enfants) ayant des capacités psychiques, sensorielles ou mentales réduites, ni par des personnes n'ayant pas l'expérience et la connaissance de ce type d'appareils, à moins d'être sous le contrôle et la formation de personnes responsables de leur sécurité.
- Les enfants doivent être surveillés pour s'assurer qu'ils ne jouent pas avec l'appareil.
ENTRETIEN
- Avant de procéder à toute opération d'entretien, débrancher la hotte en retirant la fiche ou en actionnant l'interrupteur général.
- Effectuer un entretien scrupuleux et en temps dû des Filtres, à la cadence conseillée (Risque d'incendie).
- Pour le nettoyage des surfaces de la hotte, il suffit d'utiliser un chiffon humide et détersif liquide neutre.

text_image
650 mm min.
Le symbole sur le produit ou son emballage indique que ce produit ne peut être traité comme déchet ménager. Il doit plutôt être remis au point de ramassage concerné, se chargeant du recyclage du matériel électrique et électronique. En vous assurant que ce produit est éliminé correctement, vous favorisez la prévention des conséquences négatives pour l'environnement et la santé humaine qui, sinon, seraient le résultat d'un traitement inapproprié des déchets de ce produit. Pour obtenir plus de détails sur le recyclage de ce produit, veuillez prendre contact avec le bureau municipal de votre région, votre service d'élimination des déchets ménagers ou le magasin où vous avez acheté le produit.
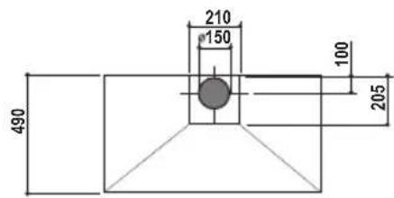
Encombrement

text_image
465 240 4 0 598 - 898 - 1098 - 1198 min.495 max. 770
text_image
490 210 150 100 205
text_image
132 80 90 Min. Min. 650mm 650mmComposants
Réf. Q.té Composants de Produit
1 1 Corps Hotte équipé de: Commandes, Lumière, Groupe Ventilateur, Filtres
2 1 Cheminée Télescopique formée par :
2.1 1 Cheminée Supérieure
2.2 1 Cheminée Inférieure
8a 1 Grille en Direction Droite Sortie Air
8b 1 Grille en Direction Gauche Sortie Air
9 1 Flasque de Réduction ø 150-120 mm
10 1 Anneau de raccord ∅ 120 - 125 mm
15 1 Raccord Sortie Air
Réf. Q.té Composants pour l'installation
7.1 2 Brides Fixation Corps Hotte
7.2.1 2 Brides Fixation Cheminée Supérieure
11 8 Chevilles
12a 8 Vis 4,2 x 44,4
12c 6 Vis 2,9 x 9,5
12d 2 Vis M4 x 25
| Q. té | Documentation |
| 1 | Manuel d'instructions |

text_image
15 10 9 2.1 2 2.2 8b 1 12a 7.2.1 11 7.2.1 12c 12c 8a 12c 12a 11 7.1 12dPerçage Paroi et Fixation Brides

text_image
7.2.1 1+2 X 7.1 109,5 109,5 650 min. H 190Tracer sur la paroi :
- une ligne verticale allant jusqu'au plafond ou à la limite supérieure, au centre de la zone prévue pour le montage de la hotte.
- une ligne horizontale à 650 mm min. au-dessus du plan de cuisson pour installation sans embases :à la cote H (H = hauteur de la partie en vue de l'embase), en cas d'installation avec embase.
- Poser comme indiqué une bride 7.2.1 sur la paroi à 1-2 mm du plafond ou de la limite supérieure, en alignant son centre (découpes) sur la ligne verticale de repère.
• Marquer les centres des trous de la bride. - Poser comme indiqué la bride 7.2.1 à X mm sous la première bride (X = hauteur cheminée supérieure fournie), en alignant son centre (découpes) sur la ligne verticale de repère.
• Marquer les centres des trous de la bride. - Poser comme indiqué, la bride 7.1 à 109,5 mm de la ligne verticale de repère, et 190 mm au-dessus de la ligne horizontale de repère.
• Marquer les centres des trous de la bride. - Répéter cette opération sur le côté opposé.
L'Embase doit être montée avant d'installer le corps de la hotte et si l'on souhaite la fixer au mur par le haut ou par le bas, il est nécessaire de la monter à la juste hauteur avant de monter les bases. Comme il s'agit d'une opération complexe, elle doit être confiée à l'installateur de la cuisine ou à un personnel compétent ayant pris connaissance de toutes les dimensions finales des meubles.
En se limitant à la fixation supérieure, procéder comme suit :
- Poser l'embase sur la base en insérant l'intercalaire inférieur entre le plan supérieur et la paroi, en le centrant par rapport à la ligne verticale de repère.
- Marquer les centres des deux trous de l'intercalaire supérieur.
- Percer de 8 mm tous les points marqués.
- Insérer les chevilles 11 dans les trous.
- Fixer les brides en utilisant les vis 12a fournies.
- Si présente, fixer l'embase, en utilisant les vis 12a fournies.
Montage Corps Hotte
- Visser sur les brides 7.1 les 2 vis 12d fournies.
- Accrocher le corps hotte aux brides 7.1, en le centrant sur la ligne verticale.
- Agir sur les vis 12d, par le dessous de la hotte pour en niveler le corps.

text_image
12.d 7.1Connexions
SORTIE DE L'AIR EN VERSION EVACUATION
Pour l'installation dans la Version Aspirante, connecter la hotte au tuyau d'évacuation, au moyen d'un tuyau rigide ou flexible de ∅ 150 ou 125 mm, que l'installateur pourra choisir à son propre gré.
- Pour raccord de 125 mm, insérer la bride de réduction 9 sur la sortie du corps de hotte et l'anneau d'agrandissement 10 de 120-125 mm sur la bride.
- Fixer le tuyau à l'aide du collet serre-tuyaux. Le matériel nécessaire n'est pas fourni avec l'appareil.
- Retirer les filtres anti-odeur au charbon actif, s'ils sont montés.

text_image
Ø 150 Ø 125 9 10SORTIE AIR VERSION FILTRANTE
- Appliquer par pression le raccord sortie air 15 sur la sortie du corps de la hotte.
- S'assurer de la présence des filtres anti-odeur au charbon actif.

text_image
15BRANCHEMENT ELECTRIQUE
- Brancher la hotte sur le secteur en interposant un interrupteur bipolaire avec ouverture des contacts d'au moins 3 mm.
- Enlever les filtres à graisse (voir § "Entretien") et s'assurer que le connecteur du câble d'alimentation soit bien branché dans la prise du diffuseur.

- Elargir légèrement les deux bords latéraux, et les accrocher derrière les brides 7.2.1 ; refermer jusqu'à la butée.
- Fixer latéralement aux brides, à l'aide des 4 vis 12c (2,9 x 9,5) fournies.
Cheminée inférieure
- Elargir légèrement les deux bords latéraux de la Cheminée et les accrocher entre la Cheminée supérieure et la paroi; refermer jusqu'à la butée.
- Fixer latéralement la partie inférieure au corps hotte, à l'aide des deux 2 vis 12c (2.9 x 9.5) fournies.
- Pour la version filtrante, appliquer les grilles de direction 8a – 8b dans les logements prévus à cet effet, pour que les symboles de direction soient orientés vers le haut et le face avant de la hotte. S'assurer qu'elles soient bien insérées dans le Raccord 15.

text_image
7.2.1 12c 2.1 2 8b 2.2 8a 12c
text_image
0.1 0.2 0.3 1.2 3 L M VL Lumières Allume et éteint l'éclairage.
M Moteur Allume et éteint le moteur aspiration
V Vitesses Détermine les vitesses d'exploitation ainsi subdivisées:
-
Vitesse minimale, pour un rechange d'air permanent particulièrement silencieux en cas de faibles vapeurs de cuisson.
-
Vitesse moyenne pour la plupart des conditions d'utilisation, étant donné le rapport optimal entre débit d'air traité et niveau sonore.
-
Vitesse maximum, pour faire face aux émissions maximum de vapeur de cuisson, même pendant des temps prolongés.
Filtres anti-graisse
NETTOYAGE FILTRES ANTI-GRAISSE METALLIQUES AUTOPORTEURS
- Lavables au lave-vaisselle, ils doivent être lavés environ tous les 2 mois d'emploi ou plus fréquemment en cas d'emploi particulièrement intense.
- Retirer les filtres l'un après l'autre, en les poussant vers la partie arrière du groupe et en tirant simultanément vers le bas.
- Laver les filtres en évitant de les plier et les laisser sécher avant de les remonter.
- Remonter les filtres en veillant à ce que la poignée reste vers la partie visible externe

Il ne sont pas lavables ni régénérables, il faut les remplacer au moins tous les 4 mois d'emploi ou plus fréquemment en cas d'emploi particulièrement intense.
- Retirer les filtres anti-graisse métalliques.
- Retirer les filtres anti-odeur au charbon actif saturés, comme indiqué (A).
• Monter les nouveaux filtres (B). - Remonter le filtres anti-graisse métalliques.

text_image
B AEclairage
REMLACEMENT LAMPES
Lampe halogène de 28 W.
- Retirer les filtres anti-graisse métalliques.
- Dévisser les lampes et les remplacer par de nouvelles avec les mêmes caractéristiques.
- Remonter les filtres anti-graisse métalliques.

Notice Facile