IB 753 BK - Komfyr CATA - Gratis bruksanvisning og manual
Finn enhetens veiledning gratis IB 753 BK CATA i PDF-format.
Last ned instruksjonene for din Komfyr i PDF-format gratis! Finn veiledningen din IB 753 BK - CATA og ta den elektroniske enheten tilbake i hendene. På denne siden er alle dokumenter som er nødvendige for bruken av enheten din publisert. IB 753 BK av merket CATA.
BRUKSANVISNING IB 753 BK CATA
Varmen transmitteres fra delve gryden og over til dennes indhold.
Denne operation bør finite sted indenfor de nastkommende 10 sekunder; Der bør ikke trykkes pa nogen som helst,anden tast end
ON/OFF av Touch Control-systemet
Skydd i handelse av ofrivillig pssattning
Blockering av touchkontrollerna (sakerhetsmekanism for barn)
Forsiktighetsatgärder
Fabrikanten garanterer at dette produitet oppfyller alle de grunnleggende kravene som regulerer elektrisk lavtrykksmateriell og elektromagnetisk kompatilitet i samsvar med henholdsvis direktiv 2006/95/EEC av 12. desember 2006 og direktiv 2004/108/EEC av 15. desember 2004.
Induksjonsprinsippet (Fig.1)
Induksjonsprinsippet er basert pa et cokekars elektromagnetiske egenskaper.
Inne i koketoppen finnes det en elektronisk krets som kontrollerer og gir energia til en elektrisk spole (induksjon) som skaper et magnetisk felft.
Slik skjer koking med induksjon:
- Minimalt varmetap (maks. effektivitet).
- När kjelen fjernes (eller ganske enkelt løftes bort), blir koketoppen raskt avkjolt.
- Det elektroniske systemet gir maksimal fleksilitet og finregulering.
(Fig.1)
- cokekar
- induksjonsstrøm
- magnetisk felt
4.induktor - elektronisk krets
- strøm Forsyning
Brukerinstrukser (Fig. 2)
TOUCHKONTROLL
1 PÅ/AV
2 Minus -
3 Plus +
4 Kokeflate
5 Display for styrkeinnstilling
6 Lys for valgt flate
Installasjon
Alle elektriske koblinger ma foretas av kvalifisert fagpersonell i henhold til gjeldende forskritter.
For mer spesifikke instrukser, se avsnittet "Instrukser til installmenten".
Pá-/avslång av koketoppen (touchkontroll)
Touchkontrollen begyinner Å fungere att sekund etter at koketoppen er koblet til nettet.
Etter en reset vil alle displayene og lysiodene blinke i ett sekund, og deretter slokne. Touchkontrollen vil bli staende i stand-by.
Trykk AV/PA (1)-knappen for a sla pa bergringskontrollen.
Displayne for kokesonene vil vise "0". Dersom en kokesone har restvarme (dvs. at den er meget varm og kan forarsake forbrenning), vil displayet vise "H" i stedet for "0". Dioden som star nederst til hyre på alle kokesonedisplayene, vil begynne Å blinke med att sekunds mellomrom for a varsle om at det enna ikke er blitt valgt noen kokesone.
Etter päälaing av koketoppen vil touchkontrollen vare aktivert i 20 sekunder. Hvis det/DD ke velges noen kokesone erer timerfunksjon, vil touchkontrollen automatisk bli satt bilbake til standby.
Touchkontrollen aktiveres ved a trykke pa ON/OFF-tasten.
Trykker man på ON/OFF-tasten samtidig med andre taster, følger det ingen funksjonsaktivering, og touchkontrollen vil bli stænde i standby. Hvis barnesikringen er aktivert, vil displayene for alle kokesonene vise "L" (locked/last).
Dersom kokesonene har restvarme, vil displayene vekselvis vise "L" og "H" (hot/warm).
ON/OFF-tasten har alltid prioritet over andre funksjoner ved avslång av koketoppens betjeningsfelt.
Automatisk avslång
Touchkontrollen vil automatisch utkobles 20 sekunder etter at koketoppen er slatt pa hvis det ikke er blitt valgt noen kokesone i lopet av deutsche tiden. Hvis det velges en kokesone, men ikke et effekttrinn, vil kokesenen slas av etter 10 sekunder, og touchkontrollen deaktiveres ytterligere 10 sekunder senere.
Sett kjelen på valgte kokesone. Hvis det ikke stør noen kjele eller en kjele med for liters diameter, vil kokesonnen ikke aktiveres, og display vil vise dette symbolet:

Ved Å trykke Pluss-tasten (3) eller Minus-tasten (2) er det mulig Å velge effekttrinn og platen vil bli varm.
Hvis effekttrinnet velges ved hjelp av minustaston (2), starter det pa 9 (maks. niva). Ved a holde tasten nede reduseres effekttrinnet med et trinn hvert 0,4 sekund. Nar du nar trinn 0, er det ikke mulig Å redusere effekten ytterligere. Bare hvis du trykker minustaston (2) eller plusstaston (3) pa nytt, er det mulig Å endre effekttrinnet igjen.
Velg platen som du ønsker ved hjelp av respektiv tast (5). Displayet (6) for valgt plate lyser opp, mens displayene for de andre kokeplatene slukkes. Hvis du trykker pluss- (3) og minus (2) samtidig, stilles effektnivaet inn pa 0. Du kan alternativ bruke minustaston (2) for a redusere effekttrinnet til 0.
Avslåing av alle kokesonene
Trykk pa ON/OFF-tasten, og alle kokesonene vil automatisk utkobles. Display for kokesonene som har restvarme, vil vise "H". Resten av displayene vil vare slukket.
Effekttrinn
Hver kokesone har 9 effekttrinn (fra "1" til "9").
I kokesonnen som er plassert foran pa venstre side, senkes strømnivæt noe av sikkerhetsgrunner etter 30 minutter när strømniva 9 er valgt. Hvis du krever mer strøm, velger du nivågken (P").
Booster-funksjon
När du har valgt cokeflate kan boost-funksjonen settes igang ved at du velger styrke 9 og trykker PLUS (3)-knappen. Booster-funksjonen gir ekstra rask oppvarming av visse kokesoner ved at de tilfores en større effekt enn den nominelle. Antall kokesoner booster-funksjonen kan aktiveres for samtidig, vil avhenge av valgt effekttrinn pahr kokesone; dette må ikke overstige koketoppens maksimale varmeeffekt. Hvis den valgte kokesonen har kapasitet nok til Å aktivere booster-funksjonen, vil display vise symbolet "P". Hvis kokesonen ikke har tilstrekkelig disponibel effekt, vil kokesones effektindikator blinke i 3 sekunder for Å angi at effekttrinnet må reduseres.
Booster-funksjonden har en tidsbegrensning på 5 minutter for à beskytte kokekarene. Etter automatisk deaktivering av booster-funksjonden, vil kokesonnen fortsette à virke pa effektniva “9”. Booster-funksjonden kan reactiveres uttered noen fal minutter.
Sylvomokekaretloftesbortfra kokesonen mens booster-funsjonen er aktiv, vil funksjonen opprettholdes helt til 10 minutters-perioden er utlopt.
Effektstyringen er basert på prinsippet om at siste effektinnstilling på en kokesone har prioritet. Dette betyr at tidigere stilte effekttrinn for resten av kokesonene reduseres automatisk hvis nødvendig.
- Dersom varmeeffekten på en kokesone违法犯罪, vil\ denne kokesonens indicator blinke i 3 sekunder for\ effektreduksjorden skjer.
- Hvis det velges et annet effekttrinn for kokesonen ffor varmeeffekten reduseres (dvs. for de 3 sekundene er gatt), vil det skje en ny fordeling av varmeeffekten pa de ulike kokesonene. Skulle da ingen effektreduksjon vare ndvendig, vil blinkingen opphore, og opprinnelig varmeeffekt vises pa respektiv kokesones indicator.
- Hvis effektfordelingen endres igjen, vil det ikke skje=noen automatisk effektøkning på kokesoner med tidligere redusert koketrinn.
Restvarmeindikator
Restvarmeindikatoren varsler bruker om at temperaturen pa kokesonens keramiske glassflate er meget hoy og vil kinne forarsake brannsar ved beroring. Temperaturen beregnes ut ifra en matematisk modell, og i henhold til donne angis restvarmen med "H" pa det respektive svvsegmentdisplayet.
Oppvarmingen og avkjølingen beregnes pa grunnlag av:
Valgt effektnivä (mellom “0” og “9”).
Aktiveringsperiode.
Etter at kokesonnen er slätt av, vil display vise "H" helt til kokesonens temperatur har sunset under ≤ 60^
Automatisk OFF-funksjon (begrenset driftstid)
Dette er en sikkerhetsfunksjon. Driftstiden avhenger av innstilt varmeeffekt. Hver kokesone vil automatisk bli slatt av fetter en forhandssprogrammert tid his det ikke stilles et nytt effekttrinn for的各项 tiden loper ut.
Enhver effektinnstilling på en kokesone (med pluss- og minus-tastene) vil gjenopprette maksimal koketid og Forst valgte effektniva.
Sikring mot utilsiktet päälaing
Hvis en tast trykkes uavbrutt i mer enn 10 sekunder, vil koketoppen automatisk kobles ut. Touchkontrollen vil avgi et akustisk signal i 10 sekunder for a gjore bruker oppmerksom pa at en uller annen gjenstand er kommet i kontakt med betjingastestene. Display vil vise feilkoden "ER 0 3". Hvis kokesonnen har restvarme, vil "H" og feilkoden vekselvis vises pa display.
. Hvis det ikke aktiveres noen kokesone innen 20 sekunder etter at koketoppen er slatt på, vil touchkontrollen gå tilbake til standby-modus.
. ON/OFF-tasten har prioritet over de andre tastene. Dette betyr at koketoppen kan slas av pa ethvert tidspunkt.
. På standby-modus vil en kontinuierlig tastetrykking ikke utløse noe signal. Touchkontrollen kan imidlertid kun reaktiviveres etter at det er pavist at ingen av tastene holdes nedtrykt.
Tastesperre (barnesikring)
Barnesikring:
Tastesperre:
Barnesikringen aktiveres ved Å trykke samtidig på tasten for høyre kokesone nede og minus-tasten, og en gang til på tasten for høyre kokesone nede. Koketoppen vil blokkeres, og på display vil det vises en "L" for LOCKED (barnesikring mot utilsiktet påslåing). Hvis kokesonen har restvarme, vil "L" og "H" vises vekselvis på display.
Dette mä gjores i lopet av 10 sekunder, og i mellomtiden mä det ikke aktiveres noen annen tast, for a unnga sekvensavbrytelse og avblokkering av betjeningspanelet.
Betjeningspanelet vil vare sperret helt til det avblokkeres av bruker.
Avblokkering av tastene for koking:
Touchkontrollen avblokkeres ved Å trykke samtidig på tasten for høyre kokesone nede, og minus-tasten. "L"-symbolet (LOCKED/last) vil forsvinne og "0" vil blinke på alle
kokesonenes display. Hvis en kokesone har restvarme, vil det vises "H" i stedet for "0". Hvis man trykker OFF-tasten for utkobling av touchkontrollen, vil barnesikringen aktiveres igjen.
Annullering tastelåsen:
Forå deaktivere barnesikringen ma koketoppen vare slätt pa. Trykk samtidig pa tasten for hýre kokesone nede, og minus-tasten, og deretter minus-tasten alene. Gjores dette i riktig rekkefolge innen 10 sekunder, vil tasteläsfunksjonen annulleres og touchkontrollen utkobles. Hvis ikke, vil sekvensen bl ansett for ikke fullført, touchkontrollen forblir blokkert og slas av etter 20 sekunder.
När touchkontrollen slås på igjen, vil alle displayene vise "0", desimalene vil blinke og koketoppen vår klar for koking. Hvis en cokeplate er meget varm, vises "0" og "H" vekselvis på displayet.
Lydsignal (summer)
Touchkontrollen vil avgi et lydsignal:
Ved et enkelt trykk pa tastene: kort summelyd.
- Ved kontinuierlig trykk på tastene i mer enn 10 sekunder: lang intermitterende summelyd.
Timer-funksjon
Timer-funksjonen kan brukes pa to mater:
- Som selvstendig timer (minuttur), fra 1 til 99 minutter: et lydsignal angir slutten på perioden. Denne funksjonen er kun tilgengelig nag koketoppen ikke er iBruk, dvs. det foretas ingen koking.
- Som timer-funksjon for haver kokesone med innstilling av driftstiden mellom 1 og 99 minutter: et lydsignal angir slutten på koketiden. De fire kokesonene kan programmeres haver for seg.
Timer brukt som minuttur:
- Om lasen er På og ingen kokeflate er valgt, kan den selvendige timeren brukes ved Å trykke MINUS (2) og PLUS (3)-knappene samtidig.
- Tiden kan innstilles mellom 0 og 99 minutter. Denne innstillingen kan endres i intervaller pa 1 minut ved a trykke pa pluss- aller minus-tasten. Hvis man trykker pa pluss-tasten, starter nedtellingen pa 0. Trykker man pa minus-tasten, starter nedtellingen pa 99.
- Kontinuierlig nedtrykking av pluss-ller minus-tasten vil gi en dynamisk økning av reguleringshastigheten til maks. verdi er nadd, uten noe lydsignal.
Hvis pluss- eller minus-tasten slippes i mellomtiden, vil reguleringshastigheten starte på nytt igjen fra og med Åpningsverdien. - Reguleringen kan foretas med kontinerlig trykk på plussog minus-tastene, eller med enkle trykk (med lydsignal). Etter at timeren er programmert, starter nedtelleingen. När innstilt tid er utløpt, vil det hores et lydsignal, og timerens display begyinner Å blinke.
Lydsignalet opphorer:
- Automatism etter 2 minutter.
- Ved Å trykke pa en vilkårlig tast.
Display slutter Å blinke, og slokner.
Programming av timer-funksjon for kokesonene
- Automatism etter 2 minutter.
Ved et vilkarlig tastetrykk.
Timerens display vil slukkes.
- Grunnfunksjonene er de samme som gjelder nár timeren har minuttur-funksjon.
Viktig for sikkerheten
- Gjenstander som kan magnetiseres, for eksempel kredittkort, plater, kalkulatorer o.l., ma holdes i god avstand fra kokesonene sa lenge kokingen varer.
- Legg aldri aluminiumsfolie allerprodukter som er innpakket i aluminiumsfolie direkte pa koketoppen.
- Metalgjenstander som kniver, gafler, skjeer og lokk må\ ikke plasseres på koketoppen, da disselett kan bli varme.
- Under tilberedning i klebefrie panner, uten smakstilsetning, ma oppvarmingstiden begrenses til ett ell er to minutter.
- Ved koking eller steking av mat som har tendens til Å sette seg fast i bunnen, bør man starte på laveste koketrinn og deretter øke varmen litt erter litt og røre rundt i maten med jevne mellomrom.
- Etter avsluttet koking, ma den respektive kokesonens effekttrinn settes pa "0". Stol ici kjelegjenkennelsfunksjonen.
- Hvis det oppstår sprekker på koketoppens overflate, man umiddelbart slå av strømmen til apparatet for Å unngå mulige elektriske støt.
- Ved rengjöring av koketoppen ma det/DDIkke brakes dampbaserte produit.
- Dette apparatet må ikke brukes av personer (gjelder ogss barn) med nedsatte fysiske eller mentale evner. Det må heller ikke betjenes av personer uten erfaring og kjennskap til apparatet medindre de overvåkes eller instrueres av andre som patar seg ansvaret for deres personlige sikkerhet.
-Hold barna unna apparatet.
Kokekar (Fig. 3)
- Før en magnet til bunnen av kokekaret for Å kontrollere om det har magnetisk bunn. Blir magneten tiltrukket, kan kokekaret brukes på induksjonstoppen.
- Bruk fortrinnsvis cokekar som du vet er egnet til induksjonskoking.
- Bruk kokekar med plan og tykk bunn.
- Det er viktig at cokekaret har samme diameter som cokeplaten for a falfull utnytsese av energien.
- Ved bruk av for sma cokekar oppstar det varmetap. Det anbefales Å bruke cokekar og panner som har en diameter pa minst 10 cm.
- Man kan bruke kokekar laget av rustfritt eller ferrittisk stal med dobbel bunn hvis det er angitt at de er egnet til induksjonskoking.
-
Bruker man kokekar av stopejern, bør bunnen helst ha et emaljebelegg for a unnga at det lages striper pa glasskeramikktoppen.
-
Det anbefales ä ikke bruke cokekar av glass, keramkk, brent leire, aluminium, kobber eller ikke-magnetisk (austenisk) stål.
Vedlikehold (Fig. 4)
Rester av aluminiumsfolie, matrester, fettstenk, sukker og veldig sukkerholdige matvarer må Øyeblikelig fjernes fra kokeflaten med en spesiell glasskrape for Å unngå skader på koketoppen.
Rengjör deretter kokeflaten med kjkkenpapir og et speielt rengjoringsmiddel for glasskeramiske platetopper, skll og tork over med en torr og ren klut. Bruk aldri stalull ell ersvamper med smergelside. Man ma ogsa unngå bruk av aggressive kjemiske rengjoringsmidler og flekkfjernere.
Instrukser til installmenten
Installasjon
Disse instruksene er til veiledning for installmenten ved montering, justering og vedlikehold av induksjonstoppen. Alt installasjonsarbeid skal utfores etter gjeldende lovgivning og forskritter. Husk Å avbryte strømforsyningen før det foretas ingrep på apparatet.
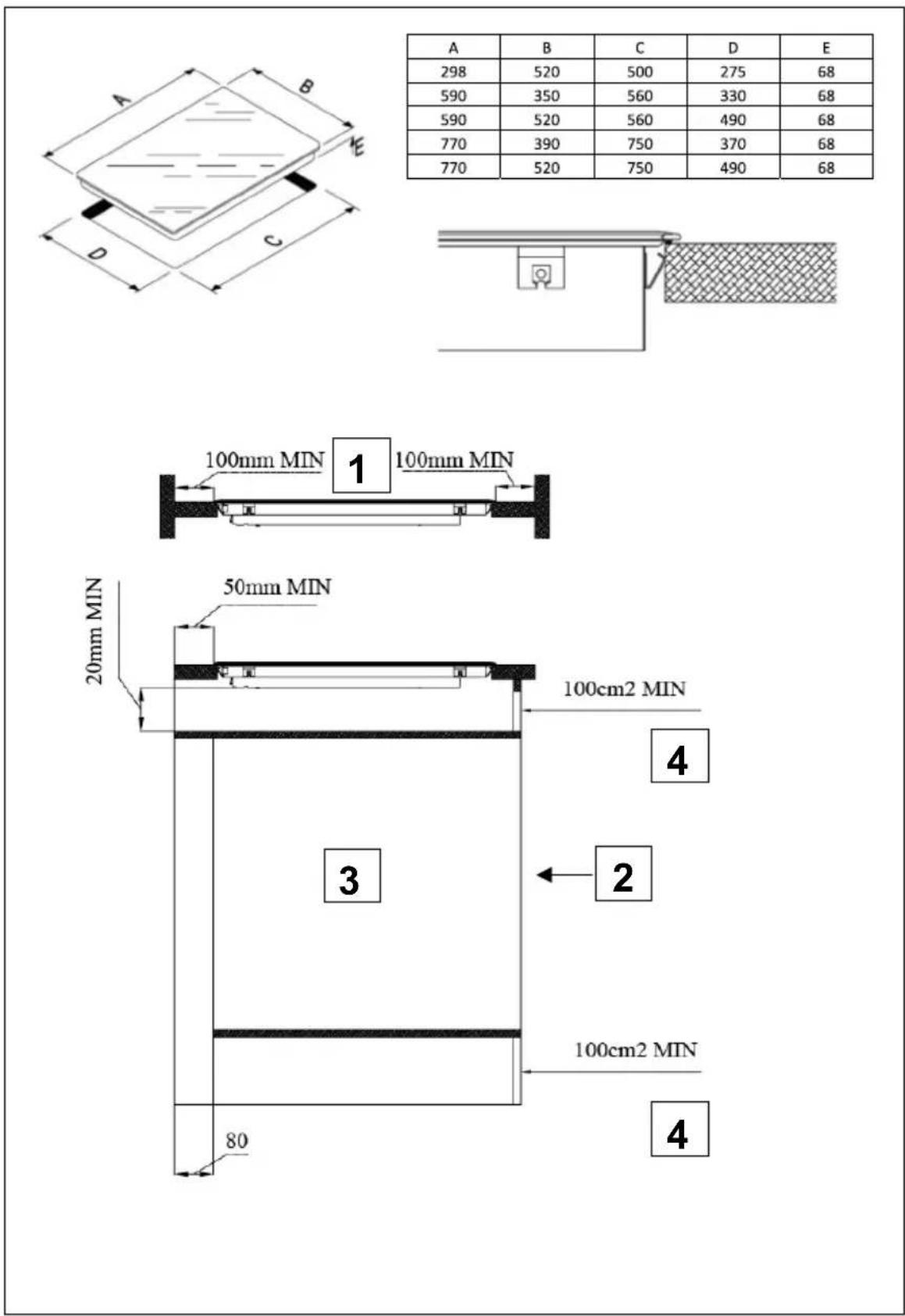
Montering (Fig. 5)
1 Frontoppriss
2 Frontside
3 Ovn- ellr skapsone
4 Luftinntak
Elektrisk kobling (Fig. 6)
Hvis apparatet leveres uten ledning og/eller stikkontakt, ma det brukes material som kan tale bade den spennening som er angitt pa merkeplaten og de aktuelle arbeids temperaturene. Ledningen ma ikke under noen omstendighet utsettes for romtemperaturer over 50^
Koble til en bryter med kontaktseparasjon i alle poler i den lukkede kretsen for avkopling fra strømforsyningsnettet. Dette gir full avkopling ved overspenning kategori III, i henhold til forskriftene for installing. Stikkontakten ellen den flerpolete bryteren ma plasseres sik at de lett kan nas nar apparatet er montert.
Dette apparatet skal不解 brukes med en utvendig timer ell et fjernkontrollsystem.
Fabrikanten frasier seg ethvert ansvar for skader som skulle pafores som falgge av ikke-overholdelse av ovenstænde instrukser og generelle regler for forebyggelse av ulykker.
Hvis stramledningen skulle ble skadet, ma den byttes ut for a unnga faresituasjoner. Henvend deg til fabrikanten, et serviceverksted aller en autorisert installeratr.


Fig.1 - Abb.1 - Afb. 1 - Pnc. 1 - Rys. 1 - Kuva 1. - 图-1. abra - Eik

TOUCH CONTROL


Fig.2 - Abb.2 - Afb. 2 - Pnc. 2 - Rys. 2 - Kuva 2. - 图2-2.ábra - Euc. 2.
Fig.3 - Abb.3 - Afb.3 - Phe.3 - Rys.3 - Kuva 3. - 图3-3.äbra-Euc.3.

Fig.4 - Abb.4 - Afb. 4 - Puc. 4 - Rys. 4 - Kuva 4. - 图4-4. abra - EuK.4.

Fig.5 - Abb.5 - Afb. 5 - Puc. 5 - Rys. 5 - Kuva 5. - |5| - 5. abra - . BJK

Fig.6 - Abb.6 - Afb. 6 - Pnc. 6 - Rys. 6 - Kuva 6. - 图6-6. abra - Euk. 6.
cata C
CNA group
CATA ELECTRODOMÉSTICOS, S.L.
C. del Ter, 2 - 08570 TORELLLO (Barcelona) SPAIN
Tel. +34 938 594 100 - Fax +34 938 594 101
www.cnagroup.es - e-mail: cna@cnagroup.es
Notice-Facile