CKT755 - Fornuis Pelgrim - Gratis gebruiksaanwijzing en handleiding
Vind de handleiding van het apparaat gratis CKT755 Pelgrim in PDF-formaat.
| Kenmerken | Details |
|---|---|
| Producttype | Fornuis |
| Afmetingen (B x D x H) | 60 x 60 x 85 cm |
| Kooktype | Gas |
| Aantal kookzones | 4 kookzones |
| Oventype | Gasoven |
| Oveninhoud | 60 liter |
| Ovenfuncties | Hetelucht, grill |
| Veiligheidssysteem | Automatische gasafsluiting |
| Oppervlakte materiaal | Geëmailleerd staal |
| Gewicht | 40 kg |
| Energieverbruik | Energieklasse A |
| Onderhoud | Gemakkelijk schoon te maken dankzij het geëmailleerde oppervlak |
| Inclusief accessoires | Rooster, bakplaat |
| Garantie | 2 jaar |
Veelgestelde vragen - CKT755 Pelgrim
Gebruikersvragen over CKT755 Pelgrim
0 vraag over dit apparaat. Beantwoord die u kent of stel uw eigen vraag.
Stel een nieuwe vraag over dit apparaat
Download de handleiding voor uw Fornuis in PDF-formaat gratis! Vind uw handleiding CKT755 - Pelgrim en neem uw elektronisch apparaat weer in handen. Op deze pagina staan alle documenten die nodig zijn voor het gebruik van uw apparaat. CKT755 van het merk Pelgrim.
GEBRUIKSAANWIJZING CKT755 Pelgrim
Houd, wanneer u contact opneemt met de serviceafdeling, de productiecode (PCODE) en het volledige itemnummer (ITEMNR) bij de hand.
En cas de contact avec le service après-vente, ayez auprès de vous le code de production (PCODE) et le numéro complet de l'article (ITEMNR). Halten Sie den Produktionscode (PCODE) und die vollständige Itemnummer (ITEMNR) bereit, wenn Sie mit der Kundendienstabteilung Kontakt aufnehmen. When contacting the service department, have the production code (PCODE) and complete item number (ITEMNR) to hand.
Adressa en telefoonnummers van de serviceorganisatie vindt u op de garantiekaart. Les adresses et les numéros de téléphone du service après-vente se trouvent sur la carte de garantie. Adressen und Telefonnummers der Kundendienstorganisation finden Sie auf der Garantiekaarte. You will find the addresses and phone numbers of the service organisation on the guarantee card.

Gebruiksaanwijzing 3-17
Installatievoorschrift 19-27
FR
Mode d'emploi 29-45
belangrijk om te weten - important à savoir
Wissenswertes - important information
tip - conseil - Tipp - tip
uw keramische kookplaat
beschrijving 4
inciding 5
veiligheid
waar u op moet letter 6-7
bediening
instellen 8-11
comfortabel koken
de kookplaat optimaal gebruiken 12-14
onderhoud
algemeen 15
storingen
tabel 16
milieuaspecten
verpakking en toestel afvoeren 17
installatievoorschrift
algemeen 19
elektrische aansluiting 20
inbouwen 24-27


Pelgrim

Pelgrim
Beschrijving
CKT745

text_image
2 3 1 4 13.0 13.1
- kookzone linksvoor
- kookzone linksachter
- kookzone rechtsachter
- kookzone rechtsvoor
- kinderslot
- kookwekker/uitschakelt mer
7.vermogen - aan/uittoets
CKT755

text_image
2 1 3 4 0.07 10.07
CKT770

text_image
2 1 3 4
Inleiding
Deze keramische kookplaat is ontworpen voor de echte kooklielhebber.
De kookplaat is voorzien van Cooklight elementen. Dit zijn zeer snel opwarmende stralingselementen die een hoog rendement hebben, wat zeer gunstig is voor de aankooktijd. Bovendien hebben deze elementen een zeer goede warmteverdeling.
De ruime afstanden tussen de kookzones maken het koken comfortabel.
De kookzones zijn nauwkeurig regelbaar door middel van tiptoetsen. De standen zijn bedoeld als referentie, hierdoor kunt u snel een bepaalde instelling kiezen.
De toestellen zijn uitgevoerd met 1 of meer dubbelkrings kookzones (uitgezonderd CKT745). Deze kookzones hebben een groot regelbereik en zijn zowel geschikt voor kleine (binnenste kookzone) als grote pannen. Het toestel CKT770 is uitgerust met een vispan kookzone waarop een kleine gewone pan of een speciale vispan kan worden geplaatst.
Voor optimale veiligheid is de keramische kookplaat uitgerust met een restwarmtesignalering die aangeeft welke kookzones nog heet zijn.
In deze handleiding staat beschreven op welke manier u de keramische kookplaat zo optimaal mogelijk kunt benutten. Naast informatie over de bediening treft u ook achtergrondinformatie aan die van dienst kan zijn bij het gebruik van dit product.

Bewaar deze handleiding zorgvuldig. De handleiding dient als referentie voor de servicedienst. Plak daarom het gegevensplaatje welke op de glasplaat geplakt is op de achterzijde van deze handleiding in het daarvoor bestemde kader.
Zodra u de servicadienst belt zullen de medewerkers vragen naar de gegevens op het bijgeleverde gegevensplaatje. Wanneer u deze gegevens niet hebt is het verlenen van een goede service moeilijker.
Veel kookplezier!
Waar u op moet letten
Open nooit de behuizing van het toestel

Zorg voor voldoende ventilatie tijdens het gebruik
■ Houd natuurlijke ventilatieopeningen open
Wanneer er zich een lade onder de kookplaat bevindt
■ Zorg voor voldoende afstand tussen de kookplaat en de inhoud van de lade.
■ Leg geen brandbare voorwerpen in de lade.
Gebruik de kookplaat alleen voor het bereiden van gerechten
■ Het toestel is niet geschikt om ruimtes te verwarmen.
De kookzones worden zeer warm tijdens gebruik en blijven na gebruik ook een tijd warm (zie ook 'restwarmtesignalering')
■Laat geen kleine kinderen in de buurt tijdens en vlak na het koken.
Lege pannen en droogkoken
■ Laat nooit een lege pan op een ingeschakel de kookzone staan.
■ Voorkom dat de pan droogkookt.
■ De kookzones zijn beveiligd tegen oververhitting, maar de pan kan beschadigen.
Gebruik altijd geschikt kookgerei
■ Schade, ontstaan door het gebruik van ongeschikte pannen of droogkoken, valt buiten de garantie.
Gebruik van vet en olie
■Vet en olie zijn bij oververhitting ontvlambaar. Blijf in de buurt tijdens het bereiden van gerechten.
Gebruik van andere apparaten in de buurt van de kookplaat
■ Voorkom dat snoeren van elektrische apparaten, zoals van een mixer bijvoorbeeld, terechtkomen op de hete kockzones.
Flambeer nooit onder een afzuigkap
■ Door de hoge vlammen kan brand ontstaan, ook bij een uitgeschakelde afzuigkap.
Gebruik van het kookvlak
■ Het glaskeramische kookvlak is zeer sterk maar niet onbreekbaar. Er kan een breuk ontstaan wanneer er een puntig voorwerp op valt.
■ Gebruik de kookplaat niet als werkvlak om bijvoorbeeld vlees of groente te snijden.
■ Gebruik de kookplaat niet als werkylak om bijvoorbeeld vlees of groente te snijden. Gebruik een toestel waarvan het kookvlak een breuk of scheurtjes vertoont niet meer. Schakel het toestel onmiddellijk uit. Haal de stekker uit het stopcontact of zel do schakelaar van de tooverloiding (bij om vasto aansluiting) op 0 of verbreek de zekerelingen) in de meterkast. Bel de servicedienst.

Pelgrim

Instellen
Op het glazan werkoppervlak zijn de vier kookzones aangeduid door middel van een cirkel. De diameter van de panbedem moet zoveel mogelijk overeenkomen met de diameter van de kookzone.
De keramische kookplast is voorzien van een restwarmte indicatie, (kinder)slot, automatische kookduurbegrenzing. De CKT755 en CKT770 zijn bovendien voorzien van 1 of meerdere dubbelkrings kookzones en een kookwekker. Op deze en de volgende pagina's kunt u lezen hoe u gebruik maakt van deze voorzieningen.
In- en uitschakelen
Inschakelen
-
Zet een pan op een kookzone.
-
Druk op de aan / uit toets

Er gaat een lampje boven de aan / uit toets branden.
De kockplaat staat nu in de stand-by stand. U moet de kockplaat nu binnen
5 seconden bedienen anders schakelt de kookplaat zichzelf weer uit (het lampje dooft).
Tijdens het kookproces kan de aan / uit toets gebruikt worden als noodstop. Druk op deze toets en het toestel schakelt direct uit.
Vermogen instellen
De kookzones hebben 9 standen.

- Druk op de 1 toets van de betreffende kookzone.
De kookzone stelt zich direct in op stand 6. Of druk op de - toets van de betreffende kookzone. De kookzone stelt zich direct in op stand 1.
De kookzone zal nu warm worden. De kookzone schakelt automatisch aan en uit om het door u ingostelde vermogen te loveren. Bij lagere standen is de kookzone lang uit en af en toe aan. Bij hogere standen is de kookzone lang aan en af en toe uit.
- Stel een hogere op lagere stand in door nog een keer op de toetsen + of te drukken.
Het display geeft de gekozen stand weer. Welke standen u most kiezen kunt u zien op de tabel op pagina 16 en 17.
Uitschakelen
Druk net zo lang op de - toets totdat de kookzone op stand 0 staat.
Dit zal na 5 seconden wijzigen in een H van restwarmte (zie restwarmte-indicatie).

Pelgrim

Dubbelkrings kookzone (CKT755 en CKT770) of vispan kookzone (CKT770) inschakelen
Zet de kookzone op stand 9, druk op de + toets.
Het lampje onder de - toets gaat branden. De buitanste kookzone wordt ingeschakeld.

De buitenste kookzone gaat met alle standen mee met de binnenste kookzone, zelfs wanneer u naar stand 0 gaat en binnen 5 seconden weer een hogere stand kiest.
U kunt de buitenste kookzone nooit alleen gebruiken.
Restwarmte-indicatie
De indicatie geeft aan dat de kookzone nog warm is en dooft zodra de glasplaat een veilige temperatuur hoeelt bereikt. Restwarmte wordt met H aangogoven in het display van de desbetreffende kookzone.

restwarmte-indicatie
Kookwekker / uitschakeltimer (CKT755 en CKT770)
U kunt de kookzone rechtsachter door de kookwekker laten uitschakelen. U gebruikt de wekker dan als uitschakeltimer.

- Zet een pan op de kookzone rechtsachter.
- Druk op de aan / uit toets
- Stel het gewenste vermogen in.
- Stel de kookwekker in.
Mot de en + tootsen kunt u een kooklijd van maximaal 99 minuten instellen. Na langer vasthouden van de + of - toets zal de waarde sneller gaan op- of aflopen. Door de toets even los te laten en opnieuw te bedienen verandert de waarde waar langzaam.
In het display wordt het gekozen aantal minuten weergegeven.
Een knipperend puntje geeft aan dat de timer is geactiveerd. Nu zal de tijd gaan aflopen en de resterende tijd is zichtbaar in het display.

Aan het einde van de bereidingstijd hoort u een pieptoon.
De zone schakelt uit.
Druk op de - toets van de klok om de pieptoon uit te schakelen
Druk op de + toets van de klok om een nieuwe kooktijd in te stellen.
De overige kookzones kunnen niet door de kookwekker worden uitgeschakeld.
De kookwekker gaat in dat geval alleen een geluidssignaal bij het einde van de ingestelde tijd (bijvoorbeeld te gebruiken bij het koken van eieren).
Schakel de kookwekker uit door de - toets enkele seconden (in de "0" minutenstand) te bedienen.

Pelgrim

Pelgrim
(kinder)slot
Tijders het kookeroces kunt u, door gebruik te maken van het slot, de huidige instellingen fixeren. Druk één keer op de slot (sleutel) toets.
Het lampje boven de toets gaat branden.
De aan / uit toets (noodstop) blijft te bedienen wanneer de instellingen zijn gefixeerd met de slotfunctie.

Het slot is tevens te gebruiken als kinderslot.
Op slot
Schakel het toestel uit. Druk één keer op de slot (sleutel) toets.
Het lampje boven de toets gaat branden.
Van slot
Druk op de slot (sleutel) toets (± 3 seconden) totdat het lampje boven de toets dooft. Het toestel is nu weer bedienbaar
Kookduurbegrenzing
Het toestel is uit veiligheidsoverwegingen uitgerust met een kookduurbegrenzing.
De kookduurbegrenzing schakelt de kookzones, afhankelijk van de ingestelde stand, na een bepaalde tijd automatisch uit.
In de tabel hieronder ziet u na hoeveel tijd de kookduurbegrenzing bij de verschillende standen het toestel uitschakelt.
| Stand | Tijd |
| 1 | 12 uur |
| 2 | 12 uur |
| 3 | 12 uur |
| 4 | 6 uur |
| 5 | 6 uur |
| 6 | 4 uur |
| 7 | 4 uur |
| 8 | 2 uur |
| 9 | 1 uur |

De kookplaat optimaal gebruiken
- Gebruik geen pannen die kleiner zijn dan de kookzone. Hiermee voorkomt u dat voedselresten op de gloeiend hete kookzone terechtkomen. Ingebrande voedselresten zijn moeilijk te verwijderen. Bovendien kunnen de handgropen te heat worden en gaat er veel energie verloren.


■ Pannen waarmee al eerder op een gaskookplaat is gekcokt, zijn niet meer geschikt voor keramisch koken.
- Gebruik nooit aluminiumfolie, zoals bakjes van kant-en-klaar gerechten, om voedsel in te bereiden. Wanneer aluminiumfolie op de koolzone smelt, is het niet meer te verwijderen. Aluminiumfolie heeft bovendien een zeer slechtewarmteoverdracht.
■ Til pannen altijd op als u ze verplaatst.


■ Schuiven met pannen kan krasjes veroorzaken die niet meer te verwijderen zijn.
■ Zet alleen pannen met een schone en droge bodem op het kookvlak. U voorkomt hiermee dat er moeilijk te verwijderen vlekken ontstaan.

■Kook altijd met het deksel op de pan om energieverlies te voorkomen.
■Schuil de panbodem over een licht vochtige doek, voordat u de pan op de kookzone zet. Dit voorkomt dat er vuil op het kookvlak terechtkomt.
■ De kockzone kan 5 tot 10 minuten voordat de kooklijd is verstreken, uit worden geschakeld. Het gerecht gaart dan na op de restwarmte, mits u het deksel op de pan houdt.:
Kooktabel
De onderstaarde tabel is uitsluitend bedoeld als leidraad, omdat de instelwaarde afhankelijk is van de hoeveelheid en samenstelling van het gerecht en de pan.
Gebruik de hoogste stand voor:
■ snel aan de kook brengen;
■ slinken van bladgroenten;
■ blancheren van groenten;
■ verhitten van olie, vet en boter;
■ bakken van bielstuk (saignant, rood);
■ onder druk brengen van een snelkookpan;
■ koken van glad gebonden pudding en vla.
Gebruik een iets lagere stand voor:
■ aanbraden van vloos;
■bakken van platvis, dunne moten of filet;
■bakken van gare aardappelen;
■ bereiden van glad gebonden soepen en sauzen;
■bakken van omeletten;
■bakken van biefstuk (medium, rozerood);
■ frituren (afhankelijk van de temperatuur en de hoeveelheid).
Gebruik een stand iets boven de middelste stand voor:
■bakken van dikke pannenkoeken;
■bakken van dik, gepaneerd vlees;
■gaar bakken van dun vlees;
■ doorbraden van groot vloes;
■ uitbakken van spek of bacon,
■bakken van rauwe aardappelen;
■ bakken van wentelteefjes;
■bakken van gepangeerde vis,
■bakken van dun, gepancerd vlees;
■bakken van omeletten.
Gebruik de middelste standen voor:
■ doorkoken van grote hoeveelheden;
■ ontdooien van harde groenten, bijvoorbeeld sperziebonen.
Gebruik de laagste standen voor:
■trekken van bcuillon;
■ rood koken van stoofperen;
■ bereiden van stockvlees;
■ doorkoken van gerechten;
■ smoren van groenten.

Pelgrim

Algemeen
Reinig de kookplaat steeds na gebruik. U kunt hiervoor een mild reinigingsmiddel, bijvoorbeeld afwasmiddel gebruiken. Speciale
reinigingsmiddelen voor keramische kookplaten zijn wat duurder maar hebben als voordeel dat er een dun filmpje achterblijft op de glasplaat, zodat overgekookt voedsel en kalk minder gemakkelijk inbranden en de kookplaat de volgende keer dus aenvoudiger is schoon te maken.
U kunt het beste wachten met schoonmaken totdat de kookplaat is afgekoeld. Overgekookt voedsel met veel suiker, bijvoorbeeld appelmoes, kunt u het beste meteen verwijderen met een vochtige vaatdoek om te voorkomen dat het inbrandt. Wees voorzichtig met de hete kookzone!
Om hardnekkige voedseiresten te verwijderen kunt u een glasschraper gebruiken.
Metaalsporen (ontstaan door schuiven met pannen) zijn vaak lastig te verwijderen. Voor het verwijderen van metaalsporen zijn speciale middelen verkrijgbaar.
Nooit gebruiken
Schuurmiddelen mag u nooit gebruiken. Deze veroorzaken krasjes waarin zich kalk en vuil ophopen.
Gebruik nooit scherpe voorwerpen zoals staalwol en schuursponsjes.
Zie voor schoonmaaktips de internet site 'www.hps.nl'
Tabel
Wanneer het toestel niet goed werkt, betekent dit niet altijd dat het defect is. Probeer het ouvel eerst zelf te verhelpen.
Bel de servicedienst wanneer onderstaande adviezen niet helpen. Uitsluitend bevoegd personeal mag het toestel openen of werkzaamheden aan het elektriciteitsnet uitvoeren.
Schade ontstaan door verkeerd aansluiten, verkeerd inbouwen of verkeerd gebruik vaat niet onder de garantie.
| storing | oorzaak | oplossing |
| Kockzones worden niet warm. | - Toestel verkeerd aangesloten.- Stecker niet of niet volledig in stopcontact.- Zekereling(en) in de meterkast defect. | - Zie installatievoorschrift voor de juiste aanluiting.- Stekker in het stopcontact staken.- Zekereling(en) in de meterkast controleren. |
| Foutcodes F00-F12 in het display. | - Een toets is defect of vuil of er ligt een voorwerp op. Eke toets heeft zijn eigen nummer, van 00 t/m 12. In het display verschijnt het nummer dat bij de toets hoort. | - Maak het toostel schoon. Leg geen voorwerpen op het becieningsveld |
| Foutcode F3 verschijnt. | - Elektronica oververhit, ar is mogelijk een to grote pan geplaatst op de zone rechtsvoor.- Toestel heeft onvoldoende ventilatie. | - Laat het toostel afkoclen tot de code vordwijnt.- Zorg voor voldoende ventilatie. |
| Foutcode F99 verschijnt. | - Iree of meer toetsen langere tijd bediend. | - Niet meer dan een toets tegelijk bedienen. |
| Spontaan wijzigen van de ingestelde stand. | - Pan te dicht bij de toetsen. | - Zorg dat de pan minimaal 20 mm van de toetsen verwijderd staat. |

Raadpleeg bij storingen de internet site www.hps.nl
Verpakking en toestel afvoeren
Bij de vervaardiging van dit toestel is gebruik gemaakt van duurzame materialen. Dit toestel moet aan het eind van zijn levenscyclus op verantwoorde wijze worden algevoerd. De overheid kan u hieromtrent informatie verschaffen.
De verpakking van het toestel is recyclebaar. Gebruikt kunnen zijn:
■karlon;
■ polyethyleenfolie (PE);
■ CFK-vrij polystyreen (PS-hardschuim);
Deze materialen op verantwoorde wijze en conform de overheidsbepalingen afvoeren.
Algemeen
Dit toestel voldost aan de relevante CE richtlijnen. Op het gegevensplaatje aan de onderzijde van het toestel worden de totale aansluitwaarde, de vereiste spanning en de frequentie aangegeven.
Veiligheid
Alleen een erkend olektrotechnisch installateur mag dit toestel aansluiten. De aansluiting moet voldoen aan de nationale en lokale voorschriften. Het toestel moet altijd geaard zijn.
Schade ontstaan door verkeerd aansluiten, verkeerd inbouwen of verkeerd gebruik valt niet onder de garantie.
Voor een goede working van het toostel is het van belang dat:
■ de aansluitkabel vrij hangt en niet door een lade wordt aangestoten;
■ het aanrechtolad vlak is

De wanden en het werkblad rondom het toestel moeten van hittabestendig ( >85^ ) materiaal zijn. Ook al wordt het toestel zelf niet warm, de warmte van bijvoorbeeld een hete braadpan zou de wand kunnen verkleuren of beschadigen.

Pelgrim

Pelgrim
Elektrische aansluiting
Gebruik voor het aansluiten een goedgekaurde kabel, afhankelijk van de voorschrilten. De kabelommanteling moet van rubber zijn.
Raadpleeg bij storingen de Aan de onderzijde van het toestel bevindt zich een otikel met daarop de aansluitschema's. De aansluitklommen zijn bereikbaar nadat u het aansluitkastje aan de onderzijde hebt geopend. Open de deksel van het aansluitkastje met behulp van een schroevendraaier.

Wilt u een vaste aansluiting maken, zorg er dan voor dat er een omnipolaire schakelaar met een contactafstand van minimaal 3 mm in de toevoorleiding wordt aangebracht.
Vermogenstabel
| Kookplaattype CKT745 | CKT755 CKT770 | ||
| Cooklight x x x | |||
| Aansluiting | |||
| 230 V - 50 Hz x x x | |||
| Vermogens elementen | |||
| Linksvoor 2300 W | |||
| Linksvoor dubbelkrings | 200 / 1000 W 2200 / 1000 W | ||
| Linksachter 1200 W 1200 W | W 1200 W | ||
| Rechtsachter | 2000 W 2000 W | ||
| Rechtsachter vispan | 2200 / 1400 W | ||
| Rechtsvoor | 1200 W 1200 W 2000 W |
Het toestel kan op de volgende manieren worden aangesloten:
1 fase aansluiting (1 1N a.c. 230 V / 50 Hz):
De spanning tussen de fase en de nul is 230 V a.c.
Brong verbindingsbruggen aan tussen de aansluitpunten 1-2 en 4-5.
Uw groep moet afgezekerd zijn met minimaal 32 A. De aansluitkabel moet een aderdoorsnode hebben van minimaal 6 mm ^2 .

text_image
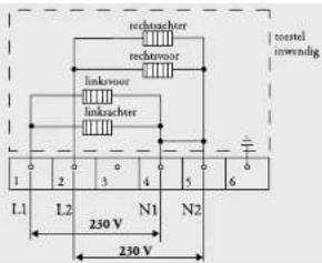
rechtsachter rechtsvoor linkwoor linkuachter tocatel inwendig 1 2 3 4 5 6 L1 N 230 V2 fasen met 2 nullen aansluiting (2 2N a.c. 230 V / 50 Hz):
De spanning tussen de fase en de nul is 230 V a.c. Tussen de fasen kan een spanning van 0 V staan wanner deze in de meterkast zijn aangesloten op dezelfde fase maar ook 400 V wanneer deze zijn aangesloten op
7 verschillende fasen. Uw groepen moeten afgezekerd zijn met minimaal 16 A (2x). De aansluitkabel moet een aderdoorsnede hebben van minimaal 2,5 mm ^2

text_image
rechteacher rechewoor linkswoor linkreacher 1 2 3 4 5 6 L1 L2 N1 N2 230 V 230 V tostel inwendig
Pelgrim

Pelgrim
2 fasen met 1 nul aansluiting (2 1N a.c. 400 V / 50 Hz):
De spanning tussen de fasen en de nul is 230 V ac. Tussen de fasen staat een spanning van 400 V. Wanneer er geen spanning van 400 V tussen de fasen aanwezig is, is er sprake van twee draden die van dezelfde fase zijn af getakt in de meterkast en moet de kookplaat worden aangesloten met 2 nuldraden, zoals hiervoor genoemd bij 2 fasen met 2 nullen.
Breng een verbindingsbrug aan tussen de aansluitpunten 4-5.
Uw groopen moeten afgezakerd zijn met minimaal 16 A (2x). De aansluitkabel moet een aderdoorsnede hebben van minimaal 2,5 mm ^2 .

text_image
rechteuser rechteuser inkovor inkovser toated inwendig L1 L2 3 4 5 6 N 400 V 230 V 230 V3 fasen met 1 nul aansluiting (3 1N a.c. 400 V / 50 Hz):
De spanning tussen de fasen en de nul is 230 V ac.
Tussen de fasen staat een spanning van 400 V. Brang een verbindingsbrug aan tussen de aansluitpunten 4-5. Fase 3 wordt niet belast. Uw groepen moeten afgezekerd zijn met minimaal 16 A (3x). De aansluitkabel moet een acderdoorsnede hebben van minimaal 2,5 mm ^2 .

text_image
mchacheter mchawser linkswor lmchacheter 1 2 3 4 5 6 L1 L2 L3 N 400 V 400 V 230 V 400 V 230 V 230 V3 fasen aansluiting (3 a.c. 230 V / 50 Hz):
De spanning tussen de fasen is 230 V a.c.
Breng een verbindingsbrug aan tussen de aansluitpunten 4-5.
Uw groepen moeten algezekerd zijn met minimaal 16 A (3x). De aansluitkabel moet een aderdoorsrode hebben van minimaal 2,5 mm ^2 .

text_image
rechtechter rechteveror linkvoort linktechter 1 2 3 4 5 6 L1 L2 230 V 230 V L3 230 VMet de op het aansluitblok aanwezige bruggen kunt u de vereiste doorverbindingen maken zoals in voorgaande illustraties staat aangegeven. In het deksel van het aansluitkastje en in orderstaande illustratie staat aangegeven hoe u de bruggen aan moet brengen. Deze moeten niet meteen bovenop de aansluitdraden worden geplaatst, maar tussen de schroefkop en de klem om de aansluitdraad.

Zet de kabel vast met de trekontlasting en sluit het deksel.


Inbouwen
Uitsparing in werkblad zagen
Zaag de uitsparing in het werkblad. Doe dit zeer nauwkourig (zie tebel). Zaag ook eventueel aanwezige tussenschotten uit.
De afstand van de zaegmaat tot de achterwand en / of zijwand staat vermeld in de tabel.
Tabel
| Kookplaattype CKT745 CKT755 CKT770 | |||
| Toestel breedte x diepte | |||
| 575 x 505 mm x | |||
| 600 x 510 mm x | |||
| 770 x 510 mm x | |||
| Inbouwhoogte vanaf bovenkant werkblad | |||
| 56 | x | ||
| 48 x x | |||
| Zaagmaat breedte x diepte | |||
| 560 x 490 mm x x | |||
| 750 x 490 mm x | |||
| Afstand zaagmaat tot achterwand 50 mm 50 mm 50 mm | |||
| Afstand zaagmaat tot zijwand 60 mm 50 mm 50 mm | |||
Benodigde vrije ruimte rondom

text_image
kast min. 600 mm (CKT745 / CKT755) min.750 mm (CKT770) min. 650 mm min. 450 mm min. 40 min kookplaat min. 40 min zjwand atzuligkapKookplaat plaatsen
Boven een lade of vaste blende. Boven een 60 cm Pelgrim oven. Boven een oven van een ander merk die is voorzien van mantelkoeling.
Zorg voor een ruimte van minimaal 10 mm tussen een lade en de kookplaat. Let op dat de lade de aansluitkabel niet mechanisch kan belasten.
Maak een uitsparing in de zijwand van de keukenkast voor het doorvoeren van de aansluitkabel (bij inbouw in combinatie met een oven). Dit is nodig wanneer de stekker na inbouw niet meer bereikbaar is. Stopcontact en stekker moeten te allen tijde bereikbaar blijven.

Er is een bepaalde nismaat nodig wanneer de kookplaat boven een oven wordt geplaatst. Deze benodigde nismaat is afhankelijk van het volgende:
■ Werkbladdikte;
■ Inbouwhoogte van de kookplaat (zie tabel);
■ Grootste hoogte van de oven (bedieninspaneel niet meegeteld).
De benodigde nismaat is de grootste hoogte van de oven plus de inbouwhoogte van de kookplaat minus de werkbladdkte.

text_image
workbladdikte inbouwhoogte koekbelat graate hoog.e vean
Pelgrim

Pelgrim
Boven een 90 cm oven of een oven van een ander merk die niet is voorzien van mantelkoeling.
Monteer een hittebestendige (85 °C) plaat ter afscherming van de kookplaat. Zorg ervoor dat de ruimte tussen kookplaat en afschermplaat geventiloord wordt. Deze ruimte mag niet in verbinding staan met de ruimte boven de oven. De afstand tussen onderzijde kookplaat en bovenzijde afschermplaat moet minimaal 25 mm bedragen.

Afdichtband
Plak het afdichtband aan de onderzijde van de rand of glaspleat.
Plak het afdichtband niet door de hoek, maar knip vier stukken die in de hoeken goed op elkaar aansluiten.

Keer de kookplaat om en laat het toestel in de uitsparing zakken.

Alleen CKT755
Zet de kookplaat vast met behulp van de bijgeleverde klemmen. Bij werkbladen die dunner zijn dan 40 mm moet er een opvulblokje tussen de klemmen en het werkblad worden gebruikt. De schroeven moeten in de doorgodrukte gelen geschroold worden,

Kookplaat aansluiten en controleren
Maak de elektrische aansluiting door de stekker in het stopcontact te steken of zet de schakelaar van de toevoerleiding (bij een vaste aansluiting) op 1.

Controleer de werking van het toestel.

Pelgrim
29
SimpelGids