Cirrus Grande CC34E63SB - Capucha BEST - Manual de uso y guía de instrucciones gratis
Encuentra gratis el manual del aparato Cirrus Grande CC34E63SB BEST en formato PDF.
Questions des utilisateurs sur Cirrus Grande CC34E63SB BEST
0 question sur cet appareil. Repondez a celles que vous connaissez ou posez la votre.
Poser une nouvelle question sur cet appareil
Descarga las instrucciones para tu Capucha en formato PDF gratis! Encuentra tus instrucciones Cirrus Grande CC34E63SB - BEST y toma tu dispositivo electrónico nuevamente en la mano. En esta página están publicados todos los documentos necesarios para el uso de su dispositivo. Cirrus Grande CC34E63SB de la marca BEST.
MANUAL DE USUARIO Cirrus Grande CC34E63SB BEST
En EE.UU.: BEST Hartford, Wisconsin
En CANADÁ - BEST Drummondville, QC, Canada
- Utilice esta unidadsole de laforma prevista por el fabricante.Si tiene preguntas, comuniquese con el fabricante a la direcction o el numero de Telefono que aparecen en la garantia.
- Antes de realizar el mantenimiento de la unidad o de limparla, desconnecte la energia en el panel de servicios y bloqueelo para registrar conectar la energia accidentalmente. Cuando no se pueda bloquear el mecanismo de desconexión, fije firmamente un dispositivo de advertencia que se destaque, como una etiqueta, en el panel de servicios.
- Una persona capacitada debe realizar el trabajo de instalacion y el cableado electrico con-. forma a los@cuidos y estandares correspondientes, incluidos los@cuidos y estandares de. construccion de resistencia al fuego.
- Es necessario que haya suficiente aire para que se produzca una combustion adecuada y los gases de los equipos que consumen combustible se pueda evacuar a工程技术 de luz de la luz de la luz de la luz de la luz de la luz de la luz de la luz de la luz de la luz de la luz de la luz de la luz de la luz de la luz de la luz de la luz de la luz de la luz de la luz de la luz de la luz de la luz de la luz de la luz de la luz de la luz de la luz de la luz de la luz de la luz de la luz de la luz de la luz de la Luz de la Luz de la Luz de la Luz de la Luz de la Luz de la Luz de la Luz de la Luz de la Luz de la Luz de la Luz de la Luz de la Luz de la Luz de la Luz de la Luz de la Luz de la Luz de la Luz de la Luz de la Luz de la Luz de la Luz de la Luz de la Luz de la Luz de la Luz de la Luz de la Luz de la Luz de la Luz de la Luz de la Luzde la Luzde la Luzde la Luzde la Luzde la Luzde la Luzde la Luzde la Luzde la Luzde la Luzde la Luzde la Luzde la Luzde la Luzde la Luzde la Luzde la Luzde la Luzde la Luzde la Luzde la Luzde la Luzde la Luzde la Luzde la Luzde la Luzde la Luzde la Luzde la Luzde la Luzde da lo cierto, y el asociado con el asociado.
- Cuando realice cortes o perforaciones en paredes o techos, no dañe el cableado electrico ni或者其他 servicios Públicos ocultos.
- Los ventiladores entubados siempre deben ventilarse hacía el exterior.
- No utilise esta unidad con un dispositivo de control de velocidad de estado solido independiente.
- Para reducir el riesgo de incendios, solo utilise entubados de metal.
- Este artefacto se debe conectar a tierra.
- Instalacion del tipo que no es IC: El aislamento termico no debe cubrir la cuberta superior de la campana y debe estar分开 3 pulgadas (76 mm) de todos los lados. (Fig. 1)

MINIMO DE 3 PULG. (76 MM).
SIN AISLAMIENTO DENTRO DE ESTA ZONA
SOMBREADA DE COMPONENTES
FIG. 1
PARA REDUCIR EL RIESGO DE INCENDIO PROVOCADO POR GRASA PRESENTE EN LA ESTUFA:
A. Nunca deje desatendidas las unidades de la superfi cie cuando estén en ajustes altos de calor. Los alimentos en ebullicion provocan derrames grasos y con humano que se pueda incendiar. Caliente el aceite lentamente en ajustes de calor bajo o medio.
B. Siempre ENCIENDA la campana cuando está cocinando a altas temperatas o flamee alimentos (por exemple crepas Suzette, cerezas Jubilee, bistec con pimenta fl amedo).
C. Limpie frecuentemente los ventiladores. No permita la acumulación de grasa en el ventilador ni en el fi ltro.
D. Use a cacerola del时间为 adequado. Siempre use utensilios de cocina que Sean apropiados para el时间为 del elemento de la superficie.
PARA REDUCIR EL RIESGO DE LESIONES A LAS PERSONAS EN CASO DE UN INCENDIO PRODUCIDO POR GRASA EN UNA ESTUFA, OBSERVE LO SIGUIENTE*:
-
APAGUE LAS LLAMAS con una tapa de ajuste exacto, una charola para galletas o una bandeja de metal, y después apague el quemador. PROCEDA CON CUIDADO PARA EVITAR QUE MADURAS. Si las llamas no se apagan inmediamente, EVACUE EL AREA Y LLAME A LOS BOMBEROS.
-
NUNCA LEVANTE UNA CACEROLA INCENDIADA porque podra occasionarse quemaduras.
-
NO TRATE DE APAGAR EL FUEGO CON AGUA ni con trapos o toallas de cocina mojados, aes occasionar a una explosiOn violenta de vapor.
-
Use un extintor SOLO si:
A. El extintor es de Clase ABC y usted sabe como hacerlo funciona.
B. El incendio es微量元素 y está confinado al area en la que se inicia.
C. Se está llamando al Departamento de Bomberos.
D. Puede combatir el incendio teniendo la espalda orientada hacer una salute.
- Basado en "Kitchen Fire Safety Tips" (Sugerencias para la calidad contra incendios en la cucina).

PRECAUCIón
-
Solo debe usarse bajo techo.
-
Para reducir el riesgo de incendio y paradescending aduadamente el aire, asegurese de dirigir el aire hacia el exterior. No descargue el aire en espacios contentsidos entre paredes o cielos rasos, ni en aticos, sotanos bajo ni en la cochera.
-
Tenga cuidado cuando use agentes de limpieza o detergentes.
-
Evite usar bajo la campana de la estufa productos alimenticios que produzcan llamas.
-
Solo para usarse como medio de ventilación general. No debe usese para la extracción de materiales o vapeores peligrosos or explosivos.
-
Paraatar daos a los cojinetes del motor y rotores ruidos os o desbalanceados,mantenga la unidad de potencia protegida contra rociados de yeso, polvos de construccion,etc.
-
Este motor de campana tiene una proteccion contra sobrecargas termicas que automatamente apagar a el motor en caso de sobrecalentamento. El motor reanudara su functionamento cuando se enfiie. Si el motor continua apagandose y encendiendose, Solicite servicios para la campana.
-
Para capturar mejor las impurezas producidas al cocinar, la parte inferior de la campana debe estar a una alta minima de 48 pulg. (121,9 cm) y maxima de 72 pulg. (183 cm) sobre la superficie de cocinado. Consulte elApartado "Instalacion del soporte de montaje" para ver las restricciones de montaje.
-
Se recomienda que mas personas hagan la instalacion debido al gran時間 y peso de esta campana.
-
Lea la etiqueta de especialidades del producto para ver informacion y requisitos adiconiales.
-
Este grupo de alimentación está equipado con un receptor de RF (control remoto optional se vendepor separado). Loseturnos o modificaciones noaprobadas expresamente por la parte responsable del complimiento podriani anular la autoridad del usuario para operar el equipo. Este control remotohas sido probado y cumple con los limites existecidos para un dispositivo digital de类产品, acordea a la parte 15 del Reglamento de la FCC e ICES-003 canadiense. Estos limites estan disenados para proportionaruna proteccion razonable contra interferencias perjudiciales en una instalacion residencial. Este control remotenergia,utiliza y puebe irradian energia de radiofrecuencia y,si no se instala yutiliza de acuerdo con las instrucciones,puede causar interferencias perjudiciales a las comunicaciones porradio.Sin embargo,no hay garantia de que no se produzcan interferencias en una instalacion particular. Si este equipo causa interferencias perjudiciales para la recepcion de radio o television, lo qualcould determinarse apagando y encendiendo el equipo,se recomienda al usuario que intente corrigir la interfeerencia por una or varias de las seguidentes medidas:
-
Reoriente o cambie la localización de la antenna receptora
-
Augmentar la distancia entre el equipo y el receptor
- Conecte el equipo en un tomacorriente localizo en un circuito diferente al que está connectado el receptor.


Controles (Fig.2)
La campana se opera mediante los 5 botones pulsadores que se encontrartran en la campana y en el control remoto. LED de-coloredores se muestran en el control de campana solamente.

P1: Activa/desactiva el apagado de retardo (10关键时刻)
P2: Reinicio de controlar de tiempo de indicacion de cambio de fi Itro
P3: Reduce la velocidad del motor del ventilador hasta que se apaga (4 > 3 > 2 > 1 > APAGADO)
P4: Enciende el motor del ventilador y,aumenta la velocidad (ENCENDIDO>1>2>3>4)
P5: Luces: apagado/bajo/medium/alto
L1: Centro de senalización del anillo indicator de LED: -
Campana en espera: se enciende color ambar. 30 segundos despues de que se ha presionado la ultima tecla se apaga el centro. - Motor encendido: L1 enciende en color azul destellando. La Frequencia de destello es proportional a ajuste a la velocidad. - Funcion de TEMPORIZADOR de 10关键时刻:
L1 enciende y parpadea en azul. - Alarma del fi ltro activa: L1 enciende en color rojo.
FIG. 2
(P1) Interruptor de apagado con retardo
- Su campana incluye un interruptor de apagado con retardo del ventilador de 10 Minutes. Oprima una vez este interruptor para activar el temporizador, y el anillo de LED (L1) destella en azul. El ventilador seguirá的功能ando 10 Minutes. Después de 10 Minutes, el ventilador se apaga automatistically.
- Para cancelar el retardo de 10 horas, oprima de nuevo el interruptor de retardo.
(P2) Interruptor de alarma del fi ltro
- Después de 30 horas de configuración del ventilador, se activa la alarma del filtro y el anillo de LED (L1) enciende en color rojo/destella. Indica que esnecessary limpar los fi ltros antigrasa.
- Después de limpiar los filtros antigrasa, reinicie el contador de horas presionando el botón de reinicio de temporizador/alarma de fi ltro (P2)@mñtras se visuice la alarma.
(P3) Reducción de velocidad del ventilador e interruptor de apagado
- Oprima para reducir la velocidad del ventilador, de alta a baja. El anillo de LED (L1) destella en azul a una velocidad proportional al ajuste del ventilador (por exemple: quatre destellos es alta velocidad, un destello es baja velocidad, etc.)
- Continué oprimiendo este interruptor para apagar el ventilador.
(P4) Incremento de velocidad del ventilador e interruptor de encendido
(P5) Interruptor de la luz
Luces:apagado/bajo/medium/alto.
El control remoto se enlaza a la campana en la fabrica.
Si por algunarzon se pierde el enlace, siga estas instrucciones: Para enlazar el control remoto a la campana
- Apague el motor y las luces de la campana.
- Pulse los botones y del mando a distanciasimultaneamente durante 5 seguidos hasta que ellindicador de Luz del mando a distancia se enciende (Fig.3). Suelte los botones y y pulse y suele el botón para confirmar la conexión. En este punto, ellindicador de Luz del mando a distancia a parpadearpara confirmar que la conexión está activa.
- En 3 segundos presione P5 en el control de la campana (Fig.4) El BEEP confi m que el proceso de vinculacion se ha se ha realizado correctamente.


Se reduce la velocidad del ventilador y se apaga
- Se aumento la velocidad del ventilador y se encendie

Luz
Presione (Retraso) and (Luz) en conjunto para restablecer la alarma de fi ltro.
PRECAUCION RIESGO DE EXPLOSION SI SE REEMPLAZA LA PILA CON UNA DEL TIPO INCORRECTO. DESECHE LA PILA USADA SEGUN LAS INSTRUCCIONES.
IMPORTANTE: Manteniendo (Retraso) durante más de 3 días hará que el vinculo entre el control rmoto y el capó se pierda.
Si deseas mas informacion sobre cada referencia, vea la seccion "Controles" en la pagina anterior.

Desecho de la pila
Cuando sea requisitear las pilas, desechelas unicamente en los recipientes especiales para desecho que encontrar faki y en gran cantidad, en especial en tiendas que venden productos electronicos de consumo. El complimiento de los relogantos sobre recoleccion diferenciada de residuos y, en particular, la disposicion adecuada de pilas usadas, contribuye a prevenir posibles efectos negativos sobre el medio ambiente y la salute.
El mantenimiento adecuado de la campana para cocina garantizaré el rendimiento corre-recto de la unidad.
Motor
El motor está constantly lubricado y nunca necesita engrase. Si los cojinetes del motor hacen un ruido excessivo o inusual, reemplace el motor con elismo motor de servicios. Internacional se debe reemplazar el propulsor.
Filtro de grasas
Se debe limpiar el fttro de grasas regularmente. Utilice una solution de detergente tibia. El filtro de grasas es apto para lavavajillas.Limpie los filtros que Sean Completely de metal del lavavajillas con un detergente sin fosfato. Es possible que se produzca una decoloracion del fttro si se usesan detergentes con fosfato o como resultado del estado del agua local, pero this no afectar el rendimiento del filtrlo. esta decoloracion no está cubierta por la garantia.
Consulte la sección "INSTALLACION DE FILTROS" para Obtener instrucciones de extracción e instalación.
Limpieza del Acero Inoxidable
LO QUE SE DEBE HACER:
- limpiar regularamente con un paño limpio o un trapo empapado con agua tibia y jabón suave o detergente liquido.
- limpiar siempre en la direction de las lineas pulidas originales.
- tiempo enjuagar bien con agua limpia (2 á 3 vezes) después de la limpieza. secar con un trapo por completeo.
LO QUE NO SE DEBE HACER:
- usablerialquier esponja de acero o acero inoxidable o qualquier raspador para eliminarrialquier介质idad persistente.
- usable limpiadores agresivos o abrasivos.
-permitir que se acumule sociedad.
-exual de la campana.
-dejar que el polvo de yeso o cualquier othero residuo de construction alcance la campana. durante una construccion/renovacion, cubrir la campana para cocina para asegurarse de que el polvo no se pegue en la superficie de acero inoxidable.
Cuando elija un detergente, evite lo siguientes:
- todos los limpiadores que contienen lejía, ya que atacaran el acero inoxidable.
- todos los productos que contienen: cloruro, fluoruro, yoduro o bromuro, porque deteriorarán las superficies rápidamente.
- todos los productos combustibles usados para limpiar, como acetona, alcohol, éter, benzol, etc., puesto que son altamente explosivos y nunca se deben usar cerca de la cucina.
PREPARACION DE LA CAMPANA
Desensamble la campana y revise el contenido.
Debe recibir:
1 - Campana
1 - Control remot
4 - Filtros antigrasa
6 - Pernos de rosca para madera, 6 x 60 mm
6-Arandelas

FIG. 5
El instalador es responsable de selectionar los sujetadores adeuados para la construccion del edificio.
INSTALLACION DEL CONDUCTO DE EXTRACCION
NOTA: para evaporar el riesgo de incendio, use solamente material de metal.
- Decida donde instalara el conducto entre la campana y el exterior. Fig. 6.
- Unconducto rectoycorto permitirakeque la campanafuncione mas efi cientsamente Para un rendimiento optimo,se recomien

da tener un conducto recto de 18 a 24 "antes de usar un dato.
3.Los tramos largos de conductos, codos y transiciones reducirán el rendimiento de la campana. Use tan poco de ellos como sea possible. Es posible que se requieran conductos mas grandes para un mejor funciona con tramos mas largos de conductos.
4. Instale una tapa de techo, una tapa de pared o un respiradoro bajo del alero. Conecte un conducto metalico redondo en la tapa/respiradoro y trabajo hacer atras, hacer la ubicacion de la campana. Use cinta para conductos para sellar las uniones entre las secciones de conductos.
5. El ventilador en el modelo CC34IQ63SB se pueda girar de acuerdo con laubicacion de la salida de aire.Consulte las dimensiones de la calidad de aire en la Figura 7.

FIG. 7
Por la modalidad sin conductor (filtro), comprar el KIT ANKCC3463 porSeparated (optional, solo por el Modelo CC34IQ63SB). Fig. 8

FIG. 8
PREPARATION DE L'OUVERTURE DUPLAFOND
La campana siempre debe centrarse arriba de la estufa. Asegürese de tener el空間 adecuado en la estruc- tura del techo para instalar la campana y los conductos. La campana debe montarse de 48 a 72 pulg.(120 a 180~cm ) por arriba de la estufa para extraer mejor las impurezas al cocinar. Fig.6.
Utilice madera del tiempo de las vidas para create un marco alrededor de la abertura de la campana. Fig. 9.

La estructura del techo también debe soportar lo de la campana.
Modelo CC34IQ63SB: peso 105 libras (48Kg).
Modelo CC34IQT63SB: peso 121 libras (55Kg).

Para la version no canalizada: Hacer una abertura en el techo para el parte aireada de returno. Ver Fig. 10 y Fig.24.

PREPARE EL SOPORTE DE LA CAMPANA
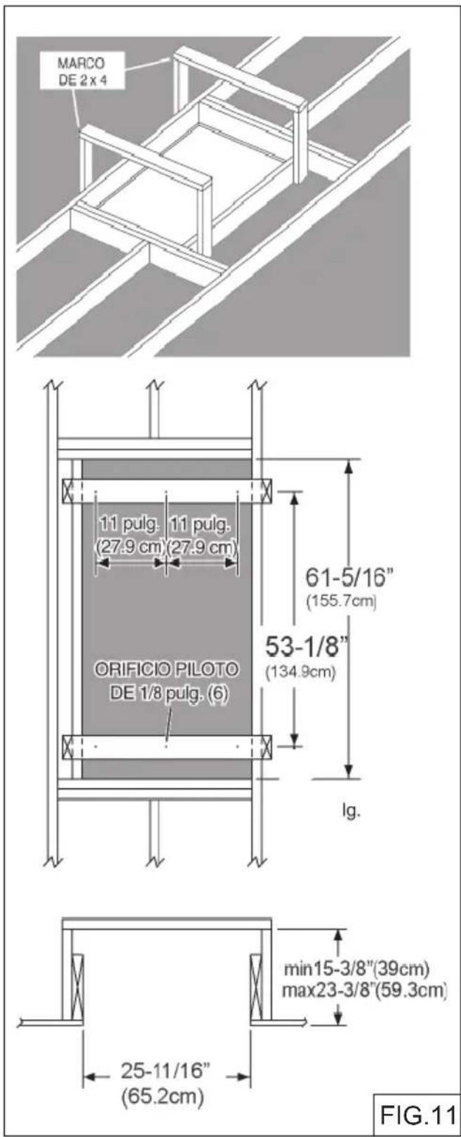
- Construya un sistema de marco de madera, como se muestra en la Fig. 11.
- La estructura debe se capaz de soportar su propio peso, mas el peso de la campana.

INSTALE LA CAMPANA
PRECAUCION: Se recomienda que mas instaladores hagan la instalacion debido al gran時間 y peso de esta campana.
- La campana se envía en posición de descarga de conductor horizontal y está lista para instalarse (Fig.12).
Solamente por el Modelo CC34IQ63SB (1 motor):
- ParaATTER la direccion del conducto sin uso@codos:
- Retire (2) tornillos de la brida de evacuation (Fig.13).
- Retire (2) tornillos del interior de la caja del ventilador (Fig.14).
- Retire (4) tornillos de los lados de la caja del ventilador (Fig.15).
- Retire (10) tornillos encima de la caja del ventilador (Fig.16).





Gire el ventilador de 90 grados y reinstale (2) tornillos (Fig.17). Reinstalas las cajas del ventilador, brida y tornillos.
- Ajuste laaltitude del marco de soporte telescopi co ybloque con tornillos y arandelas (Fig.18).
ATENCLON: Ajustar la alta antes de la instalacion.
- Levante la campana hacía la abertura del cielo raso.
- Asegure cada marco de soporte con el marco de soporte de madera de la campana con los (6) tornillos para madera de 6 × 60 mm y las arandelas suministradas. Fig 19.
- Instalar el conducto y pegue conCNTATODAS las uniones para garantizar un sello de aire hermético



CONNECTE EL CABLEADO

VERTENCIA: Una o más personas
calificadas deben realizar el trabajo de cableado electrico, de acuerdo con todos loscottigos y las normas correspondientes.
Esta campana debe estar adecuadamente conectada a tierra.
- Retire la tapa del compartimiento electrico y los (2) tornillos Fig.20.
- Pase el cable electrico de 2 alambres y tierra de 120 VCA por el agujero ciego de 34 pulg. (19 mm) que se encuesta en la parte posterior de la campana. Fig. 21.
- Retire el agujero ciego eletrico de 34 pulg. (19 mm) de la parte posterior de la campana.
- Aside la caja electrica marcada"entrada de 120 VCA", retire (2) tornillosque aseguran la cubierta a la cajade conexiones metalica. Fig. 22.
- Estire el cable electrico de 120 VCA hacía la caja y asegure con una abrazaderade cable adecuada.
- Haga las conexiones electricas dentrode la caja. Conecte blanco con blanco, negro con negro y verde con tierra.
- Vuelva a colocar la cubierta de la caja de conexiones y los tornillos. Colocar la tapa del compartmento electrico y los tornillos. Asegúrese deque los cables no queden atrapados entre la cubierta y la caja.



REGULADOR DE AIRE DE REPUESTO
Precaución: La campana es compatible solamente con el regulator de aire de repuesto Broan, Modelo MD8T (aconsejado por CC34IQ63SB) or MD10T (aconsejado por CC34IQT63SB). Se comprar porSeparated.
Realice la connexion del regulator de aire de reclusto con cableado de bajo voltaje, como se ilustra. Consulte informacion adicular en las instrucciones del regulator de aire de reclusto. (Fig. 23)

FIG.23
INSTALAR EL KIT DE FILTRO (VERSION SIN CONDUCTO)
Compra el kit de recirculación ANKCC3463opping, se vende por分开ado (optional, solo por el modelo CC34IQ63SB). El kit incluye la parte para el returno de aire y fi ltros de carbón.
Fije la parte para el returno de aire en el techo utilizingo (4) tornillos de montaje 4,2x15mm. Ver Fig. 24

FIG.24
INSTALLACION DE FILTROS DE RECIRCULACION SIN CONDUCT (SOLO PARA CAMPANAS SIN CONDUCTOS)
Los fi ltros de recirculación está incluidos en el kit ANKCC3463. Compre fi ltros de recirculación sin conductor por separado (AFCCC3463).
Coloque el fi ltro de recirculación sin conductorso sobre el fi ltro de grasa y bloqueelo con las (4) trabas. Vea Figura 25.
El kit y el fi ltro de recirculacion son optional, solo por el modelo CC34IQ63SB.

INSTALE LOS FILTROS
- Para instalar los fi ltros antigrasa, alinee las aletas posteriores del fi ltro con las ranuras de la campana. Empuje hacía adentro la lengüeta del cierre, presione el ftro en su posicón y suelete. Asegúrese de que el fi ltro está fi rmente enganchado cuando de su instalación. Fig. 26.
- Para qitar los fi ltros para limpiarlos, presione hacía adentro la lengüeta del cierre para desprender el fi ltro de la campana. Incline el fi ltro hacía abajo y quítelo.
NOTA: Quite la pellicula protectora de los fi ltros de grasa y todas las piezas de acero antes de cocinar bajo de la campana.

CALIBRACION DEL VENTILADOR IQ™
Después de instalar y cablear la campana, active el proceso de calibración (nuestra" Tecnología de sistemas de desempeno garantizo, para asegurar que se suministre el fl ujo de aire nominal total). Antes de la calibración, asegúrese de que todos los filtros, bombillas de luz y el sistema de conductos estén instalados.
PROCESO DE CALIBRACION Fig. 27.
Sostenga el botón de calibración 3~segundos; el botón se encenderá y estará asi hasta por 13关键时刻. El ventilador arrancará y comenzará el proceso de calibración. Cuando se determine la calibración, ocurre una de dos cosas:

1.El ventilador se apaga y la luz del botón de calibración permanece encendida = Calibración exitosa. Presione el botón para apagar la luz LED. Nota: La luz LED también se apagará si selección una energia del ventilador en el control.
- El ventilador se apaga y el botón de calibración destella continuamente = Demasiada restricción en los conductos impide que el ventilador IQ™ obtenga el fl ujo de aire nominal. El ventiladorse confi gura automatistically en su intensidad Tmaxa.
NOTA: Elementos comunes que provocan restricciones: el alerón del regulator está restrin-gido (regulador de~contratro, tapa~de~pared, tapa de techo), demasiados codos,時間o de conducto menor del 80% de salute de la campana, mala transición, uso de conductos fl exibles y/o~conductos~aplastados.
Hay disponibles tres options si el sistema de campana tiene demasiada restricción:
- ACEPTAR el fl ujo de aire como está.
a. Presione el botón de calibración para acceptar el flujo de aire talrial. El ventilador IQ™ está configurado ahora en el rendimiento más alto possible. La luz de calibración destellante se apaga. Nota: La luz LED también se apagará si selección alguna velocidad del ventilador en el control.
- Corrija la restricción del conductor,(despeje los datos de calibración originales y repita el proceso de calibración.
a. Corrija la restricción del conductor.
b. Despeje los datos de calibración originales Maintainando presionado el botón de calibración durante 10segundos.La luz destellará 3 vaces para confirmar y la configuración del ventilador regresará a los ajustes predeterminados.
c. Repita el proceso de calibración desde el principio.
- Despeje los datos de calibración para reinecer la campana a la confi guración de fabrica y Obtener un rendimiento estandar de alta presión del ventilador.
a. Despeje los datos de calibracion y reinicie la campana a los ajustes predeterminados de fabrica Maintainando presionado el boton de calibracion durante 10 segundos. La luz destellar3 times para confirmar y la configuracion del ventilador regresar a los ajustes predeterminados.
Garantía limitada
Periodo de garantia y exclusiones: Broan-NuTone LLC (la «Compania») garantiza al consumidor quien compra su producto(«Usted») que el producto (el «Producto») sera libre de defectos importantes de fabricacion y de materiales por una duracion de cinco (5) años a partir de la fecha de compra (o por una duracion mas larga si la ley aplicable lo exige) o un periodo de dos (2) años a partir de la fecha de prestacion de un service sobre el Producto.
El periodo de garantía limitadapara las piezas de repuestos proportionadas por la Compañía y los Productos reparados o reemplazados bajo esta garantía limitadaser el resto del periodo de garantíaoriginal (o un periodo más largo si la ley aplicable lo exige).
ESTA GARANTIA EXCLUYE LOS ARRANCADORES DE LAMPARAS FLUORESCENTES, LOS TUBOS, LAS BOMBILLAS, LOS FUSIBLES, LOS FILTROS, LOS CONDUCTOS, LAS TAPAS PARA TECHO, LAS TAPAS PARA PARED Y LOS OTROS ACCESORIOS PARA CONDUCTOS. Internacional excluye: a) el mantenimiento normal, b) el uso y desgaste normales, c) los produits y las piezas que han sidobjecto de un uso indefinido, anormal o negligente, un maltrato, un accidente, unostenimiento, almacenimiento o reparacion inadequados (excepto en caso de reparacion por la Compania), d) los daños causados por una instalacion inadequada, o por una instalacion o un uso contrario a las recomendaciones o instrucciones, e)los daños causados por el contacto con el aire salino, f) los daños que occurran durante el transporte, g) el desgaste normal del accidento, h) los Productos que sonbjecto de un uso commercial o no residencial, i) los daños causados por el fuego, una inundacion u other desastre natural o j) los Productos a los cuales se les haya alterado, desfurado o Removedo el numero de series. esta garantiasolo cubre los Productos vendidos a consumoidores de Norteamérica.
Ea t y e i s a p r o
Ninguna other garantía: This guarantía limitadaenuncia la una obligation de la Compañía y el unico recurso queiene Usted en cuando a los Productos defectuosos. Las garantías enunciadas arriba son excluvas y se anteponen a todas las otheri garantías y conditiones, ya sea expresas o implicitas. EN LA MEDIDA MAXIMA EN QUE LO PERMITA LA LEY APLICABLE, LA COMPANIARENUNCIA A TODAS LAS OTRAS GARANTIAS Y CONDICIONES EXPRESAS O IMPLICITAS POR LA LEY Y LAS EXCLUYE, INCLUYENDO, ENTRE OTRAS, LAS GARANTIAS DE COMERCIALIZACION Y LAS DE IDONEIDAD PARA UN PROPÓSITO PARTICULAR. En la media en que la ley aplicable prohiba la exclusion de las garantias o condidiones implicitas, la duración de cualquier garantía o condidión implicita aplicable se limita al periodo indicado para la garantía expresa Mentionada arriba. Ciertas jurisdieciones (incluyendo a vez la province de Quebec oCERTOS Estados de los Estados Unidos) prohíben la restricción de la duración de las garantías implicitas, asi que la restricción Mentionada arribaolla no aplicarse a Usted.Las descripción orales o asignatas del Productotienen como unico proposto identificar al Producto y no se deben interpretar como una garantía expresa.
Cuando sea posible, cada disposicion de esta garantia limitadase debe interpretar de manera que teng plena validez y efectos legales bajo la ley aplicable, pero en el caso de que se declare prohibida o nula una disposicion, esta sera nula solo en la medira en que lo prevea esta prohibacion o nulidad, sin efecto para los other elements de this disposicion or las other dispositions of this garantia limitada.
Recu: Dure p d g t i a r de reparacion o reemplazo sin cargo algo n para qualier Proo o pieza de Proo, en la media en que la Companiacoconstata a) que esta garantia cubre this Producto o this pieza bajo un uso y mantenimiento normales y bque the garantia qued incumplida. La Companiae enviare el Producto reparado, el producto de reemplazo o las piezas de repmsto sin cargo aluno. Usted tard que pagar todos los costos de desinstalacion, reinstalacion y envio asi como los otros cargos de transporte relationados con el envio del Producto o la pieza a la Compania. Si Usted debe enviar el Producto o la pieza a la Compania, conforme a las instruetiones de la misma, Usted tard que empacquetar el Producto o la pieza correctamente; la Companiano es responsable de los daños que occurran durante el transporte. La Companiase reserva el derecho de utilizear Productos o piezas reacondionados, renovados, reparados or remanfacturados para la reparacion o el reemplazo bajo this guarantia. Estos Productos y piezas seran comparables en cuiato a la funcion y el rendimiento con el Productoo la pieza original y seran garantizados por la duracion restante del periodo de garantiaoriginal (o por una duracion mas larga si la ley aplicable lo exige).
La Companiase reserva el correcho, segun su exclusive citerio, de reembolsar el monto que Usted haaya realmente pagado por el Producto. Si el Producto o la pieza ya no está disponible, la Compania possible, segun su exclusive citerio, reemplazarlo con un producto similar de valor igual o superior. Este constituye su unico y exclusivo recurso en caso de incumplimiento de esta garantia limitada. Exclusion de los daños: LA OBLIGACION DE LA COMPANIA DE PROPORTIONAR PIEZAS DE REPUESTOO DE REPARAR O REEMPLAZAR EL PRODUCTO, SEGUN SU CRITERIO, ES EL UNICO Y EXCLUSIVEIMO RECURSO QUE TIENE USTED BAJO ESTA GARANTIA LIMITADAY LA UNICA OBLIGACION DE LA COMPANIA. ESTA NOSER A RESPONSABLE DE LOS DANOS INCIDENTALES, INDIRECTOS, CONSECUENTES O ESPECIALES CAUSADOSIRECTAMENTE O INDIRECTAMENTE POR EL PRODUCTO, SU USO O SU RENDIMIENTO.
Puede q cias juridicn o hben la exusio o restriccion de los daos incidentales o consecutantes, la exusio o restriccion menciona arba podria no aplicarse a Usted. Ea garantiale otorga direchos legales especificos, y Usted temi podria tener otherdsrechos, los cales pueen ser differentes segun la jurisidicn. Las renuncias, exclusiones y restricciones de responsabilitad bajo estagarantiano se aplican en la media en que lo prohiba la ley aplicable.
Esta garantiasolo cubre el reemplazo o la reparacion de las piezas o los Productos defectuos os situ de negocio principal de la Compania; los gastos de viaje y estancia relacionados con los servicios de campo estan excluidos.
Cualquier asistencia proporcionada u obtenida para Usted por la Companiay que no está cuberta por las conditiones, restricciones oexclusiones de esta garantia limitadano constituye una renuncia a estas conditiones, restricciones y exclusiones, y la prestacion de dicha asistencia no prolongar o restablecerla garantia.
La Companiño le reembolsara los gastos que Usted haya hecho por la reparacion o el reemplazo de un Producto defectuoso, excepto si Usted ha previamente recibido el permiso escrito de la Compania por ellos.
Cómo Obtener el service de garantía: Para tenerdeoal service de garantia, Usteddebea) informar La Companiiaa la direc tion o al numero de telfo escrito aqua abajo dentro de siete (7) dias despues de que haya descubierto el defecto cubierto, b) dar el numero de series y los datos de identificacion de la pieza y c) describir la naturaleza deequalier defect del Producto o de la pieza. Cuando solicite
el service de garantía, Usted tiene que presentar una prueba de la Fecha de compra original. Si no pueda proportionscaruna copia de la version escrita original de la garantía limitada, las conditions de la version mas reciente de la garantía limitada de la Compañía para su producto se aplicaran.
ESPECIFICACIONES DEL PRODUCTO
Tadas las ilustraciones y las specifications en este catalogo estan establecidas segun la informacion que er a mas reciente en el momento en cui fue producido. Broan-NuTone LLC y BEST se reservan el derecho de cabiar, en qualier momento y sin previo aviso, los precios, colores, materiales, productos, specifications y modelos y el lugar de fabricacion, asi como de parar la produccion de un modelo o producto.
Best
ManualFácil