HMF 250 X - Microondas HOOVER - Manual de uso y guía de instrucciones gratis
Encuentra gratis el manual del aparato HMF 250 X HOOVER en formato PDF.
Preguntas de los usuarios sobre HMF 250 X HOOVER
0 pregunta sobre este aparato. Responde a las que conoces o haz la tuya.
Hacer una nueva pregunta sobre este aparato
Descarga las instrucciones para tu Microondas en formato PDF gratis! Encuentra tus instrucciones HMF 250 X - HOOVER y toma tu dispositivo electrónico nuevamente en la mano. En esta página están publicados todos los documentos necesarios para el uso de su dispositivo. HMF 250 X de la marca HOOVER.
MANUAL DE USUARIO HMF 250 X HOOVER
Instrucciones de Instalación
Lea atentamente el manual antes de la instalación



Atencion
Conexión electrónica
El hora está equipado con un enchufe y solo se debe conectar a una toma de tierra instalada adecuadamente. De conformidad con las normativas adecuadas, solo un electricistariallicado se pueda encargar de la instalacion de la toma y de la sustitucion del cable de connexion.
Si el enchufe deja de ser accesible afterwards de la instalacion y del aislamento de todos los polos, en el estado de la instalacion debebe haber un interruptor con una separacion de contacto de al menos 3mm
A. Muebles incorporedos
La cabina incorpora no tendrá un panel trasero detrás del aparato.
Laaltitude de instalacion minima es de 85cm
No cubra las ranuras de ventilacion y los+puntos de entrada de aire.


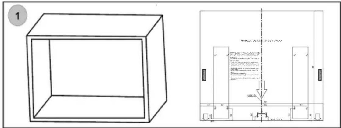
B. Prepare la cabina.

- Lea las instrucciones del MODELO DE LA CABINA DE FONDO,pong a el modelo en el plano del fondo de la cabina.

- Haga marcas en el plano del fondo de la cabina según las marcas “a” del Modelo.

- Quite el MODELO DE LA CABINA DE FONDO y fije los SOPORTES DE FONDO con los TORNILLOS A.
C. Prepare el hora.

- Fije los TORNILLOS B al TUNEL DE AIRE SUPERIOR delorno.
D. Instalación del horno.

-
Instale el hora en la cabina.
-
Ajuste la alta de los TORNILLOS B paramantener una separacion de 1mm entre los TORNILLOS B y el plano superior de la cabina.
- Asegürese de que los PIES DEL HORNO está alineados con las ranuras de los soportes cuando instale el hora en la cabina.
No enganche ni doble el cable de corriente.

- Abra la puerta. Fije el hora a la cabina enleORONIDINE INSTALLACION del PANEL FRONTAL.
ManualFácil