2510CTD - Tubo de lámpara DOVRE - Manual de uso y guía de instrucciones gratis
Encuentra gratis el manual del aparato 2510CTD DOVRE en formato PDF.
Preguntas frecuentes - 2510CTD DOVRE
Preguntas de los usuarios sobre 2510CTD DOVRE
0 pregunta sobre este aparato. Responde a las que conoces o haz la tuya.
Hacer una nueva pregunta sobre este aparato
Descarga las instrucciones para tu Tubo de lámpara en formato PDF gratis! Encuentra tus instrucciones 2510CTD - DOVRE y toma tu dispositivo electrónico nuevamente en la mano. En esta página están publicados todos los documentos necesarios para el uso de su dispositivo. 2510CTD de la marca DOVRE.
MANUAL DE USUARIO 2510CTD DOVRE
INSTRUCCIONES DE INSTALACIÓN Y USO
Declaración de prestaciones 4
Seguridad 9
Condiciones de instalación...9.....
Condiciones generales.9....
Chimenea 9.
Ventilación de la estancia 10......
Suelo y paredes.11....
Descripción del producto.11.....
Instalación 12
Preparación 12
Encastrado en una chimenea existente... 14
Empotrar en una nueva chimenea.... 14
Montaje del marco exterior.... 16
Uso 17
Primer uso.... 17
Combustible 18
Encendido 18
Alimentar con leña.... 19
Alimentar con briquetas de lignito.... 20
Alimentar con carbón de antracita..... 20
Regulación del aire de combustión..... 21
Extinción del fuego.... 22
Eliminar la ceniza.... 22
Nieblas y brumas.... 22
Posibles problemas....22
Mantenimiento 22
Chimenea 22
Limpieza y mantenimiento periódico..... 23
Anexo 1: Especificaciones técnicas..... 25
Anexo 2: Diagramas de conexión 27
Anexo 3: Medidas.... 30
Anexo 4: Distancia a materiales inflamables 39
Anexo 5: Diagnóstico de problemas... 40
Índice 41

Introducción
Estimado cliente,
con la compra de este aparato de calefacción
DOVRE, ud. ha adquirido un producto de calidad.
Este producto forma parte de una nueva generación de aparatos de calefacción respetuosos con el medio ambiente y con un consumo de energía más eficiente.
Estos aparatos hacen un uso óptimo tanto del calor por convección como del calor por irradiación
Su aparato DOVRE ha sido fabricado con los más modernos procesos de fabricación. En caso de avería en su aparato, puede enviar su reclamación al servicio técnico de DOVRE.
El aparato no puede modificarse; utilice siempre componentes originales.
El aparato está creado para el uso en viviendas. Debe conectarse de manera hermética a una chimenea que funcione correctamente.
Le aconsejamos que la instalación de su aparato la realice un instalador certificado.
DOVRE no se hace responsable de los problemas o daños originados por la instalación inadecuada de sus productos.
Durante la instalación, tenga en cuenta los consejos de seguridad que se describen a continuación.
En este manual podrá leer cómo instalar, utilizar y mantener su aparato de calefacción DOVRE de manera segura. Si desea obtener más información o datos técnicos adicionales, o si tiene problemas con la instalación, póngase en contacto con su distribuidor.
© 2013 DOVRE NV
Declaración de prestaciones
De conformidad con el reglamento de productos de construcción 305/2011
N.° 102-CPR-2013
- Código de identificación único del tipo de producto:
2020S / 2200 / 2210 / 2220
- Número de tipo, partida o serie, así como otro medio de identificación para el producto de trucción, tal y como se describe en el artículo 11, apartado 4:
Número de serie único.
- Usos previstos del producto de construcción, de conformidad con la especificación técnica arnizada aplicable, tal y como haya determinado el fabricante:
Estufa para combustible fijo sin producción de agua caliente según EN 13240.
- Nombre, nombre comercial registrado o marca comercial registrada y dirección de contacto de fabricante, tal y como se describe en el artículo 11, apartado 5:
-
Siempre que sea aplicable, nombre y dirección de contacto del poderhabiente que desempeña tareas indicadas en el artículo 12, apartado 2:
-
El sistema o los sistemas para la evaluación y verificación de la constancia de las prestación producto de construcción, mencionadas en el anexo V:
Sistema 3
- En el caso de que la declaración de prestaciones esté relacionada con un producto de cor sujeto a una norma armonizada:
El organismo RRF designado, registrado con el número 1625, ha realizado conforme al sistema 3 un examen de tipo y ha proporcionado el informe de prueba n.° 2905903.
-
En el caso de que la declaración de prestaciones esté relacionada con un producto de cor para el que se ha emitido una evaluación técnica europea:
-
Prestación declarada:
| La norma armonizada EN 13240 :2001/A2 :2004/AC :2007 | |||
| Características esenciales | Prestaciones Leña | Prestaciones Lignito | Prestaciones Carbón |
| Seguridad contra incendios | |||
| Resistencia al fuego A1 A1 A1 | |||
| Distancia al material inflamable(distancia mínima en mm) | Parte posterior: 100Lateral: 100 | Parte posterior: 100Lateral: 100 | Parte posterior: 100Lateral: 100 |
| Riesgo de caída de brasas incandescentes | Conforme Conforme Conforme Conforme | ||
| Emisión de productos de combustión | CO: 0,10% (13% O_2 ) | CO: 0,06% (13% O_2 ) | CO: 0,04% (13% O_2 ) |
| Temperatura de la superficie Conforme Conforme Conforme | |||
| Seguridad eléctrica - | - | ||
| Limpieza sencilla | Conforme Conforme Conforme Conforme | ||
| Presión máxima de funcionamiento | - | - | - |
| Temperatura del gas residual a potencia nominal | 295 °C | 289 °C | 272 °C |
| Resistencia mecánica(carga máxima de la chimenea) | No determinada | No determinada | No determinada |
| Potencia nominal | 7 kW | 7 kW | 8 kW |
| Rendimiento | 78,3 % | 75,4 % | 76,4 % |
- Las prestaciones del producto descrito en los puntos 1 y 2 son conformes con las prestac declaradas en el punto 9.
Esta declaración de prestaciones se emite bajo la exclusiva responsabilidad del fabricante mencion en el punto 4.
26/08/2013 Weelde

text_image
T. GehemTom Gehem
Director ejecutivo

De conformidad con el reglamento de productos de construcción 305/2011
N.° 105-CPR-2013
- Código de identificación único del tipo de producto:
2500 / 2510 / 2520 / 2620
- Número de tipo, partida o serie, así como otro medio de identificación para el producto de trucción, tal y como se describe en el artículo 11, apartado 4:
Número de serie único.
- Usos previstos del producto de construcción, de conformidad con la especificación técnica arnizada aplicable, tal y como haya determinado el fabricante:
Estufa para combustible fijo sin producción de agua caliente según EN 13240.
- Nombre, nombre comercial registrado o marca comercial registrada y dirección de contacto de fabricante, tal y como se describe en el artículo 11, apartado 5:
-
Siempre que sea aplicable, nombre y dirección de contacto del poderhabiente que desempeña tareas indicadas en el artículo 12, apartado 2:
-
El sistema o los sistemas para la evaluación y verificación de la constancia de las prestación producto de construcción, mencionadas en el anexo V:
Sistema 3
- En el caso de que la declaración de prestaciones esté relacionada con un producto de cor sujeto a una norma armonizada:
El organismo RRF designado, registrado con el número 1625, ha realizado con arreglo al sistema 3 un examen de tipo y ha proporcionado el informe de prueba n° 2905904.
-
En el caso de que la declaración de prestaciones esté relacionada con un producto de cor para el que se ha emitido una evaluación técnica europea:
-
Prestación declarada:
| La norma armonizada EN 13240 :2001/A2 :2004/AC :2007 | |||
| Características esenciales | Prestaciones Leña | Prestaciones Lignito | Prestaciones Carbón |
| Seguridad contra incendios | |||
| Resistencia al fuego A1 A1 A1 | |||
| Distancia al material inflamable(distancia mínima en mm) | Parte posterior: 100Lateral: 100 | Parte posterior: 100Lateral: 100 | Parte posterior: 100Lateral: 100 |
| Riesgo de caída de brasas incandescentes | Conforme Conforme Conforme Conforme | ||
| Emisión de productos de combustión | CO: 0,10% (13% O_2 ) | CO: 0,09% (13% O_2 ) | CO: 0,05% (13% O_2 ) |
| Temperatura de la superficie Conforme Conforme Conforme | |||
| Seguridad eléctrica - | - | ||
| Limpieza sencilla | Conforme Conforme Conforme Conforme | ||
| Presión máxima de funcionamiento | - | - | - |
| Temperatura del gas residual a potencia nominal | 264 °C | 318 °C | 314 °C |
| Resistencia mecánica(carga máxima de la chimenea) | No determinada | No determinada | No determinada |
| Potencia nominal | 10 kW | 10 kW | 10 kW |
| Rendimiento | 80,0 % | 76,4 % | 79,0 % |
- Las prestaciones del producto descrito en los puntos 1 y 2 son conformes con las prestac declaradas en el punto 9.
Esta declaración de prestaciones se emite bajo la exclusiva responsabilidad del fabricante mencion en el punto 4.

text_image
T. Gehem26/08/2013 Weelde
Tom Gehem Director ejecutivo


En el marco de la mejora continua de nuestros productos, las especificaciones del aparato suministrado pueden variar de aquellas descritas en este manual, sin necesidad de previo aviso.
DOVRE N.V.
Bélgica Correo electrónico : info@dovre.be
Seguridad

¡Atención! Siga las instrucciones de seguridad del fabricante al pie de la letra.

Lea atentamente las instrucciones para la instalación, uso y mantenimiento del aparato antes de ponerlo en funcionamiento.

La instalación del aparato debe cumplir con todas las normativas y regulaciones vigentes en su país de residencia.

El aparato debe cumplir con todas las disposiciones locales y las disposiciones que tengan relación con normativas nacionales o europeas.

Haga instalar preferiblemente su aparato por un instalador certificado. Este podrá informarle de todas las disposiciones y normativas vigentes.

Este aparato se ha diseñado para fines de ca facción. ¡Todas las superficies del mismo, incluyendo el cristal y el tubo de conexión, pu den alcanzar temperaturas muy elevadas (má de 100 °C)! Para manipular el aparato cuando esté en funcionamiento, utilice una "mano fría" o guantes protectores contra el calor.

Asegúrese de que existe suficiente protección cuando haya niños, minusválidos y ancianos cerca del aparato.

Se deben respetar estrictamente las distancias de seguridad hasta el material inflamable.

Evite colocar cortinas, prendas, ropa lavada u otros materiales inflamables sobre el aparato o en las cercanías del mismo.

Cuando el aparato esté en funcionamiento, no utilice sustancias inflamables o explosivas cerca del mismo.

Evite incendios en la chimenea haciéndola lim piar periódicamente. No deje la puerta abierta mientras el fuego esté encendido

En caso de incendio en la chimenea: cierre las entradas de aire del aparato y llame a los bomberos.

En caso de que el cristal del aparato se haya roto o agrietado, deberá reemplazar el cristal antes de volver a utilizar el aparato.

Mantenga la habitación donde se coloque el aparato bien ventilada. Una ventilación insuficiente de la habitación puede producir una combustión insuficiente y la liberación de gases tóxicos. Consulte la sección "Condiciones de instalación" para saber más sobre la necesidad de ventilación.
Condiciones de instalación
Condiciones generales
El aparato debe conectarse a una chimenea en buen estado
Para saber más sobre los tamaños de las conexiones: consulte el anexo "Especificaciones técnicas".
Infórmese en su departamento local de bomberos y / o en su compañía aseguradora sobre posibles requisitos y normativas.
Chimenea
La chimenea es necesaria para:

La evacuación de los gases inflamables, mediante el tiro natural.

El aire caliente que se encuentra en el interior de la chimenea es más ligero que el aire exterior. Esto provoca que el aire se eleve.
La succión del aire, necesaria para la combustión del combustible dentro del aparato.
Una chimenea en mal estado puede ocasionar el retorno de los gases al abrir la puerta del aparato. Lo daños producidos por el retorno de gases están excluidos de la garantía.

No conecte varios aparatos a la misma chimenea (por ejemplo, conectar además del aparato, una caldera de calefacción central), a menos que las normativas locales o

nacionales así lo permitan. En el caso de dos conexiones, asegúrese de que la diferencia de altura entre las conexiones es de al menos 20 mm.
La chimenea debe desembocar en una zona del tejado que no esté obstaculizada por edificios adya-0centes, árboles cercanos u otros obstáculos.
Su instalador podrá asesorarle sobre las normativas de seguridad de la chimenea. Consulte la Normativa Europea EN13384 para hacer un cálculo adecuado o la capacidad de su chimenea.
La parte de la chimenea situada fuera de la vivienda debe estar aislada.
La chimenea debe tener una altura mínima de 24 metros.
La chimenea debe cumplir las siguientes condiciones:
La chimenea debe estar fabricada con materiales ignífugos, preferentemente materiales cerámicos o acero inoxidable.
La chimenea debe estar herméticamente cerrada bien limpia, y debe asegurar un tiro suficiente.

Lo ideal es conseguir un tiro/presión de 15 - 20 PA durante una carga normal.
La chimenea debe ser lo más vertical posible - desde el punto de salida del aparato -. Las desviaciones y / o posibles tramos horizontales dificultan la evacuación de los gases inflamables, pudiendo originar acumulaciones de hollín.
El interior del tubo no debe ser demasiado grande, para evitar que los gases inflamables se enfríen demasiado rápido y se reduzca la capacidad de tiro.
Es aconsejable que la chimenea tenga el mismo diámetro que el cuello de conexión del aparato.

Para el diámetro nominal: consulte el anexo "Especificaciones técnicas". Cuando el conducto de humos está bien aislado, el diámetro puede ser algo más grande (como máximo el doble de la sección del cuello de conexión).
La sección (superficie) del conducto de humos ha de ser constante en toda su longitud. Los ens-anchamientos y (muy especialmente) los estre-chamientos pueden obstaculizar la evacuación de los gases inflamables.
Al aplicar la caperuza o sombrerete sobre la chimenea; evite que la caperuza estreche la salida la chimenea o que obstaculice la liberación de gases de combustión.
Puede seguir esta sencilla regla: 60 cm sobre la parte más alta del tejado.
Si el caballete del tejado está situado a más de 3 metros de la chimenea: siga las medidas indicadas en la siguiente imagen. A = el punto más alto del tejado dentro de una distancia de 3 metros.

text_image
3 m min. 0.5 m min. 1 m A 09.20500.001Ventilación de la estancia
Para que la combustión sea adecuada, el aparato necesita aire (oxígeno) Este aire entra por las tomas de aire regulables y procede del espacio en el que está situado el aparato.

Una ventilación insuficiente ocasiona una combustión incompleta y la consiguiente liberación de gases tóxicos.
Una regla sencilla es que la entrada de aire debe ser de 5,5 cm²/kW. Se necesita ventilación adicional en los siguientes casos:
Cuando el aparato está en un espacio bien aislado.
Cuando existe ventilación mecánica en el espacio, p. ej., un sistema de extracción de aire central o una campana extractora en una cocina abierta.
Puede crear una ventilación adicional poniendo una rejilla de ventilación en alguno de los muros exteriores de la habitación.

Procure que otros aparatos de aire caliente (como secadoras, aparatos de calefacción o calefactores de baño) tengan su propio acceso de aire exterior, o que estén apagados mientras el aparato está funcionando.
Suelo y paredes
El suelo sobre el cual se coloca el aparato debe tener una capacidad de carga suficiente. El peso del aparato se encuentra en el anexo "Especificaciones técnicas"

En la base, debajo del aparato y en las pa alrededor del aparato, no deben existir conductos eléctricos.

Los materiales inflamables situados bajo el aparato deben retirarse o protegerse con una placa de cemento de al menos 6 cm de gro

Las paredes inflamables cercanas al aparato deben ser protegidas con una pared de piedra de 10 cm como mínimo y 5 cm de aislamiento

Proteja las paredes no inflamables cercanas al aparato con 2,5 cm de aislamiento, como mínimo, para evitar la creación de fisuras.

Proteja los suelos inflamables instalando una placa ignífuga que los aíslé de la radiación té mica y de cenizas que puedan caer. Consulte el anexo "Distancia a materiales inflamables".

Mantenga siempre una distancia de seguridad entre el aparato y materiales inflamables tales como muebles.

Asegure suficiente ventilación alrededor de materiales inflamables, como una viga decorativa. Véase el anexo "Distancia a materiales" inflamables".

Las alfombras deben colocarse a una distancia mínima de 80 cm del fuego.

No ponga materiales inflamables a menos de 50 cm de las eventuales aberturas de salida convección.
Descripción del producto

text_image
no. ener 8 7 edes 6 ① ② ③ ⑤ ④ 09.20015.060
text_image
a nto. al 8 ér- 7 1 2 6 5 09-20020-183- Regulador de tiro secundario
- Puerta
ia. Moldura decorativa exterior - Tirador
- de Regulador de tiro principal
- Bloqueo
- Rejilla para el carbón
- Placas refractarias interiores

Características del aparato
El aparato viene provisto de una empuñadura suelta que se utiliza para abrir la puerta, también mada "mano fría".
El aparato viene provisto de una segunda empuñadura suelta que se utiliza para retirar el cajón de ceniza, la denominada "mano fría"; vea la siguiente imagen.

El aparato está provisto de dos conexiones adicionales para la conducir el calor de convección a otros espacios.
lla- El aparato está provisto de dos ventiladores integrados que impulsan la convección. La velocidad de giro de los ventiladores puede regularse mediante un regulador de velocidad. Este regulador de velocidad viene suministrado con el aparato.
Tanto el ventilador como el regulador se conectan a la red eléctrica; consulte el apartado "Conectar el ventilador a la red eléctrica".
El ventilador funciona con energía termostática, lo que significa que sólo entrará en funcionamiento cuando la chimenea haya alcanzado cierta temperatura, y que se apagará una vez que la chimenea se haya enfriado lo suficiente.
El aparato puede suministrarse con un marco exterior en el cual puede montar una moldura decorativa. Esta moldura puede adquirirse de manera opcional.
Si lo desea, puede cambiar la dirección de apertura de la puerta. El aparato viene con la puerta montada a la derecha. Para montar la puerta a la izquierda, necesitará un pestillo disponible opcionalmente. Las instrucciones para cambiar la dirección de rotación vienen suministradas con este pestillo.
El aparato es suministrado con un juego de conexión para la entrada de aire exterior.
El aparato no es apto para su uso continuado.
El insert dispone de un sistema de convección integrado. Por esta razón, para el montaje del aparato no será necesario construir un espacio de convección independiente ni instalar rejillas de ventilación para la convección.

El espacio situado entre el insert de hierro fundido y la cámara de convección hace la función de espacio de convección. El aire del ambiente se succiona en la parte inferior del aparato.
Este aire se conduce dentro del insert, donde se calienta. A continuación, el aire caliente situado en la parte frontal sale del espacio de convección por el orificio situado en la parte superior del insert.
Instalación
Preparación
Nada más recibir el aparato, compruebe que no tenga daños (por ejemplo, de transporte) y que no tenga defectos.

Si detecta daños o defectos en el aparato, no encienda el aparato todavía y póngase en contacto con su distribuidor.
Retire los componentes desmontables (placas refractarias interiores, base de fuego, salva-leña, tapa de la base de fuego y cajón cenicero) del aparato antes de instalarlo.

Quitando estos componentes desmontables, le será más fácil manipular y mover el aparato sin dañarlo.

Fíjese en la posición original de estos elementos antes de retirarlos, para que recuerde su posición después de la instalación.
-
Abra la puerta del aparato.
-
Retire primero las placas refractarias.


Las placas interiores de hierro protegen la 1 cámara de combustión y transmiten el calor al exterior.
Montar el asa
El aparato está provisto de una empuñadura suelta, también llamada "mano fría".
La forma de la mano fría depende del modelo del aparato. 4. R
Fije el asa de madera al reductor mediante el tornilfo M8x50 suministrado con el aparato; véase la siguiente imagen.

Para abrir la puerta vea la siguiente imagen.

- Desatornille el pestillo de la puerta.
- Desatornille el pasador de cierre de la jamba de la puerta.
- Extraiga los pasadores de las bisagras.

Tenga cuidado de sujetar la puerta; al retirar los pasadores es posible que esta se desprenda de manera inesperada.
- Retire la puerta del aparato.
150 Extraiga los anillos de la hoja de la bisagra y colóquelos en el lateral opuesto del aparato.
- Posicione la puerta sobre las bisagras y coloque los pasadores en las bisagras.
- Atornille el pestillo en el extremo opuesto de la puerta.
- Atornille el pasador en el extremo opuesto de la puerta.
Atención: Para ajustar el cierre de la puerta, consulte el capítulo "Mantenimiento".
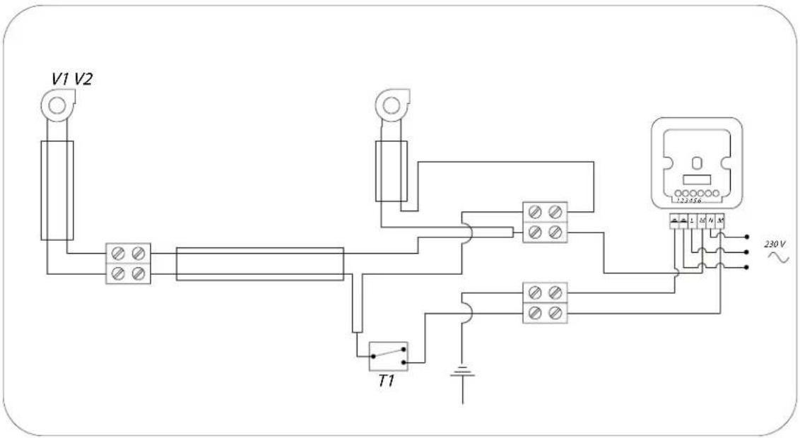
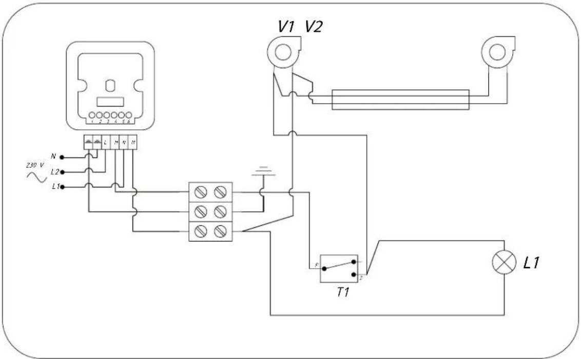
Conectar el ventilador a la red eléctrica
El insert viene suministrado con dos ventiladores incorporados y un regulador de velocidad suelto. Además, el aparato posee un interruptor térmico que enciende y apaga el ventilador cuando se alcanza una temperatura previamente determinada.
Es preciso conectar estos elementos a la red eléctrica siguiendo uno de los diagramas que se indican a continuación.

El diagrama de conexión varía según el modelo.

Haga realizar estas conexiones por un instalador profesional.
Cambiar la dirección de apertura de la puerta
Si lo desea, puede cambiar la dirección de apertura de la puerta. El aparato viene con la puerta montada a la derecha. Siga las instrucciones que se indican a continuación.
El insert está provisto de un cable trifásico.

El insert debe separarse de la red eléctrica mediante un interruptor omnipolar.

Asegúrese de crear una buena conexión a tierra.
Consulte el anexo 2 para ver diagramas ampliados.

Encastrado en una chimenea existente.
conexión en el cuello de conexión y fije la pieza de conexión levantando las dos pestañas situadas en la misma.
Para el encastrado del insert en una chimenea exis La siguiente figura ofrece un ejemplo de la colocación tente, siga las siguientes instrucciones: de un insert en una chimenea construida según las ins-
- Coloque el aparato a la altura adecuada, sobre una superficie lisa y nivelada.

Mantenga libre el cable del aparato.
- Si va a instalar un marco externo al aparato, instale las placas de fijación suministradas con el aparato a los laterales del mismo, pero sin atornillar completamente los tornillos; vea la siguiente imagen. El marco exterior queda fijado entre el aparato y las placas de fijación; vea la siguiente imagen.

-
Cierre la base de la chimenea con un material fugo.
-
Realice una abertura de 150 mm de diámetro en la base para el conducto de aire.
-
Centre la abertura de la base con el insert mediante el cuello de conexión.
-
Coloque el conducto de aire en la entrada. Asegúrese de que el tubo puede girarse hacia abaj para adaptarlo al cuello de conexión. Para ello, lice por ejemplo un tubo de longitud regulable.

text_image
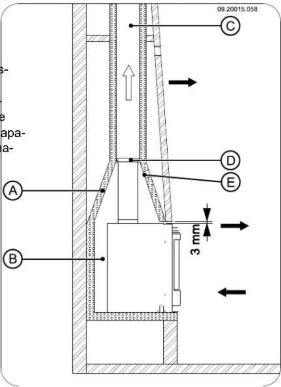
09.20015.058 C A B D E 3 mmA Chimenea existente
B Espacio de ventilación (mín. 15 mm)
C Conducto de humos existente
gní Material refractario o elemento de fijación
E Abertura para evitar la creación de presión
Empotrar en una nueva chimenea
La instalación del insert incluye dos elementos:
La colocación y conexión del insert uti-
Construir la chimenea alrededor del insert.

Si utiliza un tubo flexible de acero inoxidable: enrosque el tubo a la pieza de conexión suministrada con el aparato, coloque la pieza de

Colocación e instalación del ins Extracción del aire de convección
-
Coloque el aparato a la altura adecuada, sobre superficie lisa y nivelada.
-
Si va a instalar un marco externo al aparato, instale las placas de fijación suministradas con el aparato a los laterales del mismo, pero sin ator-
nillar completamente los tornillos; vea la siguiente. Retire las dos placas situadas sobre la cámara de imagen. El marco exterior queda fijado entre el apaeconvección golpeándolas ligeramente con un mar-rato y las placas de fijación; vea la siguiente ima- tillo. gen. 3. Monte los dos cuales de conexión auministredos

-
Asegúrese de que las paredes existentes están provistas del aislamiento necesario (vea el capítulo "Condiciones de la instalación"), y de que existe una distancia para el espacio de con-vección de al menos 15 mm.
-
El insert no debe soportar la albañilería. Si lo desea, puede utilizar un soporte, como por ejemplo una estructura. Entre el soporte y el aparato, deje al menos 3 mm de margen.
-
Conecte herméticamente el aparato a la chimenea.
-
Controle el tiro en la chimenea y el sellado de la conexión en el canal de salida de los gases residuales, haciendo un pequeño pero intenso fuego de prueba, de papel de periódico y leña fina sec

En caso de albañilería nueva, espere hasta que esta esté seca.
En aparato está provisto de dos conexiones adicionales para la conducir el calor de convección a otros espacios. En estos espacios es preciso instalar rejillas de salida del aire. Si desea utilizar esta función, proceda de la siguiente manera:
-
Retire las dos placas situadas sobre la cámara de apaconvección golpeándolas ligeramente con un mar- ma- tillo.
-
Monte los dos cuellos de conexión suministrados con su aparato con un diámetro de 125 mm en las aberturas existentes utilizando los tornillos M8x16 y las tuercas M8.
-
Enrosque el tubo flexible de 125 mm de diámetro a la abertura y llévelo hasta los lugares deseados.
-
Conecte la manguera flexible a las rejillas de salida de aire de los espacios.
Construcción de una chimenea nueva
En la chimenea disponga el espacio de convección. En este espacio, el aire debe poder moverse libremente. Debe poder succionarse aire para la combustión, y el aire calentado por el hogar (el aire de convección) debe circular libremente en el espacio a calentar; vea la siguiente imagen.
Durante la construcción de la chimenea, siga las normas de seguridad que se indican a continuación:
La parte superior de la chimenea debe estar herméticamente cerrada por medio de una placa de cierre ignífuga y de material refractario.
La placa de cierre debe estar nivelada y estar colocada, como mínimo, 30 cm debajo de la abertura de gas residual en el techo.
Si así lo desea, puede instalar una rejilla de salida adicional en la parte superior de la chimenea, inmediatamente debajo de la placa de cubierta.

No utilice materiales inflamables en el espacio destinado al insert, y evite la creación de puentes térmicos a consecuencia de la utilización de materiales conductores térmicos.

Siga las siguientes instrucciones para la construcción de la chimenea:
- Construya el pie de la chimenea.

Asegúrese de que la puerta de la chimenea puede girar libremente sobre el plato de la misma.
- Siga construyendo la chimenea hasta la campana

Asegúrese de que queden siempre unos 2 mm de margen entre el insert y la albañilería, para compensar la dilatación térmica del insert.
- Si así lo desea, puede revestir el interior de la menea con un aislante reflectante.

El revestimiento del interior del espacio destinado al insert previene la irradiación innecesaria de calor en muros externos y / o estancias contiguas. También evita daños del aislamiento térmico de doble pared.
- Siga construyendo la chimenea hasta la abertura A Chimenea
de gas residual en el techo.

El insert no debe soportar la albañilería. Use soporte un hierro, por ejemplo. Entre el sopor y el aparato, deje al menos 3 mm de margen
- Cierre el espacio destinado al insert con la placa de cubierta.
- Instale una rejilla de ventilación bajo la placa de cubierta para facilitar la ventilación del aparato.
- Haga una abertura sobre la placa de cierre para tar una eventual creación de presión.
La siguiente figura ofrece un ejemplo de la colocaci de un insert en una chimenea construida según las trucciones anteriores.
A Chimenea
B Material refractario o un elemento de fijación
C Cubierta
Material aislante (mín. 5 cm)
E Muro ignífugo
F Muro inflamable
^1 G Espacio de ventilación (mín. 15 mm)
H Techo ignífugo
I Echo inflamable
J Salida para el aire de convección
KEVÁislante (opcional)
L Suelo ignífugo
M Suelo inflamable
NhsOrificio para evitar el aumento de presión
O Tubo de conexión
P Aire de convección para otra estancia
Montaje del marco exterior
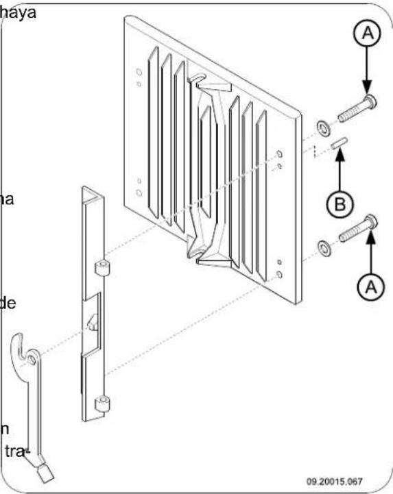
El aparato puede suministrarse con un marco exterior incluido de tres o cuatro caras. De manera opcional, también le suministramos un borde decorativo que se fija al marco exterior.
- Monte el marco exterior uniendo los lados mediante dos tornillos; vea la siguiente imagen.


- Monte la montura uniendo los lados con ayuda d' elemento de conexión, y fijelos atornillando los dos tornillos (A) al elemento de conexión; vea la siguiente imagen.

- Fije el marco (ya montado) sobre el aparato des- del lizando las muescas de las piezas verticales entre el aparato y las placas de fijación; vea la siguiente imagen.

- Centre la montura en el marco exterior; vea la siguiente imagen.

- Coloque tres pletinas de soporte en cada uno del los lados del marco, entre la moldura y el marco exterior; vea la siguiente imagen.

- Vuelva a colocar los elementos desmontados en el aparato.
- Asegúrese que la nueva chimenea está suficientemente seca, antes de encenderla.
No encienda nunca el aparato sin las placas refractarias.
El aparato ya está listo para su uso.
Uso
Primer uso
Cuando utilice el aparato por primera vez, déjelo encendido a fuego lento durante algunas horas. De este modo la pintura anticalórica se endurecerá. Esto
podría producir algo de humo y olores desagradable Ventile la habitación abriendo puertas y ventanas.
Combustible
El aparato está indicado para encenderse con madera natural (serrada, cortada y suficientemente seca), briquetas de lignito y carbón de antracita.
No utilice otros combustibles, ya que éstos podrían dañar seriamente el aparato.
Los siguientes combustibles no deben utilizarse por contaminar el medio ambiente y además por ensucía considerablemente la chimenea, pudiendo llegar a o sionar un incendio en la chimenea:
Maderas tratadas como maderas de desecho, maderas pintadas, maderas impregnadas, maderas preservadas, multiplex y aglomerado.
Plástico, papel usado y residuos domésticos.
Madera
Utilice preferentemente maderas duras como roble, haya, abedul y madera de árboles frutales. Esta madera quema más lentamente y con menos llama. Las maderas de coníferas contienen más resina, queman más rápido y producen más chispas.
Utilice maderas secas con un porcentaje máximo de humedad del 20%. Para ello, las maderas deb dejarse secar al menos 2 años.
Tale y corte las maderas cuando todavía están verdes. La madera verde se corta más fácilmente, mientras que la madera cortada seca mejor y más rápido. Almacene la madera bajo techo, en un lugar donde circule libremente el viento.
No utilice maderas húmedas. Las maderas húmedas no producen calor debido a que la energía se pierde al evaporarse la humedad. Esto produce acumulaciones de hollín en la puerta del aparato y en la chimenea. El vapor de agua se condensa en el aparato y se filtra al exterior a través de las juntas pudiendo ocasionar manchas negras en el suelo. Además, el vapor de agua podría condensarse en la chimenea, formando creosota. La creosota es una sustancia muy inflamable y puede originar incendios en la chimenea.
^e Briquetas de lignito
Las briquetas de lignito tienen más o menos las mismas propiedades calóricas que la leña.
Procura hacer una buena base de carbón vegetal, antes de alimentar con briquetas de lignito.
Para encender la chimenea, siga las instrucciones indicadas en el párrafo "Encendido".
Carbón de antracita
El carbón de antracita se divide en categorías según sus características, algunas establecidas legalmente, tales como el porcentaje de substancias volátiles. El contenido de ceniza del carbón de antracita fluctúa entre el 3% y el 13%. Cuanto menor sea el contenido de ceniza, mayor será el valor calórico y menor la frecuencia con la que tenga que retirar la ceniza.
▶ Use, preferentemente, el carbón de antracita de la categoría A, con un contenido bajo de ceniza.
Utilice el formato recomendado de 12/22 o 20/30.
Para encender la chimenea, siga las instrucciones indicadas en el párrafo "Encendido".
Encendido
Compruebe que la chimenea tiene tiro suficiente
encendiendo una bola de papel de periódico sobre el deflector de humos. Una chimenea fría tendrá un tiro insuficiente, lo que ocasiona la entrada de humo en la habitación. Encendiendo el aparato del modo que le ver indicamos a continuación, evitará este problema.
ás Coloque dos leños de tamaño medio-grande cru- ugarzados entre sí.
-
Coloque sobre los leños dos capas de leña más fina de forma entrecruzada.
-
Coloque una pastilla de encendido bajo la capa acu- en el inferior de leña y enciéndala siguiendo las instrucciones que vienen en el paquete de la misma.

- Cierre la puerta del aparato y abra la entrada de aire principal y la entrada de aire secundaria del aparato; véase la siguiente imagen.
- Deje que el fuego arda intensamente hasta que quede una capa de brasas vivas. Introduzca la siguiente carga de leña en el aparato; consulte apartado "Alimentar con leña".
Regulación de las tomas de aire
El aparato tiene dos tomas de aire. La toma de aire principal se encuentra debajo de la puerta y regula el aire bajo la parrilla. Encima de la puerta se encuentra la toma de aire secundario, que regula el aire delante del cristal (sistema air-wash).
La toma de aire se puede regular con la mano fría. La forma de la mano fría depende del modelo del aparato
Para conocer la posición abierta y cerrada de la toma de aire, véase la siguiente imagen.

Una vez que haya encendido el fuego tal y como se especifica en las instrucciones:
- Abra despacio la puerta del aparato.
- Reparta las brasas por la base de fuego de manera homogénea.
- Coloque varios leños sobre las brasas.

Apilado de madera suelta

Apilando los leños de manera suelta, la leña se que mucho más rápido, ya que el oxígeno puede llegar a todas las partes de la madera. Utilice un apilamiento suelto si quiere que el fuego prenda rápidamente.
Apilamiento compacto

Apilando los leños de manera compacta, la leña se quema más lentamente, ya que el oxígeno no puede llegar a todas las áreas de la madera. Utilice un apilamiento compacto si desea mantener el fuego encendido durante mucho tiempo.
- Cierre la puerta del aparato.
- Cierre la entrada de aire principal y deje abierta la entrada secundaria.

Llene el aparato hasta un máximo de un tercio de su capacidad.
Alimentar con briquetas de lignito
Las briquetas de lignito arden de manera similar a la madera. Asegúrese de que circula suficiente aire debajo el fuego manipulando la entrada de aire principal. Para más información, consulte el apartado "Alimentar con leña".
Quemar briquetas de lignito produce una gran cantidad de cenizas. Elimine el exceso regularmente. Consulte el apartado "Eliminación de cenizas" para ver las instrucciones.

Para obtener información relativa a las propiedades y al uso de briquetas de lignito: consulte con su proveedor de briquetas de lignito o véase el embalaje de las briquetas de lignito.
Una vez que haya seguido las instrucciones para el encendido:
- Abra despacio la puerta del aparato.
- Reparta las brasas por la base de fuego de manera homogénea.
- Coloque las briquetas de lignito sobre las brasas vivas.
- Cierre la puerta.
Alimentar con carbón de antracita
Utilice un recipiente para almacenar el carbón de antracita; vea la siguiente imagen. Este recipiente puede adquirirse de manera opcional.

text_image
de pi- en- la 09.20015.070

Cuando alimente con carbón de antracita, cierre siempre el regulador de tiro secundario.

Abra la parrilla tirando hacia del tirador.
Regulación del aire de combustión
El aparato dispone de varios elementos para la regu-
Una vez que haya seguido las instrucciones para elación del aire.
encendido:
La toma de aire principal regula la entrada del aire bajo
-
Abra completamente el regulador de tiro principalía rejilla.
-
Abra despacio la puerta del aparato.
-
Reparta las brasas por la base de fuego de manera homogénea.
-
Distribuya una pala de carbón sobre las brasas vivas y espere a que los carbones ardan, antes poner la siguiente pala.
-
Agregue ahora más carbón.
La toma de aire secundario regula la entrada del aire a través del cristal (air-wash).
Consejos

Asegúrese de que el fuego no se apague por poner de una vez demasiado carbón.

Ha rellenado al máximo cuando la brasa del rellenado anterior aún está un poco visible.
-
Cierre la puerta.
-
Deje arder los carbones durante 20 a 30 minutos y regule la entrada de aire utilizando la entrada de aire principal.
-
Sacuda la parrilla utilizando el tirador hasta que los carbones incandescentes caigan al cajón ceni-cero.
-
Abra completamente la entrada de aire principal.
-
Vuelva a introducir carbón hasta alcanzar la carga máxima del aparato.

Asegúrese de que la parrilla esté abierta tirando del tirador.
- Transcurridos algunos minutos, vuelva a colocar la entrada de aire en la posición deseada.

Si la rejilla para el carbón o la parrilla se vuelven incandescentes, esto indica que el fuego es demasiado intenso. En consecuencia, la parrilla y/o la rejilla para el carbón podrían defo marse.

No deje la puerta abierta mientras el fuego esté encendido

Encienda un fuego vivo de vez en cuando.
Si tiene el aparato calentando a fuego lento durante mucho tiempo, podrían formarse depósitos de alquitrán y creosota dentro de la chimenea. La carbonilla y la creosota son materiales muy inflamables. Si se producen demasiados sedimentos de estos materiales, pueden inflamarse si se alcanzan repentinamente altas temperaturas. Encendiendo de vez en cuando fuegos intensos, se eliminan los posibles restos de carbonilla y creosota. Además si el fuego es demasiado débil puede acumularse alquitrán en el vidrio y en la puerta del aparato.
Por consiguiente, en caso de una temperatura exterior suave es preferable dejar que el aparato caliente a fuego fuerte durante unas horas que dejarlo calentar a fuego lento durante mucho tiempo.
Regule la entrada de aire con la entrada de aire secundaria.

La entrada de aire secundaria airea no sólo el fuego, sino el cristal del aparato, evitando así la acumulación de suciedad.
▶ Abra la toma de aire principal si la entrada de aire por la secundaria es insuficiente, o si quiere avivar defor el fuego.
Introducir regularmente pequeñas cantidades de leña es mejor que agregar muchos bloques al mismo tiempo.

Introducir regularmente pequeñas cantidades de briquetas de lignito o carbón de antracita es mejor que colocarlas de una vez.
Extinción del fuego
Deje de añadir combustible y que el fuego se vaya apagando por sí mismo. No intente sofocar el fuego reduciendo la entrada de aire: podrían liberarse gases tóxicos. Deje que el fuego se consuma por sí mismo. Vigile el fuego hasta que éste esté bien apagado. Una vez que el fuego se haya extinguido completamente, podrá cerrar todas las entradas de aire.

- Vuelva a colocar el cajón cenicero en su sitio y cierre la puerta del aparato.
Eliminar la ceniza
Cuando se quema leña en el aparato, siempre que una pequeña cantidad de cenizas. Este lecho de czas no solo es un buen aislante para la base de del aparato, sino que además favorece la combust. Así que puede dejar una capa fina de cenizas en suelo del aparato.
Después de quemar briquetas de lignito y carbón de antracita queda relativamente mucha ceniza. Elimine de forma periódica el exceso de cenizas.
Nieblas y brumas
Las nieblas y las brumas en el exterior pueden difi- fuego citar la salida de los gases inflamables por la chi- menea. Éstas pueden hacer que el humo baje por el el conducto y ocasione olores. En condiciones de nie- blas o brumas, le recomendamos que no utilice el apa-
grato a menos que sea realmente necesario.
Posibles problemas

La ceniza nunca puede tocar la parte inferior Consulte el anexo "Diagnóstico de problemas" para la parrilla. La parrilla se calienta en exceso y funcionar posibles problemas durante la utilización daña. del aparato.
No obstaculice la entrada de aire situada en el suelo de la chimenea ni deje que se acumule ceniza en la parte posterior de una placa interior. Para ello, elimine de forma periódica el exceso de cenizas.
Mantenimiento
Siga las instrucciones de mantenimiento que se describen en esta sección para mantener su aparato en buen estado.
-
Abra la puerta del aparato.
-
Utilice el tirador para sacudir el exceso de ceniz y hacer que esta caiga al cajón cenicero.
^a Chimenea
- Retire el cajón cenicero con la mano fría suministrada y vacíe el cajón cenicero; vea las siguientes dos imágenes.
En muchos países, la ley obliga a revisar y llevar un mantenimiento regular de las chimeneas.

Al principio de la temporada de calefacción: haga limpiar la chimenea por un deshollinador cualificado.
Durante la temporada de calefacción y si la chimenea no se ha utilizado durante un largo período de tiempo: haga que un técnico cualificado compruebe los niveles de hollín.
Al finalizar la temporada de calefacción: bloquee la chimenea con una bola de papel de periódico.

Limpieza y mantenimiento periódico.

No limpie el aparato cuando éste todavía est caliente.
Limpie el exterior del aparato con un paño seco no suelte pelusas.
Al final de la temporada de fríos, limpie muy bien interior del aparato:
Para ello, retire primero las placas refractarias. el capítulo "Instalación" encontrará instrucciones sobre cómo extraer y colocar las placas refractarias.
También puede limpiar los conductos de aire.
Retire y limpie el deflector de humos de la parte _5 superior del aparato.
Comprobar las placas refractarias
Las placas refractarias son consumibles sometidos un gran desgaste. Las placas refractarias de vermiculita son frágiles. Tenga cuidado de no golpear placas refractarias con los leños. Revise regularmente las placas refractarias y sustitúyalas si fue necesario.
En el capítulo "Instalación" encontrará instrucciones sobre cómo extraer y colocar las plac refractarias.

Las placas refractarias aislantes de vermiculita ^2 o chamota pueden mostrar pequeñas grietas sin que esto tenga un efecto adverso en su funcionamiento.

Las placas de hierro interiores durarán mucho tiempo si limpia las cenizas acumuladas en su parte posterior con regularidad. Si no retira la acumulación de ceniza de la placa ésta no 3, podrá proyectar el calor correctamente y puede llegar a deformarse o rajarse.

No encienda nunca el aparato sin las placas refractarias.
Desmontar la válvula y el deflector de llama
Tanto la válvula como el deflector de llama son des- ámontables. Para desmontar el deflector de llama, pri- mero ha de retirar la válvula y el vástago de la válvula.
que
1. Abra la puerta del aparato.
2. Para finalizar, gire ligeramente la válvula y des-
el lícela sobre el deflector de llama de modo que
ambas se suelten.
Eô. Extraiga la válvula y el vástago a través de la puerta del aparato.
4. Desatornille la lámina de apoyo aflojando la tuerca M8. La lámina de apoyo está situada junto a la placa superior del aparato en su parte central.
25. Levante el deflector de llama situado en la parte delantera, desplácelo hacia afuera y extraiga el deflector del aparato.
Atención: Siga las instrucciones anteriormente descritas en orden inverso para montar la válvula y el deflector de llama, y antes de proceder al encendido del aparato.
Limpieza del cristal
Si el cristal se limpia correctamente, la suciedad tarda más en acumularse. Proceda de la siguiente manera:
- Quite el polvo y la suciedad con un paño seco.
- Limpie el cristal con un limpiador especial para cristales de estufa:
fun ^a . Extienda el limpiador con una esponja de cocina, frote la superficie del cristal y déjelo actuar unos minutos.
b. Retire la suciedad con un paño húmedo o papel de cocina. - Vuelva a limpiar el cristal con su producto limde piacristales habitual.
- Seque el cristal con un paño seco o con papel de cocina.
No utilice productos abrasivos o corrosivos para limpiar el cristal.
Utilice siempre guantes para proteger sus manos.


En caso de que el cristal de su aparato se haya roto o agrietado, deberá reemplazar el cristal antes de volver a utilizar el aparato.

No deje restos de limpiador de cristales para estufas entre el cristal y la puerta de hierro.
Engrasado
Aunque los componentes de hierro ya son de alguna manera autoengrasantes, debe lubricar las partes móviles con cierta regularidad.
Lubrique las partes móviles (como sistemas de guiado, pasadores de bisagra, pestillos y tomas de aire) con grasa especial para chimeneas, que encontrará en establecimientos especializados
Reparar daños en el acabado
Puede reparar pequeños daños en la pintura con un aerosol de pintura anticalórica que podrá adquirir a vés su proveedor habitual.

text_image
haya a de n tra- 09.20015.067Comprobación del sellado
Compruebe que la junta de sellado de la puerta cierra correctamente. Este material se deteriora con el tiempo y ha de cambiarse regularmente.
Compruebe que el aparato no tenga fugas de aire. Selle posibles rendijas con masilla para estufas. 3.

Deje que la masilla se endurezca completamente antes de encender el aparato, si la humedad de la masilla se evaporará y la volverá a abrirse.
- Abra la puerta del aparato; la bisagra de la jamba queda plenamente accesible.
2 el Desenrosque las dos tuercas de fijación de la bisagra de la jamba. Las tuercas de fijación están situadas en el interior de la chimenea.
-
Deslice la bisagra hasta la posición deseada.
-
Utilice los tornillos de ajuste para posicionar la no bisagra en la anchura del aparato.
-
Vuelva a apretar las dos tuercas de fijación y compruebe que la puerta cierra correctamente.
Ajustar puerta
Compruebe que la puerta cierra correctamente y ajuste la hoja de la bisagra si fuera necesario; vea la siguiente imagen.

Anexo 1: Especificaciones técnicas
Modelo 2200 / 2210 / 2220 / 2020
| Modelo 2200 2210 2220 2020 | ||||
| Potencia nominal 8 kW 8 kW 8 kW 7 | kW | |||
| Conexión de la chimenea (diámetro) | 150 mm 150 mm | 150 mm | 150 mm | |
| Peso | 140 kg | 175 kg | 150 kg | 130 kg |
| Combustible recomendado | Leña | Leña | Leña | Leña |
| Características combustible, longitud máx. de la leña | 50 cm | 50 cm | 50 cm | 40 cm |
| Conexión eléctrica | 230 V, 50 Hz, 0,5 A | |||
| Combustible | Leña | Briquetas de lignito | Carbón de antra-cita |
| Caudal másico de gases residuales | 7,7 g/s | 8,9 g/s | 7,8 g/s |
| Aumento de la temperatura medido en sección de medición | la 295 K | 289 K | 272 K |
| Temperatura medida en la salida del ap-rato | 340 °C | - | - |
| Tiro mínimo | 14 Pa | 14 Pa | 14 Pa |
| Emisiones de CO (13% _2 ) | 0,10 % | 0,06 % | 0,04 % |
| Emisiones de NOx (13% _2 ) | 106 mg/Nm ^3 | - | - |
| Emisiones de CnHm (13% _2 ) | 51 mg/Nm ^3 | - | - |
| Emisión de partículas | 31 mg/Nm ^3 | - | - |
| Rendimiento | 78,3 % | 75,4 % | 76,4 % |
Modelo 2500 / 2510 / 2520 / 2620
| Modelo 2500 2510 2520 2620 | ||||
| Potencia nominal 10 kW 10 kW 10 kW 10 kW | 10 kW | |||
| Conexión de la chimenea (diámetro) 150 mm 150 mm 150 mm 150 mm | ||||
| Peso 150 kg 180 kg 160 kg | 160 kg | |||
| Combustible recomendado | Leña | Leña | Leña | Leña |
| Características combustible, longitud máx. de la leña | 50 cm | 50 cm | 50 cm | 50 cm |
| Conexión eléctrica | 230 V, 50 Hz, 0,5 A | |||
| Combustible | Leña | Briquetas de lignito | Carbón de antra-cita |
| Caudal másico de gases residuales | 9,2 g/s | 9,7 g/s | 8,1 g/s |
| Aumento de la temperatura medido en la sección de medición | 264 K | 318 K | 314 K |
| Temperatura medida en la salida del aparato | 320 °C | - | - |
| Tiro mínimo | 14 Pa | 14 Pa | 14 Pa |
| Emisiones de CO (13% O_2 ) | 0,10 % | 0,09 % | 0,05 % |
| Emisiones de NOx (13% O_2 ) | 52 mg/Nm ^3 | - | - |
| Emisiones de CnHm (13% O_2 ) | 21 mg/Nm ^3 | - | - |
| Emisión de partículas | 16 mg/Nm ^3 | - | - |
| Rendimiento | 80,0 % | 76,4 % | 79,0 % |
Anexo 2: Diagramas de conexión
Significado de las indicaciones contenidas en el diagrama:
T1 interruptor térmico
V1 ventilador
V2 ventilador
L1 lámpara
R1 resistencia
S1 conmutador de 2 posiciones
Modelo 2020

Modelo 2220, modelo 2520 y modelo 2620

Modelo 2210 y modelo 2510

Modelo 2200 y modelo 2500

Los modelos 2200 y 2500 tienen un conmutador de dos posiciones para regular la velocidad, y nen función de termostato.
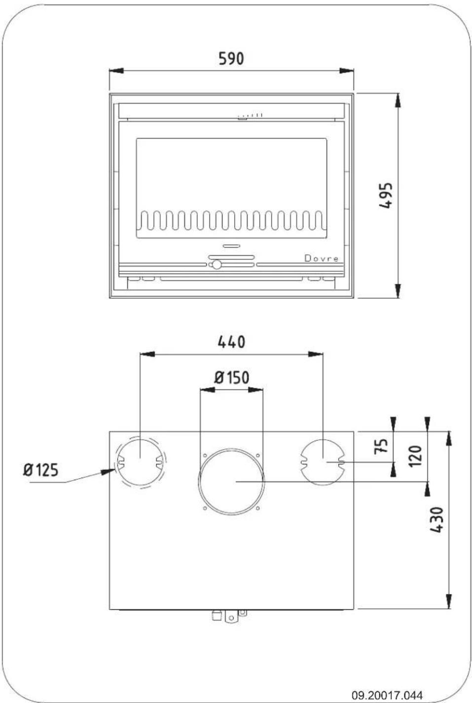
Anexo 3: Medidas
2020

text_image
590 495 Dovre 440 Ø150 Ø125 75 120 430 09.20017.0442200

text_image
595 560 670 450 Ø150 200 110 Ø125 450 09.20017.043
2210

text_image
730 550 Dovre 630 495 Ø125 Ø150 85 120 430 09.20017.0152220

text_image
690 540 Dovre 540 Ø125 Ø150 75 120 430 09.20017.0142500

text_image
655 620 670 450 Ø150 200 110 Ø125 450 09.20017.042
2510

text_image
Dovre 610 730 630 495 Ø125 Ø150 85 120 430 09.20017.0162520

text_image
690 600 Dovre 540 Ø125 Ø150 75 120 430 09.20017.0122520BS

text_image
480 690 600 540 125 75 Ø125 Ø150 430 485 09.20017.0132620SC

text_image
690 600 540 75 120 450 430 Ø25 Ø150 09-20020-179Anexo 4: Distancia a materiales inflamables
Espacio mínimo de ventilación fuera del campo de acción

text_image
MIN 1 CM MIN 1 CM 09.20015.048Medidas placa ignífuga en centímetros

text_image
09.20018.046 V S
text_image
09.20015.047Medidas mínimas de la placa de apoyo ignífuga
$$ V > H + 3 0 > 6 0 $$
$$ S > H + 2 0 > 4 0 $$
Anexo 5: Diagnóstico de problemas
| Problema | ||||||
| ● | Leña no termina de arder | |||||
| ● | No da suficiente calor | |||||
| ● | Retorno de humo cuando se agrega combustible | |||||
| ● | El fuego arde demasiado fuerte, no se puede regular bien. | |||||
| ● | El vidrio se opaca | |||||
| posible causa posible solución | ||||||
| ● | ● | ● | ● | Tiro insuficiente | Una chimenea fría produce casi siempre un tiro insuficiente. Siga las instrucciones sobre el encendido en el capítulo "Uso"; abra una ventana. | |
| ● | ● | ● | ● | Leña demasiado húmeda Utilice siempre leña con una humedad máxima del 20%. | ||
| ● | ● | ● | ● | Leños demasiado grandes | Utilice trozos de leña pequeños. Utilice trozos de leña cortados con un contorno máximo de 30 cm. | |
| ● | ● | ● | ● | ● | La leña no está bien apilada | Coloque la leña de tal manera que el aire pueda pasar entre los bloques (apilamiento abierto, véase "alimentar con leña"). |
| ● | ● | ● | ● | Funcionamiento insuficiente de la chimenea | Asegúrese de que la chimenea cumpla todos los requisitos: 4 metros de alto como mínimo, diámetro adecuado, bien aislada, interior liso, sin demasiados recovecos, sin obstrucciones (nidos de pájaro, depósito excesivo de hollín), herméticamente cerrada (sin fisuras). | |
| ● | ● | ● | ● | La salida de la chimenea no es correcta | La salida debe estar situada por encima de la superficie del tejado y no tener cerca elementos que la obstruyan. | |
| ● | ● | ● | ● | ● | Tomas de aire en posición incorrecta | Abra completamente lasentradas de aire. |
| ● | ● | ● | ● | La conexión entre el aparato y la chimenea no es correcta | La conexión debe estar herméticamente cerrada. | |
| ● | ● | ● | ● | Presión mínima en el espacio donde encuentra el aparato | seApague los sistemas de extracción de aire | |
| ● | ● | ● | ● | Suministro insuficiente de aire fresco | Cree una corriente de aire fresco, por ejemplo utilizando una toma de aire exterior. | |
| ● | ● | ● | ● | ¿Condiciones climáticas adversas? Inversión térmica (cambio de dirección en la corriente de aire dentro de la chimenea debido a las elevadas) | En los casos de inversión térmica, desaconsejamos el uso del apa- strato. Si fuera necesario, instale una caperuza en la chimenea. | |
| ● | Corrientes en la habitación | Evite las corrientes de aire en la habitación; no instale el aparato en las cercanías de puertas o de fuentes de aire caliente. | ||||
| ● | Las llamas tocan el cristal | Evite poner losleños demasiado cerca del cristal. Cierre un poco más el acceso de aire principal | ||||
| ● | El aparato tiene fugas de aire Compruebe la junta de sellado de la puerta y las juntas del aparato. | |||||
Índice
A
Abrir
cajón cenicero.22
Acabado
moldura 16
advertencia
condiciones de seguro 9
Advertencia
limpiador de cristales de estufa.24.
Agregar combustible
retorno de humo.40
Alfombras .1.1
Alimentar
briquetas de lignita.20......
Almacenaje de madera
18
Alquitrán
Apilado de leños
Aumento de la temperatura
sección de medición 25-26
Aviso
cristal roto o agrietado 9, 24
fuego de chimenea.... 21
incendio de la chimenea 18
incendio en la chimenea....9
materiales inflamables 9
normativas 9
placas refractarias 17
superficie caliente.... 9
ventilación 9-10
B
Bisagra
ajustar 24
Briquetas de lignito
Bruma, no encender.
C
Cajón cenicero
abrir 22
Calor, insuficiente.
Capacidad de carga del suelo
Caperuza
Caperuza sobre chimenea
10
Carbón
contenido de ceniza.... 18
Carbón de antracita
18
Chimenea
altura 10
condiciones 10
conexión a....15
diámetro de conexión.... 25-26
mantenimiento 22
Colocación
medidas 30
Combustible
adecuado 18
agregar 21
briquetas de lignito 18.
cantidad necesaria.... 22
carbón de antracita 18
lignito 18
llenado 20
madera 18
no apto 18
rellenar 22
Combustible adecuado.
3
Combustibles no aptos.
8
Condiciones climatológicas, no encender.... 22
Conexiones
medidas 30
Convección
espacios externos 12, 15
extracción 12, 15
Creosota
[Non-Text]
Cristal
limpieza 23
opacamiento 40
D
Deflector de llama
montar 23
Dirección de apertura
cambiar 12
E
Eliminado de cenizas
22
Eliminar
cenizas 22
Eliminar cenizas.
2
lignito 20
Emisión de partículas.
25-26

Encendido 18-19
agregar combustible.20....
briquetas de lignito 20....
calor insuficiente..22,.40......
carbón de antracita 20
el aparato no se puede regular..bien.40.
el fuego arde demasiado fuerte 40.....
introducir combustible.19....
introducir el combustible 21
Engrasado .24....
Entrada de aire principal.... 19
Entrada de aire secundaria..19....
Entradas de aire 19
Espacio de convección placa de cierre 15
Extinguir el fuego.... 22
Extracción calor de convección.... 12, 15
F
Fuego encendido .... 18 extinción .... 22
Fuego de encendido.... 18
Fuga de aire.... 24
G
Gas residual temperatura 5,7
Gases caudal másico 25-26
Grasa para engrasado.... 24
H
Hierro placas interiores.... 13 refractario.... 13
Humo en el primer usa.... 17
|
Introducir el combustible.... 21
J
Junta de sellado de puerta.... 24
L
Laca 17
Leña no termina de arder.40....
Leña menuda 40
Lignito cenizas 20 encendido 20
Limpiador de cristales de estufa.... 23
Limpieza aparato 23 cristal 23
Limpieza de la chimenea 22
M
madera 18
Madera almacenado....18 húmeda....18 secar....18 tipos adecuados....18
Madera de coníferas.... 18
Madera húmeda.... 18
Mantenimiento chimenea....22 engrasado....24 limpieza cristal....23 limpieza del aparato....2 placas refractarias....25 sellado....24
Marco montaje 16
Materiales inflamables distancia a 39
Medidas 30
Moldura montaje ....16
N
Niebla, no encender.... 22
Nivel de llenado máximo del aparato.... 20
0
Oxigenación del fuego 21
P
Paredes seguridad contra incendios.... 11
Peso 25-26

Placa de cierre
espacio de convección.15....
Placas interiores
hierro .13....
Placas refractarias
aviso 17....
mantenimiento .23.
Potencia nominal.22,.25-26......
Prevención fuego de chimenea 21.
Puerta
ajustar 24
cambiar dirección de apertura.... 12
cierre 24
junta de sellado 24
R
Regulación aire.... 21
Regulación aire de combustión.21.
Regular entrada de aire.... 21
Rejilla de ventilación 10
Rellenar
briquetas de lignito 22
carbón de antracita.... 22
Rellenar combustible 22
Rendijas en el aparato.... 24
Rendimiento 5, 7, 25-26
Reparar daños en el acabado.... 24
Retorno de gases....9
Retorno de huma.40....
S
Secado de la madera.... 18
Seguridad contra incendios
distancia a materiales inflamables.... 39
muebles 11
paredes 11
suelo 11
Solución de problemas.... 22, 40
Suelos
capacidad de carga.... 11
seguridad contra incendios.... 11
Suministro de aire exterior.... 10
T
Temperatura 25-26
Tiro 25-26
Toma de aire exterior
conexión a.... 15
U
Uso continuo.... 12
V
Válvula
montar 23
Ventilación 10
regla de tres.... 10
Ventilador
eléctrico 12
termostático 12
Vidrio
limpieza 23
Vidrios
opacamiento 40
Contenuto
Introduzione 3
ManualFácil