EHE 932 000 E - Other kitchen appliances AMICA - Free user manual and instructions
Find the device manual for free EHE 932 000 E AMICA in PDF.
Download the instructions for your Other kitchen appliances in PDF format for free! Find your manual EHE 932 000 E - AMICA and take your electronic device back in hand. On this page are published all the documents necessary for the use of your device. EHE 932 000 E by AMICA.
USER MANUAL EHE 932 000 E AMICA
CARACTERISTIQUE DU PRODUIT
The cooker is exceptionally easy to use and extremely efficient. After reading the instruction manual, operating the cooker will be easy.
Before being packaged and leaving the manufacturer, the cooker was thoroughly checked with regard to safety and functionality.
Before using the appliance, please read the instruction manual carefully.
By following these instructions carefully you will be able to avoid any problems in using the appliance.
It is important to keep the instruction manual and store it in a safe place so that it can be consulted at any time.
It is necessary to follow the instructions in the manual carefully in order to avoid possible accidents.
Caution!
Do not use the cooker until you have read this instruction manual.
The cooker is intended for household use only.
The manufacturer reserves the right to introduce changes which do not affect the operation of the appliance.
Warning: The appliance and its accessible parts become hot during use. Care should be taken to avoid touching heating elements. Children less than 8 years of age shall be kept away unless continuously supervised.
This appliance can be used by children aged from 8 years and above and persons with reduced physical, sensory or mental capabilities or lack of experience and knowledge if they have been given supervision or instruction concerning use of the appliance in a safe way and understand the hazards involved. Children shall not play with the appliance. Cleaning and user maintenance shall not be made by children without supervision.
Warning: Unattended cooking on a hob with fat or oil can be dangerous and may result in fire.
NEVER try to extinguish a fire with water, but switch off the appliance and then cover flame e.g. with a lid or a fire blanket.
Warning: Danger of fire: do not store items on the cooking surfaces.
Warning: If the surface is cracked, switch off the appliance to avoid the possibility of electric shock.
During use the appliance becomes hot. Care should be taken to avoid touching heating elements inside the oven.
Accessible parts may become hot during use. Young children should be kept away.
SAFETY INSTRUCTIONS
Warning: Do not use harsh abrasive cleaners or sharp metal scrapers to clean the oven door glass since they can scratch the surface, which may result in shattering of the glass.
Warning: Ensure that the appliance is switched off before replacing the lamp to avoid the possibility of electric shock.
You should not use steam cleaning devices to clean the appliance.
Danger of burns! Hot steam may escape when you open the oven door. Be careful when you open the oven door during or after cooking. Do NOT lean over the door when you open it. Please note that depending on the temperature the steam can be invisible.
Always keep children away from the cooker.
While in operation direct contact with the cooker may cause burns!
- Ensure that small items of household equipment, including connection leads, do not touch the hot oven or the hob as the insulation material of this equipment is usually not resistant to high temperatures.
- Do not leave the cooker unattended when frying. Oils and fats may catch fire due to overheating or boiling over.
- Do not allow the hob to get soiled and prevent liquids from boiling over onto the surface of the hob. This refers in particular to sugar which can react with the ceramic hob and cause irreversible damage. Any spillages should be cleaned up as they happen.
- Do not place pans with a wet bottom on the warmed up heating zones as this can cause irreversible changes to the hob (irremovable stains).
- Use pans that are specified by the manufacturer as designed for use with a ceramic hob.
- If any defects, deep scratches, cracks or chips appear on the ceramic hob, stop using the cooker immediately and contact the service centre.
- Do not switch on the hob until a pan has been placed on it.
- Do not use pans with sharp edges that may cause damage to the ceramic hob.
- Do not look directly at the halogen heating zones (not covered by a pan) when they are warming up.
- Do not put pans weighing over 15kg on the opened door of the oven and pans over 25kg on the hob.
- Do not use harsh cleaning agents or sharp metal objects to clean the door as they can scratch the surface, which could then result in the glass cracking.
- Do not use the cooker in the event of a technical fault. Any faults must be fixed by an appropriately qualified and authorised person.
- In the event of any incident caused by a technical fault, disconnect the power and report the fault to the service centre to be repaired.
- Unless properly supervised by caretakers or upon thorough studies of the operating manual, the appliance must not be operated by persons (including children) of limited physical or psychical abilities, these of limited technical expertise, or unfamiliar with the equipment.
- Never allow children to remain unattended near the cooktop nor to play with the control panel.
- The appliance has been designed only for cooking. Any other use (for example for heating) does not comply with its operating profile and may cause danger.

Using energy in a responsible way not only saves money but also helps the environment. So let's save energy! And this is how you can do it:
- Use proper pans for cooking.
Pans with thick, flat bases can save up to 1/3 on electric energy. Remember to cover pans if possible otherwise you will use four times as much energy!
- Match the size of the saucepan to the surface of the heating plate.
A saucepan should never be smaller than a heating plate.
- Ensure heating plates and pan bases are clean.
Soils can prevent heat transfer – and repeatedly burnt-on spillages can often only be removed by products which cause damage to the environment.
- Do not uncover the pan too often (a watched pot never boils!).
Do not open the oven door unnecessarily often.
Switch off the oven in good time and make use of residual heat.
For long cooking times, switch off heating zones 5 to 10 minutes before finishing cooking. This saves up to 20% on energy.
Only use the oven when cooking larger dishes.
Meat of up to 1kg can be prepared more economically in a pan on the cooker hob.
Make use of residual heat from the oven. If the cooking time is greater than 40 minutes switch off the oven 10 minutes before the end time.
Make sure the oven door is properly closed.
Heat can leak through spillages on the door seals. Clean up any spillages immediately.
- Do not install the cooker in the direct vicinity of refrigerators/freezers.
Otherwise energy consumption increases unnecessarily.

During transportation, protective packaging was used to protect the appliance against any damage. After unpacking, please dispose of all elements of packaging in a way that will not cause
damage to the environment.
All materials used for packaging the appliance are environmentally friendly; they are 100% recyclable and are marked with the appropriate symbol.
Caution! During unpacking, the packaging materials (polythene bags, polystyrene pieces, etc.) should be kept out of reach of children.

Old appliances should not simply be disposed of with normal household waste, but should be delivered to a collection and recycling centre for electric and electronic equipment. A symbol shown on the product, the instruction manual or the pak
kaging shows that it is suitable for recycling.
Materials used inside the appliance are recyclable and are labelled with information concerning this. By recycling materials or other parts from used devices you are making a significant contribution to the protection of our environment.
Information on appropriate disposal centres for used devices can be provided by your local authority.

1 Temperature control knob
2 Oven function selection knob
3, 4, 5, 6 Heating plate control knobs
7 Temperatureregulatorsignal light L
8 Cooker operation signal light R
9 Oven door handle
10 Heating plate
Electric hob

3a 0 18 cm 2,0 kW
4a 14,5cm1,0kW
5a 018cm 1,5kW
6a 14,5cm1,0kW
Cooker fittings:

Baking tray*

Grill grate (drying rack)

Roasting tray*
*optional
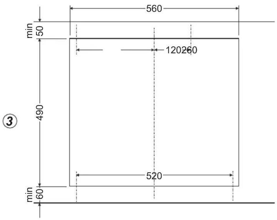
Making the worktop recess
- The kitchen area should be dry and aired and equipped with efficient ventilation. When installing the cooker, easy access to all control elements should be ensured.
This is a Y-type design built-in cooker, which means that its back wall and one side wall can be placed next to a high piece of furniture or a wall.
- Worktop thickness should be 28 - 40 mm, while its width at least 600 mm. The worktop must be flat and level. Edge of the worktop near the wall must be sealed to prevent ingress of water or other liquids.
- There should be sufficient spacing around the opening, in particular, at least 50~mm distance to the wall and 60~mm distance to the front edge of worktop.
- Worktop must be made of materials, including veneer and adhesives, resistant to a temperature of 100^ . Otherwise, veneer could come off or surface of the worktop become deformed.
- Edge of the opening should be sealed with suitable materials to prevent ingress of water.
- Worktop opening must cut to dimensions as shown on figure

Installing the hob in worktop opening
-
Use four "A" brackets for 38 mm thick worktops. Fit the hob into worktop opening as shown on figure 2 and 3. To properly secure hob in 28 mm thick worktop, use four 15x15x50 mm wooden blocks in addition to "A" brackets. Fit the hob into worktop opening as shown on figure 4 and 5.
-
Check if adhesive seal is properly applied to the hob's flange.
- Loosely attach fixing brackets to the bottom of the hob
- Remove dust from the worktop, insert hob into the opening and press in firmly,
- Position fixing brackets perpendicularly to the hob's edge and tighten firmly.


Installing the hob in worktop opening

(4)
1 - worktop
2 - screw
3 - fixing bracket
4 - hob
5 - seal
6 - wooden block

(5)
Installation of self-adhesive foam gasket *
Do not install the appliance without the foam gasket.
The gasket must be applied on the appliance as follows:
Before fitting the appliance in the kitchen worktop, apply self-adhesive foam gasket provided underneath the rim.
- before applying, remove the protective film from the self-adhesive foam gasket
- apply the self-adhesive foam gasket underneath the appliance rim (Figure)


- some models come with the sealing glued to the board
Assembly of the oven:
Make an opening with the dimensions given in the diagram for the oven to be fitted.(Fig.A)
- Make sure the mains plug is disconnected and then connect the oven to the mains supply.
- Partially insert the oven into the prepared opening and connect the oven to the hob. (Fig.B)
The appliance must be earthed. Connect the earth lead of the hob (yellow-green) with the earth terminal of the oven (marked which is located near the connection box
- Insert the oven completely into the opening without allowing the four screws in the places shown in the diagram to fall out. (Fig.C)

Fig. A

Fig.B

Fig. C
Electrical connection
Warning!
All electrical work should be carried out by a suitably qualified and authorised electrician. No alterations or wilful changes in the electricity supply should be carried out.
Fitting guidelines
The cooker is manufactured to work with three-phase alternating current (400V 3N~50Hz). The voltage rating of the cooker heating elements is 230V. Adapting the cooker to operate with one-phase current is possible by appropriate bridging in the connection box according to the connection diagram below. The connection diagram is also found on the cover of the connection box. Remember that the connection wire should match the connection type and the power rating of the cooker.
The connection cable must be secured in a strain-relief clamp.
Warning!
Remember to connect the safety circuit to the connection box terminal marked with The electricity supply for the cooker must have a safety switch which enables the power to be cut off in case of emergency. The distance between the working contacts of the safety switch must be at least 3mm
Before connecting the cooker to the power supply it is important to read the information on the data plate and the connection diagram.

| CONNECTION DIAGRAM Caution! Voltage of heating elements 230V Caution! In the event of any connection the safety wire must be connected to the PE terminal | Recommended type of connection lead | ||
| 1 For 230 V earthed one-phase connection, bridges connect 1-2-3 terminals and 4-5 terminals, safety wire to | H05VV-F3G4 | ||
| 2 For 400/230 V earthed two-phase connection, bridges connect 2-3 ter-minals and 4-5 terminals, the safety wire to | H05VV-F4G4 | ||
| 3 For 400/230V earthed three-phase connection, bridges connect 4-5 ter-minals, phases in succession 1,2 and 3, earth to 4-5, the safety wire to | H05VV-F5G1,5 | ||
| L1=R, L2=S, L3=T, N=earth terminal, PE=safety wire terminal | |||
Before first use
- Remove packaging, clean the interior of the oven and the hob.
Take out and wash the oven fittings with warm water and a little washing-up liquid. - Switch on the ventilation in the room or open a window.
- Heat the oven (to a temperature of 250^ , for approx. 30 min.), remove any stains and wash carefully.
Important!
To clean the oven, only use a cloth well rang out with warm water to which a little washing-up liquid has been added.
How to use the heating plate
The level of heat can be adjusted gradually by turning the appropriate knob to the right or left. Switching on the plate results in a yellow signal light on the control panel turning on.
An appropriately selected pan saves energy. A pan should have a thick, flat base with a diameter equal to the plate diameter as in that case heat is transferred most efficiently.


WRONG W wrong W wrong



RIGHT
Caution!
Ensure the heatiing plate is clean - a soiled zone does not transfer all of the heat.
Protect the plate against corrosion.
Switch off the zone before a pan is removed.
Do not leave pans with prepared dishes based on fats and oils unattended on the switched - on plate; hot fat can spontaneously catch fire.
Heat level selection
0 Switch off
MIN. Warming up
1 Stewing vegetables, slow cooking
- Cooking soups, larger dishes
2 Slow frying
Grilling meat, fish
3 MAX. Fast heating up, fast cooking, frying

Oven functions and operation.
Oven with conventional heating (including top + bottom heaters)
The oven can be warmed up using the bottom and top heaters, as well as the grill. Operation of the oven is controlled by the oven function knob - to set a required function you should turn the knob to the selected position,

as well as the temperature regulator knob – to set a required function you should turn the knob to the selected position.

The oven can be switched off by setting both of these knobs to the position /0
Possible settings of the oven function knob
0 Oven is off

Grill heater on
Setting the knob to this position allows dishes to be grilled on the grate.

Top heater on
Setting the knob to this position allows the oven to be heated only with the top heater switched on, e.g. use for final baking from above.

Bottom heater on
When the knob is set to this position the oven is heated using only the bottom heater. Use for e.g. final baking from the bottom.

Bottom and top heaters on
Setting the knob to this position allows the oven to be heated conventionally.

Separate oven lighting
By setting the knob to this position the lighting inside the oven is switched on, e.g. use when washing the oven chamber.

ECO Heating
This is an optimised heating function designed to save energy when preparing food. At this knob position, the oven lighting is off.
Switching on the oven is indicated by two signal lights, R, L, turning on. The R light turned on means the oven is working. If the L light goes out, it means the oven has reached the set temperature. If a recipe recommends placing dishes in a warmed-up oven, this should be not done before the L light goes out for the first time. When baking, the L light will temporarily come on and go out (to maintain the temperature inside the oven). The R signal light may also turn on at the knob position of "oven chamber lighting".
Use of the grill
The grilling process operates through infrared rays emitted onto the dish by the incandescent grill heater.
In order to switch on the grill you need to:
- set the oven knob to the position marked with
heat the oven for approximately 5 minutes (with the oven door shut). - insert a tray with a dish onto the appropriate cooking level, and if you are grilling on the grate insert a tray for dripping on the level immediately below (under the grate).
the oven door shut.
For grilling and combined grill the temperature must be set to 250^ but for the grill function with fan it must be set to a maximum of 190^ .
Caution!
The grill should be used with the oven door shut.
When the grill is in use, accessible parts can become hot.
It is recommended to keep children away from the oven.
Baking
- we recommend using the baking trays which were provided with your cooker;
- it is also possible to bake in cake tins and trays bought elsewhere which should be put on the drying rack; for baking it is better to use black trays which conduct heat better and shorten the baking time;
- shapes and trays with bright or shiny surfaces are not recommended when using the conventional heating method (top and bottom heaters), use of such tins can result in undercooking the base of cakes;
- before the cake is taken out of the oven, check if it is ready using a wooden stick (if the cake is ready the stick should come out dry and clean after being inserted into the cake);
- after switching off the oven it is advisable to leave the cake inside for about 5 min.;
- the baking parameters given in Table are approximate and can be corrected based on your own experience and cooking preferences;
- if information given in recipe books is significantly different from the values included in this instruction manual, please apply the instructions from the manual.
Roasting meat
- cook meat weighing over 1kg in the oven, but smaller pieces should be cooked on the gas burners.
- use heatproof ovenware for roasting, with handles that are also resistant to high temperatures;
- when roasting on the drying rack or the grate we recommend that you place a baking tray with a small amount of water on the lowest level of the oven;
- it is advisable to turn the meat over at least once during the roasting time and during roasting you should also baste the meat with its juices or with hot salty water – do not pour cold water over the meat.
ECO Heating
- ECO Heating an optimised heating function designed to save energy when preparing food.
- You cannot reduce the cooking time by setting a higher temperature; preheating the oven is not recommended.
- Do not change the temperature setting and do not open the oven door during cooking.
Recommended setting for ECO Heating
| Type of dish | Oven functions | Temperature (℃) | Level Time | in minutes |
| Sponge cake 180 - 200 2 3 25 - 40 | 1) | |||
| Yeast cake/ Pound cake | ECO | 180 - 200 2 - 3 | 25 - 40 | 1) |
| Fish 190 - 210 2 - 3 25 100 | 2) | |||
| Beef 200 - 220 2 90 - 120 ECO | 2) | |||
| Pork 200 - 220 2 90 - 160 ECO | 2) | |||
| Chicken 180 - 200 2 80 100 ECO | 2) | |||
1) Recommended for baking under 40 minutes.
2) Recommended for baking more than 1kg of meat.
Oven with conventional heating (including top and bottom heaters)
| Type of dish | Type of heating | Temperature (℃) | Level Time | (min.) |
| Sponge cake 160 - 200 2-3 30 - 50 | ||||
| Yeast cake/ Pound cake | 160 - 1701) | 3 25 - 40 | 2) | |
| Pizza 220 - 240 | 1) | 2 15 - 25 | ||
| Fish 210 - 220 2 45 - 60 | ||||
| Beef 225 - 250 2 120 - 150 | ||||
| Pork 160 - 230 2 90 - 120 | ||||
| Chicken 160 - 180 2 45 - 60 | ||||
| Vegetables 190 - 210 2 40 - 50 |
1)Preheat
2)Baking smaller items
Note: The figures given in Tables are approximate and can be adapted based on your own experience and cooking preferences.
The times are apply to dish that is placed into a cold oven. For the preheated oven, the times should be reduced by about 5-10 minutes.
Baking
| Type of dish Accessory Level Type | Type | of heating | Temperature (°C) | Baking time 2) (min.) | |
| Small cakes | Baking tray 3 | 160 - 170 | 1) | 25 - 40 2) | |
| Baking tray 3 | 155 - 170 | 1) | 25 - 40 2) | ||
| Baking tray 3 | 155 - 170 | 1) | 25 - 40 2) | ||
| Baking tray Roasting tray | 2 + 42 - baking tray or roasting tray 4 - baking tray | 155 - 170 1) | 25 - 50 2) | ||
| Shortbread | Baking tray 3 | 150 - 160 | 1) | 30 - 40 2) | |
| Baking tray 3 | 150 - 170 | 1) | 25 - 35 2) | ||
| Baking tray 3 | 150 - 170 | 1) | 25 - 35 2) | ||
| Baking tray Roasting tray | 2 + 42 - baking tray or roasting tray 4 - baking tray | 160 - 175 1) | 25 - 35 2) | ||
| Fatless sponge cake | Wire rack + black baking tin diameter 26cm | 3 170 - 180 | 1) | 30 - 45 2) | |
| Apple pie | Wire rack + 2 black baking tins diameter 20cm | 2 black baking tins placed after the diagonal, back right, front left | 180 - 200 1) | 50 - 70 2) | |
1)Preheat, do not use Rapid preheat function.
2) The times are apply to dish that is placed into a cold oven. For the preheated oven, the times should be reduced by about 5-10 minutes.
TEST DISHES. According to standard EN 60350-1.
Grilling
| Type of dish | Accessory Level | Type | of heating | Temperature (°C) | Time (min.) |
| White bread toast | Wire rack 4 2 | 50 | 1) | 1,5 - 2,5 | |
| Wire rack 4 2 | 50 | 2) | 2 - 3 | ||
| Beef burgers | Wire rack + roasting tray (to gather drops) | 4 - wire rack 3 - roasting tray | 250 1) | 1st side 10 - 15 2nd side 8 - 13 |
1)Preheat for 5 minutes, do not use Rapid preheat function.
2)Preheat for 8 minutes, do not use Rapid preheat function.
Roasting
| Type of dish | Accessory Level | Type | of heating | Temperature (°C) | Time (min.) |
| Whole chicken | Wire rack + roasting tray (to gather drops) | 2 - wire rack1 - roasting tray | 180 - 190 70 | - 90 | |
| Wire rack + roasting tray (to gather drops) | 2 - wire rack1 - roasting tray | 180 - 190 80 | - 100 |
The times are apply to dish that is placed into a cold oven. For the preheated oven, the times should be reduced by about 5-10 minutes.
By ensuring proper cleaning and maintenance of your cooker you can have a significant influence on the continuing fault-free operation of your appliance.
Before you start cleaning, the cooker must be switched off and you should ensure that all knobs are set to the "●"/"0" position. Do not start cleaning until the cooker has completely cooled.
Electric hob
Dirt (i.e. burnt residuals of food) should be removed from the surface of the hotplates using a soft cloth (the black surface of the hotplates should never be washed or scrubbed).
The stainless ornamental rings can be cleaned using washing liquids or gentle liquid scrubbing agents and wiped dry.
The surface of the hotplates should be regularly polished with white mineral oil or silicone oil. Never use animal or vegetable fats like butter, lard, oil etc. for the purpose.
The enamel working plate should be cleaned using warm water with a bit of washing liquid. Larger stains can be removed using gentle scrubbing liquids.
Oven
- The oven should be cleaned after every use. When cleaning the oven the lighting should be switched on to enable you to see the surfaces better.
- The oven chamber should only be washed with warm water and a small amount of washing-up liquid.
After cleaning the oven chamber wipe it dry.
Caution!
Do not use cleaning products containing abrasive materials for the cleaning and maintenance of the glass front panel.
- Steam Cleaning function:
-pour 250ml of water (1 glass) into a bowl placed in the oven on the first level from the bottom,
- close the oven door,
- set the temperature knob to 50^ , and the function knob to the bottom heater position
-heat the oven chamber for approximately 30 minutes,
- open the oven door, wipe the chamber inside with a cloth or sponge and wash using warm water with washing-up liquid.
After cleaning the oven chamber wipe it dry.
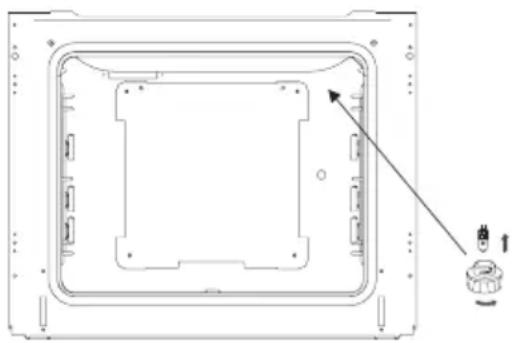
Replacing the halogen bulb in the oven
Before replacing the halogen bulb, make sure the appliance is disconnected from the electric mains to avoid a possible electric shock.
- Set all control knobs to the position “ ”/ 0 ” and disconnect the mains plug,
- Unscrew and wash the lamp cover and then wipe it dry.
-
Pull the halogen bulb out using a cloth or paper. If necessary, replace the halogen bulb with a new one.
-
voltage 230V
-power25W
-G9 -
Replace the halogen bulb in its socket.
- Screw in the lamp cover.

Oven lighting
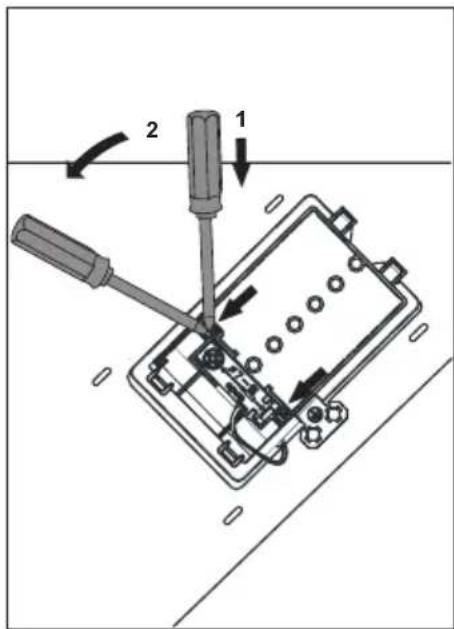
Door removal
In order to obtain easier access to the oven chamber for cleaning, it is possible to remove the door. To do this, tilt the safety catch part of the hinge upwards (fig. A). Close the door lightly, lift and pull it out towards you. In order to fit the door back on to the cooker, do the inverse. When fitting, ensure that the notch of the hinge is correctly placed on the protrusion of the hinge holder. After the door is fitted to the oven, the safety catch should be carefully lowered down again. If the safety catch is not set it may cause damage to the hinge when closing the door.

Tilting the hinge safety catches
Removing the inner panel
- Using a flat screwdriver unhook the upper door slat, prying it gently on the sides (fig. B).
- Pull the upper door slat loose. (fig. B, C)


- Pull the inner glass panel from its seat (in the lower section of the door). Remove the inner panel (fig. D).
- Clean the panel with warm water with some cleaning agent added.
Carry out the same in reverse order to reassemble the inner glass panel. Its smooth surface shall be pointed upwards.
Important! Do not force the upper strip in on both sides of the door at the same time. In order to correctly fit the top door strip, first put the left end of the strip on the door and then press the right end in until you hear a "click". Then press the left end in until you hear a "click".

Removal of the internal glass panel
Regular inspections
Besides keeping the cooker clean, you should:
- carry out periodic inspections of the control elements and cooking units of the cooker. After the guarantee has expired you should have a technical inspection of the cooker carried out at a service centre at least once every two years,
- fix any operational faults,
- carry out periodical maintenance of the cooking units of the cooker.
Caution!
All repairs and regulatory activities should be carried out by the appropriate service centre or by an appropriately authorised fitter.
In the event of an emergency, you should:
- switch off all working units of the cooker
- disconnect the mains plug
- call the service centre
- some minor faults can be fixed by referring to the instructions given in the table below. Before calling the customer support centre or the service centre check the following points that are presented in the table.
| PROBLEM | REASON | ACTION |
| The appliance does not work. | break in power supply | check the household fuse box, if there is a blown fuse replace it with a new one |
| The oven lighting does not work | the bulb is loose or dama-ged | tighten up or replace the blown bulb (see Chapter Cleaning and Maintenance) |
Voltage rating 230/400V~50 Hz
Power rating max. 7,5 kW
Cooker dimensions H/W/D 59,5 / 59,5 / 57,5 cm
The product meets the requirements of European standards EN 60335-1; EN60335-2-6.
The data on the energy labels of electric ovens is given according to standard EN 60350-1 / IEC 60350-1. These values are defined with a standard workload a with the functions active: bottom and top heaters (conventional heating) and fan assisted heating (forced air heating), if these functions are available.
The energy efficiency class was assigned depending on the function available in the product in accordance with the priority below:
| Forced air circulation ECO (ring heater + fan) | ECO |
| Forced air circulation ECO (bottom heater + top + roaster + fan) | ECO |
| Conventional mode ECO (bottom heater + top) | ECO |
During energy consumption test, remove the telescopic runners (if the product is fitted with any).
Certificate of compliance CE
The Manufacturer hereby declares that this product complies with the general requirements pursuant to the following European Directives:
The Low Voltage Directive 2014/35/EC,
- Electromagnetic Compatibility Directive 2014/30/EC,
ErP Directive 2009/125/EC,
and therefore the product has been marked with the symbol and the Declaration of Conformity has been issued to the manufacturer and is available to the competent authorities regulating the market.
EasyManual