EHE 932 000 E - Andere keukenapparaten AMICA - Gratis gebruiksaanwijzing en handleiding
Vind de handleiding van het apparaat gratis EHE 932 000 E AMICA in PDF-formaat.
Download de handleiding voor uw Andere keukenapparaten in PDF-formaat gratis! Vind uw handleiding EHE 932 000 E - AMICA en neem uw elektronisch apparaat weer in handen. Op deze pagina staan alle documenten die nodig zijn voor het gebruik van uw apparaat. EHE 932 000 E van het merk AMICA.
GEBRUIKSAANWIJZING EHE 932 000 E AMICA
De fornuizen van Amica combineren uitzonderlijk gebruiksgemak en optimale doeltreffendheid. Na het lezen van deze gebruikershandleiding zult u zonder problemen dit fornuis kunnen bedieren.
Voor het ingepakt werden en de fabriek verliet, werk dit fornuis bij de controposten grondig gecontroleerd op het gebied van veiligheid en functionaliteit.
Voordat u het toestel aanschakelt, dient u deze gebruikershandleiding grondig door te lezen. De instructiesuit deze handleiding helpen u om verkeerd gebruik van het toestel te voorkomen.
Bewaar deze gebruikershandleiding goed en zorg dat ze.altijd binnen bereik is. Om ongelukken te vermijden要去en de instructiesuit deze handleiding precies nageleefd worden.
Opgelet!
Het fornuis mag pas gebruikt worden nadat u deze gebruikershandleiding grondig doorgelezen heeft.
Het toestel is uitsluitend ontworpen voor huishoudelijkke kookdoeleinden.
De producent behoudt zich hetrecht voor om wijzigingen aan te brengen die geen invloed hebben op de werking van het toestel.
Attentie. Dit apparaat en de bereikbare onderdelen ervan wordenijdens het gebruik heet. Wees bijzonder voorzichtig bij het aanraken van de verwarmingselementen. Zorg dat kinderen diejonger� dan 8aar nicht bij het apparaat kunnen komen, tenzij ze onder permanent toezicht staan.
Dit apparaat mag gezruikt worden door kinderen van 8年龄段 en ouder en personnel met lichamelijke of geestelijk beperkingen of Personen zonder ervaring met of kennis van het apparaat, als dit gezruikplaatsvindt onder toezicht of in overeenstemming met de gezruiksaanwijzing van het apparaat, door Personen die verantwoordelijk zijn voor hun veriligheid. Zorg ervoor dat kinderen Niet met het apparaat hun spelten. Kinderen mogen de kookplaat Niet zonder toezicht schoonmaken of onderhoudswerkzaamheden verrichten.
Attentie. Het koken van vetten of olie op de kookplaat zonder toezicht kan erg gevaarlijk zijn en leiden tot brand.
Probeer het vuur NOOIT met water te blussen, maar schakel het apparaat uit en bedek de vlammen met een deksel of een nicht-brandbare deken.
Attentie. Brandgevaar: geen voorwerpen verzamelen op de kookopppervlakte.
Attentie. Schakel de stroom uit als de oppervlakte is gebar-sten, om elektrische schokken te voorkomen.
Tijdens het gebruik worden het toestel heet. Wees voorzichtig en raak de hare onderdelen in de oven Niet aan.
Als dit apparaat gebruikt worden, kann den bereikbare onder-delen heet worden. Laat geen kinderen bij de oven kommt.
Attentie. Gebruik geen schurende schoonmaakmiddelen of scherpe metalen voorwerpen voor het schoonmaken van het glas van de deur, waar dat deze krassen können veroorzaken op het oppervlak. Dit kan leiden tot barsten van het glas.
Attentie. Om elektrocutie te vermiijden dient u het toestel uit te schakelen vooraleer u het lampje verrangt.
Gebruik geen stoomreinigers voor het schoonmaken van het fornuis.
Gevaar voor verbranding! Bij het openen van de ovendeur kan hare stoom ontsnappen. Wees voorzichtig met het openen van de deurijdens of na afloop van het koken. Buig u bij het openen Niet over de deur. Vergeet zich dat stoom bij bepaalde temperaturen onzichtbaar kan+zijn.
- Wees bijzonder voorlichtig als er kinderen in de buurt van het fornuis zijn, want ze kennende bedieningsprincipes van het fornuis Niet. De hete branders van de gaskookplaat, de ovenkamer, het rooster, de ruit van de deur, en potten en pannen met hete vloeistoffenkunnen brandwonden veroorzaken!
- Zorg ervoor dat er geenkleine keukentoestellen of hun kabels in direct contact komen met de hete oven of de kookplaat, want de isolatie van deze toestellen is nicht bestand gegen hoge temperaturen.
- Laat het fornuis Niet acheer zonder toezicht terwijl u kookt. Olien en vetten konnen ontvammen als gevolg van oververhitting of overkoken.
- Zorg ervoor dat de kookplaat Niet vuil wordt of onderloopt door overlopende spijzen. Eventueel vuil要去 onmiddelijk verwijderd worden.
- Plaats geen potten of pannen met een natte bodem op de hete kookvelden, want dit kan onomkeerbare wijzigingen aan de plaat veroorzaken (onverwijderbare vlekken).
- Gebruik enkel potten en pannen die volgens de aanwijzingen van de producent geschikt zich om te koken op een keramische plaat.
- Als het oppervlak van de kookplaat gebarsten is, moet het toestel van het stroomnet ontkoppeld worden om elektrocutie te vermijden.
Schakel de kookplaat Niet aan zonder er eerst een pot of pan op te plaatsen. - Het is verboden om potten of pannen met scherpe randen te gebruiken, want die kunn den keramischeplaat beschadigen
- Kijk Niet maar de halogene kookvelden terwijl ze opwarmen (als ze Niet afgedekt zich met een pot of pan).
- Plaats geen potten of pannen met een gewicht van meer dan 15kg op de open deur van de oven, en geen potten of pannen met een gewicht vanmeer dan 25kg op de kookplaat.
- Gebruik geen schurende reinigingsmiddelen of scherpe metalen voorwerpen om de glazen deur te reinigen. Hierdoor kan het oppervlak gekrast raken, wat kan leiden tot barsten in het glas.
- Het is aan te raden het deksel te reinigen vooraleer u het opent. Uaar het oppervlak van de kookplaat best eerst afkoelen voordat u het deksel sluit.
- Het is verboden om een fornuis met technische defecten te gebruiken. Defecten mogen enkel hersteld worden door een erkend technicus met gpaste kwalificaties.
- Bij problemen veroorzaakt door technische defecten,要去 het fornuis van het stroomnet ontkoppeld worden en要去 het defect gemeld worden voor herstelling.
- Er mankinden goen toestellen voor reiniging met stoom gebruikt worden om het fornuis te reinigen.
- Het toestel is uitsluitend ontworpen voor kookdoeleinden.
Elke andere toepassing (bv. voor het verwarmen van ruimtes) stegt nicht overeen met de bestemming van het toestel en kan gevaar veroorzaken.

Door op verantwoorde wijze energie te gebruiken bespaart u Niet alleen op de kosten van het huishouden, maar werkt u ook bewust mee aan de bescherming van het milieu. Laten we
haarom ons stentje bijdragen aan energie-besparing! Dat kan op de volgende manier:
- Gebruik goede potten en pannen om te koken.
Kookpotten en pannen mogen nicht kleiner zich dan de kroon van de vlam van de brander. Dek de potten en pannen steeds af met een deksel.
- Zorg ervoor dat de branders, het rooster en de gaskookplaat reinহ.
Vuil verstoort de warmteoverdracht - sterk aangebrand vuil kan soms enkel verwijderd worden met gebruik van reinigingsmiddelden die nicht milieuvriendelijk+zijn.
Let er bijzonder op dat de vlamopeningen in de ring onder de branderdop en de openings van de branderkoppen rein zich.
Vermijd onnodig opheffen van deksels om het kookproces te controleren.
- Gebruik de oven enkel voor grotere hoeveelheden.
Porties vlees tot 1 kg können spaarzamer bereid worden in een pot op een branden van het fornuis.
- Gebruik de restwarmte in de oven.
Schakel bij baktijden van meer dan 40 minu-ten de oven 10 Minutes voor het einde van de bakbeurt UIT.
- Sluit de deur van de oven zorgvuldig. Otherwise energy consumption increases unnecessarily.
Bouw het fornuis nicht in in de onmid-dellijke nabijheid van koelkasten of diepvriezers.
Het energiegebruik van deze toestellen stijgt hierdoor onnodig.

Het toestel wordt door zich verpakking beveiligd gegen beschadigingenijdens het transport. Na het uitpakken van het toestel dient u deverpakkingselementen terecycleren op milieuvriende
lijke wijze.
Alle materialen die gebrukt worden voor de verpakking� onschadelijk voor het milieu. Zeijken 100% geschikt voor recyclage en zich aangeduid met het gespaste symbol.
Opgelet! De verpakkingsmaterialen (zakjesuit polyethylen, stukken piepschuim, enz.) moetenijdens het uitpakken buten het bereik van kinderen gehouden worden.

Op het einde van de gebruiksperiode mag dit product nicht bij het gewone huisvuil geplaatst worden, maar moet afgegeven worden bij een verzamelpunt voor recyclage van elektrische en elektronische toestellen.
Dit wordt aangegeven door
het gepaste symbol op het product, in de gebruikershandleiding of op de verpakking.
De materialen die gebruikt zich bij de productie van het toestel, zich geschikt voor hergebruik volgens hun aanduiding. Dankzij dit hergebruik, de verwerking van materiai-len of andere vormen van hergebruik van afgedankte toestellen draagt u bij tot de bescherming van het milieu.
Informatie over het verzamelpunt voor gebruike toestellen(Int)kuijgen bij de gemeentediensten.
BESCHRIJVING VAN HET TOESTEL

1 Draaiknop van de temperatuurregelaar
2 Draaiknop voor de keuze van de functie van de oven
3, 4, 5, 6 Draaiknoppen voor de bediening van de kookplaten
7 Controleampje van de temperatuurregelaar L
8 Controleampje voor de werking van het formuis R
9 Greep van de deur van de oven
10 Kookplaat
Kookplaat

3a 0 18 cm 2,0 kW
4a 14,5cm1,0kW
5a 18cm 1,5 kW
6a 14,5cm1,0kW
Uitrusting van het fornuis - overzicht:

Bakplaat voor gebak*

Grillrooster (droogrekje)

Bakplaat voor gebraad*
*Bepaalde modellen
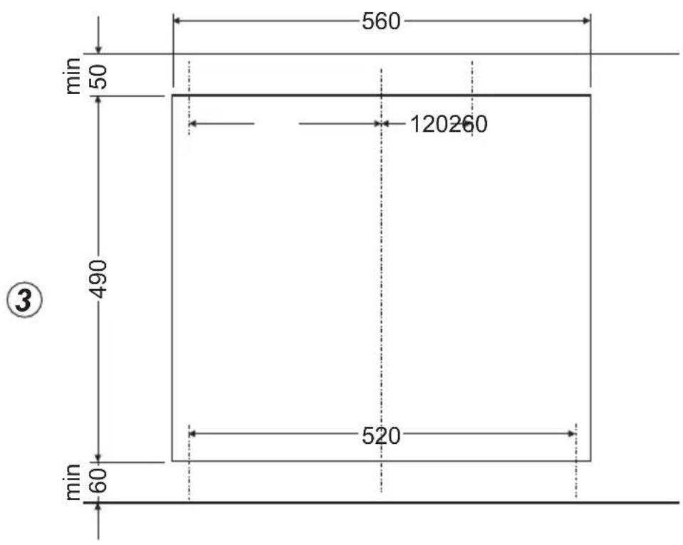
Voorbereiding van het meubelblad om deplaat in te bouwen
- De keukenruimte要去 droog en goed verlucht zijn en een goed werkende ventilatie bezitten. De opstelling van het fornuis要去 een vrijtoegang tot alle bedieningselementen garanderen. Het fornuis is ontworpen volgens klassy Y, d.w.z. dat het aan een zijde ingebouwd kan worden gegen een hoog meubel of een muur.
- Het meubelblad要去 tussen 28 en 40 mm dik en minimum 600 mm diep়. Het blad要去 vlak় en goed waterpas staan. Het blad要去 aan de kant van de muur afgedichten beveiligd় gegen insijpeleend water en vocht.
- De afstand:tussen de rand van de opening en de rand van het blad moet vooraan min. 60 mm en achteraan min. 50 mm bedragen.
- De bekleding en lijm die voor de inbouwmeubelen gezruikt zijn,要去en gegen een temperatuur van 100^ bestandহ. Als deze voorwaarde nicht voldaan is, kan het oppervlak verrormd raken of kan de bekleding loskomen.
- De randen van de opening moeten beveiligd worden met vochtbestendig materiaal.
- De opening in het blad moet volgens de afmetingen op fig. 1 gemaakt worden.

Montage van de plaat in het meubelblad
- Bij een blad met een dikte van 38 mm要去 u 4 bevestigingsgrepen „A" gebruiken om deplaat te bevestigen. De montagewijze is opgegeven op fig. 2 en 3. Bij een blad met een dikte van 28 mm要去 u naast de bevestigingsgrepen "A" nog 4 houten blokjes met een afmeting van 15 × 15 × 50 mm gebruiken. De montagewijze is opgegeven op fig. 4 en 5.
- Controller of de pakking goed gegen deplaat aansluit.
- Draai de bevestigingsgrepen Lichtjes aan de onderkant van deplaat.
- Reinig het blad,plaats de plaat in de opening en druk ze gegen het blad aan.
- Plaats de bevestigingsgrepen loodrecht op de randen van deplaat en draai ze stevig aan.


Montage van de plaat in het meubelblad

4
1 - meubelblad
2 - schroef
3 - bevestigingsgreep
4 - kookplaat
5 - pakking van deplaat
6 - houten blokje

(5)
Montage van de schuimrubber dichting
Inbouw van het apparaat zonder zichting is verboden.
Breng de zichting als volgt op het apparaat aan:
Plak de meegeleverde schuimrubber dichting op de onderkant van het frame van de kookplaat, voordat u het apparaat in het werkblad inbouwt.
- verwijder de beschermende folie van de dichting;
- plank de dichting cervolgens op de onderkant van het frame (afb.).


- In sommige modellen is de afdichting aan deplaat vastgelijmd
Montage van de oven:
bereid de montageopening voor de oven voor in het meubel volgens de afmetingen die op de figuur aangeduid+zijn (fig.A).
- sluit de oven aan op het stroomnet verwijl de stroom uitgeschakeld is,
schuif de oven gedeeltelijk in de voorbereide opening in het meubel en sluit de oven aan op de kookplaat (fig.B).
- de aardkabel van deplaat (geel-groen)要去verbonden worden met de aardklem van de oven (aangeduid met die zich bij de aansluiting befindt.
schuif de oven volledig in de opening en beveilig hem gegen uitschuiven met behulp van vier schroeven op deplaatsen die op de figuur aangeduid+zijn (fig.C).

Fig. A

Fig. B

Fig. C
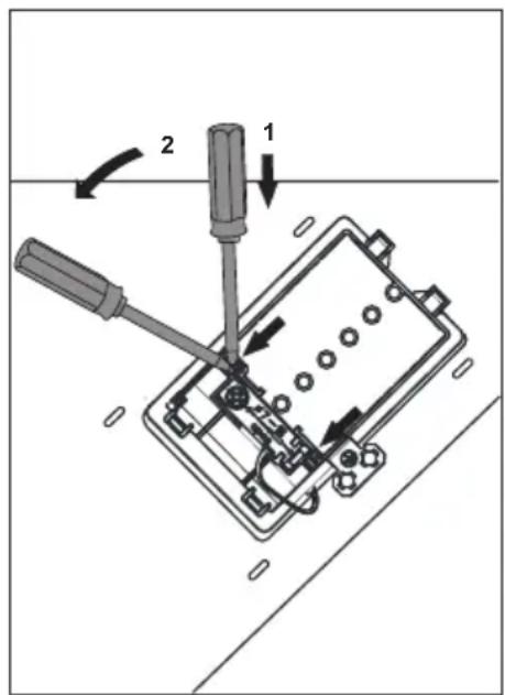
Aansluiting van het fornuis op de elektrische installmentie
Opgelet!
Deplaat mag enkel op de elektrische instalatie aangesloten worden door een erkend installeur met de gpaste kwalificaties. Het is verboden om zichstandig wijzigingen of aanpassingen aan te brengen aan de elektrische instalatie.
Instructies voor de installmenteur
Het fornuis is in de fabriek aangepast aan voeding metriefasige wisselstroom (400V 3N 50Hz .De nominale spanning van de verwarmingselementen van het fornuis bedraagt 230V . Het fornuis kan aangepast worden aan voeding met eenfasige stroom (230V) door een gespaste overbrugging op de contactstrip volgens het bijgevoegde aansluitschema. Er is ook een aansluitschema bij de aansluiting van het fornuis geplaatst. De contactstrip is bereikbaar nadat u het deksel van de aansluiting wegneemt door de klemmen te deblokkeren met een platte sleutel. Vergeet nicht een ges paste leiding te kiezen volgens het soort aansluiting en het nominale vermogen van het fornuis.
De aansluitleiding要去 gemonteerd worden op de steun voor de aansluiting van het fornuis.Opgelet!
Vergeet Niet het aardingscircuit aan te sluiten op de klem van de contactstrip, die aangegeven is met het teken De elektrische instal-. latie die het fornuis van stroom voorziet, moet beveiligd zijn met een gespaste zekering die de stroom afsluit in noodgevallen. De afstand tussen de werkcontacten van de zekering moet min. 3 mm bedragen.
Voordat u het fornuis op de elektrische installmentie aansluit, moet u de informatatie op het typeplaatje en het aansluitschema lezen.

| SCHEMA MET MOGELIJKE AANSLUITINGEN Opgelet! Spanning van de verwarmingselemen- ten 230V Opgelet! Bij elke aansluitingsvariant要去 aardingsleiding aangesloten� op de klem PE | Aanbevolen soort aansluit- leiding | |||
| 1 Bij een stroomnet van 230 V eenfa- sige aansluiting met een nulleiding, de bruggen verbinden de klemmen 1-2-3 en 4-5, aardingsleiding op ± | 3 4 2 5 1 6 N L1 PE | H05VV-F3G4 | ||
| 2 Bij een stroomnet van 400/230 V tweefasige aansluiting met een nulle- ding, de bruggen verbinden de klemmen 2-3 en 4-5, aardingsleiding op ± | 3 4 2 5 1 L2 N L1 PE | H05VV-F4G4 | ||
| 3 Bij een stroomnet van 400/230 V drie- fasige aansluiting met een nulleiding, de bruggen verbinden de klemmen 4-5, de faseleidingen� en 4-5, aardingsleiding op ± | 3 4 2 L3 S 1 L2 N L1 PE | H05VV-F5G1,5 | ||
| Faseleidingen - L1=R, L2=S, L3=T; N - nulleiding; PE - aardingsleiding | ||||
Voordat u het fornuis voor deeerste maal aanschakelt
- verwijder alle verpakkingsonderdelen, verwijder de onderhoudsmiddelen die in de fabriek aangebracht zich,uit de kamer van de oven en van de kookplaat,
neem de uitrusting uit de oven en reinig die in warm water met afwasmiddel, - schakel de ventilatie in de ruimte aan of open een raam,
warm de oven op (op een temp. van 250^ ,ong.30 min.),verwijder vuil en reinig hem grondig.
Belangrijk!
Was de binnenkant van de oven enkel met warm water met eenkleinehoeveelheid afwasmiddel.
Bediening van de kookvelden van de kookplaat.
Het verwarmingsvermögen van een staatkan stapsgewijs geregeld worden door de draaiknop waar links of rechts te draaien. Als de staat aangeschakeld worden, gaat het gele controelampje op het bedieningspaneel branden
Goed gekozen potten en pannen hebben een bodem diameter die ongeveer overeenstem met het gebruiksoppervlak van de kookplaat. Gebruik geen potten en pannen met een holle of bolle bodem. Het is aan te raden om speciale potten en pannen met een dikke, gedraaide bodem te gebruiken. Hou er ook rekening mee dat de potten en pannen een gespast deksel要去en hebben.
Als het oppervlak van de kookplaten en de potten en pannen vuil is, kan de warmte nicht volledig benut worden.

Schakel de planta uit voor u de pot eraf neemt.
Laat geen potten of pannen met spijzen die met vetten of oliën bereid zijn, op een aangeschakeldeplaat darüber zonder toezicht. Heet vet ontvlamt vanzelf.
Voorbeeldinstellungen van de draaiknop
0 Uitschakelen
MIN. Opwarmen
1 Stoven van groenten, langzaam koken
- Koken van soepen, grotere hoeveelheden
2 Langzaam braden
Aanbraden van vlees, vis
3 MAX. Snel opwarmen, snel koken, braden

Functies en bediening van de oven
Conventionele oven (verwarmingselement onder +verwarmingselement boven)
De oven kan verwarmd worden met behulp van een verwarmingselement bovenaan en onderaan en een grillelement (als dat er is). De oven kan bediend worden met behulp van de draaiknop voor de functie van de oven -draai de draaiknop maar de gewenste functie om de oven in te stellen

en met behulp van de draaiknop van de temperatuurregelaar - draai de draaiknop waar de gewenste temperatuur om de oven in te stellen

De oven kan uitgeschakeld worden door\ beide draaikNOPpen in de stand "●"/"0" \ teplaatsen.
Mogelijkke standen van de draaiknop voor de functie van de oven
0 Nulstand

Grill aangeschakeld
Door de draaiknop op deze stand in te stellen, worden de gerechten op het rooster gebakken.
Verwarmingselement bovenaan aangeschakeld
Als de draaiknop in deze stand staat, worden de oven enkel met het verwarmingselement bovenaan verwarmd. Deze stand kurz u bv. voor het bijbakken van gebak langus boven gebruiken.
Verwarmingselement onderaan aangeschakeld
Als de draaiknop in deze stand staat, worden de oven enkel met het verwarmingselement onderaan verwarmd. Deze stand kurz u bv. bij het bijbakken van gebak langs onder gebruiken.
Verwarmingselement onderaan en bovenaan aangeschakeld
Als de draaiknop in deze stand staat, wordt de oven op conventionele manier opgewarmed.
Onafhankelijk verlichting van de oven
Door de draaiknop op deze stand in te stellen worden de kamer van de oven verlicht. Deze stand kutu bv. bij het reinigen van de oven gebruiken.
ECO-verwarmingsfunctie
Bij gebruik van deze functie start een optimale verwarmingswijze die bedoeld is om energia te besparenijdens het bereiden van gerechten. Bij deze instelling van de draaiknop is de ovenverlichting uitgeschakeld.
Het aanschakelen van de oven worden aangegeven met twee controleampjes, een R en een L. Het R controleampje geeft aan dat de oven werk. Als het rode controleampjeuitgaat, heeft de oven de ingestelde temperatuur bereikt. Als het recept aangeeft dat het gerecht in een voorverwarmde oven geplaatst moet worden, dan mag u dit pas doe n als het L controleampje voor de eerste maaluitgaat. Tijdens de bereiding zal het L lampje af entoe aan- en uitgaan (de temperatuur in de oven wordt op peil gehonden). Het R controleampje kan ook branden als u de draaiknop in stand "Verlichting van de oven" plaatst.
Gebruik van de grill
Tijdens het grillproces ondergaan de gerechten de inwerking van infrarood dat uit gezonden worden door het verhitte verwarmingselement van de grill.
Om de grill aan te schakelen moet u:
- de draaiknop van de oven op de stand
- de oven ongeveer 5 Minutes Verwarmen (met gesloten deur)
- de bakplaat met het gerecht op het gepaste niveau plaatsen, en als u gezruikt maakt van het spit een bakplaat voor het druipende vet vlak onder het spit plaatsen.
de deur van de oven sluiten.
Voor de grillfunctie en supergrill moet de temperatuur ingesteld worden op 250^ en voor de functie grill met ventilator op maximum 190^ .
Opgelet!
Tijdens het grillen moet de deur van de oven gesloten zich.
Als de grill gebrukt worden,{kunnen de bereikbare onderdelen heet worden. Laat geen kinderen bij de oven komen.
Gebak
- het is aan te raden om gebak te bereiden op de bakplaten die deel uitmaken van de uitrusting van het fornuis,
- gebak kan bereid worden in bakvormen of bakplaten die op het droogrekje geplaatst要去en worden. Voor gebak worden best zwarte bakvormen gebruikt,ondat dezebetter de warmte geleiden en de baktijd verkorten.
we raden af om bakvormen en bakplaten met een holder en blinkend oppervlak te gebruiken wanner u gebruik maakt van de conventionele verwarmfunctie (verwarmingselementen bovenaan + onderaan). Bij dit soort bakvormen worden de onderkant van het gebak Niet goed doorbakken. - voordat u het gebak uit de oven neemt, kut u de kwaliteit ervan controleren met een houten stokje (als het gebak gelukt is, blijft het stokje droog en zuiver wanner u het erin steekt),
- het is aangeraden om het gebak nog ong. 5 min. in de oven te latent nadat u de ovenuitgeschakeld hebft.
- de parameters voor gebak in tabel geziven enkel aanwijzingen en{kunnen gecorrigeerd worden volgens uw eigeng ervaring en culinaire smaak,
- indien de informatatie in kookboeken duidelijk afwikt van de waarden in de handleiding van het fornuis, maar u zich best leiden door de richtlijnen in de handleiding.
Vlees braden
- in de oven können porties vlees van meer dan 1kg bereid worden. Kleinere stukken worden beter op de gasbranders van het fornuis bereid.
- bij het braden worden best vuurvaste schotels gezruikt. Ook de handgrepen van deze schotels要去en bestand zichen谈起hoge temperaturen.
- bij braden op het droogrekje of op het rooster worden er best een braadplaat met eenkleine hoeveelheid water op het laagste niveau geplaatst.
- het vlees worden best minstens eenmaal halverwege de braadtijd omgedraaid op+zijn andere zijde. Tijdens het bakken moet het vlees ook af en toe overgoten worden met de saus die ontstaat bij het braden of met heet, zout water. Het vlees mag nicht met koud water overgoten worden.
ECO-verwarmingsfunctie
- bij gezbruik van de functie ECO-verwarmingsfunctie start een optimale verwarmingswijze die bedoeld is om energia te besparenijdens het bereiden van gerechten;
- het is nicht möglichk om de kooktijd te verkorten door hogere temperaturen in te stellen; wij raden ook af om de oven voor te verwarmen;
- tijdens het koken mag u de temperatuurinstellungen nicht wijzigen en de deur nicht openen.
Aanbevolen parameters bij gebruik van de functie ECO-verwarmingsfunctie
| Soort gebak gerecht | Functies van de oven | Temperatuur (°C) | Niveau Tijd* [min.] | |
| Biscuittaart 180 | -200 2 3.25 - 40ECO | 1) | ||
| Brioche/cake 180 | -200 2 3.25 - 40ECO | 1) | ||
| Vis 190 - 21 | 0 2 - 3 25 100ECO | 2) | ||
| Rundvlees 200 | -220 2 90 120ECO | 2) | ||
| Varkensvlees 200 | 0 - 220 2 90 160ECO | 2) | ||
| Kip 180 - 20 | 0 2 80 - 100ECO | 2) |
1)Aanbevolen voor bakprocessen die nicht longer duren dan 40 minutes.
2)Aanbevolen voor porties vlees die zwaarder zichn dan 1 kg.
Conventionele oven (verwarmingselement onder + verwarmingselement boven)
| Bereidingswijze gerecht | Functie van de oven | Temperatuur (°C) | Niveau Tijd [min] | |
| Biscuittaart 160 | -200 2 -330 -50 | |||
| Brioche/cake 160 | -170 | 1) | 325 -40 | 2) |
| Pizza 220 -240 | 240 | 1) | 215 -25 | |
| Vis 210 -220 | 245 -60 | |||
| Rundvlees 225 | -250 2 120 -150 | |||
| Varkensvlees 160 | -230 2 90 -120 | |||
| Kip | 160 - 180 2 45 | -60 | ||
| Groenten | 190 - 210 2 40 | -50 |
Indien nicht anders vermeld gelden deze tijden voor een onverwarmde ovenruimte. Voor een voorverwarmde oven moet u deze tijden met 5-10 minutes verkorten.
1) Verwarm de lege oven voor
2) De opgegeven tijden gelden voor gerechten inkleine vormen
Attentie: De parameters uit de tabel zich ter orientatie en u kurz ze aanpassen aan de hand van uw eigenervaringen en culinaire preferenties.
TESTGERECHTEN. In overeenstemming met de norm EN 60350-1.
Bakken van taarten
| Soort gerecht | Accessoires Niveau | Verwar- | mingsfunc-tie | Temperatuur (°C) | Baktijd2)(min.) |
| Kleine taart | Bakblik 3 160 | - 170 | 1) | 25 - 40 2) | |
| Bakblik 3 155 | - 170 | 1) | 25 - 40 2) | ||
| Bakblik 3 155 | - 170 | 1) | 25 - 40 2) | ||
| Bakblik Bakplaat | 2 + 42 - bakblik of bakplaat4 - bakblik | 155 - 170 1) | 25 - 50 2) | ||
| Spritsen(stroken) | Bakblik 3 150 | - 160 | 1) | 30 - 40 2) | |
| Bakblik 3 150 | - 170 | 1) | 25 - 35 2) | ||
| Bakblik 3 150 | - 170 | 1) | 25 - 35 2) | ||
| Bakblik Bakplaat | 2 + 42 - bakblik of bakplaat4 - bakblik | 160 - 175 1) | 25 - 35 2) | ||
| Vetvrij biscuit-deeg | Rooster + springvorm met zwarte coatingØ 26 cm | 3 170 - 180 | 1) | 30 - 45 2) | |
| Appeltaart | Rooster + twee springvormen met zwarte coatingØ 20 cm | 2 de vormen als volgt op het roosterplaatsen: rechtsachter en linksvoor | 180 - 200 1) | 50 - 70 2) |
1) Verwarm de lege oven voor, de functie snugl voorverwarmen Niet gebruiken.
2) Indien nicht anders vermeld gelden dezeijdnen voor een onverwarmde ovenruimte. Voor een voorverwarmde oven moet u dezeijdnen met 5-10 minuten verkorten.
TESTGERECHTEN. In overeenstemming met de norm EN 60350-1.
Grillen
| Soort gerecht | Accessoires Niveau au Verwar- | mingsfunc-tie | Temperatuur (°C) | Tijd (min.) |
| Toast van witbrood | Rooster 4 250 | 1) | 1,5 - 2,5 | |
| Rooster 4 250 | 2) | 2 - 3 | ||
| Rundvleesbur-gers | Rooster + bakplaat (voor het opvangen van lekkende vleessappen) | 4 - rooster 3 - bakplaat | 250 1) | 1 pagina 10 - 15 2 pagina 8 - 13 |
1)Verwarm de lege oven voor door hem 5 minuteen aan te zetten, de functie nsel voorverwarmen nicht gebruiken.
2)Verwarm de lege oven voor door hem 8 minute aan te zetten, de functie nsel voorverwarmen nicht gebruiken.
Bakken
| Soort gerecht | Accessoires Niveau | au Verwar- | mingsfunc-tie | Temperatuur (°C) | Tijd (min.) |
| Helekip | Rooster + bakplaat (voor het opvangen van lekkende vleessappen) | 2 - rooster 1 - bakplaat | 180 - 190 70 | - 90 | |
| Rooster + bakplaat (voor het opvangen van lekkende vleessappen) | 2 - rooster 1 - bakplaat | 180 - 190 80 | - 100 |
Indien nicht anders vermeld gelden dezeijdens voor een onverwarmde ovenruimte. Voor een voorverwarmde oven moet u dezeijdens met 5-10 minutes verkorten.
De zorg waarmee de gebruiker het fornuis reinigt en onderhoudt, heeft een belangrijke invloed op+zijn levensduur en probleemloze werkinq.
Voor de reiniging要去 de oven uitgeschakeld worden. Let er hierbij op dat alle draaiknopen in de stand " " /0" staan. De oven mag pas gereinigd worden als hij afgekoeld is.
De kookplaten
Vuil van bij voorbeeld verbrande restjes van gerechten moet van de kookplaat worden verwijderd met een zachte doek of sponsje (het zwarte oppervlak van de kookplaten mag met niets worden gewassen of geschuurd). De decoratieve vernikkelde ringen要去en worden gewassen met een afwasmiddel of een zacht schuurmiddel.
Het oppervlak van de kookplaten moet af en toe worden ingewreven met vaselineolie (van naaimachines) of met siliconenolie. Hiertoeogen absoluut geen vierlijke of plantaardige vetstoffen, zoals boter, smout, olie enz., worden gebruikt.
De geëmailleerde werkplaat要去 worden gereinigd met warm water en eenkleine hoeveelheid afwasmiddel.
Indien de werkplaat erg verruild is, kan het vuil verwijderd worden met een zacht schuurmiddel.
- De oven moet na elk gebruik gereinigd worden. Bij de reiniging moet de verlichting aangeschakeld worden, zodat u beter de werkkuimte ziet.
- De kamer van de oven mag enkel met warm water met een beetje afwasmiddel gereinigd worden.
Stoomreiniging - Steam Clean:
- giet 0,25l water (1 glas) in een kommetje dat u op het eerste niveau van onder in de oven plaatst,
- sluit de deur van de oven,
- stel de temperatuurknop in op stand 50^ , en de functieknop op de functie verwarmingselement onderaan
- warm de ovenkamer onceveer 30 minutes op,
- open de deur van de oven, reinig de binnenkant van de oven met een doek of sponsje en was de oven daarnauit met warm water met afwasmiddel.
- Wrijnf na het wassen de ovenkamer droog.
Opgelet!
Gebruik geen schurende reinigingsmiddelen voor het reinigen en onderhoven van de glazen voorzijde.
Vervanging van de halogeenlamp van de ovenverlichting
Zorg ervoor dat het apparaat is losgekoppeld van hetlichtnet voordat u de halophageampGaatervangen.Hiermee voorkomt u elektrische schokken.
- Stel alle draaiknoppen in op stand “ ”/“0” en schakel de voeding UIT,
- Draai het lampenkapje los en veeg hem heel goed droog.
-
Verwijder het halogeneenlampje. Gebruik hiervoor een doekje of papier. Vervang het halogeneenlampje indien nodig door een neue G9
-
spanning 230V
-
vermogen 25W
-
Plaats het halogenlampje voorzichtig in de fitting.
- Draai het lampenkapje vast.

Oververlichting
Wegnemen van de deur
Om gemakkelijker toegang te hebben tot de ovenkamer en die te reinigen,kest u de deur wegemen. Hiervoor moet u de deur openen en de beveiliging op het scharnier maar boven klappen (fig.A). Doe de deur Lichtjes toe, hef ze op en neem ze maar voor toe uit. Om de deur opnieuw te monteren gaat u omgekeerd te werk. Bij het monteren moet u erop letten dat de uitsparing op het scharnier correct op de uitstulping van de scharnierhouser geplaatst is. Plaats altijd de beveiliging terug nadat u de deur terug gemonteerd hebt en druk ze goed aan. Als u de beveiliging nicht correct terugplaatst, kan het scharnier beschadigd raken wanner u de deur probeert te sluiten.

Wegnemen van de deur
Verwijdersen van de binnenruit
-
Duw met behulp van een platte schroe-vendraier de bovenrand van de deur los, terwijl u hem aan de zijkanten voorzichtig oplicht (fig. B).
-
Verwijder de bovenrand van de deur. (fig.B, C)


- Trek de binnenruit uit de houder (in het onderste deel van de deur). Neem de middenruit weg. (Fig. D).
- Was de ruit met warm water en een Klein beetle reinigingsmiddel.
Ga omgekeerd te werk om de ruit op-nieuw te monteren. Het gladde deel van de ruit moet zich bovenaan bevinden.
Attentie! Druk de bovenlijst van de deur Niet gelijktijdig op beiden kanten van de deur. Voor een juiste montage van de bovenlijst van de deur drukt u eerst het linker uiteinde gegen de deur en drukt uervolgens op hetrechtter uiteinde tot u een duidelijke "klik"hoort. Hierna drukt u op het linker uiteinde tot u een duidelijke "klik"hoort.
Periodieke controle
Naast het lopende onderhoud en reiniging van het fornuis moet u ook:
regelmatig de werkung van de bedienings-elementen en de werkende onderdelen van het fornuis controleren. Na het verstreijken van de garantieperiode要去 u ten minste een maal per tweeJAar een technische controle van het fornuis latelyuitvoeren door een onderhoudsdienst,
- de vastgestelde gebreken verhelpen,
- een regelmatig onderhoud van de werkende onderdelen van het fornuisuitvoeren.

Verwijdersen van de binnenruit

Opgelet!
Alle herstellingen en instellingen要去en uitgevoerd worden bij een erkende onderhoudsdienst of door een erkend installeratuar met gespaste kwalificaties.
Bij probleemsituaities moet u:
- de werkende onderdelen van het fornuis uitschakelen
- de elektrische voeding ontkoppelen
- een herstelling aanvragen
- sommigekleine problemen kan de gebruiker zelf oplossen met behulp van de aanwijzingen in de tabel hieronder. Controller openvolgend alle punten in de tabel voordat u de onderhouds- of klantendienst contacteert.
| PROBLEEM | OORZAAK | HANDELSWIJZE |
| De elektrische uitrusting werkt nicht | Stroompanne | Controler de zekering van de huisinstallatie, verwang de doorgebrande zekering |
| De verlichting van de oven werkt nicht | losgekomen of beschadigd lampje | draai het lampje aan of verwang het doorgebrande lampje (zie hoofdstuk Reini-ging en onderhoud) |
Nominate spanning 230/400V~50 Hz
Nominal vermogen max. 7,5 kW
Afmetingen van het fornuis 59,5/59,5/57,5 cm
Het product voldoet aan de eisen van de normen EN 60335-1, EN 60335-2-6 die gelden in de Europese Unie.
De gegevens op de energia-etiketten van elektrische ovens staan vermeld in overeenstemming met de norm EN 60350-1/IEC 60350-1. Deze waarden zijn bepaald bij een standardbelasting met de actieve functies: onder- en bovenverwarming (conventioneel) en met ondersteuning door een ventilator (indien betreffende functies beschikbaar�).
De energia-efficientieklasse is aangeduid afhankelijk van de functies die in het product beschikbaar zich, in overeenstemming met de volgende prioriteiten:
| Gedwongen luchtcirculatie ECO (verwarmingselement hetelucht + ventilator) | ECO |
| Gedwongen luchtcirculatie ECO (verwarmingselement onder + boven + grill + ventilator) | ECO |
| Conventioneel ECO (verwarmingselement onder + boven) | ECO |
Tijdens de aanduiding van het energieverbruik moet u de telescoopgeleiders demonteren (indien beschikbaar in het product).
De producent verklaart hierbij, dat dit product voldoet aan de basisvereisten van de hieronder vernoemde Europese richtlijnen:
Laagspanningsrichtlijn 2014/35/EC,
- Richtlijn voor elektromagnetische compatibiliteit 2014/30/EC,
Richtlij voor Erp 2009/125/EC,
en dat het product waarom gerekt is met en dat er een conformiteitsverklaring voor afgeleverd werk, die ter beschikking gesteld worden aan de organen die toezicht honden over de markt.
Notice-Facile