Boreal - Heizung WANDERS - Kostenlose Bedienungsanleitung
Finden Sie kostenlos die Bedienungsanleitung des Geräts Boreal WANDERS als PDF.
Häufig gestellte Fragen - Boreal WANDERS
Questions des utilisateurs sur Boreal WANDERS
0 question sur cet appareil. Repondez a celles que vous connaissez ou posez la votre.
Poser une nouvelle question sur cet appareil
Laden Sie die Anleitung für Ihr Heizung kostenlos im PDF-Format! Finden Sie Ihr Handbuch Boreal - WANDERS und nehmen Sie Ihr elektronisches Gerät wieder in die Hand. Auf dieser Seite sind alle Dokumente veröffentlicht, die für die Verwendung Ihres Geräts notwendig sind. Boreal von der Marke WANDERS.
BEDIENUNGSANLEITUNG Boreal WANDERS
Technische tekeningen 55
Technische gegevens Boreal
Technische gegevens
Gebrauchsanweisung und Installationsvorschriften Boreal
Sehr geehrter Kunde,
Herzlichen Glückwunsch zum Kauf Ihres Holzofens, der eine komfortable Wärmequelle ist die Ohnen jahrelang Freue machen wird.
Bei der Entwicklung these Holzofens, haben wir vor Allem auf Benutzerfreundlichkeit, Sicherheit und Design geachtet. Bei der Entwicklung haben wir auch die neuesten Wünsche und Forderungen unserer Kunden zur Geltung kommt lessen. So haben wir die Frage um eine Option für ein drehbares Modell hinzugefügt, so wie auch die Mogglichkeit einer externen Luftzufuhr.
Bei der Entwicklung these Holzofens haben wir besonders auf Gebrauchsfreundlichkeit, Betriebssicherheit und Design geachtet. Der Boreal ist in unserer eigenen Fabrik in Netterden entwickelt, hergestellt und großenteils handgemacht. Bei der Produktion wurden nur die besten Materiale, die den europäischen Normen entsprechen, eingesetzt. Damit gewährleisten wir eine lange Lebensdauer these Holzofens.
Im ersten Teil dieser Gebrauchsanweisung geben wir Ihnen Tipps und Hinweise für die richtige und sichere Art ihren Holzofen zu benützen. Im zweiten Teil befinden sich die Installationsvorschriften sowie auch die technischen Angaben diesen Boreal Ofens. Diese sind vor Allem für den Installateur wichtig.
Vor Gebrauch Ihres Holzofens bitten wir Sie die Gebrauchsanweisung sorgfältig zu lessen und sie dann gut zu bewahren. Ihr Installateur braucht weiterecht diese Anleitung für die jährliche Wartung Ihres Ofens.
Wir wünschen Ihnen viel Wärme mit ihrem Kauf.
Das WANDERS Team
Inhalt
Ihr Boreal auf einen Blick 44
Montage 44
Den Ofen anzünden 44
Das erste mal Heizen 46
Heizmaterial:Holz 46
Die optimale Art zu Heizen 47
Schornstein und Rauchkanal 47
Wartung 47
Brandschutz 48
Garantie 48
Montagevorschriften Boreal 49
Technische Zeichnungen 55
Ihr Boreal auf einen Blick

Der Boreal
Der Boreal Ofen ist in verschiedene Ausführungen erhältlich. So gibt es eine drehbare Ausführung. Diese drehbare Modell kann maximal 120 Grad geschwenkt werden, um die Anforderungen zur Feuersicherheit gewährleisten zu konnen. Die Drehungen konnen stufenweise (jeweils mit 15 Grad) gemacht werden. Der Boreal ist mit einer Sparklappe im Rohrund versehen, um eine höhere Nutzleistung während des Heizens zu erzielen. Bei dem Boreal haben Sie auch die Möglichkeit, eine externe Luftzufuhr anzuschreiben (nur an der Unterseite des Gerätes).
Anhand einer drehbaren Platte kann die Luftzufuhr für die Verbrennung des Heizmaterials geregelt werden. Durch ein findiges System der Luftzirkulation wird die Verbrennunglauf erwartt und mit einem System zur Scheibenreinigung verbrannt. Durch these System entstehen eine saubere Verbrennung und hat auch eine bessere Wärmeerzeugung, wodurch der Verbrauch von Heizmaterial geringer ist.
Der Boreal ist eine Kombination von Komfort und effizienter Wärmeabgabe. Der Ofen hat einen Aussenmantel und einem inneren Mechanismus. Dadurch kann 60% der Wärme, mit Konvektoren, Schnell den Raum erwärmen. Die übrigen 40% der Wärme
kommen durch die Strahlung über die Glasflächen frei.
Notabene: der Ofen darf nie mit dem Glasfenster zur Wand gerichtet stehen und das noch mindestens zwei bis drei Stunden nach dem Heizen.
Montage
Im Allgemeinen kummert sich der Handler, wo Sie den Ofen gekauft haben, auch um die Installation. Wenn das nicht der Fall ist, beachten Sie, dass die Installation von einem anerkannten Installateur gemacht wird. Ein anerkanter Installateur kann Ihnen auch den korrekten Rat geben, über den Rauchabzugskanal an welchen der Ofen angeschlossen werden muss. Der Anschluss der Holzöfen durch Unbefugte, ist verboten. In dem Fall konnen wir Ihnen die gute Funktion des Boreal Ofens nicht garantieren.
Bei der Installation müssen Sie auch auf die Brandschutzvorrichtung achten. Sie Seite 48.
Dieser Holzofen ist als Zusatzheizung geeignet und kein Ersatz für ihre Zentralheizung.
Anschluss eines Holzofens durch Unbefugte ist nicht zugelassen. In dieser Fall können wir ein korrektes Funktionieren des Boreal's nicht garantieren
Den Ofen anzünden
Ihren Ofen im Herbst oder Ende Winter anmachen
Wenn die Außen- und Raumtemperatur nicht viel verschieten sind, ist einGreater Kaminabzug eine richtige Herausforderung. Früh im Herbst oder Ende des Winters konnen Sie für einen gute Abzug sorgen, indem Sie weniger Holz verbrennen und alle Luftungsöffnungen maximal offen halten. Viel Luftzufahr fordert einechnelle Erwärung und regt einen gute Abzug an. Mit weniger Holz heizen verhindert, dass der Rauch wieder in den Raum stromen kann
Der Ofen wird beim anmachen und heizen sehr heißt und braucht mindestens zwei Stunden um abzukühlen. Berühren sie deshalb den Ofen während des Heizens oder bis zwei Stunden danach, nicht ohne Schutz und bedienen Sie den Ofen immer mit Handschuhen, weil Sie sich sonst schwer verbrennen können.



Öffn der Tür

Luftzufuhr Bedienung

Schüttelrost mit Schüttelstange
Sparklappe im Rauchrohr
Die große Ziertüre und die Ofentüre öffnen und einige Papierknäuel oder Feueranzünder in den Ofen legen und darauf auf einige keine Stückchen Holz. Machen Sie die Luftreglerplatte und die Sparklappe im Rohrmund ganz auf. Den Schüttelrost und Schüttelstange ganz in den „offen" Stand bringen und setzen Sie den Aschenkasten für extra Luftzuführ offen. Zünden sie die Holzstücke an und setzen die Ofentür für zusätzliche Luftzuführ einen Spalt offen. Wenn der Ofen brennt, konnen Sie zusätzliches Heizmaterial hinzufügen und die Ofentüre, den Schüttelrost und den Aschenkasten zumuchen. Legen Sie jedoch nie mehr als 3 Holzscheite gleichzeitig in den Ofen. Wenn der Ofen dann gut brennt, konnen Sie zuerst die Sparklappe zuschieben und eventuell danach die Luftzufuhrplatte mehr zudrehen, sodass Sie die weitere Luftzuführ selbst bestimmen konnen, und wodurch der Ofen nicht so stark brennt. Achten Sie daraufuf, dass immer, wenn der Holzofen, brennt genügd Luftzirkulation vorhanden ist.
Wenn wieder Holz zugelegt werden muss, öffnen Sie dann die Sparklappe ganz, bevor Sie die Ofentür aufmachen. Dadurch wird verhindert, dass Rauch in den Raum strömt. Nach dem Einlagen von Holz kann die Sparklappe wieder zugeschoben werden.
Wenn Sie ein drehbares Modell haben, konnen sie, anhand eines Zugknopfes den Ofen drehen (siehe Foto). Die Drehung ist maximal 60 Grad nach links oder 60 Grad nach rechts möglich, dies um den Anforderungen zur Brandsicherheit zu genugen.

Knopf um den Ofen zu drehen
Es ist verboten, mit flüssigen Stoffen, so wie Benzin und Spiritus, den Ofen anzumachen. Vermeiden Sie, dass im gleichen Raum in welchem der Ofen stehen, eine Abzughaube an ist. Berühren Sie während des Heizens nie die lackierten Teile des Ofens.
Achten Sie auf Fingerabdrücke
Achten Sie daraufuf, dass Sie die Scheiben des Ofens nicht mit den Fingern berühren. Fingerabricks brennen in das Glas und konnen danach nicht mehr entfern werden.
Verfürbung von Wänden, Decken und Roste
Durch Heizen des Ofens, können Wände, Decken und Roste sich verfahren. Das kommt dazu, dass Staubteilchen im Konvektionsmantel verbrennen. Das ist ein natürlicher Vorgang, wofür WANDERS nicht verantwortlich ist. Um Verfärbung zu minimalisieren, verweisen wir Sie auf den Rat der von der Branche der Kaminöfen gegeben wird. Ihr Installateur kann Sie darauf beraten.
Wenn Sie den Boreal das erste Mal in Gebrauchnehmen, muss der Ofen „eingebrannt" werden. Das Gerät ist mit einer hitzebeständigen Lackschicht versehen, die bei Temperatur die hoher sind als 400^ Celsius, in den Ofen einbrennen. Das geschieht die ersten paar Male, wenn Sie die ersten paar Male heizen, wenn die Temperatur auf mehr als 600^ Celsius steigen. Außer desses „Einbrennen" einen unangenehmen Geruch mit sich bringen, der aber unschädlich ist. Wir raten Ihnen, den Ofen die ersten 4 bis 6 Mal mindest Stunden mit nicht zu viel Heizmaterial brennen zu halten. Wahrend des Heizens muss gut geluftet werden. Vermeiden sie, dass, während sie heizen, im selbst Raum eine Abzughaube an ist; Eine Abzugshaubezieht Verbrennungsluft, die der Ofen braucht, weg.
Während des Einbrennens kann sich ein Belag auf Scheiben und Ofentür bilden. Diese Belag kann ganz einfach mit einem feuchten Tuch abgewischt werden, wenn der Ofen wieder kalt ist. Sie können auch spezielles Reinigungsmittel für keramische Kochplatten benützen. Berühren sie die Scheiben, ach dem Reinigen, nicht mehr. Fingerabrücke brennen in das Glas und halten sich nicht mehr entfern.
Neubauwohnung oder vor kurzem renoviert?
Warten sie sechs Wochen mit heizen in einer Neubauwohnung die vor kurzem fertig gestellt wurde, oder einem Raum der stark renoviert wurde. In den Wänden und Decken befinden sich noch Gase, Weichmacher und Feuchtigkeit von den Stuck- und Malerarbeiten. Durch die Luftströme können sich die vielen Staubteilchen im Raum verfüllen und sich auf Wände und Decken festsetzen. Auch die noch vorhandene Feuchtigkeit in Wänden und Decken erwartt sich und kann gelbe Flecken verursachen.
| Holzart | Trocknungsszeit | |
| Kiefer, Pappel | 1 | Jahr |
| Linde, Weide, Tanne, Birke, Esche, Erle | 1,5 | Jahr |
| Obstbäume, Buche | 2 | Jahr |
| Eiche | 2,5 | Jahr |
Der Boreal kann nur mit Holz beheizt werden. Legensie nie mehr als 3 - 4Kg Heizmaterial in den Ofen. Benützen Sie immer sauberes, gehacktes Holz das genügdend trocken ist. Die Trocknungszeiten sehen Sie in der Tabelle oben. Feuchtes Holz brennt schlecht und erzeutig übermösig viel Rauch. Dadurch konnen die Scheiben des Ofens vom Russ schwarz werden. Russ kann sich auch im Rauchabzugkanal festsetzen, was die Möglichkeit auf einen Schornsteinbrand erhöht.
einschänrfeuchtes Holz enthalt noch ungebahr 50% Feuchtigkeit. Nach einer Trockungszeit von einem Jahr, enthalt gespaltetes Holz noch 20% Feuchtigkeit. Nach 12 bis 15% gesunden. Trockenes Holz gibt eine einzene Flamme und so gut wie kein Rauch ab. Wahrend des Verbrennens kann man das Holz prasseln horen. Feuchtes Holz erzeugt ein zischendes Gerausch, viel Rauch und eine petite Flamme. Die Freude am Heizen und die Nutzleistung werden stark beeinträchtigt.
Holzarten und Lagerung
Alle Arten sauberes, gespaltetes und trockenes Holz konnen als Heizmaterial gebraucht werden. Harte Holzarten, sowie Eiche, Buche und Birke brennen langsam, geben viel Wärme ab und bilden leicht Holzkohle. Weichere Holzarten, sowie Kiefer, Tanne und Poppel erzeugen mehr Flammen aber weniger Wärme und weniger Holzkohle. Holz wird am Besten an einer windigen Stelle, aber gut vom Regen geschützt, gelagert. So trocknet das Holz auf natürliche Art. Stapeln Sie die Holzblöcke auf einer alten Palette oder auf einem Rost. So kann das Holz auch von unter trocknen und bleiben die untersten Holzblöcke trocken.
men
Benutzen Sie in Ihr dem Ofen keine Holzblocke die Paraffin enthalten. Wenn die Ofentür geschlossen ist schmilzt das Paraffin zu schnell aus den Holzblocken. Die verschmutzten Rauchgase die dadurch entstehen, bilden einen Niederschlag auf der Scheibe der Ofentür, brennen ins Glas und konnen dann nicht mehr entfern werden.
Benutzen Sie kein gestrichenes, imprägniertes, verleimtes oder anderweitig bearbeitetes Holz. Die Rauchgase sind sehr schädlich für das Milieu und können ihren
Schornstein und Rauchkanal
Ofen antasten. Es ist auch verboten darin Plastik oder anderen Abfall, wegen der giftingigen Rauchentwicklung, zu verbrennen.
Die optimale Art zu Heizen
Die Öfen von WANDERS sind so entworfen, dass sie die beste Nutzleistung erzeugen. Ein gut beheizter Holzofen kann eine Nutzleistung von etwa 75% erreichen. Dadurch verbrauchen Sie weniger Holz um genausoviel Wärme zu erzeugen. Darüber hinaus, verursacht ein gut beheizter Öfen weniger Verschmutzung durch Rauch. Hier einzel Tipps für viel Freude am Heizen:
Schlieben Sie während des Heizens mit Schuttelrost zur gleichmäßigen Verbrennung.
- Schließen Sie während des Heizens die Sparklappe. So sparen Sie eine betrachtliche Menge Brandmaterial wodurch Sie die Nutzleistung des Ofens steigern.
Heizen sie ihren Ofen immer mit geschlossener Tur. Dadurch liegt die Nutzleistung 8- bis 10-mal hoher. Wenn die Ofentur auf ist, saugt der Kamin mehr Luft, als für eine gute Verbrennung nötig ist, an. Die relativ kalte Luft kühlt auch das Feuer. Gleichzeitig wird auch Feuerschaden durch heraussprühende Funken, vor allem bei Nadelholz, vermieden.
- Legen sie nie mehr als 3 Holzsche auf das Feuer. Viel Heizmaterial verhindert eine effiziente Verbrennung und belastetURNigt das Milieu.
- Luftten Sie gut den Raum wenn sie heize prasselndes Holzfeuer hat einen minimalen Verbrauch von 25 Kubikmeter Luft pro Stunde. Machen Sie nie eine Abzugshaube an, wenn im gleichen Raum ein Ofen brennt.
Vorsicht bei windstillem und nebligem We windstillem Wetter gibt es beinahe keinen Zug um Kamin. Weil Rauch schwerer ist als Luft, ist es möglich, dass der Rauch in den Raum strömt. Bei Nebel kühlt kann der Rauch aus dem Schornstein sehr}schnell abkühlen und fallen und damit in der Umgebung hinterlich sein.
- Löschen Sie nie das Feuer mit Wasser, sondern halten es von selbst ausgehen. Die Ma Ofen können sich sonst durch den plötzlichen Temperaturunterschied verformen oder reifen.
- Wenn Sie das Feuer drosseln wollen, müssen sie erst die Rauchgasabzugsklappe schlieben und danach dann die Luftzufahr. Nie mit Wasser loschen
Schornstein mit gutem Zug
Warne Luft will steigen. Auf diesen Prinzip Funktioniert jeder Schornstein. Was darauf hilft, ist dass der Wind auch noch die Luft von der Schornsteinausmundung „weg saugt".
Manchmal kann aber ein Fallwind die umgekehre Wirkung haben und die Luft in den Schornstein blasen. So kann auch eine relativ schwere Nebelluft den eigenen Zug im Schornstein hemmen. Auch ein zu länger Rauchkanal mit rauer Oberfläche und zuvielen Biegungen ergibt diese Wirkung. Bei einem natürlich schlechten Zug kann Sie der Installateur
Höber den Gebrauch eines Ventilators im Rauchkanal aufklären
Der Schornstein ist der wichtige Teil Ihres Holzofens; Der korrekte Schornstein verhindert dass Rauch in den Raum stromt, sich ein Belag auf der Scheibe bildet und schlechte Verbrennung. Bevor Sie den Ofen montieren, muss Ihr Handler oder ein anerkanter Schornsteinfeger den Schornsteinkanal über dieGPC Lange kontrollieren ob er mindestens einen Durchmesser von 150 Millimeter hat und ob der Kanal sauber, glatt und dicht ist.
Was tun wenn es einen Schornsteinbrand gibt?
Bei einem Schornsteinbrand müssen sie sofort das Ventil im Schornstein und alle andere Luftzufuhrkanä schließen. Die Feuerwehr anrufen. Nach dem Löschen muss der Schornstein und der Ofen von ihrem Installateur überprüft und neu zugelassen werden.
Wartung
Kleine Wartung
- Wir raten Ohnen, eine zwei bis drei Zentimeter dicker Heriachicht Asche liegen zu halten. Dies gewährt einen Schutz für die Feuerstelle.
- Entfernen Sie 2 bis 3 Mal proWoche die abgekuhlte Asche. Wir raten Ihnen einen Ascheimer zu benutzen. Eine saubere Aschenlade ist wichtig, da der Ofen auch durch die Aschenlade Luft ansaugt.
- Reinigen Sie den Schüttelrost des Ofens mit weichen Bürste.
- Reinigen sie den Ofen an der Außenseite mit einem feuchten, nicht fusselndem, Tuch. Benutzen Sie keine beîßende Putz- oder Scheuermittel.
- Reinigen Sie den kalten Scheiben mit einem Putzmittel für Keramikkochplatten. Berühren sie dann das gereinigte Glas nicht mehr mit ihren Fingern.
Fingerabdrücke brennen ins Glas.
Schmieren Sie ab und zu die Scharniere der Ofentur.
Benutzen sie keine beizenden Putz- und Scheuermittel im ihren Ofen zu pflegen.
Außer Gebrauchnahme
Schlieben Sie die Tur und Luftzufuhr im Sommer
- Legen Sie Feuchtigkeitsabsorbierendes Salz Ofen, wenn dieser in einem feuchten Raum stehen.
Schmieren Sie die sauberen gusseisernen neutraler Vaseline ein.
Jährliche Wartung
- Mit Bezug auf Brandschutz und eventuell Brandschutzversicherung, müssen Sie den Schornstein jährlich durch einen anerkannten Schornsteinfeger gegen halten.
- Lassen sie jährlich den Rauchgasabzug u. Verbrennungsluftzufahr des doppelwandigen Rauchkanalsystems auf Undurchlüssigkeit prufen.
- Lassen Sie den Schüttelrost jährlich auf kontrollieren.
- Lassen Sie jährlich das gesamte Kanalsystem auf ihren Boreal gibt Ihnen WANDERS Metalproducten einschließlich der Durchfuhr durch das DachB.Voder Netterden ein Jahr Garantie ab Kaufdatum, der Fassade und deren Ausmündungen kontrollieren. vorausgesetzt dass der Ofen korrekt installiert und gemäß
- Lassen Sie jährlich die Funktion der Sichte oder Klappen kontrollieren.
- Lassen sie jährlich all Dichtungen von Glasscheiben auf Verschleiberscheinungen prufen.
- Der Holzofenarf nur durch einen anerkannten installateur und mit originalen Ersatzteilen repariert diwerden.
tern auf ihren Boreal gibt Ichn WANDERS Metaalproducten chB.Voder Netterden ein Jahr Garantie ab Kaufdatum, vorausgesetzt dass der Ofen korrekt installment und gemäß
Brandschutz
Mit einem WANDERS Holzofen haben Sie komfortable und sichere Wärmequelle im Haus. Der Brandschutz fängt bereits mit der korrekten Installation und einem gut Funktionierenden Rauchgasabzug an. Ihr Installatur musslich dazu und die Installationsvorschriften, wie auf Seite 49 beschrieben, halten. Um sicher zu Heizen, sind die folgenden Punkte wichtig:
- Heizen Sie ihren Holzofen so viel wie möglich mit geschlossener Ofentür; dadurch haben Sie eine bessere Nutzleistung und es ist weniger belastend furs Milieu.
- Verhindern Sie, dass keine Kinder und hilfsbedürftige Personen in die Höhe des Ofens kommt und setzen sie, wenn der Ofen brennt, nicht allein. Gebrauchen Sie eventuell einen Kaminvorsatz.
- Giessen oder stellen Sie nie brennbare Flüssigkeiten oder Materiale auf den brennenden Ofen. können den Ofen unwiderruflich beschädigen.
- Stellen Sie nie den Ofen vor eine Wand die mit brennbarem Material (wie Tapete)bekleidet ist.
- Der Boreal Holzofenarf nicht eingebaut werden.
- Der Abstand zwischen dem Boreal und der dahinter
liegenden feuerfesten Wand muss, in allen gedrehten Positionen, immer mindestens 10 Zentimeter betragen.
- Der Abstand zwischen der Seite des Ofens mit Glasscheibe und der Wand muss, aus Brandschutzgründen, immer mehr als 80 Zentimeter betragen.
-
Bringen sie kein brennbares Material, zum Beispiel Gardinen, Holzgegenstände (Schränke, Bilder), in die Nähne des Ofens oder des Kamins. Halten Sie mindestens einen Abstand von 100 Zentimeter ab dieuAuBenseite des Ofens oder des Kamins ein.
-
Wenn der Fußboden um den Holzofen herum aus brennbarem Material ist, benützen sie dann eine feuerfeste Bodenplatte. Für die Minimummasse einesehen Sie auf Seite 50 in den Montagevorschriften nach.
Garantie
Hichben Anwandsungen in dieser Gebrauchsanweisungbenutzt wurde. Unter diese Garantie fallen alle Mangel die auf Tumateriobder Konstruktionsfehler zurückzuführen sind. In diesen Fällen erhalten Sie gratis neue Ersatzteile. Der Arbeitslohn und andere Kosten fallen nicht unter die Garantie. Fehlerhafte Teile konnen Sie franco an WANDERS Metaalproducten B.V. Amtweg 4, 7077 Al Netterden (Holland) schicken.
Vor Montage des Ofens müssen Sie kontrollieren ob das Gerät keine sightbaren Schäden aufweist. In dem Fall müssen Sie das Gerät nicht akzeptieren, müssen aber mit ihren Lieferanten Kontakt aufnehmen.
Nicht unter die Garantiefallen: Störungen die durch nicht sachgemäßen Gebrauch entstanden sind; nicht Befolgung der Installations- und Bedienungsvorschriften; Montage durch einen nicht von WANDERS anerkannten Installateur, Vernachlässigung des Ofens und bei einem Wechsel des Besitzers. Die Garantie verfällt auch, wenn verkehrtes Heizmaterial benutzt wurde.
Für folgendes Zubehör gilt eine Garantiefrist von 1 Jahr: alle gusseisernen und Vermiculit Teile, das elektrische Zubehör, und der Lack.
Wanders ist nicht verantwortlich für eventuelle Risse im Feinputz und Verfährungen der Wände, Decken und/oder Roste nach Heizen des Ofens.Verfährungen konnen entstehen weil Staubteilchen im Konvektionsmantel
verbrennen. Um eventuelle Risse im Feinputz und Verfarbungen zu minimalisieren, verweisen Sie auf den Rat der von der Branche für Kaminöfen gegeben wird. Ihr Installateur kann Sie darüber informieren.
Reklamationen werden erst dann behandelt, wenn die Verkaufsfirma, der Installateur eine Reklamation, zusammen mit einer Kopie des Kassenzettel mit Kaufdatum, eingereicht hat. Reparaturen berechtigen nicht zu einer Veränderung der Garantie. Alle Folgeschäden sind ausgeschlossen.
Montagevorschriften Boreal
Allgemeine Anweisungen 49
Vorbereitung 49
Installation 51
Reparaturen 52
Technische Angaben Boreal 53
Allgemeine Anweisungen
Der Boreal ist in verschiedene Ausführungen erhältlich. So gibt es auch eine drehbare Ausführung.
Dieses drehbare Modell kann maximal 120 geschwenkt werden, weil sonst die Anforderungen zur Feuersicherheit nicht gewährleistet werden können. Die Drehungen können stufenweise (jeweils mit 15 Grad) gegart werden. Um ein Drehmodell gut funktionieren zu halten, müssen die externe Luftzufuhr und der Rauchgasabzug senkrecht untereinander stehen. Der Boreal ist mit einer Sparklappe im Rohrund versehen, sodass Sie eine höhere Nutzleistung während des Heizens erzielen können.
Der Boreal Ofen ist zusammen auch mit einer Möglichkeit eines Anschlusses für externe Luftzuführ ausgerüstet (Anschluss nur an der Unterseite des Ofens möglich).
Der Rauchabzugkanal hat einen durchmesser von 150 mm. Die externe Luftzufuhr hat einen durchmesser von 100mm
Der Ofen davon nur durch einen anerkannten Installateur und gemäß den unter beschrieben Installationsvorschriften montiert werden. Dabei müssen auch die nationalen und ortlichen Gesetze und Vorschriften für Installation und Gebrauch von Holzöfen beachucht werden. WANDERS bietet keine Garantie bei unvollständig oder nicht korrekt angeschlossen oder
installiertem Boreal.
Der Ofenarfndicht montiert werden in:
GadAllgemein zugangliche Galerien und Gange
-
Treppenhäuser, außer in Gebäuden mit nur zwei Stockwerken
-
In Räumen, in welchen leicht entflammbare oder explosive Stoffe verarbeitet werden.
-
In Räumen in welchen sich eine Abzughaube oder ein mechanisches Absaugsystem befindet, außer dann wenn die Luftzufahr direkt von außen geholt wird sodass die Verbrennung ohne Gefahr geschehen kann.
Vorbereitung
Der Rauchabzugskanal
Bevor der Ofen montiert werden kann, müssen folgende Punkte beachtet werden:
- Wenn der Ofen an einen schon bestehenden Rauchabzug angeschlossen werden soll, dann muss dieser erst durch einen anerkannten Schornsteinfeger fachkundig gefegt und kontrolliert werden. Eventuell vorhandene Ventile müssen entfernt werden.
-
Der Rauchgasabzug des Ofens muss ohne Umwege direkt an den Rauchgaszugskanal angeschlossen werden.
-
Der Unterdruck im Schornsteinkanal muss mindestens 10 Pa oder 0,1 mBar betragen. Wenn diese Werte nicht erreicht werden, muss der Anzugkanal verlangert oder ein Rauchgasventilator eingebaut werden.
- Der Schornsteinkanal muss immer in der Ausmündungszone 1 Herauskommen. Wenn das nicht der Fall ist, ist es gut möglich, dass Rauchrückschlag entstehen.
- Der Schornsteinkanal muss bei der Montage sauber und ohne Behinderung einen Durchmesser von 150 mm haben.
Eventuelle Biegungen im Rauchabzugskanal nicht mehr als 45 Grad betragen. - Sie müssen sicherenstellen, dass der Rauchabzugskanal die Rauchgase gut genug und auf sichere Weise abziehen kann.

Zufuhr von Verbrennungsluft
Dem Ofen muss immer genügend frische Verbrennungsluft zugeführrt werden. Wenn notig, machen Sie eine zusätzliche Öffnung für Luftzufahr so nah wie möglich bei dem Ofen. Dadurch vermeiden Sie Zugluft. Eine zusätzliche Luftzufahr ist unbedingt erforderlich wenn:
- Der Raum ein System zur Wärmerückgewinnung hat
- Der Raum ein zentrales Absaugsystem hat
- Eine Abzughaube sich im gleichen Raum befindet
Die Öffnung der Luftzufuhr muss zu schreiben sein, wenn sie durch eine feuerbeständige Wand führt. Wenn mehrere Öfen im gleichen Raum stehen, müssen genugend Lüftungsöffnungen anwesend sein, sodass sorgloses Heizen gewährleistet wird.
Der Boreal Ofen ist auch mit einer Möglichkeit für einen Anschluss für externe Luftzuführ ausgerüstet. Diese kann an der Unterseite des Ofens angeschlossen werden. Die Länge und der Durchmesser des Kanals der Luftzuführ ist jedoch wichtig. Die Luftzuführ mit einem Durchmesser dürfen 100 mm darf maximal 1 m lang sein und 1x eine Biegung von 90 Grad haben. Wenn die Länge größter ist, muss der Diameter vergroßert werden.
Brandschutzvorrichtung
Im Zusammenhang mit Brandschutz ist es wichtig, dass Sie die unter erwähnten Vorschriften beachten, bevord der Ofen montiert wird.
- Der frei Abstand zur rückwärftigen Wand muss, in jeder geschwenkten Position, mindesten 10 Zentimeter betragen.
- Halten Sie mindestens 80~cm Abstand zwischen Ofen und brennbaren Materialen ein. Denken Sie darauf an Gardinen, Gegenstände aus Holz (Schränke und Gemälde) und Glasgegenstände. Halten sie den gleichen Abstand vom Rauchabzugskanal ein
- Die Wand hinter dem Kamin muss aus feuerfestem Material sein oder muss damit isoliert werden. Das Isolationsmaterial muss eine Temperatur von 700 Grad Celsius vertragen konnen und eine Dichte von, 80Kg / m^3 haben. (Siehe Seite 54).
- Wenn der Rauchgasabzug durch die Decke und/oder das Dach führt welche aus brennbarem Material bestehen, müssen diese rundum +80 cm mit feuerfestem Material bekleidet werden. Achten sie hierbei auf Zwischenbalken und eventuell elektrische Leitungen.
- Zwischen Ofen und tragenden Konstruktionsteilen aus Stahl muss mindestens ein Abstand von 50 cm (rundum) eingehalten werden.
- Holzerne Konstruktion die innerhalb des 80 cm Bereichs des Ofens sind, müssen mit feuerfestem Material verkleidet werden.
- Schützen sie alle brennbare Materialie die sich in einem Strahl von 80 Zentimeter der Ofentür befinden Nehmen Sie dazu feuerfeste Materialie.
- Vermeiden Sie Wärmedurchschlag bei der Montage. Die Wärme die der Ofen ausstrahlt kann durch die Wandziehen. Dies kann)sagar Brand auf der andere Seite der Wand verursachen.Verhindern Sie dies!
Installation
Der Boreal ist gemäß der internationalen Norm 13240 geprüft und kennt, bezüglich Rauchgase, eine zusätzliche ausgebreitetene Normierung für optimes, Umwelt freundliches Heizen (Art. 15a B-Vg. Des BmfWA). Der Ofen kann an einen Rauchgasabzugskanal, 1 an welchen mehrere Öfen angeschlossen sind, angeschlossen werden. Der Borealarf auf keinen Fall eingebaut werden.
Der Ofenarf nur durch einen anerkannten Installateur und gemäß den unten beschriebenen Installationsvorschriften montiert werden. Dabei müssen auch die nationalen und ortlichen Gesetze und Vorschriften fur Installation und Gebrauch von Holzöfen beachtet werden. WANDERS bietet keine Garantie bei unvollständig oder nicht korrekt angeschlossen oder installiertem BOREAL.
Anschluss des Ofens
Vergewissern Sie sich, dass der Fußboden das Gewicht des Ofens problemlos/TRagen kann.
Bevor Sie den Ofen montieren, folgen sie erst die Anweisungen aus dem vorigen Kapitell „Vorbereitung". Achten sie darauf, dass Sie ihren Rücken und den Fußboden während der Installation nicht ladieren.
- Kontrollieren ob die Verpackung keine Schäden aufweist.. Wenn ja,nehmen Sieitte Kontakt auf mit der Firma.
- Ist der Schornstein gefegt und sauber (siehe Kapitel „Vorbereitung'').
- ist der Kanal für die Luftzufuhr sauber und frei? (siehe Kapitel „Vorbereitung").
- Sind die Vorschriften zur Brandsicherheit erfüllt? (siehe Kapitel „Vorbereitung).
- Entfernen Sie die Sicherungsschrauben des Transports.
- Stellen Sie den Ofen an die gewünschte Stelle (achten sie darauf, dass Sie damit den Fußboden nicht beschädigen und ihren Rücken nicht überbelasten).
- Rücken sie das Rohr zwischen den Ofen und den Rauchabzug. Dieses dann so gerade wie möglich anschlieben. Das Rohr des Rauchabzugs mindestens aus 2mm dickem Stahl sein. Vorsicht: das Rohrdehyt sich in der Länge, pro Meter um 1cm. Achten Sie daraufuf, dass der Abzug zwischen Rohröffnung und der Decke nicht klemmt.
- Schlieben sie eventuell die externe Zufuhr fur Luft zur Verbrennung an. Bei dem Boreal auf einer Konsole, muss erst die Vorderplatte dieser Konsole weggenommen werden.
- Legen Sie die zwei Kehrplatten auf die davon vorges-
ehenen Stützen.
- Wenn Sie die Drehausführung gekauft haben, konm Eillieren Sie jetzt, ob die Drehung störungsfrei zumachen ist. Dies konnen Sie machen, indem sie den Knopf unter am Ofen Herausziehen und den Ofen drehen.
- Die Installation ist jetzt fertig und Sie konnen anfangen zu Heizen. Siehe Kapitel „Anmachen des Ofens".



Transportsicherungen


Umlenkplatte
Externer Luftanschluss unter


Entfernen Vorderplatte der Konsole
Ofendrehen
Reparaturen
Auswechseln der Glasscheibe
Vorsicht, das Glas ist scharf
Entfernen Sie die 4 Schrauben und die Federplättchen in den inneren Winkeln der Ofentür.
Nehmen Sie vorsichtig die Scheibe und eventuellen Scherben weg.
Technische Angaben Boreal
Technische Angaben
| Tür Verschluss Ba I/II |
| Nominales Leistung* 7 kW |
| Rohrdurchmesser Verbrennungsgase 150 mm |
| Maximale Füllung mit Holz 3 kg |
| Maximale Füllung mit Braunkohle - kg |
| Inhalt Brennkammer 0,05 m3 |
| Oberfläche Boden der Brennkammer 0,09 m2 |
*nominale Wärme von 7 KW wird mit einem Schornsteinzug von 0,10 mbar
Heizmaterial, Holzscheite 30 × 10 ~cm
| Max. Einlagen | 3 Stück |
| Primäre Luftklappe | max. |
| Sekundäre Lüftungsöffnung | max. |
| Brennzeit Heizmaterial | ungeführ 1 Stunde |
Rauchgaswerte gemäß DIN 4705, DIN 18895 Teil 2
| Mit geschlossener Tür | Holz | |
| Rauchgasmenge | 6,6 | g/s |
| Rauchgastemperatur | 340 | °C |
| Vordruck | 0,12 mbar | |
| Nutzleistung | 78,4 % | |
| CO op 13% O2 | 0,05 % | |
| Feinstaub | 23 mg/m3 | |
| Prüfungsinstitut 1625. Prüfnorm EN13240. Prüfungsgutachten nr. RRF - 40 09 1849 | ||
Richtwerte für den Inhalt des zu wärmdenden Raums:
Nicht alle Räume entsprechen den heutigen Vorschriften betreffend Isolation. Für den Inhalt des zu wärmenden Raums konnen folgende DIN 18893 Werte erwähnt werden.
Bei gänstigen Umständen: berechnet gemäß DIN 4701
Bei weniger gänstigen Umständen 120 m3
Bei ungänstigen Umständen: 82 m3
Für eine kurzfristige Beheizung, mit einer Unterbrechung von mehr als 8 Stunden, kann man für den zu wärmdenden Inhalt 25% weniger rechnen.
Tabelle Isolationsmaterial: NB nur das was im gefarbten Gebiet stehen ist erlaubs
| Isolation Verpackt auchs Temp. | Wärmeleitung Höchste | Gebr- Dichte | |||||||
| nr | Artikel | nr | Form | nr | verpackt | nr | °C | nr | Kg/m3 |
| 10 | Mineralwolle | 01 | Bahren | 01 | Matten genäht | 10 | 100 | 02 | 20 |
| 11 | Glaswolle | 02 | Lose Wolle | Matten vernäht | 12 | 120 | 03 | 30 | |
| 12 | Steinwolle | 03 | Wolle | 02 | Matten vernäht | 14 | 140 | 04 | 40 |
| 13 | Schlacke | Granulat | G. Krumme 2 | 16 | 160 | 05 | 50 | ||
| 04 Filz21 PlattenG. Krumme 2 | 06 | 60 | |||||||
| 05 | Lamellenmatte | 10 | Splitter | 07 | 70 | ||||
| Vernähte | G. Krumme 1 | 08 | 80 | ||||||
| 06 | Matten | 11 | Platten | 09 | 90 | ||||
| 07 | Platten | G. Krumme 2 | 10 | 100 | |||||
| 08 | Schalen | 72 | 720 | 11 | 110 | ||||
| 09 | Segmente | 20 | Platten | 74 | 740 | 12 | 120 | ||
| 10 | Geflochten | G. Krumme 1 | 76 | 760 | 13 | 130 | |||
| 18 | 180 | ||||||||
| 99 | Übrige | 99 | Einzeln | 99 | 99 | ||||
Suchen Sie sich in der Tabelle das Isolationsmaterial aus. NB: Gruppe 99 ist NICHT zugelassen.
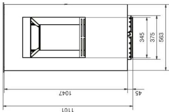
Technische tekeningen / Technical drawings Dessins techniques / Technische Zeichnungen
Boreal draaibaar
Boreal rotating
Boreal tourant
Boreal Drehbar



Boreal standard Boreal standard Boreal base Boreal Basis



Boreal standard Boreal standard Boreal base Boreal Basis



Boreal draiaibaar
Boreal rotating
Boreal tourant
Boreal Drehbar




Technische tekeningen / Technical drawings / Dessins techniques / Technische Zeichnungen

EinfachAnleitung