ERDV165-55S3 - Kühlschrank ESSENTIELB - Kostenlose Bedienungsanleitung
Finden Sie kostenlos die Bedienungsanleitung des Geräts ERDV165-55S3 ESSENTIELB als PDF.
Laden Sie die Anleitung für Ihr Kühlschrank kostenlos im PDF-Format! Finden Sie Ihr Handbuch ERDV165-55S3 - ESSENTIELB und nehmen Sie Ihr elektronisches Gerät wieder in die Hand. Auf dieser Seite sind alle Dokumente veröffentlicht, die für die Verwendung Ihres Geräts notwendig sind. ERDV165-55S3 von der Marke ESSENTIELB.
BEDIENUNGSANLEITUNG ERDV165-55S3 ESSENTIELB
Die in der Produktdatenbank erfassten Angaben zu den Modellen finden Sie auf der folgenden Seiten, indem Sie nach der Kennung Ihres Modells (*) suchen, die auf dem Energieetikett angegeben ist: https://eprel.ec.europa.eu/
Die Kundendienstdauer Ihres Geräts beträgt 5 Jahre. Während dieser Zeit sind Original-Ersatzteile erhältlich, um den ordnungsgemäßen Betrieb des Geräts zu gewährleisten.
Internet-Link zur Website des Herstellers, auf der die in Punkt 4a) des Anhangs der Verordnung (EU) 2019/2019 der Kommission genannten Informationen zu finden sind: https://www.boulanger.com/info/assistance/
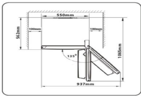
Ihr neues Gerät außstellen
Bitte lesen Sie die folgenden Tipps, bevor Sie Ihr Gerät zum ersten Mal benutzen.
WARNING!
Für eine ordnungsgemäß Installation sollte dieser Kühlschrank auf einer flachen und stabilen Fläche aufgestellt werden. Diese Fläche muss stark genug sein, um einen voll beladenen Kühlschrank zu,tragen.
Die Stellfübe, die keine Rollen sind, sollenn nur für Vorwärts- oder Rückwärtsbewegungen verwendet werden. Das seitliche Verschieben des Kühlschranks kann den Boden und die Stellfübe beschädigen.

Belüftung des Geräts
Um die Effizienz des Kühlsystems zu verbessern und Energie zu sparen, ist es notwendig, eine gute Belüfung um das Gerät herum aufrechtzuerhalten, um die Wärme abzuführen. Um den Kühlschrank herum muss ausreichend Platz vorhanden sein: Es empfeht sich, mindestens 50-70 mm Freiraum zwischen der Wand und der Rückseite des Geräts zu halten, 100 mm auf beiden Seiten und über dem Gerät, sowie genügend Platz auf der Vorderseite, damit sich die Tür wie nachstehend gezeigt um 135 Grad öffnenlässt:


Hinweis: Dieses Gerät Funktioniert perfekt in den in der Tabelle unter angegebenen Klimazonen.
| Klimaklasse | Umgebungstemperatur |
| SN | +10 °C bis +32 °C |
| N | +16 °C bis +32 °C |
| ST | +16 °C bis +38 °C |
| T | +16 °C bis +43 °C |
Bei Temperaturen, die über oder unter den angegebenen liegen, kann es möglicherweise nicht ordnungsgemäß Funktionieren.
- Stellen Sie Ihr Gerät an einem trockenen Ort auf.
- Schützen Sie das Gerät vor direkter Sonneneinstrahlung, Regen oder Frost, und stellen Sie es nicht in der Höhe von Wärmequellen wie Kochplatten oder Heizkörpern auf.
Waagerechte Ausrichtung des Geräts
- Die Fuß leisten sich verstellen, um das Gerät waagerecht auszurichten und eine korrekte Luftzirkulation auf der Rückseite des Geräts zu gewährleisten. Sie können diese von Hand oder mit einem Rollgabelschiüssel einstehen.
- Damit die Tur automatisch schließen kann, neigen Sie die Oberseite leicht um 10-15 mm.


Hinweis:
Wenn Sie Zugang zur Unterseite des Kühlschranks brauchen, können Sieihn auf die Rückseite legen. Er solte auf eine gepolsterte Unterlage oder ähnliches Material gelegt werden, um Schäden an der Rückwand des Kühlschranks zu vermeiden.
Unter normalen Einsatzbedingungen ist es nicht notwendig, die unter aufgeführten Teile zu montieren.
Nur für den Einsatz unter extremen Bedingungen: Wenn z. B. die Tur auf ca. 90 Grad geöffnet wird, kann dieser Kühlschrank kippgefahrdet sein.
Zur Stabilisierung des Geräts bringen Sieitte den Gummistützfuß an der Unterseite des Geräts an, indem Sie wie unten beschreiben vorgehen.
- Kippen Sie das Gerät, um das Loch unter der Tür ausfindig zu machen.

- Stecken Sie die Schraube durch den Gummistützfuß.

- Schrauben Sie die Baugruppe mit einem Kreuzschlitzschraubendreher unter die Tur.


Die Türoeffnungsrichtungändern
Bei Bedarf konnen Sie die Öffnungsrichtung der Turen Ihres Kühlschranks ändern. Um diese Änderungen vorzunehmen, entfern den Sie alle Turablagen, die Einlegeböden im Inneren des Geräts, die Obst- und Gemüseschublade und alle Zubehörteile im Inneren des Geräts und gehen Sie dann in der unten angegebenen numerischen Reihenfolge vor oder wenden Sie sich an einen qualifizierten Fachmann.

WICHTIG:
Ziehen Sie den Stecker aus der Steckdose, wenn Sie die Türoflnungsrichtung ändern.
Erforderliches Werkzeug
| 8 mm Steckschlüssel | Kreuzschlitzschaubenzieher | |
| Schlitzschraubendreher | - Engländer Schraubenschlüssel | 8 mm Schraubenschlüssel |
Verfahren zum Umkehren der Türoeffnungsrichtung
- Entfernen Sie die Schraubenkappe (A) von der Gefrierschranktür, die sich auf der Oberseite des Geräts befindet,lös Sie dann die Schraube (B) und schrauben Sie das obere Scharnier (C) rechts oben ab. Entfernen Sie dann mit dem Schlitzschraubendreher die Lochabdeckung (D) oben links am Gerät.


- Halten Sie die Gefrierschranktür fest, damit sie nicht herausfält, und losen Sie die Sechskantschrauben (E), mit denen das obere Scharnier (C) befestigt ist.

- Heben Sie die Gefrierschranktür an und legen sie mit der Außenende nach oben auf eine weiche Oberfläche, um Kratzer zu vermeiden. Lösen Sie dann die selbstschneidenden Schrauben (F), entfern den Sie die Türhalterung (G) und bringen die Teile (F) und (G) auf der anderen Seite des Geräts wieder an.

- Lösen Sie die Schrauben (H), mit denen das Mittelscharnier (I) befestigt ist, und entfernen Sie das Scharnier. Hebben Sie die Kühlschranktür leicht an, um sie zu auszuhängen.

- Legen Sie die Kühlschranktür mit der Außenseite nach oben auf eine weiche Unterlage, um Kratzer zu vermeiden. Lösen Sie dann die Schrauben (J), entfernen Sie die Türlalterung (K) und bringen die Teile (J) und (K) auf der anderen Seite des Geräts wieder an.

- Entfernen Sie die Lochkappen aus dem Gerät und stecken sie auf der gegenüberliegenden Seite ein.

- Legen Sie den Kühlschrank mit der Rückseite auf den Boden und entfernen Sie den linken vorderen Fuß (L). Lösen Sie die selbstschneidenden Schrauben (M), entfernen Sie dann die Metallplatte (N) und das untere Scharnier (O).

- Bringen Sie die Teile auf der gegenüberliegenden Seite wieder an.

- Bringen Sie die Kühlschranktür wieder an und richten sie so aus, dass sie in der Flucht mit dem unteren Loch und der unteren Drehache liegt. Drehen Sie das Mittelscharnier um 180^ , versetzen die Unterlegscheiben auf der Achse an der Oberseite, richten das Mittelscharnier aus und befestigen es.

- Schrauben Sie die obere Drehachse fest, drehen Sie das obere Scharnier um 180^ und befestigen es.

- Setzen Sie die Schraubenkappe (A) des oberen Scharniers (C) auf die linke Seite, befestigen sie mit den Schrauben (B) und setzen die Lochkappe (D) auf die rechte Seite.

- Öffnen Sie die Türen des Gefrierschranks und des Kühlschranks, setzen Sie die Ablagen und das Zubehör wieder ein und schließen das Gerät wieder an.

Bedienelemente des Geräts
Bedieren Sie Ihr Gerät unter Berücksichtigung der folgenden Regler. Ihr Gerät verfügt über die in den folgenden Abbildungen dargestellen Funktionen und Modi.
Kühlschranktemperaturregler
- Kuhlung unzureichend : Stellen Sie den Temperaturregler auf „Colder" (kälter).
- Normaler Gebrauch des Kühlschranks: Stellen Sie den Temperaturregler auf „5".

WICHTIG:
Hohe Raumtemperaturen (zum Beispiel im Sommer) und niedrige Temperaturparameter können dazu führen, dass der Kompressor durchgehend in Betrieb ist!
Unter normalen Bedingungen empfehlen wir also nicht, den Temperaturregler auf „Colder" (kälter) oder „Cold" (kalt) zu stellen. Wenn)namlich die Raumtemperatur hoch ist, muss der Kompressor im Dauerbetrieb laufen, damit die Temperatur im Gerät niedrig bleibt.

Gefrierschranktemperaturregler
Mit dem Temperaturregler können Sie die Temperatur im Inneren des Gefrierfachs einstellen.
- Wenn Sie viele Nahrungsmittel einfrierten möchten: Drehen Sie den Temperaturregler auf „Colder" (kälter).
- Unter normalen Bedingungen: Stellen Sie den Temperaturregler auf 4.
- Wenn Sie eine geringe Menge Lebensmittel einfrierten möchten: Drehen Sie den Temperaturregler auf „Cold" (kalt).
WICHTIG:
Unter normalen Bedingungen empfehlen wir nicht, den Temperaturregler auf „Colder" (kälter) oder „Cold" (kalt) zu stellen.


WICHTIG:
Legen Sie nicht zu weitere Lebensmittel direkt vor den Luftauslass des Temperaturfühlers, da dies den Betrieb des Geräts beeinträchtigen kann.


WICHTIG:
Wenn 2 oder 4 Sterne auf der oberen Tür erscheinen, ist das Gefrierfach in zwei Bereiche unterteilt. Die eine entspricht dem 2-Sterne-Fach und die andere dem 4-Sterne-Fach, wie unten dargestellt.


Verwendung des Geräts
Ihr Gerät ist mit dem Zubehör ausgestattet, das im Kapitel „Beschreibung des Geräts" angegeben ist. Die nachstehende Anleitung soll Ohnen halten, es richtig zu benutzen.
Türablagen
- Sie eignen sich, um darin Eier, Getränkeflaschen oder -Dosen, verpackte Nahrungsmittel usw. zu verstauen. Lagern Sie Dort keine schweren Produkte.
- Das mittlere Fach kann je nach ihren Bedürfnissen unterschiedlich angebracht werden. Nehmen Sieitte die Lebensmittel Heraus, bevor Sie es umsetzen.

Hinweis: Im oberen Fach sind Eierablagen und im unteren Fach Flaschenhalter vorhanden.
Kühlschrankablagen
Die Ablagen im Kühlschrank können zur Reinigung herausgenommen werden.
Frischezonenschublade (nicht bei allen Modellen verfügbar)

-
Hier liegt die Temperatur um 2 bis 3^ C niedriger als im restlichen Kühlschrank.
-
Dieser Bereich dient zur Aufbewährung von Fisch, Fleisch und anderen verderblichen Lebensmitteln.

Gemüsefachtür (bei einigen Modellen nicht verfügbar)
- Sie steuert die Temperatur und die Feuchtigkeit im Gemüsefach.
Gemüsefach
- Es dient zur Aufbewährung von Obst und Gemüse.
Gemüsefach und Feuchtigkeitsregelung (bei einigen Modellen nicht verfügbar)
- Das Gemüsefach ist auf eine Telescop-Gleitschiene montiert und wurde, wie der Name besagt, zum Aufbewahren von Obst und Gemüse konzipiert. Sie können mit dem Gleitblock die Luftfeuchtigkeit einstellen.
- Der Gleichblock des Gemüsefachs lassst sich verschiben, um die Lüftungslocher mehr oder weniger abzudecken. Mehr Belüftung bedeutet weniger Feuchtigkeit. Umgekehrt führt weniger Lüftung zu mehr Feuchtigkeit.
- Wir empfehlen eine höhere Feuchtigkeit für die Aufbewährung von Gemüse und eine geringere Feuchtigkeit für Obst.

- Um das Gemüsefach herauszunehmen, ziehen Sie es in ihre Richtung und haben es dann an. Denken Sie daran, zuerst alle Lebensmittel herauszunehmen. Achten Sie darauf, die Gleitschienen wieder ganz nach hinten zu schiben, nachdem die Schublade entfernt wurde.
Temperaturanzeige
Um Ihnen zu halten Ihr Gerät richtig einzustellen, verfügt es über eine Temperaturanzeige, die sich im kaltesten Bereich befindet.
Um die Lebensmittel in Ihr hem Kühlschrank richtig aufzubewahren, insbesondere im kältesten Bereich, sollen den Sie darauf auf achten, dass auf der Temperaturanzeige „OK" erscheint.


Das obenstehende Symbol zeigt an, wo sich der kälteste Bereich Ihres Kühlschranks befindet.
Es bestimmt die Obergrenze desses Bereichs.
Wenn kein „OK" entscheid, ist die Durchschnittstemperatur in dieserem Bereich zu hoch. Stellen Sie den Thermostat auf eine kältere Stellung.
Warten Sie nach jeder Änderung des Thermostats, bis sich die Temperatur im Gerät stabilisiert hat, bevor Sie falls erforderlich weitere Einstellungen vornehmen. Verändern Sie die Thermostatstellung nur schrittweise und warten Sie mindestens 12 Stunden, bevor Sie erneut prüfen.
HINWEIS: Nach dem frische Lebensmittel im Gerät verstaut wurden oder nach wiederholtem (oder längerem) öffnen der Tür ist es normal, dass die Aufschrift „OK“ nicht auf der Temperaturanzeige erscheint; warten Sie mindestens 12 Stunden, bevor Sie den Thermostat neu einstehen.
Ratschläge und praktische Tipps
Energiespartipps
Wir empfehlen Ihnen, die folgenden Ratschlage zu befolgen um Energie zu sparen:
- Vermeiden Sie es, die Turlange offen zu halten, um Energie zu sparen.
- Vergewissern Sie sich, dass das Gerät welt von jeglicher Wärmequelle entfernst stehen (direkte Sonne, Heizung etc.).
- Stellen Sie die Temperatur nicht kälter ein als notig.
- Lagern Sie keine warmen Lebensmittel in dem Gerät oder Flüssigkeiten, die verdampfen.
- Stellen Sie das Gerät in einen gut belüfteten Raum ohne Feuchtigkeit. Beachten Sieitte das Kapitel zur Aufstellung des Geräts.
- Befolgen Sie die Empfehlungen der Abbildung zur Platzierung der Ablagen und der anderen Fächer des Geräts. Es handelt sich um die idealen Positionen um Energie zu sparen.
Tipps zur Kuhlung von frischen Lebensmitteln
- Stellen Sie warme Lebensmittel nicht sofort in den Kuhl- oder Gefrierschrank, Denn dadurch wurde die Innentemperatur ansteigen, sodass der Kompressor länger laufen muss und entsprechend mehr Energie verbraucht.
- Decken Sie Lebensmittel ab oder wickeln Sie sie ein, sondern wenn sie einen starken Geruch haben.
- Stellen Sie die Lebensmittel richtig auf, so dass die Luft frei zirkulieren kann.
Kuhltipps
Fleisch (alle Arten):
Wickeln Sie es ein und legen es auf die Glasablage über dem Gemüsefach.
Gekochte Lebensmittel, kalte Gerichte etc.:
These müssen abgedeckt werden und konnen auf jeder beliebigen Ablage gelegt werden.
- Obst und Gemüse:
Bewahren Sie diese in dem dazu vorgesehenen Fach auf.
Butter und Kase:
Wickeln Sie sie in Alufolie oder Frischhaltefolie ein.
- Milch:
Bewahren Sie diese in den Turfachern auf.
Einfriertipps
- Bevor Sie das Gerät zum ersten Mal ans Stromnetz anschließen, halten Sie das Gerät bereits zwei Stunden ruhen, wenn es aufrecht transportiert wurde, oder 24 Stunden, wenn das Gerät liegend transportiert wurde, damit das Kätemittel wieder nach unter in den Kompressor absinken kann. Die Nichteinhaltung dieser Wartefrist kann den Kompressor beschädigen.
- Bereiten Sie die Nahrungsmittel in kleinen Portionen vor, damit sie schnell gefrierten und man nur die erforderlichen Mengen auftaut.
- Wickeln Sie die Lebensmittel in Alufolie oder Frischhaltefolie ein.
- Lassen Sie frische Lebensmittel nicht mit bereits gefrorenen Lebensmitteln in Kontaktkommen, um einen Temperaturanstieg zu vermeiden.
- Wenn Sie gefrorende Produkte unmittelbar nach der Entnahme aus dem Gefrierschrank verzehren, können sie Kälteverbrennungen verursachen.
- Es empfeihlt sich, auf jedem eingefrorenen Produkt das Datum zu vermerken, damit sich die Aufbewährungsdauer nachvollziehen{lsst.
Tipps zur Lagerung von Tiefkuhlprodukten
- Stellen Sie sicher, dass das Tiefkuhlprodukt in der Verkaufsstelle ordnungsgemäß gelagert wurde.
- Einmal aufgetaute Lebensmittel verderben schnell und dürfen nicht wieder eingefroren werden. Überschreiben Sie das vom Hersteller angegebene Haltbarkeitsdatum nicht.
Ihr Gerät abschalten
Wenn Sie das Gerät über einen längeren Zeitraum ausschalten müssen, sollen den Sie die folgenden Schritte befolgen, um Schimmelbildung zu vermeiden.
- Entfernen Sie alle Lebensmittel.
- Ziehen Sie den Stecker aus der Steckdose.
- Reinigen und trocknen Sie den Innenraum gründlich.
- Achten Sie darauf, dass die Türen geöffnet bleiben, damit die Luft zirkulieren kann.
Reinigung und Wartung
Aus Gründen der Hygiene muss das Gerät (einschließlich des Äuβeren und des Zubehörs) regelmäßig (mindestens alle 2 Monate) gereinigt werden).
WICHTIG:
Während der Reinigung darf das Gerät nicht angeschlossen sein. Stromschlaggefahr! Schalten Sie das Gerät aus undziehen Sie den Netzstecker, bevor Sie es reinigen.
Reinigung der Außenseite
Damit Ihr Gerät in gutem Zustand bleibt, mösen Sie es regelmäßig reinigen.
- Wischen Sie das Anzeigefeld mit einem weichen, sauberen Tuch ab.
- Wasser sollenen Sie lieber auf das Tuch sprehen als auf die Oberfläche des Geräts. Dadurch wird eine gute Verteilung der Feuchtigkeit auf der Oberfläche gewährleistet.
- Reinigen Sie Türen, Griffe und Oberflächen mit einem milden Reinigungsmittel und wischen Sie sie anschließend ab.
Reinigung des Geräteinnenraums

WICHTIG:
Verwenden Sie keine scharfen Gegenstände, da diese die Oberflächen verkratzen können.
Verwenden Sie keine Verdünner, Autoreinigungsmittel, Clorox, ätherisches Öl, Scheuermittel oder organische Lösungsmittel wie Benzol. Sie können die Oberflächen beschädigen und Feuer fangen.
Reinigen Sie das Geräteinnere regelmäßig. Es ist einfacher, dies zu tun, wenn das Gerät weniger voll ist. Reiben Sie das Innere des Gefrierschranks mit einer Natriumbicarbonat-Lösung aus und spulen mit weißem Wasser nach, wozu Sie einen Schwamm oder ein ausgewirungen Tuch verwenden. Trocknen Sie gut ab, bevor Sie Einlegeböden und andere abnehmbare Teile wieder einsetzen. Obwohl these Gesät automatisch abtaut, kann sich an den Innewänden des Gefrierfachs eine Eisschicht bilden, wenn die Türen halten oder zu lange geöffnet werden. Soltte die Schicht zu dick werden, wahlen Sie einen Zeitpunkt, zu dem das Gerät nur weniger Lebensmittel enthalt und beachten folgende Anweisungen:
- Entfernen Sie Lebensmittel und Fächer,ziehen Sie den Netzstecker und halten Sie die Tur offen. Lüften Sie den Raum, um den Vorgang zu beschleunigen.

- Wenn das Abtauen abgeschlossen ist, reinigen Sie den Gefrierschrank wie oben beschrieben.

WICHTIG:
Verwenden Sie keine scharfkantigen Gegenstände um das Eis aus dem Gefrierabteil zu entfernen.
Schlieben Sie das Gerät erst wieder an und schalten Sie es erst wieder ein, wenn der Innenraum vollständig trocken ist.
Reinigung der Turdichtungen
Reinigen Sie die Turdichtungen gründlich. Klebrige Lebensmittel und Getränke können am Gerät haften und die Dichtungen ablösen, wenn Sie die Türöffnen. Reinigen Sie die Dichtungen mit einem milden Reinigungsmittel und warmem Wasser. Spülen Sie nach und halten alles gut trocknen.

WICHTIG:
Schalten Sie das Gerät erst wieder ein, wenn die Dichtungen vollständig getrocknet sind.
Die LED-Leiste austauschen

WICHTIG:
Die LED-Leisten können nicht vom Benutzer ausgetauscht werden!
Falls die Leiste beschädigt ist, wenden Sie sich an den Kundendienst Ihr's Händlers oder Geschäfts. Versuchen Sie nicht, die LED-Leiste selbst auszutauschen.
Fehlerbehebung
Wenn Sie Probleme mit Ihr Gemäß haben oder der Meinung sind, dass es nicht richtig Funktioniert, können Sie einige einfache Überprüfungen durchführten, bevor Sie den Kundendienst Ihr's Fachgeschäfts anrufen.

WICHTIG:
Versuchen Sie niemals, das Gerät selbst zu reparieren. Wenn das Problem nach der Überprüfung der folgenden Punkte weiterhin besteht, wenden Sie sich an einen qualifizierten Elektriker, einen autorisierten Servicetechniker oder an das Geschäft, in dem Sie das Gerät gekauft haben.
| Störungen | Mögliche Ursachen und Lösungen |
| Das Gerät Funktioniert nicht richtig | Prüfen Sie, ob das Netzkabel richtig eingesteckt ist. |
| Kontrollieren Sie die Sicherung oder den Schaltkreis ihrer Stromversorgung und tauschen diese bei Bedarf aus. | |
| Die Umgebungstemperatur ist zu niedrig. Versuchen Sie, die Raumtemperatur zu erhöhen. | |
| Um den Kompressor zu schützen, ist es normal, dass der Gefrierschrank während des automatischen Abtauzyklus oder für einen kurzen Zeitraum nach dem Einschalten des Geräts nicht in Betrieb ist. | |
| Gerüche in den Abteilen | Vielleicht muss das Geräteinnere gereinigt werden. |
| Eine Lebensmittel, Behälter oder Verpackungen können Gerüche verursachen. | |
| Das Gerät macht Gerausche | Die folgenden Geräusaucht sind normal: • Kompressorgeräusch, wenn dieser in Betrieb ist. • Lüftungsgeräusch, das von dem kleinen Lüfter des Gefrierschranks und den anderen Fächern ausgeht. • Blubberndes Geräusch, ähnlich wie kochendes Wasser. • Einschlattgeräusch während der automatischen Abtauung. • Klappern, bevor der Kompressor startet. |
| Andere ungewöhnliche Geräusaucht, die auf die folgenden Ursachen darüberzuführen sind, können Ihr Eingreifen erfordern: Das Gerät steht nicht waagerecht. Die Geräterückseite berührt die Wand. Die Flaschen oder Behälter berühren sich gegenseitig. | |
| Der Motor lauft ohne Unterlass. | Es ist normal, dass das Motorengeräusch*häufig zu horen ist und unter folgenden Umständen lauft er noch mehr: • Die Temperatureinstellungen sind kälter als nötig. • Im Gerät wurde kürzlich eine große Menge heißer Speisen gelagert. • Die Temperatur außerhalb des Geräts ist zu hoch. • Die Türen werden zu oft und zu lange geöffnet. • Wenn Sie das Gerät geebe erst aufgestellt haben oder wenn Sie es nach längerer Zeit der Nichtbenutzung wieder einschalten. |
| In dem Fach bildet sich eine Eisschicht | Überprüfen Sie, ob die Luftausfälle nicht durch Nahrungsmittel verstopf sind und vergewissern Sie sich, dass die eingelagerten Lebensmittel eine ausreichende Lüftung ermögen. Vergewissern Sie sich, dass die Tür richtig geschlossen ist. Zum Abtauenlesen Sieitte das Kapitel Wartung und Reinigung. |
| Die Innentemperatur ist zu hoch. | Viellecht haben Sie die Türen zu lange offen gelassen oder zu oft geöffnet. Es ist auch möglich, dass die Türen aufgrund eines Hindernisses offen bleiben oder dass nicht genügend Platz um das Gerät herum vorhanden ist. |
| Die Innentemperatur ist zu niedrig | Lesen Sie das Kapitel „Bedienelemente des Geräts" nach und stellen die Temperatur höher. |
| Die Türen schreiben | |
| schwer | Prüfen Sie, ob die Oberseite des Kühlschranks um 10 bis 15 mm nach hinten geneigt ist, so dass die Türen richtig schreiben können, oder ob sich im Inneren ein Gegenstand befindet, der das Schreiben der Türen verhindert. |
| Es lauft Wasser auf den Boden aus | Der Wassertank (an der Rückseite des Kühlschranks) ist möglicherweise nicht waagerecht oder die Auffangwanne (unter der Oberseite des Kompressors) ist nicht richtig zum Wassertank gerichtet oder blockiert. Sie müssen den Kühlschrank vielleicht nach vorneziehen, um den Tank und die Auffangwanne zu kontrollieren. |
| Das Licht faktioniert nicht | Die Leuche kann beschädigt sein. Lesen Sie das Kapitel zur Reinigung und Wartung der LED-Leuchtmittel nach.Das Kontrollsystem hat das Licht deaktiviert, da die Tür zu lange offen geblieben ist. Schreiben Sie die Tür und öffnen Sie sie erneut, um das Licht wieder einzuschalten. |
Recycling desses Geräts
EsistverbotendesesGeratmitdemHausmullzentorsorgen.
Verpackung
Verpackungen, die das Recycling-Symbol tragen, sind recyclelbar. Entsorgen Sie diese Verpackungen in den entsprechenden Containern.
Vor dem Recycling des Geräts
- Ziehen Sie den Stecker hersa.
- Schneiden Sie das Netzkabel ab und entsorgen Sie es zusammen mit dem Netzstecker.

WICHTIG:
Kühlschranke enthalten Kätemittel und Gase. Kühlmittel und Gase müssen von Fachleuten entsorgt werden, Denn sie können Augenverletzungen verursachen oder sich entzüden.
Stellen Sie safer, dass die Leitungen des Kältemittelkreislaufs nicht beschädigt sind, bevor Sie das Gerät entsorgen.

INFORMATIE

Alle Informationen, Zeichnungen, Skizzen und Bilder in this Dokument sind alleiniges Eigentum von SOURCING & CREATION. SOURCING & CREATION behält sich alle Rechte in Zusammenhang mit ihren Marken, Schöpfungen und Informationen vor. Kopien oder Reproduktionen, ungeachtet des dazu verwendeten Mittels, werden als Falschung betrachtet und beurteit.
Dieses Symbol auf dem Produkt bedeutet, dass es sich um ein Gerät handelt, dessen Entsorgung den Vorschriften für elektrische und elektronische Algeräte (Elektronikschnitt) unterliegt. Dieses Gerätarf aber auf keinigen Fall als Haushaltsmullbehandelten werden und muss an einer spezifischen Sammelstelle für diesen Typ von Abfall abgegeben werden. Rücknahme- und Sammelsysteme werden Hinnen von den lokalen Gebietskorpschaften (Müldeponie) und Vertrieben bereitgestellt. Indem Sie Ihr Gerät an einem Lebensende dem Recycling zufahren, tragen sie zum Umweltschutz bei und verhindern schädliche Folgen für ihre Gesundheit.
Milieubescherming
Die Garantie lauf ab dem Kaufdatum (maßgeblich ist der Kassenzettel). Diese Garantiedeckt keine Mangel oder Schäden, die aus unsachgemäß Installation, falschem Gebrauch oder den normalen Abnutzung des Produkts resultieren.
Zeigen Sie Umweltbewusstsein: Recyclen Sie diese Produkte am Ende seiner Lebensdauer.
Notice-Facile