TT 7334 - Placa de cozinha SCHOLTES - Manual de utilização gratuito
Encontre gratuitamente o manual do aparelho TT 7334 SCHOLTES em formato PDF.
Baixe as instruções para o seu Placa de cozinha em formato PDF gratuitamente! Encontre o seu manual TT 7334 - SCHOLTES e retome o controlo do seu dispositivo eletrónico. Nesta página estão publicados todos os documentos necessários para a utilização do seu dispositivo. TT 7334 da marca SCHOLTES.
MANUAL DE UTILIZADOR TT 7334 SCHOLTES
Ligação electrolytica
Descrição do aparecido, 65-66
Painel de comandos
Zonas de cozedura extensiveis,
Inicio eutilização,67-69
Acender o plano de cozedura
Elementos aquecedores
Programar a duração de uma cozedura
Bloqueio dos comandos
Modo "demo"
Conselhos práticos para utiliser esta aparelhagem
Precauções e conselho, 70
Segurarca geral
Eliminação
Manutenção eeguardados, 71
Descriçao Tecnica dos modelos, 72

Scholtès
! É importante guardar este folheto para poder consulúlo a qualquer momento. No caso de vend, cessão ou mudança, assegure-se que o mesmo permanece com o aparecido para informar o novo proprietário sobre o acontecimiento e sobre as respectivas advertências.
! Leia com atenção as instruções: há informações importantes sobre a instalação, a utilização e a segurarça.
Posicionamento
! As embalagens não são brinquados para as crianças e devem ser eliminadas em conformidade com as regras de colecta diferenciada (veja em Precauções e Conselho).
!A instalação deve ser realizada quando estas instruções e por pessoal profissional qualificado. Uma instalação errada pode causar danos a pessoas, animais ou objectos.
Encaixe
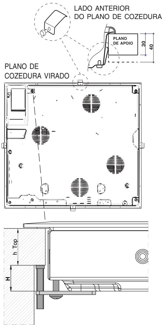
Para garantir um bom funciona do aparelho é necessário que o|móvel-seja decharacteristicas inadequadas:
- o material do plano de apoio deve resistir a uma temperatura de aproximadamente 100^ ;
- se desejar instalar o plano de cozedura sobre umorno, este deve ser equipo com de umsystema de arrefecimento com ventilacao forçada;
- evite instalar o plano de cozedura sobre uma boaquina de lavar louça: se for faze-lo, instale um elemento de separação entre osinous aparhos com retenção herética;
- conforme o plano de cozedura que desejar instalar (veja figuras), o não do|móveldeferá ter as seguides dimensoções:



Ventilação
Para consentir uma adequada ventilação e para fazer o supraquecimento das superficies ao redor do aparelho, o plano de cozedura deve ser posicionado:

- a uma distência minima de 40 mm da parede deTRS e de 600 mm de quaisquer outras superficies verticais;
- de forma a manter uma distência minima de 10 mm entre o não para o encaixe e o|móvel abaixo delet.
Fixação
A instalação do aparecido deve ser realizada sobre uma superficie de apoio perfeitamente plana.
As deformações eventualmente provocadas por uma fixação errada poderão alterar as caractéricas e as performances do plano de cozedura.

O comprimento do parafuso de regulação dos ganchos de fixação deve ser configurado antes da sua montagem, conforme a espessura do plano de apoio:
- 30 mm de espessura: parafuso 17,55 mm;
- 40 mm de espessura: parafuso 7,55 mm.
Para a fixação proceder da segunte maneira:
- Com os parafudos sem ponta, parafusat as 4 molas de centragem nos furos colocados no centro de cada lado do plano;
- introduza o plano de cozedura no vao do meuvel a exercer uma adequada pressao no inteiro perimetro para o plano de cozedura prender-se perfeitamente no plano de apoio.
- para os planos com perfis laterais: aparecer serido o plano de cozedura no mover, inserir os 4 ganchos de fixação (cada um com o seu perno) no perímetro inferior do plano de cozedura, parafusando-os com os parafudos compridos com ponta às que o vidro fique aderente ao plano de apoio.
! É indispensable que os parafudos das molas de centragem sejam acessíveis.
! Em conformidade com as normas de segurar,进驻o o aparecido encaixado, não deve ser possivel o contacto com componentes electricos.
! Todos os componentes de garantia da proteção precisam estar presos de modo que não possam ser tirados sem o emprego de uma ferramenta.
Ligação eletrica
! A ligaçao eletrica do plano de cozedura e a de um eventual forno de encaixar precisam ser realizadas separadamente,cka por razoes de segunca eletrica,cka para facillar uma eventual remoçao do forno.
Caixa de bornes
O aparecido éequipado, na parte inferior, com uma caixa para a ligação aos varioustips de alimentação electrolytica (a imagem éindicativa e pode não corresponder ao modelo comprado).
Ligação monofásica
O plano está provido de cabo de alimentação já ligado e predisisto na fábrica para a ligação monofásica. Efetuar a ligação dos fíos de acordo com aanela e os desenhos a seguir:
| Tensão tipo e frequência rede | Cabo eletrico | Ligação fios |
| 230V 1+N ~ 50 Hz | N L | ½: verde/amarelo N: os 2 fios azuis juntos L: marrom+junto ao preto |
Tensão tipo e frequência de rede
400V - 2 + N 50Hz
230V 3 ~ 50 Hz
400V - 2 + 2N 50Hz
Soltar os cabos e efectuar a ligação dos fios de acordo com aanela e os desenhos a seguir:
| Tensão tipo e frequência rede | Cabo eletrico | Ligação fios |
| 400V - 2+N ~ 50 Hz | N L1 L2 | ½: verde/amarelo; N: os 2 fios azuis jintos L1: preto L2: marrom |
| 230V 3 ~ 50Hz | ||
| 400V - 2+2N ~ 50 Hz | N1 N2 L1 L2 | ½: verde/amarelo; N1: azul N2: azul L1: preto L2: marrom |
Tensão tipo e frequência de rede
- 400V 3 - N ~ 50 Hz
proceder da segunte maneira:
! O eventual cabo em dotação não pode ser utilizado para thesetipsode instalacao.
- Utilizar um cabo de alimentação apropriadó, tipo H05RR-F ou de valor superior, com medias adaptations (seção do cabo: 25 mm).
- Utilize una chave de fenda, para fazer alavanca nas linguetas laterais da tampa da caixa de bornes e abri-la (veja imagem Caixa de bornes).
- Desatarraxe o parafuso do grampo do cabo e os parafusos dos bornes relativos ao tipo de ligação necessária e posicao os grampos de ligação conforme aabela e os desenhos a seguir.
- Posicao os fios de acordo com aabela e os desenhos abaixo e efectue a ligaçao apertando todos os parafusos dos bornes.
| Tensão tipo e Frequência rede | Ligações electrolycas | Caixa de bornes | ||||
| 400V 3-N ~ 50 Hz | 1 L1 | 2 L2 | 3 L3 | 4 N | 5 | Trifásica 400 |
- Fixe o cabo de alimentacao na apropriadaba braçadeira e feche a tampa.

Fase Grampo Fase Fase Neutro Terra
Trifásica 400
Ligação do cabo de alimentação à rede
No momento de efectuar a ligação directamente na rede, instalar entre o aparecido e a rede um interruptor omnipolar com uma abertura minima de 3 mm entre os contactos.
! O técnico instalador é responsavel pela realização certa da ligação eletrica e da obediência das regras de segurança.
Antes de effetuar a ligaço, certifique-se que:
- a tomada tenha uma ligação à terra e seja em conformidade com a leição;
- a tomada tenha a capacidade de suportar a energia maxima de potência da boa, indica na placá de identificacao colocada no aparecido;
- a tensão de alimentação seja entre os valuores da placá de identificacao;
- a tomada está compatível com a ficha do aparecido. Em caso contrário, substitua a tomada ou a ficha; não empregue extensões nem tomadas multiplas.
!Depois de ter instalado o aparelho, o acesso ao cabo eletrico e a tomada da corrente deve ser fácil.
! O cabo não deve ser dobrado nem comprimido.
! O cabo deve ser verificado periodicamente e substituindo somente por技术和 autorizados.
! A Empresa exime-se de qualquer responsabilitadese estas regras não foram obedecidas.
Painel de commandos
O pailé de comandos descripto a seguir está representado para fins explicativos: pode não ser uma exacta reprodução do modelos comprado.

- Botão AUMENTO POTÊNCIA para ligar a chapa e regular a potência (veja Inicio e Utilização).
- Botão DIMINUIÇÃO POTÊNCIA para regular a potência e desligar a chapa (veja Inicio e utilizesçao).
- Indicador POTÊNCIA sinaliza visualmente o;nível de calor alcâncado.
- Botão ON/OFF para ligar e desligar o aparecido.
- Indicador ON/OFF: sinaliza se o aparecido está aceso ou apagado.
-
Botão TIMER DE PROGRAMAÇÃO para regular a programação da duração de uma cozedura (veja Início e Utilização).
-
Display TIMER DE PROGRAMAÇÃO: visualiza as escolhas relativas à programação (veja Inicio e utilizes).
- Indicadores luminosos ZONA DE COZEDURA PROGRAMADA: indicam as zonas de cozedura quando se inicia uma programação (veja Inicio e'utilização).
- Botão BLOQUEIO DOS COMANDOS para impedir ALTERações acidentais das regulações do plano de cozedura (veja Inicio e Utilização).
- Indicador luminoso COMANDOS BLOQUEADOS: sinaliza obloqueio dos comandos (veja Inicio e'utilização).
Zonas de cozedura extensíveis,
Alguns modelos dispõem de chapas extensoveis. Estas podem ter varias formas (circular ou oval) e varias extensibilidades (chapa dupla ou tripla). Aqui está ilustrados os respectivos comandos, presentes apenas nos modelos dotados destas opções.
- Botão LIGAR CHAPA DUPLA para ligar/desligar a chapa dupla (veja Inicio e'utilização).
- Indicador luminoso CHAPA DUPLA LIGADA: indica que a chapa dupla está ligada.
- Botão LIGAR CHAPA TRIPLA para ligar/desligar a chapa tripla (veja Inicio e'utilização).
-
Indicador luminoso CHAPA TRIPLA LIGADA: indica que a chapa tripla está ligada.
-
Botão LIGAR CHAPA DUPLA para ligar/desligar a chapa dupla (veja Inicio e'utilização).
- Indicador luminoso CHAPA DUPLA LIGADA: indica que a chapa dupla está ligada.
- Botão LIGAR CHAPA TRIPLA para ligar/desligar a chapa tripla (veja Inicio e'utilização).
- Indicador luminoso CHAPA TRIPLA LIGADA: indica que a chapa tripla está ligada.
! A cola aplicada nas guarnições deixa algumas traços de graxa no vidro. Antes de utilizes o aparelho, é recomendável elimina-la com um produit não abrasivo especialico para a manutenção. Durante as primeiras horas deestruturaçao, pode ser que note odor de borracha, que em todo o caso logo desaparecerá.
! Quando o plano de cozedura for ligado electricamente, acendem-se por algunos segundos todos osindicadores luminosos presentes no pailé de comandos e toca um breve sinal acústico. Somente quando todos osindicadores estiverem desligados sera possível ligar o plano de cozedura.
Acender o plano de cozedura
Para acender o plano de cozedura manter pressionada a tecla (D) por aproximamente um segundo.
Cada uma das zonas de cozedura é acontecada mediante o dispositovo de regulação da potência constituiço por bois botões (-e +)
- Carregue na tecla () paraactivarachapa,em seguida programa a potencia desejada atraves das teclas e ()
- Para definir directamente a potência Tmaxima, corregue brevamente no botão (一)
Acender as zonas de cozedura extensívelis
-
Chapa dupla:
-
Carregue no botão () para activating a zona de cozedura mais interna.
-
Se a SECONDA zona de cozedura for circular: corregue no botao para activar (ou desactivar) a segunda zona de cozedura. Se a zona de cozedura for oval: corregue na tecla .
-
Chapa tripla:
-
Activar a chapa dupla nos modos indicados.
- Se a zona de cozedura for circular: corregue no botão para activar (ou desactivar) toda a zona de cozedura (chapa tripla). Se a zona de cozedura for oval: corregue na tecla.
! É possível activar (ou desactivar) toda a zona de cozedura extensível (chapa tripla) correngando directamente no botão © se circular, © se oval.
- Carregue na tecla () : a potência da zona de cozedura descera progressively até desligarse.
- Em alternativa corregue nas teclas (一) e (十) simultaneamente: a potência volta imeditamente para 0 e a zona de cozedura desliga-se.
Characterizam-se pelas propriedades similares às típicas do gás: rápida resposa aos comandos, visualização instantânea da potência.
Os elementos radiantes são constituted por uma multiplicidade de espirais que assegurar uma reparticao uniforme do calor no财运 do recipiente, para um resulto perfeito de todas as cozeduras com fogo lento: cozidos, molhos ou para aquecer pratos.
Programar a duração de uma cozedura
É possével programar todas as zonas de cozedura para uma duração de cozedura entre 1 e 99关键时刻.
- Acender a chapa e regular a temperatura.
- Carregar varías vezes na tecla ⊙ até que se acenda o indicator luminoso na posão correspondente à chapa que se quer programar.
- Defina a duração da cozedura que desejar mediate as teclas +
- Carregue na tecla para confirmar.
A contagem regressiva do timer促成a imeditamente. O final da cozedura programada sera indicado por um sinal acústico (que tocará por 10 segundos) e a zona de cozedura se apagará. Repita o procedimento descririto acima para cada chapa que deseja programar.
Visualização em caso de programaçãoMULTIpla.
Quando uma ou mais chapas foram programadas, o display indica o tempo faltante da chapa que está maisproxima ao fim do tempo programado, indicando a sua posicao com o indicator luminoso correspondente aceso. Osindicadores luminosos das除外 chapas programadas ficarao intermitentes. Para visualizar o tempo faltante das除外 chapas programadas, correque varias vezes na tecla .. serao mostados em sequencia e no sentido horario os tempos de toda as chapas programadas, a partir da anterior esquerda.
Modificar a programação
- Carregue varías vezes na tecla ⊙ até que seja做不到 no display o tempo da chapa que se deseja modificar.
- Carregue nas teclas para programar o novo tempo.
- Carregue na tecla para confirmar.
Para cancelar uma programação, efectue as operações descritas acima. No punto 2, carregue contemporaneamente nas teclas +: a programação irá zerar-se e o display saira da modalidade de programação.
Bloqueio dos comandos
Quando um plano de cozedura estiver a funciona, é possível bloquear os commandos para fazer riscos de Mudicoações acidentais das regulações (crijanças, operações de limpeza etc.). Carregando no botão ® os commandos se bloquear e o indicator luminoso situado acima do botão se acenderá.
Para voltar a modifier as regulações (por. exemplo interromper a cozedura), sera necessário desbloquear os comandos: carregue no botão por eles instantes; o indicator luminoso se apagará e os comandos se desbloquearão.
Desligar o plano de cozedura
Carregue no botão ①; o aparecido se desligará. Se os comandos do aparelhagem estiverem bloqueados, continuarão bloqueados mesmo antes de ter acendido novamente o plano de cozedura. Para poder acender novamente o plano, está necessário primaryo desbloquear os comandos.
Modo "demo"
É possével programar um modo demo no qual o painel de comandos funciona normalmente (inclusos os comandos relativos à programação), mas os elementos aquecêores não se acendem. Para fazer o modo “demo” o plano deve estar acesso e com o bloqueio dos comandos aktivado.
- Carregue contemporaneamente na tecla + da chapa posterior esquerda, na tecla + da chapa anterior direita e na tecla por algunos segundos;
- o display indicará alternatively asescortas DE e MO e o plano irá desligar-se;
- no primo acendimento, o plano está no modo "demo".
Para sair deste modo:
- com o plano aceso e o bloqueio dos comandos activado, corregue novamente nas teclas no modo indicado acima;
- o display &,as,.escritas RE e AL e o plano irá desligar-se;
- no proxies acendimento funcionalmente.
Conselhos práticos para utiliser esta aparelhagem
Para obter as melhores performances da plac:
- empecque panelas comundo chato,para ter acerteza que haverá una perfeita aderência à zona de aquecimento.


- embarque sempre PANELas com diametro suficiente para cobrir inteiramente a zona de aquecimento, de maneira que se aproveite inteiramente o calor disponible.



certifique-se que oundo das panelas esteja sempre perfeitamente enxuto e limpo, para assegurar uma aderência certa e uma longa durabilitadne não somente das zonas de cozedura,mas tambem das proprias panelas.
- evite'utilizar as/DDas panelas que empregao nos queimadores a gás: a concentração de calor nos queimadores a gás poderá deformar o fundodas panelas, que esta maneira perdá aderendência;
- nunca deixe uma zona de cozedura acesa sem uma panela, porque o seu aquecimento, ao chegar rapidamente ao;nível maximo, podera danificar os elementos de aquecimento.
Níveis de potência aconselhados para os variousicos tipsos de cozedura:
| Potências | Chapa(PC) (1100 -> 1400 W) | Chapa(média(1800 -> 2000 W) | Chapa grande(2300 -> 2500 W) |
| Mini | Chocolate | Esquentar | Cozinhar em fogobrando |
| Médio | Molho | Cozinhar em fogobrando | Ferver liquidos |
| Maxi | Cozinhar em fogobrando | Ferver liquidos | Fritar/ Grelhar |
Se o plano for ligado mas ficar inutilizando por aproximamente 2关键时刻, sera activada a funcao de bloqueio dos comandos. Se a mesma situacao durar por outros 4关键时刻, o plano ira desligar-se automaticamente.
Aquecimento excessivo
Uma'utilisation prolongada do plano de cozedura pode provocar aquecimento excessivo dos componentes electrónicos.
Nestes casos um dispositoivo de protecaoTERMica impoem temporariamente uma很小a potencia (de 3) nas zonas de cozedura dianteiras ate a temperatura ter diminuido para um nivel aceitavel.
Interruptor de seguranca
O aparecido é dotado de um interruptor de segurarque desliga as zonas de cozedura automaticamente quando é alcancado um tempo maior de utilizaçãoa um determinadoível de potência (verabela).Durante uma interrupção de segança, o display da potência indica alternativamente as letras TI e ME.
| Nível de potência | Tempo limite de funzonamento em horas |
| 1 | 10 |
| 2 | 6 |
| 3-4-5 | 5 |
| 6 | 4 |
| 7-8 | 3 |
| 9-10 | 2 |
| 11 | 1 |
Sinal acústico
Algumas anomalias, nomeadamente:
- um objecto (panela, talher etc.) foi deixado mais de 10segundos naarea de comandos;
- um derramamento na area dos comandos,
- seregar muito tempo num botão, poder fazertocar um sinal acústico. Resolve a causa do mau functimento para o sinal sonoro deixar de tocar. Nestas situações os comandos bloqueiam-se automaticamente:
para desbloqueá-los carregue na tecla , as programações seront mantidas. Se a causa da anomalia não for removida, o sinal acústico persistirá e o plano irá desligar-se.
! Este aparecido foi个项目 e fabricado em conformidade com as normas internacionais de segurarça. Estas advertências são fornecidas por razões de segurarça e devem ser lidas com atençao.
CE Este aparelho é em conformidade com as seguiutes Direcitas da Comunidade Europeia:
- 73/23/CEE de 19/02/73 (Baixa Tensão) e posteriores modificações
- 89/336/CEE de 03/05/89 (Compatibilitad
Electromagnética) e posteriores modificações - 93/68/CEE de 22/07/93 e posteriores modificacoes.
Segurarca geral
- Este aparecido foi concebido para'utilisation de tipo não professionnel no âmbito de moradas.
- Este aparecido não deve ser instalado ao ar livre, mesmo num sítio protegado, porque é muito perigoso deixá-lo exposto a chuva e temporais.
- Não toque na boa com os pés descalçços ou com as mês ou os pés molhados ou humidos.
- Este aparecido deve ser empregado para cozer alimentos, somente por pessoas adultas e segundo as instruçõespresentadas neste folheto. Não utilize o plano como superficie de apoio ou como tabua deURTAR.
- A placá de vitrocerâmica é resistente às batidas mecânicas, entretanto pode rachat-se (ou eventually parteir-se) se for batida com um objecto pontiagudo, com um utensílio. Nestes casos, deslgue imeditamente o aparecido da rede de alimentação e contacte a assistência técnica.
- Se a superficie do plano estiver rachada, deslgue o aparecido para fazer a possibídade de Choques electricos.
- Evite que o cabo de alimentação de outros electrodométricos encoste-se em partes quentes do plano de cozedura.
- Não se esqueça que a temperatura das zones de cozedura permance muito alta pelo menos trinta horas后再 cheque os correiros. O calor resíduo é sinalizzato quando o esqueço para um indicator (veja Inicio e Utilização).
- Mantenha a devida distência da placá quaisquer objects que poder se derreter, por exemplo, objectos de plástico, de(ALminio ou produits com um alto conteudo de acúcar. Preste muito atençao com as embalagens e as peléculas de plástico ou(ALminio:
se deixá-los sobre as superficiesupon aird estiverem quentes ou mornas, poder causar um dano grave à plac.
- Certifique-se que as pegas das panelas fiquem sempre viradas para o lado interno do plano de cozedura para evitar batidas acidentais.
- Não puxe pelo cabo para desligar a ficha da tomada electrica, pegue pela ficha.
- Não realizze limpeza nem manutençao sem antes ter desligado a ficha da rede electrica.
Eliminação

- Eliminação do material de embalagem: obedeça as regras locais, de maneira que as embalagens possam ser reutilizadas.
- A directiva Europeia 2002/96/CE relativa aoresíduos de equipamentos electricos eelectrónicos (REEE) prévê que oselectrodométricos não devem ser eliminados no normal fluxo dos resíduos solidos urbanos. Osaparemposão maisutilizadosdevem serrecolhidos separadamente para optimizar a taxa de recuperação e reciclagem dos materiais que os compoem e impedir potenciais danos à saudee ao meio ambiente. Osimpolo da lixeiracancelada está indicado em todos os produitspara lembrar o averde colecta selectiva.Para maioras informações sobre a correctaeliminação dos electrodométricos, ospropriétários poderao contactar o service decolecta publico ou os revendedores.
Antes de realizar qualquer operacao, deslige o aparelho da alimentacao eletrica.
Limpeza do aparelho
! Evite o lavoro de detergentes abrasivos ou corrosivos, tais como sprays para churrasqueiras e fornos, tira-manchas e produits contra ferrugem, detergentes em pó e esponjas com superficie abrasiva. pode arranhar irremediamente a superficie.
! Nunca utilize equipamento de limpeza a vapor ou de alta pressão para limpar a aparelhagem.
- Para a manutenção ordinária, é suficiente lavar o plano com uma esponja humida e, em seguida, enchugar com papel absorvente de cozinha.
- Se o plano estiver muito sujo, esfregue com um produit especialico para limpeza de superficies em vidro ceramica *, enchague e enchugue.
- Para tirar as acumulacoes de sujidade maiores, use a apropiada espátula fornecida jusqu o aparecido. Intervenha assim que possivel, sem aguardar que o aparecido arrefeca, para fazer que resíduos grudem. Podem ser obtidos excellentes resultados se usar uma esponja especial de fios de aço inoxidavel - específica para planos em vidro cerámica- molhada de água e sabão.
!A espátula fornecida é cortante: use-a com atençao.
- No caso em que no plano de cozedura tenham-se acidentalmentefundidos objectos ou materiais como plástico ou acúcar, remove-los imeditamente com a espátula, às que a superficie esteja não quente.
- DepoS de limpo, o plano poderá ser tratado com um produit especialico para a manutençao e a protecao: aVELICULA invisivel deixada por este produits protegera a superficie se algo for demadamdo durante a cozedura. E recomendavel realizar estas operacoes com o aparelho morno ou frio.
- Lembre-se sempre deioxaguar com agua limpa e exxugar o plano com cuidado: para não acontecer de resíduos de produits grudarem-se na successiva cozedura.
Quadro em aço inoxidável
(somente nos modelos com moldura)
O aço inoxidável pode manchar-se por causa da alta quantidade de calcário na água em contacto durante muito tempo com o metal, ou por conta de produits de limpeza muito agressivos que contenham fósforo.
É aconsehlável enchaguar com agua abundante e enchugar com cuidado,(before de ter limpado o plano. Se for derramada agua, enchugue-a rapidamente com cuidado.
! Alguns planos de cozedura tem uma moldura de aluminio parecida com o aço inoxidavel. Não utilize produits para a limpeza e o desengorduramento não idoneos para o aluminio.
Desmontar o plano
Caso seja necessario desmontar o plano de cozedura:
- remove os parafudos que fixam as molas de centragem nos lados;
- solte os parafusos dos ganchos de fixação nos ângulos;
- extraia o plano de cozedura do vao do movel.
! Recomendamos que se evite tentar oAceço acos mecanismos internos para tentar uma reparação. Em caso de avaria, contactar a Assistência Tecnica.
| P l a n o s de cozedura | TT 8254 | TT 8054 | TT 7334 | |||
| Z o nas de cozedura | Potência (em W) | Diámetro (em mm.) | Potência (em W) | Diámetro (em mm.) | Potência (em W) | Diámetro (em mm.) |
| Traseiro dir. | H 2500 | 230 | R 2500 | 250 | H 1200 | 165 |
| D ianteiro dir. | R 1200 | 165 | R 1200 | 165 | RO 1000/1800 | 165x270 |
| Traseiro esq. | H 1050/2500 | 230 | ||||
| D ianteiro esq. | R 600 | 120 | ||||
| C entro | H 1800 | 200 | R 1800 | 200 | ||
| E squerd a | RO 600/1600/2400 | 190x275 | RO 1500/2400 | 190x285 | ||
| Potência total | 7900 | 7900 | 6100 | |||
| H = halógen, R = irradiante Único, RO = irradiante oval, RD = irradiante duplo, RT = irradiante triplo | ||||||
| P l a n o s de cozedura | TT 7054 | TT 7244 | TT 7064 | |||
| Z o nas de cozedura | Potência (em W) | Diámetro (em mm.) | Potência (em W) | Diámetro (em mm.) | Potência (em W) | Diámetro (em mm.) |
| Traseiro dir. | R 1200 | 165 | H 1200 | 165 | R 1200 | 165 |
| D ianteiro dir. | RO 1000/1800 | 165x270 | H 1800 | 200 | R 1800 | 200 |
| Traseiro esq. | R 1100/2500 | 250 | RT 800/1600/2500 | 250 | RT 600/1600/2500 | 250 |
| D ianteiro esq. | R 600 | 120 | R 600 | 120 | R 600 | 120 |
| C entro | ||||||
| D ireita | ||||||
| Potência total | 6100 | 6100 | 6100 | |||
| H = halógen, R = irradiante Único, RO = irradiante oval, RD = irradiante duplo, RT = irradiante triplo | ||||||
| P l a n o s de cozedura | TTG 7324 | TT 6324 | TT 6224 | |||
| Z o nas de cozedura | Potência (em W) | Diámetro (em mm.) | Potência (em W) | Diámetro (em mm.) | Potência (em W) | Diámetro (em mm.) |
| Traseiro dir. | R 1400 | 180 | R 1400 | 180 | R 1400 | 180 |
| D ianteiro dir. | H 1800 | 200 | H 1800 | 200 | H 1800 | 200 |
| Traseiro esq. | H 1050/2500 | 230 | H 1050/2500 | 230 | H 2500 | 230 |
| D ianteiro esq. | R 1200 | 165 | R 1200 | 165 | R 1200 | 165 |
| C entro | ||||||
| D ireita | ||||||
| Potência total | 6900 | 6900 | 6900 | |||
| H = halógen, R = irradiante Único, RO = irradiante oval, RD = irradiante duplo, RT = irradiante triplo | ||||||
| P l a n o s de cozedura | TT 6134 | TT 6054 | TT 6044 | |||
| Z o nas de cozedura | Potência (em W) | Diámetro (em mm.) | Potência (em W) | Diámetro (em mm.) | Potência (em W) | Diámetro (em mm.) |
| Traseiro dir. | R 1400 | 180 | R 1400 | 180 | R 1400 | 180. |
| D ianteiro dir. | R 1800 | 200 | R 1800 | 200 | R 1800 | 200 |
| Traseiro esq. | H 2500 | 230 | R 1100/2500 | 250 | R 2500 | 250 |
| D ianteiro esq. | R 1200 | 165 | R 600 | 120 | R 600 | 120 |
| C entro | ||||||
| D ireita | ||||||
| Potência total | 6900 | 6300 | 6300 | |||
| H = halógen, R = irradiante Único, RO = irradiante oval, RD = irradiante duplo, RT = irradiante triplo | ||||||
| P l a n o s de cozedura | TT 6143 | TT 6234 | TT 6244 | |||
| Z o nas de cozedura | Potência (em W) | Diámetro (em mm.) | Potência (em W) | Diámetro (em mm.) | Potência (em W) | Diámetro (em mm.) |
| Traseiro dir. | R 1400 | 180 | H 1200 | 165 | ||
| D ianteiro dir. | R 1800 | 200 | RO 1000/1800 | 165x270 | ||
| Traseiro esq. | H 2500 | 230 | H 1050/2500 | 230 | H 1050/2500 | 230 |
| D ianteiro esq. | R 1200 | 165 | R 1200 | 165 | R 600 | 120 |
| C entro | ||||||
| D ireita | R 600/1600/2400 | 190x275 | ||||
| Potência total | 6100 | 6900 | 6100 | |||
| H = halógen, R = irradiante Único, RO = irradiante oval, RD = irradiante duplo, RT = irradiante triplo | ||||||
| P l a n o s de cozedura | TT 6133 | |||||
| Z o nas de cozedura | Potência (em W) | Diámetro (em mm.) | ||||
| Traseiro dir. | ||||||
| D ianteiro dir. | ||||||
| Traseiro esq. | H 2500 | 230 | ||||
| D ianteiro esq. | R 1200 | 165 | ||||
| C entro | ||||||
| D ireita | RO 1500/2400 | 190x285 | ||||
| Potência total | 6100 | |||||
| H = halógen, R = irradiante Único, RO = irradiante oval, RD = irradiante duplo, RT = irradiante triplo | ||||||
Notice-Facile