TT 7334 - Kookplaat SCHOLTES - Gratis gebruiksaanwijzing en handleiding
Vind de handleiding van het apparaat gratis TT 7334 SCHOLTES in PDF-formaat.
Questions des utilisateurs sur TT 7334 SCHOLTES
0 question sur cet appareil. Repondez a celles que vous connaissez ou posez la votre.
Poser une nouvelle question sur cet appareil
Download de handleiding voor uw Kookplaat in PDF-formaat gratis! Vind uw handleiding TT 7334 - SCHOLTES en neem uw elektronisch apparaat weer in handen. Op deze pagina staan alle documenten die nodig zijn voor het gebruik van uw apparaat. TT 7334 van het merk SCHOLTES.
GEBRUIKSAANWIJZING TT 7334 SCHOLTES
Het installeren, 38-40
Plaatsing
Elektrische aansluiting
Beschrijving van het apparaat, 41-42
Bedieningspaneel
Verlengbare kookgedeeltes
Starten en gebruik, 43-45
Inschakelen kookplaat
Inschakelen kookgedeeltes
Inschakelen verlengbare kookgedeeltes
Uitzetten kookgedeeltes
De verwarmingselementen
Programming koektijd
Blokkering van het bedieningspaneel
"Demo" modus
Praktische tips voor het gebruik van het apparaat
Veiligheidssystemen
Voorzorgsmaatregelen en advies, 46
Algemene veiligheidsmaatregelen
Afvalverwijdering
Onderhoud en verzorging, 47
De elektrische stroom afsluiten
Schoonmaken van het apparaat
De kookplaat verwijderen
Technische beschrijving van de modellen, 48

Scholtès
! Bewaar dit boekje zorgvuldig voor eventuele verdere raadpleging. Wanner u het product weggeeft, verkoopt, of wanner u verhuist, dient u dit boekje bij het apparaat te bewaren zDat alle nodige informatie voorhanden blijft.
! Lees de gebruiksaanwijzingen zorgvuldig door: er staat belangrijke informatatie in over installment, gebruik en verilgheid.
Plaatsing
! Het verpakkingsmaterial is nicht bestemd voor kinderen en dient waarom te worden weggegooid volgens de geldende normen voor gezcheiden afvalverzameling (zie Voorzorgsmaatregelen en advies).
! De installmentie要去 worden uitgevoerd door een bevoegde installmenteur en volgens de instructies van de fabrikant. Een verkeerde installmentie kan schade berokkenen aan Personen, dieren of dingen.
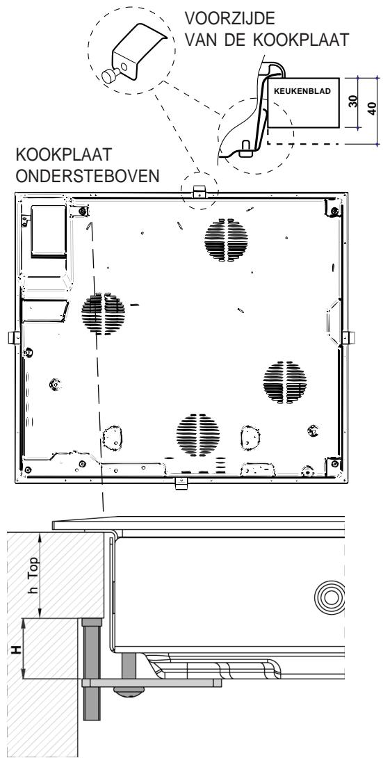
Inbouw
Voor een goede werkung van het apparaat moet het keukenmeubel de juiste kenmerken hebben:
- het keukenblad要去it hittebestendigmaterialzijn vervaardigdeen een temperatuur van circa 100^ kunnenverdragen;
- als de kookplaat boven een oven worden geinstalleerd要去 deze voorzien van een geventileerd afkoelingssystem;
- installeer de kookplaat nooit boven een vaatwasser: indien u dit toch doet, breng dan een waterdichte aft Scheiding aan:tussen de twee apparaten;
- maar gelang van het type kookplaat dat u wenst te installereren (zie afbeelingen),要去 het keukenmeubel de volgende afmetingen hebben:



Ventilatie
Om een juiste ventilatie te bereiken en een oververhitting van de oppervlakken rond het apparaat te voorkomen,要去 de kookplaat geinstalleerd worden op:

- op een minimum afstand van 40 mm van dechterwand of op 600 mm van elk ander verticaal oppervlak;
- zodanige wijze dat er een minimum afstand overblijt van 10 mm:tussen het inbouwmeubel en het onderstaande meubel.
Bevestigen
Het apparaat要去en absolut horizontaal oppervlak worden geinstalleerd.
Eventuele door onjuiste installmentie veroorzaakte verrormingen kuren de eigenschappen en de prestaties van de kookplaat aantasten.

De lenghte van de regelschroef van de bevestigingshaken moet op basis van de dikte van het keukenblad worden ingesteld voordat de haken worden gemonteerd:
- als de dikte 30 mm is: schroef 17,55 mm;
- als de dikte 40 ~mm is: schroef 7,55 mm.
Voor het bevestigen moet u als volgt te werk.gaan:
- Schroef met korte, puntoze schroeven de 4
centreringsklemmen in de openingsen in het midden van
elke zijde van het blad vast; - zet de kookplaat in het midden van de opening van het keulenmeubel door gelijke druk uit te oefenen op de hele omtrek totdat de kookplaat perfect aansluit op het keulenblad.
- voor een blad met zichprofielen: nadat u de kookplaat in het keukenmeubel heeft geplaatst moet u de 4 bevestigingshaken aan de onderste rand van de kookplaat vastschroeven met gespunte, lange schroeven, net zolang tot het glas goed aan het blad vastzit.
! De schroeven van de centereringsklemmen moeten te allenijdere bereikbaar blijven.
! Volgens de veiligheidsnormen mag er geen contact meer möglichelijk zijn met de elektrische onderdelen nadat het apparaat is ingebouwd.
!Alle beschemende onderdelen moeten zodanig worden bevestigd dat ze nichturon worden verwijderdzonder gereedschap te gebruiken.
Elektrische aansluiting
! De elektrische aansluitingen van de kookplaat en de eventuele inbouwoven要去en apart worden uitgevoerd, zowel om elektrische verilgheidsredenen als om de oven eventueel eenvoudiger te konnen verwijderen.

Klemmenbord
KOOKPLAATONDERSTEROVEN
Aan de onderkant van het apparaat bevindt zich een klemmenbord voor de verschillende types elektrische voeding (het kan zijn dat de afbeelding Niet precies overeenkomt met het model dat u heeft aangeschaft).
Eenfasige aansluiting
De kookplaat is voorzien van een voedingskabel bestemd voor een eenfasige aansluiting. Voer de draadverbinding uit zoals aangegeven in de volgende babel en tekeningen:
| Spanningtype en netfrequentie | Elektrische kabel | Draadverbinding |
| 230V 1+N ~ 50 Hz | N L | geel/groen; N: de 2 blauwe draden samen L: bruin en zwart samen |
Andere soorten aansluitingen
Als het elektrische net overeenkomt met een van de volgende eigenschappen:
Spanningstype en netfrequentie
- 400V - 2+N ~ 50 Hz
230V 3 ~ 50 Hz - 400V - 2+2N ~ 50 Hz
Scheidt de kabels en voer de draadverbinding uit zoals aangegeven in de volgende babel en tekeningen:
| Spanningtype en netfrequentie | Elektrische kabel | Draadverbinding |
| 400V - 2+N ~ 50 Hz | N L1 L2 | ½: geel/groen; N: de 2 blauwe draden samen L1: zwart L2: bruin |
| 230V 3 ~ 50Hz | ||
| 400V - 2+2N ~ 50 Hz | N1 N2 L1 L2 | ½: geel/groen; N1: blauw N2: blauw L1: zwart L2: bruin |
Als het elektrische net overeenkomt met een van de volgende eigenschappen:
Spanningtype en netfrequentie
- 400V 3 - N ~ 50 Hz
ga dan als volgt te werk:
! De eventuele bijgeleverde kabel is nicht geschickt voor dit type installmentie.
- Gebruik een geschikte voedingskabel, type H05RR-F of met een hogere waarde, met de juiste afmetingen (diameter kabel: 2,5 mm).
- Licht de lippen aan de zijkant van het deksel van het klemmenbord op met een schroevendraier en open het (zie afbeelding Klemmenbord).
- Draai de schroef van de kabelklem en de schroeven van de benodigde klemmetjes los en bevestig de verbindingskabels volgens de aanwijzingen van de volgende tabel en afbeeldingen.
- Plaats de draten zoals aangegeven in de volgende afbeeldingen en tabel en stel een verbinding tot stand door alle schroeven van de klemmetjes goed vast te draaien.
| Spanningtype en netfrequentie | Elektrische aansluitingen | Klemmenbord | ||||
| 400V 3-N ~ 50 Hz | 1 L1 | 2 L2 | 3 L3 | 4 N | 5 | Driefasen 400 |
- Bevestig de voedingskabel in de speciale kabelklem en sluit het deksel af.

Het aansluiten van de voedingskabel aan het elektrische net
Bij eenrechtstreekse aansluiting aan het net moet u tussen het apparaat en het net eeneerpolige schakelaar aanbrengen met een minimum afstand van 3 mm tussen de contacten.
! De installmenteur is verantwoordelijk voor een correcte elektrische verbinding en het in acht nemen van de veiligheidsnormen.
Voor het aansluiten moet u controlleren dat:
- het stopcontact geaard is en voldoet aan de geldende normen;
-
het stopcontact in staat is het maximale vermogen van het apparaat te verdragen, zoals aangegeven op het typeplaatje dat zich op het apparaat bevindt;
-
de spanning zich befindt:tussen de waarden die staan aangegeven op het typeplaatje;
- het stopcontact en de stekker overeenkomen. Als dat Niet zo is, dient u ofwel de stekker ofwel het stopcontact te verrangen; gebruik geen verlengsnoeren of dubbelstekkers.
! Wanner het apparaat geinstalleerd is要去en het snoer en het stopcontact gemakkelijk te bereiken zijn.
! De kabel mag nicht worden gebogen of samengedrukt.
! De kabel要去 vanijd totarend worden gecontrolererd en mag alleen door erkende monteurs worden verrangen.
! De fabrikant kan nicht aansprakelijk worden gesteld als deze normen nicht worden nageleefd.
Bedieningspaneel
Het bedieningspaneel dat hier worden beschreiben en aufgebeeld geldt alleen als voorbeeld: het is möglichk dat het nicht precies overeenkomt met het door u aangeschafte model.

- Toets MEER VERMOGEN om de kookplaat aan te zetten en het vermogen te regelen (zie Starten en gebruik).
- Toets MINDER VERMOGEN om de kookplaatuit te zetten en het vermogen te regelen (zie Starten en gebruik).
- AanwijzerVERMOGEN: geeft het bereekte warmteniveau aan.
- Toets ON/OFF voor het in- en uitschakelen van het apparaat.
- Controlelampje ON/OFF: geeft aan of het apparaat in- of uitgeschakeld is.
-
Toets PROGRAMMERINGSTIMER om de programmering van de kookduur te regelen (zie Starten en gebruik).
-
Display PROGRAMMERINGTIMER: toont de keuzes betreffende deprogramming aan (zie Starten en gebruik).
- Controleampjes GEPROGRAMMERD KOOKGEDEELTE: tonen de kookgedeeltes aan als u een programmering start (zie Starten en gebruik).
- Toets BLOKKERING BEDIERINGSPANEEL om te voorkomen dat er ongewilde wijzigingen aan de regeling van het kookvlak worden uitgevoerd (zie Starten en gebruik).
- Controlelampje BLOKKERING BEDIENINGSPANIEL: toont dat de blokkering van het bedieningspaneel heeftplaatsgevonden (zie Starten en gebruik).
Verlengbare kookgedeeltes
Enkele modellen beschikken over verlengbare kookplaten. Deze können verschillende vormen haben (rond of ovaal) en op verschillende manieren worden verlengd (dubboł of drievoudig straalelement). Hier worden de betreffende bedieningsknoppen beschreiben; alleen aanwezig op modellen die zichn voorzien van deze functies.

Verlengbare kookplaat rond

Verlengbare kookplaat ovaal
- Toets ONTSTEKEN DUBBELE KOOKPLAAT om de dubbele kookplaat aan te zetten (zie Starten en gebruik).
- Controleampje DUBBELE KOOKPLAAT ONTSToken: geeft aan dat de dubbele kookplaat ontstoken is.
- Toets ONTSTEKEN DRIEVoudige KOOKPLAAT om de drievoudige kookplaat aan te zetten (zie Starten en gebruik).
-
Controleampje DRIEVoudige KOOKPLAAT ONTSToken: geeft aan dat de drievoudige kookplaat ontstoken is.
-
Toets ONTSTEKEN DUBBELE KOOKPLAAT om de dubbele kookplaat aan te zetten (zie Starten en gebruik).
- Controleampje DUBBELE KOOKPLAAT ONTSToken: geeft aan dat de dubbele kookplaat ontstoken is.
- Toets ONTSTEKEN DRIEVoudige KOOKPLAAT om de drievoudige kookplaat aan te zetten (zie Starten en gebruik).
- Controleampje DRIEVoudige KOOKPLAAT ONTSToken: geegt aan dat de drievoudige kookplaat ontstoken is.
! De lijm die gebruikt is voor de afdichtingen LAST wat vetvlekjes achefter op het glas. Voordat u het apparaat gebruikt raden wij u aan de vlekken te verwijderen met een speciaal Niet-schurend schoonmaakmiddel. Gedurende de eersteaar uuur dat u het apparaat gebruikt kan het zich dat u een rubbergeur ruikt. Deze zaECHTER snelwegtrekken.
! Wanner de kookplaat elektrisch worden aangesloten gaan alle controleampjes en aanwijzers op het bedieningspaneel even aan en zult u een kort geluidssignaal horen. Alleen wanner de controleampjes en aanwijzers weeer uitgaankest u de kookplaat aanzetten.
Inschakelen kookplaat
Druk ongeveer 1 seconde lang op de knop ① voor het inschakelen van de kookplaat.
Inschakelen kookgedeeltes

leder kookgedeelte wordt door middel van een stroomsterkteregelaar bediend. De regelaar bestaat uit twee toetsen (-en +).
- Druk op de knop om de kookplaat in te schakelen en stel verrolgens het gewenste vermogen in door op de knoppen - en ① te drukken.
- Om de kookplaat direct op het maximale niveau in te stellen drukt u kort op de toets () .
Inschakelen verlengbare kookgedeeltes
-
Dubbele kookplaat:
-
Druk op de toets voor het inschakelen van het interne kookgedeelte.
-
Als het tweeede kookgedeelte rond is: druk op de knop voor het in- of uitschakelen van het tweeede kookgedeelte. Als het kookgedeelte ovaal is: druk op de knop .
-
Drievoudige kookplaat:
-
Activeer de dubbele kookplaat zoals aangegeven.
- Als het kookgedeelte rond is: druk op de knop voor het in- of uitschakelen van het gehele kookgedeelte (drievoudige kookplaat). Als het kookgedeelte ovaal is: druk op de knop
! Het is möglichk het gehele verlengbare kookgedeelte (drievoudige kookplaat) in- of UIT te schakelen door direct op de toets te drukken als het rond is, en op als het ovaal is.
Uitzetten kookgedeeltes
- Druk op de knop () : het vermogen van het kookgedeelte worden langzaam minder totdat hetuitgaat.
- Of druk tegelijkertijd op de knoppen (-) en (+) : het vermogen gaat onmiddelijk terug tot 0 en het kookgedeelte gaatuit.
De verwarmingselementen
Aan de hand van het type kookplaat+kennen twee verschillende verwarmingselementen worden gemonteerd:
halogeen of stralend.
De halogeenelementen verspreiden de warmte door de uitstraling van de halogeenlamp die zich erin bevindt.
De kenmerkende eigenschappen zichn die van het gasfornuis: snelle reactie op de bediening en het onmiddelijk zichtaar worden van de stroomsterkte.
De stralingselementen bestaat uit een hoeveelheid spiralen die het gelijkmatig verspreiden van de warmte op de bodem van de pan garanderen, dat wil zaggen de perfecte functie voor het bereiden van etenswaren op een laag vuur: voor stoofschotels, sausen of het opwarmen van gerechten.
Programming kooktijd
!Alle kookgedeeltes können geprogrammeerd worden voor een tijdsduurCUSen de 1 en de 99 minutes.
- Doe de kookplaat aan en regel de temperatuur.
- Druk een paar keer op de toets totdat het contrôlelampje aangaat dat hoort bij de kookplaat die u wilt programmeren.
- Stel de gewenste kooktijd in door middel van de toetsen ( +)
- Bevestig door op de toets te drukken.
De timer begint gegelijk met aftellen. Het einde van de geprogrammeerde kooktijd worden aangegeven door een geluidssignaal (dat 10 seconden duurt) waarna het kookgedeelte uitgaat.
Herhaal de hierboven beschreiben procedure voor iedere kookplaat die u wilt programmeren.
Visualisatie bij een meervoudige programmering.
Indien een of meer kookplaten zijn geprogrammeerd vertoont het display de resterendeijd van de kookplaat die als eerste eindigt, verwijl hij de positie ervan aanduidt door middel van het betreffende controleampje. De controleampjes van de andere geprogrammeerde kookplaten knipperen.
Om de resterendeijd van de andere geprogrammeerde kookplaten te visualiseren要去 een,aantal keren op de toets drukken: met de klok mee zullen, de een na de ander, deincidenten van alle geprogrammeerde kookplaten worden getoond, te beginnen met de kookplaat links voor.
Het wijzigen van eenrogramming
- Druk een,aantal keer op de toets totdat de tijd van de kookplaat die u wilt wijzigen verschijnt.
- Druk op de toetsen voor het instellen van deijkearend.
- Bevestig door op de toets te drukken.
Om een programmering te annuleren要去 u bovenstaande handelingen uitvoeren. Bij punt 2要去 u tegelijkertijd op de toetsen +drukken: de programmierung wordt gewist en het display verlaat de programmieringsmodus.
Blokkering van het bedieningspaneel
Als de kookplaat in werkung is(Int) het bedieningspaneel blokkeren om een ongewenst aanraken te vermiiden (kinderen,
schoonmaakhandelingen, enz.). Door op de knop te drukken za het bedieningspaneel worden geblokkeerd. Het contrôlelampje boven de toets gaat aan.
Als u het bedieningspaneel wij wilt gebruiken (bv. als u wilt stoppen met koken) moet u de blokkering uitschakelen: druk even op de toets . Het controleampje gaat uit en het bedieningspaneel worden weeer geactiveerd.
Uitschakelen kookplaat
Druk op de toets () ; het apparaat.gaatuit.
Als het bedieningspaneel is geblokkeerd, blijdt ook geblokkeerd nadat u de kookplaat opnieuw inschakelt. Als u de kookplaat opnieuw wilt inschakelen moet u eerst het bedieningspaneel deblokken.
"Demo" modus
Het is möglich een demo modus in te stellen waar bij het bedieningsspaneel normal functioneert (de opdrachten betreffende dePROGRAMMING inbegrepen), maar waar bij de verwarmingselementen Niet aangaan. Om de "demo" modus te activeren要去 de kookplaat aanstaan en het bedieningsspaneel zijn geactiveerd.
- Druk tegelijkertijd enkele seconden lang op de toets () van de kookplaat links anschter, op de toets
van de kookplaat rechts voor en op de toets - het display vertoont om de beurt de tekst DE en MO en het kookvlak.gaat uit;
- de volgende keer dat u de kookplaat aansteekt za hij zich in de "demo" modus bevinden.
Omuitdezemodus te komen:
- als het kookvlak aanstaat en het bedieningspaneel is geblokkeerd要去 nogmaals op de toetsendrukken zoals boven staat aangegeven;
- het display vertoont om de beurt de tekst RE en AL en het kookvlak.gaat uit;
- als u het kookvlak aandoet, za het weeer gewoon functioneren.
Praktische tips voor het gebruik van het apparaat
Teneinde optimale resultaten te bereiken van het kookvlak:
- gebruik pannen met een platte bodem die perfect aansluiten op het verwarmgedeelte;

- gebruik pannen die groot genoeg zich om de kookplaat geheel te bedekken teneinde alle beschikbare hitte te benutten;

- houd de bodem van de pannen alsd schoon en droog zodat ze goed aansluiten op het kookvlak. Dit verlangt de levensduur van zowel de pannen als het kookgedeelte;
- vermijddezelfde pannen te gebruiken die u ook op een gasfornuis gebruikt: de warmteconcentratie van gasbranders kan de bodem van pannenvervormen,waardoor ze Niet goedmeer aansluiten;
- maar nooit een kookgedeelte aan staan zonder een pan erop. De verhitting, die snel het maximum niveau bereikt, zou de verwarmingselementen können beschadigen.
Aangeraden stroomsterktes voor verschillend gebruik:
| Stroom-sterktes | Kleine kookplaat (1100->1400 W) | Middelste kookplaat (1800->2000 W) | Grote kookplaat (2300->2500 W) |
| Mini | Chocolade | Verwarmen | Op laag vuur koken |
| Middel-maat | Saus | Op laag vuur koken | Vloeistoffen koken |
| Maxi | Op laag vuur koken | Vloeistoffen koken | Bakken/Grillen |
Veiligheidssystemen
Aanwijzers van de resterende warmte
Zolang de temperatuur van de kookgedeeltes ook na het uitschakelen boven de 60^ blijt, blijven de aanwijzers van de resterende warmte die zich naast het betreffende kookgedeelte bevinden aan, zodate u zich nicht verbrandt.
Non-actief
Als een kookplaat worden ingeschakeld maar 2 minutes lang Niet worden gezruikt, worden de blokkering van het bedieningspaneel geactiveerd. Als deze situation nog ongeveer 4 minutes lang aanhoudt, gaat de kookplaat automatisch uit.
Oververhitting
Langdurig gebruik van de kookplaat kan het oververhitten van de elektronische elementen veroorzaken.
Een thermisch verilgheidssystem stelt in deze gevallen in de voorste gedeeltes tijdelijk een beperkte stroomsterkte in (gelijk aan 3) totdat de temperatuur is gezakt tot een acceptabeliveau.
Veiligheidsschakelaar
Het apparaat beschikt over een veriligeidsschakelaar die de kookgedeeltes automatisch uitschakelt als de tijdslimiet voor een bepaald vermogensniveau is bereikt (zie[tabel). Gedurende de veriligeidsonderbreking vertoont het display afwisselend de letters TI en ME.
| Niveau stroomster- kte | Tijdslimiet werkinq in uren |
| 1 | 10 |
| 2 | 6 |
| 3-4-5 | 5 |
| 6 | 4 |
| 7-8 | 3 |
| 9-10 | 2 |
| 11 | 1 |
Geluidssignaal
Enkele storingen, zoals:
- een voorwerp (pan, bestek, enz.) dat meer dan 10 seconden op het bedieningsspaneel ligt,
gemors op het bedieningspaneel, - een te lange druk op een toets,
kunnen een geluidssignaal veroorzaken. Verwijder de oorzaak van de storing en het geluidssignaal houdt op. In deze gevallen zal het bedieningspaneel automatisch worden geblokkeerd:
om het werk in te schakelen要去 op de toets
drukken. De instellingen worden behouden. Als de oorzaak van de storing Niet wordt verwijderd blijft het geluidssignaal gaan en gaat het kookvlak UIT.
Voorzorgsmaatregelen en advies
NL
! Dit apparaat is ontworpen en vervaardigd volgens de geldende internationale veriligeidsvoorschriften. Deze aanwijzingen zijn geschreven voor uw veriligeid en u dient ze derhalve goed door te nemen.
C E Dit apparaat voldoet aan de volgende EU Richtlijnen:
- 73/23/EEG van 19/02/73 (Laagspanning) en waaropvolgende wijzigingen
- 89/336/EEG van 03/05/89 (Elektromagnetische Compatibility) enaaropvolgende wijzigingen
- 93/68/EEG van 22/07/93 enaaropvolgende wijzigingen.
Algemene veiligheidsmaatregelen
- Dit apparaat is vervaardigd voor nicht-professioneel gebruik binnenshuis.
- Het apparaat dient Niet buitenshuis te worden geplaatst, ook Niet in overdekte toestand. Het is erg gevaarlijk als het in aanraking kommt met regen of onweer.
- Raak het apparaat Niet blootsvoets aan of met natte handen of voeten.
- Het apparaat dient om gerechten te koken. Het mag uitsluitend door volwassenen worden gebrukt en alleen volgens de instructies die beschreiben staan in deze handleiding. Gebruik het kookvlak Niet om voorwerpen op teplaatsen en ook nicht als snijplank.
- Het glaskeramische kookvlak is bestand gegen Mechanische stoten. Het kan darüber worden beschadigd (of barsten) als het wordt geraakt door een punting object, bijvoorbeeld door gereedschap. Als dit gebeurt要去 unmiddelijk het apparaat afsluiten van de elektrische stroom en contact opnemen met de Technische Dienst.
- Als het oppervlak van de kookplaat gebarsten is moet u het apparaat uitschakelen om te voorkomen dat u een elektrische schok krijgt.
- Voorkom dat elektrische snoeren van anderekleine keukenapparaten op warme delen van de kookplaatterechtkommen.
-
Vergeet zich dat de temperatuur in het kookgedeelte aanzienlijk hoog blijft tot minstens 30 minutes nadat u het uitschakelt. De resterende warmte worden aangeduid door een aanwijzer (zie Starten en gebruik).
-
Houdt voorwerpen die kuren smelten op afstand van de kookplaat, zoals bv. plastic, aluminium of suikerhoudende etenswaren. Let vooral op plastic of aluminium verpakkingen en folie: als u ze op het nog warme of lauwe kookvlak neerlegt, kut u een zware schade aanrichten.
- Richt de handvaten van de pannen algid maar de binnenNZijde van de kookplaat zodat u er Niet per ongeluk gegen stoot.
- Haal de stekker nooit UIT het stopcontact door aan het snoer te trekken.
Maak de oven nicht schoon of voer geen onderhouduit als de stekker nog in het stopcontact zit.
Afvalverwijdering

- Verwijdering van het verpakkingsmaterial: houdt u aan deplaatselijke normen, zodat het verpakkingsmaterial hergebruikt kan worden.
- De Europese Richtlijn 2002/96/EC over Vernietiging van Electrische en Electronische Apparatuur (WEEE), vereist dat oude huishoudelijkte electrische apparaten nicht mogen vernietigd via de normale ongesorteerde afvalstroom. Oude apparaten要去 apart worden ingezameld om zo het hergebruik van de gebruikte materialen te optimaliseren en de negatieve invloed op de gezondheid en het milieu te reduceren. Het symbool op het product van de "afvalcontainer met een kruis erdoor" herinnert u aan uw verplichting, dat wanner u het apparaat vernietigt, het apparaat apart要去 worden ingezameld.
Consumen loemen contact opnemen met de locale autoriteiten voor informatie over de juiste wijze van vernietiging van hun oude apparaat.
De elektrische stroom afsluiten
Sluit.altijdeerstde stroomafvoordatu tot enige handeling overgaat.
Schoonmaken van het apparatus
! Vermijd het gebruik van schuurmiddelen of bijtende middelen, zoals sprays voor barbecues en ovens, vlekkenmiddelen, roestverwijderende producten, schoonmaakmiddelen in poedervorm of schuursponzen: deze können het oppervlak onherstelbaar krassen.
! Gebruik nooit stoom- of hogedrukreinigers voor het reinigen van het apparaat.
- Voor normal aannderhoud reinigt u het met een vochtige spons en droogt u het af met keukenpapier.
- Als deplaat erg vuil is moet hij worden schoongemaakt met een special middel voor keramiekplaten. Daarna要去 hem afspoelen en afdrogen.
- Voor het verwijderen van hardnekig vuil gebruikt u het bijgeleverde schrapertje. Doe dit zo snel möglichelijk voordat het apparaat afkoelt zodate de etensresten Niet aankoeken. Uitstekende resultaten bereikt u ook met een speciaal voor keramiekplaten vervaardigd roestvrij staal sponsje dat u in een sopje doopt.
! Het bijgeleverde schrapertje is erg scherp: wees voorzichtig in het gebruik.
- Als er op de kookplaat onverhoopt voorwerpen of plastic materiaal of suiker zouden smelten,要去 uze onmiddelijk met het schrapertje verwijderen zolang het oppervlak nog warm is.
- Als deplaat is schoongemaaakt kan hij worden behandeld met een speciaal product voor onderhoud en bescherming: het onzichtbare laagje dat dit product achefterlaat beschermt de planta in het geval er iets overkoott. Dit soort handelingen要去en worden uitgevoerd als de planta law of koud is.
- Vergeet Niet de kookplaat.altijd met schoon water af te spoelen en goed af te drogen: restjes schoonmaakmiddel hunnen de volgende keer dat u kookt aankoeken.
Raamwerk van roestvrij staal (slechts bij modellen met lijst)
Roestvrij staal kan vlekken gaan vertonen als er voor langereijd kalkhoudend water op blijft liggen of als gezolg van gebruik van schoonmaakmiddelen die fosfor bevatten.
Spoel en droog de kookplaat.altijd goed af nadat u hem heeft schoongemaakt. Droog gemorst water altijd meteen goed af.
! Kader in aluminium met inox uitzicht, nooit reinigings of ontvettingsprodukten gebruiken die nicht geschikt zijn voor aluminium.
De kookplaat verwijderen
Als u de kookplaat要去 verwijdersen:
- verwijder de schroeven die de centeringsklemmen aan de zijkant vasthouden;
- kaak de schroeven van de bevestigingshaken op de hoeken los;
- haal de kookplaat uit het meubel.
! U mag nooit aan het interne systeem sleutelen om een reparatie proberen uit te voeren. Als er een storing is moet u contact opnemen met de Service Dienst.
Technische beschrijving van de modellen
NL
In deze tabellen vindt u de waarden'erug van de energieopname voor ieder afzonderlijk model, het type verwarmingselement (halogeen of stralend) en de diameter van iedere kookplaat.
| Kookplaten | TT 8254 | TT 8054 | TT 7334 | |||
| Kookgedeeltes | Vermogen (in W) | Diameter (in mm) | Vermogen (in W) | Diameter (in mm) | Vermogen (in W) | Diameter (in mm) |
| Rechts achefter | H 2500 | 230 | R 2500 | 250 | H 1200 | 165 |
| Rechts voor | R 1200 | 165 | R 1200 | 165 | RO 1000/1800 | 165x270 |
| Links achefter | H 1050/2500 | 230 | ||||
| Links voor | R 600 | 120 | ||||
| Centrum | H 1800 | 200 | R 1800 | 200 | ||
| Linker | RO 600/1600/2400 | 190x275 | RO 1500/2400 | 190x285 | ||
| Totaal vermogen | 7900 | 7900 | 6100 | |||
| H = halogeen (haloring), R = enkel straalelement, RO = ovaal straalelement, RD = dubbel straalelement, RT = driedubbel straalelement | ||||||
| Kookplaten | TT 7054 | TT 7244 | TT 7064 | |||
| Zone di cottura | Vermogen (in W) | Diameter (in mm) | Vermogen (in W) | Diameter (in mm) | Vermogen (in W) | Diameter (in mm) |
| Rechts achefter | R 1200 | 165 | H 1200 | 165 | R 1200 | 165 |
| Rechts voor | RO 1000/1800 | 165x270 | H 1800 | 200 | R 1800 | 200 |
| Links achefter | R 1100/2500 | 250 | RT 800/1600/2500 | 250 | RT 800/1600/2500 | 250 |
| Links voor | R 600 | 120 | R 600 | 120 | R 600 | 120 |
| Centrum | ||||||
| Rechts | ||||||
| Totaal vermogen | 6100 | 6100 | 6100 | |||
| H = halogeen (haloring), R = enkel straalelement, RO = ovaal straalelement, RD = dubbel straalelement, RT = driedubbel straalelement | ||||||
| Kookplaten | TTG 7324 | TT 6324 | TT 6224 | |||
| Zone di cottura | Vermogen (in W) | Diameter (in mm) | Vermogen (in W) | Diameter (in mm) | Vermogen (in W) | Diameter (in mm) |
| Rechts achefter | R 1400 | 180 | R 1400 | 180 | R 1400 | 180 |
| Rechts voor | H 1800 | 200 | H 1800 | 200 | H 1800 | 200 |
| Links achefter | H 1050/2500 | 230 | H 1050/2500 | 230 | H 2500 | 230 |
| Links voor | R 1200 | 165 | R 1200 | 165 | R 1200 | 165 |
| Centrum | ||||||
| Rechts | ||||||
| Totaal vermogen | 6900 | 6900 | 6900 | |||
| H = halogeen (haloring), R = enkel straalelement, RO = ovaal straalelement, RD = dubbel straalelement, RT = driedubbel straalelement | ||||||
| Kookplaten | TT 6134 | TT 6054 | TT 6044 | |||
| Zone di cottura | Vermogen (in W) | Diameter (in mm) | Vermogen (in W) | Diameter (in mm) | Vermogen (in W) | Diameter (in mm) |
| Rechts achefter | R 1400 | 180 | R 1400 | 180 | R 1400 | 180 |
| Rechts Voor | R 1800 | 200 | R 1800 | 200 | R 1800 | 200 |
| Links achefter | H 2500 | 230 | R 1100/2500 | 250 | R 2500 | 250 |
| Links voor | R 1200 | 165 | R 600 | 120 | R 600 | 120 |
| Centrum | ||||||
| Rechts | ||||||
| Totaal vermogen | 6900 | 6300 | 6300 | |||
| H = halogeen (haloring), R = enkel straalelement, RO = ovaal straalelement, RD = dubbel straalelement, RT = driedubbel straalelement | ||||||
| Kookplaten | TT 6143 | TT 6234 | TT 6244 | |||
| Zone di cottura | Vermogen (in W) | Diameter (in mm) | Vermogen (in W) | Diameter (in mm) | Vermogen (in W) | Diameter (in mm) |
| Rechts achefter | R 1400 | 180 | H 1200 | 165 | ||
| Rechts voor | R 1800 | 200 | RO 1000/1800 | 165x270 | ||
| Links achefter | H 2500 | 230 | H 1050/2500 | 230 | H 1050/2500 | 230 |
| Links voor | R 1200 | 165 | R 1200 | 165 | R 600 | 120 |
| Centrum | ||||||
| Rechts | R 600/1600/2400 | 190x275 | ||||
| Totaal vermogen | 6100 | 6900 | 6100 | |||
| H = halogeen (haloring), R = enkel straalelement, RO = ovaal straalelement, RD = dubbel straalelement, RT = driedubbel straalelement | ||||||
| Kookplaten | TT 6133 | |||||
| Zone di cottura | Vermogen (in W) | Diameter (in mm) | ||||
| Rechts achefter | ||||||
| Rechts voor | ||||||
| Links achefter | H 2500 | 230 | ||||
| Links voor | R 1200 | 165 | ||||
| Centrum | ||||||
| Rechts | ||||||
| Totaal vermogen | 6100 | |||||
| H = halogeen (haloring), R = enkel straalelement, RO = ovaal straalelement, RD = dubbel straalelement, RT = driedubbel straalelement | ||||||

Italiano, 1

English, 13

Français, 25

Nederland, 37

Deutsch, 49

Portugués, 61
TT 8254
TT 8054
TT 7334
TT 7054
TT 7244
TT 7064
TTG 7324
TT 6324
TT 6224
TT 6134
TT 6234
TT 6244
TT 6054
TT 6044
TT 6143
TT 6133
Inhaltsverzeichnis
Installation, 50-52
Aufstellung
Elektroanschluss
SimpelGids