WKL 1003 - Ogrzewanie AEG - Bezpłatna instrukcja obsługi
Znajdź bezpłatnie instrukcję urządzenia WKL 1003 AEG w formacie PDF.
Questions des utilisateurs sur WKL 1003 AEG
0 question sur cet appareil. Repondez a celles que vous connaissez ou posez la votre.
Poser une nouvelle question sur cet appareil
Pobierz instrukcję dla swojego Ogrzewanie w formacie PDF za darmo! Znajdź swoją instrukcję WKL 1003 - AEG i weź swoje urządzenie elektroniczne z powrotem w ręce. Na tej stronie opublikowane są wszystkie dokumenty niezbędne do korzystania z urządzenia. WKL 1003 marki AEG.
INSTRUKCJA OBSŁUGI WKL 1003 AEG
Instrukcja uzytkowania i montazu
KohBekTop
IHCTpyKzna IO MOHTaKy I KcNyaTaZn
Deutsch
English
Français
Nederlandsls
Espanol
Cesky
Polski
Pysckn

ME95
Inhaltsverzeichnis
Deutsch Seite 4 - 9
1.1 Opis urzadzenia
1.2 Obsługa
1.3 Wskazówki dotyczę beziepędstwa
1.4 Czyszczenie i konserwacja Co robić, gdy? 42
2. Instrukcja montazu 43-44
2.1 Budowa urzadzenia
Dane technicne 43
2.2 Przepisy i zalecenia
2.3 Montaž urzadzenia
2.4 Podlącenie elektryczne
2.5 Przekazanie Uzytkownikow Gwarancja 45
Srodowisko naturalne i recycl Kling 45
Copepknne
Pycckn 46-50
1.Инструкцяno экплуataunn 46-48
1.1 Onicahne npnbopa 46
1.2 06cnykBaHne 46
1.3 Ka3aHn no 6e30nacHOCTn 47
1.4 YxoadnTexHnueckoe 06cnyKnBaHne TTo deJaTb,ecn...? 47
- INHCTpykunno MOHTaKy 49-50
2.1 CoctabJIoUne npu6opa 49 TexHnueckNe xapaKTePcntIKn 49
2.2 Ka3aHnno 6e30NaChOCTn 49
2.3 MoHTaK 50
2.4 ΘneKtpnueckoe
ПОДКЛЮЧЕНЕ 50
2.5 CdaaB EKcnnyatauio 50 TapaHTnA 50


C26_07_31_0033

A
C26_07_31_0034
B

1

1

C
C26_07_31_0035
1. Instrukcja obstugi

W celu uniknięcia potencjalné ryzyka pożaru lub prāzenia prądem elektrycznym uzytkOWanie urzadzen elektrycznych musi byc zgodne z obowiazujacymi w tym zakresie przypeisami. W zwiaźku z powyśznim urzadzenia nalezy uzytkoAAC zgodnie z wskazówkami zaleceniami zawartymi w niniejszej instrukcji. Kaźde uźcie konwektora niedzignodne z zaleceniami producenta要去 spowodowej uszkodzenia urzadzenia lub niebezpiecznstwo dla zdrowia Uzytkownika. Nalezy zwrócić uwage na prawidowy dobor mocy grzewciej konwektora do zapotrzebowania ciepla pomieszczenia. Przed Rozpoczeciem eksploataci urzadzenia nalezy przyecztyac starannie niniejsza instrukcje i przystrzegać jej zalecen.
Niniejsz instrukcje obslugi nalezy starannie przechowa i w przypadku sprezedaź urzadzenia przybekazć ja nowemu wąsćcielowy.
W przypadku napraw lub konserwacci konwektora instrukcj眩 nalezy udostepnic Serwisantowy do wgladu.
1.1 Opis urzadzenia
Konwektory typu WKL są przystosowane wylączne do montazu na scianie. Słȩź są wy)—czyne z)—ó zoogrzewania np. w)—zienkach lub toaletach, oraz sąogrzewanie wspomag)—ce lub okresowe w—whojach gościnnych i pomieszczeniach do uprawiania hobby.
Typoszereg WKL - S
Po zamocowaniu na scianie i podlączeniu do gniazdka elektrycznégo urzadzenia jest gotowe do uzytku.
Typoszereg WKL-U
Po zamocowaniu na scianie i podlączeniu stałym poprzej puszek przyłączeniowa do obwodu elektryczné urzadzenia jest gotowe do uzytku.
Dziatanie urzadzenia
Powietrze dopłyjawace do konwektora jest ogrzewane przyez element grzejny (grzalicke) i wyplya górnakratka wyplywu powietrza (4) na zasadzie naturalnej konweckj. Zimne powietrze dopływa do urzadzenia poprzyez otwory znajdujace sie w是我的olnej czesci.
Elementy zabezmieczajace
Konwektory posiadaj ogranicznik temperatury bezpieczneistwa (STR), kóry wylacza urzadzenie w przypadku seinen przyegrzania. Po usunieciowy zatkane otwory doplywu lub odplywu powietrza, konwektor podejmuje automatycznie dalsz prace.
1.2 Obsługa
Konwektor jest wlaczany lub wyluczany przy pomocy wylacznika (1) znajdujacego sie z sprawej strony urzadzenia. Zadana temperatura pomieszczenia nastawiana jest za pomocag Pokretla doboru temperature (2) bezstopniowo w zakresie od ok. +6^ do +30^. Temperatura w pomieszczeniu utrzmywana jest na sta tym nestawionym poziomie, Dzieks wbudowanemu w urzadzenia regulatorowi temperature, poprzej krótkie powtarzajcse sie nagrzewanie. W tym celu moc grzewcza urzadzenia musi odpowiadać co najmiej zapotrzebowaniu cieplnemu pomieszczenia. Jeźeli w danym pomieszczeniu znajduje sie kila urzadzen grzewczych ustawienie Pokretla doboru temperature w poszczeugolnych urzadzeniach möglich nie byc jaknekawe. W celu uniknięcia nadmiernego zuzycia energii elektrycznej przy otwartych oknach, podczas wietrzenia pomieszczenia konwektor naleź wylaczyc wylacznikiem (1).
Zabepieczenia przyceiwmrozowej
W przypadku uzycia konwektora jako zabezpieczenia pomieszczene przyd zamarzaniem, Pokrto do boru temperature (2) nalezy przykrecić do oporu w kierunku odwrotnym do ruchu wskazowek zagara (*). W takim połozeniu regulator temperature walks zogrzewanie w chwili spadku temperature w pomieszczeniu do wartosci ok. +6 °C.
Ograniczenia regulatora temperature
Przy pomocy dwóch sztyftów (3) znajdujacych sie na tylnej sciance obudowy regulatora przy—we jest ograniczenia regulatora temperatury do okreslonej nastawy lub ograniczenia zakresu nastaw temperatury.
W celu ograniczenia do zadanej temperatury nalezy sztyft a wetknac w otworznajdujacy sie po stronie przyciwnej.
Przy ograniczaniu zakresu nastaw temperatury nalezy nastawic wartoscminimalna i maksymalnaPokretlem doboru temperaturi zaznaczy poprzej wetkniecie sztyftu b w otworznajdujczy sie po przyciwnej stronie.

1.2.1 Dodatkowy regulator temperature
Ogrzewacz要去 wólplacowac z dostepnymi w handlu regulatorami temperatury. W tym celu nalezy przyzekrecic podrétlo doboru temperatury (2) do oporu w kierunku ruchu wskazowej zagara (MAX). Dodatkowy regulator temperatury powinien byc umieszczony na wysokość co najmiej 1,5 m od podlogi, w sąwiwie duzej odlegosci odogrzewacza.
1.2.2 Wyęczenia z eksploatacji
W celu calkowitego wyłaczenia urzadzenia nalezy ustawic wyplacznik w pozycj wyf. (AUS) i wciagnac wtyczke z gniaiazdka. Wtyczki nie wolno wciaga c gniaiazdka za przywod.
1.3 Wskazówki dotyczne bezpiecznychsta

Urzadzenie nie要去 byc uzywane:
- w pomieszczeniach zagrożonych niebezpiecz)—stwem poźaru lub eksplozji przydz)—stanie chemikaliów, jurzu, gazów—I—atwopalnych oparów.
- w bezposrednej bliskosci przywodów lub zbiorników zawierajych materialy latwopalne lub zagrozone eksplozja.
-
Zesto go powodu niedopuszczalne jest niezachowanie minimalnych odlegosto.
-
Montañ instalaci elektrycznej, pierwsze uruchomienie oraz konserwacja urzadzenia mogą być wykonywane{jedynie przyez uprawnionego Fachowca, na podstawie niniejszej instrukcji
- Urzadzenie nie要去 byc w zadnym wypadku uzytkowane w chwili gdy w pomieszczeniach, w ktorych sie znajduje prowadzone są pracce malarskie, ukladanie podlrog lub wykladzin, czyszczenie przy uzyciu benzyny lub podobnych plynów katwopalnych oraz pastowanie podlrog.
- Powierzchnie obudowy i kratki wylotu powietrza moga podczas pracy urzadzenia nagrzewac sie do temperatury ok. 80^ . W基础知识 wędym przypadku nie powinny przybywamy噫ie!
Zuwagi na niebezpieczeanstwo zapalenia sie nie nalezy ukladać na ogrzewaczu, opierać ani wsuwać pomiedzy ogrzewacz i scianę zadnych przydmiotów np. ręczników, bielizny itp. Ponadto w najbliszym otoczeniu urzadzenia nie mogą znejdować się zadne serwety, zaśony lub pojemniki z substancjami latwopalnymi.

W celu zabeepieczenia konwektora przyd przyegrzaniem nie wolno go zakrywać.
- A Naleź y zachować nizzej wymiemenione minimale odlegość mebli, zaston, firanek i materialów latwopalnych od elementów konstrukcyjnych ogrzewacza:
od otworow wylotowych 500mm
od bokow 100mm
od górnaj częci obudowy 150mm
od dolnej czeci obudowy 100mm
od tylnej scianki urzadzenia 26mm
Goracegowietremeizbezprzeskódwyplywaczuradzenia
- Konwektor nie möglich być uzywany jako stojący
- Nie stawać na urzadzeniu
- Nie wolno dokonywać zadnychzmian lub przeróbek konwektora
- Urzadzenia nie pozostawiac bez nadzoru podczas pracy
- Ostrożnosć zalecana jest szczególnie w przypadku obecnosci daneci, zwierȩz菩提 lub osob niepełnosprawnych
- W przypadku uszkodzenia elementów konwektora,(go upadku lub wystapienia uterki nie nalezy go uruchamiać
- W przypadku uszkodzenia przyczycy go wymienc na oryginalny offerings przyczycy Producenta. Wymiany są dokonać wymienc Zaklad Serwisowy.
1.4 Czyszczenie i konserwacja
W przypadku ewentualnégo wystapienia na obudowie urzadzenia lekkich brazowych przybarwien, nalezy je niedzwocznie usunac wilgotna sciereczka. Urzadzenia nalezy myc po ostygnięciu uzywajć zwyknych srodków pielegnacyjnych. Unikaśrodków szorujczych i zranych. Nie wolno pryskaś srodków czyszczących do otworów wlotu i wylotu powietrza. Przy regularnych przygladach nalezy dokonywać rownikę kontroli elementów regulujuco -kontrolnych. Najpoźniaj po 10 latach od pierwszego uruchomienia nalezy bezwzgliednie dokonać dokladnej kontroli wzystkich elementów regulacyjno - zabezpieczązych.
Co robić, gdy?
- Urzadzenie nieogrzewa sie?
Sprawdzić,czy...
... Włączony jest wylącznik.
... Wlaczone sā bezpieczniki lub nie zadziala lo zabepeziczenia róznicowo-pradowe.
Usnac przyczynie!
Ježeli konwektor nadal nie ogrzews zawiadomic Serwis!
- Urzadzenie wylacja są samoczynnie?
Sprawdzic,czy urzadzenie nie jest zakryte i czyNie doszlo do loro przyegrzania (np. zatkane otwory powietrzne)
Usanac przyczynie!
Ježeli po kilku minutach ochlodzenia urzadzenia nadal nie grzeje, zawiadomic serwis!
Zostanie powiadomiony serwis?
podac typ (Typ) i numer (Nr.:) urzadzenia z tabliczki znamionowej (8)
AEG
Typ:WKL...
E-Nr.: F-Nr:
2. Instrukcja montazu
Zamocowanie ogrzewacza i wykonanie podłączenia elektrycznych powinny być wykonane przy Instalatora na podstawie niniejszej instrukcj.
Opakowanie urzadzenia nalezy usunac na几点cu montazu. Przy Rozpakowaniu urzadzenia nalezy sprawdzić,czy w opakowaniu nie zostyh zadne elementy.
2.1 Budowa urzadzenia
4 Kratka wypfyuwo cieplgo powietrza
5 Listwa mocujaca
6 Bolec zabeepieczajacy
7 Przewód zasilania elektrycznégo
8 Tabliczka znamionowa
Dane techniczne
| Typ | WKL 503 S WKL 503 U | WKL 753 S WKL 753 U | WKL 1003 S WKL 1003 U | WKL 1503 S WKL 1503 U | WKL 2003 S WKL 2003 U | WKL 2503 S WKL 2503 U | WKL 3003 S WKL 3003 U | |
| Wys. mm 450 | ||||||||
| Szer. mm 370 445 445 | 590 74 | 40 890 1040 | ||||||
| Gleb. z listwa mocujacja | mm | 78 100 | ||||||
| Wymiar A mm 121 195 | 195 3 | 43 491 639 787 | ||||||
| Ciezar kg 4,0 4,6 4,6 6,0 | 7,2 8 | 4 9,9 | ||||||
| Zasilanie 1/N ~ 230 V | ||||||||
| Moc grzewcza | kW | 0,5 | 0,75 | 1,0 | 1,5 | 2,0 | 2,5 | 3,0 |
| Zakres nastaw temp. | °C | ok. 6 do 30 | ||||||
| Zabezpieczenie przy- ciwmyrozowe | °C | ok. 6 | ||||||
| Klasa zabezpieczenia | II | |||||||
| Rodzaj ochry | IP 24, (bryzgoszczelna) | |||||||
| Dopuszczenia | Patrz tabliczka znamionowa | |||||||
2.2 Przepisy izalecenia
Urzadzenie nie要去 byc uzywane:

- w pomieszczeniach zagrozonychNiebezpieczentwem pozaru lub eksplozji przydziały chemikaliow, jurzu, gazów i latwopalnych oparów.
- w bezposrednej bliskosci przywodów lub zbiorników zawierajych materiały latwopalne lub zagrozone eksplozja.
Z tego powodu niedopuszczalne jest niezachowanie minimalych odlegosto.
W warsztatah lub innych pomieszczeniach, w ktorych wystepuja spaliny, oleje i opary benzyny lub tez chemikaliaczy Rozpuszcjalniki要去 dochodzic do utrzymujacych sie przydysz czas nieprzyjemnych zapachow lub zanieczyxczen.
- urzadzenie要去byczamontowane tylko na pionowej scianie odpornej na temperature minimum 80^
- naleź bezwzględnie zachowaćminimalne odlegość od otaczajycch przyzemiotów
-
instalacja elektryczna i podłaczenia musza byc wykonane zgodnia z Polska Norma i zaleceniami Zakladow Energetycznych
-
urzadzenie nie maye byc zamontowane bezposrednio pod gniazdkiem elektrycznym
- o ile urzadzenie zostanie podlaczone do elektrycznej puszki przyjaczeniowej nalezy przywidzie monoczoc odlaczenia od sieci na wzystkich biegunach na odlegostość minimum 3 mm, za pomocaj bezpieczników lub przykaźników.
Instalacja za pomoczą kabla przywodu ulożonego na state nie jest dozwolona.
- napięcie w miajscu montaqu ogrzewacza musi byc zgodne z podanym na tabliczce znamionowej
- przy instalaju urzadzenia w pomieszczeniach wyposzaźonych w wannę lub kabinet prysznicowej sąȩ przyestrzegać stref bezpiecznośćstwa
- urzadzenie nalezy zamontowac w taki sposob, abyPokretlo regulacci bylo niedostepne dla osob znajdujacych sie w wannie lub pod prysznicem
- przewód zasilania sieciowegoMZe byc wymieniony tylko przyz uprawnionego Fachowca, na oryginalny przewód producenta
2.3 Montaž urzadzenia
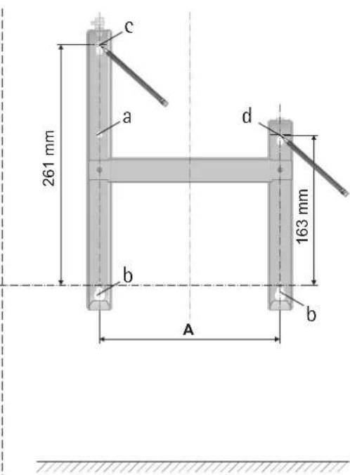
2.3.1 Montaz uchwytu sciennego B
Listwo mocujacn alezy wykorzysta c jako szablon do montazu. Zapewnia ona prawidlowe umieszczenie konwektora.
Mocowanie urzadzenia nalezy wykonać w nastepujuć sposob:
- 1 zaćzona do urzadzenia listwo mocujuca (5) ustawic poziromo na podłodze i zaznaczy na scianie otwory montażowe a i d.
- Podniaśc listwe mocujacja tak, aby otwory b w listwie mocujacej pokrywały są wykonanymi uprzejnio zaznaczenia iama na scianie
- zaznaczyc na scianie otwory c i d listwy mocujacej
- w mistręcach wzystkich czterech zaznaczenia wywiercie otwory i przymocowej listwo monocȩ są przy pomocy odpowiednych kolars rozporowych i wkrétów, przystosowanych do danego rodzaju sciany. Przy wykorzystaniu poziomych i pionowych otworów wźdlużnych moziwa jest korekta połozenia listwy w przypadku niedokladnégo wykonania otworów w scianie.
2.3.2 Montaž urzadzenia C
Przy wykorzystaniu przyciec w tylnej sciance zawiesic konwektor rownoczesnie na 4 wystepach listwy mocujuść i wcisnac zatrzask. Obrócić bolec zabezmieczajacy (6) listwy mocujuść do oporu, w kierunku ruchu wskazówek zagara. W celu demontazu konwektora, po odblokariusi bolca zabezmieczajacego urzadzenia podniać lekko i wysunć do przyduz zaczepów.
2.4 Podłaczenia elektryczne
Podlącenie elektryczne są wykonane tylko do sieci prȩdu zmiennego o napieciu 230V
Do podłaczeniaNSE zaintalowc gniazdko sieciowe uziemieniem lub elektryczna puszke przyączeniowa w odlegosci minimum 10 cm od boku urzadzenia. Przy podlączeniu do puszki przyączeniowejNSE obciac wtyczke, a przewod elektryczny skroci w razie potrzeby w taki sposob, abyNie leza na urzadzeniu. Końcowski przyewodow zalutowc lub wyposaźc w tulejezaciskowe.
2.5 Przekazanie Uzytkownikowski
Nalezy wyjasnic zasadę dzialania i funkcie urzadzenia. Zwóciuwage na bezpieczentwo uzytkowania.
ProstaInstrukcja